21.2. Механизированные пинии комплектации и раздачи обедов
На предприятиях общественного питания при промышленных предприятиях, вузах, техникумах, школах и т.д. широко используются механизированные линии комплектаций и раздачи комплексных обедов ЛККО "Поток"; механизированная линия комплексных обедов МЛКО "Прогресс", механизированный прилавок самообслуживания МПСО; линия комплектации и накопления обедов ЛКНО "Эффект".
Линия ЛККО "Поток" предназначена для комплектации и отпуска одного вида комплексного обеда, в состав которого входят: первое блюдо, основное соусное или несоусное второе блюдо и гарнир; холодная закуска; сладкое блюдо или горячий напиток.
Первые блюда порционируются в фаянсовые тарелки диаметром 240 мм или в супницы из нержавеющей стали, вторые блюда — в тарелки диаметром 200 мм или в одно-порционные баранчики, холодные закуски — в салатники, сладкие блюда — в стаканы, хлеб — на пластмассовые лотки. Обед комплектуется на поднос, на который укладываются и столовые приборы.
Линия состоит из ленточного транспортера комплектации ТКШ и раздаточного передвижного оборудования, которое устанавливается группами и предназначается для выполнения определенных операций.
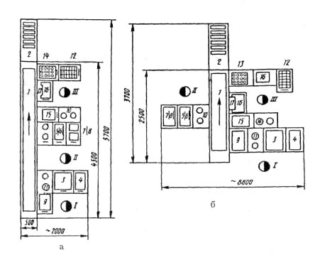
Линия выпускается в четырех вариантах: ЛККО-1 и ЛККО-2 (рис. 21.4) (300 обедов в час комплектуют три комплектовщицы), ЛККО-3 и ЛККО-4 (600 обедов в час комплектуют пять комплектовщиц).

Рис. 21.4. Линия комплектации комплексных обедов ЛККО "Поток":
а — с односторонним расположением раздаточного оборудования ЛККО-1, б — с двусторонним расположением раздаточного оборудования ЛККО-2
В линиях ЛККО-2 и ЛККО-4 передвижное раздаточное оборудование располагается по обе стороны от транспортера, в линиях ЛККО-1 и ЛККО-3 — с одной стороны.
При обслуживании линии ЛККО-1 выделяется три поста, на которых комплектовщицы выполняют определенные операции. Например, первая комплектовщица (пост I) берет суповые миски из тележки 11, порционирует первые блюда из мармитов 3 и 4, устанавливает миски на верхний поднос в тележке 9, а поднос с мисками — на ленту транспортера 1. Вторая комплектовщица (пост II) берет тарелки (или баранчики) из тележки 10, порционирует гарнир (простой) из мармита 7 или (сложный) из мармита 8, основное второе блюдо (соусное) — из мармита 5 или (несоусное) из мармита 6, устанавливает тарелки (баранчики) на поднос, перемещающийся по ленте конвейера.
Третья комплектовщица (пост III) берет тарелки из тележки 10, укладывает на них хлеб из тележки 15 и ставит на подносы, кладет столовые приборы из кассеты 17, берет сладкое блюдо из тележки 14 и салатники с холодной закуской из тележки 12 и устанавливает на подносы. Эта комплектовщица принимает чек или талоны на оплату за обед от потребителей и контролирует снятие ими подносов с конвейера.
Если на линии ЛККО-1 в состав обеда взамен сладкого блюда будет включен горячий напиток, то тележка 14 заменяется тележкой 13 и добавляется тележка 16 с термоста-| том. Скомплектованный на подносе обед продвигается по транспортеру в зал. Потребители, проходя вдоль транспортера, выходящего в обеденный зал, снимают поднос с обедом и относят его к месту потребления. Если поднос не будет снят с конвейера, то он попадет на рольганг-накопитель 2.
После заполнения всего накопителя крайний поднос нажимает на рычаг концевого выключателя и конвейер останавливается. Линия ЛККО работает эффективно в том случае, если интенсивность входящего потока потребителей равна или близка к пропускной способности линии.
Линия ЛКНО "Эффект" (рис. 21.5) предназначена для комплектации, накопления и реализации двух видов комплексных обедов одинаковой стоимости. Данную линию рекомендуется использовать при обслуживании циклического (периодического) потока посетителей. Обеды на линии комплектуют, накапливают и отпускают на специальных подносах с металлическими чашками-вставками.

Рис. 21.5. Линия комплектации и накопления комплексных обедов ЛКНО "Эффект":
а — внешний вид; б — варианты линии
Линия состоит из раздаточных стоек-накопителей СНР 14, ленточного конвейера комплектации ТКШ 13 и передвижного раздаточного оборудования.
Стойка-накопитель служит для накопления, кратковременного хранения подносов с обедами и поддержания необходимой температуры первых и вторых блюд и устанавливается в зале вдоль транспортера комплектации, выходящего в зал. Стойка-накопитель — это сборно-разборный многосекционный стеллаж, каждая секция которого имеет по четыре полки, прикрепленных к стойкам и закрытых снизу основанием. С боковых сторон стойки закрыты панелями. В полки стойки-накопителя вмонтированы электрические конфорки, на которые устанавливаются подносы. От конфорок теплота через металлические чаши-вставки в подносе передается тарелкам с блюдами.
На поверхности полок имеются направляющие для установки и перемещения подносов; причем при установке подносов их металлическая чаша-вставка должна совмещаться с поверхностями электронагревательных элементов. Вместимость одной стойки-накопителя — 16 обедов. Время разогрева до рабочей температуры — б мин. Над стойкой устанавливают вытяжной воздуховод для отвода тепловыделений.
Передвижное раздаточное оборудование (тележки, мармиты 1—12) устанавливается перпендикулярно транспортеру комплектации и образует рабочие места комплектовщиц. Порядок комплектации комплексных обедов на линии ЛКНО "Эффект" аналогичен порядку на ранее рассмотренных механизированных линиях.
Комплектация обедов на линии осуществляется до прихода потребителей. Подносы с обедом снимаются с транспортера комплектации и устанавливаются на полки стоек-накопителей. Для этого предусматривается рабочее место комплектовщицы у стоек-накопителей. После заполнения всех стоек подносами с обедом они хранятся там в течение непродолжительного времени. Потребители заходят в зал одновременно, снимают со стоек-накопителей подносы с обедом и относят их к обеденному столу. Очереди на линии. "Эффект" отсутствуют. За время потребления обеда на линии вновь комплектуются и накапливаются обеды.
Линия "Эффект" выпускается в трех исполнениях: ЛКНО-1 — для залов на 100 мест; ЛКНО-2 — на 150; ЛКНО-3 — на 200 мест (табл. 21.3).
Таблица 21.3
Технические характеристики линий ЛКНО
|
Показатели |
ЛКНО-1 |
ЛКНО-2 |
ЛКНО-3 |
|
Производительность, обедов/ч |
400-500 |
600-700 |
800-1000 |
|
Установочная мощность, кВт |
36 |
61 |
70 |
|
Количество секций-накопителей, шт. |
8 |
12 |
16 |
|
Установочная мощность накопителей, кВт |
18 |
27 |
36 |
|
Число комплектовщиц |
6 |
9 |
12 |