4.2. ПРОИЗВОДСТВЕННЫЕ ПОМЕЩЕНИЯ
Основные принципы проектирования. Состав цехов предприятий общественного питания зависит от типа предприятия, его вместимости или мощности, характера производственного процесса (работает на сырье или на полуфабрикатах) и формы обслуживания.
Производственные помещения предприятий, работающих на сырье, включают: горячий и холодный цехи, мясной, птице гольевой, рыбный и овощной, помещение мучного цеха (кондитерский цех); моечные столовой и кухонной посуды, помещение для резки хлеба, помещение заведующего производством.
На предприятиях с обслуживанием официантами предусматривают дополнительно к перечисленным помещениям раздаточную, сервизную и буфет.
Состав помещений доготовочных предприятий отличается тем, что в них вместо мясного, рыбного (мясо-рыбного) и овощного цехов предусматривают доготовочный и цех обработки зелени.
На предприятиях, реализующих готовую пищу (столовые-раздаточные), предусматривают помещение для приема термосов с пищей, временного хранения, подогрева и порционирования, моечную столовой и кухонной посуды, помещения для резки хлеба, а также помещение для заведующего производством.
Состав цехов заготовочного предприятия зависит от наличия в районе строительства сырьевой базы, перерабатывающих цехов на мясокомбинатах, птицефабриках и рыбных комплексах, овощных цехов — на овощеперерабатывающих базах.
На заготовочных предприятиях предусматривают цехи для механической кулинарной обработки сырья и производства полуфабрикатов (мясной, цех обработки птицы и субпродуктов, рыбный и овощной), цехи, изготовляющие кулинарную и кондитерскую продукцию.
Не все перечисленные производственные помещения могут быть предусмотрены при проектировании предприятий. Связано это с их мощностью.
Мясной цех выделяют как самостоятельный в столовых и ресторанах с числом мест в залах более 400, мясо-рыбный — менее 400, птице-гольевой — только в ресторанах с числом мест более 300.
Доготовочный цех предусматривают во всех предприятиях независимо от их мощности; это же имеет место при проектировании цеха обработки зелени в ресторанах. В столовых цех обработки зелени выделяют как самостоятельный, начиная с 250 мест.
На заготовочных предприятиях мощностью от 3 до 5 т сырья в смену мясо, птицу и рыбу обрабатывают в одном помещении — мясо-рыбном цехе.
При проектировании предприятий общественного питания к производственным помещениям предъявляют ряд требований по научной организации труда.
Цехи размещают в отдельных помещениях наземных этажей здания со стороны хозяйственного двора или торцов здания с ориентацией на север, северо-восток и северо-запад. Цехи не должны быть проходными. Исключение составляют отделения цехов, связанные с цехами непрерывным технологическим процессом, и предприятия, спроектированные по бесцеховой планировочной схеме. Технологический процесс изготовления готовых блюд и кулинарных изделий осуществляют в них в одном, хорошо освещенном помещении, без деления его на отдельные цехи глухими перегородками. Этим приемом достигается возможность создания планировочной схемы «гибкого цеха», что позволяет осуществлять без реконструкции свободную перестановку оборудования и изменять технологические процессы и профиль предприятия, обеспечивать возможность централизованного наблюдения за производством. Применяют бесцеховую планировочную схему в предприятиях небольшой мощности, работающих на сырье и полуфабрикатах.
Производственные помещения должны быть взаимосвязаны, иметь удобную связь с необходимыми группами помещений. На рис. 4.6 представлены схемы взаимосвязи производственных помещений заготовочных и доготовочных предприятий, работающих на сырье, а также ресторанов.
Производственные помещения должны иметь достаточную естественную освещенность. В них следует избегать размещения канализационных стояков, труб и опор, ниш, выступов, карнизов и других сложных элементов внутренней отделки во избежание затемнения помещений и скопления пыли.
Кроме освещенности при создании оптимальной среды в производственных помещениях необходимо следить за состоянием воздушной среды: температурой, влажностью, степенью чистоты и скоростью движения воздуха. Температура воздуха в помещениях должна быть в пределах 15 — 16 °С.
Размещение оборудования в производственных помещениях необходимо осуществлять с учетом обеспечения прямолинейного и кратчайшего пути движения сырья, полуфабрикатов и готовой продукции между участками и рабочими местами с применением средств механизации.
При проектировании предприятий общественного питания важную роль играет выбор размеров рабочих мест, учет антропометрических данных и требований физиологии труда. Правильно организованное рабочее место повышает эффективность труда на 20 %.
Факторами, влияющими на выбор и назначение размеров рабочих мест, являются: рост работающих, требуемое расстояние видения (удаление глаз от обрабатываемого предмета) и угол зрения.


Рис. 4.6. Схемы взаимосвязи производственных помещений:
а — заготовочного предприятия, б — доготовочного предприятия, в — предприятия, работающего на сырье, г — ресторана
Другие важные факторы формирования и компоновки рабочих мест на предприятиях общественного питания: размещение оборудования в соответствии с направлением технологического процесса; правильная фиксация размеров рабочих проходов, служащих одновременно и путями движения; организация путей движения по кратчайшим, прямолинейным и не имеющим пересечений направлениям; обеспечение хороших условий для уборки рабочих мест; учет требований охраны труда при установке машин и приборов.
Для оснащения небольших специализированных предприятий общественного питания и буфетов выпускают малогабаритное модульное оборудование: мармиты; сосисковарки; пельменеварки; тепловые шкафы, фритюрницы, плиты; охлаждаемые витрины трех типов и секции со шкафом и емкостями; подставки для настольного оборудования; устройства для улучшения микроклимата; моечные ванны; раздаточные полки и декоративные панели.
Управление модульным оборудованием, а также его подключение к электролинии, водопроводу и канализации осуществляют с фронтальной стороны, что обеспечивает одностороннее его обслуживание и ремонт только с фронтальной стороны (в противоположность обычному оборудованию, которое требуется обслуживать и с других сторон).
Это позволяет устанавливать секции модульного оборудования вплотную одна к другой в сплошные технологические линии как пристенным, так и островным способом. Секционность этого оборудования и наличие в комплектах угловых стоек позволяют изменять на 90° направление технологических линий и, следовательно, устанавливать его в помещениях любой конфигурации, а широкая номенклатура — подбирать нужные аппараты в соответствии с типом и производственной мощностью предприятий.
Линейный принцип расстановки различных видов модульного оборудования и возможность легкой перекомпоновки его в различные технологические линии позволяет обеспечить последовательную и удобную взаимосвязь различных стадий технологического процесса с учетом прямоточности движения продуктов на производстве. Использование модульного оборудования позволяет перейти к организации производства в одном объеме, без цехового деления.
Модульное оборудование обеспечивает создание оптимальных условий в рабочей зоне. Линейное (островное и пристенное) размещение секционного модульного оборудования позволяет оснастить его локальными системами (местными вентиляционными отсосами). Каждую из тепловых секций снабжают коробом, в котором совмещают приточную и вытяжную системы вентиляции. Короба отдельных секций соединяют в единую линию. Приточный воздух с помощью жалюзийной решетки может подаваться либо непосредственно в рабочую зону (душирование), создавая воздушную завесу против теплоизлучений, либо вверх в общий объем помещения. Благодаря этому пары, дым и прочие вредные газообразные отходы, а также запахи улавливаются непосредственно над источником и удаляются еще до того, как они успевают рассеяться по всему помещению и загрязнить воздух. В результате этого работники избавлены от неудобств, связанных с наличием вредных примесей и запахов в атмосфере помещения.
Установочная площадь, приходящаяся на единицу площади рабочей поверхности, для модульного оборудования в 1,4 — 5,4 раза меньше, чем для аналогичного немодулированного оборудования.
При оснащении цехов заготовочных предприятий следует ориентироваться на использование функциональных емкостей и средств их передвижения — стеллажи, контейнеры, тележки, подъемные устройства для загрузки в пищеварочные котлы и выгрузки из них кассет с функциональными емкостями. Их использование позволяет сократить число перевалок продукции в процессе ее изготовления и транспортирования.
С учетом требований научной организации труда, соблюдения правил техники безопасности и производственной санитарии установлена определенная ширина проходов (табл. 4.4 и 4.5).
Таблица 4.4
Ширина проходов в производственных помещениях заготовочных предприятий
|
Проход |
Минимальная ширина, м |
|
Между линиями вспомогательного оборудования |
1,5 |
|
Между линиями вспомогательного и теплового оборудования |
1,5 |
|
Между линиями теплового оборудования |
2,0—2,5 |
|
Между механизированными линиями: |
|
|
при снятии продукции с боковых сторон конвейеров |
2,5 |
|
при снятии продукции с торцов конвейеров |
8,0—1,0 |
|
для разворота электропогрузчиков |
3,0 |
|
Магистральные (основные) проезды |
3,0 |
Таблица 4.5
Ширина проходов в производственных помещениях доготовочных предприятий общественного питания
|
Проход |
Минимальная ширина, м |
|
Между технологическими линиями оборудования (столами, ваннами и т. п.) при расположении рабочих мест в проходе в два ряда при длине линии оборудования: |
|
|
до 3 м |
1,2 |
|
более 3 м (но не выше 6м) |
1,3 |
|
Между стеной и технологической линией оборудования (со стороны рабочих мест) |
1,0 |
|
Между технологическими линиями вспомогательного оборудования и линиями оборудования, выделяющего теплоту |
1,3 |
|
Между технологическими линиями оборудования, выделяющего теплоту, а также между этими линиями и раздаточной линией |
1,5 |
|
Между стеной и плитой (со стороны топочного отверстия): |
|
|
при твердом топливе |
1,5 |
|
при других видах топлива |
1,25 |
Примечание. При длине ряда столов до 3 м ширина прохода должна быть не менее 1,3 м; свыше 3 м — не менее 1,5 м
Мясной цех. Предназначен для обработки мяса (говядины, свинины, баранины) и изготовления полуфабрикатов (крупнокусковых, порционных, мелкокусковых, из натурального рубленого мяса и котлетной массы).
Мясные цехи большой мощности проектируют на заготовочных предприятиях и крупных предприятиях, работающих на сырье; средней и малой мощности (мясо-рыбный цех) — на предприятиях, перерабатывающих сравнительно небольшое количество мяса, рыбы и птицы.
Мясные цехи можно проектировать и как самостоятельные заготовочные предприятия с полным составом помещений для организации производства, приема и хранения полуфабрикатов.
Мясной цех предприятия, работающего на сырье, независимо от его мощности проектируют в одном помещении.
В мясном цехе заготовочного предприятия, работающего на сырье, предусматривают ряд помещений: камеры для размораживания мяса; помещение для зачистки туш; мясное отделение; охлаждаемая камера полуфабрикатов; кладовая полуфабрикатной тары; помещение для обработки костей; моечная инвентаря; помещение начальника цеха.
Технологический процесс обработки мяса в цехах, работающих на сырье, организуют по схеме: размораживание туш —> обмывание и обсушивание —> деление на отруба —> обвалка отрубов —>жиловка и зачистка частей —> приготовление полуфабрикатов —> укладка в функциональные емкости —> охлаждение и кратковременное хранение —> транспортирование. При работе мясных цехов на крупнокусковых полуфабрикатах операции по обвалке, зачистке и жиловке мяса отсутствуют. Обмывание мяса предусматривают в ваннах мясного отделения цеха.
Мясные туши, полутуши и четвертины доставляют в складские помещения, а из складских помещений — в камеры размораживания и мясное отделение цеха по непрерывно продолжающемуся подвесному пути, длину которого принимают из расчета 250 кг мяса на участок подвесного пути длиной 1 м.
После обмывания и обсушивания мясо разделяют на отруба; обвалку, зачистку производят на конвейере, длину которого определяют из расчета 1,6 м на одного работника; расстояние между осями параллельно установленных конвейеров 6 м. Столы обвальщиков устанавливают перпендикулярно конвейеру на расстоянии 0,8 м один от другого.
В мясных цехах мощностью менее 5 т перерабатываемого сырья в сутки мясные туши транспортируют при помощи тележек.
Для изготовления и упаковки порционных и мелкокусковых полуфабрикатов, а также изделий рубленых и из котлетной массы предусматривают отдельные участки, оснащенные холодильным, механическим и вспомогательным оборудованием (столы, ванны и стеллажи). При значительном количестве перерабатываемого сырья участки объединяют в технологические линии: обвалки мяса; приготовления порционных и мелкокусковых полуфабрикатов; приготовления котлетной массы и изделий из нее.
В мясо-рыбном цехе выделяют линии обработки: мяса; птицы и субпродуктов; рыбы.
Участки упаковки полуфабрикатов укомплектовывают передвижными стеллажами с функциональными емкостями. После заполнения емкостей готовой продукцией стеллажи направляют в охлаждаемую камеру полуфабрикатов, а затем, по мере накопления определенной массы продукции, — в экспедицию.
В заготовочных предприятиях мясной цех размещают единым блоком на первом этаже здания рядом с помещениями приема и хранения сырья; при этом обеспечивают удобную связь мясного цеха с кулинарным и с экспедицией. Размещать цех на втором этаже не рекомендуется из-за необходимости транспортировки на второй этаж значительных количеств сырья и со второго на первый — готовых полуфабрикатов.
В предприятиях, работающих на сырье, мясной цех (мясо-рыбный) размещают, как правило, на первом этаже здания, вблизи подъемников и лестничной клетки, при этом обеспечивают удобную связь цеха с помещениями приема и хранения сырья, а также с горячим цехом.
Планировка мясных цехов мощностью 2,0 и 0,5 т показана на рис. 4.7 и 4.8.
Цех обработки птицы и субпродуктов. Предназначен для обработки птицы и субпродуктов и изготовления из них полуфабрикатов: тушки птицы, подготовленные к кулинарной обработке; наборы для студня, рагу, супов и котлеты рубленые; вымя, сердце, печень и почки обработанные.
Цехи обработки птицы и субпродуктов большой мощности предусматривают в заготовочных предприятиях и ресторанах на 300— 500 мест.
Цех размещают на первом этаже здания единым блоком с мясным цехом вблизи подъемника и лестничной клетки; при этом обеспечивают удобную связь с помещениями для приема и хранения сырья, с кулинарным цехом и экспедицией.
В состав цеха входят: помещение для размораживания птицы; помещение для опаливания птицы; отделение обработки; охлаждаемая камера полуфабрикатов; моечная инвентаря; кладовая полуфабрикатной тары; помещение начальника цеха. Если цех работает на полуфабрикатах, не предусматривают помещений для размораживания и опаливания птицы. Размораживание проводят в ваннах или на стеллажах в помещении обработки.

Рис. 4.7. Планировка мясного цеха мощностью 2,0 т:
1 — универсальная машина, 2 — мясорубка, 3 — машина для формовки и панировки котлет, 4, 5 — холодильные шкафы, 6, 7— производственные столы, 8 — тележка-стеллаж, 9 — стул для разруба мяса
Цех обработки птицы и субпродуктов в ресторанах проектируют в одном самостоятельном помещении; при небольшом количестве перерабатываемого сырья обработку птицы и субпродуктов проводят в мясном или мясо-рыбном цехе на отдельных участках.
Технологический процесс обработки птицы и субпродуктов в цехе организуют по схеме: опаливание —> удаление голов, шеек, ножек, крыльев —>потрошение —> промывание —> обсушивание —> заправка тушек —> приготовление полуфабрикатов —> обработка потрохов —> укладка в функциональные емкости —> охлаждение и кратковременное хранение —> транспортирование; удаление несъедобных частей —> замачивание —> обсушивание —> укладка в функциональные емкости —> охлаждение и кратковременное хранение —> транспортирование.

Рис. 4.8. Планировка мясного цеха мощностью 0,5 т:
1 — универсальная машина, 2 — мясорубка, 3 — машина для формовки и панировки котлет, 4— устройство для опаливания птицы, 5, 6 —холодильные шкафы, 7, 8— производственные столы, 9 — моечная ванна, 10 — тележка-стеллаж, 11 — стул для разруба мяса
В цехе выделяют две технологические линии: обработки птицы и субпродуктов. При большом количестве обрабатываемой птицы выделяют помещение для опаливания птицы, где устанавливают опалочные горны. Более удачный вариант — опаливание птицы с помощью газовых форсунок. Подвешенные тушки птицы, вращаясь по замкнутому подвешенному металлическому кольцу, проходят вдоль форсунок и хорошо очищаются от перьев и пуха.
Для изготовления полуфабрикатов предусматривают рабочие места, оснащенные холодильным, механическим и вспомогательным оборудованием (столы, стеллажи и ванны). Головы, шейки, ножки и крылья удаляют пилой, устанавливаемой перед конвейером, длина которого определяется из расчета 1,2 м на одного работника. Столы работниц устанавливают перпендикулярно конвейеру на расстоянии 0,8 м один от другого.
Участок упаковки полуфабрикатов укомплектовывают передвижными стеллажами с функциональными емкостями. После заполнения емкостей готовой продукцией стеллажи направляют в охлаждаемую камеру полуфабрикатов для временного хранения, а из нее — в экспедицию.
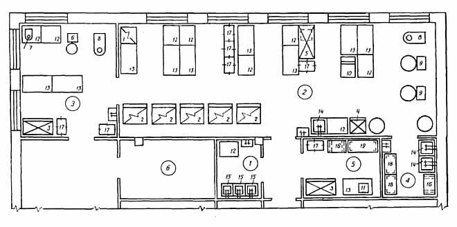
Планировка цехов обработки птицы и субпродуктов мощностью 2,8 т сырья в смену и 150 кг в сутки показана на рис. 4.9 и 4.10.
Рыбный цех. Предназначен для обработки рыбы и изготовления полуфабрикатов: тушек специальной разделки, порционных кусков, изделий из рубленой массы.
Проектируют рыбные цехи в заготовочных предприятиях, столовых и ресторанах на 400 мест и более, работающих на сырье, а также как самостоятельные заготовочные предприятия с полным составом помещений при городских распределительных холодильниках.
Рыбный цех предприятия, работающего на сырье, независимо от его мощности проектируют в одном помещении. В цехе предусматривают линии обработки частиковый рыбы и производства из нее полуфабрикатов, а также линию обработки осетровых рыб (в ресторанах).
В рыбном цехе заготовочного предприятия, работающего на сырье, предусматривают помещения: рыбное отделение; охлаждаемую камеру полуфабрикатов; моечную инвентаря; кладовую полуфабрикатной тары; помещение начальника цеха; помещение Приготовления фиксажа.
Технологический процесс обработки рыбы в цехах организуют по схеме: размораживание —> очистка от чешуи —> удаление плавников, голов, внутренностей —> промывка —> фиксация —> изготовление полуфабрикатов —> укладка в функциональные емкости-—> охлаждение и кратковременное хранение —> транспортирование.

Рис. 4.9. Планировка цеха обработки птицы и субпродуктов мощностью 2,8 т сырья в смену:
Помещения (номера позиций заключены в кружки): 1 — помещение опаливания птицы; 2 — помещение размораживания птицы; 3 — отделение обработки; 4— моечная инвентаря; 5— помещение начальника цеха; 6 — охлаждаемая камера полуфабрикатов; 7— кладовая полуфабри-катной тары; А — линия обработки птицы, Б — линия обработки субпродуктов.
Оборудование: 1 — опалочный горн; 2 — транспортер; 3 — пила для отделения голов, шеи, ножек птицы; 4 — приспособление для удаления клювов и коготков птицы; 5— универсальный привод для мясо-рыбною цеха; 6— котлетоформовочная машина, 7 — хлеборезка (приспособленная для рубки костей); 8 — ванна моечная двухгнездная; 9 — производственный стол со встроенной моечной ванной; 10 — производственный стол; 11 — конторский стол; 12 — производственная передвижная ванна; 13 — емкость для сырьевых отходов; 14 — производственный стационарный стеллаж; 15— передвижной стеллаж; 16— плоский поддон.

Рис. 4.10. Планировка цеха обработки птицы и субпродуктов мощностью 150 кг в сутки:
1 — холодильный шкаф, 2 — устройство для опаливания птицы и дичи; 3 — моечная ванна; 4 — производственный стол; 5 — тележка-стеллаж; 6 — производственный стационарный стеллаж
В цех рыбу доставляют по тельферному пути. Размораживают рыбу путем механической загрузки в сетчатых контейнерах в моечные ванны. Для переработки рыбы предусматривают линии: разделки рыбы и нарезки порционных полуфабрикатов; приготовления изделий из рубленой массы. Линии оборудуют разделочным конвейером, приспособлениями для очистки рыбы, машинами для фиксации и измельчения (мясорубки), столами со встроенными ваннами и передвижными стеллажами. Столы устанавливают перпендикулярно конвейеру на расстоянии 0,8 м друг от друга. Длину конвейера принимают из расчета 1,2 м на одного работника.
Подготовленные полуфабрикаты укладывают в функциональные емкости на отведенном в цехе участке, на стеллажах транспортируют в охлажденную камеру полуфабрикатов для охлаждения и кратковременного хранения, а затем — в экспедицию.
Если рыбный цех работает на полуфабрикатах, поставляемых промышленностью, то предусматривают линию для нарезки порционных кусков и изготовления рубленых изделий с установкой механического и вспомогательного оборудования для этих операций.
Рыбный цех размещают на первом этаже здания единым блоком с мясным цехом, помещениями для приема и хранения сырья; при этом обеспечивают удобную связь рыбного цеха с кулинарным и с экспедицией.
Рыбный цех предприятия небольшой мощности, работающего на сырье, занимает одно помещение, которое располагают на первом этапе здания вблизи подъемника и лестничной клетки, при этом обеспечивают удобную связь рыбного цеха с горячим и с камерой для хранения рыбы.
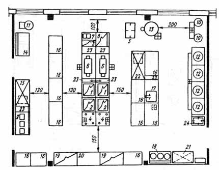
Планировка рыбных цехов мощностью 2 т сырья в смену и 0,5 т сырья в сутки показана на рис. 4.11 и 4.12.
Овощной цех. Предназначен для очистки и изготовления полуфабрикатов очищенного картофеля, корнеплодов, капусты, репчатого лука, сезонных овощей и зелени.
Овощной цех проектируют в основном как самостоятельное предприятие с полным составом помещений при овощехранилищах и плодоовощных базах. Если по каким-либо причинам в городе отсутствуют или прекратили функционировать овощехранилища или плодоовощные базы, овощной цех проектируют при заготовочном предприятии, причем нередко — в отдельном здании.
Во всех предприятиях, работающих на сырье (столовые, кафе, рестораны и диетические столовые), предусматривают овощной Цех. В заготовочном предприятии овощной цех может работать на полуфабрикатах, получаемых от промышленности.

Рис. 4.11. Планировка рыбного цеха мощностью 2 т сырья в смену:
Помещения (номера позиций заключены в кружки): 1 — помещение начальника цеха; 2 — охлаждаемая камера полуфабрикатов; 3 ~ рыбное отделение; 4 — моечная инвентаря; 5— кладовая полуфабрикатной тары;
А — участок нарезки полуфабрикатов; Б — участок приготовления рыбных котлет; В — участок промывки и фиксации рыбы; Г— участок разделки рыбы; Д — участок очистки рыбы от чешуи; Е — участок размораживания рыбы; Ж— участок обработки рыбы с хрящевым скелетом; 3 — участок укладки полуфабрикатов.
Оборудование: 1 — электрическая сковорода; 2 — настольная мясорубка; 3 — универсальный привод для мясо-рыбного цеха; 4 — машина для формования и панирования котлет; 5 — машина для фиксации рыбы; 6 — универсальная рыборезка; 7— приспособление для очистки рыбы; 8 — ванна моечная одногнездная; 9 — ванна моечная двухгнездная; 10 — передвижная ванна; 11 — производственная передвижная ванна; 12 — производственный стол; 13 — производственный стол со встроенной моечной ванной; 14 — конторский стол; 15 — передвижной стеллаж; 16 — стационарный стеллаж; 17 — плоский поддон.

Рис. 4.12. Планировка рыбного цеха мощностью 0,5 т в сутки:
1 — мясорубка, 2 — приспособление для очистки рыбы; 3 — холодильный шкаф, 4,5 — производственные столы; 6— производственный стол для очистки рыбы, 7— моечная ванна; 8 —тележка-стеллаж
Овощной цех заготовочного предприятия включает следующие помещения: отделение мойки и очистки овощей; отделение дочистки овощей и сульфитации картофеля; охлаждаемую камеру полуфабрикатов; помещение для хранения и приготовления раствора бисульфита; кладовую полуфабрикатной тары; помещение начальника цеха.
При работе овощного цеха на полуфабрикатах (например, школьные базовые столовые и др.) в овощном цехе предусматривают отделение овощных полуфабрикатов, отделение нарезки овощей и картофеля, охлаждаемую камеру полуфабрикатов и кладовую полуфабрикатной тары.
Технологический процесс обработки овощей включает операции: мойку —> очистку —> дочистку —> сульфитацию (картофеля) —> нарезку —> укладку в функциональные емкости —> охлаждение и кратковременное хранение —> транспортирование. Белокочанную капусту моют после зачистки и удаления зеленых и подгнивших листьев.
Картофель обрабатывают на поточно-механизированной линии ПЛСК-800 производительностью 400; 600 и 800 кг/ч в зависимости от длины конвейера инспекции и дочистки сульфитированного картофеля.
Площадь, занимаемая механизированной поточной линией по очистке и сульфитации картофеля, составляет 30 м (длина) х 6 м (ширина) = 180 м2.
В цехе кроме линии ПЛСК-800 предусматривают линию по обработке корнеплодов и репчатого лука, на которой все операции, кроме дочистки, осуществляются различными машинами и механизмами: контейнероопрокидывателем, моечной вибрационной машиной, картофелечисткой, дозаторами и т. д.
Площадь, занимаемая комплектом оборудования для очистки корнеплодов, равна 20 м (длина) х 6 м (ширина) = 120 м2.
Линию обработки капусты, зелени и сезонных овощей по возможности также механизируют. Здесь могут быть установлены машины для высверливания кочерыг, тележки, контейнероопрокидыватель, дозатор и др.
В крупных овощных цехах могут быть предусмотрены участки обработки квашений, солений и нарезки овощей. Для нарезки овощей используют овощерезательные машины.
Изготовленные полуфабрикаты помешают в функциональные емкости на специальном участке в цехе, лотки и другую тару и на передвижных стеллажах или тележках направляют в охлаждаемую камеру полуфабрикатов для временного хранения, а затем — в экспедицию или в цехи для тепловой обработки.
Овощной цех размещают на первом этаже рядом или над кладовой овощей с обеспечением удобной связи с помещениями кулинарного цеха и экспедиции. Для выноса отходов из цеха предусматривают изолированный выход.
При проектировании овощного цеха заготовочного предприятия может быть предусмотрено кулинарное отделение, в котором изготовляют разнообразный ассортимент кулинарной продукции: овощи вареные, тушеные, пассерованные, котлеты, крокеты, рулеты, запеканки, маринады и т. п. За последние годы получила распространение заготовка (консервирование) сезонных овощей; подготовляют следующую продукцию: перец для фарширования, суповые наборы зелени, икру из кабачков, баклажанов, отварную морковь и зеленый горошек для гарниров. Этой продукцией обеспечивают столовые-доготовочные и используют ее для приготовления блюд в собственной столовой для организации питания сотрудников.
Кулинарное отделение размещают смежно с отделением дочистки для уменьшения перевалки очищенных овощей.
Планировка овощного цеха мощностью 22,4 т сырья в смену приведена на рис. 4.13.
Овощные цехи, работающие на сырье, перерабатывающие сравнительно небольшое количество овощей, проектируют в одном помещении. Они должны быть удобно связаны с кладовой овощей, горячим и холодным цехами. При размещении овощного цеха с горячим и холодным цехами на разных этажах связь с ними осуществляют подъемниками и транспортерами.
Для обработки отдельных видов овощей в цехе предусматривают рабочие места. Все операции по обработке овощей максимально механизируют. Для мойки и очистки овощей используют картофелечистки, устанавливаемые на фундамент для погашения вибрации, для нарезки — овощерезки. Для облегчения труда работников применяют передвижные ванны, тележки, столы со встроенными ваннами, столы дочистки овощей и стол для очистки лука с вытяжным устройством. Загрузку овощей в картофелечистку и выгрузку из нее осуществляют с помощью наклонного транспортера, для чего картофелечистки поднимают над полом и устанавливают на постамент.
Планировка овощного цеха ресторана на 300 мест приведена на рис. 4.14.
Кулинарный цех. Входит в состав заготовочных предприятий и выпускает широкий ассортимент кулинарных изделий для снабжения магазинов кулинарии и доготовочных предприятий общественного питания.

Рис. 4.13. Планировка овощного цеха мощностью 22,4 т сырья в смену:
1 — линия очистки картофеля, 2 — линия очистки и сульфитации картофеля, 3 — линия очистки корнеплодов, 4— линия очистки лука, 5 — участок нарезки картофеля, 6 — участок нарезки корнеплодов, 7— участок нарезки свежей капусты, 8— участок нарезки лука.

Рис. 4.14. Планировка овощного цеха ресторана на 300 мест:
1 — картофелеочистительная машина, 2 — стол для дочистки картофеля, 3 — производственный стол, 4 — стол с моечной ванной, 5 — стол для дочистки лука, 6— универсальная овощерезательная машина, 7 — подтоварник, 8 — моечная передвижная ванна, 9 — моечная ванна, 10 — раковина для мытья рук.
Технологический процесс организуют по схеме подготовка продуктов —> приготовление блюд и изделий —> интенсивное охлаждение —> упаковка —> хранение —> транспортирование.
Кулинарный цех включает следующие помещения: помещение для подготовки продуктов; горячее отделение; холодное отделение; помещение интенсивного охлаждения; охлаждаемую камеру готовой продукции; моечную инвентаря; кладовую тары для кулинарных изделий; охлаждаемую камеру суточного запаса сырья и полуфабрикатов; помещение укладки готовой продукции; помещение начальника цеха.
Кулинарный цех размещают, как правило, на втором этаже предприятия единым блоком, учитывая необходимость в удобной связи с заготовочными цехами (овощным, мясным, рыбным и птице-гольевым) и экспедицией. Планировочное решение кулинарного цеха должно обеспечивать: последовательность технологических процессов приготовления кулинарной продукции и ее транспортирования; смежное размещение горячего и холодного отделений; расположение помещения интенсивного охлаждения рядом с горячим отделением; моечной инвентаря — в непосредственной близости к горячему и холодному отделениям.
Кулинарный цех может размещаться в отдельно стоящем здании. В этом случае в состав кулинарного цеха кроме перечисленных выше входят заготовочные отделения, экспедиция, служебная и бытовая группа помещений.
В горячем и холодном отделениях кулинарного цеха небольшой мощности различные кулинарные изделия изготовляют на одних и тех же участках, но с разрывом во времени и при соблюдении правил санитарии.
Процессы транспортирования и приготовления блюд максимально механизируют, оснащают цех тепловым, холодильным, механическим и вспомогательным оборудованием.
Для транспортирования продукции (бульонов, соусов, отварных продуктов и др.) используют грузовые тележки ТПК-80 («китайки»), передвижные емкости Я2ФЦ1В, устройства для загрузки и выгрузки костей из котлов, тельферы с подъемными механизмами для сеток-вкладышей, насосы для перекачивания бульонов и соусов, тележки с подъемными платформами.
Из теплового оборудования в цехе устанавливают пищеварочные котлы различной вместимости, в том числе котлы КПЭ-250 в комплекте с сеткой-вкладышем, подставкой для сеток и подъемным механизмом, жарочные шкафы, варочные аппараты, электросковороды, конвейерные печи, секционные модульные плиты, фритюрницы и электрокипятильники. Используют такое холодильное оборудование, как холодильные шкафы различной вместимости, в том числе для интенсивного охлаждения готовой продукции.
Для измельчения, перемешивания, просеивания, протирания и выполнения других операций монтируют универсальные приводы с мясорубками, фаршемешалками протирочными машинами, котлетоформовочные автоматы, кремовзбивальные машины и вибросита.
Для укомплектования участков используют также вспомогательное оборудование различных видов: столы для установки средств малой механизации; столы со встроенными ваннами; моечные ванны; передвижные ванны для промывки отварных круп; передвижные стеллажи.
Оборудование, отвечающее по модулю функциональным емкостям, компонуют в виде линий. Основное требование, которое при этом должно соблюдаться: напротив линии теплового оборудования устанавливают линию вспомогательного.
Одно из направлений централизованного производства кулинарной продукции — производство быстрозамороженных блюд и кулинарных изделий, которые уже сейчас широко применяют для снабжения вагонов-ресторанов и самолетов дальнего следования, а также организации питания отдыхающих на курортах. Здесь быстрозамороженные блюда используют в предприятиях временного и сезонного характера, на теплоходах и подводных лодках.
Важнейшее преимущество снабжения предприятий общественного питания быстрозамороженными блюдами — разделение во времени приготовления блюд и их отпуска. Блюда готовят в кулинарном цехе большими партиями в то время, когда потребность в них снижается (например, зимой). Блюда замораживают большими партиями и отпускают тогда, когда мощности предприятий общественного питания не могут обеспечить питанием всех нуждающихся. В результате сокращения времени и затрат труда на приготовление пищи увеличивается пропускная способность предприятий, Повышается культура производства и уменьшается потребность в обслуживающем персонале.
Технология изготовления быстрозамороженных блюд не имеет принципиальных различий с традиционной кулинарией. Готовые блюда фасуют в формочки из алюминиевой фольги, пакеты из полиэтиленовой пленки или целлофана и после интенсивного охлаждения замораживают в скороморозильных аппаратах при -35 °С и хранят до определенного времени при -18 °С. Перед употреблением блюда разогревают.
Организация производства быстрозамороженных блюд позволяет не только полнее удовлетворить потребности населения в готовой пище, но и более рационально использовать мощности заготовочных предприятий во вторую и третью смены, что не менее важно.
Кондитерский цех. Такие цехи предусматривают на заготовочных предприятиях, изготовляющих полуфабрикаты, и на предприятиях общедоступной сети (кафе, рестораны и столовые). В отличие от мелких кондитерских цехов, организуемых в предприятиях общественного питания, кондитерские цехи заготовочных предприятий имеют большую мощность, технически лучше оснащены и поэтому более рентабельны. В цехе изготовляют широкий ассортимент изделий из дрожжевого, песочного, слоеного, бисквитного и заварного теста, а также выпускают дрожжевое, песочное и слоеное тесто в виде полуфабриката.
В результате перепрофилирования производств многих заготовочных предприятий, которое произошло в последние годы, производство кондитерских и мучных изделий разделилось с образованием кондитерского и мучного цехов.
Технологический процесс в мучном цехе осуществляют по схеме: подготовка продуктов —> замес теста —> разделка и выпечка изделий —> остывание —> укладка —> хранение —> транспортирование.
Сырье, поступающее в цех, разгружают в кладовые суточного запаса. Муку просеивают в помещении просеивания, откуда она подается по гибкому рукаву в отделение замеса, разделки и выпечки мучных изделий. Для получения дрожжевого теста хорошего качества предусматривают помещение расстойки дрожжевого теста. Готовые изделия хранят в кладовой готовых изделий на стеллажах до отправки в экспедицию.
Технологический процесс в кондитерском цехе осуществляется по схеме: подготовка продуктов —> приготовление и выпечка теста и изделий —> остывание —> отделка —> укладка —> охлаждение и хранение —> транспортирование.
Сырье разгружают в кладовые суточного запаса (охлаждаемую и неохлаждаемую). После просеивания муки и подготовки продуктов приготовляют тесто всех видов и осуществляют разделку и выпечку изделий из песочного, слоеного, заварного и бисквитного теста. Остывшие изделия отделывают кремами, повидлом или другими отделочными полуфабрикатами, укладывают в тару, охлаждают и хранят в охлаждаемой и неохлаждаемой камерах готовых изделий до отправки в экспедицию.
В соответствии с приведенными схемами мучной и кондитерский цехи проектируют следующим образом.
Мучной цех включает кладовую суточного запаса, помещение подготовки продуктов, помещение просеивания муки, отделение замеса теста, отделение разделки и выпечки, помещение расстойки дрожжевого теста, охлаждаемую камеру полуфабрикатов, кладовую готовых изделий, помещение мойки яиц, моечную инвентаря, кладовую упаковочных материалов, кладовую тары для готовых изделий, помещение начальника цеха; кондитерский цех — кладовую суточного запаса, охлаждаемую камеру суточного запаса, помещение подготовки продуктов, помещение просеивания муки, отделение приготовления теста, отделение разделки и выпечки, помещение приготовления крема, помещение отделки изделий, отделение приготовления сиропов и помадок, охлаждаемую камеру полуфабрикатов, охлаждаемую камеру готовых изделий, кладовую готовых изделий, помещение обработки яиц (распаковка, мойка и дезинфекция яиц, получение яичной массы), помещение обработки отсадочных мешочков, мелкого инвентаря, моечную инвентаря, кладовую упаковочных материалов, кладовую тары для готовых изделий, помещение начальника цеха.
В кондитерских цехах большой мощности могут быть предусмотрены дополнительные помещения для приготовления бисквитного теста, остывания изделий; в отделении разделки и выпечки — самостоятельные участки для приготовления дрожжевого теста и изделий из него, а также слоеного, песочного, бисквитного и заварного теста. Каждый участок оснащают соответствующим оборудованием.
Кондитерские и мучные цехи малой мощности (до 5 тыс. изделий) не дробят на отдельные помещения — выделяют лишь помещения отделки изделий и обработки яиц; мощностью до 15 тыс. изделий — проектируют с отделениями суточного запаса сырья, обработки яиц, подготовки сырья и приготовления теста, разделки и выпечки, остывания и отделки изделий, кратковременного хранения готовых изделий, а также с моечной инвентаря и холодильной камерой для хранения готовых изделий с кремом.
Помещения кондитерского и мучного цехов размещают единым блоком, на втором и третьем этаже заготовочного предприятия, обеспечивая удобную связь с помещениями приема и хранения сырья, а также с экспедицией. Помещения располагают последовательно, по ходу технологического процесса, с целью обеспечения кратчайших путей перемещения сырья и готовых изделий.
Цехи оснащают оборудованием, соответствующим происходящим в них технологическим процессам: механическим — просеиватель, тестомесильные машины, дежеопрокидыватели, делительно-округлительные автоматы, тестораскаточные машины, машины для отсадки заготовок из теста, взбивальные машины, универсальные приводы, комплексы для очистки мешков от мучной пыли и тестовой корки; холодильным — холодильные шкафы различной вместимости, столы с охлаждаемой поверхностью для раскатки и разделки изделий из песочного и слоеного теста, холодильные разборные камеры для хранения продуктов, полуфабрикатов (слоеного теста, начинок, кремов, сиропов и др.); тепловым — печи, автоматы для жарения пирожков, пекарные трехкамерные шкафы, сковороды, расстоечные шкафы, автоклавы, комплексы с трехполочными люльками для расстойки теста; вспомогательным — производственные столы, передвижные стеллажи, подтоварники, секции-столы с охлаждаемым шкафом, шкафы для сушки кондитерских мешков, дежи к тестомесильным машинам, моечные ванны с сетками-вкладышами.
Оборудование в помещениях цехов размещают последовательно, по ходу технологического процесса, с соблюдением допустимых расстояний, перпендикулярно окнам для обеспечения нормальной освещенности рабочих мест.
Планировка кондитерского цеха мощностью 10 тыс. шт. в сутки представлена на рис. 4.15.
Помещение для изготовления мучных изделий. Такие помещения предусматривают в доготовочных предприятиях общественного питания и работающих на сырье. Предназначены они для изготовления мучных изделий и реализации их в залах предприятий и магазинах кулинарии. Для производства используют сырье и полуфабрикаты (тесто), доставляемые из заготовочных предприятий. Проектирование этих помещений способствует расширению ассортимента мучных изделий (пирожки, вареники, пельмени, лаваши, вергуны и другие национальные мучные изделия), рациональному использованию работников предприятия и улучшению результатов хозяйственной деятельности.
Размещают помещения для изготовления мучных изделий обычно на первом этаже предприятия; они могут также входить в группу помещений для приготовления блюд и кулинарных изделий. Во всех случаях должна быть обеспечена удобная связь со складскими и производственными помещениями.
В помещениях для изготовления мучных изделий устанавливают пекарный шкаф, холодильный шкаф, взбивальную машину (универсальный привод), тестомесильную машину с дежами, электросковороду, стеллажи и моечную ванну. Количество и производительность устанавливаемого оборудования определяются ассортиментом и массой выпускаемой продукции. Наряду с перечисленным оборудованием в этом помещении используют ручные приспособления и инвентарь (сита, веселки, венчики, скалки для раскатки теста и др.).
Доготовочный цех и цех обработки зелени. Их проектируют в предприятиях, работающих на полуфабрикатах.
Доготовочный цех предназначен для доработки мясных, рыбных и овощных полуфабрикатов. В цехе выделяют рабочие места для доработки полуфабрикатов. При большой мощности цеха рабочие места объединяют в технологические линии. Рабочие места и линии оснащают механическим (универсальный привод, мясорубка), холодильным (холодильный шкаф, секция-стол с охлаждаемым шкафом) и вспомогательным оборудованием (производственные столы со встроенными ваннами, столы для установки средств малой механизации, моечные ванны).

Рис. 4.15. Планировка кондитерского цеха мощностью 10 тыс. шт/сут:
Помещения (номера позиций заключены в кружки): 7 — помещение для подготовки яиц; 2 — отделение замеса теста разделки и выпечки; 3 — помещение отделки изделий; 4 — моечная инвентаря; 5 — кладовая продуктов; 6 — помещения экспедиций.
Оборудование: 7 — плита; 2 — пекарский шкаф; 3, 4 — холодильные шкафы; 5 — секция-стол с охлаждаемым шкафом; 6 — универсальная машина; 7,8 — взбивальные машины; 9 — тестомесильная машина; 10 — машина для раскатки теста; 11 — просеиватель; 12, 13— производственные столы; 14, 15 — моечные ванны; 16 — подтоварник; 17 — тележка-стеллаж; 18, 19 — стационарные стеллажи.
В цехе обработки зелени обрабатывают зеленые овощи, зелень, фрукты, ягоды, поступающие на предприятия в виде сырья, и соленья. Рабочие места оборудуют подтоварниками, стеллажами, моечными ваннами, производственными столами со встроенными ваннами, средствами малой механизации, овощерезательными машинами, механическими и ручными.
Оборудование в доготовочном цехе и цехе обработки зелени размещают с учетом обеспечения удобной работы, допустимых расстояний между рабочими местами и линиями по ходу технологического процесса. В доготовочном цехе предусматривают возможность разгрузки контейнеров с функциональными емкостями. Цехи размещают на первом этаже предприятия, обеспечивая удобную связь с помещениями приема и хранения продуктов, горячим и холодным цехами, вблизи подъемников и лестниц с окнами в сторону дворового или боковых фасадов здания, с естественным освещением. Планировка доготовочного цеха и столовой представлена на рис. 4.16.
В предприятиях, переведенных на комплексное снабжение полуфабрикатами высокой степени готовности, эти цехи не предусматривают. И наоборот, если предприятия получают продукцию в виде сырья, даже в небольших количествах, то вместо доготовочного цеха и цеха обработки зелени в соответствии с санитарными требованиями проектируют мясо-рыбный и овощной цехи.
Горячий и холодный цехи. Эти цехи проектируют на всех предприятиях независимо от их мощности, где предусмотрены залы для обслуживания потребителей. Исключение составляют раздаточные предприятия, столовые (в сельских населенных пунктах), кафе и специализированные предприятия на 25 — 50 мест, в которых хранение, приготовление, оформление и отпуск горячих и холодных блюд и закусок, а также нарезку хлеба осуществляют в одном помещении — горячем цехе (кухне).

Рис. 4.16. Планировка доготовочного цеха столовой:
1, 2 — холодильные шкафы; 3 — механическая мясорубка; 4 — рыхлитель; 5 — машина для резки овощей; 6 — производственный стол; 7, 8 — моечные ванны на одно отделение.
Горячий и холодный цехи предназначены для приготовления горячих блюд и холодных закусок, отпускаемых в залах предприятия, а также кулинарных изделий — для реализации в магазинах кулинарии.
В горячем цехе организуют: участок для приготовления супов, который оборудуют котлами различной вместимости; участок приготовления вторых блюд, оборудованный плитами, котлами небольшой вместимости, жарочными шкафами, сковородами, фритюрницами, шашлычными печами, прилавками-мармитами для первых блюд и соусов, раздаточными стойками с подогреваемой поверхностью; участок приготовления горячих напитков, оборудованный электрокипятильниками и электрокофеварками.
В холодном цехе организуют участки приготовления холодных и сладких блюд и оборудуют их холодильными шкафами, льдогенераторами, секциями-столами с охлаждаемым шкафом, секциями-столами с охлаждаемым шкафом и горкой, производственными столами со встроенной ванной, моечными ваннами, стеллажами, раздаточными стойками и приводами для холодных цехов. Для облегчения труда работников рабочие места оснащают маслоделителями, яйцерезками, миксерами, овощерезками и др.
В холодном цехе предприятий большой мощности дополнительно организуют участки по приготовлению салатов из свежих сезонных овощей и зелени, гастрономических продуктов, порционированию и оформлению холодных и сладких блюд.
При работе предприятий на полуфабрикатах и продукции высокой степени готовности процессы приготовления и оформления горячих и холодных блюд осуществляют в одном помещении на участках: разогрева и доведения до готовности охлажденных супов, вторых блюд, соусов и гарниров; приготовления несложных блюд (молочных каш, яичных блюд и изделий из творога), приготовления горячих напитков, салатов из сезонных овощей и зелени; блюд из гастрономических продуктов; порционирования и оформления холодных и сладких блюд.
Применение секционного модульного оборудования в горячем и холодном цехах предъявляет повышенные требования к организации рабочих мест, поскольку появляется возможность выполнять на рабочих местах последовательно несколько технологических операций, таких, как промывка и переборка круп, шинковка и промывка зелени, хранение продуктов на холоде. Эти требования заключаются в правильном размещении на рабочих местах оборудования, взаимосвязанного ходом технологического процесса: тепловых аппаратов, холодильных шкафов, моечных ванн, производственных столов, механического оборудования и т.п.
Основное требование к планировке рабочего места — такое его расположение, которое сводило бы к минимуму переходы повара от одного вида оборудования к другому. В соответствии с этим требованием рядом с плитами устанавливают секции-вставки с водоразборным устройством и инвентарными шкафами, предусматривают установку столов у жарочных шкафов и сковород, между пищеварочными котлами размещают столы со встроенными ваннами, а универсальные приводы и овощерезательные машины — между производственными столами и тепловым оборудованием и т.д.
Большое значение имеет порядок размещения рабочих мест на технологических линиях, так как от этого зависит характер передвижения обслуживающего персонала. Чем короче этот путь, тем меньше будет расходоваться времени и энергии человека в производственном процессе, тем эффективнее будет использоваться оборудование. Правильно организованные технологические линии позволяют сократить лишние непроизводительные движения работников, облегчить условия труда и способствовать повышению его производительности.
При размещении оборудования необходимо соблюдать прежде всего принцип прямоточности, с тем чтобы при выполнении работ повара не совершали непроизводительные перемещения в направлении, противоположном направлению технологического процесса.
Наиболее рационально линейное размещение оборудования. Повара в процессе работы передвигаются только вдоль линии оборудования и поворачиваются не более чем на 90°.
Для рациональной организации труда на рабочих местах надо, комплектуя технологические линии, учитывать не только последовательность выполнения операций, но и направление, в котором ведут процесс. Производительность труда поваров на 5 — 8 % выше, если технологические процессы направлены справа налево.
В соответствии с требованиями охраны труда повар должен во время работы машины находиться у пульта управления, поэтому загрузочные отверстия машин с механическими приводами (мясорубок, фаршемешалок, овощерезок, хлеборезок и т.д.) и большинства тепловых аппаратов находятся справа, а разгрузочные отверстия или приемные лотки — слева. Это также подтверждает вывод о том, что процесс обработки должен быть направлен справа налево.
Поскольку протяженность технологических линий ограничивается габаритными размерами цехов, допускается применение линейно-группового метода расстановки оборудования по технологическим процессам. Параллельно линиям теплового оборудования в горячем цехе и линиям холодильного оборудования в холодном располагают линии вспомогательного оборудования.
Технологические линии могут иметь пристенное и островное расположение, их устанавливают в одну или две смежные линии, параллельно или перпендикулярно раздаче.
Планировки холодных и горячих цехов предприятий, работающих с самообслуживанием и обслуживанием официантами, представлены на рис. 4.17— 4.19. Как видно из рис. 4.17—4.19, характер размещения оборудования в цехах существенно различается. Это обусловлено тем, что в предприятиях с обслуживанием официантами приготовленные блюда оформляют на раздаточных стойках и выдают официантам из цеха, а при самообслуживании реализация блюд осуществляется на линиях раздачи, установленных в зале предприятия.

Рис. 4.17. Планировка холодного цеха столовой:
1 — холодильный шкаф, 2 — секция-стол с охлаждаемым шкафом и горкой; 3 — низкотемпературный прилавок; 4 — машина для нарезания вареных овощей; 5 — ручной маслоделитель; 6, 7 — производственные столы, 8— моечная ванна на одно отделение.

Рис. 4.18. Планировка холодного цеха ресторана:
1— холодильный шкаф; 2 — охлаждаемый стол; 3 — универсальный привод; 4 — раздаточная стойка; 5, 6 — производственные столы; 7 — моечная ванна.
Для организации выдачи блюд официантам из холодного и горячего цехов предусматривают раздаточные окна, размеры которых зависят от числа мест в залах.
Горячий и холодный цехи размещают в наземных этажах здания, со стороны дворового или боковых фасадов здания, в помещениях с естественным освещением, на одном уровне с залами. При наличии в здании нескольких залов одного назначения цехи размещают на этаже рядом с залом с наибольшим числом мест; на других этажах предусматривают помещения, в которых готовая продукция горячего цеха хранится в мармитах, холодного цеха — в холодильных шкафах, организованы рабочие места для порционирования и оформления блюд. Готовую продукцию транспортируют по этажам подъемниками. При отсутствии последних и размещении на этажах залов разного назначения горячий и холодный цехи проектируют при каждом из них.

Рис. 4.19. Планировка горячего цеха ресторана:
1 — четырехконфорочная плита, 2 — плита с жарочным шкафом; 3 — плита для непосредственной жарки; 4 — мармит для соусов, 5— передвижной стеллаж; 6— сковорода, 7— фритюрница; 8 — жарочный шкаф; 9 — шашлычная печь; 10— кипятильник; 11 — универсальный привод; 12, 13 — пищеварочные электрические котлы, 14 — стол для установки средств малой механизации; 15 — стол с охлаждаемым шкафом; 16— производственный стол; 17 — стол с моечной ванной; 18 — прилавок-мармит для супов; 19, 20 — раздаточные стойки; 21 — холодильный шкаф; 22— охлаждаемый стол; 23 — вставки к оборудованию, 24 — передвижная ванна
Горячий и холодный цехи должны быть удобно связаны друг с другом моечными столовой и кухонной посуды, помещением для нарезки хлеба, цехами — мясным (мясо-рыбным) и овощным при работе предприятия на сырье и цехами — доготовочным и обработки зелени, если предприятие работает на полуфабрикатах, с помещениями для приема и хранения сырья.
В зависимости от формы обслуживания горячий и холодный цехи должны иметь удобную связь с помещениями раздачи пищи. При обслуживании официантами цехи примыкают непосредственно к раздаточной; в предприятиях с самообслуживанием — к залам, на площади которых размещают раздаточные линии.
Моечная столовой посуды. Это помещение проектируют на всех предприятиях общественного питания, имеющих залы для обслуживания потребителей независимо от их типа и вместимости.
Моечная столовой посуды предназначена для очистки посуды от остатков пищи, сортировки, мытья посуды, приборов и подносов, а также для хранения их.
Для организации процесса мойки посуды в моечной выделяют две линии: с установкой машины и вспомогательного оборудования; моечных ванн и вспомогательного оборудования. Оборудование в линиях располагают последовательно — в соответствии с ходом операций по обработке посуды и перпендикулярно окну приема посуды. Столовую посуду в моечную доставляют на тележках. Для механизации сбора использованной посуды устанавливают транспортеры, число которых определяют по нормам оснащения оборудованием доготовочных предприятий.
Все операции по обработке посуды выполняют в определенной последовательности: очистка посуды от остатков пищи, сортировка и мытье в машине или ваннах, мытье приборов и стаканов, просушивание и стерилизация столовых приборов, хранение чистой посуды на столах, в шкафах, на тележках с выжимным устройством.
В зависимости от формы обслуживания потребителей должна быть обеспечена взаимосвязь между функционально зависимыми помещениями. На предприятиях общественного питания с самообслуживанием моечная столовой посуды должна быть связана в первую очередь непосредственно с залом: использованная посуда из зала поступает в моечную, а чистая посуда из моечной — к раздаточным линиям, расположенным в зале. Кроме зала моечная столовой посуды должна иметь удобную связь с горячим и холодным цехами.
На предприятиях общественного питания с самообслуживанием при отпуске пищи с механизированных раздаточных линий моечная столовой посуды должна быть связана непосредственно с горячим цехом, если зона комплектации обедов расположена на площади горячего цеха, с холодным цехом и помещением нарезки хлеба.
На крупных предприятиях общественного питания при наличии двух и более залов, расположенных как на одном этаже, так и на разных этажах, в целях снижения непроизводительных затрат труда работников моечные столовой посуды проектируют так, чтобы они примыкали одновременно к залам, раздаточным, горячему и холодному цехам. Использование секционного модульного оборудования позволяет решить такую задачу, так как вместо отдельных цехов можно проектировать одно помещение, разграниченное технологическими линиями оборудования, с образованием отдельных участков приготовления блюд и создавать «гибкие» цехи, где возможна перестановка линий оборудования в соответствии с внедрением механизированных способов раздачи пищи, более прогрессивных технологий, новой техники и научной организации труда.

Рис. 4.20. Планировка моечной столовой посуды в предприятиях с самообслуживанием:
1— машина для мытья посуды; 2 — моечная ванна; 3 — стол для сбора остатков пищи; 4 — транспортер; 5 —тележка для вывоза остатков пищи, 6— тележка с выжимным устройством для тарелок; 7 — производственный стол; 8 — машина для мойки приборов; 9 — раковина для мытья рук;
Моечная столовой посуды должна быть удобно связана с камерой пищевых отходов. При размещении моечной на втором этаже связь с камерой отходов, расположенной на первом этаже, осуществляют посредством подъемника грузоподъемностью 100 кг.
Планировки моечных столовой посуды в предприятиях с самообслуживанием и обслуживанием официантами представлены на рис. 4.20 и 4.21.
На предприятиях с обслуживанием официантами моечная столовой посуды должна быть связана непосредственно с раздаточной, сервизной, горячим и холодными цехами, а также с залами.

Рис. 4.21. Планировка моечной столовой посуды в предприятиях с обслуживанием официантами:
1— посудомоечная универсальная машина; 2 — машина для мойки столовых приборов; 3 — производственный стол, 4— стол для сбора остатков пищи; 5 — моечная ванна, 6 — тележка с выжимным устройством для тарелок, 7,8 — стеллажи для сервизных; 9 — раковина для мытья рук.
Сервизные. Их предусматривают в ресторанах и кафе. Основное назначение сервизной — хранение запаса столовой посуды и приборов, необходимых для нормального обслуживания потребителей. Сервизная должна непосредственно примыкать к моечной столовой посуды, раздаточной и иметь удобную связь с горячим и холодным цехами. Оборудуют сервизную шкафами и многоярусными стеллажами для хранения посуды, столовых приборов, сервизов и другими столами. Между моечной столовой посуды и сервизной предусматривают шкафы с передаточными окнами.
Моечная кухонной посуды. Это помещение предназначено для мойки посуды и инвентаря. В небольших предприятиях (например, кафе на 25 — 50 мест) моечную можно размещать в одном помещении с моечной столовой посуды и полуфабрикатной тары небольшой мощности. В этом случае линии мойки всех видов посуды разделяют барьерами высотой 1,5 м. В предприятиях до 100 мест в моечных кухонной посуды допускается мойка функциональных емкостей.
Моечную кухонной посуды оснащают моечными ваннами, стеллажами, подтоварниками, на крупных предприятиях — моечными кухонными машинами. Размещение оборудования должно обеспечивать последовательное выполнение операций: прием использованной посуды, мойку в ваннах или машине, хранение на стеллажах. Для мойки передвижного оборудования следует выделить специальную зону размером 1300 х 1000 мм.
Моечную кухонной посуды размещают в непосредственной близости к горячему цеху, обеспечивая удобную связь с производственными цехами и камерой пищевых отходов.
Моечная полуфабрикатной тары. Это помещение, предназначенное для хранения и мойки функциональных емкостей и другой полуфабрикатной тары, предусматривают на предприятиях, работающих на полуфабрикатах.
Моечную полуфабрикатной тары размещают таким образом, чтобы обеспечить удобную связь с доготовочным цехом и приемочной, через которую тару транспортируют на заготовочные предприятия.
Планировка моечной кухонной посуды представлена на рис. 4.22. Аналогичным образом устанавливают оборудование в моечной полуфабрикатной тары.

Рис. 4.22. Планировка моечной кухонной посуды:
1 — подтоварник; 2 — моечная ванна; 3 — машина для мойки кухонной посуды; 4 — стеллаж; 5 — бачок для отходов
Моечную полуфабрикатной тары, как и моечную кухонной посуды, можно проектировать с искусственным освещением, но обязательно — с приточной и вытяжной вентиляцией.
Помещение для резки хлеба. Предназначено для кратковременного (суточного) хранения хлеба, нарезки его и отпуска на раздачу (в предприятиях с самообслуживанием) или официантам.
Помещение оборудуют шкафами для хранения хлеба, столом с хлеборезкой и столом для приема нарезанного хлеба.
Помещение для резки хлеба размещают вблизи раздаточной при обеспечении удобной связи с приемочной платформой. Допускается искусственное освещение.
Планировка помещения для резки хлеба представлена на рис. 4.23.

Рис. 4.23. Планировка помещения для резки хлеба:
1 — производственный стол; 2 — машина для резки хлеба; 3 — шкаф для хлеба; 4 — раковина для мытья рук.
Помещение заведующего производством. Предназначено для хранения запаса продуктов. Размещают его вблизи горячего и холодного цехов, подъемника, по которому подают продукты со склада. Помещение оборудуют холодильным шкафом, стеллажом, подтоварником и канцелярским столом. Допускается искусственное освещение.
Помещение персонала. Предназначено для приема пищи и отдыха персонала предприятия. Оборудуют помещение столами для приема пищи и раковиной. В помещении должны быть созданы условия для отдыха: по возможности — мягкая мебель, комнатные цветы, аквариумы, музыка. В крупных предприятиях предусматривают барную стойку с автоматической реализацией напитков, мороженого и др.
Помещение персонала должно иметь хорошую связь (в функциональном отношении) с горячим и холодным цехами, иметь естественное освещение. Площадь помещения для отдыха персонала должна быть достаточной для размещения 50 % состава смены.
Буфет. В составе производственных помещений предусматривают буфет. Назначение буфета — отпуск официантам кондитерских изделий, холодных напитков, винно-водочных изделий, пива и другой покупной продукции. Буфет можно проектировать совместно с помещением для резки хлеба, в связи с чем в нем кроме оборудования, устанавливаемого в помещении для резки хлеба, предусматривают буфетные прилавки, холодильные шкафы, льдогенератор, производственные столы и стеллажи. Если из буфета отпускают мороженое, то устанавливают низкотемпературный прилавок. Длину фронта выдачи продуктов принимают из расчета 0,01 м на одно место в зале, длину прилавка в помещении для резки хлеба — равной 1,5 м. Буфет может иметь помещение для хранения запаса продуктов. Допускается искусственное освещение.
Буфет должен примыкать непосредственно к помещению раздаточной с одной стороны, а с другой — иметь удобную связь со складскими помещениями.
Планировка буфета ресторана представлена на рис. 4.24.

Рис. 4.24. Планировка буфета ресторана:
1 — буфетная стойка; 2 — льдогенератор; 3 — стационарный стеллаж; 4— низкотемпературная секция; 5 — холодильный шкаф; 6— подтоварник; 7— электрическая плита; 8 — раковина для мытья рук; 9 — производственный стол; 10 — смесительная установка; 11 — электрокофеварка
Раздаточная. В составе производственных помещений на предприятиях с обслуживанием официантами предусматривают раздаточную, которая является служебным помещением официантов. В раздаточной осуществляют кратковременное хранение предметов сервировки, а официанты получают готовые блюда, буфетную продукцию и оформляют заказы в кассовых аппаратах.
Важные условия, предъявляемые к проектированию раздаточных, — размещение ее в непосредственной связи с залами, горячим и холодным цехами, буфетом и помещением для резки хлеба, моечной столовой посуды и сервизной; организация прямого сообщения между зоной приготовления пищи, оборудованием для раздачи и отбора готовых блюд; создание целенаправленного производственного потока в направлении слева направо.

Рис. 4.25. Схема взаимосвязи раздаточной с производственными помещениями ресторана:
1 — горячий цех; 2 — холодный цех; 3 — моечная столовой посуды, 4— сервизная; 5 — буфет с хлеборезкой, 6— моечная кухонной посуды; 7 — помещение для заведующего производством; 8 — помещение для официантов; 9 — производственные помещения.
При наличии на предприятии нескольких залов раздаточную размещают так, чтобы обеспечить непосредственную связь ее со всеми залами для потребителей. Прямая связь буфета с раздаточной — оптимальное решение. Рядом с буфетом располагают также помещение для хранения напитков. Это обусловлено усиливающейся тенденцией к передаче реализации покупных и других товаров и напитков, подготовленных к продаже, в личное ведение официантов. Поэтому рабочие места буфетчиков все в большей степени заменяются рабочими местами официантов, оснащенными порционирующими разливочными автоматами со счетчиками, охлаждаемыми прилавками для хранения напитков в бутылках и льдогенераторами кубикового льда. Это дает возможность разместить в зале привлекательный для потребителей ассортимент товаров и успешно реализовать его с сервировочных тележек.

Рис. 4.26. Схема планировки раздаточной при наличии нескольких залов:
I — охлаждаемые емкости для напитков, 2,4 — поддоны для сбора стеклянной посуды; 3 — кассовые аппараты; 5 — передвижные столики; 6 — буфет; 7 — кофейный буфет; 8 — вход на производство; 9, 10, 11 — производственные помещения, 12 — залы.
Помещения, непосредственно связанные с раздаточной, могут размещаться у раздаточной с одной или двух сторон. При одностороннем их расположении ширина раздаточной должна быть не менее 2 м, при двухстороннем — не менее 3 м.
В раздаточной должны быть предусмотрены рабочие места для официантов, установлены в удобных для подхода местах кассовые аппараты, сервировочные тележки и решетчатые поддоны для пустых бутылок. Соответственно размерам устанавливаемого оборудования увеличивается площадь раздаточной. При этом нужно стремиться к компактному устройству раздаточной, ограничению протяженности и обеспечению ее хорошей освещенности. Это имеет немаловажное значение для сохранения длительной работоспособности и снижения усталости официантов.
Схема взаимосвязи раздаточной с производственными помещениями ресторана приведена на рис. 4.25, планировка раздаточной при наличии нескольких залов — на рис. 4.26.
Монтажная привязка оборудования. Она определяет местоположение точек ввода коммуникаций (электроэнергии, газа, пара, горячей и холодной воды, отвода в канализацию) к технологическому оборудованию. С этой целью на монтажном плане указывают расстояния от точек ввода до двух строительных конструкций (стен, колонн, перегородок), расположенных перпендикулярно друг другу. Кроме того, указывают все параметры подводимых коммуникаций: число фаз и мощность тока, диаметр трубопроводов горячей и холодной воды, высоту подводок от чистого пола. При нанесении точек ввода коммуникаций необходимо учитывать также рекомендуемые расстояния от точек ввода до краев оборудования. На монтажный план наносят только монтируемое тепловое, холодильное, механическое и вспомогательное оборудование.
Фрагмент монтажной привязки оборудования, установленного пристенно на ножках и на ферме, показан на рис. 4.27.

Рис. 4.27. Фрагмент монтажной привязки оборудования, установленного пристенно и на ферме:
1 — электрическое варочное устройство; 2 — жарочный шкаф; 3 — электрическая сковорода; 4— электрическая плита, 5 — фритюрница; 6, 7 — вставки, 8 — островная ферма;
I — электрический трехфазный ток (220/380 В) — высота точки h = 200 мм, II— трубопровод холодной воды диаметром 1/2", h — 200 мм; III — электрический трехфазный ток (380 В), жарочный шкаф мощностью 8 кВт; IV— электрический трехфазный ток (380 В), электрическая плита мощностью 12 кВт и электрическая сковорода мощностью 11,5 кВт; V — электрический трехфазный ток (220/380 В), электрическая плита мощностью 12 кВт и фритюрница мощностью 5 кВт.