СОДЕРЖАНИЕ
ВВЕДЕНИЕ......................................................................................................... 3
1. Теоретическая часть. Понятие «розничная торговая сеть» и ее характеристики 4
1.1. Основные принципы размещения розничных торговых сетей.............. 4
1.2. Виды и типы предприятий розничных торговых сетей......................... 7
2. Практическая часть. Анализ деятельности и проектирование развития мелкорозничной торговой сети ЧП «Гаврилова Т.С.»................................... 13
ЗАКЛЮЧЕНИЕ................................................................................................. 28
СПИСОК ИСПОЛЬЗУЕМОЙ ЛИТЕРАТУРЫ................................................ 30
ВВЕДЕНИЕ
Коммерческая деятельность в торговле представляет собой совокупность последовательно выполняемых торгово-организационных операций, которые осуществляются в процессе купли-продажи товаров и оказания торговых услуг с целью получения прибыли.
Основными предприятиями для получения прибыли являются оптовые и розничные организации. В настоящее время возрастает роль розничных торговых предприятий. Совокупность же таких предприятий, объединенных под единое начало и находящиеся на определенной территории, называют розничными торговыми сетями. Такая организация продажи очень эффективна, потому что позволяет получать большую прибыль от реализации основной продукции. Кроме этого строительство маленьких торговых точек куда быстрее окупается и возводится, чем крупные промышленные организации. И еще, управлять небольшими предприятиями намного проще, чем заводами или концернами. Поэтому наиболее эффективными являются розничные торговые сети. Именно этот фактор лег в основу написания данной работы.
Целью курсовой работы является раскрытие основных моментов организации, технологии и проектирование розничных торговых сетей.
Для этого необходимо решить следующие задачи:
1. Описание и рассмотрение понятие «розничная торговая сеть».
2. Классификация розничных торговых сетей.
3. Организация работы предприятий розничных торговых сетей,
4. Планировка предприятий розничной торговой сети,
5. Рассмотрение отдельного предприятия.
Предметом исследования будет являться деятельность этого предприятия, а объектом само предприятие.
1. Теоретическая часть. Понятие «розничная торговая сеть» и ее характеристики
Под торговым предприятием понимается самостоятельно хозяйствующий субъект с правами юридического лица, который на основе использования имущественного комплекса и специфической организационной структуры с целью удовлетворения потребностей рынка, получения прибыли осуществляет закупку, хранение и реализацию покупателям товаров, которые соответствуют их разнообразным потребностям.
Согласно Государственному стандарту Российской Федерации (ГОСТ 51303-99) <Торговля. Термины и определения> розничная торговая сеть представляет собой совокупность торговых заведений, пунктов (точек) розничной торговли, осуществляющих торговлю продовольственными и непродовольственными товарами различного ассортимента за наличный расчет, предназначенными для личного, семейного, домашнего или иного использования, не связанного с предпринимательской деятельностью[1].
Из данного определения следует, что данный термин имеет два семантических уровня:
– розничная торговая сеть – это сеть предприятий, размещенных на определенной территории;
– розничная торговая сеть – это сеть предприятий под единым управлением, владением.
Согласно первому семантическому уровню можно выделить принципы по которым размещаются розничные торговые сети.[2]
1.1. Основные принципы размещения розничных торговых сетей
Розничная торговая сеть должна быть максимально приближена к населению. Наибольшее влияние на ее размещение оказывают тип населенного пункта и численность жителей, проживающих в нем. Так, при размещении магазинов в городах следует учитывать влияние градостроительных, транспортных, социальных и экономических факторов.
К градостроительным факторам следует отнести площадь города, форму плана и функциональное зонирование его территории, численность и плотность населения, размещение мест приложения труда, а также административных, культурных и спортивных центров.
Транспортные факторы включают направления и интенсивность основных потоков движения общественного и индивидуального транспорта. К социальным факторам относятся необходимость достижения высокого качества торгового обслуживания населения и снижения времени, затрачиваемого им на посещение предприятий розничной торговли.
Обеспечение оптимального уровня доходности розничной торговой сети, возмещение затрат на ее строительство и эксплуатацию составляют основу экономических факторов размещения предприятий розничной торговли.
В основе рационального размещения сети розничных торговых предприятий в городах лежат принципы равномерности и группового размещения, а также ориентации магазинов на определенную зону торгового обслуживания.
Принцип равномерности применим к однотипным предприятиям и, в первую очередь, к так называемым удобным магазинам, торгующим товарами повседневного спроса и обслуживающим в основном постоянный контингент покупателей. Он предполагает равномерное размещение магазинов по всей территории города с учетом плотности населения.
Принцип группового размещения означает необходимость территориального сближения магазинов разного товарного профиля (по продаже хлеба, овощей, молока, рыбы, мяса и т. д.) с целью обеспечения удовлетворения комплексного спроса на товары.
Не менее важным является принцип ориентации магазинов на определенную зону торгового обслуживания. В соответствии с ним вся розничная торговая сеть делится на магазины местного и общегородского значения, магазины в составе торговых центров и магазины, расположенные вдоль автомагистралей.
Магазины местного значения, или «удобные магазины», располагаются в жилой зоне города (микрорайонах, жилых комплексах и т. д.) в пределах пешеходной доступности. В таких магазинах должен быть представлен универсальный ассортимент продовольственных и непродовольственных товаров.
Магазины общегородского значения предназначены для обслуживания населении всего города, поэтому в их числе должны быть и универсальные, и специализированные, и комбинированные магазины. В таких магазинах покупателям необходимо предоставить максимально широкий выбор как товаров, так и дополнительных услуг.
Магазины в составе торговых центров, как правило, предлагают покупателям универсальный ассортимент продовольственных и непродовольственных товаров. Чаще всего такие центры размещают на пересечении крупных автомагистралей вне пределов интенсивной городской застройки.
Вдоль автомагистралей, наряду с магазинами, размещают и такие предприятия розничной торговли, как павильоны, киоски и т. п.
Перспективным направлением развития розничной торговли в городах является создание сетей магазинов, включающих в свой состав супермаркеты, гипермаркеты и магазины-дискаунты.
При размещении розничных торговых предприятий на территории сельских административных районов учитывают функциональную значимость каждого населенного пункта.
Так, в районных и межхозяйственных центрах в зависимости от численности населения розничная торговая сеть может быть представлена универсамами, универмагами, специализированными магазинами по торговле продовольственными и непродовольственными товарами, магазинами «Современное домашнее хозяйство», «Техника», «Детский мир» и т. д.
Во внутрихозяйственных центрах и рядовых селах с учетом численности жителей могут быть представлены в основном следующие типы магазинов: «Продтовары», «Промтовары», «Товары повседневного спроса».
При невозможности создания стационарной розничной торговой сети торговое обслуживание населения должно осуществляться с помощью мелкорозничной передвижной сети – авто магазинов и других передвижных средств торговли. Они, кроме того, могут применяться и при обслуживании полевых станов и других мест массовых сельскохозяйственных работ.
Согласно второму семантическому уровню предприятия можно классифицировать как предприятие под единым начальством. [3]
1.2. Виды и типы предприятий розничных торговых сетей
Завершение процесса обращения товаров происходит в розничной торговой сети. Она представляет собой совокупность большого числа розничных торговых предприятий, осуществляющих куплю-продажу товаров, выполнение работ и оказание услуг покупателям для их личного, семейного, домашнего использования.
Розничные торговые предприятия классифицируют по следующим основным признакам:
По особенностям устройства розничные торговые предприятия подразделяют на магазины, магазины-склады, павильоны, киоски, палатки, автомагазины и др.
В соответствии с Государственным стандартом Российской Федерации (ГОСТ 51303-99) <Торговля. Термины и определения> к магазину относится специально оборудованное стационарное здание или его часть, предназначенное для продажи товаров и оказания услуг покупателям и обеспеченное торговыми, подсобными, административно - бытовыми помещениями, а также помещениями для приема, хранения и подготовки товаров к продаже.[4].
Магазины-склады осуществляют торговлю лесными, строительными и другими материалами, санитарно-техническим и отопительным оборудованием, комплектами деревянных деталей для жилых и садовых домов, топливом и др.
Павильон представляет собой оборудованное строение, имеющее торговый зал и помещения для хранения товарного запаса, рассчитанное на одно или несколько рабочих мест.
Киоск — оснащенное торговым оборудованием строение без торгового зала. Киоск рассчитан на одно рабочее место продавца, на площади которого размещается товарный запас.
Палатка — легко возводимая сборно-разборная конструкция, оснащенная прилавком, не имеющая торгового зала и помещений для хранения товаров, рассчитанная на одно или несколько рабочих мест продавца, на площади которых размещен товарный запас на один день торговли
Автомагазины, а также другие средства передвижной торговли (автоприцепы, тележки, лотки и др.) предназначены для торговли вразвоз или вразнос. Они применяются в основном для обслуживания жителей населенных пунктов, в которых отсутствуют магазины (например, в связи с нецелесообразностью их строительства из-за небольшой численности населения).
С учетом типа здания и особенностей его объемно-планировочного решения предприятия розничной торговли можно подразделить на отдельно стоящие, встроенные, встроенно-пристроенные, пристроенные и торговые центры. Кроме того, различают магазины одноэтажные и многоэтажные, с подвальными помещениями или без них.
Отдельно стоящие магазины размещают в обособленных зданиях, построенных по специально разработанным для них проектам.
Все помещения встроенного магазина располагаются в габаритах жилого здания или здания иного назначения.
Помещения встроенно-пристроенного магазина размещают не только в габаритах жилого здания, но и в объемах, вынесенных за эти габариты.
Пристроенным называется магазин, ограждающая стена или стены которого являются общими или смежными со стенами жилого дома.
Торговый центр представляет собой комплекс предприятий розничной торговли, общественного питания и бытового обслуживания, размещенных на одной территории. Предприятия, входящие в его состав, спланированы, построены и управляются как единое целое. В границах торгового центра должна быть расположена стоянка для автомашин.
По видам (товарной специализации) розничные торговые предприятия принято подразделять на универсальные, комбинированные, специализированные и смешанные.
По размеру торговой площади выделяют магазины мелкие — до 250 м2, средние — от 251 до 1000, крупные — от 1001 до 5000 и особо крупные — свыше 5000 м2.
На типы магазины подразделяют в зависимости от ассортимента реализуемых товаров, размера торговой площади и целого ряда других признаков.
По методам продажи товаров различают предприятия с индивидуальным обслуживанием покупателей (через прилавок обслуживания), торгующие посредством самообслуживания, по образцам и др.
С учетом функциональных особенностей розничные торговые предприятия делятся на стационарные, передвижные, сезонные, посылочные, комиссионные.
В зависимости от организационно-правовой формы розничные торговые предприятия подразделяются на государственные, муниципальные, кооперативные и т. д.
Самым крупным делением различных магазинов является их подразделение на непродовольственные и продовольственные.
Непродовольственные: специализированные, универмаги, магазины массовых товаров, дисконтные магазины
Продовольственные магазины: удобные магазины, супермаркеты, суперсторы, складские магазины, гипермаркеты
Так, выделяется четыре типа непродовольственных магазинов - от специализированных магазинов с полным перечнем услуг, высокими ценами и небольшим ассортиментом до складских центров с ограниченным набором услуг, низкими ценами и широким товарным ассортиментом.
Специализированные магазины небольшие с узким ассортиментом, но большой глубиной. К ним относятся магазины модной одежды, обуви, салоны красоты. Большинство специализированных магазинов принадлежит специализированным розничным торговцам, в отличие от универмагов, которые обычно входят в розничную сеть.
В отличие от специализированных магазинов универмаги предлагают более разнообразный выбор товаров с относительно невысокой глубиной ассортимента[5].
Магазины массовых товаров, как и универмаги, предлагают широкий и не глубокий ассортимент продукции, но по более низким ценам.
В настоящее время магазины массовых товаров сделали резкий поворот в сторону специализированной торговли, стремясь при этом поддерживать низкие цены.
Потребители, ориентирующиеся на самые низкие цены, пользуются дисконтными магазинами. Здесь продаются товары устаревших моделей, несезонные, излишки крупных партий. Цены могут быть ниже цен на аналогичные товары в специализированных магазинах на 30-40 %, поэтому потребители, желающие купить пусть устаревшую, но качественную вещь, внимательно следят за ассортиментом этих магазинов[6].
Классификация продовольственных магазинов так же зависит от широты и глубины ассортимента.
Потребители, готовые заплатить больше, чтобы затратить меньше времени на покупку продуктов питания, покупают их в удобных магазинах, которые расположены в близи дома, имеют длительный рабочий день и предлагают ограниченный выбор быстрооборачивающихся товаров по более высоким ценам в связи с более высокими издержками.
Большую часть закупок продуктов питания производят в супермаркетах - продовольственных магазинах, которые торгуют по низким ценам, имеют большой оборот и предлагают широкий выбор товаров (в среднем 12000 наименований) и несколько видов услуг. Супермаркеты предпочитают товары массового спроса с высокой оборачиваемостью
Супермаркетам трудно остановить снижение своих продаж. Они, как правило, имеют незначительную прибыль - в среднем 1 % товарооборота. Некоторые из них попытались увеличить прибыль, исключив из ассортимента товары, не пользующиеся популярностью, и увеличив количество более прибыльных непродовольственных товаров, вроде предметов туалета и хозяйственных товаров. Наличие в ассортименте продовольственных и непродовольственных товаров, известное как смешанная торговля, позволило несколько повысить прибыль.
В 90-е годы супермаркеты расширили выбор продовольственных и непродовольственных товаров и намного увеличили размеры магазинов, которые получили наименование суперсторы. Суперсторы почти вдвое больше среднего супермаркета предлагают почти вдвое больше наименований и широко используют смешанную торговлю.
Складские магазины торгуют со значительными скидками, не предоставляют услуг, предлагая продукты питания в коробках, полученных от поставщиков, что вынуждает покупателей самим укладывать покупки в сумки.
Еще одно доказательство тенденции к созданию более крупных магазинов, торгующих по более низким ценам - появление гипермаркетов - мегамагазинов, сочетающих особенности продовольственных магазинов и магазинов массовых товаров. Они предлагают все товары, продающиеся в супермаркетах, а также больший выбор непродовольственных товаров, чем суперсторы или складские магазины. Кроме того, большинство гипермаркетов имеет отделы, типичные для магазинов массовых товаров, например автопринадлежностей, хозтоваров, одежды и электроники. В некоторых имеются даже салоны красоты, рестораны быстрого обслуживания и игровые комнаты для детей, родители которых занимаются покупками.
Особую группу составляют компании, осуществляющие розничную торговлю по каталогам, на дому, через торговые автоматы, в развоз или по почте. Ожидается, что в начале будущего века доля этих форм торговли в розничном товарообороте возрастет из-за растущего количества одиноких людей и работающих женщин, которые испытывают особенно острый дефицит времени и для которых покупки по каталогам и на дому с помощью телевизионных игровых сетей особенно привлекательны.
Торговые автоматы - это еще одна форма внемагазинной торговли. Они предназначены для продажи товаров там, где отсутствуют магазины, а их преимуществом является круглосуточная торговля.
Некоторые промышленные компании выполняют функции розничной торговли, продавая товары в развоз. "Avon" и "Mary Kay Cosmetics" - это по сути фирмы внемагазинной торговли. В Японии, например, маркетинг путем доставки на дом получил такое распространение, что "Mutow" - крупнейшая посылочная фирма страны - ежегодно увеличивала штат торговых представителей на 20 %.[7].
2. Практическая часть. Анализ деятельности и проектирование развития мелкорозничной торговой сети ЧП «Гаврилова Т.С.»
2.1 Общая характеристика сети ЧП «Гаврилова Т.С.»
ЧП «Гаврилова Т.С.» – коммерческое предприятие, осуществляющее мелкорозничную торговлю овощами и фруктами. Для осуществления торговой деятельности предприниматель Гаврилова Т.С. арендует 4 киоска у ООО «Land Star», расположенных на рынке в г. Хабаровске.
Право на ведение торговой деятельности подтверждается «Свидетельством о государственной регистрации предпринимателя, осуществляющим свою деятельность без образования юридического лица». Регистрация произведена Хабаровской городской регистрационной палаты, заверена печатью и подписью регистрационной палаты.
На основании «Свидетельства» предприниматель зарегистрирован в налоговой инспекции по месту жительства. При постановки на учет налогоплательщику Гавриловой Т.С. присвоен ИНН, выдано свидетельство о постановке на учет в налоговом органе физического лица.
Для осуществления продажи овощей и фруктов получено разрешение на их реализацию, выданное администрацией г. Хабаровска.
Реализация товаров не может осуществляться без санитарно-эпидемиологического заключения. В государственную санитарно-эпидемиологическую службу РФ был представлен список реализуемой продукции в ЧП «Гаврилова», который был утвержден Центром государственного санитарно-эпидемиологического надзора г. Хабаровска и выдано заключение, что розничная торговля овощами и фруктами в ЧП «Гаврилова» соответствует государственным санитарно-эпидемиологическим правилам и нормативам: «Санитарно-эпидемиологические требованиям к организациям торговли, обороту в них продовольственного сырья и пищевых продуктов».
2.2.Коммерческая деятельность по закупкам товаров
Основным поставщиком овощей и фруктов в ЧП «Гаврилова» является ООО «Программа-Импульс», который снабжает продукцией отечественного производства и зарубежных фирм. Завоз плодоовощных товаров осуществляется силами и средствами поставщика в рамках централизованного снабжения. Перечень товаров, реализуемых через киоски ЧП «Гаврилова» отражается в расходных накладных.
Вся реализуемая продукция сертифицирована, что подтверждено сертификатами соответствия.
Приемка товаров
По возможности транспортные средства, доставившие овощи и фрукты, принимаются и разгружаются без задержки. Разгрузка осуществляется с соблюдением общих правил выполнения погрузочно-разгрузочных работ.
Предварительная приемка проводиться предпринимателем Гавриловой Т.С., а окончательная – материально - ответственными лицами в каждом киоски. Приемке и оприходованию подлежат только качественные товары, отвечающие требованиям стандартов и технических условий.
Приемка товаров по количеству и качеству осуществляется в соответствии с инструкциями «О порядке приемки продукции производственно- технического назначения и товаров народного потребления по количеству» и «О порядке приемки продукции производственно- технического назначения и товаров народного потребления по качеству».
Приемка товаров по количеству заключается в сверке массы, числа мест, единиц фактически поступивших товаров с показателями счетов – фактур, товарно-транспортных и других сопроводительных документов. Приемку товаров по количеству проводят в определенные сроки. Так товары, поступившие без тары, в открытой или поврежденной таре, принимаются в момент их доставки. Товары, поступившие в исправной таре, по массе брутто и по количеству мест принимают в момент получения их от поставщика, по массе нетто и количеству товарных единиц – одновременно со вскрытием тары.
В процессе приемки работники торговой точки выявляют качество и комплектность товаров, а также соответствие тары, упаковки и маркировки товара установленным требованиям. Если при приемке будут обнаружены недоброкачественные товары, то результаты приемки оформляют актом.
Договор с поставщиком предусматривает условия при которых возможна уценка товара до цены поставщика.
В киосках ЧП « Гаврилова» продажа овощей и фруктов осуществляется через прилавок, материальная ответственность – индивидуальная, с ежедневным подведением результатов работы. Каждый киоск снабжен контрольно-кассовой машиной и электронными весами.
Деятельность мелкорозничной сети осуществляется в соответствии с федеральными и региональными нормативными и законодательными актами, регулирующими торговлю. Так, например, реализация овощей и фруктов проводится в соответствии с «Правилами продажи отдельных видов товаров» (с изменениями на 06.02.2002г.)
В киосках соблюдаются санитарные, противопожарные и другие требования, средства измерения содержаться в образцовом состоянии, метрологическая поверка проводиться 1 раз в год.
Информация в ценниках на реализуемые товары содержит следующие данные:
- наименование предприятия;
- наименование товара;
- страна – изготовитель;
- фирма – изготовитель;
- цена за единицу веса или штуку.
По просьбе покупателя продавец предоставляет сертификат качества на реализуемый товар и декларацию о соответствии.
Организация хранения и подготовка товаров к продаже
Задача работников мелкорозничной торговой сети ЧП «Гаврилова Т.С.» заключается в доведении до покупателей товаров, поступивших на реализацию, без снижения их качества и с наименьшими потерями.
Характерными особенностями хранения овощей и фруктов в киосках, входящих в мелкорозничную торговую сеть ЧП «Гаврилова Т.С.», являются:
· хранение небольших партий товаров и, как правило, в распакованном виде;
· хранение широкого ассортимента товаров различных товарных групп, зачастую требующих различных условий хранения;
· быстрая обновляемость товаров.
С целью улучшения внешнего вида плодоовощных товаров перед выкладкой их на торговом оборудовании производится предварительная подготовка товаров: распаковка, сортировка, облагораживание.
В целом, из–за отсутствия помещений для хранения и малой площади торгового предприятия - ЧП «Гаврилова Т.С.» не имеет условий для хранения значительных запасов товаров и подготовки их к продаже, поэтому эффективность работы этого предприятий во многом зависит от организации снабжения товарами. За годы многолетней работы Гавриловой Т.С. удалось наладить ритмичное, планомерное товароснабжение мелкими партиями, что обеспечивает бесперебойную торговлю в соответствии с потребностями покупателей.
2.3.Формирование ассортимента и управление товарными запасами плодоовощной продукции и его оценка
Формирование ассортимента товаров в розничных торговых предприятиях – сложный процесс, осуществляемый с учетом целого ряда факторов.
На формирование ассортимента товаров, реализуемых через мелкорозничную торговую сеть ЧП «Гаврилова Т.С. », оказывают влияние ряд факторов:
- месторасположение мелкорозничной торговой сети (то что киоски, арендуемые частным предпринимателем, находятся между крупным транспортным узлом и жилым массивом определило профиль торгового предприятия, так как, в первую очередь должен быть удовлетворен спрос на продовольственные товары потребителей, возвращающихся домой);
- покупательский спрос (все действия по организации коммерческой деятельности розничного торгового предприятия должны быть направлены на максимальное удовлетворение спроса населения, вместе с тем при наличии на микро рынке большого числа предприятий, реализующих хлебобулочные изделия, вино - водочную продукцию, полуфабрикаты, спрос на фрукты и овощи до последнего времени был удовлетворен не полностью;
- консервативность (потребитель зачастую привыкает к определенным видам продукта, вследствие чего в ассортименте описываемого торгового предприятия всегда присутствуют яблоки, бананы, груши);
- сезонность производства (так в зависимости от времени года на витрине киоска появляются: зимой – мандарины, хурма, картофель, летом – виноград, персики, абрикосы; кроме того, зимой увеличивается объем сухофруктов и соков, а летом объем продаж свежих овощей и фруктов, что так же учитывается при формировании ассортимента);
- размеры денежных доходов населения (вследствие удаленности от центральной части города, ассортимент сформирован таким образом, чтобы удовлетворить потребности потребителей со средним и более низкими доходами; так опыт показывает, что такие продукты как ананас, нектарин, сладкий болгарский перец (зимой), дорогостоящие сорта яблок – пользуются незначительным спросом);
- торговая площадь (небольшая торговая площадь не позволяет динамично расширять ассортимент предлагаемых товаров).
Овощи и фрукты относятся к товарам простого ассортимента, поэтому они имеют незначительное количество разновидностей.
В то же время действия торгового предприятия направлены на максимальное удовлетворение спроса населения и вместе с тем на активное воздействие на спрос в сторону его расширения. Так, например, для расширения ассортимента зимой 2004г. была завезена пробная партия сушеных фруктов в сахаре, которые впоследствии заняли прочное место по объему продаж.
2.4. Коммерческая деятельность по розничной продаже товаров
Деятельность по продаже плодоовощных товаров является заключительным этапом коммерческой работы ЧП «Гаврилова Т.С.». Этому процессу предшествуют отслеживание динамически изменяющегося спроса покупателей, поиск и тщательный отбор поставщиков, формирование ассортимента, действия по приемке, хранению и подготовке к продаже овощей и фруктов.
Местонахождение торговой сети ЧП «Гаврилова Т.С.» определило качественный состав покупателей продукции – это, чаще всего, люди, спешащие домой, поэтому все операции по продаже фруктов и овощей производятся четко и быстро:
-встреча покупателя и выявление его намерения;
-предложение и показ товаров;
-при необходимости, помощь в выборе товаров и консультация;
-предложение новых товаров;
-проведение операций взвешивания;
-расчетные операции, упаковка и выдача покупок.
Благодаря многолетней работе Гавриловой Т.С. по подбору и обучению кадров, процесс покупки овощей и фруктов не занимает у потребителя много времени, а продавцы всегда могут предложить заменяющий товар при отсутствии необходимого.
2.5 Проект строительства здания магазина
Как было сказано выше, в распоряжении предприятия ЧП «Гаврилова Т.С.» имеются лишь киоски для реализации товаров. На 2006 год предприятием запланировано строительство здания под стационарный магазин.
Взаимное расположение основных групп помещений магазина должно быть таким, чтобы между ними обеспечивалась технологическая связь, способствующая перемещению товаров кратчайшими путями, исключались пересечения движения потоков товаров и покупателей (рис. 2).

Кроме того, должна предусматриваться такая планировка магазина, которая позволяла бы увеличивать площадь торговых помещений за счет неторговых. Например, при переходе магазина самообслуживания к использованию преимущественно тары-оборудования площадь торгового зала может быть увеличена за счет помещений для хранения товаров.
Таким образом, при осуществлении планировки помещений магазина необходимо соблюдать следующие основные требования:
– разгрузочные (платформы или помещения) должны примыкать к помещениям для приемки товаров;
– помещения для приемки следует располагать так, чтобы обеспечивались кратчайшие связи между ними и помещениями для хранения товаров, а также торговыми залами, если товары поступают в таре-оборудовании;
– помещения для хранения товаров не должны быть проходными, их размещают в непосредственной близости от помещений для подготовки товаров к продаже;
– помещения для хранения товаров и подготовки их к продаже должны быть непосредственно связаны с соответствующими отделами торговых залов и располагаться на одном уровне;
– служебные и бытовые помещения располагают таким образом, чтобы обеспечивалась необходимая связь между этой группой помещений и другими неторговыми и торговыми помещениями;
– взаимное расположение служебных и бытовых помещений определяется их функциями (например, должна быть обеспечена связь между помещениями для отдыха и приема пиши);
– помещения, входящие в одну функциональную группу, следует, по возможности, объединять (например: мелкие помещения для хранения товаров объединять в одно; в небольших магазинах выделять в помещениях для хранения товаров площадь для их подготовки к продаже).[8]
Торговый зал — часть торговой площади, на которой осуществляется продажа товаров. Он является основным помещением магазина. Здесь покупатели отбирают выставленные для продажи товары, рассчитываются за них, получают дополнительные услуги.
Устройство и планировка торгового зала должны соответствовать его функциям и разрабатываться с учетом следующих требований:
– обеспечения рациональной организации торгового процесса, движения покупательских и товарных потоков;
– создания условий для механизации трудоемких процессов обслуживания покупателей;
– удобного для покупателей размещения входов, выходов, секций (отделов), торгового оборудования;
– эффективного использования площади торгового зала при размещении торгового оборудования;
– обеспечения рационального размещения и максимальной видимости выложенных товаров;
– создания условий экономичности и простоты санитарного и технического обслуживания.
Наиболее распространенными являются торговые залы прямоугольной конфигурации с пропорциями сторон от 1:1 до 1:3. Подобная конфигурация торгового зала обеспечивает оптимальные условия для организации продажи товаров такими современными методами, как самообслуживание, продажа товаров по образцам. Это не только способствует соблюдению требований рациональной организации торгово-технологических операций, выполняемых в магазине, но и предоставляет покупателям возможность хорошо ориентироваться в размещении товарных групп и совершать покупки в минимальные сроки, создает условия для комфортного пребывания покупателей в магазине.
Торговые залы магазинов, расположенных в отдельно стоящих зданиях, имеют пропорции близкие к квадрату (1:1; 1:1,5), что делает их эксплуатацию еще более эффективной с точки зрения перечисленных выше требований. Напротив, слишком вытянутая форма торговых залов (1:10 и более) встроенных магазинов усложняет их планировку, вызывает необходимость деления зала на отделы, что не всегда удобно для покупателей.
Для организации технологического процесса в магазине большое значение имеет расстояние между колоннами (опорами) в торговом зале, то есть сетка колонн. Чем больше расстояния между колоннами, тем эффективнее используется площадь торгового зала, больше возможностей имеется для размещения торгового оборудования.
Величина сетки колонн зависит от площади торгового зала и конструктивных особенностей здания. Наиболее экономична сетка колонн 6x6, 6x9, 6x12 м, но она может быть увеличена до 18, 24 м и более.
При планировке торгового зала важную роль играет правильная организация потоков покупателей, которая зависит от размещения входов и выходов, расстановки торгового оборудования и расположения контрольно-кассового узла.
Размещение входа в магазин и выхода из него по центру торгового зала применяют в магазинах, продажа товаров в которых происходит через прилавок обслуживания. Это позволяет рассредоточить покупателей по всей площади зала.
В магазинах самообслуживания вход и выход совмещены и расположены, как правило, у правого угла фасада здания, чтобы поток покупателей был направлен против часовой стрелки.
В магазине с отделом заказов или кафетерием создают расширенные тамбуры или холлы, из которых покупатели могут пройти во все торговые помещения магазина. Всю площадь торгового зала можно условно разделить на:
– установочную площадь;
– площадь проходов для покупателей и перемещения товаров;
– площадь рабочих мест обслуживающего персонала;
– площадь контрольно-кассового узла.
![]() |
где Ку — коэффициент установочной площади;
Sy — установочная площадь магазина, м2;
ST.З — площадь торгового зала, м2.
Если значение коэффициента установочной площади низкое (меньше 0,25), то это говорит о нерациональном использовании торговой площади из-за небольшого количества оборудования. Если же значение коэффициента завышено (более 0,35), то это может привести к неудобствам для покупателей, поскольку недостаточная ширина проходов между оборудованием в таком случае будет препятствовать их свободному перемещению.
Однако следует учесть, что этот показатель может изменяться в зависимости от размера магазина (чем больше торговая площадь, тем, как правило, меньше доля установочной площади) и от его специализации.
Наряду с рациональным использованием торговой площади под установку оборудования в магазине необходимо максимально эффективно использовать ее под выкладку товаров. Это достигается за счет применения оборудования, имеющего большую экспозиционную площадь.
Экспозиционная площадь исчисляется как сумма площадей всех горизонтальных, вертикальных и наклонных плоскостей, используемых для выкладки товаров на торговом оборудовании в торговом зале. К экспозиционной площади относится и площадь, занимаемая основаниями крупногабаритных товаров.
![]() |
где КЭКСП — коэффициент экспозиционной площади торгового зала;
SЭксп —; экспозиционная площадь магазина, м2;
ST3 — площадь торгового зала, м2.
Этот показатель зависит от видов и типов применяемого для выкладки товаров оборудования, а также от его габаритов и количества элементов, увеличивающих экспозиционную площадь (полок, корзин и т. п.). Оптимальным между экспозиционной площадью и площадью торгового зала в магазине самообслуживания считается соотношение, примерно равное 0,7.
Увеличение коэффициента экспозиционной площади за счет применения островных горок или стеллажей большой высоты может привести к ухудшению обозримости товаров, вызвать неудобства при их выкладке, а также затруднить отбор товаров покупателями.
Коэффициент экспозиционной площади зависит от специализации магазина: он будет ниже в магазинах, где применяются холодильные прилавки и другое подобное холодильное оборудование, в магазинах, торгующих крупногабаритными товарами, и т. д.
Для свободного перемещения товаров и покупателей часть торгового зала магазина самообслуживания отводится под проходы. Ширина проходов между торговым оборудованием определяется строительными нормами и правилами, однако она может изменяться в каждом конкретном магазине с учетом применяемых средств механизации и интенсивности покупательского потока. Так, более широкие проходы должны быть там, где предусматривается перемещение товаров с помощью подъемно-транспортных средств. Для свободного перемещения покупателей обязательным является наличие магистральных (более широких по сравнению с обычными) проходов, расположенных вдоль стен и связывающих все зоны торгового зала.
В магазинах, где торговля ведется через прилавок обслуживания, выделяется площадь для организации рабочих мест обслуживающего персонала. Ее размер равен произведению длины фронта прилавка на глубину рабочего места. Глубина рабочего места продавца включает ширину прилавка и торгового оборудования для выкладки и размещения рабочего запаса товаров, а также ширину прохода между ними, который должен быть не менее 0,9 м.
Специально оборудованная часть площади торгового зала, предназначенная для расчетов с покупателями за товары в зонах самообслуживания магазинов, в пределах которой сосредоточено более одной контрольно-кассовой машины, называется контрольно-кассовым узлом. Площадь контрольно-кассового узла включает в себя площадь, занимаемую кассовыми кабинами, проходами между ними, столами для упаковки товаров, а также площадь для хранения корзин и тележек для отборки товаров покупателями. В магазинах самообслуживания эта площадь не должна превышать 15% площади торгового зала. При этом количество рабочих мест контролеров-кассиров определяют исходя из специализации магазина и площади его торгового зала.
В продовольственных магазинах на одно рабочее место контролера-кассира должно приходиться до 100 м2 площади торгового зала, а в непродовольственных — до 160 м2.[9]
При составлении технологической планировки торгового зала большое значение имеет рациональное использование площади магазина за счет правильного размещения и применения торгового оборудования.
В зависимости от размеров и конфигурации торгового зала, ассортимента реализуемых товаров и методов продажи применяют линейную, боксовую, выставочную и смешанную планировки.
При продаже товаров по методу самообслуживания наиболее рациональна линейная планировка торгового зала, когда расстановка оборудования и проходы для покупателей спланированы в виде параллельных линий, расположенных, как правило, перпендикулярно линии узла расчета. При этом часть оборудования (пристенные горки, тару-оборудование, охлаждаемые прилавки) устанавливают вдоль стен торгового зала, что позволяет с большей эффективностью использовать его площадь.
С помощью линейной планировки удобно регулировать направления движения покупательских потоков, организовать единый расчетный узел. Она обеспечивает хороший просмотр торгового зала, предоставляет возможность самостоятельного отбора товаров одновременно всеми находящимися в зале покупателями, позволяет им совершить комплексную покупку, затратив на это минимум времени. Различают три варианта линейной планировки:
– продольную, при которой линии торгового оборудования выстроены вдоль торгового зала;
– поперечную, когда оборудование образует линии, идущие поперек торгового зала;
– комбинированную, сочетающую в себе и продольную, и поперечную планировки.
Продольная линейная планировка применяется, если торговый зал магазина имеет небольшую (до 12 м) глубину. При большей глубине торгового зала целесообразно использовать поперечную или комбинированную планировки.
Боксовая планировка представляет собой разбивку всей площади торгового зала на изолированные друг от друга отделы (боксы). При этом каждый отдел имеет собственный узел расчета, что делает такую планировку менее удобной для покупателей, совершающих комплексную покупку, поскольку на приобретение товаров в каждом отделе и на расчетные операции им приходится затрачивать дополнительное время.
Боксовая планировка наиболее часто применяется в крупных магазинах или магазинах, расположенных в жилых домах и имеющих вытянутые пропорции торговых залов. Оправдано ее применение и в магазинах с универсальным ассортиментом непродовольственных товаров, особенно при продаже товаров, требующих примерки (обувь, одежда) или специального отбора (ювелирные изделия и т. п.).
Выставочная планировка применяется в магазинах, торгующих по образцам. Ее используют при продаже тканей, обоев, телевизоров, стиральных машин и др. Товары демонстрируют на стендах, горках, стеллажах, манекенах, расположенных на специально отведенной площади для показа товаров.
Смешанная планировка торгового зала сочетает в себе различные виды планировок.[10].
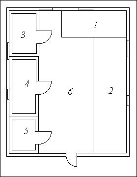
Как уже было сказано выше, магазины и киоски предприятия ООО “Алмаз” представляют собой одноэтажные здания площадью в среднем 50 м2, но не более 250 м2. Все здания магазинов состоят из нескольких помещений.
Первое помещение – это сам торговый зал, представляющий собой параллелепипед, точный размер стен этого помещения сказать нельзя, так как все предприятия неравны по площади. Планировка помещения – комбинированная линейная.
Кроме этого есть еще помещение кассы – отдельно стоящая будка.
Помещения для хранения продукции и бытовые помещения.
Так как точные размеры определить нельзя, то в качестве примера можно рассмотреть магазин средней величины. Планировка этого помещения приведена на рис. 3.
![]() |
ЗАКЛЮЧЕНИЕ
Переход России к рыночной экономике потребовал новых подходов к организации и технологии коммерческой деятельности торговых предприятий. Это в свою очередь предъявило новые требования к подготовке специалистов среднего звена, профессиональная деятельность которых осуществляется в сфере товарного обращения.
В условиях рыночной экономики существенно возрастает роль коммерческой деятельности как основного фактора эффективного хозяйствования предприятий с различными формами собственности на потребительском рынке.
Коммерческая деятельность представляет собой совокупность финансово-экономических, правовых и организационных знаний и действий, направленных на организацию и совершенствование процессов обращения (купли, продажи) товаров и услуг для удовлетворения спроса потребителей и получения прибыли.
Стремительные изменения, которые происходят во внешней и внутренней среде коммерческой деятельности, создают условия, при которых ни одна из известных зарубежных или так называемых «западных» экономических моделей в «в чистом виде» не работают. Деятельность специалистов-коммерсантов должна строиться в первую очередь на умении выявить и использовать экономические закономерности.
Поскольку в условиях рынка товары, услуги, ценные бумаги, недвижимость, интеллектуальный продукт, информация являются объектами коммерции, авторы сознательно сосредоточили свое внимание на продовольственных и не продовольственных товарах, а оптовая и розничная торговля рассматриваются как услуга по доведению товара от производителя до непосредственного потребителя.
В настоящей курсовой работе положения о деятельности мелкорозничной торговой сети проиллюстрированы на примере сети ЧП «Гаврилова Т.С.».
ЧП «Гаврилова Т.С.» - яркий пример успешного развития малого и среднего бизнеса в новых экономических условиях России. Работа предприятия основана на четкой и грамотной организации торгово-технологического процесса, а также неукоснительному следованию требованиям законодательно – нормативной базы. Деятельность созданной Гавриловой Т.С. мелкорозничной торговой сети по реализации фруктов и овощей направлена не только на сиюминутное получение прибыли, но и, в первую, на создание максимально комфортных условий для удовлетворения потребностей покупателей и на стабильное развитие предприятия.
Для успешного развития в заданном направлении в адрес ЧП «Гаврилова» можно выдвинуть следующие предложения:
1. Увеличить, в целом, долю отечественной продукции и, в частности, продукции Новосибирской и соседних с ней областей в общей массе реализуемой продукции.
2. Расширить ассортимент, путем увеличения площади торгового предприятия за счет аренды более крупных помещений (например, павильонов) и поиска новых поставщиков.
3. Повысить эффективность использования торгового оборудования при выкладке плодоовощных товаров.
Совершенствовать управление торгово-технологическим процессом (что связано с оперативным получением и обработкой достоверной информации о состоянии и динамики торгово-технологического процесса на предприятии с применением автоматизированных средств).
СПИСОК ИСПОЛЬЗУЕМОЙ ЛИТЕРАТУРЫ
1. ГОСТ 51303-99. Торговля. Термины и определения. – М.: Госстандарт РФ, 1999.
2. ГОСТ 51304-99. Услуги розничной торговли. Общие требования. – М.: Госстандарт РФ, 1999.
3. Аванесов Ю.А., Клочко А.Н., Виськин Е.В. Основы коммерции. – М.: ТОО «Люкс-АРГ», 2005.
4. Бланк И.А. Управление торговым предприятием: Учебник. – М.: Издательство «ЭКМОС», 1998.
5. Дашков Л.П., Памбухчиянц В.К. Коммерция и технология торговли. – М.: ИВЦ «Маркетинг», 1999.
6. Котлер Ф. Маркетинг. Менеджмент. – СПб. Питер – Ком, 1999.
7. Памбухчиянц В.К. Организация, технология и проектирование торговых предприятий: Учебник. – М.: ИВЦ «Маркетинг», 2003.
8. Панкрухин А. И. Маркетинг. – М.: ИМП, 2002.
9. Хершген Х. Маркетинг. Учебник для вузов. – М.: Инфра-М, 2000.
10.Менар, Клод. - Экономика организаций. - М.: Инфра-М, 2004. - 159 с.
[1] Дашков Л.П., Памбухчиянц В.К. Коммерция и технология торговли. – М.: ИВЦ «Маркетинг», 1999.
[2] Бланк И.А. Управление торговым предприятием: Учебник. – М.: Издательство «ЭКМОС», 1998.
[3] Бланк И.А. Управление торговым предприятием: Учебник. – М.: Издательство «ЭКМОС», 1998.
[4] Котлер Ф. Маркетинг. Менеджмент. – СПб. Питер – Ком, 1999. – 687 с.
[5] Котлер Ф. Маркетинг. Менеджмент. – СПб. Питер – Ком, 1999. – 687 с.
[6] Панкрухин А. И. Маркетинг. – М.: ИМП, 1999. – 415 с.
[7] Хершген Х. Маркетинг. Учебник для вузов – М.: Инфра-М, 2000. – 359с.
[8] Памбухчиянц В.К. Организация, технология и проектирование торговых предприятий: Учебник. – М.: ИВЦ «Маркетинг», 1998. – с. 90
[9] Аванесов Ю.А., Клочко А.Н., Виськин Е.В. Основы коммерции. – М.: ТОО «Люкс-АРГ», 2005. – с. 155.
[10] Менар, Клод. - Экономика организаций. - М.: Инфра-М, 1996. - 159 с.


