Приложение 1









![]() |
|||
![]() |
|||
![]()
|

Рис. 1. Организационная структура ОАО «Хорская строительная компания»
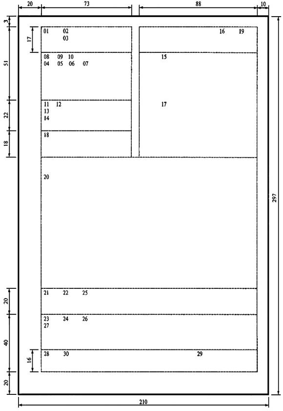
Приложение 2
Расположение
реквизитов и границы зон на формате А4 углового бланка
Приложение 3
УТВЕРЖДЁН Решением Учредителя №1 от 8 июня 1998 года
УСТАВ открытого акционерного общества «СТРОИТЕЛЬНАЯ КОМПАНИЯ»
НАСТОЯЩИЙ УСТАВ (далее – Устав) есть учредительный документ Акционерного общества открытого типа (далее – Общество) созданного путём учреждения единственным Учредителем (Решение №1 от 8 июня 1998 года) в соответствии с Федеральным законом «Об акционерных обществах» (далее – Закон), иным действующим законодательством.
Полное фирменное наименование Общества: открытое акционерное общество «СТРОИТЕЛЬНАЯ КОМПАНИЯ».
Сокращенное фирменное наименование Общества: ОАО «Строительная компания».
Место нахождения Общества: Новосибирская область, г. Новосибирск, ул. Советская -9.
Общество – юридическое лицо по законодательству России имеет в собственности обособленное имущество, учитываемое на самостоятельном балансе, отвечает по своим обязательствам этим имуществом, может от своего имени приобретать и осуществлять имущественные и личные неимущественные права, нести обязанности, быть истцом и ответчиком в суде.
Общество может заниматься строительной деятельностью, возведением зданий и сооружений из кирпича, оптовой и розничной торговлей строительными материалами, оказанием СМР
АКЦИИ. УСТАВНЫЙ КАПИТАЛ
Уставный капитал Общества в размере 90.000 рублей разделён на 100 обыкновенных именных акций (далее – Акция) выпущенных в бездокументарной форме. Номинальная стоимость Акций одинакова – 900 рублей каждая. Каждая обыкновенная Акция предоставляет Акционеру – её владельцу одинаковый объём прав, предусмотренный действующим законодательством и удостоверяемый Решением о выпуске Акций, в частности, право: - на получение части прибыли Общества в виде дивидендов; - на участие в управлении Обществом; - на часть имущества, остающегося после ликвидации Общества. Акционеры пользуются преимущественным правом приобретения Акций, продаваемых другими Акционерами. Акционер вправе, в соответствии с Законом, получать информацию о деятельности Общества и знакомиться с его документами, которые должны быть представлены ему для ознакомления по месту нахождения Генерального директора (далее – Директор) в течение 7 дней со дня предъявления требования. Резервный фонд Общество образует путём обязательных ежегодных отчислений в размере 5% от чистой прибыли до достижения им 15% Уставного капитала. СОБРАНИЕ АКЦИОНЕРОВ Высший орган управления Общества – Общее собрание Акционеров (далее – Собрание) принимает решение по вопросу, поставленному на голосование, большинством голосов Акционеров, принимающих участие в Собрании, если иное не установлено Законом. Годовые Собрания (для избрания Совета директоров (далее – Совет), Ревизора, утверждения аудитора, годовых отчётов, бухгалтерских балансов, счёта прибылей и убытков, распределения прибылей и убытков) проводят ежегодно в 1 понедельник июня. Внеочередные Собрания (для решения вопросов отнесённых к компетенции Собрания) Совет созывает по собственной инициативе, а также по требованию Ревизора, аудитора, Акционеров, владеющих в совокупности не менее 10% Акций. Голосование на Собрании осуществляется по принципу: 1 Акция – 1 голос (кроме случаев, предусмотренных Законом). Решение Собрания (кроме решения вопросов об избрании Совета, Ревизора, утверждении аудитора, годовых отчётов, бухгалтерских балансов, счёта прибылей и убытков, распределения прибылей и убытков) может быть принято без совместного присутствия Акционеров (опросным путём). КОМПЕТЕНЦИЯ СОБРАНИЯ К компетенции Собрания относятся: - внесение изменений и дополнений в Устав или утверждение устава в новой редакции; - реорганизация или ликвидация Общества, назначение ликвидационной комиссии и утверждение промежуточного и окончательного ликвидационных балансов; - определение количества, номинальной стоимости, категорий (типа) объявленных акций и предоставляемых ими прав. Решения по этим вопросам могут быть приняты только большинством в 3/4 голосов Акционеров, принимающих участие в Собрании. К компетенции Собрания относятся: - определение количественного состава Совета, избрание его членов, досрочное прекращение их полномочий; - увеличение Уставного капитала путём увеличения номинальной стоимости Акций или размещения дополнительных акций; - уменьшение Уставного капитала путём уменьшения номинальной стоимости Акций или погашения выкупленных Обществом Акций; - избрание Директора, Ревизора, досрочное прекращение их полномочий; - утверждение аудитора; - утверждение годовых отчётов, годовой бухгалтерской отчётности, в том числе отчётов о прибылях и убытках, а также распределение прибыли и убытков Общества по результатам финансового года, выплата (объявление) дивидендов; - определение порядка ведения Собрания; - дробление и консолидация Акций; - принятие решений об одобрении сделок, в случаях, предусмотренных статьёй 83 Закона; - принятие решений об одобрении крупных сделок, в случаях, предусмотренных статьёй 79 Закона; - принятие решения об участии в холдинговых компаниях, финансово-промышленных группах, ассоциациях и иных объединениях коммерческих организаций; - утверждение внутренних документов, регулирующих деятельность органов Общества; - решение иных вопросов, предусмотренных Законом. Вопросы, отнесённые к компетенции Собрания не могут быть переданы на решение Совету. ПОДГОТОВКА К СОБРАНИЮ При подготовке к проведению Собрания Совет определяет: - форму проведения Собрания; - дату, место и время проведения Собрания, а в случае проведения Собрания в форме заочного голосования – дату окончания приёма бюллетеней и почтовый адрес, по которому должны направляться заполненные бюллетени; - дату составления списка лиц, имеющих право на участие в Собрании; - повестку дня Собрания; - перечень информации (материалов), представляемой Акционерам при подготовке к проведению Собрания; - порядок сообщения Акционерам о проведения Собрания; - в случае голосования бюллетенями их форму и текст и сообщает об этом, а также о порядке ознакомления с информацией (материалами) и адрес, по которому с ней можно ознакомиться, не позднее чем за 20 дней до даты проведения Собрания. В случае, если в течение 5 дней с даты предъявления требований Совет не принял решение о созыве внеочередного Собрания или принял решение об отказе в его созыве, внеочередное Собрание может быть созвано лицами, требующими его созыва. В этом случае расходы на подготовку и проведение Собрания могут быть возмещены по решению Собрания за счёт средств Общества. ПРОВЕДЕНИЕ СОБРАНИЯ Акционер вправе участвовать в Собрании лично или через представителя, действующего на основании доверенности. Собрание правомочно (имеет кворум), если для участия в нём приняли участие Акционеры обладающие в совокупности более чем 50% голосов размещённых Акций. При отсутствии кворума годового Собрания должно быть, а при отсутствии кворума внеочередного Собрания может быть проведено повторное Собрание с той же повесткой дня. Повторное Собрание будет правомочно, если в нём приняли участие Акционеры, обладающие в совокупности не менее чем 30% голосов размещённых Акций. Председатель Совета, председательствует на Собраниях, организует ведение протоколов и подписывает их. Решения, принятые Собранием, и итоги голосования оглашаются на Собрании или доводятся до сведения лиц, включённых в список лиц, имеющих право на участие в Собрании, не позднее 10 дней после составления протокола об итогах голосования. СОВЕТ ДИРЕКТОРОВ В Обществе создан Совет директоров (в Уставе – Совет). Членов Совета избирает годовое Собрание на срок до следующего годового Собрания обычным голосованием. Компетенция Совета: - определение приоритетных направлений деятельности Общества; - созыв годового и внеочередного Собраний, за исключением случаев, предусмотренных Законом; - размещение Обществом облигаций и иных эмиссионных ценных бумаг и приобретение их Обществом в случаях, предусмотренных Законом; - определение цены (денежной оценки) имущества, цены размещения и выкупа эмиссионных ценных бумаг в случаях, предусмотренных Законом; - рекомендации по размеру выплачиваемых Ревизору вознаграждений и компенсаций и определение размера оплаты услуг аудитора; - рекомендации по размеру дивиденда по Акциям и порядку его выплаты; - использование Резервного и иных фондов Общества; - утверждение внутренних документов Общества, за исключением документов, утверждение которых отнесено Законом к компетенции Собрания; - создание филиалов и открытие представительств; - одобрение крупных сделок, предметом которых является имущество, стоимость которого составляет от 25 до 50% балансовой стоимости активов Общества. (Принимается всеми членами Совета единогласно, при этом не учитываются голоса выбывших членов Совета); - одобрение сделок, предусмотренных главой XI Закона; - решение иных вопросов, предусмотренных Законом и Уставом. Кворум для проведения заседания Совета – не менее половины от числа избранных членов Совета. Решения на заседании Совета принимают большинством голосов присутствующих, если иное не установлено Законом или Уставом, при этом каждый член Совета обладает 1 голосом. Члены Совета избирают из своего состава Председателя Совета. ГЕНЕРАЛЬНЫЙ ДИРЕКТОР Единоличный исполнительный орган Общества – Генеральный директор (в Уставе – Директор), решает все вопросы руководства текущей деятельностью Общества (кроме вопросов, отнесённых к компетенции Собрания или Совета), организует выполнение решений Собрания, Совета, без доверенности действует от имени Общества, в том числе представляет его интересы, совершает от его имени сделки, утверждает штаты, издаёт приказы и даёт указания, обязательные для исполнения всеми работниками Общества. При избрании Директора с ним Председатель Совета или лицо, уполномоченное Советом, от имени Общества заключает договор, определяющий права, обязанности и ответственность Директора, условия оплаты его труда, срок договора, условия освобождения от занимаемой должности. Директор несёт ответственность за организацию, состояние и достоверность бухгалтерского учёта, своевременное представление ежегодного отчёта и другой финансовой отчётности в соответствующие органы, а также сведений о деятельности Общества, представляемых Акционерам, кредиторам и в средства массовой информации. УЧЁТ И КОНТРОЛЬ Ревизор, в соответствии с Законом и внутренним документом, утверждаемым Собранием, проверяет финансово-хозяйственную деятельность Общества за год, а также во всякое время по инициативе Ревизора, решению Собрания, Совета, по требованию Акционеров, владеющих в совокупности не менее чем 10% Акций. Общество обязано хранить документы, указанные в Законе (а также иные документы, предусмотренные федеральными законами и иными правовыми актами России, внутренними документами Общества, решениями Собрания, Совета и Директора) по месту нахождения его исполнительного органа, в частности, документы по личному составу, которые ликвидационная комиссия обязана передать на государственное хранение.
Приложение 4
Образец положения
о персонале
Наименование УТВЕРЖДАЮ
предприятия Руководитель предприятия
подпись расшифровка
ПОЛОЖЕНИЕ Дата подписи
00.00.00
00.00.00 № 00
Новосибирск
О персонале
1. ОБЩИЕ ПОЛОЖЕНИЯ
1.1.…..
2. ПРИЁМ НА РАБОТУ
2.1….
3. ПРАВА И ОБЯЗАННОСТИ РАБОТНИКОВ И АДМИНИСТРАЦИИ
3.1….
РАБОЧЕЕ ВРЕМЯ И ВРЕМЯ ОТДЫХА
4.1….
5. ОТПУСКА
5.1…..
6. КОМАНДИРОВАНИЕ, ПЕРЕВОД НА НОВОЕ МЕСТО РАБОТЫ
6.1….
7. ЗАРПЛАТА, СОЦ. СТРАХОВАНИЕ, КОМПЕНСАЦИИ
7.1…
8. МЕРЫ ПООЩРЕНИЯ И ДИСЦИПЛИНАРНЫЕ МЕРЫ
8.1…
9. ОСВОБОЖДЕНИЕ ОТ РАБОТЫ
9.1….
10. РАССМАТРИВАНИЕ ТРУДОВЫХ СПОРОВ
10.1….
Визы
СОГЛАСОВАНО
Протокол собрания
трудового коллектива
00.00.00 № 00
Приложение 5
ОАО «Строительная компания»
«УТВЕРЖДАЮ»
Директор ОАО «Строительная компания»
_________________Д.Я. Фукс
«___»______________200__г.
ПОЛОЖЕНИЕ О БУХГАЛТЕРСКОЙ СЛУЖБЕ
1) Бухгалтерская служба является самостоятельным структурным подразделением предприятия и подчиняется непосредственно заместителю директора по экономике. Бухгалтерская служба существует для того, чтобы консультировать и обслуживать другие отделы и подразделения предприятия по вопросам, относящимся к составлению отчетов, проведению и оценке финансовых операций.
2) Бухгалтерская служба предприятия охватывает решение следующих задач:
- Обеспечение финансово-аналитической информацией структурные подразделения предприятия.
- Изыскание внутренних и внешних дополнительных резервов на развитие производства.
- Эффективное управление денежными потоками.
- Осуществление расчетов и обоснований инвестиционной деятельности.
- Осуществление контроля за финансовыми потоками предприятия.
- Работа, связанная с учредительными документами и акционированием.
3) Бухгалтерская служба осуществляет ведение анализа и прогнозирования.
4) Важнейшие пути укрепления финансов и задачи бухгалтерской службы предприятия:
- разработка стратегической финансовой политики и путей ее реализации;
- системный и непрерывный финансовый анализ, постоянная оценка финансового состояния предприятия, определение на этой основе тактики реализации стратегических целей с учетом существующей ситуации;
- разработка и реализация финансового, кредитного и кассового планов, плана финансового оздоровления, планирование денежных потоков, разработка других планов; использование бюджетирования в годовом планировании;
- обеспечения ликвидности предприятия за счет комплекса соответствующих мероприятий, среди которых следует выделить оптимизацию источников оборотных средств и структуры капитала предприятия в целом с учетом использования величины заемных средств и стоимости капитала на основе его средневзвешенной цены;
- управление финансовым циклом на основе оптимизации времени обращения запасов, дебиторской и кредиторской задолженности, обеспечение ускорения оборачиваемости средств в соответствии с их кругооборотом как фактора повышения рентабельности собственных средств;
- улучшение организации оборотных средств, их нормирования, приведение запасов в соответствие с их нормативами, повышение эффективности их использования;
- управление дебиторской задолженностью с целью оптимизации ее размера и объема продаж и сокращения безнадежных долгов;
- более широкое внедрение коммерческого кредита и вексельного обращения с целью оптимизации источников денежных средств и воздействия на банковскую систему;
- управление процессом реализации продукции с целью оптимизации объема продаж в соответствии с принятой стратегией и на этой основе определение наиболее эффективных для предприятия форм безналичных расчетов;
- осуществление мер по эффективному использованию производственных фондов и создание соответствующей структуры имущества предприятия с целью обеспечения удовлетворительной структуры баланса;
- мобилизацию финансовых ресурсов, контроль за эффективным их использованием и сохранностью;
- направления в области увеличения прибыли и обеспечения рентабельности;
- разработка и реализация плана повышения рентабельности, увеличения прибыли;
- анализ взаимодействия и взаимосвязи «затраты – выручка – прибыль»;
- оптимизация затрат предприятия на основе анализа их поведения и методов включения их в себестоимость;
- внедрение управленческого учета с целью максимизации прибыли на основе использования производственного рычага, маржинального анализа, точки безубыточности, зоны финансовой безопасности; факторный анализ прибыли и рентабельности; анализ и управление факторами рентабельности собственных средств: рентабельностью продаж, оборачиваемостью средств, структурой капитала.
Должностная инструкция главного бухгалтера представлена ниже.
Приложение 6
ОАО «Строительная компания»
«УТВЕРЖДАЮ»
Директор
_______________Д.Я. Фукс
«____»______________200__ г.
ДОЛЖНОСТНАЯ ИНСТРУКЦИЯ ГЛАВНОГО БУХГАЛТЕРА
1. Должностные обязанности
1) Осуществляет организацию бухучета хозяйственно- финансовой деятельности и контроль за экономным использованием материальных, трудовых и финансовых ресурсов, сохранностью собственности.
2) Формирует в соответствии с законодательством о бухучете учетную политику, исходя из структуры и особенностей деятельности фирмы.
3) Возглавляет работу по подготовке и принятию рабочего плана счетов, форм первичных учетных документов.
4) Обеспечивает порядок проведения инвентаризации.
5) Организует учет имущества поступающих основных средств товарно-материальных ценностей и денежных средств.
6) Обеспечивает законность, своевременность и правильность оформления документов, расчеты по заработной плате, правильное начисление и перечисление налогов и сборов в бюджеты всех уровней.
7) Осуществляет контроль за соблюдением порядка оформления первичных документов, расчетов и платежных обязательств.
8) Участвует в проведении экономического анализа деятельности предприятия.
9) Принимает меры по предупреждению недостач, незаконного расходования денежных и товарно-материальных ценностей.
10) Обеспечивает составление баланса и оперативных сводных отчетов о доходах и расходах, об использовании бюджета.
11) Оказывает методическую помощь работникам подразделений фирмы по вопросам бухгалтерского учета и контроля.
12) Руководит работниками бухгалтерии.
ДОЛЖЕН ЗНАТЬ:
- постановления, приказы по вопросам бухучета и составления бухгалтерской отчетности;
- гражданское право, финансовое и налоговое законодательство;
- структуру предприятия и перспективы его развития;
- положения и инструкции по организации бухучета в фирме;
- прядок ведения операций и организацию документооборота по участкам учета;
- формы и порядок финансовых расчетов;
- методы экономического анализа;
- порядок оприходования, хранения и расходования средств фирмы;
- правила расчета с дебиторами;
- условия налогообложения;
- Правила проведения инвентаризации денежных средств и ТМЦ;
- Порядок и сроки предоставления бухгалтерской отчетности;
- Основы технологии производства;
- Рыночные методы хозяйствования;
- Правила и нормы охраны труда.
ТРЕБОВАНИЯ К КВАЛИФИКАЦИИ
Высшее профессиональное образование и стаж финансово- бухгалтерской работы не менее 5 лет.
Приложение 7
Форма штатного расписания
Наименование УТВЕРЖДАЮ
Предприятия
Штат в количестве 000 человек
с фондом заработной платы 000
ШТАТНОЕ РАСПИСАНИЕ рублей в месяц
00.00.00 №00 Руководитель предприятия
г. Новосибирск подпись И.О.Ф.
Сотрудников предприятия
на год 00.00.00
М.П.
|
Наименование структурного подразделения |
Наименование должности |
Должностной оклад |
Надбавки общие |
Надбавки персональные |
Фонд зарплаты за месяц |
Примечание |
|
1.Отдел кадров |
Начальник отдела Инспектор |
1000 800 |
- |
25% 10% |
1250 880 |
- |
|
ИТОГО |
- |
1800 |
- |
- |
2130 |
- |
Приложение 8
Образец приказа
по основной деятельности
ОАО «Строительная компания»
ПРИКАЗ
08.01.95 №2
Новосибирск
О введении Инструкции
по делопроизводству
В целях совершенствования работы с документами на предприятии и обеспечения их сохранности
ПРИКАЗЫВАЮ
1. Утвердить Инструкцию по ведению делопроизводства в аппарате ТОО.
2. Ввести в действие Инструкцию по делопроизводству с 12.02.95.
3. Всем структурным подразделениям и сотрудникам ТОО с 01.02.95 руководствоваться правилами работы с документами, закрепленными в Инструкции
по делопроизводству.
4. Секретарю-референту Ивановой А.И. совместно с заведующим копировально-множительной службой Петровым Г.О. Обеспечить тиражирование Инструкции по делопроизводству и её передачу в структурные предприятия до 01.02.95.
5. Контроль за выполнением настоящего приказа возложить на заместителя
директора предприятия Егорова П.А.
Директор предприятия Личная С.Т. Борисов
подпись
визы
В дело 01-08
Подпись 10.01.95
Иванова 167 12 15
Приложение 9
Образец приказа о поощрении
ОАО «Строительная компания»
ПРИКАЗ
20.03.95 № 8-к
О премировании
Коростелева И.Г.
За длительную и добросовестную работу и в связи пятидесятилетием со дня рождения
ПРИКАЗЫВАЮ:
ПРЕМИРОВАТЬ главного бухгалтера фирмы Коростелева И.Г. в
размере __________________ руб.
Директор фирмы Личная А.Б. Иванов
подпись
Визы
С приказом ознакомлен: Личная Дата
подпись
В дело 00-00
Подпись Дата
Приложение 10
Образец распоряжения
«Строительная компания»
РАСПОРЯЖЕНИЕ
01.12.97 №28
Новосибирск
О проведении
ремонтных работ
В связи с аварийным состоянием отопительной системы в цехе № 3
ОБЯЗЫВАЮ:
1. Провести ремонтные работы в цехе № 3
Ответственный – начальник ремонтно-технической службы Макаров Д.И.
Срок исполнения – 15.02.98.
2. Контроль за проведением ремонтных работ возложить на начальника цеха № 3 Антонова Ю.В.
Директор предприятия Личная Л.Б. Попов
подпись
Визы
В дело 07-15
подпись
Краснов 913 45 03
Приложение 11
ОТКРЫТОЕ АКЦИОНЕРНОЕ ОБЩЕСТВО «Строительная компания»
ПРОТОКОЛ № 6
гор. Новосибирск 20 декабря 2004 год
ВЕДЕНИЯ ДЕЛОВЫХ ПЕРЕГОВОРОВ ОАО «Строительная компания»
Присутствовали:
- члены правления: Картошова В.П., Актимов С.А., Лукяненко С.А.
- приглашенные: Карпов С.А., Валадина П.П., Морозов С.С., Картов В.А.
ПОВЕСТКА ДНЯ:
1. Рассмотрение предложения от ЗАО «Техстройсервис» о поставке товара
2. Изучение качественных и количественных характеристик товара
Слушали:
- Петрова А.К. – текст доклада прилагается;
Выступили:
- Иванов Н.П. – предложения от ЗАО «Техстройсервис»;
- Квасов К.Л. – описание предлагаемого товара;
Постановили:
- принять предложение о поставке товара
Руководитель организации В.П. Картошова
Секретарь С.К. Кротова
Приложение 12
Форма докладной записки
Наименование Директору предприятия
структурного «Строительная компания»
подразделения Иванову А.Б.
ДОКЛАДНАЯ ЗАПИСКА
00.00.00 №00
О командировании
ст. специалиста
Ивановой т.п.
ТЕКСТ
Главный специалист подпись И.М.Руднев
предприятия
В дело 00-00
Дата подпись
исполнителя
Приложение 13
Форма объяснительной записки
Наименование Директору предприятия
структурного «Строительная компания»
подразделения Иванову А.Б.
ОБЪЯСНИТЕЛЬНАЯ ЗАПИСКА
00.00.00
о срыве поставок
оборудования
ТЕКСТ
Ст. специалист подпись О.Н. Петров
предприятия
В дело 00-00
Дата Подпись
Приложение 14
Образец личного заявления
Бухгалтерия
ЗАЯВЛЕНИЕ
17.03.95
Прошу освободить меня от должности старшего бухгалтера по собственному желанию:
Личная подпись П.И. Громов
ТЕКСТ
Подпись
Директора 18.03.95
Приложение 15
Форма телефонограммы
Наименование Адресат
предприятия Должность, инициалы
Должность, инициалы фамилия сотрудника,
фамилия сотрудника, принявшего телефонограмму,
передавшего телефоно- № телефона, время приёма
грамму, № телефона,
время передачи
ТЕЛЕФОНОГРАММА
00.00.00 № 00
Место составления
Текст телефонограммы (до 50 слов)
Наименование лица,
Подписавшего телефонограмму И.О. Фамилия
В дело 00.00
Подпись Дата
Приложение 16
Образец акта по
финансовым вопросам
ОАО «Строительная компания УТВЕРЖДАЮ
Руководитель предприятия
АКТ подпись расшифровка
00.00.00 подписи 00.00.00 № 00
Новосибирск
РЕВИЗИЯ КАССЫ
Основание: приказ директора предприятия
от 05.01.95 № 2
Составлен комиссией:
Председатель – зам. директора С.Н. Завьялов
Члены комиссии: 1. Зам. главного бухгалтера П.М. Зайцев
2. Ст. бухгалтер З.А. Васильева
3. Бухгалтер О.И. Максимова
4. Бухгалтер А.С. Смирнов
Присутствовали: кассир В.И. Харитонова
07.01.95 комиссия провела ревизию кассы предприятия по состоянию на
07.01.95.
В проведенной ревизии установлено:
1. Остаток наличных денег в кассе по состоянию на 07.01.95 согласно кассо-
вой книги данными бухгалтерского учёта должен составлять 25.283 руб.
2. Фактический остаток наличных денег в кассе составляет 21.500 руб. Недос-
тача наличных денег в кассе – 3.783 руб.
3. Недостача наличных денег в кассе образовалась по вине кассира Харитоно-
вой В.И.
Составлен в 3-х экз.:
1-й экз.– в дело 05-11;
2-й экз. – директору предприятия;
3-й экз. – главному бухгалтеру.
Приложение: объяснительная записка кассира
Харитоновой В.И. на 1 л. в 1 экз.
Председатель подпись С.Н. Завьялов
Члены комиссии подпись П.М. Зайцев
подпись З.А. Васильева
подпись О.Н. Максимова
подпись А.С. Смирнов
Приложение 17
Образец справки
Наименование Директору предприятия
предприятия А.Б. Иванову
Справка
00.00.00 № 00
Новосибирск
О закупке мебели и
оборудования
В соответствии с планом модернизации конторской мебели и оборудования в 1 квартале 1995 г. были закуплены следующие комплекты мебели и оборудования:
|
Вид комплекта |
Количество (Шт.) |
Стоимость (Руб.) |
Место установки |
|
|
|
|
|
Справка составлена на основании …………………………
Главный бухгалтер подпись В.П. Медведев
Приложение 18
ПОЛОЖЕНИЕ О ЗАКЛЮЧЕНИИ КОЛЛЕКТИВНЫХ ДОГОВОРОВ
1. Общие положения
Коллективный договор – это правовой акт, регулирующий трудовые, социально экономические и профессиональные отношения между работодателем (его администрацией) и работниками на предприятии, т.е. трудовым коллективом.
Коллективный договор ОАО «Строительная компания» является документом, гарантирующим защиту прав и интересов различных профессиональных групп трудящихся предприятия. Администрация, согласно деятельности предприятия и его организационных структур, признает профсоюзный комитет в качестве единственного и полномочного представителя трудового коллектива в коллективных переговорах по вопросам регулирования трудовых отношений, норм труда и оплаты труда, условий найма, социальных льгот и гарантий работников.
Из понятия коллективного договора видно, что это двусторонний договор. Одной его стороной является коллектив работников в лице одного или нескольких профсоюзов, если на данном производстве не один профсоюз. Когда со стороны работников выступают одновременно несколько профсоюзов, то ими формируется объединенный представительный орган для переговоров, разработки единого проекта и заключения необходимого коллективного договора. Единый проект обсуждается в подразделениях предприятия, дорабатывается с учетом их замечаний и утверждается общим собранием (конференцией) трудового коллектива. Стороной договора является трудовой коллектив.
Если согласия в объединенном представительном органе не достигнуто, то общее собрание трудового коллектива принимает наиболее приемлемый проект коллективного договора и поручает профсоюзу, разработавшему этот проект, на его основе провести переговоры и заключить после утверждения общим собранием коллективный договор от имени трудового коллектива с работодателем.
Таким образом, и в этом случае стороной коллективного договора является весь трудовой коллектив предприятия, за ним последнее слово. Его собрание может принять коллективный договор, даже если представители одного из профсоюзов и не согласны с ним. Закон дал здесь право трудовому коллективу решать вопрос окончательного принятия одного из представленных проектов коллективного договора.
Профсоюз вправе также самостоятельно вести переговоры и заключать коллективные договора от имени представляемых им работников или предлагать и заключать приложение к единому коллективному договору, защищающие специфические интересы представляемых работников по профессиональному признаку. Такое приложение является неотъемлемой частью коллективного договора.
Второй стороной коллективного договора является работодатель (независимо от формы собственности, ведомственной принадлежности данного производства и численности в нем работников) непосредственно или уполномоченный им представитель (директор) со своей администрацией.
От сторон коллективного договора надо отличать субъектов-исполнителей, указанных в коллективном договоре как ответственных выполнение конкретного обязательства по данному договору.
Следовательно, в коллективном договоре есть следующие обязанные по нему субъекты:
- работодатель как собственник производства и сторона договора;
- его представитель, администрация во главе с директором, управляющим и руководителем;
- трудовой коллектив как сторона договора;
- профсоюз как представитель трудового коллектива работников;
- субъекты-исполнители по отдельным обязательствам.
На комбинате договаривающиеся стороны признают, что экономическая стабильность предприятия и благополучие членов коллектива взаимосвязаны и следовательно, заинтересованы в создании для этого оптимальных условий. В случае возникновения конфликтных ситуаций, они будут разрешаться посредством прямых и открытых переговоров в соответствии с действующим законодательством. Если условия хозяйственной деятельности или положение рабочих ухудшится в связи с изменением законодательства, договор может быть пересмотрен с согласия сторон.
На срок действия договора, при выполнении администрацией всех его положений, профсоюзная организация обязуется не объявлять забастовок, бойкотов или замедления темпов работы предприятия.
Современный коллективный договор является актом непосредственного участия трудовых коллективов в правовом регулировании труда работников данного производства, создание локальных норм трудового права, с одной стороны, а с другой, он является актом участия работников, их трудового коллектива в управлении предприятия, поскольку может развивать производственную демократию, участие работников в местном правотворчестве. В нем соединяются и отражаются интересы работников и работодателей, поскольку коллективный договор представляет консенсус интересов социальных партнеров на производстве. В этом правовая, экономико-социальная и политическая роль коллективного договора. Его значение в переходный период возрастает. Коллективный договор может восполнять своими локальными нормами проблемы трудового законодательства, повышать гарантии трудовых прав работников, улучшать охрану труда и социально-бытовые условия, может также нацеливать на уважение и развитие трудовых традиций данного предприятия.
Коллективный договор выступает как средство воспитания дисциплины труда, добросовестного отношения к труду, предусматривает меры материального поощрения высококачественного труда и меры воздействия на нарушителей коллективного договора. Производственное, народнохозяйственное значение коллективного договора в том, что он направлен на совершенствование производства, улучшение качества продукции, повышение производительности труда. Таким образом, коллективный договор имеет правовое, социально-экономическое, политическое, производственное и воспитательное значение.
На комбинате администрация настоящим признает профсоюзный комитет единственным и исключительным представителем всех работников в коллективных переговорах об оплате труда, продолжительности рабочего времени, решении социальных проблем и других условий коллективного договора.
Профсоюзный комитет «Строительный» обязуется:
1. предоставлять и защищать законные интересы членов профсоюза;
2. осуществлять контроль за выполнением условий коллективного договора, принимать меры, обеспечивающие выполнение двухсторонних обязательств;
3. защищать интересы трудового коллектива при распределении фондов предприятия, других социальных благ;
4. проводить работу по предупреждению и урегулированию трудовых споров (конфликтов) между членами трудового коллектива и администрацией;
5. приостанавливать деятельность цехов, участков, оборудования, если созданы нормальные условия труда и возможно нанесение ущерба здоровью работников;
6. оказывать юридическую и материальную помощь членам профсоюза;
7. направлять средства социального страхования на выплату всех видов пособий и пенсий, отдых работников и его членов семьи;
8. приобретать путевки для санаторного лечения работников и для отдыха их детей.
К Новому году приобретать подарки для детей и проводить утренники; осуществлять сбор и учет членских профсоюзных взносов, приобретать ценные подарки для поздравления вступающих в брак работников; оказывать материальную помощь членам профсоюза; вести постоянный учет нуждающихся в санаторно-курортном лечении; проводить анализ заболеваемости; премировать лучших профсоюзных активистов.
Рабочие, руководители, специалисты и служащие обязуются: качественно и в срок выполнять производственные задания, бережно относиться к государственному имуществу, осуществлять правильную эксплуатацию зданий, сооружений и оборудования, наблюдать внутреннюю трудовую дисциплину, выполнять приказы, распоряжения администрации.
Сроки действия договора:
Коллективный договор вступает в силу с момента подписания и действует в течении календарного года до подписания нового договора.
К коллективному договору прилагаются следующие документы:
- нормативные документы по оплате труда;
- перечень дополнительных средств защиты работающих;
- соглашение по охране труда;
- перечень профессий на бесплатную выдачу молока и мыла;
- план мероприятий по укреплению материально-технической базы.
Споры, возникающие при заключении и исполнении коллективного договора, разрешаются в порядке, установленном законодательством Республики Молдова. При возникновении разногласий стороны должны стремиться использовать все имеющиеся возможности для урегулирования конфликтного спора.
При несчастном случае по вине предприятия единовременная компенсация работника составляет: в случае гибели работника или получения увечья по вине предприятия его семье выплачивается единовременное пособие в сумме его утраченного среднего заработка с момента гибели до пенсионного возраста (согласно закону об охране труда).
Администрация бесплатно обеспечивает трудящихся средствами защиты в соответствии с типовыми нормами выдачи спецодежды, спецобуви и других средств индивидуальной защиты.
Работникам, занятым на производственных процессах хлебопечения, кондитерского, макаронного цехов с вредными условиями труда выдается бесплатно молоко (см. прилож. №35).
Администрация обязуется выдавать моющие средства для стирки спецодежды на предприятии, где нет централизованной стирки.
2. Содержание договора
Содержание коллективного договора – это все его условия, о которых стороны договорились при его заключении. Эти условия определяют права и обязанности сторон и ответственность за их нарушение.
Примерный перечень вопросов, по которым могут включаться взаимные обязательства сторон:
- Оплата труда – форма, система и размер оплаты труда, денежные вознаграждения, компенсации и доплаты, механизм регулирования оплаты с учетом роста цен, инфляции, выполнения показателей, установленных коллективным договором.
- Обеспечение занятости – занятость, переобучение, условия высвобождения работников.
- Рабочее время и время отдыха – их продолжительность, отпуска, льготы для совмещающих работу с обучением.
- Охрана труда – улучшение условий и охраны труда работников, в том числе женщин и молодежи.
- Контроль за выполнением коллективного договора, социальное партнерство, ответственность его сторон, обеспечение гарантий деятельности профсоюзов.
ОПЛАТА ТРУДА.
Администрация и трудовой коллектив совместно направляют свои усилия на достижение расчетных экономических и финансовых показателей, обеспечивающих нормальную хозрасчетную деятельность предприятия.
К коллективному договору прилагается: порядок образования фондов потребления, порядок образования средств на оплату труда, форма оплаты и стимулирования труда (размеры тарифных ставок и окладов, применяемых надбавок и доплат при наличии средств, льготы и компенсации).
Минимальные размеры тарифных ставок и окладов на предприятии устанавливаются не ниже утверждаемых Указом Президента Российской Федерации и меняются параллельно росту стоимости жизни. Суммы премии максимальными размерами не ограничиваются при наличии средств.
Каждому вновь принятому работнику разъясняются условия оплаты труда. О введении новых норм выработки и об изменениях оплаты труда, администрация извещает работников предприятия не позднее 2-х месяцев.
Администрация обязуется:
1. Оплату труда рабочих, руководителей, специалистов производить согласно штатного расписания. Начиная с февраля 1999г. ежемесячно изменять заработную плату с учетом коэффициента инфляции.
2. Доплата рабочим в зависимости от условий труда производить согласно перечня конкретных работ и рабочих мест.
3. Тарификацию работ и присвоение разрядов рабочим производить согласно единому тарифно-квалификационному справочнику.
4. Открывать каждому вновь принятому рабочему трудовую книжку. По требованию, за каждый месяц выдавать расчетные листки с указанием размера зарплаты.
5. При бригадном выполнении работ распределении сдельного заработка между членами бригады производить по разрядам и отработанному времени за текущий период, с учетом коэффициента трудового участия, установленного решением бригады.
6. Премирование и вознаграждение кандидатов производить в соответствии с утвержденными положениями .
7. Не допускать задержку выплаты зарплаты. В исключительных случаях выдавать отдельным работникам внеплановые авансы в счет зарплаты в размере не более месячного заработка по согласованию с профсоюзным комитетом. Установить сроки выплаты зарплаты 10 числа каждого месяца.
8. Знакомить всех поступающих на предприятие с правилами внутреннего распорядка.
9. Строго следить, чтобы установленная продолжительность рабочего дня соблюдалось всеми работниками. Обеспечить строгий учет явки на работу, опозданий, отлучек и т.п.
10. Применять в отношении нарушителей трудовой дисциплины: прогульщиков, пьяниц, а также за разглашение коммерческой тайны все имеющиеся воздействия: лишение премий, годового вознаграждений, лишение льготных путевок и другие меры вплоть до увольнения.
Профсоюзный комитет обязуется: осуществлять систематический контроль за соблюдением законодательства по зарплате, за правильное применение премиальных положений. Контроль за соблюдением больничного режима. Систематически проверять правильность расчетов по зарплате и ее выплате.
ОБЕСПЕЧЕНИЕ ЗАНЯТОСТИ.
Администрация обязуется обеспечить полную и стабильную занятость рабочих на предприятии в соответствии с их профессией, квалификацией и коллективным договором.
Администрация уведомляет профсоюзный комитет о намерении изменить структуру, что может повлечь за собой увольнение работников или временное освобождения от работы не позднее чем за 2 месяца.
В случае сокращения рабочих мест администрация обязуется принять меры по их воссозданию за счет расширения производственной деятельности в целях их трудоустройства.
Стороны, подписавшие настоящий коллективный договор обязуются совместно решить вопросы высвобождения кадров в случае реорганизации, ликвидации предприятия, передвижения кадров, совершенствования оплаты и условий труда.
Администрация обязуется не принимать дискриминационных мер при приеме и увольнении в отношении женщин с малолетними детьми, лиц с ограниченной трудоспособностью, а также молодых специалистов.
При увольнении работников по условиям экономической целесообразности персональный состав увольняемых и условия увольнения предварительно согласовываются с профсоюзным комитетом.
РАБОЧЕЕ ВРЕМЯ И ВРЕМЯ ОТДЫХА.
Режим рабочего времени:
В 2004-2005 годах администрация обязуется обеспечить переход на 35-40 часовую рабочую неделю.
Для бригад производственного цеха распорядок работы следующий:
- на основании спроса населения. Экспедиция работает на основании графика работы производственного цеха;
- операторы паровых котлов и печей работают на основании графика работы производственного цеха.
В исключительных случаях работник выполняет сверхурочную работу строго на условиях добровольности (согласно законодательству).
Предусматриваются особенности режима работы для различных категорий работников (неполного рабочего дня, неполной рабочей недели).
Отпуска:
Ежегодный отпуск для рабочих и служащих устанавливается не менее 24 рабочих дней.
Представлять работникам кратковременный оплачиваемый отпуск в случаях:
1) собственной свадьбы, дочери, сына – 3 дня;
2) рождения ребенка отцу – 2 дня оплачиваемые;
3) ухода за тяжело больными членами семьи (без оплаты) на основании медицинских справок;
4) смерти близкого родственника – 3 дня;
5) собственный день рождения – 1 день оплачиваемый;
6) провожание в Армию сына – 1 день оплачиваемый.
Расходы на оплату этих отпусков производится за счет средств, направленных на оплату труда.
Администрация предоставляет новостройщикам до 2-х месяцев отпуска без содержания для строительства индивидуального жилого дома (до 3-х лет с начала строительства).
Доплаты, надбавки, льготы и компенсации:
В зависимости от условий труда работникам устанавливаются доплаты:
- за работу в ночное время в размере 100%, охранникам – 50%;
- за работу в тяжелых и вредных условиях труда на основании аттестации рабочих мест – 12%, особо вредных условиях труда – 24%;
- за работу в выходные дни – 100%;
- за работу в праздничные дни – 100%.
Надбавка учитывается при начислении премии, пособий по социальному страхованию, отпускные.
При отсутствии средств на счету предприятия администрация обязуется в указанные сроки обеспечить выплату зарплаты на уровне государственных гарантий оплаты труда в соответствии с Указом Президента.
Всем работникам, работающим по скользящему графику доплачивается за переработанные часы, согласно законодательству.
Лицам, ответственным за составлением табеля учета рабочего времени, указывать количество переработанных часов.
Охрана здоровья, социальное обеспечение.
Администрация обязуется выделять средства для приобретения путевок в дома отдыха и санатории.
Оплата за счет средств предприятия должна составлять не менее: санаторные – 90%, туристические – 80% стоимости путевки. Санаторные путевки распределяются профсоюзным комитетом в строгом соответствии рекомендацией врача. Для премирования лучших работников выделять средства на приобретение туристических путевок при наличии денежных средств.
Стороны признают, что без создания условий жизни, быта и отдыха рабочих невозможна максимальная эффективность производства, социального благополучия коллектива предприятия.
В этих целях предприятие обязуется при уходе на пенсию выплачивать единовременное пособие в размере 3-х месячного оклада.
ОХРАНА ТРУДА.
Администрация принимает на себя обязанность обеспечивать здоровье и безопасность условий труда, производственного быта в соответствии с требованиями нормативных документов по охране труда и информировать трудовой коллектив о состоянии условий труда. На эти цели из средств предприятия выделяется 2% от фонда потребителя.
Стороны признают своей обязанностью сотрудничать в деле сохранения здоровья и безопасности труда, и считают управление охраны труда неотъемлемой частью производственного процесса, который предусматривает:
- регулирование отношений в области охраны труда женщин и молодежи в соответствии с законодательством;
- организацию и ведение производственного процесса с обязательным соблюдением всех нормативных требований;
- обучением вопроса охраны труда рабочих массовых профессий, а также руководителей и специалистов;
- организацию медицинских осмотров работников;
- ответственность работников за нарушение требований, норм и правил по охране труда;
- материальное стимулирование работников за работу без травм и аварий;
- функциональные обязанности и ответственность руководителей и должностных лиц в вопросах охраны труда;
- осуществление всех работ в строгом соответствии с требованием правил техники безопасности и производственной санитарии, проводить своевременное обучение и инструктаж по технике безопасности и производственной санитарии рабочих, ИТР, служащих;
- провождение систематической работы по повышению культуры производства, улучшению условий труда рабочих, повседневное осуществление контроля по технике безопасности;
- администрация обязуется обеспечивать рабочих оборудованием, санитарно-бытовыми помещениями. Обеспечить нормальную и бесперебойную работу душевых; умывальников и других санитарно-бытовых устройств. Выполнить в третьем квартале 2005г. работы по подготовке цехов, участков к осенне-зимнему периоду, план и сроки проведения работ по подготовке к зиме согласовать с комитетом профсоюза и объявить не позднее второго квартала 2005г. приказом по организации;
- обеспечение рабочих питьевой водой;
- осуществление систематического контроля за состоянием воздушной среды в цехах и участках путем регулярного проведения лабораторных анализов
Информирование трудящихся.
Администрация обязуется:
· систематически информировать членов коллектива о финансовом положении, а также решение вопросов труда социального развития;
· проводить систематически совместно с профкомом рейды проверки по сохранности материальных ценностей и эффективности использования резервов производства;
· информировать членов коллектива о своих решениях по различным вопросам.
КОНТРОЛЬ ЗА ВЫПОЛНЕНИЕМ КОЛЛЕКТИВНОГО ДОГОВОРА.
Контроль за выполнением коллективного договора осуществляет комиссия, состоящая из равного числа представителей сторон.
Стороны, подписавшие коллективный договор, один раз в пол года отчитываются о его выполнении на профсоюзном собрании.
Представители администрации и профсоюзного комитета, подписавшие коллективный договор, несут дисциплинарную, материальную и уголовную ответственность за невыполнение взятых на себя обязательств.
Должностные лица и отдельные работники, виновные в невыполнении конкретных обязательств по коллективному договору, несут ответственность в порядке, установленном законом.
Трудовой коллектив и профсоюз не несут юридической ответственности по коллективному договору. Они за невыполнение его условий несут лишь морально-политическую ответственность.
Работодатель и должностные лица его администрации за невыполнение условий коллективного договора несут правовую ответственность вплоть до освобождения руководителя от должности по требованию профсоюзного органа.
Все условия коллективного договора по их характеру могут быть классифицированы по трем следующим видам:
1. Нормативные условия, предоставляющие дополнительные льготы, преимущества или устанавливающие виды и размеры оплаты труда, дополнительные отпуска и т.д. Эти условия применяются каждый раз к тем работникам, кто имеет по договору право на них. Действуют эти условия весь период существования коллективного договора. С расширением ныне договорных начал регулирования труда нормативные условия коллективного договора все более расширяются.
2. Обязательные условия предоставляют конкретные обязательства сторон с указанием сроков их выполнения и их субъектов-исполнителей, отвечающих за их выполнение. Эти условия действуют до их выполнения, а за тем погашаются выполнением. Большая часть обязательных условий в коллективном договоре, как правило направлено на улучшение охраны труда и бытового обслуживания работников.
3. Организационные условия. Это условия о сроках действия договора, контроля за его выполнением, о порядке исполнения и пересмотра, а также об ответственности за нарушение ответственности коллективного договора.
Все условия коллективного договора могут лишь улучшать, по сравнению с законодательством, условия труда работников. Условия, ухудшающие их, считаются недействительными.
В течении срока действия коллективного договора все его изменения, дополнения производятся только по взаимному согласию сторон в порядке, установленном в коллективном договоре, а если он не определен, то в порядке, установленном законом для заключения коллективного договора, с утверждения общего собрания (конференции) трудового коллектива. Закон установил определенные гарантии для трудового коллектива при ликвидации предприятия, предусмотрев, что претензии трудового коллектива по коллективному договору удовлетворяются из имущества ликвидируемого предприятия до расчетов с бюджетом, банками и другими кредиторами. Ликвидационная комиссия по согласованию с профсоюзом определяет размер их средств для трудового коллектива и распределяет их по подразделением и среди работников.
Приложение 19
![]()
Схема движения документов на сладе при продаже и отпуске товаров со склада в ОАО «Строительная компания»
Приложение 20
![]()
Схема движения основных документов на складе при приемке и размещении товаров в ОАО «Строительная компания»

