Государственный комитет Российской
Федерации по высшему образованию
Казанский Государственный Технический Университет
имени А.Н. Туполева
Факультет “ВОСТОК”
кафедра “ПЭД и Пр. РЭА”
ДИПЛОМНАЯ РАБОТА
на тему: " Корпоративная система связи с использованием сетевой телефонии"
Дипломник: Чурбанов И.В.
Руководитель: Осипов Д.Ю.
Дипломная работа выполнена в Радиокомпании “Вектор”.
Чистополь 2002
Содержание
1. Введение. 4
1.1. Структурированная кабельная система (СКС) 6
1.2. Распределенные сети (WAN) 7
1.3. Локальные сети (LAN) 7
1.4. Технологии применяемые в локальных сетях. 8
...... 1.4.1 Ethernet, Fast Ethernet, Gigabit Ethernet 8
...... 1.4.2 Коммутация кадров. 8
1.5. Технологии применяемые в территориально распределенных сетях (WAN) 10
...... 1.5.1 Маршрутизация. 10
...... 1.5.2 Технологии удаленного доступа к сети. 11
1.6. Универсальные технологии. 12
...... 1.6.1 Системы управления оборудованием локальных вычислительных и глобальных сетей передачи данных. 12
...... 1.6.2. ATM (Asynchronous Transfer Mode). 12
...... 1.6.3. ISDN – цифровая сеть с интеграцией услуг (Integrated Services Digital Network) 13
...... 1.6.4 ADSL – асимметричная цифровая абонентская линия (Asymmetric Digital Subscriber Line) . 14
1.6.5 Технология V.90/56 Kbs.. 15
1.6.6. IP – телефония ……………………………………………………………16
1.6.7. Frame Relay. 17
1.7. Виртуальные частные сети. 19
1.8. Беспроводные сети. 20
2. Главная часть. 22
2.1. IP – телефония. 23
2.1.1. Технология – феномен………………………………………………………..23
2.1.2. Перечень возможных предоставляемых услуг. 24
2.1.3 Преимущества IP – телефонии. 25
2.1.4. Качество связи………………………………………………………………...25
2.1.5. Корпоративная телефония 26
2.1.6. Программный продукт Internet – телефонии. 27
2.1.7 Стремление к стандарту. 29
2.1.8. Первые шаги IP – телефонии в России……………………………………...30
2.2. Метод анализа иерархий. 32
2.2.1. Основные теоретические сведения. 32
2.2.2. Содержание метода анализа иерархий. 32
2.2.3. Принципы идентичности и композиции. 32
2.2.4. Принципы сравнительных суждений 33
2.2.5. Выбор системы методом иерархий. 38
2.3. Система бизнес телефонии 3 COM NBX 100 Communications System.. 44
2.3.1. Ключевые преимущества и особенности системы.. 44
2.3.2. Связь для малого офиса, филиала или сотрудников, работающих на дому 47
2.3.3. Оборудование 50
2.3.4. Программное обеспечение. 52
2.3.5. Блоки системы 54
2.3.6.Спецификации……………………………………………………………………...57
2.4. Модем Watson4. 58
2.5. Параболическая антенна Wire Grid для клиентских станций………………………..63
2.6. Всенаправленные антенны Mobile Mark для узлов доступа (базовых станций)…...64
2.7. Расчет дальности беспроводных каналов диапазона 2,4 ГГц………………………..65
2.8. Расчет пропускной способности глобальной сети……………………………………73
3. Технологический раздел………………………………………………………………..80
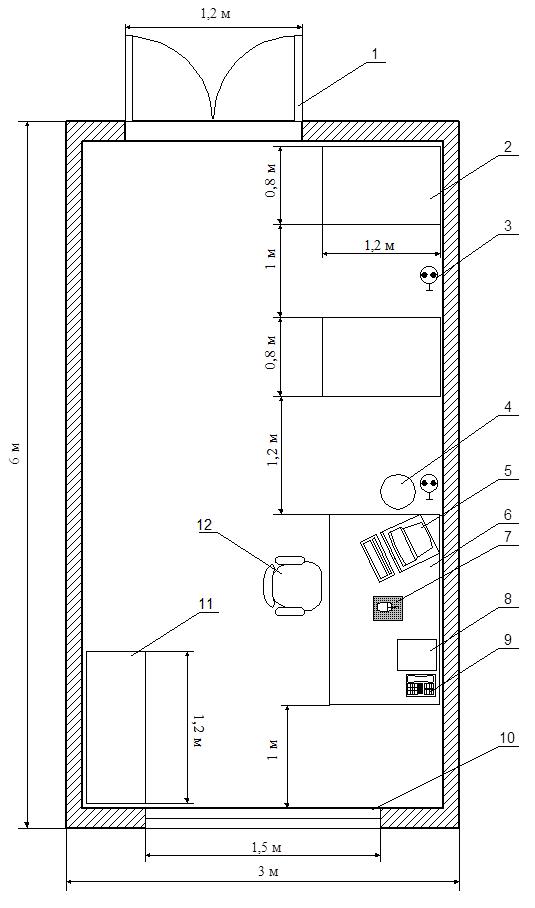
3.1.Организация рабочего места оператора. 81
3.1.1. Планировка рабочего места оператора. 81
3.1.2. План рабочей комнаты оператора. 84
3.2. Заземление. 85
3.2.1. Требования к заземлению 85
3.2.2. Расчет защитного заземления. 85
4. Организационно – экономический раздел. 87
5. Безопасность жизнедеятельности. 94
5.1. Экологическая экспертиза. 95
5.2. Производственная безопасность. 98
5.3. Чрезвычайные ситуации. 106
Заключение.
Список литературы..
Приложения.
Введение
Эффективность и надежность работы сетевого комплекса, будь то корпоративная сеть предприятия или рабочей группы, территориально-распределенная телекоммуникационная инфраструктура или система доступа удаленных пользователей, во многом определяется правильностью выбора и применения той или иной технологии передачи данных, конкретного оборудования и его конфигурации.
Один из наиболее сложных вопросов, который возникает перед руководителем предприятия или организации - это какая нужна информационная система, способная решить существующие и будущие цели и задачи компании, а также отвечать потребностям каждого сотрудника в соответствии с его должностными обязанностями. Как построить такую информационную систему, какое необходимо оборудование, какое программное обеспечение и какими средствами осуществить внедрение системы. Перед началом разработки конкретного решения специалисты проводят обследование объекта и консультации.
Это полный цикл работ, к которым относятся:
· предпроектное обследование;
· разработка архитектуры корпоративной информационной системы и при необходимости ее моделирования;
· выбор продуктов, необходимых для ее создания;
· создание планов для дальнейшего развития системы.
Не всегда возможно "подогнать" информационную систему, которая внедряется, под устаревшую модель управления предприятием, и наоборот в условиях современного ведения бизнеса, информационная система делает процесс управления еще более эффективным.
1.1 Структурированные кабельные системы(СКС).
Структурированная кабельная система (СКС) - это единая инфраструктура, которая лежит в основе функционирования локальной сети здания или кампуса и обеспечивает универсальную физическую среду передачи данных и подключение любого стандартного оборудования и работу любого стандартного приложения.
Надлежащая организация кабельной системы здания является одной из ключевых задач создания информационных систем и определяет надежность функционирования всех служб и подразделений компании. Именно поэтому при организации кабельной системы здания необходимо, чтобы она была такой же капитальной, как и само здание, так как изменения в новых технологиях передачи данных, сетевых и коммуникационных стандартах, моделях оборудования в первую очередь касаются именно кабельной системы. В связи с этим, неправильно проложенную кабельную систему приходится постоянно модернизировать или целиком изменять. Структурированные кабельные системы (СКС) выполненные в соответствии с действующими стандартами предоставляют Заказчику следующие преимущества:
Универсальность.
Универсальная кабельная среда на основе экранированного или неэкранированного медного кабеля (крученая пара), а также оптического волокна используется для передачи данных в ЛВС, организации локальной телефонной сети, передачи видеоинформации или сигналов от датчиков пожарной или охранных систем безопасности. При продуманной интеграции в инфраструктуру здания структурированные кабельные системы позволяют автоматизировать много процессов по контролю, управлению хозяйственными службами и системами жизнеобеспечения.
Гибкость.
СКС позволяют быстро и легко изменять конфигурацию кабельной системы. Для этого администратору сети достаточно перекоммутировать соединения на кроссовых панелях.
Масштабируемость.
Правильно построенная СКС легко расширяется и модифицируется без остановки деятельности информационной системы.
Преимущества структурированных кабельных систем над обычными системами:
· для передачи данных, голоса и видеосигнала используется единая кабельная система;
· оправдывают капиталовложения за счет продолжительного использования и эксплуатации системы;
· обеспечивают модульность и возможность внесения изменений и наращивания без замены всей существующей системы;
· допускают одновременное использование разных сетевых протоколов;
· не зависят от изменений технологий и поставщика оборудования;
· используют стандартные компоненты и материалы (медный неэкранированный и экранированный кабель/крученая пара/, оптический кабель);
· допускают управление и администрирование минимальным количеством обслуживающего персонала.
1.2. Распределенные сети(WAN)
Управление современной крупной организацией, которая имеет свои отделения или филиалы в разных концах города, страны или в других городах мира, невозможно без применения современных информационных технологий, прежде всего - построения соответствующей сети, которая позволит эффективно работать любому количеству пользователей одновременно.
WAN - это технология построения сетей, которая обеспечивает передачу разнообразной информации на значительные расстояния, с использованием коммутирующих и выделенных линий, специальных каналов связи и через Internet.
Эти сети проектируются и строятся для решения большого количества задач относительно передачи информации между отдаленными офисами, филиалами и отдельными периферийными устройствами. Преимущества протоколов, которые применяются в WAN сетях, состоят в том, что в одной сети можно передавать одновременно все виды информации: данные, голос, факс, видео.
Области использования:
· обмен информацией между отдаленными локальными сетями;
· построение виртуальных телефонных сетей;
· организация видео-конференций;
· отдаленный доступ к Internet.
1.3. Локальные сети (LAN)
Системная интеграция
В современных условиях развития бизнеса для любого предприятия или организации, которые успешно работают на рынке или находятся в стадии расширения или реорганизации, становится необходимым поиск решений, способных оптимизировать работу сотрудников, сделать ее более продуктивной, словом, можно говорить о возникновении потребности в построении локальной сети передачи данных (LAN).
LAN - это сети, которые проектируются и строятся для высокоскоростного обмена данными между пользователями и доступа к общим ресурсам компании в границах одного или группы зданий.
Вследствие того, что перед организациями или предприятиями возникают разные функциональные задачи, а также они имеют разные финансовые возможности и начальные условия, для разработки решения необходимо применять взвешенный интегральный подход с учетом всех тонкостей проблемы. Такая технология позволяет лучше руководить процессом выполнения работ, которая, в конечном итоге, гарантирует получение должного результата.
1.4. Технологии, применяемые в локальных сетях (LAN)
· Ethernet, Fast Ethernet, Gigabit Ethernet
· Коммутация кадров
1.4.1. Ethernet, Fast Ethernet, Gigabit Ethernet
Назначение:
Ethernet является самой распространенной технологией передачи данных, используемой в локальных вычислительных сетях.
Основные особенности:
Технологии Fast Ethernet, Gigabit Ethernet используют те же самые концепции, что и Ethernet. Во всех случаях доступ к среде определяется протоколами CSMA/CD (множественный доступ с обнаружением коллизий) и методом доступа к среде MAC (Media Access Control). Технологии используют однотипные кадры Ethernet и одинаковые механизмы обнаружения ошибок. Основным различием является полоса канала (скорость передачи).
Существующие стандарты:
IEEE:
– 802.3 – протокол передачи данных со скоростью 10 Мбит/с. – 802.3u – протокол передачи данных со скоростью 100 Мбит/с. – 802.3z – протокол передачи данных со скоростью 1000 Мбит/с.
Преимущества:
– надежная, проверенная временем технология – технологию поддерживают практически все существующие сетевые устройства – технология обеспечивает высокоскоростной доступ к среде передачи данных.
1.4.2. Коммутация кадров
Назначение:
Построение высокоскоростной локальной сети с использованием коммутации кадров данных. Основой технологии является сегментация сети с целью выделения конечной станции всей полосы пропускания используемого протокола.
Основные особенности:
Технология основана на отказе от разделения линий связи между всеми узлами сегмента. Вместо этого используется коммутатор, позволяющий передавать кадры между всеми парами портов коммутатора одновременно. Основными процессами, выполняемыми коммутатором, являются ретрансляция (forwarding), буферизация (buffering) и фильтрация (filtering) данных. Коммутатор, работая на канальном уровне, анализирует заголовки кадров, строит адресную таблицу и на основании ее ретранслирует или фильтрует кадры. Главной причиной повышения производительности является параллельная обработка нескольких кадров.
Коммутаторы второго уровня по сути являются быстродействующими многопортовыми мостами на основе стандарта 802.1d. Коммутация третьего уровня позволяет значительно ускорить передачу данных между сетями. Расчет маршрута выполняется стандартным для третьего уровня способом, затем пакеты дополняется тегами, которые содержат информацию о пересылке пакетов. В итоге для прохождения пакетов через сеть требуется меньший объем обработки данных на третьем уровне.
Одно из ключевых свойств коммутаторов ЛВС - их способность поддерживать виртуальные локальные сети (VLAN). Виртуальной сетью называется группа портов сети, трафик которой, в том числе и широковещательный, на канальном уровне полностью изолирован от других портов сети. Это означает, что передача кадров информации между разными виртуальными сегментами на основании адреса канального уровня невозможна. Современная реализация виртуальных сетей осуществляется на базе портов, т.е. каждый порт активного устройства (коммутатора) может быть настроен на любую виртуальную сеть.
Виртуальные сети создаются при потребности разделить сегменты различных отделов предприятия в случае необходимости их подключении к единой ЛВС. В виртуальную локальную сеть выделяется группа пользователей, серверов и других ресурсов, которые ассоциируются друг с другом логически, а физически размещаются в здании произвольно. Применение виртуальных сетей позволяет организовывать сети вокруг сложившихся рабочих групп, а не следовать физической топологии кабельной системы, причем управление и мониторинг могут осуществляться централизовано со станции управления. Одно из преимуществ VLAN - возможность изменять конфигурацию сети без перестыковки кабелей или изменения адресов подсетей в настольных устройствах; в результате - упрощение процедуры управления сетью. С помощью станции управления администратор сети может оперативно переключать пользователей между виртуальными сетями и осуществлять контроль за их работой.
Существующие стандарты:
IEEE:
– 802.3d – спецификация, определяющая метод передачи информации о приоритете сетевого трафика. – 802.1q – спецификация определяющая принадлежность кадра к виртуальной сети и приоритет передаваемых данных. – 802.3d – спецификация определяющая функционирование мостов и построение сетевого дерева с помощью протокола STP.
Преимущества:
· Технологии коммутации обеспечивают высокую производительность, позволяет строить достаточно сложные сети, неподверженные коллизиям и широковещательным штормам.
· Обеспечивается глубокая масштабируемость сети.
При использовании технологии виртуальных сетей достигается:
· Повышение производительности в каждой из виртуальных сетей: коммутатор передает кадры в такой сети только порту (портам) назначения;
· Изоляция сетей друг от друга для управления правами доступа пользователей и создания защитных барьеров на пути широковещательных штормов.
1.5. Технологии, применяемые в территориально-распределенных сетях (WAN)
· Маршрутизация
· Технологии удаленного доступа к сети
1.5.1. Маршрутизация
Назначение:
Обеспечение взаимодействия между сетями различного уровня на основе анализа пакета данных и определения наиболее эффективного маршрута от исходного до конечного узла сети.
Основные особенности:
При традиционной маршрутизации каждый пакет обрабатывается индивидуально, при этом устройство выполняет четко определенную последовательность операций: просмотр таблицы маршрутов, формирование нового МАС адреса пакета и т.д. На основании полученной информации маршрутизатор принимает решение о ретрансляции или фильтрации пакета. С помощью специальных протоколов маршрутизации устройство принимает решение о выборе оптимального маршрута и строит специальные таблицы маршрутов. Протоколы маршрутизации предполагают постоянное обновление информации о сети.
Протокол маршрутизации может работать только тогда, когда формат пакетов соответствует одному из маршрутизируемых протоколов. Примером маршрутизируемого протокола может служить всем известный IP протокол. Маршрутизируемые протоколы задают формат пакетов в которые упаковываются передаваемые по сети данные, а протоколы маршрутизации обеспечивают их передачу.
Существующие стандарты:
Протоколы маршрутизации:
– RIP – IGRP – OSPF – BGRP
Протоколы маршрутизируемые:
– IP – IPX
Преимущества:
Маршрутизируемые сети могут быть исключительно сложными. Примером такой сети сети может служить самая большая сеть мира – Интернет. Маршрутизаторы не пропускают широковещательные кадры и могут поддерживать множественные связи с другими сетями (то есть между двумя любыми узлами может существовать множество альтернативных маршрутов).
1.5.2. Технологии удаленного доступа к сети
Назначение:
Обеспечение доступа клиентов к информационным ресурсам глобальных и территориально-распределенных сетей, к различным услугам, предоставляемым мультисервисными сетями связи.
Основные особенности:
Наиболее традиционным доступом клиента к сети оператора является коммутируемое телефонное соединение (Dial-up) с помощью модема. В настоящее время такой подход может удовлетворить лишь скромные запросы домашних пользователей. Для доступа пользователя к корпоративной сети наиболее рациональным является подключение по оптоволоконному кабелю, однако высокая стоимость полностью оптических сетей делает этот метод неприемлемым для многих клиентов. На практике чаще всего используют комбинацию технологий на базе медного кабеля и оптоволокна. Наряду с высокоскоростным широкополосным доступом по медной паре (xDSL) сейчас применяются и другие технические решения. Среди них гибридное оптоволоконно-коаксиальное решение (HFC) на базе существующих сетей кабельного телевидения, радиодоступ и спутниковый доступ.
Существующие стандарты:
· xDSL – Широкополосный цифровой доступ по медной паре
· IEEE 802.11 – Стандарт беспроводной передачи данных (RadioEthernet)
1.6. Универсальные технологии
1.6.1. Системы управления оборудованием локальных вычислительных и глобальных сетей передачи данных
Назначение:
Предназначена для эффективного мониторинга параметров функционирования и управления оборудованием локальных и глобальных сетей передачи данных с целью обеспечения заданных параметров функционирования, заданного качества сервисов, адекватной и своевременной реакции на возникновение нештатных ситуаций, прогнозирования поведения сети в различных условиях, инвентаризации сетевого оборудования и планирования развития сетевой инфраструктуры.
Основные особенности:
Позволяет реализовать различные подходы к управлению: –Централизованный; –Централизованный с делегированием полномочий; –Децентрализованный.
Существующие стандарты:
ITU-T:
– М.3000 – «Обзор рекомендаций в области TMN» – М.3016 – «Обзор информационной безопасности TMN» – М.3020 – «Методология определения TMN-интерфейсов» – М.3200 – «Услуги управления TMN» Другие.
Преимущества:
Предсказуемое поведение сети, проактивное управление сетевыми ресурсами, адекватный анализ и планирование.
Опыт использования:
Богатый опыт внедрения и эффективного использования у корпоративных заказчиков.
1.6.2. ATM (Asynchronous Transfer Mode)
Назначение:
Технология ATM - это транспортный механизм, ориентированный на установление соединения при передаче разнообразной информации в сети.
Основные особенности:
ATM - это метод передачи информации между устройствами в сети небольшими пакетами, называемыми ячейками (cells). Одним из самых важных преимуществ АТМ является возможность передавать в поле данных ячеек абсолютно любую информацию. К тому же АТМ не придерживается какой-либо фиксированной скорости передачи и может работать на сверх высоких скоростях. Все ячейки в АТМ фиксированной длины - 53 байта. Ячейка состоит из двух частей: заголовка (cell header) размером 5 байт и поля данных (cell payload) размером 48 байт. Заголовок содержит информацию для маршрутизации ячейки в сети. Поле данных несет в себе полезную информацию, которую собственно и нужно передать через сеть. Для эффективной передачи информации в технологии ATM разработана концепция виртуальных соединений (virtual connection) вместо выделенных физических связей между конечными точками в сети. Это помогает обеспечить высококачественную связь и большую гибкость в построении гомогенных сетей, где связь между узлами сети требуется независимо от их физического местоположения.
АТМ может использоваться как в локальной сети офиса, так и в территориально-распределенной сети, так как использует системы кодирования информации на физическом уровне, одинаково подходящие для передачи как по локальным, так и по глобальным сетям.
Существующие стандарты:
– UNI – User Network Interface – PNNI – Public Network Network Interface – AAL - правила, определяющие способ подготовки информации для передачи по сети ATM – Q.2931 – протокол управления виртуальными соединениями.
Преимущества:
– Способность передавать трафик любого типа с гарантированным качеством. – Эффективное распределение ресурсов. Все доступные ресурсы сети могут использоваться всеми службами с оптимальным статистическим разделением. – Единая универсальная сеть. Поскольку требуется разработать и поддерживать только одну сеть, то полная стоимость системы может быть меньше, чем суммарная стоимость всех существующих сетей.
1.6.3. ISDN - Цифровая сеть с интеграцией услуг (Integrated Services Digital Network)
Назначение:
Технология ISDN изначально разрабатывалась для использования в сетях международной телефонной связи. ISDN объединяет голосовые и цифровые сети в единой среде, давая пользователю возможность передачи по сети голоса и данных.
Основные особенности:
Канал ISDN представляет собой двухпроводную линию на медном проводе, соединяющую офис или домашнюю телефонную розетку пользователя с телефонной станцией; длина канала не должна превышать 18 тыс. футов (около 5,5 км). Согласно стандарту ITU-T, в состав линий ISDN могут входить каналы D, B и H. Емкость канала D обычно составляет 16 Кбит/с (хотя бывают и каналы пропускной способностью 64 Кбит/с). Как правило, он служит для передачи управляющих сигналов и пакетов данных. Каналы B (bearer) имеют пропускную способность 64 Кбит/с и применяются обычно для предоставления коммутируемой связи. Каналы H (high-bit-rate channels) объединяют в себе несколько каналов B; пропускная способность при этом составляет от 384 Кбит/с до 1920 Кбит/с. Помимо этого, в ISDN имеются два типа услуг: Basic Rate Interface (BRI) и Primary Rate Interface (PRI). Обычно пропускная способность BRI составляет 144 Кбит/с, но встречается и 192 Кбит/с. При работе с PRI полностью используется вся магистраль цифровой связи (DS1), что дает пропускную способность 1,544 Мбит/с (в Северной Америке и Японии). Пропускная способность канала D в PRI обычно составляет 64 Кбит/с.
Существующие стандарты:
– ITU-T Q.931 – стандарт ISDN для обеспечения виртуальных соединений. – ITU-T Q.2100 – спецификация описывающая сигнализацию B- ISDN AAL.
Преимущества:
– Полностью цифровая сеть, обеспечивающая высокую надежность передачи информации. – Высокая скорость передачи интегрированной информации различной природы. – Широкий набор функций для телефонии, высокое качество звука. – Быстрый набор номера (менее 1 с). – Широкая доступность и распространенность в мире.
1.6.4. ADSL - Асимметричная цифровая абонентская линия
(Asymmetric Digital Subscriber Line)
Назначение:
Организации доступа к сетям различного уровня по медной паре. Наиболее эффективно подходит для организации доступа к всемирной сети Интернет.
Основные особенности:
Технология ADSL обеспечивает скорости передачи данных до 8 Мбит/с по направлению к пользователю и до 1 Мбит/с в обратном направлении. Асимметрия вполне соответствует характеру трафика при работе с Internet - как правило, пользователь получает большие объемы данных, чем передает. Конкретные значения скоростей передачи данных при использовании ADSL сильно зависят от расстояния между пользователем и телефонной станцией. Для передачи данных по технологии ADSL используется диапазон частот, находящийся выше полосы частот, отведенной для передачи голоса, поэтому данные и обычный телефонный трафик можно передавать по одной и той же линии. Для этого, правда, с каждой стороны приходится устанавливать так называемый частотный разделитель (POTS splitter). Он обеспечивает передачу низкочастотного голосового сигнала на оборудование телефонной сети общего пользования (со стороны клиента - на телефонный аппарат, со стороны телефонной станции - на коммутатор), а высокочастотного сигнала передачи данных - на оборудование ADSL.
Для модуляции сигнала в устройствах ADSL чаще всего применяется одна из двух технологий - CAP (Carrierless Amplitude/Phase modulation) либо DMT.
Существующие стандарты:
– T1.413 - Стандарт на ADSL был утвержден ANSI в 1995 г.
Преимущества:
– Возможность использовать существующую медную инфраструктуру для организации высокоскоростного доступа к сетям передачи данных. – Возможность одновременной передачи данных и телефонного трафика по одной медной паре. – Возможность передачи по линии трафика видео приложений.
1.6.5. Технология V.90/56Kbs
Назначение:
Обеспечение доступа клиентов к информационным ресурсам глобальных сетей посредством телефонной сети общего пользования (ТфОП).
Основные особенности:
56К-технология служит своеобразным мостом между современными телефонными сетями общего пользования и полностью цифровыми сетями такими, как ISDN. Она обеспечивает увеличение скорости получения данных без дополнительных затрат на организацию цифровых абонентских линий. С ее помощью пользователи Интернет могут значительно быстрее загружать на свой компьютер графические Web-страницы, аудио- и видеофайлы, т. е. данные, для транспортировки которых в случае применения модемов стандарта V.34 требуется продолжительное время. Новая технология предназначена для современных телефонных сетей общего пользования (ТфОП). В таких сетях остался аналоговым только небольшой абонентский участок - от местной АТС до квартиры пользователя. Вся транспортная сеть, оборудование АТС, узлов провайдеров Интернет и крупных компаний, а также линии связи, соединяющие эти узлы с ближайшими АТС, являются полностью цифровыми. Разработчики 56K-модемов исходили из известного факта, что цифровые каналы практически не подвержены влиянию внешних электронных помех. Соответственно, они способны обеспечить большее значение соотношения полезный сигнал/шум, а, следовательно, повысить скорость модемных соединений.
Существующие стандарты:
– V.90 – технология передачи данных через ТфОП ITU-T – X2 – технология передачи данных через ТфОП, разработанная компанией 3Com – K56Flex – технология передачи данных через ТфОП, разработанная компанией Lucent Technologies.
Преимущества:
– Возможность скоростного (56 Кбит/с ) доступа, гарантирующего передачу мультимедийного трафика через ТфОП. Обычные модемы в данной ситуации ограничены скоростью 34Кбит/сек.
1.6.6. IP-телефония
Назначение:
Передача голосового трафика через IP сети.
Основные особенности:
IP-телефония основывается на двух базовых операциях: преобразовании двунаправленной аналоговой речи в цифровую форму внутри кодирующего/декодирующего устройства (кодека) и упаковке данных в пакеты для передачи по IP сети. Эти базовые функции IP-телефонии могут быть реализованы в широком спектре оборудования - от настольных телефонов до высокоемких шлюзов операторов связи. Шлюзы IP-телефонии обрабатывают трафик, поступающий от других телефонных устройств и шлюзов. Они способны обслуживать как одно, так 500 и более телефонных устройств и могут быть установлены как у конечного пользователя, так и у сервис-провайдера.
Другой тип автономных устройств представляют пограничные устройства, в которых шлюз объединен с удаленным доступом и пулом модемов. Кроме того, функции шлюза сегодня доступны на уровне Ethernet-оборудования, установленного у конечных пользователей и поддерживающих H.323 — стандарт ITU на передачу мультимедийного трафика по IP. Таким образом, одноранговые бесшлюзовые системы IP-телефонии теоретически возможно создать посредством объединения частных локальных и глобальных сетей. Проблема на настоящий момент состоит в том, что лишь немногие производители поставляют телефоны Ethernet H.323, поэтому заинтересованным в таком подходе заказчикам приходится искать нестандартные решения.
Существующие стандарты:
– H.323 — основополагающий стандарт, где описывается, каким образом чувствительный к задержке трафик, в частности голос и видео, получает приоритет в локальных и глобальных сетях. Он состоит из ряда рекомендаций по смежным техническим вопросам, таким, как качество речи, контроль вызовов и спецификации привратников (Привратники — это приложения, чья функция состоит в преобразовании IP-адресов, контроле доступа и управлении пропускной способностью для других компонентов H.323, включая шлюзы и конечные точки.)
Преимущества:
– Возможность существенного снижения затрат на междугородние и международные телефонные переговоры. – Возможность передачи голосового трафика от головных офисов в филиалы в единой информационной IP магистрали.
1.6.7. Frame Relay
Frame Relay (буквально: “передача кадров”) – сравнительно новая и весьма перспективная технология передачи данных. Ее применение стало возможным благодаря появлению высокоскоростных цифровых каналов. Основной принцип этой технологии состоит в создании нескольких виртуальных каналов на одном физическом, при этом для каждого виртуального канала резервируется гарантированная полоса пропускания. Frame Relay использует метод пакетной коммутации. Но в этом протоколе отсутствует коррекция ошибок и подтверждение получения, так как сети Frame Relay базируются на высокоскоростных цифровых каналах с вероятностью ошибки не более 10-6. Это увеличивает скорость передачи, минимизируя время доставки пакета. Кадры (фреймы) имеют переменную длину и в случае необходимости могут достигать размера 4 Кбит, что позволяет уменьшить накладные расходы на передачу служебной информации. Преимущества Frame Relay сделали эту технологию оптимальным выбором для компаний, желающих с минимальными затратами добиться качественной связи. Компании, применяющие сетевые решения на основе Frame Relay, получают возможность с минимальными затратами и применением минимального набора аппаратных средств получить услуги связи с уровнем качества и безопасности, близким к уровню выделенных линий. Экономичность. Аренда портов Frame Relay и виртуальных каналов значительно дешевле аренды цифровых выделенных каналов, и чем разветвленнее сеть клиента, тем ощутимей выигрыш. Скорость выше гарантированной. Как и выделенные каналы, Frame Relay позволяет получить гарантированную пропускную способность, но за счет пакетной коммутации реальная скорость превышает гарантированную.
Гарантированная скорость. Виртуальный канал Frame Relay имеет в своем распоряжении минимальную полосу пропускания, которая может составлять от 0 до 100% скорости порта. Гарантированная скорость позволяет использовать протокол Frame Relay для приложений, критичных к времени задержки, например, для передачи голоса, для торговых систем. При использовании одного порта для нескольких виртуальных каналов гарантированная скорость может быть обеспечена для каждого такого канала. Получение скорости выше гарантированной. В среднем фактическая полоса пропускания для конкретного пользователя может составлять до 70% и более от скорости порта. Заказчик, приобретающий порт Frame Relay со скоростью 64 Кбит/с, с вероятностью 90% может использовать полосу пропускания около 48 Кбит/с, даже если гарантированная полоса пропускания при этом составляет всего 12 Кбит/с. Эффективность использования. Frame Relay повышает эффективность использования полосы пропускания примерно на 40-50%. Для передачи полезной информации Frame Relay может задействовать около 95% полосы пропускания. Стоимость оборудования. Оборудование для построения сетей по технологии Frame Relay существенно дешево, так как аппаратная и программная реализация протокола Frame Relay существенно проще.
Защита от несанкционированного доступа. Сети Frame Relay лучше защищены от несанкционированного доступа, чем Интернет, поэтому лучше подходят для создания наложенных корпоративных сетей. Соединение локальных сетей – использование Frame Relay позволяет объединить локальные сети удаленных офисов компании, использующие практически любые протоколы Передача голоса. По каналам Frame Relay можно передавать как “обычные данные”, так и голосовой телефон и факс. Соединение удаленных офисов сетей заказчика на основе технологии Frame Relay позволяет объединить в одном канале голосовую телефонию, факс, данные с локальной сети и портов передачи данных. Получение комплекса услуг. Frame Relay позволяет через один канал доступа и одно устройство доступа объединить локальные сети и получить доступ с гарантированной полосой пропускания к Интернет и другим сетям и информационным системам Максимальная мощность связи с применением Frame Relay составляет 2Мбит/с.
Предоставление каналов по технологии Frame Relay
Использование технологии Frame Relay для интеграции передачи данных, голоса и факсов позволяет строить ведомственную сеть с разделением канального ресурса и увеличения пропускной способности, за счет динамического управления и маршрутизации. Подключение к этому ресурсу и организация локального управления всем подключенным региональным узлам в подразделениях, создаст ведомственную сеть – Intranet для ведомства. Термин "интрасеть" (intranet) применяется для ведомственных сетей, основанных на технологиях и стандартах, принятых в Internet. Используя такие открытые технологии, организация может почти мгновенно предоставлять своим подразделениям полезную информацию независимо от того, где территориально эти сотрудники находятся, причем такой способ передачи информации оказывается наиболее дешевым из всех возможных. В крупных организациях, имеющих большое количество территориально распределенных подразделений, затраты на передачу информации возрастают. Основные технологии, на которых строится интрасеть, были специально разработаны так, чтобы обеспечить независимость от платформы и общедоступность. В результате любое подразделение подключенное к интрасети может получить доступ к информации помещенной в ней с помощью стандартного программного обеспечения, передавать факсимильные сообщения, а также использовать интрасеть для телефонной связи.
Суть проекта заключается в том, что на существующей сети Frame Relay можно создать внутреннюю сеть Intranet. Наиболее приемлемой технологией построения ведомственной сети является виртуальная сеть. Предлагается экономичный доступ в Internet через сеть Frame Relay, что позволяет использовать одно и то же оборудование для доступа в сети Intranet и Internet. В региональных представительствах рекомендуется устанавливать недорогие FRAD - Frame Relay Access Device с интеграцией речи и данных, способные одновременно выполнять функции IP-маршрутизатора. Заказчик покупает услуги сети Frame Relay у телекоммуникационной компании и оборудование для подключения к этим услугам. Таким образом, создается ведомственная (закрытая для посторонних) сеть с использованием услуг сети Frame Relay общего пользования и осуществляет полный контроль над сетью и административное управление.
1.7. Виртуальные частные сети (VPN-Virtual Private Network)
Виртуальные закрытые сети обеспечивают безопасное соединение между различными локальными сетями через Internet при значительно более низких затратах по сравнению с традиционными технологиями дальней связи.
Для обеспечения безопасной (зашифрованной) передачи данных между локальными сетями (LAN) в глобальных сетях (WAN) необходимо два или более маршрутизатора. По минимальной цене подключения к любому провайдеру услуг Internet получаем безопасность передачи данных LAN - LAN на уровне закрытых сетей.
Удаленный доступ
Виртуальные закрытые сети обеспечивают безопасное туннелирование через любые сети и могут осуществлять безопасную маршрутизацию между локальными сетями по Internet.
Безопасность
Используется алгоритм шифрования Blowfish с ключом длиной 144 бит. Шифрованию подвергаются все передаваемые данные, а не только отдельные пакеты. Для повышения надежности можно использовать различные ключи для каждого туннеля.
Необходимость использования Виртуальных частных сетей
Чтобы получить максимум выгоды от использования Internet для деловых приложений нужно сделать два важных шага. Первый шаг - это получить доступ в Internet. Второй - реализовать преимущества сети Internet для совместной работы нескольких удаленных офисов. Технология Виртуальных частных сетей (VPN) позволяет обеспечить безопасную совместную работу удаленных локальных сетей. При этом стоимость соединения составляет лишь малую долю от стоимости выделенных соединений в глобальных сетях. До сих пор эта технология лишь обсуждалась и всего лишь несколько компаний предлагали готовые решения.
Значительное снижение стоимости
Для компаний, использующих широкомасштабные сети WAN, эта технология полностью оправдает все ожидания. Применение новой технологии позволит коренным образом снизить затраты на использование каналов. Многим другим компаниям технология VPN позволит достичь максимальной выгоды во всех областях телекоммуникаций.
Экономический эффект зависит от конкретных условий. В общем, наибольшая экономия достигается там, где выделенная линия между удаленными офисами заменяется на подключение к местному провайдеру услуг Internet. Выделенное WAN-соединение между провайдерами услуг Internet, как правило, дешевле, так как услуги таких соединений оплачиваются в зависимости от дальности и ширины канала.
Упрощение управления и снижение стоимости оборудования
Как правило, более низкая стоимость WAN-подключения это наиболее заметная экономия при переходе к технологии VPN. Исключение сложных дорогостоящих элементов инфраструктуры WAN-соединенй и упрощение администрирования - вот еще одна причина использования новой технологии. Многие Internet-провайдеры предоставляют услуги по поддержке и администрированию подключаемых линий. Как правило, провайдеры используют для соединения между собой высокоскоростные соединения с шириной канала значительно больше, чем ширина канала, подключаемого к Вашему офису. Таким образом, если потребуется увеличить пропускную способность VPN, то достаточно расширить лишь канал доступа к провайдеру услуг Internet. Провайдер услуг Internet должен обеспечивать своевременное внедрение новейших достижений в области коммуникаций и сетей - он позаботится о модернизации оборудования, используемого при подключении.
Интеграция приложений, использующих общую платформу и инфраструктуру
Снижение стоимости можно ожидать и от внедрения единой инфраструктуры, базирующейся на Internet-технологии. Например, вместо двух соединений к провайдеру услуг Internet для электронной почты и для выделенного WAN-канала может использоваться одно соединение. Скоро одно соединение и VPN можно будет использовать для обеспечения пользователей мобильных систем безопасным удаленным доступом к локальным сетям. При этом отпадет необходимость в выделенных серверах удаленного доступа и многочисленных модемах и аналоговых телефонных линиях. Заглядывая еще дальше, отметим, что стандартная телефония и видеоконференции (которые сегодня требуют выделенные линии) будут интегрированы с Internet VPN услугами.
Для многих приложений скорость и качество Internet-услуг являются приемлемыми, особенно учитывая значительную экономию средств. Сегодня применение Internet-услуг ограничено приложениями, требующими широкой полосы пропускания и приложениями реального времени, такими как видеоконференции, базы данных реального времени и др. Однако, даже в этом случае установка VPN для менее важных приложений дает заметные преимущества.
1.8. Беспроводные сети.
Технология передачи информации между абонентами, находящимися друг от друга на значительных расстояниях, постепенно, но уверенно, переходит с рельс кабельных коммуникаций на использование просторов мирового эфира. Сегодня настал час использования беспроводных коммуникаций и для передачи данных между удаленными компьютерами . Причем, если спутниковые коммуникации уже сравнительно давно используются для передачи данных, то беспроводные компьютерные коммуникации для расстояний от нескольких метров до десятков километров получили развитие только за последние два-три года. Широкое внедрение беспроводных компьютерных коммуникаций стало возможным благодаря разработке ведущими научными лабораториями мира принципиально новой высокоэффективной технологии передачи на основе использования специального широкополосного шумоподобного сигнала (ШПС) . Отличительной чертой такого радиосигнала является наличие избыточности цифрового кода, гарантирующее высокую достоверность (безошибочность) и помехоустойчивость передачи данных. При этом используется очень низкая мощность излучения , что реализуется миниатюрным приемо-передатчиком, способным уместиться в маленькой сетевой компьютерной карте (плате) размером с записную книжку. Сетевая карта при подключении внешней антенны размером с книгу без дополнительного усиления позволяет связать компьютеры на расстояния 15-20 км со скоростью 2 Мбита/ сек. Цена такой карточки в десятки раз меньше стоимости радиорелейного оборудования , использующего традиционные узкополосные радиосигналы высокой мощности. Широкое повсеместное внедрение данной технологии передачи данных вызвало необходимость разработки соответсвующих стандартов. Так в июле 1997 года был принят международный стандарт IEEE 802.11, регламентирующий использование для компьютерной передачи данных оборудования с широкополосным шумоподобным сигналом с модуляцией по методам DSSS и FHSS в диапазоне частот 2400-2483 МГц . Ранее также бытовало мнение, что беспроводные коммуникации -это временный способ решить проблемы отсутствия кабельных сетей в развивающихся странах . Однако технология беспроводных коммуникаций так бысто развиваетя, что уже сегодня беспроводная связь является реальной альтернативой проводным каналам в телефонии , передаче данных и других применениях во всем мире. Благодаря низким затратам на развертывание и обслуживание беспроводных сетей , масштабируемости при увеличении количества обслуживаемых абонентов, высокой надежности и качестве коммуникаций, основанных на применениии новейших методов модуляции сигнала - ШПС , технология беспроводных коммуникаций во всех применениях, и в том числе для передачи данных, уже сегодня вытесняет дорогостоящие решения на базе использования проводных каналов. По мнению экспертов, использование беспроводных сетей связи во всех применениях являются наиболее передовыми решениями в области телекоммуникаций сегодня и в ХХI веке.
Главная часть
2.1. IP-телефония.
2.1.1. Технология–феномен.
IP-телефония представляет собой в некотором роде феномен. Все соглашаются с тем, что со временем все виды трафика будут передаваться по IP, и голосовой трафик в том числе. Но при этом пока что в сфере телекоммуникаций у традиционной телефонии позиции намного прочнее, чем это кажется на первый взгляд. Тем не менее, несмотря на такое двойственное к себе отношение (большой, но в значительной степени абстрактный интерес со стороны большинства), IP-телефония продолжает развиваться, причем весьма быстрыми темпами. Свое отражение эта тенденция находит и на отечественном рынке телекоммуникационных технологий. Несмотря на довольно скромную на общем фоне долю рынка, IP-телефония уже вполне "различима невооруженным глазом" и, более того, заставляет с собой считаться даже скептиков. В России прошедший год ознаменовался "выходом в свет" IP-телефонии, и теперь рассказ о ее перспективах будет иметь под собой веские основания.
Итак, что же такое IP-телефония? IP-телефония - это технология, которая связывает два абсолютно разных мира - мир телефонии и мир интернет. До недавнего времени сети с коммутацией каналов (телефонные сети) и сети с коммутацией пакетов (IP-сети) существовали практически независимо друг от друга и использовались для различных целей. Телефонные сети использовались только для передачи голосовой информации, а IP-сети - для передачи данных. Технология IP-телефонии объединяет эти сети посредством устройства, называемого шлюз или gateway. Шлюз представляет собой устройство, в которое с одной стороны включаются телефонные линии, а с другой стороны - IP-сеть (например, Интернет).
Рассмотрим, каким образом осуществляется IP-телефонный звонок. Допустим, абонент из города А звонит абоненту в город Б.
Звонок, приходящий из телефонной сети города А на шлюз в городе А, оцифровывается, сжимается посредством определенного алгоритма, и в виде IP пакетов передается в IP-сеть. В заголовках пакетов содержится информация о том, на какой шлюз в IP-сети должны приходить эти пакеты. Приходящие на шлюз в городе Б IP-пакеты преобразуются обратно в телефонный сигнал и абонент в городе Б поднимает трубку и разговаривает с абонентом А. Конечные потребители услуги могут даже не догадываться о том, как осуществляется этот звонок.
Поскольку при IP-телефонном звонке никак не задействован международный (междугородний) телефонный оператор, стоимость этого звонка на порядок меньше стоимости традиционного телефонного соединения.
Однако звонок Телефон-Телефон является самым очевидным, но далеко не единственным сервисом, который может предоставлять оператор IP-телефонии.
Решения IP-телефонии комбинируют голос и данные в одной сети и предлагают не только дешевые международные и междугородные звонки, но и целый набор совершенно новых коммуникационных услуг любому пользователю.
2.1.2. Перечень возможных предоставляемых услуг.
IP-телефония предлагает следующие коммуникационные услуги:
· Компьютер-Телефон.
· WEB – телефон.
· Телефон-Компьютер.
· Виртуальные частные сети (VPN).
· Глобальный роуминг.
Компьютер-Телефон.
Находясь в любой стране мира, абонент провайдера IP-телефонии может осуществить звонок с любого компьютера, имеющего выход в Интернет. Для этого ему необходимо установить на свой компьютер программу Internet Phone и один раз ввести в нее регистрационные данные. Компьютер должен быть мультимедийным, то есть, нужна звуковая плата, наушники (колонки) и микрофон. Звонок с компьютера, как правило, еще дешевле, чем звонок Телефон-Телефон. К примеру, абоненты ЗАО "Корпорация О.С.С." при звонке из любой точки мира в Москву платят всего 7 центов за минуту разговора.
WEB – телефон.
Еще одна новая услуга, которую предоставляют провайдеры IP-телефонии - это звонок с Вэб-сайта или Surf&Call - решение компании VocalTec в области веб-телефонии, позволяющее осуществлять вызов, выбрав со страницы Интернет ссылку на имя вызываемого абонента. Это решение направлено, прежде всего, на расширение возможностей электронной коммерции. Surf&Call позволяет пользователям Интернет напрямую поговорить, например, с торговым представителем либо со специалистом технической поддержки интересующей его фирмы.
Установление телефонного соединения происходит при нажатии курсором на ссылку, представляющую собой, например, название компании, имя вызываемого абонента и т. д. на странице Интернет. При этом пользователю не требуется вторая телефонная линия или прерывание работы в Интернет, необходимо лишь загрузить небольшое клиентское программное обеспечение, которое обычно можно найти на той же WEB-странице ("ПК-клиент"), и которое устанавливается автоматически. С другой стороны Surf&Call позволяет представителям компаний отвечать на вопросы, демонстрировать WEB-страницы, передавать необходимую информацию, улучшая тем самым качество предоставляемых услуг.
Телефон-Компьютер.
Уже давно любители бороздить всемирную сеть сталкиваются с проблемой занятости телефонных линий во время сеанса Dial-up. IP-телефония позволяет очень элегантно решить эту проблему. Единственное, что должен сделать абонент - это заказать на своей АТС переадресацию по сигналу "занято" на телефонный номер сервера IP-телефонии. При звонке на номер абонента во время Интернет-сессии вызов переадресуется на сервер IP-телефонии, который преобразовывает его в IP-пакеты и отправляет на компьютер абонента. На компьютере абонента появляется иконка "Входящий звонок", кликнув на которую он может поговорить со звонящим.
Виртуальные частные сети (VPN).
IP-телефония является идеальной технологией для построения виртуальных частных сетей предприятия. Главная черта технологии VPN - использование IP-сети в качестве магистрали для передачи корпоративного IP-трафика. Сети VPN решают задачи подключения корпоративного пользователя к удаленной сети и соединения нескольких удаленных ЛВС и АТС в единую корпоративную сеть передачи голоса и данных. IP-телефония в данном случае служит для обмена голосовым трафиком между удаленными филиалами, как если бы они находились в одном здании.
Глобальный роуминг.
IP-телефония позволяет операторам связи очень просто и с минимальными затратами организовать роуминг услуг связи. Это особенно актуально для операторов мобильной связи - решение, построенное на технологиях IP-телефонии, на порядок дешевле традиционного, и обладает гораздо большей гибкостью.
2.1.3. Преимущества IP-телефонии.
Провайдерам Интернет и операторам телефонной связи введение IP-телефонии в спектр услуг открывает совершенно новые рынки сбыта, новых клиентов и возможности развития.
Корпоративным клиентам - многократное снижение затрат на междугородние (международные) переговоры, организация виртуальных частных сетей между удаленными филиалами, звонок из Интернета на корпоративном Web-сайте.
Интернет-магазинам и каталогам - Web-телефон.
Частным пользователям - многократное снижение затрат на междугородние (международные) переговоры, все услуги связи от одного оператора, роуминг по городам России и Мира, звонок с компьютера, звонок с Web-сайта.
2.1.4. Качество связи.
Качество связи можно оценить, используя следующие основные характеристики:
- уровень искажения голоса;
- частота "пропадания" голосовых пакетов;
- время задержки (между произнесением фразы первого абонента и моментом, когда она будет услышана вторым абонентом).
Качество связи по всем перечисленным характеристикам значительно увеличилось в сравнении с первыми версиями решений IP-телефонии, которые допускали искажение и прерывание речи. Улучшение кодирования голоса и восстановление потерянных пакетов позволило достичь уровня, когда речь понимается абонентами настолько хорошо, что собеседники не догадываются, что соединение происходит по технологии IP-телефонии. Понятно, что задержки влияют на темп беседы.
Известно, что для человека задержка до 250 миллисекунд практически незаметна. Существующие на сегодняшний день решения IP-телефонии не превышают этот предел, так что разговор фактически не отличается от связи по обычной телефонной сети.
Кроме этого, задержки уменьшаются благодаря следующим трем факторам:
- Во-первых, совершенствуются телефонные серверы. (их разработчики борются с задержками, улучшая алгоритмы работы).
- Во-вторых, развиваются частные (корпоративные) сети (их владельцы могут контролировать ширину полосы пропускания и, следовательно, величины задержки).
- В-третьих, развивается сама сеть Интернет - современный Интернет не был рассчитан на коммуникации в режиме реального времени. The Internet Engineering Task Force (IETF) вместе с операторами сетей Интернет предлагают новые технологии, такие, как Reservation Protocol (RSVP), которые позволяют резервировать полосу пропускания. Хотя на обновление роутеров по всему миру и на организационные мероприятия (например, решить вопрос, как в денежном выражении оценить сервис более высокого качества) потребуется некоторое время, мир Интернета, вне зависимости от вышесказанного, двигается очень быстро и в правильном направлении.
2.1.5. Корпоративная телефония.
В корпоративном секторе IP-телефония пока что не так широко распространена, как на рынке операторских решений. Собственно, применительно к корпоративному рынку IP-телефонию можно условно разделить на магистральную и локальную. Каждое из этих направлений имеет свои недостатки. В так называемой LAN-телефонии главным сдерживающим фактором были прежде всего конечные устройства. Понятно, что на том этапе развития IP-телефонии, когда единственным вариантом клиентского устройства был мультимедийный ПК, всерьез воспринимать это решение как корпоративное никто не мог. Первые же IP-телефоны (они же Ethernet-телефоны) отпугивали своей ценой, а также необходимостью организации питания по отдельной линии. По сути дела пользователю предлагалось поставить на стол рядом с одним компьютером второй, причем стоящий ненамного дешевле. Необходимость внешнего питания также нарушала один из основных принципов, который гласил, что даже если во всем здании вследствие чрезвычайной ситуации пропадет электропитание, телефония должна функционировать, хотя бы какое-то время (пока ИБП поддерживает УАТС). Главным достижением предыдущего года можно считать то, что темпы сближения IP-телефонов с "нормальными" по всем параметрам заметно ускорились.
Снижение цен обеспечило, как и следовало ожидать, более массовое производство, причем, наверное, не столько собственно объемы производства, сколько массовость предложения. Крупные поставщики решений для корпоративной (и не только, конечно) телефонии стали более активно продвигать свои IP-телефоны, что не могло не привести к снижению цен. Симптоматично также, что за производство IP-телефонов стали браться азиатские производители: явный признак того, что в скором времени IP-телефон станет товаром если не такого же массового спроса, как и телефон обычный, то, по крайней мере, соизмеримого. Пока что цена конечного устройства остается достаточно высокой - не менее 150 долларов. Но если принять во внимание, что одним из главных маркетинговых двигателей "локальной" IP-телефонии является поддержка множества всевозможных сервисов (включая компьютерную телефонию), в пересчете не на "голый" порт, а на сервис, сегодняшний уровень цен представляется достаточно адекватным.
На корпоративном рынке интерес к IP-телефонии возрастает также благодаря тому, что сетевое оборудование приобрело некоторые черты УАТС - в первую очередь это касается проблемы питания IP-телефонов, работающих в полностью сетевом (т. е. без привычных УАТС, даже поддерживающих IP) окружении. Пионером в этом направлении выступает, естественно, компания Cisco Systems. Она весьма оперативно модернизировала свое сетевое оборудование, чтобы оно могло обеспечивать питание абонентских устройств. Для этого компанией выпускаются, во-первых, специальные интерфейсные модули, способные подавать питание по витой паре, а во-вторых, устанавливаемые в слот расширения, а также внешние блоки питания постоянного тока. Стоит отметить, что "электрические" интерфейсные модули могут работать и с обычным сетевым оборудованием, поскольку у них имеется функция автоматического определения типа подключенного к порту устройства - питание подается только после того, как оконечное устройство его "попросило".
Правда, несмотря на то, что основные два препятствия на пути внедрения IP-телефонии "от и до" в корпоративном окружении успешно преодолеваются, все же один сдерживающий фактор по-прежнему остается - заказчик (а это, очевидно, крупный заказчик) должен либо иметь новые "неосвоенные территории", либо быть готов радикально модернизировать свою телекоммуникационную инфраструктуру. Повлиять на это обстоятельство производители не в состоянии, поскольку объективные достоинства их решений в данном случае не столь важны. Тем не менее, в нашей стране решения на базе IP-телефонии начинают проникать и в корпоративные сети. В целом же есть основания предполагать, что в уже имеющихся корпоративных сетях законченные решения IP-телефонии будут внедряться сначала на периферии, а потом уже постепенно проникать все ближе к ядру сети.
2.1.6. Программный продукт Internet-телефонии
Internet приносит в компьютерную телефонию (Computer Telephone Integration, CTI) по меньшей мере две возможности:
Ø Использование Internet в качестве альтернативного канала для передачи голосового трафика. Сейчас появилась возможность интеграции голосовых сообщений и потока данных в одной сети - что может быть более экономным, чем использование традиционных каналов обычной телефонии.
Ø Возможность использования Internet для контроля и мониторинга телефонных вызовов. Телефоны имеются повсюду - они легко доступны и просты в использовании. Internet может добавить мощь компьютера к телефону, чтобы сделать его более надежным и функциональным.
Компьютеры могут посылать сообщения друг другу через Internet - e-mail - наиболее знакомый пример. Однако, звук также может быть оцифрован и передан между компьютерами точно так же как любой другой тип данных.
Internet-телефония использует Internet, чтобы послать звуковое сообщение между двумя или больше компьютерными пользователями в реальном времени. Самый первый программный продукт Internet-телефонии, позволяющий пересылать голосовые сообщения по сети, - VocalTec Internet Phone - был представлен израильской фирмой VocalTec (www.vocaltec.com) в начале 1995 года. Впервые пользователь персонального компьютера, оснащенного звуковой платой, микрофоном и имеющего подключение к Internet, смог вести голосовые переговоры с другим таким же пользователем, независимо от того как далеко друг от друга они находились. Большинство программных продуктов из этой же серии, появившихся позже, позволяют пользователям говорить в микрофон и слышать ответ собеседника через колонки.
Не успев родиться, новая возможность привлекла всемирное внимание. Технология неуклонно улучшалась и очень быстро подошла к отметке, когда общение голосом стало легко возможным, и продолжает развиваться дальше. Множество компаний представили аналогичные программы. При этом, во многих системах наряду с возможностью обмениваться голосовыми сообщениями уже добавлена возможность вести еще и переписку, набирая сообщения на клавиатуре компьютера, пересылать файлы прямо во время разговора, обмениваться графическими образами, а иногда и видеоизображения. Требования же к качеству Internet-соединения весьма небольшие, так, почти всегда бывает достаточно обычного модема, работающего на скорости 14,400 kbps, чтобы достаточно отчетливо слышать голос человека, который вполне может находиться в это время на другой стороне планеты.
Рассмотрим некоторые программы Internet-телефонии более подробно.
VocalTec Internet Phone 4.0
Разработан фирмой VocalTec Ltd. Работает под операционными системами Windows 95, Windows NT, MAC OS, Power Macintosh, имеется версия, работающая под Windows 3.1. Объем инсталляционного файла составляет порядка 4Mb. Позволяет звонить как через сервер доступа, так и непосредственно по IP-адресу. В процессе разговора пользователи могут обмениваться файлами, а также вести переписку, причем если у каждого из пользователей имеется установленные русские шрифты, то сообщения можно писать по-русски. В программу встроена возможность при отсутствии вызываемого абонента, отправить ему голосовое сообщение по электронной почте. Для того, чтобы прослушать такое послание, пользователь должен будет установить Internet Voice Mail. Качество звука - очень хорошее, что неудивительно, ибо фирма VocalTec достаточно давно занимается передачей голосовых сообщений через Internet, а версия IPhone далеко не первая. Коммерческая версия стоит $49.95 долларов США, но есть возможность загрузить демонстрационную версию программы с ограниченным сроком действия. Не так давно в продаже появилась следующая версия программы, которая поддерживает передачу еще и видеоизображения.
FreeTel 1.0
Очень небольшая по размеру (всего 265Kb), но очень интересная программа Internet-телефонии, разработанная фирмой FreeTel. Работает под управлением Windows 3.1 или Windows 95. Разговор происходит с помощью подключения к серверу FreeTel и выбора из списка подключенных в данный момент к серверу пользователей интересующего человека. Также, как и IPhone, позволяет вести текстовые беседы, но при этом национальные раскладки клавиатуры не поддерживаются, поэтому приходиться общаться либо по-английски, либо волапюком. Программу можно бесплатно переписать с WEB-сервера компании FreeTel ( www.freetel.com), а если заплатить $29.95, то можно получить версию FreeTel+ с большими возможностями. Например, версия FreeTel+ позволяет выбирать собеседника не из общего списка, а из групп, создаваемых зарегистрированными пользователями. При этом появляется возможность по желанию скрыть свое присутствие в общей группе или в группах пользователей во избежание незапланированных звонков. Стоит заметить, что как только кто-то видит, что к серверу подключился пользователь из России, на него обрушивается шквал звонков. Скажем, по личным впечатлениям, у меня сложилось мнение, что как минимум половина жителей Лос-Анджелоса говорят по-русски.
CoolTalk
Эта программа Internet-телефонии входит в состав браузера Netscape Navigator 3.0 распространяемый фирмой Netscape, либо ее можно загрузить отдельно (размер около 2Mb). Программа бесплатная. Функционально CoolTalk - это Plug-In к браузеру. С помощью программы можно звонить непосредственно по IP-адресу вызываемого абонента. После установления соединения имеется возможность, кроме обмена голосовыми сообщениями, передавать друг другу текстовые сообщения или рисовать одновременно в одном окне. Качество звука выше среднего. Имеется поддержка полнодуплексного соединения, при условии достаточно хорошей звуковой платы. Есть возможность вставить в группу запуска операционной системы небольшую программу, которая активизирует CoolTalk в случае, если пришел вызов.
Недавно в печати появилось сообщение, что в состав браузера Netscape Navigator 4.0 войдет обновленная версия CoolTalk, которая будет называться LiveTalk. В отличие от CoolTalk, программа LiveTalk будет совместима со стандартом ITU H.323
NetMeeting
Так же, как и программа CoolTalk входит в состав полной версии Internet-браузера от фирмы Microsoft - MS Internet Explorer 3.0. Программа бесплатная. NetMeeting обладает практически теми же возможностями, что и программа CoolTalk. При этом имеется еще одна интересная возможность: с помощью NetMeeting можно организовать небольшую конференцию, где каждый из участников будет слышать все, что говорят собеседники. Кроме того, имеется возможность выбрать абонента из списка подключенных к серверу Microsoft.
Безусловно, кроме этих программ существует еще великое множество подобных. Кроме того, необходимо отметить, что в настоящее время фактически каждая крупная компания, занимающаяся передачей данных, начала исследование возможностей Internet-телефонии, чтобы лучше понять эту угрозу их рынкам.
2.1.7. Стремление к стандарту
Осложняет развитие Internet-телефонии и отсутствие стандартов на передачу голоса. Для использования какой-либо программы, позволяющей говорить посредством Internet, каждый из участников такого разговора должен обладать одинаковой программой (или, в крайнем случае, разными версиями одной и той же программы от одного производителя). Так, например, пользователь программы VocalTec Internet Phone не может позвонить пользователю программы FreeTel и наоборот. Эта проблема возникла потому, что самые первые программы для Internet-телефонии использовали частные протоколы, чтобы связаться друг с другом.
Сейчас ситуация изменяется. Первыми, кто заговорил о необходимости разработки стандартов были фирмы Intel и Microsoft. В настоящее время для использования технологии передачи голоса все больше склоняются к стандартам, основанным на рекомендации H.323 Международного Объединения по Передаче данных (International Telecommunications Union, ITU).
Этот стандарт охватывает технические требования для узкополосной передачи голосового вызова или передачи аудио и видеоданных, включая:
· Видео кодер-декодеры;
· Звуковые кодер-декодеры;
· Общедоступные приложения (T.120);
· Управление вызовами;
· Управление системы.
Стандарты на видео кодер-декодеры и общедоступные приложения не требуются для звуковых телефонных звонков, но существуют внутри той же самой рамки стандартов.
H.323 был первоначально разработан для локальных вычислительных сетей, так что переменная ширина полосы частот и время задержки Internet уменьшают полезность некоторых элементов H.323. По умолчанию звуковым кодер-декодером H.323, например, является G.711. Однако, ширина полосы частот в 64 kbps, требуемая в G.711, неприемлема при использовании в Internet, ибо большинство пользователей Internet имеют канал заведомо меньшей ширины. Но, даже в этом случае, многое из стандарта полезно. Тем более, что сам стандарт понимается более широко.
Кроме G.711 H.323 определяет звуковые кодер-декодеры G.722, G.723, G.723.1, MPEG1, G.728, и G.729. Кодеры с низкой шириной полосы частот - G.729 в 8 kbps и G.723 в 5.3/6.3 kbps - вполне подходят для использования в Internet. В частности, G.723 является одним из нескольких «стандартных» кодеров для Internet-телефонии, особенно после того, как Intel, Microsoft и Netscape объявили о поддержке этого кодера. Основной недостаток G.723 состоит в том, что он весьма сложен. Intel определяет 100 MHz Pentium-процессор как минимальный для использования в Internet-телефонии.
2.1.8. Первые шаги IP-телефонии в России.
Переломным моментом в развитии корпоративного рынка может стать широкое освещение двух-трех реально действующих достаточно масштабных проектов (реализацию которых можно ожидать в грядущем году, поскольку работа в этом направлении уже довольно активно ведется), способных продемонстрировать практическую отдачу. Поскольку при внедрении конвергированных решений инвестиции окупаются довольно быстро, показательные проекты должны быть достаточно наглядными. Самым показательным, конечно, был бы пример частичной или полной замены традиционной телефонии на IP-решение. Осуществить подобный проект, как уже говорилось трудно, но не так уж невозможно, ведь для апологетов IP-телефонии такой почин стоит затраченных усилий.
Кроме того, по всем признакам, производители решений для корпоративной телефонии (точнее, их российские представительства) начинают более активно продвигать свои решения в области IP-телефонии на отечественном рынке. Делается это, очевидно, по инициативе их местных партнеров, поскольку тех привлекает возможность активной работы на перспективном рынке при поддержке компаний, сделавших себе имя на решениях для телефонии. Учитывая то, что ведущие производители позиционируют свои УАТС как "готовые для IP ", убедить заказчика внедрить IP-телефонию хотя бы частично, будет несколько проще, поскольку телефония обычная у него останется.
Итак, общий прогноз - в начавшемся году IP-телефония займет свои первые рубежи на корпоративном рынке, но развиваться будет достаточно умеренными темпами. Однако если успех даже немногочисленных проектов окажется очевиден, то это станет предвестником появления более массового спроса.
История показывает, что даже разработки, которые большинство считают далекими от идеала, в состоянии не только пробить себе дорогу на рынок, но и доминировать на нем, при том условии, что про них не забывают. Наверное, в силу именно этого принципа перспективное, несмотря на ряд не решенных до конца проблем, направление IP-телефонии, пережив подзатянувшийся "личиночный" период, благополучно перешло в стадию "куколки". Если этот переходный (на пути к массовому наступлению по всем фронтам) этап также окажется достаточно долгим (на фоне сегодняшних темпов развития телекоммуникаций), фатальным обстоятельством для IP-телефонии это не станет. Более того, со временем некоторые проблемы решаются сами собой - по экспоненциальным законам растут как вычислительные мощности, так и пропускные способности каналов (и, соответственно, снижается их удельная стоимость). А это значит, что производители и разработчики могут сосредоточиться на интеллектуальной составляющей своих решений, поскольку именно она должна стать основной движущей силой IP-телефонии.
|
Модели систем бизнес телефонии. Таблица № 1 |
|||||
|
Модель системы |
Емкость портов, |
Производитель |
Стоимость, $/порт |
Конфигурация |
Способ коммутации |
|
GDK-162 |
до 186 |
LG ELECTRONICS |
от 40 |
расшир. |
гибридный |
|
DCS |
до 208 |
Samsung (Ю.Корея) |
от 41 |
расшир. |
гибридный |
|
NBX100 |
до 150 |
3COM |
от 50 |
расшир. |
гибридный |
|
KX-TD816-4 |
до 16 |
Panasonic (Япония) |
от 50 |
расшир. |
гибридный |
|
Hicom300E |
до 20 |
Siemens (Германия) |
от 50 |
расшир. |
гибридный |
|
KX-TD1232-4 |
до 32 |
Panasonic (Япония) |
от 60 |
расшир. |
гибридный |
|
ADKS-924KSU |
до 24 |
Cortelco Kellogg |
от 60 |
расшир. |
гибридный |
|
KX-T336 |
до 336 |
Panasonic (Япония) |
от 60 |
расшир. |
гибридный |
|
TX-2464 |
до 64 |
Nitsuko (Япония) |
от 80 |
расшир. |
гибридный |
|
Tele Vantage |
до 264 |
Artisoft |
от 100 |
расшир. |
гибридный |
|
Neax2400 |
до 23000 |
Nec America |
от 130 |
расшир. |
гибридный |
|
OmniPCX4400 |
до 50000 |
Alcaltel |
от 150 |
расшир. |
гибридный |
|
MERLIN MAGIX |
до 200 |
Avaya |
от 193 |
расшир. |
гибридный |
|
Coral ISBX |
до 6144 |
Eci Telecom Business Networks |
от 250 |
расшир. |
гибридный |
|
20-20 IXP |
до 10000 |
Teltronics |
от 300 |
расшир. |
гибридный |
|
Enterprise Interaction Center |
до 96 |
Interactive Intelligense |
от 400 |
расшир. |
гибридный |
|
Strata CS |
до 264 |
Toshiba |
от 450 |
расшир. |
гибридный |
2.2. Метод анализа иерархий
2.2.1. Основные теоретические сведения.
Задачи принятия технических решений принято делит на следующие этапы:
1. Формирование целей выбора; покупка изделия и выбор направления проектирования организация производства.
2. Формирование альтернатив, т.е. составление списка объектов, которые предполагается сравнивать между собой, чтобы сделать выбор.
3. Формирование системы критериев.
4. Формирование решающих правил, с помощью которых производятся парные сравнения.
5. Расстановка и синтез приоритетов.
6. Определение взвешенных показателей качества с учетом направления выбора.
2.2.2. Содержание метода анализа иерархий
Метод анализа иерархий - математическая процедура системного (иерархического) представления критериев, определяющих суть проблемы. Метод состоит в делении проблемы на все более простые составляющие части и дальнейшей отработки последовательности суждений по парным сравнении объектов выбора. В результате нахождения относительной степени взаимодействия элементов в системе. Сформулированные суждения получают количественные оценки. Метод анализа иерархий включает;
1. Процедуры синтеза множества суждений.
2. Получение приоритетности критериев.
3. Нахождение альтернативных решений.
Задача решается на основе поэтапного установления приоритетов. На первом этапе выявляются наиболее важные элементы проблемы. На втором этапе находится лучший способ оценки параметров. Далее вырабатывается способ применения решения.
Этот процесс многократно повторяют, уточняют, пересматривают до тех пор, пока не появится уверенность в том, что охвачены все важные характеристики, определяющие решение проблемы выбора.
Предполагается, что интуиция и субъективные суждения являются основным исходным материалом, на основании которого получается представление о превосходстве одного элемента над другим.
2.2.3. Принципы идентичности и композиции
Это принцип предусматривает структурирование проблемы (системное представление) в виде иерархии. В наиболее простом виде иерархия строится из вершины через промежуточные уровни к самому низкому уровню, которым обычно является перечень альтернатив (возможных вариантов изделия или его частей).
Иерархия считается полной, если каждый элемент заданного уровня действует как критерий для всех элементов нижестоящего уровня. В противном случае, иерархия - неполная.
Законы иерархической непрерывности требуют, чтобы элементы нижнего уровня иерархии были попарно сравнимы по отношению к элементам следующего уровня.
2.2.4. Принципы сравнительных суждений
После формирования системы критериев в виде иерархии возникают естественные вопросы установки приоритетов критериев и оценки альтернатив по этому критерию с целью выявления самой важной из них.
Наиболее целесообразно организовать парные сравнения по отношению к их воздействию, а результаты сравнений представить в матричной форме в виде квадратной матрицы.
|
|
А1 |
А1 |
А1 |
А1 |
|
|
A |
B |
C |
D |
|
А1 |
W1/W1 |
W1/W2 |
W1/W3 |
W1/W4 |
|
A |
а11 |
a12 |
a13 |
a14 |
|
А2 |
W2/W1 |
W2/W2 |
W2/W3 |
W2/W4 |
= |
B |
a21 |
a22 |
a23 |
a24 |
|
А3 |
W3/W1 |
W3/W2 |
W3/W3 |
W3/W4 |
|
С |
a31 |
a32 |
a33 |
a34 |
|
А4 |
W4/W1 |
W4/W2 |
W4/W3 |
W4/W4 |
|
D |
a41 |
a42 |
a43 |
a44 |
Эта матрица будет иметь свойства обратно симметричной матрицы, т.е.:
, где индексы i и j относятся к строке и столбцу соответственно.
Строки и столбцы образуют «вектор» матрицы. Квадратная матрица характеризуется собственным вектором и собственными значениями, способ вычисления этих характеристик определяет способ количественного определения сравнительной важности критериев.
Так как а11, a12, ...,aij неизвестны заранее, то попарные сравнения элементов производятся с использованием субъективных суждений и численного оценивания по шкале важности.
Результаты сравнения заносятся в матрицу, строки и столбцы которой образуют альтернативы сравниваемых между собой элементов. На основе данных заполненной таблицы формируется набор локальных приоритетов, которые выражают относительное влияние критериев качества на выбор лучшего объекта сравнения, для этого организуется вычисления собственных векторов матрицы, а затем нормализуются результаты к единице, получая тем самым искомый вектор приоритетов, который и расставляет сравниваемые объекты по значимости.
Для вычисления собственных векторов существует множество приемов. Одним из наилучших является нахождение геометрического среднего. Это получается при перемножении элементов в каждой строке и извлечением из произведения корня N-й степени, где N - количество элементов.
Полученный таким. способом столбец нормализуется делением каждого числа на сумму всех чисел:
|
|
Матрица |
Вычисление оценок компонент собственного вектора по строкам |
|
Нормализация для получения оценок вектора приоритетов |
||||
|
N |
A1 |
A2 |
A3 |
A4 |
|
|
|
|
|
A1 |
W1 W1 |
W1 W2 |
W1 W3 |
W1 W4 |
|
Теперь сложите элементы столбца и нормализуйте |
|
|
|
A2 |
W2 W1 |
W2 W2 |
W2 W3 |
W2 W4 |
|
|
||
|
A3 |
W3 W1 |
W3 W2 |
W3 W3 |
W3 W4 |
|
|
||
|
A4 |
W4 W1 |
W4 W2 |
W4 W3 |
W4 W4 |
|
|
||
|
|
|
|
|
|
Сумма (a:d) |
|
|
|
Процесс выбора лучшего изделия зависит от способа формирования системы критериев, и ограничений, налагаемых на их выбор. Критерии могут быть по значимости равнозначны, неравнозначны, образовывать многоуровневую разветвленную. структуру - иерархию.
В простейшем случае критерии можно считать равными по своей значимости и тогда выбор лучшего (предпочтительного варианта) находится согласно алгоритму :

Рисунок 1. Алгоритм выбора лучшего изделия по равнозначным критериям.
Здесь:


Если критерии неравнозначны, то предварительно.определяют приоритеты критериев R[K]. Затем вычисляются глобальные приоритеты X[K, N], а глобальные приоритеты сравниваемых объектов определяются путем перемножения матриц
|Y[N]| = |X[K,N]|*|R[K]| ,-или в развернутой форме

Блок-схема, алгоритма приведена на рис.2:

Рисунок 2. Алгоритм выбора лучшего изделия по неравнозначным критериям
Если критерии представляют многоуровневую иерархическую структуру, то в этом случае на каждом уровне организуется процесс ранжирования критериев данного уровня и нахождение соответствующих локальных приоритетов объектов сравнения.
Для проведения парных сравнений объектов анализа используется шкала относительной важности,, показанная в таблице 2.
Оценки начинают с левого верхнего элемента матрицы и задаются вопросы следующего вида.
- Какой из объектов важнее (лучше)?
- Какой из них предпочтительнее?
- Какое решение более очевидно?
При сравнении элемента с самим собой отношение равно единице. Если первый объект важнее, чем второй, то используется целое число из шкалы табл.2. В любом случае обратные друг к другу отношения заносятся в симметричные позиции матрицы. Поэтому в результате проведения рассмотренных сравнений образуется положительная обратносимметричная матрица и нужно произвести (N-1)*N/2 суждений, где N - общее число сравниваемых объектов.
|
Интенсив-ность относитель-ной важности |
Определение |
Объяснение |
|
1 |
Равная важность |
Равный вклад двух видов дея-тельности в цель |
|
3 |
Умеренное превосходство одного над другим |
Опыт и суждения дают легкое превосходство одному виду деятельности над другим |
|
5 |
Существенное, или сильное превосходство |
|
|
7 |
Значительное превосходство |
Одному виду деятельности дается настолько сильное превосходство, что оно становится практически значительным |
|
9 |
Очень сильное превосходство |
Очевидное превосходство одного вида деятельности над другими подтверждается наиболее сильно |
|
2;4;6;8; |
Промежуточные решения между двумя соседними суждениями |
Применяется в компромиссных случаях |
|
Обратные величины приведенных выше чисел |
Если при сравнении одного вида деятельности с другим получено одно из выше указанных чисел (например, 5), то при сравнении второго вида деятельности с первым получим обратную величину (т.е. 0,2) |
|
Поскольку оценки сделаны в результате субъективных суждений, т.е.. баллы назначаются самим проектировщиком в соответствии с его вкусами и внутренними убеждениями, существует необходимость сделать проверку согласованности оценок. Для того вычисляется индекс согласованности (ИС), который характеризует нарушение этой согласованности.
В основе такой операции лежит довод о том, что все измерения, в которых используются приборы, содержат погрешности измерений. Они связаны прежде всего с неточностью измерительных приборов и неточностями самих измерений. Эти погрешности и приводят к несогласованности результатов. На пример, при взвешивании оказалось, что предмет -А тяжелее, чем предмет Б, Б тяжелее B, а В тяжелее А. Это возможно, когда веса А, Б, В близки, а точность прибора соизмерима с разницей их весов.
Способ оценки согласованности при решении данных задач заключается в следующем:
1. Суммируем каждый столбец суждений Si;
![]()
2. Сумма первого столбца умножается на величину первой компоненты нормализованного вектора приоритетов Xi
Zi=Si*Xi;
3. Суммируются полученные числа,:
![]()
4. Находится индекс согласованности по формуле
![]()
Для обратносимметричной матрицы всегда lmax³N.
Теперь необходимо сравнить a, с той, которая могла быть получена при случайном выборе суждений из списка 1/9, 1/8, 1/7 ... 1, 2, 3, … , 9 при формировании обратносимметричной матрицы. Средние данные согласованности для случайной матрицы разного порядка приведены в таблице:
|
Размер матрицы N |
1. |
2. |
3. |
4. |
5. |
6. |
7. |
8. |
|
Случайная согласованность γ |
0 |
0 |
0,58 |
0,9 |
1,12 |
1,24 |
1,32 |
1,41 |
|
Размер матрицы N |
9 |
10 |
11 |
12 |
13 |
14 |
15 |
16 |
|
Случайная согласованность γ |
1,45 |
1,49 |
1,51 |
1,54 |
1,56 |
1,57 |
1,59 |
1,60 |
Если разделить индекс согласованности a на число γ, соответствующее случайной согласованности матрицы того же порядка у то получим отношение согласованностей
b=a/g.
На b накладываются условия:

Если g > 0,2 то нужно исследовать задачу снова и проверить суждения.

Рисунок 3. Критерии для сравнения выбранных систем.
2.2.5. Выбор системы методом иерархий.
Из всего множества систем выбираем 4 тех, которые имеют оптимальное соотношение между функциональными возможностями и стоимостью. Пусть, в результате отбора мы выявили следующие системы телефонии:
ü GDK-162ü NBX100 |
ü Tele Vantageü OmniPCX4400 |
Выбор системы из группы.
I. Сравнение вариантов по функциональным возможностям
1.Сравнение вариантов по предоставляемым сервисным функциям
|
|
GDK-162 |
NBX100 |
Tele Vantage |
OmniPCX4400 |
(Паij)^(1/4) |
X(i)= |
S(i)*x(i) |
|
GDK-162 |
1.0000 |
0.3333 |
0.5 |
0.3333 |
0.485 |
0.11 |
0.99 |
|
NBX100 |
3 |
1.0000 |
2 |
1 |
1.565 |
0.351 |
0.994 |
|
Tele Vantage |
2 |
0.5 |
1.0000 |
0.5 |
0.841 |
0.188 |
1.034 |
|
OmniPCX4400 |
3 |
1 |
2 |
1.0000 |
1.565 |
0.351 |
0.994 |
|
|
9 |
2.8333 |
5.5 |
2.8333 |
4.456 |
1 |
4.012 |
|
|
S1= |
S2= |
S3= |
S4= |
SU= |
|
lmax= |
|
|
g =0.9 |
a =0.004 |
b=0.0044 |
|
|
|
|
2.Сравнение вариантов по возможности автоматического выбора маршрута соединения
|
|
GDK-162 |
NBX100 |
Tele Vantage |
OmniPCX4400 |
(Паij)^(1/4) |
X(i)= |
S(i)*x(i) |
|
GDK-162 |
1.0000 |
0.3333 |
0.5 |
0.3333 |
0.485 |
0.11 |
0.99 |
|
NBX100 |
3 |
1.0000 |
2 |
1 |
1.565 |
0.351 |
0.994 |
|
Tele Vantage |
2 |
0.5 |
1.0000 |
0.5 |
0.841 |
0.188 |
1.034 |
|
OmniPCX4400 |
3 |
1 |
2 |
1.0000 |
1.565 |
0.351 |
0.994 |
|
|
9 |
2.8333 |
5.5 |
2.8333 |
4.456 |
1 |
4.012 |
|
|
S1= |
S2= |
S3= |
S4= |
SU= |
|
lmax= |
|
|
g =0.9 |
a =0.004 |
b=0.0044 |
|
|
|
|
3.Сравнение вариантов по возможности наращивания системы
|
|
GDK-162 |
NBX100 |
Tele Vantage |
OmniPCX4400 |
(Паij)^(1/4) |
X(i)= |
S(i)*x(i) |
|
GDK-162 |
1.0000 |
0.3333 |
1 |
0.25 |
0.537 |
0.112 |
1.008 |
|
NBX100 |
3 |
1.0000 |
3 |
1 |
1.732 |
0.36 |
0.96 |
|
Tele Vantage |
1 |
0.3333 |
1.0000 |
0.25 |
0.537 |
0.112 |
1.008 |
|
OmniPCX4400 |
4 |
1 |
4 |
1.0000 |
2 |
0.416 |
1.04 |
|
|
9 |
2.6666 |
9 |
2.5 |
4.806 |
1 |
4.016 |
|
|
S1= |
S2= |
S3= |
S4= |
SU= |
|
lmax= |
|
|
g = 0.9 |
a = 0.0053 |
b= 0.0059 |
|
|
|
|
Приоритет локальных критериев по функциональным возможностям
|
|
Сервисные функции |
Возможность автоматического выбора маршрута соединения |
Возможность наращивания системы |
(Паij)^(1/4) |
X(i)= |
S(i)*x(i) |
|
Сервисные функции |
1.0000 |
0.5 |
0.333 |
0.55 |
0.168 |
1.006 |
|
Возможность автоматического выбора маршрута соединения |
2 |
1.0000 |
2 |
1.587 |
0.484 |
0.967 |
|
Возможность наращивания системы |
3 |
0.5 |
1.0000 |
1.145 |
0.349 |
1.612 |
|
|
6 |
2 |
3.333 |
3.282 |
1 |
3.136 |
|
|
g = 0.58 |
|
a = 0.067 |
b= 0.11 |
|
|
II. Сравнение вариантов по техническим характеристикам
1. Надежность
|
|
GDK-162 |
NBX100 |
Tele Vantage |
OmniPCX4400 |
(Паij)^(1/4) |
X(i)= |
S(i)*x(i) |
|
GDK-162 |
1.0000 |
0.5 |
1 |
0.3333 |
0.639 |
0.144 |
1.008 |
|
NBX100 |
2 |
1.0000 |
2 |
1 |
1.414 |
0.32 |
0.96 |
|
Tele Vantage |
1 |
0.5 |
1.0000 |
0.3333 |
0.639 |
0.144 |
1.008 |
|
OmniPCX4400 |
3 |
1 |
3 |
1.0000 |
1.732 |
0.392 |
1.045 |
|
|
7 |
3 |
7 |
2.6666 |
4.424 |
1 |
4.021 |
|
|
S1= |
S2= |
S3= |
S4= |
SU= |
|
lmax= |
|
|
g = 0.9 |
a = 0.007 |
b= 0.0078 |
|
|
|
|
2. Возможность использования недорогих соединительных линий между офисами (Voice-over-IP)
|
|
GDK-162 |
NBX100 |
Tele Vantage |
OmniPCX4400 |
(Паij)^(1/4) |
X(i)= |
S(i)*x(i) |
|
GDK-162 |
1.0000 |
0.5 |
1 |
0.5 |
0.707 |
0.165 |
0.99 |
|
NBX100 |
2 |
1.0000 |
2 |
2 |
1.682 |
0.393 |
0.9825 |
|
Tele Vantage |
1 |
0.5 |
1.0000 |
0.5 |
0.707 |
0.165 |
0.99 |
|
OmniPCX4400 |
2 |
0.5 |
2 |
1.0000 |
1.189 |
0.277 |
1.108 |
|
|
6 |
2.5 |
6 |
4 |
4.285 |
1 |
4.071 |
|
|
S1= |
S2= |
S3= |
S4= |
SU= |
|
lmax= |
|
|
g = 0.9 |
a = 0.0237 |
b= 0.0263 |
|
|
|
|
3. Количество портов
|
|
GDK-162 |
NBX100 |
Tele Vantage |
OmniPCX4400 |
(Паij)^(1/4) |
X(i)= |
S(i)*x(i) |
|
GDK-162 |
1.0000 |
2 |
0.5 |
0.2 |
0.669 |
0.122 |
1.037 |
|
NBX100 |
0.5 |
1.0000 |
0.333 |
0.2 |
0.427 |
0.078 |
0.858 |
|
Tele Vantage |
2 |
3 |
1.0000 |
0.2 |
1.047 |
0.191 |
1.305 |
|
OmniPCX4400 |
5 |
5 |
5 |
1.0000 |
3.344 |
0.609 |
0.974 |
|
|
8.5 |
11 |
6.833 |
1.6 |
5.487 |
1 |
4.174 |
|
|
S1= |
S2= |
S3= |
S4= |
SU= |
|
lmax= |
|
|
g = 0.9 |
a = 0.058 |
b= 0.064 |
|
|
|
|
Приоритет локальных критериев по техническим характеристикам
|
|
Надежность |
Возможность использования недорогих соединительных линий между офисами (Voice-over-IP) |
Количество портов |
(Паij)^(1/4) |
X(i)= |
S(i)*x(i) |
|
Надежность |
1.0000 |
3 |
4 |
2.289 |
0.625 |
0.99 |
|
Возможность использования недорогих соединительных линий между офисами (Voice-over-IP) |
0.333 |
1.0000 |
2 |
0.874 |
0.238 |
1.073 |
|
Количество портов |
0.250 |
0.5000 |
1.0000 |
0.5 |
0.137 |
0.956 |
|
|
1.583 |
4.5 |
7 |
3.663 |
1 |
3.018 |
|
|
S1= |
S2= |
S3= |
SU= |
|
lmax= |
|
|
g = 0.58 |
|
a = 0.009 |
b= 0.016 |
|
|
III. Сравнение вариантов по экономическому критерию
1. Стоимость порта
|
|
GDK-162 |
NBX100 |
Tele Vantage |
OmniPCX4400 |
(Паij)^(1/4) |
X(i)= |
S(i)*x(i) |
|
GDK-162 |
1.0000 |
2 |
6 |
9 |
3.224 |
0.531 |
0.944 |
|
NBX100 |
0.5 |
1.0000 |
5 |
7 |
2.045 |
0.337 |
1.127 |
|
Tele Vantage |
0.167 |
0.2 |
1.0000 |
2 |
0.508 |
0.083 |
1.038 |
|
OmniPCX4400 |
0.111 |
0.143 |
0.5 |
1.0000 |
0.298 |
0.049 |
0.931 |
|
|
1.778 |
3.343 |
12.5 |
19 |
6.075 |
1 |
4.04 |
|
|
S1= |
S2= |
S3= |
S4= |
SU= |
|
lmax= |
|
|
g = 0.9 |
a = 0.013 |
b= 0.014 |
|
|
|
|
2. Стоимость обслуживания
|
|
GDK-162 |
NBX100 |
Tele Vantage |
OmniPCX4400 |
(Паij)^(1/4) |
X(i)= |
S(i)*x(i) |
|
GDK-162 |
1.0000 |
0.5 |
2 |
5 |
1.495 |
0.288 |
1.066 |
|
NBX100 |
2 |
1.0000 |
3 |
7 |
2.546 |
0.49 |
0.968 |
|
Tele Vantage |
0.5 |
0.333 |
1.0000 |
3 |
0.841 |
0.162 |
1.026 |
|
OmniPCX4400 |
0.2 |
0.143 |
0.333 |
1.0000 |
0.312 |
0.06 |
0.96 |
|
|
3.7 |
1.976 |
6.333 |
16 |
5.194 |
1 |
4.02 |
|
|
S1= |
S2= |
S3= |
S4= |
SU= |
|
lmax= |
|
|
g = 0.9 |
a = 0.0067 |
b= 0.0074 |
|
|
|
|
3. Стоимость установки
|
|
GDK-162 |
NBX100 |
Tele Vantage |
OmniPCX4400 |
(Паij)^(1/4) |
X(i)= |
S(i)*x(i) |
|
GDK-162 |
1.0000 |
0.5 |
0.5 |
2 |
0.841 |
0.189 |
1.04 |
|
NBX100 |
2 |
1.0000 |
1 |
3 |
1.565 |
0.351 |
0.994 |
|
Tele Vantage |
2 |
1 |
1.0000 |
3 |
1.565 |
0.351 |
0.994 |
|
OmniPCX4400 |
0.5 |
0.333 |
0.333 |
1.0000 |
0.485 |
0.109 |
0.981 |
|
|
5.5 |
2.833 |
2.833 |
9 |
4.456 |
1 |
4.009 |
|
|
S1= |
S2= |
S3= |
S4= |
SU= |
|
lmax= |
|
|
g = 0.9 |
a = 0.003 |
b= 0.0033 |
|
|
|
|
Приоритет локальных критериев по экономическому критерию
|
|
Стоимость порта |
Стоимость обслуживания |
Стоимость установки |
(Паij)^(1/4) |
X(i)= |
S(i)*x(i) |
|
Стоимость порта |
1.0000 |
6 |
5 |
3.107 |
0.722 |
0.986 |
|
Стоимость обслуживания |
0.167 |
1.0000 |
3 |
0.794 |
0.184 |
1.352 |
|
Стоимость установки |
0.2 |
0.333 |
1.0000 |
0.405 |
0.094 |
0.847 |
|
|
1.367 |
7.333 |
9 |
4.306 |
1 |
3.185 |
|
|
S1= |
S2= |
S3= |
SU= |
|
lmax= |
|
|
g = 0.58 |
|
a = 0.093 |
b= 0.16 |
|
|
Сравнение критериев по значимости
|
|
Функциональные возможности |
Технические характеристики |
Экономический критерий |
(Паij)^(1/4) |
X(i)= |
S(i)*x(i) |
|
Функциональные возможности |
1.0000 |
0.250 |
0.5 |
0.5 |
0.149 |
1.046 |
|
Технические характеристики |
4 |
1.0000 |
0.5 |
1.26 |
0.376 |
1.223 |
|
Экономический критерий |
2 |
2 |
1.0000 |
1.587 |
0.474 |
0.948 |
|
|
7 |
3.250 |
2 |
3.347 |
1 |
3.217 |
|
|
S1= |
S2= |
S3= |
SU= |
|
lmax= |
|
|
g = 0.58 |
|
a = 0.109 |
|
b= 0.187 |
|
Вывод
- Сравнение вариантов по функциональным возможностям:
|
|
Сервисные функции |
Возможность автоматического выбора маршрута соединения |
Возможность наращивания системы |
Итого |
|
GDK-162 |
0.437766 |
0.437766 |
0.44788 |
1.323412 |
|
NBX100 |
1.408 |
1.408 |
1.448 |
4.264 |
|
Tele Vantage |
0.759 |
0.759 |
0.44788 |
1.96588 |
|
OmniPCX4400 |
1.408 |
1.408 |
1.672 |
4.488 |
- Сравнение вариантов по техническим характеристикам:
|
|
Надежность |
Возможность использования недорогих соединительных линий между офисами (Voice-over-IP) |
Количество портов |
Итого |
|
GDK-162 |
0.578536 |
0.665 |
0.4953 |
1.738836 |
|
NBX100 |
1.288 |
1.607 |
0.324403 |
3.219403 |
|
Tele Vantage |
0.578536 |
0.665 |
0.7908 |
2.034336 |
|
OmniPCX4400 |
1.576 |
1.1335 |
2.564 |
5.2735 |
- Сравнение вариантов по экономическому критерию:
|
|
Стоимость порта |
Стоимость обслуживания |
Стоимость установки |
Итого |
|
GDK-162 |
2.144 |
1.157 |
0.758 |
4.059 |
|
NBX100 |
1.3605 |
1.972 |
1.407 |
4.7395 |
|
Tele Vantage |
0.337077 |
0.64917 |
1.407 |
2.393247 |
|
OmniPCX4400 |
0.197632 |
0.241616 |
0.437266 |
0.876514 |
Итого сумма по критериям соответственно:
|
|
Сравнение вариантов по функц. возможностям |
Сравнение вариантов по техн. характеристикам |
Сравнение вариантов по экон. критерию |
Итого |
|
GDK-162 |
1.323412 |
1.738836 |
4.059 |
7.121248 |
|
NBX100 |
4.264 |
3.219403 |
4.7395 |
12.222903 |
|
Tele Vantage |
1.96588 |
2.034336 |
2.393247 |
6.393463 |
|
OmniPCX4400 |
4.488 |
5.2735 |
0.876514 |
10.638014 |
По итогам выбора методом иерархий выбрана система бизнесс-телефонии NBX®100 Communications System
2.3. Многофункциональная, удобная система бизнес-телефонии для развивающихся компаний и филиалов предприятий
Развивающимся компаниям необходима доступная, универсальная телекоммуникационная платформа, сочетающая безупречное качество телефонных услуг и широкие функциональные возможности с простотой эксплуатации и обслуживания, которых так не хватает традиционным телефонным системам.
|
|
Всем этим требованиям отвечает 3Com® NBX® 100 Communications System — единственная в мире надежная система бизнес-телефонии на базе локальной или территориально-распределенной сети (LAN/WAN). Система NBX 100 предоставляет организациям малого и среднего размера и филиалам крупных компаний разнообразные средства обработки звонков, голосовую связь высокого качества и все преимущества локальной сети Ethernet в рамках одной интегрированной сети.
Объединяя передачу речи и данных в одной сетевой инфраструктуре, система NBX 100 избавляет заказчика от необходимости устанавливать две отдельные системы для голоса и данных. Это повышает масштабируемость, упрощает администрирование и существенно снижает совокупную стоимость владения. Организация может увеличить количество узлов сети с 1 до 200, установив, в том числе, до 100 входящих линий соединения с центральным офисом, не производя радикальной замены оборудования. При этом расширение сети можно осуществлять поэтапно, путем подключения к ней удаленных офисов, а также удаленных и работающих на дому сотрудников.
Благодаря тому, что система NBX 100 поддерживает основанные на стандартах QoS средства управления качеством обслуживания, в том числе IEEE 802.1p/Q, IP Type of Service (TOS) и утвержденный IETF стандарт DiffServ, компании-владельцы могут управлять приоритетами и передачей голосового трафика и данных в локальной и распределенной сети, обеспечивая идеальное качество речевой связи в масштабах всего предприятия.
2.3.1. Ключевые преимущества и особенности системы.
Ключевые преимущества
Расширенные функциональные возможности. Все модели имеют традиционные функции коммутации, гибридной и офисной АТС, а также встроенные средства голосовой почты, несколько многоуровневых автосекретарей, функции составления отчетов о звонках (Call Detail Reporting), планирования соединений (Dial Plan), возможность организации и управления группами последовательного поиска (hunt groups) и группами дозвона (calling groups), интеграции электронной и голосовой почты (унифицированный обмен сообщениями), выбора режима в зависимости от времени суток, а также автоматического выбора маршрута соединения (Automatic Route Selection ARS).
Простота использования. Интеллектуальный телефонный аппарат оснащен удобными функциями, в частности функцией громкоговорящей связи; заранее запрограммированными режимами конференц-связи, переключения звонка, повторного набора и удержания линии; нажатием одной клавиши обеспечивает доступ к голосовой почте и запрограммированным номерам ускоренного дозвона; имеет телефонный справочник с ЖК-индикатором и программируемыми клавишами; а также программируемые пользователем клавиши.
Удобство управления. Сотрудники компании могут добавлять, перемещать и удалять абонентов, а также изменять настройки телефонной системы без помощи технических специалистов и обращения в сервисную службу. Система имеет простой графический интерфейс администрирования, доступный из любой точки сети через любой стандартный Web-браузер.
Доступная цена, Возможность наращивания. Система допускает наращивание от 1 до 200 линий/станций без радикальной замены аппаратуры. Кроме тoго, по мере роста требований к передаче данных и речи компания может увеличить мощность и расширить функциональные возможности сети, используя решения 3Com для локальных и территориально-распределенных сетей (LAN/WAN).
Интегрированная платформа
Объединяя передачу речи и данных в рамках единой инфраструктуры на основе локальной сети Ethernet, система 3Com NBX 100 не просто устраняет необходимость дублирования кабельной проводки. Компании, не имеющие локальной сети, получают возможность пользоваться всеми преимуществами сетевых технологий, включая совместный доступ к файлам, электронной почте и принтерам, а также возможность использования общего подключения к Internet для всей компании.
Многообещающие преимущества. Создавая единую сетевую инфраструктуру для передачи голоса и данных, система NBX 100 предоставляет целый ряд преимуществ, значительно превосходящих возможности традиционных офисных АТС. Например, в отличие от офисных АТС, имеющих специализированные порты для подключения линий, NBX 100 позволяет заказчику выбирать тип кабеля, среды передачи и сетевых устройств в соответствии со своими потребностями и финансовыми возможностями. Заказчик может также расширять свою локальную сеть, соединяя между собой удаленные здания с помощью новых технологий, например, с помощью беспроводной связи. Владелец системы NBX 100 может подключить к сети новых абонентов, даже если они находятся на расстоянии в тысячи километров.
Высокая готовность и надежность. Система 3Com NBX 100 Communications System имеет уровень надежности 99.99% - то есть на 1000 часов работы приходится всего 1 минута возможного простоя. Несмотря на то, что система NBX 100 использует общие с сетью передачи данных коммутаторы и концентраторы, она функционирует независимо от компьютеров, серверов и сетевых операционных систем. Это означает, что телефонная система будет продолжать работать даже в случае отказа сетевого сервера. Поскольку система NBX 100 представляет собой открытую, основанную на стандартах платформу, она может работать с любыми имеющимися настольными ПК, серверами, а также концентраторами, коммутаторами и маршрутизаторами Ethernet.
Простота администрирования и полная управляемость
В недавнем прошлом предприятия малого и среднего размера и филиалы крупных компаний были вынуждены ради экономии средств применять офисные АТС низшего класса, зачастую жертвуя функциональными возможностями ради цены и снижения административных расходов. Это ставило их в невыгодное положение, так как информационное оснащение компании определяет скорость реакции на запросы клиентов, продуктивность работы и эффективность взаимодействия с поставщиками и партнерами. Система NBX 100 устраняет этот недостаток, в том числе благодаря перечисленным ниже возможностям.
Простота администрирования. В системе 3Com NBX 100 Communications System управление телефонной сетью возлагается непосредственно на администраторов и пользователей. Администратор получает в свое распоряжение утилиту NBX NetSet™ - революционное в своей простоте средство управления всей системой в целом. Утилита NetSet позволяет осуществлять все рутинные операции по администрированию через стандартный Web-браузер, например Netscape Navigator или Microsoft Internet Explorer. После минимального обучения любой пользователь может самостоятельно добавлять к системе новых абонентов и изменять настройки системы в целом за считанные минуты. Чтобы добавить нового абонента, достаточно просто подключить телефонный аппарат NBX 100 и установить несколько настроек в меню. Так как бизнес-телефон NBX 100 представляет собой интеллектуальное устройство, способное идентифицировать себя в сети, пользователи могут легко перемещаться с одного рабочего места на другое в пределах сети компании. Далее, поскольку администрирование осуществляется через Web-интерфейс, администратор может изменять настройки системы с любого ПК, подключенного к сети, в том числе и с удаленного компьютера.
Автоматический выбор маршрута соединения (ARS) минимизирует затраты и повышает эффективность. Неограниченное использование телефонов может быть причиной возникновения значительных расходов для растущей компании. В системе NBX 100 эта проблема решается благодаря применению детального плана соединений (Dial Plan), позволяющего выбирать маршруты соединений в зависимости от 32768 параметров ARS. Это гарантирует, что каждое соединение будет выполнено наиболее экономичным способом. Когда абонент звонит по телефону, система определяет, разрешено ли ему выполнять звонок данного типа. Если звонок разрешен, система анализирует номер с учетом правил, установленных планом соединений, и мгновенно направляет соединение на подходящую линию - канал T1/E1, местную аналоговую линию или канал H.323 (по технологии Voiceover-IP через корпоративную магистральную распределенную сеть).
Составление отчетов о звонках (Call Detail Reporting). В дополнение к плану соединений система NBX 100 дает возможность контролировать затраты, позволяя пользователям присваивать звонкам коды учета, в том числе в ходе соединения, и затем контролировать использование телефонов средствами CDR. Например, если специалисту юридической фирмы звонит клиент, сотрудник может нажать функциональную клавишу и ввести в систему учетный номер клиента для последующей регистрации и выставления счета.
Функция составления отчетов о звонках (CDR) позволяет отслеживать использование телефонов и составлять отчеты.
Выбор режима в зависимости от времени суток. Компания-владелец может запрограммировать для системы NBX 100 до четырех различных режимов работы в зависимости от времени суток. Каждому из этих режимов - например, "Открыто", "Закрыто", "Обед", "Другое" - можно сопоставить определенное время дня. Для каждого режима предусмотрен свой тип голосового приветствия автосекретаря и маршрут переадресации звонков. Хотя режимы обслуживания устанавливаются автоматически, их можно отменить вручную. Например, секретарь приемной может в любой момент одним нажатием кнопки переключить систему в режим "Обед", и все звонки будут перенаправляться на рабочее место второго секретаря.
Удобство работы пользователей
Система 3Com NBX 100 Communications System отличается максимальной простотой с точки зрения пользователя. Запрограммированные кнопки позволяют легко переходить в режим конференц-связи, переводить звонки, повторно набирать номер и удерживать линию. Одно нажатие кнопки обеспечивает доступ к услугам голосовой почты, ускоренному набору и переадресации на голосовую почту. Все эти возможности дополняются двухстрочным алфавитно-цифровым дисплеем, на который выводится дополнительная информация, в том числе номер вызывающего абонента. Чтобы позвонить другому внутреннему абоненту, достаточно найти его имя в телефонном справочнике на ЖК-дисплее и нажать программируемую клавишу. Каждый бизнес-телефон NBX 100 имеет встроенную систему громкоговорящей связи и функцию Hands-Free. Программируемые клавиши позволяют пользователю настроить телефон в соответствии со своими потребностями.
Гибкие возможности подключения пользователей. В большинстве компаний существует потребность в подключении к сетям передачи голоса и данных аналоговых устройств - факсимильных аппаратов, оборудования для громкоговорящей связи и т. д. Именно поэтому система NBX 100, помимо бизнес-телефона NBX 100, поддерживает целый ряд других устройств. Сотрудники офиса могут пользоваться головной гарнитурой, подключенной к компьютеру, и ПК-телефоном NBX pcXset. Специалисты внутренних технических служб и занятые администраторы могут покидать свое рабочее место, оставаясь на связи благодаря обычным беспроводным телефонным аппаратам. Ради экономии средств в общественных местах, например буфетах или холлах, можно устанавливать недорогие аналоговые телефонные аппараты. Все эти и другие аналоговые устройства легко подключаются к системе NBX 100 через адаптер NBX Analog Adapter или плату Analog Terminal Card.
2.3.2. Связь для малого офиса, филиала или сотрудников, работающих на дому
3Com NBX 100 Communications System - идеальное средство для реализации полного спектра телефонных услуг бизнес-класса в организациях, имеющих офисы малого размера, удаленные офисы или сотрудников, работающих на дому. Система NBX 100 избавляет от необходимости устанавливать в каждом удаленном офисе собственную офисную АТС. Вместо этого в удаленном офисе можно установить бизнес-телефоны NBX 100, подключив их к маршрутизатору 3Com, например OfficeConnect® LAN Modem, и соединяться с системой NBX 100 центрального офиса через канал WAN. Помимо снижения затрат и упрощения администрирования, такая конфигурация обеспечивает сотрудникам удаленного офиса полноценный доступ к сети передачи данных, телефонным службам и системам обмена сообщениями центрального офиса. Аналогичным образом работающие на дому сотрудники могут подключаться к центральному офису по каналу виртуальной сети (VPN), получая доступ к телефонным услугам и голосовой почте в реальном времени.
Связь между центральным и удаленными офисами
Система 3Com NBX 100 Communications System позволяет организациям, имеющим дополнительные офисы, пользоваться недорогими высококачественными услугами Voice-over-IP, используя приложение-шлюз 3Com NBX ConneXtions H.323. Это позволяет отказаться от дорогостоящих соединительных линий между офисами и перенести телефонные соединения в пределах компании в магистральную сеть передачи данных, получив тем самым дополнительную отдачу от средств, вложенных в создание распределенной сети передачи данных. Благодаря системе NBX 100 компания может перейти во всех офисах на одну стандартную платформу бизнес-телефонии независимо от технологии, используемой в каналах WAN - будь то ISDN, ATM, T1/E1, Frame Relay, xDSL, кабельные модемы или беспроводная технология Ethernet. Система NBX 100 также поддерживает протокол IGMP (IP multicasting), что позволяет обеспечить голосовую связь высокого качества при подключении домашних офисов или филиалов через загруженную локальную или территотиально-распределенную сеть.

2.3.3.Оборудование 3COM NBX100
Телефонный аппарат NBX 100 Business Telephone
Бизнес-телефон 3Com NBX 100 выполнен в виде
обычного многоканального телефонного аппарата с удобными расширенными функциями
и возможностями, вызываемыми одним нажатием кнопки. Аппараты выпускаются
угольно-серого и белого цветов. Стандартный набор функций бизнес-телефона NBX
100 включает: Встроенную систему громкоговорящей связи с функцией ответа в
режиме Hands-Free Двухстрочный дисплей с поддержкой определения номера Предварительно
запрограммированные функции, включая конференц-связь, перевод звонка, повторный
набор и удержание линии Доступ одним нажатием кнопки к голосовой почте (чтение
сообщений) 18 программируемых кнопок, настраиваемых администратором и/или
пользователем, например для ускоренного набора ЖК-дисплей (2 строки x 16
символов) Телефонный справочник с набором номера через ЖК-дисплей с помощью
программируемых кнопок Перевод всех звонков на голосовую почту одним нажатием
кнопки Порт концентратора для подключения компьютера к локальной сети Система
громкоговорящей связи с кнопкой отключения звука Кнопки регулирования громкости
Пульт секретаря
Приставка
3Com NBX 100 DSS/BLF Adjunct, предназначенная для более крупных офисов,
позволяет централизованно управлять звонками в пределах всей организации. Пульт
оператора имеет 50 кнопок и клавишу Shift, что позволяет поддерживать до 100
функций или устройств. Стандартный набор функций пульта включает:
- 50 программируемых кнопок со cветодиодными индикаторами
- 2-уровневую программируемую память с клавишей Shift
- 4 дополнительные программируемые кнопки для часто используемых функций, например передачи звонка, удержания вызова или конференц-связи
- Стандартный порт локальной сети 10BASE-T
Набор программируемых функций включает:
- Поддержку режима прямого дозвона (Direct Station Select DSS)
- Индикатор "занято" для каждой добавочной линии
- Поддержку перевода звонка "вслепую" и с предупреждением
- Индикаторы состояния линий центрального офиса
- Ускоренный набор - как персональный, так и системный
- Зоны удержания звонков
- Зоны персонального вызова
Программное обеспечение NBX pcXset PC Telephone
Клиентское
программное обеспечение 3Com NBX pcXset PC Telephone дает пользователю ПК
доступ ко всем функциям и возможностям системы NBX 100 непосредственно через
компьютер без применения отдельного телефонного аппарата. Пользователи ПО
pcXset могут осуществлять вызовы и принимать звонки непосредственно с ПК,
используя наушники или головную гарнитуру, а также клавиатуру и мышь
компьютера. ПО NBX pcXset идеально подходит для центров обработки телефонных
звонков и неформальных групп телефонного обслуживания, таких как отделы сбыта
или сервиса. В дополнение к функциям и пользовательскому интерфейсу бизнес-телефона
NBX 100, ПО pcXset позволяет использовать "горячие клавиши" для
быстрой обработки звонков. ПО NBX pcXset работает на компьютерах с операционной
системой Windows 95/98/NT.
Адаптер NBX Analog
Adapter
- Позволяет подключить к системе NBX 100 до 4-ех аналоговых устройств (например, обычный или беспроводной телефон, факсимильный аппарат группы 3, внешний сигнализатор или звонок)
- Имеет 4 стандартных порта RJ-11
- Имеет порт концентратора для подключения дополнительного устройства с интерфейсом Ethernet, например, принтера, компьютера или аппарата NBX
- Поддерживает функции переключения, отбоя и перевода звонка
- Имеет один стандартный порт RJ-45
- Поддерживается утилитой администрирования NetSet и средствами APX
Шлюз NBX ConneXtions Gateway
NBX ConneXions представляет собой шлюз протокола H.323, позволяющий подключать систему NBX 100 через IP-сеть к другим телефонным системам, оснащенным шлюзами H.323. Позволяя соединять несколько телефонных систем через сеть передачи данных, шлюз NBX ConneXtions предоставляет те же преимущества, что и традиционные соединительные телефонные линии и внешние добавочные линии, но при значительно меньших затратах. В отличие от других шлюзов H.323, NBX ConneXtions позволяет передавать звуковые сигналы через локальную или территориально-распределенную сеть в виде аудиопакетов, устраняя тем самым многократные преобразования из цифровой в аналоговую форму по ходу передачи данных. К шлюзу могут подключаться другие клиентские системы H.323, превращаясь в расширения системы NBX 100.
2.3.4. Программное обеспечение 3COM NBX100
Система обработки сообщений Advanced PowerMail eXchange (APX) Messaging
В состав каждой NBX 100 Communications System входит система обработки сообщений APX - комплекс мощных программных средств для ответа на звонки, маршрутизации вызовов и обработки сообщений. Помимо стандартных телефонных функций обмена сообщениями, система APX поддерживает унифицированную обработку сообщений по стандарту IMAP4. Унифицированная обработка сообщений предусматривает использование единого универсального почтового ящика для голосовой и электронной почты, что позволяет пользователям лучше организовать свою работу, правильнее распределять приоритеты и быстро отвечать на срочные вызовы. Пользователи системы могут просматривать, воспроизводить и сохранять голосовые сообщения на своих ПК, используя любую совместимую с протоколом IMAP4 программу электронной почты, например Microsoft Outlook Express или Eudora. Система NBX 100 поставляется с четырьмя портами автосекретарей и бесплатно прилагаемой памятью для речевых сообщений емкостью 30 минут. Система APX допускает расширение до 12 портов автосекретарей и до 80 часов памяти путем простого обновления программного обеспечения.
С помощью стандартного приложения, например Microsoft Outlook Express, голосовыми сообщениями можно управлять точно так же, как сообщениями электронной почты.
Модуль Automated Attendant Module
Модуль автосекретаря APX Automated Attendant может отвечать на все входящие звонки или использоваться в качестве резерва в случае, если на звонок некому ответить. Звонящий абонент может осуществлять подключение по добавочному номеру, имени или отделу. Пользователь может создать несколько приветствий, рассчитанных на разное время суток, и активизировать каждое из них в соответствующие часы. Модуль Automated Attendant обеспечивает быстрый ответ на входящие звонки или их передачу в систему без задержек. Благодаря одновременной обработке до 12 звонков он позволяет развивающейся компании эффективно справляться с меняющимся потоком звонков, не увеличивая количество сотрудников. Модуль поддерживает несколько многоуровневых автосекретарей, что позволяет задавать различные голосовые приветствия и способы маршрутизации для звонков, адресованных разным пользователями или отделам, в соответствии с их потребностями. Характеристики модуля: До 99 голосовых приветствий автосекретаря на одну систему До 20 подменю для каждого автосекретаря До 12 пунктов меню в каждом меню автосекретаря Программирование дерева автосекретаря через утилиту NetSet Настройка и тестирование конфигурации с помощью NetSet для проверки перед вводом в действие. Утилита NetSet делает настройку и управление многочисленными многоуровневыми автосекретарями простой и быстрой.
Модуль Voice Messaging Module
Модуль голосовых сообщений APX Messaging module отвечает на звонки личным приветствием в случае, если соответствующий абонент отсутствует. Администратор может настроить систему таким образом, чтобы вызовы перенаправлялись на систему APX немедленно или с задержкой от 2 до 8 гудков.
Извещение о наличии сообщений и чтение сообщений. Система APX извещает пользователей о наличии сообщений с помощью индикатора "Message Waiting" на аппарате NBX 100; при этом на дисплее аппарата отображается количество новых сообщений. Для считывания сообщений в системе NBX 100 достаточно нажать кнопку "MSG" и ввести пароль.
Извещение отсутствующих абонентов и считывание
сообщений. Если пользователь отсутствует в офисе, APX Messaging может
направлять извещения о новых сообщениях на пейджер, обычный или сотовый телефон,-где
бы пользователь ни находился. Считывание сообщений
возможно
с любого телефона с тональным набором.
Система NBX 100 известит вас о новых сообщениях по альтернативному телефонному номеру или по пейджеру.
Пользовательские настройки. Система APX Messaging позволяет каждому пользователю самостоятельно выбирать способ обработки звонков и сообщений. Пользователи могут создавать собственные почтовые ящики, записывать личные приветствия, а также управлять новыми и имеющимися папками для сообщений, используя функции "Сохранить", "Удалить", "Ответить", "Ответить всем", "Переслать" пометки "Личное" и/или "Срочно". Кроме того, пользователи могут использовать для адресации сообщений имена, добавочные телефонные номера или списки рассылки, что обеспечивает быстроту и удобство обмена сообщениями между сотрудниками.
2.3.5. Система NBX® 100

1. Шасси системы NBX 100
Шасси системы NBX 100 представляет собой компактный блок с 6 разъемами расширения, который можно монтировать в стандартную 19-дюймовую компьютерную стойку или на стену. В состав шасси входят: Средства поддержки подключения к локальной и распределенной сети, встроенные средства расширения Кабель питания Разъем для соединения нескольких шасси в цепочку для упрощения расширения Универсальные слоты расширения, обеспечивающие удобное расширение системы
2. NBX Network Call Processor
- Обрабатывает все входящие и исходящие соединения
- Управляет комплексом встроенных приложений: системой APX Voice Messaging, автосекретарями и встроенным Web-сервером
- Поддерживает до 200 линий/станций, но не более 100 входящих линий и 150 внутренних линий
- Стандартные разъемы для Music on Hold (MOH) и внешней системы персонального вызова
- Порт 10BASE-T типа MDI-X
- Разъем расширения 10BASE2 BNC
- COM-порт для диагностики
- Встроенный интерфейс CTI на основе TAPI 2.X
- Функция отчета о звонках (Call detail reporting)
- Поддерживает унифицированную обработку сообщений (IMAP4)
3. Плата NBX Analog Line Card (4 порта)
- Позволяет подключить до 4 линий телефонной сети общего пользования через 4 разъема RJ-11
- Поддерживает услугу определения номера (заказывается отдельно у местного телефонного оператора; данная услуга поддерживается не всеми операторами телефонной связи)
- Имеет порт для обхода при отказе питания
4. Плата NBX 10BASE-T Hub Card (8 портов)
- Имеет 8 некоммутируемых портов 10 Мбит/с Ethernet, интерфейсы RJ-45
- Имеет один разъем 10BASE2 BNC для последовательного соединения нескольких шасси
5. Плата NBX Digital Line Card (1 порт)
- Позволяет подключить к системе NBX 100 линию T1/E1
- Поддерживает 24 голосовых канала DSO (T1/E1)
- Система поддерживает до 3 плат адаптеров T1/E1
6. Плата NBX Analog Terminal Card (4 порта)
- Позволяет подключить к системе NBX 100 до 4 аналоговых устройств (стандартных или беспроводных телефонов, факсимильных аппаратов группы 3, входов внешней сигнализации или звонка внешней системы персонального вызова)
- Поддерживает функции голосовой почты, извещение отсутствующих абонентов, группы последовательного поиска или дозвона
- Имеет 4 стандартных порта RJ-11
- Поддерживает функции переключения, отбоя и перевода звонка
- Поддерживается утилитой администрирования NetSet и средствами APX
Утилита NetSet Administration Utility
Возможности администратора. Утилита NetSet помогает администратору пройти процедуру модификации системы шаг за шагом. Из одного экранного меню администратор может задать добавочный номер пользователя, класс обслуживания, добавочный номер APX, отображение кнопок, привилегии звонка и настройки системы CDR. Утилита NetSet также позволяет администратору: Создавать и изменять до 99 номеров ускоренного набора, действующих для всей системы Добавлять или изменять режимы пульта секретаря, определяя, кто должен отвечать на звонки Добавлять или изменять настройки переадресации вызовов таким образом, чтобы обеспечить своевременный ответ на все звонки Изменять настройки системы Выполнять поиск и устранение неисправностей Программировать систему APX Создавать группы последовательного поиска и группы дозвона Программировать модуль автосекретаря
Возможности пользователя. Утилита NetSet позволяет пользователю изменять настройки телефона в соответствии со своими потребностями через обычный Web-браузер. Пользователь может:
- Задавать и изменять пароли
- Назначать и изменять номера ускоренного дозвона, вызываемые одной кнопкой
- Создавать и изменять до 100 персональных номеров ускоренного дозвона
- Назначать и изменять функции индикаторов "Занято"
- Выбирать одну из 9 мелодий звонка или "беззвучный звонок"
- Просматривать внутренний телефонный справочник с добавочными номерами других пользователей
- Настраивать систему извещения о новых сообщениях, включая извещение на пейджер и сотовый телефон
- Изменять направления переадресации вызовов
- Просматривать онлайновое руководство пользователя
Благодаря единому интерфейсу и наличию онлайновой документации утилита администрирования NBX 100 NetSet делает процесс управления телефонной системой удобным и простым как для администратора, так и для пользователей.
С момента своего представления в 1998 г. система 3Com NBX 100 Communications System была удостоена многочисленных наград и многократно признана лучшим продуктом в своем классе - прессой, экспертами, и, что важнее всего, клиентами 3Com. Система NBX 100 Communications System сертифицирована как коммутационная система, гибридная система и офисная АТС. Система NBX 100 Communications System - не просто технически совершенное решение, - это решение, проверенное временем. Сегодня система NBX 100 Communications System помогает работать и развиваться тысячам компаний, благодаря чему 3Com Corporation стала самым перспективным поставщиком офисных АТС в отрасли
2.3.6. Спецификации
Размеры и масса Шасси с 6 слотами: Высота: 264.7 мм Ширина: 431.8 мм Глубина: 225.6 мм Масса: 10 кг (пустое), 13.6 кг (с установленными модулями)
Требования к питанию Шасси: Канада и США: 230/115 В переменного тока, 60/50 Гц, 2/4 A
Рассеиваемая мощность Шасси:200 Вт (максимум) Телефон: 5 Вт (максимум)
Условия эксплуатации Рабочая температура: от 0 до 40°C Температура хранения: от - 40° до +70°C Относительная влажность: от 5% до 85 % без конденсации
Конфигурация Общее количество устройств: 200 портов (максимум), не более 100 входящих линий и 150 внутренних линий Количество линий T1/E1: 3 платы (максимум)
Стандарты - подключение к сети Аналоговые линии и линии T1/E1: Национальный стандарт FCC Part 68, Канада CS03
Безопасность UL/CUL 1950 3rd Edition Электромагнитное излучение Шасси: FCC Part 15 Class A Телефон: FCC Part 15 Class B
2.4. Модем WATSON 4 MultiSpeed
WATSON 4 MultiSpeed обеспечивает наилучшее сочетание дальности работы и скорости передачи по сравнению с другими технологиями xDSL. Это идеальный выбор компаний, оперативно предоставляющих новые услуги связи и не имеющих возможности кабельного строительства.

WATSON 4 MultiSpeed наилучшее решение для предоставления высокоскоростных услуг передачи данных и телефонии по одной медной паре. Используется экономичная технология MultiSpeed:
· Для предоставления услуг передачи данных и высокоскоростного доступа к сети Internet.
· Для замены дорогостоящих выделенных линий.
· Для реализации высокоскоростного доступа к сетям IP/FR/ATM.
· Для связи офисных АТС с сетями ПД по одной медной паре.
Для таких приложений, как доступ к услугам передачи данных и телефонии, функция "MULTISERVICE" позволит соединить офисную АТС и сеть передачи данных по ОДНОЙ медной паре используя только модемы WATSON 4, исключая необходимость установки мультиплексора.
Технические характеристики
|
Скорость передачи информации |
144, 272, 400, 528, 784, 1040, 1552, 2064 кБит/с |
|
Линейное входное сопротивление |
135 Ом |
|
Уровень выходного сигнала |
7,5 -13,5 дБм |
|
Тип линейного разъема |
RJ-45 |
|
Дальность передачи |
|
|
диаметр жилы 0,5 мм |
8.8 км - 128 кбит/с |
|
|
7.9 км - 384 кбит/с |
|
|
5.9 км - 1024 кбит/с |
|
|
5.1 км - 1536 кбит/с |
|
|
4.7 км - 2048 кбит/с |
|
диаметр жилы 1,2 мм |
|
|
|
52 км - 128 кбит/с |
|
|
17 км - 2048 кбит/с |
|
Климатические условия |
|
|
Климатическое исполнение |
ETS 300 019 |
|
Рабочая температура |
-5°...+ 55°C |
|
Относительная влажность |
5... 95% |
|
Электробезопасность |
EN60950, EN55022 |
|
Защита от перенапряжений |
K20/K21 |
Использование xDSL модемов Watson4
В последнее время у корпоративных пользователей и операторов связи все чаще возникает потребность в организации высокоскоростных цифровых каналов передачи информации. Однако на славном пути развертывания цифровых коммуникаций стоит одно достаточно серьезное препятствие – устаревшая кабельная инфраструктура. Имеющиеся кабели закладывались много лет назад и обладают, мягко говоря, не лучшими параметрами для передачи по ним цифровых потоков с высокой скоростью. Свою роль в этом играют и узкая полоса пропускания, и наличие существенных шумов в линии, и небольшой диаметр жилы кабеля. Добавим факторы, вызванные старением кабеля, например, низкое сопротивление изоляции, и получится довольно-таки неутешительная картина. Именно по этим причинам интерес к xDSL-модемам в последние годы постоянно растет. Задача, которая ставится перед этими модемами, очень сложна – обеспечить качественную передачу данных, с минимальным количеством ошибок и наименьшими задержками по уже имеющимся кабелям. При этом желательно достичь максимальной скорости.
Одним из устройств, отвечающих заданным требованиям при весьма доступной цене, является продукт швейцарской фирмы Schmid Telecommunications – модемы серии Watson4. Watson4 – это семейство модемов для выделенных линий, работающих по технологии MSDSL (Multi Speed Digital Subscriber Line), причем работают они на одной медной паре. Линейка модемов Watson4 содержит как модели с синхронными интерфейсами для подключения к конечному оборудованию – G.703 (balanced, unbalanced), V.35, X.21, так и модель с интерфейсом 10BaseT (Ethernet) и встроенным мостом (bridge). Разнообразие интерфейсов позволяет использовать модемы Watson4 в самых различных решениях – для соединения локальных сетей между собой, для подключения учрежденческой АТС к сети общего пользования, для организации абонентских выносов и т.д.
Технология MSDSL
Для передачи информации по выделенной линии модемы Watson используют уникальную технологию, основанную на CAP-модуляции, регулировании уровня приема и передачи, адаптивную систему согласования с линией.
Аббревиатура MSDSL расшифровывается как Multi Speed Digital Subscriber Line. В зависимости от состояния линии, может быть выбрана одна из нескольких скоростей передачи информации – от 144 Кбит/сек до 2048 Кбит/сек. При этом изменяется не только скорость передачи, но также метод модуляции и мощность передатчика (см. табл. 1).
Отметим, что метод модуляции CAP (Carrierless Amplitude and Phase Modulation — амплитудно-фазовая модуляция с подавлением несущей) обладает довольно невысокими энергетическими показателями и, кроме того, имеет узкую полосу сигнала. Эти два обстоятельства позволяют работать на медных кабелях с большим коэффициентом использования пар без существенных взаимных помех. Даже на высоких скоростях передачи информации модемы Watson не создают помех аппаратуре уплотнения, работающей по соседним в кабеле парам. Далеко не все модемы могут похвастаться таким качеством.
Конструктивное исполнение
Модемы выпускаются в трех типах корпусов – настольный, Rack-mount - для установки в 19-ти дюймовый коммуникационный шкаф, для установки в кассету. О последнем варианте стоит сказать подробнее. Кассета для установки модемов позволяет организовать узел доступа высокой емкости. Кассета снабжена модулем управления и единым блоком питания для всех модемов, позволяет подключить резервный источник питания, и имеет 14 платомест для установки модемов. Таким образом, одна кассета может использоваться для установки до 14 модемов с единым надежным электропитанием и управлением.
Электропитание
Модемы Watson4 имеют несколько вариантов электропитания: по переменному току (220В) и по постоянному току (60В или 48В). Последний вариант часто используется в крупных узлах связи. Кроме того, в линейке модемов Watson4 существует две модификации модемов – LTU и NTU. Отличаются они тем, что первый может подавать питание в линию, а второй может получать питание с линии. Естественно, для того, чтобы блок NTU мог получать питание с линии, на другом конце выделенной линии должен быть установлен модуль LTU (см. рис 1).

Рис 1. Схема питания модулей LTU/NTU
Управление
Управление – одна из самых сильных сторон модемов серии Watson4. Каждый модем снабжен коммуникационным портом RS-232C для подключения терминала или компьютера с эмулятором терминала. Система меню позволяет управлять множеством параметров модема, причем с терминала главного (Master) модема можно изменять параметры удаленного модема (Slave).
Примеры использования модемов Watson4
Организация подключения двух УАТС
Для связи между собой двух УАТС (PBX - Private Branch Exchange), как правило, используются интерфейс G.703 с кадрами G.704 (поток Е1). В этом случае для организации такой связи могут быть выбраны модемы Watson4 с интерфейсом G.703 на коаксиальный кабель или витую пару. Схема соединений приведена на рис 3.

Рис 2. Межстанционное соединение с помощью модемов Watson4
Организация WAN-соединения между сетями
Модемы Watson4 позволяют организовать соединение между двумя локальными сетями. Такое решение применимо в том случае, если расстояние между сетями велико и нет возможности организовать выделенную линию между ними – например, сети расположены в разных городах. В этом случае используются 4 устройства серии Watson4: два - с портами Ethernet и два - с портами, например, G.703. Схема соединений приведена на рис 3.

Рис 3. Схема соединений при организации WAN-соединения. .
Соединение двух локальных сетей по выделенной линии
Модемы серии Watson4 позволяют организовать высокоэффективное соединение между двумя локальными сетями. Для этих целей существует модель со встроенным мостом (bridge). Мост производит анализ MAC-адресов фреймов Ethernet и если определяет, что адрес назначения принадлежит локальному сегменту, то не передает фрейм через медленный канал.

Рис 4. Организация связи между ЛВС с помощью модемов Watson4.
Поскольку в настоящее время при организации локальных сетей довольно часто применяются коммутаторы, то дополнительная фильтрация внутрисегментного трафика зачастую не нужна. Программное обеспечение модема Watson4 позволяет отключить эту функцию. В этом случае встроенный в модем мост прозрачно пропускает через себя все пакеты, поступающие на порт Ethernet (см. рис 5).

Рис 5. Подключение модемов Watson к коммутаторам Ethernet.
В таком режиме становятся доступными некоторые "хитрые" варианты использования модемов. Одним из таких вариантов является организация резервных каналов с помощью протокола STP (Spanning Tree Protocol). Пример приведен на рис. 6.

Рис 6. Организация резервного канала с помощью модема Watson.
.
2.5. Параболическая антеннa Wire Grid для клиентских станций Moдель QLP CA130094
Приемопередающая сегментопараболическая антенна используется для создания радиоканалов на больших расстояниях (до 50 км). Две таких антенны, подключенных непосредственно к сетевым радиокартам или радиобриджам, и направленных друг на друга, обеспечивают дальность связи до 20 км. С усилителями (с каждой стороны) дальность связи возрастает до 50 км.

|
2.6. Всенаправленные антенны Mobile Mark для узлов доступа
( базовых станций )

Всенаправленные антенны производства Mobile Mark ( Великобритания ) серии OD являются одними из самых лучших в своем классе. Высокую популярность этим антеннам принесли надежность и долговечность, стабильность характеристик на протяжении всего периода их эксплуатации ( до 5 лет ). Современные технологии производства этих антенн , относящихся к классу коллинеарных , позволили получить высокие энергетические параметры при малых габаритах , весе и относительно невысокой цене.
Выбор 9 или 12 дБ антенны зависит от удаления обслуживаемых клиентских станций. Антенна OD-9 имеет большую, нежели у 12 дБ антенны ширину диаграммы направленности в вертикальной плоскости и может быть полезна для обслуживания близко расположенных клиентов ( удаление до 1 км ) при достаточно высокой точке расположения базовой станции, например на горе или телебашне. При использовании антенн в закрытых помещениях ( ангарах, складах, офисе) OD-9 может дать больше энергетики для отдаленных закрытых стенами помещений, нежели OD-12, за счет более равномерного рассеивания (переотражения) радиосигнала в вертикальной плоскости.
|
Ширина диаграммы направлености в вертикальной плоскости OD12-2400 |
9 |
|
Ширина диаграммы направлености в вертикальной плоскости OD9-2400 |
14 |
|
Рабочий диапазон частот |
2400-2500 MHz |
|
Коэффициент усиления в рабочей полосе OD12/OD9 |
12dBi/9 dBi |
|
Сопротивление |
50 OHMS |
|
Разьем "N" типа |
Female |
|
Поляризация |
Вертикальная |
|
Вес антенны OD12/OD9 |
1,5кг. /1 кг. |
|
Размер OD12/OD9 |
109x2,5 /69x2,5 (cm) |
|
Производство |
Великобритания |
2.7. Расчет дальности беспроводных каналов диапазона 2,4 ГГц
Порядок расчета
Возможны 5 различных вариантов радиолиний, представленные в первой таблице. Для выбранного варианта вычисляется значение усиления линии Y (значения переменных, входящих в формулы, представлены в таблицах) и по графику определяется дальность.

Порядок расчета: вычисляется Y и по графику определяется дальность.
|
Вариант радиолинии |
Формула для расчета Y |
|
1. Со штатными антеннами без усилителей. |
Pпрд + Gпрд + Gпрм - Pmin |
|
2. С внешними антеннами без усилителей. |
Pпрд - Jпрд + Gпрд + Gпрм - Jпрм - Pmin |
|
3. С внешними антеннами и передающими усилителями. |
Pус + Gпрд + Gпрм - Jпрм - Pmin |
|
4. С внешними антеннами и приемными усилителями. |
Pпрд - Jпрд + Gпрд + Gпрм - Pmin (при Kпрм > Jпрм) |
|
5. С внешними антеннами и приемо-передающими усилителями. |
Pус+ Gпрд + Gпрм - Pmin (при Kпрм > Jпрм) |
В нашем случае вариант радиолинии с внешними антеннами без усилителей. Исходные данные для расчета Y
1. Выходная мощность Pпрд и коэффициенты усиления штатных антенн Gпрд, Gпрм.
|
Аппаратура |
Pпрд, дБм |
Gпрд, Gпрм, дБ (штатные антенны) |
||
|
Радиомосты Cisco-AIR, серия 350 |
20 |
2 |
|
|
|
Aironet 4800, Cisco-AIR 340 |
15 |
2 |
|
|
|
ORiNOCO (WaveLAN Turbo 11) |
15 |
0 |
|
|
|
BreezeNET DS.11 |
18 |
2 |
|
|
|
BreezeNET PRO.11D, BreezeLink-121 |
15 |
нет |
|
|
|
BreezeACCESS unlimited |
33 |
16 |
|
|
У нас выходная мощность BU-DS.11D: Pпрд =24 дБм.
2. Реальная чувствительность приемника Pmin дБм при BER=1e-5 (зависит от скорости передачи)
|
Аппаратура |
Скорость передачи, Мбит/с |
|||
|
1 |
2 |
5,5 |
11 |
|
|
Cisco-AIR 350 |
-94 |
-91 |
-89 |
-85 |
|
Cisco AIR 340, BR500, 4800 |
-90 |
-88 |
-87 |
-84 |
|
ORiNOCO |
-94 |
-91 |
-87 |
-82 |
|
BreezeNET DS.11 |
-89 |
-86 |
-84 |
-80 |
|
Аппаратура |
Скорость передачи, Мбит/с |
||
|
1 |
2 |
3 |
|
|
BreezeNET PRO.11D, BreezeLink-121 |
-86 |
-78 |
-72 |
|
BreezeACCESS |
-81 |
-75 |
-67 |
В нашем случае для BreezeNET DS.11 реальная чувствительность приемника:
Pmin = -84 дБм
3. Затухание в кабеле Jпрд, Jпрмопределяется как произведение погонного затухания на длину кабеля.
|
Тип кабеля |
дБ/м |
|
РК50-17-51 |
0.09 |
|
РК50-7-58 |
0.22 |
|
Belden 9913 |
0.24 |
Используется кабель РК50-17-51, следовательно погонное затухание составляет 0,09 дБ/м. В расчете на одну антенну берется 15 м кабеля. Получаем, что затухание в кабеле: Jпрд=0,09*15=1,35 дБ; Jпрм =0,09*15=1,35 дБ.
4. Коэффициент усиления антенны G
|
Шифр |
Тип антенны |
G, дБ |
ДН гор, гр |
ДН вер, гр |
|
OD12-2400 |
Колинеарная |
12 |
360 |
7 |
|
OD9-2400 |
Колинеарная |
9 |
360 |
17 |
|
OD6-2400 |
Колинеарная |
6 |
360 |
60 |
|
GRAD/12-2401 |
Колинеарная |
12 |
360 |
7 |
|
GRAD/11-2400 |
Колинеарная |
11 |
360 |
7 |
|
GRAD/7-2402 |
Колинеарная |
7 |
360 |
30 |
|
IMAG5-2400 |
Автомобильная на магнитном основании |
5 |
360 |
~70 |
|
GRAD/3-2403 |
Колинеарная |
3 |
360 |
60 |
|
RM3-2400 |
Диполь - автомобильная |
2,5 |
360 |
~180 |
|
TTOH/11 |
Всенаправленная с горизонтальной поляризацией |
11 |
360 |
7 |
|
OD12-2400/ODR12-Kit |
Колинеарная с отражателем |
14 |
180 |
7 |
|
GRAD/15-2487 |
Волноводно-щелевая |
13 |
90 |
18 |
|
OD9-2400/ODR9-Kit |
Колинеарная с отражателем |
11 |
180 |
14 |
|
GRAD/10-2486 |
Колинеарная с отражателем |
11 |
180 |
20 |
|
OD6-2400/ODR6-Kit |
Колинеарная с отражателем |
8 |
180 |
25 |
|
TTSH/14 |
Волноводно-щелевая с горизонтальной поляризацией |
14 |
90 |
12 |
|
TTSV/14 |
Волноводно-щелевая |
14 |
90 |
12 |
|
DC-CA/24-PGA |
Параболическая |
24 |
10 |
15 |
|
SCR14-2400 |
Уголковая |
14 |
35 |
44 |
|
SCR9-2400 |
Уголковая |
9 |
65 |
75 |
|
P7F-2400S |
Секторная плоская |
7 |
60 |
45 |
|
DS21 - 2400 |
Плоская антенная решетка |
21 |
8 |
15 |
|
DS16 - 2400 |
Плоская антенная решетка |
16 |
20 |
21 |
|
DS14 - 2400 |
Плоская антенная решетка+ встоенная грозозащита |
14 |
32 |
40 |
|
DS13 - 2400 |
Плоская антенная решетка |
13 |
38 |
40 |
|
DS10 - 2400 |
Плоская антенная решетка |
10 |
38 |
58 |
Коэффициент усиления антенны:
OD12-2400, Gпрд=12 дБи; CA130094, Gпрм=24 дБи.
5. Характеристики усилителей
|
Тип усилителя |
Выходная мощность, Pус, дБм |
КУ приемного усилителя, дБ |
|
МАНУС - 212-32 |
27 |
21 |
|
МАНУС - 212-4 |
20 |
16 |
|
МАНУС - 212-01B |
20 |
14 |
|
МАНУС -212-20B1 |
33 |
25 |
|
МАНУС -212-10FFZ |
30 |
20 |
|
MANUS -BT |
30 |
н/п |
|
MANUS -BR |
н/п |
20 |
У нас усилителей нет.
Подставляем данные в общую формулу для значения усиления линии и получаем:
Y =Pпрд - Jпрд + Gпрд + Gпрм - Jпрм - Pmin=24-1,35+12+24-1,35-(-84)=141,3 дБ
Y=141,3 соответсвует по графику дальности равной 17 км, что не противоречит расположению малых офисов относительно главного офиса. (3 малых офиса находятся от главного офиса на расстояниях в 15 км).
Высоту установки антенн при условии идеально гладкой Земли можно определить по следующему графику.

При расстоянии между малым офисом и главным офисом в 15 км получаем , что антенна главного офиса должна быть на высоте в 15 метров, а антенна малого офиса, с учетом того что препятствия не должны закрывать прямую видимость и с учетом того что Земля круглая, должна быть на высоте 5 метров.
Пояснение
Во-первых. Практически все радиооборудование беспроводных сетей, поступающее в Россию, работает в диапазоне частот 2,4- 2,4835 ГГц, что соответствует длине волны 12,5 см. Такие волны распространяются вдоль прямой линии, соединяющей антенны и называемой линией визирования. Из этого следует, что препятствия не должны закрывать линию визирования. Не следует забывать, что Земля круглая. Поэтому даже в степи, при абсолютно ровной поверхности, чтобы обеспечить прямую видимость, антенны необходимо поднимать.
Во-вторых. Необходимо обеспечить такие значения параметров радиолинии, чтобы мощность полезного сигнала на входе приемника была равна или немного превышала значение реальной чувствительности приемника. Если это условие не выполняется - радиолиния работать не будет. Если превышение слишком большое - увеличивается риск создания помех другим радиосредствам, работающим в том же диапазоне.
И в-третьих. Следует знать, что практически все расчеты в радиотехнике ведутся в децибелах. Для перевода в децибелы необходимо взять десятичный логарифм числа и умножить его на 10. Например, 1 000 000 будет равно 60 дБ, а 0,001 - -30 дБ. Преимущества использования децибелов состоят в том, что вместо умножения исходных чисел достаточно сложить их в децибелах, а для деления - вычесть из делимого делитель, также выраженные в децибелах. Еще одно преимущество - отсутствие необходимости написания большого количества нулей или использования показателей степени. И еще одна тонкость. Часто можно встретить не просто дБ, а, например - дБм, дБи и другие буквы после дБ. Что это означает? Означает ту единицу, по отношению к которой берется децибел. Так, дБм - это децибел к милливатту, т.е. исходное значение в милливаттах необходимо разделить на 1 милливатт и уже после этого вычислить значение в дБ. Это делается для того, чтобы избавиться от размерности и помнить, к какой единице измерения привязаны переменные.
Также крайне необходимо знать:
Знать необходимо энергетические параметры радиолинии, входящие в выражение для мощности полезного сигнала на входе приемника и реальную чувствительность приемника. Мощность полезного сигнала в точке приема определяется выражением

В этих выражениях используются следующие параметры радиолинии:
Pпрд - выходная мощность передатчика Оборудование беспроводных сетей обычно имеет выходную мощность в пределах от 8 до 20 дБм.
Gпрд и Gпрм - коэффициенты усиления передающей и приемной антенны. Какую антенну назначить передающей, а какую приемной - разницы нет. Коэффициенты усиления типовых антенн беспроводных сетей имеют значения от 2 до 24 дБи, т.е. децибел по отношению к коэффициенту усиления изотропной антенны, равномерно излучающей во всех направлениях с единичным усилением (0 дБ). Иногда производители не сообщают значения рассмотренных параметров, а указывают значение эквивалентной изотропно излучаемой мощности (ЭИИМ) - Equivalent Isotropic Radiated Power (EIRP). ЭИИМ есть произведение мощности передатчика на коэффициент усиления передающей антенны PпрдGпрд или сумма этих величин в децибелах.
l - длина волны. В рассматриваемых системах равна 0,125 м.
r - дальность передачи.
Lдоп - дополнительные потери, обусловленные целым комплексом причин, включая ослабление сигнала в соединительных разъемах, потери из-за несовпадения поляризации антенн и т.п. В рассматриваемых радиолиниях обычно полагают Lдоп = 10 дБ.
Z - запас помехоустойчивости к внешним помехам, величина которого определяется электромагнитной обстановкой в районе размещения радиолинии и обычно задается в пределах от 5 до 15 дБ.
Кроме этого, при использовании внешних антенн, подключаемых к радиооборудованию с помощью коаксиальных кабелей, необходимо знать длину кабелей и величину погонного затухания в них, выражаемого в дБ/м. Результирующее затухание в кабелях добавляется к величине Lдоп.
Реальную чувствительность приемника обозначают как Pmin, что соответствует физическому смыслу этого показателя, определяющего минимально необходимую для нормального приема мощность полезного сигнала на входе приемника. Величина этого параметра для приемников беспроводных сетей лежит в пределах от -94 до -67 дБм. Следует иметь в виду, что с увеличением скорости передачи реальная чувствительность ухудшается (численное значение Pmin увеличивается).
Для нашего случая значения таковы:
Рпрд=24 дБм; Gпрд=12 дБи; Gпрм=24 дБи; l=0,125 м; r=15000 м;
Lдоп=10 дБ, но учитывая величину погонного затухания в кабеле общей длиной 30 метров (это в расчете на 2 антенны сразу) при jпрм=0,09 дБ/м и jпрд=0,09 дБ/м, получаем: Lдоп=10+0,09*(15+15)=10+2,7=12,7 дБ; Z=5дБ.
Итак, мощность полезного сигнала в точке приема
определяется выражением:
![]()
Pпрм=24+12+24+20*lg(0,125)-20*lg(4*3,14)-20*lg(15000)-12,7-5=-81,26 дБ.
Необходимо сделать:
Во-первых. Рассчитать высоту подвеса антенн. Для ориентировочной оценки на ровном рельефе при одинаковой высоте антенн можно использовать простую формулу, учитывающую сферичность Земли и расстояние между антеннами. Высота подвеса антенн в метрах равна:

где r - расстояние между антеннами в километрах.
Когда одна антенна находится на уровне поверхности Земли, коэффициент 8,24 в формуле надо заменить на 4,12.
Если на трассе между антеннами есть неровности, необходимо построить профиль трассы с учетом сферичности Земли. Делается это так. По величине требуемой дальности r с помощью графика определяется величина подъема Земли в центре трассы и на лист бумаги наносятся три точки: с нулевой высотой на концах трассы и с высотой, полученной по графику, в центре трассы. Через эти точки строится дуга окружности, являющаясяя уровнем моря для построения трассы. На эту дугу в выбранном масштабе переносятся с топографической карты точки уровней высот. Полученные точки соединяются отрезками прямой, в результате получается профиль трассы, подобный изображенному на рис.1.
В нашем случае: h1=hпрд=15 м; h2=hпрм=5 м.
2.8. Рассчет пропускной способности глобальной сети.
Гилберт Хелд[1]
В случае с вычислительными сетями известный постулат "время - деньги" звучит так: "скорость влетает в копеечку". Как рассчитать необходимую скорость канала связи, исходя из параметров локальной сети?
1. Сдвиг по фазе.
Информационная структура, где две локальные сети соединены между собой каналом связи глобальной сети, больше похожа на систему очередей другого типа, именуемого одноканальной двухфазной системой. На Рис. 1 показана схема соединения двух локальных сетей при помощи мостов или маршрутизаторов. Обратите внимание, что для передачи кадра данных от одной локальной сети к другой он должен быть обслужен двумя устройствами (в данном случае двумя мостами или двумя маршрутизаторами), поэтому такая схема может быть описана в рамках одноканальной многофазной модели. (Описание потока данных от одной локальной сети к другой в рамках одноканальной многофазной модели является математически корректным, однако так ли уж необходимо работать именно в рамках такой модели? Ответить на этот вопрос помогает анализ потока данных от одной сети к другой.)
Наиболее узкое место информационного потока между двумя удаленными друг от друга локальными сетями - канал связи глобальной сети, пропускная способность которого обычно существенно меньше скорости работы локальной сети.
Представим себе, что рабочая станция сети передает кадр данных в сеть Ethernet. Передаваемый кадр вначале "путешествует" из сегмента сети к мосту или маршрутизатору с той скоростью, на которой работает сеть (4 или 16 Мбит/с). Попав в маршрутизатор или мост, кадр копируется из сети в буфер устройства, преобразуется в другой формат, а затем (при наличии свободного канала) передается через глобальную сеть со скоростью, гораздо меньшей, чем та, с которой кадр передавался из локальной сети на устройство маршрутизации. Если непосредственно перед текущим кадром на сетевое устройство попал другой кадр, то нашему кадру придется подождать (в буфере), до тех пор пока предыдущий кадр не будет обслужен. Время обслуживания текущего кадра зависит от того, сколько кадров пришло на сетевое устройство непосредственно перед текущим: чем больше таких кадров, тем дольше время ожидания.
Рассмотрим теперь, как выполняется обслуживание кадра на противоположном конце канала глобальной сети. Поступая из глобальной сети на мост/маршрутизатор, кадр преобразуется к формату локальной сети и передается в локальную сеть. Поскольку скорость передачи информации по глобальной сети всегда ниже скоростей передачи кадров в локальной, никаких очередей при таком обслуживании не возникает, стало быть основной вклад во время обслуживания кадра на втором мосте/маршрутизаторе вносит само устройство. И это лишь малая доля от времени задержки кадров на первом мосте/маршрутизаторе. Отсюда следует, что для описания двухточечных линий связи между локальными сетями можно спокойно использовать одноканальную однофазную модель.
2. Применение тории массового обслуживания.
Используя математический аппарат теории массового обслуживания, можно вычислить зависимость времени передачи кадров от скорости работы глобальной сети без подключения к реальным каналам. Такие вычисления позволяют ответить на множество вопросов относительно производительности сети; благодаря им становится понятным, каково среднее время задержки кадров на мосте/маршрутизаторе, как может повлиять на величину этих задержек рост скорости работы канала связи глобальной сети и при каких условиях рост скорости обмена информацией по каналам глобальной сети не приводит к существенному увеличению производительности моста/маршрутизатора.
Пример расчета:
Число станций – 500.
Число транзакций (кадров) от одной станции - 700
Режим работы круглосуточный (24 часа). В час наибольшей нагрузки передается 20% от всего числа передаваемых кадров.
Размер кадра 80 байт.
Итого в час через HUB проходит:
- При Гауссовском распределении N = 700 * 500 * 0.2 = 70000 кадров.
- При нормальном распределении N = 700 * 500 / 24 = 14583,3 кадра.
Скорость поступления кадров получается делением полученных чисел на 3600:
- При Гауссовском распределении 70000 / 3600 = 19,44 кадров в секунду.
- При нормальном распределении 14583,3 / 3600 = 4,05 кадров в секунду.
Для подсчета скорости обслуживания следует задаться определенным значением скорости работы глобальной сети. При этом совершенно неважно, насколько близка к оптимальной взятая в качестве начального приближения скорость обмена информацией по глобальной сети, поскольку все вычисления легко повторить для другого значения скорости. Для начала примем скорость обмена информацией равной 64000 бит/с. Тогда время, необходимое для передачи одного кадра длиной 80 байт, составит 0,01 секунды.
Ожидаемое время обслуживания равно 0,01 секунды, откуда получаем, что средняя скорость обслуживания (величина, обратная к ожидаемому времени обслуживания) составляет 100 кадров в секунду.
Из расчетов видно, что скорость обслуживания выше чем скорость поступления кадров, то есть данный канал справляется приходящим трафиком.
Степень использования технических возможностей обслуживающего устройства (P) в одноканальной однофазной системе можно определить, поделив среднюю скорость поступления заказов на среднюю скорость обслуживания.
- При Гауссовском распределении Р = 19,44 / 100 = 0,1944 = 19,44%.
- При нормальном распределении Р = 4,05 / 100 = 0,0405 = 4,05%.
Зная степень использования обслуживающего устройства, довольно легко определить вероятность отсутствия заказов (обслуживаемых кадров) в данный момент времени. Эта вероятность, обозначенная нами как P0, равна единице минус степень использования канала (P0 = 1 - P).
- При Гауссовском распределении Р0 = 1 - 0,1944 = 0,8066 = 80,66%.
- При нормальном распределении Р0 = 1 - 0,0405 = 0,9595 = 95,95%.
Получив некоторые сведения относительно степени использования обслуживающего устройства, выясним теперь, каким образом кадры скапливаются в очередях и как влияют связанные с этими очередями задержки на процесс передачи кадров от одной локальной сети к другой.
В теории массового обслуживания среднее число объектов (unit) в системе обычно обозначается L, а среднее число объектов в очереди - Lq. Для одноканальной однофазной системы, L равняется средней скорости поступления заказов, деленной на разность между средней скоростью обслуживания и скоростью поступления заказов.
- При Гауссовском распределении L = 19,44 / (100 – 19,44) = 0,2414.
- При нормальном распределении L = 4,05 / (100 – 4,05) = 0,0422.
Таким образом, в буфере маршрутизатора и линии связи в любой момент находится чуть больше 4 - 24% одного кадра. Чтобы определить среднее число объектов в очереди (Lq), перемножим степень использования обслуживающего устройства (P) на число объектов в системе (L).
- При Гауссовском распределении Lq = 0,2414 * 19,44 = 0,0469.
- При нормальном распределении Lq = 0,0422 * 4,05 = 0,00171.
Теория массового обслуживания позволяет рассчитать среднее время нахождения объекта в системе (W) и среднее время ожидания в очереди (Wq).
Среднее время нахождения в системе представляет собой величину, обратную разнице между скоростью обслуживания и скоростью поступления заказов. Подставив числа из нашего примера, найдем, что в данном случае каждый кадр проводит в системе в среднем:
- При Гауссовском распределении W = 1 / (100 - 19,44) = 0,0124с.
- При нормальном распределении W = 1 / (100 - 4,05) = 0,0104с.
Очереди в системе можно охарактеризовать еще одним параметром, а именно временем ожидания. В нашем случае значение Wq равно произведению времени ожидания в системе на степень использования обслуживающего устройства. Таким образом, для нашей сети:
- При Гауссовском распределении Wq = 0,0124 * 0,1944 = 0,00241с.
- При нормальном распределении Wq = 0,0104 * 0,0405 = 0,00042с.
Проведем аналогичные расчеты для каналов различной пропускной способности для Гауссовского распределения.
Таблица №1 - Варьирование пропускной способности глобальной сети.
|
Скорость линии (бит/с) |
|
19200 |
32000 |
64000 |
128000 |
256000 |
512000 |
|
Время передачи кадра, с |
|
0,033333 |
0,02 |
0,01 |
0,005 |
0,0025 |
0,00125 |
|
Средняя скорость обслуживания |
|
30 |
50 |
100 |
200 |
400 |
800 |
|
Степень использования канала |
P |
0,648148 |
0,3889 |
0,1944 |
0,097222 |
0,0486 |
0,02431 |
|
Вероятность отсутствия кадров в системе |
P0 = 1 - P |
0,351852 |
0,6111 |
0,8056 |
0,902778 |
0,9514 |
0,97569 |
|
Среднее число объектов (всего) |
L |
1,842105 |
0,6364 |
0,2414 |
0,107692 |
0,0511 |
0,02491 |
|
Среднее число объектов в очередях |
Lq = L * P |
1,193957 |
0,2475 |
0,0469 |
0,01047 |
0,0025 |
0,00061 |
|
Полное время ожидания |
W |
0,094737 |
0,0327 |
0,0124 |
0,005538 |
0,0026 |
0,00128 |
|
Время ожидания в очереди |
Wq = W * P |
0,061404 |
0,0127 |
0,0024 |
0,000538 |
0,0001 |
3,1E-05 |

Закономерное уменьшение выигрыша во времени ожидания по мере роста пропускной способности особенно хорошо видно при сравнении производительности глобальной сети для каналов с разной пропускной способностью. При увеличении пропускной способности канала связи выше четвертого уровня (128000 бит/с) вероятность отсутствия кадров в системе практически не растет.
Используя данный метод мы определили, что при Гауссовском распределении нагрузки на канал его скорость должна составлять 128 кбит/с. Время ожидания в очереди при этом составит 0,000538 сек, а время передачи по каналу связи в одну сторону - 0,005 сек. Степень использования канала 90%, а вероятность отсутствия кадров в системе – 10%. При этом в буфере обмена маршрутизатора в любой момент времени находится 0,5 % одного кадра.
Применительно к нашему варианту таблица варьирования пропускной способности глобальной сети выглядит следующим образом.
|
Занятие линии одним абонентом, часы |
|
1 |
1 |
1 |
1 |
1 |
1 |
1 |
|
Cкорость кодирования голоса, бит/с |
|
19800 |
19800 |
19800 |
19800 |
19800 |
19800 |
19800 |
|
Трафик от одного абонента в сутки, бит |
|
71280000 |
71280000 |
71280000 |
71280000 |
71280000 |
71280000 |
71280000 |
|
Средняя длина кадра, бит |
|
1200 |
1200 |
1200 |
1200 |
1200 |
1200 |
1200 |
|
Число кадров от одного абонента |
|
59400 |
59400 |
59400 |
59400 |
59400 |
59400 |
59400 |
|
Число абонентов |
|
18 |
18 |
18 |
18 |
18 |
18 |
18 |
|
Общее число кадров |
|
1069200 |
1069200 |
1069200 |
1069200 |
1069200 |
1069200 |
1069200 |
|
Процент от общего числа звонков |
|
50% |
50% |
50% |
50% |
50% |
50% |
50% |
|
Скорость поступления кадров |
|
148,5 |
148,5 |
148,5 |
148,5 |
148,5 |
148,5 |
148,5 |
|
Скорость линии (бит/с) |
|
2048000 |
4096000 |
8192000 |
16384000 |
32768000 |
65536000 |
131072000 |
|
Время передачи кадра, с |
|
0,0046875 |
0,0023438 |
0,0011719 |
0,0005859 |
0,000293 |
0,0001465 |
7,324E-05 |
|
Средняя скорость обслуживания |
|
213,33333 |
426,66667 |
853,33333 |
1706,6667 |
3413,3333 |
6826,6667 |
13653,333 |
|
Степень использования канала |
P |
0,6960938 |
0,3480469 |
0,1740234 |
0,0870117 |
0,0435059 |
0,0217529 |
0,0108765 |
|
Вероятность отсутствия кадров в системе |
P0 = 1 - P |
0,3039063 |
0,6519531 |
0,8259766 |
0,9129883 |
0,9564941 |
0,9782471 |
0,9891235 |
|
Среднее число объектов (всего) |
L |
2,2904884 |
0,5338526 |
0,2106881 |
0,0953043 |
0,0454847 |
0,0222366 |
0,0109961 |
|
Среднее число объектов в очередях |
Lq = L * P |
1,5943947 |
0,1858057 |
0,0366647 |
0,0082926 |
0,0019789 |
0,0004837 |
0,0001196 |
|
Полное время ожидания |
W |
0,0154242 |
0,003595 |
0,0014188 |
0,0006418 |
0,0003063 |
0,0001497 |
7,405E-05 |
|
Время ожидания в очереди |
Wq = W * P |
0,0107367 |
0,0012512 |
0,0002469 |
5,584E-05 |
1,333E-05 |
3,257E-06 |
8,054E-07 |
Полное время ожидания и время ожидания в очереди.
![]()

Степень использования канала P вероятность отсутствия кадров в системе P0.
![]()

Используя данный метод мы определили, что при Гауссовском распределении нагрузки на канал его скорость должна составлять 2048 кбит/с. Время ожидания в очереди при этом составит 0,0107367 сек, а время передачи по каналу связи в одну сторону - 0,0046875 сек. Степень использования канала 70%, а вероятность отсутствия кадров в системе – 30%.
Технологический раздел
3. Технологическая часть.
3.1. Организация рабочего места оператора IP–телефонии.
При организации рабочего места весьма важным фактором является рабочая поза работника, т.е. положение его корпуса, головы, рук и ног относительно. Так как работник работает сидя, ему необходимо обеспечить правильную и удобную посадку, что достигается устройством опоры для спины, рук, ног, правильной конструкцией сиденья, способствующей равномерному распределению массы тела.
Важным элементом рациональной планировки рабочего места является учет индивидуальных антропометрических и психофизиологических данных работающего.
В Санитарных нормах и правилах – СанНиП 2.2.2.542-96 даются общие требования к организации и оборудованию рабочих мест с ПЭВМ.
Конструкция рабочего стола должна обеспечивать оптимальное размещение на рабочей поверхности используемого оборудования с учётом его количества и конструктивных особенностей (размер ПЭВМ, клавиатуры и др.), характера выполняемой работы.
Высота рабочей поверхности стола должна регулироваться в пределах 680-800 мм; при отсутствии такой возможности высота рабочей поверхности стола для ПЭВМ, на основании которых рассчитываются конструктивные размеры, следует считать: ширину 800,1000,1200 и 1400мм, глубину 800 и 1000мм при нерегулируемой его высоте, равной 725мм.
Рабочий стол должен иметь пространство для постановки ног, которое составляет: высоту – не менее 600мм, ширину – не менее 500мм, глубину на уровне колен – не менее 450мм и на уровне вытянутых ног – не менее 650мм.
Конструкция рабочего стула (кресла) должна поддерживать рациональную рабочую позу при работе с ПЭВМ, позволять изменять позу с целью снижения статического напряжения мышц шейно – плечевой области и спины для предупреждения утомления.
Рабочий стул(кресло) должен быть подъёмно – поворотным и регулируемым по высоте и углам наклона сиденья и спинки, а также расстоянию спинки от переднего края сиденья.
Конструкция стула должна обеспечивать:
· Ширину и глубину поверхности сиденья не менее 400мм;
· Поверхность сиденья с закругленным передним краем;
· Регулировку высоты поверхности сиденья в пределах 400-550мм и углов наклона вперёд до 150 и назад до 50;
·
Высоту опорной поверхности спинки 300
мм, ширину – не менее 380мм и радиус кривизны горизонтальной
плоскости – 400мм;
·
Угол наклона спинки в вертикальной плоскости в
пределах 0
300;
· Регулировку расстояния спинки от переднего края сиденья в пределах 260-400мм;
· Стационарные или съёмные подлокотники длиной не менее 250мм и шириной 50-70мм;
·
Регулировку подлокотников по высоте над сиденьем
в пределах 230
30мм и внутреннего расстояния между подлокотниками в пределах
350-500мм.
Рабочее место должно быть оборудовано подставкой для ног имеющей ширину не менее 300мм, глубину не менее 400мм,регулировку по высоте в пределах до 150мм и по углу наклона опорной поверхности подставки до 200. Поверхность подставки должна быть рифленой и иметь по переднему краю бортик высотой 10мм.
Рабочие места должны быть оборудованы соответствующей мебелью, отвечающей наиболее комфортабельным условиям работы и требованиям физиологии, психологии и эстетики.
Планировкой рабочего места называют пространственное расположение основного и вспомогательного оборудования, оснастки и предметов труда, а также самого работающего, обеспечивающее рациональное выполнение трудовых движений и приёмов, благоприятные и безопасные условия труда.
На рисунке цифрами показано:
1. Урна;
2. Персональный компьютер;
3. Рабочий стол;
4. Мышка + коврик;
5. Журнал регистрации неисправностей;
6. Телефон;
7. Кресло.

|
1. Дверь;
2. IDU – блок;
3. Розетка (евростандарт);
4. Урна;
5. Персональный компьютер;
6. Стол письменный;
7. Мышка + коврик;
8. Журнал регистрации неисправностей;
9. Телефон;
10. Окно;
11. Шкаф;
12. Кресло.
3.2. Заземление
3.2.1. Требования к заземлению электрооборудования
Заземление телекоммуникационного оборудования должно выполняться с целью:
- защиты персонала от поражения электрическим током при повреждении изоляции;
- защиты оборудования от электростатических разрядов;
- защиты оборудования от воздействия электромагнитных помех.
Стойки, металлические кронштейны с изоляторами, антенные устройства ТВ, а также металлические части шкафов, кроссов, пультов и другие металлоконструкции оборудования устройств связи должны быть заземлены.. Металлические шкафы, каркасы и другие металлоконструкции, на которых установлено электрооборудование напряжением выше 42В переменного тока, должны иметь защитное зануление путем соединения с нулевой жилой электрической сети напряжением 380/220 В.
Величина сопротивления заземления оборудования должна соответствовать ГОСТ 464-79. Сопротивление заземления в общей точке не должно превышать значения 2 Ом в любое время года.
Рабочее заземление оборудования связи, сигнализации и диспетчеризации следует выполнять согласно техническим требованиям на это оборудование.
3.2.2. Расчет защитного заземления
Исходные данные:
Все оборудование здания питается от трехфазной сети, напряжением 380В с изолированной нейтралью. Общая мощность источников питания сети превышает 100 кВА. Здание имеет железобетонный фундамент на глинистом грунте. Площадь, ограниченная периметром здания 852000м2.
Расчет:
Поскольку питающая сеть не превышает 1000В, имеет изолированную нейтраль и мощность источников питания более 100кВА, в качестве нормативного сопротивления заземления берем Rн = 4 Ом.
В качестве естественного заземлителя используем фундамент здания. Для нашего случая удельное сопротивление грунта (глина) rr = 40 Ом * м; коэффициенты сезонности, зависящие от климатической зоны СНГ Yв = 1,5 – 1,8 при расчете вертикальных электродов и Yг = 3,5 – 4,5 при расчете сопротивления горизонтальных электродов) принимаем равными: Yв = 1,65 Yг = 4.
Удельное электрическое сопротивление грунта в зоне размещения заземлителя определяется по формуле:
r = rr * Yг = 40 * 4 = 160 Ом * м
Сопротивление естественного заземлителя для железобетонного фундамента:
Re = 0,5 r / S1/2 = 0,5 *160/2001/2 = 5,66 Ом,
что превышает Rн = 4 Ом.
Следовательно необходим искусственный заземлитель, подключенный параллельно естественному, с допустимым сопротивлением:
Rн.доп. = Re * Rн /(Re - Rн) = 5б7 *4 /(5,7 – 4) = 13,4 Ом.
Искусственный заземлитель располагаем на пониженном и увлажненном участке территории предприятия на расстоянии 30 м от здания. Заземлитель выполняем как систему расположенных в ряд вертикальных электродов в виде стержней длиной l = 2,6м из угловой стали с шириной полки b = 0,05м, верхние концы которых лежат на глубине t0 = 0,7м и соединены полосой связи из стали, сечением 5 х 40мм.
Для вертикальных электродов, удельное сопротивление грунта в зоне размещения заземлителей:
r = rв * Yв = 40 * 1,65 = 66 Ом * м
Сопротивление одиночного вертикального электрода определим:
Rэ = 0,366 * rlg 2l/d + 0,5lg (4t+l)/(4t-l)) / l = 20,32 Ом
где l>>d; t = 0,5l = t0; l, d соответственно длина и диаметр электрода;
для электрода из уголковой стали значение d = 0,95b.
Для определения количества вертикальных электродов n находим предварительно произведение коэффициента использования вертикальных электродов hэна их количество:
hэ* n = Rэ /Rн.доп. = 1,52
Задавшись расстоянием a между электродами в виде соотношения a/l, находим n (для a/l = 2; n = 2).
Находим длину L горизонтального проводника, соединяющего вертикальные электроды. При расположении в ряд:
L = 1,05 * (n-1)* a = 1,05*(2-1)*5,2 = 5,46м
при расположении по контуру,
L = 1,05 * n* a = 1,05*2*5,2 = 10,92м
Сопротивление горизонтальной полосы при L>>4 t0 >>c,
Rn = (0,366 * r / L)lg 2L2/c* t0 = 17,39 Ом.
где с – ширина полосы, равная диаметру вертикального электрода.
При a/l = 2 и n = 2 находим hэ=0,91 и hn=0,94. Тогда результирующее сопротивление искусственного заземлителя:
Rи = Rэ * Rn /(Rэ * hэ + Rn * hn *n) = 6,96 Ом.
Полученное значение не превышает допустимого сопротивления
Rн.доп=13,4 Ом.
Поскольку искусственный заземлитель достаточно удален от естественного, можно пренебречь влиянием их полей растекания тока. Тогда общее сопротивление всего комплекса заземления, состоящего из естественного и искусственного заземлителей:
Rз = Rи * Rе /(Rи + Rе) = 3,12 Ом, что меньше Rн = 4 Ом.
Организационно –
экономический
раздел
4. Организационно – экономический раздел.
Спецификация 3Com NBX 100 Communications System. Таблица №1
Наименование |
Ед. |
Цена, $ |
Кол-во |
Сумма, $ |
Сумма, руб |
Шасси NBX - APX30M/4P |
шт |
554,75 |
1 |
554,75 |
16642,5 |
|
NBX Call Processor |
шт |
1032,98 |
1 |
1032,98 |
30989,4 |
|
Плата NBX Analog Line Card |
шт |
856,99 |
1 |
856,99 |
25709,7 |
|
Плата NBX 10BASE-T Hub Card |
шт |
290,76 |
1 |
290,76 |
8722,8 |
|
Плата NBX Digital Line Card |
шт |
3596,29 |
1 |
3596,29 |
107888,7 |
|
Плата NBX Analog Terminal Card |
шт |
994,72 |
1 |
994,72 |
29841,6 |
|
|
|
|
Всего: |
7326,49 |
219794,7 |
Спецификация системы связи для малого офиса №1
Таблица №2
|
Наименование |
Ед. |
Цена, $ |
Кол-во |
Сумма, $ |
Сумма, руб |
|
Система 3COM NBX 100 |
|
|
|
|
|
|
3Com NBX 100 |
шт |
7326,49 |
1 |
7326,49 |
219794,7 |
|
NBX Analog Adapter |
шт |
312,19 |
1 |
312,19 |
9365,7 |
|
Коммутатор Office Connect Switch 5 |
шт |
77,5 |
1 |
77,5 |
2325 |
|
Маршрутизатор Office Connect Remote 612 ADSL Router |
шт |
278 |
1 |
278 |
8340 |
|
Бизнес-телефон NBX Business Telephone |
шт |
290,51 |
2 |
581,02 |
17430,6 |
|
Беспроводной канал |
|
|
|
|
|
|
RD-DS.11D. Ethernet мост, абонентская станция, 11Мбит/с, 2400-2480 МГц, +24 dBm, погодозащитное исполнение –40С…+60С |
шт |
2300,00 |
1 |
2300,00 |
69000 |
|
CA 130094. Направленная антенна, +24 dBi, разъем N-male |
шт |
195,00 |
1 |
195,00 |
5850 |
|
CBL 30. Кабель соединения внешнего и внутреннего блоков. |
м |
4,23 |
15 |
63,45 |
1903,5 |
|
Монтажный комплект |
|
|
|
|
|
|
Разъем RG11 |
шт |
0,33 |
8 |
2,64 |
79,2 |
|
Разъем RG45 |
шт |
0,5 |
16 |
8 |
240 |
|
Кабель категории 5 |
м |
0,23 |
305 |
71,16 |
2135 |
|
Клипсы |
шт |
0,016 |
600 |
10 |
300 |
|
|
|
|
Всего: |
11225,45 |
336763,5 |
.
Спецификация системы связи для малого офиса №2
Таблица №3
|
Наименование |
Ед. |
Цена, $ |
Кол-во |
Сумма, $ |
Сумма, руб |
|
Система 3COM NBX 100 |
|
|
|
|
|
|
3Com NBX 100 |
шт |
7326,49 |
1 |
7326,49 |
219794,7 |
|
NBX Analog Adapter |
шт |
312,19 |
1 |
312,19 |
9365,7 |
|
Коммутатор Office Connect Switch 5 |
шт |
77,5 |
1 |
77,5 |
2325 |
|
Маршрутизатор Office Connect Remote 612 ADSL Router |
шт |
278 |
1 |
278 |
8340 |
|
Бизнес-телефон NBX Business Telephone |
шт |
290,51 |
2 |
581,02 |
17430,6 |
|
Беспроводной канал |
|
|
|
|
|
|
RD-DS.11D. Ethernet мост, абонентская станция, 11Мбит/с, 2400-2480 МГц, +24 dBm, погодозащитное исполнение –40С…+60С |
шт |
2300,00 |
1 |
2300,00 |
69000 |
|
CA 130094. Направленная антенна, +24 dBi, разъем N-male |
шт |
195,00 |
1 |
195,00 |
5850 |
|
CBL 30. Кабель соединения внешнего и внутреннего блоков. |
м |
4,23 |
15 |
63,45 |
1903,5 |
|
Монтажный комплект |
|
|
|
|
|
|
Разъем RG11 |
шт |
0,33 |
8 |
2,64 |
79,2 |
|
Разъем RG45 |
шт |
0,5 |
16 |
8 |
240 |
|
Кабель категории 5 |
м |
0,23 |
305 |
71,16 |
2135 |
|
Клипсы |
шт |
0,016 |
600 |
10 |
300 |
|
|
|
|
Всего: |
11225,45 |
336763,5 |
Спецификация системы связи для малого офиса №3
Таблица №4
|
Наименование |
Ед. |
Цена, $ |
Кол-во |
Сумма, $ |
Сумма, руб |
|
Система 3COM NBX 100 |
|
|
|
|
|
|
3Com NBX 100 |
шт |
7326,49 |
1 |
7326,49 |
219794,7 |
|
NBX Analog Adapter |
шт |
312,19 |
1 |
312,19 |
9365,7 |
|
Коммутатор Office Connect Switch 5 |
шт |
77,5 |
1 |
77,5 |
2325 |
|
Маршрутизатор Office Connect Remote 612 ADSL Router |
шт |
278 |
1 |
278 |
8340 |
|
Бизнес-телефон NBX Business Telephone |
шт |
290,51 |
2 |
581,02 |
17430,6 |
|
Доступ по медному кабелю |
|
|
|
|
|
|
Модем Watson4 |
шт |
1100 |
2 |
2200 |
66000 |
|
Монтажный комплект |
|
|
|
|
|
|
Разъем RG11 |
шт |
0,33 |
8 |
2,64 |
79,2 |
|
Разъем RG45 |
шт |
0,5 |
18 |
9 |
270 |
|
Кабель категории 5 |
м |
0,23 |
305 |
71,16 |
2135 |
|
Клипсы |
шт |
0,016 |
600 |
10 |
300 |
|
|
|
|
Всего: |
10868 |
326040 |
Спецификация системы связи для малого офиса №4
Таблица №5
|
Наименование |
Ед. |
Цена, $ |
Кол-во |
Сумма, $ |
Сумма, руб |
|
Система 3COM NBX 100 |
|
|
|
|
|
|
3Com NBX 100 |
шт |
7326,49 |
1 |
7326,49 |
219794,7 |
|
NBX Analog Adapter |
шт |
312,19 |
1 |
312,19 |
9365,7 |
|
Коммутатор Office Connect Switch 5 |
шт |
77,5 |
1 |
77,5 |
2325 |
|
Маршрутизатор Office Connect Remote 612 ADSL Router |
шт |
278 |
1 |
278 |
8340 |
|
Бизнес-телефон NBX Business Telephone |
шт |
290,51 |
2 |
581,02 |
17430,6 |
|
Доступ по медному кабелю |
|
|
|
|
|
|
Модем Watson4 |
шт |
1100 |
2 |
2200 |
66000 |
|
Монтажный комплект |
|
|
|
|
|
|
Разъем RG11 |
шт |
0,33 |
8 |
2,64 |
79,2 |
|
Разъем RG45 |
шт |
0,5 |
18 |
9 |
270 |
|
Кабель категории 5 |
м |
0,23 |
305 |
71,16 |
2135 |
|
Клипсы |
шт |
0,016 |
600 |
10 |
300 |
|
|
|
|
Всего: |
10868 |
326040 |
Спецификация системы связи для малого офиса №5
Таблица №6
|
Наименование |
Ед. |
Цена, $ |
Кол-во |
Сумма, $ |
Сумма, руб |
|
Система 3COM NBX 100 |
|
|
|
|
|
|
3Com NBX 100 |
шт |
7326,49 |
1 |
7326,49 |
219794,7 |
|
NBX Analog Adapter |
шт |
312,19 |
1 |
312,19 |
9365,7 |
|
Коммутатор Office Connect Switch 5 |
шт |
77,5 |
1 |
77,5 |
2325 |
|
Маршрутизатор Office Connect Remote 612 ADSL Router |
шт |
278 |
1 |
278 |
8340 |
|
Бизнес-телефон NBX Business Telephone |
шт |
290,51 |
2 |
581,02 |
17430,6 |
|
Беспроводной канал |
|
|
|
|
|
|
RD-DS.11D. Ethernet мост, абонентская станция, 11Мбит/с, 2400-2480 МГц, +24 dBm, погодозащитное исполнение –40С…+60С |
шт |
2300,00 |
1 |
2300,00 |
69000 |
|
CA 130094. Направленная антенна, +24 dBi, разъем N-male |
шт |
195,00 |
1 |
195,00 |
5850 |
|
CBL 30. Кабель соединения внешнего и внутреннего блоков. |
м |
4,23 |
15 |
63,45 |
1903,5 |
|
Монтажный комплект |
|
|
|
|
|
|
Разъем RG11 |
шт |
0,33 |
8 |
2,64 |
79,2 |
|
Разъем RG45 |
шт |
0,5 |
16 |
8 |
240 |
|
Кабель категории 5 |
м |
0,23 |
305 |
71,16 |
2135 |
|
Клипсы |
шт |
0,016 |
600 |
10 |
300 |
|
|
|
|
Всего: |
11225,45 |
336763,5 |
Спецификация системы связи для главного офиса
Таблица №7
|
Наименование |
Ед. |
Цена, $ |
Кол-во |
Сумма, $ |
Сумма, руб |
|
|
|
|
|
|
|
|
3Com NBX 100 |
шт |
7326,49 |
1 |
7326,49 |
219794,7 |
|
NBX Analog Adapter |
шт |
312,19 |
3 |
936,57 |
28097,1 |
|
Коммутатор Office Connect Switch 5 |
шт |
77,5 |
1 |
77,5 |
2325 |
|
Маршрутизатор Office Connect Remote 612 ADSL Router |
шт |
278 |
1 |
278 |
8340 |
|
Бизнес-телефон NBX Business Telephone |
шт |
290,51 |
4 |
1162,04 |
34861,2 |
|
Пульт секретаря NBX DSS/BLF Adjunct |
шт |
310,45 |
1 |
310,45 |
9313,5 |
|
Беспроводной канал |
|
|
|
|
|
|
BU-DS.11D. Ethernet мост, базовая станция, 11Мбит/с, 2400-2480 МГц, +24 dBm, погодозащитное исполнение –40С…+60С |
шт |
2300,00 |
1 |
2300,00 |
69000,00 |
|
OD12-2400. Всенаправленная антенна, +12 dBi, разъем N-female |
шт |
395,00 |
1 |
395,00 |
11850 |
|
N-male to N-male. Радиочастотный джампер для подключения всенаправленной антенны, 1 м. |
шт |
20,00 |
1 |
20,00 |
600 |
|
CBL 30. Кабель соединения внешнего и внутреннего блоков. |
м |
4,23 |
15 |
63,45 |
1903,5 |
|
Монтажный комплект |
|
|
|
|
|
|
Разъем RG11 |
шт |
0,33 |
24 |
7,92 |
237,6 |
|
Разъем RG45 |
шт |
0,5 |
28 |
14 |
420 |
|
Кабель |
м |
0,23 |
610 |
142,33 |
4270 |
|
Клипсы |
шт |
0,016 |
1200 |
20 |
600 |
|
|
|
|
Всего: |
13053,75 |
391612,5 |
Расчет фонда заработной платы.
Таблица №8
|
Должность |
Заработная плата в день (командировочные) |
Количество рабочих дней |
ФЗП |
|
Инженер |
100 |
20 |
2000 |
|
Техник |
100 |
18 |
1800 |
|
Техник |
100 |
18 |
1800 |
|
Всего: |
5600 |
Затраты на бензин.
Таблица № 9
|
Стоимость АИ–92, руб/литр |
Дальность объекта, км |
Количество поездок |
Сумма, руб |
|
7,60 |
125 |
6 |
1140 |
Структура цены на систему.
Проведем расчет себестоимости системы связи.
Величина себестоимости определяется по следующим статьям:
- Оборудование;
- Основная и дополнительная заработная плата с отчислениями в фонды.
Таблица № 10
|
Наименование затрат |
% |
|
Сумма, $ |
Сумма, руб |
|
Главный офис |
|
|
13053,75 |
391612,5 |
|
Малый офис №1 |
|
|
10868 |
326040 |
|
Малый офис №2 |
|
|
10868 |
326040 |
|
Малый офис №3 |
|
|
11225,45 |
336763,5 |
|
Малый офис №4 |
|
|
11225,45 |
336763,5 |
|
Малый офис №5 |
|
|
10868 |
326040 |
|
|
|
|
|
|
|
Затраты на оборудование и материалы |
|
|
68108,65 |
2043259,5 |
|
|
|
|
|
|
|
Основная заработная плата |
|
|
186,66 |
5600 |
|
Дополнительная заработная плата |
10% |
от ОЗП |
18,66 |
560 |
|
Отчисления в фонды |
36,8% от |
ОЗП+ДЗП |
75,56 |
2266,88 |
|
Затраты на бензин |
|
|
38 |
1140 |
|
Накладные расходы |
160% |
от ОЗП |
29,86 |
896 |
|
|
|
|
|
|
|
Себестоимость |
|
|
68457,39 |
2053721,7 |
|
Рентабельность |
25% |
(себ.-мат.) |
87,185 |
2615,55 |
|
НДС |
20% |
(себ.+рен.) |
13708,915 |
416927,13 |
|
Сумма: |
|
|
82253,5 |
2467605 |
Безопасность жизнедеятельности
5. Безопасность жизнедеятельности
5.1. Экологическая экспертиза
Экологическая экспертиза включает в себя оценку воздействия проектируемой сисстемы телекоммуникаций на окружающую среду. В данной части раздела уделяется особое внимание негативным факторам воздействия на ОС,которые могут возникнуть при реализации данной разработки и которые принципиально отличаются от “стандартных” воздействий рассматриваемого АБК на ОС.
5.1.1. Основные источники загрязнения окружающей среды
Источники загрязнения атмосферы подразделяются на:
§ естественные (космическая пыль, пепел при извержении вулканов);
§ антропогенные (производственная деятельность человека, металлургия, нефтяная и химическая промышленность).
Источники загрязнения гидросферы:
¨ поверхностные;
¨ бытовые;
¨ производственные.
Источники загрязнения литосферы:
¨ добыча полезных ископаемых;
¨ захоронение отходов производства и бытовых отходов;
¨ военные объекты.
5.1.2. Нормативные содержания вредных веществ и микроклимата
При наличии вредных веществ их концентрация регламентируется величиной предельно допустимой концентрации (ПДК).
![]()
ГОСТ 12.1.005–88 ССБТ Общие санитарно–гигиенические требования к воздуху рабочей зоны.
ПДК в воздухе рабочей зоны – такая концентрация вредных веществ, которая в течение 8–ми часового рабочего дня или рабочего дня другой продолжительности, но не более 41–го часа в неделю не вызывает отклонений в состоянии здоровья работающих, а также не влияет на настоящее и будущее поколения.
В воздухе населенных мест содержание вредных веществ регламентируется в соответствии с СН 245–71.
ПДКсс (средне суточная) – такая концентрация, которая не вызывает отклонений при прямом или косвенном воздействии на человека в воздухе населенного пункта в течение сколь угодно долгого дыхания.
ПДКмр (max разовое) – такая концентрация, которая не вызывает со стороны организма человека рефлекторных реакций (ощущение запаха, изменение световой чувствительности, биоэлектрической активности мозга и т.д.).
В соответствии с ГОСТ 12.1.007–76 все вредные вещества подразделяются на 4 класса по величине ПДК:
I класс < 0,1
–– чрезвычайно-опасные
вредные вещества;
II класс – 0,1–1
–– высоко опасные
вредные вещества;
III класс – 1–10
–– умеренно опасные;
IV класс > 10
–– мало опасные;
Эффект суммации – при нахождении в воздухе нескольких вполне определенных веществ, они обладают свойством усиливать друг друга.
Для того чтобы оценить действие веществ, обладающих эффектом суммации, используется формула:
, где
,
…
– фактическая концентрация вредных веществ в
воздухе;
ПДК1…ПДКN – величины их предельно-допустимых концентраций.
5.1.3. Нормирование параметров микроклимата
Микроклимат на рабочем месте характеризуется:
Ø температура, t, ˚C.
Ø относительная влажность, φ, %.
Ø скорость движения воздуха на рабочем месте, V, м/с.
Ø интенсивность теплового излучения, W, Вт/м².
Ø барометрическое давление, р, мм рт. ст. (не нормируется).
В соответствии с ГОСТ 12.1.005–88 нормируемые параметры микроклимата подразделяются на оптимальные и допустимые.
Оптимальные параметры микроклимата – такое сочетание температуры, относительной влажности и скорости воздуха, которое при длительном и систематическом воздействии не вызывает отклонений в состоянии человека.
t=22–24 ˚C, φ=40–60 %, V≤0.2 м/с.
Допустимые параметры микроклимата – такое сочетание параметров микроклимата, которое при длительном воздействии вызывает приходящее и быстронормализующееся изменение в состоянии работающего.
t=22–27 ˚C, φ≤75 %, V=0.2–0.5 м/с.
Рабочая зона – пространство над уровнем горизонтальной поверхности, где выполняется работа, высотой 2 метра.
Рабочее место – (может быть постоянным или непостоянным), где выполняется технологическая операция.
Для определения нормы микроклимата на рабочем месте, необходимо знать 2 фактора:
1. период года (теплый, холодный)+ 10 ˚C граница.
2. категория выполняемой работы, которая подразделяется в зависимости от энергозатрат:
- легкая (Iа–до 148 Вт, Iб– 150-174 Вт).
- средней тяжести (IIа–174-232 Вт, IIб–232-292 Вт).
- тяжелая (III–свыше 292 Вт).
В результате экологической экспертизы выявлено, что объект разработки не содержит источников загрязнения окружающей среды и не представляет опасности для населения.
5.2. Производственная безопасность
5.2.1. Электромагнитное поле. Характеристики электромагнитного поля.
Источник возникновения — промышленные установки, радиотехнические объекты, медицинская аппаратура, установки пищевой промышленности.
1. длина волны, [м]
2. частота колебаний [Гц]
l = VC/f, где VC = 3×10 м/с
Номенклатура диапазонов частот (длин волн) по регламенту радиосвязи:
|
Номер диапазона |
Диапазон частот f, Гц |
Диапазон длин волн |
Соотв. метрическое подразд. |
|
5 |
30-300 кГц |
104-103 |
НЧ |
|
6 |
300-3000 кГц |
103-102 |
СЧ (гектометровые) |
|
7 |
3-30 МГц |
102-10 |
ВЧ (декометровые) |
|
8 |
30-300 МГц |
10-1 |
метровые |
|
9 |
300-3000 МГц |
1-0,1 |
УВЧ (дециметровые) |
|
10 |
3-30 ГГц |
10-1 см |
СВЧ (сантиметровые) |
|
11 |
30-300 ГГц |
1-0,1 см |
КВЧ (миллиметровые) |
Электромагнитные поля НЧ часто используются в промышленном производстве (установках) - термическая обработка.
ВЧ — радиосвязь, медицина, ТВ, радиовещание.
УВЧ — радиолокация, навигация, медицина, пищевая промышленность.
Пространство вокруг источника электромагнитного поля условно подразделяется на зоны:
— ближнего (зону индукции);
— дальнего (зону излучения).
Граница между зонами является величина: R=l/2p.
В зависимости от расположения зоны, характеристиками электромагнитного поля является:
® в ближней зоне
- составляющая вектора напряженности эл. поля [В/м]
- составляющая вектора напряженности магн. поля [А/м]
® в дальней зоне
- используется энергетическая характеристика: интенсивность плотности потока энергии [Вт/м2],[мкВт/см2].
5.2.2. Вредное воздействие электромагнитных полей
Электромагнитное поле большой интенсивности приводит к перегреву тканей, воздействует на органы зрения и органы половой сферы. Умеренной интенсивности: нарушение деятельности центральной нервной системы; сердечно-сосудистой; нарушаются биологические процессы в тканях и клетках. Малой интенсивности: повышение утомляемости, головные боли; выпадение волос.
5.2.3. Нормирование электромагнитных полей
ГОСТ 12.1.006-84
Нормируемым параметром электромагнитного поля в диапазоне частот 60 кГц-300 МГц является предельно-допустимое значение составляющих напряженностей электрических и магнитных полей.
, [В/м]
, [А/м]
ЭНЕПД - предельно-допустимая энергетическая нагрузка составляющей напряженности электрического поля в течение раб. дня [(В/м)2×ч]
ЭННПД - предельно-допустимая энергетическая нагрузка составляющей напряженности магнитного поля в течение раб. дня [(А/м)2×ч]
Нормируемым параметром электромагнитного поля в диапазоне частот 300 МГц —300 ГГц является предельно-допустимое значение плотности потока энергии.
![]()
ППЭПД - предельное значение плотности потока энергии [Вт/м2],[мкВт/см2]
К - коэффициент ослабления биологических эффектов
ЭНППЭПД - предельно-допустимая величина эн. нагрузки [В/м2×ч]
Т - время действия [ч]
Пред. величина ППЭпд не более 10 Вт/м2 ; 1000 мкВт/см2 в производственном помещении. В жилой застройке при круглосуточном облучении в соответствии с СН Þ ППЭпд не более 5 мкВт/см2.
5.2.4. Необходимые мероприятия по защите от воздействия электромагнитных полей
1. Уменьшение составляющих напряженностей электрического и магнитного полей в зоне индукции, в зоне излучения — уменьшение плотности потока энергии, если позволяет данный технологический процесс или оборудование.
2. Защита временем (ограничение время пребывания в зоне источника электромагнитного поля).
3. Защита расстоянием (60 — 80 мм от экрана).
4. Метод экранирования рабочего места или источника излучения электромагнитного поля.
5. Рациональная планировка рабочего места относительно истинного излучения электромагнитного поля.
6. Применение средств предупредительной сигнализации.
7. Применение средств индивидуальной защиты.
5.2.5. Производственное освещение.
Рациональное освещение производственных участков является одним из важнейших факторов предупреждения травматизма и профессиональных заболеваний. Правильно организованное освещение создаёт благоприятные условия труда, повышает работоспособность и производительность труда. Освещённость производственных, служебных и вспомогательных помещений регламентируется строительными нормами и правилами (СНиП II-4-79) и отраслевыми нормами.
Освещение на рабочем месте должно быть таким. Чтобы работающий мог без напряжения зрения выполнять свою работу. Утомляемость органов зрения зависит от ряда причин – недостаточность освещенности, чрезмерная освещённость, неправильное направление света.
Недостаточность освещения приводит к напряжению зрения, ослабляет внимание, наступает преждевременная усталость. Яркое чрезмерное освещение вызывает ослепление, раздражение и резь в глазах. Неправильное направление света на рабочее место может создавать резкие тени, блики и дезориентировать работающего. Все эти причины могут привести к несчастному случаю и профзаболеваниям.
В производственных помещениях применяют два вида освещения: естественное и искусственное. В нашем случае из-за отсутствия окон, возможно, только искусственное освещение.
Искусственное освещение, осуществляемое электрическими лампами, подразделяется на общее, местное и комбинированное.
Общее освещение может быть равномерным по всей производственной площади без учёта оборудования и локализованным – с учётом расположения оборудования.
Местное освещение может быть стационарным на рабочих местах и переносным. Применение только местного освещения на производственном участке не допускается.
Комбинированное освещение – это совместное применение общего и местного освещения.
Для искусственного освещения используются электрические лампы накаливания и люминесцентные лампы. Люминесцентные лампы по сравнению с лампами накаливания имеют существенные преимущества: по спектральному составу света они близки к естественному дневному освещению, обладают более высоким КПД, повышенной светоотдачей и большим сроком службы.
Люминесцентные лампы также имеют недостатки, например применение сложных пусковых приспособлений (дроссель, стартер) и наличие стробоскопического эффекта при работе ламп, вследствие которого вращающиеся предметы могут казаться остановившимися или изменившими направление движения. Стробоскопический эффект устраняют включением последовательно балластных сопротивлений (активных, индуктивных) и ламп в разные фазы сети.
Для более эффективного использования светового потока и ограничения ослепленности электрические лампы устанавливаются в осветительной арматуре. Арматура в комплекте с лампой называется светильником.
Осветительная арматура необходима для предохранения лампы от механического повреждения, загрязнения, подводки электропитания и крепления.
В зависимости от конструктивного исполнения светильники бывают: открытые, защищённые, закрытые, пыленепроницаемые, влагонепроницаемые, взрывонепроницаемые.
По назначению искусственное освещение подразделяется на рабочее, аварийное и специальное.
Рабочее освещение предназначено для создания необходимых условий работы и нормальной эксплуатации зданий и территории.
Аварийное (эвакуационное) освещение необходимо для безопасного продолжения работы или для эвакуации людей при выключении основного рабочего освещения. Аварийное освещение должно иметь независимый источник питания (аккумуляторные батареи, резервный трансформатор) и включаться автоматически или вручную, освещённость при этом должна быть на рабочих местах не менее 10% минимальной нормы, а на путях эвакуации людей – не менее 0,5 лк.
К специальному освещению относят дежурное (включаемое во внерабочее время) и охранное (для освещения охраняемой в ночное время территории).
Эффективность искусственного освещения зависит не только от правильного выбора светильника, но и от их профилактики. Чистку светильников должны производить в обычных помещениях не реже 2 раз в месяц, а в помещениях со значительным выделением аэрозолей – не реже 4 раз в месяц.
5.2.6. Основные светотехнические величины.
Это понятие связано с той или иной осветительной установкой.

Рисунок 4 Геометрические параметры, используемые в светотехнике
Таблица 1 Основные светотехнические величины
|
№ п/п |
Название |
Обозн. |
Ед. изм |
Формула |
Примечание |
|
1 |
Световой поток |
F |
[лм] - люмен |
|
|
|
2 |
Сила света |
J |
[кд] - кандела |
J = F/w |
|
|
3 |
Освещенность |
E |
[лк] - люкс |
E = F/S |
|
|
4 |
Яркость |
L |
[кд/м2] |
L = J/S |
|
|
5 |
Контраст |
К |
|
К = (L0 - LФ)/L0 |
Контраст бывает: - большой (К>0,5); - средний (К = 0,2 - 0,5); - малый (К<0,2) |
|
6 |
Фон |
|
|
|
Это поверхность, которая прилегает к объекту различения. Наименьший размер объекта различения с фоном. |
|
7 |
Коэффициент отражения |
r |
|
r = FПАД/FОТР |
В зависимости от коэф. отражения фон бывает: -светлый r = 0,2 - 0,4; -темный r < 0,2. |
Физиологические характеристики зрения.
1) острота зрения;
2) устойчивость ясного видения (различие предметов в течение длительного времени);
3) контрастная чувствительность (разные по яркости);
4) скорость зрительного восприятия (временной фактор);
5) адаптация зрения;
6) аккомодация (различие предметов при изменении расстояния)
5.2.7. Обоснование системы освещения и типа светильников
Имеется помещение, в котором будет располагаться аппаратура и проводиться вся работа. Окон и других мест проникновения естественного света нет. Работать в этом помещении предстоит по мере надобности и вполне вероятна ситуация, когда в нём сутками никого не будет. Поэтому будет иметь место искусственное рабочее освещение. Аварийное и специальное освещение отсутствует. При необходимости подсветки тёмных мест может использоваться переносное освещение. В качестве источников света предлагается использовать люминесцентные лампы, т.к. требуется хорошее цветоразличение. Возможная схема включения люминесцентной лампы приведена на рис 4.
1 – цилиндрическая стеклянная трубка; 2 – слой люминофора; 3 – стартер в виде неоновой лампы тлеющего разряда; 4 – инертный газ; 5 – вольфрамовые электроды; 5 – контакты; 7 – балластный дроссель

Рисунок 5 Схема включения люминесцентной лампы.
5.2.8. Расчет освещения.
Предлагается следующее расположение светильников в помещении:

Рисунок 6 Расположение светильников в помещении
Наименьшая высота подвеса светильников с люминесцентными лампами Hмин=2,6 м. Высота потолка в помещение 3,5 м. поэтому высота подвеса светильников Н=3м.. Монтаж ведём светильниками ПЛВМ с двумя лампами (n=2) ЛБ-80 мощностью по 80 Вт и световым потоком Фл=5220 лм Длина светильника Lсв=1325 мм.
Расчёт ведём по контрольной точке А.
Параметры расчёта (из рис. 29): L=3 м, P1=1,5 м, P2=1,5 м
1. Определяем P' и L' для каждого ряда:
L'1=L'2=L/H=3/3=1
P'1=P1/H=1,5/3=0,5
P'2=P2/H=1,5/3=0,5
2. По графикам линейных изолюкс [7] определяем сумму условных освещённостей Se:
e1=80 лк для L'1 и P'1
e2=80 лк для L'2 и P'2
Se= e1+ e2=80+80=160 лк
3. Определяем расчётную плотность светового потока (лм/м):
Ф'=(1000ґEминґkґH)/(mґSe),
где Eмин – минимально нормированная освещённость, лк (по справочнику)
k – коэффициент запаса
m ‑ коэффициент добавочной освещённости
Из [7] и [8] определяем:
Eмин=300 лк
k=1,5
m=1,1
Тогда Ф'=(1000ґ300ґ1,5ґ3)/(1,1ґ160)=7670 лм/м
4. Находим расчётный световой поток светящейся линии (лм)
Ф=Ф'ґL=7670ґ3=23010 лм
5. Определяем число светильников в ряду:
N=Ф/(Флґn)=23010/(5220ґ2)=2
Таким образом в помещении будет 2 ряда светильников, по 2 светильника в каждом ряду
Длина светильника 1325 мм. Длина ряда тогда составит ” 2700 мм. Это при ширине комнаты 4 м.
Общая потребляемая мощность 4-х светильников равна:
Руст=N*np*n*P1=2*2*2*80= 640 Вт
Расчет заземления проведен в технологическом разделе.
5.2.9. Расчет эффективности защитного экрана.
Расчет эффективности защитного экрана проводится согласно рекомендации консультанта по безопасности жизнедеятельности.
Необходимо провести оценку эффективности защитного экрана, представляющего собой кожух размерами 1,9*1,6*1,1 м из стального листа толщиной 0,5*10-3 м . Имеются технологические проемы (щели) толщиной 10-2 м. Удельное сопротивление стали r=10-7 Ом*м, магнитная проницаемость m=180 Гн/м, длина волны излучения l=6*106 м. Работа в условиях поля напряженности 200 кВ/м производится не более трех часов в сутки.
Решение: По таблице определяем допустимое значение напряженности электрического поля, при трехчасовой работе оно составляет 5-10 кВ/м.
|
Напряженность электрического поля, кВ/м |
Время пребывания человека в электрическом поле в течении суток, мин |
|
Менее 5 |
Без ограничения |
|
От 5 до 10 |
Не более 180 |
|
Свыше 10 до 15 |
Не более 90 |
|
Свыше 15 до 20 |
Не более 10 |
|
Свыше 20 до 25 |
Не более 5 |
Определим потребную эффективность экранирующего устройства:
![]()
Находим эквивалентный радиус экрана:
![]()
Учитывая, что
, определяем волновое сопротивление поля:
![]()
где
– волновое
сопротивление воздуха.
Глубина проникновения электрического поля в экран:

Фактическая эффективность экранирующего устройства равна:

где d – толщина металлического листа, м; m – наибольший размер технологических отверстий.

Должно соблюдаться условие
; в данном случае,
т.е. выбранное экранирующее устройство обеспечивает требуемое
соблюдение электрического поля в рабочей
зоне.
5.3. Чрезвычайные ситуации
5.3.1. Классификация и общие характеристики чрезвычайных ситуаций
Чрезвычайная ситуация — внешне неожиданная, внезапно возникающая обстановка, которая характеризуется резким нарушением установившегося процесса, оказывающая значительное отрицательное влияние на жизнедеятельность людей, функционирование экономики, социальную сферу и окружающую среду.
Классификация:
1. По принципам возникновения
(стихийные бедствия, техногенные катастрофы, антропогенные катастрофы, социально-политические конфликты)
2 По масштабу распространения с учетом последствий
местные (локальные); объектные; региональные; национальные; глобальные
3 По скорости распространения событий
внезапные; умеренные; плавные (ползучие); быстрораспространяющиеся
Последствия чрезвычайных ситуаций разнообразны: затопления, разрушения, радиоактивное заражения, и т.д.
Условия возникновения ЧС
- Наличие потенциально опасных и вредных производственных факторов при развитии тех или иных процессов.
- Действие факторов риска
- Высвобождение энергии в тех или иных процессах;
- Наличие токсичных, биологически активных компонентов в процессах и т.д.
- Размещение населения, а также среды обитания.
Стадии развития ЧС.
- Стадия накопления тех или иных видов дефекта. Продолжительность: несколько секунд — десятки лет.
- Инициирование ЧС.
- Процесс развития ЧС, в результате которого происходит высвобождение факторов риска.
- Стадия затухания. Продолжительность: несколько секунд — десятки лет.
Принципы обеспечения БЖД в ЧС.
Заблаговременная подготовка и осуществление защитных мер на территории всей страны. Предполагает накопление средств защиты для обеспечения безопасности.
Дифференцированный подход в определении характера, объема и сроков исполнения такого рода мер.
Комплексный подход к проведению защит. мер для создания безопасных и безвредных условий во всех сферах деятельности.
Безопасность обеспечивается тремя способами защиты:
- эвакуация
- использование средств индивидуальной защиты
- использование средств коллективной защиты
Затраты на снижение риска аварий могут быть распределены:
- На проектирование и изготовление систем безопасности
- На подготовку персонала
- На совершенствование управления в ЧС
Методика измерения риска имеет 4 подхода:
Инженерный (в основе лежат данные статистики). Определение риска осуществляется построением деревьев отказа (напр., современная космонавтика).
Модельный (построение моделей взаимодействия опасных и вредных факторов с человеком и окружающей средой).
Экспертный (вероятности различных событий, связь между ними и последствия аварий, которые определяются опросом специалистов данной области, выступающих в роле экспертов).
Социологический (опрос различных групп населения).
5.3.2. Основные положения теории ЧС
Техносфера, которая создана человеком для защиты от внешних опасностей по мере эволюции производства, сама становится источником опасности. Необходимо предусматривать ряд мер для защиты от них, а также научится прогнозировать появление такого рода опасностей.
Переход от примитивного оборудования, безопасность при эксплуатации которого решалась в рамках охраны труда, к автоматизированным системам управления производственными процессами предусматривает создание теории безопасности, которое базируется на дисциплинах: экология, охрана труда, математика, физика, специальные дисциплины.
В решении вопросов теории чрезвычайных ситуаций в свое время находилась космонавтика.
Аксиома о потенциальной опасности деятельности человека
Всякая деятельность потенциально опасна! Критерием (количественной оценкой) опасности является понятие риска.
Риск — отношение числа тех неблагоприятных событий или проявлений опасности к возможному числу за определенный период времени.
Риск гибели вследствие аварий, несчастных случаев и т.д. 1,5×10-3, у летчиков — 10-2.
Под безопасностью понимается такое состояние деятельности, при котором с некоторой вероятностью (риском) исключается реализация потенциальной опасности. Поэтому возникают вопросы, связанные с регламентированием риска.
Нормированный (приемлемый) риск равен 10-6. Фактический риск в 100 и 1000 раз превышает приемлемый. Нормативный показатель приемлемого риска не остается постоянным.
БЖД можно определить как область знаний, изучающая безопасности и защиту от них.
5.3.3. Электробезопасность.
Причины электротравм.
Человек дистанционно не может определить, находится ли установка под напряжением или нет. Ток, который протекает через тело человека, действует на организм не только в местах контакта и по пути протекания тока, но и на такие системы как кровеносная, дыхательная и сердечно-сосудистая.
Возможность получения электротравм имеет место не только при прикосновении, но и через напряжение шага и через электрическую дугу.
Эл. ток, проходя через тело человека оказывает термическое воздействие, которое приводит к отекам (от покраснения, до обугливания), электролитическое (химическое), механическое, которое может привести к разрыву тканей и мышц; поэтому все электротравмы делятся на местные и общие (электроудары).
Местные электротравмы:
- электрические ожоги (под действием электрического тока);
- электрические знаки (пятна бледно-желтого цвета);
- металлизация поверхности кожи (попадание расплавленных частиц металла электрической. дуги на кожу);
- электроофтальмия (ожог слизистой оболочки глаз).
Общие эл. травмы (электроудары):
1 степень: без потери сознания
2 степень: с потерей
3 степень: без поражения работы сердца
4 степень: с поражением работы сердца и органов дыхания
Крайний случай - состояние клинической смерти (остановка работы сердца и нарушение снабжения кислородом клеток мозга). В состоянии клинической смерти находятся до 6-8 мин.
Причины поражения электрическим током (напряжение прикосновения и шаговое напряжение):
Ι. Прикосновение к токоведущим частям, находящимся под напряжением
ΙΙ. Прикосновение к отключенным частям, на которых напряжение может иметь место:
- в случае остаточного заряда
- в случае ошибочного включения электрической установки или несогласованных действий обслуживающего персонала
- в случае разряда молнии в электрическую установку или вблизи прикосновение
к металлическим не токоведущим частям или связанного с ними электрического оборудования (корпуса, кожухи, ограждения) после перехода напряжения на них с токоведущих частей (возникновение аварийной ситуации — пробой на корпусе)
ΙΙΙ. Поражение напряжением шага или пребывание человека в поле растекания электрического тока, в случае замыкания на землю
ΙV. Поражение через электрическую дугу при напряжении электрической установки выше 1кВ, при приближении на недопустимо-малое расстояние
V. Действие атмосферного электричества при газовых разрядах
VΙ. Освобождение человека, находящегося под напряжением
Напряжение прикосновения — это разность потенциалов точек электрической цепи, которых человек касается одновременно, обычно в точках расположения рук и ног.
Напряжение шага — это разность потенциалов j1 и j2 в поле растекания тока по поверхности земли между точками, расположенными на расстоянии шага (» 0,8 м).
Специальные средства защиты.
- заземление;
- зануление;
- защитное отключение.
В нашем случае используется искусственное защитное заземляющее устройство.
Технические мероприятия, обеспечивающие электробезопасность работ данного проекта.
Заземлению подлежат вся аппаратура, а также стойки, в которой эта аппаратура находится. По периметру комнаты, где располагается аппаратура, должен быть проложен контур заземления с целью защиты людей и аппаратуры от статического электричества.
Защитное заземление следует выполнять в соответствии с ПУЭ и СНиП 3.05.06-85 («Электротехнические устройства»).
5.3.4. Противопожарная безопасность.
Противопожарные мероприятия.
Пожар – неконтролируемый процесс горения, сопровождающийся уничтожением материальных ценностей и создающий опасность для жизни людей.
Горение – химическая реакция, которая сопровождается выделением тепла и света.
Классификация помещений и зданий по степени взрывопожароопасности.
ОНТП 24–85
Все помещения и здания подразделяются на 5 категорий:
- А – взрывопожароопасные. Та категория, в которой осуществляются технологические процессы, связанные с выделением горючих газов, ЛВЖ с температурой вспышки паров до 28 °С, tВСП ≤ 28 °С; P – свыше 5 кПа.
- Б – помещения, где осуществляются технологические процессы с использованием ЛВЖ с температурой вспышки свыше 28 °С, способные образовывать взрывоопасные и пожароопасные смеси при воспламенении которых образуется избыточное расчетное давление взрыва свыше 5 кПа.
tВСП > 28 °С; P – свыше 5 кПа.
- В – помещения и здания, где обращаются технологические процессы с использованием горючих и трудно горючих жидкостей, твердых горючих веществ, которые при взаимодействии друг с другом или кислородом воздуха способны только гореть. При условии, что эти вещества не относятся ни к А, ни к Б. Эта категория пожароопасная.
- Г – помещения и здания, где обращаются технологические процессы с использованием негорючих веществ и материалов в горючем, раскаленном или расплавленном состоянии.
- Д – помещения и здания, где обращаются технологические процессы с использованием твердых негорючих веществ и материалов в холодном состоянии.
Основные причины пожаров: короткое замыкание, перегрузки проводов /кабелей, образование переходных сопротивлений.
Режим короткого замыкания – появление в результате резкого возрастания силы тока, электрических искр, частиц расплавленного металла, электрической дуги, открытого огня, воспламенившейся изоляции.
Причины возникновения короткого замыкания:
- ошибки при проектировании.
- старение изоляции.
- увлажнение изоляции.
- механические перегрузки.
Пожарная опасность при перегрузках – чрезмерное нагревание отдельных элементов, которое может происходить при ошибках проектирования в случае длительного прохождения тока, превышающего номинальное значение.
При 1,5 кратном превышении мощности резисторы нагреваются до 200–300 ˚С.
Пожарная опасность переходных сопротивлений – возможность воспламенения изоляции или других близлежащих горючих материалов от тепла, возникающего в месте аварийного сопротивления (в переходных клеммах, переключателях и др.).
Пожарная опасность перенапряжения – нагревание токоведущих частей за счет увеличения токов, проходящих через них, за счет увеличения перенапряжения между отдельными элементами электроустановок. Возникает при выходе из строя или изменения параметров отдельных элементов.
Пожарная опасность токов утечки – локальный нагрев изоляции между отдельными токоведущими элементами и заземленными конструкциями.
Меры по пожарной профилактике.
- строительно–планировочные.
- технические.
- способы и средства тушения пожаров.
- организационные.
Строительно–планировочные определяются огнестойкостью зданий и сооружений (выбор материалов конструкций: сгораемые, несгораемые, трудно сгораемые) и предел огнестойкости – это количество времени в течении которого под воздействием огня не нарушается несущая способность строительных конструкций вплоть до появления первой трещины.
Все строительные конструкции по пределу огнестойкости подразделяются на 8 степеней от 1/7 часа до 2 часов.
Для помещений ВЦ используют материалы с пределом стойкости от 1–5 степеней. В зависимости от степени огнестойкости определяют наибольшие дополнительные расстояния от выходов для эвакуации при пожарах (5 степень – 50 минут).
Технические меры – это соблюдение противопожарных норм при эвакуации систем вентиляции, отопления, освещения, электрического обеспечения и т.д.
использование разнообразных защитных систем.
соблюдение параметров технологических процессов и режимов работы оборудования.
Организационные меры – проведение обучения по пожарной безопасности, соблюдение мер по пожарной безопасности.
Способы и средства тушения пожаров.
- Снижение концентрации кислорода в воздухе.
- Понижение температуры горючего вещества ниже температуры воспламенения.
- Изоляция горючего вещества от окислителя.
Огнегасительные вещества: вода, песок, пена, порошок, газообразные вещества не поддерживающие горение (хладон), инертные газы, пар.
Средства огнетушения.
Ручные.
А. огнетушители химической пены.
В. огнетушитель пенный.
С. огнетушитель порошковый.
D. огнетушитель углекислотный, бром этиловый.
Противопожарные системы.
А. система водоснабжения.
В. пеногенератор.
Система автоматического пожаротушения с использованием средств автоматической сигнализации.
А. пожарный извещатель (тепловой, световой, дымовой, радиационный).
В. для ВЦ используются тепловые датчики–извещатели типа ДТЛ, дымовые, радиоизотопные типа РИД.
Система пожаротушения ручного действия (кнопочный извещатель).
Для ВЦ используются огнетушители углекислотные ОУ, ОА (создают струю распыленного бром этила) и системы автоматического газового пожаротушения, в которой используется хладон или фреон как огнегасительное средство.
Для осуществления тушения загорания водой в системе автоматического пожаротушения используются устройства спринклеры и дренчеры. Их недостаток – распыление происходит на площади до 15 м².
Классификация пожаров и рекомендуемые огенегасительные вещества.
|
Классификация пожаров |
Характеристика среды, объекта |
Огнегасительные средства |
|
А |
Обычные твердые и горючие материалы (дерево, бумага) |
Все виды |
|
Б |
Горючие жидкости, плавящиеся при нагревании (мазут, спирты, бензин) |
Распыленная вода , все виды пены, порошки, составы на основе СО2 и бромэтила |
|
С |
Горючие газы (водород, ацетилен, углеводороды) |
Газовые составы, в состав которых входят инертные разбавители (азот, порошки, вода) |
|
Д |
Металлы и их сплавы (натрий, калий, алюминий, магний ) |
Порошки |
|
Е |
Электрической установки под напряжением |
Порошки, двуокись азота, оксид азота, углекислый газ, составы бромэтил + СО2 |
Заключение.
IP-сеть распространяется повсеместно, и стала всеобщей и основной сетью. Одним из ключевых факторов ее развития является быстрое совершенствование стандартов и технологий. Компании уже начали испытания IP-телефонии, устанавливая шлюзы между УАТС и IP-сетью. Революция началась и первые шаги к преобразованию сетей уже проявили достоинства нового феномена.
Реальная ценность новой технологии для бизнеса будет заключаться не только в снижении расходов на оплату междугородных и международных телефонных разговоров, но и в уменьшении затрат на сетевое администрирование при одновременном повышении эффективности и продуктивности труда. IP-телефония заложила фундамент мультимедийных коммуникаций, включая видеоконференции между настольными ПК, повышающих производительность совместного труда людей в рабочих группах.
Мною рассмотрена корпоративная система связи с использованием сетевой телефонии, произведен выбор необходимой аппаратуры, произведен выбор способа доступа к удаленным объектам, проведены необходимые расчеты, построена структурная схема.
Список использованной литературы
1. Позвоним через IP?. /Сети, 1997г №8
2. Интернет-телефония./ Компьютер пресс, 1999г №10
3. Интернет-телефония. /Компьютер пресс, 1998г №10
4. Интеллектуальные сети связи./ Сети, 1999г №1-2
5. IP-телефония и ТфОП./ Технологии и средства связи, 1999г №2
6. Ахмятов З.В., Банников А.И., Морозова О.Н. Методические указания по разработке организационно–экономических вопросов в курсовом и дипломном проектировании.– Казань: КАИ, 1989.
7. Гилберт Хелд "Ethernet Networks: Design, Implementation, Operation, Management" и "Protecting LAN Resources: A Comprehensive Guide to Securing, Protecting and Rebuilding a Network" издательство John Wiley & Sons.
8. Статьи Internet.
Приложения
[1] Гилберт Хелд - лектор и автор книг по информационным системам. Среди его последних работ - "Ethernet Networks: Design, Implementation, Operation, Management" и "Protecting LAN Resources: A Comprehensive Guide to Securing, Protecting and Rebuilding a Network" (обе эти книги вышли в издательстве John Wiley & Sons). С ним можно связаться через Internet по адресу: 235-8068@mcimail.com.