Контрольная работа: Строительное материаловедение

Название: Строительное материаловедение
Раздел: Рефераты по строительству
Тип: контрольная работа

Контрольная работа

Тема: Строительное материаловедение


ЗАДАНИЕ 1

МОРОЗОСТОЙКОСТЬ

Способность насыщенного водой материала выдерживать многократное попеременное замораживание и оттаивание без признаков разрушения и значительного снижения плотности. Разрушение происходит в связи с тем, что вода, находящаяся в порах, при замерзании увеличивается в объеме примерно на 9 %. Наибольшее расширение воды при переходе в лед наблюдается при температуре -4°С, дальнейшее понижение температуры не вызывает увеличения объема льда. При замерзании воды стенки пор испытывают значительное давление и могут разрушаться. При полном заполнении водой всех пор разрушение материала может произойти даже при однократном замораживании. При насыщении пористого материала водой заполняются в основном макрокапилляры, микрокапилляры заполняются водой частично и служат резервными порами, куда отжимается вода в процессе замораживания. Следовательно, морозостойкость строительных материалов определяется величиной и характером пористости и условиями их эксплуатации.

Она тем выше, чем меньше водопоглощение и больше прочность материала при растяжении. Плотные материалы морозостойки. Из пористых материалов морозостойкостью обладают только те материалы, у которых в основном имеются закрытые поры или вода. Занимает менее 90 % пор. Материал считается морозостойким, если после установления числа циклов замораживания и оттаивания в насыщенном водой состоянии прочность его снизилась не более чем на 15-25 %, а потери в массе в результате выкрашивания не превысили 5 %. Морозостойкость характеризуется числом циклов попеременного замораживания при -15, -17°С и оттаивания при температуре 20°С. Число циклов (марка), которые должен выдерживать материал, зависит от условий его будущей службы в сооружении и от климатических условий. По числу выдерживаемых циклов попеременного замораживания, и оттаивания (степени морозостойкости) материалы подразделяются на марки Мрз 10, 15, 25, 35, 50, 100, 150, 200 и более. В лабораторных условиях замораживание производят в холодильных камерах. Один-два цикла замораживания в холодильной камере дают эффект, близкий к 3-5-годичному действию атмосферы.

ТЕПЛОПРОВОДНОСТЬ

Свойство материала передавать теплоту через толщу от одной поверхности к другой. Теплопроводность характеризуется количеством теплоты (Дж), проходящей через материал толщиной 1 м площадью 1 м2 в течение 1 секунды при разностях температур на противоположных поверхностях материала в 1°С. Теплопроводность материала находится в прямой зависимости от его химического состава, пористости, влажности и температуры, при которой происходит передача тепла. Волокнистые материалы имеют разную теплопроводность в зависимости от направления теплоты по отношению к волокнам (у древесины, например, теплопроводность вдоль волокон в два раза больше, чем поперек волокон). Мелкопористые материалы и материалы с замкнутыми порами обладают большей теплопроводностью, чем крупнопористые материалы и материалы с сообщающимися порами. Это связано с тем, что в крупных и сообщающихся порах усиливается перенос теплоты конвекцией, что и повышает суммарную теплопроводность.

С увеличением влажности материала теплопроводность возрастает, поскольку вода имеет теплопроводность в 25 раз большую, чем воздух. Еще больше возрастает теплопроводность сырого материала с понижением его температуры, поскольку теплопроводность льда в несколько раз больше, чем теплопроводность воды. Теплопроводность материала имеет огромное значение при устройстве ограждающих конструкций зданий - стен, потолков, полов, крыш. Легкие и пористые материалы мало теплопроводны. Чем выше объемный вес материала, тем выше его теплопроводность. Например, коэффициент теплопроводности тяжелого бетона объемным весом 2400 кг/м3 равен 1,25 ккал/м-ч-град, а пенобетона объемным весом 300 кг/м3 всего 0,11 ккал/м-ч-град.

ТЕПЛОЕМКОСТЬ

Свойство материала аккумулировать теплоту при нагревании. При последующем охлаждении материалы с высокой теплоемкостью выделяют больше теплоты. Поэтому при использовании материалов с повышенной теплоемкостью для стен, полов, потолков и других частей помещения температура в комнатах может сохраняться устойчивой длительное время.

Коэффициент теплоемкости - количество теплоты, необходимой для нагревания 1 кг материала на ГС. Строительные материалы имеют коэффициент теплоемкости меньше, чем у воды, которая обладает наибольшей теплоемкостью (4,2 кДж/(кг°С)). С увлажнением материалов их теплоемкость возрастает, но вместе с тем возрастает и теплопроводность.

Теплоемкость материала имеет значение в тех случаях, когда необходимо учитывать аккумуляцию тепла, например при расчете теплоустойчивости стен и перекрытий отапливаемых зданий с целью сохранения температуры в помещении без резких колебаний при изменении теплового режима, при расчете подогрева материала для зимних работ, при расчете устройства печей. В некоторых случаях приходится рассчитывать размеры печи, используя объемную удельную теплоемкость - количество тепла, необходимое для нагревания 1 м3 материала на ГС.

ВОДОПОГЛОЩЕНИЕ

Свойство материала поглощать и удерживать воду при непосредственном с ней соприкосновении. Характеризуется количеством воды, поглощаемой сухим материалом, погруженным полностью в воду, и выражается в процентах от массы (водопоглощение по массе).

Количество поглощенной образцом воды, отнесенное к его объему, - водопоглощение по объему. Водопоглощение по объему отражает степень заполнения пор материала водой. Так как вода проникает не во все замкнутые поры и не удерживается в открытых пустотах, объемное водопоглощение всегда меньше истинной пористости. Объемное водопоглощение всегда меньше 100 %, а водопоглощение по массе может быть более 100 %.

Водопоглощение строительных материалов изменяется главным образом в зависимости от объема пор, их вида и размеров.

В результате насыщения водой свойства материалов значительно изменяются: увеличиваются плотность и водопроводность, у некоторых материалов (например, древесины, глины) увеличивается объем. Вследствие нарушения связей между частицами материала и проникающими частицами воды понижается прочность строительных материалов.

КОЭФФИЦИЕНТ РАЗМЯГЧЕНИЯ

Отношение предела прочности при сжатии материала, насыщенного водой, к пределу прочности при сжатии материала в сухом состоянии. Коэффициент размягчения характеризует водостойкость материала. Для легко размокаемых материалов, например глины, коэффициент размягчения равен 0. Для материалов, которые полностью сохраняют свою прочность при действии воды (металл, стекло и т.п.), коэффициент размягчения равен 1. Материалы с коэффициентом размягчения более 0,8 относятся к водостойким. В местах, подверженных систематическому увлажнению, применять строительные материалы с коэффициентом размягчения менее 0,8 не разрешается.

ВЛАГООТДАЧА

Свойство, характеризующее скорость высыхания материала при наличии условий в окружающей среде (понижение влажности, нагрев, движение воздуха). Влагоотдача характеризуется количеством воды, которое материал теряет за сутки при относительной влажности воздуха 60 % и температуре 20°С. В естественных условиях вследствие влагоотдачи, через некоторое время после окончания строительных работ, устанавливается равновесие между влажностью строительных конструкций и окружающей средой. Такое состояние равновесия называют воздушно-сухим или воздушно-влажным равновесием.

ВОДОПРОНИЦАЕМОСТЬ

Способность материала пропускать воду под давлением. Характеристикой водопроницаемости служит количество воды, прошедшее в течение 1 секунды через 1 м2 поверхности материала при давлении 1 МПа. Плотные материалы (сталь, стекло, большинство пластмасс) водонепроницаемы. Методика определения водопроницаемости зависит от разновидности строительного материала. Водопроницаемость находится в прямой зависимости от плотности и строения материала - чем больше в материале пор и чем они крупнее, тем больше водопроницаемость. При выборе кровельных и гидротехнических материалов чаще всего оценивается не водопроницаемость, а водонепроницаемость, характеризуемая периодом времени, по истечению которого появляются признаки просачивания воды под определенным давлением или предельной величиной давления воды, при котором вода не проходит через образец.

ВОЗДУХОСТОЙКОСТЬ

Способность материала длительно выдерживать многократное систематическое увлажнение и высыхание без значительных деформаций и потери механической прочности. Изменение влажности влечет у многих материалов изменение их объема - разбухают при увлажнении, дают усадку при высыхании, трещины и т.д. Разные материалы по-разному ведут себя по отношению к действию переменной влажности. Бетон, например, при переменной влажности склонен к разрушению, так как цементный камень при высыхании сжимается, а заполнитель практически не реагирует - в результате возникает растягивающее напряжение, цементный камень отрывается от заполнителя. Для повышения воздухостойкости строительных материалов применяют гидрофобные добавки.

ВЛАЖНОСТНЫЕ ДЕФОРМАЦИИ

Изменение размеров и объема материала при изменении его влажности. Уменьшение размеров и объема материала при высыхании называют усадкой или усушкой, увеличение - разбуханием.

Усадка возникает и увеличивается в результате уменьшения слоев воды, окружающих частицы материала, и действием внутренних капиллярных сил, стремящихся сблизить частицы материала. Набухание связано с тем, что полярные молекулы воды, проникая между частицами или волокнами, утолщают их гидратные оболочки. Материалы высокопористого и волокнистого строения, способные поглощать много воды, характеризуются большой усадкой (например, ячеистый бетон 1-3 мм/м; тяжелый бетон 0,3-0,7 мм/м; гранит 0,02-0,06 мм/м; кирпич керамический 0,03-0,1 мм/м.

ЗАДАНИЕ 2

Минеральный состав

Минеральный состав магматических горных пород также разнообразен: полевые шпаты, кварц, амфиболы, пироксены, слюды, в меньшей степени — оливин, нефелин, лейцит, магнетит, апатит и другие минералы.

К породообразующим минералам магматических горных пород, на долю которых приходится около 99 % их общего состава относятся: кварц, калиевые полевые шпаты, плагиоклазы, лейцит, нефелин, пироксены, амфиболы, слюды, оливин и др. Среди акцессорных минералов следует указать: циркон, апатит, рутил, монацит, ильменит,хромит, титанит, ортит и другие; иногда присутствуют и рудные минералы (магнетит, хромит, пирит, пирротин и др.). Выделяют также элементы-примеси, которые присутствуют в породах в очень малых количествах (сотые доли процента): литий, бериллий, бор, олово, медь, хром, никель, хлор, фтор и др.

По происхождению минералы магматических пород делятся на первичные, образованные в результате кристаллизации самой магмы и вторичные, образовавшиеся в результате дальнейшего их преобразования, за счет процессов вторичного минералообразования: серицитизация, каолинизация, хлоритизация, серпентинизация и т. д. Под действием этих процессов происходят различные химические реакции, в частности, плагиоклазы преобразуются в серицит, цеолит; пироксены и амфиболы переходят в хлорит, эпидот.

Большое классификационное значение имеет также состав темноцветных минералов. Так, оливин — минерал, недонасыщенный кремнекислотой, встречается главным образом в ультраосновных породах. В средних породах обычно присутствует роговая обманка, а в кислых — биотит. Щелочные породы характеризуются присутствием амфиболов.

Не менее важную роль при классификации магматических играют содержание и состав салических минералов, особенно полевых шпатов. Так, состав плагиоклазов отвечает определенной по кислотности группе пород: ультраосновные горные породы не содержат плагиоклазов в числе главных минералов, основные породы содержат основные (богатые кальцием) плагиоклазы, средние породы содержат средние (натриево-кальциевые) плагиоклазы, а для кислых пород характерны кислые (кальциевые) плагиоклазы. Кварц является типичным минералом кислых пород, хотя он может присутствовать и в средних, и основных породах. Он образуется тогда, когда содержание SiO2 в магме превышает то, которое должно вступить в соединение с металлами для образования силикатов. В то же время, кварц не встречается (за редким исключением) в магматических породах совместно с оливином, не встречаются в одной породе кварц и нефелин.

Присутствие оливина в породе служит признаком того, что порода недонасыщена кремнезёмом. Этот минерал выделяется только из магм, в которых содержание этого окисла недостаточно для образования пироксена. В противном случае оливин не образуется, так как при достаточном количестве в расплаве кремнезёма оливин превращается в энстатит:

Mg2SiO4 + SiO2 = Mg2Si2O6

Форстерит Энстатит

(ненасыщенный минерал) (насыщенный минерал)

Аналогичным путем образуется нефелин, который присутствует лишь в щелочных породах, недосыщенных кремнезёмом. В случае насыщенности магмы кремнезёмом вместо нефелина образуется альбит:

NaAlSiO4 + 2SiO2 = NaAlSi3O8

Нефелин Альбит

(ненасыщенный минерал) (насыщенный минерал)

Однако не следует смешивать два понятия: содержание в породе SiO2 и насыщенность ее состава этим окислом. Последняя зависит как от процентного содержания кремнезема, так и от того, какие основания и в каком относительном количестве cодержатcя в породе. Действительно, ультраосновные породы недосыщены кремнезёмом (на это указывает присутствие оливина), а кислые пересыщены этим окислом (это видно из присутствия кварца), однако достаточно бедные кремнезёмом основные породы далеко не всегда им недосыщены. Насыщенные кремнезёмом (следовательно, не содержащие оливин и нефелин) разности часто встречаются среди основных и типичны для средних пород.

Следует отметить, что общие особенности вещественного состава заметны уже при макроскопическом знакомстве с породой. Вместе с тем иногда недостаточность макроскопического метода очевидна, так как, пользуясь им исследователь не может дать точного определения названия горной породы, поскольку неизвестен состав слагающих ее плагиоклазов и особенностей состава темноцветных минералов.


ЗАДАНИЕ 3

Гипсовыми вяжущими веществами называют материалы, для получения которых используют сырье, содержащее сернокислый кальций. Чаще это природные гипс CaSО4·2H2O и ангидрит CaSO4, реже - некоторые побочные продукты химической промышленности (фосфо-гипс, борогипс).

Гипсовые вяжущие применяют для производства гипсовой сухой штукатурки, перегородочных плит и панелей, архитектурных, звукопоглощающих и других изделий, а также строительных растворов для внутренних частей зданий.

Свойства гипсовых вяжущих веществ

Свойства низкообжиговых гипсовых вяжущих во многом одинаковы. Главное различие состоит в прочности, что в основном связано с их разной водопотребностью. Для получения теста нормальной густоты гипс ?-модификации требует 50...70 % воды, а ?-модификации - 30...45 %, в то время как по уравнению гидратации полугидрата в двугидрат необходимо всего 18,6% воды от массы вяжущего вещества. Вследствие значительного количества химически несвязанной воды затвердевший гипс имеет большую пористость - 30...50%.

Стандартом на гипсовые вяжущие установлено 12 марок (МПа): Г-2, Г-3, Г-4, Г-5, Г-6, Г-7, Г-10, Г-13, Г-16, Г-19, Г-22, Г-25. При этом минимальный предел прочности при изгибе для каждой марки вяжущего должен соответствовать значению соответственно от 1,2 до 8 МПа.

По тонкости помола, определяемой остатком (в %) при просеивании пробы на сите с отверстиями размером 0,2 мм, гипсовые вяжущие делятся на три группы:

грубый,

средний,

тонкий.

Гипсовые вяжущие относительно быстро схватываются и твердеют. Различают быстротвердеющий (А), нормально твердеющий (Б) и медленно твердеющий (В) гипсы со сроками схватывания соответственно начало - не ранее 2, 6 и 20 мин, конец - не позднее 15, 30 мин (для В - не нормируется).

Особенностью полуводного гипса по сравнению с другими вяжущими является его способность при твердении увеличиваться в объеме (до 1 %). Так как увеличение объема происходит в еще окончательно не схватившейся массе, то она хорошо уплотняется и заполняет форму. Это позволяет широко применять гипс для отливки художественных изделий сложной формы.

Недостатками затвердевших гипсовых вяжущих являются значительные деформации под нагрузкой (ползучесть) и низкая водостойкость. Для повышения водостойкости гипсовых изделий при изготовлении вводят гидрофобные добавки, молотый доменный гранулированный шлак.

ЗАДАНИЕ 4

Итак, сравним:

1.По прочности. При одинаковой плотности газобетон (автоклавный) прочнее пенобетона! Этот факт производителями оборудования для пенобетона обычно умалчивается. Однако именно поэтому во времена Советского Союза предпочтение отдавалось производству газобетонов. Знаменитые блоки «HEBEL», производимые сейчас в России на оборудовании и по технологии одноименной немецкой фирмы, – сделаны именно из газобетона!

2.По теплопроводности и морозостойкости. Характеристики материалов примерно одинаковы.

3.По водопоглощению. Газобетон по этому показателю уступает, но незначительно. Некоторые производители оборудования для производства пенобетона чрезмерно раздувают этот факт. На самом деле различия незначительны и при реальном использовании в строительстве особой роли не играют.

К примеру, заявляют, что кусок пенобетона в воде плавает и не тонет дольше, чем газобетон. Да, это так. Но, в итоге, он все равно наберет влагу и утонет - это же не материал для строительства кораблей.

Иногда даже упоминают, что пенобетон, дескать, воду вообще не впитывает, но при этом еще и «дышит», т.е. воздухопроницаем. Этого не может быть в принципе. Любой воздухопроницаемый материал все равно будет обладать и определенным водопоглощением.

4.По себестоимости материала. Себестоимость производства пенобетона примерно на 20-25 % ниже, чем у газобетона. Объясняется это в основном тем, что применяемые при производстве пенобетона пенообразователи гораздо дешевле газообразующих добавок, необходимых для получения газобетона. В этом – очень серьезный плюс пенобетона!

5.По стоимости оборудования для производства. Обычно считается, что оборудование для производства газобетона очень дорого и недоступно для малого бизнеса. Это не совсем так. Если использовать для открытия производства оборудование, выпускаемое нашей компанией, начальные вложения окажутся примерно на одном и том же уровне.

Подведем итоги. Однозначно сказать, что какой-то из материалов лучше другого, нельзя. Пенобетон дешевле, однако он проигрывает в прочности. По всем остальным показателям – абсолютная ничья. Именно поэтому, в Германии, например, часто используют совместно и пено- и газобетон. Несущие стены кладут из более прочных газобетонных блоков. Именно они несут основную конструкционную нагрузку. Пенобетонные блоки используют для перегородок, не несущих значительных нагрузок. Получается и прочно и дешево!

Преимущества ячеистых бетонов

1. Отличные тепло- и звукоизоляционные свойства, хорошая воздухопроницаемость. По всем этим свойствам ячеистые бетоны практически идентичны дереву.

2. Универсальность в применении. Используются для:

Монолитного домостроения. В подготовленную опалубку прямо на стройплощадке заливается конструкционный газобетон. После снятия опалубки получаем монолитные стены будущего здания. При соответствующем качестве опалубки такие стены не требуют даже штукатурных работ – сразу под обои;

Изготовления штучных строительных изделий, т.е. строительных блоков для строительства и утепления стен, возведения внутренних перегородок;

Утепления стен вновь возводимых зданий. Например, ведется кладка из кирпича и в ней выкладываются внутренние полости – «шахты», в которые заливают ячеистый бетон.

Утепления кровли;

Заливки тепло- и звукоизоляционных полов;

Утепления существующих зданий;

Теплоизоляции трубопроводов.

3. Возможность получения ячеистого бетона непосредственно на площадке строящегося объекта;

4. Пожарная безопасность. Ячеистые бетоны не горят и не поддерживают горения.

5. Экологическая чистота. За рубежом блоки из ячеистых бетонов часто называют «биоблоками». Такое название прижилось именно благодаря экологической чистоте ячеистого бетона.

6. Легко обрабатываются. Ячеистые бетоны, как и дерево, можно пилить ножовкой, заколачивать в них гвозди

Недостатки

Ячеистый бетон обладает низкой водостойкостью и охотно впитывает влагу. Набравшие влагу из атмосферы блоки промерзают зимой, это приводит (при сезонной эксплуатации) к быстрому разрушению - и уже через 5-7 лет стены значительно теряют свою прочность и требуют серьезного (капитального) ремонта. Стены из облегченного бетона не терпят деформаций, поэтому для них необходим ленточный фундамент или фундамент-плита. После завершения кладки стен до начала их отделки должен пройти год, стены перед началом отделки должны "осесть". На блоках из ячеистого бетона, вследствие их невысокой прочности, при осадке могут образовываться трещины, что приводит не только к деформации самой стены, но и к нарушению целостности стенового покрытия (штукатурки). В отличие от бетона и кирпича ячеистый бетон является "мягким" материалом. В него можно просто забивать гвозди и другие крепежные элементы, но следует помнить об ограничениях на них механических нагрузок. Кроме того, блоки из ячеистого бетона дороже по сравнению с тяжелыми бетонами.

ЗАДАНИЕ 5

Гниение древесины вызывается развитием в ней дереворазрушающих грибов, которые, являясь низшими растениями, лишенными хлорофилла и не способными превращать минеральные вещества в органические, вынуждены паразитировать и питаться древесиной как готовым органическим веществом. Грибные нити, прорастая вдоль и поперек волокон древесины, остаются невидимыми для невооруженного глаза. Грибница, выходящая на поверхность древесины, образует так называемый воздушный мицелий гриба, участки которого местами превращаются в плодовые тела, дающие споры. Созревшие споры выпадают и переносятся ветром, заражая здоровую древесину. (more…)

В идеале, борьбу с возможным гниением надо начинать еще на стадии производства и хранения пиломатериалов. Влажность свежесрубленной древесины меняется в зависимости от сезона, но в среднем составляет 60–80%, поэтому древесину необходимо подвергать сушке. Самый доступный вариант — естественная сушка. Она подразумевает «вылеживание» материала не менее года.

Особого внимания заслуживают конструктивные мероприятия, предупреждающие совместное воздействие избыточного увлажнения и промерзания деревянных конструкций, резкой смены температур, конденсации влаги, недостаточной циркуляции воздуха. Защиту древесины от атмосферной влаги обеспечивают водонепроницаемая кровля и окраска водостойкими лакокрасочными материалами, а от капиллярной влаги — соответствующая гидроизоляция. Можно избежать конденсационного увлажнения, правильно разместив тепло- и пароизоляционные слои. Первый должен находиться ближе к наружной, холодной, поверхности, второй, напротив, -- к внутренней, теплой. Разумеется, деревянные конструкции должны опираться на фундаменты и располагаться выше уровня грунта. Не следует забывать об отводе грунтовых вод (дренаже) и устройстве отмосток. Повышению биостойкости способствует хорошее проветривание древесины, обеспечивающее ее естественное высыхание в процессе эксплуатации. Поэтому желательно, чтобы рядом с домом не росли большие деревья, создающие затенение и препятствующие аэрации.

Антисептирование древесины в горячей ванне применяют для тонких деталей толщиной до 25 мм. Древесину полностью погружают в антисептический раствор, температура которого должна составлять 90-95°С, и выдерживают не менее 1 ч.

Антисептирование древесины в холодной ванне применяют для тонких досок, пакли и войлока при использовании антисептиков повышенной растворимости.

Поверхностное антисептирование древесины обеспечивает ее кратковременную защиту. Растворы наносят на поверхность дважды с интервалом 2…4 ч.

Пропитка древесины под давлением в автоклавах производится водорастворимыми антисептиками способом полного поглощения, а маслянистыми — способом ограниченного поглощения.

Способ полного поглощения заключается в следующем. Лесоматериал, помещенный в автоклав, вакуумируется в течение 20…30 мин, в результате чего из древесины отсасываются воздух и влага. Затем, при сохранении вакуума, в автоклав вводится подогретый до 60 °С антисептический раствор, давление повышается до 0,7…0,8 МПа и выдерживается в течение 60…90 мин. Этого достаточно, чтобы раствор заполнил полости клеток древесины. (more…) Принцип охлаждения в холодильнике miele и морозильной камере.

Органические и комбинированные антисептики

Органические антисептики, не растворимые в воде, подразделяются на масляные антисептики и антисептики, применяемые в растворе с органическими растворителями (органорастворимые антисептики).

Масляные антисептики, к которым относятся креозот (масло каменноугольное), карболинеум (хлорированное антраценовое масло), сланцевое пропиточное масло и другие, применяются для пропитки воздушно-сухой древесины. Они не пригодны для обработки влажной древесины, так как не смачивают влажную древесину. Кроме того, они создают воздухонепроницаемую пленку в поверхностном слое древесины и препятствуют высыханию обработанных деталей. (more…)

Минеральные и органические антисептики

Антисептики подразделяются на минеральные и органические. Все минеральные антисептики растворимы в воде, а органические антисептики могут растворяться или не растворяться в воде. Для разжижения антисептиков, не растворимых в воде, используют органические растворители.

Минеральные антисептики используются в виде водных растворов. Сильными антисептиками являются фтористый натрий (NaF), кремнефтористый цинк (ZnSiF6- 10H2O), кремнефтористый магний (MgSiF6).

ЗАДАНИЕ 6

Для производства строительных работ, промышленностью выпускается рулонные кровельные материалы двух видов: основные, получаемые при обработке основы (кровельного и асбестового картона, стеклоткани) органическими вяжущими веществами, и безосновные, получаемые прокаткой на каландрах предварительной смеси вяжущих веществ с наполнителями добавками в полотнища заданной толщины. Рулонные материалы на основе разделяются по виду вяжущего вещества - на битумные, дегтебитумные, гудрокамовые, дегтевые, битумно-полимерные и полимерные; по структуре - на покровные и беспокровные. Покровные рулонные материалы. На картонной и стеклооснове выпускают следующие покровные рулонные материалы: рубероид, дегтебитумные и гудрокамовые полотнища, толь.

Кровельный картон (ГОСТ 3135-75) представляет собой полотнища, изготовленные из растительных или из смеси растительных и животных волокон. В его состав может быть также введено минеральное волокно. Промышленность выпускает эту продукцию в рулонах шириной 750, 1000 и 1025 мм, марок А-420, А-350, А-250, Б-420, Б-350, Б-250. Рубероид (ГОСТ 10923-76) изготовляют пропиткой кровельного картона нефтяным битумом с последующим покрытием обеих сторон нефтяным кровельным битумом. Для повышения качества данного вида рулонных кровельных материалов, в состав покровных слоев вводят наполнитель и добавки, в том числе полимеры и антисептики.

Рубероид в зависимости от назначения делится на кровельный и подкладочный. Кровельный вид продукции используют для наружных слоев рулонного ковра, подкладочный- для внутренних. В зависимости от вида посыпки лицевой поверхности он делится на рулонный кровельный материал с крупнозернистой и мелкозернистой посыпкой. На его нижнюю поверхность наносят мелкозернистую или пылевидную посыпку.

Крупнозернистая посыпка в своем составе содержит не менее 80% зерен размером от 0,8 до 1,2 мм и не более 20% зерен размером от 0,8 до 0,6 мм. Рубероид подкладочный изготовляют пропиткой кровельного картона мягким нефтебитумом и последующим нанесением тонкой пленки тугоплавкого битума. Пропитка и наличие покровного слоя придают ему повышенную водонепроницаемость. Этот вид рулонного кровельного материала посыпают с обеих сторон мелкозернистой или пылевидной минеральной посыпкой. Крупность зерен не должна быть более 0,5 мм. Рубероид с эластичным покровным слоем РЭМ-350 получают пропиткой кровельного картона мягкими нефтяными битумами и последующим покрытием его с обеих сторон покровной массой. Покровная масса состоит из смеси битумов БНК-90/40 и БНК-45/180, растворенной резины и наполнителя.

Дегтебитумные рулонные кровельные материалы изготовляют пропиткой кровельного картона дегтепродуктами с последующим покрытием его с обеих сторон нефтяным битумом. В зависимости от вида посыпки они делятся на три вида: материалы марки ДБМ, представляющие собой подкладочный кровельный материал с мелкой минеральной посыпкой, глиняная черепица используемый в многослойных коврах и для пароизоляции; материалы марок ДБК и ДБЧ, имеющие соответственно крупнозернистую и чешуйчатую посыпки. Их применяют в наружных слоях многослойных плоских крыш, совмещенных и водоналивных крышах. Дегтебитумные материалы укладывают как на холодных, так и на горячих битумных, дегтевых и гудрокамовых мастиках.

Стеклорубероид (ГОСТ 15879-70)- материал на стекловолокнистой основе. Получают его путем двустороннего нанесения битумного вяжущего вещества на стекловолокнистый холст.

В зависимости от вида посыпки на лицевой стороне стеклорубероид разделяется на марки С-РК и С-РЧ, соответственно имеющие на лицевой стороне крупнозернистую и чешуйчатую посыпку. Он имеет на обеих сторонах мелкую пылевидную посыпку. Такую же посыпку на обратной стороне имеет рубероид С-РК и С-РЧ. Рубероид С-РК и С-РЧ используется в наружных слоях ковра, а рубероид С-РМ - во внутренних. Их выпускают в рулонах шириной 960 и 1000 мм.

Металлоизол представляет собой гидроизоляционный материал на основе отожженной алюминиевой фольги толщиной от 0,5 до 0,2 мм. Его покрывают защитным составом с обеих сторон. В качестве покровного слоя применяют битум БН-90/10.Данный вид рулонных кровельных материалов выпускают в виде лент шириной до 460 мм и длиной до 20 м.

Фольгоизол является разновидностью металлоизола; он представляет собой двухслойный рулонный сериал, состоящий из тонкой рифленой или гладкой фольги, покрытой с нижней стороны защитным составом из модифицированного резинобитумного вяжущего. Он может быть окрашен в различные цвета атмосферостойким лаком или краской. Его используют для покрытия плоских и водоналивных крыш жилых и общественных зданий, устройства пароизоляции и герметизации стыков на кровельном покрытии.

Стеклоткань представляет собой тканую сетку из прочных стеклонитей с размерами ячеек 4X4 мм. Стеклонити на прядильном станке свивают из тончайших стекловолокон. Промышленность выпускает данные рулонные кровельные материалы следующих марок: Т и Э. Это ткань теплостойка, биостойка, имеет большую механическую прочность. Стекловойлок ВВ-Г (МРТУ 6-11-3-64) представляет собой полотнище из произвольно расположенных стекловолокон. Для придания полотнищу механической прочности их обрызгивают клеящим лаком. В результате получают полотнище шириной 800-900 мм и толщиной около 0,3 мм.

Применяют их в качестве армирующих прокладок при устройстве кровель, выполняемых из различных эмульсий.

ЗАДАНИЕ 7

К лакокрасочным составам, образующим в совокупности декоративное покрытие, относятся грунтовки, шпатлевки, лаки, политуры, краски и эмали. Каждая из этих составляющих выполняет определенные функции и обеспечивает получение лакокрасочного покрытия с определенными художественными, физико-механическими и эксплуатационными свойствами.

Лаки - из натуральных или синтетических смол и высыхающих масел, разведенных в воде или органических растворителях, образуют твердую однородную пленку, чаще всего светопроницаемую. Они придают изделиям декоративный вид, например, подчеркивают текстуру ценных пород дерева, а также применяются для создания антикоррозийных и других защитных покрытий. Лаки "дружат" с деревом, металлом или минеральной основой. Для защитно-декоративной отделки металлических и минеральных поверхностей, как правило, используют окрашенные или белые лаки

Краски - включают пигмент - измельченный в пудру цветной минерал. Кроме того, они содержат пленкообразующее вещество и летучий компонент- воду или органический растворитель.

Эмали - представляют собой смесь лака с пигментом. Создаваемые с их помощью покрытия отличаются прочностью, красотой и долговечностью.

Грунтовки - служат для создания чернового покрытия. Их задача - надежно объединить поверхностную пленку с подложкой.

Шпатлевки - предназначенные для выравнивания поверхностей, они содержат различные наполнители.

Обозначения некоторых отечественных лакокрасочных материалов по химическому составу пленкообразующего вещества: алкидно-акриловые - АС; алкидно-уретановые - АУ; полиуретановые - УР; полиакриловые - АК; битумные - БТ; полиэфирные - ПЭ; глифталевые - ГФ; масляные - МА; пентафталевые - ПФ; карбамидные - МЧ; нитроцеллюлозные - НЦ; эпоксидные - ЭП; перхлорвиниловые - ХВ; поливинилацетатные - ВА; эпоксиэфирные - ЭФ.

Немаловажный параметр любого лакокрасочного материала - экологичность. В этом отношении выделяются лаки на водной основе - они без токсичных веществ и практически без запаха. Почти все материалы с органическими растворителями сильно пахнут, и поэтому требуется проветривать помещение во время работы. Общей тенденцией последних лет является разработка и максимально широкое использование не содержащих органических растворителей лаков, что делает их пожаро- и взрывобезопасными и позволяет работать с ними без средств защиты органов дыхания.

Применение

Еще одним важным фактором при выборе лака является место (объект) их применения. Здесь можно выделить четыре большие группы. В первую входят паркетные лаки. В последние годы для отделки полов вместо двухкомпонентных используют однокомпонентные алкидно-полиуретановые и акрилатно-полиуретановые, которыми покрывают двери, мебель и другие деревянные изделия.

Вторая группа - это так называемые лодочные лаки. Их отличает очень высокая прочность и устойчивость к атмосферным воздействиям, поэтому они также применяются для отделки садовой мебели и прочих изделий из дерева, находящихся вне помещений и подвергающихся воздействию солнечных лучей, дождя и снега, жары и холода.

Самой многочисленной является группа лаков для декоративно-защитной отделки различных деревянных поверхностей внутри и вне помещений. Особую группу составляют мебельные лаки.


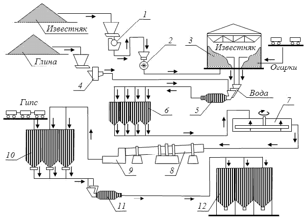
ТЕХНОЛОГИЧЕСКАЯ СХЕМА ПРОИЗВОДСТВА ЦЕМЕНТА «МОКРЫМ» СПОСОБОМ И ЭТАПЫ ТЕХНОЛОГИИ

Технология производства портландцемента - мокрый способ

Мокрый способ целесообразно применять, если в глине имеются посторонние примеси при значительных колебаниях химического состава сырья и его высокой влажности. К недостаткам этого способа относится высокий расход топлива на обжиг - в 1,5 - 2 раза больший, чем при сухом.

Рис. 1. Технологическая схема получения цемента по мокрому способу:

1 - щековая дробилка; 2 - молотковая дробилка; 3 - склад сырья; 4 - мельница «Гидрофол»; 5 - мельница мокрого помола; 6 - вертикальный шламбассейн; 7 - горизонтальный шламбассейн; 8 - вращающаяся печь; 9 - холодильник; 10 - клинкерный склад; 11 - мельница; 12 - силос цемента.


Обычно содержание СаСО3 в шламе составляет 75 - 78%. Отклонение от него допускается не более 0,1%. Откорректированный шлам хранится в горизонтальных шламбассейнах. Из них шлам перекачивают мощными насосами в распределительный бачок установленный над печью. Из бачка шлам поступает в печь на, обжиг.

Выходящий из печи клинкер интенсивно охлаждается в колосниковом холодильнике и поступает на клинкерный склад, где выдерживается 3–4 недели. Здесь создается промежуточный запас клинкера, обеспечивающий бесперебойную работу завода. Кроме того, в клинкере при вылеживании совершается в естественных условиях ряд физико-химических процессов, способствующих повышению качества и стабилизации свойств цемента, поэтому выдерживание клинкера на складе представляет собой отдельную технологическую операцию. При выдерживании происходит гашение атмосферной влагой СаО несвязанного. Одновременно с этим стекловидная часть клинкера кристаллизуется, двухкальциевый силикат 2СаО·SiО2 из β-модификации частично превращается γ-форму. Все это приводит к стабилизации состава клинкера, некоторому разрыхлению его и облегчению последующего помола. Помимо клинкера, на клинкерных складах хранятся предварительно раздробленные минеральные добавки (трепел, опока, шлак и др.), которые вводят в состав цемента при помоле клинкера.

Открытые клинкерные склады оборудованы мостовыми кранами с грейферными захватами, с помощью которых клинкер и минеральные добавки подают в расходные бункера цементных мельниц.

В силосных складах составляющие цемента поступают на сборный ленточный конвейер, который доставляет их к мельницам. Питание шаровых мельниц осуществляется с помощью тарельчатых дозаторов, установленных под расходным бункером возле каждой мельницы. Одновременно с размалываемыми материалами в мельницы подают интенсификаторы помола.

Влажность размалываемых материалов не должна превышать у клинкера - 0,3%, у минеральных добавок - 2%, у гипса - 10%. При необходимости минеральные добавки перед помолом высушиваются.

Тонкость помола оказывает существенное влияние на свойства портландцемента. Чем тоньше размолот клинкер, тем быстрее схватывается и твердеет цемент и выше его прочность в начальные сроки твердения.

Тонкость помола должна быть такой, чтобы при просеивании не менее 85% цемента свободно проходило через сито №008. При этом удельная поверхность цемента не должна быть меньше 250 - 300 и превышать 700 м2/кг. Из шаровых мельниц цемент пневмотранспортом загружают в силоса. Вместимость силосов 2500 - 10000 т, а иногда и более. Силоса оборудованы пневматическими устройствами для рыхления и гомогенизации цемента при хранении.

Цемент упаковывается в мешки специальными машинами, производительность которых достигает 120 т/ч. Каждая партия его снабжается паспортом, в нем указываются масса, марка, название цемента.

Мокрый способ производства используют при изготовлении цемента из мела (карбонатный компонент), глины (силикатный компонент) и железосодержащих добавок (конверторный шлам, железистый продукт, пиритные огарки). Влажность глины при этом не должна превышать 20%, а влажность мела - 29%. Мокрым этот способ назван потому, что измельчение сырьевой смеси производится в водной среде, на выходе получается шихта в виде водной суспензии - шлама влажностью 30 - 50%. Далее шлам поступает в печь для обжига, диаметр которой достигает 7 м, а длина - 200 м и более. При обжиге из сырья выделяются углекислоты. После этого шарики-клинкеры, которые образуются на выходе из печи, растирают в тонкий порошок, который и является цементом.