Курсовая работа: Расчет и конструирование стальных несущих элементов
|
Название: Расчет и конструирование стальных несущих элементов Раздел: Рефераты по строительству Тип: курсовая работа | ||||||||||||||||||||||||||||||||||||||||||||||||||||||||||||||||||||||||||||||||||
ФГОУ ВПО КГСХА Кафедра строительных конструкций Курсовая работа по курсу: «Металлические конструкции» на тему: «Расчет и конструирование стальных несущих элементов промышленной этажерки» Выполнил: студент4 курса 2 группы ПГС Грачёв М.С. Проверил: Потехин И.А. Кострома 2005 г. З А Д А Н И Е к курсовой работе для студентов специальности ПГС на тему «Расчет и конструирование основных элементов металлической промышленной этажерки» 1. Общая характеристика Промышленная этажерка – это промышленное сооружение, предназначенное для размещения на ней технологического оборудования. Промышленные этажерки могут быть открытыми или расположенными внутри основного производственного здания Основной несущей конструкцией этажерки является каркас, состоящий из следующих элементов: колонн, ригелей , вертикальных связей и горизонтальных жестких дисков – перекрытий , расположенных друг над другом.Количество перекрытий и расстояния между ними определяются требованиями технологического процесса. Перекрытие этажерки включает в себя настил и балочную клетку.Настил может быть из сборных ж/б плит, монолитным железобетонным или металлическим. Балочная клетка – конструкция, состоящая из системы пересекающихся балок и поддерживающая настил перекрытия. Различают три типа балочных клеток – упрощенный, нормальный и усложненный.Балочная клетка упрощенного типа состоит из одного ряда балок, уложенных с определенным шагом, к которым крепится настил.Балочная клетка нормального типа состоит из двух рядов балок: главных балок, опирающихся на колонны, и второстепенных балок (балок настила), опирающихся на главные балки.Балочная клетка усложненного типа состоит из трех рядов балок: главных балок, опирающихся на колонны, второстепенных балок, опирающихся на главные балки, и балок настила , опирающихся на второстепенные балки. В зависимости от способа крепления балок друг к другу и балок к колоннам различают крепление шарнирное (на болтах) и жесткое (на сварке). В зависимости от положения балок относительно друг друга различают три вида сопряжения – этажное сопряжение, сопряжение в одном уровне и пониженное сопряжение. Этажное сопряжение более удобно для монтажа, но приводит к большой строительной высоте перекрытия; сопряжение в одном уровне и пониженное позволяет уменьшить строительную высоту, но усложняет конструкцию. При этажном сопряжении крепление считается шарнирным, при сопряжении в одном уровне возможно и шарнирное, и жесткое крепление. Балочные клетки усложненного типа имеют, как правило, пониженное сопряжение главных и вспомогательных балок и сопряжение в одном уровне главных балок и балок настила. 2. Общие исходные данные для расчета и проектирования промышленной этажерки Промышленная этажерка имеет следующие характеристики:- выполнена из стали С245;- находится внутри производственного здания;- имеет одно перекрытие;- тип нормальный; - сопряжение балок этажное; - крепление главных балок к колоннам и вспомогательных балок к главным шарнирное; - сетка колонн состоит из 9-ти ячеек с размерами LxB, где L – шаг колонн в продольном направлении, B – шаг колонн в поперечном направлении; - настил – сплошной стальной лист. 3. Численные исходные данные (следует выбрать из таблицы 1 согласно своему шифру) Таблица 1
4. Содержание расчетно-пояснительной записки - Выбор толщины стального настила по рекомендациям в зависимости от нагрузки, вычисление расчетного пролета стального настила и назначение шага вспомогательных балок - План балочной клетки с указанием всех размеров - Сбор нагрузок на 1 м2 поверхности перекрытия и на 1 м по длине балок – вспомогательной и главной - Подбор профиля вспомогательной балки - Компоновка сечения сварной главной балки и основные проверки - Подбор сечения колонны - Узел сопряжения вспомогательной и главной балок - Узел сопряжения главной балки с колонной - База колонны Содержание: 1. Выбор толщины стального настила, вычисление расчетного пролета стального настила и назначение шага вспомогательных балок 2. План балочной клетки 3. Сбор нагрузок на элементы балочной клетки 4. Подбор профиля вспомогательной балки 5. Компоновка сечения сварной главной балки и обеспечение ее надежности 6. Основные проверки: 1) Проверка прочности опорного сечения по касательным напряжениям: 2)Проверка прочности среднего сечения по нормальным напряжениям3)Проверка прочности по местным напряжениям 4)Проверка общей устойчивости балки5)Проверка местной устойчивости полки 6)Проверка местной устойчивости стенки7. Расчет опорной части балки8. Подбор сечения сплошной центрально сжатой колонны 9. Оформление оголовка колонны 10. Оформление базы колонны 11. Узел опирания балки настила на главную балку 12. Узел опирания главной балки на оголовок колонны 13. Список использованной литературы. Исходные данные: L х В = 6 х 4 м Рн = 30 кПа Отметка верха настила (ОВН) = 4,2 м Требуется: спроектировать балочную клетку. 1. Выбор толщины стального настила, вычисление расчетного пролета стального настила и назначение шага вспомогательных балок. Толщину стального настила можно назначить по рекомендации в зависимости от нагрузки:
Для Рн = 30 кПа примем δ = 14 мм Определим расчетный пролет стального настила. Для этого определим величину нагрузки по формуле:
g – собственный вес листового настила (кН/м γ – удельный вес листового настила (кН/м
Запишем условие жесткости:
n Предельный относительный прогиб настила:
Подставим имеющиеся данные в условие жесткости:
Определим расчетный пролет настила: ℓ = 40∙ δ = 40∙ 0.014 = 1,12 м Примем ℓ = 1 м кратно шагу колонн. Проведем проверку жесткости:
Подставим имеющиеся данные в формулу для ƒ
α = 0,46 Определим ƒmax:
Определим относительный прогиб:
Условие жесткости выполняется. Следовательно, расчетный пролет стального настила подобран верно. Для назначения шага балок настила воспользуемся приближенной зависимостью формулы Телояна:
ℓ – расчетный пролет настила
Найдем число балок настила:
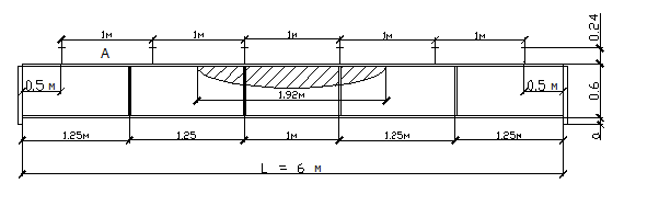
Примем 6 балок настила в одной ячейке и вычислим шаг балок настила:
2. План балочной клетки .
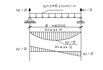
К – колонна ГБ – главная балка БН – балка настила L – шаг колонн в продольном направлении или пролет ГБ В - шаг колонн в поперечном направлении или пролет БН, или шаг ГБ a – шаг БН или пролет листа настила 3. Сбор нагрузок на элементы балочной клетки Нагрузки на 1 м
Погонные нагрузки на 1м длины балки настила:
4. Подбор профиля вспомогательной балки:
Определим требуемый момент сопротивления из условия прочности по нормальным напряжениям с учетом пластической работы материала:
W с R
Для стали:
Подставим имеющиеся данные в формулу для
По сортаменту принимаем двутавр № 22 со следующими характеристиками:
Масса одного метра составляет 21 кг Выполним проверку на жесткость:
Условие не выполняется. Выбираем двутавр № 24 со следующими характеристиками:
b = 115 мм F Масса одного метра составляет 27,3 кг Снова выполним проверку на жесткость:
Условие выполняется. Принимаем окончательно двутавр № 24. Погонные нагрузки на 1м длины главной балки:
g
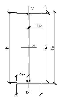
5. Компоновка сечения сварной главной балки и обеспечение ее надежности 6.
Определим требуемый момент сопротивления:
Оптимальную высоту балки можно найти из условия жесткости:
Из данной формулы выразим I
Отсюда:
Значение h Тогда толщина стенки двутавра:
Принимаем Высота полочки:
Примем Примем 18 мм
Выразим b
Необходимо выполнение условия: b Определим геометрические характеристики сечения:
6. Основные проверки 1) Проверка прочности опорного сечения по касательным напряжениям:
Производится по формуле:
R
Rs *1.1=138.63*1.1=152.46МПа
83,3<152.46 Условие выполняется. Следовательно, сечение подобрано верно. 2) Проверка прочности среднего сечения по нормальным напряжениям: Производится по формуле:
R
Условие прочности выполняется. 3) Проверка прочности по местным напряжениям: В данном случае проверяется точка, принадлежащая стенке балки, непосредственно под балкой настила по формуле:
F – сила давления от балки настила на главную балку.
Для двутавра № 24 b = 115 мм.
Условие прочности выполняется. 4) Проверка общей устойчивости балки: Данная проверка производится по формуле:
W Если выполняется неравенство: Величину
b – ширина сжатого пояса t – толщина сжатого пояса h – расстояние между осями поясных листов Определим отношение
Подставим данное значение в формулу для нахождения предельной величины:
С1 =1,05*Вс
С1 =1,05*0,924=0,97 Принимаем с1 =1 Подставим полученные значения в формулу для δ:
Найдем
Условие выполняется. Проверку по формуле (1). приложения 7 СНиПа II–23–81 «Стальные конструкции» проверять не требуется 5) Проверка местной устойчивости полки: Производится по неравенству:
Сначала проверим условие:
Данное условие выполняется, следовательно, выбираем формулу для граничного значения из примечания к таблице 30:
Условие 6) Проверка местной устойчивости стенки: Устойчивость стенок балок не требуется проверять, если соблюдается следующее неравенство:
2.5 – коэффициент, значение которого не должна превышать условная гибкость стенки при наличии местного напряжения в балках с двусторонними поясными швами.
Следовательно, расстановку ребер проведем конструктивно. Согласно правилам расстановки ребер жесткости этажных сопряжений балок в зоне образования пластического шарнира ребра жесткости устанавливаются под каждой балкой настила. На остальных участках ребра жесткости устанавливают под балками настила с шагом, не превышающим предельно допустимый. Выявим зону образования пластического шарнира:
Согласно п. 7.10. СНиПа II-23-81* «Стальные конструкции», расстояние между основными поперечными ребрами в случае, если Допускается превышать указанное выше расстояние между ребрами до значений 3 Таким образом, определим максимальный шаг расстановки ребер жесткости:
Также по п. 7.10, в стенке, укрепленной только поперечными ребрами, ширина их выступающей части
7. Расчет опорной части балки.
Запишем условие прочности на смятие торца ребра:
Зададимся шириной ребра
Q – поперечная сила на опоре, равная 305.76 кН
Принимаем толщину ребра Проверим опорный участок балки на устойчивость:
Запишем условие прочности:
А=24*0,8+16,88*0,9=34,39 м
Определим
Подставим полученные значения в формулу условия прочности:
Условие выполняется. Определим величину выпуска ребра за нижнюю полку:
8. Подбор сечения сплошной центрально сжатой колонны.
Определим усилие на колонну:
Определим расчетную длину колонны:
ОВН – отметка верха настила
Закрепление колонны по обоим концам шарнирное, следовательно,
Запишем условие устойчивости:
Зададимся значением условной гибкости Примем Из условия устойчивости выразим требуемую площадь сечения колонны:
Определим требуемый радиус инерции:
Подберем профиль сплошной центрально сжатой колонны по сортаменту учебника Е.И.Беленя «Металлические конструкции»( приложение 14 таблица 8). Принимаем трубу со следующими параметрами: D = 219 мм t = 8 мм А = 53 см i = 7,47 см Вычислим фактическую гибкость колонны:
Подставим полученные значения в условие устойчивости:
Условие выполняется. Следовательно, профиль сплошной центрально сжатой колонны подобран верно.
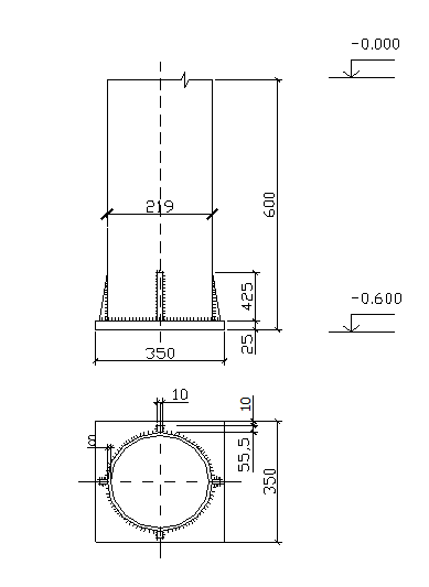
9. Оформление оголовка колонны.
Толщина плиты принимается в пределах от 20 до 25 мм. Примем
Вычислим ширину ребра:
Толщину ребра определим из условия прочности ребра на смятие:
Подставим полученное значение в условие прочности ребра на смятие:
Принимаем Высоту ребра
Выразим
Для электрода типа Э42 значения величин будут следующими:
Значение Таким образом:
Примем Проведем проверку прочности ребра на срез:
Rs =0.58Ry =0.58*240=139.2
Условие выполняется.
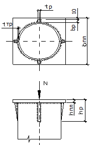
10. Оформление базы колонны.
Роль траверсы могут выполнять консольные ребра. Для компоновки базы колонны берутся значения основных параметров в следующих диапазонах:
Ширина плиты вычисляется следующим образом:
Примем
Примем Также примем Определим выступ ребра:
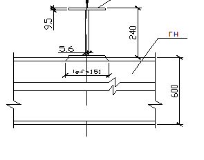
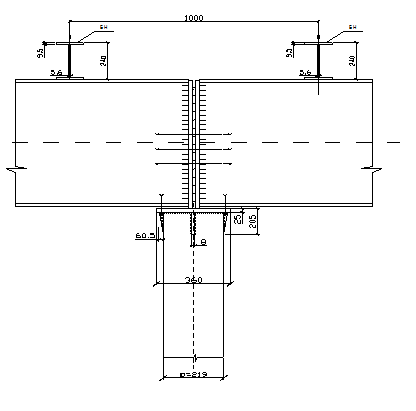
11. Узел опирания балки настила на главную балку.
12. Узел опирания главной балки на оголовок колонны.
Список использованной литературы: 1. СНиП 2.О1.О7-75. Нагрузки и воздействия. Нормы проектирования.- М.: Стройиздат, 1987. 2. СНиП II-23-81*. Стальные конструкции. Нормы проектирования.- М.: Стройиздат, 1990. 3. Инженерные конструкции / Под ред. проф. В.В.Ермолова. – М.: Высшая школа, 1991. 4. Металлические конструкции / Под общ. ред. проф. Е.И.Беленя. - М.: Стройиздат,1976.- 576 с. 5. К.К.Муханов. Металлические конструкции.-М.:Стройиздат, 1978.- 576 с. 6. Металлические конструкции. Справочник проектировщика/Под ред. акад. Н.П.Мельникова.- М.:Стройиздат,1980.- 776 с. |

, где
, где







см
см



, то условие (1) можно не проверять.
, где
, где


, где значение предельной величины определяется по таблице 30 СНиПа II–23–81 «Стальные конструкции».

см
см выполняется.














