Курсовая работа: Стальной каркас одноэтажного производственного здания
|
Название: Стальной каркас одноэтажного производственного здания Раздел: Рефераты по строительству Тип: курсовая работа | |||||||||||||||||||||||||||||||||||||||||||||||||||||||||||||||||||||||||||||||||||||||||||||||||||||||||||||||||||||||||||||||||||||||||||||||||||||||||||||||||||||||||||||||||||||||||||||||||||||||||||||||||||||||||||||||||||||||||||||||||||||||||||||||||||||||||||||||||||||||||||||||||||||||||||||||||||||||||||||||||||||||||||||||||||||||||||||||||||||||||||||||||||||||||||||||||||||||||||||||||||||||||||||||||||||||||||||||||||||||||||||||||||||||||||||||||||||||||||||||||||||||||||||||||||||||||||||||||||||||||||||||||||||||||||||||||||||||||||||||||||||||||||||||||||||||||||||||||||||||||||||||||||||||||||||||||||||||||||||||||||||||||||||||||||||||||||||||||||||||||||||||||||||||||||||||||||||||||||||||||||||||||||||||||||||||||||||||||||||||||||||||||||||||
МИНИСТЕРСТВО ОБРАЗОВАНИЯ И НАУКИ РОССИЙСКОЙ ФЕДЕРАЦИИГОСУДАРСТВЕННОЕ ОБРАЗОВАТЕЛЬНОЕ УЧРЕЖДЕНИЕ ВЫСШЕГО ПРОФЕССИОНАЛЬНОГО ОБРАЗОВАНИЯПЕРМСКИЙ ГОСУДАРСТВЕННЫЙ ТЕХНИЧЕСКИЙ УНИВЕРСИТЕТКафедра строительных конструкцийКурсовой проектпо дисциплине «Металлические конструкции»на тему: СТАЛЬНОЙ КАРКАС ОДНОЭТАЖНОГО ПРОИЗВОДСТВЕННОГО ЗДАНИЯВыполнил: студент группы ПГС - 43Арсенов Н.В.Проверил: к. т. н., доцент каф. СКЯрыгин В.С.Пермь 2010СОДЕРЖАНИЕИСХОДНЫЕ ДАННЫЕ ДЛЯ ПРОЕКТИРОВАНИЯ 1 КОМПОНОВКА КОНСТРУКТИВНОЙ СХЕМЫ КАРКАСА 2 СТАТИЧЕСКИЙ РАСЧЕТ ОДНОЭТАЖНОЙ ОДНОПРОЛЕТНОЙ РАМЫ 2.1 Компоновка однопролетной рамы 2.1.1 Определение вертикальных размеров рамы 2.1.2 Определение горизонтальных размеров рамы 2.2 Определение нагрузок действующих на раму 2.2.1 Постоянные нагрузки от покрытия 2.2.2 Снеговая нагрузка 2.2.3 Нагрузки от мостовых кранов 2.2.4 Ветровая нагрузка 2.3 Статический расчет рамы с жесткими узлами 2.3.1 Расчетная схема рамы 2.3.2 Учет пространственной работы каркаса 2.3.3 Определение усилий в сечениях рамы 3 РАСЧЕТ И КОНСТРУИРОВАНИЕ СТАЛЬНОЙ СТРОПИЛЬНОЙ ФЕРМЫ 3.1 Схема стропильной фермы 3.2 Определение нагрузок действующих на ферму 3.2.1 Постоянные нагрузки 3.2.2 Снеговая нагрузка 3.2.3 Определение опорных моментов 3.3 Определение расчетных усилий в стержнях фермы 3.4 Подбор сечения стержней фермы 3.5 Расчет и конструирование узлов фермы 3.5.1 Прикрепление раскосов и стоек к узловым фасонкам 3.5.2 Расчет и конструирование опорных узлов 3.5.3 Расчет и конструирование узлов укрупнительного стыка 4 Расчет и конструирование ступенчатой колонны 4.1 Исходные данные для расчета ступенчатой колонны 4.2 Определение расчетных длин колонны 4.3 Подбор сечения верхней части колонны 4.3.1 Выбор типа сечения верхней части колонны 4.3.2 Проверка устойчивости верхней части колонны 4.4 Подбор сечения нижней части колонны 4.4.1 Выбор типа сечения нижней части колонны 4.4.2 Проверка устойчивости нижней части колонны 4.4.3 Расчет решетки подкрановой части колонны 4.4.4 Проверка устойчивости колонны в плоскости действия момента как единого стержня 4.5 Расчет и конструирование узла сопряжения верхней и нижней частей колонны 4.6 Расчет и конструирование базы колонны 4.6.1 Определение расчетных усилий 4.6.2 База наружной ветви 4.6.3 База подкрановой ветви Список использованных источников ИСХОДНЫЕ ДАННЫЕ ДЛЯ ПРОЕКТИРОВАНИЯНомер зачетной книжки – 06076. Шифр № 276. Сумма первых двух цифр шифра – 9, вторая цифра шифра – 7, третья – 6. По сумме первых двух, а также по второй и третьей цифрам шифра находим: - пролет производственного здания L=24 м; - грузоподъемность мостовых кранов Q – 160/32 т; - режим работы мостовых кранов – Т(тяжелый); - группа здания – 1; - длина здания l=120 м; - место строительства – г. Пенза; - тип здания – неотапливаемое; - уклон верхнего пояса ферм – 0; - отметка головки рельса – H1=17 м; - шаг ферм покрытия Вф=6 м; - шаг рам каркаса В=12 м. 1 КОМПОНОВКА КОНСТРУКТИВНОЙ СХЕМЫ КАРКАСАВ соответствии с заданием шаг рам каркаса (колонн) В=12 м, шаг ферм покрытия Вф=6 м, пролет производственного здания L=24 м, длина здания l=120 м. Схема расположения колонн и стропильных конструкций представлена на рисунке 1.
Рисунок 1. Схема расположения колонн и стропильных конструкцийСвязи между фермами, создавая общую пространственную жесткость каркаса, обеспечивают устойчивость сжатых элементов ферм, перераспределение местных нагрузок, приложенных к одной из рам, на соседние рамы, удобство монтажа, заданную геометрию каркаса, восприятие и передачу на колонны некоторых нагрузок. Система связей покрытия состоит из горизонтальных расположенных в плоскостях нижнего (рисунок 2) и верхнего пояса ферм (рисунок 3) и вертикальных связей (рисунок 4). Горизонтальные связи состоят из продольных и поперечных.
Рисунок 2. Схема горизонтальных связей по нижним поясам ферм
Рисунок 3. Схема горизонтальных связей по верхним поясам ферм
Рисунок 4. Схема вертикальных связей между фермамиСистема связей между колоннами (рисунок 5) обеспечивает во время эксплуатации и монтажа геометрическую неизменяемость каркаса, его несущую способность и жесткость в продольном направлении, а также устойчивость колонн из плоскости поперечных рам.
Рисунок 5. Схема вертикальных связей между колоннамиМонтажные крепление связей к конструкциям покрытия осуществляется на болтах (горизонтальные связи по верхним поясам ферм и все вертикальные связи) и на сварке (горизонтальные связи по нижним поясам ферм). 2 СТАТИЧЕСКИЙ РАСЧЕТ ОДНОЭТАЖНОЙ ОДНОПРОЛЕТНОЙ РАМЫ2.1 Компоновка однопролетной рамы2.1.1 Определение вертикальных размеров рамы
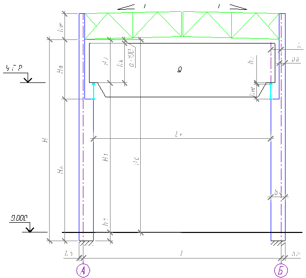
Рисунок 6. Схема к определению размеров в плоскости поперечникаТребуемое расстояние от верха оголовка рельса до низа фермы: H2=hk+a+100, где hk=4800 мм – высота крана 160/32 по ГОСТ 6711-81; a=330 мм – учитывает прогиб фермы; 100 мм – зазор безопасности. Н2=4800+330+100=5230 мм. Отметка низа фермы: H0=H1+H2, где H1=17000 мм – отметка головки рельса (по исходным данным). H0=17000+5230=22230 мм. Так как Н0=22230>10,8, то в соответствии с "Основными положениями по унификации" размер Н0 принимаем кратным 1800 мм: H0/1800=22230/1800=12.35=> принимаем отметку низа фермы H0=13*1800=23400, тогда отметка головки рельса: H1=H0-H2=23400-5230=18170 мм. Высота верхней части колонны: HB=H2+hp+hп.б., где hp=170 мм, hп.б.=1800 мм – соответственно высота рельса и высота подкрановой балки для крана 160/32по ГОСТ 6711-81; HB=5230+170+1800=7200 мм. Высота нижней части колонны: HH=H0+hб–HB, где hб=1000 мм – высота заглубления базы колонны. HH=23400+1000-7200=17200 мм. Общая высота стоек рамы: H=HH+HB, H=17200+7200=24400 мм. Высота фермы у опоры hоп=3150 мм, так как уклон верхнего пояса i=0. 2.1.2 Определение горизонтальных размеров рамыШирина верхней части колонны: bв³HB/12=7200/12=600, примем bв=700 мм. Привязка ферм к разбивочным осям согласно ГОСТ 23119-78 - 200 мм Продольная привязка колонны: b0=bв-200=700-200=500 мм. Ширина нижней части колонны: bн=bо+l, где l=1250 мм, так как Q=160 т.с; bн=500+1250=1750 мм. Для обеспечения жесткости цеха в плоскости рамы проверим условие: bн³Hн/x, где x=15 - для крана тяжелогорежима работы. bн=1750 мм > Hн/15=23400/15=1146.7мм – условие выполняется. Пролет крана: Lк=L–2*l, Lк=24000-2*1250=21500 мм.
2.2 Определение нагрузок действующих на раму2.2.1. Постоянные нагрузки от покрытияПроектируемое здание неотапливаемое, поэтому примем неутепленный тип покрытия (Рисунок 8).
Рисунок 8. Конструкция покрытияПостоянные нормативные и расчетные нагрузки на 1 м2 площади (gнкр, gкр) определяем в табличной форме. Таблица 1Вес ограждающих и несущих конструкций, кН/м2.
Постоянная погонная расчетная нагрузка на стропильную ферму: g=Bф*Sgкр. g=6*2.87=17.21кН/м. Реакция стропильной фермы: Vg=g*L/2. Vg=17.21*24/2=206.50кН. Сосредоточенная сила на верхнем конце колонны: V’g=Vg*B/Bф. V’g=206.50*12/6=412.99кН. 2.2.2 Снеговая нагрузкаПринимаем равномерное распределение снега по всему покрытию. Погонная расчетная снеговая нагрузка на стропильную ферму, кН/м: S=sg*Bф, где sg – расчетное значение веса снегового покрова на 1 м2 горизонтальной поверхности земли, принимаемое в зависимости от снегового района (г. Пенза – III снеговой район, sg=1.8кН/м2). S=1.8*6=10.8кН/м. Реакция фермы от снеговой нагрузки: Vs=S*L/2. Vs=10.8*24/2=129.6 кН. Сосредоточенная сила на колонну от снеговой нагрузки: Vs’=Vs*B/Bф. Vs=129.6*12/6=259.2кН. 2.2.3 Нагрузки от мостовых крановПри расчете однопролетного промышленного здания крановую нагрузку учитываем только от двух сближенных кранов наибольшей грузоподъемности с учетом сочетания крановых нагрузок nc=0.95 (тяжелый режим работы мостовых кранов). Вертикальное давление кранов определяем по линиям влияния опорной реакции общей опоры двух соседних подкрановых балок.
Рисунок 9. Схема к расчету нагрузки от мостовых кранов Расчетные давления на колонну: Dmax=nc*γf*Pmax*Syi+Gп.к, Dmin=nc*γf*Pmin*Syi+Gп.к, где γf =1.1– коэффициент надежности по нагрузке для мостовых кранов; Pmax – максимальное давление колеса крана: Pmax=0,5*(P1н+P2н); Pmax=0,5*(310+320)=315 кН; Pmin – минимальное давление колеса крана, кН: Pmin=[(Q+Gk)/n0]-Pmax; где Q=1600 кН – грузоподъемность крана; Gk=1617 кН – вес крана с тележкой; n0=8 – количество колес на одной стороне моста крана; Pmin=[(1600+1617)/8]-315=87 кН; Syi=9 – сумма ординат линий влияния; Gп.к=B*G=12*6=72 кН – вес подкрановых конструкций. Dmax=0.95*1.1*315*9+72=3034.6 кН; Dmin=0.95*1.1*87*9+72=891.4 кН. Подкрановые балки устанавливают с эксцентриситетом e1 по отношению оси нижней части колонны, поэтому от вертикальных давлений возникают сосредоточенные изгибающие моменты : Mmax=e1*Dmax, Mmin=e1*Dmin, где e1=0.5*bн=0.5*1.75=0.875м. Mmax=0.875*3034.6=2655.3кН*м; Mmin=0.875*891.4=780.0 кН*м. Расчетное горизонтальное давление от торможения тележки с грузом: T=nc*γf*0.5*f*(Q+GT)*Σyi/n0, где f=0.1 – коэффициент трения; GT=549 кН – вес тележки. T=0.95*1.1*0.5*0.1*(1600+549)*9/8=126.3 кН. 2.2.4 Ветровая нагрузкаДля одноэтажных производственных зданий учитывается только статическая составляющая ветровой нагрузки. Она вызывает активное давление – с наветренной стороны и отсос – с противоположной стороны. Нормативное значение давления ветра на вертикальную поверхность продольной стены зависит от района строительства, типа местности и высоты от уровня земли. Давление ветра на произвольной отметке от уровня земли определяется по формуле: ωm=ω0*k*c кН/м2, где ω0=0.3 кН/м2 – нормативная скорость напора ветра на уровне 10 м (г. Пенза – II ветровой район); k – коэффициент, учитывающий изменение ветрового давления в зависимости от высоты и типа местности (примем тип местности A); с – аэродинамический коэффициент учета конфигурации здания: для активного давления с=0.8, для отсоса – с’=0.75*с=0.6. Для определения ветровой нагрузки рассматривается расчетный блок шириной В (часть продольной стены). При этом давление ветра до низа ригеля прикладывается к стойкам рамы в виде распределенных нагрузок, а давление от шатровой части – в виде сосредоточенной силы, приложенной к верхушкам стоек. С целью упрощения расчетов фактическая эпюра давления ветра до отметки низа ригеля (по высоте Н) заменяется эквивалентной равномерно распределенной нагрузкой: ωэкв=ω0*kэкв кН/м2, где kэкв=1.122 – приращение напора за счет увеличения давления по высоте при отметке низа ригеля рамы H0=23.4 м. ωэкв=0.3*1.122=0.34 кН/м2. Активная погонная нагрузка на колонну: ωв=ωэкв*с*γf*Вфахв, где Вфахв=В=12 м – шаг колонн, γf =1.4 – коэффициент надежности по ветровой нагрузке. ωв=0.34*0.8*1.4*12=4.53 кН/м. Погонная нагрузка на колонну от отсоса: ωв’=ωэкв*с’*γf*Вфахв=0.75*ωв, Для определения расчетной сосредоточенной силы для активного давления W сравним положение отметки низа фермы H0=23.4 м и отметки верха кровли Hкр=H0+Hш=H0+hоп+hпп+hкр=23.4+3.15+0.3+0.03=26.88 м (Hш – высота шатра, hоп – высота фермы у опоры, hпп – высота плиты покрытия, hкр – высота кровли) с отметкой H20=20 м: H20=20 м<H0=23.4 м<Hкр=26.88 м. Расчетная сосредоточенная сила для активного давления (случай при H0>H20 или при H20>Hкр): W=(ωm23.4+ωm26.88)*γf*В*Нш/2, где γf =1.4 – коэффициент надежности по ветровой нагрузке, ωm23.4=ω0*k23.4*c=0.3*1.292*0.8=0.310 кН/м2 – давление ветра на отметке низа фермы H0=23.4 м, ωm26.88=ω0*k26.88*c=0.3*1.338*0.8=0.321 кН/м2 – давление ветра на отметке верха кровли Hкр=26.88 м, Нш=Hкр-H0=26.88-23.4=3.48 м – высота шатра. W=(0.310+0.321)*1.4*12*3.48/2=18.45 кН. Расчетная сосредоточенная сила для отсоса: W’=0.75*W=0.75*18.45=13.84 кН. 2.3 Статический расчет рамы с жесткими узлами2.3.1 Расчетная схема рамыОпределим расчетные усилия в характерных сечениях элементов рамы (1-1, 2-2, 3-3, 4-4 рисунок 10), которые необходимы для подбора сечения элементов и для расчета сопряжений и узлов. Принимаем: e=0.5*(bн-bв)=0.5*(1750-700)=525 мм. На данном этапе сечения стоек и ригеля неизвестны, поэтому зададимся отношением жесткостей элементов рамы из условий (здесь q=gкрн+sgн=2.56+1.8*0,7=3.82 кН/м2):
примем IB/IH=0.1, IP/IH=2, тогда IB=1, IH=10, IP=20. Расчетная схема изображена на рисунке 10.
Рисунок 10. Расчетная схема поперечной рамы2.3.2 Учет пространственной работы каркасаКоэффициент пространственной работы каркаса aпр зависит от типа кровли. При жестких кровлях из ж/б плит с замоноличиванием швов aпр находится по формуле:
где mр – число рам в блоке, β=2*n0/Σyi=2*8/9=1.78 – коэффициент, учитывающий разгружающее влияние смежных рам по отношению к рассматриваемой (2*n0 – общее число колес у двух сближенных кранов на одном пути). αпр=1.78*[1/11+962/(2*(1192+962+722+482+242))]=0.42. |
|||||||||||||||||||||||||||||||||||||||||||||||||||||||||||||||||||||||||||||||||||||||||||||||||||||||||||||||||||||||||||||||||||||||||||||||||||||||||||||||||||||||||||||||||||||||||||||||||||||||||||||||||||||||||||||||||||||||||||||||||||||||||||||||||||||||||||||||||||||||||||||||||||||||||||||||||||||||||||||||||||||||||||||||||||||||||||||||||||||||||||||||||||||||||||||||||||||||||||||||||||||||||||||||||||||||||||||||||||||||||||||||||||||||||||||||||||||||||||||||||||||||||||||||||||||||||||||||||||||||||||||||||||||||||||||||||||||||||||||||||||||||||||||||||||||||||||||||||||||||||||||||||||||||||||||||||||||||||||||||||||||||||||||||||||||||||||||||||||||||||||||||||||||||||||||||||||||||||||||||||||||||||||||||||||||||||||||||||||||||||||||||||||||||
| Величина | L | H | H2 | Hв | Iн | Iв | Iр | E | АПР | K | N | S |
| Размерность | м | м | м | м | - | - | - | м | - | - | - | - |
| Значение | 24 | 24.4 | 5.23 | 7.2 | 10 | 1 | 20 | 0.525 | 0.42 | 1 | 0.80 | 2 |
| Величина | Dmax | Dmin | Mmax | Mmin | G | P(S) | T | GEK(ωв) | W | GEK1(ωв’) | W1 | NB | NH |
| Размерность | кН | кН | кН*м | кН*м | кН/м | кН/м | кН | кН/м | кН | кН/м | кН | кН | кН |
| Значение | 3034.6 | 891.4 | 2655.3 | 780.0 | 17.21 | 10.8 | 126.3 | 4.53 | 18.45 | 3.39 | 13.84 | 0 | 0 |
3 РАСЧЕТ И КОНСТРУИРОВАНИЕ СТАЛЬНОЙ СТРОПИЛЬНОЙ ФЕРМЫ
3.1 Схема стропильной фермы
Стропильную ферму проектируем на основе серии I.460.2-10/88 «Стальные конструкции покрытий одноэтажных производственных зданий с фермами из парных уголков». Схема стропильной фермы представлена на рисунке 12.
Рисунок 12. Схема фермы
3.2 Определение нагрузок действующих на ферму
3.2.1 Постоянные нагрузки
Нагрузки от собственной массы 1 м2 кровли определяются по фактическому составу с учётом собственной массы стропильных ферм и связей (см. таблицу 1).
Сосредоточенные силы от постоянной нагрузки на узлы верхнего пояса фермы (d – шаг узлов):
Р=g*d.
Р=17.21*3=51.62 кН.
3.2.2 Снеговая нагрузка
Сосредоточенные силы от снеговой нагрузки на узлы верхнего пояса фермы для бесфонарного здания во всех узлах одинаковы и равны:
Рс=S*d.
Рс=10.8*3=32.4 кН.
3.2.3 Определение опорных моментов
В опорных сечениях ферм, являющихся ригелями рам с жесткими узлами, возникают изгибающие моменты. Для выявления дополнительных усилий в раскосах и приопорной панели верхнего пояса рассматриваются – Млевmax и соответствующий момент на правой опоре – Мпрсоот, вычисляемый для тех же нагрузок. Mлевmax принимаем по таблице расчетных комбинаций усилий для колонны левого ряда (из условия равновесия узла сопряжения ригеля со стойкой).
Для определения отрицательных опорных моментов ригеля рассматриваются два вида основных сочетаний:
1. Постоянная и одна наиболее неблагоприятная временная нагрузка с коэффициентом сочетаний nc=1 (крановая или ветровая);
2. Постоянная и две кратковременные нагрузки (крановая и ветровая) с коэффициентом nc=0,9.
Таблица 3
Расчетные моменты в опорных сечениях фермы
| +Млевmax | Мпрсоот | -Млевmax | Мпрсоот | |
| nc=1 | 144.442 | -312.444 | -556.0705 | -464.6897 |
| № загружений | 1,9 | 1, 10 | 1, 3, 5 | 1,4,7 |
| nc=0,9 | - | - | -727.88836 | -221.20606 |
| № загружений | - | - | 1, 3, 5, 10 | 1, 4, 7, 9 |
3.3 Определение расчетных усилий в стержнях фермы
Для определения расчетных усилий с учетом сочетания нагрузок усилия в стержнях ферм определяют от каждой нагрузки в отдельности. Для симметричных ферм в таблицу включают только стержни одной половины фермы.
3.4 Подбор сечения стержней фермы
Стержни стропильных ферм выполнены из прокатных уголков сечениями, показанными на рисунке 13.
Рисунок 13. Сечения элементов легких ферм – равнополочные уголки (б – стержень 6-7, а- остальные стержни фермы)
Для изготовления фермы принимаем сталь марки С245 с расчетным сопротивлением на растяжение и сжатие Ry=240 МПа.
Подбор сечения стержней фермы выполним из условия прочности (для центрально-растянутых элементов) и условия устойчивости (для сжатых элементов):
Таблица 4
Расчетные усилия в стержнях фермы
| Элемент | Обозначение стержня | Усилия от единичных нагрузок, кН | Усилия от пост. нагрузки Р=51.62кН | Усилия от снеговой нагрузки Pс=32.40кН | Усилия от опорных моментов, к*Нм | Расчетные усилия, кН | ||||||
| P=1 | Млев= -1 |
Мпр= -1 |
nс=1 | nс=0,9 | Млев= -727,88 |
Мпр= -221,21 |
Σ | № загружений | +Раст., -Сжатие |
|||
| 1 | 2 | 3 | 4 | 5 | 6 | 7 | 8 | 9 | 10 | 11 | 12 | 13 |
| ВП | В-1 | 0 | 0.32 | 0 | 0.00 | 0.00 | 0.00 | 245.07 | 0.00 | 245.07 | 6,8,11 | 245.07 |
| Г-3,Д-4 | -5.48 | 0.25 | 0.08 | -282.88 | -177.55 | -159.80 | 191.46 | 20.73 | 212.20 | 6,7 | -460.43 | |
| Е-6 | -7.38 | 0.16 | 0.16 | -380.96 | -239.11 | -215.20 | 122.54 | 41.47 | 164.00 | 6,7 | -620.07 | |
| НП | А-2 | 3.08 | -0.29 | -0.04 | 158.99 | 99.79 | 89.81 | -222.10 | -10.37 | -232.46 | 6,7 | 258.78 |
| А-5 | 6.93 | -0.21 | -0.12 | 357.73 | 224.53 | 202.08 | -160.83 | -31.10 | -191.93 | 6,7 | 582.26 | |
| Раскосы | 1-2 | -4.65 | -0.06 | 0.06 | -240.03 | -150.66 | -135.59 | -45.95 | 15.55 | -30.40 | 6,8,11 | -406.03 |
| 2-3 | 3.45 | 0.06 | -0.05 | 178.09 | 111.78 | 100.60 | 45.95 | -12.96 | 32.99 | 6,8,11 | 311.68 | |
| 4-5 | -2.09 | -0.06 | 0.06 | -107.89 | -67.72 | -60.94 | -45.95 | 15.55 | -30.40 | 6,8,11 | -199.23 | |
| 5-6 | 0.68 | 0.06 | -0.06 | 35.10 | 22.03 | 19.83 | 45.95 | -15.55 | 30.40 | 6,8,11 | 85.33 | |
| Стойки | 3-4 | -1.00 | 0 | 0 | -51.62 | -32.40 | -29.16 | 0.00 | 0.00 | 0.00 | 6,7 | -84.02 |
| 6-7 | -1.00 | 0 | 0 | -51.62 | -32.40 | -29.16 | 0.00 | 0.00 | 0.00 | 6,7 | -84.02 | |
а) Условие прочности центрально-растянутого элемента:
σ=N/An≤Ry*gс,
где: N – расчетное усилие в рассматриваемом стержне;
Ry – расчетное сопротивление материала;
Аn – площадь сечения стержня нетто;
gс – коэффициент условий работы, gс=1 (для растянутых элементов).
Требуемая площадь центрально-растянутого элемента из условия прочности:
Anтр≥N/Ry
Далее подбираем равнополочные уголки по ГОСТ 8509-93.
б) Условие устойчивости центрально-сжатого стержня:
σ=N/(φ*A)≤Ry*gс,
где: А – площадь сечения элементов брутто;
j – коэффициент продольного изгиба, который зависит от гибкости стержня l.
Коэффициент условия работы учитывают для тех стержней решетки, которые получаются с небольшим сечением гибкостью l³ 60 и которые могут легко деформироваться во время изготовления, транспортирования и монтажа фермы. Следовательно, для сжатых раскосов (кроме опорного) и стоек при l³ 60 gс=0,8.
Требуемая площадь центрально-сжатого стержня из условия устойчивости:
Aтр≥N/(φ*gс*Ry)
т.к. коэффициент j в неявном виде зависит от площади сечения, то задачу решают методом последовательных приближений. В первом приближении задаемся: для поясов l=80…100, для раскосов и стоек l=100…120.
Определив j в зависимости от l и Ry вычисляем величину Атр в первом приближении, из сортамента подбираем соответствующие профили уголков.
Необходима проверка принятого сечения по условию устойчивости: сжатый стержень потеряет устойчивость в той плоскости, относительно которой гибкость максимальная, т.к. при этом j минимальный. Поэтому вычисляем гибкости lx и ly:
lx=lefx/rx,
ly=lefу/rx,
где lefx – расчетная длина сжатого стержня в плоскости фермы;
lefу – то же, из плоскости фермы;
rx, ry – радиусы инерции сечения относительно осей х и у.
Для верхнего пояса расчетная длина стержня:
lefx=l,
где l – расстояние между центрами узлов.
Расчетная длина опорного раскоса:
lefx=0,5*l.
Для остальных сжатых стержней раскосов и стоек вводится коэффициент опорного защемления m=0.8, так что расчетная длина будет:
lefx=0,8*l,
Для определения расчетных длин сжатых стержней из плоскости фермы рассматривается схема связей по верхним поясам ферм.
Связи по верхним поясам ферм уменьшают расстояние между узлами, закрепленными от горизонтального смещения, поэтому:
lefу=lзакр,
где lзакр – расстояние между закрепленными от горизонтального смещения точками (при беспрогонной системе покрытия lзакр равно шагу узлов фермы верхнего пояса).
Для сжатых раскосов и стоек расчетная длина при расчете устойчивости из плоскости фермы принимается по формуле lefx=l.
Слабозагруженные сжатые стержни решетки рассчитываются по предельной гибкости, а сечения подбирают по требуемому радиусу инерции:
rminтр=lefу/lпр.
Предельная гибкость:
- для сжатых стержней поясов и опорных раскосов: lпр=180-60*α;
- для сжатых стержней раскосов и стоек: lпр=210-60*α;
- для растянутых стержней: lпр=400,
где α=N/(φmin*A*Ry*gс)≥0.5.
Толщину фасонок назначаем конструктивно, исходя из величины усилий в опорном раскосе: при N=-406.05принимаем толщину фасонки tф=12 мм.
Во избежание повреждения при транспортировке и монтаже наименьший уголок принимается с размерами 50х5 мм.
Все расчеты сведены в таблицу 5.
Таблица 5
Таблица подбора сечений стержней ферм
(толщина фасонки t ф= 12 мм, уклон i = 0 , сталь С245 , Ry= 240 МПа)
| Элемент | Обозначение стержня | Расчетное усилие | Сечение, мм | Площадь сечения, см2 | Геометрическая длина, мм | Расчетная длина, см | Радиусы инерции, см | Гибкости | Предельная гибкость | Коэф. продольного изгиба | Коэф. условий работы | Расчетное напряжение, МПа | Недонапряжение, % | |||||
| - | - | N | b | t | А | l | lxеf | lуеf | rx | ry | lx | ly | lпр | jmin | gc | σ | ∆ | |
| 1 | 2 | 3 | 4 | 5 | 6 | 7 | 8 | 9 | 10 | 11 | 12 | 13 | 14 | 15 | 16 | 17 | 18 | |
| ВП | В-1 | 245.07 | 125 | 9 | 43.9 | 2800 | 280 | 280.0 | 3.81 | 5.63 | 73.4 | 49.7 | 400 | - | 0.95 | 55.9 | 308.2 | |
| Г-3, Д-4 | -460.43 | 125 | 9 | 43.9 | 3000 | 300 | 300 | 3.81 | 5.63 | 78.7 | 53.3 | 140 | 0.696 | 0.95 | -150.8 | 51.2 | ||
| Е-6 | -620.07 | 125 | 9 | 43.9 | 3000 | 300 | 300 | 3.81 | 5.63 | 78.7 | 53.3 | 127 | 0.696 | 0.95 | -203.1 | 12.2 | ||
| НП | А-2 | 258.78 | 100 | 7 | 27.3 | 5800 | 580 | 580 | 3.05 | 4.56 | 190.2 | 127.2 | 400 | - | 0.95 | 94.8 | 140.5 | |
| А-5 | 582.26 | 100 | 7 | 27.3 | 6000 | 600 | 600 | 3.05 | 4.56 | 196.7 | 131.6 | 400 | - | 0.95 | 213.3 | 6.9 | ||
| Раскосы | 1-2 | -406.03 | 110 | 8 | 34.3 | 4220 | 211 | 422 | 3.36 | 4.99 | 62.9 | 84.6 | 123 | 0.651 | 0.8 | -181.7 | 5.6 | |
| 2-3 | 311.68 | 63 | 6 | 14.7 | 4250 | 425 | 425 | 1.92 | 2.97 | 221.2 | 143.2 | 400 | - | 0.95 | 211.4 | 7.8 | ||
| 4-5 | -199.23 | 100 | 7 | 27.3 | 4360 | 348.8 | 436 | 3.05 | 4.56 | 114.4 | 95.7 | 160 | 0.452 | 0.8 | -161.6 | 18.8 | ||
| 5-6 | 85.33 | 50 | 5 | 9.8 | 4250 | 425 | 425 | 1.53 | 2.41 | 278.7 | 176.5 | 400 | - | 0.95 | 87.5 | 160.5 | ||
| Стойки | 3-4 | -84.02 | 63 | 6 | 14.7 | 3090 | 247.2 | 309 | 1.92 | 2.97 | 128.6 | 104.1 | 162 | 0.371 | 0.8 | -153.4 | 25.1 | |
| 6-7 | -84.02 | 63 | 6 | 14.7 | 3090 | 247.2 | 309 | 2.97 | 2.97 | 83.3 | 104.1 | 175 | 0.515 | 0.8 | -110.6 | 73.6 | ||
Для ферм пролетом 24 м оптимальное количество типоразмеров - 4…5, и сечения поясов не меняют, поэтому окончательно принимаем:
В-1, Г-3, Д-4, Е-6 – ∟125х9;
1-2 – ∟110х8;
А-2, А-5, 4-5 – ∟100х7;
2-3, 3-4, 6-7 – ∟63х6;
А-1, 5-6 – ∟50х5.
Рисунок 14. Геометрическая схема полуфермы
3.5 Расчет и конструирование узлов фермы
3.5.1 Прикрепление раскосов и стоек к узловым фасонкам
Стержни решетки из парных уголков прикрепляются к узловым фасонкам угловыми швами по обушку и по перу (рисунок 15).
Величина усилий Nn и Nоб определяется по формуле:
Nn=g*N/2;
Nоб=(1-g)*N/2,
где: g=z0/b (для равнобоких уголков приближенно можно принять g=0,3) ;
N - расчетное усилие.

Рисунок 15. Узел крепления уголка к фасонке
Требуемую длину сварных швов определяем из условия прочности угловых швов на условный срез по металлу шва:
,
,
где: Rwf=180 МПа - расчетное сопротивление углового шва из стали С245;
bf - коэффициент глубины проплавления. (для автоматической и полуавтоматической сварки электродной проволокой диаметром 1,4…2 мм: bf=0,9 при kf=3…8 мм; bf=0,8 при kf=9…12 мм; bf=0,7 при kf=14…16 мм),
kfоб, kfп - катеты швов соответственно по обушку и по перу:
kfоб£1,2*tmin,
kfп£tуг-d,
где tmin – толщина фасонки или полки уголка;
tуг – толщина полки уголка,
d=1 мм для уголков с размерам до ∟90х7 включительно, d=2 мм для уголков большего размера.
Минимальная длина швов:
lwмин=4*kf,
lwмин=40 мм.
Расчет угловых сварных швов произведен в таблице 6.
Для уменьшения сварочных напряжений в фасонках принимают минимальное расстояние (см. рисунок 15):
a=6*tф-20,
где tф=12 мм – толщина фасонки.
a=6*12-20=52 мм, принимаем кратно 5 мм в большую сторону, а=55 мм.
Для плавной передачи усилий от стержня к фасонке угол между краями фасонки и уголка принят не менее 15°.
3.5.2 Расчет и конструирование опорных узлов
Верхний опорный узел (рисунок 16).
В опорном сечении фермы возникает отрицательный момент (-Mmax). Для расчета узла опорный момент заменяем парой сил H:
H=I-MmaxI/h0,
где: h0=3.1 м - плечо для двускатных ферм.
H=765.8526/3.1=247.05 кН.
Таблица 6
Расчет угловых сварных швов
| № стержня | Сечение, мм | Расчетное усилие, кН | Шов по обушку | Шов по перу | ||||||||||
| b | t | kfоб max, мм |
kfоб, мм |
Nоб, кН |
bfоб | lwоб, мм |
, мм | kfп max, мм |
kfп, мм | Nn, кН |
bfп | lwп, мм |
||
| 1 | 2 | 3 | 4 | 5 | 6 | 7 | 8 | 9 | 10 | 11 | 12 | 13 | 14 | 15 |
| В-1 | 125 | 9 | 245.07 | 10.8 | 8 | 85.77 | 0.9 | 76.2 | 2 | 7 | 6 | 36.76 | 0.9 | 47.8 |
| Г-3, Д-4 | 125 | 9 | -460.43 | 10.8 | 8 | -161.15 | 0.9 | 134.3 | 2 | 7 | 6 | 69.06 | 0.9 | 81.1 |
| Е-6 | 125 | 9 | -620.07 | 10.8 | 8 | -217.02 | 0.9 | 177.5 | 2 | 7 | 6 | 93.01 | 0.9 | 105.7 |
| А-2 | 100 | 7 | 258.78 | 8.4 | 6 | 90.57 | 0.9 | 103.2 | 2 | 5 | 4 | 38.82 | 0.9 | 69.9 |
| А-5 | 100 | 7 | 582.26 | 8.4 | 8 | 203.79 | 0.9 | 167.2 | 2 | 5 | 5 | 87.34 | 0.9 | 117.8 |
| 1-2 | 110 | 8 | -406.03 | 9.6 | 8 | -142.11 | 0.9 | 119.7 | 2 | 6 | 6 | 60.90 | 0.9 | 72.7 |
| 2-3 | 63 | 6 | 311.68 | 7.2 | 6 | 109.09 | 0.9 | 122.2 | 1 | 5 | 5 | 46.75 | 0.9 | 67.7 |
| 4-5 | 100 | 7 | -199.23 | 8.4 | 8 | -69.73 | 0.9 | 63.8 | 2 | 5 | 5 | 29.88 | 0.9 | 46.9 |
| 5-6 | 50 | 5 | 85.33 | 6.0 | 6 | 29.87 | 0.9 | 40.7 | 1 | 4 | 4 | 12.80 | 0.9 | 40.0 |
| 3-4 | 63 | 6 | -84.02 | 7.2 | 6 | -29.41 | 0.9 | 40.3 | 1 | 5 | 5 | 12.60 | 0.9 | 40.0 |
| 6-7 | 63 | 6 | -84.02 | 7.2 | 6 | -29.41 | 0.9 | 40.3 | 1 | 5 | 5 | 12.60 | 0.9 | 40.0 |
Требуемую площадь болтов нормальной точности определяем по формуле:
ΣAb=H/Rbt,
где: Rbt - расчетное сопротивление болта на растяжение, принимаемое в зависимости от класса болта. Принимаем класс болтов 5.6 (Rbt=210 МПа).
ΣAb=247.05/210=1176.4 мм2.
Минимальное количество болтов:
n=ΣAb/A,
где А=303 мм2 - площадь сечения одного болта по нарезке резьбы болта с наружным диаметром dнар=22 мм.
n=1176.4/303=3.9, принимаем n=4.
Болты устанавливают симметрично относительно центра узла с соблюдением конструктивных требований, в результате определяется длина фланца. Толщину фланца определяем из условия прочности на изгиб, рассматривая его как балку с защемленными опорами пролетом b (а – длина фланца):
,
tфл=(3*247.05*90*1000/(4*280*240))0,5=15.8 мм < tфлmin=16 мм, принимаем tфл=16 мм.
Швы, прикрепляющие фасонку к фланцу, работают на срез. Так как длина швов известна, то при заданной толщине шва kf можно проверить прочность:
,
или из условия прочности определить kf:
,
kf≥247.05*103/(0.9*180*2*(280-10)=2.8 мм, принимаем kf=5 мм.
Требуемая длина сварных швов из условия прочности угловых швов на условный срез по металлу шва определена в таблице 6 для стержня В-1.
Рисунок 16. Верхний опорный узел
Нижний опорный узел (рисунок 17).
Толщину фланца нижнего опорного узла принимаем равной толщине фланца верхнего опорного узла: tфл=16 мм. Ширину фланца принимаем конструктивно: bфл=180 мм.
Проверяем условие прочности торцевой поверхности на смятие:
,
где Rр – расчетное сопротивление на смятие торцевой поверхности с пригонкой по ГОСТ 27772-88, Rр=360 МПа;
V=Vs+Vg=336.10 кН – опорная реакция фермы.
σ=336.10*103/(180*16)=116.7 МПа < Rр=360 МПа.
В швах, прикрепляющих фасонку к фланцу, возникают срезающие напряжения:
– от опорной реакции вдоль шва:
,
τwv=336.10*103/[2*(450-10)*0.9*6]=70.7 МПа;
– от распора Н перпендикулярно шву:
,
τwH=247.05*103/[2*(450-10)*0.9*6]=52.0 МПа;
– от изгибающего момента вследствие эксцентричного действия силы H, создающей момент M=e*H:
,
τwM=6*150*247.05*103/[2*(450-10)2*0.9*6]=106.3 МПа.
Прочность швов при условном срезе проверяют по формуле:
,
τef=[70.72+(52.0+106.3)2]0.5=173.4 МПа < Rwf=180 МПа - условие прочности выполняется.
Для крепления фермы к колонне предусматривают болты нормальной точности, которые работают на растяжение. С целью унификации наружный диаметр болтов нижнего узла принимают, как и для верхнего - dнар=22 мм.
Опорный столик передает опорную реакцию V на колонну. Из условия прочности сварных швов на срез при известном значении катета шва определяем длину столика:
мм,
где 2/3 - учитывает возможный эксцентриситет приложения опорной реакции.
lст=2/3*336.10*103/(0.9*10*180)+10=148.3 мм. Принимаем lст=160 мм.
Ширину столика принимаем конструктивно:
bs=bфл+(50…100) мм,
bs=180+40=220 мм.
Рисунок 17. Нижний опорный узел
3.5.3 Расчет и конструирование узлов укрупнительного стыка
Для фермы пролетом 24 м рассчитывают два узла укрупнительного стыка – верхний и нижний. Стык поясов осуществляем с помощью листовых накладок. Размеры сечения горизонтальных накладок и фасонки подбираем из условия их равнопрочности с перекрываемыми вертикальными и горизонтальными полками пояса.
Верхний стык (рисунок 18).
Площадь сечения горизонтальной листовой накладки:
Aг.н=bг.н*tг.н³bуг*tуг.
Из конструктивных соображений имеем:
bг.н=bуг-40+(20…30),
bг.н=125-40+30=115 мм.
Толщина накладки:
tг.н≥bуг*tуг/bг.н,
tг.н≥125*9/115=9.8 мм, по ГОСТ 82-70* принимаем tг.н=10 мм, тогда
Aг.н=115*10=1150 мм2.
Длину сварных швов, прикрепляющих накладки к полкам уголков по одну сторону от узла, определяем по формуле:
,
где: Nг.н=Aг.н*Rу=1150*240/103=276 кН,
Rwf=180 МПа для сварки Св-08А.
lwтр=276*103/(0,9*6*180)+20=304.0 мм.
Полученный шов распределяем вдоль пера и по скосу (приблизительно 3:2).
Усилие вертикальных полок уголков передается через сварной шов на фасонку, затем на вертикальную накладку. Расчет сварных швов прикрепления полок уголков к фасонке приведен в таблице 6.
Высоту фасонки определим из условия ее равнопрочности с вертикальными полками уголков:
Аф=hффакт*tф≥2*Ав.п=2*bуг*tуг,
откуда высота фасонки:
hффакт≥2*bуг*tуг/tф.
hффакт≥2*125*9/12=187.5 мм, примем hффакт=272 мм, тогда Аффакт=272*12=3264 мм2.
Проверим условие прочности фасонки:
,
σ=-620.07/(2*1150+3264)=111.4 МПа < 240 МПа.
Длину и толщину одной вертикальной накладки определяем из условия равнопрочности фасонки и накладки:
lв н≥0,5*hффакт,
tв н≥0.5*tф,
lв н≥0,5*272=186.0 мм, примем lв н=200 мм,
tв н≥0,5*12=6.0 мм, примем, для унификации tв н=6 мм.
Катет шва прикрепления вертикальной накладки и фасонки определим из условия равнопрочности:
2*βf*kf*Rwf≥tн*Ry,
откуда требуемый катет шва:
βf*kf=tн*Ry/(2*Rwf),
βf*kf=6*240/(2*180)=4 мм, примем kf=5 мм.
Рисунок 18. Верхний укрупнительный стык
Нижний стык (рисунок 19).
Из конструктивных соображений имеем:
bг.н=100-40+30=90 мм.
Толщина накладки:
tг.н≥100*7/90=7.8 мм, по ГОСТ 82-70* принимаем tг.н=8 мм, тогда Aг.н=90*8=720 мм2.
Nг.н=720*240/103=173 МПа.
lwтр=173*103/(0,9*6*180)+20=233.3 мм.
Расчет швов прикрепление вертикальных полок к фасонке см. таблицу 6.
Высота фасонки:
hффакт≥2*100*7/12=116.7 мм, примем hффакт=272 мм, тогда Аффакт=272*12=3264 мм2.
Проверим условие прочности фасонки:
,
σ=582.26/(2*720+3264)=123.8 МПа < 240 МПа.
Определяем длину и толщину одной вертикальной накладки из условия равнопрочности фасонки и накладки:
lв н≥0,5*hффакт=0,5*272=186.0 мм, примем lв н=200 мм,
tв н≥0,5*tф=0,5*12=6.0 мм, примем tв н=6 мм.
Требуемый катет шва:
βf*kf=6*240/(2*180)=4 мм, примем kf=5 мм.
Рисунок 19. Нижний укрупнительный стык
4 Расчет и конструирование ступенчатой колонны
4.1 Исходные данные для расчета ступенчатой колонны
Расчет и конструирование ступенчатой колонны
Рассчитываем ступенчатую колонну со сплошным сечением в верхней части и сквозным в нижней (ригель имеет жесткое сопряжение с колонной).
Расчетные усилия (расчетные сечения колонны изображены на рисунке 10):
- для верхней части колонны:
в сечении 1-1 М1=-765.853 кН*м; N1=-646.32 кН; Q1=-208.252 кН (загружение №№ 1, 2, 3, 5, 10);
в сечении 2-2М2=681.619 кН*м (загружение №№ 1, 2, 3, 5, 10),
- для нижней части колонны:
в сечении 3-3 М3=-1986.137 кН*м; N3=-3447.64 кН; Q3=-179.857 кН (загружение №№ 1, 3, 6; изгибающий момент догружает подкрановую ветвь);
в сечении 4-4 М4=2207.159 кН*м; N4=-3377.461 кН; Q4=-253.673 кН (загружение №№ 1, 2, 3, 6, 10; изгибающий момент догружает наружную ветвь),
Qmax=-255.874 кН.
Соотношение жесткостей верхней и нижней части колонны IB/IH=0.1.
Материал колонны – сталь марки С245 (Ry=240 МПа), бетон фундамента марки В15 (Rb=8.5 МПа).
4.2 Определение расчетных длин колонны
Так как Hв/Hн=l2/l1=7200/17200=0.42<0.6, Nн/Nв=3447.64/646.32=5.3>3 и в однопролетной раме с жестким сопряжением ригеля с колонной верхний конец последней закреплен только от поворота, то для нижней части колонны μ1=2, для верхней - μ2=3.
Расчетные длины для нижней и верхней частей колонны в плоскости рамы:
lx1=μ1*l1,
lx2=μ2*l2.
lx1=2*17200=34400 мм,
lx2=3*7200=21600 мм.
Расчетные длины для нижней и верхней частей колонны из плоскости рамы:
ly1=Нн,
ly2=Нв-hп.б.
ly1=17200 мм,
ly2=7200-1800=5400 мм.
4.3 Подбор сечения верхней части колонны
4.3.1 Выбор типа сечения верхней части колонны
Сечение верхней части колонны принимаем в виде сварного двутавра высотой hв=700 мм (рисунок 20).
Для симметричного двутавра:
ix≈0,42*hв,
ρх≈0,35*hв.
ix≈0,42*700=294 мм;
ρх≈0,35*700=245 мм.
Условная гибкость:
=(lx2/ix)*(Ry/E)0.5,
=(21600/294)*(240/206000)0.5=2.51. Рисунок 20. Сечения верхней части колонны
Относительный эксцентриситет:
mx=ex/ρx=M1/(N1*ρx),
mx=765.853*103/(646.32*245)=4.84.
Примем в первом приближении Аf/Аw=1, тогда коэффициент влияния формы сечения:
η=(1.90-0.1*mx)-0.02*(6-mx)*
,
η=(1.90-0.1*4.84)-0.02*(6-4.84)*2.51=1.36.
Приведенный относительный эксцентриситет:
mx ef=η*mx,
mxef=1.36*4.84=6.57.
По таблице 74 СНиП II-23-81* находим φе=0.168.
Требуемая площадь сечения надкрановой части колонны:
Атр=N1/(φе*Ry),
Атр=646.32*103/(0.168*240)=16030 мм2.
Компоновка сечения.
Принимаем толщину полок tf=18 мм.
Высота стенки:
hw=hв-2*tf,
hw=700-2*18=664 мм.
Условие местной устойчивости стенки при
>0.8 и mx>1:
hw/tw≤(0.36+0.8*
)*(E/Ry)0.5,
hw/tw≤(0.36+0.8*2.51)*(206000/240)0.5=69.3,
tw≥hw/69.3=664/69.3=9.6мм.
Принимаем толщину стенки tw=10 мм.
Требуемая площадь полки:
Аf.тр=(Атр-tw*hw)/2,
Аf.тр=(16030-10*664)/2=4695 мм2.
Задаемся шириной полки из условия устойчивости верхней части колонны из плоскости действия момента:
bf≥ly2/20,
bf≥5400/20=270 мм, примем bf=280 мм.
Условие местной устойчивости полки:
bсв/tf≤(0.36+0.1*
)*(E/Ry)0.5,
где bсв=(bf-tw)/2=(280-10)/2=135, тогда
bсв/tf≤(0.36+0.1*2.51)*(206000/240)0.5=17.9, тогда
tf≥bсв/17.9=135/17.9=7.5 мм.
Принимаем сечение надкрановй части колонны – сварной двутавр с размерами:
bf=280 мм;
tf=18 мм;
Аf=280*18=5040 мм2>Аf.тр=4695 мм2;
hw=664 мм;
tw=10 мм;
Аw=664*10=6640 мм2.
Геометрические характеристики сечения.
Полная площадь сечения:
А0=2*Аf+Аw,
А0=2*5040+6640=16720 мм2.
Моменты инерции сечения относительно осей х и y:
Ix=tw*hw3/12+2*bf*tf*[(hв-tf)/2]2,
Iy=2*tf*bf3/12.
Ix=10*6643/12+2*280*18*[(700-18)/2]2=1416074933мм4,
Iy=2*18*2803/12=65856000 мм4.
Момент сопротивления сечения относительно оси х:
Wx=Ix/(0.5*hв),
Wx=1416074933/(0.5*700)=4045928 мм3.
ρx=Wx/А0=4045928/16720=242 мм.
Радиусы инерции сечения относительно осeй х и y:
ix=(Ix/А0)0,5,
iy=(Iy/А0)0,5.
ix=(1416074933/16720)0,5=291 мм,
iy=(65856000/16720)0,5=63 мм.
Рисунок 21. Сечение верхней части колонны
4.3.2 Проверка устойчивости верхней части колонны
Проверка устойчивости верхней части колонны в плоскости действия момента .
N1/(φe*A0)≤Ry*γc,
φe – коэффициент определяемый по табл. 74 СНиП II-23-81* и зависящий от условной гибкости
=λx*(Ry/E)0.5 и приведенного относительного эксцентриситета mеf определяемого по формуле:
mef x=η*mx,
где η – коэффициент влияния формы сечения,определяемый по табл. 73 СНиП II-23-81*,
mx=Mx/(N1*ρx) – относительный эксцентриситет.
λx=lx2/ix=21600/291=74.2.
=74.2*(240/206000)0.5=2.53, 0<
<5
mx=765.853*103/(646.32*242)=4.90.
Аf/Аw=5040/6640=0.76≈0.5.
Коэффициент влияния формы сечения:
η=(1,75-0,1*mx)-0,02*(5-mx)*
,
η=(1,75-0,1*4.90)-0,02*(5-4.90)*2.53=1.26.
mefx=1.26*4.90=6.15.
По таблице 74 СНиП II-23-81* находим φe=0.173.
σ=646.32/(0.173*240)=223.4 МПа < Ry=240 МПа.
Недонапряжение:
∆=100*(240-223.4)/240=6.9 %.
Проверка устойчивости верхней части колонны из плоскости действия момента.
Расчет на устойчивость внецентренно-сжатых элементов постоянного сечения из плоскости действия момента выполняем по формуле:
N1/(с*φy*A0)≤Ry*γc,
где φy– коэффициент определяемый по табл. 72 СНиП II-23-81*.
Определим коэффициенты с и φy.
λy=ly2/iy=5400/63=86, по табл. 72 СНиП II-23-81* находим φy=0.640.
Максимальный момент в средней трети расчетной длины стержня:
Mx1/3=M2+(l2-ly2/3)*(M1-M2)/l2,
Mx1/3=681.619+(7200-5400/3)*(-765.853-681.619)/7200=-404кН*м.
IMx1/3I>IМmax/2I=766/2=383кН*м.
Относительный эксцентриситет:
mx=Mx1/3*A0/(N1*Wx),
mx=-404*16720/(646.32*4045928)=2.58.
При mx<5 коэффициент с, учитывающий влияние момента Мх при изгибно-крутильной форме, вычисляется по формуле:
с=β/(1+α*mx),
λy=86<λс=3.14*(E/Ry)0.5=3.14*(206000/240)0.5=92 => β=1,
mx=2.58>1 => α=0,65+0,05*mx=0,65+0,05*2.58=0.78.
c=1/(1+0.78*2.58)=0.33.
Поскольку hw/tw=664/10=66.4<3.8*(E/Ry)0.5=3,8*(206000/240)0.5=111, то Aрасч=16720 мм2.
σ=646.32/(0.33*0.640*16720)=182 МПа < Ry=240 МПа
Недонапряжение:
∆=100*(240-182)/240=24.2 %.
4.4 Подбор сечения нижней части колонны
4.4.1 Выбор типа сечения нижней части колонны
Сечение нижней части колонны сквозное, состоящее из двух ветвей, соединенных решеткой (рисунок 22). Высота сечения hн=1750 мм. Подкрановую ветвь колонны принимаем из горячекатаного двутавра с параллельными гранями полок по ГОСТ 26020-83, наружную – из составного сварного сечения из трех листов.
Рисунок 22. Сечение нижней части колонны
Определим ориентировочное положение центра тяжести.
Принимаем z0=57 мм, тогда расстояние между центрами тяжестей сечений ветвей:
h0=h-z0,
h0=1750-57=1693 мм.
Положение центра тяжести найдем приближенно в предположении, что площади ветвей пропорциональны усилиям в них, тогда расстояние между центрами тяжести сечения подкрановой ветви и сечения всей колонны y1 и между центрами тяжести сечения наружной ветви и сечения всей колонны y2 равны:
,
y2=h0-y1.
y1=2207.159*1693/(1986.137+2207.159)=891 мм;
y2=1693-891=802 мм.
Усилие в подкрановой ветви:
Nв1=N3*y2/h0+M3/h0,
Nв1=-3447.64*802/1693+(-1986.137)*103/1693=-2806.11 кН.
Усилие в наружной ветви:
Nв2=N4*y1/h0-M4/h0,
Nв2=-3377.461*891/1693-2207.159*103/1693=-3081.44 кН.
Требуемая площадь подкрановой ветви:
Ав1=Nв1/(j*Ry),
задаемся j=0.8; Ry=240 МПа.
Ав1=2806.11*103/(0.8*240)=14615 мм2.
Принимаем подкрановую ветвь – двутавр 60Б2 с параллельными гранями полок (ГОСТ 26020-83):
Ав1=14730 мм2,
ix1=49.2 мм,
iy=243.9 мм,
h=597 мм,
b=230 мм,
t=17.5 мм.
Требуемая площадь наружной ветви:
Ав2=Nв2/(j*Ry),
задаемся j=0.737; Ry=240 МПа.
Ав2=3081.44*103/(0.737*240)=17421 мм2,
Для удобства прикрепления элементов решетки просвет между внутренними гранями полок принимаем таким же, как в подкрановой ветви (hвн=h-2*t=597-2*17.5=562 мм). Толщину стенки швеллера для удобства ее соединения встык с полкой надкрановой части колонны принимаем tw=18 мм; высота стенки из условия размещения сварных швов hw=650 мм.
Тогда требуемая площадь полки:
Af=(Aв2-tw*hw)/2,
Af=(17421-18*650)/2=3960 мм2.
Условие местной устойчивости полки швеллера:
bсв/tf≤(0.36+0.1*
)*(E/Ry)0.5≈18,
Принимаем наружную ветвь – сварной швеллер с размерами:
bf=220 мм,
tf=18 мм (bсв/tf=12.2≤18),
Af=3960 мм2,
tw=18 мм,
hw=650 мм,
Aw=11700 мм2.
Геометрические характеристики наружной ветви:
Площадь сечениянаружной ветви:
А в2=2*Аf+Аw,
Ав2=2*3960+11700=19620 мм2.
Расстояние между наружной гранью стенки швеллера и осью сечения швеллера:
z0=[hw*tw*tw/2+2*Аf*(bf/2+tw)]/Ав2,
z0=[650*18*18/2+2*3960*(220/2+18)]/19620=57 мм.
Расстояние между осью стенкой швеллера и осью сечения швеллера:
e=z0-0,5*tw,
e=57-0,5*18=48 мм.
Расстояние:
c=tw+bf/2-z0,
c=18+220/2-57=71 мм.
Моменты инерции сечения наружной ветви относительно осей х2 и y:
Ix2=2*tf*bf3/12+hw*tw*e2+2*bf*tf*c2,
Iy=tw*hw3/12+2*tf*bf*((hвн+tw)/2)2.
Ix2=2*18*2203/12+650*18*482+2*220*18*712=59504063 мм4.
Iy=18*6503/12+2*18*220*((562+18)/2)2=1078009500 мм4.
Радиусы инерции сечения наружной ветви относительно осeй х2 и y:
ix2=(Ix2/Ав2)0,5,
iy=(Iy/Ав2)0,5.
ix2=(59504063/19620)0,5=55 мм,
iy=(1078009500/19620)0,5=234 мм.
Уточняем положение центра тяжести сечения колонны:
h0=hн-z0=1750-57=1693 мм;
y1=Ав2*h0/(Ав1+Ав2)=19620*1693/(14730+19620)=967 мм;
y2=h0-y1=1693-967=726 мм.
Уточняем усилия в ветвях колонны.
Усилие в подкрановой ветви:
Nв1=-3447.64*726/1693+(-1986.137)*103/1693=-2651.59 кН.
Усилие в наружной ветви:
Nв2=N4*y1/h0-M4/h0=-3377.461*967/1693-2207.159*103/1693=-3232.86 кН.
Рисунок 23. Сечение нижней части колонны
4.4.2 Проверка устойчивости нижней части колонны
Проверка устойчивости ветвей из плоскости рамы (относительно оси y – y ).
Подкрановая ветвь:
ly=ly1/iy=17200/243.9=70.5; jy=0.751;
s=Nв1/(jy*Aв1)=2651.59*103/(0.751*14730)=239.6 МПа < Ry=240 МПа.
Наружная ветвь:
ly=ly1/iy=17200/234=73.4; jy=0.737;
s=Nв2/(jy*Aв2)=3232.86*103/(0.737*19620)=223.5МПа < Ry=240 МПа.
Из условия равноустойчивости подкрановой ветви в плоскости и из плоскости рамы определяем требуемое расстояние между узлами решетки:
lx1=lв1/ix1=lу=70.5;
lв1=lx1*ix1=70.5*49.2=3470 мм.
Принимаем lв1=3140 мм (число панелей – n=5).
Проверка устойчивости ветвей в плоскости рамы (относительно осей х1–х1 и х2–х2).
Для подкрановой ветви:
lx1=lв1/ix1=3140/49.2=63.8; jx=0.786;
s=Nв1/(jx*Aв1)=2651.59*103/(0.786*14730)=229.0 МПа < Ry=240 МПа.
Для наружной ветви:
lx2=lв1/ix2=3140/55=57.02; jx=0.819;
s=Nв2/(jx*Aв2)=3055,01*103/(0.819*19620)=201.1МПа < Ry=240 МПа.
4.4.3 Расчет решетки подкрановой части колонны
Поперечная сила в сечении колонны: Qmax=-255.874 кН.
Условная поперечная сила:
Qусл=0,2*A=0,2*(Aв1+Aв2),
Qусл=0,002*(14730+19620)=68.7 кН<Qmax.
Расчет решетки проводим на Qmax.
Усилие сжатия в раскосе:
Np=Qmax/2*sina,
где sina=hн/lp=hн/(hн2+(lв1/2)2)0,5=1750/(17502+(3140/2)2)0,5=0.74.
Угол наклона раскоса a=аrcsin0.74=48˚.
Np=255.874/2*0.74=171.9 кН.
Задаемся lр=94.4; j=0.581.
Тогда требуемая площадь раскоса:
Ар=Nр/(j*Ry*γс),
где gс=0,75 – для сжатого уголка, прикрепляемого одной полкой.
Ар=171.9/(0.581*240*0.75)=1645 мм2.
Принимаем решетку: ∟125´8 со следующими характеристиками:
Ар=1970мм2,
imin=24.9мм,
lmax=lp/imin=2351/24.9=94.4, j=0.580.
Напряжения в раскосе:
s=Nр/(j*Ар)=171.9*103/(0.580*1970)=150.3 МПа < Ry*gс=240*0,75=180 МПа.
4.4.4 Проверка устойчивости колонны в плоскости действия момента как единого стержня
Площадь сечения:
А=Ав1+Aв2,
А=14730+19620=34350 мм2.
Момент инерции сечения:
Ix=Aв1*y12+Aв2*y22,
Ix=14730*9672+19620*7262=24114046669 мм4.
Радиус инерции:
ix=(Ix/А)0,5=(24114046669/34350)0,5=838 мм.
Гибкость:
lx=lx1/ix=34400/838=41.1.
Приведенная гибкость:
lпр=(lx2+α1*А/Арl)0.5,
где Ар1=2*Ар=2*1645=3940 мм2 – площадь сечения раскосов по двум граням сечения колонны;
α1=10*lр3/(hн2*lв1)=10*23513/(17502*3140)=13.5,
где lр – длина раскоса,
hн – проекция длины раскоса на горизонталь,
lв1 – проекция длины раскоса на вертикаль.
lпр=(41.12+13.5*34350/3940)0.5=42.5.
Условная приведенная гибкость:
=λпр*(Ry/E)0.5,
=42.5*(240/20600)0.5=1.45.
Для комбинации усилий, догружающих наружную ветвь:
М4=2207.159 кН*м; N4=3377.461 кН.
Приведенный относительный эксцентриситет:
mef=М4*A*(y2+z0)/(N4*Ix),
mef=2207.159*103*34350*(726+57)/(3377.461*24114046669)=0.73.
По таблице 75 СНиП II-23-81* находим: φе=0.535.
σ=N4/(jе*А)=3377.461/(0.535*34350)=183.8 МПа < Ry=240 МПа.
Для комбинации усилий догружающих подкрановую ветвь:
М3=1986.137 кН*м; N3=3447.64 кН.
Приведенный относительный эксцентриситет:
mef=М3*A*y1/(N3*Ix),
mef=1986.137*34350*967/(3447.64*24114046669)=0.79.
По таблице 75 СНиП II-23-81* находим: φе=0.519.
σ=N3/(jе*А)=3447.64/(0.519*34350)=193.4 МПа < Ry=240 МПа.
Устойчивость сквозной колонны как единого стержня из плоскости действия момента не проверяем, т.к. она обеспечена проверкой устойчивости отдельных ветвей.
4.5 Расчет и конструирование узла сопряжения верхней и нижней частей колонны
Расчетные комбинации усилий в сечении над уступом:
1) М=814.921 кН*м; N=-413.04 кН.
2) М=-155.079 кН*м; N=-672.24 кН.
Давление кранов Dmax=3034.6 кН.
Прочность стыкового шва (ш1, рис.24) проверяем по нормальным напряжениям в крайних точках сечения надкрановой части. Площадь шва равна площади сечения колонны.
1-я комбинация М и N .
Наружная полка:
σwН.п.=N/А0+IMI/Wх=-413.04*103/16720-814.921*106/4045928=-226.1 МПа.
IσwН.п.I=I-226.1I МПа < Ry=240МПа.
Внутренняя полка:
σwВ.п.=N/А+IMI/W=-413.04*103/16720+814.921*106/4045928=176.7 МПа.
IσwВ.пI=I176.7I МПа < Ry=240МПа.
2-я комбинация М и N :
Наружная полка:
σwН.п.=N/А0-M/Wх=-672.24*103/16720-(-155.079)*106/4045928=-1.9 МПа.
IσwН.п.I=I-1.9I МПа < Ry=240МПа.
Внутренняя полка:
σwВ.п.=N/А+M/W=-672.24*103/16720+(-155.079)*106/44045928=-78.5 МПа.
IσwВ.пI=I-78.5I МПа < Ry=240МПа.
Толщину стенки траверсы определяем из условия смятия:
tтр≥Dmax/(lсм*Rb*g),
где lсм=bop+2*tпл=300+2*20=340 мм,
bop=300 мм; tпл=20 мм; Rр=360 МПа.
tтр≥3034.6/(340*360*1)=24.8 мм, принимаем tтр=25 мм по ГОСТ 82-70*.
Усилие во внутренней полке верхней части колонны (2-ая комбинация):
Nп=N/2+M/hв,
Nп=-672.24/2+(-155.079)*103/700=-557.7 кН.
Длина шва крепления вертикального ребра траверсы к стенке траверсы (ш2):
Lш2=Nп/(4*kf*βf*Rwf*gwf)<85*βf.*kf,
Lш2=557.7/(4*8*0,9*180*1)=107.6 мм < 85*0,9*8=612 мм.
Принимаем полуавтоматическую сварку проволокой марки Св-08А, d=1,4...2 мм.
В стенке подкрановой ветви делаем прорезь, в которую заводим стенку траверсы.
Для расчета шва крепления траверсы к подкрановой ветви (ш3) принимаем вторую комбинацию усилий, дающую наибольшую опорную реакцию траверсы F:
М=-155.079 кН*м; N=-672.24 кН.
F=N*hв/2*hн+M/hн-0,9*Dmax.
F=-672.24*700/(2*1750)+(-672.24)*103/1750-0,9*3034.6=-2954.2 кН.
Требуемая длина шва:
Lш3=F/(4*kf*βf*Rwf*gwf) < 85*βf.*kf,
Lш3=2954.2/(4*9*0,9*180*1)=506.5 мм < 85*0,9*9=688.5 мм.
Из условия прочности стенки подкрановой ветви в месте крепления траверсы определяем высоту траверсы hтр:
hтр≥F/(2*tw*Rs*g),
где tw=17.5 мм – толщина стенки двутавра подкрановой ветви.
hтр≥2954.2*103/(2*17.5*140*1)=1205.8 мм.
Принимаем высоту траверсы hтр=1500 мм.
Проверим прочность траверсы как балки, нагруженной усилиями N, M, Dmax.
Максимальная поперечная сила в траверсе:
Qmax=N*hв/2*hн+M/hн-k*0,9*Dmax/2,
где k=1,2 – коэффициент, учитывающий неравномерную передачу усилия Dmax.
Qmax=-672.24*700/(2*1750)+(-155.079)/1750-1,2*0,9*3034.6/2=-1955.3 кН.
Касательное напряжение:
τтр=Qmax/(tтр*hтр),
τтр=1955.3/(25*1500)=52.1 МПа < Rs=140 МПа.
Рисунок 24. Соединение верхней и нижней частей колонны
4.6 Расчет и конструирование базы колонны
4.6.1 Определение расчетных усилий
База колонны представлена на рисунке 25.
Расчетные комбинации усилий в нижнем сечении колонны (сечение 4–4):
1) M=2207.16 кH*м; N=-3377.46 кH (для расчета базы наружной ветви);
2) M=-1425.54 кH*м; N=-3377.46 кH (для расчета базы подкрановой ветви).
Усилия в ветвях колонны:
- в подкрановой ветви:
Nв1=N*y2/h0+M/h0,
Nв1=3377.5*726/1693+1425.5*103/1693=2290.36 кН;
- в наружной ветви:
Nв2=N*y1/h0+M/h0,
Nв2=3377.5*967/1693+2207.2*103/1661=3232.86 кН.
4.6.2 База наружной ветви
Подберем плиту базы и траверсы наружной ветви колонны.
Требуемая площадь плиты:
Апл.тр=Nв2/(Rb*γ),
Апл.тр=3232.86/(8.5*1.2)=316947 мм2.
По конструктивным соображениям свес плиты с2 принимаем не менее 40 мм. Тогда:
В³bk+2*с2=597+2*40=677 мм, принимаем В=700 мм, тогда
с2=(В-bk)/2=(700-597)/2=51.5 мм.
Требуемая длина плиты:
Lтр=Апл.тр/В,
Lтр=316947/700=453 мм, принимаем L=500 мм.
Фактическая площадь плиты:
Апл.факт=B*L,
Апл.факт=700*500=350000 мм2.
Среднее напряжение в бетоне под плитой:
sb=Nв2/Апл.факт,
sb=3232.86*103/350000=9.24 МПа.
Из условия симметричного расположения траверс относительно центра тяжести ветви расстояние между траверсами в свету равно:
p=2*(bf+tw-z0),
p=2*(220+18-57)=362 мм.
Толщину траверсы принимаем tтрав=14 мм, тогда свес плиты с1 будет равен:
c1=(L-p-2*tтрав)/2,
c1=(500-362-2*14)/2=55 мм.
Определяем изгибающие моменты на отдельных участках плиты (на 1 м):
- участок 1 (консольный свес с=с1=55 мм):
M1=σb*c12/2=9.24*552/2=14.0 кН*м;
- участок 2 (консольный свес с=с2=51.5 мм):
M2=σb*c22/2=9.24*51.52/2=12.2 кН*м;
- участок 3 (плита, опертая на четыре стороны):
b/a=562/220=2.6 => α=0.125.
M3=α*σb*a2=0.125*9.24*2202*10-3=55.9кН*м;
- участок 4 (плита, опертая на четыре стороны):
d=p-tw-a=362-18-220=124мм,
b/d=562/124=4.5 => α=0.125,
M4=α*σb*d2=0.125*9.24*1242=17.7 кН*м.
Принимаем для расчета Мmax=55.9 кН*м.
Требуемая толщина плиты (с учетом припуска на фрезеровку - 2 мм):
tпл=(6*Mmax/Ry)0,5+2,
tпл=(6*103*55.9/240)0,5+2=39.4 мм, принимаем по ГОСТ 82-70* tпл=40 мм.
Высоту траверсы определяем из условия размещения шва крепления траверсы к ветви колонны. В запас прочности все усилия в ветви передаем на траверсу через 4 угловых шва. Сварка полуавтоматическая проволокой марки Св-08А; d=1,4…2 мм; bf=0,9. Назначаем kf=14 мм.
Определяем требуемую длину шва:
lfтр=Nв2/(4*kf*βf*Rwf*γwf) < 85*βf*kf,
lfтр=3232.86*103/(4*14*0.9*180*1)=356.4 мм < 85*0,9*14=1071 мм
Принимаем hтр=400 мм.
Подберем анкерные болты.
Для определения анкерных болтов базы наружной ветви принимаем следующие комбинации усилий (см. рисунок 25):
Mмакс нар=1329.37 кН*м, Nмин сжим=413.04 кН.
Усилие в болтах базы наружной ветви:
Fа нар=(Mмакс нар-Nмин сжим*y1)/h0,
Fа=(1329.37-413.04*967*10-3)*103/1693=549.3 кН.
Требуемая площадь нетто одного болта:
Aнтрнар=Fa нар/(n*R),
где n – количество болтов в базе, шт,
R– расчетное сопротивление растяжению фундаментного болта, МПа.
Aнтрнар=549.3*103/(2*185)=1484.6 мм2.
Принимаем по ГОСТ 24379.0-80 в базе подкрановой ветви фундаментные болты 2 Æ 56 с площадью одного болта A н нар= 1874.0 мм2.
Подберем анкерные плитки.
Расчетный момент:
M=0,5*Fа нар*p/2,
M=0,5*549.3*362*10-3/2=49.70 кН*м.
Требуемый момент сопротивления сеченияанкерной плитки с одной стороны от ветви колонны:
Wтр=M/(2*Ry),
Wтр=49.70*106/(2*240)=103547 мм3.
Примем два швеллера 14У по ГОСТ 8240-97 с суммарным моментом сопротивления Wx=140400 мм3.
Проверка прочности:
σ=M/(2*W)<Ry,
σ=49.70*106/140400=177.0 МПа < Ry=240 МПа.
4.6.3 База подкрановой ветви
Подберем плиту базы и траверсы подкрановой ветви колонны.
Требуемая площадь плиты:
Апл.тр=Nв1/(Rb*γ),
Апл.тр=2290.36/(8.5*1.2)=224545 мм2.
По конструктивным соображениям свес плиты с2 принимаем не менее 40 мм. Тогда:
В³bk+2*с2=597+2*40=677 мм, принимаем В=700 мм, тогда
с2=(В-bk)/2=(700-597)/2=51.5 мм.
Требуемая длина плиты:
Lтр=Апл.тр/В,
Lтр=224545/700=321 мм, принимаем L=400 мм.
Фактическая площадь плиты:
Апл.факт=B*L,
Апл.факт=700*400=280000 мм2.
Среднее напряжение в бетоне под плитой:
sb=Nв1/Апл.факт,
sb=2290.36*103/280000=8.18 МПа.
Расстояние между траверсами в свету равно: p=230 мм.
Толщину траверсы принимаем tтрав=14 мм, тогда свес плиты с1 будет равен:
c1=(L-p-2*tтрав)/2,
c1=(400-230-2*14)/2=71 мм.
Определяем изгибающие моменты на отдельных участках плиты (на 1 м):
- участок 1 (консольный свес с=с1=71 мм):
M1=σb*c12/2=8.18*712/2=20.6 кН*м;
- участок 2 (консольный свес с=с2=51.5 мм):
M2=σb*c22/2=8.18*51.52/2=10.8 кН*м;
- участок 3 и 4 (плита, опертая на четыре стороны):
b/a=562/115=4.9 => α=0.125.
M3=α*σb*a2=0.125*8.18*1152*10-3=13.5кН*м.
Принимаем для расчета Мmax=20.6 кН*м.
Требуемая толщина плиты (с учетом припуска на фрезеровку - 2 мм):
tпл=(6*Mmax/Ry)0,5+2,
tпл=(6*20.6*103/240)0,5+2=24.7 мм, принимаем по ГОСТ 82-70* tпл=25 мм.
Высоту траверсы определяем из условия размещения шва крепления траверсы к ветви колонны. В запас прочности все усилия в ветви передаем на траверсу через 4 угловых шва. Сварка полуавтоматическая проволокой марки Св-08А; d=1,4…2 мм; bf=0,9. Назначаем kf=10 мм.
Определяем требуемую длину шва:
lfтр=Nв2/(4*kf*βf*Rwf*γwf) < 85*βf*kf,
lfтр=2290.36*103/(4*10*0.9*180*1)=353.5 мм < 85*0,9*10=765 мм.
Принимаем hтр=400 мм.
Подберем анкерные болты.
Для определения анкерных болтов базы подкрановой ветви принимаем следующие комбинации усилий:
Mмакс вн=1348.5 кН*м, Nмин сжим вн=331.67 кН.
Усилие в болтах базы подкрановой ветви:
Fа вн=(Mмакс вн-Nмин сжим вн*y2)/h0,
Fа вн=(1348.5-331.67*726*10-3)*103/1693=654.3 кН.
Требуемая площадь нетто одного болта:
Aнтрвн=Fа вн/(n*R),
где n – количество болтов в базе, шт,
R – расчетное сопротивление растяжению фундаментного болта, МПа.
Aнтрвн=654.3*103/(2*185)=1768.4 мм2.
Принимаем по ГОСТ 24379.0-80 в базе подкрановой ветви фундаментные болты 2 Æ 56 с площадью одного болта A н вн= 1874.0 мм2.
Подберем анкерные плитки.
Расчетный момент:
M=0,5*Fа вн*p/2,
M=0,5*654.3*230*10-3/2=37.62 кН*м.
Требуемый момент сопротивления сеченияанкерной плитки с одной стороны от ветви колонны:
Wтр=M/(2*Ry),
Wтр=37.62*106/(2*240)=78380 мм3.
Примем два швеллера 12У по ГОСТ 8240-97 с суммарным моментом сопротивления Wx=101200 мм3.
Проверка прочности:
σ=M/(2*W)<Ry,
σ=37.62*106/(2*101200)=185.9 МПа < Ry=240 МПа.
Рисунок 25. База колонны
Список использованных источников
2. ГОСТ 23119-78. Фермы стропильные стальные сварные с элементами из парных уголков для производственных зданий. Технические условия.
3. ГОСТ 24379.0-80. Болты фундаментные. Общие технические условия. Конструкция и размеры. Москва. 1981 г.
4. ГОСТ 26020-83. Двутавры стальные горячекатаные с параллельными гранями полок. Сортамент.
5. ГОСТ 27772-88. Прокат для строительных стальных конструкций. Общие технические условия. Государственный комитет СССР по управлению качеством продукции и стандартам. Москва.
6. ГОСТ 4121-96. Рельсы крановые. Технические условия. Минск. 1996 г.
7. ГОСТ 82-70. Прокат стальной горячекатаный широкополосный универсальный. Государственный комитет по стандартам. Москва.
8. ГОСТ 8509-93. Уголки стальные горячекатаные равнополочные. Сортамент. Межгосударственный совет по стандартизации, метрологии и сертификации. Минск.
9. Серии I.460.2-10/88. Стальные конструкции покрытий одноэтажных производственных зданий с фермами из парных уголков. 1988 г.
10. СНиП 2.01.0.7-85*. Нагрузки и воздействия. Нормы проектирования. Министерство строительства Российской Федерации. Москва. 1996 г.
11. СНиП 23-02-2003. Тепловая защита зданий.
12. СНиП II-23-81*. Стальные конструкции. Нормы проектирования. Москва. Стройиздат. 1990 г.
13. СНиП II-26-76. Кровли.
14. СП 23-101-2004. Проектирование тепловой защиты зданий.
15. Металлические конструкции. Под редакцией Беленя Е.И. Москва. Стройиздат. 1986 г.
16. Строительные конструкции: «Металлические конструкции», «Железобетонные и каменные конструкции», «Конструкции из дерева и пластмасс». Учебное пособие «Контроль знаний студентов по курсовому проектированию, экзаменам и зачетам» специальности 290300 «Промышленное и гражданское строительство» всех форм обучения. ИГАСУ. Составители: Малбиев С.А., Телоян А.Л, Лопатин А.Н. Иваново. 2006 г.
17. Металлические конструкции. Нормативные и справочные материалы для курсового и дипломного проектирования. Телоян А.Л. Пермь. 2005 г.
18. Статический расчет рам одноэтажных однопролетных производственных зданий. Методические указания по курсовому и дипломному проектированию для специальностей: 1402, 1205. Телоян А.Л. ИИСИ. Пермь. 1985 г.
19. Расчет и конструирование стальных стропильных ферм. Методическое указание для курсового и дипломного проектирования. Телоян А.Л. ИИСИ. Пермь. 1984 г.
20. Конструктивные схемы и узлы стальных конструкций одноэтажных производственных зданий. Методические указания для курсового и дипломного проектирования. Альбом №2. Телоян А.Л. ИИСИ. Пермь. 1985 г.
21. Проектирование и расчет стальных конструкций балочных перекрытий и центрально сжатых колонн. Методические указания к выполнению курсовой работы «Балочное перекрытие рабочей площадки». Телоян А.Л. ИИСИ. Пермь. 1988 г.
22. Курсовой проект «Стальной каркас одноэтажного производственного здания». Смирнов А. Ю. ИГАСУ. Пермь 2008 г.
Рисунок 7. Схема поперечной рамы
=0.10,
=0.63,
,