Реферат: Архитектурные конструкции многоэтажных зданий
|
Название: Архитектурные конструкции многоэтажных зданий Раздел: Рефераты по строительству Тип: реферат |
РЕФЕРАТКонструктивные решения многоэтажных зданий Выполнил студентВечернего отделения 4 курса, группы №6 Капустина Ю. В. Москва, 2010г Содержание 1. Составные элементы конструктивных систем и их назначение 2. Конструктивные системы остова многоэтажных зданий 3. Типы лестничных клеток 4. Типы лестнично-лифтовых блоков 5. Конструктивные решения фасадных систем: многослойные, вентилируемые, светопрозрачные 6. Конструктивные решения крыш Используемая литература 1. Составные элементы конструктивных систем и их назначение Фундаменты — подземные конструктивные элементы зданий воспринимающие все нагрузки от выше расположенных вертикальных элементов несущего остова и передающие эти нагрузки на основание. Работа фундаментов протекает в постоянно изменяющихся условиях под воздействием больших нагрузок поэтому к их качеству предьявляют повышенные требования. Материалы из которых делают фундаменты, должны обладать высокой морозостойкостью, механической прочностью ,долговечностью и не разрушаться под агрессивным воздействием грунтовых вод. Таким качеством отвечают такие материалы, как бутобетон, бетон, железобетон. В настоящее время в конструкциях фундаментов используется в основном железобетон, который находит применение как в монолитных фундаментах так и для изготовления сборных элементов. По характеру конструктивного решения и особенностям выполнения различают следующие типы фундаментов: а) ленточные, состоящие из непрерывной в плане стеновой опоры под всей длиной нагруженной стены здания (рис.1} б)столбчатые или отдельно стоящие, представляющие собой ряд отдельных опор, устанавливаемых под стойками или колоннами, а также под стенами, опертыми на фундаментные балки (рис.2) в] свайные, устраиваемые из свай, опускаемых в грунт (рис.3) г) сплошные илц плитные, состоящие из обшей фундаментной плиты, принимающей вес всего здания или сооружения в целом (рис.4) Разновидностью сплошных фундаментов являются так называемые ребристые и коробчатые конструкции {рис.5) По технологии возведения фундаменты разделяются на монолитные и сборные; по величине заглубления — на фундаменты мелкого заложения(менее 2 м) и глубокого(более 3ч).
Рис.1 Конструкции ленточных фундаментов: а — из сплошных стеновых фундаментных блоков б — из пустотелых блоков в — вариант с устройством подвала г — монолитный фундамент 1 — фундаментная плита 2 — фундаментный блок 3 — стеновой блок подвала 4 — монолитный бетон(бутобетон)
Рис.2 Конструкция столбчатых фундаментов а — конструкция на фундаментной подушке б — конструкция фундамента стаканного типа 1 — наружная цокольная панель 2 — пирамидальное основание колонны 3 — фундаментная балка 4 — фундаментный стакан
Рис.3 Конструкция свайных фундаментов а — сопряжение сборного оголовка под одиночную сваю б — однорядное расположение свай в — шахматное расположение свай г — двурядное расположение свай д — куст свай под одиночную колонну 1 — свая 2 — сборный оголовок 3 — монолитный ж.б. ростверк 4 — ж.б.ростверк под колонну
Рис.4 Конструкция сплошных фундаментов а — перекрестная конструкция б, в— варианты устройства сплошной фундаментной плиты г — коробчатая конструкция фундамента Конструктивно-технологические решения фундаментов. ВЗ принимаются на основании оценки геотехнической опасности территории строительства и технико-экономического сравнения возможных вариантов обеспечивающих наиболее полное использование прочностных и деформационных характеристик грунтов и физико-механических свойств материалов фундаментов и подземных конструкций. Три геотехнические особенности ВЗ обуславливают следующие основные типы фундаментов для них: – массивные плитные (предпочтительно повышенной жесткости, в т.ч. коробчатые с развитой подземной частью) на естественном или укрепленном основании. – свайные (предпочтительно глубокие опоры); – комбинированные, в т.ч. свайно-плитные (СПФ), плитно-анкерные, щелевые. Подробно об этих видах фундаментов: Плитные фундаменты. Плитные (сплошные) фундаменты проектируют в виде балочных или безбалочных, бетонных или железобетонных плит. Ребра балочных плит могут быть обращены вверх и вниз. Места пересечения ребер служат для установки колонн каркаса. Пространство между ребрами в плитах с ребрами вверх заполняют песком или гравием, а поверх устраивают бетонную подготовку. Бетонные плиты не армируют. Железобетонные армируют по расчету. При большом заглублении сплошных фундаментов и необходимости обеспечить большую их жесткость фундаментные плиты можно проектировать коробчатого сечения с размещением между ребрами и перекрытиями коробок помещений подвалов. Показаны различные варианты решений сплошных фундаментов. (Рис.5)
Рис.5. Плитные фундаменты а - в виде ребристой железобетонной плиты; б - в виде плиты сплошного сечения Свайные фундаменты. Основными элементами свайных фундаментов являются собственно сваи, оголовки и ростверки. Сваи представляют собой железобетонные, бетонные и реже деревянные или металлические стержни, погруженные в грунт ударным или вибрационным способом, ввинчиванием, или бетонируемые на месте, в заранее пробуренных скважинах. В зависимости от способа погружения в грунт различают забивные, набивные, сваи-оболочки, буроопускные и винтовые сваи. Забивные железобетонные и деревянные сваи погружают с помощью копров, вибропогружателей и вибровдавливающих агрегатов. Эти сваи получили наибольшее распространение в массовом строительстве. Железобетонные забивные сваи и сваи-оболочки могут иметь обычную и предварительно напряженную арматуру и изготовляться цельными и составными, из отдельных секций. В поперечном сечении они могут быть квадратные, прямоугольные, квадратные с круглой полостью и полые круглые: обычные сваи диаметром до 800 мм, а сваи-оболочки - свыше 800 мм. По продольному сечению сваи могут быть призматические и с наклонными боковыми гранями - пирамидальными, трапецеидальными и ромбовидными. Нижние концы свай могут быть заостренными или плоскими, с уширением или без него, а полые сваи - с закрытым или открытым концом и с камуфлетной пятой. В последнее время получили распространение новые конструкции свай с корневидным основанием. На рис. 3. представлены различные виды забивных свай и свай-оболочек. Деревянные забивные сваи устраивают там, где существуют постоянные температурно-влажностные условия. Деревянные сваи могут быть цельные или срощенные по длине; из одиночных бревен или пакетные. Их изготовляют из бревен хвойных пород, очищенных от коры и сучьев. Набивные сваи устраивают методом заполнения бетонной или иной смесью предварительно пробуренных, пробитых или выштампованных скважин. Нижняя часть скважин может быть уширена с помощью взрывов (сваи с камуфлетной пятой). Буроопускные сваи отличает oт набивных то, что в скважину устанавливают готовые железобетонные сваи с заполнением зазора между сваей и скважиной песчано-цёментным раствором.В зависимости от свойств грунтов все сваи могут или передавать нагрузку от здания на практически несжимаемые грунты, опираясь на них своими нижними концами (так называемые сваи-стойки), или при сжимаемых грунтах передавать нагрузку на грунт боковыми поверхностями и нижним концом за счет сил трения (висячие сваи). Для равномерного распределения нагрузки на сваи по их верхним концам непосредственно на сваи или на специально устраиваемые уширения верхних концов — оголовки укладывают распределительные балки или плиты, называемые ростверками. Железобетонные ростверки могут быть сборные и монолитные. В последнее время разработаны конструктивные решения свайных фундаментов без ростверков. Плиты перекрытия в этих случаях опирают на сборные оголовки свай. Проектирование свайных фундаментов ведут в соответствии со специальными нормами на основе результатов инженерно-геологических и гидрогеологических изысканий исходя из конструктивных особенностей и нагрузок, характерных для здания. ( 1 - СНиП П-17-77 «Свайные фундаменты. Нормы проектирования». М., 1978.) Свайные фундаменты в плане могут состоять из одиночных свай — под опоры; лент свай — под стены здания, с расположением свай в один, два и более рядов; кустов свай—под тяжело нагруженные опоры; сплошного свайного поля — под тяжелые сооружения с равномерно распределенными по плану здания нагрузками.
Рис. 6 Свайные фундаменты а — фрагмент плана фундамента под несущие стены; б - фундамент под колонну; в – фундамент на сваях-стойках; г – тоже на висячих сваях; д — стык сборного ростверка с забивной сваей; e - свая; 2 — ростверк; 3 — оголовок сваи; 4 — колонна; 5 — монолитный ростверк стаканного типа под колонну; 6 - арматура сваи: 7 - свая-стойка; 8 - висячая свая; 9 — монолитный ростверк; 10 – бетон замоноличивания; 11 – закладная деталь; 12 – стальная деталь; 13 – панель перекрытия; 14 – панель стены; 15 – цементный раствор
Рис.7 Гидроизоляция подземной части здания. Фундаменты подвергаются увлажнению грунтовой влагой и просачивающейся в грунт атмосферной влагой. Увлажнение фундаментоз может снизить их долговечность, вызвать отсыревание стен подвала и повысить влажность стен, наземной части здания вследствие капиллярного подсоса влаги. Для исключения капиллярного подсоса наземную часть стен (наружных и внутренних) изолируют от фундаментов горизонтальной гидроизоляцией в уровне низа цокольного перекрытия. В зданиях с подвалами предусматривается еще один ряд горизонтальной гидроизоляции в уровне пола подвала. Горизонтальная гидроизоляция устраивается обычно из двух слоев рубероида на битумной мастике. Если проектом предусмотрена совместная статическая работа наземной и подземной частей здания на горизонтальные нагрузки, гидроизоляция осуществляется из цементного раствора состава 1:2. По всей внешней поверхности фундаментов устраивается вертикальная обмазочная гидроизоляция горячим битумом за два раза. Возможность увлажнения фундамента дождевыми и талыми водами должна исключаться планировкой территории застройки и устраиваемой по внешнему периметру здания отмосткой из плотных водонепроницаемых материалов - асфальта, асфальтобетона. Отмостка имеет уклон от здания 3%. Колонны. Стойки каркасных систем – колонны, пилоны и другие аналогичные элементы возводят с применением так называемого высокопрочного (HSC – High Strength Concrete) и высококачественного бетона (HQC – High Quality Concrete). В современных небоскребах крайне редко можно встретить “чисто” стальные или железобетонные в традиционном понимании (с обычным процентом армирования) конструкции. Габаритные размеры колонн и количество рабочей арматуры определяются целым рядом факторов и зависят от тех конкретных требований, которые инженер предъявляет к несущей системе здания. Варьируя прочность бетона и количество продольного армирования (рис. 4), можно добиться оптимизации конструктивных решений и минимизации их стоимости без снижения надежности, что для высотных зданий весьма и весьма актуально. При недостаточной несущей способности, жесткости или продольной устойчивости стоек каркаса применяют сталебетонные колонны с внешней стальной оболочкой либо с внутренней жесткой арматурой). Такие решения позволяют также повысить и огнестойкость конструкций. Наружные стены. Стены, в зависимости от воспринимаемых ими вертикальных нагрузок, подразделяются на несущие, самонесущие и ненесущие. Несущей называется стена, которая помимо вертикальной нагрузки от собственного веса, воспринимает и передает фундаментам нагрузки от перекрытий, крыши, ненесущих наружных стен, перегородок в т.д. Самонесущей называется стена, которая воспринимает и передает фундаментам вертикальную нагрузку только от собственного веса (включая нагрузку от балконов, лоджий, эркеров, парапетов и других элементов стены). Ненесущей называется стена, которая поэтажно или через несколько этажей передает вертикальную нагрузку от собственного веса на смежные конструкции (перекрытия, несущие стены, каркас). Внутренняя ненесущая стена называется перегородкой. В жилых зданиях рекомендуется, как правило, применять несущие и ненесущие стены. Самонесущие стены допускается применять в качестве утепляющих стен ризалитов, торцов здания и других элементов наружных стен. Самонесущие стены могут применяться также внутри здания в виде вентиляционных блоков, лифтовых шахт и тому подобных элементов с инженерным оборудованием.
Рис.8. Наружные стены а - несущие; б - самонесущие; в - ненесущие Несущие и ненесущие наружные стены могут быть применены в зданиях любой этажности. Высота самонесущих стен ограничена в целях предотвращения неблагоприятных в эксплуатационном отношении взаимных смещений самонесущих и внутренних несущих конструкций, сопровождающихся местными повреждениями отделки помещений и появлением трещин. В панельных домах, например допустимо применение самонесущих стен при высоте здания не более 4 этажей. Устойчивость самонесущих стен обеспечивают гибкие связи с внутренними конструкциями. Несущие наружные стены применяют в зданиях различной высоты. Предельная этажность несущей стены зависит от несущей способности и деформативности её материала, конструкции, характера взаимосвязей с внутренними конструкциями, а также от экономических соображений. Так, например, применение панельных легкобетонных стен целесообразно в домах высотой до 9—12 этажей, несущих кирпичных наружных стен — в зданиях средней этажности, а стен стальной решетчатой оболочковой конструкции — в 70—100-этажных зданиях. Внутренние стены и перегородки - основные внутренние вертикальные ограждающие конструкции в зданиях. Кроме того, внутренние вертикальные ограждающие конструкции образуют конструктивные элементы, совмещенные с инженерным оборудованием: санитарно-технические кабины, вентиляционные блоки и шахты, лифтовые шахты и пр. Внутренние стены выполняют в здании ограждающие и несущие функции, перегородки только ограждающие. Конструкции стен и перегородок должны удовлетворять нормативным требованиям прочности, устойчивости, огнестойкости, звукоизоляции, быть паро- и газонепроницаемыми, легковозводимыми Перегородки и стены влажных помещений, кроме того, должны быть водостойкими и водонепроницаемыми. Общая ограждающая функция внутренних стен и перегородок - обеспечение звукоизоляции от воздушного шума. В связи с этим уровень требований к звукоизоляционным качествам этих конструкций совпадает и зависит не от их статической роли в здании, а от расположения в нем. Для межквартирных и межсекционных стен и перегородок, для ограждений, отделяющих жилые комнаты от лестничных клеток и лифтовых холлов требуемый главой СНиП "Защита от шума" индекс изоляции должен составлять не менее 50 дБ, для межкомнатных - 41, для стен и перегородок, разделяющих жилые комнаты и санитарные помещения квартиры, - 45, а для ограждений между жилыми комнатами и встроенными магазинами или кафе - соответственно 55 и 60 дБ. Для обеспечения звукоизоляции применяют акустически однородные или неоднородные конструкции. В качестве акустически однородных используют массивные однослойные ограждающие конструкции сплошного или многопустотного сечения, в качестве неоднородных- двойные стены и перегородки, стены с гибким экраном, многослойные легкие перегородки. Способ звукоизоляции выбирают исходя из целесообразного использования свойств применяемых материалов. Ригели железобетонные - в строительстве - линейный несущий элемент (сплошной или решетчатый) в конструкциях зданий и сооружений. Соединяет стойки, колонны (ригель рамы); служит опорой прогонов, плит (ригель перекрытия, покрытия). Выполняется из железобетона. Ригели подразделяют на типы: РДП - для опоры много пустотных плит на две его полки (двух полочный); РДР - то же, для опоры ребристых плит; РОП - для опоры много пустотных плит на одну его полку (одно полочный); РЛП - то же, применяемый только в лестничных клетках; РОР - для опоры ребристых плит на одну его полку (одно полочный); РЛР - то же, применяемый только в лестничных клетках; РКП - консольный для опоры много пустотных плит балконов;
Рис.9. Схема крепления ригелей. Перекрытия — это внутренние горизонтальные ограждающие конструкции здания, членящие его по высоте на этажи. Их назначение — воспринять и передать на стены или колонны постоянные и временные нагрузки от людей, мебели и оборудования, а также изолировать помещения друг от друга и от влияния внешней среды. Эти функции и определяют их прочностные, а также тепло-, влаго-, газо- и звукоизолирующие качества. В многоэтажных жилых зданиях перекрытия служат связями — жесткими диафрагмами, способными придавать зданию повышенную устойчивость. Для изготовления несущих элементов перекрытий многоэтажных зданий обычно применяются несгораемые материалы; железобетон на тяжелом и на легком заполнителях (керамзито-.шла-ко-, перлитобетонах и др.}; стальной профилированный настил, металлические балки, защищенные от непосредственного воздействия огня, и т. п. Перекрытия выполняются сборными, монолитными и сборно-монолитными.Монолитные железобетонные перекрытия изготовляют на стройке в специально изготовленной опалубке, их выполняют чаше трех видов: ребристыми, кессоннированными и безбалочными (плитными)
Рис.10. Типы междуэтажных монолитных перекрытий. а — ребристое, 6— кессонированное, в — безбалочное 1 — плита, 2 — главная балка(ригель) 3 — второстепенная балка, 4 — колонна, 5 — капитель. Первый состоит из плиты, второстепенных и главных балок. На рисунке балки (или ребра) направлены вниз; при необходимости получить гладкий потолок устраивают перекрытие ребрами вверх, что менее экономично, так как площадь поперечного сечения верхней сжатой зоны уменьшена. Кессонированное перекрытие получают при пересечении равномерно расположенных в двух направленииях ребер одной высоты; его применяют из эстетических соображений в интерьерах обшественных зданий, а также как средство облегчения собственной Массы плиты при больших пролетах. Безбалочные перекрытия опираются на колонны или через капители. Типы междуэтажных сборных перекрытий.
а—балочные; б — плитные; 1 — балки; 2 — межбалочное заполнение; 3 — плиты Перекрытия разделяют по видам и по типу конструкций. Расположенные над подвальными (полуподвальными) этажами — называют подвальными (полуподвальными), расположенные над техническими подпольями — цокольными, отделяющие верхний этаж от чердака — чердачными, расположенные между смежными этажами — междуэтажными.
1 — опирание элементов здания; 2 — собственный вес; 3 — движение теплового потока; 4 — диффузия водяных паров; 5 — воздухопроницание; 6—ударный шум; 7 — воздушный шум; 8— эксплуатационные нагрузки; 9 — специфические воздействия
Рис. 12. Перекрытия по металлическим балкам 1 — балки; 2 — гипсобетонная плита; 3 — промазка щелей раствором или подстилка толя; 4 — усиление изоляции воздушного шума (песок); 5 — изоляция ударного шума (упругие прокладки); 6 — пол по лагам; 7 — пароизоляция; 8 — теплоизоляция; 9— стяжка; 10 — затирка; 11 — металлическая сетка; 12 — деревянный короб
Перекрытие по железобетонным балкам(используются редко) а — с заполнением из плит; б — с заполнением из пустотелых блоков: 1 — балки; 2 — плиты; 3 — пустотелые блоки; 4 — промазка щелей раствором или подстилка толя; 5 — усиление изоляции воздушного шума (песок); 6 — изоляция ударного шума (упругие прокладки); 7 —- изоляция воздушного и ударного шумов; 8 — пол по лагам; 9 — пол по стяжке; 10 — пароизоляция; И — теплоизоляция; 12 — стяжка; 13 — затирка
Перекрытие по железобетонный плитам а —виды несущих плит; б— конструкции перекрытий; 1 — сплошная плита (Y=400 кг/м2); 2 — круглопустотная; 3 — ребристая; 4 — типа ТТ; 5 — изоляция ударного шума; 6 — пол по стяжке; 7 — усиление изоляции воздушного шума (гипсобетонные плиты по лагам); 8 — пол; 9 — пароизоляция; 10—теплоизоляция; 11 — стяжка. Крыша — верхняя конструкция, отделяющая помещения здания от внешней среды и защищающая их от атмосферных осадков и других внешних воздействий. Состоит из несущей части {стропил} и изолирующих (ограждающих) частей, в том числе — наружной водонепроницаемой оболочки — кровли. Крыши устраивают чердачные и бесчердачные. Чердачные (над чердаком) бывают холодными (теплозащитные функции выполняет чердачное перекрытие) и утепленными. Утепленная или как говорят, «теплая крыша устраивается при наличии и при отсутствии чердака, когда функции чердачного перекрытия и кровли совмещаются (в последнем случае применяются названия: совмещенная крыша, совмещенное покрытие, и бесчердачное перекрытие.
Основные типы покрытий с ж.б. плитами и рулонными кровлями. а-в – невентилируемые; г, д – частично вентилируемые; е – вентилируемые; 1 – защитный слой;2 – гидроизоляционный ковер; 3 – стяжка; 4 – несущая плита; 5 – утеплитель; 6 – пароизоляция; 7 – однослойная ограждающая и несущая конструкция; 8 – каналы и борозды; 9 – воздушная прослойка; 10 – подкладки.
Покрытия со стальным профилированным настилом и с волнистыми асбестцементными листами. а-в – применение стального профилированного настила(а,б – профили;в – утепленное покрытие) г – покрытие с асбестцементными волнистыми листами усиленного или унифицированного профиля; д, е – то же с применением плоских асбестцементных листов; 1 – балка покрытия;2 – настилк; 3 – рулонная пароизоляция ; 4 – утеплитель; 5 – гидроизоляция; 6 – гравий; 7 – болт; 8 –асбестцементный волнистый лист; 9 – прокладка; 10 – деревянный брус; 11 – прижимная пластина; 12 – крюк; 13 – швеллер из асбестцемента; 14 – плоский асбестцементный лист; 15 – мастика; 16 – утеплитель;17 – то же типа мин.ватных плит; 18 – нащельник; 19 – деревянный каркас панели; 20 – гернит; 21 – рейка, фиксирующая положение утеплителя. 2. Конструктивные системы остова многоэтажных зданий Конструктивной системой здания называется совокупность взаимосвязанных конструкций здания, обеспечивающих его прочность, жесткость и устойчивость. Несущая конструкция здания обеспечивает его пространственную устойчивость и передает нагрузки, собираемые надземной частью через подземную часть на основание — способный к их восприятию грунт. Принятая конструктивная система здания должна обеспечивать прочность, жесткость и устойчивость здания на стадии возведения и в период эксплуатации при действии всех расчетных нагрузок и воздействий. В современном высотном строительстве применяют различные конструктивные системы и схемы с разнообразными вариантами компоновок. Вместе с тем все конструктивные системы можно разделить на три категории: стержневые — каркасные системы из вертикальных стоек — колонн и связывающих их в горизонтальной плоскости балок — ригелей с жесткими (рамными) узлами или стенками — диафрагмами жесткости. плоскостные — стеновые системы из монолитных стен или сборных панелей; и смешанные: каркасно-панельные системы с наружными панельными стенами, обстраивающими расположенный внутри каркас; панельно-блок-комнатные системы с объемными элементами и внутренними поперечными или наружными продольными несущими стенами; каркасио-панельно-ствольные системы с монолитными башенными элементами, образующими ядро жесткости высотного здания в 12 и более этажей. В свою очередь каркасные системы подразделяются на: Рамные и связевые. (особенности этих систем будут рассмотрены ниже) Среди стеновых систем следует выделить схемы поперечно-стеновые, продольно-стеновые, перекрестно-стеновые, коробчатые (оболочковые). Смешанные системы сочетают в себе отдельные признаки двух других систем, к ним относят каркасноствольные и коробчатоствольные. Стеновые. Различают конструктивную систему поперечных стен с узким шагом (на помещение) - 3,0-4,5 м, с широким шагом (на целый дом) — 4,5-7,2 м и более, и смешанным шагом, при котором чередуются узкий и широкий шаг. В зависимости от расположения несущих стен в плане здания и характера опирания на них перекрытий различают следующие конструктивные системы:
Рис. 4. Стеновые конструктивные системы а. поперечно-стеновые – с поперечными несущими стенами. б.перекрестно-стеновые с поперечными и продольными несущими стенами. в.продольно-стеновые с перекрытиями - с продольно несущими стенами Каркасная система ( рамная, рамно-связевая, связевая) Рамная схема каркасного несущего остова зданий представляет собой систему колонн, ригелей и перекрытий, соединенных в конструктивных узлах в жесткую и устойчивую пространственную систему, воспринимающую горизонтальные (ветровые и другие) усилия. Рамно-связевая схема каркасного здания аналогична рамной схеме с тем лишь дополнением, что горизонтальная жесткость здания увеличивается за счет диагональных связей, выполняемых, как правило, из металла. При этом часть горизонтальных усилий передается с колонн на эти связи. Особенностью рамно-связевой схемы является ограничение перемещений каркаса. Связевая схема каркасного несущего остова зданий отличается от рамной тем, что все горизонтальные усилия в ней в обоих направлениях через сплошные междуэтажные перекрытия передаются на жесткие диафрагмы — стенки или ядра жесткости. Рамы в этом случае рассчитываются только на вертикальные нагрузки. При этом сопряжения вертикальных и горизонтальных элементов конструкций могут иметь не только жесткое, но и шарнирное решение. В несущем остове каркасного здания при связевой схеме жесткие связи можно располагать с интервалами в несколько конструктивных шагов на расстоянии не больше 48 м при сборных перекрытиях или 54 м при монолитном каркасе. Таким образом, связевая система каркаса позволяет во всех этажах здания получить достаточно большие зальные помещения между связевыми стенами. Каркасный остов связевой системы в настоящее время имеет наибольшее распространение в массовом строительстве общественных зданий, зданий повышенной этажности и в высотных зданиях любого назначения. Для повышения сопротивления внешним воздействиям несущей системы зданий высотой более 250 м применяют преимущественно ствольные конструктивные системы: “труба в трубе” и “труба в ферме”. Их компоновочная схема включает центральный ствол, воспринимающий основную долю всех нагрузок, и расположенные по периметру здания несущие элементы в виде отдельных стоек (колонн), решетчатых систем (ферм, составных стержней и др.), пилонов, которые также могут быть объединены в единую конструкцию. Жесткость ствольной системы, ее устойчивость и способность к гашению вынужденных колебаний обеспечиваются заделкой центрального ствола в фундамент. В случаях, когда жесткости стеновой, каркасной или ствольной системы недостаточно, прибегают к комбинированным решениям, сочетающим в себе признаки разных конструктивных решений. В частности, для повышения сопротивления несущего остова здания возрастающим с высотой над уровнем земли ветровым нагрузкам применяют комбинацию ствольной и стеновой систем. В этом случае горизонтальные нагрузки воспринимаются не только внешней оболочкой и центральным стволом, но и внутренними несущими стенами. Комбинированная конструктивная система обладает большей конструктивной гибкостью в части возможности распределения доли воспринимаемых усилий за счет варьирования жесткости несущих элементов остова.
Рис.5. Схема каркасных зданий: a — рамная; б — рамно-связевая; в —рамная с диафрагмами жесткости; 1 — рама; 2 — смет; 3 — диафрагма; 4 — крепления Особенности узловых соединений колонн и ригелей. Пространственный каркас несущего остова при рамной схеме должен обладать необходимой жесткостью не только в одной плоскости, но и в перпендикулярном направлении, что достигается жестким решением всех узловых стыков вертикальных и горизонтальных элементов конструкций как в продольном, так и в поперечном направлении Связевый железобетонный каркас можно считать шарнирным, так как узел сопряжения колонны с ригелем не способен воспринимать изгибающие моменты от ветровых нагрузок. Такой каркас не обладает рамными свойствами, а работает по связевой схеме. Все нагрузки, вызывающие горизонтальное перемещение каркаса, воспринимаются сквозными вертикальными диафрагмами жесткости, связанными в пространственную жесткую коробчатую систему горизонтальными дисками перекрытий. Сквозные диафрагмы жесткости образуются путем заполнения каркаса стенками располагающихся в плоскости и из плоскости рам. Они устанавливаются на всю высоту здания. Диафрагмы жесткости обычно совмещаются со стенами лестничных клеток, лифтовых шахт и с разделительными перегородками помещений. В статическом отношении рамные и связевые системы отличаются способом восприятия внешних нагрузок, в конструктивном — решением основных узлов.
3. Типы лестничных клеток Лестничные марши и площадки для многоэтажных зданий Лестница состоит из маршей и площадок и называется по количеству маршей в пределах этажа Наиболее распространены в зданиях с высотой этажа до 3 м двухмаршевые лестницы. Трехмаршевые лестницы с расположенным между маршами пассажирским лифтом обычно применяются при высоте этажа более 3 м. Наклонный марш разделен на ступени. Уклон марша и его ширина устанавливаются в зависимости от условий эксплуатации лестниц: Минимальная ширина рекомендуемый марша, уклон в пяти-девятиэтажных зданиях, 1,05 1:2 эвакуационных в десятиэтажных и более зданиях 0,9 1:1,75 наружной подвальной....... 0,7 1:1,5 Таким образом, минимальная ширина марша, рассчитанного на встречное движение, 1,05 м. Максимальная ширина марша, обеспечивающего безопасный спуск толпы, 2,4 м. При большой ширине марша нет возможности удержаться за перила. Суммарная ширина лестничных маршей также определяется в зависимости от количества подлежащих эвакуации людей из всех примыкающих помещений из расчета 0,5 м на 100 человек. Количество ступеней в марше не менее 3 (чтобы не оступиться при быстром спуске) и не более 18 (чтобы не утомляться при подъеме). Обычно в зданиях с высотой этажа до 3 м в марше 8—10 ступеней. Лестничные площадки размещаются в уровне этажей и между ними. Ширина лестничных площадок этажных от 1,2 м, междуэтажных — не менее ширины марша, перед входом в лифт с распашными дверьми — от 1,6 м, в больницах для прохода с носилками — от 2,1 м. Ступень состоит из горизонтальной проступи и вертикального подступенка. Для удобства пользования лестницей ширина проступи и удвоенная высота подступенка должны равняться примерно 0,6 м (средний шаг человека). Ступени, расположенные в плоскости площадки, называются фризовыми. Наиболее употребительные размеры ступеней (проступь, подступенок) 300X150 мм. одномаршевая прямая лестница
двухмаршевая прямая лестница с промежуточной площадкой
двухмаршевая "Г" - образная лестница с угловой промежуточной площадкой
двухмаршевая "П" - образная лестница с промежуточной площадкой
трехмаршевая лестница с двумя угловыми промежуточными площадками
одномаршевая криволинейная лестница, расположенная у стены
одномаршевая криволинейная лестница, расположенная в прямоугольном объеме
винтовые лестницы
одномаршевая лестница с нижними забежными ступенями и поворотом на 90 град.
одномаршевая лестница с верхними и нижними забежными ступенями и поворотом на 90 град.
Конструктивные решения лестниц. Удобство изготовления и монтажа лестниц во многом зависит от принятого принципа разрезки на сборные элементы. Следует стремиться к максимально возможному укрупнению элементов, равновесности их между собой и остальными элементами сборного здания, единству системы опирания элементов лестниц и элементов перекрытий.
Рис. 1. Варианты разрезки сборных лестниц а – отдельные ступени; косоуры, балки и плиты; б – марши и площадки; в – марши с полуплощадками; г – объемный блок лестничной клетки: 1 — ступени; 2 — косоуры; 3 — балки; 4 — плиты; 5 — марши; 6 — площадки; 7 — марш с полуплощадкой; 8 – дополнительная полуплощадка; 9 — ригель В зависимости от общей конструктивной системы зданий сложилось несколько вариантов разрезки лестниц. Наиболее распространены в настоящее время два основных принципиальных решения. В бескаркасных крупнопанельных зданиях лестницы собирают из отдельных маршей и площадок. Для сборки лестницы на один этаж требуются два марша и три площадки – пять элементов. В этом варианте площадки опирают на поперечные стены, марши – на площадки. В каркасно-панельных зданиях лестницы собирают из одинаковых элементов — марша с двумя полуплощадками Для одного этажа используют два элемента. Элемент опирают гранями полуплощадок на продольные ригели. Экспериментальную проверку проходит изготовление готовых блоков, включающих все элементы лестницы на этаж. На заводе блок может быть собран из отдельных элементов или отлит целиком в объемной форме. 4. Типы лестнично-лифтовых блоков Обычно ЛЛУ располагают в центральной части высотных зданий. Как правило, он размещается в пределах центрального ствола строений с каркасноствольной, коробчатоствольной или аналогичными несущими системами. Предел огнестойкости конструкций лестничнолифтового узла принимают по национальным нормам проектирования, и в большинстве случаев он составляет 2 ч. Исходя из этого показателя, назначают толщину стен и перекрытий и выполняют их проектирование. В трех-пятиэтажном здании — лестница в лестничной клетке из несгораемых конструкций с пределом огнестойкости в 1 ч; мусоропровод для всех зданий в пять и выше этажей; В шести-девятиэтажных зданиях к лестничной клетке примыкает шахта пассажирского лифта грузоподъемностью от 320 кг (иногда она располагается в самой лестничной клетке между маршами).; В шести-девятиэтажных зданиях к лестничной клетке примыкает шахта пассажирского лифта грузоподъемностью от 320 кг (иногда она располагается в самой лестничной клетке между маршами).; В десяти-шестнадцатиэтажиых зданиях — лифтовой холл, шахты грузопассажирского и пассажирского лифтов грузоподъемностью соответственно от 500 и от 320 кг, эвакуационная незадымляемая лестница, оборудованная автоматически включающейся вытяжной вентиляцией, сообщающаяся с лифтовыми холлами через воздушный шлюз и имеющая непосредственный выход на улицу; В зданиях высотой более 16 этажей — те же устройства, причем количество лифтов и режим их работы (лифты-экспрессы, останавливающиеся только на определенных этажах) выясняются расчетом их движения исходя из среднего времени ожидания и пользования лифтом в пределах 2 мин. Вход в подвал или техническое подполье (высота помещений соответственно от 1,9 м и 1,6—1,9м) в зданиях выше трех этажей изолирован от лестничной клетки и устраивается непосредственно с улицы через приямок или с общего крыльца, но через отдельную дверь. Вход на чердак с выходом на крышу размещается в одной из лестничных клеток, а в протяженных зданиях — в лестничных клетках со сквозным проходом. Сквозные проходы на первом этаже располагаются с интервалом до 90 м, сквозные проезды для пожарной машины — с интервалом до 180 м при периметральной застройке и до 300 м — при застройке с разрывами. Эвакуацию населения при пожаре из домов высотой более девяти этажей обеспечивают незадымляемые лестницы. Каждая квартира должна иметь выход на одну лестницу, которая не может быть задымлена в условиях пожара. Кроме наружных пожарных лестниц, в том числе и стальных стремянок, размещаемых между балконами или лоджиями, к ним могут быть отнесены внутренние лестницы с поэтажным воздушным шлюзом, образуемым проходом через лоджию или балкон. Вход с этажа на эвакуационную лестницу — через этот же шлюз. Выход из эвакуационных лестниц должен быть непосредственно наружу, минуя входной вестибюль. Жилая площадь этажа, обслуживаемого незадымляемой лестницей, не должна превышать 300 м2 . Все входы с этажей на незадымляемые лестницы— через трудносгораемые двери с пределом огнестойкости 0,6 ч. Направление открывания дверей: поэтажных — в сторону лестницы, с улицы— в сторону лестницы (вследствие возможного образования наледи или наноса снега). Лестничнолифтовые узлы (ЛЛУ) высотных зданий играют особую роль в обеспечении сообщения между этажами и эвакуации людей в случае возникновения чрезвычайных ситуаций. В зависимости от компоновочного и объемнопланировочного решения ЛЛУ могут совмещать функции путей сообщения и эвакуации или выполняться раздельно. В обоих случаях к их техническому оснащению предъявляют определенные требования, связанные с обеспечением параметров безопасности.
Рис. 1. Планировки лестнично-лифтовых узлов. а - план типового этажа; б - план первого этажа; 1 - незадымляемая лестничная клетка 2-го типа; 2 - лифтовые шахты; 3 - лифтовый холл; 4 - коридор; 5 - принимаемая в расчет открытая дверь на этаже пожара; 6 - шахта дымоудаления; 7 - дверь закрытая при пожаре; 8 - наружная дверь для выхода из здания; 9 - наружная дверь закрытая при пожаре В девятиэтажном панельном доме с поперечными несущими стенами лестница собрана из железобетонных маршей и площадок плитной конструкции. Площадки с фризовыми ступенями снабжены опорным ребром с пазом в пределах опирания нисходящего марша. Этажные площадки удлинены и образуют карманы, в которых размещены входы в квартиры и электротехническая панель с нишей для разводки силовой и слаботочной проводки. К этажным площадкам примыкают шахты двух пассажирских лифтов грузоподъемностью 500 и 350 кг. Шахты смонтированы из объединяющих их объмных железобетонных блоков высотой «на этаж». Междуэтажные площадки уширены. Сквозь них проходит мусоропровод, расположенный у наружной стены. Камера мусороудаления размещена рядом с входным тамбуром. Цокольный марш укорочен на одну ступень, но формуется в оснастке рядового марша. Подвальный марш — рядовой, но опирающийся так, что его верхняя и нижняя ступени становятся фризовыми. Измененная система опирания уменьшает подъем подвального марша на 300 мм. Лестница ограждена звеньями стальной решетки, приваренными в двух точках к боковой поверхности марша. Ограждение зазора между маршами образуется Н-образной вставкой. В шестнадцатиэтажном панельном доме с продольными несущими стенам эвакуационная лестница собрана из железобетонных гнутых маршей П-образного сечения с шириной ступеней 1,05 м. Зазор между маршами образуется за счет уширения полуплощадок. Вход на лестницу из лифтового холла через эвакуационную площадку и балкон, образующий воздушный шлюз. Между эвакуационной лестницей и лифтовым холлом расположены шахты пассажирского и грузопассажирского лифтов грузоподъемностью 500 и 1000 кг. Шахты смонтированы из объемных железобетонных блоков высотой «на этаж». В утолщенной боковой стенке шахты пассажирского лифта проходят ствол мусоропровода и вентиляционные каналы из камеры мусороудаления и эвакуационных площадок, на которых расположены мусороприемники. Лифтовой холл примыкает к распределительной площадке с входами в квартиры. Шахта пожарного дымоудаления расположена между эвакуационной лестницей и распределительной площадкой. При повышении температуры клапаны в шахту Мусоропровод устанавливается в домах высотой от пяти этажей. Он состоит из: ствола с приемными клапанами, размещенными на каждой этажной или через этаж — на междуэтажных пло щадках; возвышающегося над ними и выходящего! на крышу вентиляционного ствола с дефлекторов и камеры мусороудаления. В этой камере нижнее звено ствола мусоропровода на высоте от 1,2 Д<Х 2 м от пола перекрывается затвором. Пол камеры мусороудаления желательно располагать близко к уровню спланированной вокруг здания земли — так, чтобы удобно было из нее вывозить контейнер. Ствол выполняется из асбестоцементных безнапорных труб с условным проходом 400 мм (наружный диаметр 414 мм). Трубы мусоропровода устанавливаются строго по вертикальной оси. Стыки труб (не более одного на этаж) размещаются вне зоны перекрытия и приемного клапана. Стык перекрывается соединительной асбестоцементноЙ муфтой. Зазор между стыкуемыми трубами и муф той равномерно конопатится прядевой паклей * зачеканивается сверху и снизу цементно-песчаным раствором состава 1 :2 с предварительным смачиванием водой поверхностей асбестоцемента. Внутри стыка не допускаются уступы и заусенцы. Ствол мусоропровода опирается на лестничные площадки хомутами из уголков. Хомут укладывается беззазорно на свежеподлитый слой цементного раствора и туго затягивается на трубе ствола. В месте установки приемного клапана в трубе вырезается с предварительным рассверливанием по шаблону отверстие 300 X 600 мм. На уровне низа отверстия и над ним труба охватывается стальными ободами с вваренными в них шпильками; кожух клапана привинчивается к четырем шпилькам. Сопряжение кожуха с трубой уплотняется по всему периметру резиновыми прокладками. Связанный с крышкой опрокидной ковш при загрузке перекрывает отверстие в стволе. Обрез ствола мусоропровода должен превышать более чем на 1 м верхний приемный клапан. Вентиляционный ствол выполняется из асбестоцементной трубы с условным проходом 300 мм (наружный диаметр 315 мм), сопряженной с основным стволом через стальной переходный фланец. Нижняя обечайка фланца перекрывает основной ствол. Ее стык уплотняется аналогично стыку в соединительной муфте. Труба вентиляционного ствола перед заведением в верхнюю обечайку обматывается тремя слоями изоляционной ленты. Фланец дефлектора крепится к ней на болтах. Способствующее тяге утепление вентиляционного ствола в пределах чердака может быть заключено в гильзу из кровельной стали. Отклонение оси ствола мусоропровода на подходе к бункеру допускается не более чем на 20°. В целях охраны труда в камере мусороудаления ствол перекрывается челюстным затвором или шиберами бункеров. Напольный или подвесной бункера образуют переходную емкость, способствующую равномерному заполнению контейнера. Бункера снабжены дверкой для прочистки и рамой с направляющими для шибера. Подвесной бункер крепится на сварке к плите перекрытия соосно стволу; напольный — устанавливается в камере мусороудаления так, чтобы ось его корпуса отклонялась от оси ствола в допустимых пределах. Рама шибера и установленная на ней опора ствола привариваются к бункеру после монтажа мусоропровода. 5. Конструктивные решения фасадных систем: многослойные, вентилируемые, светопрозрачные Многослойные системы:
1. Экструдированный пенополистирол 2. Клеевой адгезивный состав 3. Щелочестойкая стеклосетка 4. Клеевой адгезивный состав 5. Акриловая грунтовка 6. Финишное покрытие Вентилируемые фасады. Навесной фасад представляет собой конструкцию, состоящую из материалов облицовки (плит или листовых материалов) и подоблицовочной конструкции, которая, в свою очередь, крепится к стене таким образом, чтобы между защитно-декоративным покрытием и стеной оставался воздушный промежуток. Для дополнительного утепления наружных конструкций между стеной и облицовкой может устанавливаться теплоизоляционный слой - в этом случае вентиляционный зазор оставляется между облицовкой и теплоизоляцией.
Светопрозрачные вертикальные конструкции. К светопрозрачным вертикальным ограждениям относят, окна, балконные дверн, витражн и витрины. Окнами называют застекленные проемы а стенах. Витражи отличаются от окон существенно большей площадью остекления: это может быть и целиком светопрозрачная стена, навесная или самонесущая. В качестве светопропускающих материалов для светопрозрачных ограждений используют силикатные стекла в виде листов (оконное, витринное, тепло- и солнцезащитное и др. }| и изделий (стеклопакеты, стеклоблоки, стеклопрофилит). В зависимости от вида креплений стекла в ограждении, его конструкция решается с переплетами или без них них (беспереплетная). Переплет — это каркас (из деревянных брусков, стальных, алюминиевых или пластмасовых профилей, из железобетона или легкого армированного бетона}, которым заполняют оконные проемы и к которому осуществляют крепление листовых стекол и стеклопакетов. Остекленные переплеты можно непосредственно крепить к стенам. В этом случае их называют глухими, т е. неоткрывающимися. Чтобы переплеты могли открываться, их шарнирно крепят на раме из того же материала, что и переплет, но больших размеров, которую называют коробкой, а открывающийся переплет — створкой, Коробка с переплетом представляет оконный блок.
Закрепление стекол в переплетах и герметизации стыка стекла с переплетом. А-в в алюминевых переплетах;б-в в переплетах из стальных гнутых тонкостенных профилей; в - в деревянных переплетах; 1 –стекло(стеклопакет); 2 – уплотняющие прокладки; 3 – пружинящий штапик;4 – штапик;5 – пластинчатые стальные пружинки; 6 – переплет; 7 – винты из нержавеющей или оцинкованной стали; 8 – опорная прокладка; 9 – уплотняющая п-образная прокладка;10 – гнутый стальной уголок ,на винтах(штапик); 11 – гнутый стальной уголок ,прикрепленный к переплету электросваркой; 12 – герметизируящая мастика;13 – шпилька; 14 – деревянный штапик;15 наплав;16 капельник(только для наружных переплетов); 17 – замазка. Теплоизоляционные качества светопрозрачных ограждений, их воздухо- и звуконепроницаемость обеспечиваются прежде всего тщательной герметизацией стыков светопрозрачного ограждения со стеной, герметизацией сопряжения стекол с переплетами и устройством плотных притворов в створных переплетах На тепло- и звукоизоляционные свойства влияет также количество слоев остекления, толщина стекол и толщина воздушной прослойки между стеклами.
Схемы оконных блоков комбинированного типа А – с тройным остеклением; б – с четверным остеклением; 1 – переплет; 2 – коробка; 3 – спаренный переплет; 4 – переплет с двойным стеклопакетом; 5 - переплет с тройным стеклопакетом.
Деревянные оконные блоки с двойным остеклением А – в раздельных переплетах; б – в спаренных переплетах; 1 – коробка; 2 – переплет створки; 3 – замазка или резиновый профиль; 4 – стекло; 5 – уплотняющие прокладки;6 – прорезь в нижнем бруске коробки для стока воды;7 – капельник; 8 – штапик; петли (только со стороны навески) Габаритные размеры конструкции окон и балконных дверей гражданских зданий приняты кратными укрупненному модулю 3М(300мм.) и дополнительному 1,5М(150мм), а размеры конструкций окон пром. зданий модулю 6М(600мм).Освещенность жилых комнат удовлетворяется при размерах окон площадью 1/6…..1/10 от площади помещения .При наличии балконов , лоджий, размеры окон допускается увеличивать на 20 …30%. Витражи и витрины. Витражи и витрины возводят из индустриальных элементов, размеры которых кратны укрупненному модулю ЗМ (300 мм), с одинарным, двойным и тройным остеклением в зависимости от климатических условий и параметров внутренней среды помещений. Переплеты витражей и витрин часто называют каркасом, который может быть стальным, деревянным. Но наибольшее применение получили профили из алюминиевых сплавов.
Витраж (витрина) с алюминевыми глухими переплетами 1 – слив;2 – рама переплета наружного остекления; 3 – штапик; 4 – уплотняющая прокладка;5 – стекло; 6 – стальна пружина; 7 рама переплета внутреннего остекления; 8 – нащельник; 9 – покрытие мастикой; 10 – эластичная прокладка; 11 – смоляная пакля. В витражах высотой более 6 м вертикальные элементы каркаса, которые воспринимают большие ветровые, нагрузки, выполняют в видерам и ферм. При двойном раздельном остеклении рамы и фермы образуют путем соединения вертикальных элементов каркасов решеткой из раскосов и ригелей либо только ригелями.
Вертикальные импосты витражей более 6 м. А – для остекления с одинарным переплетом; б – для остеклении с двойным раздельным переплетом;1 – переплет(каркас); 2 – стекло (стеклопакет); 3 –ригель. Витражи и витрины с двойным раздельным остеклением подразделяют на проходные и непроходные. Проходные конструкции — глухие. Чтобы обеспечить проход человека в межстекольное пространство для протирки стекол, его ширина принимается не менее 450 мм. При высоте витражей более 3м это расстояние увеличивают до 800 мм. В витринах оно может быть еще больше, что определяется функциональными требованиями. Для входа в межстекольное пространство предусматривают створку шириной не менее 0,6 м из тамбура или из помещения. При протяженных витражах створки устанавливают через каждые 15м. В непроходных витражах (витрина),одно из светопрозрачных ограждений проектируют глухим другое — целиком створное для возможности очистки внутренних поверхностей стекла. Расстояние между наружным и внутренним ограждением принимают не более 150 мм.
Конструктивные схемы витражей и витрин А- переходные на плане по 1- 1 справа – с частично створными внутренними переплетами ,слева- со всеми створными внутренними переплетами ;б,в – проходные. При креплении каркаса витражей и витрин к остову здания учитывают кроме ветровых нагрузок температурные деформации конструкций, здания, прогибы, колебания козырьков и др., поэтому узлы креплении осуществляются скользящими или гибкими. Крепления устраивают в местах положения стоек, причем в самонесущих («стоящих») светопрозрачных конструкциях скользящие связи вверху, а и в навесах (висячих) конструкциях— внизу. Противоположные гибким связям стороны стоек каркаса крепят при помощи обычной жесткой заделки. В многоэтажных витражах стойки каркаса поэтажно крепят посредством сварки к закладным деталям перекрытий. Для погашении температурных и других деформаций в пределах каждого этажа стойки каркаса членят и их концы соединяют скользящим швом. При возведении витражей и витрин плоскости светопрозрачного ограждения выравнивают, иначе будут искажены отражения противоположных зданий и пейзажей.
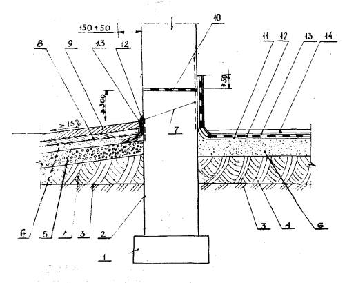
Приемы монтажа конструкций витражей и витрин(а) и их крепление к несущим конструкциям здания(б) 1 – вертикальна стойка каркаса; 2 – анкерный вкладыш;3 – стена; 4 – закладная деталь; 5 – прокладки; 6 – анкер; 7 – ригель. Конструктивные решения перехода остова и наружного ограждения от подземной части здания к надземной с цокольной частью и отмосткой. Фундаменты зданий, расположенные на относительна сухих грунтах, т. е, с глубоким уровнем расположения грунтовых вод, впервую очередь защищают от прямого воздействия дождевых и талых вод. С этой целью по периметру наружных стен устраивают отмостку из асфальта, асфальтобетона или плоских камней на слое песка и с подстилкой жирной глины . В любых грунтах содержится капиллярная влага, которая проникает в тело фундамента и поднимается к зоне сопряжения с конструктивными элементами надземной части здания Чтобы преградить доступ капиллярной влаги в помещения, на границе контакта фундамента со стенами устраивают гидроизоляцю.. Ее выполняют из двух слоев толя или раствора цемента с водонепроницаемыми добавками, а располагают на определенном уровне от поверхности отмостки и пола. Полы первого этажа, расположеннные на грунте, тоже имеют горизонтальную гидроизоляцию. При этом боковую поверхность фундамента или стены, соприкасающуюся с грунтом пола, обмазывают горячим битумом от уровня гидроизоляции стыка стен с фундаментом до верха подготовки пола, При высоком уровне грунтовых вод (УГВ) конструктивные элементы .подземной части здания оказываются и воде. Если вода агрессивна по отношению к материалам фундамента или подвала, то эти элементы выполняют из специальных материалов, устойчивых к агрессивному действию воды.
узел примыкания наружных стен дома из керамического блока к фундаменту, устройство пола по грунту, "скрытой" отмостки.
Рис. II.6. Стена подвала многоэтажного здания 1 - стеновые блоки; 2 -отмостка: 3 -стена здания; 4 - плиты перекрытия; 5 - ригель надподвального перекрытия; 6 - колонна каркаса; 7 - фундамент колонны: S - ленточный фунда-мепт стены
1 - подошва фундамента, 2 - стена фундамента, 3 - естественный грунт, 4 - уплотненный грунт, 5 - гравий слоем ≈ 200 мм, 6 - песок слоем ≈ 120 мм, 7 - зона очистки стены, 8 - первый слой ≈ 60 мм асфальтобетона, 9 - второй слой ≈ 60 мм асфальтобетона, 10 - горизонтальная гидроизоляция из самоклеящейся, 11 - полиэтиленовая пленка толщиной ≈ 300 мкм, 12 - армогерметик, 13 - мастика, 14 - половое покрытие полимерраствор.
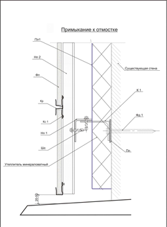
узел примыкания наружных стен дома с навесными вент.фасадами к отмостке. 6. Конструктивные решения крыш Крыша - наружная несущая и ограждающая конструкция здания, которая воспринимает вертикальные (в том числе снеговые) и горизонтальные нагрузки и воздействия. (ветер - нагрузка) Крыша состоит из двух основных частей: несущих конструкций и кровли. Несущие элементы крыши — стропила, настилы, фермы и другие конструктивные устройства— воспринимают и передают на стены нагрузки от массы крыши, снега, воздействия ветра и др. По архитектурно-конструктивным решениям, крыши классифицируют на совмещенные и чердачные. Совмещенными крышами называют пологие бесчердачные покрытия, в которых крыша совмещена с конструкцией чердачного перекрытия и нижняя поверхность является потолком помещения. Чаще всего совмещенные покрытия выполняют из железобетонных элементов. Совмещенные крыши рекомендуется устраивать пологими, с уклоном 2,5% в виде гидроизоляционного ковра, выполненного из рубероида в три слоя. Водоотвод с совмещенных крыш производят по внутренним водостокам. Различают вентилируемые совмещенные крыши, в которых между кровлей и утеплителем вводится вентилируемая воздушная прослойка, и невентилируемые, сплошной конструкции. Устройство воздушной прослойки, вентилируемой наружным воздухом, содействует удалению влаги из утеплителя в случае его укладки в увлажненном состоянии или увлажнения в период эксплуатации, улучшая, таким образом, его теплозащитные свойства. Принципиальная конструктивная схема совмещенных крыш приведена на рисунке .
Рис 5.Конструктивные схемы совмещенных крыш: а, б - невентилируемые; в - вентилируемая; 1 - защитный слой; 2 - рулонный ковер; 3 - стяжка (из раствора или сборных плит); 4 - теплоизоляция; 5 - пароизоляция; 6 - несущая конструкция; 7 - отделочный слой; У чердачных крыш пространство, образуемое между несущей и ограждающей частью покрытия (чердак), используют для размещения инженерного оборудования. Для выхода на чердак устраивают лестницы, двери или входные люки. Высоту чердака для движения по нему людей принимают не менее 1,9 м. Для освещения и проветривания чердака на крыше предусматривают чердачные окна. Чердачные крыши всегда являются скатными. Эксплуатируемая кровля. Эксплуатируемая кровля бывает нескольких типов: пешеходное покрытие, покрытие с ограничением для ходьбы, зеленая кровля. Устройство эксплуатируемой кровли — сложная инженерная задача. Она предъявляет высокие требования к кровельным покрытиям, а также соблюдению более строгих норм по гидро — паро и — теплоизоляции, нежели для традиционной конструкции кровли. Классический вариант состава эксплуатируемой кровли: Основание Пароизоляция Утепление Стяжка с уклонами Гидроизоляционный слой (Резитрикс® ) Защитно - разделительный слой Покрытие – тротуарная плитка. ИНВЕРСИОННЫЙ ВАРИАНТ ЭКСПЛУАТИРУЕМОЙ КРОВЛИ Основание Стяжка с уклонами Гидроизоляционный слой Дренажный слой Утеплитель из пенополистирола Дренажный слой Покрытие – тротуарная плитка.
Состав эксплуатируемой кровли учитывает высокий риск повреждения при эксплуатации, поэтому дополнительные слои защищают основнуой элемент частэксплуатируемой кровли – гидроизоляционное покрытие. В условиях России требуются дополнительные дренажные, разделительные, грунтовые слои, системы обогрева и полива Используемая литература 1. И.А. Шеришевский «Конструирование гражданских зданий» 2. «Архитектурные конструкции» под редакцией Казбек-Казиева. 3. Строительные нормы и правила. 2.04.05-91 "Отопление, вентиляция и кондиционирование" 4. Строительные нормы и правила. Жилые здания. СНиП 2.08.01-89* Москва 1995. 5. МГСН 4.19-2005 «Временные нормы и правила проектирования многофункциональных высотных зданий и зданий-комплексов в городе Москве». |































