Контрольная работа: Разработка технологического процесса механической обработки детали
|
Название: Разработка технологического процесса механической обработки детали Раздел: Промышленность, производство Тип: контрольная работа |
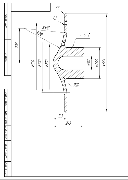
| Министерство науки и образования Украины Сумской государственный университет Кафедра прикладной гидроаэромеханики Практическая работа Тема: «Разработка технологического процесса механической обработки детали» Сумы 2009 Допустим, что производство отливок будет носить массовый характер, тогда для производства отливок будем использовать метод литья в керамические формы с выплавляемыми моделями согласно ГОСТ 26645-85 для данного способа литья и заданных габаритных размеров будем иметь: 7 класс точности размеров и масс отливка. 2 ряд припусков. Из таблицы о допусках размеров отливок находим: – Для Ø 205 мм допуск размера 1,4 мм – Для Ø 651 мм допуск размера 2,0 мм – Для Ø 90 мм допуск размера 1,1 мм – Для Ø 243 мм допуск размера 1,4 мм Граничные отклонения сдвига для размеров Ø 205 мм, Ø 90 мм, 243 мм будут составлять ± 0,5 мм, а для размера Ø 651 мм ± 0,6 мм. Основные припуски: – Для Ø 205 мм 4,6 мм, – Для Ø 651 мм 5,0 мм, – Для Ø 90 мм 4,2 мм, – Для Ø 243 мм 4,6 мм. Дополнительные припуски для всех остальных размеров отливка 0,4 мм. Размеры отливка и предельные отклонения определим основываясь на выше указанных данных и первоначальных размеров: – Для размера Ø 90 мм: Ø (90 – 2 · 4,2) – 1,1 = 81,6 – 1,1 или Ø 81+1,1 – Для размера Ø 90 мм: Ø (651 + 2 · 5,0) + 2,0 = 661 + 2,0 или Ø 661-2,0 – Для размера Ø 90 мм: Ø (205 + 2 · 4,6) + 1,4 = 214,2 + 1,4 или Ø 215-1,4 – Для размера Ø 90 мм: Ø (243 + 2 · 4,2) + 1,4 = 252,2 + 1,4 или Ø 253-1,4 Находим коэффициент расхода материала (к) тд =60 кг Vзаготовки = 10310,5 мм3 ρ ст 35л = 7836 тзаготовки = 0,0103 · 7836 = 76 кг
0,79>0,75 условие выполнено, заготовка рассчитана правильно.
Сварные заготовки широко распространены в машиностроении, что объясняется значительными преимуществами сварки по сравнению с другими способами соединения заготовок. Экономия материалов, снижение стоимости продукции, высокая производительность оборудования и качество продукции – далеко не все преимущества, которые обеспечивает использование сварки в машиностроительном производстве. Использование сварных заготовок позволяет упростить конструкцию исходных заготовок, уменьшить толщину стенок и массу заготовок, использовать разные профили сортового и специального проката. По сравнению с отливками и поковками сварные заготовки благоприятствуют экономии металлов (40…60%), экономии капитальных затрат производства, уменьшают трудоёмкость изготовления и стоимость заготовок, сокращают сроки их изготовления. К недостаткам сварных заготовок относят наличие в них внутренних напряжений, которые часто приводят к потере точности формы и размеров поверхностей; сложные по форме заготовки по сравнению с отливками имеют большую трудоёмкость изготовления и меньшую производительность труда; не все материалы отличаются достаточной свариваемостью. Под свариваемостью понимают способность материалов в результате сварки создавать надёжное их соединение. Технологичность сварных заготовок обеспечивается рациональным выбором материалов их составных частей, способов их получения, конструкцией сварных элементов и режимом сварки. Спроектируем сварную заготовку для детали на рисунке 2. Оптимальным способом сварки в данном случае может служить механизированная дуговая сварка. Дуговая сварка (ручная, полуавтоматическая и автоматическая) является наиболее распространенным способом сварки. Ручная сварка применяется для сварки швов небольшого размера; за один проход без предварительной разделки кромок она позволяет сваривать детали толщиной 4... 8 мм. Автоматическая сварка может вестись одним или несколькими электродами под слоем флюса, в среде защитных газов (аргона, гелия, углекислого газа) или самозащитой проволокой. При этом резко повышается толщина свариваемых деталей (до 15 м без разделки кромок) и производительность сварки (в 6...8 раз по сравнению с ручной сваркой). Сварка в углекислом газе углеродистых и низколегированных сталей характеризуется стабильностью режима сварки, хорошим формированием сварного шва, высоким качеством соединения. Производительность полуавтоматической сварки примерно в 2…4 раза выше, чем ручной. С учетом технологических соображений выбираем полуавтоматическую аргонно-дуговую сварку сварочной проволокой, выбираем тип сварного шва (СВ.), обеспечивающий провар сварного соединения при односторонней многопроходной сварке. Зная конфигурацию и размеры исходных частей заготовки, оформляем ее чертеж. Сваривание материалов заключается в соединении отдельных частей заготовки за счет межмолекулярных и межатомных сил, которые возникают как результат местного нагревания свариваемых материалов до жидкого или пластичного состояния и приложения механического усилия. Для данной заготовки мы выбираем стыковое соединение со скосом одной кромки одностороннее, условное обозначение С8 (по ГОСТ 5264-80) Форма поперечного сечения подготовленных кромок сварного шва
Токарная черновая операция Исполняется на станках токарной группы. Со всех обрабатываемых поверхностей снимается приблизительно две третьих припуска на механическую обработку. Обтачивают: 1. цилиндрическую поверхность Ø 215-1,4, 2. цилиндрическую поверхность Ø 81+1,1 3. торцевую поверхность Ø 215-1,4. 4. цилиндрическую поверхность Ø 661 5. поверхности R286, R306 6. отверстия в диске Токарная чистовая операция Исполняется на станках токарной группы, более точных по сравнению с токарной черновой обработкой, при более высоких скоростях резания, и при малой подачи. На данном этапе обработки: 1. убираются оставшиеся припуска на механическую обработку. 2. в отверстиях диска делается округление R7 3. на цилиндрической поверхности Ø 651 делается округление R5 4. вытачивается конусность 2-3о на поверхности Ø 205. Балансировка диска. Диск балансируют статически. Согласно чертежу допустимый дисбаланс не более 0,2 кгм. Контрольная операция. Контролируют размеры и положение поверхностей детали согласно чертежу, шероховатость поверхностей.
Список использованной литературы 1. ГОСТ 26645-85 Отливки из металлов и сплавов. Допуски размеров, массы и припуски на механическую обработку 2. Боженко Л.І. Технология машинобудування. Проектування та виробництво заготованок. – Львів: Видавництво «Світ», 1996 г 3. Корсаков В.С. Основы технологии Машиностроения. – Москва «Высшая школа» 1977 г 5. ГОСТ 5264-80 Ручная дуговая сварка. Соединения сварные. Основные типы конструктивные элементы и размеры |





