Контрольная работа: Тепловая мобильная станция
|
Название: Тепловая мобильная станция Раздел: Промышленность, производство Тип: контрольная работа | ||||||||||||||||||||||||||||||||||||||||||||||||||||||||||||||||||||||||||||||||||||||||||||||||||||||||||||||||||||||||||||||||||||||||
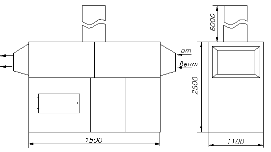
Мобильная Тепловая Станция - это универсальный источник тепла, может работать в круглосуточном режиме и устанавливаться вне помещения. Важнейшими преимуществами МТС являются: -компактность станции; -возможность использования сыпучего и кускового топлива вперемешку по мере накопления; -высокая производительность и экономичность при малом энергопотреблении; -не требует помещения; -легкость монтажа и перевозки. Схема МТС
Таблица Технические характеристики МТС
3.2.1 Компоновка распределителя Компоновка распределителя сводится к определению его габаритных размеров. Габаритные размеры распределителя будем определять исходя из его площади. Определим площадь распределителя. V F= _____ (3.7) u где V - объемный расход воздуха, м3 /ч; u-скорость агента сушки, м/с. Скорость агента сушки в распределителе принимаем равной 5 м/с. Тогда 10000*5 F= ____________ = 0,5 м2 3600 -Определим размеры сторон распределителя: F= а*в (3.8) где а и в - соответственно размеры сторон распределителя, м. а = 1м; в = 0,5м. Принцип работы распределителя заключается в следующем: Распределитель предназначен для изменения направления агента сушки в рулоне. Изменение в рулоне направления движения теплоносителя в данной установке регулируется при помощи клапанов 2, установленных в распределителе 1. Крайнее левое положение клапанов обеспечивает подвод теплоносителя со стороны вершин, крайнее правое положение обеспечивает подвод теплоносителя со стороны комлей. Воздух в распределитель подается мобильной тепловой станцией УТПУ - 200А. 3.5 Аэродинамический расчет Аэродинамический расчет включает в себя определение потерь давления в циркуляционном кольце движения агента сушки внутри сушилки. -Определим потери давления в воздуховоде на нагнетание (рис. ): Рнач общ1 = DP1 + DP2 + DPр (3.21) Участок 1. 1.Скорость воздушного потока u1 = 11м/с; 2.Принимаем диаметр воздуховода d1 = 0,355м; 3. По u1 и d1 находим R1 и Pg1 . [15]: R1 = 3,5 Па п * м
4.Местные сопротивления: -Два отвода под a= 900 ;ч/d = 3; G = 0.24. -Диффузор F0 /F1 = 0,8 G = 0,04 5. DP1 = R1 l1 + Pg1 åg (3.22) Участок2. 1. Принимаем а2 = 1м, в2 = 0,3м. 2. Определяем площадь сечения воздуховода: F2 = 1 * 0,3 = 0,3м2 . 3. Определяем скорость на выходе воздуховода:
где V - объемный расход воздуха, м3 /ч F-площадь сечения воздуховода, м2 .
4. Определим в 2 экв : 5. По u2 и d2 находим R2 и Pg2 . 6. R2 = 1,7 Па п * м 7.
Количество окон n = 4 отверстия. 1. Определим количество воздуха, выходящего из каждого окна:
9. Определим потери давления на преодоление местных сопротивлений: -дроссельный клапан, при a = 450 g = 140 DP2 = Rср * l2 + Pg2 (åg) (3.23) DP2 = 2,6*8 + 48,6*14 = 701,2 Па Потери давления в распределителе принимаем DPр = 100 Па. Рнач общ1 =33,2 + 701,2 + 100 = 834,4Па -Определим потери давления в воздуховоде на всасывание (рис.3.) (3.24) -Определим сопротивление слоя высушивающего материала DPм [14] DPм = 9,81*10-6 (700 + 2,7 W1 )*Рс 2,465 *uм 1,18 *h*1,3 (3.25) где - W1 - начальная влажность рулона, %; Рс - плотность рулона, кг/м3 ; h - высота рулона, м. DPм = 9,81*10-6 (700 + 2,7*30)*1212,465 *0,81,18 *1,1*1,3 = 1146,4 Па - Определим потери давления на участке 3 DP3 = R3 l3 + Pg3 åg (3.26) 1. Принимаем а3 = 1м, в3 = 0,3м. 2. Определяем площадь сечения воздуховода: F3 = 1 * 0,3 = 0,3м2 . 3. Определяем скорость на выходе воздуховода:
4. Определим в 3 экв : 5.
R3 = 1,7 Па п * м Pg3 = 48,6 Па Количество окон n = 4. 6. Определим потери давления на преодоление местных сопротивлений: -выход из меньшего сечения в большее F0 /F1 = 0,8 G = 0,04 DP3 = 1,7*8 + 48,6*0,04 = 15,5Па -Определим потери давления на участке 4: DP4 = R4 l4 + Pg4 åg (3.27) 1. Скорость воздушного потока u4 = 11м\с 2. Принимаем диаметр воздуховода d4 = 0,355м. 3. По u4 и d4 находим R4 и Pg4 . R4 = 3,5 Па п*м, Pg4 = 72,6 Па 4. Местные сопротивления: диффузор F0 /F1 = 0,8G = 0,04 DP4 = 3,5*1,5 + 72,6*0,04 = 8,2 Па Потери давления в распределителе принимаем DPр = 100Па Полученные и известные величины подставляем в формулу (3.24): Р2 вс общ = 1,146 + 15,5 + 8,2 + 100 = 1270,1 Па -Определим общие потери давления в сушильной установке: Рс.у. = Робщ1 нач + Робщ2 вс (3.28) Рс.у. = 834,4 + 1270,1 = 2104,5 Па. 1. Проверяем на преодоление сопротивлений вентилятор теплогенератора УТПУ 200 А. Сопротивление, которое должен преодолеть вентилятор теплогенератора равно (рис ) Рт = DPр + DP3 + DP4 +DPт (3.29) где DPр - потери давления в распределителе, Па; DP3 - потери давления на 3 участке СУ,Па; DP4 - потери давления на 4 участке СУ,Па; DPт - потери давления в теплогенераторе, Па. Движение агента сушки осуществляется через рулон сверху вниз Рт = DPт + DPр + DP1 +DP2 (3.30) где DP1 - потери давления на 1 участке, Па; DP2 - потери давления на 2 участке, Па; Принимаем DPт = 500Па по данным СКБТМ. Рт = 500 + 100 + 33,2 + 701,2 = 1334,4 Па Принимаем к вентилятору большее давление Рт = 1334,4 Па. Окончательное давление вентилятора на преодоление сопротивления теплогенератора УТПУ - 200А равно : Рb = 1,1 * Рт = 1,1 * 1334,4 = 1467,8 Па. Объёмный расход воздуха будет равен : Vb = 1,1*V = 1.1*10000 = 11000 м3 /г Используя значения Рb и Vb из аэродинамических характеристик центробежного вентилятора ВЦ 14-46 №5 (работает с УТПУ -200 А), выясняем, что он преодолевает данное сопротивление при данном расходе. 2.Подбор вентилятора для отсоса агента сушки V = 11000м3 / г, должен преодолеть сопротивление равное (рис. 3) Ротс = DPм + DP2 + DP1 +DPр (3.31) где DPм - потери давления через материал, Па; DP2 - потери давления на 2 участке СУ,Па; DP1 - потери давления на 1 участке СУ Па. DPр - потери давления в распределителе, Па; Ротс = 1146,4 + 701,2 + 33,2 + 100 = 1980,8 Па Движение агента сушки осуществляется через рулон сверху вниз. Ротс = DPм + DP3 + DP4 +DPр (3.32) Ротс = 1146,4 + 15,5 + 8,2 + 100 = 1270,1 Па Принимаем к вентилятору большее давление Ротс = 1980,8 Па Окончательное давление вентилятора равно: Ротс в = 1,1* Ротс = 1,1*1980,8 = 2178 Па Объемный расход воздуха будет равен: Vв = 1,1*V = 1,1*10000 = 11000 м3 /г. По Ротс в и Vв подбираем вентилятор марки: ВР-45-6,3 -расчет мощностей потребляемой вентиляторами, Nв , кВт [14]:
(3.33 ) где Рв - давление, создаваемое вентилятором с десятипроцентным запасом , Па; Vв - расход воздуха, м3 /с; hв - коэффициент полезного действия вентилятора [15], принимаем hв =0,46.
-определим необходимую мощность электродвигателя Ngb , кВт [14]:
(3.34) где Кп - коэффициент запаса мощности на пусковой момент. Кп = 1,1 при Nb > 5,0 кВт. hпер - коэффициент полезного действия передачи, hпер = 0,95 клиноременная передачи.
Принимаем к вентилятору ВР-45-6,3 электродвигатель марки 4А 160 М4 с Ngb = 18,5 кВт и частотой вращения wgb = 1465 мин -1 [16]. -расчет мощности Nb , кВт [14]:
где hв = 0,71 [16]; wb = 1720 мин -1
-необходимая мощность электродвигателя Ngb , кВт [14]:
Принимаем к вентилятору ВЦ-14-46 №5 электродвигатель марки 4А132М6 с Ngb = 7,5 кВт и частотой вращения wgb = 970 мин -1 . [16]. 5.1.Расчет рыночной цены сушильной машины на стадии разработки 5.1.1Расчет цены затратным методом. Рыночная цена проектируемой сушильной машины на стадии разработки будет вычисляться по следующей формуле: Ц = с/с + Пр, руб (5.1) где с/с - себестоимость материалов и комплектующих, руб; Пр - прибыль от продажи машины, руб. Прибыль (Пр) вычисляется исходя из необходимого уровня рентабельности. Пр = с/с * Rпр /100 (5.2) где Rпр - уровень рентабельности (рекомендуется принимать в пределах от 15 до 40 %) 5.1.2.Расчет себестоимости сушильной машины Материальные затраты представлены в таблице 5.1., в которой содержатся материалы и комплектующие сушильной машины, а также их количество и стоимость за единицу. ТАБЛИЦА 5.1. Стоимость материалов и комплектующих изделий.
Транспортные расходы принимаем в размере 15% от стоимости материалов и комплектующих из табл. 5.1. Тр = 15%*Смат (5.3) где Тр - транспортные расходы, руб; Смат - стоимость материалов и комплектующих, руб. Тр = 15*21481,5/100 = 3222,22 руб. 5.2 Расчет затрат на оплату труда основным производственным рабочим ТАБЛИЦА 5.2. Заработная плата основных производственных рабочих.
Премии принимаем 30% от з/п по тарифу. П = 30%*з/п т , руб (5.4) П = 30 * 17440/100 = 5232 руб Дополнительная з/п = 10% от основной з/п. Дз/п = 10%*22672,2 руб = 2267,2 руб. Затраты на оплату труда = Осн з/п + Д з/п Затраты на оплату труда = 22672 + 2267,2 = 24939,2 руб. 5.3 расчет единого социального налога по основным производственным рабочим СН = з/п * (СтСН/100), руб (5.5) Социальный налог по основным производственным рабочим 35,6% плюс 4,2% - класс профессионального риска (металлургическое машиностроение 18 класс); [Федеральный закон «О страховых тарифах на обязательное социальное страхование от несчастных случаев на производстве и профессиональных заболеваний на 2001 г»], [Постановление от 27 мая 2000 г № 415 «О внесении дополнения в постановлении правительства РФ от 31 августа 1999 г №979»]. СН = 39,8 * 24939,2/100 = 9925,8 руб. 5.4 Расчет накладных расходов. Накладные расходы берем 800 % от заработной платы основных производственных рабочих.
С/с = Смат + Тр + з/п + СН + НР (5.7) с/с = 21481,5 + 24939,2 + 9925,8 + 199513,6 = 259082,32 руб Rпр = 30% Пр = 259082,32*30/100 = 77724,696 руб Полученные и известные величины подставляем в формулу (5.1): Ц = 259082,32 + 77724,696 = 336807,01 руб. |
||||||||||||||||||||||||||||||||||||||||||||||||||||||||||||||||||||||||||||||||||||||||||||||||||||||||||||||||||||||||||||||||||||||||


