Курсовая работа: Расчёт конструкции с передачей винт - гайка
|
Название: Расчёт конструкции с передачей винт - гайка Раздел: Рефераты по транспорту Тип: курсовая работа |
МИНИСТЕРСТВО СЕЛЬСКОГО ХОЗЯЙСТВА РОССИЙСКОЙ ФЕДЕРАЦИИ ФГОУ ВПО КОСТРОМСКАЯ ГСХА Кафедра "Детали машин" Расчётно-графическая работа на тему "Расчёт конструкции с передачей винт - гайка" Выполнил: студент 3 курса 11 группы факультета механизации с/х Горбунов Ю.Н. Принял: Скрипкин С.П. "Кострома 2006" Содержание Задание №11 1. Общие сведения 2. Критерии работоспособности передачи винт-гайка 3. Определение размеров винта и гайки 4. Проверка соблюдения условия самоторможения 5. Определение кпд винтовой пары передачи винт-гайка 6. Проверка винта на устойчивость 7. Расчет элементов винта и гайки на прочность 8. Конструирование и расчёт дополнительных элементов передачи винт-гайка Задание №11Спроектировать (рассчитать и выполнить эскиз) съемник для снятия напрессованных втулок. В результате расчета определить: размеры винта, высоту гайки, наружный диаметр гайки, длину рукоятки, размеры траверса и лап съемника. Определить КПД винтовой пары. F = 4.5 kH,A = 300 mm,D = 250 mm. Материал гайки - бронза. Профиль резьбы - трапецеидальная, материал винта Сталь 40. 1. Общие сведенияОсновное назначение передачи винт-гайка преобразование вращательного движения в поступательное. Примером использования передачи могут служить механизмы в домкратах, прессах, металлорежущих станках, сельскохозяйственных машинах, грузоподъемных механизмах. Передачи винт-гайка бывают с трением скольжения, с трением качения и весьма разнообразны по конструктивным решениям. В домкратах и прессах гайка обычно неподвижна, а винт совершает вращательное и поступательное движения. Встречаются домкраты с вращающейся гайкой, в этом случае винт совершает только поступательное движение. В передачах винт-гайка применяют в основном стандартные трапецеидальные и упорные резьбы. Резьба с прямоугольным профилем не стандартизирована. Эта резьба обеспечивает некоторый выигрыш в силе и более высокий КПД, но она нетехнологична и прочность её витков ниже, чем у трапецеидальной и упорной резьбы. Кроме того, у прямоугольной резьбы при износе получается неустранимый "мертвый ход", тогда как у трапецеидальной резьбы его можно ликвидировать, используя стяжные гайки. Для изготовления винтов обычно применяют среднеуглеродистые стали марок Ст.4, Ст.5, Сталь 40, Сталь 50. Винты из легированных сталей с термической обработкой предназначены для передач, работающих при интенсивных перемещениях. В этих случаях применяют Сталь 40Х, Сталь 40ХН, Сталь 65 и др. Для гаек в передачах с повышенным износом применяют оловянистые бронзы марок Бр. ОФ10-05, Бр. ОСЦ6-6-3, Бр. ОФ-10-1. При работе с большими перерывами и умеренными нагрузками используют антифрикционный чугун АСЧ или АВЧ, а также серый чугун СЧ-12, СЧ-15, СЧ-18, СЧ-21. 2. Критерии работоспособности передачи винт-гайкаВ большинстве случаев основным критерием работоспособности винтовой пары является её износоустойчивость. Расчет по этому критерию сводится к ограничению давления между поверхностями резьбы винта и гайки. Указанный расчет выполняют в качестве проектного, служащего для определения диаметра винта. Вторым критерием работоспособности служит прочность винта, который в большинстве случаев работает на сжатие и кручение. Для винтов сжатия к числу критериев работоспособности так же следует отнести их устойчивость, определяемую коэффициентом запаса устойчивости (Sус ). К критериям работоспособности винтовых механизмов относятся прочность гаек, рукояток, штурвалов, винтов для стопорения гаек и других, дополнительных элементов. 3. Определение размеров винта и гайкиРасчет передачи винт гайка начинают с определения среднего диаметра резьбы (d2 ) по критерию износоустойчивости.
где F - расчетное усилие, Н; YH = Hг / в - коэффициент высоты гайки, Нг - высота гайки, мм; Рекомендуемое значение коэффициента высоты гайки 1,2...2,5. Yh = h / P- коэффициент высоты резьбы, Yh = 0,5; h - рабочая высота профиля резьбы, мм.; Р - шаг резьбы, мм; [р] - допускаемое давление в резьбе, МПа. [р] = 12 МПа.
Полученное значение среднего диаметра резьбы d2 корректируется. Параметры нестандартной прямоугольной (квадратной) резьбы согласовываются с возможностью ее изготовления на токарно-винторезных станках, поэтому шаг нарезки полученный по рекомендации: P = 0.22d2 , следует скорректировать со значением шага любой стандартной резьбы (Приложение). Принимаем: Р = 3, тогда P = 3; d2 = D2 = 28,5; Высоту гайки Н определяют по формуле (2), в зависимости от принятого значения коэффициента высоты гайки - YH. Нг = YH ×d2 ; Нг = 0,5 × 28,5 = 57 мм. Число витков резьбы в гайке вычисляется по выражению: Z = Hг / P; Z = 57/3 = 19. Z < 10, следовательно выбранная резьба удовлетворяет нас.
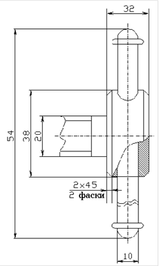
Рис.1 Эскиз гайки с размерами. Высота буртика гайки h (рис 1) принимается h = (0.5...0.6) Нг : h = 11.7, мм. Нижняя часть гайки работает на растяжение, поэтому диаметр Dг определяется формулой
где [sр ] = 640 МПа.
Диаметр буртика гайки Dг1 определяется по напряжению смятия силой F, действующей по оси винта
для бронзовых гаек [scм ] = 70 - 80 МПа.
4. Проверка соблюдения условия самоторможенияДля большинства механизмов, использующих передачу винт-гайка, является обязательным удовлетворение условия самоторможения: y<j, где y - угол подъема винтовой линии по среднему диаметру; j - угол трения винтовой пары. Угол трения определяется из соотношения: j = arctgfд где fд - действительный коэффициент трения в винтовой паре. Действительный коэффициент трения для сочетания: сталь по стали принимают - 0.15, сталь по чугуну - 0.3, сталь по бронзе - 0.12. При типах резьб отличных от прямоугольной (квадратной), вместо коэффициента fд подставляют условный (приведенный) коэффициент трения.
где Для резьб, отличных по профилю от прямоугольной, используют понятие приведенного угла трения:
Для всех видов резьб угол подъема нарезки резьбы определяется по соотношению:
где Р - шаг резьбы, мм; d2 - средний диаметр резьбы, мм.
Для самотормозящих винтов величина угла трения винтовой пары находится в пределах 5°...7°. Тогда, чтобы с гарантией соблюсти условие самоторможения - (y<j), разность между y и j должна составлять не менее 1°. 1,920 < 6,84 - условие выполняется. 5. Определение кпд винтовой пары передачи винт-гайкаОпределение КПД винтовой пары для прямоугольной резьбы проводится по уравнению:
Для резьбы другого профиля вместо
6. Проверка винта на устойчивостьПроверка сжатых винтов на устойчивость сводится к определению коэффициента запаса устойчивости (n). Гибкость винта зависит от его диаметра, длины и определяется по формуле:
где l- гибкость винта; l - расчетная длина винта, т.е. расстояние от середины гайки до опорной поверхности головки домкрата при вывернутом до отказа винте. l = Нб + Hг / 2, l = 300 + 57/ 2 = 328,5 мм. i - радиус инерции для круглого сечения (по внутреннему диаметру резьбы d1 ).
где Iпр - приведённый момент инерции круглого сечения
m - коэффициент приведения длины винта, зависит от расчётной схемы винта (m = 2 - домкраты, съемники, струбцины; m = 1-ходовые винты и валики).
В зависимости от гибкости винта (l) или его приведённой длины (m´l), критическая сила (нагрузка) на винт определяется по формулам Эйлера или Ясинского. Если l <100 или (m´l) < 25 ´d1 , то критическую силу определяют по формуле Ясинского:
где a и b- коэффициенты, принимаемые в зависимости от материала винта. Для Сталь 45: a = 450МПа, b = 1,67МПа.
Запас устойчивости винта определяется по уравнению: Sус = Fкр / F> [Sус ] (12) где Sус должен составлять не менее 2,5 Sус = 164502,667/20000 = 8,225 > 2,5. Следовательно, выбранный диаметр винта удовлетворяет нас. 7. Расчет элементов винта и гайки на прочностьВинт в передаче винт-гайка испытывает напряжения сжатия или растяжения и кручения. Для оценки величины этих напряжений следует определить величину эквивалентного напряжения и сравнить ее с допускаемым напряжением растяжения:
где sр - напряжения растяжения или сжатия, определяемые формулой
Для подсчета напряжений кручения, связанных с моментом трения в резьбе, используется следующая зависимость
где Ттр - момент трения в резьбе, подсчитывается по формуле: Ттр = 0,5 ×d2 ×F×tg (y + j) (16) Ттр = 0,5 × 27 × 20000 ×tg (1,92 + 6.84) = 43916,617 Н×мм.
Допускаемые напряжения сжатия или растяжения берутся из справочника [1, т.1]. Если в передаче гайка изготовляется из менее прочного материала чем винт, то резьбу в гайке следует проверить на срез по выражению:
где Н - высота гайки, мм. Кн - коэф. неравномерности распределения нагрузки по виткам резьбы, принимается равным 0,6...0,7. Кn - коэф. полноты резьбы, (принимается по данным таблицы 6).
[tср ] - допускаемое напряжение среза, подсчитывается по выражению [tср ] = (0,6…0,65) × (sв / [S]), где sв - временное сопротивление материала гайки, (принимается по таблице 7 МУ или по справочнику [2, т.1]). [tср ] = 0,6 × (/) = МПа. Т. е. условие tср £ [ tср ] выполняется. 8. Конструирование и расчёт дополнительных элементов передачи винт-гайка8.1 Выбор размеров головки винта Размеры подъемной головки винта (Рис.3) назначаются конструктивно: D2 = (1,7…1,9) ×d; D2 = 1,9 × 30 = 57, мм. B = (1,4…1,8) ×d; В = 1,6 × 30 =48, мм. Dp = (0,4…0,5) ×d; Dр = 0,5 × 30 = 15, мм. 8.2 Выбор размеров рукоятки винта Общий момент сопротивления повороту винта равен: Т0 = Ттр + Тн , где Тн - момент сопротивления в наконечнике, его величина может быть принята Тн = 0,5 × Ттр . Следовательно Т0 = 1,5 × Ттр . Т0 = 1.5 × 43916,62 = 65874,93 Н × мм. Общий момент сопротивления преодолевается усилием рабочего - Fр , приложенного к рукоятке длиной Lр , т.е. Т0 = Fp ×Lр , где Fр - усилие рабочего на рукоятке, Fр = 250, Н. Lр - длина рукоятки в мм. Обычно задача решается относительно требуемой длины рукоятки. При длине рукоятки более 1 метра, следует рассчитывать на усилие двух рабочих. Lр = Т0/ Fр = 65874,93/250 = 263,499, мм. Диаметр рукоятки Dp , принятый по рекомендации п.8.1, следует проверить по напряжениям изгиба:
где Wx - осевой момент сопротивления: Wx = 0,1Dp 3 ; [sи ] - допускаемое напряжение изгиба, [sи ] = 260, МПа. Wx = 0,1× 103 = 100, мм3 .
Следовательно, принятый диаметр рукоятки Dp = 15 мм полностью устраивает нас. На рис.2 представлено конструктивное оформление головки и рукоятки винта.
Рис.2. Конструктивное оформление головки винта |
(1)
мм. (2)
(3)
(4)
(5)
(9)