Курсовая работа: Модернизация сборно-монолитной системы КУБ-2,5
|
Название: Модернизация сборно-монолитной системы КУБ-2,5 Раздел: Рефераты по строительству Тип: курсовая работа | ||||||||||||||||||||||||||||||||||||||||||||||||||||||||||||||||||||||||||||||||||||||||||||||||||||||||||||||||||||||||||||||||||||||||||||
1. Общая часть 1.1. Сборно-монолитная конструктивная система КУБ-2,5 является дальнейшим развитием системы КУБ с целью дальнейшей универсализации в части использования для различных условий строительства, усовершенствования конструктивных решений, снижения трудозатрат на изготовления и монтаж элементов к оптимизации экономических характеристик. Каркас собирается на монтаже из изделий заводского изготовления с последующим замоноличиванием узлов – в эксплуатационной стадии конструкция является монолитной.
1.2. В системе КУБ-2,5 использованы наиболее эффективные особенности сборно-монолитной системы КУБ-2 и сборной системы КУБ-3, подтвержденные экспериментальными работами и реализацией этих систем в гражданском строительстве. 1.3. Модернизированные основные конструктивные решения системы КУБ-2,5 – стыки панелей перекрытий, стыки неразрезных многоярусных колонн, узлы соединения панелей перекрытия с колоннами, образующие рамные узлы, решения связей, шпренгельные конструкции 12--метровых пролетов и др. – надежно обеспечивают рамные или рамно-связевые конструктивные системы каркасов зданий. Это стало возможным благодаря анализу результатов испытаний натурных фрагментов стыков элементов системы, проведенных лабораторией динамических испытаний ЦНИИЭП жилища под руководством к.т.н. Ашкинадзе Г.Н. совместно с авторами систем. 1.4. В технологическом отношении изготовление и монтаж системы КУБ-2,5 практически не отличается от других систем серии КУБ, поэтому переход предприятий, реализующих КУБ, на новую систему может проходить без остановки производства с постепенной заменой оснастки. Как промежуточное решение допускается стыковка изделий системы КУБ-2,5 с изделиями других систем КУБ, при этом остается без изменения соединение "плита-колонна" и с небольшой корректировкой оснастки – соединение "плита-колонна". 1.5. Разработанные в системе КУБ-2,5 принципиально новые конструкции стыков колонн, панелей перекрытия с колоннами и панелей перекрытия между собой не требуют установки опалубки, и значительно сокращают (на 60%) объем бетона замоноличивания на монтаже. Кроме того, конструкция стыков колонн предполагает в большинстве случаев исключения сварки арматуры (при отсутствии растягивающих усилий в стыке). Все это снижает в сравнении с системой КУБ-2,5 построечные трудозатрат на 50-60%. 1.6. В это состав документации системы КУБ-2,5 введены конструкции для строительства жилых и общественных зданий высотой не более 4-х этажей, отличительной чертой которых является наличие колонн сечением 400х200мм, что значительно улучшает планировочные интерьерные возможности конструкции. 1.7. Система КУБ-2,5 предполагает использование укрупненных изделий панелей перекрытия с максимальными размерами 2960х5980х160 мм, наряду с одномодульными панелями с максимальными размерами 2980х2980х100 мм – в зависимости от подъемно-транспортных возможностей подрядчиков. Укрупненный вариант является предпочтительным. 1.8. В системе разработана новая конструкция узлов крепления связей к колоннам, снижающая вероятность резонанса сооружения при вынужденных колебаниях (сейсмика, ветер и др.). 1.9. Система КУБ-2,5 является универсальной конструкцией для строительства жилых, общественных и некоторых промышленных зданий, как в обычных условиях строительства, так и в районах с сейсмичностью не более 9 баллов включительно по 12 бальной шкале. 1.10. Наличие, по существу, 2-х основных несущих элементов системы, обеспечивающих ее прочностные качества – колонны и плиты перекрытия – предполагают остальные элементы здания навесными, что дает возможность максимального использования для ограждающих конструкций местных неконструктивных материалов, в том числе и монолитных стен.
1.11. Система КУБ-2,5 комплектуется пакетом документации, включающий основные положения по проектированию и монтажу каркаса, узлы соединения элементов, конструктивные чертежи панелей перекрытия, диафрагм, колонн, связей, лестниц вентблоков, шпренгельных конструкций пролетом 12м, а также навесных керамзитобетонных панелей наружных стен. Кроме того, по желанию заказчика, в пакет документации можно включить КМД оснастки для изготовления и монтажа конструкций. 2. Описание элементов системы, методы складирования и транспортировки 2.1 Панели перекрытия 2.1.1. Панели перекрытия разработаны в 2-х модификациях: одномодульные с максимальными размерами 2980х2980х160 и двухмодульные – 2980х5960х160 – это основные панели, кроме того, разработаны панели шириной 1800, устанавливаемые как правила, по периметру перекрытия. В торцах панели предусмотрены петлевые выпуски, обеспечивающие в каркасе здания монолитную связь смежных панелей, и монтажные столики, обеспечивающие в большинстве случаях монтаж перекрытия без поддерживающих стоек. 2.1.2. Одномодульные панели перекрытия разделяются, в зависимости от их места положения в каркасе, на надколонные НП – межколонные МП – и средние СП. Все панели армированы сварными сетками, кроме вязанной верхней сетки надколонной панели, которая должна собираться вручную совместно с опорной конструкцией панели, состоящей из стальной обечайки (для пропуска колонны сквозь панель на монтаже) и приваренных к ней вертикальных каркасов. Пространственный арматурный каркас надколонной панели создается в следующей последовательности: устанавливаются монтажные петли, укладывается нижняя сетка, устанавливается опорная конструкция, размещаются петлевые выпуски по периметру панели, укладывается верхняя сетка.
2.1.3. Двух модульные панели перекрытия армируются сетками одномодульных панелей в зависимости от места положения панели в плане, объединение арматурных каркасов в средние панели осуществляется с помощью специальных стыковочных сеток. В зависимости от расположения в плане панели маркируются следующим образом: НМП – надколонная межколонная и МСП – межколонная средние панели.
2.1.4. Для пропуска коммуникаций и других нужд запрещается образование отверстий в зонах панелей, которые заштрихованы, кроме патрубков ≤ в 120мм. По контуру отверстий в бетонном слое необходимо предусмотреть компенсирующую арматуру традиционными методами.
2.1.5. Складирование и транспортировка одно- и двухмодульных панелей перекрытия производится в горизонтальном положении с обязательной установкой деревянных бобышек, которые должны располагаться по 4 штуки на диагоналях панели в четвертях пролета в 2-х направлениях. Высота штабеля при складировании определяется прочностью материала бобышек. Возможна перевозка панелей на панелевозах в вертикальном положении - в этом случае необходимо предусмотреть специальные опорные элементы, чтобы не повредить торцевые поверхности и петлевые выпуски панелей. 2.2 Колонны 2.2.1. Система КУБ-2,5 предусматривает применение неразрезных (многоэтажных) колонн. В местах примыкания перекрытия, а значит на расстояниях, равных высоте этажа, в которых предусмотрены шпонкообразующие вырезы в виде 4-х гранных усеченных пирамид соединенных вершинами; в приделах шпонки несущая арматура обнажена. В середине шпонки предусмотрен арматурный стержень, воспринимающий поперечную силу, возникающую при распалубке при изготовлении и монтаже колонны. Геометрические размеры промежуточных шпонок неразрезных колонн, верхних и нижних торцов промежуточных колонн унифицированы и отличаются арматурными выпусками. Колонны снабжены ниже уровня каждого перекрытия отверстиями для установки приспособлений временного опириния надколонных панелей. Колонны разработаны двух типов: сечением 400х400 мм с предельной длинной 14600 мм, 200х400 мм с предельной длинной 9200 мм. Армирование колонн принято вязанными пространственными каркасами, состоящими из продольных несущих арматурных стержней, соединенных хомутами. Вдоль 3-х гранных колонн нанесены продольные риски, совпадающие с геометрическими осями назначение которых – соблюдение особенности при монтаже, обеспечение лучшей связи с примыкающими, а также эстетические соображения.
2.2.2. Складирование и перевозка колонн осуществляется в горизонтальном положении с обязательной установкой бобышек, длинной не менее ширины опорной грани колонны, при этом опорной поверхностью колонн сечением 20х400 д. б. грань шириной 200 мм. Расстояние между бобышками д. б. не более 6 см. консольные свесы концов колонн – не более 2 см. 2.3 Связи 2.3.1. В системе КУБ-2,5 приняты ж/б сжато – растянутые связи – раскосы, обеспечивающие пространственную жесткость и устойчивость рамно-связевого варианта системы. Несущая способность элемента связи определена из расчета ее работы на продольную силу растяжения. Сечение элемента связи принято 200х250 мм, армирования 4-мя несущими арматурными стержнями оба конца которых приварены к закладным петлям расположенных в обоих концах элемента. 2.3.2. Складирование и транспортировка элементов связей осуществляется в горизонтальном положении с обязательной установкой деревянных бобышек длинной не менее 200мм в крайних четвертях пролета при этом опорной поверхностью элементов д.б. грань шириной 200 мм. 2.4 Лестничные марши 2.4.1. Система КУБ-2,5 предполагает применение двух видов лестничных маршей: одномаршевые и одномаршевые, Z- образные шириной 1,5 м – для жилых домов, имеющих высоты этажей 2,8 и 3,0 м и двухмаршевые, Z- образные шириной 1,35м – для общественных зданий, имеющих высоты этажей 3,3м. 2.4.2. Одномаршевые лестницы чрезвычайно просты в изготовлении и монтаже, так как изготавливаются в горизонтальных формах, армируются сварными сетками и каркасами как горизонтальные элементы, не требуют промежуточных площадок, подвесок, монтируются непосредственно с перекрытия на перекрытие. Максимальная длина элемента 6,3м. 2.4.3. 2-х маршевые лестницы, состоящие из Z- образных маршей, изготавливаются в кассетных формах, монтируются с применением одной площадки на межэтажное перекрытие другой (со стороны промежуточной площадки) опираясь на балку, установленную на диафрагмы, ограждающие лестничный марш. 2.4.4. Транспортировка и складирование лестничных маршей, производится в положении, при котором они изготавливаются: одномаршевые лестницы - горизонтальном положении (при распалубке требуется их кантование в положение ступенями вверх) с установкой деревянных бобышек в крайних четвертях пролетов, двухмаршевые – с опорой на боковые поверхности ("на ребро") и установкой деревянных бобышек в местах перехода марша к площадке и по краям – всего 4 бобышки. 2.5 Вентиляционные блоки 2.5.1. Вентблоки разработаны для зданий с различными высотами этажей: 2,8м, 3,0м и 3,3м. Геометрические параметры вентблоков практически не отличаются от аналогических изделий действующих типовых серий. Конструктивная особенность разработанных вентблоков обусловлена их изготовлением в горизонтальных формах, необходимых для принятой технологии изготовления. На одном поддоне размещаются два изделия, составляющие вентблок: одна стенка с канальной частью – ребристая плита – и другая стенка – плоская плита. После формирования этих элементов ребристая плита устанавливается на плоскую ребрами вниз с последующей сваркой закладных деталей, и вентблок транспортируется на склад.
2.5.2. Транспортировка и складирование изделий вентблоков производится плашмя, на 2–х деревянных бобышках длинной не менее ширины блока, установленных в крайних четвертях пролета (длинны). 2.6 Наружные стеновые панели 2.6.1. Выше отмечено, что каркас системы КУБ-2,5 предполагает применение для наружных ограждающих конструкций низкомарочных материалов, эффективными ограждающими функциями – поэтому конструкции, выполненные из этих материалов д.б., выполнены, как правило, навесными. В качестве примера разработаны керамзитобетонные панели, дающие как вертикальную полосовую разрезку фасадов зданий, так и комбинированную: для первого случая – вертикальные панели высотой в 2 этажа, для второго – горизонтальные, располагающиеся между вертикальными, служащими стойками фахверка. Набор панелей, кроме того, предусматривает угловые изделия, подоконные, стенки лоджий и т.п. Изготовление панелей предусмотрено в горизонтальных формах лицевой поверхностью вниз. Материал изделий – керамзитобетон с объемным весом не более 1100кг/м3 , защитный слой – 20 мм цементного раствора М-150, армирование – арматурными каркасами.
2.6.2. Складирование и транспортировка панелей наружных стен производится "на ребро", с отпиранием на горизонтальную торцевую поверхность через бобышки не менее ширины опорной поверхности, установленные в четвертях пролетов. 2.7 Шпренгельная система для перекрытия пролетов 2.7.1. Шпренгельная система – комбинированная сквозная конструкция, в которой функции верхнего пояса несет перекрытие – панели системы КУБ-2,5, решетка и нижний пояс выполнены из стальных труб. 2.7.2. Для реализации шпренгельной системы необходима разработка специальной колонны, в которой на заданном уровне д.б. предусмотрено отверстие (закладная деталь из стальной трубы) или установки монтажного опорного столика для крепления нижнего пояса фермы.
3. Монтаж элементов и замоноличивание стыков 3.1Колонны 3.1.1. Перед началом монтажа колонн необходимо выполнить следующие работы: - изготовить монолитные фундаменты стаканного типа, проверить точность выполнения стаканов и привязки их к осям здания; - выполнить подготовку пола подвала, если он предусмотрен проектом; - убедится в том, что бетон набрал 70% проектной прочности; - стакан промыть водой под напором и сделать подливку из цементного раствора М-200, верх которой должен соответствовать проектной отметки низа колонны. 3.1.2. Установка колонн в стаканы производится следующим образом: - строповка колонны обеспечивается с помощью монтажной цапфы, вставляемой в отверстие, расположенное в верхней части ствола; - колонна вертикально подается в стакан фундамента; - при монтаже колонны сечением 400х200 необходимо следить за тем, чтобы в начальный момент подъема до вертикального положения не менялось ее положение "на ребро", т.е. вертикальная грань была равна 400мм; - используя продольные риски на гранях колонны, производится вертикальная и горизонтальная е установка и фиксация с помощью 4-х стаканных клиньев.
3.1.3. Образовавшиеся пазухи в стакане после установки колонны бетонируются мелкозернистым бетоном В25 с тщательным уплотнением. 3.1.4. Если высота колонны от обреза стакана не превышает 12см, то фиксацию ее клиньями от потери устойчивости можно считать достаточной; если этот размер превышает 12см, то необходима установка специальных подкосов, которые снимаются после монтажа и замоноличивание первого перекрытия. 3.1.5. Во время монтажа колонны необходимо следить за тем, чтобы продольные риски располагались по отношению к примыкающим к ним ограждающим конструкциям согласно рисунка.
3.1.6. Стык колонн предусматривает принудительный монтаж, при котором фиксирующий стержень нижнего торца верхней колонны должен войти в патрубок верхнего торца нижней колонны. Сварка арматуры выполняется при условии растягивающих усилий в стыке.
3.2Панели перекрытия 3.2.1. Перед монтажом панелей перекрытия необходимо убедится в том, что: - расстояние между колоннами равны проектным в пределах допусков; - геометрические размеры панелей (размеры диагоналей, параллельность и др.), арматурные выпуски, закладные детали и т.п. соответствуют проектным требованиям; - отсутствуют технологические наплывы бетона, мешающие монтажу и сварке. 3.2.2. Вариант монтажа 2-х модульных панелей предусматривает следующую последовательность: - монтируется 1-модульная надколонная панель НП- - монтируются 2-модульные панели НМП- - монтируются 2-модульные панели МСП-
3.2.3. Вариант монтажа 1-модульных панелей предусматривает следующую последовательность: - монтируется надколонные панели НП- - монтируется межколонные панели МП- - монтируются средние панели СП-
3.2.4. Установка надколонных панелей на колонну производится с помощью монтажного кондуктора, специальные болты которого предварительно выставляются на проектную отметку низа панели, уровень установленной панели при необходимости корректируется этими же болтами. Установленная на проектную отметку НП- крепится к колонне с помощью сварки обечайки плиты с рабочей арматурой колонны, используя стальные посредники в виде уголков, или пластин. После сварных работ кондуктор можно снять. 3.2.5. Установка панелей перекрытия "насухо" в проектное положение производится с помощью бетонных монтажных столиков, предусмотренных конструкцией панелей, при этом арматурные выпуски торцов смежных панелей совмещаются таким образом, что образуется петля, просвет в которой д.б. не менее 12-20мм, после чего:
- проверяется горизонтальная установка панели и по необходимости рихтуется с помощью монтировки и вертикальная установка, которая по необходимости исправляется с помощью прокладок под монтажные столики; - в просвет петель вставляется арматура в 10АШ либо в виде прямых стержней и привязывается, либо в виде П-образных шпилек;
- проверяется расстояние между колоннами в уровне следующего по высоте перекрытия и, при необходимости, корректируется; - после установки арматуры стыки панелей перекрытия бетонируются мелкозернистым бетоном В25 с фракцией не более 10мм, одновременно бетонируются и стыки надколонных панелей с колонной с предварительной установкой снизу опалубки в виде инвентарной обечайки; - в случаях, когда при совмещении арматурных выпусков смежных панелей образуемая в петле щель не дает возможность пропуска арматуры в 10АШ и исправить этот дефект невозможно, следует эти выпуски сварить через стальную прокладку – 50 Х 8, L = 70мм, согласно чертежа.
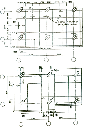
3.2.6. При несимметричности опираемых панелей, либо одностороннем приложении к ним нагрузок, что, как правило, бывает на крайних осях здания, необходима установка монтажных стоек в местах, показанных на чертеже. Стойки снимаются только после того, как перекрытие следующего (с аналогичной установкой стоек) этажа смонтировано, замоноличено и бетон замоноличивания набрал не менее 70% проектной прочности.
3.3Диафрагмы 3.3.1. Монтаж диафрагм производится с помощью специальных монтажных петель, находящихся на одном из торцов изделия. Диафрагмы устанавливаются поэтажно друг на друга, опираясь столиками, предусмотренными в их конструкции. При монтаже диафрагмы необходимо соблюдать следующую последовательность работ: - на смонтированное "на сухо" перекрытие устанавливаются изделия, составляющие сборно-монолитную диафрагму; - каждое изделие фиксируется монтажными подкосами, которые снимаются после замоноличивания горизонтальных швов верхнего и нижнего уровней; - одновременно с замоноличиванием перекрытия бетонируется нижний горизонтальный шов с предварительной установкой (во время монтажа перекрытия) стыковочных арматурных каркасов; - после монтажа следующего по высоте перекрытия бетонируются вертикальные швы между изделиями диафрагмы и т.д. 3.3.2. При монтаже диафрагм в торцах перекрытия (например, лестничный проем) необходима установка специальной опалубки для бетонирования горизонтальных швов.
3.4Связи 3.4.1. Железобетонные связи устанавливаются "в елочку" по восходящей схеме, при этом необходимо выполнить: - предварительную попарную сборку элементов связей в треугольник с помощью монтажной распорки; - приварку опорных столиков к колонне; - подъем связи и установка ее на столики с приваркой к ним нижних закладных деталей; - монтаж верхнего перекрытия и приварка к обечайке связевой панели конструкций оголовка вершины треугольника;
- бетонировка опорных конструкций мелкозернистым бетоном В15 в пределах габарита сечения элемента. 3.5 Лестницы 3.5.1. Одномаршевые лестницы устанавливаются с перекрытия на перекрытие с закреплением в верхнем уровне и свободным опиранием в нижнем уровне. 3.5.2. 2-х маршевые лестницы, состоящие из z- образных маршей, монтируются с опиранием и закреплением в верхнем и нижнем уровнях и опиранием промежуточных площадок на балку, установленную в специальные проемы в диафрагмах, ограждающих лестничную шахту. 3.6 Наружные керамзитобетоны панели 3.6.1. Монтаж наружных вертикальных панелей на консольные свесы перекрытия 1500мм включает следующие виды работ: - монтаж и замоноличивание перекрытий 2-х этажей, если устанавливается панель на 2 этажа, и -1-го этажа, если панель одноэтажная; - установка закладных деталей по краю перекрытия и бетонирование поясов; - монтаж панели (при условии прочности бетона монолитного пояса перекрытия не менее 70% проектной) с подвижкой ее таким образом, что основание ее должно опереться на нижнее перекрытие, штроба в средней части должна попасть в торец среднего перекрытия (толщина опорного слоя свежеуложенного раствора – 10мм); - сварные соединения закладных деталей панели и перекрытия; - чеканка раствором щелей, образованных плоскостью перекрытия и вырезами в панелях.
3.6.2. Монтаж наружных вертикальных панелей на консольные свесы перекрытия 400 мм производится аналогично п. 3.6., с той лишь разницей, что отсутствует необходимость в бетонировании поясов и установке закладных деталей – они предусмотрены в изделиях панелей перекрытия. 3.6.3. Монтаж наружных горизонтальных панелей аналогичен п. 5.6.2., но дополнительно предусмотрено прикрепление панелей по концам к фахверковым вертикальным панелям. 3.7Шпренгельные панели 3.7.1. Монтаж шпренгельных ферм выполняется после монтажа замоноличивания надколонных полос по осям, на которых прикрепляются фермы к колоннам. 3.7.2. Фермы к месту монтажа подаются ниже уровня смонтированного перекрытия, а далее: - устанавливаются опорные конструкции на колоннах (использую специальные отверстия в теле колонн); - ферма снизу подается до совмещения пластин опорных фланцев колонны и фермы; - выполняются фланцевые болтовые соединения опорных конструкций;
3.7.3. Последовательность монтажа шпренгельного перекрытия: - первая ферма устанавливается по торцевой оси и закрепляется к колоннам; - монтируется панель перекрытия НМП – с опиранием на торцевое перекрытие – с одной стороны, и на середину шпренгельной фермы – с другой; - производится сварка узла опирания панели и прихватка 2-х петлевых выпусков в месте опирания на перекрытие, при этом безопасность выполнения работ страхуется краном; - монтируются панели МСП- в соответствии с монтажными узлами, разработанными в данной системе; - в следующем пролете процесс повторяется.
Расчет железобетонных колонн Задание на проектирование. Рассчитать и сконструировать колонну среднего ряда (по оси 20 по ряду Р) административного десятиэтажного здания спорткомплекса с плоской кровлей при случайных эксцентриситетах (е0 = еа). Высота этажа H = 3,3 м. Сетка колонн 6х6 м. Здание возводится в Iклиматическом районе по снеговому покрову. Полезная ( временная ) нагрузка на междуэтажные перекрытия 2 кН/ м2 . Членение колонн поэтажное . Стыки колонн располагаются в уровне междуэтажных перекрытий. Класс бетона на сжатие по прочности не более В30, продольная арматура класс А-III. По назначению здание относится ко второму классу γn = 0,95.Решение. Определение нагрузок и усилий. Грузовая площадь от перекрытий и покрытий при сетке колонн 6х6 м равна 36 м2 . Подсчет нагрузок сведен в таблицу 1. Таблица 1. Нормативные и расчетные нагрузки.
Сечение колонн принимаем bc / hc = 40х40 см. Расчетная длинна колонн 3,3 м. Собственный расчетный вес колонн на один этаж Gc = 0,4х0,4х3,3х25х1,1=14,5 кН Подсчет расчетной нагрузки от покрытия и перекрытия сведен в табл. 2 .Расчет нагрузки от покрытия и перекрытия выполнен путем умножения их значений по табл.1 на грузовую площадь 36 м2 , с которой нагрузка передается на одну колонну. Таблица 2. Подсчет расчетной нагрузки на колонну
Расчет колонны первого этажа: Усилия с учетом γn = 0,95 будут: N1 = 2863,8 кНх0,95 = 2720,61 кН, Nld = 2061х0,95 = 1957,95 кН, сечение колонн bc / hc = 40х40 см , бетон класса В30, Rb = 17 МПа, Арматура из стали класса А–III, Rsc = 365 МПа, γb 2 =0,9. Предварительно вычисляем отношение Nld / N1 = 1957, 95/ 2720,61 = 0,72; гибкость колонны λ = l0 / hc =330/40 = 8,25 > 4, следовательно, необходимо учитывать прогибы колонны, эксцентриситет еа = hc / 30 = 40 / 30 = 1,33 см, а также не менее l / 600 = 330/ 600 = 0,55 см; принимаем большее значение еа = 1,33 см;расчетная длинна колонны l = 330 см < 20 hc = 20х40=800 см, значит, расчет продольной арматуры можно выполнить по формуле: Задаемся процентом армирования μ = 1% (коэффициент μ = 0,01) и вычисляем α 1 = μхRsc / Rb х γb 2 = 0,01х 365 / 17х0,9 = 0,239. При Nld / N1 = 0,72 и λ = l0 / hc = 8,25 коэффициенты φb = 0,91, φr = 0,915. Коэффициент φ= φb + 2 (φr - φb ) х α1 = 0,91 +2 (0,915 – 0,91) 0,239 = 0,912 < φr = 0,915; Требуемая площадь сечения продольной арматуры по формуле: (As + As / ) = N1 / φ γs Rsc – ARb γb 2 / Rsc = 2720610 / 0,912х1х36500 – 40х40х17х0,9 / 365 = 81,729-67,1 = 14,63 см2 выбираем 4ø 22 А-III, Σ As = 15, 2 см 2 ; μ = (15,2 / 1600)х100 = 0,95 что совпадает с ранее принятымμ = 1 %. Расчет колонны второго этажа: Усилия с учетом γn = 0,95 будут: N2 = 2572,4 кН х 0,95 = 2443,78 кН, Nld = 1856х0,95 = 1763,2 кН, сечение колонн bc / hc = 40х40 см, бетон класса В30, Rb = 17 МПа, Арматура из стали класса А–III, Rsc = 365 МПа, γb 2 =0,9. Предварительно вычисляем отношение Nld / N2 = 1763,2 / 2443,78 = 0,72; гибкость колонны λ = l0 / hc =330/40 = 8,25 > 4, следовательно, необходимо учитывать прогибы колонны, эксцентриситет еа = hc / 30 = 40 / 30 = 1,33 см, а также не менее l / 600 = 330/ 600 = 0,55 см; принимаем большее значение еа = 1,33 см; расчетная длинна колонны l = 330 см < 20 hc = 20х40=800 см, значит, расчет продольной арматуры можно выполнить по формуле: Задаемся процентом армирования μ = 1% (коэффициент μ = 0,01) и вычисляем: α 1 = μхRsc / Rb х γb 2 = 0,01х 365/ 17х0,9 = 0,239. При Nld / N1 = 0,72 и λ = l0 / hc = 8,25 коэффициенты φb = 0,91, φr = 0,915 Коэффициент φ= φb + 2 (φr - φb ) х α1 = 0,91 +2 (0,915 – 0,91) 0,239 = 0,912 < φr = 0,915; Требуемая площадь сечения продольной арматуры по формуле: (As + As / ) = N1 / φ γs Rsc – ARb γb 2 / Rsc = 2443780 / 0,912х1х36500 – 40х40х17х0,9/365 =73,41 -67,1 = =6,31 см2 выбираем 4ø 16 А-III, Σ As = 8,04 см 2 ; Для унификации колонн всех вышерасположенных этажей принимаем конструктивно4ø 16 А-III, Σ As = 8,04 см 2 ; |
||||||||||||||||||||||||||||||||||||||||||||||||||||||||||||||||||||||||||||||||||||||||||||||||||||||||||||||||||||||||||||||||||||||||||||





















