Курсовая работа: Стенд для монтажа шин
|
Название: Стенд для монтажа шин Раздел: Рефераты по транспорту Тип: курсовая работа |
|
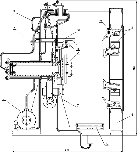
Одним из наиболее важных направлений по существенному повышению производительности труда, сокращению затрат на содержание и эксплуатацию автомобилей в условиях ресурсных ограничений, имеющихся на автомобильном транспорте, является совершенствование технологических процессов на основе применения современной и новой технике, т. е. осуществление мероприятий по механизации и автоматизации ТО и ремонта подвижного состава на АТП. В данной расчетной работе предлагается стенд для демонтажа и монтажа шин. 1 Назначение разрабатываемого приспособления Стенд предназначен для демонтажа и монтажа шин размером от 7,50–20 дюймов до 12,00–20 (рисунок 1).
Рисунок 1 –Стенд для демонтажа и монтажа шин грузовых автомобилей: 1 – бачок; 2 – гидропривод; 3 – лапа в сборе; 4 – пневматический патрон; 5 – гидравлический подъемник; 6 – рама; 7 – редуктор; 8 – съемник; 9 трубопровод; 10 – упор; 11 – винт Колесо с шиной, из которой выпущен воздух, устанавливают на стенд в вертикальном положении и центрируют с помощью гидравлического подъемника, после чего колесо закрепляют пневматическим патроном. С помощью механического устройства, приводимого в действие от электромотора мощностью 0,4 кВт через червячный редуктор, снимают замочное кольцо. Бортовое кольцо отжимают с помощью гидравлического привода, развивающего усилие до 50 кН. Диск колеса выжимают штоком гидравлического цилиндра (с усилием до 200 кН). Вертикальное расположение колеса устраняет операцию – подъем колеса с пола, необходимую при применении стендов с горизонтальным расположением съемного устройства. Усилие штока, развиваемое гидроцилиндром [4]: Fшт = S ∙ r(1) где S − площадь поршня, м2 ; r − удельное давление на 1 с2 площади поршня, r = 2,4 МПа. Площадь поршня вычисляется по формуле: S = p ∙ dтр 2 / 4,(2) где dтр − требуемый диаметр поршня. Fшт = p ∙ dтр 2 / 4 ∙ r, (3) отсюда dтр 2 = 4 ∙ Fшт ∙ r / p.(4) Требуемое усилие штока Fшт = 200 кН (см. п. 1), тогда dтр 2 = 4 ∙ 200 ∙ 103 ∙ 2,4 ∙ 10-6 / 3,14 = 61,15 ∙ 10−3 м2 ; dтр
= Ближайший диаметр поршня из стандартного ряда равен 250 мм. Применим гидроцилиндр с диаметром поршня 250 мм. 3 Расчет площади поперечного сечения штока Площадь поперечного сечения штока [4]: F = p ∙ dшт 2 / 4,(6) где dшт − требуемый диаметр штока. По ГОСТ гидроцилиндру с диаметром поршня 250 мм соответствует диаметр штока dшт = 0,12 м, тогда F = 3,14 ∙ 0,122 / 4 = 0,011 м2 . Так как нагрузка Q на шток равна усилию, действующему на поршень, то Q = Fшт = p ∙ dпор 2 / 4 ∙ r,(7) где dпор − диаметр поршня, dпор = 0,25 м: r − удельное давление на 1 с2 площади поршня, r = 2,4 МПа. Q = 3,14 ∙ 0,252 / (4 ∙ 2,4 ∙ 10-6 ) = 204 кН; Шток испытывает нагрузку сжатия от сил давления, действующих на поршень (рисунок 2)
Рисунок 2 − Схема и эпюра сжатия штока. Для стали Ст 45 допускаемое напряжение на сжатие [σсж ] = 160 МПа. Напряжение сжатие [3]: σсж = Q / F,(8) где Q – усилие штока, Q = 200 кН; F − площадь поперечного сечения штока. σсж = Q / F = 204 ∙ 103 / 0,011 = 18,5 МПа. Должно выполняться условие: [σсж ] ≥ σсж = Q / F.(9) Так как [σсж ] = 160 МПа, то условие выполняется. 6 Расчет предельно допустимых напряжений сварного шва Расчет предельно допустимых напряжений сварного шва [3]:
где dт – предел текучести; S – запас прочности. Для материала сварочной проволоки допускаемое напряжение [3]: [δТ ] = 280 МПа. [τ’] = 0,6 · Площадь шва [4]: S = h ∙ l,(11) где h – ширина шва; l – длина шва; l = π ∙ d,(12) где в − диаметр свариваемой поверхности, в = 0,270 м; l = 3,14 ∙ 0,270 = 0,85 м. Ширина шва h = 0,01 м, тогда площадь шва S = 0,01 ∙ 0,38 = 0,004 м2 . 8 Расчет сварного шва крепления корпуса гидроцилиндра с серьгой Проведем расчет сварного шва крепления корпуса цилиндра с серьгой из условия прочности на отрыв (рисунок 3). Действующая нагрузка будет только в вертикальной плоскости и возникает от усилия, передаваемого штоком Р = Fшт = 200 кН. Расчет прочности стыковых соединений, нагруженных силой Р, выполняется по формуле:
где t – напряжение, возникающее в сварном шве; Р – сила, действующая на сварной шов; S − площадь шва.
Рисунок 3 – К расчету сварного шва гидроцилиндра Напряжение, возникающее в сварном шве: τ = Условие прочности [τ’] = 56 МПа ≥ τ = 50 МПа выполняется. 9 Расчет параметров гидравлического насоса Для безопасной работы гидромагистрали принимаем стандартное давление, равное 3 МПа. Произведем расчет параметров гидропривода при принятом значении давления. Производительность гидравлических насосов рассчитывается по формуле V = где Q − требуемая сила на штоке, Q = 200 кН; L − длина рабочего хода поршня гидроцилиндра, L = 0,5 м; t − время рабочего хода поршня гидроцилиндра, t = 0,1 мин; р − давление масла в гидроцилиндре, р = 3 МПа; η1 − КПД гидросистемы, η1 = 0,85; V = По данным расчета выбираем насос НШ-40Д. 10 Расчет параметров электродвигателя Мощность, расходуемая на привод насоса, определяется по формуле: N = где η12 − общий КПД насоса, η12 = 0,92; V – производительность гидравлического насоса, V = 40 л/мин; р − давление масла в гидроцилиндре, р = 3 МПа; N = По данным расчета для получения требуемой производительности насоса выбираем электродвигатель АОЛ2-11, с частотой вращения n = 1000 мин−1 и мощностью N = 0,4 кВт. Наибольший изгибающий момент пальцы лап будут испытывать при максимальной нагрузке R = 200 кН. Так как лап 6, то один палец будет испытывать изгибающий момент от нагрузке R = 200 / 6 = 33,3 кН (рисунок 4). Длина пальца L = 100 мм = 0,1 м. Изгибающее напряжение для круглого сечение [3]: σ = где М − изгибающий момент; d – диаметр пальца; В опасном сечении момент будет Мизг = R ∙ L / 2 = 33,3 ∙ 0,1 / 2 = 1,7 кН∙м.
Рисунок 4 – К расчету пальца на изгиб. Палец в своем сечении представляет круг диаметром в = 40 мм = 0,04 м. Определим его изгибающее напряжение: σ = Условие прочности [3]: [σизг ] ≥ σизг . Для стали Ст 45 допускаемое напряжение [σизг ] = 280 МПа. Условие прочности выполняется, т. к. допускаемое напряжение на изгиб больше действительного. Были рассчитаны необходимые параметры гидроцилиндра. По данным расчета был установлен гидроцилиндр с диаметром поршня 250 мм и диаметром штока 120 мм. Действующее усилие на штоке составляет 204 кН. Площадь поперечного сечения штока 0,011 м2 . Расчет штока на сжатие показал, что напряжение сжатия равно 18,5 МПа и меньше допускаемого 160 МПа. Был проведен расчет сварного шва на прочность. Допускаемое напряжение равно 56 МПа. Действительное напряжение, возникающее в сварном шве равно 50 МПа. Площадь шва 0,004 м2 . Расчет параметров гидравлического насоса показал, что производительность насоса должна быть больше 39,2 л/мин. По данным расчета выбираем насос НШ-40Д. Был проведен расчет параметров электродвигателя. По результатам расчета был выбран электродвигатель АОЛ2-11 с частотой вращения n = 1000 мин−1 и мощностью N = 0,4 кВт. Расчет пальца лап на изгиб показал, что в опасном сечении изгибающий момент будет Мизг = 1,7 кН∙м. Изгибающее напряжение σ = 135,35 МПа, что меньше допускаемого [σизг ] = 280 МПа. Список используемых источников 1 Власов Ю.А., Тищенко Н.Т. Основы проектирования и эксплуатации технологического оборудования. Учебное пособие. Томск: Агр. Строит. Универс. 2004 – 277 с. 2 Дурков П.Н. Насосы и компрессорные машины. М., Машгиз, 1960. 3 Крипицер М.В. Специализация авторемонтного производства., М., «Транспорт», 1968. 4 Курсовое проектирование деталей машин: Учеб. пособие для учащихся машиностроительных специальностей техникумов/ С. А. Чернавский, К. Н. Боков, И. М. Чернин и др. – 2-е изд., перераб. и доп. – М.: «Машиностроение. |



(15)
= 33,97 ∙ 106
Па = 135,35 МПа