Курсовая работа: Проектирование и расчет несущих конструкций железобетонного каркаса одноэтажного промышленного здания
|
Название: Проектирование и расчет несущих конструкций железобетонного каркаса одноэтажного промышленного здания Раздел: Рефераты по строительству Тип: курсовая работа | |||||||||||||||||||||||||||||||||||||||||||||||||||||||||||||||||||||||
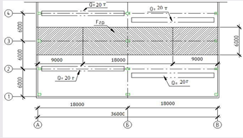
Старооскольский технологический институт Федерального государственного образовательного учреждения Высшего профессионального образования "Национальный исследовательский технологический университет МИСиС" Кафедра промышленного и гражданского строительства Пояснительная записка к курсовому проекту по железобетонным и каменным конструкциям на тему: "Проектирование и расчет несущих конструкций железобетонного каркаса одноэтажного промышленного здания" Выполнил: студент группы ПГС-05-2з Рогоза С.И. Проверил: Медведев Е.Н. 2010 г. Задание К курсовому проекту №1 По дисциплине "Железобетонные и каменные конструкции" Разработать проект каркаса одноэтажного промышленного здания в сборном железобетоне. В основу компоновки объемно - планировочного и конструктивного решения принять знания и умения, приобретенные в разработанном ранее курсовом проекте "Промышленные здания" по дисциплине "Архитектура ПГ3". Исходные данные 1. Длина блока 60(м), 2. Ширина блока 36(м), 3. Шаг колонн 6(м), 4. Пролет (L1 , L2 ) 18(м), 5. Количество пролетов 2 6. Высота до низа несущих конструкций 8.4(м), 7. Грузоподъемность крана 20 (т), 8. Район строительства г. Киев, 9. Типовые конструкции - колонны, крановые сплошного прямоугольного сечения (колонна для расчета крайняя); - отдельно стоящие фундаменты стаканного типа; - конструкции покрытия – КЖС. Состав проекта I. Состав пояснительной записки: 1. Компоновочная и расчетная схема каркаса здания, сбор по загружениям. 2. Определение усилий в крайней колонне от загружений. 3. Комбинация усилий в сечениях крайней колонны. 4. Расчет и конструирование колонны. 5. Расчет и конструирование отдельно стоящего фундамента. 6. Расчет и конструирование плиты. II. Графическая часть проекта. Проект оформляется на 1.5-2 листах формата А1 в составе: - компоновочная схема здания; - армирование колонны; - армирование отдельно стоящего фундамента; - армирование конструкций покрытия. Введение Целью данного курсового проекта является расчет железобетонных элементов сборного каркасного одноэтажного промышленного здания. Здание имеет следующие объемно планировочные характеристики: два пролета по 18 м (общая ширина здания 36 м), длина – 60м. В здании применены железобетонные колонны заводского изготовления. Колонны имеют сплошное прямоугольное поперечное сечение. Шаг колонн в здании – 6м. На колонны опирается подкрановые балки длиной 6 м. В каждом пролете действует кран, грузоподъемностью Q=20 т. Все краны среднего режима работы. Колонны опираются на фундаменты стаканного типа. Нагрузка от покрытия на колонны посредством КЖС пролетом 18 м, уложенных с шагом 6 м. В качестве наружных ограждающих конструкций применяются железобетонные панели размером 1,2х6 м. Для расчета элементов каркаса колонн, КЖС – все размеры принимаются в соответствии с каталогом железобетонных конструкций для одноэтажных промышленных зданий. В пояснительной записке приводится лишь расчет и подбор арматуры. Фундамент рассчитывается с учетом требований унификации. Здание рассчитывается для строительства в районе города Киев. 1. Подбор конструкций Колонны
Подкрановая балка – 3,5т
Стеновая панель – 2,1т
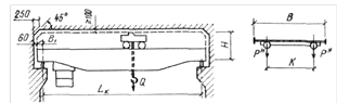
Характеристики крана:
Грузоподъемность Q=20т; Пролет Lк -16.5 м; Ширина В=6300мм; База К=4400мм; Высота Н=2400мм; Зазор В1 =260мм; Давление колеса Рn , max =195кН; Масса тележки Gт =8.5 т; Масса крана с тележкой Gк =28,5т. 2. Компоновка поперечной рамы здания
Fгр – грузовая площадь поперечника.
3. Cбор нагрузок Постоянная нагрузка Нагрузки от покрытия собираем с грузовых площадей равных: 9x6 м для колонн по рядам А и В, и 18х6 для колонн по ряду Б. Нагрузки от массы подкрановых балок, крановых путей, стеновых панелей, от ветра собираем с полосы 6м, равной по ширине раме-блоку.
Снеговая нагрузка Расчетная снеговая нагрузка по (СНиП 2.01.07-85* "Нагрузки и воздействия" таб.4)
где γf – коэффициент надежности по нагрузке 1,8;
Определим продольную силу Ns в крайней колонне:
Момент нагрузки равен
где Ветровая нагрузка
В зависимости от района (по СНиП 2.01.07-85* прил.5 карта 3 и табл.5) выбираем район и нормативное значение ветрового давления w0 Киев – II район – w0 =0.3 (кПа), Аэродинамические коэффициенты для вертикальных стен:
где Ш – шаг колонн 6м; γf – коэффициент надежности по нагрузке 1,2; к=1 – коэффициент изменения ветрового давления по высоте. С наветренной стороны:
С заветренной стороны:
Суммарная сосредоточенная сила W в уровне верха колонны от ветровой нагрузки на стеновую панель:
гдеhпар =0,6м – высота парапета. Крановые нагрузки
Продольные сосредоточенные нагрузки от действия мостовых кранов:
где γf – коэффициент надежности по нагрузке 1,2;
Момент от внецентренного приложения:
При торможении тележки возникает горизонтальная поперечная сила
Расчетная тормозная сила:
4. Расчет и конструирование средней колонны Данные для расчета.
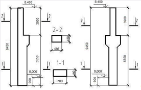
Бетон класса B22,5 с характеристиками Rb =13.5 МПа, продольная рабочая арматура класса А-IIIRs =Rsc =365 МПа, Es =20x104 МПа, Eв =260x103 МПа. Для расчета колонны используем следующее наиболее неблагоприятное сечение (расчетные сочетания усилий): Надкрановая часть: N= 110.5 (т); М=4.6 (т·м); Q= 2,4 (т); Подкрановая часть: N= 185.0 (т); М=15.2 (т·м); Q= 2,9 (т); Расчет надкрановой части колонны.
Сечение колонны bxh=40x60см. Защитный слой а=4см. Полезная высота сечения h0 =60-4=56см. Расчетная длина надкрановой части колонны l0 =2H2 =2x3.9=7,8 м, При учете крановой нагрузки (т. 32 СНиП II-21-75) Гибкость надкрановой части колонны:
Значит, появляется необходимость учета влияния прогиба элемента на величину эксцентриситета продольной силы: Случайные эксцентриситет:
Находим условную критическую силу
так как Кдл =1 – коэффициент учитывающий длительное влияние действия нагрузки на пргиб элемента в предельном состоянии. Придельный момент инерции сечения арматуры относительно центра тяжести бетонного сечения:
Коэффициент
Расстояние
Граничное значение относительной высоты сжатой зоны бетона:
Площадь арматуры в сжатой зоне
Сечение арматуры
Принимаем 3 Ø16 А-III, Аs =6.03см2 При принятом сечении
По таблице 2.11 (Мандриков) Определим сечение растянутой арматуры
Сечение арматуры Принятый коэффициент армирования предварительно μ=0,005,
не значительно отличается от первоначально принятого μ=0,005, по этому корректировку расчета можно не производить. На широких гранях предусматриваем по 1 Ø16 А-III с тем, чтобы расстояние между продольными стержнями не превышало 400мм. Расчет подкрановой части колонны.
Размеры сечение подкрановой части колонны bxh=40x60см. Защитный слой а=4см. Полезная высота сечения h0 =60-4=56см. Расчетная длина подкрановой части колонны l0 =1,5H2 =1,5x5,55=8,325(м). При учете крановой нагрузки (т. 32 СНиП II-21-75). Гибкость подкрановой части колонны:
Значит, появляется необходимость учета влияния прогиба элемента на величину эксцентриситета продольной силы: Случайные эксцентриситет:
Находим условную критическую силу
так как Кдл =1 – коэффициент учитывающий длительное влияние действия нагрузки на пргиб элемента в предельном состоянии. Придельный момент инерции сечения арматуры относительно центра тяжести бетонного сечения:
Коэффициент
Расстояние
Граничное значение относительной высоты сжатой зоны бетона:
Площадь арматуры в сжатой зоне
Сечение арматуры
Принимаем 3 Ø16 А-III, Аs =6.03см2 При принятом сечении
По таблице 2.11 (Мандриков) Определим сечение растянутой арматуры
Сечение арматуры Принятый коэффициент армирования предварительно μ=0,005,
Расчет крановой консоли
d=750мм; b=600мм; h3 =900мм; h4 =600мм; а=40мм; h0 =1460мм; h=1500мм; l=900мм На крановую консоль ряда действует сосредоточенная сила от веса подкрановой балки и вертикального давления кранов.
1) Используемый бетон класса В22,5 Rb =13.5 (МПа), Rbt =0,975 (МПа), так как
т.е. прочность бетонного сечения консоли достаточно и поперечное армирование ее выполняется по конструктивным требованиям (согласно Пособию по проектированию бетонных и железобетонных конструкций из тяжелых и легких бетонов без предварительного напряжения арматуры). Поперечное армирование принимаем в виде горизонтальных хомутов из стержней Ø6 А-IIIс шагом 150 (мм) по высоте колонны. 2) Конструкция короткой консоли должна отвечать условию, обеспечивающему прочность бетона на наклонной сжатой полосе между грузом и опорой.
где
Условие выполняется, прочность бетона на наклонной сжатой полосе обеспечена. 3) Расчет продольной арматуры: Изгибающий момент:
По таблице 2.11 (Мандриков)
Требуемая площадь сечения продольной арматуры консоли:
Принимаем 2 Ø18 A-IIIAs =5.09(cм2 ). 4) Определение сечения отогнутых стержней:
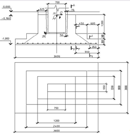
Принимаем 4 Ø20 A-IIIAs =12,56(cм2 ). 5. Конструирование и расчет фундамента Глубину заложения фундамента принимаем 1.95 м. Обрез фундамента на отметке -0,150м. Расчетное сопротивление грунта основания R=215 кПа, средний удельный вес материала и грунта на нем γm =20 кН/м3 . Бетон фундамента класса В12,5 с расчетными характеристиками Rb =7.5 МПа; Rbt =0.66 МПа; Арматура класса А-III. На фундамент в уровне его обреза передаются от колонны следующие усилия N= 185.0 (т); М=15.2 (т·м); Q= 2,9 (т);
Предварительные размеры подошвы фундамента. Назначая отношение сторон
Примем Учитывая наличие момента и распора, увеличиваем размеры сторон примерно на 10-15%; Принимаем Площадь подошвы Момент сопротивления подошвы в плоскости изгиба
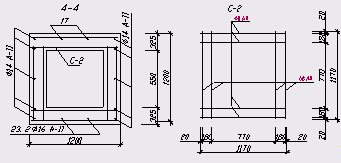
Определение конфигурации фундамента. Размеры подколонника в плане:
где Рабочая высота плитной части из условия продавливания от граней подоконника.
Принимая bc =bcf =1.2м и hc =hcf =1.2м
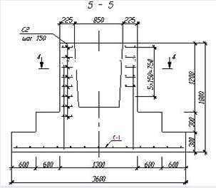
Так как консольный вынос ступени получается больше оптимального, равного 3h01 : 0,5(l-lcf )=0.5(3.6-1.2)=1.2>3h01 =3x0.25=0.75(м), где h01 =h1 -a=300-50=250мм=0,25м, поэтому принимаем плитную часть из двух ступеней высотой h1 =h2 =300мм. Размеры в плане второй ступени b1 xl1 =1.8x2.4м. Консольные выносы ступеней:
Глубина стакана под колонну hd =900мм
Проверка высоты нижней ступени. Проверка на продавливание выполняется из условия: Площадь
- продавливание нижней ступени не произойдет. Проверка по поперечной силе для наклонного сечения, начинающаяся от грани второй ступени.
прочность нижней ступени по поперечной силе достаточны. Проверку второй ступени на продавливание можно не производить, так как принятая высота плитной части значительно превышает требуемую из расчета на продавливание. Подбор арматуры подошвы. Площадь сечения рабочей арматуры подошвы: Сечение I-I (h01 =250мм):
Сечение II-II (h02 =550мм):
Сечение III-III (h03 =1750мм):
Приму 15 Ø 18 А-III (Аs =3810мм2 >As , II =3542мм2 ) в направлении длинной стороны с шагом 200 мм. Подбор арматуры в направлении короткой стороны. Расчет ведется по среднему давлению по подошве Рабочая высота Сечение I’-I’ по грани второй ступени
Сечение II’-II’ по грани подколонника
Сечение III’-III’ по грани колонны
Принимаю вдоль короткой стороны фундамента 18 Ø 14 А-III (Аs =2770мм2>As , II =2245мм2 ) с шагом 200 мм. Расчет продольной арматуры подколонника. Расчет продольной арматуры подколонника. Толщину защитного слоя бетона принимаем не менее 50 мм, берем расстояние от наружной грани стакана до центра тяжести сечения арматуры a=a’=50мм. Расчетный эксцентриситет продольной силы относительно арматуры As .
- момент на уровне низа подколонника.
Расчетный эксцентриситет относительно арматуры подколонника:
Требуемая площадь сечения симметричной арматуры:
то есть по расчету продольная арматура не требуется, но по конструктивным требованиям при As <0 ее количество должно быть не менее 0.05% площади поперечного сечения подколонника.
Принимаем по 5Ø14 А-III (Аs = А’s =769мм2 ) у граней подколонника, перпендикулярных плоскости изгиба. У смежных граней параллельных плоскости изгиба, с шагом не более 400 мм, т.е. по 3Ø14 A-III (Аs = 462 мм2 ). Подбор поперечной арматуры подколонника. При выполнении условия
Расчет на смятие для стакана. Расчет выполняется из условия
Расчетное сопротивление смятию бетона:
Значит смятие бетона под колонной на дне стакана не произойдет, следовательно сетка под днищем стакана не требуется.
6. Конструирование и расчет КЖС-18 Бетон класса B30 с характеристиками Rb =17 МПа, Rbt =1.2 МПа, арматура класса А-IV, Rs =510 МПа, Rsc =400 МПа, Es =1.9x105 МПа, Eв =260x103 МПа. Сбор нагрузок
Размеры поперечного сечения панели-оболочки принимаем согласно рекомендациям: толщину оболочки 30 мм, толщину стены диафрагмы 40-50 мми нижнего утолщения 100х100 мм, высоту опорной части панели 150 мм. С учетом коэффициента надежности принимаем нагрузку: - нормативная (при γf =1) – 4.24 кН/м2 ; - расчетная (при γf >1) – 5.62 кН/м2 ; Расчетный изгибающий момент в середине пролета панели:
Расчетная поперечная сила:
Расчетные усилия от нормативных нагрузок:
Расчет толщины оболочки Проверяем толщину оболочки в середине пролета:
Принимаем 3 см Расчет арматуры в торце плиты Определяем расчетное усилие Nt в торцевой арматуре:
Принимаем большее из двух значений. g – расчетная нагрузка от веса панели на 1 м2 ; bs – расстояние между осями рабочей арматуры диафрагм; 2000 – сопротивление отрыву при съема панели с формы.
Принимаем Nt =76 кН Площадь сечения торцевой арматуры As , t класса A-IIIcRs =360 МПа (при d>10 мм):
Принимаем 2Ø12 A-III; As =2.26 см2 . Расчет диафрагм на действие поперечной силы. Значение Q=150 кН. С учетом влияния изгибающего момента рассмотрим сечение, расположенное на расстоянии 1 м от оси опоры. В этом сечении ho =26.7 см; z0 =24.4 см; tgφ=0.19; толщина диафрагм b’=10 см; Rbt =1.2 МПа. Усилие в сечении:
Определяем часть поперечной силы, воспринимаемой диафрагмами:
где φ – угол наклона оси оболочки; при этом должно соблюдаться условие:
Условие
Условие соблюдается. Следовательно, поперечная арматура по расчету не требуется, устанавливаем ее по конструктивным соображениям: Ø6 A-III с шагом 150 мм. В вертикальных ребрах жесткости диафрагм через 1.5-1.6 м ставим подвески из арматур Ø10 A-III. Расчет анкеров. Площадь рабочей поверхности анкера рабочей арматуры каждой диафрагмы определяется из условий:
где М1 – изгибающий момент на всю ширину панели в сечении, расположенном на расстоянии 1.5 м от рабочей поверхности анкера; z1 – расстояние по вертикали от оси рабочей арматуры диафрагмы до оси оболочки в этом же сечении.
Площадь поверхности анкера по формуле:
Принимаем анкер с упорной плитой шириной 180 мм и высотой 140 м.
Расчет панели по деформациям (прогибам) Определяем прогиб панели в середине пролета с учетом длительного действия нагрузки при коэффициенте надежности γf =1 по формуле:
где q1 – кратковременно действующая часть нагрузки; φb 2 – коэффициент, учитывающий влияние длительной ползучести бетона; q2 – длительно действующая часть нагрузки; q3 – эквивалентная по моменту в середине пролета равномерно распределенная нагрузка от сил предварительного натяжения.
где Р0 – равнодействующая усилий в напрягаемой арматуре до обжатия бетона; σlos = σ6 + σ8 + σ9 – потери напряжений в арматуре. σ’los – потери напряжений до уровня сжатой зоны бетона.
Расчет панели по образованию трещин Рассмотрим сечение в середине пролета панели. Момент сопротивления для растянутой грани сечения:
Расстояние zy от центра тяжести сечения до верхней ядровой точки с учетом коэффициента 0.8 определяем по формуле:
Изгибающий момент в середине пролета при образовании трещин:
Wpl - момент сопротивления для растянутой грани сечения с учетом неупругих деформаций бетона; Р02 – равнодействующая усилий в напрягаемой арматуре с учетом всех потерь:
Это соответствует равномерно распределенной нагрузке при образовании трещин.
Таким образом, трещиностойкость панели при γf =1 обеспечена, трещины появляются при нагрузках с коэффициентом надежности γf >1, при которых расчетный изгибающий момент:
Прочность сопряжения оболочки с диафрагмой
Прочность проверяем расчетом на изгиб в сечениях 1-1 и 2-2 при действии на оболочку расчетных изгибающих нагрузок. При принимаем момент М1 ( в сечении 1-1) и М2 (в сечении 2-2) одинаковым, который определяем по формуле:
где l0 – размер оболочки между вутами; av – ширина вута от внутренней грани диафрагмы; q1 – расчетная изгибающая нагрузка при наиболее неблагоприятной схеме загружения.
Момент М1 воспринимается поперечной арматурой сетки оболочки, где на 1 м предусмотрено 5Ø5 Вр-I, As =0.98 см2 . Эта арматура может воспринять момент
где h0 =7-1.5=5.5 см (в сечении 1-1) Условие прочности соблюдается. Дополнительное армирование сопряжения оболочки с диафрагмой по расчету не требуется. Момент М2 воспринимается арматурой подвесок, располагаемых в ребрах жесткости диафрагм. При Ø10 A-III, As =0.78 см2 и b<12bр =12х4=48 см (bр =4 см – толщина стенки диафрагмы), h0 =0.5х1.2 см=6 см;
Момент, воспринимаемый сечением:
Условие удовлетворяется. Список используемой литературы 1. Железобетонные конструкции промышленных зданий: А.И. Заикин – М.: ABC 202. – 272c. 2. Мандриков А.П. "примеры расчета железобетонных конструкций" М. Стройиздат. 1991г, 430с. 3. СНиП II-03-01* Нормы проектирования. Бетонные и железобетонные конструкции М.: Стройиздат, 1989г. 4. СНиП 2.01.07-85 Нагрузки и воздействия М., 1985. 5. Байков В. Н., Сигалов Э. Е. "Железобетонные конструкции", учебник, М., Стройиздат, 1991. 6. Методические указания по расчету поперечников, расчетам плит перекрытия, балок. СТИ МИСиС, 1998, 1999г. 7. Шерешевский И. А. Конструирование промышленных зданий и сооружений, М., Стройиздат, 1979г. 8. Трепененков Р.Н. Альбом чертежей конструкций и деталей промышленных зданий, М., Стройиздат, 1980 г. 9. К.И. Вилков Одноэтажная рама промздания в сборном железобетоне, НАСА, Нижний Новгород, 1990 г. 10. Пособие по проектированию бетонных и железобетонных конструкций из тяжелых и легких бетонов без предварительного напряжения арматуры (к СНиП 2.03.01-84). 11. Пособие по проектированию фундаментов на естественном основании под колонны зданий и сооружений (к СНиП 2.03.01-84 и СНиП 2.02.01-83). |











, где 
;
, где
;
;

;











,