Курсовая работа: Проектирование деревянного моста
|
Название: Проектирование деревянного моста Раздел: Рефераты по транспорту Тип: курсовая работа | |||||||||||||||||||||||||||||||||||||||||||||||||||||||||||||||||||||||||||||||||||||||||||||||||||||||||||||||||||||||||||||||||||||||
Введение Мосты относятся к наиболее ответственным и дорогим сооружениям, возведения которых могут быть использованы различные строительные материалы; дерево, камень, бетон, железобетон, сталь и др. Дерево – хороший естественный строительный материал, широко распространённый на территории России и вполне пригодный для строительства мостов, а также является строительным материалом, который самовосстанавливается в природе. Однако деревянные мосты требуют тщательного эксплуатационного ухода, так как при недостаточном надзоре их элементы легко подвергаются загниванию, и применимы только для перекрытия сравнительно небольших пролётов. Поэтому в современных условиях такие мосты целесообразны на дорогах низких категорий в лесных районах, при обязательной защите дерева антисептиками. Выполнение студентами курсовой работы по проектированию деревянного моста имеет своей целью закрепление и углубление теоретических знаний по дисциплине «Проектирование мостов и труб», приобретение практических навыков проектирования деревянных мостовых сооружений, развитие творческих способностей. 1.Составление и расчет схемы моста 1.1 Местные условияМостовой период находится в районе города Хабаровска. Мост расположен на прямом горизонтальном участке дороги. На реке присутствует судоходство. Река имеет спокойное течение и устойчивое русло. Лесосплав и карчеход отсутствует. Грунт –суглинок в пластичном состоянии. 1.2 Расчёт схемы моста1) Определение количества основных пролётов между точками соприкосновения УВВ и конусами насыпи моста.
где L0 – отверстие которое необходимо обеспечить под мостом l1 - ширина пространственной опоры l – расстояние между осями опор основных пролётов nn – количество пространственных промежуточных опор 2)Определение количества пролётов необходимого для перекрытия пространства над конусами насыпи и образования устоев.
где Н=БП-ГВВ=43,05-41,7=1,35 м; БП=ПР-0,75=43,8-0,75=43,05 м; ПP=43,8 l2 – расстояние между осями стоек образующих устой 3) Подсчёт полной длины моста Lп=2*0,5+2nуl2+n0l+nnl1=(2*0,5)+(2*1*3)+(3*4+5,9)+(6*3)=42,9м 4) Определение фактического отверстия моста
где ni - количествооднотипных опор (устоев, плоских и пространственных промежуточных опор) bi – расчётная ширина i-ой опоры в уровне УВВ 1.3 Технико-экономические показатели и ведомости подсчёта стоимости и трудоёмкости строительства вариантов мостов 1.3.1 ведомости подсчёта стоимости и трудоёмкости строительства вариантов мостов
Таблица 1.1 Ведомость подсчета стоимостей и трудоемкостей моста 1.3.2 Технико-экономические показатели деревянный мост стойка пролет
Таблица 1.2 Технико-экономические показатели варианта моста 2 Исходные данные к расчету моста 2.1 Пролетное строение и опора заданная к расчетамК расчету задано пролетное строение из составных пакетов с колодками, с нагрузкой С9 .Сближена рамно-свайная опора. 2.2 Нагрузки, габариты, материалы и их расчетные характеристикиПакет рассчитывают на воздействие постоянных и временной нагрузок. Из постоянных нагрузок учитывают: - нагрузку от веса мостового полотна; - нагрузку от тротуаров и перил; - нагрузку от веса пакетов. Нормативную временную вертикальную эквивалентную нагрузку от подвижного состава железных дорог (СК) принимают в зависимости от характеристик линии влияния: длины загружения и от относительного положения вершины линии влияния на длине загружаемого участка соответствующего усилия и класса временной нагрузки К. В курсовой работе задан класс нагрузки – С9. Габарит проезда «С» - предельное перпендикулярное оси очертание, внутрь которого не должны заходить никакие сооружения. Ширина габарита «С» равна 4900 мм. Порода дерева – сосна. Расчетные характеристики сосны первого сорта приведены в таблице 2.1
Таблица 2.1 Расчетные характеристики сосны первого сорта
где 2.3 Основные положения расчетаРасчёт моста ведётся по методу предельных состояний. Предельное состояние – это такое состояние, когда сооружение или его основание под влиянием силовых воздействий перестаёт удовлетворять условиям эксплуатации или затрудняется его эксплуатация. Существует две группы предельных состояний: 1) Предельное состояние, при котором эксплуатация сооружения должна быть прекращена. Соответствующие этой группе расчёты деревянного моста: -расчёт на прочность (σ, τ, - M, N, Q) – расчёт на однократное воздействие нагрузки -расчёт на общую устойчивость формы -расчёт на местную устойчивость формы -расчёт на устойчивость положения конструкции – против опрокидывания или сдвига 2) Предельное состояние, при котором эксплуатация возможна, но с ограничениями (скорости, веса и др.). К ней относят (для деревянных мостов): -расчёты по величине продольного прогиба Определение усилий и моментов. При расчёте конструкций деревянных мостов допускается: -усилия в элементах и соединениях определять, предполагая упругую работу материала; -пространственную конструкцию расчленять на отдельные плоские системы и рассчитывать их на прочность без учёта податливости элементов; -узловые соединения элементов сквозных конструкций принимать при расчётах шарнирные; -не учитывать напряжения и деформации от изменения температуры, а также возникающие при усушке и разбухании древесины; -считать, что укосины, диагональные связи и раскосы не участвуют в восприятии вертикальных усилий, передаваемых насадками на стойки. 3 Расчет основных несущих элементов пролетного строения (составного пакета)3.1 Экскиз
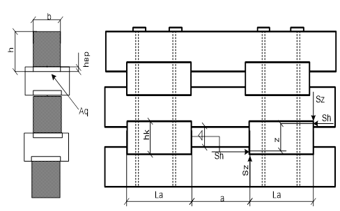
Рис. 3.1 Эскиз 3.2. Расчет на прочность при нормальном и касательном напряжении при изгибе3.2.1 Расчетная схема
Рис. 3.2 Расчетная схема 3.2.2 Сбор нагрузок Из постоянных нагрузок учитывают: - нагрузку от веса мостового полотна: - нагрузку от тротуаров и перил - нагрузку от веса пакетов:
где Нормативная временная вертикальная эквивалентная нагрузка от подвижного состава – С9.
3.2.3 Определение расчетных усилий Расчетные усилия в пакете
где 3.2.4 Расчет на прочность по нормальному напряжениюГеометрические характеристики сечения составной балки пакета. Принятые размеры бруса пакета: Принятые размеры колодки: Схемы к определению геометрических характеристик составной балки пакета с соединением на металлических шпонках приведены на рисунке 2.2
Рис. 3.3 Расчетные схемы к определению геометрических характеристик: а – схема соединения; б – сечение балки брутто; в – сечение балки нетто Сечение нетто. Положение центра тяжести сечения нетто составной балки:
где
где Сечение брутто.
Sbr=0.0009+0.0002+0.0357*0.25+0,0179*0.0525=0,011м3 где
Условие выполняется Анализ результатов:
где 3.2.5 По скалывающим напряжениям:
Условие выполняется Анализ результатов:
где Вывод: Принятое сечение бруса 0,21×0,17 м2 удовлетворяет условиям прочности но нормальным и скалывающим напряжениям, уменьшение размеров которого приведет к невыполнению условия прочности но нормальным напряжениям 3.2.6 Расчет на прочность по смятию в местах опирания на насадки3.2.7 Расчетная схемаСхема к расчету на прочность по смятию в местах опирания на насадки приведена на рисунке 2.3
Рис. 2.3 Расчетная схема 3.2.8 Расчетное давлениеРасчетное давление в месте опирания пакета на насадку определяют по формуле:
где 3.2.9 Условие прочности пакета по смятию в местах его опирания на насадку
где
где
где
Условие выполняется Анализ результатов:
Вывод: Две насадки сечением 0.22*0.22 удовлетворяют условие прочности 3.3 Проверка составного пакета по ограничению продольного прогибаПроверку прогиба в середине пролета составного пакета на колодках
где
Условие выполняется Анализ результатов
Вывод: Уменьшить сечение бруса нельзя, так как не пройдет расчет нормального соединения 3.4 Расчет соединения на колодках3.4.1 Расчет расчетной сдвигающей силой.
3.1 Схема к расчету соединения бревен в составных пакетах с соединением на колодках Геометрические характеристики сечения составной балки пакета. Принятые размеры бруса пакета: Принятые размеры колодки:
где: М0.5-изгибающий момент в середине пролета составного пакета, МН*м; 3.4.2 Расчет соединения по прочности на смятие по площади упора колодки в элемент
Где: Аq=0.17*0,03=0.0051 м2
Вывод: Условие удовлетворяется ,уменьшить сечение нельзя. 3.4.3 Расчет соединения по прочности на смятие скалывания колодки
Где:
Вывод: Условие удовлетворяется . 3.4.3 Расчет соединения по прочности на скалывания соединяемых элементов по площадке между колодками
Где:
Вывод: Условие удовлетворяется . 3.4.4 Расчет на прочность сжатых болтов
Где:
Где: Аnt=0.83*0.19=0.15
Вывод: Условие удовлетворяется . 4 Расчет опоры
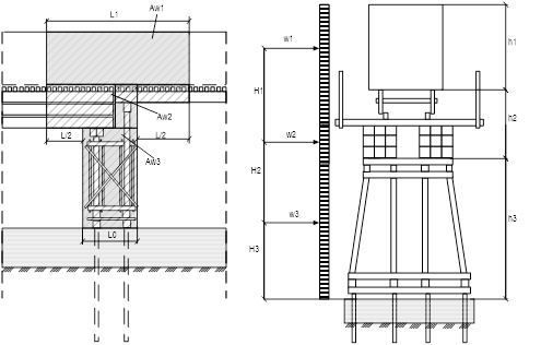
Рис. 4.1 Схема опоры, заданной к расчету 4.1 Общие положенияОпоры деревянных железнодорожных мостов состоят из отдельных элементов – свай, стоек, насадок, лежней, связей. При проектировании деревянного моста рассчитывают как опору в целом, так и ее отдельные элементы. Опору в целом проверяют на устойчивость положения против опрокидывания, а элементы опоры рассчитывают на прочности и устойчивости. Расчеты элементов опор по прочности и устойчивости ведут на расчетные нагрузки. При этом отдельно выполняют расчеты: - на воздействие только вертикальных нагрузок (постоянных и временных); - на воздействие только горизонтальных нагрузок или совместное воздействие нагрузок вертикальных (с поездом или без него) и горизонтальных (поперечный ветер, поперечные удары колес подвижного состава, продольные силы торможения, центробежная сила). Виды расчетов, выполняемых для того или иного элемента опоры, назначают исходя из характера работы этого элемента под нагрузками. 4.2 Расчет рамно-свайной опоры балочного моста на вертикальные нагрузкиРасчет рамно-лежневой опоры балочного моста по сравнению с расчетом свайной опоры, имеет следующие особенности: 1 усилия необходимо определять в средних и крайних стойках рам; 2 на смятие в местах сопряжения со стойками проверяют не только верхние, но и нижние насадки рам; 3 верхние насадки рам проверяют на сжатие с изгибом; 4 лежни опоры проверяют на изгиб и по прочности грунтового основания, сваи ростверка – по прочности грунтового основания. 4.3 Расчет на прочность по смятию в местах опирания на насадки Геометрические характеристики: hпб=0.25;bпб=0.25 hнс=0.19;bнс=0.19 hст=0.26;bпб=0.26 4.3.1 насадку на прокладные брусья. Условие прочности:
где
где
где
Анализ результатов:
Вывод: Условие удовлетворяется . 4.3.2Прокладных брусьев на следующую насадку Условие прочности:
где
где
где
Анализ результатов:
Вывод: Условие удовлетворяется . 4.4 Определение усилий в стойках опоры
Рис. 4.2 Схемы к определению усилий в насадках и стойках рамно-свайной опоры. Определение расчетных давлений
где Усилия в уровне верха стоек №1 и №2
где Вертикальные усилия в стойках в уровне сопряжения их с нижними насадками
где 4.4.1 Расчет насадок на смятие в местах соединения со стойкамиУсловие прочности
где
Верхняя насадка:
Нижняя насадка:
Анализ результатов:
4.5 Расчет стоек рамыЭти расчеты выполняют в сечениях стоек, наиболее неблагоприятных с точки зрения данных расчетов. Такими являются сечения, где усилия наибольшие, сечения в наибольшей степени ослаблены и расчетные характеристики дерева снижены вследствие повышенной влажности. Обычно это нижние части стоек. Для данного случая расчеты на сжатие и по устойчивости выполняем по формулам: - для наклонной стойки
где
Коэффициент
где
Находим гибкость
следовательно, коэффициент понижения несущей способности будем находить по формуле
Проверка условия прочности:
Условие выполняется Проверка условия устойчивости
Условие выполняется Анализ результатов: по прочности на сжатие
на устойчивость
Вывод: Уменьшить диаметр стоек нельзя, так как не пройдет расчет по смятию 4.6 Расчет элементов опор на горизонтальные нагрузки и совместное воздействие горизонтальных и вертикальных нагрузок
Рис. 4.6.1 Схемы к определению давлений на элементы моста и подвижной состав железных дорог от горизонтальной поперечной ветровой нагрузки 4.6.1 Определение давлений на элементы моста и подвижной состав железных дорог от горизонтальной поперечной ветровой нагрузкиНормативную ветровую нагрузку на элементы моста и подвижной состав, находящийся на мосту определяем по формулам а) при наличии поезда на мосту: - на подвижной состав - на пролетное строение - на опору б) при отсутствии поезда на мосту: - на пролетное строение - на опору где
где Мост возводится в районе города Хабаровска, который находится во III ветровом районе, следовательно
При При - для подвижного состава:
где 2 м - высота от головки рельса до центра ветрового давления; - для пролетного строения:
Где
Найдем по интерполяции значение коэффициента при при при
Определяем нормативные интенсивности ветровой нагрузки: - на подвижной состав - на пролетное строение - на опору
на подвижной состав на пролетное строение на опору где Определяем нормативную ветровую нагрузку: а) при наличии поезда на мосту: - на подвижной состав: - на пролетное строение: - на опору: б) при отсутствии поезда на мосту: - на пролетное строение:
- на опору:
4.6.1 Расчет опоры на устойчивость против опрокидыванияРасчет опоры на устойчивость против опрокидывания выполняется отдельно на нагрузки, действующие поперек и вдоль оси моста (рис.2.15). Проверку опоры на устойчивость против опрокидывания в поперечном направлении производят на воздействие ветровых нагрузок и горизонтальной нагрузки от ударов подвижного состава, которые совместно не учитывают.
Рис.2.10. Схема к расчету опоры на устойчивость против опрокидывания в поперечном направлении при воздействии ветра Определение расчетных усилий. При наличии поезда на мосту к опрокидывающему моменту относительно точки О от воздействия ветра на пролетное строение и опору добавляется опрокидывающий момент от ветрового давления на подвижной состав. Также увеличивается удерживающий момент относительно точки О от веса подвижного состава. Расчет на устойчивость выполняют для двух случаев загружения: с поездом на мосту и без него. Подвижную временную вертикальную нагрузку принимают как порожний подвижной состав, воздействие от которого определяют в соответствии с нормами [1, п.2,11]. Для сочетания 1. Постоянные нагрузки плюс подвижной состав плюс ветер:
Для сочетания 2. Постоянные нагрузки плюс ветер:
где Условие устойчивости: Для опоры ветровые воздействия на подвижной состав, пролетное строение и опору создают относительно оси возможного поворота (опрокидывания) – точки О – опрокидывающий момент Опора считается устойчивой против опрокидывания, если выполняется условие:
где Для сочетания 1:
Условие выполняется Для сочетания 2:
Условие выполняется Вывод: Опора против опрокидывания устойчива. Заключение В данной курсовой работе был запроектирован краткосрочный деревянный мост под одну железную дорогу в районе г. Хабаровске. В ходе выполнения работы были получены практические навыки составления варианта моста, подсчету объемов и стоимости работ по варианту моста. Также были получены навыки анализа напряженного состояния элементов моста, выбора расчетных схем при расчете различных элементов моста, сбора нагрузок на рассчитываемый элемент моста и определение расчетных усилий в нем, назначения размеров сечений элементов в соответствии с требованиями норм проектирования, выполнение проверок сечений по предельным состояниям первой и второй групп, анализа результатов расчетных проверок и обеспечения экономичности рассчитываемой конструкции моста. Список использованной литературы 1. СНиП 2.05.03-84*. Мосты и трубы / Минстрой России. – М.: ГП ЦПП, 1996. - 214 с 2. Проектирование деревянных и железобетонных мостов: учеб. для вузов; под ред. А.А. Петропавловского. – М.: Транспорт, 1978. - 359 с. 3. Гибшман, Е.Е. Проектирование деревянных мостов: учеб. Для вузов / Е.Е. Гибшман. – М.: Транспорт, 1976. – 272 с. 4. Топеха, А.А. Расчет деревянных балочных железнодорожных мостов: учеб. Пособие / А.А. Топеха. – Хабаровск: Изд-во ДВГУПС, 2004. - 100 с. |
|||||||||||||||||||||||||||||||||||||||||||||||||||||||||||||||||||||||||||||||||||||||||||||||||||||||||||||||||||||||||||||||||||||||


,
.














