Курсовая работа: Комплексная механизация лесосечных и нижнескладских работ
|
Название: Комплексная механизация лесосечных и нижнескладских работ Раздел: Рефераты по ботанике и сельскому хозяйству Тип: курсовая работа | |||||||||||||||||||||||||||||||||||||||||||||||||||||||||||||||||||||||||||||||||||||||||||||||||||||||||||||||||||||||||||||||||||||||||||||||||||||||||||||||||||||||||||||||||||||||||||||||||||||||||||||||||||||||||||||||||||||||||||||||||||||||||||||||||||||||||||||||||||||||||||||||||||||||||||||||||||||||||||||||||||||||||||||||||||||||||||||||||||||||||||||||||||||||||||||||||||||||||||||||||||||||||||||||||||||||||||||||||||||||||||||||||||||||||||||||||||||||||||||||||||||||||||||||||||||||||||||||||||||||||||||||||||||||||||||||||||||||||||||||||||||||||||||||||||||||||||||||||||||||||||||||||||||||||||||||||||||||||||||||||||||||||||||||||||||||||||||||||||||||||||||||||||||||||||||||||||||||||||||||||||||||||
Федеральное агентство по образованию Архангельский государственный технический университет Кафедра технологии лесопромышленных производств Курсовая работа тема: "Комплексная механизация лесосечных и нижнескладских работ" дисциплина: "Безопасность в технологических процессах на лесозаготовках" Выполнила студентка 3 курса 6 гр. МТД специальности: 330500 Проверил Мигунов В.И. Архангельск 2008 Задание1. Годовой объем производства, тыс. м3 - 150 2. Средний объем хлыста, м3 - 0,253. Средний запас древесины на га, м3 - 1904. Породный состав древостоя - 5Е4С10С5. Доля машинной заготовки древесины -6. Тип лесовозной дороги - автомобильная дорога7. По лесовозной дороге вывозятся: деревья, хлысты, сортименты 8. Тип нижнего лесосклада - прирельсовый 9. Сортиментный план
10. Дополнительные указания _________________________________ ___________________________________________________________ Задание выдано: 17.02.05 Срок сдачи курсовой работы: 20.05.05 Руководитель курсовой работы Мигунов Оглавление Задание Введение Составление календарного плана работ Определение объемов заготовки и погрузки древесины 2. Состав лесосечных работ 2.1 Режим работы 2.2 Выбор технологического процесса лесосечных работ 2.3 Выбор машин и оборудования для выполнения основных работ 2.4 Определение размеров лесосеки, бригадных делянок 2.5 Расчет потребного количества лесосек, бригадных делянок 2.5.1 Количество лесосек 2.5.2 Количество бригадных делянок 2.6 Выбор схемы разработки бригадной делянки, пасеки 2.6.1 Определяем количество пасечных волоков 2.6.2 Определяем ширину пасеки 2.7 Определение сменной производительности и норм выработки машин и механизмов 2.7.1 Норма выработки на трелевочный трактор - ТЛТ-100 2.8 Расчет потребного количества машин, механизмов и рабочих для выполнения основных работ. Состав МКБ №2 2.9 Определение объема, трудозатрат и количества рабочих дней для выполнения подготовительных работ 2.9.1 Определение площади годичного лесного фонда, га. 2.9.2 Протяженность лесовозных усов, км 2.10 Определение объема трудозатрат и количества рабочих 2.11 Расчёт вспомогательного оборудования 2.12 Технологическая карта разработки лесосеки 2.13 Технологический процесс лесосечных работ 2.14 Расчет технико-экономических показателелей 3. Нижний лесосклад 3.1 Режим работы нижнего лесосклада 3.2 Выбор технологического процесса нижнего лесосклада приведен на рисунке 3.3 Выбор оборудования для основных работ 3.4 Определение сменной производительности и норм выработки основного оборудования 3.4.1 Сменная производительность крана ЛТ-62 на выгрузке лесовозного автотранспорта 3.4.2 Производительность крана ЛТ62 на подаче хлыстов из резервного запаса на разгрузочную эстакаду. 3.4.5 Сменная производительность сортировочных транспортёров 3.4.6 Сменная производительность крана ККЛ-12,5 на погрузке сортиментов на ж/д транспорт 3.5 Расчёт потребности оборудования и рабочих для выполнения основных работ 3.6 Определение объема трудозатрат и количества рабочих для выполнения подготовительно-вспомогательных работ 3.7 Расчет площади нижнего лесосклада 3.7.1 Расчет площади нижнего лесосклада под резервный запас хлыстов 3.7.2 Площадь нижнего лесосклада под запас круглых лесоматериалов 3.8 Технологический процесс нижнего лесосклада 3.9 Расчет технико-экономических показателей Список литературы ВведениеЛесопромышленный комплекс занимает одно из ведущих мест в промышленности нашей страны. В настоящее время большое значение уделяется лесозаготовительной промышленности, заботясь об улучшении условий труда, строительстве новых предприятий, также внимание уделяется улучшению быта лесозаготовителей, подготовке квалифицированных рабочих и инженерно-технических работников. В результате технологического перевооружения лесной промышленности стало возможным выполнение лесосечных работ без применения ручного труда. На лесозаготовках используются валочно-пакетирующие машины, трелёвочные тракторы, гусеничные и колёсные трелёвочные тракторы с пачковыми захватами, валочно-трелёвочные машины. На погрузке леса применяются челюстные погрузчики. В связи с усовершенствованием технологического процесса, необходимо уделять больше внимания вопросам охраны труда и промышленной санитарии рабочих на лесозаготовительных работах. Также нужно заботится об охраны окружающей среды и лесов от чрезмерной вырубки, уделять внимание лесовосстановлению. Закон об охране природы запрещает рубку лесов сверх установленного размера лесопользования, а также ограничивает рубку в лесах, имеющих почвозащитное, водоохранное и водорегулирующее значение. Закон обязывает всех лесозаготовителей осуществлять мероприятия, направленные на возобновления ценных древесных пород на вырубленных площадях. Таблица 1 . Календарный план работы предприятия на 2005 год
Составление календарного плана работКалендарный план содержит сведения за каждый месяц, квартал и год, летний и зимний сезоны по количеству рабочих дней и объему заготовки и погрузки (вывозки) древесины (табл.1). При определении количества рабочих дней пользуемся календарем, вычитая из расчетного периода праздничные и выходные дни. При составлении календарного плана необходимо учитывать затраты времени на перебазировки мастерского участка из летних лесосек в зимние и обратно и из одних лесосек в другие в пределах сезонов (по 2 дня). Кроме этого, следует учитывать потери рабочего времени в связи с неблагоприятными погодно-климатическими условиями, на выполнение подготовительно-вспомогательных работ и в связи с аварийными ситуациями. Затраты времени на каждую межсезонную перебазировку следует принимать два дня: из летних в зимние лесосеки (23 - 24 ноября), из зимних в летние (16 - 17 апреля). Потери рабочего времени на внутрисезонные перебазировки и по другим причинам следует принимать 2-3 дня в последние рабочие дни каждого месяца. Условные обозначения
Определение объемов заготовки и погрузки древесиныИнтенсивность заготовки и вывозки древесины в зимний сезон выше, чем в летний, в связи с лучшими условиями работы и меньшей себестоимостью заготовки и вывозки. Соотношение объемов заготовки и вывозки древесины за зимний и летний сезоны принимается по ОНТП. Объем заготовки за зимний сезон, тыс. м3,
где
Объем заготовки за летний сезон, тыс. м3
Суточный объем заготовки древесины за зимний
где
Объем вывозки в зимний период
где Объем вывозки в летний период
Суточный объем погрузки (вывозки) за зимний сезон,
где Суточный объем погрузки (вывозки) за летний сезон, м3,
где Суточный бьем раскижовки Qср
= Вывозку древесины, заготовленную в период осенней распутицы, отнесем к зимнему сезону, а в период весенней распутицы - к летнему 2. Состав лесосечных работЛесосека - это участок спелого леса, отведенного для лесозаготовительных работ. Она является местом выполнения всего комплекса работ от валки до погрузки древесины на лесовозный транспорт. На ней размещаются бригады, машины и средства технического обслуживания, а также средства бытового обслуживания рабочих. Для удобства разработки лесосеку делят на делянки - часть лесосеки, закрепляемая за бригадой рабочих. Часть делянки, с которой поваленные деревья или хлысты трелюют по одному трелевочному волоку, называется пасекой. Под технологией лесосечных работ понимают совокупность знаний о способах и средствах выполнения на лесосеках и лесопогрузочных пунктах ряда операций от валки леса до погрузки его на подвижной состав лесовозной дороги, в результате чего изменяются формы, размеры и местоположения предмета труда. В зависимости от принятого технологического процесса лесосечные работы могут включать валку и трелевку деревьев, очистку деревьев от сучьев, раскряжевку хлыстов, сортировку и штабелевку сортиментов, окорку хлыстов и сортиментов, отделение зелени от ветвей, погрузку леса на подвижной состав лесовозных дорог. Вспомогательные работы проводятся в ходе выполнения основных лесосечных работ. 2.1 Режим работыТаблица 2 . Режим работы
В работе принимаем шестидневную рабочую неделю с семичасовым рабочим днем. Зимний сезон на заготовке и вывозке древесины для условий Архангельской области с 15 ноября по 15 апреля, а летний - на заготовке древесины с 16 апреля по 14 ноября, на вывозке - с 26 апреля по 4 ноября. По условию, тип лесовозной дороги - автомобильный; следовательно, необходимо учитывать распутицу. Период осенней и весенней распутицы продолжительностью 10 дней осенней - с 5 по 14 ноября, весенней - с 16 по 25 апреля. В период распутицы заготовка древесины производится, а вывозка нет. 2.2 Выбор технологического процесса лесосечных работ
Рис.1 Схема технологического процесса лесосечных работ 2.3 Выбор машин и оборудования для выполнения основных работТаблица 3 . Машины и механизмы для выполнения основных работ
Так как средний объем хлыста меньше 0,3 м3 2.4 Определение размеров лесосеки, бригадных делянокПринимаем лесосеку 500*1000 м, Размер погрузочной площадки-30*40м. При определении размеров бригадной делянки руководствуемся следующими требованиями: обеспечение безопасных условий работы соседних бригад на лесосеке; сокращение числа перебазировок мастерского участка из одной лесосеки в другую; бригадная делянка должна располагаться по одну сторону лесовозного уса; расстояние трелевки должно быть не более 300 м (зимой допускается до 500 м); бригадная делянка должна иметь минимум два лесопогрузочных пункта. Дополнительные лесопогрузочные пункты должны устраиваться на соседних вырубленных лесосеках. Определяем количество лесопогрузочных пунктов. N S Принимаем бригадную делянку размером 250*250 м. 2.5 Расчет потребного количества лесосек, бригадных делянок2.5.1 Количество лесосекN 2.5.2 Количество бригадных делянокN 2.6 Выбор схемы разработки бригадной делянки, пасекиВыбираем параллельную схему разработки бригадной делянки. Схема приведена на рисунке 2.
Рис.2. Параллельная схема разработки бригадной делянки. 2.6.1 Определяем количество пасечных волоковm= (
а - длина делянки а К
2.6.2 Определяем ширину пасекиСхема разработки пасеки приведена на рис.3. в
Рис.3. Схема разработки пасеки. 2.7 Определение сменной производительности и норм выработки машин и механизмов2.7.1 Норма выработки на трелевочный трактор - ТЛТ-100Для всех видов трелевочных тракторов определяется средневзвешенная норма выработки, для чего составляется схема (рис.4).
Рис.4 Схема для расчета средневзвешенной нормы выработки трелевочного трактора Н= F F F Н Н Н F F F Н Н= Таблица 4. Нормы выработки.
2.8 Расчет потребного количества машин, механизмов и рабочих для выполнения основных работ.Таблица 5 . Расчет потребного количества машин, механизмов и рабочих для выполнения основных работ
Для организации основных работ принимаем 2 мастерских участка. Состав мастерского участка №1 4 малокомплексные бригады. Состав МКБ: вальщик леса 6 разряда-1 тракторист на трелевке и вывозке леса 6 разряда-1 чокеровщик 4 разряда-1 Одно функциональное звено - 2 человека на обрезке сучьев. Состав звена: машинист трелевочной машины 6 разряда - 2 чел. Одно функциональное звено на погрузку древесины-2 человека. Состав звена: машинист-крановщик 6 разряда-2 чел. Состав МКБ №25 малокомплексных бригад Состав МКБ: вальщик леса 6 разряда-1 тракторист на трелевке и вывозке леса 6 разряда-1 чокеровщик 4 разряда-1 Одно функциональное звено на обрезке сучьев - 2 чел. Состав звена: машинист трелевочной машины 6 разряда - 2 чел. Одно функциональное звено на погрузку древесины-2 человека. Состав звена: машинист-крановщик 6 разряда-2 чел. Расстояние перевозки - 40 км Норма для 40 км-15 2.9 Определение объема, трудозатрат и количества рабочих дней для выполнения подготовительных работ2.9.1 Определение площади годичного лесного фонда, га.F= 2.9.2 Протяженность лесовозных усов, км
Таблица 5 . Определение объема, трудозатрат и количества рабочих для выполнения подготовительных работ
Количество бригадных делянок, шт. N Зимние дороги-16,02 (60%). Летние дороги-10,68. Для организации подготовительных работ принимают: 1. Дорожную бригаду - 4 чел. 2. 2 Малые комплексные бригады. Состав комплексной бригады вальщик леса 6 разряда - 1 лесоруб 4 разряда - 1 тракторист на трелевке и вывозке леса 6 разряда-1 чокеровщик 6 разряда-1 3. разнорабочий 3 разряда - 3 чел. 2.10 Определение объема трудозатрат и количества рабочихТаблица 6. Определение объема, трудозатрат и количества рабочих для выполнения вспомогательных работ.
Для организации вспомогательных работ принимаем: 1. бригаду слесарей-10 чел, в том числе слесарь 3 разряда - 3 чел. слесарь 4 разряда - 3 чел. слесарь 5 разряда - 2 чел. слесарь 6 разряда - 2 чел 2. водитель-6 человек 3. пилоправ 4 разряда-2 чел. 4. кузнец 3 разряда-1 чел. 5. сторож-3 чел. 6. разнорабочий 3 разряда-5 чел. 2.11 Расчёт вспомогательного оборудованияТаблица 7 . Расчет вспомогательного оборудования.
2.12 Технологическая карта разработки лесосекиТехнологическая карта - это документ, регламентирующий порядок освоения лесосеки, содержащий характеристику и схему, а также основные производственные показатели. Технологическая карта составляется техноруком лесопункта с участием мастера леса и бригадиров комплексных бригад. Предварительно путем натурного осмотра составляется абрис лесосеки, намечаются: - места лесопогрузочных пунктов; - место под обустройство мастерского участка; - хранение ТСМ; - схема трелевочных волоков. Технологическая карта согласовывается с лесхозом (лесничеством) и утверждается главным инженером ЛЗП. 2.13 Технологический процесс лесосечных работЛесосечные работы - первая фаза производственного процесса лесозаготовок. Технологический процесс лесосечных работ состоит из подготовительных, вспомогательных и основных работ. В состав лесосечных работ входит также очистка лесосек. Подготовительные работы. Подготовительные работы на лесосеке проводят для того, чтобы создать необходимые условия для безопасной и высокопроизводительной работы на основных лесосечных работах. Подготовка лесосек к эксплуатации обязательна и должна проводится до начала их разработки. В состав подготовительных работ входят: - Лесосырьевая и технологическая подготовка лесосек. - Подготовка территории лесосек к рубке. - Подготовка погрузочных пунктов. - Выбор трасс и строительство лесовозных усов. - Подготовка обслуживающих производств Вспомогательные работы. Вспомогательные работы проводятся в ходе выполнения основных лесосечных работ и направлены на обеспечение бесперебойной работы машин и оборудования на лесосечных работах. В состав вспомогательных работ входят техническое обслуживание и текущий ремонт машин, механизмов, оборудования и энергоустановок, материально-техническое снабжение мастерских участков, уход за трелевочным волоком, содержание и ремонт лесовозных дорог, охрана механизмов и другие работы, задачей которых является обслуживание производства. Основные лесосечные работы. Основные лесосечные работы состоят из технологических (валка деревьев, обрубка сучьев, раскряжевка хлыстов) и транспортных, или переместительных операций (трелевка, погрузка древесины на лесовозный транспорт, сортировка, штабелевка). Валка деревьев Валка деревьевпроизводится пилами "Хускварна 262ХРН" с применением валочной лопатки. Выбираем методом широких пасек. Вальщик перемещается от уса к концу делянки. В процесс валки деревьев входит выполнение следующих приёмов: - Осмотр дерева - Подготовка рабочего места - Подпил дерева - Срезание дерева - Сталкивание дерева с пня При осмотре выявляют состояние ствола, на глаз определяют диаметр дерева и его наклон, характер строения кроны, направлении и силу ветра. Общее направление валки устанавливается в зависимости от способа направления трелёвки. Подготовка рабочего места заключается в уборке снега, кустарника, подроста и низко свисающих сучьев. Подпил дерева производится со стороны направления валки. Глубина подпила зависит от диаметра дерева, наклона ствола, формы коры. После выполнения подпила производят срезание дерева с обратной стороны Плоскость срезания должна быть горизонтальной и находится на уровне верхней кромки подпила. Сталкивание древа с пня при помощи валочной лопатки производится приложением сталкивающей силы в плоскости срезания. При использовании валочной лопатки на валке деревьев работают двое - моторист и его помощник. Трелевка Трелевка хлыстов осуществляется трактором ТЛТ-100 пачками за вершину. Трактор берет одну пачку за рейс. Процесс трелевки тракторами состоит из следующих операций: движение трактора без груза на лесосеку к месту набора пачки, набор пачки, движения трактора с грузом на погрузочный пункт, отцепки пачки и при необходимости выравнивания комлей. Очистка деревьев от сучьев. Очистка деревьев от сучьев производиться на погрузочном пункте передвижными сучкорезными машинами на базе трелевочных тракторов. Обрезка сучьев машинами ЛП-30Г осуществляется при протаскивании деревьев комлями вперед. На погрузочном пункте оборудуются места для штабелей деревьев и хлыстов. Между подштабельными местами предусматривается проезд для сучкорезной машины. Штабель деревьев формируется трелевочным трактором. Сучкорезная машина перемещается вдоль фронта штабеля, поштучно захватывает деревья за комлевую часть и производит обрезку сучьев. После того как вершина дерева выходит из сучкорезной головки, хлыст выбрасывается в штабель, который формируется с правой стороны сзади машины. Сучья формируются в вал в процессе работы машины и убираются с погрузочного пункта после окончания работы сучкорезной машины. Погрузка древесины. Погрузка древесины на подвижной состав лесовозных дорог производится на погрузочных пунктах и верхних складах, которые устраивают у усов лесовозных дорог. На погрузке хлыстов на лесовозный транспорт используются челюстные лесопогрузчики ПЛ-1В перекидного типа, которые производят погрузку пачек хлыстов "через себя". Лесопогрузчик устанавливают между хлыстами, уложенными параллельно лесовозному усу, и подвижным составом. Передвигая лесопогрузчик вперед с опущенным и раскрытым челюстным захватом, оператор производит набор пачки. Затем набранная пачка поднимается в верхнее положение, и лесопогрузчик перемещается в направлении к подвижному составу. Когда пачка окажется над подвижным составом, оператор укладывает ее на коники и возвращает лесопогрузчик для набора следующей пачки. Цикл повторяется до полной загрузки подвижного состава. Очистка лесосек от отходов лесозаготовок. В процессе проведения лесосечных работ на лесосеке образуются различного вида лесосечные отходы - порубочные остатки (вершины, сучья, откомлевки, тонкие деревья и хлысты, сухостой и т.п.), общий объем порубочных остатков зависит от технологии лесозаготовок, сезона выполнения лесосечных работ, породного состава и типа древостоя, почвенно-грунтовых условий. Очистка лесосек выполняется в соответствии с лесоводными требованиями и может быть сплошной или частичной. При сплошной применяются следующие способы очистки вырубок от порубочных остатков: 2.14 Расчет технико-экономических показателелейТаблица 8 . Расчет технико-экономических показателей
лесосечный механизация лесосека бригадный 3. Нижний лесосклад3.1 Режим работы нижнего лесоскладаТаблица 9. Режим работы нижнего лесосклада
3.2 Выбор технологического процесса нижнего лесосклада приведен на рисунке
Рис.5 Выбор технологического процесса нижнего лесосклада. 3.3 Выбор оборудования для основных работТаблица 10 . Оборудование для выполнения основных работ
3.4 Определение сменной производительности и норм выработки основного оборудования3.4.1 Сменная производительность крана ЛТ-62 на выгрузке лесовозного автотранспортаП 3.4.2 Производительность крана ЛТ62 на подаче хлыстов из резервного запаса на разгрузочную эстакаду.П Комплексная сменная производительность крана ЛТ-62 П Норма выработки раскряжевочной установки ЛО-15А Н = Н Н Н Н К К К 3.4.5 Сменная производительность сортировочных транспортёровПсм
= Т - время смены, ч. Т= 7ч. qб = qхлыста /n = 0.75/2,5 = 0,1
3.4.6 Сменная производительность крана ККЛ-12,5 на погрузке сортиментов на ж/д транспортПсм
= 3.5 Расчёт потребности оборудования и рабочих для выполнения основных работТаблица 11. Расчет потребности оборудования и рабочих для выполнения основных работ
Для организации основных работ на нижнем лесоскладе принимаем одно функциональное звено 2 человека. Состав звена: Машинист-крановщик 6-го разряда-2 человека Раскряжевка сортиментов - 4 комплексные бригады Состав комплексной бригады: оператор раскряжёвочной установки 5-го разряда - 1 человек Оператор гидроманипулятора 1 человек Оператор сортировочного транспортёра 1 человек Штабелёвщк древесины 3-го разряда 1 человек Штабелёвка одно функциональное звено Состав функционального звена: Машинист-крановщик 6-го разряда - 2 человека Погрузка: 3 функциональные бригады Состав функциональной бригады: Машинист-крановщик 6-го разряда - 1 человек Штабелевчик древесины 3-го разряда-3 человека 3.6 Определение объема трудозатрат и количества рабочих для выполнения подготовительно-вспомогательных работТаблица 12. Определение объема, трудозатрат и количества рабочих для выполнения подготовительно - вспомогательных работ
Для организации подготовительно-вспомогательных работ принимаем 1. Бригада слесарей: - 8 чел, в том числе Слесарь 3-го разряда-1 чел. Слесарь 4-го разряда-3 чел. Слесарь 5-го разряда-1 чел. Слесарь 6-го разряда-3 чел. 2. Учётчик-4 чел. 3. Пилоправ 4-го разряда - 1 чел. 4. Плотник 3-го разряда - 1 чел. 5. Маркировщик-2 чел. 6. Тракторист 5-го разряда - 2 чел. 7. Электрик - 4 чел. 8. Разнорабочие-0 чел. 3.7 Расчет площади нижнего лесосклада3.7.1 Расчет площади нижнего лесосклада под резервный запас хлыстовОбъем штабеля хлыстов. Q
Количество штабелей, шт.
Е Е Где n = Принимаем 10 шт. Длина фронта штабелей хлыстов. L а - расстояние между штабелями, м, а = 2 м 3.7.1.4 Площадь нижнего лесосклада под резервный запас хлыстов, м
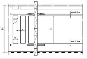
Рис.5 Кран ЛТ-62 F ЛТ-62-пролёт=32м 3.7.2 Площадь нижнего лесосклада под запас круглых лесоматериаловУдельная вместимость нижнего лесосклада е =hc * в * k1* k2 = 7.5 * 0.65* 0.6 * 0.71 = 2,07 м/м2 hc - высота штабеля, м, 7,5 k1 - коэффициент использования ширины нижнего лесосклада k1= k2 - коэффициент использования длины нижнего лесосклада k2=
Рис.6 Сортировочный транспортёр Площадь нижнего лесосклада под запас круглых лесоматериалов, м2 Sc=Ec/e= 12500/2,5=1972 м2 Ec-вместительность нижнего лесосклада Ec= 4082,2 Длина фронта штабелей круглых лесоматериалов, м Ls=S/Bc= 6038.6/60 = 100.64, м 3.8 Технологический процесс нижнего лесоскладаНижний лесосклад представляет собой производственное подразделение лесозаготовительного предприятия, расположенного в пункте примыкания лесовозной дороги к пунктам общего пользования и производящее приёмку леревьев, хлыстов и сортиментов, первичную обработку круглого леса (очистку деревьев от сучьев, раскряжевку хлыстов, разделку долготья, окорку сортиментов, раскалывание коротья), а также сортировку, временное хранение и отгрузку лесоматериалов потребителям или подготовку их к сплаву. Выгрузка деревьев Выгрузка древесины - комплекс операций по захвату и перемещению деревьев, хлыстов, лесоматериалов после завершения транспортирования. При выгрузке обычно создают запасы сырья (резервные, сезонные). Выгрузка древесины осуществляется козловым краном ЛТ-62. Автолесовоз, прибывший по лесовозной дороге, устанавливают под выгрузку. Кран перемещающийся по крановому пути, грейфером ЛТ-185-1 захватывает пачку хлыстов или деревьев, поднимает ее на соответствующую высоту и укладывает на эстакаду или в штабель запаса. По мере потребности хлысты или деревья подаются из запаса на эстакаду. Раскряжевка хлыстов Раскряжевка хлыстов - поперечное деление хлыстов на долготье и (или) сортименты. При раскряжевке хлыстов ставятся задачи: наиболее ценно использовать деловую часть хлыста, получить наиболее ценные сортименты. Для раскряжевки хлыстов используется раскряжевочная установка ЛО - 15А. Хлысты выгружают разгрузочно-растаскивающим устройством ЛТ-10 в зону действия манипуляторов поштучной подачи. Хлыст подается на конвейер, который перемещает его для окомлевки под пилу АЦ-3. После откомлевки оператор задает на пульте управления длину выпиливаемого сортимента. Автоматически включается подающий конвейер, а на приемном столе поднимается силовой упор отмера длин. При воздействии торца хлыста на упор, подающий конвейер останавливается. Пила опускается, отрезает сортимент и возвращается в верхнее положение. Отпиленный сортимент автоматически сбрасывается на сортировочный продольный конвейер. Тонкомерное долготье и вершинная часть хлыста подаются на пильный блок, где разделываются пилами. Полученные сортименты сбрасываются на сортировочный конвейер, а опилки, откомлевки попадают на конвейер, а затем в бункер. Сортировка круглых лесоматериалов Сортировка круглых лесоматериалов - распределение круглых лесоматериалов по породам, качеству, размерам и назначению. Сортировка необходима для распределения лесоматериалов по размерным и качественным группам в соответствии с требованиями Государственных стандартов, правилами хранения, погрузки и поставки их потребителям. На прирельсовых складах сортименты сортируют в зависимости от последующей их обработке, а также по сортам породам, размерам. Сортировка производится цепным конвейером ЛТ-86Б с гравитационными сбрасывающими устройствами. Штабелевка круглых лесоматериалов. Штабелевка круглых лесоматериалов проводится для создания запасов с неравномерностью отгрузки, потребностью в рассортировке, просушке, равномерной загрузке оборудования в разделочных цехах. Под штабелевкой понимается формирование штабелей из заготовленных лесоматериалов. Штабеля могут быть плотными, рядовыми, плотнорядовыми, пачковыми и пакетными. Штабелевка осуществляется при помощи консольно-козлового крана ККЛ-12,5. Передвигая кран вперед с опущенным и раскрытым грейфером ЛТ-153А-1, оператор производит набор пачки поднимает грейфер в верхнее положение. Кран перемещается к месту, где планируется создать штабель. Затем оператор укладывает пачку и направляет грейфер к месту набора пачки. Погрузка круглых лесоматериалов. Погрузка круглых лесоматериалов. Процесс погрузки заключается в захвате, перемещении и укладке древесины в подвижной состав лесовозных дорог. Для погрузки круглых лесоматериалов используется также кран ККЛ-12,5 с грейфером ЛТ-153А-1. Таким же образом, как при штабелевке, кран перемещает пачку на платформы и в полувагоны. 3.9 Расчет технико-экономических показателейТаблица 13. Расчет технико-экономических показателей
Список литературы1. Залегаллер Б.Г., Ласточкин П.В., Бойков С.П. Технология и оборудование нижних складов. - М: Лесн. пром - сть, 1984. - 345 с. 2. Кочегаров В.Г., Бит Ю.А., Меньшиков В.Н. "Технология и машины лесосечных работ" Учебник для вузов-. М.: Лесная пром - сть, 1990. г. - 392с 3. Щелгунов Ю.В. и др. Машины и оборудование лесозаготовок, лесосплава и лесного хозяства. - М: Лесн. пром - сть, 1982. - 519 с. 4. Ласточкин П.В., Захаренков Ф.Е. и др. Оборудование для лесоскладских работ и материалы к технологическим расчетам. Учебное пособие для курсового и дипломного проектирования для студентов специальностей 2601, 1704, 0704, 3112. - Л: ЛТА, 1990. - 116 с. 5. Ширнин Ю.А. и др. Технология и оборудование лесопромышленных производств. Справочные материалы: Учебное пособие. - Йошкар-Ола: МарГТУ, 1999. - 252 с. 6. Единые нормы выработки и расценки на лесозаготовительные работы. 7. М: Экономика, 1989. - 88 с. 8. Нормы выработки (времени) и расценки на подготовительные, вспомогательные и хозяйственные работы на лесозаготовках. (сост.В.И. Рюмин и др. /ЦНИИМЭ) - М: Лесн. пром - сть, 1986. - 224 с. 9. Технология и машины лесосечных работ. Нормативно-справочные материалы к курсовому проектированию. - АЛТИ., 1989. 10. Технологические схемы разработки лесосек. Методические указания к курсовому проектированию. - АЛТИ., 1988. 11. Технология работ на нижнем лесоскладе. Методические указания к кур-совому проектированию. - АЛТИ., 1989. 12. Декаченко В.Г. Пояснительная записка курсового и дипломного проектов. Методические указания по ее оформлению для студентов всех факультетов. - Л: ЛТА, 1988. - 35 с. 13. Плотников В.Л. Технология и оборудование лесозаготовительных предприятий - С-П: ЛТА, 1993. - 72 с. 14. Стандарт предприятия. Проекты дипломные и курсовые. Оформление текста пояснительной записки. - Архангельск: АГТУ, 1998. - 41 с. 15. Оформление графической части курсовых и дипломных проектов. Методические указания. - АЛТИ., 1984. |
|||||||||||||||||||||||||||||||||||||||||||||||||||||||||||||||||||||||||||||||||||||||||||||||||||||||||||||||||||||||||||||||||||||||||||||||||||||||||||||||||||||||||||||||||||||||||||||||||||||||||||||||||||||||||||||||||||||||||||||||||||||||||||||||||||||||||||||||||||||||||||||||||||||||||||||||||||||||||||||||||||||||||||||||||||||||||||||||||||||||||||||||||||||||||||||||||||||||||||||||||||||||||||||||||||||||||||||||||||||||||||||||||||||||||||||||||||||||||||||||||||||||||||||||||||||||||||||||||||||||||||||||||||||||||||||||||||||||||||||||||||||||||||||||||||||||||||||||||||||||||||||||||||||||||||||||||||||||||||||||||||||||||||||||||||||||||||||||||||||||||||||||||||||||||||||||||||||||||||||||||||||||||






= 57,6 м


