Курсовая работа: Проектирование схемы электроснабжения и плана силовой сети цеха
|
Название: Проектирование схемы электроснабжения и плана силовой сети цеха Раздел: Рефераты по физике Тип: курсовая работа | |||||||||||||||||||||||||||||||||||||||||||||||||||||||||||||||||||||||||||||||||||||||||||||||||||||||||||||||||||||||||||||||||||||||||||||||||||||||||||||||||||||||||||||||||||||||||||||||||||||||||||||||||||||||||||||||||||||||||||||||||||||||||||||||||||||||||||||||||||||||||||||||||||||||||||||||||||||||||||||||||||||||||||||||||||||||||||||||||||||||||||||||||||||||||||||||||||||||||||||||||||||||||||||||||||||||||||||||||||||||||||||||||||||||||||||||||||||||||||||||||||||||||||||||||||||||||||||||||||||||||||||||||||||||||||||||||||||||||||||||||||||||||||||||||||||||||||||||||||||||||||||||||||||||||||||||||||||||||||||||||||||||||||||||||||||||||||||||||||||||||||||||||||||||||||||||||||||||||||||||||||||||||||||||||||||||||||||||||||||||||||||||||||||||||||||||||||||||||||||||||||||||||||||||||||||||||||||||||||||||||||||||||||||||||||||||||||||||||||||||||||||||||||||||||||||||||||||||||||||||||||||||||||||||||||||||||||||||||||||||||||||||||||||||||||||||||||||||||||||||
| Федеральное агентство по образованию (Рособразование) Архангельский государственный технический университет Электроснабжения промышленных предприятий (наименование кафедры) Корельский Вадим Сергеевич (ф.и.о. студента) Факультет ПЭ курс IV группа 6 1 КУРСОВАЯ РАБОТА По дисциплине: “Электроснабжение промышленных предприятий” На тему: “Проектирование схемы электроснабжения и плана силовой сети цеха” Отметка о зачете _____________________________ (дата) Руководитель зав._кафедрой ЭПП ___________Волков В.М. 1 ________ (дата) Архангельск 2006 Содержание Задание1. Проектирование электроснабжения сборочного цеха1.1 Выбор схемы цеховой сети1.2 Расчет электрических нагрузок цеха1.3 Компенсация реактивной мощности в цехе1.4 Выбор мощности цеховых трансформаторов1.5 Выбор оборудования цеховой сети1.5.1 Выбор силовых распределительных пунктов1.5.2 Выбор сечения проводов и кабелейЛитератураЗадание.Вариант № 68. Оборудование и нагрузки электроремонтного цеха. Таблица 1
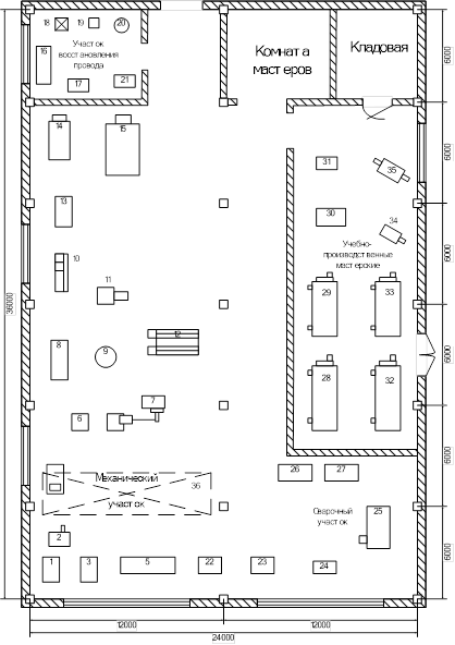
Рисунок 1 План электроремонтного цеха. 1. Проектирование электроснабжения сборочного цеха.1.1 Выбор схемы цеховой сетиПо категории бесперебойности электроснабжения данный цех относится ко II категории. Исходя из этого, выбираем двухтрансформаторную цеховую подстанцию. Все силовые потребители электроэнергии являются потребителями трёхфазного тока, напряжением 380 В.Осветительная нагрузка равномерно распределена по фазам. Выбор схемы цеховой сети начинаем с определения месторасположения КТП цеха. КТП в целях экономии металла и электроэнергии рекомендуется устанавливать в центре электрических нагрузок. Координаты центра определяются из соотношений [5, с.233, ф.9.2]:
где
Для упрощения расчеты сведем в таблицу 3. В этой таблице представлены координаты приемников механического цеха, их установленные мощности, коэффициенты использования, а также активная расчетная нагрузка каждого приемника. Активную расчетную нагрузку i-го электроприемника определяем методом, основанным на использовании коэффициента спроса по формуле:
Таблица 2
1.2 Расчет электрических нагрузок цехаДля расчета электрических нагрузок промышленного предприятия рекомендуется использовать метод упорядоченных диаграмм. Расчетная максимальная активная нагрузка группы электроприемников определяется по формуле [4, с.19, ф.2.19], кВт Рмакс = Кмакс · Ки · Рном = Кмакс · Рсм , где Рном – суммарная номинальная активная мощность электроприемников, кВт; Рсм – средняя мощность за наиболее загруженную смену, кВт; Ки – групповой коэффициент использования; Кмакс – коэффициент максимума. Для двигателей повторно-кратковременного режима номинальная мощность приводится к длительному режиму (ПВ = 100%) и определяется по формуле [4, с.16, ф.2.7], кВт рном
= рп
где рп и ПВп – соответственно паспортная мощность и паспортная продолжительность включения. Для сварочных трансформаторов номинальная мощность определяется по формуле [4, с.16, ф.2.9], кВт рном
= Sп
cosφп
где Sп – паспортная мощность сварочного трансформатора и паспортные значения cosφп и ПВп . Суммарная номинальная активная мощность группы электроприемников определяется по формуле Рном
= Средняя активная и реактивная нагрузка за наиболее загруженную смену одного приемника определяется по формуле рсм = рном · ки ; qсм = рсм · tgφп , где ки – коэффициент использования электроприемников принимаем по [2, с.31, прил.1]. Для группы электроприемников Рсм
= Групповой коэффициент использования определяется по формуле [3, с.81, ф.2.9] Ки = Рсм / Рном . Коэффициент максимума Кмакс определяется в зависимости от группового коэффициента использования Ки и эффективного числа электроприемников nэф [2, с.9, табл.3]. Для нахождения nэф определим показатель силовой сборки [4, с.21, ф.2.23] m = pном.макс / рнои.мин , где pном.макс – номинальная мощность наибольшего электроприемника в группе, кВт; рнои.мин – номинальная мощность наименьшего электроприемника в группе, кВт. При Ки > 0,2 и m > 3 эффективного числа электроприемников определяют по формуле [4, с.22, ф.2.25] nэф = 2·Рном / pном.макс . В тех случаях, когда nэф > n, то следует принимать nэф = n. Расчетная максимальная реактивная мощность определяется по формуле [4, с.22, ф.2.27] Qмакс = К’ макс · Qсм , где К’ макс – коэффициент максимума реактивной нагрузки, при nэф ≤ 10 К’ макс = 1,1, а при nэф > 10 К’ макс = 1. Нагрузки электрического освещения учитываются по формулам [2,с.11, ф.9] Рp . o . = po . · F · Kc . o . , Qp . o . = Pp . o · tgφo где F - площадь цеха, F = 864 Полная расчетная нагрузка цеха с освещением определяется по формуле [2,с.11, ф.10]
Потери в трансформаторе можно на этой стадии проектирования определить по формулам [2, с.13, ф.13, 14] ΔРТ = 0,02 S’ p , ΔQТ = 0,1 S’ p . Итого по цеху полная расчетная мощность
Расчетный ток определяется по формулам: для одного приемника
для группы приемников
Электроснабжение осветительных установок цеха Питание светильников общего освещения осуществляется на напряжении 380В переменным током при заземленной нейтрали. Электроснабжение рабочего освещения выполняется самостоятельными линиями от РУ-1 подстанции, а аварийного освещения выполняется от РУ-2 подстанции. Таблица 3
1.3 Компенсация реактивной мощности в цехе.Для определения реактивной мощности, которую необходимо скомпенсировать требуется знать суммарную реактивную мощность цеха с учётом освещения, а также потери в трансформаторах. Потери в трансформаторах определяем по формулам [8,стр.13]:
Суммарная реактивная мощность цеха с учетом освещения и потерь в трансформаторах равняется:
Для компенсации этой реактивной мощности целесообразней выбирать низковольтные конденсаторные батареи. Так как высокие капитальные затраты вкладываются в КТП, то компенсацию производим с таким расчетом, чтобы снизить мощность трансформаторов на цеховой подстанции. При компенсации с высокой стороны высоковольтными конденсаторными батареями снижаются затраты на сами установки, но мощность трансформаторов КТП получается значительная. Компенсация небольшой реактивной мощности с высокой стороны также требует больших затрат, чем компенсация с низкой т.к. требуются еще затраты на вводное устройство высокого напряжения. Принимаем две конденсаторные установки типа КРМ-04-75 кВАр напольного исполнения [7; 04.10.17 -02] табл. 4. Присоединим его к РУ НН через S93С100.
Устанавливаем комплектные конденсаторные установки с низкой стороны подстанции, на каждой из секций. С учетом реактивных потерь в трансформаторах принятая мощность конденсаторной батареи почти полностью компенсирует потребляемую реактивную мощность.
1.4 Выбор мощности цеховых трансформаторов.Расчетная нагрузка цеха с учетом освещения, компенсации реактивной мощности и потерь в трансформаторах: Рр = 179,42 кВт Sp = 223,60 кВА Мощность трансформатора определим по формуле:
где n - число трансформаторов цеховой ТП, n = 2.
Выбираем два трансформатора по 160 кВА марки ТМ 160/10-У1 табл. 5 [7; 03.00.14.-03] и КТПП-160/10 [7; 03.61.02.-01]. Комплектная трансформаторная подстанция выполняется пристроенной. Таблица 5
1.5 Выбор оборудования цеховой сети1.5.1 Выбор силовых распределительных пунктов.Для цехов с нормальными условиями окружающей среды используем распределительные пункты серии ПР компании ЭТМ [5]. Они предназначены для приема и распределения электроэнергии к группам потребителей трехфазного переменного тока промышленной частоты. Параметры выбранных распределительных пунктов сведем в таблицу 6. Таблица 6
Шкафы ПР8513-31-10-1ХХ-21-11М, ПР8513-29-10-1ХХ-21-11М изготавливаются навесного исполнения, с вводными выключателями серии и ВА103-4/63 – D, ВА103-4/40 - D. Шкафы ПР8513-33-10-2ХХ-21-11М, ПР8513-33-10-2ХХ-21-11М изготавливаются напольного исполнения, с вводными выключателями серии ВА103-35/160 - Д. Эти шкафы предназначены для распределения электроэнергии, защиты электроустановок при перегрузках и токах к.з. 1.5.2 Выбор сечения проводов и кабелей.Питающие низковольтные сети (от РУ до СП) выполняем кабелем АВВГ, способ прокладки в канале. Распределительные сети (от СП к отдельным электроприемникам) выполняем кабелем АВВГ в канале и в трубах. Определяется по [9, с.426, табл. 12.4] Сечение кабелей для напряжения до 1 кВ при нормальных условиях прокладки определяется из двух соотношений: - по условию нагрева длительным допустимым током I норм.доп ≥ I дл. ; - по условию соответствия выбранному аппарату максимально-токовой защиты I норм.доп ≥ k защ ·I защ. , где I норм.доп – допустимая токовая нагрузка для проводника, для кабелей АВВГ [6, с.19, табл.1.3.7]; I дл – длительный расчетный ток, А; k защ – коэффициент защиты определяется по [4, с.204, табл. 5.9] I защ – номинальный ток и ток срабатывания защитного аппарата, А. Длительный расчетный ток определяется по формулам: для одного приемника
для группы приемников
Проверка проводов по нагреву
В качестве СП используется силовые пункты с автоматическими выключателями. Автоматические выключатели обладают рядом преимуществ: после срабатывания автоматический выключатель снова готов к работе, в то время как в предохранителе требуется замена калиброванной плавкой вставки, увеличивающая время простоя ЭП; более точные защитные характеристики; совмещение функций коммутации электрических цепей и их защиты; наличие в некоторых автоматических выключателях независимых расцепителей и др. Номинальный ток теплового расцепителя автоматического выключателя выбирают по длительному расчетному току линии [4, с.205, ф. 5.12] I т > I дл. Номинальный ток электромагнитного I эл или комбинированного расцепителя автоматических выключателей выбирают также по длительному расчетному току линии [4, с.205, ф. 5.13] I эл ≥ I дл . Ток срабатывания (отсечки) электромагнитного или комбинированного расцепителя I ср.эл проверяют по максимальному кратковременному току линии [4, с.205, ф. 5.14] I ср.эл ≥ kI кр , где k – коэффициент учитывающий неточность при определении I кр при разбросе характеристик электромагнитных расцепителей автоматических выключателей, k = 1,25. Для ответвления, идущего к одиночному электродвигателю I кр равен пусковому току электродвигателя I п . Пусковой ток АД с короткозамкнутым ротором определяется как [1, с.27] I кр = I п = 5· I ном . Для сварочных трансформаторов [1, с.27] I кр = I п = 3· I ном . Пиковый (кратковременный) ток для группы электроприемников определяется по формуле I кр = I пик = I пуск.макс + (I макс – I ном · k и ), где I пуск.макс – наибольший из пусковых токов двигателей в группе, А; I макс – максимальный расчетный ток группы электроприемников, А; I ном – номинальный ток электроприемника имеющий наибольший I пуск , А; k и – коэффициент использования для электроприемника имеющего наибольший пусковой ток. Диаметр труб находим по формуле:
где d1,d2,...,dn - наружный диаметр провода; n1,n2,...,nn - число проводов и кабелей данного размера. Для удобства результаты расчетов сведены в таблицу 7. Таблица 7
Длину кабеля определяем согласно масштабу цеха. Полную длину кабеля определяем как сумму длин согласно масштабу и 1,5 м как запас на разделку и выводы кабелей из каналов (труб) до места подключения ЭП. Пояснение выбора выключателя Выбор выключателей произведем с помощью время-токовых характеристик Для защиты силовых пунктов и других подключений к шинам РУ из литературы [5] выбираем автоматические выключатели серии ВА103, ВА201, предназначенных для проведения тока в нормальном режиме и отключения при коротких замыканиях, перегрузках, а также для оперативных включений и отключений электрических цепей переменного тока частотой 50 Гц напряжением 380 В. Выключатели имеют сертификаты и соответствует требованиям ГОСТ: 1. Выключатели серии ВА103 : − Соответствуют требованиям ГОСТ Р 50030.2−99 − Сертификат № РОСС СN.МЕ86.В00100 (4211514) – Орган по сертификации продукции электротехники АНО ЦСЭ «НИИЭЛЕКТРОАППАРАТ», РОСС RU.0001.1ME86 2. Выключатель серии ВА201 : − Соответствует требованиям ГОСТ Р 50030.2−99 − Сертификат № РОСС СN.МЕ86.В00101 (4211565) − Орган по сертификации продукции электротехники АНО ЦСЭ «НИИЭЛЕКТРОАППАРАТ», РОСС RU.0001.1ME86
Рис. 1 − Амперсекундная характеристика выключателя серии ВА201-В
Рис 2 − Амперсекундные характеристики выключателя серии ВА103- D Необходимым условием корректной работы коммутационной аппаратуры в цехе является согласование рабочих амперсекундных характеристик автоматических выключателей. На рис.3 показано, что избирательность выключателей достигнута. Амперсекундные характеристики выключателей не пересекаются. |
|||||||||||||||||||||||||||||||||||||||||||||||||||||||||||||||||||||||||||||||||||||||||||||||||||||||||||||||||||||||||||||||||||||||||||||||||||||||||||||||||||||||||||||||||||||||||||||||||||||||||||||||||||||||||||||||||||||||||||||||||||||||||||||||||||||||||||||||||||||||||||||||||||||||||||||||||||||||||||||||||||||||||||||||||||||||||||||||||||||||||||||||||||||||||||||||||||||||||||||||||||||||||||||||||||||||||||||||||||||||||||||||||||||||||||||||||||||||||||||||||||||||||||||||||||||||||||||||||||||||||||||||||||||||||||||||||||||||||||||||||||||||||||||||||||||||||||||||||||||||||||||||||||||||||||||||||||||||||||||||||||||||||||||||||||||||||||||||||||||||||||||||||||||||||||||||||||||||||||||||||||||||||||||||||||||||||||||||||||||||||||||||||||||||||||||||||||||||||||||||||||||||||||||||||||||||||||||||||||||||||||||||||||||||||||||||||||||||||||||||||||||||||||||||||||||||||||||||||||||||||||||||||||||||||||||||||||||||||||||||||||||||||||||||||||||||||||||||||||||||
| Начальное состояние |
Тестовый ток |
Пределы времени расцепления или не расцепления |
результаты испытаний |
Примечание |
|
| 1 |
Холодный |
1,1·In |
T≥1h(при In ≤63A) T≥2h(при In >63 A) |
без расцепления |
|
| 2 |
Сразу после предыдущего теста |
1,45·In |
T<1h(при In ≤63A) T≥2h(при In >63 A) |
расцепление |
Непрерывное наростание тока в течении 5 сек. |
| 3 |
Холодный |
2,55·In |
1s<T<60s(при In ≤32A) 1s<T<120s (при In >32A) |
расцепление |
|
| 4 |
Холодный |
3·In |
T≥0,1s |
без расцепления |
B-тип |
| 5·In |
T<0,1s |
расцепление |
|||
| 5·In |
T≥0,1s |
без расцепления |
С-тип |
||
| 10·In |
T<0,1s |
расцепление |
|||
| 10·In |
T≥0,1s |
без расцепления |
D-тип |
||
| 50·In |
T<0,1s |
без расцепления |
Литература
1. Барченко Т.Н., Закиров Р.И. Электроснабжение промышленных предприятий: Учебное пособие к курсовому проекту. – Томск, изд. ТПИ им. С.М Кирова, 1993.
2. Волков В.М. Электроснабжение промышленных предприятий: методические указания к курсовому и дипломному проектированию. – Архангельск: Изд-во АГТУ, 2005.
3. Коновалова Л. Л., Рожкова Л. Д. Электроснабжение предприятий и установок: Учебное пособие. – М.: Энергоатомиздат, 1989.
4. Князевский Б.А., Липкин Б.Ю. Электроснабжение промышленных предприятий: Учеб. для студ. вузов. – М: Высш. шк., 1986.
5. Федоров А.А., Каменева В.В. Основы электроснабжения промышленных предприятий: Учебник для вузов. – М.: Энергия, 1979.
6. Правило устройства электроустановок. Шестое издание. Дополненное с исправлениями. – М.: Госэнергонадзор, 2000.
7. Промышленный каталог электротехнической продукции «Информэлектро».
8. Томилёв Ю.Ф., Никулин Л.Г., Селедков М.С. «Электроснабжение промышленных предприятий»: Методические указания к курсовому проектированию. – Архангельск РИО АЛТИ, 1986
9. Соколов Б.А., Соколова Н.Б., «Монтаж электрических установок»: Третье

; 


