Реферат: Проект водопроводных очистных сооружений
|
Название: Проект водопроводных очистных сооружений Раздел: Рефераты по строительству Тип: реферат | ||||||||||||||||||||||||||||||||||||||||
![]() ОГЛАВЛЕНИЕ Лист Введение 3 1Анализ исходных данных 41.1Правильность химического анализа 4 1.5Качество исходной воды и питьевой 7 2Технологическая схема очистки 8 3Реагенты 9 4Предварительный расчет сооружений 114.1Предварительный расчет скорых фильтров 11 4.2Предварительный расчет контактных префильтров 15 5Детальный расчет сооружений 205.1Детальный расчет скорых фильтров 20 5.2Детальный расчет контактных префильтров 28 6Расчет смесителя-воздухоотделителя 38 7Реагентное хозяйство 44 8Подбор вспомогательного оборудования 518.2Насосы для перекачки реагентов 52 9Зоны санитарной охраны 54 Список литературы 57Введение Водоснабжение является одной из важнейших отраслей техники, направленной на повышение уровня жизни людей, благоустройство населенных пунктов, развитие промышленности и сельского хозяйства. Самоочищение воды водоема, как правило, не обеспечивает необходимого ее качества для производственных и хозяйственно-питьевых целей. Поэтому большое значение в охране водных ресурсов и их рациональном использовании приобретают физико-химические методы улучшения качества воды и обеззараживания стоков, позволяющее повторно использовать воду в технологических процессах и таким образом снизить нагрузки на водоемы. Изучение качества воды природного источника позволяет установить характер необходимых операций по ее обработке. На очистные сооружения возлагаются задачи осветления, обесцвечивания, устранение запахов и привкусов, умягчение, снижение общего солесодержания и обеззараживание воды. Снабжение населения качественной водой в достаточном количестве имеет важное социальное и санитарно-гигиеническое значение, предохраняет людей от эпидемических заболеваний, распространяемых через воду. Состав очистных сооружений определяются, исходя из результатов анализов исходной воды и требований, которые предъявляются к качеству очищенной воды. При устройстве хозяйственно-питьевого водоснабжения, сооружения для очистки воды должны, в конечном итоге, обеспечивать качество воды, отвечающие СанПиН 2.1.1074-01. Анализ исходных данных Правильность химического анализа О качестве природной воды судят на основе химического анализа. В связи с тем, что вода является электронейтральным веществом, при правильно произведенном анализе воды количество катионов должно быть таким же как количество анионов. Для зимы: Рисунок 1 .1 Диаграмма гипотетического состава воды (лето) Для лета: Рисунок 1 .2 Диаграмма гипотетического состава воды (зима) В обоих случаях расхождение не превышает 5%, химический анализ произведен правильно. СолесодержаниеОбщее солесодержание определяется по формуле: Для зимы: Для лета: Общая жесткость обусловлена наличием ионов Кальция и Магния и определяется по формуле: Для зимы: Для лета: Карбонатная жесткость обусловлена наличием бикарбонатов и определяется по формуле: Для зимы: Для лета: Некарбонатная жесткость определяется как разность общей и карбонатной жесткости: Для зимы: Для лета: Общая щелочность определяется наличием бикарбонатов: Для зимы: Для лета: Таблица 1 .1 Сравнение качества исходной воды и питьевой
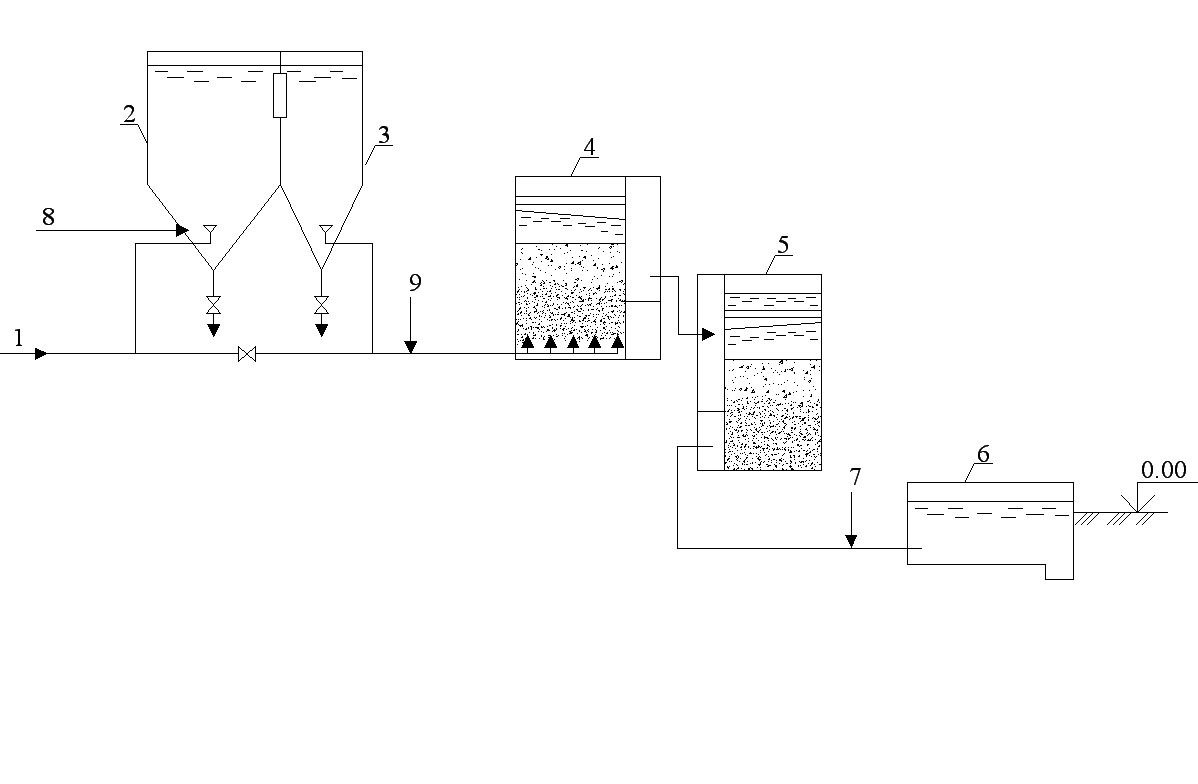
Технологическая схема очистки Воды источника водоснабжения в соответствии с [1] относятся к водам средней мутности (50-250 мг/л) и средней цветности (35-120 град.). Для данных условий применения и производительности станции 35000 м3/сут в соответствии с рекомендуемой таблицей 15 [1] в качестве основных сооружений принимаются контактные префильтры – скорые фильтры (двухступенчатое фильтрование).
Рисунок 2 .3 Высотная технологическая схема водопроводных очистных сооружений Реагенты Коагулянт В качестве коагулянта принимается сернокислый алюминий – Доза коагулянта при обработке цветных вод определяется по формуле: где Ц – цветность обрабатываемой воды, град. Для зимы применение коагулянта не требуется, так как цветность вод источника водоснабжения в этот период года не превышает нормы по [2]. Для лета: Доза коагулянта при обработке мутных вод принимается по таблице 16 [1]. Для зимы принимается: Для лета принимается: Для расчета сооружений принимается максимальна доза коагулянта. Так в технологической схеме применяются контактные префильтры, то доза коагулянта принимается на 15% меньше: Для лета: Для зимы: В дополнение к коагулянту для интенсификации процесса осветления принимается флокулянт – PRAESTOL. Доза флокулянта принимается в 16 раз меньше дозы полиакриламида (ПАА), принимаемой по п 6.17 [1] равной 0,6 мг/л. Доза хлорсодержащих реагентов при предварительном хлорировании и для улучшения хода коагуляции и обесцвечивания воды, а также для улучшения санитарного состояния сооружений принимается 8 мг/л (согласно п. 6.18 [1]). При вторичном хлорировании доза хлора принимается 3 мг/л. Предварительный расчет сооружений Предварительный расчет скорых фильтров Принимается: загрузка однослойная, материал – кварцевый песок; dmin = 0,7 мм; dmax = 1,6 мм; dэкв = 1,0 мм; высота слоя 1,5 м; Общая площадь фильтрования, мІ, определяется по формуле: где где Количество фильтров определяется: Площадь одного фильтра: Принимается фильтр с боковым каналом. Размеры фильтра 7,5Ч6 м (кратные 1,5 м). План скорого фильтра с боковым каналом приводится на рисунке 4.1. Расположение скорых фильтров на первую и вторую очередь приводится на рисунке 4.2. Рисунок 4 .4 План скорого фильтра с боковым каналом Рисунок 4 .5 Расположение скорых фильтров на первую и вторую очередь Фактическая площадь скорого фильтра: Общая площадь фильтрования на вторую очередь: Фактическая скорость фильтрования при нормальном режиме: При этом форсированная скорость фильтрования определяется: где Расчетное значение Количество фильтров на первую очередь: Принимается: загрузка однослойная, материал – кварцевый песок; dmin = 0,7 мм; dmax = 1,6 мм; dэкв = 1,0 мм; высота слоя 1,5 м; Vн = 6,5 м/ч; Vфорс = 7,5 м/ч. Дренажные трубы стальные с дырчатой перфорацией; dотв = 12 мм; поддерживающий слой – гравий. Общая площадь фильтрования определяется по формуле: где где Число КПФ на вторую очередь: Площадь одного КПФ: Принимается префильтр с боковым каналом. Размеры префильтра 7,5Ч6 м (кратные 1,5 м). План скорого фильтра с боковым каналом приводится на рисунке 4.3. Расположение контактных префильтров на первую и вторую очередь приводится на рисунке 4.4. Рисунок 4 .6 План контактного префильтра с боковым каналом Рисунок 4 .7 Расположение контактных префильтров на первую и вторую очередь Фактическая площадь скорого фильтра: Общая площадь фильтрования на вторую очередь: Фактическая скорость фильтрования при нормальном режиме: При этом форсированная скорость фильтрования определяется: где Количество КПФ на первую очередь: Детальный расчет сооружений Детальный расчет скорых фильтров Трубчатая распределительная система Распределительная система должна отвечать следующим требованиям: Равномерность сбора фильтрата по площади фильтра; Равномерность распределения промывной воды по площади фильтра; Достаточная механическая прочность для того, чтобы выдержать вес воды и загрузки, а также давление воды при промывке; Незасоряемость отверстий при фильтровании и промывке. Принимается: стальные трубы с отверстиями dотв = 12 мм, расположенными в два ряда в шахматном порядке под углом 45 градусов на расстоянии 150-200 мм. Общая площадь отверстий составляет 0,25% рабочей площади фильтра. Расстояние между трубами 250 мм. Расстояние от низа трубы до дна фильтра 100 мм. Число ответвлений в отделении скорого фильтра: где Расход по одному ответвлению: где где По расходу По расходу Общая площадь отверстий определяется формуле: Площадь одного отверстия: Количество отверстий: Расстояние между отверстиями: где Желоба Число желобов определяется по формуле: где Фактическое расстояние между желобами: Рисунок 5 .8 Схема желобов Расход воды по желобу: Ширина желоба определяется по формуле: где Расстояние от дна желоба до дна канала определяется: где Превышение кромок желобов над загрузкой, м: где 0,3 – коэффициент запаса. Рисунок 5 .9 Высота скорого фильтра Рисунок 5 .10 Высота скорого фильтра равна: Так как высота должна быть кратна 0,6 м, следовательно, принимается фильтр высотой 5,4 м. Потери напора при промывке скорого фильтра Потери напора в распределительной системе, м: где где площади поперечного сечения коллектора: Потери напора в фильтрующем слое, м: где равны 0,76 и 0,017; Потери напора в поддерживающих слоях, м: где Потери напора в трубопроводе, подводящем промывную воду к общему коллектору распределительной системы, м: где Потери напора на местные сопротивления в фасонных частях и арматуре: где - для колена 0,984; - для задвижек 0,26; - для входа во всасывающую трубу 0,5; - для тройника 0,92; Потери напора на образование скорости во всасывающем и напорном трубопроводах насоса для подачи промывной воды: где Сумма потерь напора, м: Водяная трубчатая распределительная система Принимается такой же, что и в скорых фильтрах. Число ответвлений в отделении КПФ: где Расход по одному ответвлению: где где Диаметр коллектора по расходу Диаметр ответвлений Определяем перфорацию труб: Площадь одного отверстия: Количество отверстий: Расстояние между отверстиями: где Воздушная трубчатая распределительная система Принимаются: трубы с отверстиями в = 5 мм, расположенными в два ряда в шахматном порядке под углом 45 градусов на расстоянии 150 мм. Общая площадь отверстий составляет 30% рабочей площади префильтра. Расстояние от низа трубы до дна фильтра 30 мм. Интенсивность промывки равна 18 л/(с ∙ м2). Расход воздуха по магистрали, определяется по формуле: Диаметр магистрали, м: где Число ответвлений определяем по формуле: где Диаметр ответвлений, м: где Горизонтальный отвод воды При использовании водовоздушной промывки применяется горизонтальный отвод промывной воды. Высота слоя воды в нагрузочном пространстве сравнительно невелика, что позволяет при малых расходах получить в нем достаточную скорость горизонтального движения воды для быстрого и полного удаления вымываемых из загрузки загрязнений. Наклонная поверхность струенаправляющего выпуска, стесняя поток, увеличивает его транспортирующую способность на начальном участке пути движения воды. Пескоулавливающий желоб устроен с учетом предотвращения попадания в него воздуха. Выносимые потоком в зону желоба отдельные частицы песка оседают на наклонные стенки и, сползая по ним через нижнюю щель, снова поступают в загрузку. Основные расчетно-конструктивные параметры системы горизонтального отвода воды зависят от удельного расхода, определяемого по формуле, л/(с·м): По этому расходу определяется разность отметок между верхней и нижней кромками водосливной стенки (Н1) и между верхними кромками водосливной и отбойной стенками (Н2). Н1 =320 мм, Н2=25 мм. Высота контактного префильтра Допустимая высота расширения загрузки: Рисунок 5 .11 Высота КПФ равна: Потери напора при промывке контактных префильтров Потери напора в распределительной системе определяются по формуле: где где площади поперечного сечения коллектора: Потери напора в фильтрующем слое, м: где равны 0,85 и 0,04; Потери напора в поддерживающих слоях, м: где Потери напора в трубопроводе, подводящем промывную воду к общему коллектору распределительной системы, м: где Потери напора на местные сопротивления в фасонных частях и арматуре: где - для колена 0,984; - для задвижек 0,26; - для входа во всасывающую трубу 0,5; - для тройника 0,92; Потери напора на образование скорости во всасывающем и напорном трубопроводах насоса для подачи промывной воды: где Сумма потерь напора, м: Микрофильтр Для предварительной очистки воды, в том числе для задержания планктона, на станции водоочистки предусматриваются микрофильтры. Расход воды с учетом собственных нужд, мі/ч: где Принимается 2 рабочих и 1 резервный микрофильтр. Расход на один микрофильтр: Принимается микрофильтр типа МФМ со следующими параметрами: – Производительность МФ: – Типоразмер: 3x3,7 м; – Рабочая сетка из нержавеющей стали. Расчет смесителя-воздухоотделителя Для смешения обрабатываемой воды с реагентами, перед контактными осветлителями устанавливают смеситель. Принимается вертикальный вихревой смеситель. Угол пирамидального диффузора принимается 300. Принимается две секции смесителя, каждая из которых состоит из двух камер: смесителя и воздухоотделителя. Расчетный расход на один смеситель, мі/с, определяется по формуле: где где По расходу Площадь основания прямоугольной части определяется по формуле: где Так как верхняя часть смесителя принимается квадратной в плане, то сторона будет иметь размер: Высота пирамидальной части: где где Высота смесителя: где Объем смесителя, мі: где Время пребывания воды в смесителе, c: Время пребывания воды в воздухоотделителе, с: Объем воздухоотделителя, мі: Высота воздухоотделителя принимается 4/5 высоты смесителя ( Так как воздухоотделитель принимается квадратный в плане, то сторона будет иметь размер: Нисходящая скорость потока воды: План смесителя и воздухоотделителя изображен на рисунке 10. Рисунок 6 .12 План смесителя и воздухоотделителя Реагентное хозяйство Цех коагулянта Месячный расход реагента, т: где Объем растворных баков (хранилищ) определяется по формуле: где Принимается четыре растворных бака. Объем одного растворного бака равен: Рисунок 7 .13 Растворный бак Принимаются растворные баки с размерами Д Ч Ш Ч В = 4,5 Ч 4,5 Ч 3 м. Фактический объем растворных баков: Объем расходного бака определяется по формуле: где Принимается два расходных бака, объем каждого равен: Рисунок 7 .14 Расходный бак Принимаются расходные баки с размерами Д Ч Ш Ч В = 3 Ч 1,5 Ч 2,4 м. Фактический объем расходных баков: Месячный расход реагента, кг: Доставка производится в мешках по 25 кг. Необходимое количество мешков в месяц: Объем расходного бака: где Принимается один рабочий и один резервный расходный бак. Размеры бака Д Ч Ш Ч В = 1,5 Ч 1,5 Ч 0,6 м. Рисунок 7 .15 Расходный бак флокулянта Фактический объем расходного бака: Расход хлора для первичного хлорирования, кг/сут: где Расход хлора для вторичного хлорирования, кг/сут: где Общий расход хлора, кг/сут: Часовой расход хлора: Хлор хранится в бочках объемом 500 л, массой 625 кг, диаметром 0,746 м и длиной 1,6 м. Площадь бочки: Съем хлора с одной бочки, : где Количество рабочих бочек (которые одновременно стоят на весах): Принимается три бочки с хлором: две рабочих и одна резервная. Количество бочек на 30-суточный запас: где Склад хлора должен вмещать 22 бочки, обеспечивающие месячный запас хлора на очистных сооружениях. Принимается хлораторная, совмещенная со складом хлора. Для первичного и вторичного хлорирования принимаются два рабочих и один резервный хлоратор ЛОНИИ-СТО, производительностью 8 кг/ч каждый. Подбор вспомогательного оборудования Промывные насосы Скорые фильтры Напор насоса, м, определяется: где где Для подачи промывной воды в количестве 566,4 л/с, принимается насос марки Д3200-33. Принимается один рабочий насос и один резервный. Контактные префильтры Для подачи промывной воды в количестве 387 л/с, принимается насос марки Д2000-21. Принимается один рабочий насос и один резервный. Насосы для перекачки реагентовПроизводительность насоса, мі/ч, для перекачки раствора коагулянта из растворных баков в расходные баки определяется: где Принимаем три насоса (два рабочих, один резервный) марки 2Х-6Л-1. Подача насоса 29 м3/ч, мощность 7,5 кВт, двигатель АО2-41-2. Насосы-дозаторыДля перекачки раствора коагулянта из расходных баков подбирается насос дозатор. Его производительность, м3/ч, равна: qк нд = Дк ∙ Qсм.в /10 4 ∙ b ∙ γ , ( 8 .0) qк нд = 34∙ 1715,75 /10 4 ∙ 17 ∙ 1,24 =0,28 м3/ч = 280 л/ч Принимаем два насоса-дозатора (один рабочий один резервный) марки НД 400/6. Подача насоса 400 л/ч, мощность 1 кВт, масса 108 кг. Производительность насоса-дозатора, м3/ч, для перекачки раствора флокулянта равна: qф нд = Дф ∙ Qсм.в /10 4 ∙ b2 ∙ γ2 , ( 8 .0) qк нд = 0,04∙ 1715,75 /10 4 ∙ 0,1 ∙ 1 =0,07 м3/ч = 70 л/ч Принимается два насоса-дозатора (один рабочий один резервный) марки НД 120/6. Подача насоса 120 л/ч, мощность 0,6 кВт, масса 78 кг. ВоздуходувкиДля подачи воздуха на промывку контактных префильтров, q = 2294 м3/ч, принимается воздуходувка марки ТВ-50-1,6 производительностью 3000 м3/ч. Принимается одна рабочая и одна резервная воздуходувка. Для приготовления и перемешивания раствора реагентов применяется сжатый воздух. Расход воздуходувки, л/с, определяется как: q общ = q раст + q расх , ( 8 .0) где q раст − расход воздуха, л/с, на растворные баки: q раст = ωраст ∙Sраст ∙ nраб , ( 8 .0) где ωраст − интенсивность подачи воздуха в растворные баки, равна 10 л/(с∙м2); Sраст − площадь растворного бака в плане; nраб − количество рабочих баков; q раст − расход воздуха, л/с, на расходные баки: q расх = ωрасх ∙Sрасх ∙ nраб , ( 8 .0) где ωрасх − интенсивность подачи воздуха в расходные баки, равна 5 л/(с∙м2); Sрасх − площадь расходного бака в плане; q раст = 10 ∙4,5 ∙ 4,5 ∙ 4 = 810 л/с q расх = qкрасх + qфрасх =5 ∙1,5 ∙3+ 5 ∙1,5 ∙ 1,5 =33,75 л/с q общ = 33,75 + 810 = 843,75 л/с =3037,5 м3/ч Принимается две воздуходувки (одна рабочая одна резервная) марки ТВ-50-1,9. Подача равна 3600мі/ч, электродвигатель марки А3-315 S-2 мощностью 160 кВт, масса воздуходувки 6460 кг. Зоны санитарной охраны Зоны санитарной охраны должны предусматриваться на всех проектируемых и реконструируемых водопроводах хозяйственно-питьевого назначения в целях обеспечения их санитарно-эпидемиологической надежности. Граница первого пояса зоны водопроводных сооружений должна совпадать с ограждениями площадки сооружений и предусматриваться на расстоянии: от стен резервуаров фильтрованной (питьевой) воды, фильтров (кроме напорных), контактных осветлителей с открытой поверхностью воды – не менее 30 метров; от стен остальных сооружений и стволов водонапорных башен – не менее 15 м. Территория первого пояса зоны площадки водопроводных сооружений должна быть спланирована, огорожена и озеленена. На территории первого пояса зоны: а) запрещаются: все виды строительства, за исключением реконструкции или расширения основных водопроводных сооружений (подсобные здания, непосредственно не связанные с подачей и обработкой воды, должны быть размещены за пределами первого пояса зоны); размещение жилых и общественных зданий, проживание людей, в том числе работающих на водопроводе; прокладка трубопроводов различного назначения, за исключением трубопроводов, обслуживающих водопроводные сооружения; выпуск в поверхностные источники сточных вод, купание, водопой и выпас скота, стирка белья, рыбная ловля, применение для растений ядохимикатов и удобрений; б) здания должны быть канализованы с отведением сточных вод в ближайшую систему бытовой или производственной канализации или на местные очистные сооружения, расположенные за пределами первого пояса зоны с учетом санитарного режима во втором поясе. При отсутствии канализации должны устраиваться водонепроницаемые выгребы, расположенные в местах, исключающих загрязнение территории первого пояса при вывозе нечистот; в) должно быть обеспечено отведение поверхностных вод за пределы первого пояса; г) допускаются только рубки ухода за лесом и санитарные рубки леса. На территории второго пояса зоны площадки водопроводных сооружений надлежит: а) осуществлять регулирование отведения территорий для населенных пунктов, лечебно-профилактических и оздоровительных учреждений, промышленных и сельскохозяйственных объектов, а также возможных изменений технологии промышленных предприятий, связанных с повышением степени опасности загрязнения источников водоснабжения сточными водами; б) благоустраивать промышленные, сельскохозяйственные и другие предприятия, населенные пункты и отдельные здания, предусматривать организованное водоснабжение, канализование, устройство водонепроницаемых выгребов, организацию отвода загрязненных поверхностных сточных вод и др.; в) производить только рубки ухода за лесом и санитарные рубки леса. Во втором поясе зоны площадки водопроводных сооружений запрещается: а) загрязнение территорий нечистотами, мусором, навозом, промышленными отходами и др.; б) размещение складов горючесмазочных материалов, ядохимикатов и минеральных удобрений, накопителей, шламохранилищ и других объектов, которые могут вызвать химические загрязнения источников водоснабжения; в) размещение кладбищ, скотомогильников, полей ассенизации, полей фильтрации, земледельческих полей орошения, навозохранилищ, силосных траншей, животноводческих и птицеводческих предприятий и других объектов, которые могут вызвать микробные загрязнения источников водоснабжения; г) применение удобрений и ядохимикатов. Список литературыСНиП 2.04.02-84*. Водоснабжение. Наружные сети и сооружения/Госстрой России. – М.: ФГУП ЦПП, 2004. – 128 с. СанПиН 2.1.4.1074 – 01. Очистка питьевой и технической воды. В. Ф. Кожинов. – Минск: Высшая школа А, 2007. |








, ( 4 .0)
мІ
. ( 4 .0)
. ( 4 .0)
, ( 4 .0)
, ( 5 .0)
м
, ( 5 .0)
м

, ( 5 .0)
м
, ( 5 .0)
м
, ( 6 .0)
мІ


