Дипломная работа: Производство безнапорных железобетонных труб
|
Название: Производство безнапорных железобетонных труб Раздел: Промышленность, производство Тип: дипломная работа | |||||||||||||||||||||||||||||||||||||||||||||||||||||||||||||||||||||||||||||||||||||||
| Содержание 1. Введение 2. Теоретическая часть 2.2 Классификация железобетонных конструкций 2.3 Характеристика исходных материалов 2.3.1 Вяжущие вещества 2.3.2 Заполнители 2.3.3 Вода для приготовления бетона 2.3.4 Добавки к бетонам 2.4 Основы организации способа центробежного проката 2.5 Производство безнапорных труб 2.6 Транспортирование бетонной смеси 3. Расчетная часть 3.1 Технологические расчеты бетоносмесительного цеха 3.1.1 Расчет состава бетона 3.1.2 Расчет потребности расхода сырьевых материалов 3.1.3 Расчет и проектирование складов заполнителей 3.1.4 Расчет и проектирование склада цемента 3.1.5 Расчет и проектирование бетоносмесительных цехов 3.2 Технологические расчеты формовочных цехов 4. Охрана труда Спецификация Литература 1. Введение Рост производства сборного железобетона вызывается непрерывным расширением объемов капитального строительства в России. В связи с этим, перед строителями и работниками промышленности строительных материалов поставлена задача совершенствования технологии производства железобетонных изделий и конструкций. Промышленность сборного железобетона в настоящее время изготовляет почти целиком перекрытия для промышленных, гражданских и жилых зданий, более 30% фундаментов зданий, более 30% стен зданий и сооружений, более 60% каркасов промышленных зданий. Расход сборного железобетона за последние годы в жилищном, гражданском и промышленном строительстве быстро растет за счет увеличения удельного веса полносборных домов. В нашей стране разработана система унификации объемно-планировочных решений промышленных зданий, сооружений и объектов жилищно-гражданского строительства. Изданы единые каталоги бетонных и железобетонных изделий для промышленного и жилищно-гражданского строительства. Унифицированные изделия составляют около 80% общего объема железобетона. Основным направлением развития сборных железобетонных конструкций являются снижение материалоемкости и металлоемкости изделий и конструкций, повышение степени заводской готовности, снижение энергетических затрат. Однотипные изделия различают по типоразмерам, если конструкции и размеры различны, а также по маркам, если изделия одного типоразмера имеют различные армирование, закладные детали или технологические отверстия. Выбор технологии изготовления определяется формой изделий, их габаритами, массой, видом бетона и принятым армированием. В промышленности сборного ж/б в зависимости от номенклатуры и вида изготовляемой продукции различают следующие типы предприятий: специализированные – домостроительные комбинаты (ДСК); заводы и цехи крупнопанельного домостроения (КПД); заводы объемно-блочного домостроения (ОБД); заводостроительные комбинаты (ЗСК); сельские строительные комбинаты (ССК); узкоспециализированные заводы и цехи по строительству труб, шпал, опор ЛЭП и других изделий специального назначения; универсальные заводы ж/б изделий; комбинаты промышленных предприятий; полигоны ж/б изделий. Домостроительные комбинаты выпускают комплекты изделий и конструкций для различных типов жилых домов – панели наружных и внутренних стен, плиты перекрытий и покрытий, санитарно-технические кабины, лестничные марши и доборные элементы, а также производят их монтаж. В промышленном и гражданском строительстве нашей страны около 90% сборного ж/б составляют типовые унифицированные конструкции, при разработке которых определяющим является требование заводской технологичности изделий. Это требование обуславливает предельную массу изделий, их форму и размеры, вид армирование и т.п. Сборные железобетонные изделия производят, в основном, линейными, плоскостными, блочными и объемными. К линейным относят колонны, фермы, ригели, балки, прогоны; к плоскостным – плиты покрытий и перекрытий, панели стен и перегородок, стенки бункеров и резервуаров; к блочным – массивные фундаменты, стены подвалов и прочее; к объемным – санитарно-технические кабины, блок-комнаты, коробчатые элементы силосов, кольца колодцев. По условиям транспортного оборудования длина элементов, как правило, не превышает 25 м, ширина 3 м и масса 25 т. Армируют изделия в большинстве случаев сварными сетками, каркасами и укрупненными арматурными блоками. Для сборным ж/б конструкций применяют бетоны в широком диапазоне плотности, прочности, морозостойкости и водонепроницаемости. Для несущих ж/б конструкций широко используют тяжелый бетон марок М 150 – М 800, плотностью 2200-2500 кг/м3 , конструкционные бетоны на пористых заполнителях марок М 150 – М 500, плотностью 1200-2200 кг/м3 ; для ограждающих конструкций используют легкие бетоны марок М 50 – М 100 плотностью 700-1000 кг/м3 . Основными направлениями в совершенствовании железобетонных конструкций (снижение стоимости при одновременном повышении качества) являются: 1) удовлетворение требований непрерывно развивающихся «Технических правил но экономному расходованию строительных материалов» (ТП-101-81); 2) применение конструктивных решений, снижающих массу конструкций и позволяющих наиболее полно использовать: физико-механические свойства исходных материалов, местные строительные материалы, бетоны высоких классов (40 и выше), лёгкие бетоны, холодную пропитку бетонов мономерами и высокопрочную арматуру (1000 МПа и выше), механизированное и автоматизированное изготовление конструкций; 3) повышение долговечности, надежности и технологичности конструкций, снижение их приведённых затрат, материалоёмкости, энергоёмкости, трудоемкости изготовления и монтажа; 4) разработка новых, уточнение и упрощение существующих методов расчета конструкций, особенно пространственных, тонкостенных и с предварительным напряжением арматуры; 5) развитие методов расчета с использованием ЭВМ и высокопроизводительных методов конструирования (САПР), технологии изготовления и возведения конструкций сборных, сборно-монолитных и монолитных; 6) повышение качества, упрочнение и удешевление стыков сборных и сборно-монолитных конструкций; 7) изучение физико-химических и механических процессов взаимодействия стальной арматуры с бетоном в целях наиболее эффективной борьбы с появлением и раскрытием трещин в конструкциях; 8) совершенствование методов подбора и изготовления бетона (особенно легкого и ячеистого), с тем чтобы получать железобетон с заранее заданными свойствами; 9) повышение сейсмической и динамической стойкости конструкций; 10) увеличение долговечности конструкций в зданиях с агрессивными средами, а также при эксплуатации в низких и высоких температурах. Основным направлением технической политики в области строительства являются снижение его стоимости, энергоемкости и трудоемкости при высокой долговечности и надежности зданий, повышение технологичности как отдельных элементов, так и конструкций в целом. К настоящему времени наибольшее распространение в жилищно-гражданском строительстве получили полносборные каркасные и бескаркасные многоэтажные здания и здания из объемных элементов. 2. Теоретическая часть
2.2 Классификация ж/б конструкций В основу классификации сборных ж/б изделий и конструкций положены следующие признаки: вид бетона, его плотность, вид армирования, внутреннее строение и назначение. По виду бетонов и применяемых вяжущих различают изделия из цементных бетонов – тяжелых на обычных плотных заполнителях, особо тяжелых бетонов и легких бетонов на пористых заполнителях, ячеистых бетонов и специальных бетонов – жаростойких, химически стойких, декоративных. По плотности применяемых бетонов изделия могут быть из особо тяжелых бетонов плотностью более 2500 кг/м3 , тяжелых бетонов плотностью 1800-2500 кг/м3 , легких бетонов плотностью 500-1800 кг/м3 , особо легких (теплоизоляционных) бетонов плотностью менее 500 кг/м3 . По виду армирования ж/б изделия делят на предварительно напряженные и с обычным армированием. По внутреннему строению изделия могут быть сплошными и пустотелыми, изготовленными из бетона одного вида, - однослойные, двухслойные, многослойные, изготовленными из разных видов бетона или с применением различных материалов (например, теплоизоляционных). Ж/б изделия одного вида могут также отличаться типоразмерами, например, блок стеновой, угловой, подоконный. Изделия одного типоразмера могут разделяться по маркам. Выбор метода изготовления различных изделий и конструкций зависит от номенклатуры, технологических особенностей каждого метода и объема производства. При этом решающее значение имеют технико-экономические показатели производства конкретных изделий тем или иным методом. Номенклатура железобетонных изделий составляет сотни наименований. Важнейшим условием экономичного производства является максимальное сокращение их типов. При выборе номенклатуры изделий за основу принимают следующие показатели: 1) распространение крупнопанельного жилищного, культурно-бытового и производственного строительства, что приводит к увеличению применения панелей наружных и внутренних стен и снижению удельного веса перекрытия; 2) повышение этажности зданий и более широкое внедрение каркасной схемы в жилищно-гражданское строительство; 3) уменьшение расхода сборного железобетона на фундаменты в связи с облегчением веса конструкций и более широким внедрением свайных оснований, а также монолитных фундаментов; 4) более широкое использование сборного железобетона для строительства инженерных сооружений, подземных коммуникаций и т.п., что вызывает повышение производства специальных железобетонных изделий; 5) увеличение объемов производства предварительно напряженных конструкций; 6) развитие производства объемно-блочного домостроения. Ж/б конструкции, как указано выше, классифицируют: по области применения – для промышленного, жилищно-гражданского и других видов строительства; по назначению в зданиях и сооружениях – на элементы фундаментов, перекрытий, стен и т.п.; по геометрической форме – на линейные, плитные, блочные, решетчатые и др.; по форме и структуре поперечного сечения – на сплошные, пустотные, ребристые, слоистые, массивные и др.; по характеру армирования – на бетонные (неармированные) и железобетонные (с обычной или предварительно напряженной арматурой); по виду бетона – из тяжелого, легкого, ячеистого. Изделия должны иметь максимальную степень заводской готовности. Составные или комплексные изделия поставляют потребителю, как правило, в законченном виде, не требующем (если это не предусмотрено проектом) дополнительной отделки. 2.3 Характеристика исходных материалов Качество бетона в большей степени зависит от используемых материалов. Правильный выбор материалов для бетона, учитывающий как требования к бетону, так и свойства самих материалов, имеет важное значение в технологии бетона. При этом должна достигаться максимальная экономия цемента и трудовых затрат на производство бетона. 2.3.1 Вяжущие вещества Для приготовления бетона строительных конструкций наиболее широко используют неорганические вяжущие вещества. Различают вяжущие неорганические вещества водного (цементы) и воздушного (известь, гипс и др.) твердения. Наиболее широкое применение в производстве бетона получил портландцемент (ПЦ). ПЦ – гидравлическое вяжущее вещество, твердеющее в воде (лучше всего) или на воздухе. Это порошок серого цвета, получаемый тонким помолом клинкера с добавкой гипса. Для получения цемента высокого качества необходимо, чтобы его химический состав, а следовательно, и состав сырьевой смеси были устойчивы. При помоле к цементному клинкеру можно добавлять 10-20% гранулированных доменных шлаков или активных минеральных добавок. ПЦ называют цемент, не содержащий в своем составе минеральных добавок, кроме гипса. Чисто клинкерный ПЦ без добавок применяют для высокопрочных бетонов, в производстве сборного ж/б, особенно предварительно напряженных конструкций, при строительстве в особых условиях (на Севере и в районах с сухим и жарким климатом). Наиболее распространенными цементами являются ПЦ с добавками (составляют около 60% всех выпускаемых цементов). Они могут применяться для большинства монолитных и сборных ж/б конструкций, если к последним не предъявляются особые требования. Основное влияние на качество цемента оказывает содержание трехкальциевого силиката (С3 S),т.е. алита, который обладает свойствами быстротвердеющего гидравлического вещества высокой прочности. Двухкальциевый силикат (С2 S), белит, - медленно твердеющее гидравлическое вяжущее средней прочности. Трехкальциевый алюминат (С3 А) твердеет быстро, но имеет низкую прочность. Изменяя минералогический состав цемента, можно варьировать его качество. Цементы высоких марок и быстро твердеющие изготовляют с повышенным содержанием С3 S (алитовые цементы). Цементы с высоким содержанием белита (белитовые) – медленно твердеющие, однако прочность их нарастает в течение длительного времени и в возрасте нескольких лет может оказаться достаточно высокой. Основное свойство, характеризующее качество любого цемента – это его прочность (марка). Прочность цемента при сжатии составляет 30-60 МПа, соответственно прочность балочек на изгиб – 4,5-6,5 МПа. Растворная смесь должна иметь расплыв конуса на встряхивающем столике 106-115 мм. У большинства цементов это достигается при В/Ц=0,4. Действительную прочность цемента называют его активностью. Так, при проектировании состава бетона лучше использовать активность цемента, т.к. это обеспечивает более точные результаты и экономию цемента. Цементная промышленность выпускает в основном цементы марок 400-550, а по особому заказу – марки 600. прочность цемента высоких марок нарастает быстрее, чем у цементов низких марок. Помимо требований к прочности к цементам предъявляются и другие требования, причем наиболее важными из них являются нормальная густота и сроки схватывания. Нормальная густота ПЦ составляет 22-27%. Нормальная густота увеличивается при введении в цемент при помоле тонкомолотых добавок _трепела, опоки). Наименьшую густоту имеют чисто клинкерные цементы. Сроки схватывания определяют начало и конец процесса превращения материала в твердое тело. По стандарту требуется, чтобы начало схватывания при температуре 200 С наступало не ранее 45 минут, а конец схватывания – не позднее 10 часов с момента затворения цемента водой. Сроки схватывания можно регулировать путем добавления в бетонную смесь при ее приготовлении различных химических добавок. Сроки схватывания уменьшаются с повышением температуры бетона и уменьшением В/Ц. ПЦ имеет, как правило, тонкий помол: через сито № 008 должно проходить не менее 85% общей массы цемента. Средний размер частиц цемента составляет 15-20 мкм. Тонкость помола цемента характеризуют также удельной поверхностью зерен, содержащихся в 1 г цемента. Цемент среднего качества имеет удельную поверхность 2000-2500 см2 /г, высокого качества – 3500 см2 /г и более. Истинная плотность ПЦ без добавки составляет 3,05-3,15 г/см3 . Плотность ПЦ при расчете состава бетона условно принимают в уплотненном состоянии – 1,3 кг/м3 . 2.3.2 Заполнители Заполнители занимают в бетоне до 80% объема и оказывают определенное влияние на свойства бетона, его долговечность и стоимость. Введение в бетон заполнителей позволяет резко сократить расход цемента, являющегося наиболее дорогим и дефицитным компонентом бетона. Кроме того, заполнители улучшают технические свойства бетона. Жесткий скелет из высокопрочного заполнителя несколько увеличивает прочность и модуль деформации бетона – уменьшает деформации конструкций под нагрузкой, а также уменьшает ползучесть бетона – необратимые деформации, возникающие в бетоне при длительном действии на него нагрузки. Заполнитель уменьшает осадку бетона, способствуя получению более долговечного материала. Усадка цементного камня при его твердении достигает 1-2 мм/м. Пористые естественные и искусственные заполнители, обладая малой плотностью, уменьшают плотность легкого бетона, улучшают его теплотехнические свойства. Стоимость заполнителя составляет 30-50% (а иногда и более) стоимости бетонных и ж/б конструкций, поэтому применение более дешевых и доступных заполнителей в ряде случаев позволяет снизить стоимость строительства, уменьшает объем транспортных перевозок, обеспечивает сокращение сроков строительства. Правильный выбор заполнителей для бетона, их разумное использование – одна из важнейших задач технологии бетона. К заполнителям для бетона предъявляются требования, учитывающие особенности их влияния на свойства бетона.. наиболее существенное влияние на свойства бетона оказывают зерновой состав, прочность и чистота заполнителя. В бетоне применяют крупный и мелкий заполнители. Крупный заполнитель, зерна которого крупнее 5 мм, подразделяют на гравий и щебень. Мелким заполнителем в бетоне является естественный или искусственный песок. Щебень из горных пород - неорганический зернистый сыпучий материал с зернами крупностью св. 5 мм, получаемый дроблением годных пород, гравия и валунов, попутно добываемых вскрышных и вмещающих пород или некондиционных отходов горных предприятий по переработке руд (черных, цветных и редких металлов металлургической промышленности) и неметаллических ископаемых других отраслей промышленности и последующим рассевом продуктов дробления. Щебень из гравия должен содержать дробленые зерна в количестве не менее 80 % по массе. Допускается по согласованию изготовителя с потребителем выпуск щебня из гравия с содержанием дробленых зерен не менее 60 %. Гравий и щебень должны быть морозостойкими и обеспечивать требуемую марку легкого бетона по морозостойкости. Потеря массы после 15 циклов попеременного замораживания и оттаивания не должна превышать 8%. Щебень и гравий по морозостойкости подразделяют на следующие марки: F15; F25; F50; F100; F150; F200; F300; F400. Показатели морозостойкости щебня и гравия при испытании замораживанием и оттаиванием или насыщением в растворе сернокислого натрия и высушиванием должны соответствовать указанным ГОСТ 3344-83 Искусственные пористые гравий, щебень и песок (далее гравий, щебень и песок) следует изготовлять в соответствии с требованиями настоящего стандарта по технологическим регламентам, утвержденным в установленном порядке. По согласованию изготовителя с потребителем допускается изготовление гравия и щебня от 2,5 до 10 мм и смеси фракций от 5 до 20 мм и для теплоизоляционных засыпок - от 5 до 40 мм. Песок представляет собой рыхлую смесь мелких зерен, образовавшуюся в результате выветривания изверженных (реже осадочных) горных пород. Иногда песок получают дроблением горных пород, но такой песок гораздо дороже естественного и применяется только для специальных целей. Песок, в зависимости от зернового состава, подразделяют на три группы: 1 - для конструкционно-теплоизоляционного бетона; 2 - для конструкционного бетона; 3 - для теплоизоляционного бетона. 2.3.3 Вода для приготовления бетона Для приготовления бетонной смеси используют водопроводную питьевую воду, а также любую воду, имеющую водородный показатель pH не менее 4 (т.е. некислую, не окрашивающую лакмусовую бумагу в красный цвет). Вода не должна содержать сульфатов более 2700 мг/л (в пересчете на SO4 ) и всех солей более 5000 мг/л. В сомнительных случаях пригодность воды для приготовления бетонной смеси необходимо проверять путем сравнительных испытаний образцов, приготовленных на данной воде и на обычной водопроводной. Для приготовления бетонной смеси можно применять морскую и другие соленые воды, удовлетворяющие приведенным выше условиям. Исключением является лишь бетонирование внутренних конструкций жилых и общественных зданий и надводных ж/б сооружений в жарком и сухом климате, т.к. морские соли могут выступить на поверхности бетона и вызвать коррозию стальной арматуры. Для поливки бетона следует использовать воду такого же качества, как и для приготовления бетонной смеси. 2.3.4 Добавки к бетонам Для регулирования свойств бетона, бетонной смеси и экономии цемента применяют различные добавки в бетон. Их подразделяют на две группы. К первой относят химические вещества, добавляемые в бетон в небольшом количестве (0,1-2% массы цемента) для изменения в нужном направлении свойств бетонной смеси и бетона. Ко второй относят тонкомолотые материалы, добавляемые в бетон в количестве 5-20% и более для экономии цемента или для получения плотного бетона при малых расходах цемента. К тонкомолотым добавкам относят золы, шлаки, пески, отходы камнедробления и некоторые другие материалы, придающие бетону специальные свойства (повышающие его плотность, изменяющие электропроводимость, окрашивающие и т.д.). В последнее время наибольшее применение находят химические добавки. Некоторые добавки обладают полифункциональным действием: пластифицирующие-воздухововлекающие, газообразующие-пластифицирующие. В качестве пластифицирующих добавок применяют поверхностно-активные вещества (ПАВ), нередко получаемые из вторичных продуктов. В последнее время разработаны и применяются новые химические добавки – суперпластификаторы. Эти добавки резко увеличивают подвижность и текучесть бетонной смеси и существенно улучшают строительно-технологические свойства бетона. В большинстве своем суперпластификаторы – синтетические полимеры, которые вводят в бетонную смесь в количестве 0,1-1,2% массы цемента. В качестве ускорителей твердения применяют хлорид кальция, сульфат натрия, нитрит-нитрат-хлорид кальция и другие. В качестве противоморозных добавок применяют поташ, хлорид натрия, хлорид кальция и пр. Эти добавки понижают точку замерзания воды и способствуют твердению бетона при отрицательных температурах: чем ниже температура твердения, тем выше обычно дозировка добавки (до 10% массы цемента, а иногда и больше). Большинство добавок растворимы в воде и вводятся в бетономешалку в виде предварительно приготовленного раствора. Некоторые добавки вводят в виде эмульсии или в виде взвесей в воде. На практике оптимальную дозировку добавки определяют опытным путем. 2.4 Основы организации способа центробежного проката
Производство труб методом центробежного проката . Железобетонные трубы изготовляют этим методом длиной 2,5...5,0 м, диаметром 300...3000 мм. Железобетонные трубы в зависимости от внутреннего давления делят на три типа: I тип – трубы с внутренним давлением больше 0,5 МПа, воспринимаемым предварительно напряженной кольцевой арматурой, II тип – трубы с внутренним давлением до 0,5 МПа, воспринимаемым в основном бетоном стенки трубы, не уч1iтывая кольцевую арматуру, III тип – трубы с внутренним давлением 0,3...0,8 МПа. Для труб используют бетон прочностью 40...60 МПа. В зависимости от размеров трубы и степени армирования процесс формования труб делится на этапы: центробежный прокат втулочной части трубы на длину. 300…400 мм; заполнение бетонной смесью на высоту ½ толщины стенки цилиндрической части трубы; заполнение раструба трубы бетонной смесью и центробежный прокат; заполнение и центробежный прокат бетона оставшейся длины - ½ толщины стенки трубы; окончательное центробежно-прокатное уплотнение бетона по всей длине трубы; отделка внутренней поверхности трубы. Основное оборудование - центробежно-прокатная машина и бетоноукладчик, выполняющие все технологические операции от подачи до уплотнения бетонной смеси. Бетоноукладчик состоит из загрузочного бункера с питателем, ленточного транспортера и подъемной роликовой опоры. Центробежно-прокатная машина включает в себя прокатный вал, фиксатор, раму, откидную опору и привод вала. Прокатный вал как основной орган передает вращение опирающейся на него форме и уплотняет бетонную смесь. Прокатный вал одним концом через цепную муфту соединен с приводом, находящимся на раме, а другим входит в гнездо откидной опоры. Технологическая линия для производства труб центробежным прокатом состоит: из установки для перемотки арматурной проволоки; стайка для изготовления арматурных каркасов; стенда для гидростатических испытаний; стенда для испытания труб на внешнюю нагрузку; туннельной камеры; поста сборки арматурных каркасов; поста чистки и смазки форм; поста распалубки и сборки форм. Все три поста с туннельной камерой объединены транспортным, напольным кольцом. Технологическую линию обслуживают два, мостовых крана и два формовочных поста. Линию можно разместить в пролете размером 18Х144 м. Преимущество линии: она - позволяет при соответствующем оборудовании производить трубы различного назначения и давления 0,3...1,5 МПа. Комбинированная опытная технологическая линия имеет весь необходимый набор оборудования для производства труб диаметром 1200...2000 мм и производит установку, фиксацию и предварительное натяжение продольных напрягаемых стержней, что ускоряет и облегчает установку стержней; позволяет снизить отходы продольной арматуры, создать безопасные условия труда путем группового натяжения продольных стержней; ускорить установку и фиксацию продольных стержней через специальные отверстия с прорезями. Широкое распространение получил метод формования труб центрифугированием. Железобетонные трубы армируют в двух направлениях: в продольном направлении предварительно напряженной стержневой арматурой, по окружности - спиральной. Стыкуют напорные трубы с помощью резинового кольца. С одной стороны труба имеет раструб, другая сторона выполняется конической. Способ послойного центрифугирования раструбных напорных труб осуществляют по трехстадийной технологии. На первом этапе изготовляют железобетонный сердечник с напряженной арматурой или со стальным тонкостенным цилиндром с уплотнением смеси центрифугированием или вибрированием. На втором этапе после пропаривания и водного дозревания сердечника на него навивают предварительно напряженную арматуру. На третьем этапе спираль покрывают защитным слоем. Процесс изготовления труб начинается со сбора форм, при этом насаживается обечайка для образования фасонной части раструба и гладкого конца, соединенных с упорными кольцами для натяжения продольной, арматуры. Собранная форма поступает на ПОСТ натяжения продольной арматуры, после чего ее устанавливают на центрифугу. Формы загружают смесью ленточным питателем. После распределения первого слоя питатель отводят за ее пределы и увеличивают скорость центрифуги; аналогично укладывают и уплотняют следующие слои бетона. При центрифугировании вода частично отжимается и увеличивается плотность бетона. 2.5 Изготовление безнапорных железобетонных труб Железобетонные трубы безнапорные предназначены для прокладки подземных трубопроводов, транспортирующих самотеком бытовые жидкости и атмосферные сточные воды, а также подземные воды и производственные жидкости, не агрессивные к железобетону. Производство железобетонных труб осуществляют из тяжелого бетона. Их изготавливают по технологии виброгидропрессования. Такие железобетонные трубы имеют более высокие технические характеристики по сравнению с известными аналогами. Более высокие показатели по прочности и трещиностойкости, морозостойкости (не менее F200) и водонепроницаемости (не менее W6). Качество поверхностей внутренней части раструба позволяет обеспечивать быстроту и технологичность монтажа, а также достигать практически абсолютной герметичности трубопровода, т. к. поверхность обработана методом шлифования. По несущей способности железобетонные трубы безнапорные делят на три класса прочности, причём увеличение несущей способности осуществляется в основном за счет армирования при неизменной толщине стенки для одного диаметра: 1 группа — до 2 метров до верха трубы; 2 группа — до 4 метров до верха трубы; 3 группа — применяется при расчетной высоте засыпки грунтом до 6 метров до верха трубы. Трубы предназначены для прокладки подземных трубопроводов, транспортирующих самотеком бытовые жидкости и атмосферные сточные воды, а также подземные воды и производственные жидкости, не агрессивные к железобетону и уплотняющим резиновым кольцам. Трубы имеют диаметр условного прохода 400, 500, 800, 1000, 1200 и 1500 мм. и полезную длину - 2,5 м. Трубы подразделяются на три группы несущей способности: первую - при расчетной высоте засыпки грунтом 2м; вторую - при расчетной высоте засыпки грунтом 4м; третью - при расчетной высоте засыпки грунтом 6м;
Рис. 1 Объемный эскиз трубы Прочностные характеристики труб должны обеспечивать их эксплуатацию при расчетной высоте засыпки грунтом в следующих усредненных условиях укладки: - основание под трубой - грунтовое плоское для труб диаметром условного прохода 400-500 мм. или грунтовое профилированное с углом охвата 90 градусов для труб, диаметром условного прохода 800-1500 мм; - засыпка грунтом, плотностью 16,7 кН/куб.м. (1,7 тс/куб.м.) с углом внутреннего трения - 30 градусов и нормальной (неконтролируемой) степенью уплотнения для труб диаметром условного прохода 400-800 мм. и повышенным уплотнением для труб, диаметром условного прохода 1000-1500 мм.; - временная нагрузка на поверхности земли класса НК-80 по СНи12.05.03-84. Трубы обозначаются марками в соответствии с ГОСТ 23009 и ГОСТ 6482-88. Марка труб состоит из буквенно-цифровых групп, разделенных дефисом. Первая группа содержит обозначение трубы, ее диаметр условного прохода в сантиметрах и полезную длину в дециметрах. Во второй группе указывается несущая способность, обозначаемую арабской цифрой. Пример: - диаметр условного прохода 800 мм., полезной длиной 2,5 м. 2-й группы по несущей способности: ТС-80.25-2; - диаметр условного прохода 1500 мм., полезной длиной 2,5 м. с подошвой 3-й группы по несущей способности: ТСП-150.25-3. Трубы - водонепроницаемые и выдерживают испытательное гидравлическое давление, равное 0,05 МПа (0,5 кгс/кв. см.). Трубы удовлетворяют ГОСТ 13015-200: - по показателям фактической прочности бетона; - по морозостойкости бетона; - по отклонению защитного слоя бетона до арматуры; - по маркам стали для арматурных изделий. Трубы изготовлены из тяжелого бетона по ГОСТ 26633-91* класса по прочности при сжатии не ниже В30. Качество материалов, применяемых при изготовлении бетона, обеспечивает выполнение технических требований, установленных ТУ, и удовлетворяют требованиям следующих стандартов: - цемент - ГОСТ 10178-85*; - заполнители - ГОСТ 8267-93 и ГОСТ 8736-93* (наибольшая крупность зерен крупного заполнителя - 10 мм.); - вода - ГОСТ 23732-79. Качество применяемых при изготовлении бетона добавок соответствует требованиям ГОСТ и ТУ на эти добавки. Производство безнапорных труб Безнапорные трубы можно изготовлять на центрифугах, используя при этом ненапрягаемую арматуру. Для производства этих труб не требуется навиваемой арматуры и укладки защитного слоя. Стальные формы для 6езнапорных труб применяют двух типов: для труб диаметром 500… 1000 мм – длиной 4200 мм, а для труб диаметром 300… 400 мм - длиной 3200 мм Изготовление безнапорных труб, так же как и напорных, начинают с подготовки форм: очистки, смазки и сборки. Внутрь форм вставляют арматурные каркасы, а затем надевают днища форм. После этого форму с каркасом устанавливают на центрифугу. При вращении центрифуги внутрь формы с помощью ленточного питателя или ложечного бетоноукладчика подают бетонную смесь, которая ложится ровным слоем по всей поверхности формы. После укладки бетона формы с изделием с помощью крана или кантователя устанавливают раструбом вниз в вертикальном положении на пост пропаривания. Пропаривание ведут по такому же режиму, как и для напорных труб. После приобретения бетоном 70% проектной прочности форму приводят в горизонтальное положение, разбирают, извлекают из нее изделие и направляют на склад готовой продукции. Производство железобетонных безнапорных труб можно вести и в вертикальных установках. Установка для изготовления труб диаметром 400 и 500 мм состоит из формовочной рамы с полуформой, находящейся в вертикальном положении, и горизонтальной рамы с поддоном. Пустотообразователи с виброголовкой заглублены в колодце. На очищенный и смазанный поддон укладывают два арматурных каркаса. Затем формовочную раму переводят в горизонтальное положение и соединяют с поддоном замковым механизмом. Далее формовочную и горизонтальную рамы возвращают в первоначальное положение; После подачи пустотообразователя в формы через направляющие и раструбообразователи начинают укладывать бетон. Процесс формования длится 15 мин, затем извлекают пустотообразователи и формовочную раму устанавливают в горизонтальное положение: Верхнюю полуформу возвращают в вертикальное положение, а поддон с отформованным изделием перемещают в камеру пропаривания. На одной установке одновременно формуют две раструбные трубы. Безнапорные трубы диаметром 700 мм и длиной 5000 мм можно изготовлять на поточно-конвейерной линии с помощью центрифугирования. Изготовление труб начинают с процесса навивки на сердечники напряжения продольной арматуры. Затем на специальном стенде собирают спиральную напряженную арматуру и скрепляют ее с продольной. После этого сердечник с арматурным каркасом укладывают в полуформу, установленную на тележке формовочного конвейера. Бетонную смесь укладывают бетоноукладчиком, затем устанавливают верхнюю полуформу, и собранная форма поступает на центрифугу. При скорости центрифугирования 60 об/мин бетон распределяется по внутренней поверхности формы. При повышении скорости до 380 об/мин бетон уплотняется и химически связанная вода удаляется через фильтрующее полотно, которым выкладывается форма изнутри. Далее форму устанавливают на конвейер, а затем на кантователь и распалубливают. Тележка и подвешенный к ней сердечник с трубкой перемещаются к тоннельной пропарочной камере непрерывного действия, состоящей из двух параллельно расположенных секций. Рис. 3 Схема производства, труб по поточно-агрегатной технологии
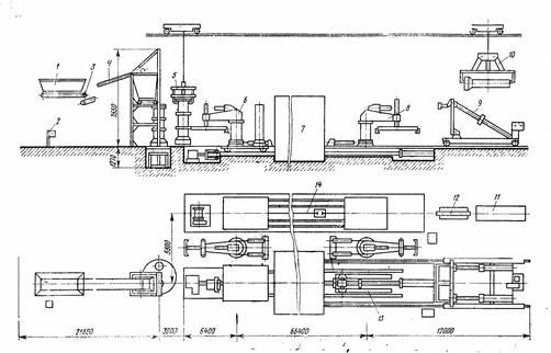
1 - форма для труб диаметром 1000 мм; 2 - рама: 3 - форма для труб диаметром 1200 мм; 4, 5 - мостовые краиы; 6 - автоматический "ах ват грузоподъемиостью 8 т для труб длииой 4120 мм: 7 - стенд для гидроиспыtаииЯ железобетонных труб диаметром 1000 мм: 8 - с,еид для гидроиспытаиий железобетоииых труб диаметром 1200 и 1~00 мм: 9 - бетоиораздатчик: 10 - стеид для бетонирования; 11 - поддон; 12 - промежуточный склад. труб; 13 - участок хранения форм; 14 - формы для труб диаметром 1500 мм Каждая секция камеры по длине разбита на три зоны: 1 - разогрев изделия до 700С, 2 - выдержка при температуре 700 С и 3 – остывание изделия до 200 С. У выходного конца камеры передаточная тележка передает трубу на кантователь, который поднимает трубу для расцепки с транспортной тележкой и поворачивает ее в горизонтальное положение. Трубу укладывают на катки самоходной тележки и перемещают к съемнику стержня, где стержни арматурного каркаса обрезают и тем самым передают напряжение на бетон. Продолжительность технологического процесса 22 ч. При поточно-агрегатной схеме производства каждая труба и форма последовательно проходят соответствующие посты технологической линии (рис. 3). Такая схема наиболее приемлема при центробежном способе производства труб. Загрузку центрифуг бетонной смесью осуществляют ложковыми питателями, бетононасосами или бетонораздатчиками, а пропаривание труб производят в горизонтальном или вертикальном положении. С технико-экономической стороны. себя оправдывает двухступенчатое пропаривание труб с предварительным пропариванием труб в течение 2…3 ч. Последнее обеспечивает получение бетона с прочностью 6…8МПа и позволяет производить распалубку форм. Производство труб методом радиального прессования. Этот метод по сравнению с центрифугированием и виброформованием более производителен, экономичен, его легче механизировать и автоматизировать, а это приводит к улучшению качества выпускаемой продукции. Способ радиального прессования заключается в безвибрационном уплотнении бетонной смеси роликовой головкой. Роликовая головка состоит из основания, на котором свободно закреплены ролики, распределительного диска с разбрасывающими лопатками. На роликах также имеются разбрасывающие лопатки. Для заглаживания внутренней поверхности стенки трубы служит цилиндрическая часть основания головки. Уплотнение бетонной смеси происходит следующим образом. С помощью центробежных сил вращающихся лопаток набрызгивается бетонная смесь, образующая слабоуплотненную стенку трубы. Далее роликами производится укатка бетона предварительно отформованной стенки трубы. Цилиндрической частью основания головки заглаживается внутренняя поверхность трубы. Раструбная часть трубы уплотняется вибрированием. Трубы по конструкции стыкового соединения бывают: а) раструбные со стыковым соединением, уплотняемым герметиками; б) раструбные со стыковым соединением, уплотняемым резиновым кольцом; в) фальцевые со стыковым соединением, уплотняемым герметиками. К трубам предъявляются требования по коррозионной стойкости, морозостойкости, водонепроницаемости, бетон должен иметь отпускную прочность, равную 70...90% марочной. Испытания на водопоглащение и водонепроницаемость проводят один раз в три месяца, на морозостойкость - один раз в шесть месяцев. Морозостойкость бетона определяется по ГОСТ 10060-76. Арматурные каркасы раструбных труб диаметром 500...1500 мм при формовании способом радиального прессования изготовляют на станке СМЖ -117 А. Станок имеет планшайбу с приводом вращения, сменные цилиндрические и конусные оправки, тележку, на которой размещается конусная оправка; механизм перемещения, используемый для протягивания продольных стержней; сварочный агрегат, установленный на тележке; механизм подачи спиральной арматуры; диск для укладки продольных стержней. Для изготовления арматурных каркасов труб с диаметром свыше 1400 мм применяют станок СМЖ-420. Для радиального прессования труб – станки СМЖ-194, СМЖ-329 и СМЖ-419 и для производства колец - станок СМЖ-542. В состав станка СМЖ-194, используемого для формования труб диаметром 300...600 мм, входят: механизм вращения и подъем роликовой головки, воронка, раструбообразователь, питатель, поворотный стол, насосная станция, электрооборудование, станина, бункер; комплект оснастки для формования труб различных диаметров (формы, роликовые головки, поддоны, переходные и сменные кольца для воронки, поворотного стола и раструбообразовaoтеля). В посадочное гнездо поворотного стола устанавливают форму с поддоном и перемещают на ось формования. Роликовая головка и воронка находятся в верхнем положении, а платформа фиксируется фиксаторами и приподнимает вибростол с поддоном. Подающаяся на роликовую головку бетонная смесь отбрасывается на поддон, которому передается вибрация от вибростола. По окончании формования раструбной части трубы вибраторы отключают, роликовая головка поднимается, вибростол опускается. Затем формуют цилиндрическую часть трубы. Для обеспечения качественной поверхности втулочной части трубы используют возвратно-поступательное перемещение затирочного кольца воронки. Во время формования следующей трубы происходит сброс излишков бетонной смеси с роликовой головки. Отформованная готовая трубка в форме после подъема воронки и поворота стола переводится в зону съема, а на ее место устанавливают новую форму. Формование на станке СМЖ-194 осуществляют как в ручном, так и в автоматическом режиме. Для формования труб диаметром 80...1200 мм применяют станок СМЖ-329. Конструкция станка принципиально не отличается от станка СМЖ-194. Особенность состоит лишь в том, что поворотный стол за счет выноса оси формования расположен перед станком. Для формования труб диаметром 1400...2400 мм предназначен станок СМЖ -419. Станок имеет небольшую высоту за счет использования катков, служащих направляющими для перемещения механизма вращения, расположенных в два яруса в поперечной раме. Такое конструктивное решение облегчает обслуживание станка, уменьшает его металлоемкость. Для формования колец колодцев диаметром 700...1500 мм с высотой 890 мм используют станок СМЖ-512. . Использование станков радиального прессования значительно расширило номенклатуру выпускаемых изделий. На станке СМЖ-329 выпускают раструбные и фальцевые трубы диаметром 500...1200 мм, кольца - 700... 1000 мм. Особенности технологии изготовления радиально-прессованных труб определяют режимы тепловлажностной обработки. В тоннельных камерах непрерывного действия трубы на тележках перемещаются по рельсовым путям. Рис. 4. Технологическая линия по производству труб методом радиального прессования
1 - приемный бункер для бетона; 2 - пульт управления; З, 4 - горизонтальные и наклонные ленточные конвейеры; 5 - автоматический захват для транспортирования форм и распалубки; 6 - поддон-тележка для накопления труб; 7 - камера тепловой обработки; 8 - манипулятор для транспортирования поддонов-тележек в камеру тепловой обработки; 9 - кантователь для перевода труб в горизонтальное положение; 10 - автоматический захват для переноса труб с кантователя на пост выдержки и готовой продукции; 11, 12 - стенды для испытания труб; 13 - устройство для перемещения поддонов-тележек; 14 - привод возврата поддонов-тележек из зоны кантования в зону распалубки. Для обеспечения необходимого режима тепловой обработки камера разделена на 4 зоны: предварительной выдержки, подъема температуры, изотермической выдержки, охлаждения. Изготовление труб диаметром 300...600 мм может производиться на опытно-промышленной линии, на которой организовано их производство способом радиального прессования (рис. 4). В качестве оборудования используют механизмы для подачи бетонной смеси, транспортеры поддонов-тележек и форм труб, стенды для испытания труб и пр. Толщина защитного слоя труб из бетона не менее 200 может быть уменьшена на 5 мм, но должна быть не менее 20 мм. В элементах, имеющих подрезку у опор, толщина защитного слоя нижней продольной арматуры на длине подрезки должна быть не больше толщины защитного слоя этой арматуры в пролете элемента. 2.6 Транспортирование бетонной смеси
Перемещение бетонной смеси и растворов от бетоносмесительного цеха к месту их потребления является одной из важнейших задач современной организации производства сборных ж/б конструкций. Выбор способа транспортирования бетонной смеси может оказать существенное влияние на величины ее технологических показателей: состава смеси, принимаемой крупности заполнителя, удобоукладываемости и др. На заводах и полигонах сборного ж/б наиболее распространены следующие способы транспортирования бетонных смесей: мостовыми кранами или автокранами в бадьях; самоходными бетоноразвозчиками, перемещающимися по рельсовым путям; ленточными транспортерами; пневматическими устройствами. Основными факторами для вида транспортирования бетонной смеси является интенсивность ее подачи, дальность транспортирования и высота выгрузки смеси. Наиболее распространенными транспортными средствами для внутрицехового перемещения бетонной смеси являются бетоноразвозчики различной конструкции, которые обычно перемещаются по бетоновозной эстакаде для выдачи смеси в бункера технологических линий или непосредственно в бункера бетоноукладчиков. Для перемещения жестких и малоподвижных смесей широко применяют ленточные транспортеры, оборудованные самоходными сбрасывающими тележками. Они дают возможность в 2-3 раза увеличить интенсивность подачи бетонной смеси по сравнению с другими видами транспорта, что в некоторых случаях имеет решающее значение (например, для подачи смеси в кассетные формы). Транспортирование бетонной смеси пневмотранспортной установкой применяют при формовании панелей в кассетных формах, в производстве опор для линий электропередач и др. Потери бетонной смеси при ее подаче пневмотранспортом, ленточными конвейерами или бадьями, а также при формовании изделий не должны превышать 1,5% от общего объема смеси. 3. Расчетная часть
3.1 Технологические расчеты бетоносмесительного цеха
3.1.1 Расчет состава бетона Проектирование состава бетона для подстропильных и подкрановых балок производим из условия получения после тепловой обработки 70, 80 или 100%-ной проектной прочности бетона. За проектную прочность принимаем прочность бетона в возрасте 28 суток. Балки будем производить из тяжелого бетона с маркой по прочности М 300. В качестве материалов для бетона балок принимаем: ПЦ с прочностью М 400 и плотностью ρц =1,3 кг/м3 , песок средней крупности с водопотребностью 7% и плотностью ρп =2,63 кг/м3 , гранитный щебень с крупностью 40 мм и плотностью ρщ =2,6 кг/м3 и γщ =1,48 кг/л. 1. Определяем В/Ц в зависимости от требуемой прочности, срока и условий твердения бетона. Для обычного бетона В/Ц>0,4 В/Ц= где А – эмпирический коэффициент, учитывающий влияние заполнителей и других факторов на прочность бетона; Rб – прочность бетона в возрасте 28 суток; Rц – активность цемента. В/Ц= 2. Определяем расход воды в зависимости от требуемой подвижности бетонной смеси по графикам (рис 4). Необходимо также учесть водопоглащение крупного заполнителя, так как оно более 0,5% по массе (7%). Так, ориентировочный расход воды составляет 178 л/м3 .
3. Определяем расход цемента по формуле: Ц=В/(В/Ц), где Ц – расход цемента; В – расход воды. Ц=178/0,54=330 кг/м3 4. Пустотность щебня составляет: Пщ =1-(γщ /ρщ ), где Пщ – пустотность щебня; γщ и ρщ - плотность щебня. Пщ =1-(1,48/2,6)=0,43 По таблице «Оптимальные значения коэффициента раздвижки α для пластичных бетонных смесей (Вп =7%)» путем интерполяции находим коэффициент раздвижки α=1,38. 5. Определяем расход щебня: Щ= Щ= 6. Расход песка: П=(1000-(Ц/ρц +В+Щ/ρщ ))ρп П=(1000-(330/3,1+178+1273/2,6))2,63=594 кг/м3 7. На пробных замесах проверяют подвижность (осадку конуса) бетонной смеси, определяют прочность бетонной смеси: Ц+В+П+Щ=330+178+594+1273=2375 кг/м3 3.1.2 Расчет потребности расхода сырьевых материалов
1. В год необходимо : 1) Бетонной смеси=2375∙40000=95000000 кг=95000 т 2) Портландцемента=330∙40000=13200000 кг=13200 т 3) Воды=178∙40000=7120000 кг=7120 т 4) Щебня=1273∙40000=50920000 кг=50920 т 5) Песка=594∙40000=23760000 кг=23760 т Учитывая технологические потери, Бет.см=95000∙1,5=142500 т 2. Расчет на сутки: 1) Бет.см=142500:253=563 т 2) ПЦ=13200:253=52 т 3) В=7120:253=28 т 4) Щ=50920:253=201 т 5) П=23760:253=94 т 3. На одну смену приходится: 1) Бет.см=563:2=281,5 т 2) ПЦ=52:2=26 т 3) В=28:2=14 т 4) Щ=201:2=100,5 т 5) П=94:2=47 т 4. Расчет на час: 1) Бет.см=281,5:8=35,2 т 2) ПЦ=26:8=3,3 т 3) В=14:8=1,8 т 4) Щ=100,5:8=12,6 т 5) П=47:8=5,9 т Все полученные данные сводим в таблицу 4 Таблица 4
3.1.3 Расчет и проектирование складов заполнителей Вместимость склада заполнителей определяем по формуле: Vз =Qсут ∙Тхр ∙1,2∙1,02, где Qсут – суточный расход материалов (т); Тхр – нормативный запас хранения материалов (сут), учитывая, что заполнитель доставляется автотранспортом, выбираем запас 6 суток; 1,2 – коэффициент разрыхленя; 1,02 –коэффициент разрыхления, учитывающий потери при транспортировке. Для каждого вида заполнителя вместимость склада рассчитываем отдельно. Vз (Щ)=201∙6∙1,2∙1,02=1476,1 т Vз (П)=94∙6∙1,2∙1,02=690,3 т Тогда общая вместимость склада: Vз (Щ)+Vз (П)=1476,1+690,3=2166,4 т Так как производительность данного бетоносмесительного цеха составляет 40000 т, то применяем склады силосного типа. 3.1.4 Расчет и проектирование склада цемента Вместимость склада цемента рассчитывается по формуле: V= где Qсут – суточный расход цемента; Тхр – нормативный запас хранения цемента, учитывая, что цемент доставляется автотранспортом, выбираем запас 6 суток; 0,9 – коэффициент заполнения емкостей V= По таблице «Техническая характеристика автоматизированных складов» принимаем: Количество силосов=6 шт Расход сжатого воздуха=10,5 м3 /мин Мощность=60,8 кВт Число рабочих в смену=1, всего=2 3.1.5 Расчет и проектирование бетоносмесительных цехов Определение годовой производительности Qг (т) бетоносмесителя Qг =Qч ∙Тсм ∙N∙Тф , где Qч – часовая производительность бетоносмесителя (т); Тсм – время работы в смену (ч); N – количество смен; Тф – годовой фонд времени работы оборудования (сут). По технической характеристике бетоносмесителей выбираем гравитационные бетоносмесители СБ-80: объем готового замеса – 330 л, вместимость по загрузке – 500 л, наибольшая крупность заполнителя – 70 мм, частота вращения барабана – 18 мин, мощность электродвигателя – 4 кВт, габаритные размеры – 2,55х2,02х2,85 м, масса – 1900 кг. Часовая производительность Qч (т) бетоносмесительной установки: Qч
= где V – объем смесительного барабана (м3 ); nз – число замесов в час; Кв – коэффициент использования времени (Кв =0,91); Кн – коэффициент неравномерности выдачи бетонной смеси (Кн =0,8); m – коэффициент выхода бетонной смеси (принимаем m=0,7) Qч
= Qг =6,37∙8∙2∙253=25785,76 т Количество бетоносмесителей nб , необходимое для обеспечения заданной годовой производительности Пг (тыс. т), определяем по формуле: nб
= Принимаем количество бетоносмесителей 2 шт. Автоматизированные установки со скиповым подъемником и двумя смесителями. Количество отсеков для щебня - 2, для песка – 2, для цемента – 2. При этом установленная мощность двигателя - 68 кВт, численность работающих - 4 человека, площадь в плане – 87 м2 , высота – 12 м. 3.2 Технологические расчеты формовочного цеха Годовая производительность Пга агрегатно-поточной технологической линии определяется по формуле: Пгс
= Вр – расчетное количество рабочих суток в году – 253; τ – продолжительность рабочей смены – 8 ч; h – количество рабочих смен в сутки – 2; n – количество одновременно формуемых изделий, шт.; V – объем каждого изделия – 2,4 м3 ; Тф – максимальная продолжительность ритма работы линии – 15 мин. Пга
= Заданная производительность цеха Пг составляет 40 тыс. м3 в год и обеспечивается следующим количеством формовочных постов nа : nа
= Принимаем 2 формовочных поста для обеспечения заданной производительности цеха 40000 м3 в год и запасного фонда. Потребность в формах nф для одной технологической линии агрегатно-поточного способа производства определяется по формуле, шт.: nф = 1,05·60· Т об ф /Тф Потребность в формах nфа для обеспечения заданной производительности ПГ определяется по формуле, шт.: nфа = nф ∙ nа , или по формуле: nфа = (1,05 ·1000· ПГ • Тобф )/(Vизд ∙Вр ∙τ∙h) где 1,05 - коэффициент, учитывающий ремонт форм; ПГ - заданная годовая производительность цеха, 40 тыс. м3 ; Тобф - продолжительность режима оборота формы, ч: Тобф =tтво +tр +tа +tф +tз +tв +tо , tтво - продолжительность режима тепловой обработки (предварительное выдерживание, подъем температуры, изотермический про грев и остывание изделий), 8 ч; tр = 0,2 ч - продолжительность распалубки, чистки и смазки формы; tа = 0,05 ч - » установки и при необходимости натяжения арматуры; tф = 0,25 ч - продолжительность формования изделий; tз - продолжительность загрузки форм в камеру тепловой обработки и закрытия крышки, ч: tз
= m - количество форм в камере тепловой обработки, 5 шт; tв = 0,1m - продолжительность выгрузки форм из камеры, '1; tо = 0,05 ч - » ожидания формы перед формованием, ч: Vизд - объем бетона одного изделия, 2,4 м3 ; Вр - расчетное количество рабочих суток в году - 253; τ - продолжительность рабочей смены - 8 ч; h - количество рабочих смен в сутки - 2. Потребность в формах nф одной технологической линии агрегатно-поточного способа, на которой, например, изготавливаются безнапорные трубы объемом 2,4 м3 и длиной 3,2 м составит, шт.: nф
= Принимаем 33 формы для обеспечения производительности одной технологической линии (формовочного поста). Для обеспечения заданной производительности Пг, 40 тыс. м3 изделий в год потребуется следующее количество форм, шт.: nфа = nф ∙ nа = 32,76 ∙ 1,03 = 33,74 Количество камер тепловой обработки периодического действия (ямных камер) для одной технологической линии определяется по формуле, шт.: nк
= где, τ - продолжительность рабочей смены - 8 ч; h - количество рабочих смен в сутки - 2; Тобк - средняя продолжительность оборота камеры, ч: Тобк = tот + tр + tз + tтво tот - продолжительность снятия КрЫЦlки - 0,1 ч; tp - » разгрузки и очистки камеры - 0,33 ч; tз - » загрузки форм в камеру тепловой обработки и закрьrrия крышки, ч; tз = tтво - продолжительность режима тепловой обработки (предварительное выдерживание, подъем температуры, изотермический про грев и остывание изделий), например, 8 ч; Тф - цикл формования, мин; 15 мин; m - количество форм в одной камере, 5 шт. Потребность в кaмepах тепловой, обработки nка для обеспечения заданной производительности ПГ составит, шт.: nка = nк ∙ nа Количество камер тепловой обработки для одной технологической линии составит, шт.: nк
= Принимаем 5 камер тепловой обработки. Потребность в камерах тепловой обработки для обеспечения заданной производительности, например 40 тыс. м3 в год составит, шт.: nка = nк ∙ nа = 5,16 ∙ 1,03 = 5,32 Принимаем 6 ямных камер для обеспечения заданной производительности цеха 40 тыс. м3 в год. Размеры камеры тепловой обработки (ямной камеры) для агрегатно-поточного способа производства определяются по следующим формулам длина камеры: ℓк = mг ∙ ℓ + (mг +1)∙ ℓ1 где mг - количество форм по длине камеры, шт.; ℓ - длина формы, м; ℓ1 - расстояние между формами и стенкой камеры, ℓ1 = 0,4-0,5 м; ширина камеры: bк = n1 ∙ b + (n1 + 1)b1 , где n1 - количество изделий по ширине камеры; b - ширина формы, м; b1 - расстояние между формами и стенкой камеры, b1 = 0,35-0,4 м; высота (глубина) камеры: hг = m(h + h1 ) + h2 + h3 где m - число форм по высоте камеры, шт.; h - высота формы, м; h1 - расстояние между формами, м; h1 = 0,2 м. h2 - » » формой и дном камеры, м; h2 = 0.15 м; h3 - » » верхним изделием и крышкой камеры, м; h3 = 0,05 м. Размер ямной камеры, например, для тепловой обработки плит' перекрытий размером 3х6х0,14 м при размере формы 3,4х6,4х0,35 м и одном изделии, в плане составит: ℓк = 2∙4+(2+1)0,5 = 9,5 м bк = 1∙2+(1+1)0,4 = 2,8 м hк = 2(2+0.2)+0,15+0,05 = 4,6 м Коэффициент загрузки камеры считаем по формуле: Кз
= где m - количество изделий в камере, шт.; v - объем бетона одного изделия, м3 ; vк - » камеры, м3 . Коэффициент использования объема камеры определяется по формуле Кисп
= Vф – объем формы, м3 . Принимаем 6 ямных камер размером 9,5х2,8х4,6 м, с коэффициентом загрузки 0,1 и коэффициентом использования 0,65. 4. Охрана труда Многие цехи в результате выполнения технологических процессов создают значительное выделение пыли, конвекционного или лучистого тепла, паров и вредных газов; в формовочных цехах используются вибрационные механизмы, которые оказывают отрицательное влияние на состояние здоровья рабочего, они же являются источником шума и т. д., поэтому на предприятиях в целях обеспечения безопасных и нормальных санитарно-гигиенических условий труда необходимо строго руководствоваться правилами техники безопасности и производственной санитарии, действующими на каждом заводе. В цехах, где по технологическим условиям ворота открываются на продолжительное время (более чем на 40 мин), или в районах, где расчетная температура воздуха ниже -200 С, необходимо предусматривать воздушные завесы. Во всех производственных и вспомогательных зданиях должна предусматриваться естественная или принудительная вентиляция. В целях предотвращения загрязнения воздуха помещений с вредными выделениями: оборудование, приборы, трубопроводы и другие источники, выделяющие теплоту, должны быть теплоизолированы; агрегаты и оборудование, при эксплуатации которых происходит влаговыделение, должны быть укрыты и изолированы; технологические процессы, связанные с выделением пыли, следует изолировать так, чтобы их работа осуществлялась без участия людей, а выделяющиеся технологические выбросы в виде пыли, паров и вредных газов перед выпуском в атмосферу должны быть подвергнуты очистке. В цехах, где используются вибрационные механизмы, должны быть приняты меры по устранению воздействия вибрации и снижению уровня шума. При работе вибрационных механизмов шум характеризуется уровнем звукового давления в децибелах, а вибрация - виброскоростью. Звуковое давление измеряют шумометром на расстоянии 1 м от источника шума и 1.5 м от пола, Состав частот производственного шума определяют с помощью анализатора спектра шума АШ-2Ми др., а амплитуду колебаний в пределах 0,05-1,5 мм в диапазоне частот 15-200 Гц - виброметром ВИП-4. Виброскорость определят по формуле V = 2πAf, где А - амплитуда; f - частота колебаний. Уровень шума и вибрации на рабочих местах не должен превышать допустимые пределы. В противном случае необходимо устраивать звуковую и вибрационную изоляцию помещений, рабочих мест и машин, например установку виброплощадок на массивные фундаменты; изолированные от пола упругими прокладками, установку машин с вибраторами на пружинные или резиновые виброизоляторы, обязательное крепление форм на виброплощадках и ударных столах, укрытие виброплощадок акустическими кожухами, облицовку, приямков звукопоглощающими материалами, своевременный, профилактический осмотр, ремонт и наладку вибрационного оборудования. Рабочие должны использовать обувь на толстой подошве из губчатой резины, противошумные наушники (антифоны), рукавицы с прокладкой пенопласта. В качестве индивидуальной защиты в помещениях с большой концентрацией пыли необходимо пользоваться респираторами Ф-45 или ПРБ-1,· герметичными защитными очками и спецодеждой. Строгое соблюдение правил техники безопасности должно соблюдаться при работе на основных технологических переделах. В арматурном цехе при ведении сварочных работ необходимо: заземлять сварочные аппараты, Применять очки и щитки со светофильтрами, на рабочие места укладывать резиновые коврики, ограждать сварочные посты защитными экранами, а при работе правильно-отрезных станков их кожух подключать к местной системе аспирации. Формование изделий осуществлять при включенной звуковой сигнализации, управление формовочными машинами должно быть дистанционным. При тепловой обработке изделий следует не допускать утечки пара из камер, загружать и выгружать камеры с помощью автоматических траверс. Спецификация
Литература 1. Б.В. Стефанов «Технология бетонных и железобетонных изделий»/ Высшая школа/ 1972 г. 2. Ю.М. Баженов, А.Г. Комар «Технология бетонных и железобетонных изделий»/ Стройиздат/ 1984 г. 3. Справочник по производству сборных железобетонных изделий/ Стройиздат/ 1982 г. 4. Г.И. Цителаури «Проектирование предприятий сборного железобетона»/Высшая школа/ 1986 г. 5. К.В. Сахновский «Железобетонные конструкции»/ Госстройиздат/ 1961г. |
|||||||||||||||||||||||||||||||||||||||||||||||||||||||||||||||||||||||||||||||||||||||



, где