Реферат: Товароведные характеристики и экспертиза кафельной плитки
|
Название: Товароведные характеристики и экспертиза кафельной плитки Раздел: Рефераты по культуре и искусству Тип: реферат | |||||||||||||||||||||||||||||||||||||||||||||||||||||||||||||||||||||||||||||||||||||||||||||||||||||||||||||||||||||||||||||||||||||||||||||||||||||||||||||||||||||||||||||||||||||||||||||||||||||||||||||||||||||||||||||||||||||||||||||||||||||||||||||||||||||||||||||||||||||||||||||||||||||||||||||||||||||||||||||||||||||||||||||||||||||||||||||||||||||||||||||||||||||||||||||||||||||||||||||||||||||||||||||||||||||||||||||||||||||||||||
ФЕДЕРАЛЬНОЕ АГЕНСТВО ПО ОБРАЗОВАНИЮ САНКТ-ПЕТЕРБУРГСКИЙ ГОСУДАРСТВЕННЫЙ Кафедра систем технологий и товароведения КУРСОВАЯ РАБОТА по дисциплине «ТОВАРОВЕДЕНИЕ И ЭКСПЕРТИЗА ТОВАРА» на тему: Товароведные характеристики и экспертиза Кафельной плитки Илларионова Дарья Ивановна Группа 363 Руководитель курсовой работы Андреев Владимир Викторович Доц.каф.систем технологий и товароведения САНКТ-ПЕТЕРБУРГ 2010г. Студент: Илларионова Д.И. Группа: 363 Руководитель курсовой работы: Андреев Владимир Викторович. Дата выдачи Задание выдал /подпись/ задания Задание принял /подпись/ Результат промежуточной аттестации: 1. Дата проведения прошел Руководитель аттестации №1 не прошел /подпись/ 2. Дата проведения прошел Руководитель аттестации №2 не прошел /подпись/ 3. Дата проведения прошел Руководитель аттестации №3 не прошел /подпись/ Отметка о сдаче готовой курсовой работы на кафедру: Работа принята " " май 2010 г. Руководитель курсовой работы ________________ /подпись/ Рецензент курсовой работы: ____________________________ Отметка курсовой работы и замечания рецензента:
Работа оценена на __________________ " " май 2010 г. Рецензент /подпись/ Результат защиты курсовой работы " " май 2010 г. Работа защищена на оценку _______________________ Председатель комиссии ___________________________ Работа сдана на кафедру лаборанту " " май 2010 г. Отмечено в журнале учёта ________________________ Оглавление Глава 2. Потребительские свойства товара. 6 Глава 3. Частная классификация и ассортимент товара.11 Глава 4. Классификация и кодирование товаров.14 Глава 5. Факторы, формирующие качество товара.23 Глава 6. Факторы, влияющие на сохранность качества товара. 27 Глава 7. Стандарты на товар. 29 Глава 8. Средства информации о товаре (маркировка).76 Список использованной литературы:110 Глава 1. ВведениеИстория керамической плитки начинается с античных времен. Археологи установили, что плитка существовала уже в 13 веке до н.э. в Древнем Египте. Мозаичными плитками были покрыты полы домов зажиточных горожан в Древней Греции и Риме. В Европе художественная керамическая плитка стала популярна в XIV-XVII веках. А в середине XVIII века началось ее промышленное производство – открылась первая фабрика по выпуску плитки. С тех пор процессы изготовления усовершенствовались во много раз. За эти века никаким научно-техническим революциям не удалось вытеснить плитку из нашей жизни. Конечно, сегодня существует множество других материалов для облицовки стен и полов. Но во многих случаях керамическая плитка по своим свойствам оказывается просто незаменимой. Незаменимость эта объясняется ее широким диапазоном свойств: · Прочность. Керамическая плитка – очень прочный и твердый материал. Предел ее прочности при так называемой «сосредоточенной нагрузке» в 10–20 раз превосходит возможности цемента или железобетона. И может достигать 300 Ньютонов/мм2 . Если пересчитать в более понятные единицы, то получится просто фантастическая цифра – 30000 тонн/м2 .! Правда, это удивительное свойство плитка проявляет только при условии правильной укладки. · Жесткость. Керамическая плитка не гнется и не деформируется даже при очень высоких нагрузках на разрыв. И чем толще плитка, тем выше этот показатель. · Теплоемкость и теплопроводность. Благодаря этим свойствам плитка быстро вбирает и проводит тепло. Это хорошо, если керамикой облицованы печи и камины. Но если наступить на плитку босой ногой, сразу ясно: это материал холодный. Для наших широт это, конечно, минус (его, правда, легко устранить, если сделать обогреваемый пол или ходить все время в домашней обуви). А вот для жарких стран – то, что надо. · Огнеупорность и огнестойкость. Именно благодаря огнеупорности плитку можно использовать для облицовки печей и каминов. Огнестойкость означает, что она вообще не горит и, более того, защищает от огня облицованную поверхность. Причем при нагревании никаких токсичных газов не выделяет. · Антистатичность и электроизоляционные свойства. Это означает, с одной стороны, что вас не ударит разрядом статического электричества, как это бывает при хождении по синтетическим поверхностям (линолеуму, ковролину). А с другой стороны, керамическая плитка не проводит электрический ток. · Химическая стойкость. Керамическая плитка обладает «иммунитетом» к разрушающему воздействию химически активных веществ (боится только фтористо-водородной кислоты). · Устойчивость цвета. Плитка не чувствительна к воздействию солнечных лучей. Она не изменяет своего цвета, чего не скажешь о других материалах (бумажных обоях, пластмассе, тканях…). · Гигиеничность. Керамическая плитка – один из самых гигиеничных материалов. На ее поверхности не «гнездятся» бактерии и микробы. Недаром плиткой облицовывают стены и полы в операционных, где чистота – залог здоровья в прямом смысле слова. · Декоративность. Руководствуясь по большей части именно этим критерием, люди покупали и покупают плитку. Так же несколько слов необходимо сказать о керамическом граните. Керамический гранит - один из видов керамической плитки. Как обычная плитка он может использоваться в строительстве и отделочных работах. Но керамогранитявляется не просто разновидностью керамической плитки - это новая технология изготовления плитки. Принципиальное отличие керамического гранита - метод его окрашивания: обыкновенная плитка, которая готовится из массы белого и красного цвета, (в зависимости от сорта глины) после обжига покрывается красителями для получения узора, а керамический гранит готовится путем смешивания глины и красителей, что позволяет добиться идеального сходства с такими природными материалами, как гранит, камень, мрамор. Во всем мире керамогранит широко применяется в строительстве общественных зданий и в отделочных работах. Он активно используется для покрытия больших поверхностей полов в помещениях с большой проходимостью. Глава 2. Потребительские свойства товараВ этой главе речь пойдет о специфических особенностях кафельной плитки. Будут рассмотрены такие показатели как назначение, надежность, безопасность, эстетичность. 1. Назначение Назначение плитки – это использование ее как материала для отделки ванной, кухни, коридора, бассейнов, саун, каминов, внешних фасадов зданий и т.д. Но не смотря на то что кафельная плитка имеет столь широкий круг применения, она разделяется на различные виды подходящие для различных целей. Так что для потребителя важнейшим является выбор плитки. Одним из параметров для выбора плитки является подбор плитки непосредственно для определенного помещения, так как плитка для различных помещений отличается различными характеристиками. Самыйосновнойкритерийвыбораоблицовочногоматериала—этоназначениепомещения. Нельзяиспользовать однуитужеплиткудляоблицовкиразныхпомещений, неговоряужеоботделкефасадовилимощении. Очевидно, чтованнаякомнатаикухня—помещениясповышеннойвлажностьювоздуха, поэтомудляихоблицовкине подходятгипсовыеплиткиилиплиткиизгигроскопичныхгорныхпород. Ктомуженакухнепостоянносуществуетопасностьконтактаоблицовкистакимихимическиактивнымивеществами, какжир, масло, органическиекислоты, чтотакже необходимоучитыватьпривыбореплитки. Дляоблицовки местсповышенноймеханическойнагрузкой, например, пола налестничнойклеткеиливкоридоре, необходимовыбирать плиткуизпрочныхматериалов, например, керамогранита. Адлянаружныхоблицовочныхработгодятсятолькоморозостойкиематериалы. Пренебрежениеанализомусловийэксплуатацииоблицовочногопокрытиячасточреваторискомегобыстрогоразрушения, дажеесливыбраннаявамиплиткасамапосебеотличаетсявысокимитехническимихарактеристиками. Сдругойстороны, нестоитиспользоватьплиткистемиэксплуатационнымипараметрами, которыененужны, избыточны. Вэтомслучаевырискуетевыброситьденьгинаветер, заплативзабесполезныйдовесок ввидеморозостойкости, водостойкости, ударопрочности ит.п., которыесовсемнетребуютсядляоблицовки. 2. Надежность Показатель износостойкости очень важен, если вы решили положить плитку на пол. У напольной плитки он должен быть очень высоким. По европейским и международным стандартам существует 5 групп плитки. Они обозначаются по названию метода испытания от PEI-I до PEI-V. Первая группа наименее устойчива к истиранию, пятая – самая устойчивая. Испытания на истирание проводятся очень строго. Для этого плитку помещают в устройство, напоминающее жернова мельницы, посыпают на нее абразивный состав (мелкие металлические шарики и другие твердые зернистые материалы) и подают воду. При вращении «жерновов» создается искусственное истирание. В результате становится ясно, сколько вращений может выдержать поверхность плитки и при этом не повредиться (см. таблицу). Истираемость глазурованной керамической плитки:
Показатель твердости по Моосу: Твердостью называют свойство материала сопротивляться проникновению в него другого, более твердого тела. Для ее оценки используют шкалу, представленную десятью минералами, где каждый последующий своим острым концом царапает предыдущий. Шкала включает их в порядке возрастания твердости от 1 до 10: 1 - тальк, 2 - гипс, 3 - кальцит, 4 - флюорит, 5 - апатит, 6 - полевой шпат, 7 - кварц, 8 - топаз, 9 - корунд, 10 - алмаз. Материалы, начиная с шестого, легко царапают стекло и применяются в качестве абразивных и шлифующих. А для облицовочной настенной плитки достаточно твердости апатита, его поверхность можно повредить стальным ножом, и то только под сильным нажимом. То есть, другими словами, для классификации плитки по Моосу используются шкала с 5 по 9. Материал 10 не входит, так как плитки соответствующей ей не существует. Термическая стойкость глазури: Если плитка положена в ванной или на кухне, то ей не избежать резких температурных перепадов: контрастный душ или жар от плиты одновременно с холодным воздухом из форточки. Когда коэффициент температурного расширения глазури не согласован с "черепком", она находится под действием остаточных напряжений, которые значительно возрастают при резкой смене температуры и приводят к образованию трещин, отколов, которые легко обнаружить, смочив глазурованную поверхность красителем, - он тотчас заполнит и проявит микротрещины. Согласно ГОСТ 6141-91 глазурованные керамические плитки для внутренней облицовки стен должны выдерживать нагрев до +125о С и резкое охлаждение в воде при температуре +15о С без изменения качества глазури. Водопоглощение и морозостойкость - взаимосвязанные характеристики, они напрямую зависят от пористости плитки. Показатель водопоглощения плитки наиболее актуален при работе с бассейнами, потому что для этих целей должна использоваться специальная плитка с высоким процентом водопоглощения. При облицовке ванных комнат и других помещений этот показателей, как правило, не учитывается, поскольку практически вся выпускаемая сегодня плитка соответствует требованиям ГОСТа. Морозостойкость - способность керамических изделий, насыщенных водой, выдерживать многократное попеременное замораживание в воздушной среде и оттаивание в воде без признаков разрушения и без значительного снижения прочности. Иными словами, показатель морозостойкости - это стойкость к циклическим замораживаниям и оттаиваниям. Методиками проверки обусловлено, что 25 циклов замораживания-оттаивания достаточно для того, чтобы установить факт наличия или отсутствия стойкости. Плитка двойного обжига - довольно пористая и, следовательно, не морозостойкая. А плитка одинарного обжига с водопоглощением менее 3% считается морозостойкой. Степень морозостойкости обязательно нужно учитывать в том случае, когда плитку укладывают на улице или в неотапливаемом помещении, где температура воздуха опускается ниже нуля. Химическая устойчивость – способность эмали плитки выдерживать при комнатной температуре контакт с химическими веществами (бытовой химией, добавками для бассейна, солями и кислотами), не претерпевая при этом внешних изменений. Согласно норме EN 122, после испытаний плитке присваивается класс устойчивости к агрессивным средам, исходя из характера повреждений. Класс AA: Не имеет никаких изменений внешнего вида. Класс A: Незначительные изменения внешнего вида. Класс B: Средние изменения внешнего вида. Класс C: Частичная потеря внешнего вида. Класс D: Полная потеря первоначального вида. Стоит учитывать, что поверхность, облицованная плиткой, имеет швы. Только швы, заполненные эпоксидными материалами, обладают хорошей степенью защиты от химических воздействий. 3. Эстетичность Внешний вид. Для настенной облицовочной плитки эта характеристика, пожалуй, самая главная. Стены с выбоинами, сколами и дефектами глазури производят унылое впечатление и сводят на нет радость от свежего ремонта. Если напольную плитку для внутренних помещений с незначительными изъянами (ГОСТ 6787-90) некондиционной не считают, то для внешнего вида настенной - требования более строгие, хотя и демократичные. Они учитывают, что для создания декоративного эффекта лицевая поверхность может сочетать различные виды глазури и быть волнистой, а рисунок - вдавленным или выпуклым. Геометрические размеры. Для плиточника эти характеристики будут поважнее остальных - от правильности геометрии каждой плитки зависит качество кладки в целом. Если образцы косоугольные, то появляются некрасивые зазоры-швы. Разнотолщинная плитка имеет не самые лучшие прочностные свойства: где тонка, там и колется. А значительная кривизна лицевой поверхности приводит к неровности даже изначально ровных стен. По виду настенную плитку подразделяют на прямоугольную, квадратную, фигурную и фасонную (угловую, обрамляющую и плинтусную), боковые грани которой могут иметь "завалы". К ее геометрии ГОСТ 6141-91 предъявляет высокие требования: форма - правильная, грани и углы - четкие. У прямоугольных и квадратных плиток боковые поверхности должны составлять прямой угол с лицевой. По ГОСТу возможны: отклонения от номинальных размеров по длине и ширине не превышают ±0,8%, по толщине - в пределах ±8%, а разнотолщинность одной плитки - не больше допустимых 0,5 мм. Разница между наибольшим и наименьшим размерами в одной партии по длине и ширине не превышает 1,5 мм, а разброс показателей по толщине - не более положенного 1 мм. Глава 3. Частная классификация и ассортимент товара.Основная задача при написании главы – рассмотрение ассортимента товара. Ассортимент кафельной плитки достаточно широк. Основные различия между видами заключается в способе изготовления, виде сырья, размере и назначении плитки. Структура ассортимента: · Группа: кафельная плитка. · Подгруппа: облицовочная (настенная), напольная, бордюры, декоры, фасадная, мозаика · Виды: (по методу изготовления) 1. прессованная плитка изготавливается из порошкообразной смеси, уплотняющейся и формующейся под высоким давлением прессом. 2. экструдированная плитка изготавливается из тестообразной массы исходных материалов, и формуются при прохождении через специальное отверстие экструдера.
1. фаянс – (белая масса) эмалированные керамические плитки двойного обжига, плитки с пористой и белой основой, формованные прессованием. 2. монокоттура - (плитка одинарного обжига) плитки эмалированные одинарного обжига (технология, предусматривающая лишь одну процедуру обжига, которому подвергаются одновременно и основа, и эмаль) с цветной основой (красная плитка одинарного обжига) или белой основой (светлая плитка одинарного обжига) с уплотненной или пористой основой (монопористая плитка), формованные прессованием. 3. клинкер - плитки неэмалированные или эмалированные одинарного обжига с разноцветной (обычно уплотненной) основой, получаемые путем экструзии. Так же плитка может быть: · глазурованной или неглазурованной (непокрытой эмалью). Глазурованные плитки имеют поверхность, покрытую слоем цветного стекла, придающего им важные эстетические характеристики (цвет, блеск, декоративный рисунок, различные оттенки и т.д.). Все эти характеристики, как технические, так и эстетические, зависят от типа эмали и могут варьировать в весьма широких пределах. Неглазурованные плитки практически однородны по всей толщине и обычно не имеют никаких декоративных рисунков. Из красной, белой или бесцветной массы. В зависимости от исходного сырья корпус плиток может быть цветным (от желтого до темно-красного с множеством промежуточных тонов) или бесцветным (иногда белым). Цвет корпуса в эмалированных плитках имеет, в целом, относительное значение. В некоторых неглазурованных изделиях различная окраска достигается добавлением красящих пигментов. · различной формы и размеров. Самыми распространенными формами являются квадрат и прямоугольник, но существуют также и другие, порой весьма сложные формы (например, шестигранник, восьмигранник и даже круг). Что касается размеров, то величина плиток может быть от «мазаичной» до самых настоящих плит со стороной 60 см и более. Толщина варьирует от нескольких миллиметров до 2-2,5 см. Далее рассмотрим представленный на российском рынке ассортимент фирм Porselanosa и Aparici и рассчитаем коэффициенты. Porselanosa (Испания). Одна из самых известных в мире фабрика – производитель кафельной плитки.Фабрика основана в 1972 году. Производит высококачественную плитку из белой глины. Является самым крупным производителем плитки в Испании. У фабрики нет традиционных складов, работа с покупателями строится по системе заказов. Производит примерно 2500 плиток в день. Основные размеры: · Настенная плитка: 11,11x11,11 20x20 20x31,6 28,28x28,28 31,6x44,6 31,6x59,2 35x70 · Напольная плитка: 11,11x11,11 31,6x31,6 35x35 44,6x44,6 Aparici (Испания). Фабрика создана в 1961 году и на сегодняшний день входит в пятерку лидеров производителей керамической плитки Испании. Производство плитки фирмы Aparici (не считая дочерних предприятий) составляет 12,5 млн.м2 . в год. Вся продукция производится из красной глины. Имеет склад площадью 40000 м2 . в котором постоянно имеется 4000000 м2 . плитки. Основные размеры: · Настенная плитка: 20x20 20x30 25x36,6 31,6x44,4 31,6x59,2 · Напольная плитка: 31,6x31,6 43x43 50x50 Для расчетов за базу примем ассортимент фабрики Porselanosa . 1. Коэффициент широты. Кш =11/19=0,58 Таким образом ассортимент у фабрики Porselanosa шире, чем у фабрики Aparici. 2. Коэффициент полноты: Рассчитаем его по ассортименту настенной плитки предлагаемой фабриками. Кп =7/5=1,4 Соответственно ассортимент настенной плитки у фабрики Porselanosa полнее, чем у фабрики Aparici. Глава 4. Классификация и кодирование товаров.1. Общероссийский классификатор продукции . Принят и введен в действие Постановлением Госстандарта России от 30 декабря 1993 г. N 301 с 1 июля 1994 г. на территории Российской Федерации взамен Общесоюзного классификатора промышленной и сельскохозяйственной продукции. Общероссийский классификатор продукции (ОКП) входит в состав Единой системы классификации и кодирования технико-экономической и социальной информации (ЕСКК) Российской Федерации. Предназначен для обеспечения достоверности, сопоставимости и автоматизированной обработки информации о продукции в таких сферах деятельности как стандартизация, статистика, экономика и другие. ОКП представляет собой систематизированный свод кодов и наименований группировок продукции, построенных по иерархической системе классификации. Классификатор используется при решении задач каталогизации продукции, включая разработку каталогов и систематизацию в них продукции по важнейшим технико-экономическим признакам; для сертификации продукции в соответствии с группами однородной продукции, построенными на основе группировок ОКП; для статистического анализа производства, реализации и использования продукции на макроэкономическом, региональном и отраслевом уровнях; для структуризации промышленно-экономической информации по видам выпускаемой предприятиями продукции с целью проведения маркетинговых исследований и осуществления снабженческо-сбытовых операций. Каждая позиция ОКП содержит шестизначный цифровой код, однозначное контрольное число и наименование группировки продукции, которые записывают по следующей форме:
В ОКП предусмотрена пятиступенчатая иерархическая классификация с цифровой десятичной системой кодирования. На каждой ступени классификации деление осуществлено по наиболее значимым экономическим и техническим классификационным признакам. На первой ступени классификации располагаются классы продукции (ХХ 0000), на второй - подклассы (ХХ Х000), на третьей - группы (ХХ ХХ00), на четвёртой - подгруппы (ХХ ХХХ0) и на пятой - виды продукции (ХХ ХХХХ). Коды 2-5-разрядных группировок продукции дополнены нулями до 6 разрядов и записываются с интервалом между вторым и третьим разрядами. Классификация продукции в ОКП может быть завершена на третьей, четвёртой или пятой ступенях классификационного деления. При записи отдельных наименований классификационных группировок используют сокращённую форму записи с заменой лексических элементов графическими, при этом: · опускают начальную часть полного наименования, вместо которой ставят тире, когда она повторяет предшествующее наименование; · предшествующее наименование или его часть, соответствующая опускаемой части сокращённого наименования, отделяют косой чертой. Для однозначности понимания и разграничения объёмов используемых понятий отдельные позиции ОКП включают пояснения. Пояснения приведены непосредственно под наименованием позиции, к которой они относятся. Пояснения приводятся для исключения возможности попадания в данную позицию классификатора объекта, входящего в другую его позицию, в целях единообразного понимания специалистами отдельных слов или словосочетаний в составе наименования позиции, при необходимости уточнения области применения данной позиции или при необходимости перечисления объектов, которые могут входить в данную позицию. В ОКП для кодирования иноаспектных группировок используют "нулевые" группировки, имеющие 0 на внутреннем разряде кода. Иноаспектные группировки образованы по признакам, отличающимся от признаков группировок основного классификационного деления. Содержание "нулевых" группировок определяется, как правило, алгоритмом сбора, т.е. перечнем входящих в них группировок основного классификационного деления. Разработку "нулевых" группировок и составление к ним соответствующих алгоритмов сбора осуществляют министерства, ведомства для решения конкретных экономических задач. "Нулевые" группировки располагают, в общем для всех позиций, порядке возрастания кодов. "Нулевые" группировки отмечены в конце наименования условным знаком "*". При необходимости отражения конкретных типов, марок, моделей и других характеристик отдельных видов продукции, в создаваемых для этих целей отраслевых классификаторах продукции в качестве первых шести знаков должны использоваться коды из настоящего Общероссийского классификатора продукции. 2. Кодирование кафельной плитки в ОКП.
3. Гармонизированная система описания и кодирования товаров Номенклатура гармонизированной системы (НГС) представляет собой международную классификацию товаров, обращаемых на рынке мировой торговли, обязательно используемую во всех документах и на всех уровнях. За базу построения НГС были приняты разработки более ранних лет - номенклатура СТС в своей последующей редакции, более известная в практике мировой торговли как БТН - Брюссельская таможенная номенклатура. До БТН была еще более ранняя попытка создания международного классификатора, которая несла в себе уже научные признаки классифицирования. БТН во многом сохранила основные черты номенклатуры Лиги Наций, вплоть до названий многих разделов классификаторов. Работа над гармонизированной системой кодирования началась в 70-е годы XX века и продолжалась в течение десяти лет. В работе приняли участие все страны ООН. В разработке участвовало около 60 стран, в качестве подразделений ООН, участвовавших в разработке: ГАТТ (Генеральная ассамблея товарных тарифов); ЮНКТАТ (Конференция ООН по торговле и развитию); МТП (Международная торговая палата); ИСО (Международная организация по стандартам); статистическое бюро ООН. Международная конвенция по ГС была издана на 2-х официальных языках Совета таможенного сотрудничества. Конвенцию подписали (ратифицировали) 53 страны и ЕС (1987). Это стало основанием для вступления ее в силу с начала следующего года. С 1988 г. НГС стала обязательным классификатором для использования в мировой торговле. Способы реализации Использование определений, устанавливающих границы группировок, использование списка товаров, исключаемых из раздела, группы, товарной позиции или субпозиции, использование неполного списка типичных примеров, включаемых в ту или иную классификационную группу, установка границ и объема каждой классификационной группировки, сочетающей 2 или более методов. Для обеспечения единообразного понимания классификаций и ускорения поиска нужных товаров разработаны подробные вспомогательные механизмы : ·пояснение к ГС, состоящее из двух томов; ·алфавитный указатель к ГС и пояснение к нему. Назначение этих документов заключается в том, что они должны значительно облегчить толкование терминов в правильном понимании классификационных группировок НГС, что является базой при определении ставок таможенных пошлин, а также необходимостью при сопоставлении данных по внешней торговле различных стран и проведении экономических и статистических анализов. В ГС объектом классификации являются все товары, обращающиеся в международной торговле, которые сгруппированы последовательно в 6 классификационных группировках по иерархии сверху вниз:
В основе построения ГС заложена совокупность различных признаков товаров. При формировании разделов использованы следующие признаки: происхождение материала, назначение, химический состав. В образовании групп заложен принцип последовательности обработки товара от сырья и полуфабрикатов до готовых изделий. При построении товарных позиций и субпозиций в каждой группировке применяются свои последовательности признаков. Но среди основных следует выделить следующие: ·степень обработки; ·назначение; ·вид материала; ·значение товара в мировой торговле. При кодировании в ГС приняты две цифровые системы: для разделов и подгрупп используется римская символика, а для всех остальных арабская . При этом коды разделов и подгрупп никакой взаимосвязи не имеют. Для товарной подпозиции цифровой код вообще не предусматривается. Они обозначаются знаком «дефис», который проставляется перед их наименованием в ГС. Структура шестизначного кодового обозначения, кодирующего в сотенной системе группу, товарную позицию и субпозицию, состоит из шести арабских цифровых символов. Для установления единой разрядности цифрового кода принято дополнять цифрой «О» коды тех классификационных группировок, которые в дальнейшем детализируются. Один ноль в конце 6-значного кода используется для тех субпозиций, которые полностью совпадают по содержанию и наименованию соответствующими товарными позициями или подпозициями. Если товарная позиция не детализируется, то в коде соответствующей субпозиции «О» проставляется на 5-м и 6-м разряде. 5019 товарных субпозиций состоят из 311 субпозиций, имеющих 4-значный код с добавлением в конце двух нулей; 2450 субпозиций, имеющих перед наименованием один дефис, означающих, что данная субпозиция детализирована до пятого уровня, а шестая цифра заменена на ноль; 2258 субпозиций, перед которыми поставлены два дефиса («—»), что означает, что данная субпозиция детализирована полностью в пределах 6-значного кода. Подразделение всего классификационного множества товаров в ГС производится до отдельного вида товара или до групп товаров. Товарные разновидности и ассортиментные виды размещены параллельно с группами товаров, при этом используется следующий метод дифференцирования: из группы товаров выделяется один или несколько видов продукции, наиболее широко используемой в мировой торговле, а для остальных видов предназначается обобщенная классификация под названием «прочие». «Прочие» группы в ГС расположены на всех уровнях детализации. При создании ГС было принято выражать «прочие» субпозиции на уровне 5-го и 6-го знака шестизначного кода цифрами 8 и 9. При необходимости последние можно детализировать, не нарушая систему. Система кодирования ГС допускает более высокую детализацию номенклатуры товара. Это используется в мировой практике при разработке таможенных и статистических классификаторов как для отдельных стран, так и для международных союзов. На практике в мировой торговле детализация и кодирование осуществляются в некоторых случаях до 14 знаков в ЕС, в США - 11 знаков. В системе кодирования ГС в условиях расширяющегося количества стран-участников в мировой торговле и, как следствие, увеличивающейся на рынке номенклатуры предоставляется возможность кодирования без нарушения системы классификации. Особенно велики возможности резервирования на уровне разделов, так как задействован только 21 раздел. На уровне товарных позиций и субпозиций резерв превышает 80%, на уровне групп представлены резервные группы с кодами 77, 88, 99. Эти группы могут быть также задействованы в национальной практике отдельных стран для определения спецификации товаров (при классификации услуг). Конвенция о ГС трактует: страны, применяющие ее, не имеют права изменить классификацию товаров и их кодирование в пределах первых 6 знаков. Основные правила классификации в ГС Система кодирования гармонизированной системы - кодирование товаров и классифицирование - технические приемы, позволяющие представить объект в виде знаков по правилам, установленным в данной системе классификации. При классификации товаров в гармонизированной системе следует руководствоваться следующими принципами: ·наименования разделов групп и подгрупп даются только для удобства пользования на работе. Но для юридических целей классификация определяется в соответствии с наименованными товарными позициями, а также примечаниями к разделам и группам, если при этом не требуется иного толкования в соответствии с другими положениями; ·любая ссылка в наименовании товарной группы на какой-либо товар должна пониматься как включающая ссылку на этот товар, не комплектный или не завершенный производством, если товар обладает основными чертами комплектного или завершенного производством товара; ·любая ссылка в наименовании товарной позиции на какой-либо материал или вещество должна пониматься как включающая ссылку на смешение или соединение этого материала с другим материалом или веществом. Классификация товаров, состоящих из более чем одного материала или вещества должна осуществляться в соответствии с положениями, указанными ниже; ·когда товары можно включить к двум или более товарным позициям, предпочтение отдается той товарной позиции, которая содержит наиболее конкретное описание товара по сравнению с другой позицией. Однако когда каждая из двух или более позиций имеет свою ссылку лишь на часть материалов или веществ, содержащихся в товарах или только той группы изделий в наборе, упакованном для розничной продажи, то такие товарные позиции должны рассматриваться в равной степени специфическими по отношению к таким товарам, даже если одна из них дает более полное или точное описание товара; ·смеси, композитные товары, состоящие из различных материалов и компонентов, а также товары, упакованные в наборы для розничной продажи, должны классифицироваться по тем материалам или составным частям, которые определяют существенные признаки товаров в тех случаях, когда этот принцип приемлем, в случае невозможности применения правила товары должны классифицироваться в последней из рассмотренных товарных позиций; ·товары, классификация которых не может быть определена в соответствии с предыдущими правилами, должны классифицироваться по товарной позиции, соответствующей товарам наиболее близким или родственным к определяемым товарам; · чехлы, футляры для фотоаппаратов, музыкальных инструментов, галстуков, часов и т.п., тара или упаковка, имеющие особую форму, совершенно специфическую, предназначенную для хранения товаров в течение длительного времени, и предъявляемые вместе с товарами, для которых они предназначены, должны классифицироваться вместе с предметами такого рода, для хранения, транспортирования которых они предназначены. Однако настоящее правило не применяется к упаковке, которая придает единому целому свой существенный признак, или к таре, если такая тара со всей очевидностью пригодна для повторного использования. 4.ТН ВЭД России. Характеристика десятизначного кода. Содержание разделов и групп, принципы построения . Объектом любой внешнеторговой сделки является конкретный товар. Для идентификации товара была введена Товарная номенклатура внешнеэкономической деятельности (ТН ВЭД), разработанная на базе Номенклатуры Гармонизированной системы описания и кодирования товаров (НГС) и Комбинированной тарифно-статистической номенклатуры Европейского сообщества (КН ЕЭС). ТН ВЭД является основой системы мер государственного регулирования внешнеэкономической деятельности страны. На базе НГС в каждой стране, подписавшей Конвенцию по Гармонизированной системе, были созданы национальные товарные номенклатуры, но согласно этой Конвенции нельзя изменять классификацию товаров и их код в пределах первых шести знаков. Развивающимся странам разрешено частичное применение ГС в шестизначном коде, им допускается детализация на уровне пятого и шестого знака, заменяя их соответственно на "00" или "0". Число знаков в коде неодинаково для разных стран. Например, детализация номенклатуры товаров в США доходит до одиннадцати знаков, в России до десяти. · первые шесть цифр означают код товара по НГС; · те же шесть цифр плюс седьмой и восьмой знаки образуют код товара по КН ЕЭС; · девятая и десятая цифры предназначена для возможной детализации в будущем тех или иных товарных позиций с учетом интересов страны. Правильное определение положения товара в номенклатуре (его классификация) имеет решающее значение для установления порядка его перемещения через таможенную границу и ведения внешнеторговой статистики. Допущенные ошибки в коде в таможенной декларации рассматриваются таможенными органами как нарушение, влекущее за собой ответственность в соответствии с действующим законодательством. Однозначное понимание классификационных группировок является не только преимуществом ТН ВЭД, но и необходимым условием при определении ставок таможенных пошлин, НДС, ставок акциз и иных платежей, при определении режимов, при сопоставлении таможенных тарифов. Принцип построения ТН ВЭД России. Сущность принципа построения ТН ВЭД России заключается в распределении информации о кодах товаров в соответствии с пятью уровнями детализации: 1-й уровень Разделы 2-й уровень Группа (Подгруппы) (2значный код); (ХХОО ОО) 3-й уровень Товарная позиция (4значный код); (ХХХХ ОО) 4-й уровень Субпозиция (6значный код); (ХХХХ ХХ) 5-й уровень Подсубпозиция (10значный код). (ХХХХ ХХ ХХХХ) Также в ТН ВЭД содержатся Примечания к Разделам и Группам (в некоторых случаях к субпозициям), которые разъясняют, какие товары могут включаться в соответствующие разделы и группы. На уровне разделов товары детализируются, как правило, в соответствии с отраслями промышленности. ТН ВЭД России включает 21 раздел, 97 групп. При построении товарных позиций (четырехзначный код) и субпозиций (шестизначный код) учитывается: · вид материала, из которого изготовлен товар; · производственные мощности; · значение товара в мировой торговле. Четыре последние цифры десятизначного кода подсубпозиции отражают детализацию номенклатуры товаров в соответствии с признаками, принятыми в стране. ТН ВЭД России включает 1241 товарную позицию и 5013 субпозиций. 5. Коды керамической плитки в ТН ВЭД: РАЗДЕЛ XIII. Изделия из камня, гипса, цемента, асбеста, слюды или аналогичных материалов; керамические изделия; стекло и изделия из него 69 Керамические изделия Глава II. ПРОЧИЕ КЕРАМИЧЕСКИЕ ИЗДЕЛИЯ 6908 Плиты для мощения, плитки облицовочные для полов, печей, каминов или стен керамические глазурованные; кубики керамические глазурованные для мозаичных работ и аналогичные изделия, на основе или без нее: 690890 прочие: – прочая, с максимальной толщиной: 6908902100– не более 15 мм 6908902900 – более 15 мм Глава 5. Факторы, формирующие качество товара.Производство плитки |
|||||||||||||||||||||||||||||||||||||||||||||||||||||||||||||||||||||||||||||||||||||||||||||||||||||||||||||||||||||||||||||||||||||||||||||||||||||||||||||||||||||||||||||||||||||||||||||||||||||||||||||||||||||||||||||||||||||||||||||||||||||||||||||||||||||||||||||||||||||||||||||||||||||||||||||||||||||||||||||||||||||||||||||||||||||||||||||||||||||||||||||||||||||||||||||||||||||||||||||||||||||||||||||||||||||||||||||||||||||||||||
| Смена | Артикул | Тон | Сорт |
| КТ16R | 5027 | 50 | I |
На коробках напольной плитки указывается калибр:
| Смена | Артикул | Тон | Сорт | Калибр |
| 07451238СЕ25 | 398 | 50 | I | 4 |
Коробки форматов 302х302, 402х402, 502х502 склеены попарно для придания большей устойчивости.
Плитка первого сорта упакована в коробки из картона белого цвета. Плитка второго и третьего сорта может быть упакована в коробки из картона коричневого цвета.
Коробки с плиткой уложены на европоддон. Размеры европоддона – 1200х800 мм. Поддон для большей прочности укреплен по углам вертикальными уголками из прессованного картона или пятислойного гофрокартона, увязан по горизонтали и вертикали полипропиленовыми лентами, упакован в полиэтиленовую пленку толщиной не менее 0,15 мм.
| Формат | Штук в коробке | м2 . в коробке | Коробок на поддоне | м2 . на поддоне | Масса поддона |
| 98x98 | 52 | 0,5 | 108 | 54 | 857 |
| 200x200 | 35 | 1,4 | 75 | 105 | 1340 |
| 200x200 утолщенная | 25 | 1 | 75 | 75 | 1340 |
| 200x250 | 30 | 1,5 | 75 | 112,5 | 1340 |
| 200x300 | 25 | 1,5 | 64 | 96 | 1200 |
| 250x250 | 16 | 1 | 84 | 84 | 1450 |
| 250x400 | 11 | 1,1 | 72 | 79,2 | 1120 |
| 201x201 | 26 | 1,05 | 75 | 78,75 | 1470 |
| 302x302 | 15 | 1,36 | 66 | 89,76 | 1520 |
| 402x402 | 10 | 1,6 | 48 | 76,8 | 1420 |
| 502x502 | 5 | 1,26 | 60 | 75,6 | 1590 |
На боковой грани каждого поддона имеется этикетка, на которой указаны: артикул, сорт, тон, калибр (для напольной плитки), литера смены, количество квадратных метров плитки на поддоне, масса поддона с плиткой, дата производства.
Каждый поддон снабжен упаковочным листом (расположен на верхней грани поддона). На упаковочном листе указывается: номер артикула, фамилия упаковщика, дата упаковки.
Декоративные элементы (бордюры, декоры, бордюры «карандаш») упакованы в картонные коробки.
Коробки с бордюрами имеют прорези сверху, позволяющие не открывая коробку контролировать количество бордюров. На внутренней поверхности крышки коробки указывается табельный номер упаковщика производства декоративных элементов и имеется его личная подпись.
Декоративные элементы укладываются на европоддон. Количество декоративных элементов на поддоне формируется таким образом, чтобы вес поддона не превышал 800 кг.
Каждый поддон снабжен упаковочным листом с указанием количества декоративных элементов (по артикулам), фирмы-заказчика и фамилии кладовщика-упаковщика склада декоративных элементов.
Транспортирование и хранение
Керамические плитки перевозят всеми видами транспорта. Основным требованием при перевозке является сохранение потребительских свойств изделий, заложенных в процессе производства, на всем пути следования.
Облицовочные плитки хранят в пачках, уложенных на ребро, в закрытых помещениях или под навесом раздельно по типам, размерам, цветам и сортам.
Глава 7. Стандарты на товар
В этой главе приведены ГОСТы которым должна соответствовать кафельная плитка.
ГОСУДАРСТВЕННЫЙ СТАНДАРТ СОЮЗА ССР
ПЛИТКИ КЕРАМИЧЕСКИЕ ГЛАЗУРОВАННЫЕ
ДЛЯ ВНУТРЕННЕЙ ОБЛИЦОВКИ СТЕН
ТЕХНИЧЕСКИЕ УСЛОВИЯ
GLAZED CERAMIC TILES FOR LINING
OF THE WALLS. SPECIFICATIONS
Дата введения 1991-07-01
ГОСТ 6141-91
Информационные данные
1. РАЗРАБОТАН И ВНЕСЕН Государственной ассоциацией "Союзстройматериалы"
2. УТВЕРЖДЕН И ВВЕДЕН В ДЕЙСТВИЕ Постановлением Государственного строительного комитета СССР от 29.12.90 N 120
3. Стандарт полностью соответствует СТ СЭВ 2047-88
4. ВЗАМЕН ГОСТ 6141-82
5. ССЫЛОЧНЫЕ НОРМАТИВНО-ТЕХНИЧЕСКИЕ ДОКУМЕНТЫ
#G1Обозначение НТД, на который дана ссылка |
Номер пункта |
#M12291 9051603ГОСТ 12.3.009-76#S 4.4 #M12291 9051606ГОСТ 12.3.020-80#S 4.4 ГОСТ 8273-75 1.6.6 ГОСТ 9570-84 4.1 ГОСТ 14192-77 1.5.9 ГОСТ 15102-75 4.1 ГОСТ 15846-79 1.6.8, 4.2 ГОСТ 17308-88 1.6.6 ГОСТ 20435-75 4.1 ГОСТ 21929-76 4.4 ГОСТ 22225-76 4.1 ГОСТ 26663-85 1.6.5 #M12291 1200000217ГОСТ 27180-86#S 2.5, 3.1 #M12291 1200000173СТ СЭВ 3979-83#S 1.4.4 ОСТ 23.4.97-81 4.1 ОСТ 63.30-78 4.1 ТУ 17-05-009 1.6.6 |
|
#G0Настоящий стандарт распространяется на керамические глазурованные плитки и фасонные детали к ним.
Плитки предназначаются для внутренней облицовки стен зданий.
Стандарт не распространяется на плитки, предназначаемые для облицовки поверхностей, подверженных механическим воздействиям, влиянию мороза, высоких температур, грунтовых вод и агрессивных сред.
Требования настоящего стандарта являются обязательными.
1. Технические требования
1.1. Плитки и фасонные детали должны изготавливаться в соответствии с требованиями настоящего стандарта по технологическому регламенту, утвержденному в установленном порядке.
1.2. Плитки и фасонные детали изготавливают двух сортов: первый и второй.
1.3. Основные параметры и размеры
1.3.1. По форме плитки подразделяют на квадратные, прямоугольные и фигурные.
Боковые грани плиток могут быть без завала или с завалом.
Радиусы завала плиток устанавливает изготовитель.
Величина радиуса завала не является браковочным признаком.
1.3.2. Тип, форма и размеры плиток и фасонных деталей должны соответствовать указанным в табл. 1-3.
#G1Таблица 1 (мм)
#G0Тип |
Форма |
Длина
|
Ширина
|
Толщина
|
|
1 2 3 |
Квадратные плитки: а) без завала граней
|
200 150 100 |
200 150 100 |
7 5 5 |
8 6 6 |
4 5 6 |
б) с завалом граней
|
200 150 100 |
200 150 100 |
7 5 5 |
8 6 6 |
7 8 9 |
в) с завалом двух смежных граней
|
200 150 100 |
200 150 100 |
7 5 5 |
8 6 6 |
10 11 12 |
г) с завалом трех граней
|
200 150 100 |
200 150 100 |
7 5 5 |
8 6 6 |
13 14 15 |
д) с завалом четырех граней
|
200 150 100 |
200 150 100 |
7 5 5 |
8 6 6 |
16 17 18 19 |
Прямоугольные плитки: а) без завала
|
200 200 150 150 |
150 100 100 75 |
7 7 5 5 |
8 8 6 6 |
20 21 22 23 |
б) с завалом одной грани
|
200 200 150 150 |
150 100 100 75 |
7 7 5 5 |
8 8 6 6 |
24 25 26 27 |
в) с завалом двух смежных граней
|
200 200 150 150 |
150 100 100 75 |
7 7 5 5 |
8 8 6 6 |
28 29 30 31 32 |
г) с завалом трех граней
|
200 200 150 150 100 |
150 100 100 75 75 |
7 7 5 5 5 |
8 8 6 6 6 |
33 34 35 36 |
д) с завалом четырех граней
|
200 200 150 150 |
150 100 100 75 |
7 7 5 5 |
8 8 6 6 |
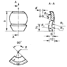
#G1 Таблица 2 (мм)
| #G0Тип | Форма | Длина |
Ширина |
37 |
Фасонные угловые детали: а) для отделки внешних углов
|
- |
150 |
38 |
б) для отделки внутренних углов
|
150 |
|
39 40 |
Фасонные карнизные детали: а) прямые
|
150 150 |
150 150 |
41 |
б) для отделки внешних углов
|
- |
50 |
42 |
в) для отделки внутренних углов
|
50 |
|
43 44 45 |
Фасонные плинтусные детали: а) прямые
|
150 150 150 |
80 50 150 |
46 47 |
б) для отделки внешних углов
|
- - |
80 50 |
48 49 |
в) для отделки внутренних углов
|
- - |
80 50 |
#G1
#G0Примечание. Толщина
фасонных деталей должна соответствовать толщине указанных типов плиток.
#G1Таблица 3 (мм)
#G0Тип |
Форма |
|
|
|
|
|
|
|
|
50 |
Фигурная плитка
|
205 |
51 |
187 |
15 |
40 |
13 |
5 |
6 |
#G1
#G01.3.3. По согласованию изготовителя с потребителем допускается изготовление плиток и фасонных деталей других размеров и формы.
1.3.4. Отклонения от номинальных размеров плиток должны быть %, не более:
#G1 по длине и ширине .................. ±0,8
по толщине:#G0
#для плиток длиной до 150 мм включ. ... ±10
для плиток длиной св. 150 мм ......... ±8
#G01.3.5. Разница между наибольшим и наименьшим размерами плиток одной партии по длине и ширине не должна превышать 1,5 мм.
Разброс показателей по толщине плиток одной партии не должен превышать 1,0 мм.
Различие в толщине одной плитки (разнотолщинность) не допускается более 0,5 мм.
1.3.6. Условное обозначение плиток в технической документации при заказе должно состоять из указания их типа, цвета и обозначения настоящего стандарта.
Пример условного обозначения:
белых квадратных плиток без завала, типа 2:
Тип 2 белые ГОСТ 6141-91
цветных прямоугольных плиток с завалом четырех граней, типа 33:
Тип 33 цветные ГОСТ 6141-91
цветных фасонных угловых деталей, типа 38:
Тип 38 цветные ГОСТ 6141-91
белых фигурных плиток, типа 50:
Тип 50 белые ГОСТ 6141-91
1.4. Характеристики
1.4.1. Лицевая поверхность плиток и фасонных деталей может быть гладкой или рельефной, одноцветной или многоцветной (декорированной различными методами).
Декорирование плиток может осуществляться методом сериографии, набрызгивания, нанесения глазурей с различным поверхностным натяжением и др.
Глазурь может быть блестящей или матовой, прозрачной или заглушенной.
1.4.2. Цвет, оттенок цвета, рисунок и рельеф лицевой поверхности плиток и фасонных деталей должны соответствовать образцам-эталонам, утвержденным в установленном порядке.
Утвержденный эталон цвета может быть распространен на плитки и фасонные детали всех типов.
Допускается утверждение образцов в виде планшетов или каталогов.
Для плиток с неповторяющимся рисунком (мраморовидные и др.) утверждается только эталон цвета. Рисунок не эталонируется.
Цвет, оттенок цвета, рисунок и рельеф лицевой поверхности плиток, выпускаемых по отдельным заказам, должны соответствовать эталонам, согласованным с потребителем.
1.4.3. Отклонения от формы плиток не должны превышать значений, указанных в табл. 4.
#G1 Таблица 4
| #G1 Наименование показателя | Норма для плиток |
| I сорта ¦ II сорта | |
1. Кривизна лицевой поверхности, мм, не более 2. Косоугольность, мм, не более: для плиток длиной до 150 мм включ. для плиток длиной св. 150 мм |
0,8 | 1,1 0,5 1,0 |
#G0
1.4.4. Показатели внешнего вида плиток должны соответствовать требованиям табл. 5.#
Таблица 5
| #G1Вид дефекта | Норма для плиток | |
| I сорта #G0 | #G1 II сорта | |
1. Отбитость со стороны лицевой поверхности 2. Щербины, зазубрины на ребрах со стороны лицевой поверхности 3. Плешина 4. Пятно |
Не допускается Не допускаются Не допускается То же |
Допускается длиной не более 2 мм в количестве не более 2 шт. Допускаются шириной не более 1 мм общей длиной не более 10 мм Допускается общей площадью не более 10 кв.мм Допускается невидимое с расстояния 2 м |
5. Мушки |
Допускаются невидимые с расстояния: |
|
1 м |
2 м |
|
6. Засорка |
Не допускается |
Допускается невидимая с расстояния 2 м |
| 7. Наколы | Допускаются невидимые с расстояния: | |
| 1 м | 2 м | |
8. Пузыри, прыщи и вскипание глазури 9. Волнистость и углубления глазури 10. Слипыш 11. Просвет вдоль краев цветных плиток 12. Следы от зачистных приспособлений вдоль ребра лицевой поверхности |
Не допускаются Не допускаются Не допускается Не допускается Не допускаются |
Допускаются вдоль ребра плитки шириной не более 2 мм Допускаются невидимые с расстояния 2 м Допускается общей площадью не более 5 кв.мм Допускается вдоль края плит- ки шириной не более 2 мм Допускаются невидимые с расстояния 2 м |
| 13. Нарушения декора (разрыв краски декора, | Допускаются невидимые с расстояния: | |
смещение декора, нарушение интенсивности окраски) |
1 м #G0 |
#G1 2 м #G0 |
#G1
#G0Примечания:
1. При создании декоративного эффекта допускаются волнистость глазури, вдавленность или выпуклость рисунка, матовость, оттенки цвета и сочетание различных видов глазури.
2. Виды дефектов - по #M12293 0 1200000173 4294961312 1009290739 247265662 4292033356 2960271974 2557815516 758613305 1809728142СТ СЭВ 3979#S.
1.4.5. Общее число допустимых дефектов на одной плитке не должно быть более:
двух - на плитках I сорта;
трех - на плитках II сорта.
1.4.6. Плитки должны иметь на монтажной поверхности рифления высотой не менее 0,3 мм.
1.4.7. Физико-механические показатели плиток должны соответствовать требованиям, указанным в табл.6.#G1
Таблица 6
#G1 Наименование показателя |
Норма |
1. Водопоглощение, %, не более 2. Предел прочности при изгибе, МПа, не менее 3. Термическая стойкость глазури, °С: плиток, покрытых белой глазурью плиток, покрытых цветной глазурью 4. Твердость глазури по Моосу, не менее |
16 15,0 150 125 5 |
#G0
1.4.8. Водопоглощение плиток из масс, содержащих карбонаты и полиминеральные глины, не должно быть более 24%.
1.4.9. Термическая стойкость глазури для плиток с закристаллизованной, реакционноспособной или другой специальной глазурью и для плиток с реакционными красками не регламентируется.
1.4.10. Глазурь плиток должна быть химически стойкой. При воздействии раствора N 3 не должно быть потери блеска глазури, изменения цветового тона и декоративного покрытия.
1.5. Маркировка
1.5.1. На монтажную поверхность каждой плитки должен быть нанесен товарный знак предприятия-изготовителя.
1.5.2. Каждый транспортный пакет, ящичный поддон, а также стопа или ящик, поставляемые отдельными грузовыми единицами, должны быть снабжены ярлыком, в котором указывают:
наименование или товарный знак предприятия-изготовителя;
дату изготовления;
наименование изделия;
сорт;
размеры;
количество плиток, шт. (квадратные метры);
цвет, рисунок;
цена (для плиток, поставляемых в торговую сеть);
обозначение настоящего стандарта.
1.5.3. На ярлыке должно быть указано: "При отделочных работах не рекомендуется использовать клей "Бустилат" и другие синтетические клеи и замазки".
1.5.4. На ящики или стопы, из которых сформирован пакет, маркировку не наносят.
1.5.5. Ярлык должен быть прочно прикреплен к упаковке, или вложен в нее, или напечатан на упаковочной бумаге. На стопу плиток, упакованную в бумагу, допускается наносить штамп.
1.5.6. При поставке в торговую сеть маркируют каждый ящик или стопу.
1.5.7. При поставке плиток на экспорт маркировка должна соответствовать требованиям, указанным в наряде-заказе внешнеторгового объединения.
1.5.8. Каждая отгружаемая партия изделий должна сопровождаться документом, удостоверяющим их качество, в котором указывают:
номер и дату выдачи документа;
наименование и адрес предприятия-изготовителя;
наименование продукции;
сорт;
размеры, цвет, рисунок;
водопоглощение;
термическую стойкость глазури;
символ ТР для плиток с закристаллизованной, реакционноспособной или другой специальной глазурью или для плиток с реакционными красками;
количество плиток, шт. (квадратные метры);
обозначение настоящего стандарта.
1.5.9. Транспортная маркировка грузов - по ГОСТ 14192.
На каждое грузовое место должны быть нанесены манипуляционные знаки "Осторожно, хрупкое" номер знака 1, черт.1. "Боится сырости" номер знака 3, черт.3.
1.6. Упаковка
1.6.1. Плитки одного типа, цвета, рисунка и сорта упаковывают в деревянные или картонные ящики, ящичные поддоны. Ящики должны быть изготовлены в соответствии с нормативно-технической документацией, утвержденной в установленном порядке.
1.6.2. В деревянные и картонные ящики плитки должны быть уложены вертикально вплотную друг к другу и при необходимости расклинены.
1.6.3. В ящичные поддоны укладывают плитки, предварительно собранные в стопы, обернутые в бумагу, перевязанные шпагатом или полипропиленовой лентой.
Плитки должны быть уложены вертикально.
Между каждым горизонтальным рядом плиток, дном и стенками поддона должен быть проложен картон.
1.6.4. Упакованные в деревянные или картонные ящики плитки укладывают в контейнеры или на плоские поддоны.
В контейнер допускается укладка плиток стопами, обернутыми бумагой и перевязанными шпагатом или полипропиленовой лентой.
1.6.5. Формирование транспортных пакетов - по ГОСТ 26663.
1.6.6. Для перевязки стоп должен применяться шпагат по ГОСТ 17308, ТУ 17-05-009, полипропиленовая лента шириной не менее 9 мм, толщиной не менее 0,5 мм с пределом прочности на разрыв не менее 100 Н/кв.мм (10 кгс/кв.мм).
Допускается перевязка другими обвязочными материалами, обеспечивающими прочность обвязки. Применение бумажного шпагата не допускается.
Для обертывания стоп должна применяться оберточная бумага по ГОСТ 8273 массой 1 кв.м не менее 80 г.
Марку картона для перекладки рядов не регламентируют. Допускается применять прокладки из отходов картона.
1.6.7. На экспорт плитки должны поставляться в таре, указанной в заказе-наряде внешнеторговой организации.
1.6.8. При поставке в районы Крайнего Севера и труднодоступные районы упаковка должна соответствовать ГОСТ 15846.
2. Приемка
2.1. Приемку плиток производят партиями.
Партия должна состоять из плиток одного типа, цвета, рисунка и сорта.
Объем партии устанавливают в количестве не более сменной выработки одной технологической линии плиток одного типа, цвета, сорта и вида декорирования.
2.2. Для проверки соответствия плиток требованиям настоящего стандарта предприятие-изготовитель проводит приемо-сдаточные и периодические испытания.
2.3. Приемо-сдаточные испытания
2.3.1. Приемку плиток производят путем проведения приемочного контроля по следующим показателям:
правильность формы и размеров;
высота рифлений на монтажной поверхности;
внешний вид лицевой поверхности;
водопоглощение;
термическая стойкость глазури;
маркировка;
упаковка.
2.3.2. Для проведения приемочного контроля по водопоглощению, термической стойкости глазури плитки отбирают от каждой партии от одного из сортов.
2.3.3. Для проверки внешнего вида отбор плиток осуществляют по табл. 7.
#G1Таблица 7
#G1Объем партии плиток, шт. |
Ступени контроля |
Объем выборки, шт. |
Общий объем выборки,шт. |
Приемочное число, |
Браковочное число, |
1.От 501 до 1200 включ. 2.От 1201 до 3200 включ. 3.От 3201 до 10000 включ. 4.От 10001 до 35000 включ. 5.От 35001 до 15000 включ. |
Первая Вторая Первая Вторая Первая Вторая Первая Вторая Первая Вторая |
20 20 32 32 50 50 80 80 125 125 |
20 40 32 64 50 100 80 160 125 250 |
1 4 2 6 3 8 5 12 7 18 |
4 5 5 7 7 9 9 13 11 19 |
#G0Для контроля принят приемочный уровень дефектности AQL-4, общий уровень контроля 1.
2.3.4. Партию плиток принимают, если количество дефектных плиток в первой выборке меньше или равно приемочному числу
для первой ступени контроля.
Партию бракуют без назначения второй выборки, если количество дефектных плиток больше или равно браковочному числу
для первой ступени контроля.
Если количество дефектных плиток в первой выборке больше приемочного числа
, но меньше браковочного
, то производят вторую выборку.
Партию плиток принимают, если количество дефектных плиток в двух выборках меньше или равно приемочному числу
, и бракуют, если количество дефектных плиток в двух выборках больше или равно браковочному числу
для второй ступени контроля.
2.3.5. От партии плиток, проверенных и признанных годными по внешнему виду, отбирают произвольно образцы плиток:
#G1 для проверки размеров и формы ....................... 25 шт.
для определения водопоглощения ...................... 3 шт.
для определения термической стойкости глазури ....... 3 шт.#G0
2.3.6. Если при проверке размеров и формы из отобранных от партии плиток окажется одна плитка, не соответствующая требованиям настоящего стандарта, то партию принимают, если две или более плиток, то партия приемке не подлежит.
2.3.7. В cлучае несоответствия партии плиток требованиям стандарта по внешнему виду, размерам, форме допускается поштучная пересортировка плиток.
2.3.8. При получении неудовлетворительных результатов испытаний по водопоглощению, термической стойкости глазури проводят повторные испытания по показателю, не удовлетворяющему требованиям п.1.4.7, на удвоенном количестве образцов, взятых от той же партии.
Если при повторном проведении испытаний по этим показателям окажется, что плитки не отвечают требованиям п.1.4.7, партию бракуют.
2.4. Периодические испытания
2.4.1. Предприятие-изготовитель должно проводить периодические испытания плиток на предел прочности при изгибе не реже двух раз в месяц на пяти плитках, химическую стойкость глазури и твердость глазури по Моосу - не реже одного раза в месяц на пяти плитках.
При получении неудовлетворительных результатов периодических испытаний изготовитель переводит испытание по данному показателю в категорию приемо-сдаточных до получения положительных результатов не менее чем на пяти партиях подряд.
2.5. Потребитель имеет право производить контрольную выборочную проверку соответствия плиток требованиям настоящего стандарта, соблюдая при этом порядок отбора образцов, указанный выше, и применяя методы испытаний по #M12293 0 1200000217 3271140448 1872110238 4294961312 4293091740 1405114156 247265662 4292033676 557313239ГОСТ 27180#S.
3. Методы испытаний
3.1. Методы испытаний по #M12293 0 1200000217 3271140448 1872110238 4294961312 4293091740 1405114156 247265662 4292033676 557313239ГОСТ 27180#S.
3.2. Правильность маркировки и упаковки следует определять визуально.
4. Транспортирование и хранение
4.1. Плитки транспортируют всеми видами транспорта в соответствии с правилами перевозок грузов, действующими на данном виде транспорта: в универсальных контейнерах по ГОСТ 15102, ГОСТ 20435, ГОСТ 22225 или в крытых транспортных средствах в ящичных поддонах по ГОСТ 9570, ОСТ 63.30, ОСТ 23.4.97 или транспортными пакетами.
Примечание. По согласованию с потребителем при проведении погрузочно-разгрузочных работ на подъездных путях грузоотправителя и грузополучателя допускается транспортировать плитки в крытых вагонах в непакетированном виде (в ящиках).
4.2. В районы Крайнего Севера и труднодоступные районы плитки должны поставляться в соответствии с требованиями ГОСТ 15846.
4.3. Размещать и крепить груз в крытых железнодорожных вагонах необходимо в соответствии с "Техническими условиями погрузки и крепления грузов", с учетом полного использования грузоподъемности (вместимости) вагонов и контейнеров. Отправку плиток производят повагонно.
4.4. При погрузочно-разгрузочных работах должны быть соблюдены правила безопасности, установленные #M12293 0 9051603 3271140448 24256 79 379760876 4294961312 4293091740 3581821673 247265662ГОСТ 12.3.009#S, #M12293 1 9051606 3271140448 24256 79 2363602136 3711665957 106 77 3271140448ГОСТ 12.3.020#S и ГОСТ 21929.
4.5. Плитки в упакованном виде должны храниться в закрытых помещениях, в условиях защиты их от механических повреждений, влияния мороза, высоких температур и агрессивных сред.
Высота штабеля плиток при хранении не должна превышать:
#G1 транспортными пакетами ............................... 2 ярусов
в деревянных и картонных ящиках ..................... 10 ярусов
в ящичных поддонах ................................... 2 ярусов.
ПЛИТКИ КЕРАМИЧЕСКИЕ ДЛЯ ПОЛОВ
Технические условия
CERAMIC FLOOR TILES
Specifications
Дата введения 2002-07-01
ГОСТ 6787-2001
Информационные данные
1 РАЗРАБОТАН ОАО «НИИстроймашкерамика»
ВНЕСЕН Госстроем России
2 ПРИНЯТ Межгосударственной научно-технической комиссией по стандартизации, техническому нормированию и сертификации в строительстве (МНТКС) 30 мая 2001 г.
3 ВЗАМЕН ГОСТ 6787-90
4 ВВЕДЕН В ДЕЙСТВИЕ с 1 июля 2002 г. в качестве государственного стандарта Российской Федерации постановлением Госстроя России от 6 сентября 2001 г. № 107
Настоящий стандарт распространяется на глазурованные и неглазурованные керамические плитки для полов (далее - плитки), предназначенные для покрытия полов внутри помещений жилых и общественных зданий и в бытовых помещениях промышленных зданий, а также для покрытия полов в лоджиях и на балконах (неглазурованные плитки).
Стандарт не распространяется на плитки, предназначенные для покрытия полов, подвергаемых воздействию концентрированных кислот и щелочей.
Стандарт устанавливает обязательные требования, изложенные в разделах 4 (кроме 4.1), 6 и 7, подразделах 5.2 и 5.3, а также 5.1.3 - 5.1.6, 5.4.1, 5.4.3, 8.2, 8.4 - 8.7.
В настоящем стандарте использованы ссылки на следующие стандарты:
ГОСТ 3560-73 Лента стальная упаковочная. Технические условия
ГОСТ 9142-90 Ящики из гофрированного картона. Общие технические условия
ГОСТ 12301-81 Коробки из картона, бумаги и комбинированных материалов. Общие технические условия
ГОСТ 13996-93 Плитки керамические фасадные и ковры из них. Технические условия
ГОСТ 14192-96 Маркировка грузов
ГОСТ 15102-75 Контейнер универсальный металлический закрытый номинальной массой брутто 5,0 т. Технические условия
ГОСТ 15846-79 Продукция, отправляемая в районы Крайнего Севера и труднодоступные районы. Упаковка, маркировка, транспортирование и хранение
ГОСТ 20435-75 Контейнер универсальный металлический закрытый номинальной массой брутто 3,0 т. Технические условия
ГОСТ 22225-76 Контейнер универсальный массой брутто 0,625 и 1,25 т. Технические условия
ГОСТ 24597-81 Пакеты тарно-штучных грузов. Основные параметры и размеры
ГОСТ 25951-83 Пленка полиэтиленовая термоусадочная. Технические условия
ГОСТ 26663-85 Пакеты транспортные, формирование с применением средств пакетирования. Общие технические требования
ГОСТ 27180-2001 Плитки керамические. Методы испытаний
СТ СЭВ 3979-83 Плитки керамические. Термины и определения
В настоящем стандарте применяют термины с соответствующими определениями, установленные в СТ СЭВ 3979. Термины с определениями дефектов лицевой поверхности - в соответствии с ГОСТ 13996.
4 Основные параметры и размеры
4.2 Размеры плиток приведены в таблице 1. Размеры многогранных и фигурных плиток устанавливает предприятие-изготовитель по согласованию с потребителем.
4.3 Длина бордюрных плиток должна соответствовать длине (ширине) основных плиток. Ширину и толщину бордюрных плиток устанавливает предприятие-изготовитель.
Таблица 1 (мм)
| Координационные размеры К | Номинальные размеры Н | ||
| Длина | Ширина | Длина Ширина | Толщина |
| Квадратные плитки | Устанавливает предприятие-изготовитель таким образом, чтобы ширина шва С составляла от 2 до 5 | Устанавливает предприятие-изготовитель, но не менее 7,5 | |
500 400 330 (302) 300 250 (202) 200 150 |
500 400 330 (302) 300 250 (202) 200 150 |
||
| Прямоугольные плитки | |||
500 400 300 250 200 |
300 300 200 200 150 |
||
Примечания 1 Координационный размер соответствует суммарной величине номинального размера плитки и ширины шва (рисунок 1). 2 Размеры, указанные в скобках, являются менее предпочтительными. 3 По согласованию с потребителем могут быть изготовлены плитки других размеров, при этом номинальные размеры должны быть установлены в соответствии с требованиями таблицы 1. |
|||
К - координационный размер, Н - номинальный размер, С - ширина шва
Рисунок 1
4.4 Предельные отклонения размеров плиток от номинальных не должны быть более, мм:
по длине и ширине ...........±1,5;
по толщине ........................ ±0,5.
4.5 Разность между наибольшим и наименьшим размерами плиток одной партии по длине и ширине не должна быть более 2,0 мм.
4.6 Разность между наибольшим и наименьшим значениями толщины одной плитки (разнотолщинность) не должна быть более 0,5 мм.
4.7 Отклонение формы плиток от прямоугольной (косоугольность), отклонение лицевой поверхности от плоскостности (кривизна лицевой поверхности) и искривление граней не должно быть более 1,5 мм.
4.8 На монтажной поверхности плиток должны быть рифления. Размеры, форму и количество рифлений устанавливает предприятие-изготовитель, при этом высота (глубина) рифлений должна быть не менее 0,5 мм.
4.9 Условное обозначение плиток должно состоять из:
- буквенных обозначений:
П - плитка основная,
ПБ - плитка бордюрная,
Г - глазурованная,
НГ - неглазурованная;
- цифр, обозначающих длину и ширину (координационные размеры) плитки в миллиметрах (в скобках указывают номинальные размеры в миллиметрах). Для бордюрных плиток указывают только номинальные размеры;
- обозначения настоящего стандарта.
Примеры условных обозначений:
1. Плитка основная неглазурованная с координационными размерами: длина 300 мм, ширина 200 мм, номинальными размерами:
длина 297мм, ширина 197 мм, толщина 8,5 мм
ПНГ 300
200 (297
197
8,5) ГОСТ 6787 - 2001.
2. Плитка основная глазурованная с координационными размерами: длина и ширина 200 мм, номинальными размерами:
длина и ширина 198 мм, толщина 9,0 мм
ПГ 200
200 (198
198
9,0) ГОСТ 6787-2001.
3. Плитка бордюрная глазурованная длиной 330 мм, шириной 90 мм и толщиной 8,0 мм
ПБГ 330
90
8,0 ГОСТ 6787-2001.
Плитки должны изготавливаться в соответствии с требованиями настоящего стандарта по технологическому регламенту, утвержденному предприятием-изготовителем.
5.1.1 Лицевая поверхность плиток может быть гладкой или рельефной, неглазурованной или глазурованной, одноцветной или многоцветной, декорированной различными методами.
Глазурь может быть матовой или блестящей, прозрачной или заглушенной.
Неглазурованная поверхность плиток может быть полированной.
5.1.2 Плитки могут быть изготовлены с завалом или без завала. Радиус завала устанавливает предприятие-изготовитель.
Утвержденный образец-эталон цвета может быть распространен на плитки любых размеров.
Таблица 2(мм)
| Вид дефекта | Значение для одной плитки, не более |
| Щербины и зазубрины: | |
| Шириной в направлении, перпендикулярном ребру | 1 |
| обшей длиной | 10 |
| Посечка длиной | 10 |
5.1.5 На лицевой поверхности плиток не допускаются видимые с расстояния 1 м плешины, пятна, мушки, волнистость глазури, смещение и разрыв декора, засорка, наколы, выплавки (выгорки), пузыри, прыщи, сухость глазури, неравномерность окраски глазури, нечеткость рисунка, недожог красок.
5.1.6 Суммарное число дефектов, перечисленных в 5.1.4, на одной плитке в любой комбинации не должно быть более трех.
5.2.1 Физико-механические показатели плиток должны соответствовать указанным в таблице 3.
Таблица 3
| Наименование показателя | Значение для плиток | |
| неглазурованных | глазурованных | |
| Водопоглощение, %, не более | 3,5 | 4,5 |
| Предел прочности при изгибе, МПа, не менее, для плиток толщиной: | ||
| до 9,0 мм включ. | 28,0 | 28,0 |
| св. 9,0 мм | 25,0 | 25,0 |
| Износостойкость (по кварцевому песку), г/см2 , не более | 0,18 | |
| Износостойкость, степень | - | 1-4 |
| Термическая стойкость глазури , °С | - | 125 |
| Морозостойкость, число циклов, не менее | 25 | - |
| Твердость глазури по Моосу, не менее | - | 5 |
5.2.2 Глазурь должна быть химически стойкой к действию раствора № 3 по ГОСТ 27180.
5.3.1 На монтажной поверхности каждой плитки должен быть товарный знак предприятия-изготовителя.
5.3.2 Каждая упаковочная единица должна иметь маркировку. Маркировка может быть нанесена непосредственно на упаковку или этикетку, которую наклеивают на упаковку. Маркировка также может быть произведена с помощью ярлыков, прикрепляемых к упаковке.
5.3.3 Маркировка должна быть отчетливой и содержать:
- наименование, товарный знак и адрес предприятия-изготовителя;
- условное обозначение плиток и (или) их полное наименование;
- количество плиток, м2 (шт.);
- дату изготовления и номер партии;
- знак соответствия при поставке сертифицированной продукции (если это предусмотрено системой сертификации).
Предприятие-изготовитель имеет право наносить на упаковку дополнительную информацию, не противоречащую требованиям настоящего стандарта и позволяющую идентифицировать продукцию и ее изготовителя.
5.3.4 При формировании транспортного пакета упаковочные единицы должны быть уложены так, чтобы маркировка на них была видна.
5.3.5 Каждое грузовое место должно иметь транспортную маркировку по ГОСТ 14192, на него должны быть нанесены манипуляционные знаки: «Хрупкое. Осторожно» и «Беречь от влаги», если плитки упакованы в картонную тару, не защищенную от влаги.
5.4.1 Плитки поставляют в упакованном виде.
5.4.2 Плитки упаковывают в картонные ящики по ГОСТ 9142, картонные коробки по ГОСТ 12301 или полиэтиленовую термоусадочную пленку по ГОСТ 25951.
Плитки могут быть упакованы в картонные ящики (коробки), изготовленные по другой документации, при этом их прочностные характеристики должны быть не ниже требований ГОСТ 9142 и ГОСТ 12301.
По согласованию с потребителем допускаются другие виды упаковки, обеспечивающие сохранность плиток при транспортировании.
6.1 Каждая партия плиток должна быть принята службой технического контроля предприятия-изготовителя в соответствии с требованиями настоящего стандарта.
6.2 Приемку плиток производят партиями. Партия должна состоять из плиток одного размера, формы, цвета, рисунка, вида лицевой поверхности, изготовленных по одной технологии и из одних и тех же материалов.
Объем партии устанавливают в количестве не более суточной выработки одной технологической линии.
6.3 Приемочный контроль осуществляют проведением приемосдаточных испытаний по следующим показателям:
- внешний вид;
- размеры и правильность формы;
- водопоглощение.
6.4 Предприятие-изготовитель должно проводить периодические испытания плиток по одной партии с каждой технологической линии не реже одного раза в месяц по следующим показателям:
- предел прочности при изгибе;
- износостойкость;
- термическая стойкость глазури;
- химическая стойкость глазури;
- твердость глазури по Моосу.
Периодические испытания неглазурованных плиток на морозостойкость следует проводить не реже одного раза в квартал по одной партии с каждой технологической линии.
В случае получения неудовлетворительных результатов испытаний по любому из указанных показателей (кроме морозостойкости) следует перейти на контроль по этому показателю каждой партии плиток.
При получении положительных результатов контроля пяти следующих друг за другом партий переходят вновь к периодическим испытаниям.
Результаты испытаний распространяют на все поставляемые партии плиток до проведения следующих периодических испытаний.
6.5 Для проведения приемосдаточных и периодических испытаний плитки отбирают из разных мест партии методом случайного отбора единиц продукции в количестве, указанном в таблице 4.
Таблица 4
| Наименование показателя | Число образцов, шт. |
| Внешний вид | По 6,6 |
| Размеры и правильность формы | 20 |
| Водопоглощение, предел прочности при изгибе, химическая стойкость глазури, термическая стойкость глазури, твердость глазури по Моосу, морозостойкость, износостойкость неглазурованых плиток | 5 |
| Износостойкость глазурованных плиток | 16 (8*) |
| * Для плиток размерами 400 |
|
6.6 Для проведения приемосдаточных испытаний по показателям внешнего вида отбирают:
- от партии плиток объемом до 100 м2 включительно - число образцов, общая площадь которых составляет 1 м2 ;
- от партии плиток объемом свыше 100 м2 и до 200 м2 включительно - число образцов, площадь которых увеличивается на 0,5 м2 и т.д.
Партию принимают, если не менее 95 % плиток, отобранных для контроля, соответствуют требованиям 5.1.
6.7 Если при контроле размеров и правильности формы плиток, отобранных от партии, окажется одна плитка, не соответствующая требованиям настоящего стандарта, то партию принимают, если две - то партия приемке не подлежит.
6.8 Если при изготовлении плиток производится сплошной контроль внешнего вида (приборный), формы и размеров, то для проведения приемосдаточных испытаний по перечисленным показателям отбирают пять плиток от партии. В этом случае партию принимают, если все плитки, отобранные для контроля, соответствуют требованиям настоящего стандарта.
6.9 В случае несоответствия партии плиток требованиям настоящего стандарта по внешнему виду, размерам и правильности формы допускается ее повторное предъявление для контроля после разбраковки.
6.10 При получении неудовлетворительных результатов испытаний по водопоглощению проводят повторные испытания плиток на удвоенном числе образцов, взятых от той же партии.
Партию принимают, если результаты повторных испытаний удовлетворяют требованиям настоящего стандарта, если не удовлетворяют - то партия приемке не подлежит.
6.11 При проведении испытаний плиток потребителем, инспекционном контроле и сертификационных испытаниях объем выборки и оценку результатов контроля осуществляют в соответствии с требованиями раздела 6.
6.12 Каждая партия плиток или ее часть, поставляемая в один адрес, должна сопровождаться документом о качестве, в котором указывают:
- наименование предприятия-изготовителя, его товарный знак и адрес;
- наименование и (или) условное обозначение плиток;
- дату изготовления и номер партии;
- количество плиток, м2 (шт.);
- водопоглощение;
- степень износостойкости и рекомендуемую область применения глазурованных плиток по таблице 5 в соответствии с фактическим значением износостойкости;
- предел прочности при изгибе;
- знак соответствия при поставке сертифицированной продукции (если это предусмотрено системой сертификации);
- обозначение настоящего стандарта;
- штамп и подпись ответственного лица службы технического контроля.
7.1 Методы контроля - по ГОСТ 27180.
7.2 Величина предела прочности при изгибе отдельного образца должна быть не менее 80 % значения, нормируемого в таблице 3.
8 Транспортирование и хранение
8.1 Плитки транспортируют всеми видами транспорта в соответствии с правилами перевозки грузов, действующими на данном виде транспорта, и требованиями другой документации, утвержденной в установленном порядке.
Транспортирование в районы Крайнего Севера и труднодоступные районы - по ГОСТ 15846.
8.3 Транспортный пакет формируют из одинаковых упаковочных единиц с использованием деревянных поддонов. В качестве обвязки применяют стальную ленту по ГОСТ 3560 или синтетическую ленту. Транспортные пакеты могут быть также упакованы в полиэтиленовую термоусадочную пленку по ГОСТ 25951. Число обвязок, их сечение, размеры поддонов устанавливают технологическим регламентом с учетом требований ГОСТ 24597 и ГОСТ 26663.
8.4 Плитки следует хранить в закрытых помещениях в упакованном виде.
8.5 Хранение плиток на предприятии-изготовителе должно осуществляться в соответствии с 8.4 и технологическим регламентом с соблюдением требований техники безопасности и сохранности продукции.
8.6 Транспортные пакеты плиток у потребителя должны храниться в соответствии с 8.4 и правилами техники безопасности.
8.7 При погрузочно-разгрузочных, транспортно-складских и других работах не допускаются удары по плиткам.
9 Указания по применению глазурованных плиток
Рекомендуемые области применения глазурованных плиток в зависимости от степени износостойкости приведены в таблице 5.
Таблица 5
| Степень износостойкости | Область применения |
| 1-4 | Для покрытия полов в ванных и туалетных комнатах жилых зданий |
| 3, 4 | Для покрытия полов в ванных, душевых, умывальных, туалетных комнатах и бытовых помещениях промышленных зданий |
| 4 | Для покрытия полов в ванных, душевых, умывальных, туалетных комнатах и бытовых помещениях общественных зданий |
ПЛИТКИ КЕРАМИЧЕСКИЕ
Методы испытаний
МЕЖГОСУДАРСТВЕННАЯ НАУЧНО-ТЕХНИЧЕСКАЯ КОМИССИЯ
ПО СТАНДАРТИЗАЦИИ, ТЕХНИЧЕСКОМУ НОРМИРОВАНИЮ
И СЕРТИФИКАЦИИ В СТРОИТЕЛЬСТВЕ
(МНТКС)
Дата введения 2002-07-01
ГОСТ 27180-2001
Информационные данные
1 РАЗРАБОТАН ОАО «НИИстроймашкерамика»
ВНЕСЕН Госстроем России
2 ПРИНЯТ Межгосударственной научно-технической комиссией по стандартизации, техническому нормированию и сертификации в строительстве (МНТКС) 30 мая 2001 г.
3 ВЗАМЕН ГОСТ 27180-86
4 ВВЕДЕН В ДЕЙСТВИЕ с 1 июля 2002 г. в качестве государственного стандарта Российской Федерации постановлением Госстроя России от 6 сентября 2001 г. № 108.
1. Область применения
Настоящий стандарт распространяется на керамические плитки для внутренней облицовки стен, покрытия полов и отделки фасадов и устанавливает методы их испытаний.
Стандарт не распространяется на кислотоупорные и термокислотоупорные керамические плитки.
Применение методов предусматривают в стандартах или технических условиях на конкретные изделия.
Перечень нормативных документов, ссылки на которые использованы в настоящем стандарте, приведен в приложении А .
3.1. Число изделий, отбираемых для контроля, устанавливают в стандартах или технических условиях на конкретные изделия.
3.2. Испытания следует проводить в помещениях с температурой воздуха (20 +- 5)°С и относительной влажностью не менее 50%.
3.3. Для проведения испытаний следует использовать водопроводную воду.
3.4. Для определения износостойкости, термической и химической стойкости глазури, твердости лицевой поверхности по Моосу следует использовать образцы, не имеющие повреждений лицевой поверхности.
Образцы высушивают при температуре (110 +- 5)°С в течение 1 ч, охлаждают и взвешивают. Затем образцы продолжают сушить до постоянной массы. Массу считают постоянной, если расхождение между результатами двух последовательных взвешиваний не будет превышать 0,1% результата предпоследнего взвешивания. Время сушки между двумя последовательными взвешиваниями должно быть не менее 20 мин.
4.1. Внешний вид плиток проверяют визуально при дневном или рассеянном искусственном свете при освещенности от 300 до 400 лк с расстояния 1 м от глаз наблюдателя.
4.2. При контроле внешнего вида плитки укладывают на щите площадью не менее 1 м2, расположенном под углом (45 +- 3)°, с шириной зазора между плитками до 3 мм.
4.3. При контроле цвета (оттенка цвета), рисунка и рельефа лицевой поверхности плитки укладывают на щите вперемежку с образцами-эталонами. Осмотр производят с расстояния 1 м.
Соответствие цвета ковра эталону проверяют с расстояния 10 м после предварительного снятия бумаги.
При контроле фиксируют отличие цвета (оттенка цвета), рисунка и рельефа лицевой поверхности плиток от образцов-эталонов.
Наличие невидимых трещин определяют на слух путем простукивания деревянным или металлическим молоточком массой 0,25 кг.
Плитки, имеющие трещины, при простукивании издают дребезжащий звук.
4.4. Наличие цека определяют визуально. При возникновении разногласий на глазурованную поверхность плитки наносят органический краситель (чернила), протирают мягкой тканью и производят осмотр.
4.5. Измерение дефектов внешнего вида (отбитости, зазубрины, посечки, щербины со стороны лицевой поверхности и т.п.) производят штангенциркулем по ГОСТ 166 или линейкой по ГОСТ 427.
4.6. Соответствие маркировки требованиям стандартов или технических условий проверяют визуально. Маркировку считают соответствующей требованиям, если она включает всю информацию, предусмотренную нормативной документацией на конкретные изделия, и при этом исключена возможность оспорить ее содержание.
4.7. За результат контроля внешнего вида принимают суммарное число плиток, имеющих отклонения от требований стандартов или технических условий на конкретные изделия по показателям внешнего вида.
5. Контроль размеров и правильности формы
Штангенциркуль и штангенциркуль с глубиномером по ГОСТ 166.
Толщиномер или стенкомер по ГОСТ 11358.
Рулетка с ценой деления не более 1 мм по ГОСТ 7502.
Прибор с индикаторами часового типа по ГОСТ 577, ГОСТ 5584 для определения отклонения лицевой поверхности плиток от плоскостности (приложение Б ).
Прибор с индикаторами часового типа по ГОСТ 577, ГОСТ 5584 для определения отклонения формы плитки от прямоугольной и искривления граней плитки (приложение В ).
Плиты калибровочные плоские металлические с точными размерами, соответствующими номинальным размерам измеряемых плиток толщиной не менее 10 мм с ровными плоскими гранями и поверхностями, удовлетворяющие требованиям ГОСТ 10905.
Линейка по ГОСТ 427.
Угольник по ГОСТ 3749.
Щупы по соответствующей нормативной документации.
Погрешность средств измерений не должна быть более: +- 0,1 мм при измерении всех размеров плиток, кроме длины диагоналей; +- 1,0 мм - при измерении длины диагоналей плиток и всех размеров ковров.
Допускается применять другие средства измерений, погрешность которых не ниже требований настоящего стандарта.
5.2.1. Длину и ширину квадратной (прямоугольной) плитки измеряют штангенциркулем вдоль соответствующей грани плитки со стороны лицевой поверхности на расстоянии 5-8 мм от угла.
Измерение длины и ширины многогранных и фигурных плиток проводят по нормативной документации на конкретные изделия.
5.2.2. Толщину плитки измеряют штангенциркулем или толщиномером (стенкомером) посередине каждой стороны изделия на расстоянии не более 15 мм от граней. Место измерения может быть смещено от середины стороны плитки не более чем на 30 мм.
В толщину плитки следует включать величину рельефа лицевой поверхности и рифления на монтажной поверхности.
5.2.3. Длину и ширину ковра измеряют линейкой или рулеткой вдоль соответствующей стороны ковра на расстоянии 50-60 мм от углов и посередине ковра; место измерения может быть смещено от середины соответствующей стороны ковра не более чем на 30 мм.
5.2.4. Измерение величины рифления на монтажной поверхности плитки проводят штангенциркулем с глубиномером в пяти произвольно выбранных точках.
5.2.5. Ширину шва в ковре измеряют линейкой в пяти произвольно выбранных местах ковра.
5.2.6. Для определения отклонения формы ковра от прямоугольной (косоугольность) измеряют длину каждой его диагонали линейкой или рулеткой один раз.
5.2.7. Измерение отклонения лицевой поверхности плитки от плоскостности
5.2.7.1. Отклонение лицевой поверхности плитки от плоскостности (кривизну лицевой поверхности) определяют, используя прибор, схема которого приведена в приложении Б .
Выбирают оснастку прибора и калибровочную плиту в соответствии с номинальными размерами измеряемой плитки. Калибровочную плиту устанавливают на штифтах. Индикаторы выставляют на нулевую отметку. Извлекают калибровочную плиту, на ее место устанавливают контролируемую плитку лицевой поверхностью вниз и регистрируют показания индикаторов.
Квадратную плитку поворачивают три раза на 90° в одном направлении, каждый раз регистрируя показания индикаторов.
При измерении прямоугольной плитки используют два прибора с зеркальным расположением соответствующей оснастки с установкой одного из индикаторов на одном приборе посередине длинной стороны плитки, на другом - посередине короткой. На каждом приборе плитку при измерениях поворачивают один раз на 180°.
При контроле плитки с вогнутой лицевой поверхностью линейку прикладывают ребром к лицевой поверхности вдоль каждой диагонали и измеряют наибольший зазор между лицевой поверхностью и ребром линейки.
При контроле плитки с выпуклой лицевой поверхностью линейку располагают вдоль каждой диагонали, при этом ребро линейки одним концом должно опираться на щуп толщиной, равной допустимой величине искривления. На другом конце диагонали измеряют зазор между ребром линейки и лицевой поверхностью плитки.
5.2.7.3. Величину искривления рельефных плиток определяют со стороны монтажной поверхности.
5.2.8. Измерение искривления граней плитки
5.2.8.1. Искривление граней плитки определяют, используя прибор, схема которого приведена в приложении В .
Выбирают прибор и калибровочную плиту в соответствии с номинальными размерами измеряемой плитки. Калибровочную плиту помещают на основание прибора, прижимая к установочным штифтам, и выставляют индикатор 3 на нулевую отметку. Извлекают калибровочную плиту, на ее место устанавливают контролируемую плитку лицевой поверхностью вниз и регистрируют показания индикатора.
На квадратной плитке проводят измерения всех граней, поворачивая ее на 90° в одном направлении.
Для измерения прямоугольной плитки используют два прибора, при этом на одном приборе индикатор 3 должен быть установлен на длинной стороне плитки, на другом - на короткой. На каждом приборе плитку при измерениях поворачивают один раз на 180°.
5.2.8.2. До 01.07.2004 г. допускается искривление граней плитки измерять по 5.2.7.2 , при этом ребро линейки прикладывают к каждой грани контролируемого изделия параллельно ребру, ограничивающему лицевую поверхность плитки.
5.2.9. Определение отклонения формы плитки от прямоугольной (косоугольность)
5.2.9.1. Отклонение формы плитки от прямоугольной определяют, используя прибор, схема которого приведена в приложении В .
Выбирают прибор и калибровочную плиту в соответствии с номинальными размерами измеряемой плитки. Калибровочную плиту помещают на основание прибора, прижимая к установочным штифтам, и выставляют индикатор 5 на нулевую отметку. Извлекают калибровочную плиту, на ее место устанавливают контролируемую плитку лицевой стороной вниз и регистрируют показания индикатора.
На квадратной плитке проводят измерения всех углов, поворачивая ее на 90° в одном направлении.
Для измерения прямоугольной плитки используют два прибора, при этом на одном приборе индикатор 5 должен быть установлен на длинной стороне плитки, на другом - на короткой. На каждом приборе плитку при измерениях поворачивают один раз на 180°.
5.2.9.2. Отклонение формы плитки от прямоугольной может быть также измерено щупом с использованием в качестве прямоугольной базы металлического угольника с длиной сторон не менее длины граней измеряемой плитки.
Угольник последовательно прикладывают ко всем углам плитки так, чтобы одна его сторона плотно прилегала к грани плитки, и измеряют наибольший зазор между другой стороной угольника и гранью плитки.
5.3.1. При всех измерениях плитки и вычислениях среднеарифметического значения толщины показание средства измерения и получаемые результаты округляют до 0,1 мм.
5.3.2. При всех измерениях ковра и вычислениях среднеарифметического значения длины и ширины ковра показание средства измерения и получаемые результаты округляют до 1 мм.
5.3.3. Каждое измеренное значение длины, ширины и величины рифления на монтажной поверхности плитки и ширины шва в ковре должно соответствовать требованиям, установленным нормативной документацией на конкретные изделия.
5.3.4. За длину и ширину ковра принимают среднеарифметическое значение результатов трех измерений, при этом результат каждого измерения должен соответствовать требованиям, установленным нормативной документацией на конкретное изделие.
5.3.5. За толщину квадратной (прямоугольной) плитки принимают среднеарифметическое значение результатов четырех измерений, при этом разность между наибольшим и наименьшим значениями (разнотолщинность) не должна превышать требований, установленных нормативной документацией на конкретные изделия.
За толщину плитки, имеющей форму, отличную от квадратной (прямоугольной), принимают среднеарифметическое значение результатов всех измерений, если иное не указано в нормативной документации на конкретные изделия.
5.3.6. За отклонение формы плитки от прямоугольной (косоугольность) принимают наибольшее из измеренных значений.
5.3.7. Отклонение формы ковра от прямоугольной (косоугольность) вычисляют по разности длин измеренных диагоналей.
5.3.8. За отклонение лицевой поверхности плитки от плоскостности (кривизну лицевой поверхности) принимают:
- при проведении измерений по 5.2.7.1 - наибольшее из измеренных значений;
- при проведении измерений по 5.2.7.2 :
а) наибольшее из измеренных значений - при вогнутой лицевой поверхности;
б) половину суммы наибольшей измеренной величины зазора и толщины щупа - при выпуклой лицевой поверхности.
5.3.9. За искривление граней плитки принимают:
- при проведении измерений по 5.2.8.1 - наибольшее из измеренных значений;
- при проведении измерений по 5.2.8.2 :
а) наибольшее из измеренных значений - при вогнутой грани;
б) половину суммы наибольшей измеренной величины зазора и толщины щупа - при выпуклой грани.
6. Определение прочности наклеивания плиток на бумагу
6.1. Прочность наклеивания плиток размером не более 50 х 50 мм на бумагу в коврах определяют плотным свертыванием ковра в рулон бумагой внутрь и его последующим развертыванием. В начале свертывания ковра два смежных крайних рада плиток должны соприкасаться поверхностями, наклеенными на бумагу.
После трехкратного свертывания и развертывания ни одна плитка не должна оторваться от бумаги.
6.2. Прочность наклеивания плиток размером свыше 50 х 50 до 150 х 75 мм на бумагу в коврах определяют, подвесив ковер в вертикальное положение не менее чем на 1 мин. При этом ни одна плитка не должна оторваться от бумаги.
Шкаф сушильный лабораторный с перфорированными полками, позволяющий автоматически поддерживать температуру (110 +- 5)°С.

"Рисунок 1. Схема установки экспресс-контроля водопоглощения"
Кассеты для установки образцов в вертикальном положении так, чтобы они не соприкасались друг с другом для тех случаев, когда размеры сушильного шкафа не позволяют разместить целые плитки в горизонтальном положении на полках.
Весы лабораторные технические по ГОСТ 24104 с погрешностью не более 0,01 г при взвешивании образцов массой не более 100 г и погрешностью 0,1 г - при взвешивании образцов массой более 100 г.
Плита электрическая или газовая бытовая.
Емкость для кипячения с металлической сеткой или проволочной подставкой.
Ткань мягкая или губка.
Установка экспресс-контроля водопоглощения (ЭКВ), принципиальная схема которой приведена на рисунке 1 .
Испытания проводят на целых плитках или на частях одной плитки любой формы массой не менее 50 г, считающихся одним образцом, при этом число частей плитки должно быть не менее трех.
7.3.1. Образцы, высушенные по 3.5 , охлаждают и взвешивают.
7.3.2. При проведении испытания насыщение образцов водой можно проводить как кипячением, так и в вакуумной камере.
В арбитражных ситуациях насыщение образцов водой следует проводить кипячением.
7.3.2.1. Образцы, подготовленные по 7.3.1 , помещают в емкость для кипячения на металлическую сетку или проволочную подставку так, чтобы они не соприкасались друг с другом. Затем наливают воду, уровень которой должен быть выше образцов не менее чем на 50 мм. Воду доводят до кипения и выдерживают образцы в кипящей воде в течение 1 ч. В процессе кипячения воду доливают, чтобы ее уровень был выше образцов. Затем образцы оставляют в той же воде на 4 ч для охлаждения.
7.3.2.2. Образцы, подготовленные по 7.3.1, помещают в вакуумную камеру, из которой откачивают воздух. Остаточное давление в камере не должно быть более 2,7 кПа (приблизительно 20 мм рт.ст.). При этом давлении образцы выдерживают в течение 10 с, после чего в камеру подают воду до заданного уровня и сообщают камеру с атмосферой. Насыщение образцов при атмосферном давлении должно продолжаться в течение 60 с.
7.3.3. После насыщения образцов водой по 7.3.2.1 или 7.3.2.2 их извлекают из воды, протирают влажной мягкой тканью или губкой для удаления с поверхности капель влаги и взвешивают. Результаты взвешивания округляют до 0,1 г.
Водопоглощение W, %, вычисляют по формуле
W = ────── 100, (1)
m1
где m1 - масса образца, высушенного до постоянной массы, г;
m2 - масса образца, насыщенного водой, г.
Результат вычисления округляют до 0,1%.
За водопоглощение плиток данной партии принимают среднеарифметическое значение результатов испытаний всех образцов.
8. Определение предела прочности при изгибе
Устройство любой конструкции, обеспечивающее возможность приложения нагрузки со скоростью 17-25 Н/с по схеме, приведенной на рисунке 2 , и имеющее прибор, позволяющий измерить разрушающую нагрузку с погрешностью не более 2%.
Опоры и деталь, передающая нагрузку, в месте соприкосновения с образцом должны иметь цилиндрическую форму радиусом от 5 до 10 мм. Длина опор и детали, передающей нагрузку, должна быть не менее ширины образца. Обе опоры должны иметь возможность качаться около своей горизонтальной оси.
Прокладки резиновые толщиной (2,5 +- 0,5) мм, шириной (20 +- 5) мм и длиной не менее ширины испытываемого образца.

"Рисунок 2. Схема испытания плиток на прочность при изгибе"
Шкаф сушильный по 7.1.
Штангенциркуль по ГОСТ 166.
Испытания проводят на целых плитках, не подвергавшихся другим испытаниям и высушенных по 3.5.
8.3. Подготовка и проведение испытания
Устанавливают расстояние между осями опор, равное от 80 до 90% длины испытываемого образца. Образец кладут на две опоры лицевой поверхностью вверх, между опорами и образцом, а также между деталью, передающей нагрузку, и образцом помещают, резиновые прокладки. При использовании устройств, в которых детали, соприкасающиеся с образцом, обрезинены, резиновые прокладки не применяют. Нагрузку повышают со скоростью 17-25 Н/с до разрушения образца. Затем измеряют ширину и толщину образца; ширина образца может быть измерена также до проведения испытания.
Толщину измеряют штангенциркулем в трех точках в местах излома без рифлений. За толщину плитки принимают среднеарифметическое значение результатов трех измерений. В случае, если нет возможности измерить толщину плитки без рифлений, то за толщину принимают наименьшее из полученных значений.
Предел прочности при изгибе Rизг , МПа, вычисляют по формуле
Rизг = ───────, (2)
2bh2
где F - разрушающая нагрузка, Н;
l - расстояние между осями опор, мм;
b - ширина образца, мм;
h - толщина образца, мм.
Результат вычисления округляют до 0,1 МПа.
За предел прочности при изгибе плиток данной партии принимают среднеарифметическое значение результатов испытаний всех образцов.
9. Определение износостойкости неглазурованных плиток
Шкаф сушильный, весы технические с погрешностью не более 0,01 г по 7.1.
Штангенциркуль по ГОСТ 166.
Песок кварцевый по ГОСТ 22551 фракций от 0,50 до 0,25 мм (50%) и менее 0,25 до 0,16 мм (50%).
Круг истирания типа ЛКИ-3 или установка, схема которой приведена на рисунке 3 , состоящая из горизонтального шлифовального металлического диска, укрепленного на вертикальном приводном валу, держателя испытываемого образца и нагрузочного устройства, обеспечивающего равномерное давление на образец, равное 0,06 МПа. Держателем образца является квадратная, открытая с одной стороны рамка, нижняя грань которой находится на (3 +- 1) мм выше металлического диска. За держателем образца расположены два резиновых скребка, которые направляют абразивный материал так, чтобы он попадал на центр набегающей грани образца. Скорость вращения диска на среднем радиусе должна составлять (30 +- 1) м/мин.

"Рисунок 3. Схема установки для испытаний на износостойкость неглазурованных плиток"
Из каждой плитки, отобранной для контроля, выпиливают по одному квадратному образцу с размерами сторон (70 +- 1) или (50 +- 1) мм. Если плитка имеет указанные размеры, то ее испытывают целиком.
9.3. Подготовка и проведение испытания
Образец, подготовленный по 3.5 , взвешивают, измеряют его длину и ширину и вычисляют площадь. Результат вычислений округляют до 0,1 см2. Образец (образцы) помещают в держатель лицевой поверхностью к шлифовальному диску и нагружают его так, чтобы было обеспечено давление 0,06 МПа.
На шлифовальную дорожку равномерно насыпают слой абразивного материала в количестве 0,4 г на 1 см2 поверхности образца и включают привод шлифовального диска. После 30 м пути шлифовальный диск останавливают, образец извлекают, тщательно очищают и взвешивают. Шлифовальный диск очищают от отработанного абразивного материала.
Затем испытываемый образец поворачивают на 90° и продолжают испытание с новой порцией абразивного материала. Этот процесс повторяют на одном образце четыре раза, каждый раз поворачивая его на 90° в одном направлении.
Если расхождение между наименьшей и наибольшей потерями массы после отдельных циклов составляет менее 3% общей потери массы после четырех циклов, испытание считают завершенным.
Если это расхождение больше, то испытание продолжают тем же способом и проводят 12 циклов шлифования.
Износостойкость Q, г/см2, вычисляют по формулам:
3m 4
Q = ─────; (3)
S
m12
Q = ─────; (4)
S
где m4 - суммарная потеря массы после 4 циклов, г;
m12 - суммарная потеря массы после 12 циклов, г;
S - площадь образца, см2;
3 - коэффициент приведения к 12 циклам испытания.
Результат вычисления округляют до 0,01 г/см2 .
За износостойкость плиток данной партии принимают среднеарифметическое значение результатов испытаний всех образцов.
10. Определение износостойкости глазурованных плиток
Шкаф сушильный, весы технические с погрешностью не более 0,01 г по 7.1.
Цилиндр мерный с ценой деления не более 1 мл.
Сита с отверстиями 0,63 и 0,70 мм.
Корунд искусственный с зернами размером от 0,125 до 0,160 мм.
Шарики стальные диаметром 1, 2, 3 и 5 мм.
Установка, схема которой приведена на рисунке 4 , состоит из основной несущей плиты, приводимой в движение валом, который обеспечивает вращение плиты со скоростью (300 +- 1) об/мин с эксцентриситетом 22,5 мм, и металлических накладок с резиновыми шайбами, прижимающими испытываемые образцы к несущей плите. Резиновые шайбы ограничивают площадь поверхности образца, равную 54 см2, и предназначены для заполнения шлифовальной смесью. Число одновременно испытываемых образцов может быть различным в зависимости от конструкции установки.

"Рисунок 4. Схема установки для испытания на износостойкость глазурованных плиток"
Из каждой плитки, отобранной для контроля, выпиливают по одному квадратному образцу с размерами сторон (100 +- 1) мм. Если плитка имеет указанный размер, то ее испытывают целиком. Для плиток с номинальными размерами 400 х 400 мм и более выпиливают от каждого изделия, отобранного для контроля, по два образца, один из которых подвергают испытанию, а другой является контрольным.
Для определения износостойкости используют шестнадцать образцов, из них восемь подвергают испытанию, а восемь являются контрольными для визуального сравнения.
Восемь образцов, очищенных от пыли и высушенных по 3.5 , укрепляют на несущей плите установки. В шайбы помещают подготовленную шлифовальную смесь следующего состава:
смесь стальных шариков массой 175 г, в том числе:
диаметром 1 мм - 8,7 г (5%)
" 2 мм - 43,8 г (25%)
" 3 мм - 52,5 г (30%)
" 5 мм - 70,0 г (40%);
искусственный корунд - 3,0 г;
вода - 20 см3.
Несущую плиту установки приводят во вращение, а затем последовательно после 150, 300, 450, 600, 900, 1200, 1500 и 1800 оборотов плиты извлекают по одному образцу.
Образцы промывают в проточной воде и помещают в сушильный шкаф примерно на 30 мин для подсушки лицевой поверхности, затем последовательно после каждого цикла помещают по одному образцу в середину квадрата, составленного из восьми контрольных образцов. Получившийся квадрат из девяти образцов рассматривают с расстояния 2 м с высоты человеческого роста при освещенности 300-400 лк в закрытом помещении.
После цикла испытания (числа оборотов в соответствии с таблицей 1 ), на котором обнаружено первое видимое повреждение или изменение лицевой поверхности образца, испытание прекращают.
По циклу испытания, на котором обнаружено первое видимое повреждение или изменение лицевой поверхности, устанавливают степень износостойкости партии плиток в соответствии с таблицей 1.
| Степень износостойкости | Цикл испытания | Число оборотов плиты установки |
| 1 | 1 | 150 |
| 2 | 2 3 4 |
300 450 600 |
| 3 | 5 6 7 |
900 1200 1500 |
| 4 | 8 | 1800 и более |
11. Определение термической стойкости глазури
Шкаф сушильный лабораторный с перфорированными полками, позволяющий автоматически поддерживать температуру 125 и 150°С с погрешностью +- 5°С.
Подставка (кассета) для установки образцов таким образом, чтобы они не соприкасались друг с другом.
Емкость для охлаждения образцов в воде.
Ткань мягкая.
Раствор органического красителя (чернила).
Для определения термической стойкости глазури используют целые плитки.
Образцы, подготовленные по 3.5 , ставят в кассету и вместе с ней помещают в нагретый до заданной температуры сушильный шкаф.
Образцы всех плиток, кроме плиток для внутренней облицовки стен, покрытых белой глазурью, выдерживают в сушильном шкафу при температуре 125°С, плитки для внутренней облицовки стен, покрытые белой глазурью, - при температуре 150°С в течение 30 мин. Затем плитки извлекают и сразу помещают в емкость для охлаждения проточной водой с температурой (15 +- 5)°С так, чтобы плитки были полностью покрыты водой.
После охлаждения плитки извлекают из воды, на их глазурованную поверхность наносят несколько капель органического красителя, а затем протирают мягкой тканью и осматривают.
Плитки считают термически стойкими, если после испытания не будет обнаружено повреждение их глазурованной поверхности.
Партию плиток считают термически стойкой, если все образцы выдержали испытания.
12. Определение морозостойкости
Камера морозильная с принудительной циркуляцией воздуха, обеспечивающая поддержание температуры воздуха в камере от минус 15 до минус 20°С.
Термостат или другой прибор, обеспечивающий поддержание температуры воды от 15 до 20°С.
Емкость для насыщения образцов водой.
Контейнер для образцов.
Для определения морозостойкости используют целые плитки. Для плиток номинальными размерами 400 х 400 мм и более допускается проводить испытание на образцах. От каждого изделия, отобранного для контроля, выпиливают по одному образцу размером 300 х 300 мм.
Образцы насыщают водой одним из двух способов.
Первый способ - образцы насыщают водой кипячением в соответствии с 7.3.2.1.
Второй способ - образцы помещают на решетку в емкость с водой так, чтобы уровень воды был выше образцов не менее чем на 50 мм. Образцы выдерживают в воде с температурой 15-20°С в течение 48 ч, после чего их протирают влажной тканью.
Насыщенные водой образцы помещают в контейнер так, чтобы они не соприкасались друг с другом. При размещении образцов в несколько рядов по высоте отдельные ряды плиток разделяют прокладками толщиной не менее 20 мм. Общий объем контейнера (контейнеров) с образцами не должен превышать 50% объема морозильной камеры.
Проводят попеременное замораживание и оттаивание образцов по следующей схеме:
- замораживание в течение (2 +- 0,2) ч при температуре воздуха в морозильной камере от минус 15 до минус 20°С;
- оттаивание в течение (1 +- 0,1) ч в воде с температурой 15-20°С.
Цикл испытания - совокупность одного периода замораживания и оттаивания образцов.
Число циклов устанавливают в стандартах или технических условиях на конкретные изделия. Началом замораживания образцов считают температуру воздуха в камере минус 15°С.
В случае временного прекращения испытания образцы после оттаивания должны храниться в воде.
Образцы осматривают после каждого цикла испытания независимо от общего числа циклов испытаний. Выявление повреждений образцов (разрушение, образование сколов, трещин, расслоение и т.п.) проводят после оттаивания.
Образцы считают морозостойкими, если после установленного числа циклов не обнаружено их повреждения как с лицевой, так и с монтажной поверхности. Если повреждение образцов наступило раньше, то указывают цикл, на котором было обнаружено это повреждение.
Партию плиток считают морозостойкой, если все испытанные образцы выдержали установленное число циклов испытаний.
13. Определение химической стойкости глазури
Шкаф сушильный по 7.1.
Цилиндр из химически стойкого стекла диаметром от 30 до 50 мм и высотой не менее 50 мм.
Мастика уплотняющая по ГОСТ 14791.
Растворители органические (для обезжиривания лицевой поверхности), например, ацетон по ГОСТ 2768, метанол по ГОСТ 2222, спирт этиловый по ГОСТ 17299 или ГОСТ 18300 и т.п.
Растворы для испытания:
N 2 - раствор гидроокиси калия, приготовленный из 30 г КОН марки х.ч. по ГОСТ 9285 на 1 дм3 дистилированной # воды по ГОСТ 6709;
N 3 - стандартный раствор, приготовленный из 10 г сухого вещества на 1 дм3 раствора; сухое вещество представляет собой высушенную при температуре 105°С смесь следующих компонентов:
- 33% углекислого натрия безводного по ГОСТ 5100;
- 7% тетрабората натрия (Na2В4O x 10 H2O) по ГОСТ 4199;
ГОСТ 13079
- 7% силиката натрия плотностью 1,33 г/см3 по ─────────;
ГОСТ Р 50418
- 30% мыльных хлопьев из олеата натрия (допускается приготавливать из гидроокиси натрия и олеиновой кислоты в соотношении 2,6:18,5);
- 23% дистиллированной воды.
Для проведения испытания используют целые плитки.
Лицевую поверхность образца тщательно очищают органическим растворителем. Стеклянный цилиндр приклеивают уплотняющей мастикой к глазурованной поверхности образца и наполняют его одним из растворов, указанных в 13.1 , на высоту (20 +- 1) мм.
Для испытания используют свежеприготовленные растворы.
Образцы, испытываемые растворами N 1 и N 2 , выдерживают в течение 7 сут., один раз в сутки образцы легко постукивают, а после 4 сут. растворы обновляют.
Образцы, испытываемые раствором N 3 , выдерживают в течение 6 ч.
По истечении указанного времени растворы сливают, стеклянные цилиндры снимают, глазурованную поверхность плитки промывают водой, тщательно очищают органическим растворителем и помещают плитки в сушильный шкаф для подсушивания лицевой поверхности примерно на 30 мин., а затем осматривают.
Глазурь считают химически стойкой к действию отдельных растворов, если при осмотре с расстояния 25 см при дневном свете нет явного изменения испытываемой поверхности по сравнению с исходной поверхностью. Особое внимание обращают на изменение блеска глазури, окраски и рисунка испытываемой поверхности.
Партию плиток считают химически стойкой, если все образцы выдержали испытания.
14. Определение твердости лицевой поверхности по Моосу
Минералы пробные, указанные в таблице 2.
| Наименование пробного минерала | Твердость поверхности по шкале Мооса |
Тальк Гипс Известняк Флюорит Апатит Полевой шпат Кварц Топаз Корунд |
1 2 3 4 5 6 7 8 9 |
Для определения твердости по Моосу используют целые плитки.
Образец помещают на ровную твердую поверхность. Острой гранью пробного минерала легким и равномерным нажатием проводят по лицевой поверхности испытываемого образца, затем ее осматривают.
При необходимости эту процедуру можно повторить на одном образце несколько раз до установления четкого результата.
Твердость лицевой поверхности образца соответствует твердости того пробного минерала, который предшествовал минералу, повредившему поверхность образца.
За твердость лицевой поверхности плиток данной партии принимают наименьшее значение твердости лицевой поверхности испытанных образцов.
15. Определение температурного коэффициента
линейного расширения
Определение предназначено для подбора составов масс и глазурей при проведении технологических и исследовательских работ.
Дилатометр, позволяющий фиксировать линейные изменения образца в интервале температур 20-600°С с погрешностью не более 0,001 мм.
Шкаф сушильный, позволяющий автоматически поддерживать температуру (250 +- 5)°С.
Штангенциркуль по ГОСТ 166 с шагом дискретности цифрового отсчетного устройства не более 0,01 мм.
Эксикатор по ГОСТ 23932.
Изготавливают два образца длиной (50 +- 1) мм, сечением [(5 +- 0,5) х (5 +- 0,5)] мм. Торцевые грани образцов должны быть отшлифованы таким образом, чтобы они были взаимно параллельны и перпендикулярны по отношению к продольной оси образца.
Образец высушивают в течение 1 ч при температуре 250°С, после чего помещают в эксикатор для остывания до температуры помещения. Штангенциркулем измеряют длину образца с точностью до 0,01 мм, помещают образец в дилатометр, нагревают со скоростью подъема температуры (5 +- 1)°С в минуту до 600°С и регистрируют изменение длины образца.
Температурный коэффициент линейного расширения альфа, °С, вычисляют по формуле
альфа = ──── ──────── + альфа', (5)
L0 Дельта t
где L0 - исходная длина образца, мм;
Дельта L - изменение длины образца, мм;
Дельта t - интервал температур, °С;
альфа' - поправка на расширение кварцевого стекла трубки
дилатометра в интервале от комнатной температуры до 600°С.
Результат вычисления округляют до 0,1 х 10(-6)°С.
За температурный коэффициент линейного расширения принимают среднеарифметическое значение результатов испытаний двух образцов.
(справочное)
Перечень нормативных документов,
ссылки на которые приведены в настоящем стандарте
ГОСТ 166-89 Штангенциркули. Технические условия
ГОСТ 427-75 Линейки измерительные металлические. Технические условия
ГОСТ 577-68 Индикаторы часового типа с ценой деления 0,01 мм. Технические условия
ГОСТ 2222-95 Метанол технический. Технические условия
ГОСТ 2768-84 Ацетон технический. Технические условия
ГОСТ 3118-77 Кислота соляная. Технические условия
ГОСТ 3749-77 Угольники поверочные 90°. Технические условия
ГОСТ 4199-76 Натрий тетраборнокислый 10-водный. Технические условия
ГОСТ 5100-85 Сода кальцинированная техническая. Технические условия
ГОСТ 5584-75 Индикаторы рычажно-зубчатые с ценой деления 0,01 мм. Технические условия
ГОСТ 6709-72 Вода дистиллированная. Технические условия
ГОСТ 7502-98 Рулетки измерительные металлические. Технические условия
ГОСТ 9285-78 Калия гидрат окиси технический. Технические условия
ГОСТ 10905-86 Плиты поверочные и разметочные. Технические условия
ГОСТ 11358-89 Толщиномеры и стенкомеры индикаторные с ценой деления 0,01 и 0,1 мм. Технические условия
ГОСТ 13079-93
────────── Силикат натрия растворимый. Технические условия
ГОСТ Р 50418-92
ГОСТ 14791-79 Мастика герметизирующая нетвердеющая строительная. Технические условия
ГОСТ 17299-78 Спирт этиловый технический. Технические условия
ГОСТ 18300-87 Спирт этиловый ректификованный технический. Технические условия
ГОСТ 22551-77 Песок кварцевый, молотые песчаник, кварцит и жильный кварц для стекольной промышленности. Технические условия
ГОСТ 23932-90 Посуда и оборудование лабораторные стеклянные. Общие технические условия
ГОСТ 24104-88 Весы лабораторные общего назначения и образцовые. Общие технические условия
Взамен ГОСТ 24104-88 постановлением РФ от 26 октября 2001 г . N 439-ст введен в действие с 1 июля 2002 г. ГОСТ 24104-2001
(обязательное)
Схема прибора для определения отклонения
лицевой поверхности плитки от плоскостности
Б.1. Прибор, приведенный на рисунке Б.1 , состоит из установочной плиты с ограничителями установки граней плитки, которая закреплена на двух стойках на основании прибора.
Установочная плита оснащена тремя установочными штифтами диаметром 5 мм, расстояние между осями штифтов и гранями измеряемой плитки составляет 10 мм. На установочной плите размещены индикаторы часового типа в трех точках в соответствии с рисунком Б.1: в центре плитки (на пересечении диагоналей квадрата или прямоугольника), в середине одной стороны на расстоянии 10 мм от грани измеряемой плитки и в углу на расстоянии 10 мм от каждой из смежных граней измеряемой плитки.

Примечание : На рисунке Б.1 изображен один из трех индикаторов
(обязательное)
Схема прибора для определения отклонения формы плитки
от прямоугольной и искривления граней плитки
B.1. Прибор, приведенный на рисунке B.1 , состоит из основания и угольника, оборудованного тремя установочными штифтами, которые расположены на расстоянии 5 мм от граней измеряемой плитки (рисунок B.1). На угольнике расположены два индикатора часового типа в соответствии с рисунком В.1: один посередине установочных штифтов, второй - на расстоянии 5 мм от грани измеряемой плитки.

Глава 8. Средства информации о товаре (маркировка).
ТОВАРЫ НЕПРОДОВОЛЬСТВЕННЫЕ
ИНФОРМАЦИЯ ДЛЯ ПОТРЕБИТЕЛЯ
ОБЩИЕ ТРЕБОВАНИЯ
ГОССТАНДАРТ РОССИИ
Дата введения 1998-07-01
ГОСТ Р 51121-97
Информационные данные
1 РАЗРАБОТАН Рабочей группой, образованной распоряжением Госстандарта России от 1 октября 1997 г. № 101, во исполнение постановления Правительства Российской Федерации от 15 августа 1997 г. № 1037 «О мерах по обеспечению наличия на ввозимых на территорию Российской Федерации непродовольственных товарах информации на русском языке»
2 ВНЕСЕН Научно-техническим управлением Госстандарта России
3 ПРИНЯТ Постановлением Госстандарта России от 30 декабря 1997 г., № 439
1. Область применения
Настоящий стандарт устанавливает требования к информации для потребителя непродовольственных товаров.
Настоящий стандарт распространяется на непродовольственные товары отечественного и импортного производства, реализуемые на территории Российской Федерации, и устанавливает общие требования к информации о них для потребителей.
Настоящий стандарт не распространяется на информацию для потребителей продукции следующих отраслей:
- авиационная техника;
- судостроение;
- ракетно-космическая техника;
- строительная индустрия;
- вооружение и военная техника;
- изделия и материалы атомной промышленности;
- полиграфическая продукция, произведения искусства, единичные изделия художественного и народного промысла;
- парфюмерно-косметические изделия;
- лекарства и лекарственные препараты.
Настоящий стандарт не распространяется на информацию о комплектующих изделиях и запасных частях, предназначенных для поддержания конкретных непродовольственных товаров в работоспособном состоянии и не поступающих в розничную торговлю.
2. Нормативные ссылки
ГОСТ 2.601-95 Единая система конструкторской документации. Эксплуатационные документы
ГОСТ Р 50460-92 Знак соответствия при обязательной сертификации. Форма, размеры и технические требования
ГОСТ Р 1.9-95 Государственная система стандартизации Российской Федерации. Порядок маркирования продукции и услуг знаком соответствия государственным стандартам
3. Определения
В настоящем стандарте применены следующие термины с соответствующими определениями:
3.1 непродовольственный товар: Продукт производственного процесса, предназначенный для продажи его гражданам или субъектам хозяйственной деятельности, но не с целью употребления его в пищу человеком и (или) представителями животного мира (далее - товар);
3.2 потребитель: Гражданин или субъект хозяйственной деятельности, имеющий намерение заказать или приобрести, либо заказывающий или приобретающий конкретные непродовольственные товары для собственного использования;
3.3 покупатель: Субъект хозяйственной деятельности, приобретающий товар не для собственного использования;
3.4 изготовитель: Отечественный или зарубежный субъект хозяйственной деятельности любой формы собственности, производящий конкретные непродовольственные товары для их реализации в Российской Федерации гражданам или другим субъектам хозяйственной деятельности;
3.5 продавец: Отечественный или зарубежный субъект хозяйственной деятельности любой формы собственности, реализующий конкретные непродовольственные товары;
3.6 конкретный товар: Товар определенного вида и модели (марки, фасона, артикула и т. п.), производимый конкретным отечественным или зарубежным изготовителем;
3.7 товарный знак: Обозначение, позволяющее отличать товар одних изготовителей от аналогичных по виду и назначению товаров других отечественных и зарубежных изготовителей;
3.8 дата изготовления: Дата, проставляемая изготовителем товара и фиксирующая начало соответствия этого товара установленным требованиям;
3.9 срок годности (или службы): Срок в течение которого товар пригоден для эффективного использования по назначению;
3.10 маркировка: Информация, наносимая изготовителем непосредственно на конкретные товары, тару, этикетки или ярлыки и т. п.
Примечания:
1 Если конкретный товар упаковывают в транспортную или иную тару, в которой он будет предложен к продаже, дату изготовления следует дополнить датой упаковки этого товара, проставляемой на транспортной таре и (или) упаковке (потребительской таре).
2 По истечении срока годности конкретные товары считаются непригодными для их использования по прямому основному (или функциональному) назначению. Изготовитель, устанавливая срок годности, обязан гарантировать (при полном соблюдении условий хранения и транспортирования) соответствие конкретных товаров требованиям безопасности для жизни и здоровья потребителей, экологической безопасности, физико-химических свойств, а также сообщить необходимые действия потребителя по его истечении.
3 Срок годности (или службы) устанавливает изготовитель конкретных товаров с указанием обязательных условий хранения и транспортирования.
4. Общие требования к информации для потребителя
4.1 Изготовитель или продавец обязаны своевременно предоставлять потребителю и (или) покупателю (далее - потребителю) всю необходимую и достоверную информацию о предлагаемых для реализации непродовольственных товарах, обеспечивающую возможность их компетентного выбора.
4.2 Информация для потребителя в зависимости от вида и технической сложности товара должна быть представлена в виде текстового документа (паспорт, формуляр, руководство по применению и др.), прикладываемого непосредственно к конкретному товару и (или) в виде маркировки.
4.3 Информацию для потребителя, предоставляемую непосредственно с конкретным товаром, оформляют на русском языке. Информация может быть полностью или частично продублирована на иностранных языках, а также по требованию заказчика на государственных языках субъектов Российской Федерации и родных языках народов Российской Федерации.
4.4 Информация для потребителя должна быть однозначно понимаемой, полной и достоверной.
4.5 Для отечественных товаров, изготовляемых по конструкторской документации, информация для потребителя должна соответствовать ГОСТ 2.601.
4.6 Информация для потребителя конкретного товара должна содержать следующие данные:
1 наименование товара;
2 наименование страны-изготовителя;
3 наименование фирмы-изготовителя (наименование фирмы-изготовителя может быть дополнительно обозначено буквами латинского алфавита);
4 основное (или функциональное) предназначение товара или область его применения;
5 правила и условия безопасного хранения, транспортирования, безопасного и эффективного использования, ремонта, восстановления, утилизации, захоронения, уничтожения (при необходимости);
6 основные потребительские свойства или характеристики;
7 информацию об обязательной сертификации;
8 юридический адрес изготовителя и (или) продавца;
9 массу нетто, основные размеры, объем или количество;
10 состав (комплектность);
11 товарный знак (товарная марка) изготовителя (при наличии);
12 дату изготовления;
13 срок годности (или службы);
14 обозначение нормативного или технического документа, по которому изготавливается товар (для товаров отечественного производства);
15 информацию о добровольной сертификации (при наличии);
16 информацию о знаке соответствия товара государственным стандартам (на добровольной основе);
17 штриховой код товара (при наличии);
18 специфическую информацию для потребителя (при необходимости);
Примечания:
1 Подпункты 1-8 являются обязательными для указания изготовителями и (или) продавцами.
2 В зависимости от вида и технической сложности товара изготовитель и (или) продавец вправе применить все или только часть из подпунктов 9-18, обеспечив при этом необходимую и достаточную для потребителя информацию, в том числе по безопасности, экологичности и энергоэкономичности товара.
3 Для отечественных товаров информация для потребителя, приводимая в соответствии с подпунктами 9-18, должна быть дополнена информацией в соответствии с требованиями других государственных стандартов или других нормативных документов на конкретный товар.
4 Соответствие товара заявленной информации является обязательным требованием для изготовителя и (или) продавца.
4.7 Наименования товаров должны соответствовать государственным стандартам Российской Федерации, общероссийским классификаторам технико-экономической информации.
Товары, не являющиеся традиционными для России, поступающие по импорту, должны иметь наименования, соответствующие международным, региональным, национальным стандартам, а при их отсутствии - названиям, принятым в стране-изготовителе.
Использование в наименовании товара таких характеристик, как «Экологически чистый», «Радиационно безопасный», «Изготовленный без применения вредных веществ» и других, имеющих рекламный характер, допускается только при указании нормативного или технического документа изготовителя, устанавливающего метод проверки (контроля) и позволяющего осуществлять идентификацию этих характеристик товара, а также при подтверждении их компетентными органами.
4.8 Наименование страны-изготовителя товара указывается по принятому в ООН названию страны.
Если товар, изготовленный в одной стране, проходит в другой стране последующую технологическую обработку, которая изменяет его свойства и (или) превращает в конечное готовое изделие, то при нанесении информации эта другая страна должна рассматриваться как страна-изготовитель данного конкретного товара.
4.9 В информации для потребителя товара следует использовать официальное наименование изготовителя и его юридический адрес.
Если изготовитель товара не является одновременно упаковщиком и (или) экспортером, то наряду с наименованием изготовителя и его адресом должны быть указаны упаковщик и (или) экспортер и их юридические адреса.
Наименование фирмы-изготовителя, упаковщика и (или) экспортера может быть написано буквами латинского алфавита с одновременным обязательным указанием названия фирмы-изготовителя буквами русского алфавита, обеспечивающими правильное произношение на русском языке.
4.10 Основное (или функциональное) назначение отечественного товара или область его применения (эксплуатации или использования) должно сообщаться потребителю в полном соответствии с нормативным или техническим документом на поставляемый товар.
4.11 Правила и условия безопасного хранения и транспортирования товара должны сообщаться потребителю в полном соответствии с требованиями нормативного или технического документа на поставляемый товар.
4.12 Правила и условия безопасного и технически эффективного использования товара должны сообщаться потребителю в полном соответствии с требованиями нормативного или технического документа на поставляемый товар.
4.13 Правила и условия безопасного и технически эффективного ремонта, восстановления товара должны сообщаться потребителю в полном соответствии с требованиями нормативного или технического документа на поставляемый товар.
4.14 Правила и условия экологически безопасной и технически эффективной утилизации, захоронения, уничтожения товара, (при необходимости) должны сообщаться потребителю в полном соответствии с требованиями нормативного или технического документа на поставляемый товар.
4.15 Основные потребительные свойства и характеристики отечественного товара должны сообщаться потребителю в полном соответствии с требованиями нормативного или технического документа изготовителя.
4.16 Информацию об обязательной сертификации товара (по товарам, подлежащим в России обязательной сертификации) изготовитель наносит в виде знака соответствия по ГОСТ Р 50460.
4.17 Масса нетто, основные размеры, объем и количество товара должны указываться для потребителя или покупателя в метрической системе мер (международная система единиц).
4.18 Состав (комплектность) товара должен быть представлен в виде перечня с наименованием «Состав» или «Комплектность».
Информация об оздоровительно-лечебном предназначении товара, отсутствии вредного воздействия на жизнь и здоровье людей и представителей животного мира или других особых его характеристиках представляется с разрешения компетентных органов.
4.19 Товарный знак (товарная марка) изготовителя товара проставляется непосредственно на товарах, таре, а также на ярлыках или этикетках.
4.20 Срок годности (или службы) исчисляют с даты изготовления и указывают непосредственно на товаре, транспортной таре, упаковке (потребительской таре) с использованием одной из следующих типовых формулировок:
1 «Годен в течение... (дней - месяцев - лет)» или
2 «Годен до... (день - месяц - год)», или
3 «Использовать до... (день-месяц-год)».
4 «Срок службы... (лет - часов - циклов и др.).
Примечания:
1 С учетом специфики конкретных товаров в информации о них для потребителя указывают срок хранения и срок годности (или службы) или только срок годности (или службы) товара.
2 Для товаров с практически неопределенно длительными (многолетними) технически возможными сроками хранения сроки их годности или сроки их хранения в информации для потребителя не указывают, а устанавливают их (при необходимости) в договоре (контракте) на поставку или в договоре (контракте) купли-продажи.
3 Изготовитель обязан указывать срок годности, если данный товар включен в утвержденный Правительством Перечень товаров, для которых установление срока годности обязательно.
4.21 В информации для потребителя отечественного товара должно приводиться обозначение нормативной или технической документации, по которой он производится.
4.22 Информация о соответствии отечественного товара требованиям государственных стандартов наносится на добровольной основе в виде знака соответствия по ГОСТ Р 1.9.
4.23 Информация о добровольной сертификации товара (по товарам, не подлежащим в России обязательной сертификации) наносится в виде знака соответствия, принятого в конкретной официально зарегистрированной системе добровольной сертификации.
4.24 Отечественные товары маркируют в установленном порядке также другими знаками, принятыми в Российской Федерации.
4.25. Штриховой код товара, подтверждающий его идентификацию (по добровольной инициативе и самостоятельному решению изготовителя или по требованию потребителя и (или) продавца), наносят на товар, на тару и (или) упаковку по правилам, установленным Европейской Ассоциацией товарной нумерации (EAN).
4.26 Товар может сопровождаться специфической информацией для потребителя (при необходимости), например рекламной информацией, характеризующей особые свойства или преимущества данного товара по сравнению с товарами-аналогами, лицензионными знаками, знаками экономичности, повышенной безопасности и другими.
5. Расположение информации
5.1 Информацию допускается располагать в одном или нескольких удобных для прочтения местах.
5.2 Изготовитель, продавец, упаковщик должен располагать информацию для потребителя товара всегда в одном и том же месте единицы товара, тары, упаковки.
5.3 При небольших размерах единиц тары, упаковки, на которых технически сложно поместить необходимый текст информации для потребителя товара полностью, а также на сувенирных и подарочных изделиях, допускается данные, характеризующие товар, или часть их размещать на листе-вкладыше, прилагаемом к каждой единице тары, упаковки или на групповой упаковке, или в сопроводительной документации к поставляемому товару.
6. Способы представления информации для потребителя и требования к качеству ее исполнения
6.1 Информация для потребителя может быть нанесена любым способом, но во всех случаях должна быть четкой и легко читаемой. Те же цели должны достигаться применением наиболее эффективной цветовой гаммы.
Требования безопасности при хранении, транспортировании, использовании, утилизации, захоронении, уничтожении должны быть выделены из остальной информации другим шрифтом, цветом или иными способами.
Если тара, в которую помещен товар, покрыта дополнительной упаковкой, то информация на внутренней упаковке должна быть легко читаемой сквозь наружную упаковку либо на наружной упаковке должна быть аналогичная информация.
Средства нанесения информации, контактирующие с товаром, не должны влиять на его качество, должны обеспечивать стойкость маркировки при хранении, транспортировании, реализации и использовании товара.
6.2 Сохранность информации для товаров, применяемых в условиях активного воздействия окружающей среды или в специальных условиях (высокая или низкая температура, агрессивная среда и др.), должна быть обеспечена одним из следующих способов или их сочетанием:
1 применением стойкого к воздействию материала-носителя (влагостойкого, температуростойкого и пр.);
2 применением соответствующего метода нанесения (выдавливание, травление и пр.);
3 применением стойкой к воздействию оболочки (прозрачная пленка, пакет, коробка и др.).
Приложение А
(справочное)
Перечень Государственных стандартов, регламентирующих требования к маркировке непродовольственных товаров
(по состоянию на 1 января 1998 г.)
ГОСТ 2.602-95 Единая система конструкторской документации. Эксплуатационные документы
ГОСТ Р МЭК 335-1-94 Безопасность бытовых и аналогичных электрических приборов. Общие требования и методы испытаний
ГОСТ 1023-91 Кожа. Маркировка, упаковка, транспортирование и хранение
ГОСТ 1510-84 Нефть и нефтепродукты. Маркировка, упаковка, транспортирование и хранение
ГОСТ 1641-75 Бумага. Упаковка, маркировка, транспортирование, хранение
ГОСТ 2292-88 Лесоматериалы круглые. Маркировка, сортировка, транспортирование, методы измерения и приемки
ГОСТ 3152-79 Волокно хлопковое, линт хлопковый и отходы волокнистые хлопкозаводов. Упаковка, маркировка, транспортирование и хранение
ГОСТ 3885-73 Реактивы и особо чистые вещества. Правила приемки, отбор проб, фасовка, упаковка, маркировка, транспортирование и хранение
ГОСТ 3897-87 Изделия трикотажные. Маркировка, упаковка, транспортирование и хранение
ГОСТ 4666-75 Арматура трубопроводная. Маркировка и отличительная окраска
ГОСТ 5551-82 Сырье вторичное текстильное сортировочное. Правила приемки, методы испытаний, упаковка, маркировка, транспортирование и хранение
ГОСТ 6564-84 Пиломатериалы и заготовки. Правила приемки, методы контроля, маркировка и транспортирование
ГОСТ 6658-75 Изделия из бумаги и картона. Упаковка, маркировка, транспортирование и хранение
ГОСТ 6732.4-89 Красители органические, продукты промежуточные для красителей, вещества текстильно-вспомогательные. Маркировка
ГОСТ 7000-80 Материалы текстильные. Упаковка, маркировка, транспортирование и хранение
ГОСТ 7296-81 Обувь. Маркировка, упаковка, транспортирование и хранение
ГОСТ 7563-73 Волокно льняное и пеньковое. Упаковка, маркировка, транспортирование и хранение
ГОСТ 7691-81 Картон. Упаковка, маркировка, транспортирование и хранение
ГОСТ 8710-84 Материалы текстильные.
ГОСТ 8737-77 Ткани и штучные изделия хлопчатобумажные, из пряжи химических волокон и смешанные. Первичная упаковка и маркировка
ГОСТ 9181-74 Приборы электроизмерительные. Упаковка, маркировка, транспортирование и хранение
ГОСТ 9294-83 Элементы и батареи первичные. Маркировка, упаковка, транспортирование и хранение
ГОСТ 9980.4-86 Материалы лакокрасочные. Маркировка
ГОСТ 10581-91 Изделия швейные. Маркировка, упаковка, транспортирование и хранение
ГОСТ 12266-89 Сырье пушно-меховое. Упаковка, маркировка, транспортирование и хранение
ГОСТ 12453-77 Ткани и штучные изделия чистольняные, льняные и полульняные. Первичная упаковка и маркировка
ГОСТ 13762-86 Средства измерений и контроля линейных и угловых размеров. Упаковка, маркировка, транспортирование и хранение
ГОСТ 13827-85 Полотна нетканые. Первичная упаковка и маркировка
ГОСТ 14087-88 Электроприборы бытовые. Общие технические требования
ГОСТ 14189-81 Пестициды. Правила приемки, методы отбора проб, упаковка, маркировка, транспортирование и хранение
ГОСТ 14192-96 Маркировка грузов
ГОСТ 14839.20-77 Вещества взрывчатые промышленные. Упаковка, маркировка, транспортирование и хранение
ГОСТ 15108-80 Гидроприводы объемные, пневмоприводы и смазочные системы. Маркировка, упаковка, транспортирование и хранение
ГОСТ 15822-70 Чашечки и подложки для радиоактивных проб. Конструкция и маркировка
ГОСТ 15846-79 Продукция, отправляемая в район Крайнего Севера и труднодоступные районы. Упаковка, маркировка, транспортирование и хранение
ГОСТ 16958-71 Изделия текстильные. Символы по уходу
ГОСТ 17527-86 Упаковка. Термины и определения
ГОСТ 18088-83 Инструмент металлорежущий, алмазный, дереворежущий, слесарно-монтажный и вспомогательный. Упаковка, маркировка, транспортирование и хранение
ГОСТ 18160-72 Изделия крепежные. Упаковка. Маркировка. Транспортирование и хранение
ГОСТ 18620-86 Изделия электротехнические. Маркировка
ГОСТ 19041-85 Транспортные пакеты и блок-пакеты пилопродукции. Пакетирование, маркировка, транспортирование и хранение
ГОСТ 19159-85 Изделия швейные и трикотажные для военнослужащих. Маркировка, упаковка, транспортирование и хранение
ГОСТ 19348-82 Изделия электротехнические сельскохозяйственного назначения. Общие технические требования. Маркировка, упаковка, транспортирование и хранение
ГОСТ 19411-88 Изделия текстильно-галантерейные тканые, плетеные, вязаные, витые, метражные и штучные. Маркировка и первичная упаковка
ГОСТ 19433-88 Грузы опасные. Классификация и маркировка
ГОСТ 19878-74 Меха, меховые и овчинно-шубные изделия. Маркировка, упаковка, транспортирование, хранение
ГОСТ 21100-93 Пакеты транспортные из деталей деревянной тары. Размеры, формирование, маркировка, транспортирование и хранение
ГОСТ 21552-84 Средства вычислительной техники. Маркировка, упаковка, транспортирование и хранение
ГОСТ 22237-85 Цементы. Упаковка, маркировка, транспортирование и хранение
ГОСТ 22377-77 Контейнеры среднетоннажные. Маркировочный код
ГОСТ 23170-78 Упаковка для изделий машиностроения. Общие требования
ГОСТ 24327-80 Ткань кордная. Упаковка, маркировка, транспортирование и хранение
ГОСТ 24717-94 Огнеупоры и сырье огнеупорное. Маркировка, упаковка, хранение и транспортирование
ГОСТ 24779-81 Шины пневматические. Упаковка, транспортирование, хранение
ГОСТ 24957-81 Кожа искусственная и синтетическая. Маркировка, упаковка, транспортирование и хранение
ГОСТ 25227-82 Ткани шелковые и полушелковые. Первичная упаковка и маркировка
ГОСТ 25388-82 Волокна химические. Упаковка, маркировка, транспортирование и хранение
ГОСТ 25530-82 Изделия штучные шелковые и полушелковые. Первичная упаковка и маркировка
ГОСТ 25588-83 Контейнеры крупнотоннажные. Маркировочный код
ГОСТ 25636-83 Пленки фототехнические и фотографические любительские. Маркировка и упаковка
ГОСТ 25642-83 Пленки радиографические и флюорографические. Маркировка и упаковка
ГОСТ 25643-83 Пластинки фотографические. Маркировка и упаковка
ГОСТ 25644-88 Средства моющие синтетические порошкообразные. Общие технические условия
ГОСТ 25779-90 Игрушки. Общие требования безопасности и методы контроля
ГОСТ 25834-83 Лампы электрические. Маркировка, упаковка, транспортирование и хранение
ГОСТ 25871-83 Изделия кожгалантерейные. Упаковка, маркировка транспортирование и хранение
ГОСТ 25880-83 Материалы и изделия строительные теплоизоляционные. Упаковка, маркировка, транспортирование и хранение
ГОСТ 25894-83 Бумага фотографическая. Маркировка и упаковка
ГОСТ 26119-84 Электроприборы бытовые. Эксплуатационные документы. Общие технические требования
ГОСТ 26332-84 Эндоскопы медицинские. Упаковка, маркировка, транспортирование и хранение
ГОСТ 26583-85 Металлорежущее, кузнечно-прессовое, литейное и деревообрабатывающее оборудование. Порядок разработки и правила составления руководства по эксплуатации и ремонтных документов
ГОСТ 26623-85 Материалы и изделия текстильные. Обозначения по содержанию сырья
ГОСТ 26828-86 Изделия машиностроения и приборостроения. Маркировка
ГОСТ 27175-86 Материалы пленочные поливинилхлоридные бытового назначения. Маркировка, упаковка, транспортирование, и хранение
ГОСТ 27206-87 Соединения и изделия со стабильными изотопами. Приемка, упаковка, маркировка, транспортирование и хранение
ГОСТ 27388-87 Эксплуатационные документы сельскохозяйственной техники
ГОСТ 27513-87 Изделия фрикционные. Маркировка, упаковка, транспортирование и хранение
ГОСТ 27570.0-87 Безопасность бытовых и аналогичных электрических приборов
ГОСТ 27628-88 Изделия крученые и плетеные. Упаковка, маркировка, транспортирование и хранение
ГОСТ 27837-88 Обувь для военнослужащих. Маркировка, упаковка, транспортирование и хранение
ГОСТ 28389-89 Изделия фарфоровые и фаянсовые. Маркировка, упаковка, транспортирование и хранение
ГОСТ 28594-90 Аппаратура радиоэлектронная бытовая. Упаковка, маркировка, транспортирование и хранение
ГОСТ 28646-90 Машины текстильные. Упаковка, маркировка, транспортирование и хранение
ГОСТ 28660-90 Изделия щетинно-щеточные. Маркировка, упаковка, транспортирование и хранение
ГОСТ 28670-90 Продукты лесохимические. Упаковка, маркировка, транспортирование и хранение
ГОСТ 28943-91 Фурнитура для изделий легкой промышленности. Упаковка, маркировка, транспортирование и хранение
ГОСТ 29101-91 Материалы стеклянные текстильные. Упаковка, маркировка, транспортирование и. хранение
ГОСТ 30084-93 Материалы текстильные. Первичная маркировка
ГОСТ Р 50962-96 Посуда и изделия хозяйственного назначения из пластмасс. Общие технические требования
Глава 9. Экспертиза товара.
1. Цели, задачи, виды товароведной экспертизы. Нормативные документы, составляющие правовую и нормативную базу товароведной экспертизы.
1.1 Товароведная экспертиза является одним из важнейших видов товарной экспертизы.
Товарная экспертиза - это исследование или оценка экспертом основополагающих характеристик товаров, а так же их изменений в процессе товародвижения для принятия решений, выдачи независимых и компетентных заключений, которые служат конечным результатом. Необходимость товароведной экспертизы обусловлена ее сущностью, и прежде всего тем, что в основе лежит оценка основополагающих характеристик товаров, в том числе органолептических свойств и показателей, что в значительной мере приближает этот вид экспертизы к оценкам товара потребителями. Кроме того, благодаря достоинствам органолептического метода определения показателей качества обеспечивает идентификация товара, а действительные значения органолептических показателей позволяют прямо или косвенно оценивать и другие группы показателей. Это предопределяет направление товароведной экспертизы, а также необходимость в дополнительных исследованиях с привлечением измерительных и иных методов товарной экспертизы.
Цель товарной экспертизы – получение новой информации об основополагающих характеристиках товаров в форме экспертного заключения, которая не может быть получена объективными методами, но необходима для принятия определенных решений в отношении товара.
Целью товароведной оценки является определение действительных значений основополагающих характеристик товара и установление их соответствия требованиям нормативных документов или информации о них на маркировке или в товарно-сопроводительных документах.
Цель товарной экспертизы должен формулировать инициатор ее проведения – заказчик с учетом возникшей проблемы, на основе которой принято решение о проведении товарной экспертизы. Цель экспертизы позволяет правильно определить задачи и вопросы, решаемые в процессе ее осуществления. Конечным результатом достижения целей товарной экспертизы служит заключение эксперта, имеющее доказательной значение.
Для достижения целей проведения товарной экспертизы экспертам необходимо решать ряд общих и специфичных задач .
К общим задачам относятся:
- определение оснований проведения экспертизы;
- установление требований к объекту и условий проведения экспертизы;
- формулирование вопросов, на которые необходимо ответить в результате экспертизы;
- исследования объекта экспертизы;
- анализ и оценка полученных при экспертизе данных для составления заключения;
- документальное оформление результатов экспертизы в форме заключения экспертов.
Специфичные задачи формулируют эксперты с учетом особенностей объекта экспертизы – товара, а также целей экспертизы.
Задачи товароведной экспертизы включают оценку всех основополагающих характеристик товара: ассортиментной, квалиметрической, количественной и стоимостной.
Однако при проведении товароведной экспертизы конкретных потребительских товаров в руководством экспертной организации, могут быть выбраны одна, несколько или весь комплекс основополагающих характеристик товара.
Классификация товароведной экспертизы. Различают следующие виды товароведной экспертизы:
· количественная,
· по качеству,
· идентификационная,
· документальная и комплексная.
1.2
Основные нормативные документы, составляющие правовую и нормативную базу товароведной экспертизы.
Нормативные документы:
· стандарты международные,
· региональные, национальные и организаций
· ГОСТ,
· рекомендации,
· правила и нормы,
· общероссийские классификаторы продукции (ОКП),
· технические регламенты,
· санитарные правила и нормы (СанПиН),
· Строительные нормы и правила (СНиП),
· Правила торговли,
· Правила по охране труда,
· методические рекомендации,
· инструкции,
· указы Президента РФ,
· постановления Правительства,
· организационно-технический документ (ОТД),
· технический документ (ТД),
· технологический документ,
· маркировка,
· законы «О защите прав потребителей», «О техническом регулировании»,
· Гражданский кодекс РФ.
Основные требования к проведению экспертиз.
При проведении экспертизы эксперт руководствуется Инструкцией "О порядке проведения экспертизы товаров экспертными организациями Системы Торгово-промышленной палаты Российской Федерации" СТО ТПП 20-01-97 . Также эксперт использует разработанные в системе ТПП РФ Методические пособия по проведению конкретного вида экспертизы по соответствующей группе товара. Если рекомендации Методических пособий не совпадают с требованиями действующей нормативно-технической документации, эксперт руководствуется последней.
Экспертиза проводится лично экспертом. Результаты экспертизы оформляются на бланках Экспертной организации.
Оформленный акт экспертизы и приложения к нему заверяются - печатью (круглым штампом).
Исправления, вносимые в заключение акта экспертизы, должны быть оговорены и заверены подписью только эксперта.
2. Порядок проведения и оформления экспертизы
Существует 3 этапа товарной экспертизы:
1. подготовительный,
2. основной,
3. заключительный.
Подготовительный этап.
Перед началом проведения экспертизы рассматриваются основания для ее проведения, что и определяет цели и задачи экспертизы. После этого выбираются средства и методы проведения экспертизы. На подготовительном этапе экспертизы получают документы о назначении товарной экспертизы. К ним относится заявка на проведение экспертизы, оформляемая заказчиком, и наряд на проведение экспертизы.
В экспертной организации заявка регистрируется в Журнале регистрации документов по проведению экспертизы или в компьютерной автоматизированной системе с присвоением ей порядкового номера.
Наряд на проведение экспертизы выдается эксперту и служит документом, подтверждающим права эксперта на проведение экспертизы. В наряде указываются номер, дата поступления заявки, дата начала экспертизы, организация-заказчик, ее адрес, телефон, фамилия и должность представителей, участвующих в проведении экспертизы, наименование и место нахождения товара, его поставщик, а также задание эксперту, которое определяется целями и задачами экспертизы.
Заявка и наряд относятся к обязательным техническим документам подготовительного периода.
Назначение эксперта руководство экспертной организации осуществляет с учетом его квалификации и компетентности; независимости от заказчика, а также наличия у него достаточного времени для обстоятельного проведения экспертизы.
На подготовительном этапе при необходимости может быть проведен инструктаж экспертов. Особенно необходим такой инструктаж перед проведением товарной экспертизы органолептическим, комплексным или другими экспертными методами. При проведении инструктажа указываются цели и задачи конкретной экспертизы, особенности применяемых средств и методов. Инструктаж не относится к обязательным операциям подготовительного периода.
На подготовительном этапе определяются взаимоотношения эксперта и заказчика экспертизы. Они согласовывают дату экспертизы.
Если товар подлежит досмотру таможенной или карантинной службами, должно быть обеспечено присутствие представителей изготовителя или поставщика. Эксперт на подготовительном этапе должен ознакомится с нормативными документами (стандартами, техническими условиями, инструкциями), в соответствии с которыми должна осуществляться экспертиза.
Основной этап
Началом его можно считать явку эксперта или сбор экспертной группы. При проведении товароведной экспертизы заказчик должен предоставить эксперту технические документы:
Письменную заявку на вызов эксперта, если он осуществлялся по телефонограмме;
· Товарно-сопроводительные документы: товарно-транспортные накладные, сертификаты, удостоверения о качестве, счета-фактуры и другие документы, содержащие информацию о товаре;
· Заверенную копию вызова поставщика, если он вызывался;
· Приемные акты, акты первичный экспертизы (при проведении повторной или контрольной экспертизы), коммерческие акты, акты отбора проб, заключения или протоколы испытаний образцов товаров;
· Договор купли-продажи или поставки:
· Другие необходимые документы.
Экспертизы начинается с изучения экспертом предъявленной документации, на которой он делает пометку «предъявлено эксперту», ставить подпись, личный штамп и дату. Эксперт должен внимательно изучить все представленные документы, проанализировать и оценить на предмет достоверности информации. Одним из способов установления достоверности является сопоставление информации, содержащейся в разных документах, а также не маркировке. Такая проверка и сопоставление документов называются перекрестной проверкой.
Отсутствие необходимых документов может служить основанием для отказа от проведения экспертизы.
Экспертная оценка – важнейшая часть основного этапа. При проведении экспертизы эксперт руководствуется инструкцией и проведении экспертизы и другими нормативными документами.
Обязательной первичной операцией этой оценки являются экспертные исследования, в ходе которых эксперты определяют действительные значения показателей объектов экспертизы в принятых или условных единицах измерения. Принятыми считаются единицы физических величин: абсолютные (метры, килограммы, литры и т.д.) и относительные (проценты, доли и т.д.). Условными – нефизические величины (денежные единицы, баллы, ранги и д.р.). Результаты этих исследований записываются в рабочую тетрадь.
Если исследования проводятся измерительным методом, эксперт должен проверить приготовленные средства измерения на наличие необходимых клейм и свидетельств, а также на правильность измерений. Затем эксперт приступает непосредственно к оценке товара в соответствии с заявкой заказчика.
В зависимости от цели и поставленных задач эксперт выбирает сплошную или выборочную проверку. Товароведная количественная экспертиза осуществляется чаще всего сплошным способом измерения. При сплошном методе эксперт не имеет права ограничиться осмотром части товара, даже если эта часть преобладает. При выборочном методе эксперт должен отобрать выборку или объединенную пробу.
Как правило, при экспертной оценке применяется номенклатура показателей, регламентированных стандартами или техническими условиями. Поэтому после определения действительных значений показателей качества эксперт устанавливает их соответствие регламентированным значениям или образцам, эталонам.
При необходимости определения физико-химических и/или микробиологических показателей эксперт должен отобрать образцы для испытательной лаборатории. Отбор образцов производится из объединенной пробы или выборки. Отказ заказчика от проведения лабораторных испытаний является основанием для аннулирования заявки.
Порядок отбора проб и образцов товаров определяется стандартами на методы испытаний или общими техническими условиями стандартов на продукцию (например, приказ Гос. Таможенного комитета РФ от 23 декабря 2003г. №1519 « Порядок взятия проб и образцов товаров, а также порядок их исследования при проведении таможенного контроля»).
После проведения проб и соблюдения всех правил, гарантирующих их сохранность, составляется акт отбора образцов (проб), в котором указываются:
- время (дата) и место составления акта;
-наименование товара, его сорт или другие градации качества;
-общее количество отобранных образцов;
-цель отбора образцов;
-показатели, по которым должны быть проведены испытания и прочие идентифицирующие признаки товара и образцов.
Этикетка или ярлык на пробах предназначены для их идентификации, а также обеспечения сохранности. На них могут быть указаны: № образца (пробы), наименование экспертной организации, наименование образца (пробы) и другие сведенья. В особых случаях заполненный ярлык удостоверяется оттиском печати экспертов или таможенного органа.
От правильности составления акта отбора образцов зависит признание достоверности не только его, но и результатов испытаний, а также конечных результатов товарной экспертизы.
Акт отбора образцов (проб) вместе с отобранным образцом (пробой) эксперт передает заказчику для отправки на испытания или хранения в качестве арбитражного образца (пробы).
Отобранные образцы (пробы) направляются в испытательные лаборатории для проведения экспертных исследований, которые проводят эксперты этих лабораторий. По окончании исследований эксперт дает заключение от своего имени на основании проведенных исследований.
Результатом экспертной оценки является определение соответствия (несоответствия) требованиям, позволяющим ответить на поставленные в экспертизе вопросы.
Если экспертиза проводится единолично, одним экспертом, то результат его оценки будет положен в основу заключения эксперта. При проведении экспертизы группой экспертов может быть проведен их опрос либо принято совместное решение по оценке.
После проведения экспертной оценки и получения протокола испытания отобранных образцов начинается заключительный этап экспертизы.
Заключительный этап.
Целью данного этапа является анализ и оценка полученных результатов, а также их документальное оформление. Результаты экспертизы могут быть оформлены в виде заключения, акта экспертизы или протокола дегустации либо в иной форме. Акт экспертизы составляется на бланках единой формы, либо на бланках других форм экспертизы. Оригинальный экземпляр акта экспертизы должен быть составлен экспертом на русском языке собственноручно или в печатном виде.
Акт экспертизы состоит из трех частей :
1. протокольная : содержатся сведения, соответствующие наименованиям пункта.
Номер акта экспертизы должен соответствовать регистрационному номеру наряда. Номер акта экспертизы, дата и место составления акта. ФИО эксперта, ФИО и должность представителей сторон, участвующих в экспертизе. Количество оцениваемого товара. Наименование товара (товаров). Номера и дата предъявленных эксперту товарно-сопроводительных документов. Наименование поставщика или отправителя. Состояние предъявленного товара(наличие или отсутствие упаковки). Вопросы, поставленные эксперту. При отсутствии данных для заполнения какого-либо пункта указанный пункт не заполняется, о чем в констатирующей части акт делается запись.
2. констатирующая : содержится ход изучения предъявленных документов, аргументирование изложения методов и фактически установленных в соответствии с поставленной задачей результатов экспертизы; даты проведения экспертной оценки. Количественные характеристики товара. Качество товара: градации, дефекты. Прочие результаты экспертной оценки. Подписывается экспертом и представителями организации, принимавшей участие в проведении экспертизы. При несогласии представителей организации с полученными результатами, они должны подписать с ссылкой на свое мнение. В случае категоричного отказа подписать и дачи особого мнения в письменной форме, эксперт вправе оформить акт без их подписи, сделав в акте соответствующие записи.
3. заключение : Заключение эксперта с анализом и оценкой полученных результатов. Подписи эксперта или группы экспертов. Приложения. Далее даются общая суммарная оценка результатов проведенного исследования и обоснование выводов, к которым пришел эксперт или эксперты. Выводы представляют собой ответы на поставленные перед экспертом вопросы и являются квинтэссенцией экспертного заключения, конечной целью исследования или экспертизы.
Необходимо отметить, что в проведении экспертизы и составлении акта непосредственное участие должны принимать представители заказчика (не менее двух), которые должны контролировать правильность определения качества товара, правильность применения в процессе экспертизы действующих стандартов, технических условий, описаний и образцов. В случае их несогласия с мнением эксперта делается отметка в акте экспертизы, где указывается, что у заказчика есть особое мнение.
Таким образом, эффективность проведения экспертизы качества товара на этапе реализации в торговой сети достаточно очевидна. Она позволяет установить соответствие данного товара требованиям потребителей и нормативно-технической документации, определяющим его качество, а следовательно, является одним из основных этапов торгового процесса.
3. Экспертиза керамической плитки
Для экспертизы были отобраны 10 видов базовой настенной глазурованной керамической плитки I сорта стоимостью до 500 руб. за 1 кв. м. Сразу оговоримся, что мы не ставили цель тестировать коллекции. Потому что декоративные элементы оценивать очень сложно прежде всего из-за субъективного восприятия внешнего вида. К тому же продаются они поштучно, и, бывает, стоимость одной соизмерима со стоимостью целого квадратного метра фоновой плитки.
Образцы для тестирования нам предоставили отечественные производители "Лира Керамика", "Сокол", Екатеринбургский завод керамических изделий, официальные представительства завода "Керамин" (Белоруссия) и Rako (Чехия). Остальную часть образцов мы купили в специализированных московских строительных магазинах у официальных дилеров зарубежных и отечественных производителей. Таким образом, от приобретения подделок мы застраховались.
Тест плитки проводили специалисты в аккредитованной испытательной лаборатории "Авиапромстройиспытания" ОАО "Гипронииавиапром" в Москве по ГОСТ 27180-2001 "Плитки керамические. Методы испытания". Проверялось соответствие представленной продукции требованиям ГОСТ 6141-91 "Плитки керамические глазурованные для облицовки стен. Технические условия".
Методики испытаний
1. Внешний вид.
Для настенной облицовочной плитки эта характеристика, пожалуй, самая главная. Стены с выбоинами, сколами и дефектами глазури производят унылое впечатление и сводят на нет радость от свежего ремонта.
Если напольную плитку для внутренних помещений с незначительными изъянами (ГОСТ 6787-90) некондиционной не считают, то для внешнего вида настенной - требования более строгие, хотя и демократичные. Они учитывают, что для создания декоративного эффекта лицевая поверхность может сочетать различные виды глазури и быть волнистой, а рисунок - вдавленным или выпуклым.
Для плиток I сорта допускаются только едва различимые дефекты: невидимые уже с одного метра мушки, наколы и нарушения декора - разрыв краски, незначительное смещение или изменение интенсивности цвета. Их общее число на одной плитке - не больше двух.
Для плиток II сорта поблажек больше. Если пятна, мушки, наколы, засорки и нарушение декора, а также волнистость и углубления глазури не видны с расстояния 2 м, плитка удовлетворяет требованиям ГОСТа. Ей даже позволительны пара 2-миллиметровых отбитостей со стороны лицевой поверхности, щербинки и зазубренки на ребрах 1х10 мм, плешины общей площадью 10 кв. мм, слипыш не более 5 кв.мм, пузыри, прыщи и вскипания глазури и 2-миллиметровый просвет вдоль краев цветных плиток. Общее число дефектов на одной плитке - не больше трех. Контроль внешнего вида проводили для каждого вида плитки на партии из 25 штук. Для выявления дефектов все образцы были подвергнуты внимательному осмотру при дневном свете. Помимо вышеописанных изъянов пристально изучали, нет ли цека - сети мелких трещин, переплетающихся между собой подобно паутинке. А наличие невидимых трещин определяли на слух путем простукивания деревянным молоточком. В результате теста определили суммарное число плиток, имеющих отклонения.
По показателям внешнего вида все 10 видов тестируемых плиток относятся к I сорту. Особо отличились плитка "Арбат-8" ("Сокол", г. Дедовск Московской обл.) и Monaco (Rako, Чехия), которые не имеют практически никаких дефектов внешнего вида.
2. Геометрические размеры . Для плиточника эти характеристики будут важнее остальных - от правильности геометрии каждой плитки зависит качество кладки в целом. Если образцы косоугольные, то появляются некрасивые зазоры-швы. Разнотолщинная плитка имеет не самые лучшие прочностные свойства: где тонка, там и колется. А значительная кривизна лицевой поверхности приводит к неровности даже изначально ровных стен.
По виду настенную плитку подразделяют на: прямоугольную, квадратную, фигурную и фасонную (угловую, обрамляющую и плинтусную), боковые грани которой могут иметь "завалы". К ее геометрии ГОСТ 6141-91 предъявляет высокие требования: форма - правильная, грани и углы - четкие. У прямоугольных и квадратных плиток боковые поверхности должны составлять прямой угол с лицевой. Для контроля линейных размеров изучали по 25 образцов плитки каждого вида.
Линейные размеры. Эти показатели облицовочной глазурованной плитки для стен оказались на высоте. Все 10 видов удовлетворяют требованиям ГОСТа: отклонения от номинальных размеров по длине и ширине не превышают ±0,8%, по толщине - в пределах ±8%, а разнотолщинность одной плитки - не больше допустимых 0,5 мм. Разница между наибольшим и наименьшим размерами в одной партии по длине и ширине не превышает 1,5 мм, а разброс показателей по толщине – не более положенного 1 мм.
Кривизна лицевой поверхности. Допустимые ГОСТом отклонения плиток от формы по кривизне для I сорта не должны превышать 0,8 мм, для II сорта - 1,1 мм. Искривление лицевой поверхности каждой из 25 плиток в партии определяли с помощью щупа и металлической линейки. Линейку прикладывали ребром к диагонали плитки и измеряли наибольший зазор между нею и глазурованной поверхностью. За результат измерений принимали наибольшее значение зазора в партии.
Косоугольность. Этот "плиточный недуг" тоже регламентирован - для плиток длиной более 150 мм положено отклонение от прямого угла не более 1 мм. Для его выявления использовали угольник. Причем не чертежный, а состоящий из двух планок, расположенных под прямым углом друг к другу, как дно и стенка коробки. Инструмент поочередно прикладывали к граням плитки так, чтобы одна плотно лежала на его горизонтальной стороне, а другая - касалась вертикальной. В таком положении измеряли наибольший зазор между внутренним краем угольника и контролируемой гранью.
В отношении "геометрии" лидером среди 10 видов настенной глазурованной плитки по совокупности наименьших отклонений формы и размеров от номинала была признана польская Olimpia Seledyn (Opoczno). Полное отсутствие косоугольности отмечено также у польской продукции Polaris 4 (Ceramika Tubadzin).
3. Водопоглощение. К материалу для облицовки ванной комнаты в первую очередь предъявляют требования влагостойкости. Вода плохую керамику портит. Ведь если бы плитка впитывала влагу, как губка, она бы быстро потеряла вид: изменила цвет, рисунок, качество поверхности, размеры, возможно, даже физические свойства. По ГОСТ 6141-91 глазурованная керамическая плитка для облицовки стен должна впитывать не больше 16% воды, а для экземпляров, в сырьевом составе которых присутствуют карбонаты и полиминеральные глины, этот показатель увеличен до 24%.
Этот параметр каждого представленного вида плитки определяли в соответствии с ГОСТ 27180-2001 на трех образцах. Из трех плиток выпилили части массой не меньше 50 г, высушили до постоянной массы и взвесили на электронных весах с точностью до 0,01 г. Образцы залили водой и кипятили на слабом огне в течение часа. Затем их оставили в этом "бульоне" на 4 часа, а потом снова взвесили и определили в процентах "прирост" каждого кусочка за счет впитанной влаги.
Как показал эксперимент, все 10 видов керамической плитки имеют удовлетворительный показатель впитывания воды. Лучшие результаты показали отечественная "Береза" (ЗКИ, г. Екатеринбург) - 11%, и белорусский "Август-3" ("Керамин") - 12,6%.
4. Предел прочности при изгибе . Конечно, по стенам мы не ходим, но при транспортировке и укладке немаловажно, насколько плитка прочна, так что требования ГОСТ 6141-91 выдерживать не менее 15 МПа вполне обоснованны. Определяли предел прочности при изгибе в лаборатории "Авиапромстройиспытания" с помощью испытательной машины МР-05-1. Из каждой партии отбирали 5 плиток, высушивали их и поочередно "мучили" под прессом.
Образец укладывали лицевой поверхностью вверх на две опоры - параллельные друг другу металлические стержни. Сверху, посередине плитки, устанавливали нажимную кромку - такой же стержень, передающий нагрузку, и равномерно, без толчков нагружали испытуемый элемент со скоростью 20 Н (ньютонов) в секунду до разрушения. Для расчетов предела прочности брали значения максимальной нагрузки, зафиксированной в момент разрушения, и наименьшей толщины в месте излома.
Наибольшую прочность в нашем случае показали отечественная "Береза" (ЗКИ, г. Екатеринбург) - 26,5 МПа, и белорусский "Август-3" ("Керамин") - 26,2 МПа. Кстати, эти два вида удовлетворяют даже требованиям ГОСТ 6787-90 к напольной плитке - не менее 25 МПа.
5. Твердость глазури по Моосу.
При эксплуатации поверхность стен неминуемо подвергается разным механическим воздействиям. Как правило, кафелем стены облицовывают в кухнях и санузлах: чтобы воды не боялись, поскольку мыть приходится часто. И там, как известно, без чистящих средств не обойтись. При этом желательно, чтобы на плитке не оставались следы активной уборки. Устойчивость материала к появлению царапин и повреждений определяют по одному из двух параметров: истираемости или поверхностной твердости. Причем в соответствии с российским ГОСТом на истираемость тестируют неглазурованную (преимущественно напольную) керамическую плитку, а у глазурованной определяют твердость по шкале Мооса.
Твердостью называют свойство материала сопротивляться проникновению в него другого, более твердого тела. Для ее оценки используют шкалу, представленную десятью минералами, где каждый последующий своим острым концом царапает предыдущий. Шкала включает их в порядке возрастания твердости от 1 до 10: 1 - тальк, 2 - гипс, 3 - кальцит, 4 - флюорит, 5 - апатит, 6 - полевой шпат, 7 - кварц, 8 - топаз, 9 - корунд, 10 - алмаз. Материалы, начиная с шестого, легко царапают стекло и применяются в качестве абразивных и шлифующих. А для облицовочной настенной плитки достаточно твердости апатита, его поверхность можно повредить стальным ножом, и то только под сильным нажимом.
Качество глазури проверяли пробными минералами на пяти целых плитках из одной партии. Острой гранью камня проводили по лицевой поверхности с легким и равномерным нажимом, после чего внимательно ее осматривали на предмет повреждений. Если их не было, плитке присваивали твердость соответствующего минерала. За результат принимали наименьшее значение среди испытанных образцов.
У всех 10 видов твердость глазурованной поверхности одинаковая и характеризуется числом 5 по Моосу.
6. Химическая стойкость глазури. Как уже говорилось, стены облицовывают плиткой в бытовых помещениях, где часто требуется проводить влажную уборку. Подразумевается, что мыть керамику можно, однако нелишне знать, какие бытовые моющие средства предпочтительнее. Способность поверхности выдерживать воздействие различных веществ (бытовой химии, жиров, солей, щелочей и кислот), не изменяя при этом внешнего вида, определяется ее химической стойкостью.
Объективную оценку способен дать непосредственный контакт с агрессивным веществом. Для этого 5 целых плиток очистили этиловым спиртом. На них с помощью уплотняющей мастики приклеили цилиндры из химически стойкого стекла, куда налили так называемый раствор №3 из углекислого натрия безводного, тетрабората натрия, силиката натрия, мыльных хлопьев из олеата натрия и дистиллированной воды. Образцы выдержали в течение 6 часов, после чего тщательно промыли водой, вновь очистили спиртом и высушили. Затем внимательно осмотрели их при дневном свете с расстояния 25 см. Глазурь считается химически стойкой, если на ней не обнаружено явных изменений цвета, блеска и рисунка.
Все 10 видов плитки являются химически стойкими, и для ухода за ними рекомендуются любые бытовые моющие средства.
7. Термическая стойкость глазури. Если плитка положена в ванной или на кухне, то ей не избежать резких температурных перепадов: контрастный душ или жар от плиты одновременно с холодным воздухом из форточки. Когда коэффициент температурного расширения глазури не согласован с "черепком", она находится под действием остаточных напряжений, которые значительно возрастают при резкой смене температуры и приводят к образованию трещин, отколов, посечек и цека, который легко обнаружить, смочив глазурованную поверхность красителем, - он тотчас заполнит и проявит микротрещины.
Согласно ГОСТ 6141-91 глазурованные керамические плитки для внутренней облицовки стен должны выдерживать нагрев до +125 градусов Цельсия и резкое охлаждение в воде при температуре +15 градусов Цельсия без изменения качества глазури. Термическую стойкость определяли на трех плитках от каждой партии. Высушенные образцы поместили на полчаса в сушильный шкаф, а потом сразу же под проточную воду. После охлаждения плитки вынули из воды, нанесли на поверхность несколько капель чернил, протерли мягкой тканью и осмотрели.
Все без исключения представленные образцы выдержали температурный перепад и признаны термически стойкими.
4. Идентификация товаров
Термин «идентификация» определяется как «отождествление, установление совпадения чего-либо с чем-либо». При идентификации товаров выявляют соответствие испытуемых товаров аналогам, характеризующимся той же совокупностью потребительских свойств, или описанию товара на маркировке, в товарно-сопроводительных и нормативных документах.
Идентификации присущи разнообразные функции:
· указующая - отождествляющая представленный образец товара с конкретными наименованием, сортом, маркой, типом, а также товарной партией;
· информационная - доводящая до субъектов рыночных отношений необходимую информацию;
· подтверждающая соответствие ассортиментной характеристики товара информации, указанной на маркировке и/или в товарно-сопроводительных документах, т. е. подлинность товара;
· управляющая - служащая одним из элементов системы качества продукции.
Управляющая функция идентификации регламентируетсямеждународными стандартами (МС) ИСО серии 9000 «Управление качеством, обеспечение качества». Эти стандарты введены в России без существенных изменений (ГОСТ Р ИСО 9000—9004).
Виды идентификации. В зависимости от назначения различают следующие виды идентификации: ассортиментная (видовая), качественная (квалиметрическая) и партионная.
Ассортиментная (видовая) идентификация - установление соответствия наименования товара его ассортиментной характеристике, обусловливающей предъявляемые к нему требования.
Этот вид идентификации применяется для подтверждения соответствия товара его наименованию при всех видах оценочной деятельности, но особое значение он имеет при товарной экспертизе и сертификации товаров.
Качественная (квалиметрическая) идентификация - установление соответствия требованиям качества, предусмотренным нормативной документацией.
Этот вид идентификации позволяет выявить наличие допустимых и недопустимых дефектов, а также соответствие товарному сорту или иным градациям качества, указанным на маркировке и/или в сопроводительных документах.
Партионная идентификация - один из наиболее сложных видов деятельности, в ходе которой устанавливается принадлежность представленной части товара (объединенной пробы, среднего образца, единичных экземпляров) конкретной товарной партии. Сложность заключается в том, что в большинстве случаев отсутствуют или не очень надежны критерии для идентификации.
Для целей идентификации могут применяться две группы методов : органолептические, измерительные.
Средства идентификации. К средствам идентификации товаров относятся нормативные документы (стандарты, ТУ,, правила и др.), регламентирующие показатели качества, которые могут быть использованы для целей идентификации, а также технические документы, в том числе товарно-сопроводительные (накладные, сертификаты, качественные удостоверения, руководства по эксплуатации, паспорта и т. п.
Критерии идентификации. Это характеристики товаров, позволяющие отождествлять наименование представленного товара с наименованием, указанным на маркировке и/или в нормативных, товарно-сопроводительных документах, а также с требованиями, установленными НД.
В стандартах, ТУ, правилах Системы сертификации пищевых продуктов и продовольственного сырья предусматриваются три группы показателей:
органолептические;
физико-химические;
микробиологические.
Для целей идентификации пригодны лишь органолептические и физико-химические показатели, характеризующие собственно потребительские свойства самого товара. Органолептические показатели — характеристики основополагающих потребительских свойств, определяемые с помощью органов чувств человека.К общим органолептическим показателям относятся: внешний вид, вкус и запах, консистенция.
В качестве критериев идентификации должны быть выбраны показатели, которые отвечают следующим требованиям: типичность для конкретного вида, наименования или однородной группы продукции;объективность и сопоставимость; проверяемость; трудность фальсификации.
Критерии идентификации должны быть объективными и независящими от субъективных данных испытателя (его компетентности, профессионализма, учета интересов изготовителя или продавца и др.), а также условий проведения испытаний.
Трудность фальсификации объекта по идентифицирующим критериям может служить гарантией надежности и достоверности идентификации. Поэтому важно в качестве критерия идентификации выбрать такие характеристики, при подделке которых фальсификация бессмысленна.
5. Фальсификация товаров
Фальсификация - действия, направленные на обман получателя и/или потребителя путем подделки объекта купли-продажи с корыстной целью.
В широком смысле фальсификация может рассматриваться как действия, направленные на ухудшение потребительских свойств или уменьшение количества товара при сохранении наиболее характерных, но несущественных для его использования по назначению свойств. Фальсификация пищевых продуктов чаще всего производится путем придания им отдельных
наиболее типичных признаков, например внешнего вида при общем ухудшении или утрате остальных наиболее значившие свойств пищевой ценности, в том числе и безопасности.
Понятие «фальсифицированные товары» иногда путают с понятиями «товары-заменители» (суррогаты, имитаторы) и «дефектные товары». Это не случайно, так как заменители и дефектные товары широко используются для целей фальсификации, при этом получателю и/или потребителю умышленно не предоставляется необходимая информация.
Заменители и дефектные товары не относятся к фальсифицированным, если на маркировке или в товарно-сопроводительных документах указано их подлинное наименование, а цена соответствует их качеству и происхождению.
Объекты фальсификации и идентификации одни и те же, так как фальсификация - один из двух возможных результатов идентификации.
При фальсификации обычно подвергается подделке одна или несколько характеристик товара, что позволяет выделить несколько видов фальсификации:
· ассортиментная (видовая);
· качественная;
· количественная;
· стоимостная;
· информационная.
Для каждого вида фальсификации характерны свои способы подделки товара.
Ассортиментная фальсификация - подделка, осуществляемая путем полной или частичной замены товара его заменителем другого вида или наименования с сохранением сходства одного или нескольких признаков.
Для заменителей характерны определенные особенности — значительная дешевизна по сравнению с натуральным товаром, пониженные потребительские свойства, идентичность (сходство) наиболее характерных признаков (внешнего вида, цвета, вкуса и запаха, консистенции).
В зависимости от средств фальсификации, схожести свойств заменителя и фальсифицируемого продукта различают следующие способы фальсификации:
· частичная замена продукта водой;
· добавление в продукт низкоценного заменителя, имитирующего натуральный продукт;
· замена натурального продукта имитатором.
Все заменители, применяемые при ассортиментной фальсификации, подразделяют на две группы: пищевые; непищевые
Пищевые заменители - более дешевые продукты питания, отличающиеся пониженной пищевой ценностью и сходством с натуральным продуктом по одному или нескольким признакам.
В качестве средств ассортиментной фальсификации наиболее часто используют следующие пищевые заменители:воду - для жидких продуктов;другие имитаторы натурального продукта, схожие с ним по определенным, наиболее характерным признакам.
Имитаторы, т. е. товары, применяемые или специально разработанные для замены натуральных товаров также относятся к заменителям, используемым для целей фальсификации. Примером могут служить кофейные напитки на основе зерновых, цикория и т. п., концентраты, сиропы, соки и напиткис использованием синтетических красителей, кислот, ароматизаторов и др.
Непищевые заменители относятся к объектам органического или минерального происхождения и непригодны для пищевых целей. Многие из них могут нанести вред здоровью человека, а иногда и привести к смертельному исходу.
В качестве непищевых заменителей чаще всего применяют мел, гипс, известь, золу для примеса к муке, крахмалу.
Качественная фальсификация — подделка товаров с помощью пищевых или непищевых добавок для улучшения органолептических свойств при сохранении или утрате других потребительских свойств либо замена товара высшей градации качества низшей.
Способы качественной фальсификации:
· использование добавок, имитирующих улучшение качества;
· пересортица.
Использование пищевых добавок, предусмотренных рецептурой изготовляемых продуктов питания, нельзя относить к фальсификации. Качественной фальсификацией считается применение разрешенных и запрещенных добавок, не предусмотренных рецептурой, с целью введения потребителя в заблуждение относительно истинных потребительских свойств товара и имитации их повышенной ценности.
Конечная цель фальсификаторов — создание потребительских предпочтений на товары пониженного качества путем придания видимости повышенных потребительских свойств.
В зависимости от степени вреда, наносимого фальсифицированным продуктом, различают две разновидности качественной фальсификации:
· безопасная для жизни и здоровья потребителя;
· опасная.
При безопасной фальсификации потребителю наносится только материальный и моральный ущерб, а при опасной — кроме того, вред жизни и здоровью. Поэтому для этих двух разновидностей фальсификации должны применяться разные меры административной и уголовной ответственности.
Пересортица — действия, направленные на обман получателя и/или потребителя путем замены товаров высших сортов низшими.
Пересортица может быть вызвана объективными и субъективными причинами. К фальсификации относится лишь пересортица, обусловленная субъективными причинами, что характерно для сырьевых и технологических принципов деления товаров на сорта.
Количественная фальсификация товаров — обман потребителя за счет значительных отклонений параметров товара (массы, объема, длины и т.п.), превышающих предельно допустимые нормы отклонений.
В практике этот вид фальсификации называют недовесом или обмером. Способы и средства такой фальсификации основаны на неточных измерениях с грубыми погрешностями всегда в сторону уменьшения параметров измеряемого объекта.
Неточные или фальшивые средства измерений — наиболее распространенный способ количественной фальсификации. При этом используются фальшивые меры (гири, метры, измерительная посуда и др.) и приборы (весы и т. п.) без поверочных клейм и свидетельств, наносимых и выдаваемых органами Государственных метрологических служб.
Неправильные методики измерений, применяемые продавцом или изготовителем, также могут явиться причиной грубых погрешностей при измерении, что приводит к недовесу, недомеру. При этом действия субъекта, проводящего измерения, могут носить умышленный и неумышленный характер. В последнем случае количественная фальсификация обусловлена неумением работать на измерительных приборах.
Для количественной фальсификации при отпуске товаров получателю или продавцу пользуются способами неправильных измерений товара:
· отпуск по массе брутто без учета массы упаковки;
· отпуск по массе нетто путем взвешивания массы брутто и вычитания массы стандартной упаковки, указанной на маркировке;
· применение дополнительных грузов, подкладываемых под товар при взвешивании.
Стоимостная фальсификация - обман потребителя путем реализации низкокачественных товаров по ценам высококачественных или товаров меньших размерных характеристик по цене больших.
Этот вид фальсификации самый распространенный, так как совмещается со всеми другими видами ее. Стоимостная фальсификация может быть классифицирована как незаконное повышение цен.
Информационная фальсификация - обман потребителя с помощью неточной или искаженной информации о товаре.
Этот вид фальсификации осуществляется путем искажения информации в товарно-сопроводительных документах, на маркировке и рекламе.
При фальсификации информации о товаре довольно часто искажаются или указываются неточно следующие данные:
· наименование товара;
· страна происхождения;
· фирма-изготовитель;
· количество товара;
· принадлежность к определенной товарной партии.
Одной из разновидностей информационной фальсификации товара является фальсификация с помощью упаковки, чаще всего производственной.
В последнее время очень распространенным видом фальсификации документов стала подделка сертификатов.
Технологическая фальсификация - подделка товаров в процессе технологического цикла производства.Примером может служить использование технического спирта при приготовлении водок, вин, ликеро-наливочных изделий.
Предреализационная фальсификация - подделка товаров при подготовке их к продаже или при отпуске потребителю.
Методы обнаружения фальсификации применяются те же, что и при идентификации, поскольку фальсификация является лишь альтернативным результатом идентификации.
Глава 10. Заключение
По-прежнему кафельная плитка не имеет себе равных. И дело не только во внешних ее достоинствах. Состояние окружающей среды и реалии существования в современном мире убеждают многих людей в необходимости выбирать «здоровые» материалы. В этом отношении у керамической плитки найдется очень немного конкурентов. Само по себе сочетание естественных природных элементов — глины, воды и огня — уже вызывает доверие. Кроме того, в глазах потребителей керамическая плитка обладает длинным списком ценных преимуществ.
Она безопасна для окружающей среды, так как высокотемпературная обработка уменьшает риск выделения вредных веществ. Ей не страшны пыль и бактерии, ведь мытье плитки не составляет большого труда. Разнообразие — поистине бесконечно: современный рынок плитки позволяет найти кафель даже для самых узкоспециальных нужд. Очень важно, что плитка обладает «иммунитетом» против электростатических полей, в связи с ее чрезвычайно низкой электропроводностью. Очевидны и противопожарные достоинства плитки. И, наконец, еще один немалый плюс: немногие промышленные изделия могут, как керамика, похвастаться тем, что полностью соответствуют мировым экологическим нормам и стандартам. Недавно появилась плитка не только экологически чистая, но и способная сама очищать воздух, что, кстати, очень актуально в большом городе.
Сегодня можно говорить о своего рода буме керамических покрытий. Дело в том, что плитка отвечает целому ряду основных требований: она красива, функциональна, достаточно прочна. Видимо, по этой причине керамика давно перешагнула традиционные горизонты кухни, ванной комнаты и туалета и, словно продолжая традицию далеких античных интерьеров, уверенно завоевывает новые пространства в обстановке современного дома. Кроме того, она остается неотъемлемым атрибутом ландшафтного дизайна, а также широко используется в архитектуре в качестве внешнего убранства.
На данный момент инновационной можно назвать керамическую плитку (преимущественно большого формата) с точно выпрямленными кромками. Такие кромки получают по специальной технологии с использованием водяной струи, которая позволяет придавать керамическим плиткам вид каменных пластин. Последнее поколение таких “выпрямлений” представлет собой блестящие, совершенно гладкие поверхности, полученные путем полировки глазури до однородной сатинированной отделки.
Так же новые технологии позволяют производить вкрапления в плитки всевозможных элементов (кусочки стекла, материалы, похожие на ископаемых животных, для плитки морской тематики).
Широкий ассортимент в размерах (от 1.5 (мозаика) и до 70 см (керамогранит)) формах (сейчас появилась даже круглая плитка) плитки позволяет ее использование практически во всех помещениях.
Список использованной литературы:
1. Акимов И. У. Товароведение промышленного сырья и материалов: Учебник. – Ташкент «Укитувичи», 1989.
2. Косачев Л. А., Андреев В. В. Теоретические основы товароведения и экспертизы товаров: Учебное пособие. – СПб: издательство СПбГУЭФ, 2004.
3. Николаева А. М. Товарная экспертиза: Учебник для вузов. – М.: Издательский дом «Деловая литература», 1998.
4. Николаева М. А. Теоретические основы товароведения: Учебник для вузов. (ГРИФ УМО МО РФ). – М.: Издательство «Норма», 2006
5. Товароведение непродовольственных товаров: Конспект лекций. – М.: Издательство «Приор», 2001.
6. Шепелев А. Ф., Галаджян В. А., Туров. А. С. Товароведение и экспертиза силикатных и строительных материалов: Учебное пособие. – Ростов н/Д: издательский центр «МарТ», 2002.
7. Cerámicas Aparici, S.A. -http://www.aparici.com/ru/inicio.asp?IdIdioma=9&Idioma=ru
8. Porselanosa - http://www.porcelanosagrupo.com/
9. Галион - http://www.tdgalion.ru/oplitke.php
10. Город мастеров - http://gm74.boom.ru/stati.htm
11. Керамир - http://ceramir.ru/info/
12. Планета плитки - http://www.planetaplitki.ru/article/
13. Сервер керамика - http://www.s-keramika.ru/index.php?id=6
14. Строительные материалы Санкт-Петербурга - http://stroy.spb.ru/articles/22/418.html
15. Строительство и недвижимость - http://www.nestor.minsk.by/sn/2000/44/sn04402.html
16. Троя – строительные и отделочные материалы - http://www.troycompany.ru/faq/
17. Это Просто.Ру -> Все о керамической плитке -http://www.etoprosto.ru/2006/01/13/istoriya_iranskoy_plitki.html




















