Курсовая работа: Проектирование привода шнеков-смесителей для подачи флюса при беспрерывной сварке в механосборочном
|
Название: Проектирование привода шнеков-смесителей для подачи флюса при беспрерывной сварке в механосборочном Раздел: Промышленность, производство Тип: курсовая работа | |||||||||||||||||||||||||||||||||||||||||||||||||||||||||||||||||||||||||||||||||||||||||||||||||||||||||||||||||||||||||||||||||||||||||||||||||||||||||||||||||||||||||||||||||||||||||||||||||||||||||||||||||||||||||||
МІНІСТЕРСТВО ОСВІТИ І НАУКИ УКРАЇНИДОНЕЦЬКИЙ НАЦІОНАЛЬНИЙ ТЕХНІЧНИЙ УНІВЕРСИТЕТМеханічний факультет Кафедра: ”ОПМ”КУРСОВИЙ ПРОЕКТпо дисципліні: “Деталі машин”Тема:”Проектування привода шнеків-змішувачів для подачі флюсу при безперервному зварюванні в механообробному цеху”Виконала Лукічова О.О.Консультант Деркач О.В. Донецьк 2007 Завдання Вихідні дані:
Діаграма навантаження
Рис.1 – Схема приводу Реферат Об'єкт дослідження – привод шнеків-змішувачів. Ціль роботи: розробити редуктор привода шнеків-змішувачів. У курсовому проекті сконструйований трьохступеневий черв’ячно-циліндричний редуктор, обраний електродвигун, розраховані і спроектовані зубчасті передачі, вали, обрані і розраховані на міцність шпонки, підшипники, муфта. Розроблені: складальне креслення редуктора А1, робочі креслення 2-х деталей зі складальної одиниці (формат А3). ПРИВОД, РЕДУКТОР, СКЛАДАЛЬНА ОДИНИЦЯ, КРИШКА, ВАЛ, ШЕСТІРНЯ, КОЛЕСО ЗУБЧАСТЕ, ШПОНКА, ПІДШИПНИК, МУФТА. Содержание Введение1. Определение исходных данных к расчёту редуктора 1.1 Выбор и проверка электродвигателя 1.2 Расчёт общего и частных передаточных отношений редуктора 1.3 Расчёт частот вращения, мощностей и вращающих моментов на валах 1.4 Выбор расчётной нагрузки 2. Проектирование червячной передачи 2.1 Выбор материалов для изготовления червяка и червячного колеса 2.2 Определение допускаемых напряжений 2.3 Определение расчетной нагрузки 2.4 Приближенный проектировочный расчёт главного и основных параметров передачи из условия обеспечения контактной прочности зубьев колеса 2.5 Определение основных размеров зацепления 2.6 Уточнение величины скорости скольжения 2.7 Проверочный расчёт зубьев червячного колеса на контактную прочность 2.8 Проверочный расчёт зубьев червячного колеса на изгибную прочность 2.9 Тепловой расчёт редуктора 3. Расчёт цилиндрических передач3.1 Выбор материалов для изготовления зубчатых колёс 3.2 Приближенное определение предельных и допускаемых напряжений для материалов колёс зубчатых передач 3.3 Приближенный проектировочный расчёт главного и основных параметров передач из условия обеспечения изгибной прочности зубьев 3.4 Проверочный расчёт зубчатых передач 3.4.1 Уточнение расчетной нагрузки 3.4.2 Проверочный расчет фактических изгибных напряжений 3.4.3 Проверочный расчет фактических контактных напряжений 3.4.4 Определение предельных и допускаемых напряжений материала колес 3.4.5 Допускаемые напряжения при проверочном расчете на контактную выносливость 4. Конструирование зубчатых колёс и эскизная компоновка редуктора 4.1 Конструирование зубчатых колёс 4.2 Эскизная компоновка редуктора 5. Проектирование валов5.1 Проектный расчёт вала 5.2 Определение нагрузок, действующих на вал 5.3 Приближенный расчёт вала 5.4 Проверочный расчет на усталостное сопротивление 5.5 Выбор и расчёт шпонок 6. Проектирование узлов подшипников качения 6.1 Выбор подшипников качения 6.2 Расчёт подшипников качения 6.3 Конструирование узлов подшипников 7. Выбор и расчёт муфт 8. Конструирование корпуса редуктора 9. Смазывание передач Заключение Перечень ссылок Введение Привод шнеков-смесителей служит для передачи вращающего движения от вала электродвигателя через редуктор на шнеки, для приведения их в движение. Электродвигатель преобразует электроэнергию в механическую, вал двигателя совершает вращательное движение, но количество оборотов ротора электродвигателя очень велико для скорости вращения шнеков. Для снижения количества оборотов и увеличения крутящего момента и служит данный редуктор. В работе разработан трехступенчатый червячно-цилиндрический редуктор. Цель выполнения данного курсового проекта: показать основы конструирования, получить навыки инженера-конструктора. К важнейшим требованиям, предъявляемым к проектируемой машине, относятся экономичность в изготовлении и эксплуатации, удобство и безотказность обслуживания, надёжность и долговечность. Для обеспечения этих требований детали должны удовлетворять ряду критериев, важнейшие среди которых: прочность, надёжность, износостойкость, жёсткость, виброустойчивость, теплостойкость, технологичность. Зубчатые передачи в современной промышленности имеют большое значения. Благодаря высокому КПД они широко применяются в технике. Курсовой проект по деталям машин является первой конструкторской работой студента и поэтому её значение весьма существенно. Изучение основ конструирования (проектирования) начинают с конструирования простейших узлов машин - приводов, редукторов. Опыт и знания, приобретенные студентом при конструировании этих узлов машин, являются основой для его дальнейшей конструкторской работы, а также для выполнения курсовых проектов по специальным дисциплинам и дипломного проекта. 1. Определение исходных данных к расчёту редуктора 1.1 Выбор и проверка электродвигателя Рассчитываем необходимые данные для выбора электродвигателя. Мощность электродвигателя на выходе:
Требуемая мощность электродвигателя:
где
где
Требуемая мощность электродвигателя:
Частота вращения выходного вала:
Частота вращения электродвигателя определяется по формуле:
где
Диапазон возможных передаточных чисел привода:
Определяем диапазон возможных частот вращения двигателя:
Выбираем электродвигатель
Принимаем асинхронный электродвигатель с меньшей мощностью серии 4А с короткозамкнутым ротором – 4А160М4У3 с креплением на лапах. Схему электродвигателя покажем на рисунке 1.
Рисунок 1– Электродвигатель 4А160М4У3
Проверим условие возможности запуска электродвигателя под нагрузкой:
17,11∙1,3 22,24≤25,9 условие выполняется, т.е. данный электродвигатель можно использовать с данным редуктором. 1.2 Расчёт общего и частных передаточных отношений редуктора Определим общее передаточное число редуктора:
Принимаем Передаточное число редуктора:
1.3 Расчёт частот вращения, мощностей и вращающих моментов на валах Определим частоты вращения валов:
Определим мощность на валах редуктора:
Определим угловые скорости зубчатых колёс и шестерен по формуле:
Крутящий момент определим по формуле:
1.4 Выбор расчётной нагрузки Определяем общее время работы редуктора привода по формуле:
где nлет =10 лет – время работы редуктора; nр.д =300 – число рабочих дней в году; nсм =2 – число смен; nдл.см =8 – длительность смены; kисп =0,9 – коэффициент использования привода.
Определим число циклов нагружения на всех ступенях редуктора:
где с – число циклов нагружения на всех ступенях редуктора, с=1:
Так как число нагружений на каждой ступени 1,2 3 и 4 валов превышает значение Определим номинальный момент на валах:
Результаты расчета исходных данных представим в виде таблицы. Таблица 1 – Кинематические и силовые параметры редуктора
2. Проектирование червячной передачиИсходными данными для проекта являются: - вращающий момент на валу червячного колеса, Т2 =2,704 кН·м; - частота вращения червяка, n1 =1465 об/мин; - передаточное число u1-2 =25. 2.1 Выбор материалов для изготовления червяка и червячного колесаПо табл. 3.1 [2] определяем z1 = 2 - число заходов (при u1-2 = 25). Число зубьев червячного колеса:
Ориентировочное значение скорости скольжения vск между зубьями червячного колеса и витками червяка:
Выбираем материалы: - червяк сталь 45, HRC 45…50; - колесо бронза БР010Р1Ф1 2.2 Определение допускаемых напряженийДопускаемое напряжение при расчете на контактную выносливость:
где
где
Получаем Допускаемое напряжение при расчете на изгибную выносливость:
где
Получаем:
2.3 Определение расчетной нагрузкиРасчетный вращающий момент:
где Kβ – коэффициент концентрации нагрузки:
Θ – коэффициент деформации червяка (по табл. 3.5 Θ = 57) (z1 = 2; q = 8 - принято) x – отношение средневзвешенного момента к максимальному
Kv – коэффициент динамичности (Kv = 1,1 по табл. 3.7). При этом назначаем 7 степень точности. Тогда
2.4 Приближенный проектировочный расчет главного и основных параметров передачи из условия обеспечения контактной прочности колеса Межосевое расстояние червячной передачи
Все данные для расчета известны:
Основной модуль зацепления:
Полученное значение модуля округляют до ближайшего стандартного по ГОСТ 2144-76. Сочетание m и q принимаем по табл. 3.8 [2]. Принимаем m = 10 мм. 2.5 Определение основных размеров зацепленияОсевой модуль червяка и торцевой модуль колеса [2, табл.3.9]:
Шаг зубьев червяка и колеса:
Диаметр делительной окружности: · червяка · червячного колеса Высота головки зуба:
Высота ножки зуба:
Диаметр вершин: · червяка · колеса Диаметр впадин: · червяка · колеса Наружный диаметр червячного колеса:
Межосевое расстояние: Длина нарезанной части червяка: Ширина обода червячного колеса:
Рисунок 2 – Геометрические параметры червячной передачи Угол подъема витков червяка и угол наклона зубьев колеса:
Условный угол обхвата червяка колесом:
2.6 Уточнение величины скорости скольженияСкорость скольжения определяем по формуле:
Отличие от ранее рассчитанной скорости незначительное. 2.7 Проверочный расчет зубьев червячного колеса на контактную прочностьФактические контактные напряжения:
2.8 Проверочный расчет зубьев червячного колеса на изгибную прочность Фактические изгибные напряжения:
где
YF – коэффициент прочности зубьев (по табл. 3.10 [2]), зависящий от эквивалентного числа зубьев
Тогда
Таким образом
Червячная передача достаточно прочная. 2.9 Тепловой расчет редуктораДля нормальной работы передачи разность температур масла tм и окружающего воздуха tв не должна превышать допустимую величину:
где P1 – передаваемая червяком мощность, Вт; η – к.п.д. передачи;
А – площадь поверхности охлаждения редуктора, м2 . При среднем значении Проверим площадь охлаждения:
Добавляем в корпус редуктора кроме ребер жесткости дополнительные, и применяем обдув редуктора для более качественного охлаждения. 3. Расчёт цилиндрических передач3.1 Выбор материалов для изготовления зубчатых колёс Для цилиндрических колёс назначаем следующие значения твёрдости поверхности зубьев шестерни и колеса 53 HRC. Термохимическая обработка – закалка ТВЧ. Требования к габаритам – нежёсткие. Материал зубьев шестерни – сталь 45 ГОСТ 1050-88, колеса – сталь 45 ГОСТ 1050-88. Механические свойства материалов: 3.2 Приближенное определение предельных и допускаемых напряжений для материалов колёс зубчатых передач Допускаемые напряжения при проектировочном расчёте на выносливость зубьев при изгибе определяются по формуле:
где
Допускаемые напряжения при проектировочном расчёте на контактную выносливость определяется по формуле:
где
3.3 Приближенный проектировочный расчёт главного и основных параметров передач из условия обеспечения изгибной прочности зубьев Проведем этот расчет, рекомендованный ГОСТ, так как выбранные материалы имеют твердость более 350 НВ. Расчет передачи №2 а) Выбираем числа зубьев шестерни Числа зубьев колеса определим по формуле:
где
В связи с округлением числа зубьев колеса до целого числа, передаточное число зубчатой передачи изменяется и окончательно будет равным:
б) Минимальное значение модуля зацепления, при котором обеспечивается изгибная прочность зубьев колеса передачи, определяется по формуле:
где
Тогда
где
В формулу для вычисления модуля подставляем значения
Отношение ширины венца к диаметру делительной окружности шестерни:
Подставляя полученные значения в формулу, получим расчетное значение модуля:
Принимаем стандартный модуль Определяем межосевое расстояние по формуле:
Полученное значение округляем до ближайшего стандартного, выбранного из ряда в) По полученным межосевым расстояниям уточняют фактический угол наклона зубьев:
г) Определим основные размеры колёс передач: - диаметр делительной окружности: шестерни: колеса: - диаметр окружности впадин шестерни: колеса: - диаметр окружности выступов шестерни: колеса: - межцентровое расстояние - ширина зубчатого венца Расчет передачи №3. а) Передаточное отношение третьей передачи указано в задании: Принимаем числа зубьев шестерни и колеса б) Минимальное значение модуля зацепления, при котором обеспечивается изгибная прочность зубьев колеса передачи, определяется по формуле:
где
Тогда
Подставляя полученные значения в формулу, получим расчетное значение модуля:
Принимаем стандартный модуль Определяем межосевое расстояние по формуле:
Полученное значение округляем до ближайшего стандартного, выбранного из ряда в) Определим основные размеры колёс передач: - диаметр делительной окружности
- диаметр окружности впадин - диаметр окружности выступов - межцентровое расстояние ширина зубчатого венца Принимаем 3.4 Проверочный расчёт зубчатых передач Назначим степень точности изготовления зубчатых передач в зависимости от окружной скорости:
Принимаем пониженную «9» степень точности и «5» класс шероховатости. 3.4.1 Уточнение расчетной нагрузки Дополнительные нагрузки учитываются коэффициентом нагрузки
Расчетная нагрузка:
3.4.2 Проверочный расчет фактических изгибных напряжений Проверка прочности заключается в определении фактических контактных и изгибных напряжений и в сравнении их с допускаемыми. Фактические напряжения изгиба в опасных сечениях основания зубьев шестерен определяют по формуле:
Фактические напряжения изгиба в опасном сечении зуба колеса определяют по формуле:
Величина окружного усилия рассчитывается так:
Передача 2:
Передача 3:
3.4.3 Проверочный расчет фактических контактных напряжений Фактические контактные напряжения на рабочих поверхностях зубьев, определяют по формуле:
где
3.4.4 Определение предельных и допускаемых напряжений материала колес Допускаемые напряжения при проверочном расчёте на изгибную выносливость определяют по формуле
где
Передача 2
Базовое число циклов Т.к.
Подставив полученные значения в формулу получим:
Передача 3
Базовое число циклов Т.к. Подставив полученные значения в формулу получим:
3.4.5 Допускаемые напряжения при проверочном расчёте на контактную выносливость Допускаемые напряжения при проверочном расчёте на контактную выносливость определяют по формуле
где Передача 2
Базовое число циклов Т.к.
где
Подставив полученные значения в формулу (3.3) получим
Передача 3
Базовое число циклов Т.к.
где
Подставив полученные значения в формулу получим
Фактические напряжения меньше допускаемых:
4. Конструирование зубчатых колёс и эскизная компоновка редуктора4.1 Конструирование зубчатых колёс Конструктивная форма колёс зависит от их размеров, материала, а также от технологии получения заготовки и механической обработки. Предварительно рассчитаем диаметры валов:
Предварительно вычисленный диаметр вала округлим до ближайшего стандартного по ГОСТ 6639-69: Определим размеры конструктивных элементов дисковых колёс. Колесо 2(червячное):
для червячного колеса S=1,2 *25 = 30 мм;
Принимаем
принимаем стандартное значение
принимаем стандартное значение Колесо 4:
принимаем стандартное значение
принимаем
принимаем стандартное значение
принимаем стандартное значение
Рисунок 3 – Конструкция цилиндрического колеса Колесо 6:
принимаем стандартное значение
принимаем стандартное значение
принимаем
принимаем стандартное значение
принимаем стандартное значение
4.2 Эскизная компоновка редуктора Эскизная компоновка позволяет легко составить представление о соизмеримости деталей редуктора. Диаметры валов были получены выше. Диаметры шипов валов можно принять
Толщина стенки корпуса редуктора
Зазор между торцевыми поверхностями зубчатых колёс:
Зазор между внутренними стенками корпуса и поверхностями вращающихся деталей: Ширина фланца для крепления крышки корпуса редуктора: Расстояние между обработанной и необработанной поверхностями: Определим диаметры буртиков на валу:
5. Проектирование валов5.1 Проектный расчёт вала Этот расчёт выполняется для предварительного определения диаметра вала. Диаметр расчётного сечения вала определяем по формуле:
где
По ГОСТ 6639-69 принимаем: 5.2 Определение нагрузок, действующих на вал Основными нагрузками, действующими на вал, являются усилия в зубчатых зацеплениях, а также крутящие моменты. Определим силы, действующие в передачах. Косозубая цилиндрическая передача: - окружная сила:
Рисунок 4 – Схема приложения сил к промежуточному валу со стороны зубчатых передач
- радиальная сила:
- осевая сила:
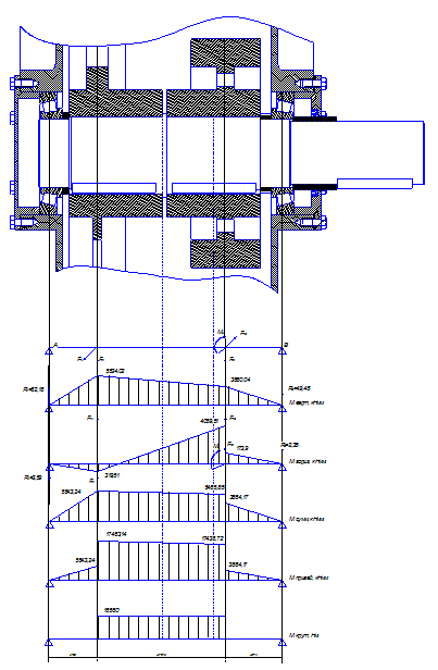
Рисунок 5 - Расчетная схема и эпюры изгибающих моментов Найдём реакции опор в вертикальной плоскости:
Найдём реакции опор в горизонтальной плоскости
Суммарные моменты:
Суммарные реакции:
5.3 Приближенный расчёт вала Первое опасное сечение принято под шестерней, так как там концентратор напряжения– шпоночный паз. Второе опасное сечение принято на галтельном переходе к буртику от посадочного участка под колесом, концентратор напряжения –галтель.
Эквивалентные напряжения:
Напряжения для материала вала – стали 45:
Так как условия выполняются, то можно считать, что прочность вала достаточная. 5.4 Проверочный расчет на усталостное сопротивление Материал вала – сталь 45, термообработка – улучшение.
Полные коэффициенты запаса сопротивления усталости:
5.5 Выбор и расчёт шпонок Из известных способов соединения деталей с валом наиболее распространённый способ соединения – это соединение с помощью врезных призматических шпонок. Размеры поперечного сечения шпонки выбирают в зависимости от диаметра вала.
Рисунок 6 – Шпоночное соединение Длина шпонки l на (5…10) мм меньше длины ступицы lст
, рабочая длина шпонки Выберем стандартные шпонки и их размеры приведем в таблице. Произведем проверочный расчет шпонок. Таблица 2 – Выбор призматических шпонок
Выбранная шпонка проверяется на смятие:
где
Принимаем
Применяем шпонки призматические по ГОСТ 23360-78. 6. Проектирование узлов подшипников качения 6.1 Выбор подшипников качения При выборе подшипников качения исходят из конкретных условий эксплуатации редуктора. Для вала 1 принимаем: шарикоподшипник радиально-упорный – 310, подшипник роликовый радиально-упорный – 7310. Для вала 2 принимаемподшипники роликовые радиально-упорные – 7317. Для вала 3 принимаемподшипники роликовые радиально-упорные – 7230. Для вала 4 принимаемподшипники шариковые радиальные – 228. Таблица 3 – Характеристики подшипников
6.2 Расчёт подшипников качения Для выбранного подшипника качения 7230 определим по каталогу величины динамической С и статической грузоподъёмности Со , а также пользуясь эскизом нагружения опор вала определим долговечность подшипника
Определим приведённую нагрузку на подшипник:
где
Рисунок 7 – Схема нагружения опор вала осевыми силами
Опора А:
Опора В:
Рассчитываем долговечность более нагруженного подшипника:
где
Так как фактическая долговечность подшипника превышает ранее рассчитанное значение 43200 часов, то данный подшипник подходит для работы на выходном валу. Смазку подшипников выбираем [4, с.16] – смазочный материал: масло индустриальное 40А ГОСТ 21150-75 (разбрызгиванием из ванны редуктора). 6.3 Конструирование узлов подшипников Опоры валов выбираем фиксированными в двух опорах. Для того, чтобы внутреннее кольцо подшипника точно, без перекосов, сидело на валу, его поджимают при сборке к торцу вала. Крышки подшипников изготавливают из чугуна марки СЧ 15, по конструкции выполненные накладные [4, с. 24]. Уплотнительные устройства применяют для предохранения от вытекания смазки из подшипникового узла, а также для защиты их от попадания пыли, грязи и влаги. Принимаем в качестве уплотнения манжету резиновую: - на входном валу - на выходном валу 7. Выбор и расчёт муфт Муфты являются узлами, часто определяющими надёжность и долговечность всей машины. На входе редуктора используем соединительную муфту упругую втулочно – пальцевую, служащую для соединения входного вала редуктора с валом электродвигателя. Муфта типа МУВП. Конструкция муфты [5, с. 12]:
Муфты выбирают по наибольшему диаметру концов соединяемых валов и максимальному расчетному моменту:
где Тн – наибольший длительно действующий на соединяемых валах крутящий момент, Н*м; k1 – коэффициент, учитывающий степень ответственности передачи, принимаем по табл. 12 [4], k1 =1,2; k2 - коэффициент, учитывающий условия работы, принимаемый по табл. 13 [4], k2 =1,0; k3 - коэффициент углового смещения, принимаем по табл. 14, k3 =1,25;
Проверим палец на изгиб:
Принимаем Проверим упругий элемент на смятие:
Муфта зубчатая (ГОСТ 5006-83) компенсирует любые взаимосмещения валов – осевое, радиальное до 6,5 мм и угловое 1о 30´. Для снижения потерь на трение и увеличения долговечности зубьев муфта заполняется маслом.
где Тн – наибольший длительно действующий на соединяемых валах крутящий момент, Н*м; k1 =1,2; k2 =1,0; k3 =1,25;
m – модуль зацепления z – число зубьев полумуфты b – длина зуба [σсм ] – допускаемое напряжение 15-20 МПа
Выбор зубчатой муфты производится по таблице в зависимости от значения вращающего момента на выходном валу. Таблица 4 –Основные параметры зубчатых муфт
Рисунок 8 – Конструкция зубчатой муфты: 1, 2 – полумуфты с внешними зубьями; 3 – составная обойма с внутренними зубьями 8. Конструирование корпуса редуктора Назначение корпуса редуктора Корпус редуктора служит для размещения в нем деталей передач, обеспечения смазки зацепления и подшипников, предохранения деталей от загрязнения, восприятия усилий, возникающих при работе редуктора. Он должен быть достаточно прочным и жестким, так как при значительных деформациях корпуса возможен перекос валов и вследствие этого повышение неравномерности распределения нагрузки по длине зубьев. Для удобства монтажа деталей корпус выполняют разъемным. Плоскость разъема при этом проходит через оси валов. Материалом корпуса принимаем серый чугун марки СЧ 15 ГОСТ 1412-79. Определение толщины стенок Толщина стенки основания корпуса:
где ТТ – наибольший вращающий момент на тихоходном валу, Нм;
Принимаем Для крепления основания и крышки корпуса по всему их контуру выполняют фланцы толщиной b и b1 , в которых размещают болты или винты. Толщина верхнего пояса (фланца) основания b = 1,5δ. Толщина нижнего пояса (фланца) крышки b1 = 1,5δ1 . b = 1,5δ b1 = 1,5δ1 Принимаем Для крепления основания корпуса традиционной конструкции к раме или плите выполняют фланцы, толщина которых определяется следующим образом:
Приливы для размещения болтов в у подшипниковых гнезд корпусов выбирают с таким расчетом, чтобы обеспечить опорные поверхности, достаточные для размещения головок болтов. Высота h определяется конструктивно графическим способом так, чтобы образовалась опорная поверхность под головку болта и гайку. Чтобы избежать пересечения отверстий диаметром d1
и d3
, расстояние между ними принимается Диаметр фундаментальных болтов:
где ТТ – крутящий момент на тихоходном валу, Нм Принимаем болты М42. Диаметр болтов у подшипниковых гнезд принимаем равным:
Принимаем болты М33. Диаметр стяжных болтов:
Принимаем болты М27. Диаметр штифта
Штифты устанавливают для исключения сдвига крышки корпуса относительно его основания. 9. Смазывание передач В данном редукторе проектируется картерная система смазки. В корпус редуктора масло заливается так, чтобы венцы колес погружались на величину не более 0,25d. При этом максимальный объем масла, заливаемого в редуктор
где В – внутренняя ширина редуктораВ = 448 мм L – внутренняя длина редуктора L =1494 мм hmax – максимальная высота масла в корпусе hmax =220мм
Минимальный объем масла, заливаемого в редуктор:
где hmin – максимальная высота масла в корпусе hmin = 180
Рекомендуется, что на 1 кВт передаваемой редуктором мощности должно приходиться примерно 0,5 л масла.
Смазывание подшипников производится в редукторе тем же маслом, которым смазываются и зубчатые передачи. Для данного редуктора выбираем масло И40 ГОСТ 20799-85 с вязкостью 40 сСт при температуре 500 С. При картерной смазке колес подшипники качения смазываются брызгами масла. При окружной скорости колес более 1 м/с брызгами масла покрываются все детали передач и внутренние поверхности стенок. Стекающее с этих элементов масло попадает в подшипники. Заключение В данном курсовом проекте рассчитан и сконструирован привод шнеков-смесителей, состоящий из трехступенчатого червячно-цилиндрического редуктора. В курсовой работе произведен выбор и проверка электродвигателя. Произведена разбивка передаточных чисел по ступеням. Рассчитаны крутящие моменты, частоты вращения, мощности для каждого вала. Выбран материал зубчатых колес и разработана их конструкция. Спроектированы зубчатые передачи редуктора. В курсовом проекте дан анализ назначения и условий работы в которых находится каждая проектируемая деталь и наиболее рациональное конструктивное решение с учётом технологических, монтажных, эксплутационных и экономических требований. Определены силы действующие на звенья узла, произведены расчёты конструкций на прочность, выбраны материалы для изготовления всех деталей. Выбраны подшипники, проверены на динамическую грузоподъёмность. Сконструирован корпус, крышки подшипников. В курсовой работе произведена разработка компоновочной схемы промежуточно-выходного вала редуктора. Выбран материал вала. Определены усилия в зацеплении и построены эпюры крутящих и изгибающих моментов. Определен коэффициент запаса прочности вала. Разработан чертеж вала. Выполнена графическая часть состоящая из сборочного чертежа редуктора и рабочих чертежей его наиболее характерных деталей. Перечень ссылок 1. Методические указания к самостоятельной работе над курсовым проектом по деталям машин. Раздел III этапы “эскизный проект” и “технический проект” проектирование зубчатых и червячных передач. – Донецк: ДНТУ, 1992. – 84с. 2. Методические указания по курсовому проектированию деталей машин. Расчёт и конструирование валов. – Донецк.: ДНТУ, 1981. – 46с. 3. Методические указания к выполнению проекта по курсу ‘деталей машин” конструкция редукторов, узлов и деталей. Раздел “Проектирование узлов подшипников качения”. – Донецк.: ДНТУ, 1986. – 46с. 4. Л.Я. Перель. Подшипники качения: Расчёт, проектирование и обслуживание опор. Справочник. – М.: Машиностроение, 1983. – 543 с. 5. Методические указания по курсовому проектированию деталей машин. Конструирование муфт и корпусов. – Донецк.: ДНТУ, 1987. – 43с. |
|||||||||||||||||||||||||||||||||||||||||||||||||||||||||||||||||||||||||||||||||||||||||||||||||||||||||||||||||||||||||||||||||||||||||||||||||||||||||||||||||||||||||||||||||||||||||||||||||||||||||||||||||||||||||||


,
.



,
.
;
; 
;
;
; 
;
;
;
; 
,
;
;















,
,
;
.
,
;
;
.
<
.
.
,
.
,
;
;
;
;
.
.
;
;
.




.
.
.
.
,
.
,
;
.
;
, 
.
.
;






.
,
;
;
;
.
;

;
.







<










,






;

