Содержание
1.
Анализ ОПР
1.1
План первого этажа М 1:200 2
1.2
Поперечный разрез М 1:200 3
1.3
Экспликация помещений 4
2.
Принятые
строительные
конструкции 5
2.1
Спецификация сборных ж/б элементов 6
2.2
План перекрытий
М 1:200 7
3.
О
пределение
объема котлована 8
3.1
План и разрез котлована
3.2
Сечение фундаментов М 1:50 9
3.3
Раскладка фундаментных плит и блоков 10
4.
Ведомость потребности в основных строительных материалах
5.
Разработка календарного плана 11
5.1
Определение номенклатуры и объемов работ 12
5.2
Определение трудоемкости работ и затрат машинного времени
16
5.3
Определение продолжительности строительства здания 21
5.4
Календарный план 22
6.
Библиографический список 23
1. Анализ ОПР
1.1 План первого этажа М 1:200

1.2 Поперечный разрез М 1:200

1.3 Экспликация помещений

2.
Принятые
строительные
конструкции
В
данной
работе
для
определения
объёмов строительно
-
монтажных
работ
приняты
следующие строительные
конструкции
и
изделия
:
1.
Фундаменты
-
сборные
железобетонные
.
Фундаментные
плиты размерами
:
ФП
1200*300*2400;
ФП
1200*300*1200;
Фундаментные б
локи
размерами:
ФБ
500*600*2400;
ФБ 500*600*1200
;
ФБ
500*600*900 мм.
2.
Стены
–
кирпичные
.
Толщина
наружных
стен
- 510
мм
,
внутренних
- 380
мм
,
перегородок
- 120
мм
.
Утеплитель
-
пенополистирол
.
3.
Оконные
проемы
: пластиковые ПВХ
4.
Дверные
проемы
: наружные металлические, внутренние деревянные: глухие и с остеклением
5.
Плиты
перекрытий
и
покрытия
-
сборные
железобетонные.
ПК
6000*1500*220
мм
,
ПК 3300*1500*22
0 мм
,
6.
Кровля
–
скатная, с покрытием кровельной сталью.
7.
Покрытие
полов
-
линолеум
,
в
туалетах
-
керамическая плитка
.
8.
Отделка
,
инженерное
оборудование
-
по
паспорту
.
2.1 Спецификация сборных железобетонных элементов
| N
, п/п
|
Наименование элементов
|
Эскиз
|
Объем бет. в 1 1 эл-те, м3
|
Вес 1 элемента, т
|
Кол-во
|
Общий объем бетона, м3
|
| 1 |
2 |
3 |
4 |
5 |
6 |
7 |
| 1 |
Фундаментные плиты
ФП 1200-300-2400
|
 |
0,85
|
2,08
|
65
|
55,25
|
| 2 |
Фундаментные плиты
ФП 1200-300-1200
|
 |
0,43
|
1,05
|
2
|
0,86
|
| 3 |
Фундаментные блоки
ФБ 500-600-2400
|
 |
0,72
|
1,75
|
240
|
172,8
|
| 4 |
Фундаментные блоки
ФБ 500-600-1200
|
 |
0,36
|
0,88
|
40
|
14,4
|
| 5 |
Фундаментные блоки
ФБ 500-600-900
|
 |
0,27
|
0,66
|
52
|
14,04
|
| 6 |
Плиты перекрытия
ПК 6000*1500*220
|
 |
1,98
|
4,85
|
190
|
376,2
|
| 7 |
Плиты перекрытия
ПК 3300*1500*220
|
 |
1,1
|
2,7
|
30
|
33,0
|
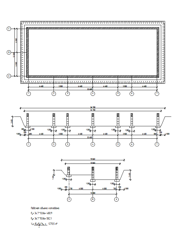
3. О
пределение
объема котлована
3.1 План и разрез котлована
3.2 Сечение фундаментов М 1:50
4.Ведомость потребности в основных строительных материалах
N
,
п/п
|
Наименование работ
|
Ед. измерения
|
Количество
|
| 1
|
Фундаментные плиты
|
М3
|
56,11
|
| 2
|
Фундаментные блоки
|
М3
|
201,24
|
| 3
|
Плиты перекрытий
|
М3
|
409,2
|
| 4
|
Кирпич
|
М3
|
1062,76
|
| 5
|
Линолеум
|
М2
|
1540,8
|
| 6
|
Керамическая плитка
|
М2
|
79,2
|
5.
Разработка календарного плана
Календарный
план
в
строительстве
- документ
по
планированию
,
в
котором
на основе
объемов
строительно
-
монтажных
работ
и
принятых
организационных
и
технологических
решений
определяют
последовательность
и
сроки осуществления
строительства
.
Календарный
план
является
основным
документом
в
составе
проекта
организации
строительства
и
проекта
производства
работ
.
В
соответствии
с
календарным
планом
строительства
,
разрабатывается
календарный
план
обеспечения
,
график
потребности
в
рабочих
кадрах
и
материально
-
технических
ресурсах
.
Структура
,
состав
и
степень
детализации
основных
данных
календарного
плана
зависит
от
назначения
документации
,
в
состав
которых
входит
календарный
план
,
и
определяется
периодами
работ
,
которому
он
посвящен
,
уровням
руководства,
для
которого
предназначен
и
временем
когда
он
разрабатывается
.
Основным
параметром
,
определяющим
весь
остальной
состав
календарного
плана
,
является
период
времени
,
на
который
он
разрабатывается
.
В
календарный
план
строительства
,
входящим
в
состав
проекта
организации
строительства
,
таким
периодом
является
год
,
квартал
,
месяц
,
декада
,
неделя
,
день
.
В
календарных
планах
выполнения
работ
в
составе
технологической
карты
в
зависимости
от
объемов
и
продолжительности
работ
,
этот
период
является
день
,
смена
и
час
.
| 5.1 Определение номенклатуры и объемов работ.
|
| N п/п
|
Виды работ
|
Правила подсчета,
эскизы, формулы
|
Ед. изм.
по СНиП
|
Кол-во
|
Таблица, СНиП
|
1.
Земляные работы
|
1
|
Планировка площади
строительства
|
К габаритам здания добавлены 10 м с каждой стороны
(33,62+20)*(12,8+20)= 1698,6
|
1000 м2
|
1,7
|
СНиП
IV
-2-82.
Прил.т.1
табл.1-116
|
2
|
Разработка и перемещение грунта бульдозером
|
Плодородный слой снимается
на 20 см
1698,6*0,2= 351,7
|
1000 м3
|
0,35
|
табл.1-29 п.1
|
3
|
Разработка котлована экскаватором
|
Сумма верхней и нижней площадей поверхности котлована делится пополам и умножается на высоту
|
1000 м3
|
1,28
|
4
|
Подчистка грунта вручную
|
7% от объема разработки экскаватором
1275,5*0,07= 89,3
|
100 м3
|
0,9
|
табл.1-79 п.1
|
5
|
Обратная засыпка котлована
|
Vобр.к.
=(0,55+1,55)/2
kр.о.
*Р*Н
Длина = 35+(1,92+0,92)/2= 31,4 м
Ширина = 14+1,42= 15,82
Р= (31,4+15,82)*2=94,4
Vобр.к.
=(0,55+1,55)/2*1,05*94,4*2,4=184,9
|
1000 м3
|
0,185
|
табл.1-29 п.1
|
2.
Основания фундаментов
|
| 6
|
Монтаж фундаментных плит
ФП 1200*300*2400
|
По чертежам раскладки
фундаментов
|
100 шт.
|
0,65
|
табл.7-1
|
| 7
|
Монтаж фундаментных плит
ФП 1200*300*1200
|
100 шт.
|
0,02
|
табл.7-1
|
| 9
|
Монтаж фундаментных блоков
ФБ 500*600*2400
|
100 шт.
|
2,4
|
табл.7-1
|
| 10
|
Монтаж фундаментных блоков
ФБ 500*600*900
|
100 шт.
|
0,52
|
табл.7-1
|
| 11
|
Монтаж фундаментных блоков
ФБ 500*600*1200
|
100 шт.
|
0,4
|
табл.7-1
|
| 12
|
Устройство монолитных фундаментов
|
Равен объему монолитных участков
|
100 м3
|
0,022
|
табл.6-1
|
3.
Конструкции подземных помещений
|
| 13
|
Устройство гидроизоляции
а) горизонтальной
б) вертикальной
|
Определяется умножением толщины фундаментов на их периметр
0,5*177,48= 88,74
Определяется умножением высоты изолируемых стен на их периметр
2,4*363= 872
|
100 м2
100 м2
|
0,9
8,72
|
табл.8-4
табл.8-4
|
| 17
|
Штукатурка цоколя
|
Определяется умножением высоты цоколя на его длину по периметру здания
1,2*51,12= 61,34
|
100 м2
|
0,61
|
табл.15-151
|
4.
Стены
|
| 18
|
Кирпичная кладка наружных стен
|
Определяется умножением площади стен, за вычетом проемов, на проектную толщину
|
м3
|
556,35
|
табл.8-5
|
| 19
|
Кирпичная кладка внутренних стен
|
См. п. 18
|
м3
|
494,25
|
табл.8-5
|
| 20
|
Устройство кирпичных перегородок, толщиной 120 мм
|
Определяется умножением длины перегородок на их высоту
94,3*2,58*5 = 1216
|
100 м2
|
12,16
|
табл.8-5
|
| 21
|
Устройство ж/б перемычек
|
По проекту
|
100 шт.
|
1,3
|
| 22
|
Установка вентиляционных блоков
|
По проекту
|
100 шт.
|
0,04
|
табл.7-49
|
5.
Лестницы
|
| 23
|
Монтаж лестничных площадок
|
По проекту
|
100 шт.
|
0,18
|
табл.7-41
|
| 24
|
Монтаж лестничных маршей
|
100 шт.
|
0,18
|
табл.7-41
|
| 25
|
Установка на лестничных маршах и площадках металлических ограждений
|
По проекту
|
т
|
0,62
|
табл.9-17
|
6.
Устройство подоконных досок
|
| 26
|
Укладка подоконных досок
|
По проекту
|
100 шт.
|
1,1
|
7.
Перекрытия и покрытия
|
| 26
|
Монтаж плит перекрытия
ПК 6000*1500*220
ПК 3300*1500*220
ПК 7000*1500*220
|
По чертежам плит перекрытий
|
100 шт.
|
1,9
0,3
0,1
|
табл.7-39
|
8.
Плиты лоджий, балконов и др.
|
| 27
|
Устройство экранов ограждений
|
По проекту
|
100 шт.
|
0,3
|
табл.7-47
|
| 28
|
Гидроизоляция по балконам
|
Определяется умножением длины балкона на его вынос
(3,3*1,5*30)+(7*1,6*10)= 149
|
100 м2
|
1,49
|
табл.11-3
|
| 29
|
Устройство цементной стяжки
|
Определяется умножением длины балкона на его вынос
|
100 м2
|
1,49
|
табл.11-8
|
9.
Заполнение проемов
|
| 30
|
Заполнение оконных проемов
|
Деревянные и металлические оконные и дверные блоки измеряются умножением ширины на их высоту по наружному обводу коробок
|
100 м2
|
1,35
|
табл.10-13
|
| 31
|
Заполнение дверных проемов
|
100 м2
|
2,83
|
табл.10-13
|
| 32
|
Заполнение балконных проемов
|
100 м2
|
1,89
|
табл.10-22
|
10.
Устройство кровли
|
| 33
|
Устройство пароизоляции
|
Объем работ по покрытию кровель следует исчислять по полной площади покрытия
|
100 м2
|
3,91
|
табл.12-9
|
| 34
|
Устройство плиточного утеплителя
|
100 м2
|
3,91
|
табл.12-9
|
| 35
|
Отделка кровельной сталью
|
Умножение горизонтальной проекции крыши на коэффициент уклона 1:4
= 3,91*1,118=4,37
|
100 м2
|
4,37
|
табл.12-1
|
| 36
|
Устройство деревянных конструкций кровли
|
Рассчитывается по площади скатов
|
100 м2
|
4,37
|
11.
Полы
|
| 36
|
Устройство оснований
|
Fосн
=
Fпола
|
100 м2
|
16,2
|
табл.11-8
|
| 37
|
Гидроизоляция полов
|
Fгидр
=
Fпола
|
100 м2
|
16,2
|
табл.11-9
|
| 38
|
Тепло- и звукоизоляция плитная
|
Fзвукоизол
=
Fпола
|
100 м2
|
16,2
|
табл.11-7
|
| 39
|
Покрытие полов
а) керамическая плитка
б) линолеум
|
Определяется площадью между внутренними стенами или перегородками
|
100 м2
|
0,8
15,4
|
табл.11-20
|
12.
Внутренняя отделка
|
| 40
|
Отделка поверхностей под окраску
а) стен
б) потолков
|
По фактической площади отделки стен, перегородок, колонн, балок и других конструкций
|
100 м2
|
38,0
16,2
|
табл.15-59
|
| 41
|
Штукатурка внутренних поверхностей
а) стен
б) оконных и дверных откосов
|
100 м2
|
38,0
1,63
|
табл.15-56
|
| 42
|
Окраска стен
|
Исчисляется без вычета проемов
|
100 м2
|
40,2
|
табл.15-152
|
| 43
|
Масляная окраска
а) оконных заполнений
б) дверных заполнений
|
Вычисляется с учетом коэффициентов
для окон - 2,8 ; для дверей – 2,4
|
100 м2
|
5,32
5,26
|
табл.15-159
|
| 44
|
Остекление окон и дверей
|
Определяется по наружному обводу коробок
|
100 м2
|
6,07
|
13.
Разные работы
|
| 45
|
Устройство основания под отмостку
|
Vотм
=Fотм
*
h
107,21*0,05 =5,36
|
м3
|
5,36
|
табл.11-1
|
| 46
|
Покрытие отмостки асфальтобетонной смесью
|
100 м2
|
1,07
|
табл.11-13
|
Расчет объема кирпичной кладки:
Объем кирпичной кладки по оси А: (0,51*32,6*16,5)-(0,51*112,5) = 216,9 м3
Объем кирпичной кладки по оси В: (0,38*32,6*13,9)- (0,38*115,5) = 128,3 м3
Объем кирпичной кладки по оси С: (0,51*32,6*16,5)- (0,51*81,3) = 232,9 м3
Объем кирпичной кладки по оси 1: (0,51*12,78*16,5)- (0,51*34,8) = 89,8 м3
Объем кирпичной кладки по оси 2: (0,38*11,76*13,9)- (0,38*10,5) = 58,1 м3
Объем кирпичной кладки по оси 3: (0,38*11,76*13,9)- (0,38*12,6) = 57,3 м3
Объем кирпичной кладки по оси 4: (0,38*11,76*13,9) = 62,1 м3
Объем кирпичной кладки по оси 5: (0,38*11,76*13,9)- (0,38*12,6) = 57,3 м3
Объем кирпичной кладки по оси 6: (0,38*11,76*13,9)- (0,38*10,5) = 58,1 м3
Объем кирпичной кладки по оси 7: (0,51*12,78*16,5)- (0,51*34,8) = 89,8 м3
5.2 Определение трудоемкости работ и затрат машинного времени
N
п/п
|
Виды работ
|
Объем работ
|
Трудоемкость работ
|
Затраты машинного времени
|
Ед.изм.
|
Кол-во
|
Норма на ед. в чел.
часах
|
На весь объем
|
Норма на ед. в чел.
часах
|
На весь объем
|
Чел-
час
|
Чел-
дн
|
Маш-час
|
Маш-дн
|
| 1
|
2
|
3
|
4
|
5
|
6
|
7
|
8
|
9
|
10
|
11
|
| Земляные работы
|
| 1
|
Планировка площади строительства
|
1000 м2
|
1,7
|
-
|
-
|
-
|
0,33
|
0,56
|
0,07
|
§ Е2-1-36
|
| 2
|
Разработка котлована экскаватором
|
100 м3
|
12,8
|
-
|
-
|
-
|
4,5
|
57,6
|
7,2
|
§ Е2-1-8
|
| 3
|
Подчистка грунта
вручную
|
1 м3
|
51,7
|
1,5
|
77,55
|
9,69
|
-
|
-
|
-
|
§ Е2-1-47 |
| 4
|
Обратная засыпка
котлована
|
1 м3
|
245
|
0,81
|
198,45
|
24,8
|
-
|
-
|
-
|
§ Е2-1-58 |
| Итого:
|
34,49*1,5=51,74
|
7,27
|
| Основания фундаментов
|
| 5
|
Монтаж фундаментных плит
ФП 1200*300*2400
|
шт.
|
65
|
0,78
|
50,7
|
6,33
|
0,26
|
16,9
|
2,11
|
§ Е4-1-1
|
| 6
|
Монтаж фундаментных плит
ФП 1200*300*1200
|
шт.
|
2
|
0,63
|
1,26
|
0,16
|
0,21
|
0,42
|
0,05
|
§ Е4-1-1 |
| 7
|
Монтаж фундаментных блоков
ФБ 500*600*2400
|
шт.
|
240
|
0,78
|
187,2
|
23,4
|
0,26
|
62,4
|
7,8
|
§ Е4-1-1 |
| 8
|
Монтаж фундаментных блоков
ФБ 500*600*900
|
шт.
|
52
|
0,45
|
23,4
|
2,925
|
0,15
|
7,8
|
0,975
|
§ Е4-1-1 |
| 9
|
Монтаж фундаментных блоков
ФБ 500*600*1200
|
шт.
|
40
|
0,45
|
18
|
2,25
|
0,15
|
6
|
0,75
|
§ Е4-1-1 |
| 10
|
Устройство монолитных фундаментов
|
1 м3
|
2
|
2,2
|
4,4
|
0,55
|
-
|
-
|
-
|
§ Е4-1-53 |
| Итого:
|
35,615*1,5=53,423
|
11,69
|
| Конструкции подземных помещений
|
| 11
|
Устройство гидроизоляции
а) горизонтальной
б) вертикальной
|
100 м2
|
0,9
8,72
|
8,3
10
|
7,47
87,2
|
0,94
10,9
|
-
|
-
|
-
|
§ Е3-2 |
| 12
|
Штукатурка цоколя
|
100 м2
|
0,61
|
10,5
|
6,405
|
0,80
|
-
|
-
|
-
|
§
Е8-1-2
|
| Итого:
|
12,64*1,5=18,96
|
-
|
| Стены
|
| 13
|
Кирпичная кладка наружных стен
|
1 м3
|
475,5
|
3,2
|
1521,6
|
190,2
|
-
|
-
|
-
|
§ Е3-3
|
| 14
|
Кирпичная кладка внутренних стен
|
1 м3
|
413,4
|
3,2
|
1322,9
|
165,36
|
-
|
-
|
-
|
§ Е3-3
|
| 15
|
Устройство кирпичных перегородок, толщиной 120 мм
|
1 м2
|
1216
|
0,8
|
972,8
|
121,6
|
-
|
-
|
-
|
§ Е3-12
|
| 16
|
Установка вентиляционных блоков
|
1блок
|
4
|
1,5
|
6
|
0,75
|
0,38
|
1,52
|
0,19
|
§ Е4-1-14
|
| 16
|
Устройство ж/б перемычек
|
1 проем
|
130
|
0,45
|
58,5
|
7,3
|
0,15
|
19,5
|
2,4
|
§ Е3-16
|
| Итого:
|
485,21*1,5=727,82
|
2,59
|
| Лестницы
|
| 17
|
Монтаж лестничных площадок
|
1 элемент
|
18
|
0,92
|
16,56
|
2,07
|
0,23
|
4,14
|
0,518
|
§ Е4-1-10
|
| 18
|
Монтаж лестничных маршей
|
1 элемент
|
18
|
0,92
|
16,56
|
2,07
|
0,23
|
4,14
|
0,518
|
§ Е4-1-10
|
19
|
Установка на лестничных маршах и площадках металлических ограждений
|
1 м
|
30,8
|
-
|
-
|
-
|
0,37
|
11,4
|
1,425
|
§ Е4-1-11
|
| Итого:
|
4,14*1,5=6,21
|
2,46
|
| Устройство подоконных досок
|
| 20
|
Укладка подоконных досок
|
1 элемент
|
55
|
0,4
|
22
|
2,75
|
-
|
-
|
-
|
| Итого:
|
2,75*1,5=4,125
|
-
|
| Перекрытия и покрытия
|
| 21
|
Монтаж плит перекрытия
ПК 6000*1500*220
ПК 3300*1500*220
|
1 шт.
|
190
30
|
0,72
0,72
|
136,8
21,6
|
17,1
2,7
|
0,18
0,18
|
34,2
5,4
|
4,275
0,675
|
§ Е4-1-7
|
| Итого:
|
19,8*1,5=29,7
|
4,95
|
| Плиты лоджий
|
| 22
|
Устройство экранов ограждений
|
1 элемент
|
30
|
0,48
|
14,4
|
1,8
|
0,16
|
4,8
|
0,6
|
§ Е4-1-9
|
| 23
|
Гидроизоляция по балконам
|
100 м2
|
1,49
|
6
|
8,94
|
1,12
|
-
|
-
|
-
|
§
Е11-37
|
| 24
|
Устройство цементной стяжки
|
100 м2
|
1,49
|
23,0
|
34,27
|
4,28
|
-
|
-
|
-
|
§ Е19-43 |
| Итого:
|
7,2*1,5=10,8
|
0,6
|
| Заполнение проемов
|
| 26
|
Заполнение оконных проемов
|
100 м2
|
1,35
|
20
|
27
|
3,38
|
10
|
13,5
|
1,688
|
§ Е6-13
|
| 27
|
Заполнение дверных проемов
|
100 м2
|
2,83
|
18
|
42,84
|
5,36
|
9
|
25,47
|
3,184
|
§ Е6-13
|
| 28
|
Заполнение балконных проемов
|
100 м2
|
1,89
|
16
|
30,24
|
3,78
|
8
|
15,12
|
1,89
|
§ Е6-13
|
| Итого:
|
12,52*1,5=18,78
|
6,76
|
| Устройство кровли
|
| 29
|
Устройство пароизоляции
|
100 м2
|
3,91
|
6,7
|
26,197
|
3,28
|
-
|
-
|
-
|
| 30
|
Устройство плитного утеплителя
|
1 м2
|
391
|
0,36
|
140,76
|
17,6
|
-
|
-
|
-
|
§
Е11-41
|
| 31
|
Отделка кровельной сталью
|
1 м2
|
457
|
0,36
|
164,52
|
20,57
|
-
|
-
|
-
|
§ Е7-6
|
| 32
|
Устройство деревянных конструкций кровли
|
100 м2
|
4,37
|
29,2
|
127,6
|
15,9
|
| Итого:
|
57,4*1,5=86,1
|
-
|
| Полы
|
| 32
|
Устройство оснований
|
100 м2
|
16,2
|
11,5
|
186,3
|
23,29
|
-
|
-
|
-
|
§ Е19-38
|
| 33
|
Гидроизоляция полов
|
100 м2
|
16,2
|
1,8
|
29,16
|
3,65
|
-
|
-
|
-
|
| 34
|
Тепло- и звукоизоляция плитная
|
1 м2
|
1620
|
0,36
|
583,2
|
72,9
|
-
|
-
|
-
|
§ Е11-41
|
| 35
|
Покрытие полов
а) керамическая плитка
б) линолеум
|
1 м2
|
79,2
1540,8
|
0,59
0,15
|
46,728
231,12
|
5,84
28,89
|
-
-
|
-
-
|
-
-
|
§ Е19-19
§ Е19-13
|
| Итого:
|
134,57*1,5=201,86
|
-
|
| Внутренняя отделка
|
| 36
|
Отделка поверхностей под окраску
а) стен
б) потолков
|
100 м2
|
38,0
9,8
|
70,5
89,0
|
2679
872,2
|
334,88
109,03
|
-
-
|
-
-
|
-
-
|
| 37
|
Штукатурка внутренних поверхностей
а) стен
б) оконных и дверных откосов
|
100 м2
1 м2
|
38,0
163
|
49,5
2,0
|
1881
326
|
235,13
40,75
|
-
-
|
-
-
|
-
-
|
§ Е8-1-2
|
| 38
|
Окраска стен
|
100 м2
|
40,2
|
26,4
|
1061,3
|
132,66
|
-
|
-
|
-
|
§ Е8-1-15
|
| Итого:
|
852,45*1,5=1278,68
|
-
|
| Разные работы
|
| 41
|
Устройство основания под отмостку
|
100 м2
|
1,07
|
4,3
|
4,601
|
0,58
|
-
|
-
|
-
|
§ Е17-33 |
| 42
|
Покрытие отмостки асфальтобетонной смесью
|
100 м2
|
1,07
|
4,6
|
4,922
|
0,62
|
-
|
-
|
-
|
§ Е17-34 |
| Итого:
|
1,2*1,5=1,8
|
-
|
Итого:
Q
смр=2490 чел-дн
| Трудоемкость работ, не включенных в номенклатуру
|
| 43
|
Общие неучтенные работы
|
20% от
Q
смр
|
498
|
| 44
|
Внутриплощадочные
работы
|
5% от
Q
смр
|
124,5
|
| 45
|
Сантехнические
Работы
|
10% от
Q
смр
|
249
|
| 46
|
Электротехнические
работы
|
5% от
Q
смр
|
124,5
|
| 47
|
Благоустройство
территории
|
0,5% от
Q
смр
|
12,45
|
| 48
|
Сдача объекта
|
0,5% от
Q
смр
|
12,45
|
| Итого:
|
1020,9
|
Общая трудоемкость работ составит:
Q
смр +
Q
пр = 2490+1020,9=3510,9 чел-дн
5.3 Определение продолжительности строительства здания и количество рабочих
Нормативная продолжительность строительства, Т, определяется по СНиП 1.04-03-85 и составляет 7 месяцев. Т = 7 * 24 = 168 дней.
Общее количество людей, необходимых для строительства N = Qобщ / Т = 3510,9 / 168 = 20,9 = 21 чел. Принимаем 21 человек; 3 бригады: 1- 14 чел; 2 – 4 чел; 3 – 3 чел.
№
п\п
|
Виды работ
|
Трудоемкость
работ,чел-дн
|
%
|
Кол. рабочих
|
Кол. смен
|
Продол. в днях
|
1
2
3
4
5
6
7
8
9
10
11
10
11
12
13
14
|
Земляные работы
Устройство фундаментов
Конструкции подземных помещений
Кирпичная кладка стен.
Лестницы
Перекрытия и покрытия
Плиты лоджий
Устройство кровли
Внутренняя отделка
Заполнение проемов
Укладка подоконных
досок
Полы
Разные работы
Сантехнические работы
Работы электрические
Внутриплощадочные, благоустройство, сдача проекта
|
51,74
53,42
18,96
727,82
6,21
29,7
10,8
86,1
1278,68
18,78
4,13
201,86
1,8
249
124,5
149,4
|
1,5
1,52
0,54
20,73
0,18
0,85
0,3
2,5
36,4
0,54
0,12
5,75
0,05
4,73
2,4
2,84
|
1 бр
1 бр
1 бр
1 бр
1 бр
1 бр
1 бр
1 бр
1 бр
1 бр
1 бр
1 бр
1 бр
2 бр
3 бр
1 бр
|
1
1
1
2
1
1
1
1
2
1
1
1
1
2
2
1
|
4
4
1,5
26
0,5
2,5
1
6,5
46
1,5
0,5
15
0,5
31
21
11
|
| 3510,9
|
100%
|
6. Библиографический список
1. Гаевой А .Ф., Усик С.А. Курсовое и дипломное проектирование. Промышленные и гражданские здания/Ленинград. Стройиздат. 1987
2. СНиП
IV
-2-82 Часть
IV
глава 2, том 1. Сметные нормы и правила/Госстрой СССР, Москва. Стройиздат. 1985
3. СНиП
IV
-2-82 Часть
IV
глава 2, том 2. Сметные нормы и правила/Госстрой СССР, Москва. Стройиздат. 1983
4. СНиП 1. 04-03-85 Строительный каталог. Часть2. Типовые проекты предприятий, зданий и сооружений/СССР. ЦИТП. 1987
5. ЕНиРы.
|