СИСТЕМОЛОГИЯ - НОВАЯ ИНФОРМАЦИОННАЯ ТЕХНОЛОГИЯ КОМПЬЮТЕРИЗАЦИИ ИНЖЕНЕРНЫХ ЗНАНИЙ
Направления дальнейшего совершенствования методов и средств автоматизации инженерного труда связаны с необходимостью сокращения трудоемкости создания, адаптации и сопровождения прикладных программных систем автоматизации, сокращения трудоемкости и повышения качества проектирования с использованием этих систем, обеспечение возможностей накопления и распространения опыта наиболее квалифицированных специалистов, интеграции процессов инженерного проектирования. В обеспечение этих целей необходимо разработать адекватные информационные технологии. Любая проектируемая система состоит из элементов и связей между ними. Формально структуру системы (изделия или процесса) можно представить в виде упорядоченной пары S=<A,R>, где А есть множество элементов системы, а R - множество отношений между этими элементами. Отсюда следует, что классификация проектируемых систем может быть произведена с использованием одного из двух фундаментальных критериев различия: а) по типу элементов, образующих систему; б) по типу отношений, связывающих эти элементы в систему [2]. Классификационные категории а) и б) можно рассматривать как ортогональные, т.е. независимые. Примером использования критерия а) служит традиционное разделение науки и техники на дисциплины и специальности, каждая из которых занимается определенным типом элементов. Поскольку элементы разных типов требуют разных экспериментальных средств для сбора данных, классификация по критерию а) имеет экспериментальную основу. Критерий б) дает совершенно иную классификацию систем: класс задается определенным типом отношений, а тип элементов, на которых определены эти отношения, не фиксируется. Такая классификация связана с обработкой данных, а не с их сбором, и основа ее преимущественно теоретическая. Самыми большими классами систем по критерию б) являются классы, описывающие различные эпистемологические уровни, т.е. уровни знания относительно рассматриваемых явлений [2]. Системная методология представляет собой совокупность методов изучения свойств различных классов систем и решения системных задач, т.е. задач, касающихся отношений в системах. Ядром системологии является классификация систем с точки зрения отношений. Главная задача системной методологии - предоставление в распоряжение потенциальных пользователей, представляющих различные дисциплины и предметные области, методов решения всех определенных типов системных задач. Каркасом иерархической классификации систем в системологии является иерархия эпистемологических уровней систем. Самый нижний уровень в этой иерархии, обозначаемый как уровень 0, - это система, различаемая исследователями как система. На этом уровне система определяется через множество свойств (переменных), множество потенциальных состояний (значений) этих свойств и операционный способ описания смысла этих состояний в терминах значений, соответствующих атрибутов данной системы. Для определенных на этом уровне систем используется термин исходная система. Иными словами на уровне 0 рассматриваются характеристики и взаимосвязи между свойствами (переменными) используемой (проектируемой) системы. На более высоких эпистемологических уровнях системы отличаются друг от друга уровнем знаний относительно переменных соответствующей исходной системы. В системах более высокого уровня используются все знания систем более низких уровней и, кроме того, содержатся дополнительные знания, доступные низшим уровням. После того как исходная система дополнена данными, т.е. фактически состояниями основных переменных при определенном наборе параметров, рассматривают новую систему (исходную систему с данными) как определенную на эпистемологическом уровне 1 [2]. Системы этого уровня называются системами данных. Уровень 2 применительно к задачам автоматизации проектирование представляет собой уровень базы знаний генерации значений переменных, определяющих свойства изделий и технологических процессов. На этом уровне задаются инвариантные параметрам функциональные связи основных переменных, в число которых входят переменные, определяемые соответствующей исходной системой и, возможно, некоторые дополнительные. Каждое правило преобразования базы знаний на этом уровне обычно представляет собой однозначную функцию, присваивающую каждому элементу множество переменных, рассматриваемых в этом правиле в качестве выходного, единственное значение из множества допустимых. Поскольку задачей генерации свойств является реализация процесса, при котором состояния основных переменных могут порождать по множеству параметров при любых значениях или любых условиях, системы уровня 2 называются порождающими системами (generative system). Применительно к конструированию на уровне 2 располагаются базы знаний, связанных с расчетом конструкций. Применительно к проектированию технологических процессов на уровне 2 располагаются базы знаний по выбору заготовок, формированию набора переходов, расчету режимов обработки, расчету норм времени и т.п. На эпистемологическом уровне 3 системы, определенные как порождающие системы (или иногда системы более низкого уровня) называются подсистемами общей системы. Эти подсистемы могут соединяться в том смысле, что они могут иметь некоторые общие переменные. Системы этого уровня называются структурированными системами (structure system). Применительно к задаче автоматизации проектирования это - уровень структурного синтеза. На эпистемологических уровнях 4 и выше системы состоят из набора систем, определенных на более низком уровне, и некоторой инвариантной параметрам метахарактеристики (правила, отношения, процедуры), описывающие изменения в системах более низкого уровня. Требуется, чтобы системы более низкого уровня имели одну и ту же исходную систему и были определены на уровне 1, 2 или 3. Это - уровни, необходимые для формирования концептуальных И/ИЛИ графов. Как было отмечено выше любая проектируемая система состоит из элементов и связей между ними и формально может быть представлена в виде упорядоченной пары S=<A,R>, где А - множество элементов системы, а R - множество отношений между ними. Если исключить тривиальные случаи типового проектирования, когда состав и структура системы неизменна и задача сводится к расчету переменной, а также поисковое проектирование, когда неизвестны элементы, реализующие потребные функции, то в подавляющем большинстве случаев оригинального проектирования оно сводится к соединению между собой известных элементов А для получения новой технической системы с заданными функциональными возможностями, характеристики которой удовлетворяют техническим требованиям. Т.о. на концептуальном уровне необходимо определить: 1) модели элементов, 2) методику построения из них системы. В основе методики построения структуры технических систем лежат концептуальные И/ИЛИ графы. В качестве элементов, представляющих собой обобщенные строительные блоки различных уровней абстракции, целесообразно использовать системные компоненты (СК). СК представляет собой физически реализуемые элементы технических систем. Они являются обобщенными в том смысле, что каждый компонент может иметь множество реализаций. Формально системный компонент в общем виде представляет собой пятерку: <P,S,D,F,Str>a, (1) где P - основное свойство (наименование и/или функция), S - исходная система, в - система данных, F - порождающая система, Str - структура системы. Порождающая система может состоять из двух подсистем: F=<Fb,Fg>, (2) где Fb - знания о характеристиках, Fg - геометрические знания (параметризованный образ). Индекс а - определяет уровень абстрагирования: а={функциональный, принципиальный, конструктивный, рабочий}. Некоторые составляющие модели СК могут отсутствовать. Минимально необходимый набор включает пару <S,Fb>. в - отсутствует при описании оригинальных компонент, но необходим при описании стандартных, нормализованных, типовых, унифицированных и покупных элементов. Fg - отсутствует у компонент, не имеющих геометрического представления. Str - отсутствует для неделимых элементов и агрегатов низшего уровня. Системный компонент является фундаментальным модулем для построения интегрированных интеллектуальных систем проектирования.
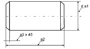
 Рис. 1. Ось гладкая
Для иллюстрации введенных понятий рассмотрим простейшую машиностроительную деталь - ось (рис. 1). Наименование оси - «ось гладкая»; функция заключается в базировании элементов кинематической пары с восприятием изгибающего момента. В качестве базы используем группу деталей типа «ось», имеющихся на данном производстве. В данном случае база представляет собой декартово произведение двух параметров b1 и b2 (табл. 1). Параметр b1 - наименование детали. Конкретный параметр b2 может быть задан с помощью любой взаимно однозначной функции, которая каждой детали ставит в соответствие уникальный идентификатор, например, как это принято в ЕСКД, трехзначный регистрационный номер. В качестве обобщенного параметра здесь удобно принять целочисленный порядковый номер оси, под которым она будет записываться в базу данных. Согласно терминологии баз данных наименование детали и номер являются составным ключом реляционного отношения, описывающего ось как систему.
Таблица 1. Словарь
| Идентификатор |
Тип |
Имя |
| a1 |
F5.2 |
Диаметр оси стандартной, мм |
| a2 |
F5.2 |
Длина оси стандартная, мм |
| a3 |
F5.2 |
Ширина фаски,мм |
| a8 |
A20 |
Марка материала |
| b1 |
A14 |
Наименование детали |
| b2 |
I6 |
Номер детали |
Чтобы представить характеристики реальной детали в ЭВМ, мы должны использовать переменные различных типов. В табл. 1 типы переменных имеют следующие обозначения: целый - I, вещественный - F, символьный - A. Переменные рассматриваются как операционные представления характеристик, а параметры - базы. В словаре каждые переменная и параметр имеют имя, идентификатор и тип. Вернемся к описанным выше характеристикам детали. С точки зрения пользователя выходными переменными являются: наименование детали; диаметр оси исходный, мм; длина оси исходная, мм; марка материала; изгибающий момент, N*мм. Исходные размеры оси задаются конструктивно, материал назначается конструктором, а изгибающий момент определяется на более высоком уровне абстрагирования (принципиальном). Выходные характеристики оси: 1) геометрические: а1 - диаметр оси стандартный, мм; а2 - длина оси стандартная, мм; а3 - ширина фаски, мм; 2) не геометрические: точность диаметра; знак шероховатости; величина шероховатости, мкм; знак твердости; величина твердости; вид термообработки; вид покрытия. Исходная система S детали «ось гладкая» представляет собой реляционное отношение (табл. 2). Система данных в в данном случае хранит доступный набор геометрических переменных «диаметр оси стандартный, мм» и «ширина фаски, мм» (табл. 3). Переменная «длина оси стандартная, мм» определяется в порождающей системе Fb по стандартному диаметру и исходной длине. На рис. 2 дано внешнее представление блока принятия решений, реализующего элементарную порождающую систему для определения стандартной длины оси. Такой блок определяет собой продукционное правило с таблицами условий (верхняя) и значений (нижняя). Совокупность блоков, объединенная в вычислительную модель образует базу знаний, которая функционирует под управлением планировщика, выполняющего функции логического вывода.
Таблица 2 Таблица OS: Ось гладкая
| Имя поля |
Формат |
Наименование |
| b2 |
I6 |
Номер детали |
| a1 |
F5.2 |
Диаметр оси стандартной, мм |
| a2 |
F5.2 |
Длина оси стандартная, мм |
| a3 |
F5.2 |
Ширина фаски, мм |
| a1 |
a3 |
| 8 |
0.6 |
| 10 |
1.0 |
| 12 |
1.0 |
| 13 |
1.0 |
| 14 |
1.6 |
| Наименование параметра |
Значение |
Имя |
| 1. Наименование детали |
ось гладкая, ось с буртиком |
| 2. Диаметр оси стандартной, мм |
(0,18] |
| 3. Длина оси исходная, мм |
(0,20] |
| 4. Длина оси стандартная, мм |
| Длина оси исходная, мм |
Диаметр оси стандартный, мм |
| 5 |
6 |
8 |
10 |
12 |
14 |
16,18 |
| (0,12] |
12 |
| (12,14] |
14 |
14 |
| (14,16] |
16 |
16 |
16 |
| (16,18] |
18 |
18 |
18 |
18 |
| (18,20] |
20 |
20 |
20 |
20 |
20 |
Рис. 2. Блок значения стандартной длины оси.
В порождающей системе Fb системной компоненты «ось гладкая» помимо значений о геометрической характеристике хранятся также прочностные, точностные и технологические значения. В качестве примера элемента таких значений на рис. 3 приведен блок расчета диаметра оси.
Блок: r1. Разработчик: Евгенев Г.Б.Расчет диаметра оси.Анурьев В.И. Справочник конструктора, т. 2
| Наименование параметра |
Значение |
Имя |
| 1. Наименование детали |
ось гладкая, ось с буртиком |
| 2. Изгибающий момент, N*мм |
(0.,95000) |
A9 |
| 3. Допустимые напряжения изгиба, МПа |
[0.6,0.95] |
A10 |
| 4. Диаметр оси расчетный, мм |
| Наменование детали |
Изгибающий момент, N*мм |
| (0.,95000) |
| ось гладкая, ось с буртиком |
(А9/(0.1*А10))**(1./3.) |
Рис. 3. Блок расчета диаметра оси.
Инженерное значение, хранящееся в порождающей системе Fb целесообразно представлять в непроцедурной форме с помощью реляционных баз данных и продукционных баз знаний, как это было показано выше. Геометрические значения Fg представляются в форме параметризованных образов, описываемых через формальные параметры с помощь подпрограмм на геометрических языках процедурного типа. Пример такой программы на языке СПРУТ приведен ниже.
! Ось гладкая SUB AXCIL; SYSTEM GPS; SYSTEM SGR; SYSTEM SGM; SYSTEM SDB; SYSTEM SETS; SYSTEM DOG GROUT 1; GRMODE 1; WINDOW -50, -25, 50, 25 OPENBASE "Parts" TABLE "OS" GET D="a1"; L="a2"; F="a3" P1=X(0),Y(0); P2=X(0),Y(D/2-F); P3=X(F),Y(D/2); P4=X(L-F),Y(D/2); P5=X(L),Y(D/2-F); P6=X(L),Y(0) K1=P1,P2,P3,P4,P5,P6,P1 DRAW K1 TOSET (1)=K1 P3D1=0,0,0; P3D2=0,L,0, SOLID 1=ROT,P3D1,P3D2,SET[1],P2,m(0.1) NEWBASE "Proj1" MKSEGM "Axcil" OUTKONT K1 SUBEND |
! Подготовка вывода на монитор ! Открытие базы данных ! Выбор таблицы ! Считывание параметров
! Формирование точек контура ! Контур образующей ! Вывод контура на монитор
! Точки на оси вращения ! Твердотельная модель детали ! Создание графической базы ! Создание графического сегмента ! Вывод образующей в графическую базу |
|