Реферат: Инструмент архитектора в информационную эпоху ArchiCAD 5.0
|
Название: Инструмент архитектора в информационную эпоху ArchiCAD 5.0 Раздел: Рефераты по информатике, программированию Тип: реферат |
Инстумент архитектора в информационную эпохуArchiCAD 5.0
Введение ArchiCAD является лидером бысрорастущего класса архитектурных CAD-пакетов объединяющих в себе возможности 3D моделирования и объектноориентированного подхода. Как первопроходцы в этом классе, мы предлагаем преимущества:
Являясь лидером в классе подобных программных средств, мы делаем акцент на простоте использования, легкости обучения работе с пакетом, на наиболее полных и продвинутых библиотеках материалов и элементов (ArchiCAD был "объектно-ориентированным" еще в 1985г.!), на чрезвычайно быстром 3D моделировании, на общих вопросах и задачах архитектуры, архитектурного проектирования и дизайна (таким образом ArchiCAD это вовсе не очередная модификация инженерно-чертежного CAD приложения). Кроме этого необходимо отметить следующие усовершенствования повышающие конкурентноспособность ArchiCAD 'а: многоплатформенность, техническую поддержку и обучение, наилучшую совместимость с инженерными приложениями. ArchiCAD является профессиональным инструментом для архитектурных фирм, он также весьма полезен для усовершенствования процесса проектирования, для разработ ки фирменного дизайна и рекламы, для создания презентаций, для конкурсного проектирования и т.д. Под разработкой проекта строения, будь то коттедж или небоскреб, и соответствующей строительной документации, подразумевают создание информации, доступной для двух типов аудитории - "покупателей" и "строителей". Покупателя больше интересуют планы этажей, трехмерные изображения, анимационные ролики и, конечно, расчет бюджета, строителя - полный перечень строительных документов и необходимых материалов. Чаще всего, программы САПР предоставляют только какой-либо один тип вышеупомянутой информации, и только ArchiCAD позволяет в одном файле интегрировать данные, понятные как профессионалу-строителю, так и покупателю. Эта особенность позволяет архитектору - пользователю ArchiCAD сэкономить свое рабочее время и значительную часть средств своего клиента и поможет избежать возможных конфликтов еще до их возникновения. Пользователь ArchiCAD обладает полной и разнообразной информацией о проекте на любом этапе его разработки:
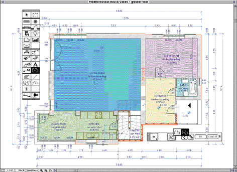
Составление документации происходит одновременно с разработкой проекта, так как программа хранит полный объем информации о проектируемом здании - планы, разрезы, перспективы, перечень необходимых материалов. а также все замечания архитектора, сделанные во время работы. ArchiCAD позволяет на любом этапе работы над проектом увидеть его в трехмерном виде, в разрезе, в перспективе, подобрать наиболее подходящие материалы и посчитать их расход. Возможно даже создать мультипликационный ролик, изобразив спроектированное здание в его привязке к местности, провести заказчика по зданию, заглянув на каждый этаж и в каждую комнату, а также обойти или облететь здание вокруг. Таким образом проект станет более наглядным и понятным заказчику. Главное - прочный фундамент Вся информация о проектируемом сооружении накапливается в так называемом едином проектном Living Document. Такая интеграция всех аспектов дизайна означает, что измение, затрагивающее любой аспект - например изменение сечения или проема окна, отражается в ведомости материалов, проекциях, планах и так далее. Часто встречающееся требование по многократному внесению изменений в рабочие файлы различных видов - источник ошибок и задержек в выполнении проектов, при использовании ArchiCAD теряет смысл. Используемая концепция информационной поддержки проекта - Виртуальное Здание, устраняет возможность несогласования данных и автоматически поддерживает их синхронизацию. План Проект в ArchiCAD начинается с построения плана первого этажа. Его размер не имеет принципиального значения. Затем, используя такие объекты, как стены, двери, окна, плиты, колонны, перекрытия и т.д. постепенно создается проект здания. Информация о высоте каждого строительного элемента уже содержится в них, но ее можно поменять в любой момент, как для всего этажа в целом, так и выбирая каждый элемент по отдельности. После того, как план первого этажа готов, к нему можно добавить практически неограниченное количество этажей, просто копируя уже нарисованные объекты. Причем их можно добавлять как вверх, так и вниз. Так как этажи располагаются точно друг над другом, то несовпадение колонн, оконных проемов, и других элементов практически невозможно. Система работы с многоэтажными проектами сокращает время разработки и снижает риск появления дорогостоящих ошибок. Модель здания В процессе разработки модели ArchiCAD отслеживает все компоненты здания и управляет трехмерной информацией. В любой момент в процессе построения можно запросить ArchiCAD выделить какую-либо секцию, показать вид сбоку или перспективу, сформировать текущий перечень строительных материалов. Любую секцию здания на плане можно изобразить в разрезе. Это позволяет установить правильное соотношение между наружной и внутренней частями здания. Кроме того, сечение секции можно изобразить в реалистической закраске.(см. Рис.)
С легкостью могут быть получены неограниченное число перспективных проекций, также как виды в плане и в аксонометрии. Чтобы показать здание наиболее наглядно, можно использовать фотографию реальной местности в качестве фона и затем разместить само здание. С этой же целью в ArchiCAD предусмотрены возможности создания эффекта солнечного света, зависящего от времени суток, даты и географической широты, а также нанесения теней. Можно определить, как будет падать свет в любое время суток в любой части здания. Исходя из этого, при работе над интерьером можно оптимальным образом рассчитать необходимое количество источников света. Получение реалистических изображений интерьера, используя произвольное число источников света, таких как настольные лампы, потолочные и точечные светильники, довершит убедительность представления проекта заказчику. На любой стадии проекта можно просмотреть спецификацию используемых материалов. В ней учитываются все компоненты, используемые при строительстве, их характеристики могут включать такие параметры, как площадь, объем, цена и прочее (например, производитель, трудозатраты на установку и т.д.). Точность численных данных - до 12 знаков после запятой. Полученную спецификацию можно экспортировать в файлы форматов электронных таблиц, баз данных и текстовых редакторов (например, Excel, dBase, Word). С помощью инструмента зонирования можно пометить комнаты и зоны здания, такие как жилая площадь, офисы, склады, вспомогательные помещения и так далее, все что хотите. Площадь и объем каждой зоны вычисляются автоматически.
Высокое качество построения реалистических изображений позволяет использовать настоящие строительные материалы, тени, прозрачные объекты и текстуры поверхностей. Среди методов улучшения качества изображения - сглаживание краев, отражение света и его рассеяние. Кроме того, вы можете рассчитать размер тени, отбрасываемой зданием в зависимости от места его расположения и времени суток. ArchiCAD может создать анимационный ролик, в котором можно совершить виртуальное путешествие вокруг и внутри здания. Используя специальное программное и аппаратное обеспечение, его можно записать на видеопленку, наложить звук и так далее. Использование средств виртуальной реальности пригодится не только для того, чтобы убедить заказчика, но и для того, чтобы обнаружить и исправить возможные ошибки конструирования не на стадии строительства, а на стадии проектирования. Анимационные ролики весьма компактны и предъявляют достаточно скромные требования к производительности компьютеров, поэтому их можно проигрывать на домашних компьютерах, переносить на дискетах и даже распространять по сети Internet. Простой интерфейс Информация на экране должна быть одновременно и простой и исчерпывающей. ArchiCAD обеспечивает правильное соотношение между объемом и важностью отображаемой информации, поэтому как специалист, так и новичок легко могут научиться производительно использовать богатые функциональные возможности программы, что сокращает срок обучения и, значит, экономит деньги пользователей.
ArchiCAD, в отличие от многих других САПР, разработанных для общеинженерного применения, а затем адаптированных к требованиям архитектурного и строительного проектирования, был спроектирован специально для архитектуры и строительного дизайна. Поэтому интерфейс и инструментарий программы представляют собой средства. Привычные для архитекторов. Например, в ArchiCAD стены - это более, чем параллельные линии, они содержат ценную информацию о конструкции, материалах, из которых изготовлена стена, параметрах, стоимости, связи с другими элементами здания - стенами, полом, потолком. Стены всегда можно изобразить в перспективе, увидеть вид сбоку, а также получить спецификацию. Элементы здания, такие как стены, полы, кровли представлены в виде легко узнаваемых графических символов и они ведут себя так, как вы ожидаете. Они интеллектуальны. Это означает, что например, что стена сама «знает», как правильно соединиться с двускатной или наклонной крышей. Кроме того, в ArchiCAD есть так называемый «думающий» курсор (Intellegent Cursor).
Он может точно определить ваше местоположение на плане и помогает правилно выровнять и разместить строительные элементы. Он также помогает при построениях, так как обозначает прямые углы, касательные, пересечения, узлы и линии построения. Все эти функции легко выучить и запомнить, они доступны на любой стадии проектирования и значительно облегчают работу над проектом. Система «прозрачна» для пользователя, ее реакции всегда отображаются на экране и они предсказуемы. Кроме того, ArchiCAD - хороший помощник, возможность «отката назад» на 99 шагов позволит исправить практически любую ошибку. Если, конечно, ее удастся вовремя заметить. Перед тем как начать выполнять особо продолжительные операции, ArchiCAD запрашивает дополнительное подтверждение. Крыши С помощью ArchiCAD можно сконструировать крышу практически любого вида - от простой плоской, навесной или двускатной, до крыш сложных форм с использованием мансард и различных желобов. Автоматические методы конструирования крыш делают процесс проектирования даже изогнутых крыш простым и точным. Стены автоматически подрезаются или продлеваются до стыковки с крышей, сокращая затраты времени на расчет сложных пересечений. При этом автоматически вносятся дополнения в спецификацию материалов.
Лестницы Лестницы - один из самых сложных и трудоемких в рассчете и изображении объектов. В комплект поставки ArchiCAD входит StairMaker-
Сечения и уровни Работая непосредственно с планом этажа, на нем можно выделить и пометить любые сечения и уровни, необходимые для документирования проекта. Каждое сечение показывается в своем собственном окне, и его можно редактировать непосредственно. Сечения и уровени синхронизированы со всем проектом, то есть на них будут немедленно отображаться изменения, сделанные на плане этажа, и наоборот, измения на сечении автоматически отображаются на плане. К чертежу могут быть добавлена любая текстовая информация, размеры и прочие графические примитивы (линии, дуги, сплайны и др.).
Детальный и полный ArchiCAD представляет хорошо сбалансированную конструкцию из мощных инструментов САПР и практических функций, необходимых для выпуска полной, вплоть до последней детали, строительной документации. Параметрическая визуализация Уникальная особенность ArchiCAD - зависящая от масштаба изображения детализация и параметрические свойства. Изменив, например, масштаб изображения, такие строительные элементы, как двери и окна могут быть изображены схематично или во всех деталях. Таким образом вам не придется зря тратить время на различные виды детализации изображения, а также при ожидании перерисовки на экране излишне детализированного чертежа в большом масштабе. Наличие большого числа каталогов производителей, откуда любой элемент строения можно скопировать и вставить в чертеж, также существенно облегчает черчение. Ассоциативные размеры Размерные линии в ArchiCAD привязаны к специфическим точкам здания, что означает, что размеры пересчитываются при любых изменениях автоматически. Кроме значений, изменяются также и положение размерных линий, чтобы избежать их перекрытия и неряшливого вида чертежа. Локализованные версии (к ним относится и русская версия ArchiCAD) поддерживают местные стандарты простановки размеров. Трехмерные объекты ArchiCAD поставляется в комплекте с библиотекой, включающей более 600 трехмерных параметрических элементов строительных конструкций, каждую из которых можно модифицировать по своему усмотрению, чтобы получить из нее еще десяток других. Например, используя только два параметра - длину и высоту - ArchiCAD может сгенерировать лестничную клетку в соответствии с критериями вашего дизайна. Используя встроенный геометрический язык описания конструкций (GDL) можно создать любое число собственных параметрических конструкций. GDL - мощный инструмент для моделирования наиболее сложных и утонченных форм, входит в стандартную поставку ArchiCAD. Результат на бумаге Наряду с ArchiCAD в комплект поставки входит программа подготовки к печати и вывода на принтер и плоттер различных чертежей (кстати, созданных не только в ArchiCAD) - PlotMaker. С ее помощью отдельные виды чертежа, либо отдельные графичекие файлы масштабируются и размещаются на листе, а также добавляться различные элементы оформления, как то надписи и т.д. PlotMaker напрямую поддерживает более 150 моделей перьевых, электростатических, лазерных, струйных и пр. плоттеров. С его помощью можно одновременно выводить как векторную так и растровую графику, шрифты True Type и PostScript. Совместимость Также как профессия архитектора - ArchiCAD это мультидисциплинарная программа. Практически все, что делает архитектор во время работы, можно выполнить с помощью ArchiCAD, а многие специализированные приложения (базы данных, машиностроительные САПР, программы структурного анализа, моделирования земной поверхности и реалистичной визуализации) могут легко обмениваться данными с ArchiCAD через один из многих форматов данных. Организованный Graphisoft, Alliance for Architects обеспечивает растущую базу программных продуктов, направленных на улучшение ArchiCAD в сторону моделирования земной поверхности и фотореалистическая визуализация. ArchiCAD может читать и записывать файлы таких стандартов автоматизированного проектирования, как DXF и DWG. Версии ArchiCAD для Windows NT, 95 и Macintosh используют один и тот же файловый формат, поэтому пользователям не надо заботиться о совместимости файловых форматов. Развивая стратегическое направление на обеспечение совместимости программных продуктов от разных производителей, Graphisoft является членом Industry Alliance for Interoperability, инициативной группы по разработке стандартов кросс-платформенных строительно-архитектурных САПР будущего. |






