Реферат: Конструирование, проектирование и организация ведения горных работ
|
Название: Конструирование, проектирование и организация ведения горных работ Раздел: Рефераты по геологии Тип: реферат | |||||||||||||||||||||||||||||||||||||||||||||||||||||||||||||||||||||||||||||||||||||||||||||||||||||||||||||||||||||||||||||||||||||||||||||||||||||||||||||||||||||||||||||||||||||||||||||||||||||||||||||||||||||||||||||||||||||||||||||||||||||||||||||||||||||||||||||||||||||||||||||||||||||||||||||||||||||||||||||||||||||
| Министерство образования и науки РФ Государственное образовательное учреждение высшего профессионального образования «Сибирский Государственный индустриальный университет» Кафедра разработки пластовых месторождений Расчетно - пояснительная записка к курсовой работе по дисциплине: «Горное дело» Выполнил: ст.гр. ЭУГ – 092 Гилязова Ю.Н. Проверил: ст. преподаватель Риб С.В. Новокузнецк 2010 Содержание Введение…………………………………………………………………………...3 Исходные данные…………………………………………………………………4 1 Основные параметры шахты…………………………………………………..5 1.1 Расчет промышленных запасов шахтного поля…………………………...5 1.2 Расчет годовой мощности шахты…………………………………………..9 1.3 Расчет срока службы шахты……………………………………………….11 2 Выбор способа и схемы вскрытия шахтного поля…………………………..12 2.1 Выбор способа вскрытия шахтного поля………………………………...12 2.2 Выбор схемы вскрытия шахтного поля…………………………………..14 2.3 Безопасность ведения горных работ при вскрытии шахтного поля……19 3 Выбор способа и схемы подготовки шахтного поля………………………..21 3.1 Выбор способа подготовки шахтного поля……………………………...21 3.2 Выбор схемы подготовки шахтного поля………………………………..21 3.3 Безопасность ведения горных работ при подготовке шахтного поля….22 4 Система разработки……………………………………………………………24 4.1 Выбор и обоснование системы разработки……………………………...25 4.2 Технические средства очистных работ…………………………………..26 4.3 Размеры выемочных полей и очистных забоев………………………….28 4.4 Нагрузка на очистной забой………………………………………………28 4.5 Проверка нагрузки на очистной забой по газовому фактору…………...29 4.6 Определение числа действующих очистных забоев…………………….30 4.7 Технологическая схема шахты……………………………………………30 4.8 Горнотехнические показатели работы шахты…………………………34 4.9 Безопасность ведения очистных работ…………………………………...35 Заключение……………………………………………………………………….41 Список литературных источников……………………………………………...42 Введение Угольная промышленность – это одна из ведущих отраслей топливно-энергетического комплекса России. Огромное внимание уделяется совершенствованию технологий подземной добычи угля, которая обеспечивала бы высокую эффективность выемки пластов, рациональность использования запасов и безопасность работ на шахте. Интенсивное развитие и техническое совершенствование угольной промышленности в стране, характеризуется созданием крупных горнодобывающих и перерабатывающих производств на базе перспективных месторождений угля. Это требует новых технических и технологических решений и все больше капитальных вложений с учетом созданий необходимой инфраструктуры, энергозатрат на транспорт полезных ископаемых и грузов, на проветривание и создание благоприятных условий труда горных рабочих. Курсовая работа выполняется с целью формирования навыков самостоятельного решения задач конструирования, проектирования и организации ведения горных работ. Задачи: 1. Рассчитать параметры шахты. 2. Выбрать рациональный способ и схемы вскрытия и подготовки шахтного поля. 3. Выбрать систему разработки и технологические средства очистных работ. 4. Исследовать безопасность ведения горных работ при подготовке и вскрытии шахтного поля и ведения очистных работ.
Исходные данные
1 Основные параметры шахты 1.1 Расчет промышленных запасов шахтного поля Геологические запасы шахтного поля – это общие запасы месторождений, определяются по следующей формуле: Zгеол =Zбал +Zзаб , т (1) где Zбал – балансовые запасы Zзаб – забалансовые запасы. Балансовые запасы – это запасы, использование которых в промышленности, при существующем развитии техники и технологии экономически целесообразно. Забалансовые запасы – это запасы, использование которых в промышленности, при существующем развитии техники и технологии экономически нецелесообразно. В идеальном случае шахтное поле имеет форму прямоугольника. Балансовые запасы шахтного поля определяются по формуле: Zбал
=SH где n – количество пластов в шахтном поле mi – мощность i-го пласта γi – объемная масса i-го пласта,γ1 =γ2 =γ3 =γ Балансовые запасы 1 пласта определяются: Zбал1 =5600*2600*3,5*1,25=63700000т. Балансовые запасы 2 пласта определяются: Zбал2 =5600*2600*3,0*1,25=54600000т. Балансовые запасы 3 пласта определяются: Zбал3 =5600*2600*3,2*1,25=58240000т. Общие балансовые запасы определяются: Zбал =Zбал1 +Zбал2 +Zбал3 (3) Zбал =63700000+54600000+58240000=176540000т. Не все балансовые запасы будут выданы на поверхность, в недрах останутся потери. Потери – это часть балансовых запасов, которые не извлекаются из недр. Потери определяются по формуле: Zпот =Zобщеш +Zо.г.н. +Zэкс (4) Zпот =11586650+1765400+18989205=32341255т. Потери для каждого пласта определяются: Zпот1 =4180750+637000+6851775=11669525т. Zпот2 =3583500+546000+5872950=10002450т. Zпот3 =3822400+522400+6264480=10669280т. где Zобщеш – общешахтные потери Zо.г.н. – потери окологеологических нарушений и потери, связанные с гидрологическими условиями Zэкс – эксплуатационные потери. Общешахтные потери складываются из потерь в предохранительных целиках и барьерных целиках. Общешахтные потери определяются: Zобщеш =Zпред +Zбар (5) Zобщеш =1765400+982150=11586650т. Общешахтные потери для каждого пласта определяются: Zобщеш1 =637000+3543750=4180750т. Zобщеш2 =546000+3037500=3583500т. Zобщеш3 =582400+3240000=3822400т. где Zпред – потери в предохранительных целиках Zбар – потери в барьерных целиках. Потери в предохранительных целиках определяются: Zпред =(0,01÷0,02)Zбал (6) Zпред =0,01*176540000=1765400т. Потери в предохранительных целиках для каждого пласта определяются: Zпред1 =0,01*63700000=637000т. Zпред2 =0,01*54600000=546000т. Zпред3 =0,01*58240000=582400т. Потери в барьерных целиках определяются: Zбар =2l[S+(H-2l)]mc γ,т (7) Zбар =2*50*[5600+(2600-2*50)]*9,7*1,25=9821250т. Потери в барьерных целиках для каждого пласта определяются: Zбар1 =2*50*[5600+(2600-2*50)]*3,5*1,25=3543750т. Zбар2 =2*50*[5600+(2600-2*50)]*3*1,25=3037500т. Zбар3 =2*50*[5600+(2600-2*50)]*3,2*1,25=3240000т. где l – ширина барьерного целика, l=50м mc – суммарная мощность пластов. mc = m1 +m2 +m3 (8) mc =3,5+3+3,2=9,7м Потери окологеологических нарушений определяются: Zо.г.н. =(0,01÷0,015) Zбал (9) Zо.г.н. = 0,01*176540000=1765400т. Потери окологеологических нарушений для каждого пласта определяются: Zо.г.н.1 =0,01*637000000=637000т. Zо.г.н.2 =0,01*54600000=546000т. Zо.г.н.3 =0,01*58240000=582400т. Эксплуатационные потери включают потери по площади, по мощности пласта, потери от неправильного ведения горных работ, потери при транспортировке. Эксплуатационные работы определяются: Zэкс = (Zбал +Zобщеш +Zо.г.н. )kэкспл (10) Zэкс =(176540000+11586650+1765400)*0,1=18989205т. Эксплуатационные работы для каждого пласта определяются: Zэкс1 =(63700000+4180750+637000)*0,1=6851775т. Zэкс2 =(54600000+3583500+546000)*0,1=5872950т. Zэкс3 =(58240000+3822400+582400)*0,1=6264480т. где kэкспл – коэффициент эксплуатационных потерь. Для тонких пластов: 0,06-0,08 средней мощности: 0,08-0,1 мощные пологие: 0,1-0,12 мощные крутые:0,12-0,15 Принимается коэффициент для мощных пологих пластов равный 0,1. Определив балансовые запасы и потери в шахтном поле, можно рассчитать промышленные запасы шахтного поля. Промышленные запасы – это часть балансовых запасов, которая будет извлечена из недр. Zпром =Zбал -Zпот (11) Zпром =176540000-32341255=144198745т. Полноту извлечения балансовых запасов характеризует коэффициент извлечения Cизвл , который определяется по следующей формуле: Cизвл
= Cизвл
= Промышленные балансовые запасы представлены в таблице 1.1 Таблица 1.1 – Промышленные балансовые запасы
Потери полезного ископаемого представлены в таблице 1.2 Таблица 1.2 – Потери полезного ископаемого
1.2 Расчет годовой мощности шахты Проектная мощность шахты – это максимально возможная добыча угля, установленного качества в единицу времени, определенная проектом. Фактическая мощность шахты – это максимальная добыча угля в единицу времени, определенная с учетом фактического состояния горных работ. Существует параметрический ряд годовых мощностей шахт: 1,2;1,5;1,8;2,1;2,4;2,7;3;3,3;3,6;3,9;4,2;4,5;……7,5млн. т./год При проектировании, когда известны горнотехнические и горногеологические условия шахты, проектную мощность рекомендуется определять по формуле А.С. Малкина: Aг
=kн
(k1
+k2
) где kн - коэффициент надежности технологической схемы шахты, учитывающей элементы: · очистной забой · проходческий забой
· проветривание · поверхность шахты При индивидуальной отработке пластов и транспортировании угля по наклонным стволам kн =0,7-0,8. При подъеме угля по вертикальным стволам kн =0,75-0,85. Используется коэффициент пригодный для подъема угля вертикальными стволами равный 0,8. k1 – коэффициент, учитывающий влияние количества рабочих угольных пластов в шахтном поле и находящийся в одновременной отработке. k1
= k1 =1,39 где n1 – количество пластов в шахтном поле n2 – количество одновременно отрабатываемых пластов k2 – коэффициент, учитывающий нагрузку на очистной забой k2
= где Ао.з.месяч. – месячная нагрузка на очистной забой Ао.з.месяч. =Lл mi rγnц NC (16) Ао.з.месяч. =200*3,2*0,63*1,25*10*30*0,97=146664 т/мес. где Lл – длина лавы, Lл =200 mi – мощность отрабатываемого пласта r – ширина захвата комбайна или глубина вруба, r=0,5;0,63;0,8. Используется ширина захвата комбайна, равная 0,63. nц – количество циклов в сутки (количество стружек), nц =7-10. Принимается 10 циклов в сутки. N – количество рабочих дней в месяце, N=30 C – коэффициент извлечения по выемочному участку, С=0,95-0,97. Используем коэффициент по выемочному участку, равный 0,97. mсред. – средняя мощность пластов mсред.
= mсред.
= k2
= k3 – коэффициент, учитывающий влияние угла падения пласта и глубины разработки k3
=1+ k3
=1+ где Нв – верхняя граница шахтного поля, Нв =Ннаносы Нн – нижняя граница шахтного поля Нн
=Нв
+Нsin Нн =10+2600*0,2=726м Аг
=0,8(1,39+15,4)* Согласно типовому ряда Аг принимается 3,0 млн.т./год. 1.3 Расчет срока службы шахты Полный срок службы шахты определяется по формуле: Тn =t1 +Tp +t2 (20) где t1 – период освоения проектной мощности шахты, t1 =2-3 года Tp – расчетный срок службы шахты Tp
= Tp
= t2 – время затухания горных работ, t2 =2-3 года Тn =2+48+2=52 года 2 Выбор способа и вскрытия шахтного поля Существует 3 стадии разработки месторождений полезных ископаемых при подземном способе добычи: I. Вскрытие шахтного поля. II. Подготовка вскрытия запасов к очистным забоям. III. Очистные работы. Вскрытие шахтного поля – это проведение горных выработок с земной поверхности для обеспечения доступа к полезным ископаемым. Подготовка вскрытия запасов шахтного поля – это проведение комплекса горных выработок после вскрытия шахтного поля, обеспечивающих возможность начале ведения очистных работ: подготовка создает условие для монтажа и работы очистного оборудования, для проветривания рабочих мест, для транспортирования отбитого угля, доставки в забои оборудования и материалов, подачи пневмо- и электроэнергии. Очистные работы – это работы, производимые в очистных забоях, основной процесс очистных работ называется выемка. (отделение от массива) 2.1 Выбор способа вскрытия шахтного поля Способ вскрытия шахтного поля – это совокупность вскрывающих выработок шахтного поля с учетом их функционального назначения. Различают 4 способа вскрытия шахтного поля: 1. Вертикальными стволами 2. Наклонными стволами 3. Штольнями 4. Комбинированнный 1. Вертикальными стволами, как правило, пересекают пласты полезного ископаемого или размещаются в породах лежачего или висячего бока вскрываемых пластов. Достоинства способа: широкий диапазон применения. Недостатки способа: большая продолжительность строительства шахты и высокие капитальные затраты; относительно низкая пропускная способность и сложность эксплуатации подъемного транспорта. 2. Наклонными стволами, проводятся обычно по пласту полезного ископаемого или параллельно последнему в породах лежачего бока, однако в некоторых случаях наклонные стволы проводятся по вмещающим породам под некоторым углом к напластованию. Достоинства способа: малая продолжительность строительства шахты и низкие капитальные затраты; высокая производительность средств основного транспорта при угле падения менее 18˚; возможность организации одноступенчатого транспорта. Недостатки способа: ограниченность условий применения; большая протяженность и сложность поддержания наклонных стволов; 3. Штольни, как и наклонные стволы, могут проводиться по пласту или под углом к нему в породах лежачего или висячего бока. Используется в холмистой местности. Достоинства способа: простота основного и вспомогательного транспорта; простота проветривания; низкие капитальные затраты и сроки строительства шахт. Недостатки способа: ограниченность условий применения. 4. Комбинированный способ вскрытия сочетает в себе элементы вышеупомянутых способов. Этот способ позволяет эффективнее реализовать достоинства и компенсировать недостатки присущие различным способам. На основе исходных данных и их соответствия области применения используем вскрытие вертикальными стволами. Данный способ применяется на пологих пластах и размерах шахтного поля по падению до 2 -2,5км. Шахтное поле по падению транспортным горизонтом делится на две выемочные ступени – бремсберговую – 1400м и уклонную - 1200м. стволы, располагаемые на одной общей промплощадке, проходя до отметки транспортного горизонта -360, а непосредственное вскрытие пластов осуществляется капитальными квершлагом, проведенным от околоствольного двора. Сначала отрабатывают пласты бремсберговой части, затем – уклонной. Свежий воздух в шахту поступает по вспомогательному стволу в выработки транспортного горизонта. При отработке бремсберговой ступени он по ходкам бремсбергов поступает в ярусные конвейерные штреки, затем – в очистные забои, далее по цепи вентиляционных выработок – на поверхность. При отработке уклонной ступени воздух для проветривания поступает по одному из ходкой, далее, пройдя по цепи воздухопроводящих выработок, исходящая струя по другому ходку поднимается вверх, к транспортному горизонту. Для выдачи исходящей струи на поверхность необходимо иметь специальные вентиляционные выработки. Доставка угля как с бремсберговой, так и с уклонной ступени осуществляется на общий транспортный горизонт. Капитальный квершлаг, пройденный на этом горизонте, служит весь срок отработки запасов шахтного поля. 2.2 Выбор схемы вскрытия шахтного поля Схема вскрытия шахтного поля – это пространственное расположение сети вскрывающих выработок относительно границ шахтного поля. Схемы вскрытия классифицируются по 3 признакам: I. По числу транспортных горизонтов. I.I.Одногоризонтные I.II.Многогоризонтные I.I.Одногоризонтная схема вскрытия свиты пологих пластов вертикальными стволами и капитальным квершлагом применяется при угле падения пластов 8˚ — 18˚ и размерах шахтного поля по падению не более 2,5 км. Её отличают относительно большой объём наклонных капитальных выработок, снижающий эффективность производства из-за использования малопроизводительной канатной откатки, а также значительной утечки воздуха, возникающие при движении его по наклонным выработкам в противоположных направлениях. I.II.Многогоризонтное вскрытие пологих пластов вертикальными стволами и капитальными квершлагами производится при углах падения пластов 8˚ — 18˚ и размерах шахтного поля по падению от 2,5 до 4 км и более. Схема требует последовательной углубки стволов и проходки нескольких параллельных квершлагов. Если верхняя граница шахтного поля находится сравнительно близко от земной поверхности, для проветривания выработок в каждой панели первого горизонта проходят шурфы или сооружают один фланговый ствол у границ смежных панелей и вентиляции квершлагов. II. По типу вскрывающих горных выработок. II.I. С квершлагами II.II. С гезенками II.III. Со слепыми стволами III. По расположению главных вскрывающих выработок относительно границ шахтного поля. III.I. Центрально-сдвоенное расположение стволов III.II. Центрально-отнесенное расположение стволов III.III. Диагональное расположение стволов III.IV. Фланговое расположение стволов III.V. Секционное расположение стволов III.VI. Комбинированная схема расположения стволов III.I. Центрально-сдвоенное расположение стволов имеет существенные преимущества по сравнению с центрально-отнесенным и диагональным расположение стволов. При наличии двух стволов один из них служит для выдачи угля, а другой — для вспомогательных операций. В результате пропускная способность стволов значительно возрастает. В данной схеме достигается более равномерное проветривание при разработке бремсбергового и уклонного полей, так как длина пути для воздушных струй в обоих случаях почти одинакова. Она имеет весьма широкое распространение при разработке крутых пластов. Хотя эта схема и не запрещается на шахтах с пологими пластами, за исключением пластов; опасных по суфлярным выделениям и внезапным выбросам угля и газа, распространения она не получила, так как нисходящее движение струи отработанного воздуха по ходку не обеспечивает удовлетворительных условий проветривания шахты в целом, особенно на сильно газовых шахтах. III.II. Центрально-отнесенное расположение: главный ствол находится в центре шахтного поля, а вентиляционный — у верхней границы. Основным достоинством схемы является то, что при наличии на верхней границе поля шурфа можно обойтись одним стволом. В связи с этим уменьшаются капитальные затраты и в течение всего срока эксплуатации в шахте будет только восходящее проветривание. Вместе с тем при наличии одного ствола резко ограничивается производственная мощность шахты, усложняется схема вентиляции, так как длина пути вентиляционной струи в различные периоды разработки бремсберговой и уклонной частей шахтного поля различна. Расположение стволов по данной схеме можно применять на шахтах сравнительно небольшой производственной мощности, ограниченной пропускной способностью одного ствола, через который должны осуществляться подъем угля и породы, спуск людей, транспортирование материалов и оборудования. III.III. В схеме диагональным расположением вентиляционных стволов проветривание несколько улучшается по сравнению с центрально-отнесенным расположение стволов, так как каждое крыло проветривается с помощью отдельных вентиляторов. Недостатки, присущие схеме с центрально-отнесенным расположение стволов, в основном сохраняются и в этой схеме. Данная схема рассчитана на шахты небольшой мощности, но с высокой газообильностью. III.IV. Фланговое расположение вспомогательных стволов может применяться при шахтных полях больших размеров по простиранию и при глубоком залегании пластов. Стволы целесообразно располагать на середине каждого крыла. Это обеспечивает минимальные расходы на проветривание. При глубоком залегании пластов один ствол в центре шахтного поля не может обеспечить нормальной работы шахты, поэтому рядом необходимо иметь еще один ствол, т. е. необходимо применять комбинацию схем центрально-сдвоенного и флангового расположения стволов. Для отвода исходящей струи от верхней границы шахтного поля в вентиляционные стволы служат квершлаги. Необходимо отметить, что в данной схеме фланговые стволы могут служить также для подачи свежего воздуха в шахту, а центральный - для отвода исходящей струи, особенно если он оборудован скипами. При блоковой отработке в шахтном поле два блока. В центре каждого блока два ствола, обеспечивающие независимую вентиляцию в каждом блоке. Два ствола в центре шахтного поля служат для выдачи всего груза, спуска материалов и людей. При панельной подготовке проветривание бремсберговой части шахтного поля может осуществляться через вспомогательные стволы, как при центрально-отнесенном, фланговом или комбинированном расположение стволов, но для этого у верхней границы шахтного поля надо иметь общий вентиляционный штрек. Для проветривания уклонных панелей необходимо иметь такой же вентиляционный штрек параллельно главному откаточному штреку, а из него отводить исходящую струю в вентиляционный ствол. При небольшой глубине залегания у верхней границы шахтного поля целесообразно иметь в каждой бремсберговой панели свой вентиляционный шурф. III.VI. Комбинированная схема применяется значительно чаще на крупных шахтах с пологими пластами, в которой сочетаются достоинства центрально-отнесенного и центрально-сдвоенного расположений стволов. Для проветривания бремсберговой части шахтного поля служит вентиляционный ствол, расположенный у верхней границы поля, а уклонная часть поля проветривается через центральные стволы. На основании исходных данных выбирается одногоризонтная схема вскрытия с использованием капитального квершлага, которая представлена на рис 2.1.
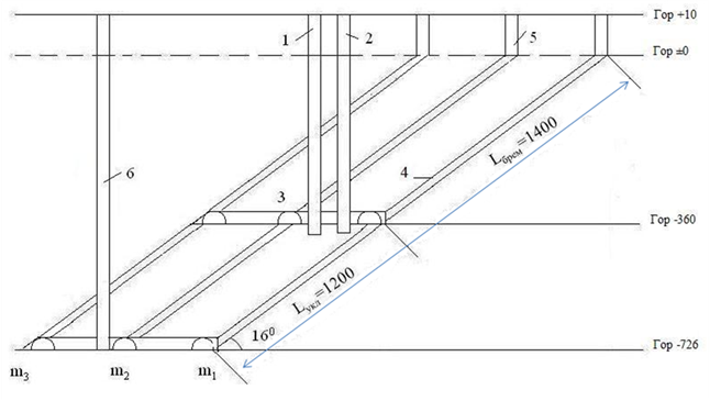
Рисунок 2.1 – Вертикальная схема вскрытия шахтного поля 1 – главный ствол; 2 – вспомогательный ствол; 3 – капитальный квершлаг; 4 - главный штрек; 5 – шурф; 6 – воздухопроводящая выработка 2.3 Безопасность ведения горных работ при вскрытии шахтного поля 1. Вскрытие и подготовка шахтных полей с опасными и угрожаемыми по внезапным выбросам пластами должны обеспечивать максимальное использование опережающей отработки защитных пластов, заложение подготовительных выработок в неопасных пластах и защищенных зонах и в невыбросоопасных породах, наименьшее число пересечений выбросоопасных пластов, применение столбовых систем разработки, рассредоточение вентиляционных потоков в шахтном поле, возможность секционного проветривания и подсвежения исходящих струй выемочных участков, обособленное проветривание подготовительных забоев, отработку пластов без оставления целиков. Порядок отработки пластов согласовывается Госгортехнадзором России. 2. На вскрытие, проведение подготовительных выработок на опасных и угрожаемых по внезапным выбросам пластах разрабатывается и пересматривается не реже одного раза в год комплекс мер по борьбе с внезапными выбросами угля (породы) и газа, который должен пройти экспертизу промышленной безопасности. Комплекс мер по борьбе с внезапными выбросами угля (породы) и газа утверждается руководителем организации. На основании комплекса мер разрабатываются паспорта вскрытия пласта, а также мероприятия по борьбе с выбросами для включения в паспорт выемочного участка и паспорт проведения и крепления выработок. Паспорта на вскрытие выбросоопасных пластов, а также на отработку особо выбросоопасных пластов или участков, изменения и дополнения к ним согласовываются и утверждаются техническим руководителем организации. Паспорта на отработку выбросоопасных пластов и вскрытие угрожаемых пластов проходят экспертизу и утверждаются техническим руководителем организации. 3. Технология вскрытия и подготовительных работ, способы предотвращения Вскрытие пластов, ведение очистных и подготовительных работ на опасных и угрожаемых по внезапным выбросам и горным ударам пластах допускается в случае, когда забой находится или приведен в невыбросоопасное и неудароопасное состояние. Выполнение прогноза выбросоопасности перед вскрытием пласта, включая измерение необходимых параметров, должно осуществляться под методическим контролем представителя экспертной организации. 3 Выбор способа и схемы подготовки шахтного поля 3.1 Выбор способа подготовки шахтного поля После вскрытия шахтного поля приступаем ко 2 стадии разработки месторождения полезных, которая позволяет начать очистные работы в очистных выработках. Различают способ и схему подготовки. Способ подготовки шахтного поля – это расположение подготовительных выработок относительно пласта и элементов его залегания. Все подготовительные горные выработки проводятся по пласту, т.е. применяется пластовый способ проведения горных выработок, т.к. пласты средней мощности. 3.2 Выбор схемы подготовки шахтного поля На основании исходных данных и норм технологического проектирования в данной курсовой работе применяется панельная схема подготовки, которая представлена на рис 3.2. Т.к. размер шахтного поля по простиранию – 5600, размер шахтного поля по падению – 2600 и угол падения 160 , позволяет применить данную схему. Схема дает возможность повышения концентрации горных работ и конвейеризации транспорта очистных забоев до ствола, сопровождение объема поддерживаемых выработок.
1 – монтажная камера; 2 - направление движения лавы; 3 – вентиляционный ярусный штрек; 4 – ярусный конвейерный штрек; 5 – выемочный столб; 6 – проведение штреков; 7 – ходки; 8 – бремсберг; 9 – штрек; 10 – капитальный квершлаг. 3.3 Безопасность ведения горных работ при подготовке шахтного поля 1. При проведении подготовительных выработок с подрывкой боковых пород В подготовительных выработках, проводимых вслед за очистным забоем, отставание породного забоя от угольного забоя лавы не должно превышать 5м, если в очистной выработке применяется индивидуальная крепь, 8м - при механизированной крепи и 11м - при выемке угля стругами. 2. Запрещается продолжение проходки вертикальной выработки после сооружения ее устья без предварительного перекрытия на нулевой отметке, а также проходка и углубки ствола (шурфа) без защиты полком рабочих, находящихся в забое от возможного падения предметов сверху. Кроме того, забой углубляемого ствола должен быть изолирован от действующих подъемов рабочего горизонта предохранительным устройством (полком или целиком). Полки в стволе (шурфе) должны сооружаться по проектам, утвержденным техническим руководителем организации, выполняющей работу. Запрещается выемка предохранительного целика или разборка полка в углубляемом стволе без проекта, согласованного с техническим руководителем эксплуатирующей организации и утвержденного техническим руководителем организации, выполняющей работу. 3. Подготовительные работы в установленных прогнозом опасных зонах необходимо проводить с применением способов предотвращения внезапных выбросов угля и газа и контролем их эффективности или с помощью сотрясательного взрывания, в порядке, установленном Госгортехнадзором России. 4. При проведении подготовительных выработок по угольным пластам в 5. В наклонных выработках, предназначенных для передвижения людей, должен быть свободный проход шириной не менее 0,7м и высотой 1,8м, оборудованный при углах наклона: от 7 до 10 град. - перилами, прикрепленными к крепи; от 11 до 25 град. - трапами с перилами; от 26 до 30 град. - сходнями со ступеньками и перилами; от 31 до 45 град. - лестницами с горизонтальными ступеньками и перилами. В лестничных отделениях стволов и других выработок с углом наклона от 45 до 90 град, лестницы должны устанавливаться с уклоном не более 80 град, и выступать на 1м над горизонтальными полками, прочно заделываемыми в крепь с интервалом не более 8м. Лазы в полках должны иметь размеры: ширина - не менее 0,6м; высота - не менее 0,7м (по нормали к лестнице). Лазы над первой верхней лестницей должны закрываться лядами. Лазы в стволах и других выработках между соседними полками должны быть смещены на ширину лаза. Расстояние между крепью и лестницей у ее основания должно быть не менее 0,6м. Ширина лестниц должна быть не менее 0,4м, а расстояние между ступенями - не более 0,4м. 4 Система разработки Система разработки – это установленный порядок ведения подготовительных и очистных работ, увязанный в пространстве и во времени, в пределах этажа, яруса или горизонта для заданных горно-геологических условий. Различают сплошную, столбовую и комбинированную системы разработки. Сплошная система разработки – это одновременный порядок ведения подготовительных и очистных работ. Применяется на пластах угля мощностью до 1.8 м. В виду своей трудоемкости и ограниченной области применения пласта широкое распространение не получило. Столбовая система разработки – это последовательное ведение подготовительных и очистных работ, т.е. до начала очистных работ проводятся все подготовительные оконтуривающие выработки (оконтуривают выемочный столб). В настоящее время она имеет широкое распространение. Различают три дополнительных признака классификации разработки: 1. Технология выемки. 1.1. Длинными забоями (лава) 1.1.1. На полную мощность (m до5,5 м.) 1.1.2. Деление на слои 1.2. Короткими забоями 2. Направление продвигания очистного забоя. 2.1. По простиранию 2.2. По падению 2.3. По восстанию 3. Технологическая схема очистного забоя 3.1. Без деления этажа на подъэтажи 3.2. С делением этажа на подъэтажи 3.3. Без деления ярусов на подъярусы 3.4. С делением ярусов на подъярусы 4.1. Выбор и обоснование системы разработки Согласно исходных данных выбирается столбовая система разработки с выемкой пластов на полную мощность. При столбовой системе разработки часть пласта в пределах этажа или яруса до начала очистных работ оконтуривается подготовительными выработками, в результате чего образуются столбы. Исходя из размеров шахтного поля (по простиранию 5600 м, по падению 2600м) и угла падения пластов (160 ) выбирается столбовая система разработки длинными очистными забоями, с подвиганием очистного забоя по простиранию. 4.2 Технические средства очистных работ В настоящее время для отработки пологих и наклонных пластов средней мощности широкое распространение получили механизированные комплексы очистного оборудования. Отечественные комплексы: КМ-138; КМ-142; КМ-144; КМ-174. Зарубежные комплексы: JOY; FA2OC; ГЛИНИК; ПИОМА. В общем случае в состав механизированного комплекса входит: 1. Узкозахватный очистной комбайн (r=0,5м; 0,63м; 0,8м) 2. Скрипковый конвейер 3. Механизированная крепь, состоящая из секций 4. Крепь сопряжений Для данного механизированного комплекса применили очистной комбайн KSW500-2A2V, скребковый конвейер СПЦ-27, механизированную крепь 1,2,3,4 КМ-174, характеристики, которых представлены в таблицах 4.1,4.2,4.3 Таблица 4.1 - Техническая характеристика очистного комбайна KSW500-2A2V
Таблица 4.2 - Техническая характеристика скребкового конвейера СПЦ-271
Таблица 4.3 - Техническая характеристика механизированной крепи 3 КМ-174
4.3 Размер выемочного поля и очистного забоя Выемочное поле – это часть этажа по простиранию, в пределах которой разработка пласта осуществляется на один участковый бремсберг, уклон, скат, или промежуточный квершлаг. Выемочный столб – это часть выемочного поля, отрабатываемая одним пластом. Очистной забой – это забой, в котором осуществляется массовая добыча полезного ископаемого. Размер лавы, уклонной и бремсберговой частей и размер панели представлены в таблице 4.4. Таблица 4.4 - Размеры частей и панели шахтного поля
4.4 Нагрузка на очистной забой Нагрузка на очистной забой – это добыча угля в очистном забое за сутки (3т. – 15т в сутки). Суточная нагрузка на очистной забой с учетом горнотехнических характеристик определяется по следующей формуле: Ао.з.сут. =Lл mi rγnц C (22) Ао.з.сут. =200*3,2*0,63*10*1,25*0,97=4888,8т/сут где Lл – длина лавы, Lл =200 mi – мощность отрабатываемого пласта r – ширина захвата комбайна или глубина вруба, r= 0,5;0,63;0,8. Используем ширину захвата комбайна, равную 0,63. nц – количество циклов в сутки (количество стружек), nц =7-10. Принимается 10 циклов в сутки. C – коэффициент извлечения по выемочному участку, С=0,95-0,97. Используем коэффициент извлечения, равный 0,97 4.5 Проверка нагрузки на очистной забой по газовому фактору Нагрузка на очистной забой проверяется по газовому фактору. Ао.з.пров.
= Ао.з.пров.
= Где F – проходное сечение для струи воздуха F=(0,6÷0,7)Bm, м2 (24) F=0,6*5*3,2=9,6 м2 в – max допустимая концентрация метана, d=1% Условие выполняется: Ао.з.сут. < Ао.з.пров. 4888,8<13271,04 4.6 Определение числа действующих забоев Количество очистных действующих забоев определяется по следующей формуле: nо.з.
nо.з.
= где kо.ч. – коэффициент, учитывающий добычу из очистных забоев, kо.ч. =0,89-0,92 Аш.сут. – добыча угля на шахте за сутки Аш.сут.
= Аш. сут.
= Исходя из полученного результата, принимается 2 очистных забоя. 4.7 Технологическая схема шахты Технологическая схема шахты (ТСШ)– это совокупность горных выработок, поверхностных зданий и сооружений, с размещенными в них машинами и механизмами, совместная работа которых обеспечивает эффективную безопасную добычу угля. Основные элементы ТСШ: · Очистной забой · Подготовительный забой · Система транспортирования полезных ископаемых · Система доставки людей, материалов и оборудования · Система вентиляции · Система водоотлива · Система дегазации угольных пластов · Шахтный подъем Транспорт полезного ископаемого осуществляется следующим образом: Очистной забой → Конвейерный штрек → Конвейерный бремсберг → Магистральный штрек → Конвейерный квершлаг → Вертикальный скиповой ствол. Технические средства очистных работ. 1. Механизированная крепь 3 КМ-174. 2. Электрооборудование комплекса (напряжение 660, 1140 В.). 3. Очистной комбайн KSW500-2A2V с высоконапорным орошением (г=0,65;0,75;0,8). 4. Кабелеукладчик. 5. Дробилка ДУ-910. 6. Скребковый изгибающийся конвейер СПЦ-271 2 блоками приводов по 250 кВт. 7. Перегружатель типа ПСМ-30 мостового типа с непрерывным наездом на ленточный конвейер. 8. Рейка типа Айкотрак, совместимая с К-500. 9. Насосная станция СНЛ-180( 4 шт.). Организация работ в лаве. На практике применяют в основном четырех- и трехсменный режим работы, из них две-три смены по 6—7 ч — добычные и, последняя смена — ремонтно-подготовительная. В середине каждой семичасовой смены рекомендуется одновременный для всех рабочих 15-минутный обеденный перерыв. Основной формой организации труда является сменная или суточная комплексная бригада. Для угольных шахт, разрабатываемые пласты которых подвержены внезапным выбросам угля и газа, предусматриваются четыре шестичасовые смены с двумя сменами по добыче угля, одной подготовительной (ремонтной) для осуществления мероприятий по борьбе с внезапными выбросами угля и газа, которая не должна совмещаться с другими сменами. В лавах работу ведут комплексные бригады, которые выполняют все производственные процессы цикла. В бригаде 78 человек. Она разделена на пять звеньев (добычные), которые состоят из 14 человек. В ремонтную смену дополнительно выходят 8 электрослесарей и 12 рабочих очистного забоя. Сменное звено возглавляет звеньевой. Бригадир, как правило, выходит в первую смену. В ремонтные часы машинист комбайна с помощником и двумя электрослесарями производят профилактический осмотр, ремонт и смазку комбайна. Семь электрослесарей регулируют общеучастковые механизмы и электроаппаратуру. Семь горнорабочих заняты ремонтом гидрокрепи и маслостанции, два— проверкой цепей конвейеров СП-87П и СП-63. Два человека переносят камерные рамы и крепят сопряжения лавы с вентиляционным штреком. Три рабочих погашают вентиляционный штрек, извлекают металлическую арочную крепь, сокращают газоотсасывающий трубопровод и возводят чураковую перемычку. За 1 час до конца смены все механизмы опробуются под нагрузкой. В добычную смену в лаве работает звено из 14 человек, обязанности между которыми распределяются следующим образом. Машинист комбайна и его помощник осматривают комбайн и меняют зубки, заливают масло в редуктор и выполняют другие работы по подготовке комбайна к выемке угля. После этого машинист управляет комбайном, помощник машиниста следит за силовым кабелем комбайна и шлангом орошения. Трое рабочих располагаются за комбайном и передвигают секции крепи М-87. В нижней части лавы один рабочий зачищает от штыба нижнюю ветвь цепи конвейера. Для этого в почве пласта под конвейером проводится небольшая канава, в которую просыпается штыб при движении цепи конвейера. В обязанности четырех рабочих входит зачистка «карманов» — пустот между конвейером и основанием секций. График составляет начальник участка для каждого конкретного забоя, затем его прорабатывают с горными мастерами, бригадирами и рабочими участка. Режим работы бригады — шестидневная рабочая неделя с общим выходным днем в воскресенье. Второй выходной день рабочие получают в течение недели по скользящему графику. Добыча угля производится в три смены. В воскресные дни рабочие одной смены постоянно производят планово-предупредительный осмотр и ремонт оборудования, сокращают конвейер 1Л-100, заменяют отдельные узлы, производят ревизию электрооборудования и электроаппаратуры. Грузопоток угля от забоя до поверхности. Транспортировка угля из лавы осуществляется по постоянной схеме: 1. Непосредственно по забою скребковым конвейером СПЦ-271. 2. Скребковым перегружателем ПСМ-30 на ленточный конвейер 2ЛУ 120 по конвейерному штреку и бремсбергу. 3. В магистральном штреке уголь перегружается на ленточный конвейер 1 ЛУ 120 и по магистральному штреку, конвейерному квершлагу, вертикальному стволу выдается на поверхность.
4.8 Горнотехнологические показатели работы шахты Основные качественные и технологические характеристики представлены в Таблице 4.5 Таблица 4.5 - Горнотехнологические показатели шахты
4.9 Безопасность ведения горных работ 1. Выемка угля в очистных забоях должна осуществляться в соответствии с паспортом выемочного участка, проведения и крепления подземных выработок и с применением комплекса мер по предотвращению всех опасных и вредных производственных факторов. Не допускается ведение очистных работ на участках шахтного поля, где не пройден и не сбит с действующими выработками ствол (скважина), предусмотренный проектом для надежного проветривания. Запрещается подтапливание или прекращение проветривания ствола (скважины), расположенного на горном отводе шахты. 2. Запрещается ведение эксплуатационных работ более чем в двух смежных этажах. Погашение целиков, а также отработка отдельных выемочных участков на вышележащих этажах допускаются по проектам, утвержденным техническим руководителем организации. 3. Все оборудование комплексно-механизированных очистных забоев (мехкрепь, конвейеры, выемочные машины и др.) должно пройти предпусковую наладку перед приемкой выемочного участка в эксплуатацию. При эксплуатации такие наладки должны проводиться регулярно в сроки, установленные инструкцией завода-изготовителя. Эксплуатация горношахтного оборудования после проведения его капитального ремонта, а также продление его срока службы возможны только по разрешению Госгортехнадзора России при наличии заключения промышленной безопасности. 4. Ведение очистных работ до первичной посадки основной кровли, первичная посадка основной кровли, а также подход забоя к техническим границам выемочного участка должны производиться по мероприятиям, предусмотренным паспортом выемочного участка, проведения и крепления подземных выработок. Первичная посадка основной кровли должна производиться под руководством начальника участка или его Осадка кровли при ведении демонтажа очистных комплексов должна выполняться по проекту, разработанному в соответствии с действующими нормативными документами, как правило, с применением специальных механизированных крепей, исключающих нахождение людей в зоне обрушения. 5. В случае остановки работ в очистной выработке на время свыше суток должны быть приняты меры по предупреждению обрушения кровли в призабойном пространстве, загазирования или затопления. Возобновление работ допускается с разрешения главного инженера шахты после осмотра очистной выработки инженерно-техническими работниками участка. 6. В процессе работы должна производиться проверка устойчивости кровли и забоя путем осмотра и остукивания. При наличии признаков опасности обрушения кровли, забоя или сползания почвы на крутых пластах должна производиться оборка отслоившейся горной массы и устанавливаться дополнительная крепь. 7. Ширина свободного прохода людей в лавах и на сопряжениях их с примыкающими выработками, оснащенных механизированными крепями, должна быть не менее 0,7 м, высота - не менее 0,5 м в рабочем положении секции крепи и 0,4 м - в сдвинутом. В лавах с индивидуальной крепью должен оставляться и поддерживаться свободный проход шириной не менее 0,7 м. 8. В лавах, оборудованных механизированными комплексами, узкозахватными комбайнами и струговыми установками, вдоль конвейера, а также в штреках (ходках) на их сопряжениях с лавой должна быть оборудована громкоговорящая связь с приемопередающими устройствами, установленными через каждые 10 м. 9. В комплексно-механизированных забоях должны применяться комбайны с Запрещается нахождение людей в лаве ниже комбайна при его работе и спуске на пластах с углом падения более 25 град., за исключением механизированных крепей, оборудованных ограждением, препятствующим попаданию кусков угля и породы в места нахождения людей. При отработке механизированными комплексами по простиранию пластов с углами падения более 25 градусах, должны быть установлены гасители скорости над комбайновой и конвейерной дорожками, а ходовое отделение крепи оборудовано полками и защищено от попадания в него кусков угля и породы при отбойке горной массы. При двухкомбайновой выемке передвижение комбайнов по одной тяговой цепи разрешается только с применением специальных секционирующих устройств, исключающих суммирование тяговых усилий в цепи. Места крепления цепи на секционирующих устройствах должны быть четко обозначены и видимы для машинистов комбайнов. Одновременная работа двух комбайнов с цепной подачей допускается только на пластах с углом падения менее 9 град. 10. Во время работы струговой установки запрещается нахождение и перемещение а) между стойками первого ряда крепи и конвейером или забоем лавы; б) на расстоянии менее 1 м по падению пласта от направляющих балок или других устройств закрепления приводных головок; в) в нишах на расстоянии менее 1,5 м от тяговой цепи струга или секции конвейера. 11. Выемка надштрековых целиков у вентиляционных штреков одновременно с отработкой лав нижележащего этажа допускается только при углах падения пласта до 30 град, и при наличии оконтуривающих штреков (просеков). 12. Доставка угля из очистной выработки к погрузочному пункту при наличии целиков над штреком на пологих и наклонных пластах допускается только на передние печи или гезенки. При подходе очистных выработок к техническим границам и охранным целикам допускается доставка угля из лавы к погрузочному пункту на задние печи или гезенки в соответствии с мероприятиями, утвержденными техническим руководителем организации. 13. При отработке по простиранию пластов с углами падения более 25 град., 14. Содержание метана в атмосфере подземных выработок и трубопроводах должно соответствовать нормам, приведенным в таблице 4.6 и 4.7 Таблица 4.6 - Нормы содержания метана
Таблица 4.7 - Категория шахт по метану
18. Скорость воздуха в горных выработках не должна превышать величин, приведенных в таблице. При этом средняя скорость воздуха в призабойных пространствах очистных и подготовительных выработок шахт всех категорий по газу должна быть не менее 0,25 м/с, за исключением подготовительных выработок газовых шахт с проектной длиной 75 м и более, проводимых по угольным пластам мощностью 2 м и более, при разности между природной и остаточной метаноносностью пласта на участке проведения выработки 5 м7т и выше, где минимальная скорость должна составлять 0,5 м/с. Производство ремонтных работ в стволах и передвижение людей по лестничным отделениям разрешаются при скорости воздуха не более 8 м/с. При температуре воздуха ниже 16 град, скорость воздушной струи в призабойных пространствах очистных и тупиковых выработок, где ведутся работы, не должна превышать 0,75 м/с, если для удаления вредных газов не требуется большая скорость. Максимальная скорость воздуха представлена в таблице 4.8 Таблица 4.8 - Максимальная скорость воздуха
В отдельных случаях допускается: · производство ремонтных работ и вывод людей при аварии в стволах, где скорость воздуха превышает 8 м/с; · превышение скорости движения воздуха в призабойных пространствах очистных забоев более 4 м/с, когда иными способами невозможно обеспечить поддержание метана в исходящей из очистного забоя вентиляционной струе в пределах норм. Заключение В курсовой работе рассмотрены вопросы вскрытия, подготовки и разработки угольных пластов и приведены их схемы. В данной курсовой работе были рассчитаны: промышленные запасы шахтного поля = 144198745 т., балансовые запасы шахтного поля = 176540000 т., проектная мощность шахты = 3,0 млн.т./год., срок службы шахты = 52 года, нагрузка на очистной забой 4888,8т/сут. Вскрытие осуществлялось вертикальными стволами с капитальным квершлагом, т.к. угол падения пластов 160 . Способ подготовки – пластовый, так как горные выработки идут по пласту. Для обеспечения проектной мощности шахты принимается 2 очистных забоя. Выбирается столбовая система разработки с подвиганием очистного забоя по простиранию, так как при подготовке выемочного столба осуществляется доразведка пласта, что позволяет повысить концентрацию горных выработок Для своевременного и качественного воспроизводства фронта очистных работ необходимо широкое внедрение прогрессивных технологических схем проведения и крепления подготовительных выработок.
Список литературных источников 1. Килячков А.П. Технология горного производства. – М.: Недра, 1992. – 415с 2. Бурчаков А. С., Гринько Н. К., Ковальчук А. Б.Технология подземной разработки пластовых месторождений полезных ископаемых. – М.:Недра, 1978. – 536с. 3. Правила безопасности в угольных шахтах ( ПБ 05 – 618 – 03). Серия 05. Выпуск 11/Колл.авт. – М.:ГУП «НТЦ» «Промышленная безопасность», 2003. – 296с. 4. Егоров П. В., Бобер Е. А. Основы горного дела: Учебник для вузов.- М.:Издательство Московского государственного горного университета, 2003.-408с. |
|||||||||||||||||||||||||||||||||||||||||||||||||||||||||||||||||||||||||||||||||||||||||||||||||||||||||||||||||||||||||||||||||||||||||||||||||||||||||||||||||||||||||||||||||||||||||||||||||||||||||||||||||||||||||||||||||||||||||||||||||||||||||||||||||||||||||||||||||||||||||||||||||||||||||||||||||||||||||||||||||||||

Рисунок 3.2 – панельная схема подготовки шахтного поля