| Федеральное агентство по образованию (Рособразование)
Северный (Арктический) Федеральный Университет
Кафедра промышленной теплоэнергетики
(
наименование кафедры)
Шумков Анатолий Михайлович
(фамилия, имя, отчество студента)
Факультет ПЭ
курс IV
группа 1
КУРСОВОЙ ПРОЕКТ
По дисциплине: __________Котельные установки и парогенераторы
_____________
______________________________________________________________________________________________________________________________________________
На тему: ________Реконструкция котельного агрегата Е-75/40 (Е-75-40К)
________
__________________в связи с переводом его на новый вид топлива
______________
(наименование темы)
Руководитель проекта ___Зав.кафедрой
____ _____________ Любов В.К.
(должность) (подпись) (и.,о., фамилия)
Проект допущен к защите ____________________________ ________________
(подпись руководителя) (дата)
Решением комиссии от «____» _________________ 2010г.
признать, что проект
выполнен и защищен с оценкой _____________________________________________
Члены комиссии
_______________ _________________________________ ____________________
_______________ _________________________________ ____________________
_______________ _________________________________ ____________________
(должность) (подпись) (и.,о., фамилия)
Архангельск
2010
ЛИСТ ЗАМЕЧАНИЙ
ОГЛАВЛЕНИЕ
ОГЛАВЛЕНИЕ…………………………………………………………………………...4
1.ОПИСАНИЕ КОТЕЛЬНОГО АГРЕГАТА…..……………………………………….5
2.ВЫБОР СИСТЕМЫ ПЫЛЕПРИГОТОВЛЕНИЯ И МЕЛЬНИЧНОГО
ОБОРУДОВАНИЯ……………………………………………………………………...10
3.ТЕПЛОВОЙ РАСЧЕТ КОТЕЛЬНОГО АГРЕГАТА..……………………………...12
3.1 Расчетный состав топлива……………………………………………………...12
3.2 Определение коэффициентов избытка воздуха………………………………12
3.3 Расчет средних характеристик продуктов сгорания в поверхностях
нагрева……………………………………………………………………………….13
3.4 Определение энтальпий воздуха и продуктов сгорания………………..……15
3.5 Тепловой баланс и расход топлива…………………….………………………17
3.6 Расчет топочной камеры………………………………………………………..19
3.7 Расчет фестона…………………………………………………………………..25
3.8 Расчет первой ступени пароперегревателя……………………………………30
3.9 Расчет второй и третьей ступени пароперегревателя………………………...47
3.10 Расчет второй ступени водяного экономайзера……………………………..43
3.11 Расчет второй ступени воздухоподогревателя………………………………48
3.12 Расчет первой ступени водяного экономайзера ………………………….54
3.13 Расчет первой ступени воздухоподогревателя………………………………58
3.14 Проверка сходимости баланса………………………………………………..63
3.15 Тепловая схема котлоагрегата………………………………………………..65
4.РАСЧЕТ ТЯГИ И ДУТЬЯ В ПРЕДЕЛАХ КОТЕЛЬНОГО АГРЕГАТА……........66
4.1 Расчет газового тракта………………………………………………………….66
4.2 Расчет воздушного тракта……………………………………………………...71
СПИСОК ИСПОЛЬЗОВАННЫХ ИСТОЧНИКОВ…………………………………..74
1.ОПИСАНИЕ КОТЕЛЬНОГО АГРЕГАТА
Котел Е-75/40 (Е-75-40К) предназначен для камерного сжигания твердого топлива при сухом шлакоудалении. Паропроизводительность котла – 75 . Параметры пара: давление перегретого пара , температура перегретого пара . Фронтовой и задний экраны топочной камеры экранированы трубами Ø60 3 с шагом 75 ; боковые экраны образованы тремя панелями, состоящих из труб того же размера с шагами: 1-я и 2-я панели – 90 ,3-я панель – 75 . Трубы фронтового и заднего экранов в нижней части образуют холодную воронку. В верхней части трубы заднего экрана разведены в четырех рядный фестон. За фестоном располагается трех ступенчатый пароперегреватель с диаметром труб Æ38´3 : первая ступень перегревателя имеет 10 рядов по ходу газов, 4 первых ряда имеют шахматную компоновку труб, а остальные – коридорную. Между первой и второй ступенями пароперегревателя включен пароохладитель. Пройдя пароперегреватель и поворотную камеру, газы попадают в конвективную шахту, где расположены двухступенчатый экономайзер и двухступенчатый воздухоподогреватель. Вторая ступень стального экономайзера выполнена из труб Æ32´3 . Под второй ступенью экономайзера расположена вторая (по воздуху) ступень воздухоподогревателя. Она имеет один ход по воздуху и выполнена из труб Æ40´1,5 . Под ней располагается первая (по воде) ступень стального экономайзера, которая так же выполнена из труб Æ32´3 . Под первой ступенью экономайзера находится (по воздуху) первая ступень воздухоподогревателя. Она выполнена трубчатой, трехходовой по воздуху из труб Æ40´1,5 .
Топливо – очень мелко размолотый уголь – вдувается в топочную камеру вместе с частью необходимого для горения воздуха (первичный воздух) через горелки. Остальной воздух (вторичный) подаётся в топку обычно через те же горелки предварительно подогретым до более высокой температуры. В топочной камере мелкие частицы угля (80 –95 % размером менее 90 ) сгорают на лету, образуя факел. Негорючие примеси топлива превращаются в золу. Так как температура в ядре факела достигает (1500 – 1600 ), то в большинстве случаев частички золы плавятся, образуя шлак. Более крупные частички шлака, слипшиеся на лету или скопившиеся на трубах топочных экранов и потом, оторвавшись от них, падают на дно топки, скатываются в твёрдом виде по откосам холодной воронки и попадают в шлаковый комод.
Стены топочной камеры покрыты трубками, образующими радиационные поверхности нагрева (топочные экраны). По ним циркулирует вода, которая под влиянием излучения факела кипит, образуя пар.
Процесс сгорания идёт одновременно с отводом тепла от продуктов сгорания. Уже в нижней части топки горение в основном заканчивается, поэтому при дальнейшем движении газов по топочному объёму температура газов, отдающих тепло излучением, постепенно падает. На выходе она обычно снижается до (1000 – 1200 ) для того, чтобы частички шлака, летящие в потоке топочных газов, могли застыть. Этим исключается налипание частичек вязкого, тестообразного шлака на трубы поверхностей нагрева, расположенные в горизонтальном газоходе, в который газы поступают из топки. Газоход заполнен пучками труб малого диаметра, образующими конвективные поверхности нагрева. На входе в газоход пучки разрежены, образуя так называемый фестон. По трубам, расположенным за фестоном, движется пар, который, отнимая тепло от топочных газов, перегревается до (540 – 600 ). В связи с этим данная часть котлоагрегата носит название пароперегревателя.
Проходя между трубами пароперегревателя, газы остывают до (500 – 600 ) и затем поворачивают в опускной газоход, заполненный рядами трубок, по которым проходит так называемая питательная вода, поступающая в котёл для пополнения испарившейся воды. Питательная вода нагревается в трубках водоподогревателя или иначе, водяного экономайзера почти до кипения, а иногда даже частично испаряется.
Далее топочные газы поступают в воздухоподогреватель, где проходят внутри многочисленных трубок малого диаметра. Снаружи трубки омываются воздухом, который в подогретом виде подаётся в топку.
Водяной экономайзер и воздухоподогреватель разделены на две ступени, чередующиеся по ходу газов.
Отдав часть тепла, продукты сгорания покидают котлоагрегат при температуре (120 – 150 ). Эти так называемые уходящие газы пропускаются через специальное устройство для очистки газов от летучей золы – золоуловитель, и затем дымососом выбрасываются через высокую (100 – 120 ) дымовую трубу в атмосферу. Отсасывая газы из котлоагрегата, дымосос поддерживает в газоходах и топочной камере разряжение. В топке оно составляет (5 – 20) , а в газоходе за котлом – до 200 
Таким путём предотвращается попадание продуктов сгорания из топки и газоходов в помещение котельной, но создаётся возможность присоса холодного воздуха в топочную камеру и газоходы. Во избежание последнего наружную поверхность обмуровки топки и газоходов тщательно уплотняют, устанавливая обшивку из листового железа или специальной газонепроницаемой штукатурки.
Воздух забирается из-под крыши здания котельной дутьевым вентилятором и подается сначала в воздухоподогреватель и далее в топку.
Мелкая летучая зола, выделившаяся в золоуловителе, и более крупные частицы шлака, выпавшие в топке, транспортируются на золовые отвалы, расположенные вблизи станции.
Питательная вода, подогретая в регенеративных подогревателях турбинной установки до температуры (215 – 240 ), поступает в водяной экономайзер и в барабан котла. Последний представляет собой горизонтальный цилиндр диаметром (внутренним) (1500 – 1800 ) и длиной до (15 – 20 ), наполовину заполненный водой. Большой внутренний диаметр и высокое внутреннее давление заставляют делать барабан толстостенным (80 – 120 ).
К барабану присоединены многочисленные трубы, по которым в него поступает пароводяная смесь из топочных экранов. В барабане пар отделяется и уходит в пароперегреватель, а оставшаяся вода смешивается с питательной водой и по специальным опускным не обогреваемым трубам, расположенным снаружи топочной камеры, поступает к нижним коллекторам экранов. Эти коллекторы представляют собой трубы горизонтальные большого диаметра (150 – 200 ), к которым приварены многочисленные экранные трубы малого диаметра (50 – 60 ). Из коллекторов вода распределяется по экранным трубам и, поднимаясь по ним, частично испаряется за счёт излучения факела. Получившаяся пароводяная смесь поступает в барабан.
Движение воды по питательным трубопроводам и экономайзеру сопровождается потерей части давления, а поэтому питательный насос должен развивать напор, превышающий давление в барабане.
Точно также пар проходя через пароперегреватель, теряет часть давления, и поэтому давление в барабане выше, чем давление перегретого пара, покидающего котлоагрегат.
В опускные трубы экранов вода поступает из барабана, и после прохождения экранов возвращается в тот же барабан в виде пароводяной смеси. В опускных трубах вода находится при температуре близкой к температуре кипения, но эти трубы не обогреваются. Поэтому парообразование в них не имеет места, и эти трубы постоянно заполнены водой с удельным весом, соответствующим температуре кипения.
В подъёмных трубах имеет место парообразование, и трубы заполнены смесью пара и воды. Удельный вес этой смеси значительно меньше, чем удельный вес воды. Поэтому общий вес столба смеси в экранных трубах гораздо меньше, чем вес столба воды в опускных. Это и создаёт напор естественной циркуляции, доходящий в высоких топках до (0,5 – 0,8 ). Под влиянием этого напора вода проходит через опускные трубы и поступает в экранные, где за счёт парообразования удельный вес поступающей среды уменьшается, и таким образом процесс естественной циркуляции идёт непрерывно.
Отделившийся от воды пар поступает в пароперегреватель, где пар доводится до требуемой температуры (540 – 600 ). Она должна поддерживаться весьма точно, так как всякое снижение температуры перегретого пара против номинальной уменьшает к.п.д. станции, а всякое повышение температуры сверх той, на которую рассчитаны трубки пароперегревателя, трубопровод и турбина, сильно снижает долговечность этих элементов паросиловой установки. Поэтому температура пара должна поддерживаться на заданном уровне с точностью ±5 . Это требует очень точного регулирования температуры перегрева, осуществляемого при помощи соответствующих автоматических устройств.
Необходимо также поддерживать на постоянном уровне и давление пара, так как при снижении давления снижается экономичность турбины, а при значительном понижении давления она не развивает полной мощности; при превышении давления увеличиваются напряжения в трубах, барабанах, коллекторах и т.п.
При работе котла необходимо поддерживать в равновесии и материальный баланс, подавая в котёл количество воды в соответствии с паропроизводительностью и непрерывной продувкой. Если воды будет поступать больше, чем нужно, уровень её в барабане будет повышаться и усилится унос капель воды с паром, т. е. снизится чистота пара. При сильном переполнении барабана в пароперегреватель может быть увлечено так много воды, что на её испарение пойдёт много тепла, и перегрев пара настолько упадёт, что возникнет опасность повреждения турбины и потребуется её аварийное отключение. Наоборот, в случае недостаточной подачи уровень воды начинает снижаться, и это приведёт к нарушению нормального поступления воды к экранам, перегреву металла и повреждению экранных труб.
Поэтому подача воды регулируется автоматически так, чтобы уровень воды в барабане поддерживался в заданных пределах.
2.ВЫБОР СИСТЕМЫ ПЫЛЕПРИГОТОВЛЕНИЯ И МЕЛЬНИЧНОГО ОБОРУДОВАНИЯ
Выбор необходимого мельничного оборудования осуществляют в зависимости от вида топлива, характеризуемого влажностью и зольностью рабочей массы, выходом летучих , коэффициентом размолоспособности , и паропроизводительности котла.
Для каменных углей ( ) и паропроизводительности котлоагрегатов более 12 рекомендуются молотковые мельницы, а в качестве заменяющих – мельницы-вентиляторы МВ.
При использовании среднеходных и молотковых мельниц, а также мельниц-вентиляторов пылеприготовительная установка, как правило, выполняется по схеме с прямым вдуванием. В этом случае для котлоагрегатов паропроизводительностью более 400 устанавливается не менее трех мельниц, менее 400 устанавливается не менее двух мельниц.
Питатели сырого угля обеспечивают равномерную и регулируемую подачу топлива. Производительность питателя выбирается с коэффициентом запаса, равным 1,1 от производительности мельницы. Наиболее широкое применение нашли скребковые, шнековые, пластинчатые, скребково-барабанные и ленточные питатели.
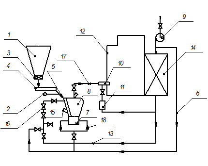
Из вышеизложенного выбираем индивидуальную замкнутую систему пылеприготовления с молотковыми мельницами и сушкой топлива горячим воздухом (рисунок 2.1).

1 – бункер; 2 – мигалка; 3 – шибер; 4 – питатель угля; 5 – течка; 6 – трубопровод присадки холодного воздуха; 7 – мельница; 8 – сепаратор; 9 – дутьевой вентилятор; 10 – горелка; 11 – короб вторичного воздуха; 12 – котел; 13 – воздухопровод;
14 – воздухоподогреватель; 15 – взрывной клапан; 16 – шибер с быстрозакрывающимся устройством; 17 – заглушка; 18 – трубопровод холодного воздуха для уплотнения вала мельницы.
Рисунок 2.1 – Индивидуальная замкнутая система пылеприготовления
с молотковыми мельницами и сушкой топлива горячим воздухом
3.ТЕПЛОВОЙ РАСЧЕТ КОТЕЛЬНОГО АГРЕГАТА
3.1 Расчетный состав топлива
Расчетный состав топлива принимается по таблице I [2,6], %:
влага ……………………………………… 11,0
зола ……………………………………….. 25,4
сера ……………………………………… 2,6
углерод ………………………………........ 47,7
водород …………………………………... 3,2
азот ……………………………………….. 1,3
кислород ………………………………….. 8
,
8
100
Низшая теплота сгорания топлива .
Выход летучих на горючую массу .
3.2 Определение коэффициентов избытка воздуха
Коэффициент избытка воздуха на выходе из топки по таблице XVII [6]. По таблице XVI [6] определяют присосы воздуха в газоходы парогенератора и, суммируя присосы с коэффициентом избытка воздуха на выходе из топки, получают коэффициенты избытка воздуха в газоходах. Расчеты сведены в таблицу 3.1.
Таблица 1.1 – Коэффициенты избытка воздуха
| Параметр
|
Газоходы парогенератора
|
| Топка, фестон
|
Пароперегреватель
(I ступень)
|
Пароперегреватель
(II, III ступени)
|
Водяной экономайзер
(II ступень)
|
Воздухоподогреватель (II ступень)
|
Водяной экономайзер
(I ступень)
|
Воздухоподогреватель (I ступень)
|
| Присос воздуха 
|
0,07
|
0,015
|
0,015
|
0,02
|
0,03
|
0,02
|
0,03
|
| Коэффициент избытка
воздуха по газоходам 
|
1,2
|
1,215
|
1,23
|
1,25
|
1,28
|
1,3
|
1,33
|
| Средний коэффициент
избытка воздуха 
|
1,2
|
1,208
|
1,223
|
1,24
|
1,265
|
1,29
|
1,315
|
3.3 Расчет средних характеристик продуктов сгорания в поверхностях нагрева
Так как состав топлива принят по таблице I [6], то объемы воздуха и продуктов сгорания определяют при помощи таблицы XI [6]. Результаты расчета приведены в таблице 3.2.
Теоретически необходимые объемы воздуха  . Теоретические объемы продуктов сгорания, : ; ; ; .
Доля золы, уносимой газами, определяется по таблице XVII [6], .
Таблица 3.2 – Средние характеристики продуктов сгорания в поверхностях нагрева
| Рассчитываемая величина
|
Размерность
|
Газоходы парогенератора
|
| Топка, фестон
|
Пароперегреватель
(I ступень)
|
Пароперегреватель
(II, III ступени)
|
Водяной экономайзер
(II ступень)
|
Воздухоподогреватель (II ступень)
|
Водяной экономайзер
(I ступень)
|
Воздухоподогреватель (I ступень)
|
| 1
|
2
|
3
|
4
|
5
|
6
|
7
|
8
|
9
|
| Средний коэффициент
избытка воздуха 
|
-
|
1,2
|
1,208
|
1,223
|
1,24
|
1,265
|
1,29
|
1,315
|
| Объем водяных паров

|

|
0,586
|
0,586
|
0,588
|
0,589
|
0,591
|
0,593
|
0,595
|
| Суммарный объем продуктов сгорания

|

|
6,342
|
6,381
|
6,456
|
6,540
|
6,664
|
6,788
|
6,912
|
| Объемная доля трехатомных газов

|
-
|
0,143
|
0,143
|
0,141
|
0,139
|
0,137
|
0,134
|
0,132
|
| Объемная доля водяных паров

|
-
|
0,0924
|
0,0919
|
0,0910
|
0,0900
|
0,0887
|
0,0873
|
0,0860
|
| Суммарная объемная доля 
|
-
|
0,236
|
0,234
|
0,232
|
0,229
|
0,225
|
0,221
|
0,218
|
| Масса дымовых газов

|

|
8,394
|
8,445
|
8,541
|
8,649
|
8,808
|
8,968
|
9,127
|
| Средняя массовая концентрация золовых частиц

|

|
0,0287
|
0,0286
|
0,0283
|
0,0279
|
0,0274
|
0,0269
|
0,0264
|
3.4 Определение энтальпий воздуха и продуктов сгорания
Энтальпии теоретических объемов воздуха и продуктов сгорания определяют по таблице XIV [6]. Затем рассчитывают энтальпию продуктов сгорания по газовому тракту котла. Результаты расчетов сведены в таблицу 3.3.
Определяем значение комплекса 
,
Так как , то учитывать энтальпию золовых частиц , , не нужно.
Формула для расчета энтальпий продуктов сгорания будет иметь вид , :
(3.1)
Таблица 3.3 – Энтальпия продуктов сгорания
| υ,о
С
|
Jo
г
|
Jo
в
|
α''т.ф
=1,2
|
α''п.п 1
=1,215
|
α''п.п 2,3
=1,23
|
α''эк 2
=1,25
|
α''вп 2
=1,28
|
α''эк 1
=1,3
|
α''вп 1
=1,33
|
| кДж/кг
|
кДж/кг
|
Jг
|
ΔJг
|
Jг
|
ΔJг
|
Jг
|
ΔJг
|
Jг
|
ΔJг
|
Jг
|
ΔJг
|
Jг
|
ΔJг
|
Jг
|
ΔJг
|
| 100
|
742
|
645
|
|
|
|
|
|
|
|
|
|
|
935
|
|
955
|
|
| 200
|
1504
|
1303
|
|
|
|
|
|
|
|
|
1869
|
|
1895
|
960
|
1934
|
980
|
| 300
|
2288
|
1969
|
|
|
|
|
|
|
2780
|
|
2839
|
970
|
2879
|
983
|
2938
|
1003
|
| 400
|
3096
|
2648
|
|
|
|
|
3705
|
|
3758
|
978
|
3838
|
999
|
3891
|
1012
|
|
|
| 500
|
3930
|
3344
|
|
|
|
|
4699
|
994
|
4766
|
1008
|
4866
|
1029
|
4933
|
1042
|
|
|
| 600
|
4772
|
4056
|
|
|
|
|
5705
|
1006
|
5786
|
1020
|
5908
|
1042
|
5989
|
1056
|
|
|
| 700
|
5644
|
4785
|
|
|
6673
|
|
6744
|
1039
|
6840
|
1054
|
6984
|
1076
|
|
|
|
|
| 800
|
6541
|
5522
|
|
|
7728
|
1055
|
7811
|
1066
|
7921
|
1081
|
8087
|
1103
|
|
|
|
|
| 900
|
7454
|
6260
|
8706
|
|
8800
|
1072
|
8894
|
1083
|
9019
|
1098
|
|
|
|
|
|
|
| 1000
|
8380
|
7018
|
9784
|
1078
|
9889
|
1089
|
9994
|
1100
|
|
|
|
|
|
|
|
|
| 1100
|
9310
|
7793
|
10869
|
1085
|
10986
|
1097
|
|
|
|
|
|
|
|
|
|
|
| 1200
|
10249
|
8573
|
11963
|
1094
|
|
|
|
|
|
|
|
|
|
|
|
|
| 1300
|
11204
|
9348
|
13074
|
1110
|
|
|
|
|
|
|
|
|
|
|
|
|
| 1400
|
12185
|
10148
|
|
|
|
|
|
|
|
|
|
|
|
|
|
|
| 1500
|
13148
|
10944
|
|
|
|
|
|
|
|
|
|
|
|
|
|
|
| 1600
|
14133
|
11740
|
16481
|
|
|
|
|
|
|
|
|
|
|
|
|
|
| 1700
|
15122
|
12541
|
17630
|
1149
|
|
|
|
|
|
|
|
|
|
|
|
|
| 1800
|
16111
|
13337
|
18778
|
1148
|
|
|
|
|
|
|
|
|
|
|
|
|
| 1900
|
17116
|
14141
|
19944
|
1166
|
|
|
|
|
|
|
|
|
|
|
|
|
| 2000
|
18118
|
14975
|
21113
|
1168
|
|
|
|
|
|
|
|
|
|
|
|
|
| 2100
|
19132
|
15792
|
22290
|
1177
|
|
|
|
|
|
|
|
|
|
|
|
|
| 2200
|
20146
|
16609
|
23467
|
1177
|
|
|
|
|
|
|
|
|
|
|
|
|
| 2300
|
21160
|
17447
|
24649
|
1182
|
|
|
|
|
|
|
|
|
|
|
|
|
3.5 Тепловой баланс и расход топлива
Результаты расчета приведены в таблице 3.4.
Таблица 3.4 – Тепловой баланс и расход топлива
| Рассчитываемый параметр
|
Обозначение
|
Размерность
|
Формула или обоснование
|
Расчет
|
| 1
|
2
|
3
|
4
|
5
|
| Располагаемая теплота топлива
|

|

|

|
18310,3+1,338*20+0= =18337
|
| Приведенная влажность
|

|

|

|
11/18,3103=0,601
|
| Температура уходящих газов
|

|

|
Задана
|
142
|
| Энтальпия уходящих газов
|

|

|
По таблице 3.3
|
1366
|
| Температура холодного воздуха
|

|

|
Задана
|
30
|
| Энтальпия холодного воздуха
|

|

|
По таблице 3.3
|
193,6
|
| Потери теплоты от химического недожога
|

|

|
По таблице XVII [6]
|
0
|
| Потери теплоты от механического недожога
|

|

|
По таблице XVII [6]
|
1,4
|
| Потери теплоты с уходящими газами
|

|

|
Для котлов с замкнутой системой пылеприготовления

|
(1366-1,33*193,6)* *(100-1,4)/18337=5,96
|
| Потери теплоты в окружающую среду
|

|

|
По рисунку 5-1 [6]; при нагрузке, отличающейся от номинальной,

|
0,8
|
| Доля золы топлива в шлаке
|

|
-
|

|
1-0,95 =0,05
|
| Энтальпия шлака
|

|

|
По таблице XIII [6]; для топок с твердым шлакоудалением при температуре 600 
|
560,6
|
Продолжение таблицы 3.4
| 1
|
2
|
3
|
4
|
5
|
| Потеря с физической теплотой шлаков
|

|

|
, при
можно не учитывать
|
0
|
| Сумма тепловых потерь
|

|

|

|
5,96+0+1,4+0,8+0=8,16
|
| КПД брутто
|

|

|

|
100-8,16=91,84
|
| Энтальпия перегретого пара
|

|

|
По таблице XXV [6] при и или по работе [7]
|
3308
|
| Энтальпия питательной воды
|

|

|
По таблице XXIV [6] при 

|
635
|
| Энтальпия продувочной воды
|

|

|
По таблице XXIII [6] при 
|
1110,35
|
| Температура кипения воды
|

|

|
По таблице XXIII [6]
|
254,87
|
| Полезно использованная теплота
|

|

|

|
20,83*(3308-635)+ +0,625*(1110,35-635)=55985
|
| Расход продувочной воды
|

|

|
,
- доля продувки
|
0,03*20,83=0,625
|
| Полный расход топлива
|

|

|

|
55985/((18337*91,84/100)+115,2+0)=3,302
|
| Расчетный расход топлива
|

|

|

|
3,302*(1-1,4/100)=3,256
|
| Коэффициент сохранения теплоты
|

|
-
|

|
1-0,8/(91,84+0,8)=0,991
|
Физическая теплота топлива , :
, (3.2)
Теплоемкость рабочей массы твердого топлива , :
(3.3)
- теплоемкость сухой массы топлива при , принимается по таблице 3-1 [6].
.
Теплота, внесенная поступающим в котельный агрегат воздухом , :
, (3.4)
где - отношение количества воздуха на входе в котельный агрегат к теоретически необходимому;
- отношение количества воздуха, подаваемого в топку из воздухоподогревателя к теоретически необходимому;
- присос воздуха в систему пылеприготовления, принимается по таблице XVI [6];
- отношение избыточного количества воздуха к теоретически необходимому;
- энтальпия теоретически необходимого количества воздуха на входе в котельный агрегат и холодного воздуха.
;
;
.
3.6 Расчет топочной камеры
В соответствии с продольным разрезом котлоагрегата выполняется схема топочной камеры (рисунок 3.1) в одном из стандартных масштабов.
Конструктивные характеристики топки определяют по чертежам котлоагрегата.

Рисунок 3.1 – Схема топочной камеры.
Таблица 3.5 – Конструктивные характеристики топочной камеры.
| Рассчитываемый параметр
|
Обозначение
|
Размерность
|
Формула или обоснование
|
Расчет
|
| 1
|
2
|
3
|
4
|
5
|
| Диаметр и толщина стенки экранных труб
|

|

|
По чертежу
|

|
| Шаг экранных труб
|

|

|
По чертежу
|
Фронтовой и задний экраны с шагом труб 75 ;
Боковой экран с шагом труб: 1-ая и 2-ая панели – 90 , 3-ья панель – 75 .
|
| Площадь поверхности фронтовой стенки (с потолком)
|

|

|
,
где - ширина топки, ; - линейные размеры
|
6,4*(2,125+8,65+4,885+
+0,25)=101,8
|
| Площадь поверхности задней стены
|

|

|
,
где - линейные размеры задней стены
|
6,4*(2,125+8,0+1,125)=72
|
| Площадь поверхности боковой стены
|

|

|

,
где - площадь геометрических фигур, образующих боковую стену, 
|
(5,8+3,39)/2)*1,75+5,8*8+(5,8+5,13)/2)*0,65+(4,834+
+5,13)/2)*0,1325+
+(0,5+4,834)/2)*3,140=67,03
|
| Площадь поверхности, отсекающей половину холодной воронки
|

|

|
, - линейный размер
|
3,39*6,4=21,7
|
| Площадь поверхности, проходящей через ось 1-го ряда труб фестона
|

|

|
, где - линейный размер
|
6,4*(3,1+0,25)=21,44
|
| Суммарная поверхность стен
|

|

|

|
101,8+72+2*67,03+ +21,7+21,44=351,02
|
| Объем топочной камеры
|

|

|

|
67,03*6,4=429
|
| |
|
|
|
|
Продолжение таблицы 3.5
| 1
|
2
|
3
|
4
|
5
|
| Площадь лучевоспринимающей (радиационной) поверхности топки
|

|

|
,
где - угловой коэффициент экранных труб с шагом 75 , (по номограмме 1[6]); - угловой коэффициент экранных труб с шагом 90 , ; - угловые коэффициенты первого ряда фестона и холодной воронки, ; 
(п. 6-04 [6])
|
101,8*0,99+72*0,99+2*16,33*0,99+2*50,7*0,98+ +21,44*1+21,7*1=297,24
|
| Степень экранирования топки
|

|
-
|

|
297,24/351,02=0,847
|
| Общая высота топки
|

|

|
По чертежу (от середины холодной воронки до середины выходного окна или до ширм в случае полного заполнения ими верхней части топки)
|
12
|
| Высота расположения горелок
|

|

|
По чертежу
|
2,25
|
| Относительная высота расположения
горелок,
Максимум температур факела
|


|
-
-
|

(п. 6-14 [6])
|
2,25/12=0,1875
0,1875+0=0,1875
|
| Эффективная толщина излучающего слоя
|

|

|

|
3,6*429/351,02=4,4
|
Таблица 3.6 – Тепловой расчет топочной камеры
| Рассчитываемый параметр
|
Обозначение
|
Размерность
|
Формула или обоснование
|
Расчёт
|
| Коэффициент избытка воздуха на выходе из топки
|
αт
"
|
-
|
По табл.XVII [6]
|
1,2
|
| Присос воздуха в сиситеме пылеприготовления
|
Δαпл
|
-
|
По табл.XVI [6]
|
0
|
| Температура горячего воздуха
|
tг.в
|
o
C
|
По табл.1.8. [6]
|
320
|
| Энтальпия горячего воздуха
|
Jгв
o
|
кДж/кг
|
По табл.4.3
|
2105,06
|
| Теплота, вносимая воздухом в топку
|
Qв
|
кДж/кг
|
βт
'Jo
гв
+(Δαт
+Δαпл
)·Jхв
|
1,13*2105,06+(0,07+0)* *193,6=2392,3
|
| Полезное тепловыделение в топке
|
Qт
|
кДж/кг
|
Qp
·(100-q3
-q4
-q6
)/(100- -q4
)+Qв
+Qфор
+ΣrJг.отб
|
18337*(100-0-1,4-0)/(100-1,4)+2392,3=20729,3
|
| Теоретическая температура горения
|
υа
|
o
C
|
По табл. 4.3 по Qт
и αт
"
|
1967
|
| Коэффициент
|
М
|
-
|
0,59-0,5·Хт
|
0,59-0,5*0,1875=0,496
|
| Температура газов на выходе из топки
|
υт
''
|
o
C
|
Задаёмся предварительно
|
1000
|
| Произведение
|
pn
S
|
м·Мпа
|
rn
pS, где р=0,1 МПа
|
0,236*4,4*0,1=0,104
|
| Коэффициенты ослабления лучей:
|
|
1/м·Мпа
|
|
|
| –трёхатомными газами
|
Кг
|
По номограмме 3[6]
|
4,45
|
| –золовыми частицами
|
Кзл
|
По номограмме 4[6]
|
72
|
| –частицами кокса
|
Ккокс
|
По п. 6-08 [6]
|
10
|
| Безразмерные параметры, учитывающие:
|
|
|
|
|
| –род топлива
|
х1
|
-
|
По п. 6-08 [6]
|
0,5
|
| –способ сжигания
|
х2
|
-
|
По п. 6-08 [6]
|
0,1
|
| Оптическая толщина излучающей среды
|
kpS
|
-
|
(Kг
rn
+Kзл
μзл
+Ккокс
х1
х2
)pS
|
(4,45*0,236+72*0,0287+0,5*0,1*10)*4,4*0,1=1,592
|
| Степень черноты факела
|
αф
|
-
|
1-e-kpS
или по номограмме 2[6]
|
0,797
|
| Коэффициент учитывающий загрязнение
|
ζ
|
-
|
По табл. 6-2 [6]
|
0,45
|
| Коэффициент тепловой эффективности экранов
|
ψср
|
-
|
ζ·χ
|
0,45*0,847=0,381
|
Продолжение таблицы 3.6
| Степень черноты топки
|
αт
|
-
|
αф
/(αф
+(1-αф
)*ψср
)
|
0,797/(0,797+(1- -0,797)0,381)=0,911
|
| Тепловыделение на 1 м2
поверхности стен
|
qF
|
кВт/м2
|
Bp
·Qт
/Fст
|
(3,256*20729,3)/351,02=192,3
|
| Температура на выходе из топки
|
υт
''
|
o
C
|
По номограмме 7[6]
|
1025
|
| Плавкостные характеристики золы
|
tA
|
o
C
|
По табл. 1 [2,6]
|
1050
|
| tB
|
1150
|
| tC
|
1170
|
| Энтальпия газов на выходе из топки
|
Jт
''
|
кДж/кг
|
По табл 4.3
|
10055
|
| Количество тепла, воспринятого в топке
|
Qл
|
кДж/кг
|
φ·(Qт
-Jт
")
|
0,991(20729,3-10055)=10582
|
| Средняя тепловая нагрузка лучевоспринимающей поверхности
|
qл
|
кВт/м2
|
Bp
·Qл
/Hл
|
(3,256*10582)/297,24=
=115,9
|
| Теплонапряжение топочного объёма:
|
|
|
|
|
| -расчётное
|
qv
|
кВт/м3
|
Bр
*Qi
r
/Vт
|
3,256*18310,3/429=138,96
|
| -допустимое
|
qv
доп
|
По табл.XVII [6]
|
150
|
| Средняя температура стенки экранных труб
|
Тст
|
К
|
tкип
+273+60; по 8-04[2] или прил.IV [6]
|
254,87+273+60=587,87
|
| Критерий Стентона
|
St
|
-
|
(1-(υт
"+273)/(υа
+273))/(1- -Tст
/(υа
+273))
|
(1-(1025+273)/(1967+273))/ /(1-587,87/(1967+273))=0,57
|
Температура газов на выходе из топки меньше температуры начала деформации золовых частиц , т.е. шлакования конвективных поверхностей нагрева не будет.
Расхождение между принятым и полученным значениями не превышает 100ºС, расчет топки считается законченным.
3.7 Расчет фестона
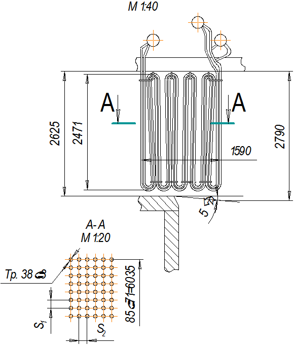
На основании продольного разреза котлоагрегата выполняется схема фестона (рисунок 3.2).
Используя чертежи общих видов котлоагрегата, определяют конструктивные характеристики фестона и заносят их в таблицу 3.7.

Рисунок 3.2 – Схема фестона.


; 
Таблица 3.7 – Конструктивные характеристики фестона.
| Рассчитываемый параметр
|
Обозначение
|
Размерность
|
Формула или обоснование
|
Расчёт
|
| Диаметр и толщина стенки труб
|
dxδ
|
мм
|
По чертежу
|
60x3
|
| Расположение труб
|
-
|
-
|
По чертежам
|
шахмотное
|
| Шаги труб:
|
|
мм
|
|
|
| -поперечный
|
S1
|
4Sэ
|
4*75=300
|
| -продольный
|
S2
|
По чертежу или (S21
+S22
+S23
)/3, где S21
, S22
, S23
- продольные шаги труб пучка
|
250
|
| Число рядов по ходу газов
|
z2
|
шт
|
По чертежу
|
4
|
| Число труб в рядах:
|
|
шт
|
По чертежу
|
|
| -первом
|
z1(1)
|
20
|
| -втором
|
z1(2)
|
20
|
| -третьем
|
z1(3)
|
21
|
| -четвёртом
|
z1(4)
|
21
|
| Длина труб в рядах:
|
|
м
|
По чертежу
|
|
| -первом
|
l1
|
4,243
|
| -втором
|
l2
|
4,2175
|
| -третьем
|
l3
|
4,1915
|
| -четвёртом
|
l4
|
4,2825
|
| Площадь поверхности нагрева пучка
|
Hф
|
м2
|
π·d·Σz1(i)
·li
|
0,060*3,14*(20*4,243+
+20*4,2175+ +21*4,1915+21*4,2825)=
=65,4
|
| Площадь живого сечения для прохода газов:
|
|
|
|
| -на входе
|
F'
|
м2
|
a'·b'-z1(1)
·l'·d, где a' - размер газохода на входе, м; b' - ширина газохода на входе, м; l' - проекция труб последнего ряда на входное сечение
|
3,654*6,4-20*3,654*0,060=19
|
Продолжение таблицы 3.7
| -на выходе
|
F"
|
м2
|
a"·b"-z1(i)
·l"·d, где a" - размер газохода на выходе, м; b" - ширина газохода на выходе, м; l" - проекция труб последнего ряда на выходное сечение
|
3,504*6,4-21*3,504*0,060=18,01
|
| Средняя плщадь живого сечения для прохода газов
|
Fср
|
м2
|
2·F'·F"/(F'+F")
|
(2*19*18,01)/(19+18,01))=18,49
|
| Относительные шаги труб:
|
|
-
|
|
|
| -поперечный
|
σ1
|
S1
/d
|
300/60=5,0
|
| -продольный
|
σ2
|
S2
/d
|
250/60=4,17
|
| Эффективная толщина излучающего слоя
|
S
|
м
|
0,9·d·((4·S1
·S2
/π·d2
)--1)
|
0,9*0,060((4*0,3*0,25)/ /(3,14*0,062
)-1)=1,38
|
| Угловой коэффициент котельного пучка
|
xп.ф
|
-
|
По номограмме 1[6] при S1
/d=5
|
0,72
|
Таблица 3.8 – Тепловой расчет фестона
| Рассчитываемый параметр
|
Обозначение
|
Размерность
|
Формула или обоснование
|
Расчёт
|
| Площадь расчётной поверхности
|
Нф
|
м2
|
По конструктивным характеристикам
|
65,400
|
| Температура газов перед пучком
|
υ'
|
o
C
|
Из расчёта топки
|
1025
|
| Энтальпия газов перед пучком
|
J'
|
кДж/кг
|
Из расчёта топки
|
10055
|
| Температура газов за пучком
|
υ''
|
o
C
|
Принимаем предварительно
|
920
|
| Энтальпия газов за пучком
|
J"
|
кДж/кг
|
По табл. 4.3
|
8921,52
|
| Тепловосприятие пучка по балансу
|
Qб
|
кДж/кг
|
φ·(J'-J")
|
0,991(10055-
-8921,52)=1123,65
|
Продолжение таблицы 3.8
| Средняя температура газов
|
υ
|
o
C
|
0,5·(υ'+υ")
|
0,5(1025+920)=972,5
|
| Температура кипения
|
tкип
|
o
C
|
По табл. XXIII [6] по Рб
|
254,87
|
| Объём газов на 1кг топлива
|
Vг
|
м3
/кг
|
По табл. 4.2
|
6,342
|
| Объёмные доли:
|
|
|
По табл. 4.2
|
|
| -водяных паров
|
rH2O
|
-
|
0,092
|
| -трёхатомных газов
|
rn
|
-
|
0,236
|
| Массовая концентрация золы
|
μзл
|
кг/кг
|
По табл. 4.2
|
0,0287
|
| Скорость газов
|
wг
|
м/с
|
(Bp
Vг
/Fcp
)·(υ+273)/273
|
(3,256*6,342/18,49)*
*(972,5+273)/273=5,094
|
| Коэффициент теплоотдачи конвекцией
|
αк
|
Вт/м2
·К
|
αн
cz
cs
cф;
по номограмме 13 [6]
|
49,25*0,92*0,955*0,95=
=41,107
|
| Средний температурный напор
|
Δt*
|
-
|
(Δtб
-Δtн
)/ln(Δtб
/Δtн
)
|
(1025-254,87 - 920+ +254,87)/ln(770,13/665,13)=
=716,35
|
| Произведение
|
pn
S
|
м·Мпа
|
rn
pS, где p=0,1 МПа
|
0,236*0,1*1,38=0,0325
|
| Коэффициент поглощения лучей:
|
|
1/м·Мпа
|
|
|
| -газовой фазой продуктов сгорания
|
Кг
|
Кг
о
·rn
, Кг
о
- по номограмме 3 [6]
|
7,7*0,236=1,8172
|
| -частицами золы
|
Кзл
μзл
|
По формуле (6-16) [2]
|
104
*0,75*0,0287/((1245,52/3
)*
*(1+1,2* *0,0287*1,38))=1,778
|
| Оптическая толщина
|
kpS**
|
-
|
(Кг
+Кзл
·μзл
)pS
|
(1,8172+1,778)0,1*1,38=0,496
|
| Температура загрязнённой стенки трубы
|
tз
|
o
C
|
tкип
+Δtз
|
254,87+80=334,87
|
| Поправка
|
Δtз
|
o
C
|
По п. 7-36 [6]
|
80
|
| Степень черноты
|
α
|
-
|
По номограмме 17 [2] или формуле (7-65)
|
0,391
|
Продолжение таблицы 3.8
| Коэффициент теплоотдачи излучением
|
αл
|
Вт/м2
·К
|
По номограмме 19 [6]; αн
·α
|
182*0,391=71,15
|
| Коэффициент теплоотдачи от газов стенке
|
α1
***
|
Вт/м2
·К
|
ζ·(αк
+αл
)
|
1(41,107+71,15)=112,254
|
| Коэффициент использования поверхности, учитывающий полноту омывания
|
ζ
|
-
|
По пп. 7-07[6]; для смешанно-омываемых пучков, схематически изображённых на рис. 7.10 [6], ζ=0,95
|
1
|
| Коэффициент тепловой эффективности
|
ψ
|
-
|
По рис.7.16 [2]
|
0,46
|
| Коэффициент теплопередачи
|
k
|
Вт/м2
·К
|
ψ·α1
|
0,46*112,254=51,64
|
| Тепловосприятие пучка по уравнению теплообмена
|
Qт
|
кДж/кг
|
(k·Hф
·Δt/Bp
)·
·10-3
|
((51,64*65,4*716,35)/3,256)*
*10-3
=743,15
|
| Отношение расчётныхвеличин тепловосприятия
|
Qт
/Qб
|
%
|
(Qт
/Qб
)·100
|
(743,15/1123,65)*100=66,14
|
Значения и отличаются друг от друга больше чем на %, необходимо уточнить расчёт. Принимаем новое значение температуры газов за фестоном. Повторный расчёт проводится по упрощенной схеме (таблица 3.8.1)
Таблица 3.8.1 Повторный расчёт фестона.
| Рассчитываемый параметр
|
Обозначение
|
Размерность
|
Формула или обоснование
|
Расчёт
|
| Температура газов за фестоном
|
υ''
|
o
C
|
Принимаем предварительно
|
954
|
| Энтальпия газов за фестоном
|
J"
|
кДж/кг
|
По табл. 4.3
|
9288
|
| Тепловосприятие пучка по балансу
|
Qб
|
кДж/кг
|
φ·(J'-J")
|
0,991(10055-9288)=760,4
|
| Средняя температура газов
|
υ
|
o
C
|
0,5·(υ'+υ")
|
0,5(1025+954)=989,5
|
| Средний температурный напор
|
Δt*
|
-
|
(Δtб
-Δtн
)/ln(Δtб
/Δtн
)
|
(1025-254,87 -954+254,87)/ /ln(770,13/699,13)=734,05
|
Продолжение таблицы 3.8.1
| Тепловосприятие пучка по уравнению теплообмена
|
Qт
|
кДж/кг
|
(k·Hф
·Δt/Bp
)·10-3
|
((51,64*65,4*734,05)/ /3,256)*10-3
=761,52
|
| Отношение расчётныхвеличин тепловосприятия
|
Qт
/Qб
|
%
|
(Qт
/Qб
)·100
|
(761,52/760,4)100=100,15
|
Значения и отличаются друг от друга меньше чем на %, расчет фестона считается законченным.
3.8 Расчет первой ступени пароперегревателя
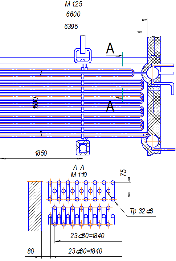
На основании общих видов котлоагрегата выполняем схематический чертеж первой ступени пароперегревателя (рисунок 3.3) и определяем конструктивные характеристики данной поверхности нагрева (таблица 3.9).
Таблица 3.9 – Конструктивные характеристики первой ступени пароперегревателя
| Рассчитываемый параметр
|
Обозначение
|
Размерность
|
Формула или обоснование
|
Расчет
|
| Диаметр и толщина стенки труб
|
d*δ
|
мм
|
По чертежу
|
38x3
|
| Количество параллельно включенных змеевиков
|
z1
|
шт.
|
По чертежам, змеевики сдвоенные
|
72
|
| Число рядов по ходу газов
|
z2
|
шт.
|
По чертежу
|
10
|
| Расположение труб в первых четырех рядах по ходу газов
|
-
|
-
|
По чертежу
|
Шахматное
|
| Расположение труб в последних шести рядах
|
-
|
-
|
По чертежу
|
Коридорное
|
| Число труб в ряду:
|
|
|
|
|
| - в первых четырех
|
zр
ш
|
шт.
|
По чертежу
|
36
|
| - в последних шести
|
zр
к
|
шт.
|
72
|

Рисунок 3.3 – Схема пароперегревателя (I ступень).
; ; ;
; ; ;
; ;
; ;
Продолжение таблицы 3.9
| Площадь поверхности нагрева труб, расположенных в шахматном порядке
|
Hш
|
м2
|
πdlср
z2
ш
zр
ш
, где lср
- средняя длина трубы ряда, м; z2
ш
=4
|
3,14*38*10-3
*2,375*4*36=40,807
|
| Площадь поверхности нагрева труб, имеющих коридорную компоновку
|
Hк
|
м2
|
πdlср
z2
к
zр
к
, где lср
- средняя длина трубы ряда, м; z2
к
=6
|
3,14*38*10-3
*2,375*6*72=122,42
|
| Площадь поверхности нагрева потолочного перегревателя, расположенного над I ступенью
|
Hпот
1
|
м2
|
Hпот
1
=Hпот
общ
l1
/lобщ
Hпот
общ
=blобщ
x=19,53, где b=6,6 м, lобщ
=3,4415 м
|
19,53*1=19,53
|
| Суммарная поверхность Iступени пароперегревателя
|
H
|
м2
|
Нш
+Нк
+Нпот
1
|
40,807+122,42+19,53=182,76
|
| Поперечный шаг труб:
|
|
|
|
|
| - первых четырех рядов
|
S1
ш
|
мм
|
По чертежу
|
170
|
| - последних шести
|
S1
к
|
мм
|
По чертежу
|
85
|
| - средний
|
S1
ср
|
мм
|
(S1
ш
Нш
+S1
к
Нк
)/ (Нш
+Нк
)
|
(170*40,807+85*122,42)/ /(40,807+122,42)=106,25
|
| Продольный шаг
|
S2
|
мм
|
По чертежу; lп
/(z2
-1), где lп
=1050 - глубина пучка, мм
|
1012/(10-1)=112,44
|
| Расчетная площадь живого сечения для прохода газов в шахматном пучке:
|
|
|
|
|
| - на входе
|
Fш
'
|
м2
|
a'
ш
b'
-zp
ш
l'
ш
d
|
4,356*6,6-36*2,375*0,038=25,5
|
| - на выходе
|
Fш
''
|
м2
|
a''
ш
b''
-zp
ш
l''
ш
d
|
3,730*6,6-36*2,375*0,038=21,369
|
| - средняя
|
Fш
ср
|
м2
|
2Fш
'
Fш
''
/(Fш
'
+Fш
''
)
|
(2*25,5*21,369)/(25,5+21,369)= =23,252
|
| Расчетная площадь живого сечения для прохода газов в коридорном пучке:
|
|
|
|
|
| - на входе
|
Fк
'
|
м2
|
a'
к
b'
-zp
к
l'
к
d
|
3,625*6,6-72*2,375*0,038=17,427
|
| - на выходе
|
Fк
''
|
м2
|
a''
к
b''
-zp
к
l''
к
d
|
3,05*6,6-72*2,375*0,038=13,632
|
| - среднее
|
Fк
ср
|
м2
|
2Fк
'
Fк
''
/(Fк
'
+Fк
''
)
|
2*17,427*13,632/(17,427+ +13,632)= =15,298
|
| Средняя расчетная площадь живого сечения для прохода газов в I ступени пароперегревателя
|
Fср
|
м2
|
(Нш
+Нк
)/ ((Нш
/Fш
ср
)+(Нк
/Fк
ср
))
|
(40,807+122,42)/((40,807/23,252)+ +(122,42/15,298))=16,728
|
Продолжение таблицы 3.9
| Расчетная площадь живого сечения для прохода пара
|
fп
|
м2
|
пdвн
2
z1
/4
|
(3,14*(0,0322
)*72)/4=0,058
|
| Относительные шаги труб:
|
|
|
|
|
| - поперечный
|
σ1
|
-
|
S1
ср
/d
|
(106,25/38)=2,8
|
| - продольный
|
σ2
|
-
|
S2
/d
|
(112,44/38)=2,96
|
| Эффективная толщина излучающего слоя
|
S
|
м
|
0,9d(4S1
ср
S2
/πd2
-1)
|
0,9*0,038*((4*106,25*112,44)/ /(106
*3,14*(0,0382
))-1)=0,326
|
Таблица 3.10 – Тепловой расчет первой ступени пароперегревателя
| Рассчитываемый параметр
|
Обозначение
|
Размерность
|
Формула или обоснование
|
Расчет
|
| Температура газов на входе
|
υ’
|
°С
|
Из расчета фестона
|
954
|
| Энтальпия газов на входе
|
J’
|
кДж/кг
|
Из расчета фестона
|
9288
|
| Температура насыщеного пара
|
tн.п
|
°C
|
Задана
|
254,87
|
| Энтальпия насыщеного пара
|
iн.п
|
кДж/кг
|
По табл. XXIII [2,6] при p= 4,4 МПа
|
2797,6
|
| Температура перегретого пара на выходе из первой ступени п/п
|
t’’
п.п1
|
°С
|
Принимаем
|
320
|
| Энтальпия перегретого пара на входе во вторую ступень
|
i’’
п.п1
|
кДж/кг
|
По табл. XXV [2,6] при p= 4,2 МПа
|
3012,8
|
| Коэффициент распределения тепло-восприятия по высоте
|
Ув
|
-
|
По табл. 8-3 ,8-4 [2] или из позонного расчета; при отсутствии данных при h/Hт
= 1 по номограмме 11 [6]
|
0,64
|
| Тепловая нагрузка вверху топки
|
qл
|
кВт/м2
|
Ув
(Вр
Qл
ψ/Fст
ψср
)
|
0,64(3,256*10582*0.46)/ /(351,02*0,381)=75,85
|
| Тепловосприятие перегревателя излучением из топки
|
Qл
пп
|
кДж/кг
|
qл
(Fф
/Вр
)(1-xп.ф.
)
|
75,85(21,44/3,256)(1-0,72)=139,85
|
| Тепловосприятие перегревателя по балансу
|
Qб
|
кДж/кг
|
(i''п.п1
-iн.п
)(Dп.п
/Вр
)-Qл
пп
|
(3012,8-2797,6)(20,83/3,256)- -139,85=1237,4
|
| Энтальпия газов за пароперегревателем
|
J’’
|
кДж/кг
|
J’
-Qб
/φ+ΔαJ˚х.в
|
9288-(1237,4/0,991)+ +0,015*193,6=8042,6
|
Продолжение таблицы 3.10
| Температура газов на выходе
|
υ’’
|
°С
|
По табл. 4.3
|
829,4
|
| Средняя температура газов
|
υ
|
°С
|
(υ’
+υ’’
)/2
|
(954+829,4)/2=891,7
|
| Средняя температура пара
|
t
|
°С
|
(t''п.п1+
tн.п
)/2
|
(254,87+320)/2=287,44
|
| Объем газов на 1кг топлива
|
Vг
|
м3
/кг
|
По табл. 4.2
|
6,381
|
| Объемные доли:
|
|
|
По табл. 4.2
|
|
| - водяных паров
|
rH2O
|
-
|
0,0919
|
| - трехатомных газов
|
rn
|
-
|
0,234
|
| Массовая концентрация золовых частиц
|
μзл
|
кг/кг
|
По табл. 4.2
|
0,0286
|
| средняя скорость газов
|
ωг
|
м/с
|
(Bр
Vг
/Fср
)((υ+273)/273)
|
(3,256*6,381/16,728)* *((891,7+273)/273)=5,3
|
| Коэффициент теплоотдачи конвекцией шахматного пучка труб
|
αк
ш
|
Вт/м2·
К
|
По номограмме 8 [2], 13[6]; αн
сz
cs
cф
|
61*0,85*0,925*0,958=45,95
|
| Коэффициент теплоотдачи конвекцией при обтекании коридорного пучка труб
|
αк
к
|
Вт/м2·
К
|
По номограмме7[2], 12[6]; αн
сz
cs
cф
|
50*0,96*1*0,95=45,6
|
| Средний коэффициент теплоотдачи конвекцией
|
αк
ср
|
Вт/м2·
К
|
(αк
ш
Нш
+αк
к
Нк
)/(Нш
+Нк
)
|
(45,95*40,807+45,6*122,42)/ /(40,807+122,42)=45,69
|
| Объем пара при средней температуре
|
υ
|
м3
/кг
|
По табл. XXV [2,6] при р=4,3МПа
|
0,05335
|
| Средняя скорость пара
|
ωп
|
м/с
|
Dп.п
υ/fп
|
(20,83*0,05335)/0,058=19,2
|
| Коэффициент теплоотдачи от стенки к пару
|
α2
|
Вт/м2·
К
|
По номограмме 12 [2], 15 [6]; αн
Сd
при d=dвн
|
1600*0,985=1576,00
|
| Средняя масовая скорость
|
ωп
/υ
|
кг/с·м2
|
ωп
/υ;оптимальный диапазон для первичных перегревателей wп
/υ =500... 1200; для промежуточных ωп
/υ =300... 400 [4]
|
19,2/0,05335=359,96
|
| Коэффициент тепловой эффективности
|
ψ
|
-
|
По рис. 7.16 [2]
|
0,5
|
Продолжение таблицы 3.10
| Температура загрязненной стенки трубы
|
t3
|
°С
|
t+(1/ψ(1/α1
+1/α2
)-1/α1
)* *(Bр
/H)(Qб
+Qл
пп
)103
|
287,44+((1/0,5)*
*(1/100,61+ 1/1576)-1/100,61)*((3,256/182,76)*(1237,4+ +139,8))*103
=562,43
|
| Произведение
|
pn
S
|
м·МПа
|
rn
ps при р = 0,1 МПа
|
0,234*0,1*0,326=0,0076
|
| Коэффициент поглощения лучей:
|
|
|
|
|
| - газовой фазой продуктов сгорания
|
Kг
|
1/м·МПа
|
Кг
˚rn
, Кг
˚по номограмме 2 [2], 3[6]
|
18,4*0,234=4,3056
|
| - частицами золы
|
Кзл
μзл
|
|
По формуле (6- 16) [2]
|
104
*0,8*0,0286/((1164,72/3
)(1+ +1,2*0,0286*0,326))=2,042
|
| Оптическая толщина
|
kpS
|
-
|
(Kг
+Kзл
μзл
)pS
|
(4,31+2,042)0,1*0,326=0,207
|
| Степень черноты
|
a
|
-
|
1-e-kpS
или по номограмме 17 [2]
|
1-EXP(-0,207)=0,187
|
| Коэффициент теплоотдачи излучением
|
αл
|
Вт/м2
К
|
По номограмме 18 [2], 19 [6] или αн
a
|
207*0,187=38,77
|
| Коэффициент теплоотдачи излучением с учетом излучения газовых объемов, расположенных до и внутри перегревателя
|
α’
л
|
Вт/м2
К
|
αл
(1+A(Tоб
/1000)0,25
)* *(lоб
/lп
)0,07
)
|
38,77*((1+0,4*(1227/1000)0,25
* *(0,87/1,012)0,07
=54,92
|
| Коэффициент, учитывающий вид топлива
|
A
|
-
|
По п.7-40 [2]
|
0,4
|
| Температура газов в объеме камеры перед перегревателем
|
Tоб
|
К
|
υ’
+273
|
954+273=1227
|
| Глубина газового объема
|
lоб
|
м
|
По чертежу
|
0,87
|
| Глубина пучка
|
lп
|
м
|
По чертежу
|
1,012
|
| Коэффициент теплоотдачи от газов к стенке
|
α1
|
Вт/м2
К
|
ξ(αк
+α’
л
)
|
1(45,69+54,92)=100,61
|
| Коэффициент использования поверхности, учитывающий полноту омывания
|
ξ
|
-
|
По п. 7-41 [2]
|
1,0
|
| Коэффициент теплопередачи
|
k
|
Вт/м2
К
|
ψα1
/(1+(1+Qл
пп
/Q)*α1
/
/α2
)
|
(0,5*100,61)/(1+(1+
+139,8/1237,4 )*(100,61/1576))=46,97
|
Продолжение таблицы 3.10
| Температурный напор (для противотока)
|
Δtпрт
|
°С
|
(Δtб
- Δtм
)/ln(Δtб
/Δtм
), где Δtб
=υ’
-t''п.пI;
Δtм
= υ’’
-tн.пI
|
(954-254,87-829,4+320)/ /[ln((954-254,87)/(829,4-320))]=599,24
|
| Температурный напор (для прямотока)
|
Δtпрт
|
°С
|
(Δtб
- Δtм
)/ln(Δtб
/Δtм
), где Δtб
=υ’
-t''п.пI;
Δtм
= υ’’
-tн.пI
|
(1025-360-833+256,05)/ /[ln((1025-360)/(833-256,05))]=620,01
|
| Средний температурный напор
|
|
|
|
|
| Тепловосприятие перегревателя по уравнению теплообмена
|
Qт
|
кДЖ/кг
|
(kHΔt/Bp
)10-3
|
(46,97*182,76*599,24/3,256)* *10-3
=1579,95
|
| Отношение расчетных величин тепло-восприятия
|
Qт
/Qб
|
%
|
(Qт
/Qб
)100
|
(1579,95/1237,4)100=127,68
|
Значения и отличаются более чем на , расчет первой ступени пароперегревателя необходимо повторить. Принимаем новое значение температуры перегретого пара на выходе из первой ступени пароперегревателя (таблица 3.11)
Таблица 3.11 – Повторный расчет первой ступени пароперегревателя
| Рассчитываемый параметр
|
Обозначение
|
Размерность
|
Формула или обоснование
|
Расчет
|
| Температура перегретого пара на входе во вторую ступень
|
t’’
п.п1
|
°С
|
Принимаем
|
337
|
| Энтальпия перегретого пара на входе во вторую ступень
|
i’’
п.п1
|
кДж/кг
|
По табл. XXV [2,6] при p= 4,2 МПа
|
3057,08
|
| Тепловосприятие перегревателя по балансу
|
Qб
|
кДж/кг
|
(i''п.п1
-iн.п
)(Dп.п
/Вр
)-Qл
пп
|
(3057,08-2797,6)(20,83/3,256)- -139,85=1520,6
|
| Энтальпия газов за пароперегревателем
|
J’’
|
кДж/кг
|
J’
-Qб
/φ+ΔαJ˚х.в
|
9288-(1520,6/0,991)+ +0,015*193,6=7756,9
|
| Температура газов на выходе
|
υ’’
|
°С
|
По табл. 4.3
|
802,7
|
| Температурный напор (для противотока)
|
Δtпрт
|
°С
|
(Δtб
- Δtм
)/ln(Δtб
/Δtм
), где Δtб
=υ’
-t''п.пI;
Δtм
= υ’’
-tн.пI
|
(954-254,87-802,7+337)/ /[ln((954-254,87)/(802,7-337))]=574,54
|
Продолжение таблицы 3.11
| Тепловосприятие перегревателя по уравнению теплообмена
|
Qт
|
кДЖ/кг
|
(kHΔt/Bp
)10-3
|
10-3
*(46,97*182,76*574,54/ /3,256)*10-3
=1514,81
|
| Отношение расчетных величин тепло-восприятия
|
Qт
/Qб
|
%
|
(Qт
/Qб
)100
|
(1514,81/1520,6)100=99,62
|
Значения и отличаются менее чем на , расчет первой ступени пароперегревателя считается законченным.
3.9 Расчет второй и третьей ступени пароперегревателя
На основании общих видов котлоагрегата выполняют схему второй и третьей ступеней перегревателя (рисунок 3.4) и определяют конструктивные характеристики данной поверхности нагрева (таблица 3.12).

Рисунок 3.4 – Схема пароперегревателя (II и III ступени).
; ;
; ;
; .
Таблица 3.12 – Конструктивные характеристики II, III ступеней пароперегревателя
| Рассчитываемый параметр
|
Обозначение
|
Размерность
|
Формула или обоснование
|
Расчет
|
| Диаметр и толщина стенки труб
|
d*δ
|
мм
|
По чертежу
|
38x3
|
| Количество параллельно включенных змеевиков
|
z1
|
шт.
|
По чертежам, змеевики сдвоенные
|
72
|
| Число рядов по ходу газов
|
z2
|
шт.
|
По чертежу
|
20
|
| Расположение труб
|
-
|
-
|
По чертежам
|
Коридорное
|
| Число труб в ряду
|
zp
|
шт.
|
По чертежам
|
72
|
| Шаги труб:
|
|
|
|
|
| - поперечный
|
S1
|
мм
|
По чертежу
|
85
|
| - продольный
|
S2
|
мм
|
lп2
/(z2
-1)
|
1400/(20-1)=73,6
|
| Площадь поверхности нагрева труб, имеющих коридорную компоновку
|
Hк
|
м2
|
πdlср
z2
zр
, где lср
- средняя длина трубы ряда, м
|
3,14*38*
*10-3
*2,471*20*72=424,57
|
| Общая площадь поверхности нагрева перегревателя
|
H
|
м2
|
Нк
|
424,57
|
| Расчетная площадь живого сечения для прохода газов:
|
|
|
|
|
| - на входе
|
F'
|
м2
|
a'
b'
-zp
l'
d
|
2,625*6,6-72*2,471*0,038=10,564
|
| - на выходе
|
F''
|
м2
|
a''
b''
-zp
l''
d
|
2,79*6,6-72*2,471*0,038=11,65
|
| - средняя
|
Fср
|
м2
|
2F'
F''
/(F'
+F''
)
|
(2*10,564*11,46)/(10,564+11,65)= =11,08
|
| Расчетная площадь живого сечения для прохода пара
|
fп
|
м2
|
пdвн
2
z1
/4
|
(3,14*(0,0322
)*72)/4=0,0579
|
| Относительные шаги труб:
|
|
|
|
|
| - поперечный
|
σ1
|
-
|
S1
/d
|
(85/38)=2,24
|
| - продольный
|
σ2
|
-
|
S2
/d
|
(73,6/38)=1,94
|
| Эффективная толщина излучающего слоя
|
S
|
м
|
0,9d(S1
S2
/πd2
-1)
|
0,9*0,038*((4*85*73,6)/ /(106
*3,14*(0,0382
))-1)=0,155
|
Тепловой расчет второй и третьей ступеней выполняем в табличной форме
(таблица 3.13).
| Рассчитываемый параметр
|
Обозначение
|
Размерность
|
Формула или обоснование
|
Расчет
|
| Температура газов на входе
|
υ’
|
°С
|
Из расчета I ступени перегревателя
|
802,7
|
| Энтальпия газов на входе
|
J’
|
кДж кг
|
То же
|
7756,9
|
| Температура перегретого пара на выходе из ступени
|
tп.п
|
°С
|
Задана
|
440
|
| Энтальпия перегретого пара на выходе из ступени
|
iп.п
|
кДж кг
|
По табл. XXV [2,6]
|
3308,8
|
| Энтальпия перегретого пара на входе в ступень
|
i’
п.пII
|
кДж кг
|
i’’п.пI
-Δiпо
|
3057,08-47=3010,08
|
| Температура перегретого пара на входе в ступень
|
t’
п.пII
|
°С
|
По табл. XXV [2,6] при p= 4,2 МПа
|
319
|
| Теплота, переданная в пароохладителе
|
Δiпо
|
кДж кг
|
Δiпо
=17...84, пароохладитель поверхностного типа, включен после потолочного перегревателя
|
47
|
| Тепловосприятие перегревателя по балансу
|
Qб
|
кДж/кг
|
(iп.п
-i'п.пI
)(Dп.п
/Вр
)
|
(3308,8-
-3010,08)(20,83/3,256)=
=1911,8
|
| Энтальпия газов за пароперегревателем
|
J’’
|
кДж/кг
|
J’-Qб
/φ+ΔαJ˚х.в
|
7756,9-(1911,8/0,991)+ +0,015*193,6=5831,4
|
| Температура газов на выходе
|
υ’’
|
°С
|
По табл. 4.3
|
612,14
|
| Средняя температура газов
|
υ
|
°С
|
(υ’
+υ’’
)/2
|
(802,7+612,14)/2=707,42
|
| Средняя температура пара
|
t
|
°С
|
(t’'
п.п
+t’
п.п II
)/2
|
(440+319)/2=379,5
|
| Объем газов на 1 кг топлива
|
Vг
|
м3
/кг
|
По табл. 4.2
|
6,456
|
| Объемные доли:
|
|
|
По табл. 4.2
|
|
| - водяных паров
|
rH2O
|
-
|
0,091
|
| - трехатомных газов
|
rn
|
-
|
0,232
|
Продолжение таблицы 3.13
| Массовая концентрация золы
|
μзл
|
кг/кг
|
По табл. 4.2
|
0,0283
|
| Средняя скорость газов
|
ωг
|
м/с
|
(Bр
Vг
/Fср
)((υ+273)/
/273)
|
(3,256*6,456/11,08)* *((707,42+273)/273)=6,81
|
| Коэффициент теплоотдачи конвекцией
|
αк
|
Вт/м2·
К
|
По номограмме 7 [2], 12[6]; αн
сz
cs
cф
|
58,5*1*0,99*0,96=55,6
|
| Объем пара при средней температуре
|
υ
|
м3
/кг
|
По табл. XXV [2,6] при р=4,1 МПа
|
0,0702
|
| Средняя скорость пара
|
ωп
|
м/с
|
Dп.п
υ/fп
|
(75/3,6*0,0702)/0,0579=25,27
|
| Коэффициент теплоотдачи от стенки к пару
|
α2
|
Вт/м2·
К
|
По номограмме 12 [2], 15 [6]; αн
Сd
при d=dвн
|
1500*0,98=1470
|
| Средняя массовая скорость
|
ωп
/υ
|
кг/с·м2
|
ωп
/υ
|
25,38/0,0705=360
|
| Коэффициент тепловой эффективности
|
ψ
|
-
|
По рис. 1.6 [2]
|
0,58
|
| Температура загрязненной стенки трубы
|
t3
|
°С
|
t+(1/ψ(1/α1
+1/α2
)-1/α1
)* *(Bр
/H)Qб
103
|
379,5+((1/0,58)*(1/83,7+1/1470)- -1/83,7)*((3,256/424,6)* *1911,8)*103
=523,54
|
| Произведение
|
pn
S
|
м·МПа
|
rn
ps
|
0,232*0,1*0,155=0,0036
|
| Коэффициент поглощения лучей:
|
|
|
|
|
| - газовой фазой продуктов сгорания
|
Kг
|
1/м·МПа
|
Кг
˚rn
, Кг
˚по номограмме 2 [2], 3[6]
|
31*0,232=7,19
|
| - частицами золы
|
Кзл
μзл
|
|
По формуле (6-16) [2]
|
104
*0,8*0,0283/((980,52/3
)(1+ +1,2*0,0283*0,155))=2,278
|
| Оптическая толщина
|
kpS
|
-
|
(Kг
+Kзл
μзл
)pS
|
(7,19+2,278)0,1*0,155=0,147
|
| Степень черноты
|
a
|
-
|
1-e-kpS
или по номограмме 17 [2]
|
1-EXP(-0,128)=0,136
|
| Коэффициент теплоотдачи излучением
|
αл
|
Вт/м2
К
|
По номограмме 18 [2], 19 [6] или αн
a
|
149*0,136=20,31
|
| Коэффициент теплоотдачи излучением с учетом излучения газовых объемов, расположенных до и внутри перегревателя
|
α’
л
|
Вт/м2
К
|
αл
(1+A(Tоб
/1000)0,25
)* *(lоб
/lп
)0,07
)
|
20,31*((1+0,4*(1075,7/1000)0,25
* *(0,656/1,587)0,07
=28,1
|
Продолжение таблицы 3.13
| Коэффициент, учитывающий вид топлива
|
A
|
-
|
По п.7-40 [2]
|
0,4
|
| Температура газов в объеме камеры перед перегревателем
|
Tоб
|
К
|
υ’
+273
|
802,7+273=1075,7
|
| Глубина газового объема
|
lоб
|
м
|
По чертежу
|
0,656
|
| Глубина пучка
|
lп
|
м
|
По чертежу; lп1
|
1,587
|
| Коэффициент теплоотдачи от газов к стенке
|
α1
|
Вт/м2
К
|
ξ(αк
+α’
л
)
|
1(55,6+28,1)=83,7
|
| Коэффициент использования поверхности, учитывающий полноту омывания
|
ξ
|
-
|
По п. 7-41 [2]
|
1
|
| Коэффициент теплопередачи
|
k
|
Вт/м2
К
|
ψα1
/(1+α1
/α2
)
|
(0,58*83,7)/(1+(83,7/1470))=45,9
|
| Температурный напор (для прямотока)
|
Δtпрм
|
°С
|
(Δtб
- Δtм
)/ln(Δtб
/Δtм
), где Δtб
=υ’
-t’
п.пII;
Δtм
= υ’’
-tп.п
|
(802,7-319-612,14+440)/ /[ln((802,7-
-319)/(612,14-440))]=301,6
|
| Температурный напор (при противотоке)
|
Δtпрт
|
°С
|
(Δtб
- Δtм
)/ln(Δtб
/Δtм
), где Δtб
=υ’
-tп.п Δtм
= υ’’
-t’п.п II
|
(802,7-440-612,14+319)/ /[ln((802,7-440)/(612,14- -319)]=326,7
|
| Температурный напор
|
Δt
|
°С
|
т.к. Δtпрт
/Δtпрм
>0,92 то Δt=(Δtпрм+Δtпрт)/2
|
(301,6+326,7)/2=314,1
|
| Тепловосприятие пароперегревателя по уравнению теплообмена
|
Qт
|
кДж/кг
|
(kHΔt/Bp
)10-3
|
10-3* *
(45,9*424,6*326,7/3,256)=1881,4
|
| Отношение расчетных величин тепловосприятия
|
Qт
/Qб
|
%
|
(Qт
/Qб
)100
|
(1881,4/1911,8)100=98,41
|
При переходе котлоагрегата на новый вид твердого топлива требуется модернизация второй и третьей ступеней пароперегревателя с увеличением площади поверхности нагрева с 254,7 до 424,6 . Наращивание площади поверхности нагрева выполняют за счет увеличения числа рядов по ходу газов до 20.
Значения и отличаются менее чем на , расчет второй и третьей ступеней пароперегревателя считается законченным.
3.10 Расчет второй ступени водяного экономайзера
На основании общих видов котлоагрегата выполняем схему второй ступени водяного экономайзера (рисунок 3.5) и определяем конструктивные характеристики данной поверхности нагрева (таблица 3.14).
Таблица 3.14 – Конструктивные характеристики второй ступени водяного экономайзера.
| Рассчитываемый параметр
|
Обозначение
|
Размерность
|
Формула или обоснование
|
Расчет
|
| Диаметр и толщина стенки труб
|
d*δ
|
мм
|
По чертежу
|
32x3
|
| Расположение труб
|
-
|
-
|
По чертежу
|
Шахматное
|
| Шаги труб:
|
|
|
|
|
| - поперечный
|
S1
|
мм
|
По чертежу
|
80
|
| - продольный
|
S2
|
мм
|
75
|
| Относительные шаги труб:
|
|
|
|
|
| - поперечный
|
σ1
|
-
|
S1
/d
|
80/32=2,5
|
| - продольный
|
σ2
|
-
|
S2
/d
|
75/32=2,344
|
| Число рядов по ходу газов
|
z2
|
шт.
|
По чертежу
|
21
|
| Средняя длина трубы одного ряда
|
l1
|
м
|
По чертежу, односторонний, симметричный экономайзер
|
3,239*2=6,478
|
| Среднее число труб в ряду
|
z1
|
шт.
|
По чертежу
|
24
|
| Расчетная площадь поверхности нагрева
|
H
|
м2
|
πdl1
z1
z2
,
|
3,14*0,032*6,478*21*24=328,1
|

Рисунок 3.5 – Схема экономайзера (II ступень).
Продолжение таблицы 3.14
| Число параллельно включенных змеевиков
|
n
|
шт.
|
2z1
|
2*24=48
|
| Глубина газохода
|
a
|
м
|
По чертежу
|
2
|
| Ширина газохода
|
b
|
м
|
По чертежу
|
6,6
|
| Проекция трубы
|
l
|
м
|
По чертежу
|
6,426
|
| Расчетная площадь сечения для прохода газов
|
F
|
м2
|
ab-z1
dl
|
2,0*6,6-24*0,032*6,426=8,26
|
| Площадь живого сечения для прохода воды
|
ƒ
|
м2
|
пdвн
2
n/4
|
(3,14*(0,0262
)*48)/4=0,0255
|
| Эффективная толщина излучающего слоя
|
S
|
м
|
0,9d(4S1
S2
/πd2
-1)
|
0,9*0,032*((4*80*75)/ /(106
*3,14*(0,0322
))-1)=0,1862
|
Тепловой расчет 2-ой ступени водяного экономайзера выполняем в табличной форме (таблица 3.15).
Таблица 3.15 – Тепловой расчет второй ступени водяного экономайзера
| Рассчитываемый параметр
|
Обозначение
|
Размерность
|
Формула или обоснование
|
Расчет
|
| Температура газов на входе
|
υ’
|
°С
|
Из расчета пароперегревателя
|
612,14
|
| Энтальпия газов на входе
|
J’
|
кДж/кг
|
Из расчета пароперегревателя
|
5831,4
|
| Тепловосприятие экономайзера
|
Qэк
|
кДж/кг
|
(Qp
ηка
+Qфор
+Qв.вн
)·100/
(100-q4
)-(Qл
+Qф
б
+Qк
.
п
б
+ Qб
пп
II,III
+Qпп
I
б
)
|
(18337*0,9184+0+115,2)* *(100/(100-1,4)-
-(10582+760,4+0+ +1520,6+1911,8)=2421,5
|
| Энтальпия воды на выходе из II ступени
|
i’’
|
кДж/кг
|
iп.в
+Δiпо
(Dп.п
/Dэк
)+Qэк
Bp
//Dэк
, где Dэк
=(1+P)Dп.п
|
635+47*(20,83/(1,03*20,83))+ +(2421,5*3,256/(1,03*20,83))=1048
|
| Температура воды на выходе
|
t’’
|
°С
|
По табл. XXIV [2,6] при ρ = 4,5 МПа
|
242,1
|
| Температура газов на выходе
|
υ’’
|
°С
|
Задаемся
|
425
|
| Энтальпия газов на выходе
|
J’’
|
кДж/кг
|
По табл. 4.3.
|
4010,4
|
| Тепловосприятие экономайзера по балансу
|
Qб
|
кДж/кг
|
φ(J’
-J’'
+ΔαJ˚х.в
)
|
0,991*(5831,4-4010,4+ +0,02*193,6 ) = =1809,2
|
| Энтальпия воды на входе
|
i’
|
кДж/кг
|
i’’
-Qб
Bp
/Dэк
|
1048-(1809,2*3,256)/(1,03*20,833)=773,5
|
Продолжение таблицы 3.15
| Температура воды на входе
|
t’
|
°С
|
По табл. XXIV [2,6] при р=4,8 МПа
|
181,9
|
| Средняя температура газов
|
υ
|
°С
|
(υ’
+υ’’
)/2
|
(612,14+425)/2=519
|
| Средняя температура воды
|
t
|
°С
|
(t’
+t''
)/2
|
(181,9+242,1)/2=212
|
| Температурный напор на входе
|
Δt’
|
°С
|
υ'
-t''
|
612,14-242,1=370
|
| Температурный напор на выходе
|
Δt’’
|
°С
|
υ''
-t'
|
425-181,9=243,1
|
| Средний температурный напор
|
Δt
|
°С
|
(Δt'-Δt'')/ln(Δt'/Δt")
|
(370-243,1)/ln(370/243,1)=302
|
| Температура загрязненной стенки трубы
|
t3
|
°С
|
t + Δt3
, Δt3
=60°С по пп.7-39 [2], 7-36 [6]
|
212+60=272
|
| Объем газов на 1кг топлива
|
Vг
|
м3
/кг
|
По табл. 4.2
|
6,54
|
| Объемные доли:
|
|
|
|
|
| - водяных паров
|
rH2O
|
|
По табл. 4.2
|
0,09
|
| - трехатомных газов
|
rn
|
-
|
0,229
|
| Массовая концентрация золовых частиц
|
μзл
|
кг/кг
|
По табл. 4.2
|
0,0279
|
| Средняя скорость газов
|
ωг
|
м/с
|
(Bр
Vг
/Fср
)((υ+273)/273) для твердых топлив wг
опт
=6...13 м/c, для мазута и газа wr
опт
=16...20 м/c [4,6]
|
(3,256*6,54/8,26)* *((519+273)/273)=7,47
|
| Коэффициент теплоотдачи конвекцией
|
αк
|
Вт/м2·
К
|
По номограмме 8 [2], 13[6]; αн
сz
cs
cф
|
81*1*0,97*0,95=74,6
|
| Плотность воды при средней температуре и давлении
|
ρ
|
кг/м3
|
По табл. XXIV [2,6] при р=4,65 МПа
|
852,2
|
| Средняя скорость воды
|
ωв
|
м/с
|
Dэк
/ƒρ
|
(1,03*20,833)/(0,0255*852,2)=0,989
|
| Средняя массовая скорость воды
|
ωв
ρ
|
кг/см2
|
wв
ρ, оптимальный диапазон для экономайзеров wв
ρ = 600...800 [6]
|
0,989*852,2=842,44
|
| Произведение
|
pn
S
|
м·МПа
|
rn
ps
|
0,229*0,1*0,1862=0,00427
|
Продолжение таблицы 3.15
| Коэффициент поглощения лучей:
|
|
|
|
|
| - газовой фазой продуктов сгорания
|
Kг
|
1/м·МПа
|
Кг
˚rn
, Кг
˚по номограмме 2 [2], 3[6]
|
30*0,229=6,88
|
| - частицами золы
|
Кзл
μзл
|
По формуле (6-16) [2]
|
104
*0,8*0,0279/((7922/3
)(1+ +1,2*0,0279*0,1862))=2,59
|
| Оптическая толщина
|
kpS
|
-
|
(Kг
+Kзл
μзл
)pS
|
(6,88+2,59)0,1*0,1862=0,176
|
| Степень черноты
|
a
|
-
|
1-e-kpS
или по номограмме 17 [2]
|
1-EXP(-0,176)=0,162
|
| Коэффициент теплоотдачи излучением
|
αл
|
Вт/м2
К
|
По номограмме 18 [2], 19 [6] или αн
a
|
64*0,162=10,34
|
| Коэффициент теплоотдачи излучением с учетом излучения газовых объемов, расположенных до и внутри экономайзера
|
α’
л
|
Вт/м2
К
|
αл
(1+A(Tоб
/1000)0,25
)* *(lоб
/
lп
)0,07
)
|
10,34*((1+0,4*(885,14/
/1000)0,25
* *(3,26/1,575)0,07
=14,56
|
| Коэффициент, учитывающий вид топлива
|
A
|
-
|
По п.7-40 [2]
|
0,4
|
| Глубина газового объема
|
lоб
|
м
|
По чертежум lоб2
|
3,26
|
| Глубина пучка
|
lп
|
м
|
По чертежу
|
1,575
|
| Температура газов в объеме камеры перед экономайзером
|
Tоб
|
К
|
υ’
+273
|
612,14+273=885,14
|
| Коэффициент теплоотдачи от газов к стенке
|
α1
|
Вт/м2
К
|
ξ(αк
+α’
л
)
|
1(74,6+14,56)=89,21
|
| Коэффициент тепловой эффективности
|
ψ
|
-
|
По рис. 1.6 [2]
|
0,67
|
| Коэффициент теплопередачи
|
k
|
Вт/м2
К
|
ψα1
|
0,67*89,21=59,8
|
| Тепловосприятие экономайзера по уравнению теплообмена
|
Qт
|
кДж/кг
|
(kHΔt/Bp
)10-3
|
10-3
(59,8*328,1*302/3,256)=1819,6
|
| Отношение расчетных величин тепловосприятий
|
Qт
/Qб
|
%
|
(Qт
/Qб
)100
|
(1819,6/1809,2)100=100,58
|
Значения и отличаются менее чем на , расчет II ступени экономайзера считается законченным.
3.11 Расчет второй ступени воздухоподогревателя
На основании общих видов котлоагрегата выполняем схему второй ступени воздухоподогревателя (рисунки 3.6 и 3.7) и определяем конструктивные характеристики данной поверхности нагрева (таблица 3.16).

Рисунок 3.6 – Схема воздухоподогревателя (II ступень).

Рисунок 3.7 – Схема воздухоподогревателя (II ступень).
Таблица 3.16 – Конструктивные характеристики второй ступени воздухоподогревателя
| Рассчитываемый параметр
|
Обозначение
|
Размерность
|
Формула или обоснование
|
Расчет
|
| Диаметр и толщина стенки труб
|
d*δ
|
мм
|
По чертежу
|
40x1,5
|
| Расположение труб
|
-
|
-
|
По чертежу
|
Шахматное
|
| Шаги труб:
|
|
|
|
|
| - поперечный
|
S1
|
мм
|
По чертежу
|
60
|
| - продольный
|
S2
|
мм
|
42
|
| Относительные шаги труб:
|
|
|
|
|
| - поперечный
|
σ1
|
-
|
S1
/d
|
60/40=1,5
|
| - продольный
|
σ2
|
-
|
S2
/d
|
42/40=1,05
|
| Число ходов по воздуху
|
n
|
шт.
|
По чертежу
|
1
|
| Число труб в ряду
|
z1
|
шт.
|
По чертежу
|
108
|
| Число рядов по ходу воздуха
|
z2
|
шт.
|
По чертежу
|
48
|
| Общее число труб
|
z
|
шт.
|
z1
z2
,
|
108*48=5184
|
| Расчетное сечение для прохода газов
|
Fг
|
м2
|
пdвн
2
z/4
|
(3,14*(0,0372
)*5184)/4=
=5,571
|
| Эффективная толщина излучающего слоя
|
S
|
м
|
0,9dвн
|
0,9*0,037=0,0333
|
| Площадь живого сечения для прохода воздуха
|
ƒв
|
м2
|
ab-z1
dl'
n
, l'
n
=b
|
6,4*2,65-
-108*0,04*2,65=5,512
|
| Длина трубы
|
l
|
м
|
По чертежу
( l'
n
n)
|
2,65*1=2,65
|
| Площадь расчетной поверхности нагрева
|
H
|
м2
|
πdср
lz
|
3,14*0,0385*2,65*5184
=1661
|
Тепловой расчет второй ступени воздухоподогревателя выполняем в табличной форме (таблица 3.17).
Таблица 3.17 – Тепловой расчет второй ступени воздухоподогревателя
| Рассчитываемый параметр
|
Обозначение
|
Размерность
|
Формула или обоснование
|
Расчет
|
| Температура газов на входе
|
υ’
|
°С
|
Из расчета второй ступени ВЭ
|
425
|
| Энтальпия газов на входе
|
J’
|
кДж/кг
|
Из расчета второй ступени ВЭ
|
4010
|
| Температура воздуха на выходе
|
t’’
|
°С
|
Из расчета топки t'' =tг.в
|
320
|
| Энтальпия воздуха на выходе
|
Jº’’
г.в
|
кДж/кг
|
Из расчета топки
|
2105,06
|
| Отношение количества воздуха на выходе из второй ступени ВП к теоретически необходимому
|
β''
впII
|
-
|
αт
''
- Δαт
- Δαпл
|
1,2-0,07-0=1,13
|
| Присос воздуха в воздухоподогревателе
|
Δαвп
|
-
|
Из табл. 4.1
|
0,03
|
| Температура воздуха на входе
|
t’
|
°С
|
Задаемся
|
183
|
| Энтальпия воздуха на входе
|
Jº’
в
|
кДж/кг
|
По табл. 4.3
|
1191,3
|
| Тепловосприятие воздухоподогревателя по балансу
|
Qб
|
кДж/кг
|
(β''
впII
+Δαвп
/2+βрц+изб
)·(Jº
г.в
''
-Jº
в
'
)
|
(1,13+0,03/2+0)*(2105,06-
-1191,3)=1046,3
|
| Средняя температура воздуха
|
t
|
°С
|
(t'
+t"
)/2
|
(183+320)/2=251,5
|
| Энтальпия воздуха при средней температуре
|
Jºпрс
|
кДж/кг
|
По табл. 4.3
|
1646,2
|
| Энтальпия газов на выходе
|
J''
|
кДж/кг
|
J’
-Qб
/φ+Δαвп
J˚
прс
|
4010-
-1046,3/0,991+0,03*1646,2
=3004,3
|
| Температура газов на выходе
|
υ''
|
°С
|
По табл. 4.3
|
316,5
|
| Средняя температура газов
|
υ
|
°С
|
(υ'
+υ''
)/2
|
(425+316,5)/2=370,8
|
| Объем газов на 1кг топлива
|
Vг
|
м3
/кг
|
По табл. 4.2
|
6,664
|
| Объемные доли:
|
|
|
|
|
| - водяных паров
|
rH2O
|
|
По табл. 4.2
|
0,0887
|
| - трехатомных газов
|
rn
|
-
|
0,225
|
| Массовая концентрация золы
|
μзл
|
кг/кг
|
По табл. 4.2
|
0,0274
|
Продолжение таблицы 3.17
| Средняя скорость газов
|
ωг
|
м/с
|
(Bр
Vг
/Fг
)((υ+273)/273)
|
(3,256*6,664/5,571)* *((370,8+273)/273)=9,18
|
| Коэффициент теплоотдачи конвекцией
|
αк
|
Вт/м2·
К
|
По номограмме 11 [2], 13[6]; αн
с1
cф
|
29,6*1*1=29,6
|
| Произведение
|
pn
S
|
м·МПа
|
rn
ps
|
0,225*0,1*0,0333=0,000750
|
| Коэффициент поглощения лучей:
|
|
|
|
|
| - газовой фазой продуктов сгорания
|
Kг
|
1/м·МПа
|


|
(((7,8+16*0,0887)/
/(10*0,00075)0,5
)-1)*(1-
-0,37*643,8/1000)*0,225=18,09
|
| -частицами золы
|
Кзл
μзл
|
1/м·МПа
|
|
104
*0,8*0,0274/((643,82/3
)*
(1 +1,2*0,0274*0,0333))=2,94
|
| Оптическая толщина
|
kpS
|
-
|
(Kг
+Kзл
μзл
)pS
|
(18,09+2,94)*0,1*0,0333=
=0,0700
|
| Степень черноты
|
a
|
-
|
1-e-kpS
или по номограмме 17 [2]
|
1-EXP(-0,07)=0,0676
|
| Коэффициент теплоотдачи излучением
|
αл
|
Вт/м2
К
|
По номограмме 18 [2], 19 [6] или αн
a
|
48*0,0676=3,52
|
| Температура загрязненной стенки
|
t3
|
°С
|
(υ+t)/2 , по пп.7-39 [2], 7-36 [6]
|
(370,8+251,5)/2=311,13
|
| Теоретически необходимый объем воздуха
|
Vо
|
м3
/кг
|
По табл. 4.2
|
4,88
|
| Средняя скорость воздуха
|
ωв
|
м/с
|
((β''
впII
+Δαвп
/2)Bp
V0
/
/ƒв)·((t+273)/273)
|
(((1,13+0,03/2)*3,256*4,88)/
/5,512)*(251,5+273)/273=6,34
|
| Коэффициент теплоотдачи от стенки к воздуху
|
α2
|
Вт/м2·
К
|
По номограмме 8 [2], 13[6]; αн
сz
cs
cф
|
62*1*1*0,92=60,7
|
| Коэффициент теплоотдачи от газов к стенке
|
α1
|
Вт/м2
К
|
ξ(αк
+αл
), ξ=1
|
1(29,6+3,25)=32,85
|
Продолжение таблицы 3.17
| Коэффициент эффективности
|
Ψ
|
-
|
По п. 7-50 [2]; Ψтаб
|
0,9
|
| Коэффициент теплопередачи
|
k
|
Вт/м2
К
|
ψα1
/(1+α1
/α2
)
|
0,9*32,85/(1+32,85/60,7)=19,2
|
| Температурный напор на входе газов
|
Δtм
|
°С
|
υ'
-t''
|
425-320=105
|
| Температурный напор на выходе
|
Δtб
|
°С
|
υ''
-t'
|
316,5-183=133,5
|
| Температурный напор при противотоке
|
Δtпрт
|
°С
|
(Δtб
-Δtм
)/ln(Δtб
/Δtм
)
|
(133,5-105)/ln(133,5/105)=118,7
|
| Наибольший перепад температур
|
τб
|
°С
|
t''
-t'
|
320-183=137
|
| Наименьший перепад температур
|
τм
|
°С
|
υ'
-υ''
|
425-316,5=108,5
|
| Параметр
|
P
|
-
|
τм
/(υ'
-t'
)
|
108,5/(425-183)=0,448
|
| Параметр
|
R
|
-
|
τб
/τм
|
137/108,5=1,26
|
| Коэффициент пересчета
|
Ψ
|
-
|
По номограмме 21 [2]
|
0,9
|
| Средний температурный напор
|
Δt
|
°С
|
Ψп
Δtпрт
|
0,9*118,7=106,8
|
| Тепловосприятие воздухоподогревателя по уравнению теплообмена
|
Qт
|
кДж/кг
|
(kHΔt/Bp
)10-3
|
10-3
(18,1*1661*106,8/3,256)=
=1045,4
|
| Отношение расчетных величин тепловосприятия
|
Qт
/Qб
|
%
|
(Qт
/Qб
)100
|
(1045,4/1046,3)100=99,92
|
Значения и отличаются менее чем на , расчет II ступени воздухоподогревателя считается законченным.
3.12 Расчет первой ступени водяного экономайзера
На основании общих видов котлоагрегата выполняем схему первой ступени водяного экономайзера (рисунок 3.8) и определяем конструктивные характеристики данной поверхности нагрева (таблица 3.18).
Таблица 3.18 – Конструктивные характеристики первой ступени экономайзера
| Рассчитываемый параметр
|
Обозначение
|
Размерность
|
Формула или обоснование
|
Расчет
|
| Диаметр и толщина стенки труб
|
d*δ
|
мм
|
По чертежу
|
32x3
|
| Расположение труб
|
-
|
-
|
По чертежам
|
Шахматное
|
| Шаги труб:
|
|
|
|
|
| - поперечный
|
S1
|
мм
|
По чертежу
|
80
|
| - продольный
|
S2
|
мм
|
75
|
| Относительные шаги труб:
|
|
|
|
|
| - поперечный
|
σ1
|
-
|
S1
/d
|
80/32=2,5
|
| - продольный
|
σ2
|
-
|
S2
/d
|
75/32=2,34
|
| Число рядов по ходу газов
|
z2
|
шт.
|
По чертежу
|
22
|
| Средняя длина трубы одного ряда
|
l1
|
м
|
По чертежу, двухсторонний, симметричный
|
3,239*2=6,478
|
| Среднее число труб в ряду
|
z1
|
шт.
|
По чертежу
|
21
|
| Расчетная площадь поверхности нагрева
|
H
|
м2
|
πdl1
z1
z2
,
|
3,14*0,032*6,478*21*22=300,7
|
| Число параллельно включенных змеевиков
|
n
|
шт.
|
2z1
|
2*21=42
|
| Глубина газохода
|
a
|
м
|
По чертежу
|
1,7
|
| Ширина газохода
|
b
|
м
|
6,6
|
| Проекция трубы
|
l
|
м
|
6,426
|
| Расчетная площадь сечения для прохода газов
|
Fг
|
м2
|
ab-z1
dl
|
1,7*6,6-21*0,032*6,426=6,9
|
| Площадь живого сечения для прохода воды
|
ƒ
|
м2
|
пdвн
2
n/4
|
(3,14*(0,0262
)*42)/4=0,0223
|
| Эффективная толщина излучающего слоя
|
S
|
м
|
0,9d(4S1
S2
/πd2
-1)
|
0,9*0,032*((4*80*75)/ /(106
*3,14*(0,0322
))-1)=0,186
|

Рисунок 3.8 – Схема экономайзера (I ступень).
Тепловой расчет 1-ой ступени водяного экономайзера выполняем в табличной форме (таблица 3.19).
Таблица 3.19 – Тепловой расчет первой ступени водяного экономайзера
| Рассчитываемый параметр
|
Обозначение
|
Размерность
|
Формула или обоснование
|
Расчет
|
| Температура газов на входе
|
υ’
|
°С
|
Из расчета второй ступени ВП
|
316,5
|
| Энтальпия газов на входе
|
J’
|
кДж/кг
|
Из расчета второй ступени ВП
|
3004,3
|
| Энтальпия воды на выходе
|
i’’
|
кДж/кг
|
Из расчета второй ступени ВЭ
|
773,5
|
| Температура воды на выходе
|
t’’
|
°С
|
Из расчета второй ступениВЭ t'
экII
=t''
экI
Допускается различие между t'
экII
и t''
экI
на ±10°С[2,6]
|
181,9
|
| Температура питательной воды
|
tп.в
|
°С
|
Задано
|
150
|
| Энтальпия питательной воды
|
iп.в
|
кДж/кг
|
По табл. XXIV [2,6]
|
635
|
| Энтальпия воды на входе в ступень ВЭ
|
i’
|
кДж/кг
|
iп.в
+Δiпо
Dп.п
/Dэк
|
635+47*(20,83/1,03*20,83)=
=680,6
|
| Температура воды на входе в I ступень ВЭ
|
t'
|
°С
|
По табл. XXIV [2,6]
|
160,5
|
| Тепловосприятие экономайзера по балансу
|
Qб
|
кДж/кг
|
(Dэк
/Bр
)(i''
-i'
)
|
(1,03*20,83/3,256)*(773,5-
-680,6)=612,2
|
| Энтальпия газов на выходе
|
J’’
|
кДж/кг
|
J’-Qб
/φ+ΔαJ˚х.в
|
3004,3-
-612,2/0,991+0,02*193,6= =2390,6
|
| Температура газов на выходе
|
υ''
|
°С
|
По табл. 4.3
|
250,4
|
| Средняя температура газов
|
υ
|
°С
|
(υ’
+υ’’
)/2
|
(316,5+250,4)/2=283,5
|
| Средняя температура воды
|
t
|
°С
|
(t’
+t''
)/2
|
(160,5+181,9)/2=171,2
|
| Температурный напор на входе
|
Δt’
|
°С
|
υ'
-t''
|
316,5-181,9=134,6
|
| Температурный напор на выходе
|
Δt’’
|
°С
|
υ''
-t'
|
250,4-160,5=89,8
|
Продолжение таблицы 3.19
| Средний температурный напор
|
Δt
|
°С
|
(Δtб
- Δtм
)/ln(Δtб
/Δtм
), где Δtб
=Δt’
;
Δtм
= Δt''
|
(134,6-89,8)/ln(134,6/89,8)=110,7
|
| Температура загрязненной стенки
|
t3
|
°С
|
t + Δt3
, Δt3
=25°С по пп.7-39 [2], 7-36 [6]
|
171,2+25=196,2
|
| Объем газов на 1кг топлива
|
Vг
|
м3
/кг
|
По табл. 4.2
|
6,788
|
| Объемные доли:
|
|
|
|
|
| - водяных паров
|
rH2O
|
|
По табл. 4.2
|
0,0873
|
| - трехатомных газов
|
rn
|
-
|
0,221
|
| Массовая концентрация золы
|
μзл
|
кг/кг
|
По табл. 4.2
|
0,02691
|
| Средняя скорость газов
|
ωг
|
м/с
|
(Bр
Vг
/Fг
)((υ+273)/
/273)
|
(3,256*6,788/6,9)* *((283,5+273)/273)=6,53
|
| Коэффициент теплопередачи конвекцией
|
αк
|
Вт/м2·
К
|
По номограмме 8 [2], 13[6];αн
сz
cs
cф
|
81*1*0,92*0,92=68,6
|
| Плотность воды при средней температуре и давлении
|
ρ
|
кг/м3
|
По табл. XXIV [2,6]
|
898,7
|
| Средняя скорость воды
|
ωв
|
м/с
|
Dэк
/ƒρ
|
(1,03*20,833)/(0,0223*898,7)=1,07
|
| Средняя массовая скорость воды
|
ωв
ρ
|
кг/см2
|
wв
ρ
|
1,07*898,7=962,8
|
| Произведение
|
pn
S
|
м·МПа
|
rn
ps
|
0,221*0,1*0,186=0,00412
|
| Коэффициент поглощения лучей:
|
|
| - газовой фазой продуктов сгорания
|
Kг
|
1/мМПа
|
Кг
˚rn
,Кг
˚по номограмме 2 [2],3[6]
|
34*0,221=7,5
|
| - частицами золы
|
Кзл
μзл
|
По формуле (6- 16)[2]
|
104
*0,8*0,02691/((565,52/3
)
(1+1,2*0,02691*0,186))=
=3,16
|
| Оптическая толщина
|
kpS
|
-
|
(Kг
+Kзл
μзл
)pS
|
(7,5+3,16)0,1*0,186=0,199
|
| Степень черноты
|
a
|
-
|
1-e-kpS
или по номограмме 17 [2]
|
1-EXP(-0,199)=0,180
|
Продолжение таблицы 3.19
| Коэффициент теплоотдачи излучением
|
αл
|
Вт/м2
К
|
По номограмме 18 [2], 19 [6] или αн
a
|
29*0,180=5,23
|
| Коэффициент теплоотдачи от газов к стенке
|
α1
|
Вт/м2
К
|
ξ(αк
+αл
)
|
1(68,6+5,23)=73,79
|
| Коэффициент тепловой эффективности
|
ψ
|
-
|
По рис. 1.6 [2]
|
0,8
|
| Коэффициент теплопередачи
|
k
|
Вт/м2
К
|
ψα1
|
0,8*73,79=59
|
| Тепловосприятие экономайзера по уравнению теплообмена
|
Qт
|
кДж/кг
|
(kHΔt/Bp
)10-3
|
10-3
(59*300,7*110,7/3,256)=603,8
|
| Отношение расчетных тешювосприятий
|
Qт
/Qб
|
%
|
(Qт
/Qб
)100
|
(603,8/612,2)100=98,62
|
При переходе котлоагрегата на новый вид твердого топлива требуется модернизация первой ступени водяного экономайзера, уменьшение площади поверхности нагрева с 382,7 до 300,7 . Уменьшение поверхности нагрева выполним за счет сокращения числа рядов по ходу газов до .
Значения и отличаются менее чем на , расчет I ступени экономайзера считается законченным.
3.13 Расчет первой ступени воздухоподогревателя
На основании общих видов котлоагрегата выполняем схему первой ступени воздухоподогревателя (рисунок 3.9) и определяем конструктивные характеристики данной поверхности нагрева (таблица 3.20).
Таблица 3.20 – Конструктивные характеристики первой ступени воздухоподогревателя
| Рассчитываемый параметр
|
Обозначение
|
Размерность
|
Формула или обоснование
|
Расчет
|
| Диаметр и толщина стенки труб
|
d*δ
|
мм
|
По чертежу
|
40x1,5
|
| Расположение труб
|
-
|
-
|
По чертежам
|
Шахматное
|
Продолжение таблицы 3.20
| Шаги труб:
|
|
|
|
|
| - поперечный
|
S1
|
мм
|
По чертежу
|
70
|
| - продольный
|
S2
|
мм
|
45
|
| Относительные шаги труб:
|
|
|
|
|
| - поперечный
|
σ1
|
-
|
S1
/d
|
70/40=1,75
|
| - продольный
|
σ2
|
-
|
S2
/d
|
45/40=1,125
|
| Число ходов по воздуху
|
n
|
шт.
|
По чертежу
|
3
|
| Число труб в ряду
|
z1
|
шт.
|
По чертежу
|
92
|
| Число рядов по ходу воздуха
|
z2
|
шт.
|
По чертежу
|
39
|
| Общее число труб
|
z
|
шт.
|
z1
z2
,
|
39*92=3588
|
| Расчетная площадь сечения для прохода газов
|
Fг
|
м2
|
пdвн
2
z/4
|
(3,14*(0,0372
)*3588)/4=3,86
|
| Эффективная толщина излучающего слоя
|
S
|
м
|
0,9dвн
|
0,9*0,037=0,0333
|
| Площадь живого сечения для прохода воздуха
|
ƒв
|
м2
|
ab-z1
dl'
n
, l'
n
=b
|
6,6*2,05-
-92*0,04*2,05=5,986
|
| Длина трубы
|
l
|
м
|
По чертежу ( l'
n
n)
|
6,025
|
| Расчетная площадь поверхности нагрева
|
H
|
м2
|
πdср
lz
|
3,14*0,0385*6,025*3588= =2613,4
|
Тепловой расчет первой ступени воздухоподогревателя выполняем в табличной форме (таблица 3.21)

Рисунок 3.9 – Схема воздухоподогревателя (I ступень).
Таблица 3.21– Тепловой расчет первой ступени воздухоподогревателя
| Рассчитываемый параметр
|
Обозначение
|
Размерность
|
Формула или обоснование
|
Расчет
|
| Температура газов на входе
|
υ’
|
°С
|
Из расчета первой ступени ВЭ
|
250,4
|
| Энтальпия газов на входе
|
J’
|
кДж/кг
|
Из расчета первой ступени ВЭ
|
2390,6
|
| Температура воздуха на выходе
|
t’’
|
°С
|
Из расчета второй ступениВП t'
впII
=t''
впI
Допускается различие между t'
впII
и t''
впI
на ±10°С[2,6]
|
183
|
| Энтальпия воздуха на выходе
|
Jº’'
в
|
кДж/кг
|
Из расчета второй ступени ВП или по табл. 4.3
|
1191,3
|
| Отношение количества воздуха на выходе из I ступени ВП к теоретически необходимому
|
β''
впI
|
-
|
αт
''
- Δαт
- Δαпл
+ΔαвпII
|
1,2-0,07-0+0,03=1,16
|
| Присос воздуха в I ступени воздухоподогревателя
|
ΔαвпI
|
-
|
Из табл. 4.1
|
0,03
|
| Температура воздуха на входе
|
t’
|
°С
|
Задана t'
= tвп
,т.к. калорифер присутствует
|
45
|
| Энтальпия воздуха на входе
|
Jº’
в
|
кДж кг
|
По табл. 4.3
|
290,4
|
| Тешювосприятие воздухоподогревателя по балансу
|
Qб
|
кДж/кг
|
(β''
впI
+ΔαвпI
/2+βрц+изб
)· ·(Jº
г.в
''
-Jº
в
'
)
|
(1,16+0,03/2+0)*(1191,3-290,4)= =1058,5
|
| Средняя температура воздуха
|
t
|
°С
|
(t'
+t"
)/2
|
(45+183)/2=114
|
| Энтальпия воздуха при средней температуре
|
Jºпрс
|
кДж/кг
|
По табл. 4.3
|
737,4
|
| Энтальпия газов на выходе
|
J''
|
кДж/кг
|
J’
-Qб
/φ+ΔαвпI
J˚
прс
|
2390,6-1058,5/0,991+0,03*737,4= =1345
|
| Температура газов на выходе
|
υ''
|
°С
|
По табл. 4.3
|
139,9
|
| Средняя температура газов
|
υ
|
°С
|
(υ'
+υ''
)/2
|
(250,4+139,9)/2=195,1
|
| Объем газов на 1кг топлива
|
Vг
|
м3
/кг
|
По табл. 4.2
|
6,912
|
Продолжение таблицы 3.21
| Объемные доли:
|
|
|
|
|
| - водяных паров
|
rH2O
|
|
По табл. 4.2
|
0,086
|
| - трехатомных газов
|
rn
|
-
|
0,218
|
| Массовая концентрация золы
|
μзл
|
кг/кг
|
По табл. 4.2
|
0,02644
|
| Средняя скорость газов
|
ωг
|
м/с
|
(Bр
Vг
/Fг
)((υ+273)/273)
|
(3,256*6,912/3,86)* *((195,1+273)/273)=10
|
| Коэффициент теплоотдачи конвекцией
|
αк
|
Вт/м2·
К
|
По номограмме 11 [2], 14[6]; αн
с1
cф
|
31,2*1*1,18=36,8
|
| Коэффициент теплоотдачи от газов к стенке
|
α1
|
Вт/м2
К
|
αк
+αл
;αл
- мало, поэтому не учитывается [2,6]
|
36,8
|
| Температура загрязненной стенки
|
t3
|
°С
|
(υ+t)/2 , по пп.9-43 [2], 7-36 [6]
|
(195,1+114)/2=154,6
|
| Теоретически необходимый объем воздуха
|
Vо
|
м3
/кг
|
По табл. 4.2
|
4,88
|
| Средняя скорость воздуха
|
ωв
|
м/с
|
((β''
впI
+ΔαвпI
/2)Bp
V0
/ƒв)· ·((t+273)/273)
|
(((1,16+0,03/2)*3,256*4,88)//5,986)*(114+273)/273=
=4,4
|
| Коэффициент теплоотдачи от стенки к воздуху
|
α2
|
Вт/м2·
К
|
По номограмме 8 [2], 13[6];αн
сz
cs
cф
|
54*0,85*1*1=45,9
|
| Коэффициент эффективности
|
Ψ
|
-
|
По п. 7-50 [2]; Ψтаб
-0,15
|
0,9-0,05=0,85
|
| Коэффициент теплопередачи
|
k
|
Вт/м2
К
|
ψα1
/(1+α1
/α2
)
|
0,85*36,8/(1+36,8/45,9)=
=17,4
|
| Температурный напор на входе
|
Δtм
|
°С
|
υ'
-t''
|
250,4-183=67,4
|
| Температурный напор на выходе
|
Δtб
|
°С
|
υ''
-t'
|
139,9-45=94,9
|
| Средний температурный напор при противотоке
|
Δt
|
°С
|
(Δtб
-Δtм
)/ln(Δtб
/Δtм
)
|
(94,9-67,4)/ln(94,9/67,4)=80,3
|
| Наибольший перепад температур
|
τб
|
°С
|
t''
-t'
|
183-45=138
|
| Наименьший перепад температур
|
τм
|
°С
|
υ'
-υ''
|
250,4-139,9=110,5
|
| Параметр
|
P
|
-
|
τм
/(υ'
-t'
)
|
110,5/(250,4-45)=0,538
|
| Параметр
|
R
|
-
|
τб
/τм
|
138/110,5=1,2
|
| Коэффициент пересчета
|
Ψ
|
-
|
По номограмме 21 [2]
|
0,95
|
| Средний температурный напор
|
Δt
|
°С
|
Ψп
Δtпрт
|
0,95*80,3=76,3
|
| Тепловосприятие воздухоподогревателя по уравнению теплообмена
|
Qт
|
кДж/кг
|
(kHΔt/Bp
)10-3
|
10-3
(17,4*2613,4*76,3/3,256)=1063,9
|
| Отношение расчетных тепловосприятий
|
Qт
/Qб
|
%
|
(Qт
/Qб
)100
|
(1063,9/1058,5)100=100,5
|
Значения и отличаются менее чем на , расчет I ступени воздухоподогревателя считается законченным.
3.14 Проверка сходимости баланса
Расчеты по уточнению балансовых значений тепловосприятий выполняем в табличной форме (таблица 3.22).
Таблица 3.22 – Уточнение балансовых величин и проверка сходимости баланса
| Рассчитываемый параметр
|
Обозначение
|
Размерность
|
Формула или обоснование
|
Расчет
|
| 1
|
2
|
3
|
4
|
5
|
| Температура уходящих газов
|

|

|
Из расчета первой ступени ВП
|
139,9
|
| Энтальпия уходящих газов
|

|

|
Из расчета первой ступени ВП
|
1345,000
|
| Потеря теплоты с уходящими газами
|

|
%
|


|
(1345-1,33*193,6)*(100-
-1,4)/18337=5,85
|
| Сумма тепловых потерь
|

|

|

|
5,85+0+1,4+0,8+0=8,05
|
| Коэффициент полезного действия брутто
|

|

|

|
100-8,05=91,95
|
| Полный расход топлива
|

|

|

|
55985/(18337*91,95/100+
+115,2+0)=3,298
|
| Расчетный расход топлива
|

|

|

|
3,298*(1-1,4/100)=3,252
|
| Теплота, вносимая воздухом в топку
|

|

|

|
(1,2-0,07-
-0)*2105,06+(0,07+0)*193,6 = =2392,3
|
| Полезное тепловыделение в топке
|

|

|

|
18337*((100-0-1,4-0)/(100-
-1,4))+2392,3+0+0=20729,3
|
| Количество теплоты, воспринятое в топке
|

|

|

|
0,991*(20729,3-
-10055)=10582,2
|
Продолжение таблицы 3.22
| Невязка теплового баланса
|

|

|


|
18337*0,9195+0+115,2-
-(10582,2+760,41+ +1520,6+1911,8+1809,2+612,2)*((100-1,4)/100)=20,85
|
| Относительная невязка теплового баланса
|

|
%
|

|
(20,85/18337)*100=0,11
|
Основные результаты теплового расчета сводим в таблицу 3.23
Таблица 3.23 – Сводная таблица теплового расчета котла
| Параметр
|
Обозначение
|
Размерность
|
Газоход
|
| Топка
|
Фестон
|
ПП1
|
ПП2,3
|
ВЭ2
|
ВП2
|
ВЭ1
|
ВП1
|
| Температура газов:
|
|
|
|
|
|
|
|
|
|
|
| -на входе
|
υ'
|
o
C
|
-
|
1025,0
|
954,0
|
802,7
|
612,1
|
425,0
|
316,5
|
250,4
|
| - на выходе
|
υ''
|
o
C
|
1025,0
|
954,0
|
802,7
|
612,1
|
425,0
|
316,5
|
250,4
|
139,9
|
| Тепловосприятие по балансу
|
Qб
|
кДж/кг
|
10582,2
|
760,4
|
1520,6
|
1911,8
|
1809,2
|
1046,3
|
612,2
|
1058,5
|
| Температура теплоносителя:
|
|
|
|
|
|
|
|
|
|
|
| -на входе
|
t'
|
o
C
|
-
|
254,9
|
254,9
|
319,0
|
181,9
|
183,0
|
160,5
|
45,0
|
| - на выходе
|
t''
|
o
C
|
-
|
254,9
|
337,0
|
440,0
|
242,1
|
320,0
|
181,9
|
183,0
|
| Скорость газов
|
wг
|
м/с
|
-
|
5,09
|
5,30
|
6,81
|
7,47
|
9,18
|
6,53
|
10,01
|
| Скорость воды, пара, воздуха
|
w
|
м/с
|
-
|
-
|
19,20
|
25,27
|
0,99
|
6,34
|
1,07
|
4,42
|
| Коэффициент теплопередачи
|
k
|
Вт/м2
·К
|
-
|
51,6
|
47,0
|
45,9
|
59,8
|
19,2
|
59,0
|
17,4
|
| Температурный напор
|
Δt
|
o
C
|
-
|
734,1
|
574,5
|
314,1
|
302,1
|
106,8
|
110,7
|
76,3
|
| Поверхность нагрева
|
Hрасч
Hз
|
м2
|
297,24
297,24
|
65,4
65,4
|
182,76
182,76
|
254,7
424,6
|
328,1
328,1
|
1661
1661
|
382,7
300,7
|
2613,4
2613,4
|
3.15 Тепловая схема котлоагрегата
Тепловая схема котлоагрегата устанавливает взаимосвязь элементов котла, показывает распределение приращения энтальпий воды, пароводяной смеси, пара и воздуха в элементах котлоагрегата, размещение поверхностей нагрева по ходу движения потока продуктов сгорания (рисунок 3.10).

1 – первая ступень экономайзера; 2 – вторая ступень экономайзера;
3 – испарительные поверхности нагрева; 4 – пароперегреватель; 5 – первая ступень воздухоподогревателя; 6 - вторая ступень воздухоподогревателя
Рисунок 3.10 – Тепловая схема котлоагрегата Е-75-40К.
4.РАСЧЕТ ТЯГИ И ДУТЬЯ В ПРЕДЕЛАХ КОТЕЛЬНОГО АГРЕГАТА
Целью аэродинамического расчета котлоагрегата является определение сопротивления газового и воздушного трактов котла для возможности выбора в дальнейшем оборудования тягодутьевых установок.
Основой для определения сопротивления отдельных поверхностей нагрева котлоагрегата являются результаты теплового расчета, которые приведены в таблице 4.1.
4.1 Расчет газового тракта
Сопротивление отдельных участков тракта рассчитываются по средним скоростям и температурам для данного участка. Местные сопротивления в начале и в конце участка рассчитываются по условиям для данного участка тракта. Повороты потока газа внутри пучка труб представляют собой сложные местные сопротивления вследствие взаимного влияния поворота в пучке на их сопротивление. В целях упрощения все сопротивления газового тракта рассчитываются для сухого воздуха при нормальных условиях.
Таблица 4.1 – Исходные данные для расчета
| Участок тракта
|
Диаметр труб, мм
|
Расположение труб
|
Число рядов по ходу газов (воздуха)
|
Отношение S
1
/d
|
Отношение S
2
/d
|

|
Длина продольно омываемых труб, м
|
Средняя температура газов, 0
С
|
Средняя температура воздуха, 0
С
|
Средняя скорость газов, м/с
|
Средняя скорость воздуха, м/с
|
Динамическое давление, дПа
(по рисунку VII-2 [5])
|
Поправочный коэффициент К
[5, таблица VII-5]
|
| Фестон
|
60
|
Шахматное
|
4
|
5,00
|
4,17
|
1,04
|
-
|
989,5
|
-
|
5,09
|
-
|
0,37
|
-
|
| ПП 1
|
38
|
Шахмат.
+корид.
|
10
|
2,80
|
2,96
|
0,92
|
-
|
878
|
-
|
5,30
|
-
|
0,43
|
1,2
|
| ПП 2,3
|
38
|
Коридорное
|
20
|
2,24
|
1,94
|
1,32
|
-
|
707
|
-
|
6,81
|
-
|
0,86
|
1,2
|
| ВЭ 2
|
32
|
Шахматное
|
21
|
2,50
|
2,34
|
0,91
|
-
|
519
|
-
|
7,47
|
-
|
1,25
|
1,1
|
| ВП 2
|
40
|
Шахматное
|
48
|
1,50
|
1,05
|
1,72
|
2,65
|
370,8
|
252
|
9,18
|
6,34
|
2,5
|
1,1/1,05
|
| ВЭ 1
|
32
|
Шахматное
|
22
|
2,50
|
2,34
|
0,91
|
-
|
283,5
|
-
|
6,53
|
-
|
1,35
|
1,1
|
| ВП 1
|
40
|
Шахматное
|
39
|
1,75
|
1,13
|
1,76
|
6,025
|
195,1
|
114
|
10,01
|
4,42
|
3,85
|
1,1/1,15
|
- диагональный шаг.
Расчет тяги выполняют в табличной форме (таблица 4.2).
Таблица 4.2 – Расчет тяги
| Рассчитываемый параметр
|
Обозначение
|
Размерность
|
Формула или обоснование
|
Расчет
|
| 1
|
2
|
3
|
4
|
5
|
| Топка
|
| Разряжение на выходе из топки
|

|

|
По п.2-56 [5]
|
2
|
| Фестон
|
| Сопротивление пучка
|

|

|
По рисунку VII-7 [5];

|
1,11*0.83*0,18*(4+1)=0,83
|
| Коэффициент формы шахматного пучка
|

|
-
|
По п.1-18 [5];

|
(3,2+0,66*((1,7-
-1,04)^1,5
))/3,2=1,11
|
| Первая ступень пароперегревателя
|
| Коэффициент сопротивления пучка
|

|
-
|
при ;
по рисунку VII-6 [5]
|
0,59*0,59*10=3,481
|
Продолжение таблицы 4.2
| 1
|
2
|
3
|
4
|
5
|
| Динамическое давление в начале и в конце поворота
|


|

|
По таблице 4.1
|
0,43
0,86
|
| Динамическое давление на повороте
|

|

|

|
(0,43+0,86)/2=0,645
|
| Коэффициент сопротивления поворота в пучке (при повороте на )
|

|
-
|
По п.1-36 [5];
при поворотах на ; на 
|
1
|
| Сопротивление перегревателя и поворота с учетом поправочного коэффициента
|

|

|

|
1,2*(3,481*0,43+1*0,645)=2,57
|
| Вторая и третья ступени пароперегревателя
|
| Коэффициент сопротивления пучка
|

|
-
|
при ;
по рисунку VII-6 [5]
|
0,7*0,59*0,68*20=5,62
|
| Сопротивление перегревателя и поворота с учетом поправочного коэффициента
|

|

|

|
1,2*5,62*0,86=5,8
|
| Поворотная камера
|
| Коэффициент сопротивления поворота в канале
|

|
-
|

|
1,4*1*1=1,4
|
| Исходный коэффициент сопротивления с учетом шероховатости
|

|
-
|
По п.1-29 [5]
|
1,4
|
| Коэффициент, учитывающий угол поворота
|

|
-
|
При повороте на ;
п.1-29 [5]
|
1
|
Продолжение таблицы 4.2
| 1
|
2
|
3
|
4
|
5
|
| Коэффициент, учитывающий характер канала и его сечение
|

|
-
|
По п.1-29 [5]
|
1
|
| Среднее динамическое давление в поворотной камере
|

|

|

|
(0,86+1,25)/2=1,055
|
| Сопротивление поворотной камеры
|

|

|

|
1,4*1,055=1,477
|
| Вторая ступень водяного экономайзера
|
| Сопротивление пучка
|

|

|
По рисунку VII-7 [5];

|
1,14*1*0,46*(21+1)=11,54
|
| Сопротивление ступени с учетом поправочного коэффициента
|

|

|

|
1,1*11,54=12,694
|
| Вторая ступень воздухоподогревателя
|
| Сопротивление трения
|

|

|
По рисунку VII-4 [5];

( по кривой )
|
0,98*2,4*2,65=6,23
|
| Отношение площади живого сечения труб к площади газохода
|

|
-
|

|
0,785*372
/(60*42)=0,426
|
| Коэффициент сопротивления входа и выхода
|

|
-
|
По рисунку VII-11 [5]
|
0,28+0,36=0,64
|
| Количество входов и выходов
|

|
-
|
По чертежу
|
1
|
| Сопротивление ступени с учетом поправочного коэффициента
|

|

|

|
(6,23+1*0,64*2,5)*1,1=8,613
|
| Первая ступень водяного экономайзера
|
| Сопротивление пучка
|

|

|
По рисунку VII-7 [5];

|
1,14*1*0,46*(22+1)=12,06
|
Продолжение таблицы 4.2
| 1
|
2
|
3
|
4
|
5
|
| Сопротивление ступени с учетом поправочного коэффициента
|

|

|

|
1,1*12,06=13,266
|
| Первая ступень воздухоподогревателя
|
| Сопротивление трения
|

|

|
По рисунку VII-4 [5];

( по кривой )
|
0,98*3,9*6,025=23,02
|
| Отношение площади живого сечения труб к площади газохода
|

|
-
|

|
0,785*372
/(70*45)=0,341
|
| Коэффициент сопротивления входа и выхода
|

|
-
|
По рисунку VII-11 [5]
|
0,33+0,47=0,8
|
| Количество входов и выходов
|

|
-
|
По чертежу
|
2
|
| Сопротивление ступени с учетом поправочного коэффициента
|

|

|

|
(23,02+2*0,8*3,85)*1,1=32,1
|
| Суммарное сопротивление котлоагрегата
|
| Сопротивление тракта
|

|

|

|
0,83+2,57+5,8+1,477+12,694+ +8,613+13,266+32,1=77,35
|
| Приведенная плотность дымовых газов
|

|
-
|
По рисунку VII-26 [5]
|
1,01
|
| Массовая концентрация золы в дымовых газах
|

|

|

|
0
|
| Сопротивление тракта с учетом поправок
|

|

|

|
77,35*1,01*(1+0)=78,12
|
Продолжение таблицы 4.2
| Самотяга котлоагрегата
|
| Расчетная высота опускной шахты
|

|

|
По чертежу
|
19,6
|
| Средняя температура газов в шахте
|

|

|
Из теплового расчета
|
376,000
|
| Средняя объемная доля водяных паров
|

|
-
|
Из таблицы 3.2
|
0,08850
|
| Самотяга на 1 высоты газохода
|

|

|
По рисунку VII-26 [5]
|
0,65
|
| Самотяга опускной шахты
|

|

|

|
(-19,6)*0,65= -12,74
|
| Перепад полных давлений
|

|

|

|
2+78,12+12,74=92,86
|
4.2 Расчет воздушного тракта
Все исходные данные для расчета сопротивления воздушного тракта принимаются из теплового расчета. Сопротивление воздухоподогревателя по воздушной стороне складывается из сопротивления поперечно омываемых труб и сопротивления поворотов в перепускных коробах. Загрязнение поверхности учитывается поправочным коэффициентом К, значение которого приведены в таблице 4.1.
В начале расчета определяем расход воздуха, :
в первой ступени воздухоподогревателя
,
;
во второй ступени воздухоподогревателя
,
.
Расчет сопротивления воздушного тракта выполняем в табличной форме (таблица 4.3).
Таблица 4.3 – Расчет дутья
| Рассчитываемый параметр
|
Обозначение
|
Размерность
|
Формула или обоснование
|
Расчет
|
| 1
|
2
|
3
|
4
|
5
|
| Первая ступень воздухоподогревателя
|
| Сопротивление пучка
|

|

|
По рисунку VII-7 [5];

|
1,04*0,95*0,264*(39+1)*3=31,29
|
| Площадь сечения перепускного короба в начале поворота
|

|

|
По чертежу;

|
6,4*2,23=14,272
|
| Площадь сечения в конце поворота
|

|

|

|
6,4*0,87=5,568
|
| Средняя площадь сечения перепускных коробов
|

|

|

|
2*14,272*5,568/(14,272+5,568)= =8,01
|
| Средняя скорость в перепускных коробах
|

|

|

|
26,43/8,01=3,3
|
| Динамическое давление в повороте
|

|

|
,
где 
|
3,32
*0,132/2=0,718
|
| Коэффициент сопротивления при повороте в коробе на 
|

|
-
|
По п.3-8 [5]
|
0,9
|
| Сопротивление коробов
|

|

|
,
где - число
поворотов на
|
5*0,9*0,718=3,231
|
| Вторая ступень воздухоподогревателя
|
| Сопротивление пучка
|

|

|
По рисунку VII-7 [5];

|
1,08*0,95*0,45*(48+1)*1=
=22,62
|
Продолжение таблицы 4.3
| 1
|
2
|
3
|
4
|
5
|
| Площадь сечения перепускного короба в начале поворота
|

|

|
По чертежу;

|
6,4*0,87=5,57
|
| Площадь сечения в конце поворота
|

|

|

|
6,4*2,65=16,96
|
| Средняя площадь сечения перепускных коробов
|

|

|

|
2*5,57*16,96/(5,57+16,96)=
=8,39
|
| Средняя скорость в перепускных коробах
|

|

|

|
34,91/8,39=4,16
|
| Динамическое давление в повороте
|

|

|
,
где 
|
4,162
*0,132/2=1,14
|
| Коэффициент сопротивления при повороте в коробе на 
|

|
-
|
По п.3-8 [5]
|
0,9
|
| Сопротивление коробов
|

|

|
,
где - число
поворотов на
|
1*0,9*1,14=1,026
|
| Суммарное сопротивление воздухоподогревателя
|

|

|

|
1,05*(31,29+3,231)+ +1,15*(22,62+1,026)=63,44
|
На этом аэродинамический расчет котла закончен.
СПИСОК ИСПОЛЬЗОВАННЫХ ИСТОЧНИКОВ
Любов В.К. Поверочный расчет котельных агрегатов. Учебное пособие. – 2-е изд., исп. и доп. – Архангельск: Изд-во Арханг. гос. техн. ун-та, 2004. – 160 с.
Тепловой расчет котлов (Нормативный метод). – 3-е изд., перераб. и доп./ СПб., НПО ЦКТИ. 1998. –256 с.
Стырикович М.А., Катковская К.Я., Серов Е.П. Котельные агрегаты. – М.; Л.: Госэнергоиздат, 1959. – 487 с.
Ривкин С.Л., Александров А.А. Теплофизические свойства воды и водянего пара. – М.: Энергия, 1980. – 424 с.
Аэродинамический расчет котельных установок (нормативный метод) / Под ред. С.И. Мочана. – 3-е изд. – Л.: Энергия, 1977. – 256 с.
Тепловой расчет котельных агрегатов (Нормативный метод) / Под ред. Н.В. Кузнецова и др. – М.: Энергия, 1973. – 296 с.
|