Курсовая работа: Стальная рабочая площадка промздания
|
Название: Стальная рабочая площадка промздания Раздел: Рефераты по строительству Тип: курсовая работа | |||||||||||||||||||||||||||||||||||||||||||||||||||||||||||||||||||||||||||||||||||||||||||||||||||||||||||||||||||||||||||||||||||||||||||||||||||||||||||||||||||||||||||||||||||||||||||||||||||||||||||||||||||||||||||||||||||||||||||||||||||||||||||||||||||||||||||||||||||||||||||||||||||||||||||||||||||||||||||||||||||||||||||||||||||||||||||||||||||||||||||||||||||||||||||||||||||||
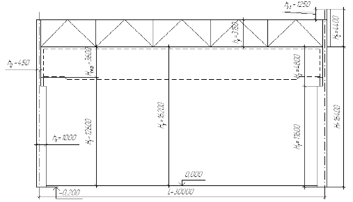
| Нижегородский государственный архитектурно – строительный университет Институт открытого дистанционного образования Курсовая расчетно-графическая работа «Стальная рабочая площадка промздания» Преподаватель Студент: гр. Нижний Новгород – 2010 Содержание 1. Введение 2. Исходные данные 3. Компоновка поперечной рамы 4. Определение нагрузок 4.1 Постоянная нагрузка 4.2 Снеговая нагрузка 4.3 Крановая нагрузка 4.3.1 Расчёт на вертикальную нагрузку 4.3.2 Расчёт на горизонтальную нагрузку 4.3 Ветровая нагрузка 5. Статический расчёт 5.1 Расчёт на постоянную и снеговую нагрузку 5.2 Расчёт на вертикальное давление крана 5.3 Расчёт на торможение 5.4 Расчёт на ветровую нагрузку 6. Расчётные сочетания усилий 6.1 Определение РСУ 7. Расчёт и конструирование верхней части стержня ступенчатой колонны 7.1 Определение расчётной длины колонны в плоскости рамы 7.2 Определение расчётной длины колонны из плоскости рамы 7.3 Конструктивный расчёт подкрановой части колонны 8. Конструктивный расчёт подкрановой части стержня ступенчатой колонны 8.1 Расчёт подкрановой части сплошного сечения 9. Расчёт и конструирование узла сопряжения верхней и нижней частей колонны 10. Расчёт и конструирование базы колонны 10.1 Проектирование и расчёт базы под колонну со сплошной подкрановой частью 10.2 Расчёт анкерных болтов 11. Расчёт и конструирование стропильной фермы 11.1 Конструктивная схема фермы 11.2 Конструкция кровли 11.3 Нагрузки на стропильную ферму 11.4 Определение усилий в элементах фермы 11.5 Конструирование и расчёт в элементах фермы 11.6 Расчёт сварных соединений в ферме Используемая литература 1. Введение Расчетно-графическая работа разработана на основании задания на проектирование, выданного кафедрой металлических конструкций Нижегородского государственного архитектурно-строительного университета. Цель курсовой расчетно-графической работы: - приобретение навыков в решении основных вопросов проектирования металлических конструкций; - освоение методики компоновки простейших сооружений, выполняемых в металле; - определение нагрузок; - выбор расчётных схем элементов, входящих в состав сооружения; - расчёт и конструирование несущих элементов балочной клетки, центрально нагруженных колонн и их узлов. 2. Исходные данные Здание однопролётное отапливаемое, без фонаря. Класс ответственности – II. Кровля лёгкая по прогонам. Стеновое ограждение самонесущее. Здание с мостовым краном Пролёт – L = 30м. Длина здания – 120м. Шаг колонн – Bcol = 12м. Шаг ферм – Brt = 12м. Отметка головки кранового рельса – Ht = 11,05м. Грузоподъёмность крана – Q = 50т. Режим работы крана – 4К-6К. Климатический район строительства – II4. Снеговой район – 4. Ветровой район – 4. Класс бетона B12,5; Rbn = 9,5 МПа. Монтаж производится на болтах. 3. Компоновка поперечной рамы 1. Расстояние от головки подкранового рельса до низа несущих конструкций покрытий.
где f = 200¸400 – зазор, учитывающий прогибы конструкций покрытия, принимаем =350мм; Hc = габаритная высота крана принимаемая по ТУ24-9-456-76 на краны (т II.1(3)).При Q = 50т, Hc = 3150мм; 100 – конструктивный зазор.
2. Полезная высота цеха.
увеличиваем Ht из условия кратности 1,8 принимаем HS =1,8 · 9 = 16,2м. 3. Длина верхней части колонны.
здесь hc.b – высота подкрановой балки равной 1м; hr.a – высота рельса при Q = 50т, к.р.80 hr.a = 130мм. 4. Полная высота рамы.
здесь Hb = заглубление базы колонны ниже отметки пола принимаем 200мм. 5. Длина нижней части колонны.
6. Полная высота шатра.
где h1rt = 3150мм – высота фермы на опоре для типовой серии 1.460.2-10 с элементами из парных уголков; hр = 1250мм – высота парапета.
7. Высота поперечного сечении верхней части колонны.
8. Высота поперечного сечения нижней части колонны.
где b0 = 250мм – привязка наружной грани колонны к разбивочной оси; l1 =750мм – расстояние от разбивочной оси ряда колонны до оси подкрановой балки.
здесь В1 = 300мм – при Q = 50т, по(т II.1(3));
9. Компоновка каркаса по таблицам II.12; II.13. Hc = 3150; Hcom = 3600; Ht = 12600; HS = 16200; H2 = 4800; h1 = 1000; h2 = 450;
Рис.1 Геометрическая схема поперечной рамы 4. Определение нагрузок 4.1 Постоянная нагрузка - Расчётную постоянную нагрузку от веса покрытия определяем в табличной форме по (т II.2(3)) Таблица №1
– Расчётная равномерно распределённая нагрузка на ригель рамы
здесь
– Расчётная постоянная нагрузка на колонну
4.2 Снеговая нагрузка – Расчётная равномерно распределённая нагрузка на ригель рамы
здесь
С – коэффициент, учитывающий конфигурацию кровли здания, для кровли с уклоном не более 25о – С =1 – Расчётная снеговая нагрузка на колонну
4.3 Крановая нагрузка 4.3.1 Расчёт на вертикальную нагрузку – Расчётное максимальное давление на колонну, к которой приближена грузовая тележка, определяется:
при этом на другую колонну оказывается меньшее давление:
где
От
где е – расстояние от оси подкрановой балки до оси центра тяжести нижней части колонны определяется как
4.3.2 Расчёт на горизонтальную нагрузку – Расчётная горизонтальная поперечная сила на колонну
где
горизонтальная поперечная сила возникающая при торможении грузовой тележки; здесь f – коэффициент трения, принимаемый 0,05;
n0 – число колёс крана с одной стороны при Q = 50т, n0 = 2. 4.4 Ветровая нагрузка – Расчётная линейная ветровая нагрузка, передаваемая на стойку рамы к определённой точке по высоте, определяется:
где
с – аэродинамический коэффициент для активного давления 0,8 для отсоса 0,6; k – коэффициент, учитывающий изменение ветрового давления в зависимости от высоты здания и типа местности по (т П.5(3)); От активного сопротивления
– Эквивалентная равномерно распределённая нагрузка равна:
где Ветровую нагрузку, приходящуюся на ригель, заменяем сосредоточенной силой
где сила от активного давления равна
От отсоса
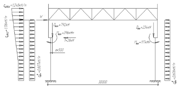
Рис. 2 Расчётные ветровые и крановые нагрузки на раму. 5. Статический расчёт 5.1 Расчёт на постоянную и снеговую нагрузку При назначении расчётной схемы вводим ряд упрощений: колонны считаем жёстко защемлёнными на уровне низа базы; геометрические оси колонн принимаем по середине высоты их сечения; сквозной ригель заменяем сплошным эквивалентной жёсткости. При этом геометрическая ось ригеля считается расположенной в уровне нижнего пояса фермы; ригель принимаем прямолинейным т.к. уклон до i < 10%. принимаем соотношение моментов инерции верхней и нижней части колонны и ригеля в пределах:
при
при
Определяем изгибающие моменты в сечениях А и В от постоянной нагрузки
Вычисляем параметры
по (т П.6(3))
МС и МD графическим способом равен -22,823кН∙м Определяем расчётные значения продольных и поперечных сил в колонне:
Рис. 3. Эпюры изгибающих моментов от постоянной нагрузки. Аналитическим способом МС и МD равен
Переходный коэффициент получаем по формуле:
Тогда усилия от снеговой нагрузки будут:
Рис. 4. Эпюры изгибающих моментов от снеговой нагрузки. 5.2 Расчёт на вертикальное давление крана Определяем усилия в левой стойке (тележка слева) по формуле:
по (т П.7(3)) определяем коэффициенты при α = 0,45 левая стойка
Правая стойка
Усилия в левой стойке (тележка слева)
Усилия в левой стойке (тележка справа)
Рис. 5. Эпюры изгибающих моментов от крановой нагрузки.
5.3 Расчёт на торможение Определяем усилия в левой стойке по формуле:
Значение коэффициента
N = 0
Сила поперечного торможения, приложенная к правой стойке
N = 0
Рис. 6. Эпюры изгибающих моментов от торможения крана. 5.4 Расчёт на ветровую нагрузку Определяем усилия в левой стойке по формуле:
Значение коэффициента
N = 0
Ветровая нагрузка, приложенная к правой стойке
N = 0
Рис. 7. Эпюры изгибающих моментов от ветровой нагрузки. 6.Расчётные сочетания усилий 6.1 Определение РСУ Основное сочетание:
Дополнительное сочетание:
Сечение А.
Усилие наружной ветви колонны равно
Вывод:
Сечение D.
Усилие в подкрановой ветви равно
Сечение В.
Сечение С.
7. Расчёт и конструирование верхней части стержня ступенчатой колонны. Соотношение жесткостей надкрановой и подкрановой частей
Материал колонны – сталь С 255 с Ry = 240 МПа при t = 10…20мм и Ry = 230 МПа при t ≥ 20мм табл.50,51(1). Сварка элементов – полуавтоматическая в среде углекислого газа; сварочная проволока – Св-08Г2С; табл.55(1), положение швов – нижнее. 7.1 Определение расчётной длины колонны в плоскости рамы Расчётная длина колонны для подкрановой части
Для надкрановой
Где μ – коэффициент расчётной длины определяемый по п.6.11.(1) в зависимости от параметров
Здесь
Принимаем верхний конец колонны, закреплённый только от поворота, и при условии H2/H1 £ 0,6 и N1/N2 ³ 3 принимаем значения m по табл. 18(1), находим μ1 = 2; Таким образом
7.2 Определение расчётной длины колонны из плоскости рамы По п.6.13.(1) где 1м – высота подкрановой балки 7.3 Конструктивный расчёт надкрановой части колонны Сечение надкрановой части колонны принимаем из широкополочного двутавра, высота сечения h2 =40см. Требуемая площадь сечения:
где
эксцентриситет продольной силы, Ry = 240 МПа по табл.50(1).
По сортаменту подбираем двутавр 40Ш1 с характеристиками: А = 122,4 см2; Jx = 34360 см4; Wx = 1771 см3; ix = 16,79 см; iy = 7,18 см; h = 388 мм; tw = 9,5 мм; br = 300 мм; tf = 14 мм; Определяем гибкость стержня в плоскости и из плоскости рамы:
Проверка устойчивости стержня колонны в плоскости действия момента по п.5.27(1)
где φе – коэффициент, принимаемый по табл.74(1) в зависимости от
η определяем по табл.73(1) в зависимости от
при
φе = 0,097 – коэффициент, принимаемый по табл. 74(1)
Проверяем устойчивость стержня колонны из плоскости действия момента по п.5.30(1)
где φy = 0,838– коэффициент подсчитанный по п.5.3(1), коэффициент с подсчитываем по п.5.31(1), в зависимости от значения относительного эксцентриситета mx. Тогда
здесь β =1 по п.10(1);
тогда
Устойчивость обеспечена 8. Конструктивный расчёт подкрановой части стержня ступенчатой колонны 8.1 Расчёт подкрановой части сплошного сечения Сечение компонуется из двух прокатных двутавров, высота сечения h1 =100 см. Требуемая площадь сечения:
где
эксцентриситет продольной силы, Ry = 240 МПа по табл.50(1).
По сортаменту подбираем два двутавра 26Ш1 с характеристиками: А = 54,37 см2; Jx = 6225 см4; Wx =496 см3; ix = 10,7 см; iy = 4,23 см; h = 251 мм; tw = 7 мм; br = 180 мм; tf = 10 мм; Характеристика сечения:
Определяем гибкость стержня в плоскости и из плоскости рамы:
Проверка устойчивости стержня в плоскости действия момента по п.5.27(1)
где φе – коэффициент, принимаемый по табл.74(1) в зависимости от
η определяем по табл.73(1) в зависимости от
и
при
здесь
φе = 0,475 – коэффициент, принимаемый по табл. 74(1)
Проверяем устойчивость стержня колонны из плоскости действия момента по п.5.30(1)
где φy = 0,488– коэффициент подсчитанный по п.5.3(1), коэффициент с подсчитываем по п.5.31(1), в зависимости от значения относительного эксцентриситета mx.
тогда
здесь β =1 по п.10(1);
тогда
Устойчивость обеспечена 9. Расчёт и конструирование узла сопряжения верхней и нижней частей колонны. Из условия прочности стенки подкрановой ветви в месте крепления траверсы определяем высоту траверсы hтр
где tw = 7мм – толщина стенки двутавра 26Ш1;
здесь для определения N и M составляем комбинацию усилий в сечении С дающую наибольшую опорную реакцию траверсы.
Высоту стенки траверсы увеличиваем до 50 см, что соответствует рекомендациям hтр = (0,5 …. 0,8) h1 Толщину стенки определяем из условия прочности на смятие:
где
– длина сминаемой поверхности; В связи с тем, что подкрановая балка не рассчитывается, принимаем bd и t по своему усмотрению. bd = 20 см – ширина опорного ребра подкрановой балки; t = 2 см – толщина опорного листа подкрановой ступени; Rp = 336 МПа – расчётное сопротивление смятию торцевой поверхности по т.52(1). Принимаем ttr = 10 мм. Длина шва крепления вертикального ребра траверсы к стенке траверсы определяется по усилиям в сечении С. МС = -168,156 кН·м, NC = 191,562 кН. Усилие во внутренней полке верхней части колонны равно:
Применяем полуавтоматическую сварку проволокой марки Св-08А, d = 1,4…2 мм; βr = 0,9; βz = 1,05 по т.34(1). Назначаем kf = 6мм; ywf = ywf =1 по п.11.2(1), Rwf = 180 МПа по т.56(1).
тогда
10. Расчёт и конструирование базы колонны 10.1 Проектирование и расчёт базы под колонну со сплошной подкрановой частью Проектируем базу с двустенчатыми листовыми траверсами и сплошной общей плитой. Расчётные усилия принимаем по сечению А-А. МА = 414,363 кН·м, NА = 904,367 кН. По конструктивным соображениям определяем ширину опорной плиты:
где h = 251 мм – высота двутавра, ttr = 12 мм – толщина траверсы, с = 50 мм – вылет консоли плиты. Принимаем Вр = 400 мм. Определяем длину плиты:
здесь
Rb = 0,75 кН/см2 для бетона В12 по т.1 Приложение 1(5) Принимаем Lр = 100 cм. Назначаем плиту в плане 400×1200 мм. Определяем толщину плиты. Вычисляем краевые напряжения в бетоне фундамента под опорной плитой
Устанавливаем размеры верхнего обреза фундамента 600×1500 мм. При этом
Положение нулевой точки в эпюре напряжений определяется:
Напряжения на участке эпюры сжатия:
Изгибающие моменты в опорной плите: Участок 1 (консольный свес с = 6,25 см)
Участок 2 (плита, опёртая на три стороны)
Участок 3 (плита, опёртая на четыре стороны)
Коэффициенты α и β определяем по т.2,3 приложения 1(5) Толщину опорной плиты определяем по Мmax
Принимаем tпл =2 см (учитываем пропуск на фрезеровку). Расчёт траверсы htr =300мм (рекомендуется принимать в пределах 300…600мм) и проверяем её прочность на изгиб и срез, как прочность однопролётной балки с консолями, опирающимися на полки колонны.
здесь
Катет швов, крепящих траверсу к полкам колонны, принимаем равным 10 мм Проверяем прочность швов:
где βf = 0,8; βz = 1,0 по т.34(1).
10.1 Расчёт анкерных болтов Определяем краевые напряжения в бетоне фундамента:
Положение нулевой точки:
Растягивающее усилие в анкерных болтах:
где y = 1090 мм – расстояние от оси анкерных болтов до центра тяжести сжатой зоны эпюры напряжений. Требуемая площадь сечения нетто одного анкерного болта:
Rba = 185МПа – расчётное сопротивление растяжению анкерных болтов из стали ВСт3кп2 по т.60*(1); n =2 – число анкерных болтов в растянутой зоне. Принимаем болты диаметром 30 мм с площадью сечения нетто одного болта Abn = 5,60 см2 по т. 62(1) Минимальная длина заделки болта в бетоне l = 0,8 м по т.4.17
11.Расчёт и конструирование стропильной фермы 11.1 Конструктивная схема фермы К расчёту и конструированию принята ферма с параллельными поясами пролётом:
и высотой сечения по центрам тяжести сечений поясов:
11.2 Конструкция кровли Для заданного отапливаемого здания принимаем кровлю по Приложению 2 (6) с толщиной минераловатных плит повышенной твёрдости равной 120 мм со слоем пароизоляции и водоизоляционным слоем кровли из 3-х слоёв рубероида 11.3 Нагрузки на стропильную ферму Вычисление суммарной расчётной постоянной и временной нагрузок, отнесённых к 1м2 покрытия
Полная узловая нагрузка на ферму:
где dр =3м – длина панели верхнего пояса фермы; 11.4 Определение усилий в элементах фермы Усилия в элементах фермы определяем по полной узловой нагрузки, расположенной во всех узлах верхнего пояса фермы. Для определения усилий используем таблицу усилий в элементах фермы от единичной узловой нагрузки F= 1 по Приложению 4(6) Таблица №3
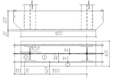
11.5 Конструирование и расчёт элементов ферм Согласно п.п. 2.1;3.1 и табл. 50*;51* (1) в качестве материала элементов ферм принимаем сталь С245 , а для узловых фасонок – С255. Толщина фасонок tф = 10мм. по Приложению 6 (6) при N1-3 = 253,0 кН. Расчётные сопротивления: - для элементов фермы Ry = 24 кН/см2, как для фасонного проката t = 2÷20 мм; - для фасонок – Ry = 25 кН/см2 при t = 10 мм; Все элементы ферм из парных равнополочных уголков. Конструирование и расчёт элементов фермы выполнены в табличной форме. Пояса ферм приняты переменного сечения по длине фермы. Требуемую площадь сечения определяем по формуле
Конструирование и расчёт элементов фермы
Замечания к таблице: Расчётная длина ly элементов 6-8; 8-9 верхнего пояса принята равной расстоянию между центрами узлов верхнего пояса, т.к. они закреплены в этих точках от смещения из плоскости фермы прогонами, связанными с настилом кровли, как с жёстким диском. Расчётная длина lx опорного раскоса 1-3 равна половине его геометрической длины, т.к. элемент 1-3 закреплён в середине дополнительным раскосом от смещения в плоскости фермы. Сечение элемента 1-3 принято таким, как сечение нижнего пояса с целью унификации размеров сечений уголков. В нижних растянутых поясах ферм не рекомендуется применять уголки менее 63×5 (элемент 1-4) по соображениям не повреждаемости пояса при транспортировке, складирования и монтаже. Для элементов решётки не следует применять уголки менее чем 50×5. При подборе элементов фермы учитывается также величина предельной гибкости согласно п.п. 6.15 и 6.16 (1). 11.6 Расчёт сварных соединений в ферме Рассчитываем прикрепления элементов решётки из парных уголков к узловым фасонкам. Сварка полуавтоматическая в нижнем положении; диаметр сварочной проволоки 2 мм. Согласно табл.55(1) для конструкции группы 1 (по узловым фасонкам) из стали С255 принимаем флюс АН-348-А по ГОСТ 9087-81 и сварочную проволоку Св-08А по ГОСТ 2246-70. Расчётные сопротивления: Rwf = 18 кН/см2, по табл.56 (1) и Rwz = 0.45·Run = 0,45·38=17,1 кН/см2, ( Run = 380 МПа = 38 кН/см2 для фасонного проката из стали С255 толщиной до 10 мм – по табл. 51(1)). Требуемую расчётную длину швов для прикрепления одного уголка элемента решётки вычисляем по формулам 120; 121 п. 11.2 (1) По прочности металла шва:
По прочности металла границы сплавления:
Коэффициенты: βf = 0,9; βf = 1,05; при kf = 4÷8мм; βz = 0,8; βz = 1,0; при kf = 9÷12мм; - по табл. 34(1). Согласно п. 11.2 (1) ywf = 1; ywz = 1; по табл. 6(1) yс = 1, т.к. рассматриваемый случай в таблице отсутствует. Большую из вычисленных lw для каждого элемента распределяем на обушок и перо:
Вычисление длин швов для прикрепления элементов решётки.
Используемая литература 1. СНиП II-23-81*. «Стальные конструкции»/ Госстрой СССР.-М.: ЦИТП Госстроя СССР, 1990.-96стр., изд.2001г. (Госстрой России). 2. СНиП 2.01.07-85. «Нагрузки и воздействия»/ Госстрой СССР.-М.: ЦИТП Госстроя СССР, 1990.-36стр.+Дополнения, (Раздел 10. Прогибы и перемещения), изм. №2 от 2003г. 3. Пестряков В.П., Житянная Е.В., «Компоновка и статический расчёт поперечной рамы одноэтажного промздания». Метод. указ. для студентов специальности 290300 ПГС заочн. формы обучения./ НГАСА-Н.Новгород 1996г., 42стр. 4. Колесов А.И., «Расчёт стальных рам одноэтажных промзданий». Метод. указ. по курсовому и дипломному проектированию для спец. 1202 ПГС заочн. и вечерн. обучения./ ГИСИ.-Горький, 1984г. Вып.1 «Компоновка каркаса и статический расчёт поперечной рамы».-84стр. Вып.2 «Примеры статического расчёта поперечных рам стального каркаса».-72стр. 5. Колесов А.И., Житянная Е.В., «Конструктивный расчёт колонны одноэтажного промышленного здания». Метод. указ. для студентов специальности 290300 ПГС заочн. формы обучения./ НГАСУ-Н.Новгород 2000г., 22стр. |
|||||||||||||||||||||||||||||||||||||||||||||||||||||||||||||||||||||||||||||||||||||||||||||||||||||||||||||||||||||||||||||||||||||||||||||||||||||||||||||||||||||||||||||||||||||||||||||||||||||||||||||||||||||||||||||||||||||||||||||||||||||||||||||||||||||||||||||||||||||||||||||||||||||||||||||||||||||||||||||||||||||||||||||||||||||||||||||||||||||||||||||||||||||||||||||||||||||

тогда
сумма ординат линии влияния кранового давления на колонну определяемый по (т II.8(3));



;

,



































;




; 
; 

и









;
;
;
; 
; 




















;

















;