Реферат: Одноступенчатый косозубый редуктор
|
Название: Одноступенчатый косозубый редуктор Раздел: Промышленность, производство Тип: реферат |
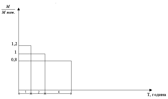
ЗМІСТ с Завдання___________________________________________________________4 Вихідні дані________________________________________________________4 1. Кінематичний розрахунок________________________________________5 1.1. Вибір кінематичної схеми редуктора__________________________5 1.2. Вибір електродвигуна ______________________________________5 1.3. Вибір передавального числа редуктора ________________________5 1.4. Похибка передавального числа_______________________________6 1.5. Число обертів тихохідного вала ______________________________6 2. Розрахунок на міцність зубчастої пари _____________________________6 2.1. Вибір матеріалу колеса _____________________________________6 2.2. Вибір допустимих напружень________________________________6 2.3. Коефіцієнт ширини колеса __________________________________7 2.4. Коефіцієнт навантаження ___________________________________7 2.5. Номінальний момент, що крутить на веденому валу_____________7 2.6. Ширина коліс _____________________________________________7 2.7. Нормальний модуль зубчастої пари___________________________7 2.8. Визначення числа зубців шестірні і колеса_____________________7 2.9. Визначення еквівалентних чисел зубців _______________________8 2.10. Визначення коефіцієнту Yβ ___________________________________________8 2.11. Визначення геометричних розмірів колес______________________9 3. Розрахунок валів на міцність______________________________________9 3.1. Зусилля в зачепленні _______________________________________9 3.2. Швидкохідний вал _________________________________________9 3.2.1. Вибір матеріалу вала __________________________________9 3.2.2. Вибір муфти, визначення зусилля від муфти_______________9 3.2.3. Наближена оцінка вала________________________________10 3.2.4. Опорні реакції та згинальний момент у вертикальній площині від сил, що діють у зачепленні _________________________11 3.2.5. Опорні реакції та згинальний момент у горизонтальній площині ____________________________________________12 3.2.6. Результуючий згинальний момент від сил, що діють у зачепленні, у перерізі, який проходить через середину шестірні____________________________________________ 12 3.2.7. Опорні реакції і згинальні моменти від сили, що діє в муфті 12 3.2.8. Сумарний максимальний згинальний момент у перерізі, що проходить через середину шестірні, від сил, що діють у зачепленні та від муфти_______________________________12 3.2.9. Приведені (еквівалентні) моменти у небезпечних перерізах вала________________________________________________12 3.2.10. Діаметр вала під шестірнею___________________________12 3.2.11. Діаметри вала під підшипники________________________ 12 3.3. Тихохідний вал___________________________________________13 3.3.1. Вибір матеріалу вала_________________________________ 13 3.3.2. Опорні реакції та згинальні моменти у вертикальній пло- щині від сил, що діють у зачепленні_____________________13 3.3.3. Опорні реакції та згинальні моменти у горизонтальній площині від сил, що діють у зачепленні__________________13 3.3.4. Результуючий загальний момент від сил, що діють у зачепленні, у небезпечному перерізі, що проходить через середину колеса______________________________________13 3.3.5. Приведений (еквівалентний) момент у небезпечному пере- різі, що проходить через середину колеса________________13 3.3.6. Діаметр вала під колесом______________________________13 3.3.7. Розмір діаметру вала на опорах А та В___________________13 3.4. Виконання шестірні_______________________________________ 15 4. Підбор підшипників кочення_____________________________________15 4.1. Швидкохідний вал_________________________________________15 4.1.1. Радіальне навантаження на підшипники, тобто опорні реакції на сили, що діють у зачепленні та в муфті________________15 4.1.2. Осьове навантаження_________________________________15 4.1.3. Еквівалентне динамічне навантаження__________________ 15 4.1.4. Номінальна довговічність_____________________________ 15 4.2. Тихохідний вал___________________________________________ 16 4.2.1. Визначення радіальних навантажень на підшипники_______16 4.2.2. Осьове навантаження_________________________________16 4.2.3. Еквівалентне динамічне навантаження__________________ 16 4.2.4. Номінальна довговічність_____________________________ 16 5. Вибір шпонки_________________________________________________ 16 6. Змащування редуктора__________________________________________17 6.1. Вибір системи змащування зачеплення та підшипників кочення__ 17 6.2. Необхідна в’язкість та сорт масла____________________________17 6.3. Глибина занурення колеса в олію____________________________ 17 7. Корпус редуктора______________________________________________ 17 7.1. Матеріал корпуса редуктора________________________________ 17 7.2. Розміри корпуса___________________________________________17 7.2.1. Товщина стінки корпуса______________________________ 17 7.2.2. Товщина масляної ванни______________________________ 17 7.3. Кріплення корпуса________________________________________ 17 7.4. Гнізда кріплення підшипників_______________________________17 8. Кришки підшипників___________________________________________ 18 Список використаної літератури______________________________________19 ЗАВДАННЯ Спроектувати одноступінчастий косозубий мікроредуктор для привода стрічкопротягувального механізму. ВИХІДНІ ДАНІ Діаметр барабана в = 30 мм Швидкість барабана V = 950 мм / с Окружне зусилля барабана P = 60 Н Умови роботи: обертання нереверсивне, навантаження нерівномірне, задане графіком (Рисунок 1.).
Рисунок 1. – Графік нерівномірного навантаження Термін служби - 5 років при однозмінній роботі 7 годин на добу. Число робочих днів у році - 250. 1. КІНЕМАТИЧНИЙ РОЗРАХУНОК Вибір кінематичної схеми мікроредуктора (Рисунок 1.1) Рисунок 1.1 – Кінематична схема мікроредуктора 1.2. Вибір електродвигуна а) Для приблизного визначення ККД мікроредуктора приймемо орієнтовно ККД однієї пари зубчастих коліс при роботі в масляній ванніТоді ККД микроредуктора дорівнює: б) Потужність на ведучому валу: в) Вибираємо електродвигун серії 4А, номінальна потужність якого Nдв.=60 Вт, число обертів nдв=2700об./хв. 1.3. Вибір передавального числа мікроредуктора i = n2 – число обертів веденого вала, об./хв. Отже : Відповідно до ДСТУ приймаємо і=4.5 1.4. Похибка передавального числа що не перевищує допустимого значення . 1.5.Число обертів тихохідного вала 2. РОЗРАХУНОК НА МІЦНІСТЬ ЗУБЧАСТОЇ ПАРИ 2.1. Вибір матеріалу колеса Матеріал зубчастих коліс повинен витримувати дотичні та згинальні напруження зубців. Дотичні напруження визначаються тільки твердістю поверхні матеріалу, а згинальні залежать також від твердості серцевини колеса. Найкращим матеріалом, що відповідає вищезазначеним вимогам, є термічно оброблена сталь. Матеріал коліса: сталь 45Х Матеріал шестірні: сталь 40Х, термообробка забезпечує поліпшення її характеристик до твердості НВ = 246ч280 ; σміц = 1000 Мпа ; σтек=800 МПа 2.2 Визначення допустимого дотичного напруження Допустиме дотичне напруження зубчастого колеса залежить від строку служби і режиму роботи передачі. При розрахунку на витривалість :
σHlimb – базова межа дотичної витривалості поверхні зубців; ZR – коефіцієнт, що враховує шорсткість поверхні та вибирається залежно від класу її шорсткості (для нашого проекту приймаємо 7-й клас та ZR=1); SH – коефіцієнт безпеки, який для об’ємно-зміцнених зубців приймають 1,1, а для поверхнево-зміцнених – 1,2; KHL – коефіцієнт довговічності, який для нашого випадку приймаємо рівним 1; При незмінному числі обертів ni = n тривалість роботи tі є відношенням до загальної кількості годин роботи передачі, яка дорівнює добутку кількості годин роботи за зміну, кількості змін за добу, кількості робочих днів на рік та кількості років роботи передачі: t=712505=8750 годин Для колеса:
2.3.Коефіцієнт ширини колеса В одноступінчастому мікроредукторі опори симетричні щодо колес, тому обираємо ψа= 0,2 . 2.4. Коефіцієнт навантаження Розрахункове навантаження визначається як добуток двох коефіцієнтів
де
тому 2.5. Номінальний момент, що крутить, на веденому валу
Визначаємо міжосьову відстань:
де [σк]=500 МПа – контактна напруга між шестірнею і колесом
Приймаємо а =25 мм. 2.6. Ширина коліс b2 = аa = 0,225= 5 мм Конструктивно приймаємо: b2 = 7 мм b1 = b2 + 1 = 7+ 1 = 8 мм 2.7. Нормальний модуль зубчастої пари mn = (0,010,02)a = 0.01.40 = 0,25 мм Значення модуля приймаємо : mn = 0,25 мм. 2.8. Визначення числа зубців шестірні і колеса Приймаємо попередньо кут нахилу зубців = 10:
Приймаємо Z1 = 36 Число зубців колеса визначаємо за формулою: Z2 = Z1i = 36ּ4.5 = 162 Приймаємо Z2 = 162 Визначимо остаточне значення кута нахилу зубців. тобто β = arccosβ = 8.6° Визначимо осьовий коефіцієнт перекриття для даного кута 2.9. Визначення еквівалентних чисел зубців Визначимо еквівалентні числа зубів За значенням еквівалентних чисел зубів виберемо значення коефіцієнтів форми зубів: Yf1 = 3,73; Yf2 = 3,75 2.10. Визначення коефіцієнту Yβ Коефіцієнт Yβ враховує нахил дотичної лінії до основи зубця, нерівномірність епюри навантаження та роботу зубця як пластини, а не як балки. Коефіцієнт, що враховує розподіл навантаження між зубами
таким чином
Визначимо дійсні місцеві напруження згину в зубцях. Через те що матеріал шестірні міцніший, ніж матеріал колеса, а зубець шестірні тонший біля основи, ніж у колеса, розрахунок роблять по тому з зубчастих коліс, у якого менше відношення:
Розрахунок виконуємо по колесу
f2 = 64 МПа f2 < [f2] = 160 МПа Умови міцності дотримуються. 2.11. Визначення геометричних розмірів коліс a) Коловий модуль: приймаємо mt=0,25 мм b) Початкові діаметри: Шестірня : Колесо : c) Перевіряємо правильність підрахунку початкових діаметрів: d) Діаметри кола виступів: Шестірня : da1 = dω1+2·mn=9 + 20,25 = 9,5 мм Колесо : da2 = dω2 + 2mn = 40,5+ 20,25 = 41 мм e) Діаметри западин: Шестірня : df1 = dω1 - 2,5mn = 9- 2,50,25 = 8,5 мм Колесо : df2 = dω2 - 2,5mn = 40,5 - 2,50,25 = 40 мм 3. РОЗРАХУНОК ВАЛІВ НА МІЦНІСТЬ 3.1. Зусилля в зачепленні Колове зусилля :
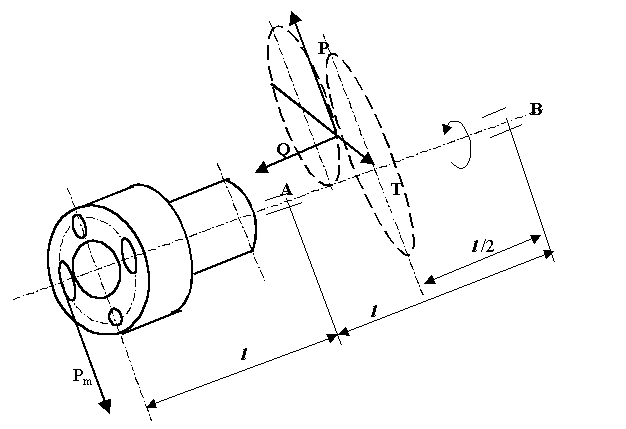
де Мкр.1 – крутильний момент, що передається швидкохідним валом. Радіальне зусилля: Осьове зусилля: 3.2. Швидкохідний вал Схема навантаження вала представлена на Рисунку 3, а розрахункова схема епюри моментів швидкохідного вала – на Рисунку. 4. 3.2.1. Вибір матеріалу вала Приймаємо сталь 45, поліпшену з наступними механічними характеристиками. міц = 560 Мпа ; т = 280 Мпа ; т = 150 Мпа ; -1 = 250 МПа ; -1= 150 МПа ; ψσ=0 ; ψτ=0 Допустиме напруження [σ]згIII=55 МПа 3.2.2. Вибір муфти, визначення зусилля від муфти Рисунок 3. – Схема навантаження швидкохідного валу Відповідно до крутильного моменту Мкр1=0,2 Нм обираємо мембранну муфту. Потрібна нам характеристика цієї муфти : D3 =38 мм Зусилля від муфти, що діє на вал:
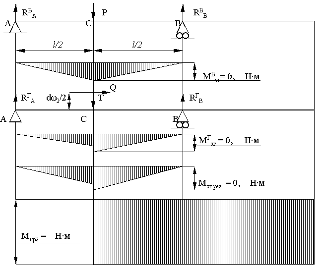
Відстань між опорами вала для приблизного розрахунку : l 2b2 = 27 = 14мм Довжина консольної ділянки вала орієнтовано : l1 1,5b2 = 1,57 = 10,5мм 3.2.4.Опорні реакції та згинальний момент у вертикальній площині від сил, щодіють у зачепленні Максимальний згинальний момент у небезпечному перерізі, що проходить через середину шестірні: Рисунок 4. – Розрахункова схема й епюри швидкохідного валу
3.2.5. Опорні реакції та згинальний момент у горизонтальній площині
Максимальний згинальний момент у небезпечному перерізі, що проходить через середину шестірні.
3.2.6. Результуючий згинальний момент від сил, що діють у зачепленні, у перерізі, який проходить через середину шестірні 3.2.7. Опорні реакції і згинальні моменти від сили, що діє в муфті
Максимальний згинальний момент у небезпечному перерізі, що проходить через середину опори А: Мзг.АРм = РМl1 = 30,0105 = 0,032 Нм Згинальний момент у перетині, що проходить через середину шестірні. МзгРм = 0,5Мзг.АРм = 0,50,032= 0,016 Нм 3.2.8. Сумарний максимальний згинальний момент у перерізі, що проходить через середину шестірні, від сил, що діють у зачепленні та від муфти МΣ = Мрез + МзгРм =0,18 + 0,016 = 0.2 Нм 3.2.9. Приведені (еквівалентні) моменти у небезпечних перерізах вала а) Що проходять через середину шестірні: де - коефіцієнт, що враховує різницю в режимах навантаження (α=0,58 ) б) Що проходять через середину опори А: 3.2.10. Діаметр вала під шестірнею
Отриманий діаметр dc вала слід збільшити на 10% у зв’язку з наявністю шпонкової канавки, а потім округлити його до стандартного значення з нормального ряду діаметрів: dc= 0,351,1=0,385 см , приймаємо dc = 4мм 3.2.11. Діаметри вала під підшипники Приймаємо стандартне значення діаметра вала під підшипники: da = 3 мм 3.3. Тихохідний вал Схема навантаження тихохідного вала представлена на Рис. 5, а розрахункова схема й епюри моментів тихохідного вала – на Рисунку 6. 3.3.1. Вибір матеріалу вала Для тихохідного вала обираємо ту ж сталь 45, що й для швидкохідного вала. Механічні характеристики й допустимі напруження ті ж самі. 3.3.2. Опорні реакції та згинальні моменти у вертикальній площині від сил, що діють у зачепленні, Вони мають ті ж значення, що й для ведучого вала 3.3.3. Опорні реакції та згинальні моменти у горизонтальній площині від сил, що діють у зачепленні
Максимальний згинаючий момент у небезпечному перерізі, що проходить через середину колеса:
3.3.4. Результуючий загальний момент від сил, що діють у зачепленні, у небезпечному перерізі, що проходить через середину колеса
3.3.5. Приведений (еквівалентний) момент у небезпечному перерізі, що проходить через середину колеса
3.3.6. Діаметр вала під колесом Отриманий діаметр dс вала слід збільшити на 10% у зв’язку з наявністю шпонкової канавки а потім округлити його до стандартного значення з нормального ряду діаметрів, враховуючи при цьому необхідність одержання ступінчастої конструкції вала: dc=0,47 1,1=0,52 см =5.2мм , приймаємо dс =6 мм 3.3.7. Розмір діаметру вала на опорах А та В Для одержання ступінчастої конструкції приймаємо 4 мм, що відповідає розмірам внутрішніх кілець стандартних підшипників кочення Рисунок 5. – Схема навантаження тихохідного валу 3.4. Виконання шестірні Через те, що У даному випадку виконуємо конструкцію «вал – шестірня». Зниження розмірів валу під підшипники в зв'язку з заміною стали марки 45 на більш міцну 40х поки до вибору підшипників не робимо, тому що останні можуть виявитися недостатньо довговічним. Вал – шестірня
Рис.4.2. Колесо Розміри колеса.Розміри елементів колеса визначаються за наступними електричними залежностями. Це враховує досвід виробництва й експлуатації зубчастих коліс. Товщина диска: C = (0,2...0,3)b2=0,37=2.1мм Товщина обода: = (2...3,3)mt=30,25=0.75мм Діаметр обода: D0 = df2 - 2 = 40- 20,75 = 38.5 мм Діаметр маточини: dст = (1,5...1,8)dc=1,66=9.6мм Довжина маточини: L = (0,7...1,8)dc=1,25=7мм Діаметр отворів: d0 = = Діаметр центрів отворів: dц = 4. ПІДБОР ПІДШИПНИКІВ КОЧЕННЯ При виборі типу і розмірів підшипника враховуються наступні фактори: 1) величина і напрям навантаження на підшипник; 2) характер навантаження; 3) число обертів підшипника; 4) необхідний термін роботи підшипника; 5) вимоги до підшипника, зумовлені конструктивними особливостями вузла машини. З огляду на невелику величину осьового навантаження, для ведучого і відомого валів вибираємо шарикоподшипники радіальні однорядні. 4.1. Швидкохідний вал 4.1.1. Радіальне навантаження на підшипники, тобто опорні реакції на сили щодіють у зачепленні та в муфті
4.1.2. Осьове навантаження Fа = Q = 6.5 Н 4.1.3. Еквівалентне динамічне навантаження Еквівалентне динамічне навантаження для радіальних шарикопідшипників і радіально-наполегливих шарико- і роликопідшипників: де Fr – радіальне навантаження, кгс; Fa – осьове навантаження, кгс; X – коефіцієнт радіального навантаження; Y – коефіцієнт осьового навантаження; V – коефіцієнт обертання, у нашому випадку він дорівнює 1 Kб – коефіцієнт безпеки, що враховує вплив динамічного навантаження на довговічність підшипника; KТ – температурний коефіцієнт, що враховує вплив температури на довговічність підшипника, вводиться тільки при підвищеній робочій температурі t>100. Розрахунок ведемо по більш навантаженому підшипнику Визначаємо:
тобто менше за будь-яке значення параметра е для підшипників типу 0000. Розрахунок ведемо на дію наче одного радіального навантаження, тобто приймаємо X=1 , Y=0: Р1 = XVFr1kбkт де kб=1,1...1,3 , а kт=1 , тому Р1 = 11,33011 = 39 Н На підставі розрахунку швидкохідного вала на міцність приймаємо підшипник № 1000093, у якого : d=3мм ; D=8 мм ; B=3мм ; С=440 Н . 4.1.4. Номінальна довговічність
Підшипники будуть працювати беззмінно більше, ніж гарантований строк служби редуктора (8750 годин). 4.2. Тихохідний вал 4.2.1.Визначення радіальних навантажень на підшипники Тобто визначимо опорні реакції
4.2.2. Осьове навантаження Fа = Q = 34,1 Н 4.2.3. Еквівалентне динамічне навантаження
Еквівалентне динамічне навантаження для радіальніх шарикопідшипників і радіально наполенливих шарико і роликопідшипників: P=(XVFr + YFa)KTKσ Розрахунок ведемо на дію одного радіального навантаження, тобто приймаємо X=1, Y=0. Р2 = XVFr2kбkт = 11291,31= 38 Н На підставі розрахунку тихохідногоохідного вала на міцність, обираємо однорядний шарикоподшипник типу 1000094. Розміри підшипника наступні: d=4мм ; D=11мм ; B=3мм ; C=750 Н . 4.2.4. Номінальна довговічність Підшипники будуть працювати беззмінно значно більше, ніж гарантований строк служби редуктора (8750 годин). 5. ВИБІР ШПОНКИ Шпонка веденого вала під колесом За значенням діаметра вала під колесом d=5мм, обираємо шпонку призматичну з наступними характеристиками: l = 7 мм; b = 2мм; h = 2мм. Перевіримо шпонку на зминання: см []см []см = 100 МПа 53 МПа <100 МПа Дана шпонка задовольняє умовам міцності. 6. ЗМАЩУВАННЯ РЕДУКТОРА 6.1. Вибір системи змащування зачеплення та підшипників кочення У редукторах загального призначення з коловою швидкістю коліс до 15м/с змащування зачеплення звичайно здійснюється зануренням зубчастих коліс у масляну ванну. Визначимо колову швидкість колеса:
Оскільки колова швидкість колеса менше 15м/с, приймаємо систему змащування зубців занурюванням у мастильну ванну. 6.2. Необхідна в’язкість та сорт масла Змащування підшипників кочення здійснюються розбризкуванням, тому що колова швидкість колеса менше 3 м/с. Для змащування зачеплення і підшипників кочення обираємо змащування «Літол-24» . 6.3. Глибина занурення колеса в олію Ємність масляної ванни для одноступінчастих редукторів обирається в межах (0,15...0,7) л на 1квт подоланій потужності V = 0,15N2 = 0,150,057 = 0,00855 л = 8.6 см3 h = 2,25mn = 2,250,25 = 0,56 мм 7. КОРПУС РЕДУКТОРА 7.1. Матеріал корпуса редуктора Відповідно до рекомендацій, корпус виготовляємо литтям із силуміну ЧЕРВОНИЙ-9 . 7.2. Розміри корпуса 7.2.1.Товщина стінки корпуса = 0,025а + 2 = 0,025 + 2 2.63 мм 7.2.2.Товщина масляної ванни
7.3. Кріплення корпуса Діаметр отворів під гвинт кріплення редуктора до фундаменту в = 4,2 мм.Діаметр отворів для кріплення корпусних кришок d1 = 3,2 мм. Болт має різьблення М3, тому, згідно ДСТУ, обираємо болт М3 х 10 Діаметр отворів для кріплення кришок підшипників в = 2,7 мм. Гвинт має різьблення М2,5, тому, згідно ДСТУ, обираємо гвинт М2,5 х 4 Діаметр штифта в = 2 мм, тому, згідно ДСТУ, обираємо штифт 2 х 8 7.4. Гнізда кріплення підшипників Внутрішні діаметри підшипників Для швидкохідного вала: D1 = 8 мм Для тихохідного вала: D1'= 11 мм Діаметри центрів отворів під гвинт кріплення кришок підшипників : Для швидкохідного вала: D2 = D1 + 2,5 d1 = 11 + 2,5 2,5 = 14.25 мм Для тихохідного вала: D2'=D1' + 2,5 d1 = 11 + 2,5 2,5 = 17.25 мм Зовнішні діаметри приливкових гнізд: D3 = D1 + 5 d1 = 8 + 5 2,5 = 20.5 мм D3' = D1' + 5 d1 = 11 + 5 2,5 = 23.5 мм Глибина нарізки під кришковий болт. L = (1,8...2)d1=2 2,5 = 5 мм 8. КРИШКИ ПІДШИПНИКІВ. Товщина фланцв bk та завзятих кілець дорівнює: bk = d1 = 2,5 мм = 0,5 bk = 0,5 2,5 = 1,25 мм Розміри сальникового ущільнення.Ведучий вал Внутрішній діаметр – 3мм; Зовнішній діаметр – 8мм; Товщина – 1,5мм Відомий вал Внутрішній діаметр – 4мм; Зовнішній діаметр – 11 мм. СПИСОК ВИКОРИСТАНОЇ ЛІТЕРАТУРИ 1. Осипова О. М. Методические указания к выполнению курсового проекта по расчету и конструированию зубчатых передач. – Д.: ДГУ, 1978. 2. Анурьев В. И. Справочник конструктора-машиностроителя: В 3-х т. – М.: Машино- строение, 1980. 3. Плюснин А. К., Ердаков В. И., Пин Л. Г. Проектирование механических передач приборов. – М.: Высшая школа, 1967. 4. Спицын Н.А. и др. Расчёт и выбор подшипников качения. Справочник. – М.: Машиностроение, 1974. 5. Решетов Д.Н. Детали машин. – М.: Машиностроение, 1975. Міністерство освіти і науки України Дніпропетровський національний університет Мікроредуктор Розрахункова-пояснювальна записка МРБ 00.000 РПЗ Виконавець: Раскін А. М. Липня 2003 Керівник: Логвіненко Є.О. Липня 2003 Дніпропетровськ 2003 |


,

, де
>1,1
;
.
22,25 Н



