Курсовая работа: Автомобильные и железные дороги
|
Название: Автомобильные и железные дороги Раздел: Промышленность, производство Тип: курсовая работа | |||||||||||||||||||||||||||||||||||||||||||||||||||||||||||||||||||||||||||||||||||||||||
Курсовая работа студента группы 3012/1 Санкт-Петербургский Государственный Политехнический Университет 2003 Автомобильные дороги I. Определение требуемых параметров дороги Технические параметры, значения которых должны быть выдержаны при проектировании автомобильной дороги для обеспечения безопасности движения по ней, приведены в табл. 1. Они зависят от категории автомобильной дороги, которая является обобщенным показателем степени ее капитальности. При выполнении курсовой работы, после установления категории дороги находим значения технических параметров СНиП и заносим их в пояснительную записку, кроме того определяем параметры дороги расчетом на движение принятых транспортных средств с расчетной скоростью, установленных СНиП для дороги данной категории. В работе принимаем значения, удовлетворяющие требованиям СНиП и расчетам. Таблица 1
1. Установление категории дороги. В соответствии со СНиП II-Д. 5-72 категория автомобильной дороги зависит от интенсивности движения по ней. Поскольку обычно интенсивность движения в период возведения объектов больше, чем в период их эксплуатации, при выполнении задания за расчетный принимается период строительства объекта. Ожидаемая интенсивность движения в период строительства объекта определяется по формуле:
где q=90000 - количество грузов, перевозимых на 1 млн. руб. сметной стоимости строительно- монтажных работ, т; С = 170 - сметная стоимость строительно-монтажных работ по объекту, млн. руб.; Т = 2 - срок строительства объекта, годы; n = 365 - число рабочих дней в году; Кпр = 0.6 - коэффициент использования пробега автомобиля; Кгр = 0.8 - коэффициент использования грузоподъемности автомобиля; Г = 15 - грузоподъемность автомобиля, т. По интенсивности движения N в соответствии с приведенной в табл.1 СНиП классификацией автомобильных дорог определяем, что дорога III категории. 2. Установление параметров дороги по СНиП. В табл. 3, 4, 9, 10, 25 СНиП даны основные параметры автомобильных дорог в зависимости от их категории. Они приведены в пояснительной записке в форме табл.1. 3. Определение параметров дороги расчетами. 3.1 Установление числа полос движения Число полос движения определяется из сопоставления ожидаемой часовой интенсивности движения по дороге и пропускной способности одной полосы движения по формуле:
где n – число полос движения; Nч - часовая интенсивность движения, авт./час; Nп - пропускная способность полосы движения, авт./час. С учетом неравномерности движения в течение суток: Nч =N/10=2911/10=291,1 авт/час Пропускной способностью полосы движения называется количество автомобилей, которые могут проехать по ней в течение одного часа при обязательном условии обеспечения безопасности движения. В курсовой работе используется упрощенная динамическая модель транспортного потока, согласно которой автомобили перемещаются по полосе движения друг за другом, без обгона и с постоянной скоростью. В этом случае пропускную способность полосы движения можно определить по формуле: Где v = 100 - расчетная скорость движения, км/час; = 0,5- коэффициент сцепления; f = 0,02 - коэффициент сопротивления качению; l2 = 15 - длина автомобиля, м; lо = 10- запас расстояния, м; Кэ = 1,4- коэффициент эксплуатационного состояния тормозов. 3.2 Определение ширины проезжей части, полосы движения и земляного полотна. Ширина проезжей части b вычисляется по формуле: b = bп n = 3,55 2 = 7,1 м., где bп - ширина полосы движения, м (рис. 1.1) n = 2 - количество полос движения. Ширина полосы движения: bп = а + 2 х =2,75 + 2 0.4 = 3,55 м., где а = 2,75 - ширина кузова автомобиля, м; х - расстояние от кузова до обочины или смежной полосы движения, м; Величина х устанавливается по эмпирической зависимости:
Ширина земляного полотна: В = b + 2 t = 7,1 + 2 2,5 = 12,1 м., где t = 2,5 м - ширина обочины, принимаемая по СНиП(табл.4). Рис. 1.1. Определение ширины полосы движения 3.3 Определение наименьших радиусов кривых в плане Проезжая часть автомобильной дороги на кривой в плане может иметь либо двухскатный поперечный профиль, либо односкатный, называющийся виражом. Наименьший радиус кривой в плане, при котором применяется двухскатный профиль при данной расчетной скорости движения находится по формуле:
где n = 0,1 -коэффициент сцепления колеса с дорогой в поперечном направлении; in = 20 ‰ - поперечный уклон проезжей части. При назначении радиусов поворота, меньших RH , необходимо предусматривать устройство виража. При значительном уменьшении радиуса поворота центробежная сила возрастает настолько, что вираж уже не обеспечивает устойчивости автомобиля против бокового скольжения. Это наименьшее значение радиуса поворота автомобильной дороги с виражом вычисляется по формуле:
где iB = 40 ‰ - уклон виража (СНиП, п.3.18). При устройстве виража длина отгона L определяется по выражению:
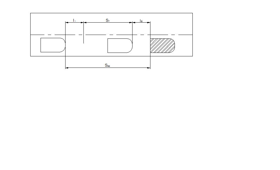
где i пр = 0.02 -дополнительный продольный уклон отгона виража (СНиП, п.3.29). Рис. 1.2. Схема отгона виража 3.4 Видимость пути Для обеспечения безопасности движения с расчетной скоростью водитель должен видеть дорогу на определенном расстоянии, называемом расстоянием видимости поверхности дороги (рис. 1.3), которое равно: SВД = l1 +ST +l0 = 27,8 + 106 + 10 = 143,8 м, где l1 =v/3,6 - путь, проходимый автомобилем за время реакции водителя, равное 1сек; Sт - длина тормозного пути: lо - запас расстояния (5-10м)
Рис. 1.3. Схема видимости поверхности дороги 3.5 Определение наименьших радиусов вертикальных кривых. Наименьший радиус выпуклой кривой устанавливается из условий видимости дороги:
где d=1,2 м - высота луча зрения водителя над поверхностью дороги. Наименьший радиус вогнутой кривой определяется из условия ограничения величины центробежной силы:
3.6 Определение уширения проезжей части на кривых Величина уширения устанавливается для принятых в проекте радиусов поворота (рис. 1.4). При движении по кривой ширина проезжей части, занимаемой автомобилем, увеличивается (рис. 1.5). Она находится по формуле:
где L = 12 - расстояние между задней осью и передним буфером автомобиля; К = 563 - радиус кривой. Учет зависящих от скорости движения отклонений автомобиля от средней траектории производится по эмпирической формуле:
eП = 2 (е+ еV ) = 2 (0,128 + 0,21) = 0,676 м Рис. 1.4. Схема поворота автомобиля
Рис. 1. 5. Отвод уширения проезжей части 3.7 Определение максимального продольного уклона дороги Максимальный продольный уклон устанавливается по условиям сцепления ведущих колес автомобиля с покрытием при трогании с места. По условиям сцепления при трогании с места: imax = -f – j = 0,5 – 0,02 – 0,24 = 0,24 где - коэффициент сцепного веса - отношение веса, приходящегося на ведущие оси ко всему весу автомобиля; j-коэффициент сопротивления инерции:
где а = 0,5-ускорение; g = 9,8- ускорение силы тяжести; - коэффициент, учитывающий инерцию вращающихся частей автомобиля; = 1 + 0,06 K2 = 1 + 0,06 7,822 = 4,67 где К = 7,82-передаточное число в коробке скоростей. II Гидравлические расчеты водопропускных сооружений 1. Гидравлический расчет трубы Гидравлический расчет трубы включает в себя определение: -диаметра трубы и типа укрепления русла; -высоты подпора воды и высоты насыпи над трубой; -длины трубы, Расчет безнапорных труб производится по табл. П-15 [2], которая составлена из условия, что трубы имеют уклоны, не менее критического iкр . Практически трубы укладываются по уклону местности. Так как он меньше критического более чем в два раза, то подпор, полученный по таблице, увеличивается на величину: l ∙ (iкр - iо ) = 19,4 (0,007-0) = 0,14 м, где l = 19,4 -длина трубы, м; iо = 0-уклон трубы; iкр = 0,007-критический уклон. Так как тип оголовка I и Qр = 1,9 м3 /с, то принимаем в = 1,25 м, Н = 1,26 м, v = 2,5 м/с, с учетом 1 (iкр -iо ), Н = 1,40 м. По скорости протекания воды (табл. П-16) [2] назначается тип укрепления русла -каменная наброска из булыжника или рваного камня. Определяем высоту насыпи над трубой Ннас. Бровка земляного полотна на подходе к трубе возвышаться на 0,5 м над расчетным горизонтом с учетом подпора. Высота насыпи должна обеспечивать размещение над трубой дорожной одежды; в итоге получаем: Ннаc = в +0,5 + hдорожной одежды = 1,25 + 0,5 + 0,68 = 2,43 м Длина трубы определяется по выражению: l = В + 2m Ннас = 12,1 + 2 1,5 2,43 = 19,4 м, где m = 1,5-коэффициент крутизны откоса насыпи Из таблицы П-17 [2] находим: - толщину звена = 0,12 м; - длину оголовка = 2,26 м. 2. Расчет отверстия малого моста 2.1 Определение бытовой глубины Бытовую глубину устанавливают подбором положения горизонта высоких вод. Для этого задаются каким-либо значением бытовой глубины hб = 1,05 м, определяют площадь живого сечения , смоченный периметр р и гидравлический радиус R:
где i1 = 0,1; i2 = 0,06 - уклоны (рис 2.1)
Далее по формуле Шези вычисляем бытовую скорость:
где ip = 0,007-уклон русла.
где n = 0,04 - русловой коэффициент, устанавливаемый по табл.; у = 0,25 - показатель степени. Зная площадь сечения и скорость в бытовых условиях, находят расход: Q = ω∙vб = 14,7∙1,3 = 19,11 м3 /сек Полученный расход Q сравнивают с расчетным Qр . При отличии Q от Qр , менее 10 % принимаем назначенную бытовую глубину и скорость за действительные: (Q-Qp )/Qp ∙100% = 0,6%
Рис. 2. 1. Живое сечение мостового перехода 2.2 Установление схемы протекания воды под мостом Для установления схемы протекания воды под мостом (рис. 2.2) необходимо знать критическую глубину потока:
наброска из булыжного камня; g = 9,8-ускорение силы тяжести. Так как hб = 1,05<1,3∙hк = 1,53 то истечение свободное и водослив незатопленный (рис.2.2.). Рис. 2.2. Схема протекания воды в русле (незатопленный водослив) 2.3 Определение величины отверстия моста При свободном истечении отверстие моста на уровне свободной поверхности определяют по формуле:
где = 0,9-коэффициент сжатия потока, зависящий от формы устоев. Полученную величину округляем до типового размера Bтип = 6 м. 2.4 Уточнение расчетных данных Определим фактическую скорость под мостом:
Определим глубину потока под мостом:
Глубина потока перед сооружением:
где = 0,9 - коэффициент скорости, зависящий от формы опор. 2.5 Определение высоты и длины моста (рис. 2.3) Наименьшая высота моста находится по выражению: Нм = Н + Z + К = 1,74 + 0,75+ 0,96 = 3,45 м, где Z = 0,75- наименьшее возвышение низа пролетного строения над ГВВ; К = 0,96- конструктивная высота моста;
LМ = B + 2 ∙ m ∙ HM +∑d +2p + 2q = 6 + 2 ∙ 1,5 ∙ 3,45 + 2 ∙ 0,1 + 2 ∙ 0,3 = 17,15 м, где В = 6- отверстие моста; m = 1,5- коэффициент крутизны откоса насыпи; Нм = 3,45- высота моста; d = 0- ширина промежуточной опоры; р = 0,1- расстояние от передней грани устоя до основания насыпи; q = 0,3- расстояние от задней грани устоя до вершины откоса насыпи. Рис. 2.3. Схема малого моста при устоях с обратными стенками III Проектирование продольного профиля земляного полотна, водоотвода 1 Проектирование продольного профиля. Продольный профиль содержит линию поверхности земли (черный профиль), рельеф местности по оси дороги, грунтовый и гидро-грунтовый разрез и проектную линию (красный профиль). В целом продольный профиль характеризует геологические условия и высотное положение бровки земляного полотна. Высотное положение бровки относительно линии поверхности земли, оцениваемое рабочими отметками, в решающей мере определяет эксплуатационные, прочностные и экономические показатели дороги, а также ее долговечность. Для получения оптимальных результатов при проектировании продольного профиля должны быть обеспечены: -необходимые условия для движения автомобилей и экономически эффективной работы автотранспорта; -плавность и безопасность движения автомобилей, достигающих расчетной скорости; -устойчивость, надежность и долговечность дороги; -бесперебойное функционирование дороги; -экономичность строительства дороги. Необходимые эксплуатационные условия обеспечиваются путем прокладывания проектной линии с пологими продольными уклонами. СНиП П-Д.5-72 рекомендует применять уклоны до 30%. При экономической нецелесообразности выполнения этой рекомендации из-за рельефа местности, допускается применять продольные уклоны, не превышающие следующих максимальных значений: при категории дороги III-50‰. Плавность движения автомобилей достигается вписыванием в переломы проектной линии круговых вертикальных кривых, а безопасность - назначением таких радиусов вертикальных кривых, которые обеспечивают расчетные расстояния видимости (на выпуклых переломах) и ограничивают центробежную силу в пределах 5% от веса автомобиля (на вогнутых переломах). Вертикальные кривые необходимо вписывать в переломы, где алгебраическая разность смежных уклонов i равна или превышает на дорогах III категории 10‰. Подъемы считаются положительными уклонами, спуски отрицательными. Величина i на переломах попутных уклонов (два подъема или спуска) определяется как разность сопрягаемых уклонов, а на переломах встречных уклонов (спуск и подъем, подъем и спуск)- как их сумма. Наименьшие значения параметров продольного профиля, при которых еще обеспечиваются плавность и безопасность движения автомобилей, приведены в таблице 10 СНиП. В проектах следует стремиться к применению возможно больших значений параметров - это повышает удобство и безопасность движения. 2 Требования к проектированию кюветов На вертикальных кривых кюветы повторяют реальное круговое очертание бровки земляного полотна. Проектирование кюветов производится в такой последовательности: 1. по величинам рабочих отметок устанавливаются места, где необходимо устройство кюветов. 2. задается уклон дна кювета и тип укрепления; 3. на чертеж вчерне наносится линия дна кювета; 4. аналитически определяется расстояние от ближайшего пикета до точек с нулевыми рабочими отметками и до точек пересечения дна кювета с черным профилем (для этого необходимо рассмотреть получившуюся на чертеже геометрическую фигуру: треугольник или трапецию, а так же составить и решить соответствующую пропорцию); 5. указываются проектные отметки дна кювета на всех его переломах, на пикетах и в местах выхода на поверхность; б. записываются проектные уклоны кюветов; 7. указываются расстояния между переломами и производится привязка к пикетажу точек начала и конца кювета, а также точек с нулевыми отметками; 8. выполняется проверка вычислений (отметки дна кюветов в местах выхода на поверхность должны соответствовать отметкам земли; разность между проектными отметками бровки земляного полотна и проектными отметками дна кювета должна быть равной принятой глубине кювета; кроме того, в соответствии должны находиться указанные расстояния, уклоны и отметки); 9. производится окончательное оформление чертежа и соответствующих граф. Проектные данные, относящиеся к кюветам, проставляются красной тушью. IV Конструкция дорожной одежды Дорожная одежда является наиболее ответственным элементом, поэтому от правильного ее проектирования зависят как прочность и долговечность, так и общая стоимость дороги. Нежесткими называются одежды, слои которых либо не обладают сопротивлением изгибу, либо обладают им в малой степени. При конструировании нежесткой одежды необходимо: -учесть назначение дороги, ее категорию, состав и интенсивность движения, удельное давление на покрытие и размер отпечатков пневматиков автомобилей, климатические и грунтово- гидрогеологические условия строительства, наличие дорожно-строительных материалов и их расчетные параметры; -определить рекомендуемый тип покрытия; -установить материал основания, а также необходимость введения в конструкцию морозозащитных и дренирующих слоев; -принять минимальную толщину конструктивных слоев по технологическим требованиям. Проектирование нежестких одежд состоит: 1. В выборе материалов конструктивных слоев, 2. Назначении числа этих слоев, 3. Размещении их в конструкции, 4. Определение толщины каждого слоя на основе прочностных расчетов, 5. Расчетов на морозоустойчивость. Из табл. 25 СНиП выбираем усовершенствованное капитальное из смесей асфальтобетона покрытие, укладываемое в теплом или холодном состоянии. Из методических указаний рис.24 выбираем асфальтобетонное покрытие на щебеночном основании (рис .4.1).
Рис 4.1. Схема дорожной одежды 1-Мелкозернистый асфальтобетон. 2-Крупнозернистый асфальтобетон. 3-Слой щебня, обработанного битумом. 4-Щебеночный слой. 5-Морозозащитный песчаный слой. Железные дороги I. Проектирование плана пути железной дороги на перегонах Основными целями при проектировании плана железной дороги являются обеспечение безопасности и высокой скорости движения поездов при минимальной стоимости строительных работ. Эти факторы определяют стоимость перевозок. Прямолинейное очертание пути в плане является наиболее рациональным с точки зрения безопасности и скорости, но значительно увеличивает стоимость работ. Исходя из этого, оптимальным является сочетание прямолинейных и криволинейных участков. Криволинейные участки выполняют в виде круговых кривых. При переходе поезда с прямолинейного участка на круговую кривую возникает центробежная сила, действующая на вагоны поезда и на локомотив, которая смещает равнодействующую сил, действующую на вагон к наружному рельсу. Для избежания этого наружный рельс на закруглении должен быть выше внутреннего на величину:
где l = 1,52 м-ширина колеи; v = 11,11 м/с - средневзвешенная скорость движения поездов различных категорий; R = 2000 м-радиус кривой в плане (табл.2) [З]. Поскольку невозможно сразу в начале круговой кривой повысить рельс на высоту h, это возвышение делается постепенно вдоль переходной кривой. С ее помощью осуществляется сопряжение прямолинейного участка с криволинейным (рис1.1). Радиус переходной кривой меняется от R = до R = Rкр . Переходную кривую разбивают по кубической параболе:
где q = const ≥ 10000 Уклон отвода возвышения определяем по формуле:
где vМАХ = 40 км/час- максимальная скорость движения поездов. Длина проекций переходных кривых равна:
где i = 2,5-уклон отвода возвышения в промилях.
x Рис 1.1. Эпюра отвода возвышения
I I . Расчет числа путей в районном парке и количества парков Расчет количества вагонов ведется для каждого рода грузов отдельно, исходя из характеристик выбранных типов специализированных вагонов для перевозки того или иного типа грузов. Среднесуточное количество вагонов, находящихся одновременно в порту и на железнодорожной станции, находится по формуле:
Здесь:
где β = 0,75 – коэффициент, учитывающий долю грузооборота, связанного с железной дорогой; q = 27 – средняя загрузка двухосного условного вагона; IН = 365 – навигационный период данного порта, в днях; К0 = 1 – коэффициент сдвоенных операций.
где IB = 365 – период поступления грузов в порт по железной дороге; α = 1 – среднесуточный коэффициент неравномерности железнодорожных перевозок в максимальный месяц работы по каждому роду груза.
Количество районных парков определяется по формуле: P = - 0,005 ∙ Г3 + 0,007 ∙ Г2 + 0,116 ∙ Г = - 0,005 ∙ 0,683 + 0,007 ∙ 0,682 + 0,116 ∙ 0,68 = 0,08 Примем Р = 1. Число путей в районном парке находим по зависимости:
где
mход = 1 – количество ходовых путей в районном парке; ni = 9 – количество передач в i-ый районный парк в сутки;
где Кпр = 3- количество причалов в порту; Г = 1- количество причалов, обслуживаемых одноразовой подачей. Полезная длина сортировочных путей на предпортовой станции и приемоотправочных путей в районном парке находится по формуле:
где lB = 8 - длина условного вагона; lЛОК = 7, 5 - длина локомотива; lНЕТ = 10 - запас на неточность установки; Количество приемоотправочных путей определяется по формуле:
где n1 = 10, n0 = 10- количество принимаемых и отправляемых передач; ξ = 0,5 - коэффициент использования пути; t1 , t2 - время, которое занимает один прибывающий или отправленный поезд: t1 = tп + tс = 10 + 50 = 60 мин, где tп =10 мин - время, затрачиваемое на прием поезда; tс = 50 мин - простой поезда на приемоотправочном пути от момента прибытия до взятия на сортировку. t2 = t0 + tс '= 10 + 50 = 60 мин где t0 = 0 мин - время, затрачиваемое на отправление поезда; tс '=50 мин - время стоянки состава приемоотправочных путях до момента отправления. Список литературы 1. Строительные нормы и правила. Автомобильные дороги. СНиП П-Д.5-72, Москва 1979 г. 2. Автомобильные дороги. Методические указания для курсового проектирования. Издание Санкт-Петербургского технического университета. 3. Железнодорожные пути портов. Методические указания для курсового и дипломного проектирования. Ленинград, 1978 г. |
|||||||||||||||||||||||||||||||||||||||||||||||||||||||||||||||||||||||||||||||||||||||||
авт/час.,
х = 0.004 v = 0.004 100 = 0,4 м

Полная величина уширения:


где vдоп
= 3,4-скорость потока, при которой не размывается грунт или укрепление русла-каменная 
Длину моста находим по формуле:
