Волнистость и шероховатость поверхности
Лекция
Волнистость и шероховатость поверхности
1 Общие понятия и определения
Волнистость и шероховатость поверхности - это периодически повторяющиеся выступы и впадины на поверхности. Отличие между погрешностями формы, волнистостью и шероховатостью можно условно разделить по отношению шага неровностей Sw к высоте неровностей Wz .
Если <50 то такие отклонения относят к шероховатости поверхности, если 50<<1000 - к волнистости, а при >1000 - к отклонениям формы. Естественно, что такое разделение не является строгим.
Шероховатостью поверхности называют совокупность неровностей с относительно малыми шагами, образующих рельеф поверхности детали и рассматриваемых в пределах базовой длины l.
Шероховатость обработанной поверхности является следствием пластической деформации поверхностного слоя при образовании стружки, копирования неровностей кромок режущего инструмента и трения его о деталь, вибраций, неоднородности материала заготовки и других причин. Количественно шероховатость поверхности устанавливается независимо от способа ее обработки.
2 Параметры шероховатости
ГОСТ 2789-73 предусматривает следующие параметры для оценки шероховатости поверхности детали: высотные:
Rа - среднее арифметическое отклонение профиля,
Rz - высота неровностей профиля по 10 точкам,
Rmax- наибольшая высота профиля; шаговые:
S- средний шаг неровностей профиля по вершинам,
Sm - средний шаг неровностей профиля по средней линии,
tp - относительная опорная длина профиля.
Определение этих параметров производится в пределах базовой длины.
Базовой линией (поверхностью) называется линия (поверхность) заданной геометрической формы, определенным образом проведенная относительно профиля (поверхности) и служащая для оценки геометрических параметров поверхности.
Базовая длина l - это длина базовой линии, используемая для выделения неровностей, характеризующих шероховатость поверхности, и для количественного определения ее параметров.
Базовые длины устанавливаются с учетом эксплуатационных особенностей. Так как базовая длина позволяет учесть только те неровности, шаг которых меньше базовой длины, то числовые значения базовых длин определяются по неровностям, свойства которых нормируются.
Для многих типов поверхностей, обработанных различными методами, неровности, относимые к шероховатости, имеют устойчивую связь средних шагов с высотными параметрами, что позволяет увязать значения базовой длины со значениями высотных параметров (табл. 1).
Таблица 1 - Соотношения параметров Rа, / Rz / Rmax и базовой длины l
|
Значение высотных параметров |
Базовая длина, l, мм |
|
|
Rа, мкм |
Rz, Rmax, мкм |
|
|
До 0,025 |
До 0,10 |
0,08 |
|
Св. 0,025 до 0,4 |
Св. 0,10 до 1,6 |
0,25 |
|
Св. 0,4 да 3,2 |
Св. 1,6 до 12,5 |
0,8 |
|
Св. 3,2 до 12,5 |
Св. 12,5 до 50 |
2,5 |
|
Св. 12,5 до 100 |
Св. 50 до 400 |
8 |
Профилограмма поверхности детали (графическое изображение действительного профиля, полученного в результате измерения) приведена на рис. 1.
Существует несколько систем определения числовых значений параметров шероховатости поверхности: система средней линии (система М), огибающей линии (система Е) и др.
По ГОСТ 2789-73 нормирование шероховатости основано на системе M, т. е. отсчет производят от единой базы, в качестве которой принята средняя линия профиля.
Средней линией профиля т называется базовая линия, имеющая форму номинального (геометрического) профиля поверхности и делящая действительный профиль так, что в пределах базовой длины l сумма квадратов расстояний y1, y2 … yn точек профиля до этой линии минимальна (рис. 1).
В системе М числовые значения параметров шероховатости определяются следующим образом.
Среднее арифметическое отклонение профиля Ra - среднее арифметическое из абсолютных значений отклонений профиля у в пределах базовой длины определяется по формуле Ra= или приближенно Ra =
(Обозначения величин, входящих в формулу, приведены на рис. 1
Рисунок 1 - Профилограмма и основные параметры шероховатости поверхности

Высота неровностей профиля по десяти точкам Rz - сумма средних арифметических абсолютных отклонений точек пяти наибольших минимумов Hi min и пяти наибольших максимумов Hi max профиля в пределах базовой длины l. Определяется по формуле:

где Hi max, Hi min - ординаты соответственно пяти высших и пяти низших точек в пределах базовой длины, измеренные от линии, эквидистантой средней линии и не пересекающей профиля.
Наибольшая высота неровностей профиля Rmax - расстояние между наивысшей точкой выступов и наинизшей точкой впадин профиля в пределах базовой длины
Rmax = Hi max Hi min
Средний шаг неровностей профиля по средней линии Sm - среднее значение шага неровностей в пределах базовой длины
Sm
где Smi - шаг неровностей, под которым понимается длина отрезка линии, ограниченная точками пересечения этой линией одноименных сторон соседних неровностей; n - число шагов в пределах базовой длины.
Средний шаг неровностей по вершинам S - среднее значение расстояний между вершинами характерных неровностей в пределах базовой длины

где п - число шагов неровностей в пределах базовой длины.
Опорная длина профиля p - сумма длин отрезков b, в пределах базовой длины, отсекаемых на заданном уровне р в материале выступов профиля линией, эквидистантной средней линии m:

где n - число отсекаемых отрезков в пределах базовой длины.
Уровень р сечения профиля - расстояние между линией выступа профиля и линией, пересекающей профиль эквидистантной линии выступов профиля.
Числовые значения уровня сечения профиля р выбирают из ряд; 5; 10; 15; 20; 25; 30; 40; 50; 60; 70; 80; 90 % от Rmax,
Относительная опорная длина tp профиля - отношение опорной длины профиля p к базовой длине l:
tp =
Относительную опорную длину tр выбирают из ряда: 10; 15; 20; 25; 30; 40; 50; 60; 70; 80; 90.
3 Обозначение шероховатости поверхностей
С учетом изменений, принятых Межгосударственным советом по стандартизации, метрологии и сертификации, структура обозначения шероховатости поверхности приведена на рис. 2.

Рисунок 2 - Структура условного обозначения шероховатости на чертежах
В обозначении шероховатости поверхности, вид обработки которой конструктором не устанавливается, применяют знак, указанный на рис. 3а.

Рисунок 3 - Условные знаки для обозначения шероховатости
В обозначении шероховатости поверхности, которая должна быть образована удалением слоя материала, например точением, фрезерованием, сверлением, полированием и т. п., применяют знак, указанный на рис. 3б
В обозначении шероховатости поверхности, которая должна быть образована без удаления слоя материала, например литьем, волочением, штамповкой и т. п., применяют знак, указанный на рис.3в. Этим же знаком обозначаются поверхности, которые не обрабатываются по данному чертежу.
Значение параметра шероховатости по ГОСТ 2789 указывают в обозначении шероховатости:

Рисунок 4 - Обозначение шероховатости при указании двух и более параметров
- для параметра Ra - без символа, например 0,1 (рис. 4);
- для остальных параметров - после соответствующего символа, например: Rmax 6,3; Sm 0,63; t50 70; S 0,032; Rz 32.
При указании наибольшего значения параметра шероховатости в обозначении приводят параметр шероховатости без предельных отклонений, например: .
При указании наименьшего значения параметра шероховатости после обозначения параметра следует указывать "min", например:
,
При указании диапазона значений параметра шероховатости поверхности в обозначении шероховатости приводят пределы значений параметра, размещая их в две строки, например:

В верхней строке приводят значение параметра, соответствующее более грубой шероховатости.
При указании номинального значения параметра шероховатости поверхности в обозначении приводят это значение с предельными отклонениями по ГОСТ 2789, например:

При указании двух и более параметров шероховатости поверхности в обозначении шероховатости значения параметров записывают сверху вниз в таком порядке (рис. 4):
- параметр высоты неровностей профиля (Ra не более 0,1 мкм). Значение базовой длины l не указано (принимается по табл. 1). Для 0,025 < Ra < 0,4 стандартная базовая длина равна 0,25 мм;
- параметр шага неровностей профиля (Sm от 0,063 до 0,040 мм на базовой длине 0,8 мм);
- относительная опорная длина профиля t50 80 ± 10 % на базовой длине 0,25 мм).
Вид обработки поверхности указывают в обозначении шероховатости только в тех случаях, когда он является единственным, применимым для получения требуемого качества поверхности (рис. 5).
Рисунок 5 - Обозначение шероховатости с указанием метода обеспечения требуемого качества поверхности

Рисунок 6 - Упрошенное обозначение шероховатости поверхности
Допускается применять упрошенное обозначение шероховатости поверхностей с разъяснением его в технических требованиях чертежа по примеру, указанному на рис. 6.
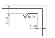
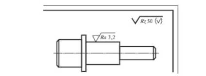
Обозначение шероховатости поверхностей на изображении изделия располагают на линиях контура, выносных линиях (по возможности, ближе к размерной линии) или на полках линий-выносок (рис. 7).
Допускается при недостатке места располагать обозначения шероховатости на размерных линиях или на их продолжениях, а также разрывать выносную линию (рис. 7).
При изображении изделия с разрывом обозначение шероховатости наносят только на одной части изображения, по возможности ближе к месту указания размера (рис.8).

Рисунок 8 - Обозначение шероховатости поверхности на выносных линиях и на полках линий-выносок

Рисунок 9 - Обозначение шероховатости при изображении изделия с разрывом

Рисунок 10 - Обозначение одинаковой шероховатости для всех поверхностей
При указании одинаковой шероховатости для всех поверхностей изделия обозначение шероховатости помешают в правом верхнем углу чертежа и на изображении не наносят (рис. 10).
Размеры и толщина линий знака в обозначении шероховатости, вынесенном в правый угол чертежа, должна быть приблизительно в 1,5 раза больше, чем в обозначениях, нанесенных на изображении.
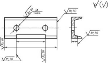
При указании одинаковой шероховатости для части поверхностей изделия в правом верхнем углу чертежа помешают обозначение одинаковой шероховатости и условное обозначение (рис. 11). Это означает, что все поверхности, на которых на изображении не нанесены обозначения шероховатости или знак, должны иметь шероховатость, указанную перед обозначением. Размеры знака, взятого в скобки, должны быть одинаковыми с размерами знаков, нанесенных на изображении.

Рисунок 11 - Обозначение одинаковой шероховатости части поверхностей
Когда часть поверхностей не обрабатывается поданному чертежу, в правом верхнем углу чертежа перед обозначением помешают знак (рис. 12).

Рисунок 12 - Обозначение шероховатости части поверхностей, не обрабатываемых по данному чертежу
Требования к шероховатости отдельных участков могут быть различными.
Стандартом предусмотрена возможность назначить также направленпе неровностей поверхности (рисок), условное обозначение которых при необходимости приводится на чертежах (табл. 2).
Таблица 2 - Направление неровностей, изображение и обозначение

Волнистость и шероховатость поверхности