Шанаты жндеуге арналан ондырылар
№13 Дріс Таырыбы: «Шанаты жндеуге арналан ондырылар»
13.1. Жалпы мліметтер мен сыныпталуы
Автомобиль Шана автомобильді базалы жне нды элементі болып саналады жне крделі айматы жйені райды.
азіргі заманы автомобильдерді шанатарына келесідей талаптар ойылады:
- беріктік, аттылы жне за мерзімділік;
- растыруы - шаната жне шаната сан сiп келе жатан жйелер жне автоклiктi агрегаттары, шанатара орналастырып бекiтедi габариттi лшемдердi натылы кйiнделер жне автоклiктi базасына жолаушылар жне жк шiн тiршiлiк кеiстiктi максимумы амтамасыз етуi керек-;
- енжар ауіпсіздік жол апты кезіндежолаушыны тіршілк кеістігі азаймауы тиіс, ал соы энергиясы алдын-ала аныталан куштік элементтерді деформациясына жмсалуы тиіс;
- эстетикалы рдайым ауысып отыратын «автомобиль сні», шанаты дизайны мен тстік безендіруге барлы жоары талаптар ойылуы.
Шанаты барлы талаптара сай етіп жасау аса курделі тапсырма. Заманауи апаратты технологиялар мен математикалы санау теориясыны соы элементтік дістерін олдану арылы шанаты крделі клемдік конструкцияларын жасауа ммкіндік береді.
Автоклiктi шанаты жндеуiнен кейiн бастапы сырт пiшiнiмен абылдауы ана емес, зіні брыны геометриясын длдiкпен алпына келтiруге мiндеттi. Е алдымен шанаты астыны кз бркеме геометриясы ескередi, бiра автоклiктi олдану кезiндегi анытайтын олдану кезiндегi асиеттерi жне оны ауiпсiздiгi, шанаты астына йткенi тап салпыншаты барлы элементтерi жне оны здерiн бекiтедi негiзгi жктеменi алып жредi.
Шанатарыны жндеуi бойынша сапалы жмыс жасауларын шарт мамандандырылан жне келесi топтар бойынша блiп беруге болан арнайы жабдыты сзсiз олдану ке номенклатуралары болып табылады:
- шашып-жинау жне слесарлы-монтажды жмыстара арналан механикаландырылан жне мбебап аспап;
- олды жне механикаландырылан кескіш аспап;
- пісіру жмыстарын жргізуге арналан аспаптар мен ондырылар;
- мбебап жне арнайылатылан ктеріп-тасымалдау ондырылары;
- пішін беруші жне бетті ажарлаушы аспаптар;
- шанаты кштік тузетуге арналан стендтер пен аспаптар;
- баылау-лшеу жабды.
Шанаты жндеу жмыстары кезінде шашып-жинау жне слесарлы-монтажды жмыстарда брамды біріктірмелерді бекіту жне шешу шін мбебап жне арнайылатылан, сонымен атар трлі ысыш аспаптар пайдаланылады.
ысыш аспаптарды шанаты райтын блшектерді атайтуа арналан. ысыштар екі шарнирлі біріктірілген сатптан трады жне турлі пішінді екі губка аралыында блшекті ыстыруа арналан. ысыш аспаптара шеттердi алыптауы шiн пассатижь, ышаштар, кп позициялы ысыштар, ысыш, жылдам кенелер жне кенелердi жатады. Шана блшектерінде саылау ойып шыару шін слесарлы бородкалар, олды саылау тескіштер, пневматикалы пробойниктер олданылады.
Жеіл автомобильдерді шанатарын жндеу кезінде электродоалы пісіру олданылады. Аспалы ондырылар жатау, анатшалары сияты лкен габаритті блшектерін днекерлеу кезінде олданады. Аспалы днекерлеуші аспап орнатылатын трансформаторлы жне жеке орналасан,біра лкен ималы иілгіш сым арылы жмыс элементімен жаласатын трансформаторлар болып блінеді. Газды днекерлеужмыстарын жргізуге арналан жабдыты рамына ацетиллен мен оттегі толтырылан баллон немесе ацетиленді генератор, редукторлар,оттытар тобы мен ттікшелер кіреді
Шанаты жндеу кезінде пайдаланылатын ктеріп-тасымалдау ондырыларын екі топа блуге болады: мбебап жне арнайылатылан. мбебап жабдытарды ішінен шашаты жндеуде домкраттар, электромеханикалы екіаралыты жне гидравликалы ктергіштер, аударушылар пайдаланылады. Арнайы жабдытар детте (келтірілетін роликтер, арбашалар) шанаты тасымалдауда пайдаланылады.
13.2. Шанатарды кштік тзетуi шiн арналан рал-саймандар жне стендтер.
Геометриялы лшемдерді блінуін шанаа апат уаытында жмыс iстеген баытталан кшке арама-арсы сер ету есебінде жоямыз. Куштік тузетуге арналан жабдытар топтамасын келесідей топтара сыныптауа болады:
- шанаты ойытарыны тзетуi шiн рал-саймандар;
- сырты керудi дiсмен шанаты элементтерiнi кш беру арылы тзетуi шiн рал-саймандар;
- жерде тратын жатаулы стендтерi;
- платформалы стендтер.
апа немесе жк салышты апаы шiн ойытаы есiк, тiке арсы жне арты терезе немесе орташа крделiлiктi иаштануын ойытаы иаштануды жоюлары шiн брандалы жне гидравликалы рал-саймандарды олданады.
(13.1-шi сурет) брандалы тетiгi бар кш беретiн рылым 4 жне 6 iшкi сол жне о оюмен брымен 5-шi бранда бiрлескен екi сырытары болады. 2 жне 3 р трлi зындыты ондырмаларыны зартыштары жиынны арасында ажеттi лшемнi кш беретiн рылымы жинауа болады. Сырытарды арама-арсы аятарыны р трлi штарына 1, 7, ммкiндiк беретiн деформацияланан шанаты бiр блiктерi iшiнен соруа бекiтедi.

13.1. сурет. Шанаты ойытарыны тзетуi шiн арналан брамдыты жабды слбасы:
1, 7 штары; 2 зартыш; З проставка; 4, 6 брамалы стержень; 5 винт
Шанатарды ойытарыны тзетуi шiн гидравликалы кш беретiн рылымдар алай трады, рлегiш, су цилиндр, тиек арматурасынан, шлангтердi, р трлi фиксаторлар, ткiзгiштер, Упороволар жне тiректер.
Кш беретiн элементтi сапасында йреншiктi автомобилдiк брандалы немесе гидравликалы ктергiштердi олданатын конструкциялар белгiлi.
Брандалы жне гидравликалы рал-саймандарымен жмыс жасаанда шанаты тыыршытарда орнатады. Брандалы созылулар немесе ажеттi зартыштармен, басып алулармен жне тiреулермен су цилиндр ойытарда иаштануды жою шiн кштi осымшаны орыны аныталып жне ажеттi басып алулар жне тiреулер терiп алып орнатып бекiтедi. Шанаты майып ойыыны тзетулерiн созылуды брандалы буларын кш немесе су цилиндрмен осылып ндiрiп алады.
Брандалы жне гидравликалы созылуларды негiзгi кемшiлiктері шанатарды крделi иаштануларын жоюды ммкiн еместiк болып табылады, оларды негiздерiнi геометриялы параметрлерiнi бзушылытары, кш беретiн элементтердi сенiмдi бекiтуi болмайды.
БС-71 модельді тзетуге арналан рылым (13.2-шi сурет) бір шына шарнилі трде тербелмелі рычаг бекітілген тіктртбрышты ималы негізгі балкадан 5 трады. Тетiктегi 100 кНге дейiн созылу кшiн олды гидравликалы сораптан гидроцилиндрде туындалады. Авария автоклiгiне рылымны орын ауыстыруы жне оюды жеілдігін 4 жне 9 доала амтамасыз етедi.

13.2-сурет. Куштік тузетуге арналан БС-71 модельдік жабдыты слбасы:
1 гидроцилиндр; 2 тербелмелі рычаг; 3 мбебап ысыш; 4, 9 жабды доалатары; 5 негізгі балка; 6 куштік поперечина; 7 тіреу;8 таан
Авариялы жадайдаы кузовты таана орналастырып 8, куштік поперечинасын ажетті жерінен мбебап ысыштар 3 кмегімен бекітеді. Жабдыты автомобиль кузовыны астын соыны баытына арай орналастырамыз, тіреуді 7 куштік поперечинаа 6 тірейміз, деформацияланан элементтерді шынжырлы строптар мен ысыштар арылы тзетеді.
Мндай жабды келесідей артышылтарыны есебінен ке олданыса ие болан: трлі маркалы жеіл автомобильдерде олдану мбебаптылыы, азантай габариттік лшемі, арнайы жмыс орнына бекітуді ажет болмауы, тасымалдау мукіндігіні болуы, жне т.б.
Конструктивтiк оайлы жне металлопрокатты олдану шарттардаы рылым ептеген ста iстеп шыаруа ммкiндiк бередi.
Мндай рылымдарды кемшiлiгi оларды шектелген технологиялы ммкiндiктерi крделi деформациялары бар шанатарды алпына келтiруiнде болып табылады. Керудi баытты осы жадайда жиi згертiп жне ыайсыз жне уаытты тбегейлi шыындары талап ететiн негiзгi аралыты осыан байланысты орын алмастырып айта тртiпке келтiруге керек.
Негiз жмыстарды орындауын монтаж талап ететiн шанатарды тзетулерi шiн стендтердi тобына негiзiн пiшiнделген рама 1 райды. (13.3-шi сурет) Раманы саылаулары 3, кронштейн, шынжырлар жне кш беретiн су цилиндрлердi баандарды бекiтуi шiн 2 ызмет крсетедi. Тзету 100 кН дейiн кш амтамасыз ететiн гидроцилиндрлар арылы ндiрiп алады.
Крделi клемдi деформациялармен, ептеген бзылулармен мндай стендтер мбебап болып табылады жне шанатарды жндеуi шiн олдана алады.

13.3.-сурет. Еденде орнатылатын рамалы стендті слбасы:
1 рама; 2 гидроцилиндр; 3 аралы ; угол наклона оси гидроцилиндр осіні клбеу брышы; гидроцилиндр штогындагы куш; тарту кші.
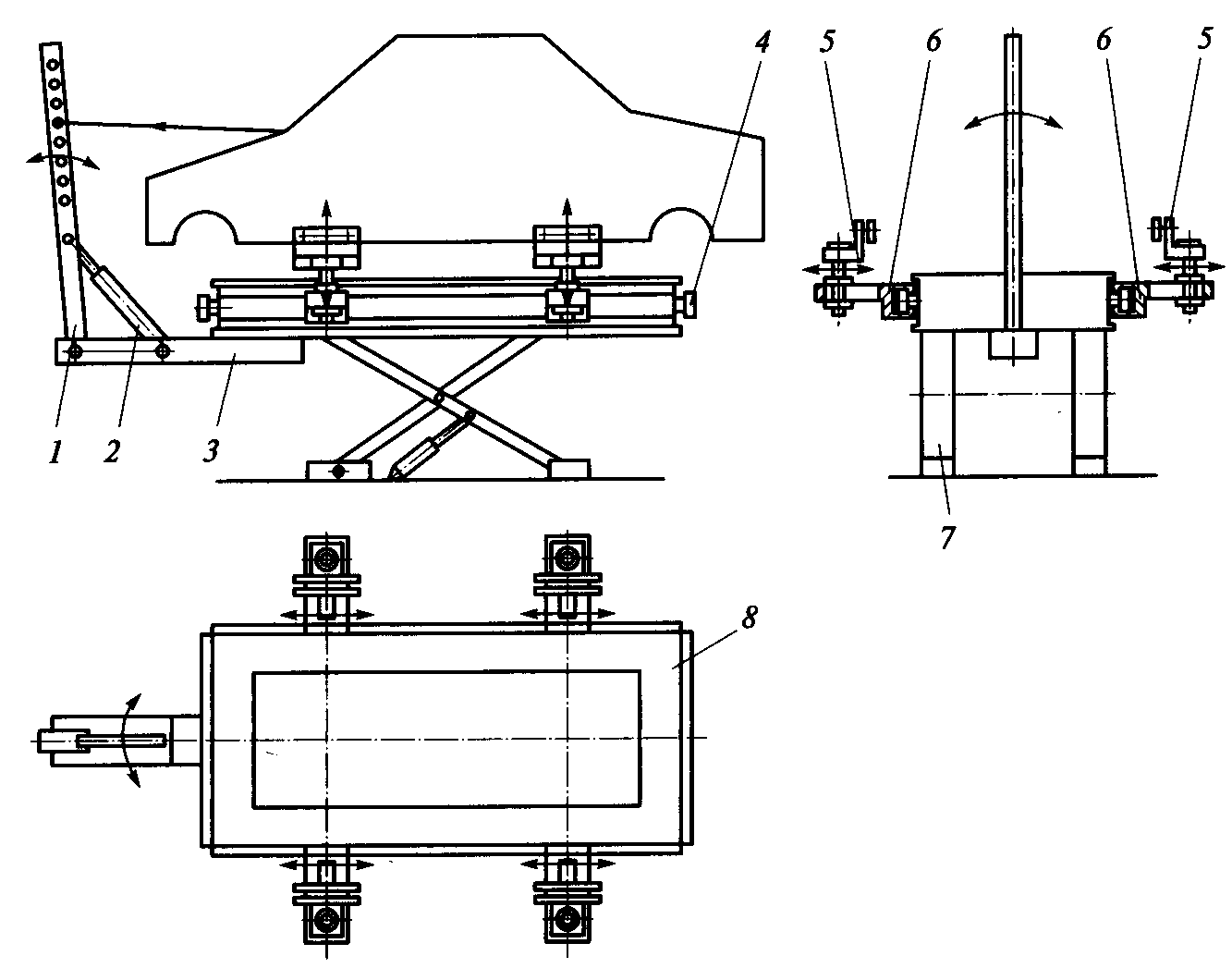
Платформалы стендтердi (13.4-шi сурет) негiзгі конструкциялары стендтi барлы компоненттерi растыратын 8-шi платформа жне атты рама болып табылады. Стенд цех, доалатар немесе ктергiште 7 орнатыла алады.
Жнделетiн автоклiк стендтерде орнатып бекiтедi, ендiктер 6 мбебап ысыштар 5 кмегiмен растырылан
мбебар ысыштарды ажетті орналасуын поперечниктерді здерiнi ендiктердi саылауларыны шектерiндегi платформаны бйiрлеу бетiнде орналасан баыттаушы 4 бойымен жылжып отыру есебінде амтылады.
Поперечиналары болмайтын ал мбебап ысыштары бар аралытарды таана паздарды кмегімен бекітілетін стендтік конструкциялврда кездеседі. Керу кші балкадан 3, рычагтан 1 жне гидроцилилиндрден 2 тратын кштік аралытын кмегімен пайда болады. Кштік аралы мобильді боландытан, раманы периметрін бойлай кез-келген алыпта бекітіле береді.

Рис. 13.4. Платформалы станд слбасы:
1 рычаг; 2 гидроцилиндр; 3 балка; 4 баыттауыш; 5 мбебап ысыштар; 6 поперечины; 7 ножничный подъемник; 8 платформа
Бекiткiштi осы жйе екi бiр трi болады. лгiлер бiрiншi жадайда стендтi платформасында арнайы баандар жне ендiктен кейiн бекiтедi. Шанаты рбiр трi шiн лгiлердi з комплектi керек болады.
лгiлер екiншi (13.6-шы сурет) жадайда мбебап табандылара биiктiгi ажеттi лшемдер бойынша 7 бекiтедi. Стендтi 3 платформада баандарды жадайында бадарлаушы, растырылан платформаны жоары беттерiндегі комплекттi арасында зына бойына 9 жне клдене 8 бекiтедi. лгiлердi ажеттi з комплектiнi рбiр шанаы шiн стенд мбебап болып табылады,

13.6-сурет. Автомобиль шанаын жндеуге арналан шаблонды стендті слбасы:
1 ролик; 2 шаблон; 3 стенд платформасы; 4 сызыш; 5 куштік башня; 6 гидроцилиндр; 7 аралы; 8 клдене баыттауыштар; 9 баыттауыштар; Р шыару кші.
13.3. Баылау лшеу аспаптары
Шана, оны сырты аптауын оса, тек ана барлы оны абылданан лшемдерi алпына келтiрілген жадайда ана сапалы жнделген болып саналады. Сондытан шанаты барлы деформацияларды жоюлардан кейiн автоклiктерді жасап шыарушы зауыт талаптарына сйкестендіру керек болатын геометриялы параметрлерi баылауды iске асырады.
лшемдер автоклiктi аспа элементтері мен каркас геометриясы, агрегаттарды бекіту нктелеріні координаттары крсетілген карталармен сйкес жргізіледі. Сызыты лшемдер жне ойытарды лшемi шiн шанатарды жндеуде олданылатын баылау-лшеу жабды келесi топтара блінеді:
- мбебап аспап;
• арнайы аспап;
• шанаты кешендi баылауы шiн стендтер.
мбебап аспапа сызыш, рулетка жне штангенциркульдер жатады.
Механикалы лшеу сызыштары 1 мм блуiн бааларды алады жне 150, 300 500 жне 1000 мм зындытарымен шыарылады.
Рулеткалар 1 мм длдiкпен лшемдерді алуа ммкiндiк бередi.
Штангенциркль 125 мм-ден 0,1 мм-ге дейінгі длдікпен блшектердi сырты жне iшкi лшемдерiн алу шiн арналан.
Арнайы аспапа жне жабдыа шанаты геометриялы параметрлерiнi баылауы шiн арнайы сызыштарда жне лгiлер жатады.
Арнайы сызыштар штангадан, жылжымалы жне жылжымайтын штардан трады. Сызыштар лшеу шкаласымен жне шкаласыз болады. Жылжымайтын шта алдыы жне арты терезелердi ойытарыны лшемдерiнде дисктердi бекiтедi.
лгiлер шанаты тексерiлетiн параметрiнi сас формада арнайы кескiндi болады. Алдыы жне арты терезелер, моторлы блiм жне жк салышты есiк ойытар, ойытарды баылауы шiн лгiлердi олданады.
Жеiл автомобильнi шанаыны негiзiнi нктелерiнi баылау жмыстары шанаты симметриялы баылау нктелерiне иілгіш байламалар кмегiмен iлiп ойылатын брустар зiмен сынатын лгiлер здiгiнен ортаа келтiн жйесi арылы орындалады. Минимум ш лгi арылы шанаты негiзгі наты блiмшелерiн тексередi немесе шанаты негiзi алпына келтiргiш жмыстарды орындауынан кейiн геометрияны баылауларды ткiзедi.
Стендтер барлы параметрлерді, сонымен атар пішін параметрлерін анытау шін олданылады. Стендтер механикалы, оптикалы, ультрадыбысты жне электронды лшеу жйелерімен болуы ммкін. Шанаты жоары жне тменгі баылау нктелері бойынша тексеруге арналан мбебап механикалы жйе ке олданыс тапан.

13.7.сурет. Механикалы лшеу жйесі бар стенд слбасы:
1 жоары лшеу жйесі; 2 7 лшеуіш штары бар штырьлар; 8 лшеу жйесіні рамасы; 9 шанаты кштік тзеуге арналан платформа стенді.
Механикалы лшеу жйесі автомобильді астыны блігін тексеруге арналан стенд таанында 9 орнатылан шашылып-жиналатын жеіл, біра аса берік алюминий рама 8 болып табылады (13.7-сурет). Оан шанаты баылау нктелеріне длдеп, лшеуіш штары бар, трлі зндытаы штырьлар 2-6 орнатылан. Раманы ктерген жадайда олар тбіне арай ыысады. рбiр штырь натылы нктеге илiкпеуi керек. Ауытулар шанаты аншалыты жне ай баытта керу ажеттігін крсетеді. лшеуші штары бар 7 жоары лшеу жйесі 1 автомобиль шанаыны жоары нктелерін, капот астындаы кеістік нктелерін, МакФерсон аспаларыны аралы нктелерін жне т.б. лшеуге ммкіндік береді.
дебиет: 1.нег.[243- 257]
Баылау сратары:
1.Автомобиль шанаын жндеуге арналан ондырыларды арналуы мен топталуы.
2. Шана иілулеріндегі тексеруді андай жабдытармен жзеге асырады?
З. БС-71 моделді шанаты тексеру ондырыларыны конструкциялы артышылытары мен кемшіліктері, жмыс принциптері.
4. Таанды стендтерді конструкциялы артышылытары мен кемшіліктері, жмыс принциптері.
5. Шаблонды стендтерді конструкциялы артышылытары мен кемшіліктері, жмыс принциптері .
6. Шанаты тузеуге арналан стендтерде кштік аралытарды андай типтері олданылады?
7. Шанаты жндеу жмыстарын жгізу кезінде олданылатын негізгі баылау-лшеу аспаптары андай?
8. Шанаты жндеуде пайданалатын шаблондарды атаратын ызметі мен пайдалану жадайы, рылымы?
9. Механикалы лшеу жйесі орнатылан стендтерді конструкциялы артышылытары мен кемшіліктері, жмыс принциптері .
Шанаты жндеуге арналан ондырылар