РАЗРАБОТКА ПРОЕКТА ЧАСТНОЙ МЕТОДИКИ ВЫПОЛНЕНИЯ ИЗМЕРЕНИЙ ДЕТАЛИ «ПЛАНКА»
PAGE \* MERGEFORMAT 22

ФЕДЕРАЛЬНОЕ ГОСУДАРСТВЕННОЕ БЮДЖЕТНОЕ ОБЩЕОБРАЗОВАТЕЛЬНОЕ УЧРЕЖДЕНИЕ ВЫСШЕГО ПРОФЕССИОНАЛЬНОГО ОБРАЗОВАНИЯ «Самарский государственный технический университет»
Кафедра «Автоматизация технологических процессов в машиностроении»
КУРСОВОЙ ПРОЕКТ на тему:
РАЗРАБОТКА ПРОЕКТА ЧАСТНОЙ МЕТОДИКИ ВЫПОЛНЕНИЯ ИЗМЕРЕНИЙ ДЕТАЛИ «ПЛАНКА»
СамГТУ 221700
Самара 2015
РЕФЕРАТ
Ключевые слова: КОНТРОЛЬ,ИНДИКАТОР ЧАСОВОГО ТИПА, ПОГРЕШНОСТЬ ИЗМЕРЕНИЯ, ДОПУСК ФОРМЫ, ДОПУСК ВЗАИМНОГО РАСПОЛОЖЕНИЯ ПОВЕРХНОСТЕЙ.
Проведена метрологическая экспертиза чертежа детали «планка».
Разработана методика выполнения измерения детали «планка». Выбраны схемы контроля допусков формы и взаимного расположения поверхностей. Рассчитана погрешность измерения.
СОДЕРЖАНИЕ
Введение 4
- Метрологическая экспертиза чертежа детали 5
- Разработка проекта частной методики выполнения измерений (МВИ) 6
2.1 Назначение и область применения МВИ 6
2.2 Условия выполнения измерений 7
2.3 Нормы точности измерений 8
2.4 СИ и вспомогательные устройства 9
2.5 Метод измерений 9
2.6 Подготовка и проведение измерений 11
2.7 Обработка результатов измерений 12
2.8 Оценка погрешности измерений 13
2.9 Требования безопасности при проведении измерений 14
Заключение 18
Список использованных источников 19
ВВЕДЕНИЕ
Метрологическая экспертиза относится к метрологическому обеспечению и проводится с целью повышения качества изделий и эффективности контрольно-измерительных операций. При метрологической экспертизе определяется контролепригодность детали, то есть необходимо убедиться, что выбранный метод и средства контроля отвечают требуемой точности и экономичности. Замечания, сделанные при метрологической экспертизе, оформляются в виде таблицы, где указываются предложения по совершенствованию конструкции детали, устранению недостатков в документе и др.
Для обеспечения единства измерения недостаточно пользоваться поверенными средствами измерения (СИ). Поэтому в закон «Об обеспечении единства измерений» входят положения, касающиеся методики выполнения измерений. В ней приводятся возможные схемы измерений, варианты их реализации, описывается метод измерения, приводятся необходимые сведения об условиях измерений, формулы для анализа результатов измерений и др. Методика выполнения измерений документируется в стандарте или в одном из его разделов и необходимость разработки методики выполнения измерений устанавливается разработчиком.
В данной курсовой работе приводится разработка проекта частной МВИ отклонений взаимного расположения поверхностей детали «Планка».
-
МЕТРОЛОГИЧЕСКАЯ ЭКСПЕРТИЗА ЧЕРТЕЖА ДЕТАЛИ ПЛАНКА.
Проведение метрологической экспертизы детали планка.
Шероховатостью поверхности, согласно ГОСТ 25142-82, называется совокупность микронеровностей на поверхности детали с относительно малыми шагами, измеренная на базовой длине l. Базовая длина выбирается в зависимости от параметра шероховатости Rz из табл. 1.1.
Таблица 1.1
|
Rz, мкм |
До 0,10 |
Свыше 0,10 до1,6 |
Свыше 1,6 до12,5 |
Свыше 12,5 до 50 |
Свыше 50 до400 |
|
l,мм |
0,08 |
0,25 |
0,8 |
2,5 |
8 |
Все замечания, выявленные при метрологической экспертизу чертежа детали, оформляем в таблице 1.
Таблица 1.2
|
Замечания |
Предложения |
|
Указать, заполнить технические требования чертежа детали. |
Подпись лица проводившего экспертизу ___________________Ф.И.О.
-
РАЗРАБОТКА ПРОЕКТА ЧАСТНОЙ МЕТОДИКИ ВЫПОЛНЕНИЯ ИЗМЕРЕНИЙ.
2.1 Назначение и область применения МВИ.
Данная методика выполнения измерений предназначена для контроля взаимного расположения поверхностей, а именно:
1.Допустимое отклонение от перпендикулярности паза 18Н8 относительно поверхности В и Г не более 0,06 мм.
2.Отклонение от параллельности поверхности В относительно Г не более 0,03 мм.
2.2 УСЛОВИЯ ВЫПОЛНЕНИЯ ИЗМЕРЕНИЙ
Для линейных и угловых измерений условия, соответствующие нормальным установлены ГОСТ 8.050-73. а именно:
- температура окружающей среды 20°С;
- атмосферное давление 101324,72 Па (760 мм. рт. ст.);
- относительная влажность воздуха 58% (нормальное парциальное давление водяных ларов 1333,22 Па);
- ускорение свободного падение 9,8 м/с;
- направление линии измерения линейных размеров до 500 мм у наружных поверхностей - горизонтальное, в остальных сериях - вертикальное;
- положение плоскости измерения углов - горизонтальное;
- относительная скорость движения внешней среды равна «0»;
- значение внешних сил, кроме сил тяжести, атмосферного давления элементов измерительной системы (установки) равны «0»;
- частота возмущающих гармонических вибраций, действующих на средства и объекты измерения, не должна превышать 30 Гц;
- наибольшая скорость движения воздуха не более 0,1 м/с;
- допустимый уровень шума не более 45 дБ.
Так как контролируются размеры (6-8) квалитетов точности, то допускается предельное отклонение температур детали и рабочего пространства ±1 0С
Время выдержки детали в рабочем пространстве до начала измерений должно быть не менее 8 часов. Средства измерения должны находиться в условиях, соответствующих требованиям, не менее 24 ч до начала измерения.
Давление окружающего воздуха в рабочем пространстве не должно быть меньше атмосферного; допускаемое превышение атмосферного давления - не более 3 кПа.
Пределы допустимого отклонения влажности воздуха в рабочем пространстве равны ±20% нормальной влажности.
-
НОРМЫ ТОЧНОСТИ ИЗМЕРЕНИЙ
При разработке МВИ одним из основных требований является требование к точности измерений. Наиболее часто на практике в качестве исходных данных для установления требований к точности измерений при контроле используют допуск на контролируемый параметр.
Считается, что соотношение между пределом погрешности измерений и границей симметричного поля допуска 1:5, а иногда 1:4, т. е.:
изм=1/5Т
Наиболее распространенным способом выражения требований к точности измерений являются границы допускаемого интервала, в котором с заданной вероятностью должна находиться погрешность измерений.
По формуле высчитываются погрешности измерения выявленных в результате метрологической экспертизы поверхностей и определяется какой процент эта погрешность занимает от величины поля допуска на контролируемый параметр.
2.4. СИ И ВСПОМОГАТЕЛЬНЫЕ УСТРОЙСТВА
Согласно установленным нормам точности выбираем средства измерения и вспомогательные устройства для измерения контролируемых параметров:
- для контроля отклонения от перпендикулярности паза 18Н8 относительно поверхности В и Г выбираем индикатор часового типа ИЧ-05 ГОСТ 577-68. Вспомогательным устройством здесь является калибр уголок, по которому первоначально настраивается на «0» данный индикатор;
- для контроля отклонения от параллельности поверхности В относительно Г выбираем пружинную измерительную головку 1ИГП. Вспомогательными устройствами здесь являются: поверочная плита, штатив-стойка для закрепления ИГП.
- МЕТОД ИЗМЕРЕНИЙ
Метод измерений при контроле является прямым, контактным, непосредственным.
Прямые измерения - такие, при которых искомое значение физической величины получается непосредственно из искомых опытных данных по показаниям средств измерений.
Косвенные измерения - это измерения, при которых искомую величину определяют на основании известной зависимости между этой величиной и величинами, подвергаемыми прямым измерениям.
Для измерения отклонения от перпендикулярности паза 18Н8 относительно поверхности В и Г разработана схема измерения (схема1). Контролируемое изделие 1 устанавливают на поверочную плиту 2, на которую помещают стойку 4 с индикаторной головкой 3. На поверочную плиту кладут изделие так, чтобы наибольшая сторона изделия являлась базой. Калибр уголок устанавливают в паз 18Н8 таким образом, чтобы одна его сторона была параллельна стенке паза, а другая, параллельно поверочной плите. Подводят измерительные наконечники головки в соприкосновение с поверхностью калибр уголка и настраивают головки на нулевую отметку (положение 1). Отводят стойку с головкой изделия и поворачивают изделие на 1800, приводя в соприкосновение калибр уголок с другой стороной паза 18Н8. Подводят стойку с головками в положение 2, при котором фиксируют изменение показаний головок. Разность показаний головок в двух положениях контролируемого изделия принимается за отклонение от перпендикулярности паза 18Н8 и поверхностей В и Г.
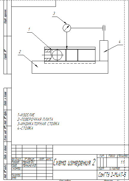
Для контроля отклонения от параллельности поверхности В относительно поверхности Г разработана схема измерения (схема 2)
Изделие 1 со стойкой 4 и закрепленной в ней измерительной головкой 3 устанавливают на поверочную плиту 2. В положение 1 изделие приводят в соприкосновение с измерительной головкой в крайней правой части и настраивают головку на нулевую отметку. Затем изделие перемещают по поверочной плите в положение 2 и регистрируют наибольшее показание головки. Разность показаний измерительной головки в 1 и 2 положениях - отклонение от параллельности поверхности В относительно поверхности Г.
2.6 ПОДГОТОВКА И ПРОВЕДЕНИЕ ИЗМЕРЕНИЙ
- Подготовка измерений.
- Произвести внешний осмотр. На измеряемых поверхностях не должно быть забоин, вмятин, пятен ржавчины, рисок и других дефектов.
- Промыть деталь в бензине Б-70
- После промывки детали протереть ее хлопчатобумажной салфеткой.
- Произвести внешний осмотр индикатора согласно ГОСТ 577-68.
- Опробовать подвижные части индикатора на легкость перемещения согласно ГОСТ 577-68.
- Проведение измерений.
- При проведении измерений установить деталь базовой поверхностью на поверочную плиту (для определения отклонения от параллельности и перпендикулярности).
- Подвести ножку индикатора перпендикулярно контролируемой поверхности.
- Создать натяг 1,0-1,5 мм.
- Установить индикатор на «0» (или использовать прибор уже установленный на «0» при помощи эталона).
- Снять показания индикатора.
- Перевести индикатор в положение 2 и снять показания прибора.
- Разность показаний и будет являться отклонением:
-отклонение от перпендикулярности определяется:
=А|1-А1
-отклонение от параллельности определяется:
=А1-А2
- Провести измерения 5-6 раз.
- Записать результаты в протокол (см. табл. 2).
Таблица 2
|
Контролируемый параметр |
Результаты измерений |
|||||
|
1 |
2 |
3 |
4 |
5 |
6 |
|
|
Перпендикулярность паза 18Н8 |
||||||
|
Параллельность поверхности В и Г |
2.7 ОБРАБОТКА РЕЗУЛЬТАТОВ ИЗМЕРЕНИЙ
- Результаты измерений занести в таблицу (табл. 2).
- Провести статистическую обработку результатов измерений.
- Задать вероятность Рдов = 95%.
- Рассчитать математическое ожидание, равное среднему значению
~ _
и определяемое расчётом: X=X, где

- Так же рассчитать среднеквадратичное отклонение, которое определяется следующим образом:
,
где 2-дисперсия
- Границы доверительной вероятности рассчитываются по формуле:
дов=t*Sx/n,
где t - коэффициент Стьюдента, который определяется по таблице, в зависимости от Рдов и n; n- число измерений.
~
- Далее записать результат измерений: Х±Рдов; Рдов.
2.8. ОЦЕНКА ПОГРЕШНОСТИ ИЗМЕРЕНИЙ
При оценке погрешности схемы КИП определяют суммарную погрешность измерения. Методические составляющие входят в погрешность инструмента, так как метод измерения является простым. Погрешности, вносимые оператором, мы не рассматриваем, т. к. метод измерений очень прост.
Суммарную погрешность составляют следующие погрешности:
- установки контролируемой детали на установочные элементы;
- передаточных средств (элементов);
- установочных мер, для настройки измерительных средств;
- свойственные данному методу измерений;
- вызываемые неточностью отсчёта по шкале измерительного прибора;
- вызванные нарушением первичной настройки измерительных средств.
Точность схемы измерения определяется суммарной погрешностью, составляющими которой являются вышеуказанные погрешности. Независимые случайные погрешности подчиняются закону нормально распределения и поэтому суммируются по правилам Теории вероятности для независимых случайных величин; систематические погрешности суммируются алгебраически по формуле:
=у.э.+ р+ н+(Б2+ 2с+ 2з+ 2п+ 2н.с.+ 2м)
2.9. ТРЕБОВАНИЯ БЕЗОПАСНОСТИ ПРИ ИЗМЕРЕНИЯХ
- Общие положения
- Все проводимые в учебной лаборатории работы должны быть
организованы так, чтобы полностью исключить образовании взрывоопасных концентраций газо-, паро- и пылевоздушных смесей в объёме всего помещения и в отдельных рабочих зонах.
- Система вентиляции и отопления в лабораторном помещении должны обеспечивать параметры микроклимата в соответствии с требованиями ГОСТ 12.1.005-76.
- Предельно допустимая концентрация вредных веществ в воздухе рабочей зоны учебной лаборатории не должна превышать значений, указанных в ГОСТ 12.1.005-76.
- Допустимые уровни звукового давления в октавных полосах частот, уровни звука и эквивалентные уровни звука в дБ на рабочих местах в учебной лаборатории должны соответствовать требованиям ГОСТ 12.1.003-76, относящимся к помещениям лабораторий для проведения экспериментальных работ.
- Уровень ионизирующих излучений на рабочих местах в учебной лаборатории по мощности поглощённой дозы не должен превышать 510 Гр/год.
- Допустимый уровень вибраций на рабочих местах в учебной лаборатории должен соответствовать требованиям ГОСТ 12.1.012-78.
2. Требования к помещениям для учебных лабораторных работ
- Площадь помещений учебной лаборатории на одного студента должна быть не менее 4,5 м2.
- Эстетическое оформление лабораторий должно способствовать снижению утомляющего воздействия учебного процесса.
- Помещение лабораторий должно быть оборудовано автоматическими увещателями системы пожарной сигнализации. Помещение лабораторий должно быть оборудовано сигнализаторами аварийной обстановки на лабораторном оборудовании и аппаратуре.
- Конструкции и элементы лабораторного оборудования и аппаратуры, которые могут быть источником опасности, должны быть обозначены сигнальными цветами, а в опасных зонах помещения лаборатории установлены знаки безопасности по ГОСТ 12.4.026-76.
- В помещении учебной лаборатории должны быть средства оказания первой медицинской помощи (аптечка, шины, средства дезинфекции и др.) и нейтрализации особо опасных химических веществ с постоянно обновляемыми в установленные сроки медикаментами.
3. Требования к размещению оборудования и организации рабочих мест
- Размещение оборудования в помещении учебной лаборатории должно обеспечивать удобство и безопасность выполнения всех видов рабочей деятельности при проведении лабораторных работ.
- Планировка помещений учебной лаборатории должна обеспечивать освещение рабочих мест студентов естественным светом.
- Размещение средств отображения информации должно обеспечивать свободное восприятие общей сигнальной информации в интерьере лаборатории.
- Геометрические размеры зоны досягаемости моторного поля на рабочих местах в лаборатории определяются требованиями ГОСТ 12.2.032-78 (для положения сидя) и ГОСТ 12.2.033-78 (для положения стоя).
- Геометрические размеры оптимальной зоны информационного поля для размещения общих средств отображения информации в лаборатории должны быть:
площадь зоны - 4,5 м3;
высота верхней границы зоны от пола 2,5 м; ширина зоны - 3,0 м;
высота нижней границы зоны от пола - 1,0 м.
4. Требования к конструкции и её отдельным частям.
- Материалы конструкции производственного оборудования не должны оказывать опасное и вредное воздействие на организм человека на всех заданных режимах работы и предусмотренных условиях эксплуатации, а так же создавать пожаровзрывоопасные ситуации.
- Конструкция производственного оборудования и его отдельных частей ^ должна исключать возможность их падения, опрокидывания и
самопроизвольного смещения при всех предусмотренных условиях эксплуатации и монтажа (демонтажа).
- Элементы конструкции производственного оборудования не должны иметь острых углов, кромок, заусенцев и поверхностей с неровностями, представляющих опасность травмирования работающих, если их наличие не определяется функциональным назначением этих элементов. В последнем случае должны быть предусмотрены меры защиты работающих.
- Конструкция производственного оборудования должна исключать самопроизвольное ослабление или разъединение креплений сборочных единиц и деталей, а так же исключать перемещение подвижных частей за пределы, предусмотренные конструкцией, если это может повлечь за собой создание опасной ситуации.
- Производственное оборудование должно быть пожаровзрывобсзопасным в предусмотренных условиях эксплуатации.
Технические средства и методы обеспечения: пожаровзрывобезопасности (предотвращение образования пожаро- и взрывоопасной среды, исключение образования источников зажигания и инициирования взрыва, предупредительная сигнализация, система пожаротушения, аварийная вентиляция, герметические оболочки, аварийный слив горючих жидкостей и стравливание горючих газов, размещение производственного оборудования или его отдельных частей в специальных помещениях) должны устанавливаться в стандартах, технических условиях и эксплуатационных документах на производственное оборудование отдельных групп, видов, моделей (марок).
4.6. Производственное оборудование должно быть оснащено местным освещением, если его отсутствие может явиться причиной перенапряжения органа зрения или повлечь за собой другие виды опасности. Характеристика местного освещения должна соответствовать характеру работы, при выполнении которой возникает в нём необходимость. Местное освещение, его характеристики и места расположения должны устанавливаться в стандартах, технических условиях и эксплуатационной документации ан производственное оборудование конкретных груш» видов, моделей (марок).
5. Требования к рабочим местам
5.1. Конструкция рабочего места, его размеры и взаимное расположение элементов (органов управления, средств отображения информации, вспомогательного оборудования и др.) должны обеспечивать безопасность при использовании производственного оборудования по назначению, техническом обслуживании, ремонте и уборке, а также соответствовать эргономическим требованиям.
Необходимость наличия на рабочих местах средств пожаротушения н других средств, используемых в аварийных ситуациях, должна быть установлена в стандартах, технических условиях и эксплуатационной документации на производственное оборудование конкретных групп, видов, моделей (марок). Если для защиты от неблагоприятных воздействий опасных и вредных производственных факторов в состав рабочего места входит кабина, то ее конструкция должна обеспечивать необходимые защитные функции, включая создание оптимальных микроклиматических условий, удобство выполнения рабочих операций и оптимальный обзор производственного оборудования и окружающего пространства.
- Размеры рабочего места и размещение его элементов должны обеспечивать выполнение рабочих операций в удобных рабочих позах и не затруднять движений работающего.
- При проектировании рабочего места следует предусматривать возможность выполнения рабочих операций в положении сидя и стоя, если выполнение операций не требует постоянного передвижения работающего. Конструкции кресла и подставки для ног должны соответствовать эргономическим требованиям.
Если расположение рабочего места вызывает необходимость перемещения и (или) нахождения работающего выше уровня пола, то конструкция должна предусматривать площадки, лестницы, периллы и другие устройства, размеры и конструкция которых должны исключать возможность падения работающих и обеспечивать удобное и безопасное выполнение трудовых операций, включая операции по техническому обслуживанию.
ЗАКЛЮЧЕНИЕ
В данной курсовой работе была разработана методика выполнения измерений детали «планка». Разработаны условия выполнения измерений, нормы точности, обработка результатов измерений. Выбраны средства измерения и вспомогательные устройства. Установлены требования к безопасности при измерениях.
БИБЛИОГРАФИЧЕСКИЙ СПИСОК
- ГОСТ 2.105-95. ЕСКД. Общие требования к текстовым документам.
- ГОСТ 7.9-95. Система стандартов по информации, библиотечному и издательскому делу. Реферат и аннотация. Общие требования.
- ГОСТ Р 8.563-96. Методики выполнения измерений. Методический материал в помощь метрологам.
- ГОСТ 8.050-73. ГСИ. Нормальные условия выполнения линейных и угловых измерений.
- ГОСТ 8.051-81. ГСИ. Погрешности, допускаемые при измерении линейных размеров до 500 мм.
- МИ 1967-89. ГСИ. Выбор методов и средств измерений при разработке методики выполнения измерений. Общие положения.
- МИ 232-92. ГСИ. Обеспечение эффективности измерений при управлении ТП. Оценивание погрешности измерений при ограниченной исходной информации.
- ГОСТ 22.2.04-97. Безопасность в чрезвычайных ситуациях. Техногенные аварии и катастрофы. Метрологическое обеспечение состояния сложных технических систем. Основные положения и правила.
- МИ 2192-92. Индикатор часового типа с ценой деления 0,01 мм.
10.ГОСТ 24853-81. Калибры гладкие для размеров до 500 мм. Допуски..
11. ГОСТ 577-68. Индикаторы часового типа с ценой деления 0,01 мм.
Технические условия.
12. Белкин И. М. Допуски и посадки: Учеб. Пособие для студентов машиностроительных специальностей высших технических заведений. -М.: Машиностроение, 1992-528с.: ил.


