Дизайн-проект кафе в стиле Фьюжн с использованием экологических материалов
|
Негосударственное образовательное учреждение высшего профессионального образования «СТОЛИЧНАЯ ФИНАНСОВО - ГУМАНИТАРНАЯ АКАДЕМИЯ» Факультет Дизайна Специальность: 070601 Дизайн Выпускная квалификационная работа (Дипломный проект) Тема: «Дизайн-проект кафе в стиле Фьюжн с использованием экологических материалов»
Москва, 2015 Оглавление |
|
|
ВВЕДЕНИЕ……………………………………………………………............ |
3 |
|
ГЛАВА 1. ИСТОРИЯ РАЗВИТИЯ КАФЕ………………………………….. |
5 |
|
5 |
|
1.2 Развитие культуры кафе в России…………………………………….. |
12 |
|
1.3 История стиля Фьюжн…………………………………………………. |
15 |
|
ГЛАВА 2. ОСОБЕННОСТИ АРХИТЕКТУРНО-ХУДОЖЕСТВЕННОГОСТИЛЯ……………………………………………... |
22 |
|
2.1 Технологии проектирования создания дизайн-проект кафе………… |
22 |
|
2.2 Объёмно- пространственная композиция кафе………………………. |
32 |
|
2.3 Цветовое решение кафе………………………………………………... |
44 |
|
2.4 Мебель и аксессуары…………………………………………………... |
51 |
|
ГЛАВА 3. ОБЪЕМНО ПРОСТРАНСТВЕННОЕ РЕШЕНИЕ........................ 3.1 Эргономика............................................................................................... 3.2 Экология в проекте.................................................................................. 3.3 Цвет и свет в проекте............................................................................... 3.4 Мебель и аксессуары ............................................................................... ЗАКЛЮЧЕНИЕ……………………………………………………………….. ЛИТЕРАТУРА………………………………………………………………... |
54 54 66 71 78 87 88 |
|
ПРИЛОЖЕНИЯ………………………………………………………………. |
91 |
ВВЕДЕНИЕ
Актуальность экологического стиля- состоит в том, что нужно определиться с концепцией кафе, современными тенденциями, и современным оборудованием. Нужно выбрать ценовую категорию кафе, так как предназначено для людей среднего класса, которые имеют возможность кушать не в домашних условиях, но и индивидуально и презентабельно. Потребители хотели бы поговорить со знающим человеком, который может дать грамотный совет, разбирающийся в блюдах, которые может красиво преподнести. Выделяет из ряда все подобных и тем самым привлекает посетителей: натуральная отделка, еда.
Темой выпускной квалификационной работы является «Дизайн-проект кафе в стиле Фьюжн с использованием экологических материалов». Каждый день в нашу жизнь входит что-то новое, интересное. Изменения происходят во всех сферах: медицина, наука, техника и т.д. Каждые человек открывает для себя невероятные вещи, находят интересные места для времяпровождения. И так, в жизнь людей вошло кафе. Каждый человек в 21 веке, побывал в кафе, уже несколько раз. Ведь кафе это место где можно провести время, перекусить после долгой прогулки, посидеть с друзьями, отдохнуть от работы и многое другое.
В данной работе дана характеристика кафе, указано, чем оно отличается от других предприятий общественного питания, какие виды кафе вообще бывают. Особое внимание уделено интерьеру кафе. Дана краткая характеристика различным стилям интерьера. Рассмотрено цветовое решение дизайна кафе, влияние дизайна на целостное восприятие кафе, а также влияние цветового решения на восприятие данного объекта.
Для того, чтобы кафе стало именно таким место, куда будет приятно прийти и провести немного времени, необходимо четко и верно создать концептуальный проект кафе. И тогда, пускай это будет место для встреч и свиданий, место для того, чтобы подкрепиться, для того, чтобы передохнуть и расслабиться, или встретиться с друзьями и веселиться, но люди будут туда возвращаться туда снова и снова.
Любая кофейня или кафе должны иметь помещение для кухни, зал для посетителей (может быть два зала отдельно для курящих и для некурящих), зона для персонала, а также туалетные комнаты. Все это необходимо учесть при разработке планировки кафе. В зале для посетителей должна быть барная стойка, витрина-холодильник, столы, стулья для посетителей. Чтобы отделить залы для курящих и некурящих друг от друга можно использовать разного типа мебель, перегородки, колонны, стены и другие элементы интерьера. Особенно уютную атмосферу создает приглушенный свет, вместе с ароматом кофе он создает приятную обстановку для общения.
На сегодняшний день кафе и кофейни очень популярны. Все чаще и чаще такие места становятся основным местом не только для будничного отдых, отдыха во время рабочего дня на обеде, но и для отдыха на выходных, чтобы встретиться и поболтать в уютной и спокойной обстановке.
Цель: Дизайн проект кафе в стиле фьюжн с использованием экологических материалов.
Исходя из темы проекта вытекают следующие задачи:
- Изучить историю кафе
- Исследовать стиль фьюжн
- Рассмотреть аналогичные проекты
- Решить объёмно-пространственную композицию кафе
- Выбрать цветовую гамму кафе
- Определиться с мебелью и аксессуарами
- Эргономика
Дипломный проект состоит из двух частей практической и теоретической. Теоретическая часть состоит из пояснительной записки, а практическая из планшетов, компьютерной графики и макета.
ГЛАВА I. ИСТОРИЯ РАЗВИТИЯ КАФЕ
1.1 История кафе
Кафе (от фр. Caf; буквально «кофе») заведение общественного питания и отдыха, похожее на небольшой ресторан, но с ограниченным по сравнению с рестораном ассортиментом продукции, также, возможно, с самообслуживанием, отдыха потребителей с предоставлением ограниченного по сравнению с рестораном ассортимента. Введенный в России в 2007 году ГОСТ Р 0762-2007 «Услуги общественного питания. Классификация предприятий общественного питания» определяет отличие кафе от других предприятий общественного питания: ресторанов, баров, столовых, закусочных, предприятий быстрого обслуживания, буфетов, кафетериев, кофеен, магазинов кулинарии. Согласно этому документу: «Кафе предприятие общественного питания по организации питания и (или без) продукции общественного питания, реализующее фирменные, заказные блюда, изделия и алкогольные и безалкогольные напитки»
Многие из нас замечали, что слова «кофе» и «кафе» очень между собой похожи. И это не простая случайность, ведь еще в средние века божественный по мнению многих напиток возрастом в целых три тысячи лет послужил толчком к развитию общественных заведений, таких, как кофейни. Первая из них была открыта в голландском городке Ливорно.
Новинка стала настолько популярной, что к концу семнадцатого века подобные уютные уголки были практически в каждой стране Европы, а в некоторых их было преогромное количество. Практически во всех заведениях подобного типа процесс приготовления кофе считался таинственным процессом, который проходил в загадочном полумраке. Аромат этого зачаровывающего напитка неуловимой дымкой распространялся далеко по улицам городов. В наше время не каждая кофейня может похвастать трепетно сохраненными традициями секретов приготовления кофе.
Уже во времена появления первых кофейных заведений они были облюбованы знатью и интеллигенцией. Здесь всегда можно было посидеть, обсудить философские вопросы, встретиться с друзьями, узнать последние городские новости, посплетничать и выпеть чашечку чарующего напитка. Примеры таких клубов музыкальное или литературное кафе. В одном из них когда-то возникло оксфордское Королевское научное общество.
Первые упоминания о таких клубах в России появились в начале девятнадцатого века. С момента своего открытия они стали излюбленным местом творческого бомонда. Характерной и отличительной чертой русских кофеен стали дополнительные услуги шахматы, бильярд, чтение и обсуждение газетных заметок. Конечно, сегодня редко встретишь группу людей, совместно изучающих газету за чашкой кофе, зато современные общественные заведения предлагают более широкий спектр услуг, продуктов и напитков. Сегодня можно без проблем заказать чашечку чая в кофейне, а в чайной заказать заварной кофе. В отличие от старых кофеен современные очень разнообразны в дизайнерском оформлении. Они поражают своими необычными решениями, цветовыми гаммами, трансформациями, перевоплощениями. В последнее время замечена интересная тенденция днем кофейни являются уютными уголками, где тихо и спокойно, а вечером это спортивные бары, где смело можно заказать пиво и посмотреть футбольный матч.
Многие заведения сегодня предлагают такое удобное дополнение, как точка доступа wi-fi, позволяющая студентам или деловым людям вовремя проверить почту или найти полезную информацию в Сети. Такие кофейни часто привлекают и фрилансеров людей, работающих через Интернет. Иногда люди проводят в кафешках целый день, не замечая, как пролетело время. Вечером многих из них ожидает драйв и азарт с больших экранов, установленных в кофейне, начинается трансляция спортивных соревнований. Сегодня уже невозможно представить себе жизнь без таких веселых и комфортных заведений. Интересно, что бы мы делали без чудесного ароматного кофейного напитка?
История кафе- об этом идет спор между Италией и Францией. Кафе сначала появилось в Италии, и лишь потом его завезли во Францию. Но названия первого итальянского кафе не сохранилось. Однако в Константинополе уличные кофейни были уже в 1550. Кафе «Прокоп» (фр. Le Procope) считается старейшим рестораном в Париже, находится в Латинском квартале, на улице Ансьен-Комеди (rue de lAncienne-Comdie), рядом с перекрёстком Одеона. Оно стало дискуссионным центром для литераторов и философов в эпоху Просвещения и превратилось в первое литературное кафе.
В 1686 году сицилианец Франческо Прокопио деи Кольтелли открыл кафе на Rue des Fosss Saint-Germain (сегодняшняя Rue de lAncienne Comdie). Открыто первого в Париже кафе способствовало тому, что кофейные заведения распространились вскоре по всему Парижу. Помимо кофе в нём также подавали другую новинку мороженое.
Происхождение названия- Кафе Слово же "кафе" не зря похоже на "кофе", потому что в кафе трансформировались кофейные дома, которые назывались сначала "кофейни", а затем "кафе". Возникли они на Востоке.
Кафе-ресторан Сейчас кафе-ресторан определяется как кафе, в котором клиенту предлагаются дополнительно спиртные напитки и обед. Днем это заведение, имеющее быстрое меню с приятными ценами. А вечером залы преображаются, расширяется меню, организуется программа.
История возникновения кафе- Китайские кофейни и чайные домики. Фактически возникли рестораны очень давно. История их создания уходит корнями в ХIII век. Китайские чайные и кофейные домики в Ханчжоу, культурной столице Китая того времени, пытаясь привлечь клиентов и как-то выделиться среди конкурентов, увеличивали роскошь своих заведений, разнообразили меню, делали их настоящим местом отдыха.
Интересно, что слова «кафе» и «кофе» не случайно похожи. Кофе послужило развитию такого вида общественных заведений, как кафе, и в частности, кофеен. Официальная история кофе насчитывает порядка 3000 лет, когда была открыта первая кофейня неизвестно, известно только, что родина кафе Восток, а вот история европейских кофеен датируется 1651 годом. Именно тогда в голландском Ливорно открылась первая кофейня. Нововведение с успехом распространилось по всей Европе и к концу 17 века в каждой европейской стране было открыто множество заведений, в котором царил полумрак и аромат кофе, делая процесс приготовления кофе таинственным ритуалом. В наше время редкое кафе в Тушино может похвастать сохраненными традициями приготовления этого замечательного ароматного напитка. Не будет открытием, что кафе были облюбованы знатью, а со временем кафе стали клубами по интересам: литературное кафе, музыкальное кафе, а из Оксфордской кофейни возникло даже Королевское научное общество. Но основным видом услуг таких кафе оставалось кофе.
В Росси же первое кафе появилось в начале 19 века в Москве и сразу это место облюбовалось творческим бомондом. Характерно, что первое российское кафе сразу стало предоставлять дополнительные услуги бильярд, шахматы, даже простое чтение и последующее обсуждение газетных новостей.
Современные кафе отошли от традиций кофеен и предоставляют более расширенный ассортимент разного рода напитков и продуктов. Так, в современной чайной можно заказать чашечку кофе, а в кофейне попить чаю. Разнообразен как интерьер современных кафе, так и его трансформации. Так, кафе СЗАО в дневные часы ресторан и кафе, а вечером - спортивный бар. Владельцы таких заведений стараются учитывать вкусы и предугадывать желания каждого гостя, идет ожесточенная борьба за каждого посетителя.
Не в новинку сейчас кафе с wi-fi такие удобства популярны и пользуются спросом у студентов и работников Интернета. Последние, чтобы не отвлекаться на домашние дела, предпочитают собственной квартире столик в кафе, где его по первой просьбе и накормят, и напоят во всех смыслах этого слова. Засидевшиеся посетители wi fi кафе к вечеру превращаются в азартных болельщиков, потому что телевизоры, висящие на стенах таких заведений, начинают трансляцию спортивных состязаний.
Кафе могут быть закрытыми и открытыми. Закрытые кафе напоминают что-то вроде беседки с крышей. Многие закрытые кафе мало чем отличаются от кафе в помещении: они имеют "стены" или располагаются под специальным навесом-шатром, что делает их несомненно, более удобными для посетителей. В таких кафе посетители чувствуют себя ничуть не хуже, чем в закрытых кафе в помещениях. Такие кафе идеальны для жаркой погоды, в них прохладно, и они не требуют использования кондиционеров: люди одновременно и на свежем воздухе, и чувствуют себя уютно, как в помещении. Помимо традиционных кафе, расположенных в закрытом помещении, большой популярностью всегда пользовались летние (уличные) кафе. Такие кафе обычно занимают небольшую территорию, однако летние кафе могут быть достаточно большими и включать несколько подсобных помещений. Летние кафе могут работать самостоятельно и располагаться вдоль или недалеко от проходных улиц или же находиться рядом со стационарным кафе. Огромное значение имеет выбор места для открытого летнего кафе: оно должно быть легкодоступным, проходимым, хорошо просматриваемым для проходящих мимо людей. Напротив летнего кафе желательно наличие парковки для посетителей с автомобилями. Помещение под кафе в большинстве случаев арендуется, хотя не исключено и строительство специального павильона. Площадь торгового зала зависит от числа посадочных мест, которое может варьироваться от 5-6 столиков (каждый столик обычно рассчитан на 4 человека) до 15 и даже более.
Для летнего кафе так же, как и для других видов кафе, необходимо наличие подсобного помещения и хорошие коммуникации (водопровод, канализация, электричество). Комплектация оборудования в летних кафе, как правило, ограничивается наличием посадочных мест со столиками для посетителей, прилавка-холодильника, дополнительных холодильников с напитками и мороженым, холодильника для хранения продуктов, витрины-шкафа с продуктами, машины для варки кафе, микроволновой печи.
Различные виды летнего кафе рассчитаны на разную целевую аудиторию и, следовательно используют соответствующий менеджмент. По существу, летнее кафе - это небольшое предприятие с доброжелательной и непринужденной атмосферой, стремящееся сформировать и удержать однажды пришедших посетителей самых разных возрастных групп. Существуют также вечерние летние кафе закрытого типа, куда доступ имеют только взрослые люди и совершеннолетняя молодежь. Как правило, летние кафе, приставленные к основному кафе, ведут обособленную работу: у них свой буфет, своя касса, однако кухня может быть расположена в основном кафе в помещении, именно поэтому в таких кафе достаточно широкий ассортимент предлагаемых блюд. Это основное отличие таких кафе от тех летних кафе, которые работают на улицах само в каждом летнем кафе устанавливается своя система обслуживания посетителей. Есть летние кафе, сервис которых мало чем отличается от сервиса крупных кафе и ресторанов: столики здесь обслуживаются официантами, которые представляют меню, принимают заказы, разносят блюда и убирают со столиков. Небольшие летние кафе практикуют систему минимального обслуживания или самообслуживания. В таких кафе обычно нет меню, а расценки и наименования предлагаемых блюд представлены на ценниках, однако есть несколько официантов, которые убирают использованную посуду со столиков. И все же в последнее время во всех летних кафе применяется система обслуживания с помощью меню, что удобно для посетителей и позволяет официантам лучше контролировать ситуацию в кафе. Заказ блюд и обслуживание столиков в летних кафе происходит по стандартным правилам. Посетители занимают свободный столик, задача официанта - подойти к гостям и предложить им меню. Если посетитель интересуется у официанта, есть ли в меню определенные блюда, официант должен внятно и понятно объяснить посетителю то, чего он хочет. Таким образом, из-за небольшого ассортимента заказ в летнем кафе происходит сразу же, как только официант подносит меню. При небольшом количестве посетителей официант приносит заказанные блюда в течении нескольких минут. Если гость заказал шашлык или другое блюдо, требующее приготовления, то он ждет за столиком, в это время официант вправе предложить клиенту на напитки и и обслужить другие столики. Счет предоставляется клиенту, после того как он поел и собирается уходить. Задача официанта - все время следить за столиком, вовремя подносить блюда и напитки, убирать грязную посуду и менять пепельницы. Из летних кафе можно также выделить пляжные и парковые кафе. На пляже торговое оборудование может быть более простое, недорогое, а его перечень достаточно ограниченным. В зоне отдыха центральных парков и наиболее оживленных улиц города, там, где люди привыкли проводить больше времени, наслаждаясь отдыхом и едой, летнее кафе потребует и более качественного оборудования, и соответствующего инвентаря - посуды, столовых приборов. Ассортимент самого простого летнего кафе в большей степени рассчитан на импульсную покупку. Это может быть сок, газированный напиток, мороженое. Непременным атрибутом пляжной или парковой торговой палатки является холодильный шкаф для напитков и морозильный ларь для мороженого. Этим все и ограничивается. Традиционное оборудование пляжных кафе - сок охладители.
1.2 Развитие культуры кафе в России.
Традиция пить сваренный по всем правилам натуральный кофе в небольшой уютной кофейне существовала еще во времена Советского Союза. Обычно этой «буржуазной роскошью» наслаждались туристы, приезжавшие в отпуск в республики Прибалтики, Армению, Грузию. Потом Союз распался, и кофейни исчезли из жизни российского жителя, уступив место дешевому растворимому кофе по утрам.
Со второй половины 90-х годов публичное кофепитие стало постепенно возвращаться в повседневную жизнь, и сегодня уже можно говорить о возрождении культуры кафе в России.
Первенство по количеству заведений, подающих разнообразно приготовленный качественный кофе, принадлежит Москве. Как и во всем мире, кафе здесь спали приютом для самой демократично настроенной публики: творческих людей и студентов. Причем приютом круглосуточным. Невозможно поверить, что еше полтора-два года назад получить мало-мальски приемлемый «ночной ланч» было проблематично. Да и сегодня в Европе сложно найти заведение, в котором можно поесть после 22 часов. А в Москве в это время многие только собираются ужинать. Столица все больше становится ночным городом, поэтому ужин начинается поздним вечером и заканчивается ранним утром. Среди современной молодежи стало актуальным понятие «after party»: посетители ночных клубов, прежде чем отправиться по домам, не прочь снять эмоциональное возбуждение чашечкой кофе или даже ранним в четыре-пять утра завтраком, поданным в спокойной уютной обстановке. В дорогих ночных заведениях молодые люди, как правило, не едят: во-первых, накладно, кроме того, еда помеха легкости во время танцев. Но есть и другие клиенты: персонал тех же самых ночных клубов, который, закончив работу, заходит в ближайшее кафе подкрепиться. Отдельную небольшую группу составляют случайные посетители, ждущие открытия метро, отвергнутые любовники или женщины на грани нервного срыва.
В Московских ночных кафе за все время их существования не было инцидентов с агрессивно настроенными посетителями. Видимо, процесс поглощения пищи и чашечка кофе успокаивают душу в любое время суток.
Развитие кофейной культуры у нас идет не так быстро, как хотелось бы. По мнению зарубежных специалистов, кофеен в России пока не может быть много, поскольку, во-первых, пока еще не сложилась соответствующая культура потребления кофе, да и вообще питания вне дома, во-вторых, из-за недостатка денежной массы у населения. Если любому американцу по карману по три-четыре раза в день заходить в кофейни и выпивать по чашечке кофе, то в России это доступно далеко не каждому.
Кофейная индустрия за последние два года заметно активизировалась, и многие решились взяться за этот бизнес. Это хорошая тенденция, говорящая о том, что все большее число людей, особенно тех, кто много работает и испытывает острую нехватку времени, приучаются посещать кофейни, чтобы расслабиться и пообщаться с друзьями вне дома.
Современное положение ресторанного бизнеса. Ресторанный бизнес в России сегодня существует в трех нишах, неравных по объему и количеству игроков, - fast food, рестораны среднего ценового уровня и рестораны «высокой кухни». В сегменте быстрого питания сегодня несомненно доминирует «Макдональдс» - сказываются преимущества раннего входа на российский рынок, отказа от франчайзинговой схемы (в других странах «Макдональдс» обычно открывает свои рестораны по франшизе) и отстроенной системы развития кадров внутри компании. По общему мнению, главным конкурентом «Макдональдса» является сегодня сеть «Ростикс», принадлежащая компании «Росинтер». Дорогие авторские рестораны haute cuisine, «высокой кухни», начали появляться в России уже в конце 80-х начале 90-х годов прошлого века: связанные с именами Аркадия Новикова, Андрея Деллоса и других звезд, они выдерживали (и продолжают выдерживать) сравнение с бутиками. Наиболее заметные сегодня авторские рестораны «Пушкин» и «Сыр» Новикова, Le Duc и «Шинок» Деллоса, «Улей» Олега Бардеева, «Обломов на Пресне» Антона Табакова, «Абсент» Игоря Бухарова. Средняя ценовая ниша в России не только не перенаселена, но и не до конца сформирована очевидно лишь, что порог входа в нее с каждым днем становится все выше, а происходящие внутри процессы интереснее. Доминирующим игроком этого сегмента являются сегодня рестораны «Росинтер Ресторантс» (сети TGI Fridays, American Bar & Grill, «Планета суши», «Патио-Пицца» и др.) У всех рестораторов вне зависимости от того, в какой нише они позиционируют свои заведения, сегодня есть одна общая головная боль кадровый голод. И, если проблема с наймом обслуживающего персонала (официанты, сомелье, менеджеры залов) упирается сегодня в основном в значительное превышение спросом предложения, то в случае с управленческими кадрами для ресторанов все намного более сложно. Дело в том, что количество грамотных ресторанных управленцев сегодня весьма ограничено. Тенденции к увеличению его сейчас почти не наблюдается в России нет специализированных учебных заведений, которые готовили бы специалистов такого уровня. Директора ресторанов сейчас преимущественно вырастают из официантов, менеджеров залов, даже барменов; они мало мобильны и не имеют достаточных возможностей для своего дальнейшего профессионального развития. Как правило, на ступеньку выше директора уже находится собственник, занять место которого просто невозможно. Как правило, директора меняют свои места работы крайне неохотно. Дело в том, что собственники ресторанов иногда применяют для удержания грамотных управленцев не вполне рыночные методы.
1.3 История стиля Фьюжн
Фьюжн (от английского fusion смешение, слияние) смешение различных стилей и направлений в одном дизайне интерьера.
Стиль, который позволяет разместить в пространстве все, что угодно и при этом создать между разномастными предметами и элементами гармоничные связи.
Общая характеристика стиля фьюжн. Предлагает все, не отрицая ничего. Он находит гармонию там, где раньше она казалась немыслимой. Фьюжн не отметает прежние традиции, а сосуществует с ними как бы в параллельных мирах, создавая собственные правила. Это направление, по сути, противопоставляет себя минимализму и приближает нас к сложному и экспрессивному «максимализму». В моде раскованный «хулиганский шик» стиль, развивающий логику коллажа и заимствующий любые элементы. Основным принципом стиля фьюжн является свобода цвета и материала. Основное условие стиля фьюжн заключается в том, что формы, цвет и содержание проектируемого интерьера все то, что впоследствии станет его «начинкой»: отделочные материалы, мебель, декоративные элементы, должны на конечной стадии соединиться в целое органичное жилое пространство. Фьюжн обычно относят не к архитектурным, а к дизайнерским стилям связь между предметами формируется не на функциональном, а на эмоциональном уровне, а сам он базируется не на четко сформулированных законах, а скорее является образом мышления, присущим лишь части зодчих. Этот стиль ворвался в новое тысячелетие, стремительно сметая на своем пути аскетичный минимализм, рациональный конструктивизм и даже претендующий на романтику постмодернизм. Смешав чистые стили и направления, словно краски на палитре живописца, фьюжн удивительно быстро прижился и стал популярен. Стиль современной жизни вашего интерьера фьюжн (смешение всего со всем), возник как результат пересечения разных культур, традиций, времен и даже технологий. Началось всё с джаза в 70-е годы прогрессивные слушатели перекинулись на особый музыкальный стиль, сочетавший в себе элементы европейской академической музыки и фольклора из экзотических стран. Затем фьюжн завоевал рестораны, появившись здесь в виде традиционных европейских блюд с азиатскими акцентами: это случилось в 90-е годы, и тогдашние модники с вымученными улыбками ели салат оливье с трепангами и фуагра, приправленную зирой и куркумой. К слову сказать, эксперименты по смешению различных кухонь мира не всегда приводили к достойным результатам. Кулинарный фьюжн заглох на уровне эксперимента а идея мешать Восток и Запад, Юг и Север перенеслась в интерьеры. Искусствоведы говорят, что предыстория возникновения этого стиля в дизайне интерьера, скорее всего, берет начало в 90-х годах прошлого века, когда в уставшую от авангарда и постоянных интерьерных табу Европу хлынули потоки экзотических вещей с Востока, Африки и Латинской Америки. Его родиной по праву считаются Соединенные Штаты: именно тамошние дизайнеры квартир первыми решились на смелые эксперименты и «скрестили» классику с этникой, а ампир с хай-теком. В тоже время модных домах Италии, Франции и Германии рядом со стеклянно-металлическими столиками и полками появились роскошные ковры из шкур «леопардов» и «зебр». Маленькие кубические кожаные диванчики заменили большие и пушистые роскошные американские диваны, а белоснежные стены постмодернизма запестрели яркими солнечными красками. Окрыленные первой удачей владельцы вилл и особняков стали действовать смелее. И вот уже аккредитованные ими дизайнерские бюро начинают активно компоновать в одном интерьере тяжелую классическую мебель и хайтековские шторы из органзы. Мягкая мебель выдвигается из углов и занимает центральное место в комнате, при этом дорогие эксклюзивные коллекции спокойно уживаются с самыми массовыми моделями. Рядом с шедеврами живописи или скульптуры на стенах появляются милые семейные фотографии и сувениры, привезенные из путешествий. Особенности- интерьер в стиле фьюжн предмет настоящего декораторского искусства, в котором приемлем любой жанр, кроме скучного. В нем не предусмотрены четкие горизонтали и вертикали, ему так же чужда и жесткая определенность, а связи между предметами формируются не на функциональном, а на эмоциональном уровне. Роскошь с оттенком простоты и богемности именно такое сочетание понятий, ранее воспринимавшееся как абсурд, в интерьерной моде становится трендом. Стилистика пространства предполагает сложную цветовую гамму, множество декоративных деталей, обилие тканей и разнообразие декора, эксперименты с фактурами, постановочное освещение и тщательно «организованный» беспорядок. Ваш интерьер ни в коем случае не должен производить впечатление продуманного до мелочей: обаяние максималистского стиля, как индивидуальность человека, соткано из взаимоисключающих вещей.
Стиль фьюжн основан на трех китах цвет, фактура, материалы. Нейтральные или пастельные оттенки для этого стиля несвойственны. Отныне в вашем интерьере будут довлеть насыщенные и даже вызывающие тона, тем не менее, прекрасно гармонирующие между собой. Это могут быть сочетания бирюзы, малинового, золотого и зеленого цветов. Это может быть более теплая гамма красного, оранжевого в сочетании с чернильно-синим оттенком. Допустимы интересные композиции из фиолетово-лиловой краски и полярных черного и белого. Однако очень важно не ошибиться в выборе соотношений, не переборщить, иначе вместо изысканной палитры вы рискуете получить банальный набор «кричащих» красок. После того, как вы определитесь с основной цветовой гаммой, вам понадобится решить, каким образом вы будете подавать столь смелое цветовое шоу. Есть один радикальный способ, широко известный театральным декораторам точечная подсветка. То есть, вместо того, чтобы на полную мощь высвечивать многорожковыми люстрами многокрасочное же великолепие, вам нужно продумать организацию освещения так, чтобы каждый включенный в систему элемент создавал свое мини-шоу интимное и пафосное одновременно. Светильники могут быть расположены вдоль нижнего карниза стены, практически у пола. Они могут работать как точечные потолочные или стеновые софиты, высвечивая каждый раз различные элементы интерьера. Вы можете активно задействовать торшеры, бра, настольные лампы, подсветку мебели (и верхнюю, на топах, и встроенную внутрь шкафов). Фьюжн даже допускает, что ни один ваш светильник не будет похож на другой, но каждый раз, включая его, или комбинируя различные варианты подсветок, вы будете создавать новую декорацию, оригинальную и неповторимую. Можно «сыграть» на контрасте нестандартных материалов осветительных приборов, контрастных цветах или создать композицию из абажуров разной формы. Свечи (а в идеале камин) не столько освещают, сколько создают интригующий, таинственный полумрак, моделируя дополнительные нюансы настроения. И это настроение всегда будет мажорным и романтическим. Что же касается фактуры отделочных материалов, то идея фьюжн предполагает, что ваш интерьер будет восприниматься в гармонии визуальных и тактильных ощущений. Поэтому прикасаться к обивке мягкой мебели, ткани портьер, да и просто к стенам вашего дома, ступать по его полам, коврам, должно быть так же приятно, как и смотреть на них. В этой связи лучше отказаться от холодных и скользких глянцевых поверхностей, отдав предпочтение тем фактурам, которые наиболее характерны для живой природы: шелковистым текстурам мелкого морского песка, шероховатости натурального камня, грубому переплетению льняной пряжи, домотканой холстины, упругости натуральной кожи. Очень актуальна анималистическая тенденция. Шкуры из кож животных (или их имитации) настолько органично вписываются во фьюжн, что являются, чуть ли не хрестоматийными предметами проработки этого стиля в интерьере. Говоря о шкурах животных, мы плавно переходим к материалам, к которым тяготеет фьюжн. Надеемся, вы уже догадались, что в выборе этих материалов вы практически не ограничены. Особый шик, безусловно, придадут самые природные и естественные материалы. Так, в частности, довольно интересно будет выглядеть классическая дорогая мебель в обрамлении грубых, крестьянских бревенчатых стен. Золото и серебро на фоне еловой балясины не будут казаться чужеродными элементами, а лишь веселой и стильной импровизацией. А наличие камина с глинобитным дымоходом будет очень уместно в гостиной, где стены драпированы шелками, подобранными в тон к той же глине. Кстати, драпировка один из главных инструментов фьюжн. Пожалуй, нет иного стиля, который допускал бы такое обилие ткани в интерьере. Это вполне объяснимо. Многочисленные шторы, кисейные занавески, тяжелые портьеры, занавесы альковов, подушки, ковры это все те элементы, которым на роду написано приводить интерьер к общему гармоничному знаменателю. При достаточно ограниченном бюджете именно ткань сможет стать той палочкой-выручалочкой, которая мгновенно преобразит ваш дом. Тем более, что именно текстиль сможет превратить любой аккуратный и чопорный интерьер в достаточно «хулиганистые» и смелые апартаменты. Обилие свободного пространства, наличие белых плоскостей и большого количества дневного света вот обязательные атрибуты стиля фьюжн. Идеальным условием для создания интерьера в этом стиле архитекторы считают жилье, ориентированное сразу на несколько сторон света.
При создании интерьера в стиле фьюжн следует помнить:
Правило № 1. Лучше не смешивать. Основной постулат фьюжн: лучше меньше, чем больше. Вещи призваны подчёркивать и оттенять друг друга, а не загромождать ваши квадратные метры.
Правило № 2. Помните о хорошем вкусе. Именно он должен прийти к вам на помощь, если вдруг покажется, что пресловутый самовар прекрасно впишется в интерьер вашей спальни в стиле Людовика XIV.
Правило № 3. Не суетитесь. Умение сочетать вещи сравнимо с медитацией. Встаньте в центр комнаты, закройте глаза и представьте себе то, что хотели бы увидеть, прежде чем действовать. Фьюжн, в первую очередь, фен-шуй, а не хаотическое броуновское движение предметов в пространстве.
Правило № 4. Фьюжн любит смелость. Дерзайте! Общий дизайн квартиры строгий, прямо-перпендикулярный, металлически-поблёскивающий хай-тек? А в нём…весь в позолоте и алом бархате туалет, где вместо ручки слива олений рог, на стене гобелены и полочка с дорогим алкоголем. Выглядит дико, но элемент эпатажа в данном случае скорее сыграет вам на руку гости будут ошеломлены. Особенно если прикрыть эту скарлетт-охаровскую роскошь скромной тёмной дверью.
Фьюжн нельзя назвать дорогим стилем дизайна интерьеров. Главное в стиле фьюжн чувство меры, а оно есть самый верный союзник экономии. На что точно придется потратиться, создавая интерьер своей квартиры в стиле фьюжн, так это на выравнивание полов и фактурные потолки, приобретение нескольких видов обоев и сочетаемых между собой цветов краски. Дизайнеры единодушно считают, что стилю фьюжн больше всего подходят мягкие, даже округлые формы потолочного короба, арочные проемы, большие окна. Архитекторы также любят играть на сочетании различных фактур, изощренно комбинируя полированные и шершавые поверхности, тканевые и бумажные обои, дерево разных пород. Фьюжн сделал возможным интерьер, в котором роскошь естественным образом переходит в простоту и богемность. Человеку, выбравшему фьюжн, не придется думать о чистоте стиля. В этом стиле вы вольны не придерживаться никаких канонов и догм.
Лишенный стандартов и стереотипов, головокружительный, роскошный и одновременно богемный интерьер может и должен стать результатом Вашего личного творчества. На нерешительных людей стиль-хулиган нагонит страх: не слишком ли ярко и броско? Чопорным рационалистам он покажется чересчур эмоциональным, навязчивым и будоражащим. «Консерваторы» сочтут его странным и даже фривольным. Это направление интерьерной моды рассчитано на людей-лидеров, раскованных, не боящихся перемен, не терпящих ограничений и обладающих большим запасом внутренней свободы. Только человек, внутренне свободный от «вещизма», не побоится для самовыражения подчеркнуть избыточность и чрезмерность. Ориентируясь только на свои вкусы, отдавая должное собственным пристрастиям, сознавая свои маленькие или большие слабости, он следует главному правилу современной жизни: серые будни обязаны превратиться в яркий, запоминающийся праздник, карнавал, шоу для которых необходимы достойные декорации.
ГЛАВА II. ОСОБЕННОСТИ АРХИТЕКТУРНО-ХУДОЖЕСТВЕННОГО
2.1 Технологии проектирования создания дизайн-проект кафе.
Технология проектирования создания дизайн-проект кафе- дизайн-проект - комплекс работ проводимых специалистами, направленный на проектирование и создание определённой среды обитания, свойственной и подходящей конкретному Заказчику.
Дизайн-проект состоит из комплекта документов, разработанных в ходе проектных работ( в соответствии с техническим заданием), в объеме, необходимом для проведения строительных, ремонтно-отделочных и комплектационных работ на объекте. Работа над проектом состоит из трех основных этапов: планировочный этап, стилевой этап, технологический этап.
Дизайн интерьера не должен быть только средством самовыражения. Это, прежде всего, плод коллективного творчества архитекторов и дизайнеров с заказчиком. В этом случае результат работы будет соответствовать его ожиданиям и выполнять все требуемые функции, необходимые для комфортной жизни и работы.
Этапы проектирования:
1. Планировочный. Включает в себя: снятие замеров существующей конфигурации стен; изучение особенностей объекта проектирования; зонирование; разработка планировочных решений. Необходимая документация: планировка помещений; план демонтажа; план возведения перегородок; план расстановки мебели и оборудования; экспликация помещений. Перед началом работ по планированию помещения с расстановкой мебели, необходимо определится с количеством мебели, необходимой Вам в каждом помещении по отдельности. То есть составить тех задание на проект. После этого, оговорив приоритеты по стилям и бюджет, произвести подбор мебели по салонам или переговорить с производителями мебели, для уточнения базовых размеров и комплектации. Планировочное решение - это, прежде всего, ответы на вопросы: "Как помещения будут работать, где что будет стоять, где будут двери, какой ширины будут проходы между мебелью". На этом этапе изначально предлагаются несколько принципиально разных планировочных решений, по возможности максимально раскрывающих потенциальные возможности пространства. Заказчику предлагается внимательно рассмотреть их, "примерив" на себя все возможные жизненные сценарии. Представить, как он будет входить, ставить вещи, проводить гостей, есть, работать, отдыхать и т.д. в каждой из предложенных планировок. Конечное решение обычно строится на основе одного из предложенных вариантов или на их комбинации. После одобрения одного из планировочного решения, Заказчик визирует его своей подписью, и мы переходим ко второй стадии проекта.
2. Стилевой. Включает в себя: объемное моделирование помещений; разработка объемно-графических и цвето-фактурных вариантов художественного решения. На этом этапе мы отвечаем на другой вопрос: "Как помещения будут выглядеть?" Схема аналогична первой. Технологически это может проходить двумя способами; первый - сначала карандашный набросок, после одобрения его - компьютерная модель; второй - сразу компьютерная модель. Какой вариант выбрать, решать скорее дизайнеру, исходя из сложности проектируемого помещения. Предупреждение! Шторы, мягкая мебель иные вещи и детали интерьера не проектируемые Исполнителем и т д. на компьютерной модели помещения, в виду сложности их моделирования, иногда отображаются схематически. Так же необходимо понимать, что компьютерная модель не даёт 100% представления о цветовой гамме в будущем помещении. Так же не возможно отобразить реальные материалы (обивку мебели, кафель, шторы, паркет, линолеум, обои и т д.), в виду отсутствия текстур и сложности передачи цветов при конвертации файлов (например, при выводе со сканера или цифрового фотоаппарата). Так же возможно искажение цветопередачи при выводе изображения на печатающее устройство.
Оформление и дизайн кафе - это что-то удивительное и неповторимое, что создает особенную атмосферу уюта и комфорта, способствует хорошему настроению и общению с друзьями и близкими, а также, просто, приятному времяпровождению. Несомненно, качественный дизайн кафе позволит ему превратится в излюбленное место отдыха энергичных и целеустремлённых людей абсолютно любого возраста. Как раз такой дизайн интерьера, который создает подобную атмосферу, и должен быть у любого успешного кафе. Успешность предприятия подобного типа очень сильно зависит от комфортной обстановки, от ее неповторимости и уникальности.
Разрабатывая проект кафе, следует учесть громадное количество факторов, среди которых особого внимания заслуживают следующие:
- ориентация на потребителя, то есть четкий образ будущего потенциального посетителя кафе;
- разработка продуманной и оригинальной концепции заведения;
- разработка проекта таким образом, чтобы интерьер кафе соответствовал выбранной концепции и образу потенциального клиента;
- четкая планировка и дизайнерское оформление помещения.
Концепция заведения и интерьера кафе- прежде всего, разрабатывая концепцию кафе и раздумывая над дизайном, следует обратить свое внимание на кухню, которую Вы собираетесь предлагать своим посетителям: то ли это будет европейская кухня, то ли японская, а может это будет обычный фаст-фуд.
Надо помнить, что интерьер кафе должен выгодно выделяться среди серости и однообразия большинства городских заведений общественного питания. Оно должно быть запоминающимся, ярким, неповторимым, а поэтому следует очень сильно позаботиться об уникальном дизайне. В данном вопросе можно воспользоваться (это крайне рекомендуется) услугами профессионалов. Очень важно подобрать такой дизайн, чтоб было предусмотрено все - и большая кухня, и красивая удобная мебель и удачное цветовое и фактурное решение. Кроме того, для того, чтобы обеспечить уют и комфорт в заведении следует подумать об освещении. И не следует забывать о внешнем облике заведения, ведь не увидев красивую "обертку" посетитель просто может пройти мимо, и не заметить вашего "самого лучшего" в своём роде заведения. То, каким будет интерьер, во многом определяется целевыми посетителями. Ну и конечно необходимо учесть расположение кафе, ведь, я думаю, вы согласить, что кафе в центре и за чертой города может существенно отличаться по своему оформлению. И напоследок, хотелось бы порекомендовать, придерживаться какого-то одного выбранного стиля - смешение стилей - это, как говорят, "моветон".
Технология проектирования создания дизайн-проект кафе- комплекс работ проводимых специалистами, направленный на проектирование и создание определённой среды обитания, свойственной и подходящей конкретному Заказчику.
Дизайн-проект состоит из комплекта документов, разработанных в ходе проектных работ( в соответствии с техническим заданием), в объеме, необходимом для проведения строительных, ремонтно-отделочных и комплектационных работ на объекте. Работа над проектом состоит из трех основных этапов: планировочный этап, стилевой этап, технологический этап. Дизайн интерьера не должен быть только средством самовыражения. Это, прежде всего, плод коллективного творчества архитекторов и дизайнеров с заказчиком. В этом случае результат работы будет соответствовать его ожиданиям и выполнять все требуемые функции, необходимые для комфортной жизни и работы.
3. Технологический. Включает в себя: разработка плана электрики; разработка принципиальной схемы водоснабжения и канализации; разработка принципиальной схемы кондиционирования и вентиляции; выполнение эскизных чертежей конструкций; раскладка плитки (без технологических зазоров; разработка архитектурных элементов оформления при их наличии.
Выдаваемая документация: план размещения светильников и распределение линий по выключателям; план размещения розеток, электровыводов и выводов слаботочных сетей; принципиальная схема водоснабжения и канализации; принципиальная схема кондиционирования и вентиляции; схема разверток стен и размещения конструктивных элементов, развертки стен и конструкций; план полов; принципиальная схема разреза полов при необходимости; план потолков; принципиальная схема разреза потолков; сводная карта отделки; карта подбора мебели; спецификация на двери. На этом этапе происходит решение вопросов реализации проекта.
Проектируются и выбираются инженерные сети, материалы, конструкции, технологии, воплощающие стилевое решение в жизнь.
Исходя из технического задания, возможностей и пожеланий Заказчика рассматриваются различные стоимостные варианты, их которых затем выбирается оптимальное решение. Подбираются поставщики комплектующих и материалов (при договоре на эту услугу). В итоге, пройдя все три этапа, мы приходим, собственно, к результату всей работы - оформленному дизайн-проекту - комплекту документов, необходимых для реализации объекта.
Современные тенденции оформления интерьеров кафе- издавна владельцы баров, кафе и ресторанов стремились не только вкусно накормить своих посетителей, но и обеспечить им комфортную и приятную обстановку для отдыха. Сегодня, посещая кафе или подобное заведение в других городах, посетитель обращает внимание, прежде всего, на стиль заведения и дизайн его интерьера.
Стиль принято определять как художественную общность, присущую конкретному дизайну интерьера. Современные места общественного питания, предназначенные для приятного времяпровождения людей, чрезвычайно требовательны к дизайну. Зачастую это всегда поиск эксклюзива, воплощение оригинального авторского дизайна для привлечения постоянного круга клиентов.
Сегодня наблюдается тенденция смешения различных стилей, дизайнерских направлений при оформлении интерьеров ресторанов или кафе. Но определяющим моментом для посетителя при этом должно стать ощущение комфорта вкупе с внутренней продуманностью всех деталей. А, кроме того, немаловажное значение имеет и назначение (специфика) заведения. Так, для пиццерии традиционно в качестве основы используется дизайн-проект итальянского ресторана. Если это ресторан этнической или экзотической кухни, создается дизайн национального характера.
Всегда актуален классический стиль, которому присуща, простота, естественность форм и строгое следование принципам пропорциональности. Пользуются популярностью заведения общественного питания с интерьером в стиле рококо, где акцент делается на богатый декор и высокохудожественные аксессуары. Наблюдается возвращение в моду стиля ар-деко, отличающегося легким и изящным декором. Очень интересны дизайнерские идеи ар-нуво, где преобладают извилистые и плавные очертания, прослеживается тенденция асимметрии в сочетании с природными и растительными мотивами мебельного декора.
На пике популярности средиземноморский стиль, вошедший в моду благодаря популярности здоровой морской кухни. Рестораны в таком стиле отличаются яркостью и буйством красок, а также особой воздушностью интерьера из-за больших окон, впускающих море солнца. Для средиземноморского стиля интерьера ресторана присуща некоторая грубоватость, подчеркнутая фактурностью стен, «рукотворностью» их отделки и покраски.
Не менее интересны дизайны ресторанов или кафе в восточном стиле. Эти интерьеры отличает особая этническая атмосфера. Оригинальная мебель с утонченными и лаконичными линиями, естественные тона, некоторая асимметричность и натуральные ткани все это помогает создать живую простоту, которой так не хватает современному высокотехнологичному миру.
Удачная идея оформления ресторана или кафе и эксклюзивный стиль, наряду с отменной кухней, все чаще становится визитной карточкой заведения. Оригинальный дизайн интерьера это гарантия неповторимости ресторана (кафе), его процветания и востребованности.
Интерьер кафе не следует путать с интерьером ресторана - это не одно и то же. кафе не должно быть загруженными, каждый посетитель должен ощущать легкость и непринужденность. Перед тем как приступить к оформлению кафе просмотрите различные каталоги, в которых представлены дизайнерские идеи для оформления кафе, и выделите те моменты, благодаря которым эти досуговые заведения приобретают легкость.
Кафе - это заведения, которые посетители предпочитают посещать в утренние и дневные часы. В это время практически всегда для освещения помещения достаточно будет естественного освещения, но только в том случае если проведена правильная планировка кафе, и доступ света не ограничивается маленькими окошками. Практически на всех фотографиях внутренние помещения озарены солнечными лучами, которые проникают через большие окна. И только изредка можно увидеть кафе, в которых царит полумрак, однако это нельзя считать недостатком, все это дизайнерские задумки по которым кафе должно задать свой индивидуальный эмоциональный тон.
Интерьер кафе следует спланировать, прежде чем приступать к оформлению. Все в помещение должно быть исполнено в едином стиле, из которого ничего не должно выбиваться и во всех предметах интерьера должна прослеживаться одна и та же идейная линия.
Среди современных кафе очень много заведений в стиле модерн, которому присущи плавность линий и гибкость форм. Интерьер кафе в стиле модерн не сможет обойтись без изображений цветов и растений, рисунок которых можно будет увидеть везде: на полу, на стенах, на стульях, столах, даже на посуде и столовых приборах. Придумайте для своего кафе оригинальную идею и воплотите ее в реальность.
Модерн - это изобилие узоров и разнообразие фор, поэтому для кафе в этом стиле актуальные лепнина, вышитые ткани, витражи, причудливые изображения. В качестве осветительных приборов используются настенные светильники. Лампы в них должны быть спрятаны за матовыми плафонами, благодаря которым свет становится мягким и успокаивающим. Светильники эти должны быть необычными. В качестве украшения их могут быть использованы различные декоративные детали.
Прекрасный вариант для кафе - романтический стиль. При создании романтического кафе главное подобрать правильное цветовое решение. Использовать следует пастельные тона. В данном стиле следует использовать только один цвет. Если же выбрано несколько цветов, то переход от цвета к цвету должен быть очень плавным. В качестве мебели лучше все использовать старинные варианты, столы покрывать следует скатертями с мелкими цветочными рисунками.
Молодое поколение предпочитает помещать кафе, оформленные в стиле минимализм. Минимализм довольно старое направление, на которое долгое время никто не обращал внимание. Причиной тому может быть строгость этого стиля, который призывается отказаться от нагромождения предметов, сделав при этом помещение максимально функциональным. Подобные кафе поражают своими просторными, полупустыми залами. Для оформления используется только малогабаритная мебель. Все помещение отделывается светлыми материалами. Проектируя интерьер кафе в стиле минимализм, следует помнить, что пространство помещения нельзя загромождать аксессуарами, поэтому лучшим вариантом станут картины, которые будут вставлены в рамки правильной формы. Рамы нужно выбирать из материала, который будет вписываться в интерьер кафе.
Детское кафе - это то, без чего не может обойтись не один город. Наилучший вариант оформления такого заведения - сказочный сюжет. Сказку можно выбрать любую, главная чтобы она была доброй и нравилась детям. Если все провести правильно, поверьте, дети будут с радостью посещать кафе и родители не смогут отказать им в этом удовольствии. При выборе мебели детского кафе, помните, что предназначена она будет для детей. Можно приобрести мебель разных размеров. За самыми маленькими столиками будет удобно сидеть малышам, в то время как мебель побольше подойдет детям более старшего возраста.
Правильно подобранное освещение помещения перед тем как открыть своё собственное кафе следует в первую очередь продумать стиль, в котором он будет исполнен. Здесь давать совет абсолютно бессмысленно, ведь как говорится "на вкус и цвет товарищей нет". Определитесь с тем, что вам больше всего нравится и вперед покупать или арендовать подходящее помещение.
Сейчас мы особо не будем в деталях изучать интерьер ресторана, а обратим внимание на основные составляющие, про которые ни в коем случае нельзя забывать - освещение и микроклимат.
Поговорим об освещении. Правильно подобранное освещение помогает посетителям расслабиться и получить полное удовольствие от проведенного в нем времени. Стоит сказать о том, что освещение влияет в очень большой степени на работу персонала. Вот и получается, что интерьер ресторана можно назвать идеальным только с правильно подобранным светом.
Естественное освещение является наилучшим вариантом для любого помещения, в том числе и для ресторана. Для того чтобы в светлое время суток помещение освещалось естественным светом следует отдать предпочтение витринным окнам которые будут занимать большую часть стены. Если помещение имеет такое строение, которое не позволяет распространиться дневному свету по всему залу, тут уже придется использовать светильники.
В одном помещении должны присутствовать как верхнее освещение, так и боковые осветительные приборы, которые будут в любом случае использованы в вечернее и ночное время.
Перед окнами ресторана следует установить фонари или прожекторы. Подбирать их следует с учетом местности, в которой расположен сам ресторан. Лучше всего использовать наружные осветительные приборы, которые не будут выделяться на фоне ландшафта.
При выборе освещения для ресторана помните, что с его помощью можно устранить недостатки помещения, к примеру, визуально приподнять низкие потолки или расширить узкие проходы. Так же следует понимать, что приглушенный свет лучше всего подойдет для проведения тихой беседы, в то время как для праздников наилучшим вариантом является яркое освещение, которое помогает поднять настроение. Для танцевальных вечеров или банальных дискотек потолочное освещение вообще не приемлемо, для таких мероприятий подойдут иллюзионные осветительные приборы, а так же цветные прожекторы.
Свет бывает холодным и теплым. Каждый тип окраски света по-своему влияет на общее самочувствие посетителей, а так же на восприятие всех элементов помещения. Это всегда следует учитывать при выборе освещения для ресторана. При выборе того или иного освещения следует проверить какое оно оказывает влияние на интерьер ресторана как в вечернее так и в дневное время суток. Оно должно идеально подходить к архитектурным элементам, использованным для обустройства ресторанного зала.
Идеальным вариантом станет использование смешанного освещение, которое освещает зал не очень ярким светом, но в то же время при необходимости позволяет выделить некоторые участки помещения направленными световыми потоками. При такой схема в любое время можно будет отключить любой светильник или несколько светильников, подбирая для конкретного случая наиболее подходящий вариант.Можно использовать различные лампы и в свете каждой из них помещение будет выглядеть по-разному. Возьмем, к примеру, лампы накаливания - в их свете посуда и столовые приборы красиво блестят. Тщательно следует подойти к выбору люминесцентных лам. Они хорошо освещают помещение, однако белый или слегка зеленоватый цвет не подойдет, так как блюда изменят свои цвета.
2.2 Объёмно - пространственная композиция кафе
Внутренняя среда предприятий общественного питания (пространственная организация, предметное насыщение, микроклимат и др.) имеет свою специфику. Она должна наиболее полно соответствовать комплексу функционально-утилитарных и эмоционально-эстетических требований.
Рациональная организация внутренней среды предприятий общественного питания в целом и интерьеров, в частности, в значительной степени определяет качество обслуживания, предоставляя человеку необходимый комплекс блюд и услуг в комфортных условиях, а также способствует общению людей, воспитанию вкуса и т.п.
Комплекс требований направлен на создание в предприятиях оптимальных удобств для посетителей и персонала в соответствии с уровнем обслуживания предприятия - "стандартное", обслуживающее главным образом утилитарные функции или "избирательное", "индивидуальное", призванное удовлетворять разнообразные интересы и индивидуальные вкусы населения.
В предприятиях стандартного обслуживания (столовых, закусочных, кафетериях), работающих по принципу самообслуживания на первый план выдвигаются функциональные требования. Необходимо создание четкой планировочной структуры помещений для посетителей, обеспечивающей рациональные проходы, графики движения; четкое функциональное зонирование, включающее организацию функциональных зон и их взаимосвязь, группировку мебели; а также комплексность в художественном решении всех элементов внутреннего убранства помещений.
В предприятиях избирательного обслуживания функциональные требования не теряют своей значимости, но возрастает роль эстетических характеристик, обеспечивающих художественно-образное решение каждого элемента предметной среды и всей среды в целом.
К элементам, формирующим внутреннюю среду, относятся ограждающие конструкции (пол, стены, потолок), а также другие конструктивные элементы (колонны, полуколонны и т.п.); оборудование, включая мебель; малые архитектурные формы; осветительные установки и светильники; устройства для визуальных связей и реклама; инженерное оборудование (отопительные приборы, кондиционеры и т.п.), а также элементы декоративно-прикладного искусства (декоративные ткани, декоративные растения и пр.).
Кроме вышеперечисленных элементов гармоничность и комфортность внутренней среды в значительной степени определяют отделочные материалы, цветоколористические и акустические характеристики предметов и среды в целом, соответствующий микроклимат в помещениях.
Предметно-пространственная организация помещений для посетителей (вестибюль, включающий гардероб и туалеты, обеденные залы и др.) в предприятиях общественного питания с самообслуживанием и предприятиях, совмещающих функции питания и отдыха включают различные, отличающиеся назначением, составом и группировкой мебели, функциональные зоны. Это зоны входа, ожидания, получения пищи и сервировки, приема пищи, зрелищ и развлечений, отдыха. Расширенный состав зон обычно свойственен предприятиям с повышенным уровнем обслуживания. Различные зоны оснащаются специальной мебелью, отвечающей уровню комфорта предприятия.
Зона входа включает подзоны гардеробную и ожидания. Она может располагаться как на одном, так и на разных этажах, в одном или разных помещениях. Эта зона должна иметь четкую функционально-планировочную схему, обеспечивающую быстрое и ритмичное обслуживание встречных потоков посетителей.
Гардеробная подзона может иметь фронтальное, глубинное или угловое решение. Наиболее рационально применение фронтальных схем, когда гардеробный барьер размещается по длинной стороне помещения, а вешалки - перпендикулярно к нему.
В кафе и особенно ресторанах следует организовать места для отдыха с банкетками, креслами для отдыха и журнальными столами. Подзоны ожидания следует организовывать перед обеденным залом. Декоративные стационарные или раздвижные решетки отделяют их от обеденного зала. Наиболее эффективно оснащать эти подзоны блокируемыми банкетками, креслами, журнальными столами.
В предприятиях, совмещающих функции питания и отдыха для ожидания, распределения потоков посетителей и отдыха, создают аванзалы и холлы.
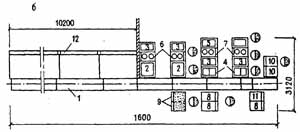
Основное значение в обеденных залах принадлежит зонам приема пищи. В столовых и закусочных эти зоны представляют собой однообразные повторяемые группировки мебели, создающие ритмичные ряды простых по форме столов и стульев; в кафе - более сложные по форме изделия и разнообразные приемы расстановки. Наиболее распространенной расстановкой мебели в этих предприятиях является параллельная или диагональная, обеспечивающая рациональное использование площади обеденного зала. В обеденных зонах крупных столовых следует выделять десертную зону с буфетом и кафетерийной стойкой, а обеденные залы расчленять экранами, декоративными решетками, озеленением и пр. (рис. 1).
Разнообразней решаются зоны приема пищи в кафе, ресторанах. При группировке мебели следует учитывать возможность обслуживания одним официантом 8-12 посетителей. В этих предприятиях, наряду с параллельной и диагональной расстановкой возможно применение свободной расстановки мебели, при которой пространство как бы перетекает из одной зоны в другую. Подобный эффект достигается при применении более сложных форм мебели, в том числе криволинейных в плане диванов, овальных и круглых столов. Разнообразны организация и состав мебели для зон приема пищи в специализированных кафе и ресторанах, в которых следует использовать сочетание различных группировок столов, стульев, кресел, включая боксовую расстановку. Для боксовой расстановки мебели характерно несколько наиболее распространенных приемов, а именно: криволинейная (или С-образная), угловая или пилообразная, П-образная (рис. 2).


Рис. 1 Технологическое оборудование для отпуска комплексных обедов
а - линия конвейерная ЛККО-2 для комплектования и отпуска комплексных обедов;
б - линия конвейерная ЛКНО-2 для комплектования, накопления и отпуска скомплектованных обедов; 1 - транспортер комплектации обедов; 2 - мармит для первых блюд; 3 - мармит для мяса к первым и вторым блюдам; 4 - мармит для вторых соусных блюд и сложного гарнира; 5 - мармит для гарнира; 6 - тележка с выжимным устройством для мисок; 7 - тележка с выжимным устройством для баранчиков; 8 - тележка с выжимным устройством для закусок и хлеба; 9 - тележка с выжимным устройством для стаканов; 10 - тележка с выжимным устройством для подносов; 11 - тележка для столовых приборов; 12 - стойка-накопитель раздаточная
Боксовая расстановка характеризуется созданием изолированных групп мебели из обеденных столов, окруженных диванами, чаще с высокой спинкой или отгороженных друг от друга декоративными перегородками, что обеспечивает группе посетителей уединение. Применение боксовых расстановок позволяет значительно разнообразить архитектурно-пространственное решение обеденных залов. Удачным является размещение боксов на платформе, приподнятой над уровнем пола.
Группировка мебели в банкетных залах отличается своеобразием, так как в них необходимо объединить группу посетителей от 10 до 100 человек и более за одним столом Т-, П-образной формы. В этих случаях можно блокировать ресторанные столы прямоугольной формы, а кресла ресторанные заменить стульями ресторанными IV категории мягкости.
Особенности обслуживания в барах и кафетериях определяют характер архитектурно-планировочных решений и их предметное насыщение. Наиболее распространено пристенное решение баров, при этом они могут иметь Т- и П-образные планы. При островном размещении барного оборудования их планы могут иметь квадратную или прямоугольную форму, круглую или овальную, многогранную или криволинейную. Барные стойки с табуретками или креслами часто используют в качестве композиционного акцента в интерьере обеденных залов ресторанов. Этому способствуют разнообразные формы изделий, ритмический строй и цветовая организация фасадных панелей стоек, освещение и др.
Размещение барной стойки в обеденных залах ресторанов при входе способствует организации аванзала.
При размещении баров в отдельных помещениях там размещают группы столов, стульев или кресел.



Рис. 2. Функциональные зоны в обеденных и банкетных залах: а - самообслуживания; б - обслуживания официантами; в - в банкетных залах
В предприятиях питания, связанных с отдыхом, организуют зоны зрелищ и развлечений. Это эстрады и танцевальные площадки. Такие зоны могут являться композиционным центром помещения, чему способствует их местоположение, а также комплекс декоративных, пластических, цветовых и световых приемов их решений. Эти зоны различны по размещению (пристенные, угловые и островные), размерам и форме. При определении площади танцевальной площадки исходят из нормы площади на пару - 0,15-0,2 м2 из расчета 50-70 % общего количества мест в зале, формы танцевальных площадок и эстрад могут быть различными в зависимости от формы и композиции зала.
В функциональном и образном решении, предметно-пространственной среды и создании соответствующего комфорта для посетителей большую роль играет не только рациональный подбор мебели и оборудования, но и внешний вид изделий, их формы и отделка.
В архитектурно-художественной организации интерьеров предприятий общественного питания общего типа особенно важны характер и качество отделки ограждающих конструкций, светоцветовое решение, уровень организации зрительной информации и др.
Для предприятий, совмещающих функции питания и отдыха, основная задача - создать максимально комфортную внутреннюю среду и запоминающийся художественный образ интерьера средствами архитектуры и декоративно-прикладного искусства. При выборе покрытия полов в предприятиях общего типа с самообслуживанием наряду с эстетическими требованиями следует учитывать эксплуатационные качества, такие, как износостойкость материалов, а для помещений с прямым выходом на улицу и водостойкость. В местах наибольшей интенсивности потоков посетителей ресурс износа покрытий должен в 4 раза превосходить остальной пол. Нескользкость покрытий важна в проходах у раздач и главных проходах. Коэффициент противоскольжения о кожу в этих местах должен быть не менее 0,2. Здесь противопоказаны полированные каменные, гладкие керамические и другие материалы с аналогичными свойствами.
В обеденном зале рисунок пола должен восприниматься целиком при любой расстановке мебели, поэтому при орнаментальном рисунке он должен быть многократно повторен без ярко выраженных акцентов. Создавая рисунок пола, следует помнить о его значении в определении масштабности помещений (мелкий рисунок - зрительно увеличивает помещение, крупный - уменьшает).
В кафе совмещающих функции питания и отдыха, к покрытию полов предъявляются иные требования - бесшумность, звукопоглощающая способность, теплоустойчивость. В помещениях, используемых днем для самообслуживания, материалы должны быть износостойки.
В обеденных залах ресторанов можно использовать ворсовые износостойкие ковровые покрытия с невысоким ворсом. Рационально применять тафтинговые петлевые ковры с содержанием не менее 50 % синтетических волокон. У входов в залы и раздаточные требуются более износостойкие покрытия по аналогии со столовыми. Для покрытия пола танцевальных площадок рекомендуется паркет или твердый мрамор. В залах большой вместимости практикуется применение паркета, на который в проходах кладут ковровые дорожки.
Выбор того или иного материала для отделки стен, колонн зависит от композиционного решения каждого объекта. Однако существует ряд традиционных приемов решения взаимосвязи материалов и цвета в отделке стен, колонн с полом и потолком в помещениях разной площади и объема. В небольших помещениях следует стремиться к созданию целостного восприятия интерьера за счет сочетаний материалов и цветовых решений. В обеденных залах большой вместимости можно комбинировать материалы разной фактуры и цвета для зрительного членения пространства.
В предприятиях питания общего типа основными эксплуатационными требованиями к отделке стен на высоту не более 2 м от пола является водоустойчивость. Вблизи проходов с интенсивными потоками посетителей и посадочных мест размещенных у стен красочные или пленочные материалы нужно экранировать бортиками или панелями из прочных материалов с гигиеническим покрытием. Влагостойкостью должна обладать отделка потолков над раздаточными и буфетами. Важным требованием, предъявляемым к отделке стен и потолка, является повышенная звукопоглощающая способность в диапазоне 250-300 Гц.
Значительную эстетическую и эмоциональную нагрузку выполняют элементы прикладного искусства (роспись, фриз, декоративный рельеф). В столовых и кафе эти элементы следует применять ограниченно с чувством меры. Особое место в интерьере предприятий питания занимает архитектурно-пространственное решение потолка. Здесь можно использовать множество архитектурных приемов. В обеденных залах перспективно применять материалы полной заводской готовности.
Для применения подвесных и подшивных потолков в помещениях с перекрытиями из железобетонных конструкций необходимо иметь соответствующие обоснования. Плиты, применяемые для отделки потолка, должны иметь рисунок или рельеф, композиционно увязанный с общим решением интерьера.
Конструкции подвесных потолков дают возможность создать на его плоскости объемные пластические композиции, которые в совокупности со светоисточниками могут создавать оригинальный светотеневой рисунок, придавая всему интерьеру определенный характер.
Сборные подвесные потолки обычно выполняются из стандартных плиток "Акмигран". Рекомендуется также применение нестандартных решетчатых потолков, стандартных элементов из светопропускающих синтетических материалов, а также встроенные световые плафоны и точечные светильники.
Распространен прием освещения обеденных залов, кафе и ресторанов подвесными светильниками, которые позволяют разнообразно решать как технические, так и композиционные задачи. Ими можно выделить отдельные залы, зрительно расчленить помещение и т.п. Проектируя такое освещение, следует помнить, что перепад освещенности на столах и в проходах не должен превышать восьми-десятикратной величины. Осветительная установка в виде светящегося потолка может быть рекомендована для залов больших размеров. Дополнением к системе общего освещения могут быть настенные или настольные светильники.
Цветовое решение предметной среды интерьера столовых и кафе общего типа должно способствовать созданию спокойной, уравновешенной атмосферы без резких цветовых контрастов. Цветовое решение специализированных кафе, ресторанов, баров может быть различным. Цветовые сочетания могут быть построены на принципах цветовой гармонии или на контрастах. При подборе общего цветоколористического решения предпочтительно использовать гармонические сочетания, а контрасты следует применять для создания акцентов.
В архитектурно-художественном решении интерьеры предприятий питания, совмещающих функции питания и отдыха, существенную роль играет использование средств прикладного искусства, увеличивающее эмоциональную выразительность интерьера, чтобы обеспечить в интерьере синтез архитектуры и декоративно-прикладного искусства все его компоненты должны быть подчинены общему творческому замыслу.
Для создания внутренней среды досуговых предприятий общественного питания необходимым является особая контрастная с повседневной жизнью театрализованная среда, средствами обеспечения которой служат общая объемно-планировочная композиция, художественно-декоративное, световое и цветовое решения, применяемые отделочные материалы.
На архитектурно-планировочные решения предприятий общественного питания с расширенными функциями досуга существенное влияние оказывает реализация той культурной программы, которая совмещается в этих предприятиях с профилирующим процессом питания. Специфика типа досуговой программы должна учитываться в составе и площадях группы помещений для посетителей. Введение дополнительных функций влечет за собой расширение этой группы помещений. Площадь группы помещений для посетителей допускается увеличивать до 25 %. При соответствующих экономических обоснованиях планировочно это расширение может происходить за счет увеличения площадей зала, либо за счет включения отдельных досуговых помещений. Проекты новых и реконструируемых предприятий общественного питания должны соответствовать прогрессивным направлениям развития отрасли, функционально-технологическим требованиям организации производства на предприятии, градостроительным условиям размещения, определяющим требования к объемно-планировочным и архитектурным решениям здания, требованиям по внедрению прогрессивных конструктивных систем и отделочных материалов, нормативно-экономическим требованиям проектных решений. Проектирование предприятий питания должно осуществляться в соответствии с современными достижениями научно-технического прогресса в отрасли строительства и общественного питания.
Величины предприятий общественного питания, состав и площади помещений, соответственно схемы функциональной взаимосвязи помещений и принципиальные планировочные решения зависят от двухосновных факторов; исходного продукта, на основе которого работает предприятие- технологической основы, а также форм и методов обслуживания посетителей. В зависимости от исходного продукта, который для отечественных предприятий питания дифференцируется на три вида: сырье, полуфабрикаты и продукция высокой степени готовности (ПВСГ), все типы предприятий общественного питания классифицируются на: заготовочные - с полным технологическим циклом обработки сырья и приготовления продукции; доготовочные- с неполным технологическим циклом.
К первым относятся предприятия питания, работающие на сырьевой основе, такие, как рестораны, столовые с заготовочными функциями, способные обслуживать ряд доготовочных предприятий и снабжать своей продукцией магазины кулинарии. Ко вторым относятся предприятия, работающие на полуфабрикатах и продукции высокой степени готовности, такие, как: кафе, столовые-доготовочные, закусочные, предприятия быстрого обслуживания и пр. Все рассматриваемые типы предприятий общественного питания по формам и методам обслуживания посетителей делятся на две основные группы: предприятия, обслуживающие посетителей через официантов, и предприятия, функционирующие по принципу самообслуживания.
Объемно-планировочные и конструктивные решения зданий предприятий общественного питания должны обеспечивать возможность организации различных форм обслуживания посетителей (самообслуживание, обслуживание официантами и др.) и внедрения прогрессивной технологии централизованного и комплексного снабжения доготовочных предприятий полуфабрикатами высокой степени готовности и готовой охлажденной продукции при максимальной механизации и автоматизации погрузочно-разгрузочных работ и других трудоемких процессов.
Техническое оснащение предприятий питания должно основываться на широком повсеместном внедрении в проекты современного высокопроизводительного технологического оборудования: модулированного зарубежного и отечественного оборудования, индустриального изготовления (соответствующего модулю стран СЭВ); функциональных емкостей, передвижных стеллажей и контейнеров для доставки полуфабрикатов и продукции высокой степени готовности, что отвечает основной направленности отрасли общественного питания на широкое использование продукции фабрик-заготовочных и продукции пищевой индустрии, и способствует повышению экономической эффективности объектов.
Выбор конструктивного решения определяется анализом и оценкой индустриальной базы и местных строительных материалов в конкретном районе строительства, назначением, типом, величиной и этажностью проектируемого объекта и размещением предприятия в отдельно стоящих зданиях, в помещениях встроенных и пристроенных к жилым домам и к общественным зданиям.
Конструктивные решения должны учитывать при этом задачи экономного расходования строительных материалов в соответствии с действующими нормативными требованиями.
ТП 101 81 (изд.1985 г.)"Технические правила по экономному расходованию основных строительных материалов" (с изменениями, утвержденными постановлениями от 21.12.85 г. №261, от 30.01.86 г. № 9 и от 14.10.87 г. № 236). Проектирование зданий общественного питания может осуществляться на основе применения самых разнообразных конструктивных систем и материалов. На основе полносборных железобетонных систем, каркасно-панельных и крупнопанельных конструкций, монолитного железобетона, кирпича, местных строительных материалов, из металлических облегченных конструкций, в том числе - большепролетных, из деревоклееных конструкций, на основе применения смешанных конструктивных систем и материалов и пр. Для встроенно-пристроенных предприятий питания основой является комбинированная система конструкций, с учетом конструкций жилого (или общественного) здания и принятой высоты этажа. В сельских населенных пунктах рекомендуется применение бескаркасных решений из кирпича и местных строительных материалов, или применение каркасных конструкций по неполной схеме, т.е. со стенами из местных материалов. Применение облегченных металлических конструкций допускается при решении задач ускоренного строительства, а так же для возведения зданий во вновь осваиваемых и труднодоступных районах страны. При проектировании зданий на основе использования индустриальных конструкций рекомендуется применять самый распространенный для предприятий питания шаг опор 6?6 м.При этом в залах большой вместимости может быть принята ориентация на увеличение сеток опор (6?9, 9?9, 6?12 ипр.).
Внедрение в строительство эффективных конструкций и строительных материалов, в том числе модульных и передвижных перегородок должно обеспечивать возможность создания гибких планировочных решений предприятий и зданий, допускающих максимальную трансформацию пространств при эксплуатации, а также перепланировку при последующей реконструкции.
Высота помещений предприятия питания до низа выступающих конструкций и подвесных потолков должна быть не менее 2,7м.
При этом рекомендуется для производственных помещений принимать:
2,7 м в предприятиях до 150 мест;
3 м - в предприятиях от 150 до 300 мест;
3,6 м - в предприятиях от 300 мест и более.
Высоту помещений горячих цехов и моечных не рекомендуется проектировать ниже высоты смежных с ним обеденных залов и выше 3,6 м (для объектов массового строительства).
Высоту до низа выступающих вентблоков в производственных, складских и бытовых помещениях допускается принимать 2,5 м.
Все основные функциональные группы помещений в структуре предприятия (здания) должны иметь четкое зонирование и удобную функционально-технологическую взаимосвязь по средствам производственных коридоров, исключая пересечение людо- и грузопотоков.
Ширину коридоров при этом по группам помещений принимать согласно
Таблица 2Группы помещений Ширина коридора при количестве мест в залах, не менее, м
до 100св. 100 до 200св. 200
1. Производственные, для приема и хранения продуктов1,31,51,8
2. Служебные и бытовые1,21,21,2
Входы в здание общественного питания и лестницы для посетителей и персонала должны проектироваться автономными.
Вход для персонала в предприятиях до 100 мест допускается проектировать через приемочные помещения.
Отдельно стоящие, пристроенные и в составе торгово-общественных центров предприятия общественного питания массового строительства (т.е. до 300 мест) рекомендуется проектировать не более чем в двух наземных уровнях. При этом рекомендуется предусматривать проектирование эксплуатируемых кровель, веранд и открытых площадок для оборудования дополнительных мест сезонной посадки.
Предприятия, проектируемые в два и более уровня, в том числе с подземным пространством, должны быть оснащены грузовыми лифтами;
Как правило, не менее чем одним грузовым, грузоподъемностью 500 кг для транспортировки продуктов, с устройством перед лифтом разгрузочной площадки 2,7?2,7 м, не считая ширины примыкающих коридоров; и грузоподъемностью 100 кг для транспортировки отходов сразгрузочной площадкой 2?1,5 м.
Предприятия общественного питания, работающие на сырье и полуфабрикатах, обслуживаемые официантами и по принципу самообслуживания, проектируемые в одном или двух уровнях имеют различный состав помещений , а также различные схемы функционально-технологических и планировочных взаимосвязей.
Строительство кафе и кофеин на сегодняшний день, кофейни и небольшие кафе, можно назвать наиболее востребованными заведениями на российском рынке ресторанного бизнеса. В первую очередь это связано с тем, что кафе, как и кофейня, зачастую рассчитана на широкую целевую аудиторию, в таких заведениях приятно провести время с друзьями, коллегами по работе или же просто расслабиться за чашечкой кофе. Строительство кафе и кофеин отличается от строительства заведений других форматов. Перед началом строительства кафе, должное внимание следует уделить разработке интерьера заведения, его оформлению, как внутри, так и снаружи. Создавая тематическую кофейню, следует понимать, на какую публику вы рассчитываете, ведь от этого зависит окупиться и заведение и станет ли оно популярным. Прежде чем приступить к строительству заведения необходимо разработать его концепцию и проект. Существуют основные этапы, по которым осуществляется проектирование кафе и кофеин, среди них можно выделить следующие. Во-первых, это выявление и анализ заведений аналогичного формата, во-вторых, следует определиться с аудиторией, на которую рассчитано заведение. Исходя из этого, можно говорить о ценовой политике кофейни. Довольно важный момент, о котором не следует забывать при проектировании кофейни это разделение зала на несколько зон для курящих и не курящих посетителей, внутри самой кофейни. Кофейня, дизайн которой выдержан в едином стиле, способна привлечь куда больше посетителей, ведь тематические заведения пользуются все большей популярностью. Таким образом, каждая мелочь, будь то столовые приборы, посуда, мебель, светильники должны подчеркивать уникальность кафе или кофейни. Все это следует учитывать перед тем, как приступить к строительству заведения, ведь отталкиваясь от готового, тщательно продуманного проекта и концепции гораздо проще и быстрее построить и ввести в эксплуатацию, как кафе, так и кофейню. Кафе, бары и рестораны, пабы, харчевни и ночные клубы у каждого заведения, рассчитанного на массовую публику, должен быть свой индивидуальный стиль, позволяющий выделиться среди массы конкурентов. Одновременно стильный и уютный интерьер, вызывающий желание стать завсегдатаем, рекомендовать друзьям и знакомым.
В дизайне интерьера кафе или бара очень большое значение имеет выбор мебели, а также освещение, цветовое решение, общая композиция и концепция заведения. Как правило, для большинства людей тяжелая массивная мебель из темного дерева ассоциируется с ощущением добротности и надежности. Приглушенный свет и нарочито грубые стены усиливают ощущение защищенности. Такие бары и кафе напоминают средневековые харчевни, где реками лилось вино и эль, где велись бесконечные беседы, где люди отдыхали после тяжелого дня, набирались сил, слушали бардов и менестрелей. Многих привлекает подобная стилистика. Однако грамотно воссоздать правильную атмосферу под силу лишь профессионалам. Ведь очень легко допустить оплошность, и детали, невидимые для Вас, будут дисгармонировать с окружающей обстановкой, вызывая неприятие на подсознательном уровне. Грамотно подобранное решение по оформлению стен, пола, потолка, обязательные аксессуары, вписывающиеся в создаваемый интерьер, мелкие детали все это в руках умелых дизайнеров становится инструментом для создания настроения.
Рестораны заведения не столь демократичные требуют такой же, если не большей, детальной проработки дизайна интерьера. Выбор цветов, расположение ме6ели, освещение, выбор покрытия для пола все это задачи для профессионалов. Согласитесь, Вы можете выбрать вариант кафельной плитки для пола, но совершенно забудете о том, что половое покрытие должно быть не только красивым, но и нескользким, безопасным, износостойким. Сочетание смелых однозначных цветов текстиля может придать дизайну ресторана уникальность и неповторимость. Однако, в погоне за эпатажем, Вы легко можете выбрать сочетание не оригинальное, а безвкусное. Ключевой деталью в дизайне интерьера отдельно взятого заведения может быть что угодно решить это самому очень сложно.
2.3 Цветовое решение кафе

У любого из нас есть свой шифр, скрытый в цветах. Каждый цвет подает условный сигнал нашему подсознанию и пробуждает в нем ответную эмоцию. Под влиянием разных цветов нам даже чувствуется и думается по-разному. Наш глаз распознает 1,5 млн. оттенков, а цвета воспринимаются даже кожей. Мы не просто видим цвет, мы его чувствуем. Если верить психологам, то 80% цвета мы “поглощаем” нервной системой и только 20% зрением. Все компоненты, формирующие образ кафе в сознании посетителей, должны быть взаимосвязаны. Только в этом случае возможна цельность восприятия, а она означает хорошую узнаваемость заведения и большое количество гостей. Цветовая среда в предприятии общественного питания способна серьёзно влиять на поведение посетителей, задействовать ассоциации и положительные эмоции, способствовать аппетиту. Грамотное использование цвета в интерьере не просто создаёт красоту и узнаваемость, но и служит средством информации, ориентирования для гостей. Всё это определяет цветовое оформление. Известно, что цвет оказывает различное физиологическое воздействие на человека, вызывая хорошее или плохое самочувствие, повышая или снижая активность. Воздействие цвета на человеческий организм может быть косвенным благодаря свойству цвета зрительно изменять форму и размер предметов. Может быть и непосредственным, выражаясь в различных ощущениях от прямого зрительного восприятия того или иного цвета. Что ж, удивить можно один раз, а продавать надо каждый день и помногу. Поэтому гораздо лучше, если воздействие на посетителя запланировано заранее, и задачи работы с цветом определены. Именно в этом цвет может оказаться Вашим верным союзником, выполняя свои основные задачи.
Задачи цвета: Первая задача, связанная с цветом, - обеспечение комфорта, для этого цвета должны быть связаны со специализацией и концепцией заведения, его целевой аудиторией. Оптические иллюзии, возникающие из-за применения сочетаний цветов, используются для архитектурных целей, для создания образа и передачи соответствующего настроения. Но в тоже время эти иллюзии не должны отвлекать от блюд, вводить в заблуждение или рассеивать внимание.
Вторая задача связана с информативной ролью цвета, его символика (которая детально рассмотрена ниже) тщательно изучается для создания нужного настроения в помещении.
И третья задача реализация потенциала цвета как мощного фактора эмоционального воздействия. Цветовая гамма зачастую используется как метод психофизиологического манипулирования для привлечения внимания к отдельным местам помещения и к выделяемым блюдам.
Цветовая символика и связь цветов интерьера с концепцией заведения. Для описания наиболее общих особенностей восприятия разделим цвета на группы: Тёплые и холодные цвета: К тёплым цветам относятся оттенки красного, оранжевого и жёлтого, а к холодным синего, голубого и фиолетового. Психологические эффекты, вызываемые тёплыми и холодными цветами, прямо противоположны.
Тёплая гамма. В отделке интерьера заведения используется так называемое «свойство температуры»: в помещении, окрашенном в тёплые тона, температура субъективно воспринимается на 3-5 градусов выше, чем в точно таком же зале, выдержанном в холодных тонах. Соответственно, когда нужно подогреть, активизировать посетителей, подтолкнуть к совершению импульсных заказов, применяют цвета тёплые. И благодаря такому “согревающему” эффекту теплая цветовая гамма кафе может стать конкурентным преимуществом в холодное время года. В теплой гамме самым сильным является красный цвет. Под влиянием этого цвета активизируются все функции нашего организма: дыхание ускоряется, мышцы напрягаются, а сердцебиение учащается.

Красные акценты в интерьере заведения стимулируют покупателей и увеличивают импульсные (незапланированные) решения. То есть, если их останавливала изначально цена блюда, то в процессе они могут решить, что сегодня маленький праздник и позволить себе его. Также этот цвет вызывает аппетит и улучшает пищеварение, а потому идеален для кафе и ресторанов. Однако нельзя с ним переусердствовать, он быстро утомляет и провоцирует вспыльчивость и агрессию.

Оранжевый цвет наравне с красным вызывает прилив энергии и улучшает аппетит. Но он лучше работает в качестве акцентного, а не основного цвета. Его переизбыток в пространстве раздражает. А вот сочетание оранжевого с голубыми оттенками дает ощущение раскованности и свободы. Такое цветовое решение подходит для спортивных баров.

Желтый цвет улавливается глазом самым первым. Он стимулирует зрение и вызывает радостное настроение, а потому лучше других цветов привлекает внимание. Его можно использовать для анонса акций и специальных предложений. К тому же текст на желтом фоне наиболее удобен для восприятия. Присутствие желтого в интерьере активизирует мышление и помогает прийти к компромиссу, так что в качестве акцентного цвета его можно использовать смело. Главное не переусердствовать: избыток желтого вызывает алчность и недовольство. Также желтый оживляет воображение, способствует принятию новых идей и ассоциируется с чем-то интересным. А в сочетании с зеленым он отлично подходит для оформления рабочего пространства управляющего состава заведения и рекламистов.
Холодная гамма. Согласно психологии цвета, с созданием в пространстве спокойной и расслабляющей атмосферы, релаксацией, лучше всего справляются холодные цвета (синий, голубой и фиолетовый) и их оттенки. Под влиянием цветов холодной гаммы посетители больше времени проводят в заведении, дольше выбирают и меньше беспокоятся о расходах. К тому же, с помощью холодных цветов можно снизить агрессивность и активность гостей. Такая задача крайне актуальна для заведений, специализирующихся на бизнес-ланчах, где постоянно царит суматоха. Это поможет посетителям избежать конфликтов и раздражения от ожидания, которые дают ощущение усталости от обедов в часы «пик». Использование холодной гаммы цветов также оправдано в дорогих заведениях, столовых, где могут возникать очереди, ресторанах, специализирующихся на морепродуктах или летних верандах, где в жару так хочется ощущения прохлады.

Голубой цвет вызывает ощущение благополучия и ассоциируется с постоянством. Он способствует доверительному общению и хорошему усвоению информации во время обеда. Благоприятное воздействие этого цвета можно использовать и при оформлении комнаты переговоров управляющего состава, так как в сочетании с жёлтым такая цветовая комбинация повышает концентрацию и активизирует умственную деятельность.

Синий цвет, напротив, совершенно не пригоден для рабочей среды. Он рассеивает внимание, уменьшает работоспособность, снижает остроту зрения, но именно поэтому по праву считается лучшим решением для комнаты отдыха или кальянной. Но для оформления интерьера кафе или ресторана он не подходит: под влиянием этого цвета пропадает аппетит, а пространство кажется пустым и холодным.

Фиолетовый считается психологически самым «тяжёлым» для восприятия цветом спектра. Насыщенные оттенки фиолетового снижают активность, подавляют аппетит и больше подходят для медитации, чем для ресторанного бизнеса. А сочетание фиолетового с оранжевым наводит на грустные размышления. Однако, он прекрасно подойдёт для оформления «развлекательной» части заведения, - танцпола или, например, бильярдной.
Спектральные и земляныеЦвета спектра в оформлении помещения ассоциируются с натуральностью, свежестью продуктов, а ещё с новизной. Земляные (бежевый, коричневый, бутылочный и др.) называются так потому, что их производили из цветных почв, и они наиболее точно передают цвета земли, тем самым действуя успокаивающе и давая ощущении стабильности. Такая гамма хорошо смотрится в оформлении заведений, торгующих «дарами земли» (пекарни, винные лавки) и «колониальными» товарами (кофе, какао, шоколад), - различного рода кофеен и кондитерских. Что касается черного цвета, то его лучше всего использовать в качестве акцента, подчеркивающего основные цвета. Несмотря на всю свою притягательность и изысканность, этот цвет создает ощущение замкнутости и отсутствия воздуха, особенно в помещениях, где в черный окрашены потолок или стены.
Коричневый цвет не является таким формальным, как черный, и воспринимается более естественно. Этот цвет внушает силу, доверие и уверенность, ассоциируясь с надежностью и долговечностью. Но, несмотря на то, что коричневый цвет вселяет спокойствие, его избыток в интерьере может навевать мрачные мысли, а потому он нуждается в ярких цветовых акцентах. В рабочих моментах для сотрудников заведения темные оттенки коричневого утомляют и снижают работоспособность.
Ахроматические цвета Для большинства заведений помещение в светлых тонах является беспроигрышным вариантом. Светлые цвета визуально увеличивают пространство и подчёркивают яркие детали, расставляя нужные акценты для гостей.
Белый цвет абсолютной чистоты и порядка, в цветовом оформлении интерьеров он играет ведущую роль и служит основой. Также он оказывает дисциплинирующее воздействие.
А светло-серый цвет хорошо подходит для организации стабильной работы сотрудников. Часто в этой гамме оформляются раздевалки официантов или место метрдотеля. Правда, серые стены не располагают к тому, чтобы в них долго задерживаться. Поэтому однообразный серый следует оживлять яркими цветами.
Нассыщенные и «пастельные» Насыщенные цвета выражают силу и энергию и традиционно применяются в кафе для молодёжи для поддержания тематики динамичности жизни, придания дополнительной глубины и повышения значимости предоставляемых товаров и услуг. В этом спектре зелёный является бесспорным чемпионом.
Влияние зеленого цвета может быть разным в зависимости от того, какие оттенки в нем преобладают. Так, если в зеленом доминирует синий цвет, то он успокаивает и расслабляет, а если желтый, то возбуждает. Зеленый считается нейтральным цветом и может использоваться с цветами как теплой, так и холодной гаммы.
Желто-зеленый создает впечатление благополучия и оптимизма. Сочный зеленый цвет ассоциируется с природной свежестью, обновлением и молодостью, а потому идеален для недорогих кафе и летних веранд, предлагающих фрукты и прохладительные напитки в жаркий день.
Глубокий изумрудный оттенок говорит о роскоши и подходит для дорогих ресторанов и солидных баров. К тому же зеленый цвет не вызывает усталости глаз и снижает боль, что даже сделало его популярным в сфере медицинских услуг.
Пастельные же идеальны для передачи нежности, лёгкости и изящества. Им свойственно наименьшее раздражающее воздействие. Иногда наслаждение изысканным вкусом продуктов и напитков передаётся с помощью пастельных тонов в оформлении интерьера заведения и его рекламной продукции. Пастельные оттенки оранжевого цвета (персиковые), ассоциируются со здоровьем, красотой, золотистым загаром и отдыхом, поэтому они так часто используются в оформлении специальных кафе в салонах красоты.
Яркие и сдержанные- по праву говорят, что яркие, «кричащие» цвета больше нравятся детям и… людям с низким достатком, в то время как большинство людей состоятельных, достигших успеха, предпочитает сдержанные оттенки. Поэтому яркое цветовое решение часто используют заведения быстрого питания, недорогие кафе и закусочные.
2.4 Мебель и аксессуары
Когда идея заведения готова и даже частично реализована оснащена кухня, подсобные помещения, есть дизайн-проект наступает ответственный момент подбора мебели. Мебель создает атмосферу заведения, помогает Вашим гостям расслабиться, зонирует пространство и обеспечивает удобство на рабочих местах персонала. Каждому формату предназначен свой вид ресторанной мебели она, наравне с кухней и обслуживанием, является показателем статуса заведения и отношения к своим гостям.
Мебель для различных помещений предприятий питания следует подбирать наборами с уровнем удобств, соответствующим уровню обслуживания в предприятии. Для столовых, кафетериев, кафе общего типа мебель должна быть удобной и прочной, выдерживающей большие эксплуатационные нагрузки. Для ресторанов и кафе специализированных мебель должна наряду с функционально-технологическим совершенством иметь образные характеристики. Состав серий мебели и их решения должны учитывать комплексность организации всего интерьера. Интернет-магазин PizzaGroup.ru предлагает большой выбор мебели для кафе и ресторанов, баров и столовых. В нашей коллекции деревянные столы и стулья, мягкие кресла и диваны, ультрасовременная мебель из пластика, барные стойки, вешалки и различная фурнитура. Есть отличные варианты для небольших пиццерий и крупных итальянских ресторанов, фастфуда и фуд-кортов. Ценовой диапазон мебели, разные дизайнерские и цветовые решения открывают простор для выбора продуманного, взвешенного и в итоге правильного.
Для кафе и пиццерий предусмотрена подборка недорогой качественной мебели. Нет разницы, в каком формате. Вы работаете, главное каковы Ваши вкусы и предпочтения. Цены на мебель для кафе доступны и начинающему бизнесу, и давно действующему. Оснащение, в котором Вашим гостям будет комфортно, не наносит серьезный удар по бюджету. Тем более что приобрести все необходимое можно в кредит на выгодных условиях. Мебель для летних уличных и детских кафе. Для заведений под открытым небом будет актуальна мебель из влагостойких материалов, которые выдерживают температурные перепады, не нагреваются и не теряют цвет под воздействием солнечных лучей. Что касается мебели детской, то она не только безопасна без острых углов, оптимальных размеров но еще и привлекает внимание самых маленьких посетителей.
Производство мебели для кафе, ресторанов, баров и столовых сегодня ведется на трех принципах: эстетично, долговечно и доступно. Это Вы и получаете.
в плане мебельного оснащения несколько капризны. Здесь нет ничего плохого, учитывая, сколько времени, сил и средств занимает открытие формата. Кроме того каждому ресторану важна имиджевая составляющая, а мебель способна ее поддержать.
Заведениям европейской кухни, в том числе итальянской, будет интересна продажа мебели для ресторанов от известных мировых производителей. Ведь они знают о ведущих трендах в дизайне HoReCa и всегда идут в ногу со временем.
Если в Ваших планах открытие итальянского ресторана, обратите внимание на деревянную мебель для основной обеденной зоны и уютную мягкую для зоны отдыха. Стильные предметы интерьера, выбранные с учетом дизайн-проекта, настроят посетителей на долгое нахождение в зале, что отвечает главной задаче ресторатора удержать клиента. Если же Вы решили открыть английский паб или немецкую пивную, то в коллекции мебели для пивных ресторанов и баров отыщете экземпляры, подобные тем, что уже установили у себя жители Лондона и Берлина.
Уже несколько сезонов подряд не сходит с ресторанных «подиумов» мода на сезонные заведения. С мая по октябрь заполняют они улицы и площади городов. Выгода от открытия сезонного проекта очевидна, но только при условии соблюдения законодательных норм и правил оснащения. Одно из которых наличие стойкой к разным погодным условиям мебели, легкой и мобильной. Мебели для уличных ресторанов мы посвятили отдельный раздел, где можно познакомиться с вариантами складных столов и стульев, лавок. Столовые, кафетерии, закусочные форматы, пришедшие на российский рынок из советского прошлого, уже давно сломали все проецируемые на них стереотипы. Теперь эти предприятия общественного питания открывают исходя из веяний дизайна, эргономики, первоклассного технического оснащения и щедрого ассортимента.
Недорого, качественно и разнообразно так тремя словами можно охарактеризовать предложение современных городских столовых и кафетериев. Ими же мы опишем и мебель для общепита школьных и общественных столовых, купить оптом которую советуем прямо сейчас.
ГЛАВА 3. ОБЪЕМНО ПРОСТРАНСТВЕННОЕ РЕШЕНИЕ
3.1 Эргономика
XXI века состоит из множества мелких деталей. Мебель, которая легко сдвигается и компонуется, разные посадочные зоны, комфортное расстояние между столами, и многое другое. Все продумано для удобства посетителей. Главный принцип можно сформулировать так сначала удобно, потом красиво. Она изучающая различные предметы, находящиеся в непосредственном контакте с человеком в процессе его жизнедеятельности. Основной её задачей является разработка формы и оптимального расположения предметов, которые были бы быть максимально удобными для человека при их использовании. Именно поэтому одной из важных составляющих дизайн - проекта помещения должен быть масштабированный план расстановки мебели с учётом всех законов эргономики. Ведь это очень важно чтобы умело сделанный дизайн, с идеальными цветовыми и фактурными сочетаниями, был полностью пригоден для комфортного и здорового существования.
Кафе расположено на первом этаже отдельно стоящего пятиэтажного здания. План помещения рисунок 1- 3. Сетка несущих колонн 6х6 метров размеры: толщина 40х40 высота 3,50 метра. Высота потолка 3,50 метра. Помещение изначально запроектировано под предприятие общественного питания, поэтому перепланировка не требуется. Ресторан состоит из общего большого зала, кухонного блока и помещений для посетителей. Площадь помещения Зал ресторана имеет размер 12 х 18 метров. Общее число посадочных мест - 78. В зоне барной стойки 6. У центральных разделительных стоек 8. В центральной зоне 20. За столиками, в том числе между боковых разделительных стоек 44 рисунок 6-8. Естественное освещение10 окон. Количество дверей дверных проёмов: основных 3 распашные двери и 2 аварийных.
Система вентиляции Вентиляция и кондиционирование воздуха в зале ресторана осуществляется через диффузоры, встроенные в двухуровневый потолок, выполненный из ГКЛ по металлопрофилю. Внутри потолка выполнена разводка воздуховодов. Воздуховоды витые, выполнены из оцинкованной стали. Потолочные диффузоры пластиковые, белые, в цвет потолка. Система вентиляции: принудительная приточно-вытяжная.
Пожарная безопасность помещения. В зале установлены потолочные пожарные извещатели. Так же внутри потолка смонтирована автоматическая водонаполненная спринклерная система пожаротушения. В отделке пола использован ковролин (ковровое покрытие) имеющий пожарный сертификат соответствия техническим регламентам (КМ3). Смежные с залом помещения ресторана, оборудованы пожарными кранами в соответствии с действующими нормами. Ширина основных проходов между столиками не препятствует своевременной эвакуации посетителей и работников зала.
Несущие колонны высота 3,50м. ширина 40х40 Производитель Jungle. Колонны отделаны искусственной покрытием с имитацией шкуры зебры. Покрытие можно наносить на различные поверхности, такие как бетон, гипсокартон, штукатурка, дерево, пластик, стекло и железо, при условии стандартной подготовки под покраску, кроме помещений с повышенной влажностью. Комплект: грунтовка, база, трафарет на 3кв.м./5кв.м.
Двухуровневый потолок рисунок 4. Высота 10см. Потолок двухуровневый. Верхний отделан крашеной сосновой вагонкой, на несколько тонов светлее вагонки стен. Производитель Les-torg. Вагонка Лиственница крашенная 96/115/144 х 14 х 2000 4000 Цена товара зависит от сорта дерева: Сорт, категория древесины Элит, Премиум, Натур, Кантри данный вариант Элит 2000руб. Кроме видов обрабатываемых поверхностей древесины у текстурированной вагонки существуют классификация по сортам. Экстра, Прима, А, В, С сортность материала, определяемая наличием мертвых или живых сучков на внешней поверхности изделия, а также содержанием смоляных кармашков в древесине. Данный сорт A. Брошюрованная вагонка отличается внешним видом от обычной евро вагонки. Вместо равномерной структуры на вагонке видны рифленые древесные кольца, натурализующие отделочный материал и создавая объем. Природный рисунок получается после обработки вагонник на собственном производстве стальными щетками, которые удаляют слой ранней древесины. Оставшийся на поверхности ворс убирают щеткой из сизаля, а в качестве финишной отделки, вагонку покрывают составами на основе масла с воском. Нижний уровень сделан из гипсокартона по металлическому каркасу. В этом разделе были листовые отделочные материалы для отделки потолков, стен, полов из ГКЛ (гипсокартонный лист). Производитель: KNAUF Гипсоволокнистый лист ГВЛ 1200х2500 10мм (влагостойкий) Вес 35 кг. цена: 575руб. В упаковке 50 шт. Оклеен обоями под покраску. Внешне это 25 метровый рулон шириной 1.06м, стоимостью1 542 руб. Производитель PARADE артикул: Ц1112128. Оклейка потолка обоями под покраску все больше приобретает актуальность. Такая отделка выглядит красиво, к тому же прослужит много лет, ведь покрытие можно мыть. Кроме того, данный материал скрывает незначительные дефекты поверхности. Потолочные обои под покраску бывают двух видов: бумажные и флизелиновые. Вторые более надежные и обладают длительным сроком службы, их разрешается мыть. Существуют отечественные и импортные обои, последние лучше - их возможно неоднократно перекрашивать. При поклейке отечественные полотна нужно пропитывать клеем, импортные в этом не нуждаются, достаточно нанести клеевой состав только на потолок. Хорошо зарекомендовала себя немецкая продукция. Российские производители указывают на упаковке «тисненые обои», а европейские «обои под покраску». Выпускают также материал, который уже окрашен. Поможет выбрать потолочные обои под покраску каталог, который можно посмотреть на сайтах большинства производителей. Существует огромный выбор фактуры материалов, поэтому отсутствует проблема с решением, которое гармонично впишется в интерьер детальнее: Выбор краски зависит, прежде всего, от вида используемых обоев. Стеклополотно можно красить любым составом, а например, для флизелиновых обоев подходит исключительно вододисперсионная краска. Но даже если для покрытия можно выбрать любую краску, к этому стоит подходить ответственно, ведь от выбора зависят свойства поверхности. Обрамлен потолочным молдингом.
Окно из сосны Трёхстворчатое поворотное/ откидное 180х180 промежуток между окнами 120 расстояние от пола 80см, от потолка 70см. Наиболее доступные по цене. Материал для изготовления деревянных окон. Но иногда у заказчиков складывается по поводу сосновых окон определенное предвзятое впечатление. На самом деле, деревянные окна из сосны, при своей невысокой стоимости, обладают всеми достоинствами, присущими качественным современным деревянным окнам. И по многим параметрам, значительно превосходят пласт Тип окна: Трехстворчатое Тип профиля: Трехслойный клееный сосновый брус 78*78 мм Фурнитура: SIEGENIA-AUBI (Германия) Уплотнитель: SCHLEGEL (Германия) Стеклопакет: Двухкамерный 4-12-4-12-4 Guardian Покрытие: BEKERS (Швеция)
Дверные проёмы: толщина стены 10см -15см толщина дверного полотна 4,5 см. основные 2 двери распашные 124х210 расположены по левую и правую сторону от камина. Распашная дверь главного входа 144х210 расположена по правую сторону от главного бара. Два аварийных выхода открывающиеся наружу 60х210 Италия КОЛЛЕКЦИЯ: VENEZIA СТИЛЬ: Белые деревянные межкомнатные итальянские двери. Деревянная структура двери. Дверная коробка выполнена из наборного массива. В комплекте 5 наличников с крылом для вставки наличников в паз коробки.
Такая система наличника и коробки позволяет дополнительно регулировать дверь по уровню стены при установки и скрывать все недостатки не ровного проема. Петли и замки производство Италия AGB. великолепно подчеркнут любую дизайнерскую идею. Они не разрушат, не затмят общую линию, а наоборот только лишь станут тонким акцентом в интерьере. Двери из этого материала прекрасно дополняют помещение, оформленное в светлых оттенках, они имеют достаточно выразительную фактуру, не перегружают интерьер и очаровывают своей естественностью.
Зона отдыха или зона чилаут рисунок 9. Мебель для отдыха проектируется с учётом размеров человека, сидящего в расслабленной позе, однако следует учитывать градус уклона сиденья и спинки, дабы не затруднить вставание. Высота чайного столика принимается исходя из возможности доступа к нему без вставания с кресла или дивана, только наклоняя корпус. Следует учитывать, что это возможно только если голени сидящего располагаются под столиком, для чего и предусматривается необходимое пространство.
Угловые диваны рисунок 12. Устанавливать таким образом, чтобы обеспечить возможность сидящему в углу расположить ноги, не мешая сидящим рядом.
При входе в зал для более эффектного и просторного решения кафе по левую сторону компактно расположена сцена рисунок 9. 5149х1261, за сценой танцпола расположен телевизионный экран (зона Кинотеатры, караоке). Восприниматься с боку под углом не более 30 градусов, с расстояния, которое зависит от размеров изображения. Главный луч зрения, направленный на центр изображения, отклоняется к низу на 7 градусов (направление нормального не напряжённого взгляда). Понятие чилаут, оно же чил-аут (от англ. Chillout, Chill out music) пришло к нам из английского языка и имеет несколько значений. Во-первых, это стиль электронной музыки, название которого произошло от английского сленгового слова, означающего расслабление, призыв успокоиться, остыть. Местом зарождения этого музыкального направления, считается Cafe del Mar, всемирно известный бар Ибицы. Во-вторых, чилаутом называют отдельную танцевальную зону на крупных вечеринках или вообще зону отдыха. Зона чилаут рассчитана на тех, кто, натанцевавшись, хочет просто посидеть и отдохнуть. Атмосфера чилаута призвана располагать к приятному общению, отдыху и флирту. Ее атрибутами являются - интимный полумрак, приглушенные звуки, расслабляющая фоновая музыка и свободное положение тела. Здесь так же можно потанцевать под медленные ритмы или покурить кальян. под чилаут используют небольшую комнату или шатер с приглушенным светом, кальяном, иногда баром, столиками для чайных церемоний. Бывает, что в зоне чилаут размещают пуфы, диваны, кресла, подушки, что позволяет гостям вытянуть ноги или занять полулежачее положение, а если расположить в зоне чилаут торседора, то это место будет служить сразу нескольким целям.
Для оформления зоны чилаут и придания ей атмосферы расслабленности и спокойствия могут быть использованы камин, видеоряд, слайд-шоу, love-story, ароматические свечи и палочки. Немаловажным моментом в оформлении зоны чилаут является освещение. Чем ниже расположен источник освещения, тем больше атмосфера способствует расслаблению. Стоит отметить, что различные источники света разных цветов вызывают разнообразные эмоции. Способность цвета воздействовать на настроение, самочувствие и даже сексуальность человека используется даже в медицине (хромотерапия). В зоне чилаут используется мягкая мебель Очень красив глубокий фиолетовый свет. Как утверждают психологи, он способствует творческому настроению. Зеленый цвет умиротворяет и располагает к общению. Приглушенный красный цвет будет способствовать хорошему настроению, мобилизации сил и внимания. Синий цвет создает ощущение оторванности от мира. Зона чилаут это, прежде всего, проявление вашей заботы о гостях, ведь не каждый человек, особенно зрелого возраста, желает веселиться весь день. Приглушенный свет, легкая музыка, чай, сладости и кальян умиротворяют, создают спокойную атмосферу, возможность отдохнуть от шумного веселья и просто пообщаться в спокойной обстановке. Кроме того, в зоне чилаут человек сможет решить, в зависимости от своего состояния, пора ли ему уже идти домой или можно продолжить праздновать свадьбу.
Так как зал огромный в соответствии с габаритами помещения установлен массивный камин рисунок 5. С правой стороны от входа по середине стены: Он безопасен, работает от электричества, экологичен, создавая иллюзию огня. Внешние размеры камина 2620 см. существенно влияют на дизайн интерьера. Эти размеры зависят от объёма помещения, однако их превышение приведёт к перегреву помещения. Существует небольшая зона перед камином, в которой не допускается размещение мебели. Камин это пылающее сердце любого помещения. Kratki NOVEMBER в белом цвете это прекрасный и элегантный биокамин с порталом, который, несомненно, сможет украсить любое помещение, особенно оформленное в английском стиле. Представленная модель предназначена для использования в жилых помещениях. Монтируется данный отопительный прибор вплотную к плоской стене. Биокамин NOVEMBER от компании Kratki с легкостью обогреет помещение и создаст романтичную и в некотором роде загадочную атмосферу в жилище. Камин (от лат. caminus открытый очаг) разновидность печей-теплогенераторов, в которых генерация тепла из первичного вида энергии (химической теплоты сгорания топлива) генерируется непосредственно в зоне технологического процесса (ЗТП) которая является смешанной с зоной генерации тепла (ЗГТ) и с открытым топливником в рабочем пространстве печи, что лимитирует нагрев окружающего пространства конвекцией и теплопроводностью и дает преобладающий потенциал лучистому теплообмену в определенных диапазонах длин волн. Камин состоит из 4 основных частей: Портал передняя часть, украшенная декором. Зачастую П-образная. Топка камера сгорания топлива (уголь, дрова, газ и т. д.).
Дымосборник закрытая камера над топкой, служащая для плавного перехода газов в трубу; необходим исключительно для каминов с открытой топкой, позволяет изготавливать камин больших размеров, со сложной трубой. Дымоход вертикальная труба для отвода продуктов сгорания и обеспечения тяги. Эффективность. Тепловой эффект камина в значительной степени обусловлен радиационным нагревом, при котором объекты, окружающие камин, нагреваются и часть этого тепла передается воздуху. Распространено заблуждение,что камин не дает тепла достаточного для обогрева дома. Мало тепла дает открытый камин.Камины со встроенной закрытой топкой дают тепло , которое позволяет обогреть целый дом. Некоторые камины содержат вентилятор, предназначенный для усиления передачи части тепла камина воздуху конвекцией, в результате чего более равномерно прогревается отапливаемое помещение. Классификация. По конструктивным особенностям: Заглублённые в нишу (Английский или Закрытый) Камин Рамфорда. Открытый (ещё называют «Швейцарский» или «Альпийский»), стоящий в середине помещения, с топливником, открытым со всех сторон. Полуоткрытый, пристроенный к стене и не связанный с конструкцией стены. Камины со встроенной каминной топкой. По виду топлива:Дровяные, угольные,газовые, биотопливные, электрические (Электрокамины), пеллетные. Архитектурные стили
Классический определяется наличием П-образного портала и в подавляющем большинстве случаев открытой топкой, хотя в последнее время все больше применяются топки закрытого типа, обладающие большим КПД. Это достигается путём контроля притока воздуха в топку. При ограничении притока воздуха внутрь топки уменьшается также и скорость выброса нагретых дымовых газов в дымоход, что в свою очередь повышает количество тепла, рассеиваемое топкой в околокаминное пространство. Для каминных порталов классического стиля характерно применение мрамора или другого натурального камня, изредка чугуна или даже дерева.
Рустикальный Зачастую также имеет название «Кантри». Это порталы малых и средних размеров Д-образной формы. Выполняются в пристенном или же угловом исполнении. Портал выполняется из недорогих материалов: натуральных песчаник, ракушечник, или же искусственных, например эдельрок. В портале почти всегда предусматривается отдельная ниша для хранения дров.
Модернизм и ХайТек это современные каминные стили. Появились они относительно недавно, во второй половине XX века. Несмотря на свойственный этим стилям минимализм, формы порталов этих каминов завораживают и удивляют смелостью решений. Отдельные модели каминов стиля Хайтек выполняются только в единственном экземпляре. Так например, камины компании Focus, именуемый OmegaFocus, имеет оригинальный разрыв в металлической пластине, служащей фасадом портала, а рисунок разрыва металла уникален в каждой выпускаемом экземпляре и подписывается лично Домиником Имберто основателем и идейным вдохновителем компании Focus.
Бионика этот стиль появился в конце XX, начале XXI века. Источник вдохновения для данного стиля природа. Минимум углов и прямых линий, ощущение постоянного движения характерные особенности бионики. Камины в этом стиле в настоящее время являются эксклюзивными произведениями искусства.
Изразцовый изготавливается, в основном, российскими производителями. Название свое получили от типа используемого в их облицовке материала изразцов (керамических элементов украшения или облицовки стен либо печей, имеющих на тыльной стороне коробчатый выступ для сцепления с кладкой.
Электрокамины- В отличие от других типов камина, электрокамин по своей сути является принципиально иным устройством. Чаще всего обогрев помещения электрокамином реализуется по принципу слабого тепловентилятора, либо инфракрасного обогревателя. Однако подобно классическому камину, электрокамин также способен выполнять декоративную функцию за счет визуальной имитации натурального пламени и традиционного или современного оформления портала. На раннем этапе производства, и в наиболее дешевых на сегодняшний день моделях для имитация пламени используют фигурно вырезанные лоскуты ткани, приводимые в движение воздушными потоками. На выпускаемых ныне моделях средней и высшей ценовой категории применяются видеоэкраны различных технологий, вплоть до LCD. Не рекомендуется электрокамины ставить напротив окон, светильников и т. п. Направленные световые лучи понижают яркость зрительного эффекта. Также часто встречается эффект тления: в пластиковых копиях дров очагово располагаются световые источники разной интенсивности. Функция обогрева часто является отключаемой, таким образом запуск электрокамина в эстетических целях становится комфортным и в теплое время года.
В данном случае я выбрал безопасный и в то же время практичный вариант камина электронного типа.
Декор кафе отличается креативным дизайном с большим количеством авторских решений и изделий. Деревянные панели с грубой, необработанной фактурой, глазурованная керамическая плитка, шершавая на ощупь кожа вот основные материалы, которые создают образ брутального заведения
Важно помнить, что при расположении нескольких рабочих мест в помещении следует учитывать транзиты необходимые проходы. При этом минимальная ширина проходов составляет 500 мм. Для освещения рабочего места принципиально важным является правильное определение направления падающего света. Тело и руки работающего человека, а также инструменты, не должны отбрасывать тени непосредственно на рабочую поверхность, а источник света не должен слепить глаза. Естественное освещение организуется правильным расположением окон и наличием раздвижных стеклянных перегородок. Следует отметить, что покрытие рабочей поверхности не должно быть полированным, в противном случае отражение источника света слепит глаза.
Высота рабочей поверхности определяется, прежде всего, характером предметов работы: более мелкие предметы требуют большей высоты поверхности. Ширина поверхности определяется досягаемостью руками без наклона корпуса. При проектировании мебели и оборудования с цокольными опорами следует учитывать, что удобный доступ к рабочей поверхности требует пространства для носков ног человека. Это возможно решить либо свесом края рабочей поверхности, либо устройством подрезки цокольных опор. Пространство такого рабочего места определяется не столько рабочей позой человека, сколько удобством доступа к необходимым ёмкостям, в первую очередь низким. Норма размер площади стола, необходимого для приёма пищи полукруг радиусом 300 мм, таким образом, длина стола принимается из расчёта 600 мм на одно место плюс некоторый запас у края стола. Глубина стола определяется с учётом размещения блюд и напитков, и таким образом оказывается меньшей у столов для повседневного пользования и большей у праздничных и банкетных столов. Размеры столов в кафе, столовых не должны отличаться от обеденных столов в жилье. Мебель для сиденья подбирается в зависимости от высоты стола, рисунок10-11. Тип спинной опоры в зависимости от продолжительности приёма пищи, в ресторанах и кафе пояснично-подлопаточная только поясничная или вовсе без опоры. Зонирование в маленьких помещениях может осуществляться при помощи выделения цветом и светом. При зонировании пространства немаловажным является момент передвижения людей в помещение. К таким приемам можно отнести соединение зоны кухни и столовой зоны, а также удаление пищевой зоны от входных дверей и т.д. Эстетика- главной задачей в дизайне кафе является позитивный и универсальный внешний вид. С одной стороны интерьер должен быть дружелюбным и простым, чтобы не «отпугивать» посетителей излишним «глянцем». С другой стороны он должен удовлетворять эстетические ориентиры взыскательной публики. Важно, чтобы он нравился как взрослым, так и детям.
Разумный бюджет проекта. Сметная стоимость проекта должна быть разумной. Мы добиваемся привлекательного внешнего вида, используя простые и доступные материалы. При этом важным критерием является износоустойчивость, так как кафе посещают сотни людей каждый день.
Освещение - для данного проекта потребовалось 15 люстр в ретро стиле. По периметру помещения было установлено 14 шт. и 1 в центре зала над зоной центрального бара и 2 бра с левой и с правой стороны для равновесия, гармоничности в сочетание с люстрой. В зоне главного бара было установлено 4 свисающих светильника. Световые приборы: Люстра модель MW-LIGHT Стиль: Crystal, Коллекция: Илвита, Тип светильника: Потолочные, Диаметр: 60 см. Высота: 70 см (без учета подвеса) высота подвеса: 80 см (max), Вес:12 кг. Площадь освещения: 18 кв. м, Суммарная мощность: 360 W (Ватт). Настольная бра бренд: CHIARO (Германия), Стиль: Country, Коллекция: Версаче, Тип светильника: Настольные лампы, Диаметр: 43 см Высота: 67 см. Вес: 4.74 кг. Суммарная мощность: 60 W (Ватт). Подвесные светильники производитель: LUSSOLE, Модель: 1445, Lussole SESTU Подвес; Основа:Металл; Цвет Основы:Хром; Материал Плафона:Стекло; Цвет Плафона:Оранжевый; Кол-во ламп:3; Мощность, W:60; Тип ламп:E27; Ширина,см:100; Высота,см:130
3.2 Экология в проекте
Так, как данное кафе элитное заведение оно изготовлено исключительно из экологически чистых натуральных материалов, натуральную пищу выращенную натуральным путём происхождения. И так, как в данной работе интересует выбранный материал о пищевой продукции отмечу в конце пункта.
Разделительные стойки сделаны из шлифованного дерева окрашенного белым. Внутренние элементы стоек сосновый сруб покрытый бесцветным лаком. Столешница, основание, перегородки, центрального и главного бара выполнены из натуральных экологически чистых материалов из натурального камня белого мрамора. Придающие ощущение: мощи, силы, риска уверенности в интерьере и внушение легкости воздушности конструктивности. Столешница из камня долговечна, за ней легко ухаживать, она очень элегантно смотрится и необычайно красиво. Столешницы из камня изготовлены на заказ, т.к. каждая индивидуальна. Для придания законченного вида встроен плинтус или фартук из камня того же материала и цвета. Натуральный мрамор очень красивый камень с неповторяющимся рисунком. Кухонная столешница из природного мрамора требует особого ухода. В данном случае это лучший выбор для кухни. Стенки же выполнены из блок хаус панелей. Ширина панели 193/185 категория (АВ) производитель Verholz, длинна 3м. материал сосна. Панели эмитируют бревенчатую конструкцию стенки. Лицевая поверхность имитирует оцилиндрованное бревно, что, в свою очередь, создает иллюзию того, что перед вами не сооружение из бетонных плит или кирпича, а дом, построенный из деревянного сруба высокого качества. Блок-хаус используется для обшивки как наружных, так и внутренних стен здания, беседок, бань (при этом запах смолы и древесины создает ощущение тепла и уюта). В течение многих лет конструкция сохранит геометрию формы и идеально гладкую поверхность без трещин, а дом будет выглядеть эстетично и аккуратно.
Простота, экологичность и изысканность- стильное природное решение. Как, впрочем, и другая продукция при правильной эксплуатации и уходе служат десятилетиями. А комбинации с другими материалами и использование новейших технологий позволяют сделать деревянный стол центром дома вне зависимости от того, в каком стиле выдержан интерьер. Кухонные столы из натурального дерева это классика, которая до сих пор остается модной и актуальной, потому что красота и экологичность изделий из дерева приходится по душе . Дерево вообще считается универсальным, натуральным и природным материалом, который помогает большинству людей максимально приблизиться к гармонии с природой.
Стройматериалы могут выделять вредные вещества или быть экологичными. Для ремонта и строительства лучше выбирать безопасные материалы. Лучше всего выбирать экологичные природные материалы, которыми издавна использует человек. Это камень и дерево. Они не опасны для здоровья и создают в помещении хороший микроклимат. Но для современного строительства такие материалы не всегда подходят из-за существенных минусов: к примеру, дерево не обладает прочностью и огнестойкостью. Камень дорогой материал, который не пригоден для строительства многоэтажных домов. Поэтому в строительстве используют материалы, которые изготовлены на основе природных стекло, бетон и др. Такая продукция безопасна для человека. О чем нужно помнить при покупке стройматериалов? Вся продукция должна иметь сертификат качества. Материалы не должны выделять специфический запах. Если вы почувствовали, что материал издаёт «химический» запах, он выделяет токсичные вещества. Плохой запах это «индикатор», который позволяет предположить, что товар может быть опасным для здоровья.
Напольное покрытие ковролин. Он не выделяет вредные вещества, но не рекомендуется использовать людям с аллергией. Ламинат внешне выглядит «под паркет», но может выделять опасные вещества. Линолеум наименее экологичный материал. Керамическая плитка - прочна, надёжна, экологически безопасна. Зеленый ковролин ковролин, содержащий волокна зеленого цвета. Часть ассортимента компании Sintelon.RS состоит из моделей ковролина зеленого цвета. К ним относятся модели ковролина, в которых присутствует только один или несколько оттенков зеленого цвета, а также разноцветные модели, в которых присутствует зеленый цвет. Вне зависимости от области применения, зеленый ковролин способен создать в помещении чувство гармонии и просторности. Учитывая то, что зеленый цвет относится к группе холодных цветов, он будет хорошо сочетаться с другими элементами интерьера и деталями красного, оранжевого и желтого цвета, а также других цветов.
Отделка стен: большая часть крашеная сосновая вагонка, остальные стены белая штукатурка. Отделка вагонка из сосны. Вагонка деревянная из хвойных пород деревьев экологичный и недорогой отделочный материал. Древесина сосны имеет уникальные характеристики, она регулирует микроклимат в помещении и создает атмосферу уюта и комфорта. Белая структурная штукатурка l-2-3-Rollpufr на основе искусственной смолы, содержащая до 40% мрамора в составе, с размером частиц 0,5 мм обеспечивает получение тонкой консистенции, которая легко наносится валиком (роликом), широкой или обычной кистью. Структурирование поверхности проводится в течение 20 минут после нанесения материала. Штукатурка l-2-3-Rollpufr может быть затонирована с помощью специальных красителей терракотового, желтого, синего, зеленого и серого цветов. Материал обладает хорошей адгезией со всеми обычными строительными основаниями, надежно перекрывает трещины и может покрываться краской.
Колонны украшены декоративным покрытием с имитацией шкуры зебры.
Покрытие наносится на различные поверхности, такие как бетон, гипсокартон, штукатурка, дерево, пластик, стекло и железо, при условии стандартной подготовки под покраску, кроме помещений с повышенной влажностью. Интерьер, выполненный с использованием натуральных материалов, всегда считался более престижным. Натуральные материалы обладают несомненными эстетическими качествами, создают в доме необыкновенно уютную и благоприятную атмосферу. Но сдерживающим фактором для потребителя может стать их высокая стоимость, трудоемкость в монтаже и «капризность» в эксплуатации. Комплект: грунтовка, база, трафарет на 3кв.м./5кв.м.
Потолок двухуровневый. Верхний отделан крашеной сосновой вагонкой, на несколько тонов светлее вагонки стен. Нижний уровень сделан из гипсокартона по металлическому каркасу. Оклеен обоями под покраску. Обрамлен потолочным молдингом. Разделительные стойки сделаны из шлифованного дерева окрашенного белым. Внутренние элементы стоек сосновый сруб, покрытый бесцветным лаком.
Стены Панно на стенах обои в обрамлении молдингом. Обои Минус виниловых обоев в том, они не экологичны, плюс - хорошо моются, поэтому подходят для кухни и прихожей. Текстильные обои красивы, не выцветают, но тяжело клеятся. Они подходят для жилых помещений. Линкруст долговечен, оригинален, но в нем мастик ограничивает применение. Растительные обои (джутовые, из тростника, бамбука) безопасны, так как изготовлены из природных материалов, износоустойчивы, их можно клеить в спальной комнате. Бумажные обои изготавливают из экологически чистых материалов. Бумажный вариант часто покупают для спальни, детской, гостиной. Вывод для больших помещений можно выбрать паркет, паркетную доску и пробковое. покрытие. Безопасность строительных материалов зависит не только от их состава и материала, из которого они изготовлены, но и от неправильных условий использования. Существуют стройматериалы опасные сами по себе, из-за высокого содержания токсинов, примесей тяжелых металлов, но также есть и материалы способные нанести вред из-за контакта с окружающей средой. Так, например, полностью натуральное дерево, при длительном контакте с влагой может стать источником грибка, плесени, неприятного запаха и стать рассадником для различных бактерий.
Таким образом, чтобы обезопасить помещение стоит выбирать экологически безопасные материалы и использовать их с умом. О том, какие стройматериалы помогут улучшить интерьер и микроклимат.
3.3 Цвет и свет в проекте
Цветовое решение в проекте. Оформляя интерьер, я влияю на его цветовое решение, и это решение в свою очередь цветовой средой влияет на нас. Одно помещение создает хорошее, свободное, легкое настроение, другое - подавляет, сдерживает, угнетает активность. Цвет возбуждает чувство теплоты и холода, бодрости и усталости, легкости и тяжести. С помощью цвета можно расширять и сужать представление об окружающем нас пространстве, придавать ему прозрачность и массивность, замкнутость и раскрытость. Правильно подобранный цвет способствует повышению производительности труда, удачно подобранное цветовое решение помещения с учетом тех процессов, которые в них происходят и в зависимости от того, как используем эти помещения, влияет не только на умственную деятельность человека, но и на общее состояние его самочувствия, здоровья в целом. Пренебрегая ими, можно впасть в крайности: создать унылый невыразительный интерьер или, наоборот, излишне пестрый для повседневного восприятия, а следовательно, утомляющий глаза и мозг. Все цвета делятся на теплые и холодные.
Теплые цвета - желтый, желто-оранжевый, красный, красно-оранжевый, красно-фиолетовый и все производные от них. Зеленый цвет, когда в нем больше синего, является холодным, если больше желтого-теплым. Теплые, интенсивные цвета кажутся более близкими, поэтому их называют выступающими. Холодные воспринимаются как далекие, отступающие.
Холодные цвета - голубой, фиолетовый, синий и вся группа сине-зеленых и сине-фиолетовых тонов. Для комнат с ориентацией на юг желательно применение холодных цветов, с ориентацией на север обычно рекомендуют теплые цвета. В комнатах, выходящих на юг, можно применять более интенсивные цвета, чем в комнатах, ориентированных на север, где стены должны быть более светлыми (здесь учитывается естественная освещенность). Колорит - это соотношение всех цветов, входящих в композицию интерьера комнаты или квартиры в целом. Он определяется доминирующими цветами близких оттенков. Например, если в решении интерьера доминируют серо-голубые тона, то при незначительном наличии желтого, коричневого и белого он воспринимается в серо-голубом колорите.
Цветовое решение интерьера может быть нюансным или контрастным. При нюансном решении в помещении преобладают мягкие, близкие по тону цвета. Причем, более светлый цвет рекомендуется для больших плоскостей, на которых выделяются темные предметы меблировки и убранства. Для контрастного решения характерно гармоничное сочетание различных цветов и оттенков. Мебель с яркой обивкой может быть размещена на фоне пестрых, насыщенных по цвету и рисунку обоев, контрастно поверхности пола. Принцип оформления белого помещения довольно прост и не требует от оформителя особого умения. Разная степень включения цветных предметов, начиная от простых чистых цветов и кончая их сложными взаимными сочетаниями, позволяет постепенно разнообразить, оживить помещение. Цветовыми акцентами могут быть не только элементы мебели, оборудования, но и одежда человена, цветы на столе, книги, декоративные элементы.
Ковролин пола зелёного цвета Зеленый цвет - цвет природы и свежести. Он вызывает состояние покоя и мягкости, способствует снижению давления крови за счет расширения капилляров. Этот цвет благотворно влияет при умственном перенапряжении.
Отделка стен: большая часть крашеная сосновая вагонка, остальные стены белая штукатурка. Панно на стенах обои в обрамлении молдингом.
Двух уровневый потолок. Верхний отделан крашеной сосновой вагонкой, на несколько тонов светлее вагонки стен. Нижний уровень сделан из гипсокартона по металлическому каркасу. Оклеен обоями под покраску. Обрамлен потолочным молдингом. Следующим способом оформления потолка является обустройство подвесной конструкции. Такая технология дает возможность установки на потолочные перекрытия каркаса, который впоследствии обшивается гипсокартонными листами. Далее все происходит так, как и в первой ситуации: можно отделать поверхность декоративной штукатуркой, можно окрасить, можно оклеить обоями. Главным отличием подвесных потолков является то, что они имеют практически идеальную поверхность для отделки. Окрас потолочной поверхности в зале достаточно важен, так как именно с этого помещения обычно начинается знакомство с помещением всех гостей. Поэтому при отделке перекрытий предпочтительно применять светлые цвета - небесно-голубой, белый, бежевый. Подобная цветовая гамма прихожую сделает более просторной, и сам потолок не будет «давить» на входящего гостя.
Двери- основные функции межкомнатных дверей разграничивать внутреннее пространство здания, защищать от шума и холода, давать возможность уединиться. Декоративная функция дверей долгое время считалась второстепенной. Но с увеличением ассортимента межкомнатных дверей требование к внешнему виду стало чуть ли не самым важным. Порой достаточно лишь поменять межкомнатные двери, чтобы интерьер преобразился. Большое значение имеют конфигурация двери, ее отделка, декор и, конечно, цвет. выбор цвета двери вызывает самые большие затруднения. Подбирать дверь нужно: под напольное покрытие, мебель, стены и окна. строгих правил относительно цвета дверей в интерьере не существует. Не стоит загонять себя в рамки, боясь не соответствовать каким-то стандартам. Когда речь идет о дизайне, стандарты отступают на второй план, а на первый выходят фантазия и хороший вкус. Строгих правил относительно цвета дверей в интерьере не существует. Не стоит загонять себя в рамки, боясь не соответствовать каким-то стандартам. Когда речь идет о дизайне, стандарты отступают на второй план, а на первый выходят фантазия и хороший вкус. Цвет межкомнатных дверей и стиль интерьера.
Ориентироваться нужно, прежде всего, на стиль интерьера. Данное помещение оформлено в разном стиле. Ориентироваться на стиль холла, гостиной, прихожей, коридоров. Ведь одинаковые двери в помещении для того, чтобы не нарушать целостности восприятия общих помещений, а не каких-то конкретных комнат. Универсальный вариант белые межкомнатные двери. Двери белого цвета подойдут для любого интерьера. Преимущество белых дверей ощущение легкости и простора, который они создают в помещениях. Хорошо сочетаются с мебелью полами, стенами и так далее. Для оформления помещения выбраны двери с эффектом состаренности. Такие двери гармонично вписываются в интерьер и прекрасно подчеркивают стиль. В заключение подведу итог. По моему мнению, цвет дверей должен красиво вписываться в интерьер вашей комнаты, чтобы все внимание ваших гостей не было сфокусированным на дверях, отводило внимание, считаю, что очень резкий или темный цвет для межкомнатных проходов не подходят … Комнаты должны быть уравновешены в цветных тонах, и в них должно быть спокойно, уютно и приятно находиться. Нужно подбирать более нежные и мягкие цвета. 1. Не существует дизайнерского правила, гласящего, что цвет дверей и пола должен совпадать 2. Цвет двери может быть контрастным цвету пола 3. Дверь может сочетаться по цвету с мебелью, но это не является догмой 4. Дверь может быть нейтральной (белой, серой, кремовой, стеклянной и т.п.), ни с чем конкретно не сочетающейся, но не вступающей в дисгармонию с отделкой и убранством домашних помещений 5. Можно выбрать дверь практически любого цвета и поддержать ее дверными и оконными наличниками и плинтусами 6. Можно сочетать двери только с оконными рамами. Что может быть проще установить во всем доме окна и двери одинакового цвета и не пытаться связать воедино совершенно разные оттенки каждого из помещений.
Окна- не мало важную роль при выборе окна играет цветовое решение. Окна, как правило, предоставлены в самых разных вариантах окраски. Наибольшей популярностью пользуются белые окна. Ведь этот цветовой вариант является самым доступным и легко вписывается в любой фасад и интерьер. Белые окна классика, они придают интерьеру шик, которого будет не доставать при любом другом варианте. Что бы не творилось за окном, и какой бы сезон не стоял на дворе - белые окна всегда выглядят нарядно и красиво. Многие покупатели опасаются покупать белые окна, мотивируя это тем, что они требуют к себе особенного ухода и внимания. Внимания им придется уделять столько же, как и окнам другого цветового решения хотя бы один раз в сезон отряхнуть от пыли и промыть влажной тряпочкой. Белые окна - это всегда правильное и эстетическое решение.
Несущая колонна- серия Джунгли (JUNGLE) - экзотическая новинка, созданная специалистами итальянского завода Вальпант, и заворожившая требовательную европейскую публику. Стены, декорированные шкурами создают в помещение уникальную атмосферу африканской саванны, наполненную первозданной энергией и красотой. Материал предлагается в комплекте на 3 м и на 10 м (в комплект входят грунтовка, база и специальный трафарет) Строго, ярко выраженный контраст между чёрным и белым.
Столбик камина имитация натурального кирпича, сам камин белого цвета плавно переходящий в стены.
Перегородки выполнены из натурального дерева бревенчатой конструкции с сохранение естественного цвета дерева покрытого прозрачным лаком.
Мягкая мебель диваны стулья элементы декора, аксессуары, шторы выполнены в расцветке малинового и сиреневого цвета:
Малиновый цвет в интерьере роскошь и стиль смелого решения. Малиновый цвет придаёт ощущение пышности и изящности. Любимый цвет королей. Оттенки красного цвета в оформлении интерьера придают помещению особое благородство и респектабельность. Предпочитая малиновый цвет в интерьере, можно интересно обыграть помещение. Малиновый цвет больше всего подходит для стилей барокко, ренессанс и ампир. Но также он предпочтителен и для интерьеров модного сегодня восточного стиля. Особенности малинового цвета в интерьере. Чтобы интерьер выглядел гармонично, всегда важно подбирать к базовому цвету верно подходящие цветовые сочетания. К малиновым оттенкам хорошо подойдут все оттенки жёлтого, зелёного, чёрного и белого цветов. Так как малиновая основа визуально значительно уменьшает пространство комнаты, использование контрастных предметов мебели, аксессуаров и текстиля позволяет немного зрительно расширить эти габариты. Причём, насыщенный малиновый цвет в интерьере предполагает наличие совсем небольшого количества дополнительных контрастных акцентов.
Сиреневый цвет в интерьере- цвет интерьера может о многом рассказать о владельце помещения. Выбор сиреневого цвета для отделки и декорирования присущ утонченным творческим натурам. Сиреневый цвет способен стать источником вдохновения. Сиреневый цвет вне зависимости от стиля может внести свою нотку легкости. Именно этот цвет способен создать впечатление невесомости в пространстве, подарить ощущение нахождения вне места и времени. Поскольку этот цвет обладает сильным воздействием на восприятие человека. Считают, что это связано происхождением самого сиреневого, как сочетания красного и синего цветов, которые также достаточно активно воздействуют на восприятие. Если по каким то причинам не представляется возможным выполнить отделку стен в сиреневых тонах, а этот цвет является одним из любимых, то можно воспользоваться элементами декора в сиреневой гамме. Главное, чтобы это хорошо сочеталось с остальными цветами в интерьере.
Банкетные столы. За основу столешницы выбран нейтральный бежевый цвет. Бежевый цвет это всегда актуальная классика. Он занимает равные позиции в сравнении с белым, черным и серым цветами. Причем существует более тысячи различных оттенков бежевого цвета. Символика бежевого цвета Этот цвет способен устранить агрессию, умиротворить и расслабить. Кроме того, все оттенки бежевого способствуют полноценному и качественному отдыху. бежевый считается цветом застоя, поскольку он лишен ярко выраженной эмоциональной окраски. Однако в то же время он достаточно сложен, способен успокаивать, обладает теплой, тихой и спокойной энергетикой. Бежевый цвет считается также достаточно несамостоятельным, фоновым.
Световые приборы: рисунок 13. Бра, люстры, светильники. Бра и люстра выбраны с светло белых тонах. Выражающие универсальность, простоту нейтральность спокойствие. Светильники оранжевого цвета выражающие позитив. Световое решение кафе. В дневное время кафе полностью освещается естественным освещением, благодаря множеству огромных оконных проёмов и проникающий луч солнца свободно освещает пространство. Свет выполняет в проекте не только свою непосредственную функцию, но и еще одну из важнейших функций - корректирующую. Скрывает архитектурные недостатки помещения и подчеркивает его достоинства. Выбор светового решения - процедура стандартная, проходящая по стандартным правилам. Световое решение подчиняется тому же стилю, что и весь интерьер в целом. Возможны, отступления от общепринятого канона. Так, сейчас получил распространение стиль Фьюжн: в современный проект вкрапляются детали в стиле ретро. К примеру, среди модных сейчас перегородок из стекла и металла будут использованы классические люстры. Искусственное освещение общественных зон высокой проходимости и рабочих мест нормируется согласно СНиП (Строительные нормы и правила). Расчет искусственного освещения производится исходя из решения следующих вопросов: выбора системы освещения, типов источников света и норм освещенности. Качественный свет для ресторана или бара весьма важный элемент в общем интерьере заведения. С помощью света можно создать уютную атмосферу тихого городского кафе или подчеркнуть аристократичность дорогого ресторана. Прекрасно с этой задачей справляются декоративные светильники, подбирающиеся специально под конкретный интерьер. Для заведений, в которых установлена сцена и предполагается выступление музыкантов, прекрасным решением будет размещение различных световых эффектов и интеллектуальных управляемых световых приборов, которые легко программируются под выступление тех или иных музыкальных коллективов.
3.4 Мебель и аксессуары
Особенности производства мебели для ресторанов. Мебель для ресторанов и баров относится к разряду специализированных предметов интерьера. Стулья и столы для кафе используются множеством людей, ежедневно испытывая усиленную нагрузку. При этом они должны оставаться привлекательными как можно дольше и встречать каждого нового гостя сверкающей чистотой.
Важно помнить, что расстановка мебели в баре, кофейне или ином объекте общественного питания оказывает прямое влияние на успешность проекта. Общие требования для интерьера сводятся к 2 пунктам: практичность и эстетичность. Лучше выбирать деревянную мебель, стулья небольших размеров (c обивкой или без). Столы лучше выбирать круглые, так как кофейня не подразумевает банкетов и составления столов. Также для интерьера кофейни отлично подойдет мягкая мебель (диваны и кресла). С точки зрения высокой эксплуатации для них лучше подойдет кожзаменитель. Для ресторанов лучше использовать деревянную мебель в виде кресел и диванов, с мягкой обивкой: сиденьем и спинкой. Из обивочных материалов это может быть текстиль, кожзаменитель, кожа. А для ресторанных столов предпочтительнее использовать натуральный деревянный шпон. Например, массивный круглый или квадратный стол, облицованный буковым шпоном выглядит очень красиво и эффектно. Основной доход ресторана составляет оборот от алкоголя, поэтому мебель должна быть очень удобной и комфортной - чтобы посетитель смог провести как можно больше времени в вашем ресторане и потратить много денег именно на алкоголь. Поэтому лучше выбирать стулья с удобной спинкой и мягкими подлокотниками, которые оставят у ваших посетителей самые приятные впечатления.
Банкетные складные столы круглой и овальной формы. Расположено 6 круглых столиков по периметру естественного освещения, 4 круглых столика в зоне центральной барной стойки и 2 у окна в центре зала. Круглые столы для кухни также можно часто встретить во многих квартирах или домах. Они являются более безопасными, нежели квадратные изделия, так как не имеют острых углов. Круглыми деревянными столами можно обставить как маленькую, так и большую кухню. Они идеально подходят для частых чаепитий, семейных бесед, повседневного приёма пищи- потому что круглая форма любого изделия еще с самых давних времен считалась символом солнца, дружбы и взаимопонимания. Овальные столы это еще одна их разновидность. Изделия такой формы более адаптированы к небольшим кухням, нежели круглые столы, потому что их можно использовать вместе с кухонным уголком. Размер, форма и функциональность. Габариты 750х1800 Вес 52.2 кг. Столешница изготовлена из высококачественного ДСП, покрытого с обеих сторон меламиновой пленкой, имитирующей ценные породы дерева. Удобные, простые в эксплуатации. Артикул SK-KOKTEL. Толщина столешницы 16 мм; форма стола круглая; врезная Т- образная кромка; форма ноги -„Дельта“. На круглых столах большого диаметра используется специальный тип ног „Дельта
двойная“. Это обеспечивает устойчивость стола и отсутствие прогибов столешницы. Гениальность модели содержится в компактности и утонченности ее деталей. Небольшой круглый банкетный стол идеален для ценителей исключительной экономичности и интерьерной простоты. Минималистическое решение изобретения механизма модели позволяет в одно мгновение как сложить, так и разложить столик. Столешница рассчитана на размещение на ней таких важных и приятных мелочей ежедневности, как нескольких чашек кофе, фреша, фруктов, сладостей или любимой книги. Такие банкетные складные столы настоящая находка для уюта, настоящего неземного наслаждения. К столу легче подобрать стулья, а затем сформировать ряд дополнительных предметов интерьера. Тогда каждый, кто придет поесть и пообщаться в кафе или в гости, будет доволен не только самими блюдами, но и прекрасной обстановкой. Ведь именно гармоничное и со вкусом оформленное место способствует тому, чтобы ужин для двоих, свадьба, юбилей или корпоративный праздник запомнился надолго. Барные стулья 10 шт. Модель: С-300. Материал: каркас - хром; сидение и спинка - эко кожа. Цвет стула: малиновый. Артикул: SIGNAL. Высота стула: 810/1020 мм. Высота ножки: 600/800 мм. Стул регулируется по высоте с помощью газлифта. Производитель Signal Страна производитель Польша. Оснащён подлокотником, подножкой, возможностью регулировки высоты сиденья. Стул кресло- всего в помещение расположено 27шт. По периметру зала у столиков 20 шт. и 7шт. в центральной зоне зала. Кресло так же, как и барные стулья выполнены под заказ из то го же материала с изменением высоты и конструкции устойчивости: 4 ножки Модель: С-300. Материал: каркас - хром; сидение и спинка - эко кожа. Цвет стула: малиновый. Артикул: SIGNAL. 680/580/980Мягкая мебель 2 угловых П- образных дивана расположены в центральной части зала и 1 у центрального окна размеры 260мм. в длину от стойки до стойки. А так же той же модели с установлены 4 простых дивана в левой и правой части зала с естественным освещением размеры 520мм. В длину. Модель Виват. Производитель Россия. Угловой диван Т+БД+ «Еврокнижка» механизм трансформации "Тик-так" Конструкция дивана сформирована на основе древесины хвойных пород, древесно - плиточных материалов, фанеры. Мягкие элементы спинки выполнены из пенно полиуретана высокой плотности. Сидение изделия сформировано на пружинном блоке. Таким образом, дизайн каждого ресторана основывается на правильном выборе мебели, наиболее подходящей по эстетическим и эксплуатационным характеристикам. А главные факторы, на которые необходимо ориентироваться при ее выборе - это качество, прочность и долговечность!!! Мягкая мебель диваны каркас дивана спроектированная определённым образом конструкция, которая принимают основную часть нагрузки при эксплуатации изделия. Несущая часть состоит из деревянных деталей: брусков и досок. В основном, для изготовления данных несущих деталей применяются сосна, ель, берёза, ольха. В качестве щитовых элементов и элементов заполнения рамок каркаса используют детали из фанеры, ДСП, ДВП. Мягкие элементы и настилочные материалы: Основным настилочным материалом при изготовлении мягкого элемента является пенополиуретан (ППУ), который имеет разную плотность и рассчитан на разные нагрузки. Разные марки ППУ применяются в разных частях дивана, например: белый пенополиуретан применяют для декоративных элементов, который не несут нагрузки (боковые стенки, задняя стенка и т. д.), также он может использоваться как упаковочный материал; марки, способные выдерживать значительные нагрузки в течение всего срока эксплуатации (15 лет) применяются на сиденье. Эластичные мебельные ремни применяются для распределения нагрузки на каркас при эксплуатации. Они имеют разную степень растяжения, что позволяет правильно подбирать степень мягкости изделия. В подушках и боковых конструкциях могут применяться нетканые полотна, пласты и «шарики». Обивочные ткани Шенилл классифицируется как ткань с разрезным ворсом. Шенилловая пряжа используется в плетении Лэно (вид ажурного плетения, напоминающий кружево) для хлопка, шелка, шерсти и других производных тканях, которая режется вдоль основы, что создаёт полосы ворса (шенилловые полосы), а затем используются как уток в текстиле, который может быть одно- и двусторонний. Шениллы имеют сложный состав (натуральные и синтетические волокна), примерно 50 % хлопок, 50 % синтетика и относятся к группе мебельных тканей со сложным рисунком плетения, имеющие в структуре одну или несколько шенилловых нитей. Шенилловая нить (созданная плетением простой и пушистой нитей) становится практически нерастяжимой и хорошо встаёт в общую структуру ткани. Велюр это ткани, которые получают при переплетении пяти нитей, четыре из них попарно образуют верхнюю и нижнюю основы, а пятая образует ворс. Далее ткани между двух образованных основ режутся и отделяются, таким образом, друг от друга, образовывая два рулона ткани с ворсистой поверхностью. Ворс может быть расположен вертикально по всей ткани или на отдельных участках приглажен в одну сторону. Ворс отделывают тиснением, расчёсывают по трафарету или укладывают в виде разнообразных рисунков, поэтому велюр может быть гладким, фасонным, тиснёным и др.
Для обивки мягкой мебели применяются велюры хлопчатобумажные и шерстяные. Хлопчатобумажный велюр имеет две основы. Плотность основы больше плотности утка. Полотно велюра состоит из нитей вискозного шёлка и штапельной или шерстяной пряжи.
Флок (заменитель бархата) это обивочная ткань с основой из полиэстра и хлопка (обычно 35 % хлопок, 65 % синтетика), на которую электростатическим способом наносится ворс. Сначала изготавливается канва из хлопковой нити редкого полотняного переплетения («сеточка»). Она пропитывается клеем и растягивается в электромагнитном поле, где на неё напыляется ворс. В результате получается ворсовая ткань нейтрального белого цвета. Потом ткань окрашивается печатным способом. Гобелен одна из тех натуральных природных обивочных тканей. Гобелен отличает правильное переплетение пряжи с фигурой или орнаментальная композиция и множество различных оттенков и расцветок. Его можно стирать.
Жаккард ткань со сложным рисунком и рисунком крупного рапорта (вертикальный и горизонтальный повтор рисунка). Это достигается путём переплетения нитей основы (продольных) и утка (поперечных) в заранее определённом порядке. По составу сырья ткань может быть однородной, скажем, вискозной или полиэстерной, или быть смешанной, например, полиэстер с вискозой, хлопком или акрилом. Кожа натуральная (см. кожа) является основным облицовочным материалом для изготовления высококачественной, «престижной» мягкой мебели.
Искусственная кожа (кожезаменитель, кожзам) материал с односторонним монолитным или пористым ПВХ покрытием на хлопчатобумажных и полиэфирных трикотажных основах. В зависимости от назначения, выпускается с поливинилхлоридным и комбинированным поливинилхлорид-полиуретановым покрытием различной толщины, то есть путём соединения плёнки поливинилхлорида или полимерных полиэфирных материалов с различными основами трикотажной, тканой или нетканой. Искусственная кожа не уступает по эксплуатационным характеристикам натуральной коже, достаточно износостойкий материал, предназначенный как для бытовой мебели, так и для мебели общественных помещений.
Производство мебели для элитного кафе. Изготовление мебели для ресторанов объединяет в себе черты серийных и индивидуальных проектов. Каждый хозяин кафе или бара хочет, чтобы его заведение было особенным. При этом ресторану нужен не один комплект мебели, а несколько. Если речь идёт о сети ресторанов, то для неё потребуются сотни одинаковых столов и стульев для кафе. Стандартизации производства специализированной мебели для баров, кафе и ресторанов помогает такая наука, как эргономика. Столы и стулья для кафе имеют строго определённую высоту и размеры. На стуле каждый человек должен чувствовать себя комфортно. За столом для кафе необходимо свободно разместить несколько человек. При разработке мебели необходимо учитывать особые случаи. Например, стулья для кафе, где отдыхают маленькие дети, должны быть ниже, чем стулья для взрослых. Высокие барные стулья также подчиняются законам эргономики. Подставка для ног у них находится строго на определённой высоте, которая соответствует высоте ножек обычного табурета. Очень важно при разработке дизайна обеденных столов для кафе позаботиться об уходе за ними. Они должны быть достаточно лёгкими, чтобы их мог перенести один человек. Они должны быстро очищаться от загрязнений. В конструкции мебели для кафе не должно быть много мелких деталей, чтобы их можно было легко отмыть. Производители мебели для кафе могут создать определённый набор элементов, которые можно по-разному сочетать друг с другом. Использование при этом различных материалов разных цветов и оттенков позволяет создавать огромное количество разнообразных форм мебели. Клиент, в свою очередь, гарантированно получит эксклюзивную мебель, несущую на себе печать фирменного стиля заведения. Комфортная мебель для бара. Среди факторов, влияющих на отношение клиентов к заведению, есть три ключевых момента: При комплектации объектов надо учитывать все аспекты, мебельная продукция подбирается в соответствии с форматом заведения, его стилистикой. Правило Расстановки мебели в кафе. Чтобы обстановка была эффективной с точки зрения ведения бизнеса, стоит обратить особое внимание на следующие моменты: Обеспечение комфорта посетителя. Столики должны быть равноудалены от остальных гостей. Желателен хороший вид из окна. Важно удобство выхода из-за столика. Также стоит учесть особенности перемещения по залу возможность разминуться с другими посетителями в проходах. Мебель для кафе или другого заведения должна быть расставлена таким образом, чтобы не мешать официантам при перемещении по залу. Не менее важна хорошая обзорность, при которой каждый из столиков виден из максимального числа точек. Качество мебели Очень важным фактором при изготовлении стульев для кафе является соединение деталей. Крепежи должны быть достаточно прочными, чтобы мебель прослужила дольше. Необходимо позаботиться и о том, как легко заменить износившуюся деталь. Предпочтение отдаётся фальцевым соединениям. Такие соединения предполагают наличие крупных пазов, в которые вкладываются детали. Это обеспечивает обширную площадь сцепления и уменьшение количества малых отверстий, разрушительных для конструкции стульев и столов для кафе.
Уличные предметы мебели для летних кафе подвержены воздействию ветра, холода и влаги. При их производстве используются: мощные крепежи, влагостойкие материалы, клей неорганического происхождения, нерастворимый в воде. Недорогая мебель для кафе изготавливается из пластика. Преимуществом использования пластиковых конструкций является их гибкость, а также возможность придать пластику любой цвет и рисунок. Часто стулья для кафе из пластика представляют собой монолитную конструкцию, что повышает прочность этих предметов. Пластик отлично сочетается с другими материалами, как в качестве покрытия, так и самостоятельно. Цена на мебель для ресторанов. В зависимости от особенностей производства мебели формируется её цена. Эксклюзивные проекты стоят дороже типовых. При продаже мебели для кафе также учитываются использованные материалы, сложность конструкции мебели и стоимость доставки. На стоимость мебели влияет наличие покрытий на деталях. Это могут быть антикоррозийные покрытия для мебели на метало каркасе или антисептические покрытия для деревянной мебели. Покрытия увеличивают срок службы предметов, а также помогают им выглядеть более привлекательными. Например, антикоррозийная краска может не только защитить металл от ржавчины, но и придать ему другой цвет. Задача сводится к определению функциональных и габаритных размеров элементов и изделий мебели; определению рациональной расстановки оборудования с учетом организации функциональных зон, обеспечения оптимальных проходов и траекторий движения людей при различной организации пространства.
Аксессуары- Домашний уют складывается из миллиона составляющих изящной рамки для фото, кокетливой салфетки на изголовье дивана, пушистого ковра по щиколотку. И, разумеется, немалую роль играют шторы. Роль-то немалую, но вот какую именно? Рассмотрим функции, выполняемые гардинами, портьерами и прочими представителями.
тюль и шторы- шторы льняные «вуаль-2 лавандовый» Производитель ОАО «Звольма» Крепление шторная ленка для карниза с крючками. Артикул: ВЛ-11-13. Описание: Прозрачные и легкие льняные шторы-вуаль, выполненные из тончайшего льняного полотна; Льняные шторы способны преобразить интерьер любого помещения гостиной и кухни, спальни и террасы, ресторана и кафе. Шторы из льна создают уютную и комфортную атмосферу, они придают особый шарм и статус , являются прекрасным дополнением любого стиля интерьера. Лен замечательный материал для штор. Изо льна изготавливаются как тюль легкие и полупрозрачные льняные шторы, так и очень плотные ночные шторы гардины с жаккардовым узором, печатным рисунком или однотонные. Льняные шторы ценны и целебными свойствами лен снижает излучение от бытовой техники, не электризует воздух, в комнате с льняными шторами приятно находиться и легко дышать. «Кана-К (сирен.)» Портьеры 2 шт. Плотная основа портьер оформлена современным рисунком (принт). Размеры одного полотна: 3,5х 1,5 м. Элегантный интерьер, в котором нет ничего лишнего, построен на акцентах. Это, фиолетовый бархат на мягкой мебели и элитные шторы в тон. Не зря этих представителей семьи домашнего текстиля ласково называют одеждой для окон. Они привносят в любой интерьер завершенность, создают уют и комфорт и одновременно добавляют особенность в существующую обстановку. Еще одна важная роль штор защитная. Наверняка, это самая старая функция штор. Еще первобытный человек завешивал вход в свое жилье, чтоб укрыться от взглядов посторонних глаз и непогоды. Следуя его примеру, мы и сейчас задергиваем шторы, чтобы избежать чужих нескромных взглядов. На самом деле шторы защищают жилье не только лишь от подглядываний, но и от огромного количества других вещей. Например, от проникновения света. В самый погожий и солнечный денек достаточно просто задернуть плотные шторы и сразу же комната погрузится в холодный полумрак. Также шторы выполняют функцию своеобразного фильтра, защищая дом от проникания уличной пыли,назойливых насекомых и даже от сквозняков!
ЗАКЛЮЧЕНИЕ
Мною были рассмотрены аналоги и учтены все достоинства и недостатки. Проведенный план летнего кафе позволяет говорить о том, что представленный проект может быть реализован с высокой эффективностью. Кафе позволяет удовлетворить спрос довольно широкой группы потребителей. Кафе может стать местом семейного и молодёжного отдыха. Кафе предприятие общественного питания по организации питания и (или без) продукции общественного питания, реализующее фирменные, заказные блюда, изделия и алкогольные и безалкогольные напитки. Его функции определяются государственным стандартом. Кафе человечество пользуется более 500 лет. Интерьер - архитектурное и художественное оформление внутреннего пространства здания - обеспечивает эстетическое восприятие и благоприятные условия жизнедеятельности. В дизайне интерьера любого помещения существуют так называемые стили интерьера (стилевые направления). Важнейшей деталью любого интерьера и интерьера кафе в частности является стиль - совокупность черт, единство выразительных приёмов и средств, художественная или идейная общность. Существует большое разнообразие стилей, определяющих гармоничную совокупность определенных черт, единство художественного направления. Большое значение имеет уместность и гармоничность того или иного элемента, вписываемого в окружающее пространство. Причины популярности заведений, предоставляющих услуги общественного питания часто заключаются именно в получении положительных эмоций от внутреннего убранства ресторана. При помощи правильного сочетания нескольких цветов в создании дизайна интерьера можно не только добиться оригинальности, создать уютную атмосферу, но и оказать влияние на активность посетителей, и даже на их аппетит. При правильном подборе цветового оформления можно скорректировать недостатки архитектуры помещения, вызвать положительные эмоции, создать зонирование пространства.
ЛИТЕРАТУРА
- Демиденко Ю. Б. / Интерьер в России: традиции, мода, стиль./ Аврора/ 2000г/ 255 с
- Уилан Б./Гармония цвета: Новое руководство по созданию цветовых комбинаций / «Издательство Астрель»/ 2005г/150с
- Джулия Д. Тейлор./Лучшие мировые интерьера кафе и ресторанов./Ресторанные ведомости/2004г/ 358с
- Marohn Mariel/ Дизайн кафе и ресторанов / teNeues/ 224с
- Кунц Мартин Николас, Fischer Joachim/Дизайн кафе/ teNeues/400с
- Кристофер Энертон-Томас “Ресторанный бизнес” - М, “Росконсульт” 1999г
- Проектирование предприятий общественного питания. Справочное пособие к СниП. - М.: Стройиздат, 1992.
- Оборудование предприятий общественного питания. В 3 томах. Учебник для студентов вузов / В.Д. Елхина, А.А. Журин, Л.П. Проничкина, М.К. Богачев. - 2-е изд., перераб. - М.: Экономика, 1987
- Никуленкова Т.Т., Лавриенко Ю.И., Ястина Г.Н. Проектирование предприятий общественного питания. - М.: «Колос», 2000.
- СНиП 2.08.02-85
- ГОСТ Р5076295 Общественное питание. Классификация предприятий. М. Издательство стандартов, 1995. 16с.
- Аграновский Е.Д. и др. Организация производства в общественном питании. М.: Экономика, 1990. 254с.
- Аграновский Е.Д., Дмитриев Б.В. Основы проектирования и интерьер предприятий общественного питания: - М.: Экономика, 1982. 144с.
- Богданов Г.А., Смирнова З.М., Богданова М.А. Оборудование предприятий общественного питания. М.: Экономика. 1991. 300с.
- Богушев В.И. Организация обслуживания посетителей ресторанов и баров. Серия «Учебники и учебные пособия». Ростов-на-Дону: Феникс, 2002. 416с.
- Кучер Л.С., Шкуратова Л.М. Организация обслуживания общественного питания: Учебник. М.: Издательский Дом «Деловая литература», 2002. 544с.
- Никуленкова Т.Т., Лавриненко Ю.И., Ястина Г.М. Проектирование предприятий общественного питания. М.: «Колос», 2000. 215с.
- Пятницкая Н.А. Организация производства и обслуживания в общественном питании. Практикум: Учебное пособие. К.: Высшая школа.1990. 271с.
- Сборник рецептур блюд и кулинарных изделий. Для предприятий общественного питания. М.: Издательства: ИКТЦ «Лада», Арий, 2008. 680с.
- Усов В.В. Организация производства и обслуживания общественного питания: Учеб. для нач. проф. Образования. М.: ПрофОбрИздат, 2002. 416с.
- Кристофер Энертон-Томас “Ресторанный бизнес” - М, “Росконсульт” 1999г
- Проектирование предприятий общественного питания. Справочное пособие к СниП. - М.: Стройиздат, 1992.
- Оборудование предприятий общественного питания. В 3 томах. Учебник для студентов вузов / В.Д. Елхина, А.А. Журин, Л.П. Проничкина, М.К. Богачев. - 2-е изд., перераб. - М.: Экономика, 1987
- Никуленкова Т.Т., Лавриенко Ю.И., Ястина Г.Н. Проектирование предприятий общественного питания. - М.: «Колос», 2000.
Ссылки используемых материалов:
- http://womanadvice.ru/stil-fyuzhn-v-interere
- http://www.domechti.ru/stil-fusion-v-interere/9644
- http://www.kvartirobus.ru/apartments-interiors/interior-styles/98-interer-v-stile-fyuzhn
- http://www.archrevue.ru/fusion.html
- http://www.ecostandardgroup.ru/
- http://www.archrevue.ru/restaurant.html
- http://www.best4rest.ru/
- http://mebel-vega33.ru/mebel-dla-kafe.html
- http://komfort-trade.ru/
- http://www.fabrika-horeca.ru/
- http://sib-life.com/cvetovye-resheniya-v-interere-kafe
- http://proektkafe.ru/articles/interer-kafe-ispolzovanie-i-znachenie-tsveta-v-diz/
- http://build.rin.ru/cgi-bin/arch/arch_elem_gal.pl?id=97&id_razd=32
Приложения



Рисунок 1. Общий план
Рисунок 2. План зала с размерами


Рисунок 3. Развертка стен


Рисунок 4. План потолка с размерами


Рисунок 5. Камин


Рисунок 6. Барная стойка

Рисунок 7. Боковая разделительная стойка

Рисунок 8. Центральная разделительная стойка.

Рисунок 9. Зона отдыха- зона чилаут.


Рисунок 10. Банкетный стол.


Рисунок 11. Барный стул.

Рисунок 12. Мебель- Кожаный угловой диван. Выполнен из Итальянской кожи



Рисунок 13. Свет
PAGE \* MERGEFORMAT 1
Дизайн-проект кафе в стиле Фьюжн с использованием экологических материалов