Цифрова міська телефонна мережа кільцевого типу
РЕФЕРАТ
ПЗ: 35 стор., 11 рис., 10 джерел, 2 додатки, 17 таблиць.
Обєкт дослідження: цифрова міська телефонна мережа кільцевого типу.
Ціль: використовуючи технологію SDH обєднати усі станції в єдину кільцеву систему без опорно-транзитних станцій, провести розрахунки параметрів для міської телефонної мережі.
У курсовому проекті побудована міська телефонна мережа кільцевого типу з використанням технології SDH, мережа вміщує в собі 7 цифрових АТС з різною кількістю абонентів. АТС має вузол спецслужб (ВСС), який розміщується на одній з АТС та автоматичну міжміську телефонну станцію (АМТС).
Ключові слова: ОПОРНО-ТРАНЗИТНА СТАНЦІЯ, МУЛЬТИПЛЕКСОР, ЦИФРОВА МЕРЕЖА ЗВЯЗКУ, АВТОМАТИЧНА ТЕЛЕФОННА СТАНЦІЯ, ВУЗОЛ СПЕЦСЛУЖБ, ОПТИЧНИЙ КАБЕЛЬ, ТРАНСПОРТНА СИСТЕМА, ЄМНІСТЬ, КІЛЬЦЕ, ШВИДКІСТЬ
ЗМІСТ
Перелік умовних позначень……………………………………………………………………….……6
Вступ……………………………………………………………………………..7
1. Розрахунок міжстанційної інтенсивності навантаження
на цифровій МТС ………………………………………………………….……8
2. Розрахунок швидкості цифрового кільця SDH…………………………….15
3. Оптимізація структури мережі……………………………………………...23
4. Вибір типу оптичного кабелю………………………………………………28
5. Вибір обладнання та номенклатури змінних блоків………………………30
6. Визначення конфігурації мультиплексорних вузлів та складання специфі кації обладнання………………………………………………………………..32
Висновки………………………………………………………………………..34
Перелік посилань……………………………………….………………………35
ПЕРЕЛІК УМОВНИХ ПОЗНАЧЕНЬ
АМТС автоматична міжміська телефонна станція
ВОЛЗ волоконно-оптичні лінії звязку
ВСС вузол спецслужб
ЗЛ зєднувальна лінія
ЗЗЛ замовна зєднувальна лінія
ІН інтенсивність навантаження
КП комутаційне поле
МВВ мультиплексор введення-виведення
МТМ міська телефонна мережа
ОВ оптичне волокно
ОПС опорно-транзитна станція
ОЦК основний цифровий канал
ПЦІ плезіохронна цифрова ієрархія
ПЦТ первинний цифровий тракт
СЦІ синхронна цифрова ієрархія
ЦМЗ цифрова мережа звязку
SDH - Synchronous Digital Hierarchy синхронна цифрова ієрархія
STM Synchronous Transport Module синхронний транспортний модуль
TU Tributary Unit блок навантаження
ВСТУП
Протягом останніх років спостерігаються суттєві зміни в процесах розвитку мереж електрозв'язку. Можна виділити наступні найбільш характерні риси цих процесів: неухильне зростання ємності і трафіку телефонних мереж; зміна структури телефонного трафіку за рахунок значного збільшення частки міжміських та міжнародних викликів;різке збільшення кількості нетелефонних телекомунікаційних служб (телекс, телетекст, факс, відеотекст та ін.); зростаюче економічна ефективність цифрових методів зберігання, обробки, передачі і комутації різних видів інформації у порівнянні з аналоговими методами; все більш широке впровадження волоконно-оптичних ліній зв'язку.
Тільки цифрова техніка робить об'єднання виправданим. У силу цього розроблена концепція універсальної мережі зв'язку, яка повинна замінити і об'єднати всі існуючі спеціалізовані мережі. Така мережа отримала назву цифрової мережі інтегрального обслуговування (ЦМІО). Можливість і доцільність побудови ЦСІО на базі цифрової телефонної мережі визначається обсягом і ступенем розгалуженості телефонної мережі, а також тим обставиною, що використовуваний в цифровій техніці телефонний канал зі швидкістю передачі 64 Кбіт / с дозволяє організувати передачу інформації та інших служб електрозв'язку. При цьому велика частина систем цифрової комутації після невеликого дообладнання може використовуватися як станцій ЦСИО.
Найбільш сучасною технологією, яка використовується в даний час для побудови мереж зв'язку, є синхронна цифрова ієрархія (СЦІ) (Synchronous Digital Hierarchy - SDH). Вона володіє істотними перевагами в порівнянні з системами попередніх поколінь, дозволяє повністю реалізувати можливості волоконно-оптичних і радіорелейних ліній, створювати гнучкі, надійні, зручні для експлуатації, контролю та управління мережі, гарантуючи високу якість зв'язку.
1. Розрахунок міжстанційної інтенсивності навантаження на цифровій МТС
N1=18000 N2=13600 N3=15000 N4=15000
N5=27000 N6=27800
Розрахунок інтенсивності навантаження, що надходить на i-й АТС мережі від абонентів, можна здійснювати по формулі:
Yі =Nі a
те а = 0,05 Ерл питома інтенсивність навантаження, що надходить від абонентів.
де і час заняття входу і виходу КП i -ї АТС.
Для цифрових АТС з метою спрощення розрахунків приймаємо
Навантаження на виході комутаційного поля АТС розподіляється по наступних напрямах: внутрішньостанційний зв'язок, до ВСС, до АМТС і вихідні зв'язки до інших АТС.
Для визначення внутрішньостанційного навантаження спочатку слід розрахувати загальне навантаження мережі, що виходить з усіх АТС мережі:

де i - номер АТС.
Розрахуємо частку навантаження на виході кожної i -ї АТС від загального навантаження мережі у відсотках:
Згідно таблиці 1.1 визначимо відсоток внутрішньостанційного навантаження від навантаження, що виходить з i-ї АТС становить:
Таблиця 1.1 Залежність Квн від навантаження,що виходить з і-ї АТС
|
Квн |
Квн |
Квн |
|||
|
0,5 |
16,0 |
7,5 |
23,5 |
30,0 |
46,0 |
|
1,0 |
18,0 |
8,0 |
24,2 |
35,0 |
50,4 |
|
1,5 |
18,7 |
8,5 |
25,1 |
40,0 |
54,5 |
|
2,0 |
19,0 |
9,0 |
25,8 |
45,0 |
58,2 |
|
2,5 |
19,2 |
9,5 |
26,4 |
50,0 |
61,8 |
|
3,0 |
19,4 |
10,0 |
27,4 |
55,0 |
66,6 |
|
3,5 |
19,7 |
10,5 |
27,5 |
60,0 |
69,4 |
|
4,0 |
20,0 |
11,0 |
28,3 |
65,0 |
72,8 |
|
4,5 |
20,2 |
12,0 |
30,5 |
70,0 |
76,4 |
|
5,0 |
20,4 |
13,0 |
31,0 |
75,0 |
80,4 |
|
5,5 |
20,7 |
14,0 |
32,9 |
80,0 |
81,3 |
|
6,0 |
21,0 |
15,0 |
38,3 |
85,0 |
88,1 |
|
6,5 |
21,7 |
20,0 |
38,5 |
90,0 |
92,2 |
|
7,0 |
22,6 |
25,0 |
42,4 |
100,0 |
100,0 |
Kвн1=38.3 Kвн4=30.5 Kвн7=26.4
Kвн2=28.3 Kвн5=42.4
Kвн3=30.5 Kвн6=42.4
Розрахунок внутрішньостанційного навантаження виконаємо за формулою:
Навантаження до ВСС складає до 5 % від вихідного навантаження на i-й АТС (АМТС), тобто

Навантаження до АМТС на замовно-з'єднувальні лінії (ЗЗЛ) визначимо наступним чином:

де - кількість абонентів i -ї АТС;
- питома міжміська інтенсивність навантаження, яку визначають по таблиці 5.2 залежно від кількості мешканців в місті. Кількість мешканців в місті для розрахунку можна взяти приблизно в 4 раза більше кількості абонентів МТМ.
Am= 0.0032
Таблиця 1.2 Питома міжміська інтенсивність навантаження
|
Кількість мешканців в місті, тис |
, Ерл |
|
до 20 |
0,0056 |
|
20-100 |
0,0048 |
|
100-500 |
0,0040 |
|
500-1000 |
0,0032 |
|
Более 1000 |
0,0024 |
Навантаження від АМТС до АТС МТМ на з'єднувальні лінії міжміські (ЗЛМ), слід визначати по формулі
де=150 c середня тривалість заняття замовно-з'єднувальної лінії (ЗЗЛ); = 126 с середня тривалість заняття з'єднувальних ліній міжміських (ЗЛМ).
Навантаження, що надходить у напрямі інших АТС мережі
Yнадх1=Yвих1-Yвсс1-Yвн1-Yззл1=452.7
Yнадх2=Yвих2-Yвсс2-Yвн2-Yззл2=410.04
Yнадх3=Yвих3-Yвсс3-Yвн3-Yззл3=435.75
Yнадх4=Yвих4-Yвсс4-Yвн4-Yззл4=435.75
Yнадх5= Yвих5-Yвсс5-Yвн5-Yззл5=623.7
Yнадх6= Yвих6-Yвсс6-Yвн6-Yззл6=642.18
Yнадх7= Yвих7-Yвсс7-Yвн7-Yззл7=373.2
Результати зводяться у таблицю 1.3
Таблиця 1.3 Результати розрахунків інтенсивності навантаження
При розподілі навантаження у напрямах до інших АТС (пропорційно навантаженням, що надходять до інших АТС), визначимо навантаження від i-АТС до j-АТС:
де n - кількість АТС мережі.
Надалі складається матриця телефонних міжстанційних навантажень (МСН) (Таблиця 1.4).
Таблиця 1.4 Матриця міжстанційних навантажень
|
NATC |
1 |
2 |
3 |
4 |
5 |
6 |
7 |
ВСС |
АМТС |
ij |
|
1 |
63.564 |
67.549 |
67.549 |
96.685 |
99.55 |
57.853 |
45 |
57.6 |
555.35 |
|
|
2 |
62.649 |
60.303 |
60.303 |
86.313 |
88.87 |
51.647 |
34 |
43.52 |
487.604 |
|
|
3 |
67.159 |
60.831 |
64.645 |
95.528 |
95.269 |
55.365 |
37,5 |
48 |
521.297 |
|
|
4 |
67.159 |
60.831 |
64.645 |
92.528 |
95.269 |
55.365 |
37,5 |
48 |
521.297 |
|
|
5 |
102.699 |
93.021 |
98.853 |
98.853 |
145.684 |
84.663 |
67,5 |
86.4 |
777.673 |
|
|
6 |
106.457 |
96.425 |
102.471 |
102.471 |
146.669 |
87.762 |
69,5 |
88.96 |
800.715 |
|
|
7 |
56.32 |
51.012 |
54.211 |
54.211 |
77.593 |
79.893 |
30 |
38.4 |
441.64 |
|
|
АМТС |
48.384 |
36.557 |
40.32 |
40.32 |
72.576 |
74.726 |
32.256 |
345.139 |
||
|
ij |
510.827 |
462.24 |
488.352 |
488.352 |
664.892 |
679.261 |
424.911 |
321 |
410.88 |
Перш, ніж розраховувати ємності пучків ЗЛ, слід визначити середнє значення міжстанційного навантаження і перевести його в розрахункові значення, для обліку коливань навантаження телефонної мережі (сезонних, по днях тижня) і забезпечення ступеня гарантованості заданої якості обслуговування.
Переклад виконується так:
Після цього складається матриця розрахункових значень телефонних міжстанційних навантажень.
Таблиця 1.5 Матриця розрахункових значень міжстанційних навантажень для стаціонарних телефонних зєднань
|
№ АТС |
1 |
2 |
3 |
4 |
5 |
6 |
7 |
ВСС |
АМТС |
ij |
|
1 |
- |
68.939 |
73.09 |
73.09 |
103.314 |
106.276 |
62.981 |
49.523 |
62.72 |
599.933 |
|
2 |
67.985 |
65.538 |
65.538 |
92.577 |
95.226 |
56.492 |
37.93 |
48.42 |
529.7 |
|
|
3 |
72.685 |
66.089 |
70.066 |
99.013 |
101.805 |
60.382 |
41.63 |
52.67 |
564.34 |
|
|
4 |
72.685 |
66.089 |
70.066 |
99.013 |
101.805 |
60.382 |
41.63 |
52.67 |
564.34 |
|
|
5 |
109.531 |
99.523 |
105.566 |
105.566 |
153.821 |
90.867 |
73.04 |
92.67 |
830.584 |
|
|
6 |
113.413 |
103.045 |
109.296 |
109.296 |
154.834 |
94.078 |
75.12 |
95.96 |
855.042 |
|
|
7 |
61.379 |
55.828 |
59.175 |
59.175 |
83.532 |
85.919 |
- |
33.69 |
42.58 |
481.278 |
|
АМТС |
53.074 |
40.633 |
44.601 |
44.601 |
78.32 |
80.554 |
36.975 |
|
|
378.758 |
|
ij |
550.751 |
500.147 |
527.323 |
527.323 |
710.603 |
725.497 |
462.157 |
352.563 |
553.52 |
- |
Доцільно збільшити навантаження між АМТС і кожною АТС мережі, для врахування зв'язку з абонентами рухомого зв'язку (тобто дані табл.5.5 від АМТС і кож-ної АТСна m2, m2=5,0).
Таблиця 1.6 Матриця розрахункових значень міжстанційних навантажень для стаціонарних телефонніх зєднань та мобільного звязку
|
№ АТС |
1 |
2 |
3 |
4 |
5 |
6 |
7 |
ВСС |
АМТС |
ij |
|
1 |
- |
68.939 |
73.09 |
73.09 |
103.314 |
106.276 |
62.981 |
49.523 |
376.32 |
913.533 |
|
2 |
67.985 |
65.538 |
65.538 |
92.577 |
95.226 |
56.492 |
37.93 |
290.52 |
771.806 |
|
|
3 |
72.685 |
66.089 |
70.066 |
99.013 |
101.805 |
60.382 |
41.63 |
315.87 |
827.54 |
|
|
4 |
72.685 |
66.089 |
70.066 |
99.013 |
101.805 |
60.382 |
41.63 |
315.87 |
827.54 |
|
|
5 |
109.531 |
99.523 |
105.566 |
105.566 |
153.821 |
90.867 |
73.04 |
556.02 |
1293.93 |
|
|
6 |
113.413 |
103.045 |
109.296 |
109.296 |
154.834 |
94.078 |
75.12 |
575.76 |
1334.84 |
|
|
7 |
61.379 |
55.828 |
59.175 |
59.175 |
83.532 |
85.919 |
- |
33.69 |
255.48 |
694.18 |
|
АМТС |
318.44 |
243.8 |
267.6 |
267.6 |
469.92 |
483.32 |
221.85 |
|
|
378.758 |
|
ij |
816.12 |
703.31 |
750.33 |
750.33 |
1104.2 |
1128.2 |
647.03 |
352.563 |
2685.84 |
- |
Кількість ЗЛ (кількість основних цифрових каналів 64 кбіт/с) в напрямах визначається по таблиці А.1 (див. додаток А), яка розрахована по першій формулі Ерланга, при наступних нормах втрат p (по розрахунковому навантаженню) в напрямах: ВСС 0,001; АМТС 0,01; АТС 0,005 [5].
Результуюче навантаження фіксованого і мобільного зв'язку зводиться в матрицю міжстанційних сполучних ліній фіксованого і мобільного зв'язку
Таблиця 1.7 Матриця міжстанційних сполучних ліній фіксованого і мобільного звязку
|
№АТС |
1 |
2 |
3 |
4 |
5 |
6 |
7 |
ВСС |
АМТС |
|
1 |
- |
88 |
92 |
92 |
125 |
130 |
79 |
71 |
600 |
|
2 |
88 |
- |
84 |
84 |
114 |
118 |
74 |
57 |
350 |
|
3 |
92 |
86 |
- |
90 |
125 |
125 |
79 |
62 |
350 |
|
4 |
92 |
86 |
90 |
- |
125 |
125 |
79 |
62 |
350 |
|
5 |
135 |
125 |
130 |
130 |
- |
180 |
112 |
98 |
600 |
|
6 |
140 |
125 |
135 |
135 |
180 |
- |
116 |
100 |
700 |
|
7 |
79 |
73 |
77 |
77 |
104 |
106 |
- |
52 |
300 |
|
АМТС |
350 |
300 |
300 |
300 |
600 |
600 |
250 |
- |
- |
Надалі визначається кількість цифрових потоків Е1 на кожному напрямі мережі. Значення кількості цифрових потоків Е1 здобувають шляхом округлення відповідного значення кількості ЗЛ (з табл. 1.7) у більшу сторону до числа, кратного 30, а одержані числа ділять на 30. Таким чином, в результаті отримуємо таблицю кількості цифрових потоків Е1 необхідних для забезпечення телефонного звязку. Результати зводяться в таблицю 1.8.
Таблиця 1.8 Матриця цифрових потоків Е1 для телефонного звязку
|
№АТС |
1 |
2 |
3 |
4 |
5 |
6 |
7 |
ВСС |
АМТС |
|
1 |
- |
3 |
4 |
4 |
5 |
5 |
3 |
3 |
20 |
|
2 |
3 |
- |
3 |
3 |
4 |
4 |
3 |
2 |
12 |
|
3 |
4 |
3 |
- |
3 |
5 |
5 |
3 |
3 |
12 |
|
4 |
4 |
3 |
3 |
- |
5 |
5 |
3 |
3 |
12 |
|
5 |
5 |
5 |
5 |
5 |
- |
6 |
4 |
4 |
20 |
|
6 |
5 |
5 |
5 |
5 |
6 |
- |
4 |
4 |
24 |
|
7 |
3 |
3 |
3 |
3 |
4 |
4 |
- |
2 |
10 |
|
АМТС |
12 |
10 |
10 |
10 |
20 |
20 |
19 |
- |
- |
Також треба врахувати цифрові потокі Е1 для забезпечення трафіку Інтернет між АМТС і кожною АТС мережі. (швидкість в ГНН в табл. завдань (V Гбiт/с) розділити на Е1=2,048 Мбит/с. Результатом стає сума необхідних потоків для телефонного та Інтернет навантаження, який зводяться в матрицю цифрових потоків Е1 для мережі звязку.
Для третьої АТС швидкість інтернету 0,89 Гбіт/с, що дорівнює
0,89 1024 =911,36 Мбіт/с. Тоді кількість потоків Е1 для Інтернет навантаження дорівнює
.
Для четвертої АТС швидкість інтернету 0,97 Гбіт/с, що дорівнює
0.97*1024=993.28Мбіт/с. Тоді кількість потоків Е1 для Інтернет навантаження дорівнює
993.28/2.048=485
Для сьомої АТС швидкість інтернету 0,94 Гбіт/с, що дорівнює
0.94*1024=962.56 Тоді кількість потоків Е1 для Інтернет навантаження дорівнює
962.56/2.048=470
Таблиця 1.9 Матриця цифрових потоків Е1 для мережі звязку
|
№АТС |
1 |
2 |
3 |
4 |
5 |
6 |
7 |
ВСС |
АМТС |
|
1 |
- |
3 |
4 |
4 |
5 |
5 |
3 |
3 |
20 |
|
2 |
3 |
- |
3 |
3 |
4 |
4 |
3 |
2 |
12 |
|
3 |
4 |
3 |
- |
3 |
5 |
5 |
3 |
3 |
457 |
|
4 |
4 |
3 |
3 |
- |
5 |
5 |
3 |
3 |
497 |
|
5 |
5 |
5 |
5 |
5 |
- |
6 |
4 |
4 |
20 |
|
6 |
5 |
5 |
5 |
5 |
6 |
- |
4 |
4 |
24 |
|
7 |
3 |
3 |
3 |
3 |
4 |
4 |
- |
2 |
480 |
|
АМТС |
12 |
10 |
455 |
495 |
20 |
20 |
489 |
- |
- |
При розрахунку кількості необхідних потоків для телефонної і Інтернет навантаження необхідно врахувати 30% запас пов'язаний із зростанням обєму передаваного навантаження (трафіку) на перспективу. Результат треба занести до матриці цифрових потоків Е1 для мережі звязку з урахуванням перспективи.
Таблиця 1.10. Матриця цифрових потоків Е1 для мережі звязку з урахуванням перспективи
|
№АТС |
1 |
2 |
3 |
4 |
5 |
6 |
7 |
ВСС |
АМТС |
|
1 |
- |
4 |
6 |
6 |
7 |
7 |
4 |
4 |
26 |
|
2 |
4 |
- |
4 |
4 |
6 |
6 |
4 |
3 |
16 |
|
3 |
6 |
4 |
- |
4 |
7 |
7 |
4 |
4 |
595 |
|
4 |
6 |
4 |
4 |
- |
7 |
7 |
4 |
4 |
647 |
|
5 |
7 |
7 |
7 |
7 |
- |
8 |
6 |
6 |
26 |
|
6 |
7 |
7 |
7 |
7 |
8 |
- |
6 |
6 |
32 |
|
7 |
4 |
4 |
4 |
4 |
6 |
6 |
- |
3 |
624 |
|
АМТС |
16 |
13 |
592 |
644 |
26 |
26 |
636 |
- |
- |
2. Розрахунок швидкості цифрового кільця
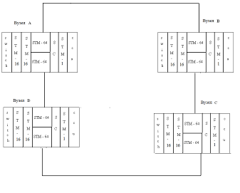
Розрахуємо швидкість цифрового кільця, що забезпечує міжстанційний зв'язок на МТМ без опорно-транзитних станцій (ОПС). В кільці використовується 4 мультиплексори введення-виведення навантаження (або крос-коннектора), позначені буквами А, B, С і D (рис. 2.1) ). В мультиплексор А включені ОПС-6, ОПС-5. В мультиплексор В включені ОПС-1, ОПС-3, ОПС-7 і ВСС. В мультиплексор С включена ОПС-4 та ОПС, а в мультиплексор D ОПС-2 і АМТС. Ділянки кільця між мультиплексорами позначені римськими цифрами I, II, III і IV.
Оскільки в даній мережі відсутні транзитні і опорно-транзитні станції, що забезпечують групове використання пучків з'єднувальних ліній на окремих ділянках мережі, то всі пучки між всіма станціями мережі можна рахувати незалежно, на підставі відповідних навантажень.
Далі заповнюється таблиця кількості цифрових потоків Е1, що вводяться в i-му мультиплексорі і що виводяться в j-му мультиплексорі цифрового кільця. Для даного прикладу таблиця матиме вигляд
Таблиця 2.1 Кількість цифрових потоків Е1 між пунктами введення-виведення
|
Мультиплексори введення Е1 |
Мультиплексори виводу Е1 |
Сума ПЦТ,що вводять |
|||
|
А |
В |
С |
D |
||
|
А |
- |
52 |
14 |
72 |
138 |
|
В |
40 |
- |
14 |
1257 |
1311 |
|
С |
14 |
18 |
- |
651 |
683 |
|
D |
64 |
1259 |
648 |
- |
1971 |
|
Сума ПЦТ,що виводять |
128 |
1202 |
677 |
2001 |
- |
VA =138
VB =1311
VC =683
VD =1971
В останньому стовпці таблиці 5.9 приведені суми всіх елементів кожного рядка, які визначають сумарну кількість цифрових потоків Е1, що вводяться у відповідних мультиплексорах. Для поданої схеми формули для розрахунку кількості цифрових потоків Е1, що вводяться і виводяться у відповідних мультиплексорах, мають вигляд
VA-B = V6-1 + V6-3 + V6-7 + V6-BCC + V5-1+ V5-3+V5-7+V5-BCC=52
VA-C=V6-4+V5-4=14
VA-D=V6-2+V6-ATMC+V5-2+V5-ATMC=72
VB-A=V3-6+V3-5+V7-6+V7-5+V1-6+V1-5=40
VB-C=V3-4+V7-4+V1-4=14
VB-D=V3-2+V3-ATMC+V7-2+V7-ATMC+V1-2+V1-ATMC=1257
VC-A=V4-6+V4-5=14
VC-B=V4-3+V4-7+V4-1+V4-BCC=18
VC-D=V4-2+V4-ATMC=651
VD-A=V2-6+V2-5+VATMC-6+VATMC-5=64
VD-B=V2-3+V2-7+V2-1+V2-BCC+VATMC-3+VATMC-7+VATMC-1=1259
VD-C=V2-4+VATMC-4=648
Загальна кількість цифрових потоків Е1 на кожній ділянці кільця визначається сумарним значенням кількості цифрових потоків Е1, що вводяться на даній ділянці (в мультиплексорі початку ділянки) і кількість цифрових потоків Е1, що проходить транзитом по даній ділянці від мультиплексорів інших ділянок кільця.
Для даного прикладу в кільці є 4 ділянки. Формули для розрахунку сумарної кількості цифрових потоків Е1 на кожній ділянці кільця мають вигляд:
VI = VA + VD-B + VC-B + VD-C =138+1259+18+648=2063
VII = VB + VA-C + VD-C + VA-D =1311+14+648+72=2045
VIII = VC + VA-D + VB-D + VB-A =683+72+1257+40=2052
VIV = VD + VC-A + VB-A + VC-B =1971+14+40+18=2043
Необхідна швидкість цифрового кільця визначається максимальним значенням пропускної спроможності окремої ділянки.
Зауваження: За наявності на мережі опорно-транзитних станцій (ОПТС) необхідно враховувати групове використання пучків з'єднувальних ліній до і від ОПТС. В цьому випадку необхідно розраховувати не окремі пучки між всіма станціями мережі, а сумарний пучок з'єднувальних ліній від і до ОПТС на підставі сумарного навантаження на ділянках ОПС-ОПТС, ОПТС-ОПТС.
Проте врахування даного чинника при розрахунках дає зменшення кількості ліній в пучках всього на декілька одиниць. Оскільки при використанні цифрових з'єднувальних ліній всі розрахунки ведуться в цифрових потоках Е1, використання більш точних методів розрахунку кількості з'єднувальних ліній не дає економії в кількості цифрових потоків Е1.
Вибирається ділянка кільця, на якій потрібна найбільша кількість каналів. Необхідна кількість первинних трактів:
NПТ = V k max =2063
Необхідна швидкість цифрового потоку в кільці Sпотр розраховують по формулі:
Sпотр = 2 Nпт [Мбіт/с]=4126
Швидкість цифрового кільця S вибирають стандартною, по сітці швидкостей SDH. Вона повинна задовольняти наступній умові:
,
де коефіцієнт KP коефіцієнт запасу на розвиток мережі. Рекомендоване значення KP =1,4-1,8
Стандартні системи синхронної цифрової ієрархії наведені в табл. 2.2
Таблиця 2.2 Стандартні системи синхронної цифрової ієрархії
|
Тип системи SDH |
STM-1 |
STM-4 |
STM-16 |
STM-64 |
|
Кількість каналів |
1920 |
7680 |
30720 |
122880 |
|
Кількість потоків Е1 |
63 |
252 |
1008 |
4032 |
|
Швидкість, Мбіт/с |
155,520 |
622,080 |
2488,320 |
9953,280 |
Згідно з розрахунками для задовільнення умови швидкість цифрового кільця S 7426.8 Мбіт/с необхідно викоритати тип системи SDH STM 64.
3. Оптимізація структури мережі
Однією з головних задач в оптимізації структури (топології) мережі є мінімізація довжини оптичного кабелю. Така оптимізація може бути виконана за допомогою алгоритму Дейкстри або алгоритму Прима [4].
Таблиця 3.1 Відстань між вузлами (АТС) мережі, що проектується, км
|
№АТС |
1 |
2 |
3 |
4 |
5 |
6 |
7 |
АМТС |
|
1 |
- |
7,5 |
10 |
9 |
11 |
8,5 |
9 |
6,5 |
|
2 |
7,5 |
- |
9 |
7,5 |
13 |
11 |
8,5 |
8 |
|
3 |
10 |
9 |
- |
8,5 |
6 |
9,5 |
11 |
10 |
|
4 |
9 |
7,5 |
8,5 |
- |
8,5 |
7,5 |
10,5 |
11,5 |
|
5 |
11 |
13 |
6 |
8,5 |
- |
3,5 |
6,5 |
6,5 |
|
6 |
8,5 |
11 |
9,5 |
7,5 |
3,5 |
- |
9,5 |
10,5 |
|
7 |
9 |
8,5 |
11 |
10,5 |
6,5 |
9,5 |
- |
8 |
|
АМТС |
6,5 |
8 |
10 |
11,5 |
6,5 |
10,5 |
8 |
- |
Оптимальною - з погляду простоти і надійності забезпечення захисту синхронних потоків - є кільцева топологія мережі SDH. Тому оптимізуючи повнозв'язану (комірчасту) топологію, задану таблицею 3.1, необхідно прийти до топології «кільце». Сума відстаней між мережними елементами одержаної кільцевої топології повинна бути мінімальною зі всіх можливих варіантів кільцевих топологій, які можуть бути організовані як складова частина комірчастої топології.
Оптимізація враховує те, що одержана мережа з топологією «кільце» включатиме всі мережні елементи (або населені пункти), наведені в таблиці 3.1і буде виконуватись по критерію мінімуму відстані по алгоритму Дейкстри.
Алгоритм, по якому здійснюється пошук, поданий на рисунках і полягає в наступному.
1. Всім вершинам приписується вага - дійсне число, d(i)=GM для всіх вершин, окрім вершини з номером u1, а d(u1)=0.
2. Всім вершинам приписується мітка m(i)=0.
3. Вершина u1 оголошується поточної t=u1.
4. Для всіх вершин, для яких m(i)=0, перераховується вага по формулі: d(i)=min{d(i),d(t)+w[t,i]}.
5. Серед вершин, для яких виконане m(i)=0, шукається та, для якої d(i) мінімальна. Якщо мінімум не знайдений, тобто вага всіх не помічених вершин рівна нескінченності (GM), то шлях не існує. Кінець.
6. Інакше знайдену вершину з мінімальною вагою вважаємо поточною і позначаємо (m(t)=1).
7. Якщо t=u2, то знайдений шлях ваги d(t). Кінець.
8. Перейти на крок 4.
Остаточне рішення про вибір тієї або іншої кільцевої топології приймається після порівняння сумарних відстаней між мережними елементами і вибору якнайменшого. Рішення виглядає таким чином:
1) S=61,0

2) S=57,5

3) S=58,5

4) S=57.5

5) S=60,5

6) S=57,5

7) S=61,5

8) S=63,5

9) S=60,5

10) S=62.5

11) S=57,0

12) S=60.5

13) S=57.5

Порівнюючи одержані результати сумарної відстані між мережними елементами для кожної з кільцевих топологій, знаходимо мінімальне значення S=57,0 км. Таким чином, оптимальна, по критерію мінімуму відстані між мережними вузлами, мережа матиме вигляд, поданий на малюнку під номером 11
4. Вибір типу оптичного кабелю
Для магістральних і внутрішньозонових мереж становлять інтерес ОВ тільки з довжинами хвиль 1,3 і 1,55 мкм, що дозволяють реалізовувати регенераційні ділянки довжиною 60... 100 км. Вибір типу кабелю можна провести, виходячи з відстаней між вузлами. Так, при організації місцевого зв'язку (наприклад, в межах міста), відстань не перевищує 40 км. У цьому випадку можна вибрати одномодовий ОК, працює на довжині хвилі 1,3 мкм. Перевагою є малі дисперсійні спотворення (близько 3 пс / нм * км) імпульсів у лінійному тракті. В інших випадках (внутрішньо-зоновий і магістральний зв'язок) слід вибирати робочу довжину хвилі 1,55 мкм; втрати в ОВ при цьому малі (близько 0,22 дБ / км), що дозволяє організовувати зв'язок на значні відстані (порядку 100 км.).
Застосовуючи оптичні підсилювачі, можна збільшувати дальність зв'язку до 150 км і більше, а проте при цьому вже позначаються (особливо при швидкостях 2,5 Гбіт / с і більше) дисперсійні спотворення. У перерахованих випадках частіше застосовують оптичний кабель зі зміщеною дисперсією. Оптичне волокно цього кабелю характеризується втратами (0,22 0,3 дБ / км) і дисперсією порядку (1 3 пс / нм * км) при довжині хвилі 1,55 мкм. В якості критерію для класифікації одномодових оптичних волокон обрана хроматична дисперсія. Згідно з цим критерієм, існує три типи одномодових оптичних волокон.
Рекомендація G.652 описує властивості одномодових оптичних волокон і ОК, мають хроматичну дисперсію і довжину хвилі відсічення, що не зміщені з області довжин хвиль близько 1310 нм (довжина хвилі нульової дисперсії знаходиться поблизу 1310 нм). Ці оптичні волокна оптимізовані для застосування в діапазоні довжин хвиль 1260-1310 нм і можуть бути також використані в діапазоні 1530-1565 нм.
Рекомендація G.653 описує властивості одномодових оптичних волокон і оптичного кабелю з довжиною хвилі нульової дисперсії, зміщеною в діапазон довжин хвиль 1530-1565 нм (номінальне значення знаходиться поблизу 1550 нм) і коефіцієнтом дисперсії, монотонно збільшується з довжиною хвилі. Рекомендація G.654 регламентує властивості одномодового оптичного волокна, яке має довжину хвилі нульової дисперсії близько 1300 нм, а мінімальні оптичні втрати і довжину хвилі відсічення поблизу 1550 нм.
Рекомендація G.655 описує властивості одномодових оптичних волокон і оптичного кабелю з хроматичної дисперсією, абсолютна величина якої відмінна від нульового значення по всій області довжин хвиль в робочому діапазоні 1530-1565 нм. Така хроматична дисперсія пригнічує ріст чотирьох хвильового зміщення, тобто нелінійний ефект, який особливо небажаний в системах з щільним спектральним ущільненням DWDM.
Вибираємо одномодовий кабель марки ОКБу, рек. G.652 від ЗАТ "ТРАНСВОК". Це магістральний кабель з посиленою бронею із сталевих дротів, для прокладки в грунтах всіх груп (категорій) у тому числі скельних і схильних мерзлотних деформацій, при перетині річок і боліт, мостах, в кабельній каналізації, тунелях, колекторах, при вводі в будівлі та експлуатації при температурі навколишнього середовища від мінус 40 ° С до плюс 70 °С. Має в наявності центральний силовий елемент (склопластиковий пруток або сталевий трос, покритий полімерною оболонкою), стійкий до пошкодження гризунами, до впливу цвілевих грибів, інею, атмосферних опадів, соляного туману, сонячного випромінювання. Можливе виготовлення з зовнішньою оболонкою з поліетилену, що не поширює горіння.

Рис. 4.1 Оптичний кабель марки ОКБ
Таблиця 4.1 Основні технічні характеристики кабелю
|
Основні технічні характеристики кабелю ОКБ |
||
|
1 |
Кількість оптичних волокон у кабелі, од. |
2 - 144 |
|
2 |
Максимальна кількість оптичних волокон в одному модулі, од. |
12 |
|
3 |
Тип оптичних волокон, по рекомендації ITU-T… |
G.651 G.652 G.655 |
|
4 |
* Коеффіцієнт затухания, дБ/км, не більше, на довжині хвилі: =1310 нм =1550 нм |
0,36 0,22 |
|
5 |
* Довжина хвилі відсічення, нм, не більше: |
1270 |
|
6 |
* Хроматична дисперсія, пс/(нм*км), не більше, в діапазоні довжин хвиль: (1285-1330) нм (1525-1575) нм |
3,5 18 |
|
7 |
Номінальный діаметр кабеля (D каб), мм |
14,1 - 29,0 |
|
8 |
Температура експлуатації,°С |
- 40 … +70 |
|
9 |
** Нормованна будівельна довжина, км не менш |
4,0 |
|
10 |
Строк служби ВОК, не менше |
30 лет |
|
12 |
Допустиме разтягуюче зусилля, кН ОКБу и ОКБу-Л *** ОКБ, ОКБ-Н, ОКБ-Л, ОКБ-НЛ*** |
20 - 80 7 - 30 |
5. Вибір обладнання та номенклатури змінних блоків
Для конфігурації вузлів, складання специфікації змінних модулів використовуємо кільцеву структуру ГТС (малюнок 5.1). У данному курсовому проекті обрано обладнання компанії Siemens. В якості мультиплексорів вузлів A, B, C, D обрано мультиплексор SL-64 (рівня STM-64).
SL-64 - синхронний лінійний мультиплексор рівня STM-64 (10 Гбіт / с), який може бутисконфігурований як регенератор (SLR-64), термінальний мультиплексор (SLT-64) або лінійний мультиплексор (SL-64).
Рис 5.1. Мультиплексор Siemens SL 64
Залежно від моделі та конфігурації пристроїв доступні наступні інтерфейси:
• E1 (2 Мбіт / сек),
• E3 (34 Мбіт / сек),
• STM-1 (155 Мбіт / сек),
• STM-4 (622 Мбіт / сек),
• STM-16 (2,5 Гбіт / сек),
• STM-64 (10 Гбіт / сек),
• Fast Ethernet (10/100BaseT, 100BaseF),
• Gigabit Ethernet (1000BaseT, 1000BaseSX, 1000BaseLX),
• WDM (40 Гбіт / сек), Metro DWDM (320 Гбіт / сек)
Поряд з високою щільністю портів, характерної для NGN SDH обладнання, в пристроях реалізовані такі функції, як:
• Contiguous Concatenation і Virtual Concatenation
• Link Capacity Adjustment Scheme (LCAS)
• Generic Framing Procedure (GFP)
• Resilient Packet Rings (RPR)
• Multi-Protocol Label Switching (MPLS)
Для охолодження використовуються вбудовані в мультиплексори дубльований-ні блоки вентиляторів. Нормальне функціонування обладнання забезпечується при температурі від -5 до +45 ° C.
Електроживлення здійснюється постійним струмом - 48 V DC або - 60 V DC (від -40 до -75 В) з резервуванням.
6 Визначення конфігурації мультиплексорних вузлів і складання специфікації обладнання
Для роботи мультиплексорів OMS рівня (STM-64), при мінімальній конфігурації потрібно наступний набір блоків:
- мультиплексори вводу/виведення;
- інтерфейсний модуль(CCU);
- модуль кросової комутації (SWITCH).
Станція «А»: STM-64 (2, один використовується для входу, інший для виходу), 2 трибутарних блоки STM - 16, 1 трибутарний блок STM-1.
Станція «В»: STM-64 (2, один використовується для входу, інший для виходу), 2 трибутарних блоки STM - 16, 1 трибутарний блок STM-1.
Станція «С»: »: STM-64 (2, один використовується для входу, інший для виходу), 2 трибутарних блоки STM - 16, 1 трибутарний блок STM-1.
Станція «D»: »: STM-64 (2, один використовується для входу, інший для виходу), 2 трибутарних блоки STM - 16, 1 трибутарний блок STM-1.

Рис. 6.1 Конфігурація мультиплексорних вузлів
Для запропонованої мережі комплектація кожного з мультиплексорних вузлів представлена в таблиці 6.1.
Таблиця 6.1 Специфікація обладнання
|
№ |
Найменування устаткування |
Вузол, в якому встановлюється обладнання |
Заг. кіл-сть блоків |
|||
|
А |
В |
С |
D |
|||
|
1 |
STM-16 (Optical 1 port, S16.1, L16.1, L16.2/L16.3) трибутарний блок 2488,320 Мбіт/с |
2 |
2 |
2 |
2 |
8 |
|
2 |
STM-1 (S-4.1 или L-4.2) трибутарний блок 155 Мбіт/с |
3 |
1 |
0 |
1 |
5 |
|
3 |
Rack 600x300x2200 ETSI стойка |
1 |
1 |
1 |
1 |
4 |
|
4 |
Power Distribution Panel панель разд. напряжения |
1 |
1 |
1 |
1 |
4 |
|
5 |
STM-64 (S64.1, 1 port, S64.2b, L64.2) |
2 |
2 |
2 |
2 |
8 |
|
6 |
SYSTEM CONTROLLER EXTENDED Системний контролер |
1 |
1 |
1 |
1 |
4 |
Висновки
У цій роботі зроблено розрахунок швидкості цифрового кільця, що забезпечує міжстанційних зв'язок на ГТС без опорно-транзитних станцій. Схема кільцевої структури мережі, для курсової роботи, складається з чотирьох мультиплексорів, семи опорних станцій, однієї автоматичної мiжмiської телефонної станції і одного вузла спецслужб. Максимальне значення ПЦК досягається на 3 ділянці кільця, отже, там необхідна максимальна пропускна здатність, для вибору типу системи необхідно враховувати коефіцієнт запиту на розвиток мережі, в даній роботі він прийнятий рівним 1,8.
Оскільки швидкість цифрової системи передачі для реалізації цифрового кільця вибирається стандартної по сітці ієрархій SDH, то, згідно наших розрахунків, найбільш відповідний системою є тип системи STM-64.
Перелік посилань
1. ДСТУ 3008-95.
2. НТП-112-2000. Городские и сельские телефонные сети. СПб., 2000. 128с.
3. Проектирование цифровой городской телефонной сети: Учебное пособие / А.В. Росляков, Н.Д. Черная, Ю.Ю. Харченко и др.; Под ред. А.В. Рослякова. Самара, ПГАТИ, 1998. 124 с.
4. Слепов Н.Н. Синхронные цифровые сети SDH - М.: Эко-Трендз, 1997, 150с.
5. Скляров О.К. Волоконно-оптические сети и системы связи. М.: СОЛОН-Пресс, 2004, 272
6. Современные высокоскоростные цифровые телекоммуникационные системы: Учебное пособие / Гордиенко В.Н., Ксенофонтов С.Н., Кунегин С.В. и др. М.К. М.: МТУСИ, 1999, 76 с.
7. Соколов Н.А. Эволюция местных телефонных сетей Издательство ТОО “Типография “Книга”“, г. Пермь, 1994. 375 с.
8. Стан і розвиток звязку в Україні за 9 місяців 2012 року. Статистичний бюлетень/ К.: Держкомстат України, 2012, 34 с.
9. СТП 15-96. Пояснювальна записка до курсових та дипломних проектів. Вимоги і правила оформлення Запоріжжя, ЗДТУ, 1996. 36 с.
10. Хмелёв К.Ф. Основы SDH./ - К.:IBЦ «Видавництво "Полiтехнiка"», 2003, - 584 с.: ил
11. Шмалько А.В. Цифровые сети связи: Основы планирования и построения М.: Эко-Трендз, 2001, 282 с.
Цифрова міська телефонна мережа кільцевого типу