Очищення газових викидів у технологічному процесі дегідрування парафінів у відповідні олефіни
1. Завдання
Розрахувати та запроектувати схему очищення газових викидів у технологічному процесі дегідрування парафінів у відповідні олефіни (перша стадія: дегідрування парафіну з регенерацією каталізатора).
Вміст твердих частинок в газі при нормальних умовах С'=25 г/м; розрідження в системі Р = 1500Па; витрати газу Qн = 15 м/с; температура газу t = 80°С; динамічна вязкість при 80С = 22,5• Па•с; ступінь очищення не нижче
= 95%.
Фракційний склад пилу:
|
|
0,5 |
1 |
5 |
8 |
10 |
15 |
20 |
30 |
|
|
0,02 |
0,03 |
0,08 |
0,10 |
0,15 |
0,12 |
0,30 |
0,20 |
2. Вступ
Атмосфера це газова оболонка, що оточує Землю. Наявність атмосфери одна з найголовніших умов життя на планеті. У сучасний період атмосфера Землі зазнає множинні зміни корінного характеру: модифікуються її властивості і газовий склад, зростає небезпека руйнування іоносфери і стратосферного озону, підвищується її запиленість, нижні шари атмосфери насичуються шкідливими газами та речовинами промислового та іншого господарського походження. В звязку із збільшенням виробництва електроенергії, добування й переробки нафти, газу й вугілля, виробництва металів, цементу, добрив та інших продуктів хімічної промисловості атмосфера забруднюється дуже швидкими темпами. Значна частина сучасних технологічних процесів пов'язана з виготовленням, переробкою та застосуванням порошкоподібних матеріалів і супроводжується виділенням у повітряний басейн великої кількості пилових викидів.
Найбільш ефективними методами захисту атмосфери від забруднення
шкідливими речовинами є розробка нових безвідходних ресурсо- і енергозберігаючих технологічних процесів із замкнутими виробничими циклами. Такі технології дозволяють виключити або суттєво знизити викиди шкідливих речовин в атмосферу. Але це не завжди технологічно можливо й економічно доцільно. Тому для більшості підприємств очищення газів є одним із заходів захисту атмосферного повітря від забруднення. Значна різноманітність джерел забруднювачів атмосферного повітря, що відрізняються за природою й концентрацією шкідливих речовин, температурою, тиском, періодичністю й часом викиду визначає вибір раціонального обладнання для очищення газових викидів. Однак у тих, ще численних, випадках, коли ці завдання не можуть бути вирішені, необхідно застосовувати найбільш ефективні і економічні засоби очищення повітря від пилу перед викидом її в атмосферу.
Серед пилових частинок, що потрапляють у навколишнє природне середовище, найбільшу небезпеку становить дрібнодисперсний пил, який погано вловлюється в пиловловлювачах, а завдяки тепловому Броунівському руху практично не осідає. Тому, потрапляючи в організм людини разом з повітрям, може викликати різні захворювання дихальних шляхів. Виходячи з цього, питання тонкого очищення газів, що відходять, стоїть найбільш гостро.
До теперішнього часу для очищення газів, що відходять від тонкодисперсних аерозольних частинок розроблено велику кількість пилоочисного обладнання. До одних з таких апаратів відноситься електрофільтр. Відмінними рисами електрофільтрів є високий ступінь очищення, у тому числі від тонкодисперсних частинок, невисокий гідравлічний опір в порівнянні з іншими видами високоефективного пилоочисного обладнання, незначні витрати на їх експлуатацію і можливість автоматизації процесу очищення газів.
3. Характеристика основного виробництва та його
технологічна схема
Дегідрування - реакція відщеплення водню від молекули органічної сполуки . Є оборотною , зворотна реакція - гідрування . Зміщення рівноваги в бік дегідрування сприяє підвищення температури і зниження тиску, в тому числі розбавлення реакційної суміші. Процеси дегідрування широко використовуються в промисловому органічному синтезі :
- дегідруванням спиртів отримують: формальдегід , ацетон , метилетилкетон, циклогексанон;
- дегідруванням алкілароматичних сполук отримують: стирол , - метилстирол , вінілтолуол , дивініл бензол;
- дегідруванням парафінів отримують: олефіни ( пропилен , бутилен і ізобутилен , ізопентен , вищі олефіни ) і дієни ( бутадієн і ізопрен ).
Найбільш типові реакції дегідрування можна класифікувати по виду зв'язків між атомами, від яких відщеплюється водень (С-С, С-О, С-N дегідрування).
При С-С дегідруванні парафінів утворюються з'єднання з подвійним вуглець-вуглецевим зв'язком, а при подальшому розвитку реакції дієни:
С - - - С
С - -СН=
=СН-СН=
Бічні ланцюги ароматичних з'єднань також можуть дегідруватися з утворенням речовин типу стиролу:
-
-СН=
Дегідрування по звязку С-О характерно для первинних спиртів, з яких утворяться відповідно альдегіди і кетони:
R-- OH
R-C-HO
- CH-OH
-CO
При дегідруванні по звязку С- N утворюються нітрили:
R
R-C-N
Реакції гідрування і дегідрування мають багато загального у своїх фізико-хімічних закономірностях, тому що вони є системою оборотних перетворень.
Усі реакції гідрування є екзотермічними, а реакції дегідрування завжди протікають з поглинанням тепла. Це сильно відображується на технологічному оформленні цих виробництв.
Процеси окисного дегідрування мають тепловий ефект, що залежить від частки реакцій окиснення і власно дегідрування. Оскільки окиснення завжди протікає з виділенням тепла, уведенням тих або інших кількостей кисню можна широко варіювати тепловий ефект сумарного перетворення. Це є одною з переваг окисного дегідрування - усувається ендотермічність процесу і необхідність у постійному підігріві реакційної маси.
Дуже великою особливістю більшості реакцій гідрування і всіх процесів дегідрування є їх оборотність. Унаслідок екзотермічності гідрування рівновага буде зміщатися в його сторону при зниженні температури, а для ендотермічних реакцій дегідрування навпаки, сприятлива висока температура.
З підвищенням молекулярної маси парафіну рівновага найбільш сприятлива для дегідрування. Наявність фенольних заступників і розгалуження вуглецевого ланцюгу сприяє відщепленню водню. Найбільше легко відбувається дегідрування шестичленних циклоалканів, а відщеплення водню з одержанням вуглеводнів зі сполученими подвійними і особливо потрійними зв'язками термодинамічно найменш вигідно і т.д.
У процесах гідрування, що супроводжуються виділенням води, рівновага звичайна зміщена вправо в більшій мірі, так гідрування спиртів у вуглеводні і нітросполук в аміни практично необоротно, виключенням є перетворення карбонових кислот у спирти:
R-COOH + 2=R--OH + O
Для одержання досить високого фактичного ступеню конверсії реагентів при оборотних процесах гідрування-дегідрування необхідно вибрати умови, при яких досягається можливо більш вигідне положення рівноваги, що залежить від термодинамічних факторів.
Процеси дегідрування потрібно проводити при відносно високій температурі, що для різних технологічних процесів змінюється від 200 до 600-650С. Вона залежить від типу вихідної речовини і багато в чому визначається термодинамічними особливостями реакції. Усі процеси дегідрування здійснюються в газовій фазі. При дегідруванні через відщеплення водню завжди відбувається збільшення обємів газів, і, отже, підвищенню ступеня конверсії сприяє низький тиск. З цієї причини для процесів дегідрування вибирають тиск близький до атмосферного, а в деяких випадках здійснюють процес у вакуумі. Так, при температурі 595С рівноважний ступінь конверсії етилбензолу в стирол при тиску приблизно рівному 0,1 МПа складає 40 %, а при 0,01 МПа 80 %.
Замість того щоб застосовувати вакуум, іноді зручно розбавляти реакційну суміш газом або парою, інертним в умовах реакції, що також веде до зниження парціального тиску реагентів і росту рівноважного ступеня конверсії. Тому що водень зміщає рівновагу убік гідрування, а інші гази затруднюють виділення цільових продуктів, на практиці часто застосовують водяну пару, зберігаючи загальний тиск приблизно рівним 0,1 МПа.
Каталізатори
Застосування каталізаторів дозволяє досягти високої швидкості процесів при порівняно низькій температурі, коли ще не одержують значного розвитку небажані побічні реакції. Через оборотність реакцій гідрування-дегідрування і здатності будь-яких каталізаторів однаково прискорювати як прямий, так і зворотний процес, обидва ці процеси каталізуються тими самими речовинами. Їх можна розділити на три головні групи:
1. Метали VIII групи (Fe, Co, Ni, Pd, Pt) і 1-Б підгрупи (Cu, Ag), а також суміші цих металів (сплави).
2.Оксиди металів (Mg, Zn, , , ).
3. Складні оксидні і сульфідні каталізатори, що складаються із суміші оксидів або сульфідів (мідь- і цинкхромокисні Cu, і Zn,; кобальтмолібденові Co; нікель- і кобальтвольфрамокисні NiО і Co).
Ці речовини, особливо метали, часто наносять на пористі носії і додають до них різні промотори оксиди інших металів, лугу. Каталізатори застосовують у різних формах від тонкодиспергованих у рідині до формованих (у виді циліндрів, кілець, таблеток). Вони мають різну активність і селективність для кожного конкретного процесу. Поки не знайдено яких-небудь загальних закономірностей, що визначають оптимальний вибір каталізатору.
Механізм реакцій гідрування-дегідрування
Ці процеси відносяться до типу гомолітичних перетворень, подібних до гетерогенно-каталітичних реакцій окиснення. Важливу роль грає хемосорбція реагентів на активних центрах (К), при якій за рахунок електронних переходів, за участю каталізатора, послабляються або цілком розриваються хімічні зв'язки в адсорбованій молекулі. Різними методами показано, що, коли водень сорбується металами, за фізичною адсорбцією випливає часткове ослаблення зв'язків і дисоціація молекули:
К + « К--- ® К-Н--Н
2К-Н
Насичені вуглеводні сорбуюються в меншому ступені, але для них також можлива дисоціація по С-Н зв'язку:
K + RH «КH---R « KH + KR
K-R---H
Олефіни, ароматичні з'єднання, а ще в більшому ступені ацетилен і його гомологи мають високу здатність до сорбції, що протікає в основному за рахунок часткового або повного розкриття ненасиченого зв'язку:
К + = « К--- = « К- --
Оксидні каталізатори ведуть себе подібним же чином, але їх здатність до хемосорбції водню і вуглеців менше, ніж у металів. Органічні кисень і азотовмісні з'єднання краще сорбуються на оксидних каталізаторах, чим на металах.
Подальша взаємодія протікає між двома хемосорбованими частками, що знаходяться на сусідніх активних центрах поверхні, або між хемосорбованою часткою і фізичною адсорбованою, або молекулою, що налітає з обєму. При цьому в рівноважних процесах гідрування-дегідрування оборотна кожна елементарна стадія.
Дегідрування парафінів у моноолефіни
Дегідруванням парафінів одержують ізобутен і вищі олефіни. При виробництві бутадієну-1,3 та ізопрену ця реакція є першою стадією двохстадійного процесу дегідрування. Дегідрування парафінів у моноолефіни в термодинамічному відношенні більш сприятливо, чим дегідрування алкілароматичних вуглеводнів і олефінів. Тому при припустимій температурі (600 С) не потрібно знижувати парціальний тиск і процес ведуть без розведення, при тиску лише небагато перевищуючому атмосферний.
При дегідруваннні парафінів і утвориться суміш ізомерних олефінів, наприклад, з бутану виходить бутен-1, цис- і транс-бутен-2.

Крім того, виходять відповідні дієни але в невеликій кількості, тому що умови для їх утворення несприятливі. Побічно протікає крекінг, ізомеризація, коксоутворення. У відношенні реакцій розщеплення парафіни більш реакційноздібні, ніж олефіни, тому нижчих вуглеводнів (СН4 , С2 Н4 , С2Н6 та ін.) утвориться більше. Вважається, що ізомеризація в основному відбувається з олефінами, причому ізомерні олефіни (ізобутен або н-пентен) частково гідруються. У продуктах реакції тому знаходяться ще ізомерні парафіни (ізобутан і н-пентен), які утворюють значну кількість коксу за рахунок реакцій ущільнення олефінів і дієнів, розкладання вуглеводнів на вуглець і водень.
Каталізатори повинні бути активні у відношенні основної реакції, але по-можливості не прискорювати процеси крекінгу, ізомеризації і закоксовування. Кращими є оксидноалюмохромові каталізатори на основі оксиду алюмінію (,), що містять 10-40 % , і 2-10 % оксидів лужних металів (O, O, Be); останні служать для нейтралізації кислотних центрів оксиду алюмінію, що викликають крекінг та ізомеризацію. Ці каталізатори дуже чутливі до вологи і тому вихідні фракції С4 і С5 не повинні містити більш 1 мг водяних пар у 1 м3 .
Алюмохромові каталізатори активні до дегідрування н-бутану та ізопентану при температурі 500-650С, підвищення температури веде до посиленого розвитку побічних реакцій, що мають більш високу енергію активації. Оптимальною вважають температуру 560-590 С при дегідруванні н-бутану та 520-560 С при дегідруванні найбільш активного ізопентану.
Селективність падає при підвищенні ступеня конверсії вихідного парафіну (головним чином через уповільнення дегідрування при наближенні до рівноваги), тому її обмежують величиною 40-45 %. У зазначених умовах селективність процесу по н-бутену складає приблизно 75 %, по ізопентану 70 %. Однак, алюмохромові каталізатори швидко закоксовуються і потрібне періодичне випалювання з них коксу повітрям при температурі 600-650 С.
Через високу ендотермічність процесу під час відсутності розріджувача-теплоносія спочатку застосовували трубчасті реактори, що обігріваються топковими газами, чергуючи періоди дегідрування парафінів і регенерації каталізатора. Тепер використовуються системи з псевдозрідженим мікросферичним каталізатором. У них скомбіновані регенеративний принцип використання тепла і безперервна регенерація каталізатора (схема флюїд-реактора).
Каталізатор виходить з реактора дезактивованим і надходить у регенератор, де повітрям випалюється кокс. За рахунок екзотермічності останньої реакції каталізатор розігрівається і знову надходить у реактор, де виконує додаткову роль теплоносія, що компенсує витрати тепла на ендотермічну реакцію дегідрування. У реакторах із псевдозрідженим каталізатором відбувається значне перемішування реакційної суміші, а це знижує продуктивність і селективність. Тому реактор постачають горизонтальними тарілками провального типу, що значно поліпшує показники процесу.
Регенерований каталізатор надають на верхні розподільні ґрати, і псевдозріджений шар каталізатору і реакційні гази рухаються протитоком один до одного, що створює найбільш сприятливий режим процесу (більш гарячий каталізатор контактує з частково прореагованою сумішшю і навпаки, чим досягається вирівнювання швидкостей реакції по всьому обєму). У верхній частині реактора мається «гартівний» змійовик, де реакційні гази прохолоджуються н-бутаном, який йде на дегідрування. Завдяки цьому температура газів швидко знижується до 450-500С і запобігається їх подальше розкладання.
Регенерацію закоксованого каталізатору здійснюють також у псевдозрідженому шарі при протитоці газу та окиснювача, що надходить під нижні розподільні ґрати регенератору. Оскільки необхідно уникнути перегрівів, що ведуть до дезактивації каталізатора, регенерацію проводять сумішшю повітря з газами згорання палива, що містить 2-3 % (об.) кисню. При цьому оксид хрому все-таки частково окиснюється в Cr і, при відновленні останнього в реакторі, утворюється вода, що шкідливо впливає на властивості каталізатору. Щоб уникнути цього в десорбер регенератора надають топковий газ, що відновлює каталізатор, і ще нижче - азот, віддуваючий пари води і газу згорання. Після цього регенерований каталізатор при температурі 640-650С підхоплюється транспортуючим газом і повертається до реактору.
Технологічний процес дегідрування парафінів у відповідні олефіни складає три основні стадії:
1.Дегідрування парафінів з регенерацією каталізатора.
2.Виділення бутан-бутенової (або пентан-пентенової) фракції з продуктів реакції.
3.Поділ бутан-бутенової (або пентан-пентенової) фракції з одержанням бутенів (або ізопентенів).
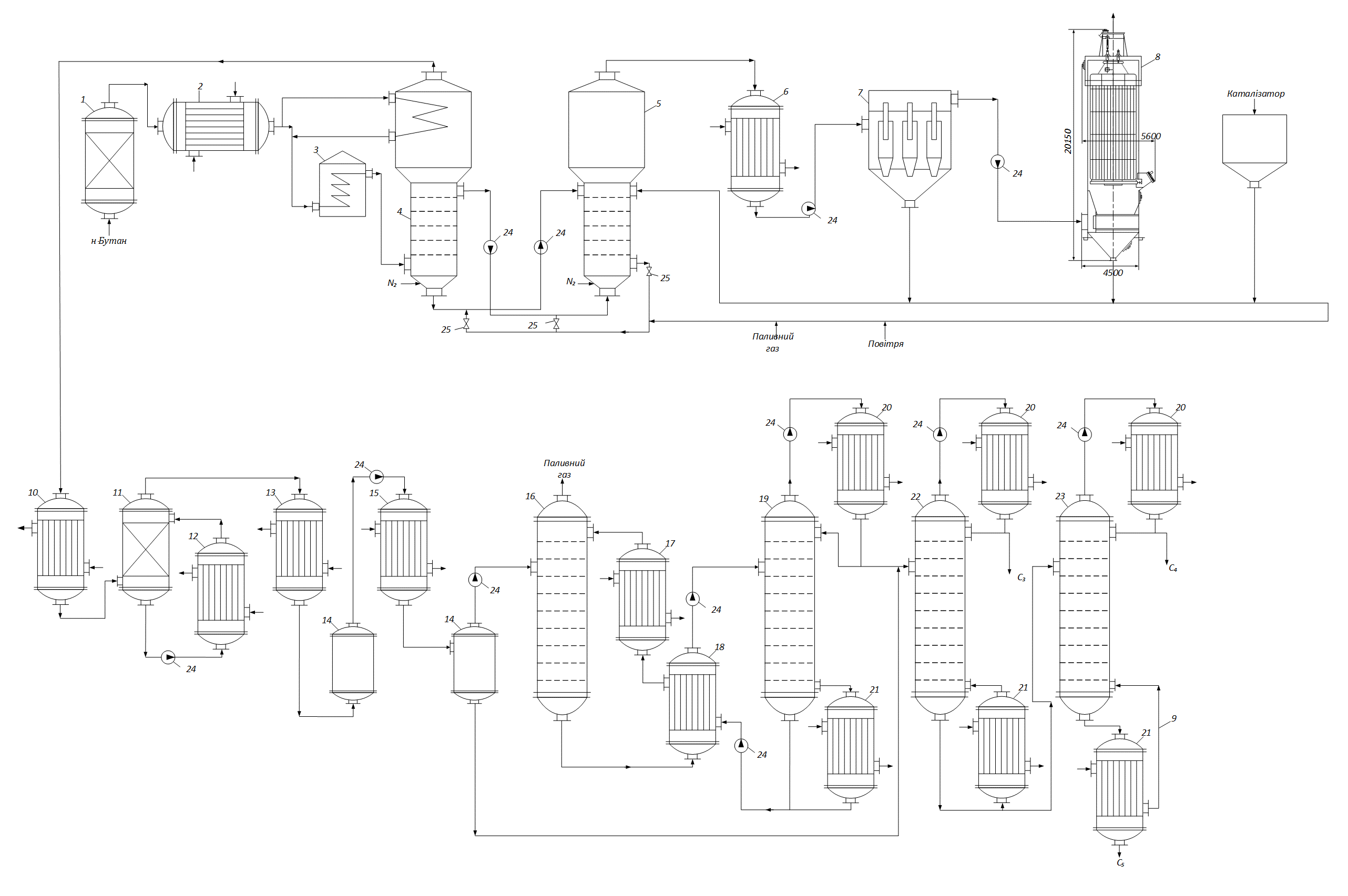
Технологічна схема першої стадії дегідрування парафінів
Свіжий і циркулюючий н-бутан в рідкому вигляді поступає в осушувач 1, який заповнений адсорбентом, а потім у випарник 2. Пари, що утворилися, підігріваються в трубчастій печі 3, яка має конвективну і радіантну секції, до 540-550С і поступає під розподільчу тарілку реактора 4 на дегідрування. В ньому є декілька провальних тарілок, які ділять реакційний обєм на секції.
Регенерований каталізатор подають на верхню розподільчу решітку. У верхній частині реактора є «гартівний» змійовик, де реакційні гази охолоджуються н-бутаном, який іде на дегідрування. Завдяки цьому температура газів швидко знижується до 450-500С. Теплота гарячих газів, що виділяються при дегідруванні, використовують в котлі-утилізаторі 10 для отримання водяної пари. Потім їх додатково охолоджують в скрубері 11 водою, що циркулює через холодильник 12, яка уловлює каталізаторний пил, що пройшла через циклони.
Закоксований каталізатор внизу реактора 4 стікає по спеціальній трубі,в якій його піддувають від вуглеводнів азотом. Після цього каталізатор підхоплюється потоком гарячого транспортуючого газу і за допомогою цього пневмотранспорту поступає на верх регенератора 5. Останній також має розподільчу і кілька провальних тарілок, які ділять його обєм на секції.
Регенерація здійснюється з псевдо розрідженим шаром каталізатора при протитоку газу-носія, поступаю чого під нижню розподільчу решітку генератора. Регенерацію проводять сумішшю повітря з газами згоряння палива.
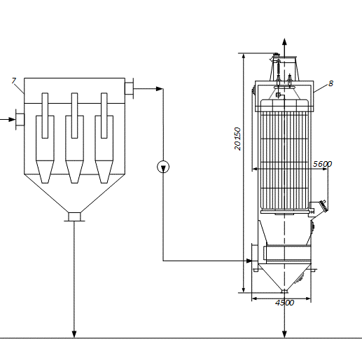
Гази регенерації проходять циклони, розташовані у верхній частині регенератора, і їх тепло використовують в котлі-утилізаторі 6, де утворюється водяна пара. Після цього, спочатку в батарейному циклоні 7, а потім в електрофільтрі 8 уловлюють захоплений газами каталізатор і викидають димові гази в атмосферу. Цей каталізатор знов повертають пневмотранспортом в регенератор. Для заповнення каталізатора є бункер 9, з якого свіжий каталізатор стікає по трубі, підхоплюється транспортуючим газом і поступає в реактор дегідрування.
Реакційні гази після скрубера 11 мають температуру 60-70С. Їх стискають в компресорі 24 до 1,3МПа і охолоджують водою в холодильнику 13, з конденсату відділяють воду в сепараторі 14. Потім газ, додатково охолоджують в розсільному холодильнику 15. Несконденсований газ поступає в абсорбер 16, що зрошується фракцією , яка уловлює захоплені газом пари і частково . Кубова рідина цього абсорбера через теплообмінник 18 направляється в вітпарну колону 19, в кубі якої збирається фракція , направляється через теплообмінник 18 і холодильник 17 на зрошення абсорбера 16. Легкий погон колони 19, вуглеводневий шар з сепаратора 14 і конденсат з холодильника 15 піддають ректифікації в колонах 20 і 21. В першій відганяють вуглепороди , а в другій бутен-бутенову фракцію від вищих вуглеводнів.

4. Теоретичні відомості про запропонований процес очищення.
В даному процесі дегідрування парафінів наявні газові викиди (процес дегідрування проходить лише в газовій фазі), які необхідно очищати від каталізатора , який є дрібнодисперсним порошком, подібним до пилу. Процес очищення проходить в дві стадії: очищення в батарейному циклоні і в електрофільтрі.
Очищення газових викидів у батарейному циклоні
Циклони застосовуються як апарати першого ступеня очищення або в сполучені з іншими пиловловлювачами. Батарейні циклони використовуються у випадку очищення значних обємів газу і призначені для виділення пилу крупністю до 5 мкм і являють собою аґреґати, що складаються з окремих, невеликого розміру, циклонів (елементи діаметром 100, 150 та 200 мм), які функціонують паралельно. Застосовують батарейні циклони, різні за конструкцією, розмірами, способом підведення газу і т. д.
Зі збільшенням діаметра циклона при постійній швидкості руху газу у вхідному патрубку відцентрова сила, що діє на частинку зменшується і одночасно знижується ефективність пиловловлення. Тому для пиловловлення встановлюють декілька циклонів меншого розміру, об'єднаних в групи або батареї, і при цьому забезпечують необхідну продуктивність очисного пристрою і задану ефективність очищення газів.
За даними практики ефективність уловлення пилу у циклонів діаметром 2 3 м складає до 80%, а у циклонів діаметром 0,3 0,5 м вона може досягати 90 95%, внаслідок дії на частинку більшої відцентрової сили. Ступінь очищення залежить від крупності частинок в суміші і способу подачі її в циклон. Однак у циклонів малого розміру є суттєвий недолік мала продуктивність, тому їх об'єднують у батареї. Батарейні циклони складаються з декількох десятків і навіть сотень включених паралельно циклонів.
Батарейний циклон складається з вхідного 1 і вихідного 5 патрубків, вхідної 2 і вихідної 4 камер, захисного клапана 3, циклонних елементів 6 з вихлопними тубами 9, корпуса 7 і пилового бункера 8. Запилений газ по вхідному патрубку надходить у клиноподібну вхідну камеру, проходить простір між вихлопними трубами і через закручуючі пристрої надходить в циклонні елементи. Уловлений пил потрапляє в пиловий бункер, з якого виводиться розвантажувальним пристроєм. Очищений газ по вихлопних трубах через вихідну камеру і вихідний патрубок видаляється з циклона.

Принцип методу електричної очистки газу
Одним із досконалих методів очищення газів від завислих частинок пилу й туману є електричне очищення, яке дозволяє вловити до 99% частинок. Пиловловлення в електрофільтрах є складним фізичним процесом, який включає в себе гравітаційне, інерційне, дифузійне та електростатичне осадження. Основними елементами електричного фільтра є коронувальний 1 та осаджувальний 2 електроди, які утворюють неоднорідне електричне поле 3.

Принцип роботи електрофільтра: 1 коронувальний електрод; 2 осаджувальний електрод; 3 електричне поле; 4 заряджена зона; 5 осілий шар пилу.
Коронувальні електроди 1 ізольовані від землі, а осаджувальні електроди 2 заземлені. До коронувальних електродів підводиться випрямлений струм негативної полярності напругою 50...80 кВ, а осаджувальні електроди підключені до позитивного полюсу. Коронувальні електроди виконуються у вигляді тонкого дроту, а осаджувальні електроди виготовляють у вигляді циліндричних або шестигранних труб та профільованих пластин. Очищення газів в електричних фільтрах відбувається таким чином. Забруднені гази пропускають через неоднорідне електричне поле 3, що утворюється між коронувальним 1 та осаджувальним 2 електродом. Внаслідок дії електричного поля вільні електрони і позитивно заряджені молекули починають переміщуватися в напрямку силових ліній поля. Напрямок руху кожного заряду залежить від його знаку, а швидкість руху від напруженості електричного поля. Чим вища напруженість електричного поля між коронувальним і осаджувальним електродами, тим більше прискорення отримують іони та електрони. При достатньо високій швидкості іони та електрони при стиканні з нейтральними газовими молекулами іонізують їх, тобто вибивають з них частину зовнішніх електронів. Електрони, що утворюються внаслідок іонізації, також іонізують молекули газу, тобто відбувається процес ударної іонізації. Найбільш інтенсивно ударна іонізація відбувається біля поверхні коронувального електрода, до якого підведена напруга. На вході в електрофільтр частинки пилу попадають в розподільчу жалюзійну решітку, де на них діють сили інерції. Величина цих сил залежить від розмірів частинок, конструктивних параметрів жалюзійної решітки, а також швидкості газового потоку в апараті. На жалюзійній решітці відбувається рівномірний розподіл газу по перерізу апарата. Після виходу з розподільчої жалюзійної решітки на частинку починають діяти сили гравітації. У вертикальних електрофільтрах сили гравітації діють тільки до моменту її попадання в міжелектродний простір. В горизонтальних електрофільтрах дія сил гравітації є значною протягом всього часу їх переміщення в апараті. Величина сил гравітації визначається швидкістю та вязкістю газового потоку, а також розмірами й густиною частинок пилу. В міжелектродному просторі на частинку пилу одночасно діють електростатичні сили іонного вітру, а також сили турбулентної та теплової дифузії. Величина електростатичних сил залежить від різниці потенціалів, що подаються на коронувальний та осаджувальний електроди, конструкції електрофільтрів, властивостей пилу, розміру частинок і параметів газового потоку. Сила теплової дифузії визначається температурою газу і розмірами частинок пилу. Величина сил турбулентної дифузії залежить від швидкості газового потоку, конструктивних параметрів електрофільтрів, розмірів частинок пилу та наявності перешкод. На загальний ступінь очищення в електрофільтрах суттєво впливає електронний вітер. Електронний вітер створюється іонами газу з полярністю, що протилежна полярності коронувального електрода. Ці іони утворюються під впливом корони і є одночасно її частиною. Внаслідок передавання кількості руху від іонів газу, що рухаються в електростатичному полі, обертовим частинкам газу виникає рух газу між електродами, який називається електронним або іонним вітром. Швидкість електронного вітру в апаратах 0,3...0,6 м/с, а найбільша локальна швидкість може досягати 3 м/с. В звязку з виникненням електронного вітру тиск у осаджувального електрода дещо більший ніж у коронувального. В результаті цього збільшується турбулентність газового потоку в електрофільтрі, яка є причиною підвищення величини граничного заряду дрібних частинок. Агрегатами живлення електрофільтрів є регулятор напруги, підвищувальний трансформатор та високовольтний випрямляч. Ефективність роботи електрофільтра визначається робочою напругою, значення якої повинно наближатись до напруги пробою. Оптимальний режим роботи електрофільтрів забезпечується регулюванням напруги на електродах, яка повинна підтримуватися на максимально високому рівні. Напруга пробою в електрофільтрі залежить від кількості очищуваних газів, їх температури, вологості, густини, концентрації частинок в газах, наявності шару пилу на електродах тощо. Напруга пробою коливається в значних межах, особливо в сухих електрофільтрах. Ступінь очищення в електрофільтрі визначається способом і режимом регенерації електродів. В сухих електрофільтрах для видалення пилу з осаджувальних та коронувальних електродів застосовується пружинно-кулачкова, ударно-молоткова, магнітно-імпульсна й вібраційна система струшування. Для видалення осаджених твердих частинок в мокрих електрофільтрах використовують безперервне або періодичне промивання електродів з подачею на них необхідної кількості промивної рідини, що змиває осаджений пил.
5. Характеристика основних забруднювачів
В процесі дегідрування парафінів, основними речовинами, які можуть мати негативний вплив на навколишнє середовище та здоровя людей є:
- Бутан (C 4 H 10) - органічна сполука класу алканів. Газ без кольору й запаху. Міститься в нафті і природних газах. Бутан, як правило, зустрічається тільки в газах пов'язаних з нафтовими покладами, що є ознакою, вказуючою на зв'язок газу з нафтою. Нижча теплота згоряння бутану від 112,3 до 121,4 МДж/м3. Вдихання бутану викликає асфіксію і серцеву аритмію. При попаданні на тіло зрідженого газу або струменя його випарів викликає охолодження до -20 °C, що вкрай небезпечно при інгаляціях. Легко спалахує. Межі вибуховості 1,9-8,4% у повітрі за об'ємом. ГДК в повітрі робочої зони 300 мг / м .
- Алкени - ненасичені ациклічні вуглеводні, названі також олефінами, що мають загальну формулу CnH2n. В даному виробництві присутні бутени і пентени. Бутени (Бутилени) С4Н8 це ненасичені вуглеводні, алкени, олефіни. Вони безбарвні гази з різким неприємним запахом. Бутени подразнюють слизові оболонки очей і дихальних шляхів; ГДК - 0,15 мг/л. Горючі, вибухонебезпечні; температура спалаху від 80 до 73 °C. Цис--бутилен проникає в організм людини при вдиханні. При витоку вмісту балону, в якому зберігається речовина - ця рідина швидко випаровується в повітря, створюючи велику концентрацію, що приводить до серйозного ризику загибелі від задушення у замкнутих приміщеннях. Високі концентрації в повітрі призводять до нестачі кисню, викликаючи ризик втрати свідомості або смерті. Швидке випаровування рідини може викликати обмороження. Речовина при небезпечних концентраціях може чинити дію на центральну нервову систему. Вплив її може викликати втрату свідомості. Пентени (амілени) C5H10. Існують 1-Пентен (a-амілен, пропілетилен) 2- Пентен (b-амілен, сім-метилетилетилен), (у вигляді цис- і транс-ізомерів). Пентени подразнюють слизові оболонки і дихальні шляхи, З-метил-1-бутен робить дуже слабку анестезуючу та знеболювальну дію. Суміші пентенів з повітрям вибухонебезпечні при концентраціях пентенів 1,42-8,7%. Для 1-пентена і 2-пентена температура спалаху -18C, температура самозаймання 273C; ГДК - 50 мг/м3. Для З-метил-1-бутена температура спалаху 365C.
- Каталізато - темно-зелений порошок, в кристалічному стані - чорна з
металевим блиском речовина. Температура плавлення 1990° С, густина 5,21 г/см. Хімічно інертний. У воді, кислотах і лугах розчиняється. Проявляє амфотерні властивості. Не токсичний, на відміну від інших хромових сполук, але оскільки це дрібнодисперсний порошок, тому він проявляє такий же негативний вплив на здоровя людини як і пил: подразнює органи зору, дихальні шляхи (може викликати професійне захворювання пневмоконіоз).
6. Схема очищення та її опис
Для очищення газових викидів в процесі першої стадії дегідрування парафінів з регенерацією каталізатора запропоновано двостадійне очищення газових викидів. Перша стадія це застосування сухого методу очищення, а саме за допомогою інерційних сил в батарейному циклоні. Ступінь очищення становить 85%. В даному процесі батарейний циклон доцільно застосовувати, тому що каталізатор, який вловлюється є досить сипучий і не прилипає до стінок апарату. Циклони всіх видів відрізняються простотою конструкції (немає рухомих частин) і може бути використаний для очищення хімічно активних газів при високих температурах. Проте циклон має великий гідравлічний опір і очищує газ від частинок діаметром ~10мкм. Тому для більш тонкого очищення використовуємо другу стадію застосування електрофільтра.
В даному виробництві запропоновано використання електрофільтрів серії УВ - уніфіковані, вертикальні, сухі, пластинчасті розраховані на роботу при температурі не більше 250с. Ці електрофільтри мають одне електричне поле довжиною 7,4 м і розділені по газу на 1...3 секції. Основні конструктивні елементи електрофільтрів ув унівіковані з відпові- дними елементами електрофільтрів уг. Ступінь очищення становить ~98%, що задовольняє умови для того, щоб викидати очищений газ в атмосферу.

7. Розрахунок та підбір очисного апарату - електрофільтра
При великому вмістові частинок з розмірами 0...5 мкм і необхідному ступеню очищення (0,95) попередньо вибираємо пиловловлювач класу електрофільтра.
При робочій температурі обємні витрати газу:
,
де витрата відхідних газів при нормальних умовах, м 3 /с;
розрідження в системі, Па.
.
Площа перерізу активної зони для прийнятої (V = 1,4 м/с) швидкості газу:
,
де коефіцієнт, що враховує підсмоктування повітря (К 3 = 1,1);
Vг швидкість відхідних газів в апараті (V г = 0,8...2,0 м/с).
S.
Згідно даних табл.. 7.1 таку площу можуть забезпечити одиночні фільтри
УГ2-3-26, ЕГА1-10-6-4-2, або вертикальний фільтр УВ-1-І6.
Таблиця 1.1 Основні технічні характеристики сухих електрофільтрів серії УГ
|
Показники |
Марка |
|||||||
|
УГ-1-2-10 |
УГ-2-3-26 |
УГ-2-3-37 |
УГ-3-4-37 |
УГ-3-4-88 |
УГ-3-4-115 |
УГ-3-4-230 |
||
|
2 |
3 |
4 |
5 |
6 |
7 |
8 |
||
|
Активна висота електродів, м |
4,2 |
7,5 |
7,5 |
7,5 |
12,2 |
12,2 |
12,2 |
|
|
Активна довжина електричного поля, м |
2,51 |
2,51 |
2,51 |
2,51 |
3,95 |
3,95 |
3,95 |
|
|
Загальна площа осаджування, м2 |
420 |
1690 |
2350 |
3150 |
12300 |
16100 |
32200 |
|
|
Площа активного перерізу, м2 |
10 |
25 |
37 |
37 |
88 |
115 |
230 |
|
|
Питомі витрати електроенергії на 1000 м3/год газу, кВт год |
0,30 |
0,30 |
0,30 |
0,30 |
0,30 |
0,30 |
0,30 |
|
|
Максимальні ступіні очищення |
0,99 |
0,99 |
0,99 |
0,99 |
0,99 |
0,99 |
0,99 |
|
|
Максимальна темпера-тура очищування газів, °С |
250 |
250 |
250 |
250 |
250 |
250 |
250 |
|
|
Крок між однойменними електродами, мм |
300 |
300 |
300 |
300 |
300 |
300 |
300 |
|
|
Габаритні розміри, м: |
||||||||
|
довжина |
9,6 |
14,1 |
14,1 |
18,6 |
24,8 |
24,8 |
24,8 |
|
|
висота |
12,3 |
15,4 |
15,4 |
15,4 |
21,8 |
21,8 |
21,8 |
|
|
ширина |
3,0 |
4,5 |
6,0 |
6,0 |
9,0 |
12,0 |
24,0 |
Продовження таблиці 7.1
|
|
ЕГА1-10-6-4-2 |
ЕГА1-14-7,5- |
ЕГА1-20-7,5- |
ЕГА1-30-9-6-3 |
ЕГА1-40-12- |
ЕГА2-88- |
УВ- |
УВ- |
УВВ- |
УВВ- |
|
9 |
10 |
11 |
12 |
13 |
14 |
15 |
16 |
17 |
18 |
|
|
Активна висота електродів, м |
6 |
7,5 |
7,5 |
9,0 |
12 |
12 |
- |
- |
- |
- |
|
Активна довжина електричного поля, м |
2,56 |
2,56 |
3,84 |
3,84 |
3,84 |
3,84 |
7,4 |
7,4 |
6,2 |
6,2 |
|
Загальна площа осаджування, м2 |
630 |
1660 |
2360 |
6360 |
11250 |
33000 |
1800 |
3900 |
285 |
570 |
|
Площа активного перерізу, м2 |
16,5 |
28,7 |
41,0 |
73,4 |
129,8 |
285,6 |
32 |
72 |
8 |
16 |
|
Питомі витрати електроенергії на 1000 м3/год газу, кВт год |
0,20 |
0,20 |
0,20 |
0,20 |
0,20 |
0,20 |
0,11 |
0,11 |
0,11 |
0,11 |
|
Максимальні ступіні очищення |
0,99 |
0,99 |
0,99 |
0,99 |
0,99 |
0,99 |
0,99 |
0,99 |
0,99 |
0,99 |
|
Максимальна температура очищування газів, °С |
330 |
330 |
330 |
330 |
330 |
330 |
250 |
250 |
130 |
130 |
|
Крок між однойменними |
300 |
300 |
300 |
300 |
300 |
300 |
275 |
275 |
350 |
350 |
|
Число секцій |
1 |
1 |
1 |
1 |
1 |
2 |
2 |
3 |
1 |
1 |
|
Габаритні розміри, м: |
||||||||||
|
довжина |
9,26 |
17,28 |
11,82 |
17,26 |
17,28 |
22,74 |
9,0 |
13,5 |
20,0 |
20,0 |
|
висота |
12,4 |
14,9 |
15,4 |
16,4 |
16,9 |
19,9 |
19,9 |
21,4 |
3,15 |
3,15 |
|
ширина |
3,2 |
4,4 |
6,2 |
9,2 |
12,2 |
27,2 |
4,5 |
6,0 |
3,0 |
6,0 |
Для визначення оптимального варіанту розраховуємо витрати електроенергії для кожного фільтра, використовуючи значення питомих витрат електроенергії з табл. 7.1.
Тоді: для електрофільтра УГ-2-3-26

для електрофільтра ЕГА 1-10-6-4-2

для електрофільтра УВ-1-І6

З трьох апаратів за мінімальними енергозатратами вибираємо пиловловлювач УВ-1-І6 з такими параметрами: L = 7,4 м; B = 0,275 м; l = 0,25 м і R1 = 0,0015 м. Напруга на електродах U = 60 кВ.
Відносна густина газу

Критична напруженість поля, при якій виникає корона:
,
де радіус осаджувального електрода, м (=0,0015м)
=3,04(0,75+0,0311)=4,4· В/м.
Критична напруга корони буде рівна (для пластинчастих електрофільтрів):
,
де b відстань між пластинами електродів (b=0,275м),
l відстань між сусідніми коронуючими електродами в ряду (l=0,25м)
=4,4··1,5·(3,14·0,275/(2·0,25) ln(2·3,14·1,5·/0,25)=30· В.
Лінійна густина струму корони для пластинчастих електрофільтрів при
=0,12=0,099
К = 2,1• м/(В•с) табличне значення для сухого повітря (табл. 7.2)
Таблиця 7.2 Рухомість іонів в газах і парах, м/В•с при н. у.
|
|
Рухомість іонів, К•10-4 |
Гази і пари |
Рухомість іонів, К•10-4 |
||
|
негативна |
позитивна |
негативна |
позитивна |
||
|
Азот |
1,84 |
1,28 |
Гелій |
6,31 |
5,13 |
|
Аміак |
0,66 |
0,57 |
Двоокис вуглицю |
0,96 |
- |
|
Водень |
8,13 |
5,92 |
Кисень |
1,84 |
1,32 |
|
Водяний пар при 100°С |
0,57 |
0,62 |
Окис вуглецю |
1,15 |
1,11 |
|
Повітря: дуже чисте, сухе |
|
|
Сірчаний ангідрид |
0,41 |
0,41 |
|
2,48 2,1 |
Двоокис вуглецю |
0,82 |
- |
||
|
1,84 1,32 |
,
де U напруга на електродах, В;
Uo критична напруга коронного розряду, В;
радіус осаджувального електрода, м ( = 0.0015 м);
коефіцієнт компоновки електродів між пластинами ( = 0,12·(l/b) ).
=0,42· (А/м).
Напруженість електричного поля:
,
де лінійна густина струму корони, А/м;
електрична стала ( = 8,85 ·10 -12 Ф.м);
К рухомість іонів, м/В·с;
b відстань між пластинами електродів (b =0,3 м);
l відстань між сусідніми коронуючими електродами в ряду (l = 0,25 м).
Е=2,86 (B/м).
Швидкість дрейфу частинок до осаджувального електрода визначають за лежно від величини напруженості електричного поля та діаметра частинок або розраховують за формулою:
= ,
де Е напруженість електричного поля, В/м;
r радіус частинок, мкм;
коефіцієнт, що враховує розміри частинок (для частинок розміром 2...50 мкм = 1, а для частинок менше 2 мкм =1+1/ r);
динамічна вязкість газу, Па·с.
Для практичних розрахунків швидкість дрейфу частинок можна вибирати за табл. 7.3. Швидкість дрейфу частинок в активній зоні електрофільтра, м/с.

Для визначення ступеню очищення знаходимо коефіцієнт , що характеризує геометричні розміри апарата і швидкість газу в ньому:
Знаходимо фракційні ступені очищення за формулою:
=1-
і зводимо дані в таблицю:
|
|
|
|
|
|
|
|
|
|
0,468 |
0,663 |
0,988 |
0,999 |
0,999 |
0,999 |
0,999 |
0,999 |
Загальна ефективність очищення газів буде рівна (величини i в %):
= + + + + =
= + + + + + + + =97,47%
Так, як фактична ефективність очищення більша необхідної (97,74 > 95), то вибраний газоочисний апарат відповідає вимогам до очищення газів.
8. Висновок
В курсовому проекті розраховано та спроектовано обладнання для очищення газових викидів у технологічному процесі дегідрування парафінів у відповідні олефіни, а саме електрофільтр серії УВ-1-16 з такими параметрами:
L = 7,4 м; b = 0,275 м; l = 0,25 м і r1 = 0,0015 м. Напруга на електродах U = 60 кв. Вибраний газоочисний апарат відповідає вимогам до очищення газів, оскільки ступінь очищення становить 98%, що перевищує необхідне значення (95%).
9. Список використаної літератури:
- Ратушняк Г.С., Лялюк О.Г. Технічні засоби очищення газових викидів. Навчальний посібник. Вінниця: ВНТУ, 2005. 158 с.
- Балабеков О.С., Балтаев Л.Ш. Очистка газов в химической промышленности. М.: Химия, 1991. 252 с.
- Лебедев Н.Н. Химия и технология основного органического и нефтехимического синтеза. М.: Химия, 1988.
- Тимофеев В.С., Серафимов Л.А. Принципы технологии основного органического и нефтехимического синтеза. М.:Химия, 1992.
- Спарченко В.К. Дегидрирование углеводородов. Киев: Наукова думка, 1981.
- http://uk.wikipedia.org/wiki
- Мала гірнича енциклопедія. В 3-х т. / За ред. В. С. Білецького. Донецьк: Донбас, 2004. ISBN 966-7804-14-3.
- http://www.xumuk.ru/encyklopedia
PAGE \* MERGEFORMAT 1
Очищення газових викидів у технологічному процесі дегідрування парафінів у відповідні олефіни









