Разработка проекта реконструкции очистных сооружений поверхностного стока с территории аэропорта Домодедово
PAGE \* MERGEFORMAT3
МИНОБРНАУКИ РОССИИ
Федеральное государственное бюджетное образовательное учреждение
высшего профессионального образования
«МАТИ - Российский государственный технологический университет имени К.Э.Циолковского» (МАТИ)
_______________________________________
КАФЕДРА: "Промышленная экология и безопасность производства"_ ___ _ ____
РЕЦЕНЗЕНТ ЗАВ. КАФЕДРОЙ _
“ ” 2012 г. “ ” 2012г.
ВЫПУСКНАЯ КВАЛИФИКАЦИОННАЯ РАБОТА БАКАЛАВРА
по направлению: 280200.62 «Защита окружающей среды_______ _ ___
ТЕМА: Разработка проекта реконструкции очистных сооружений_ __ поверхностного стока с территории аэропорта Домодедово _
Студент
подпись расшифровка подписи
Руководитель Федотова Н.В.
Консультант _
Москва 2012 год
Кафедра «Промышленная экология и безопасность производства»
«Утверждаю»
Зав. Кафедрой:
_______________/_________/
«__»______г.
ЗАДАНИЕ
на выпускную квалификационную работу бакалавра
Студент: группа
(Ф.И.О., № группы)
Тема: Разработка проекта реконструкции очистных сооружений поверхностного стока с территории аэропорта Домодедово
Перечень вопросов, подлежащих разработке и ВКР:
по разделу 1: Образование поверхностного стока _
по разделу 2: Характеристики поверхностного стока и существующие методы его очистки _
по разделу 3: Разработка проекта реконструкции очистных сооружений поверхностного стока с территории аэропорта Домодедово
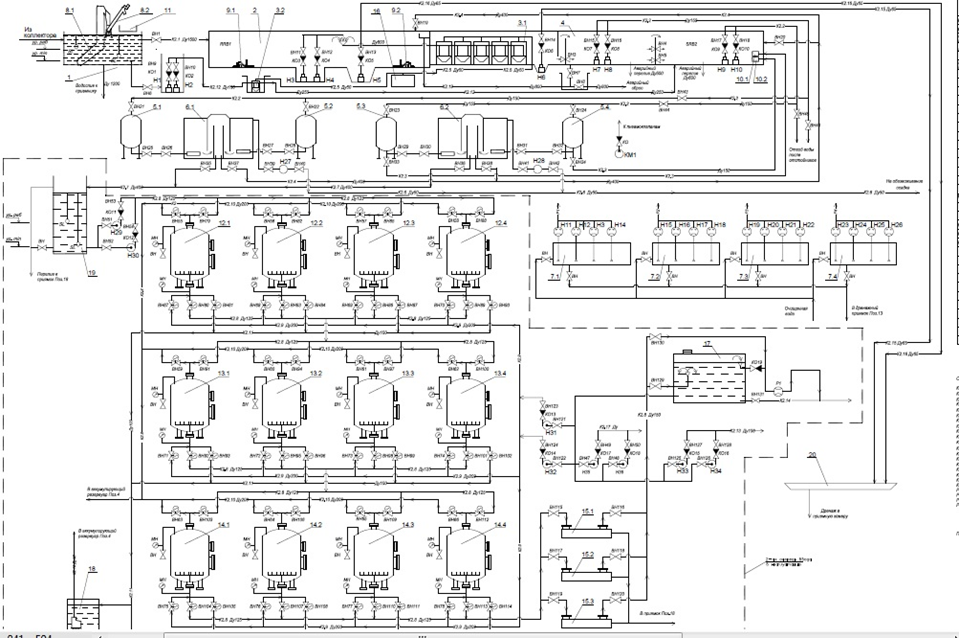
Перечень иллюстративно-графического материала: цели и задачи работы; принципиальная технологическая схема установки; приемная камера; накопительная ёмкость RRB 1; коалесцентные сепараторы; аккумулирующая емкость SRB 2; система напорной реагентной флотации (AWAS); механические фильтры первой ступени; сорбционные фильтры; резервуар очищенной воды; установка УФ-обеззараживания.
Задание выдано: 20.02.2012 год_________________ ______________________
Руководитель ВКР: Федотова Н.В., доцент_______ ___________
(Ф.И.О., должность, подпись)
Студент: _
АННОТАЦИЯ
ПОВЕРХНОСТНЫЙ СТОК, ОТСТОЙНИКИ, НЕФТЕПРОДУКТЫ, ВЗВЕШЕННЫЕ ВЕЩЕСТВА, ФЛОТАЦИЯ
Выпускная квалификационная работа посвящена разработке проекта очистки сточных вод с территории аэропорта Домодедово.
В первом разделе работы рассмотрены общие сведения о формировании поверхностного стока. Раздел посвящен основным понятиям.
Во втором разделе работы рассматриваются основные характеристики сточных вод с городских и промышленных территорий. Приведены основные методы их очистки. Даются требования к степени очистки и основы расчетов очистных сооружений сточных вод.
В третьем разделе работы проводится разработка установки для очистки поверхностных сточных вод и исследование очистки сточных вод на опытной установке, в состав которой входят: приемная камера с механизированной решеткой, песколовка, флотаторы, напорные механические фильтры, установка ультрафиолетового обеззараживания, резервуар очищенной воды, резервуар для накопления нефтепродуктов. На опытной установке очищалась сточная вода, а также производится расчет эффективности установки.
Работа включает в себя 81 страницу, 12 рисунков и 19 таблиц.
THE SUMMARY
SURFACE RUNOFF, SEPTIC TANKS, OIL, SUSPENDED SOLIDS, FLOTATION
Final qualifying is devoted to the drafting of wastewater from the territory of Domodedovo airport.
In the first section of the paper deals with general information about the formation of surface runoff. Section is devoted to basic concepts.
The second section examines the main characteristics of the waste water from urban and industrial areas. The basic methods of cleaning them. Provides requirements for the degree of purification and the basis of calculation wastewater treatment plant.
In the third section of the development is carried out installations for surface treatment of sewage and waste water treatment research at the pilot plant, which comprises: a receiving chamber with a mechanical grate, sand trap, flotators, pressure mechanical filters, installation of ultraviolet disinfection, treated water tank, tank accumulation of petroleum products. In the pilot plant was cleaned waste water, and calculated the efficiency of the installation.
The work includes a 81 page, 12 figures and 19 tables.
СОДЕРЖАНИЕ:
|
Введение………………………………………….………………………………. Глава 1. Данные о формировании поверхностного стока …………………... 1.1. Общие данные о поверхностном стоке………………………………… 1.2. Образование дождевого стока…………………………………………… Глава 2. Характеристики поверхностного стока и методы его очистки……. 2.1. Содержание примесей в поверхностном стоке……………….................. 2.2. Состав и свойства поверхностных стоков………………………………… 2.2.1. Поверхностный сток с городских территорий…………………………. 2.2.2.Состава поверхностного стока с промышленных площадок…………. 2.3. Очистка поверхностного стока……………………………………………. 2.3.1. Требования к степени очистки поверхностного стока…………………. 2.4. Основы расчета очистных сооружений………………………………….. 2.4.1. Отстойные сооружения………………………………………………….. 2.4.2. Обработка осадков………………………………………………………. Глава 3. Разработка проекта реконструкции очистных сооружений поверхностного стока с территории аэропорта Домодедово ……………… 3.1.Общие сведения……………………………………………………………… 3.2. Исходные данные…………………………………………………………… 3.2.1. Характеристика состава поверхностного стока………………………… 3.2.2. Требования к качеству очищенного стока………………………………. 3.2.3. Принятая производительность очистных сооружений………………… 3.3. Характеристика принятой технологической схемы………………………. 3.3.1. Обоснование принятой технологии очистки……………………………. 3.4. Описание принципа работы сооружений…………………………………. 3.4.1. Приемная камера………………………………………………………….. 3.4.2. Накопительная ёмкость RRB 1………………………………………….. 3.4.3. Коалесцентные сепараторы………………………………………………. 3.4.4. Аккумулирующая емкость SRB 2……………………………………… 3.4.5. Система напорной реагентной флотации………………………………. 3.5. Доочистка поверхностного стока фильтрацией…………………………... 3.5.1. Механические фильтры первой ступени……………………………….. 3.5.2. Сорбционные фильтры…………………………………………………… 3.6. Резервуар очищенной воды………………………………………………. 3.7. Установка УФ-обеззараживания………………………………………….. 3.8. Перечень мероприятий по сокращению вредных выбросов в окружающую среду…………………………………………………………… 3.9. Технология обработки и механического обезвоживания образующихся осадков………………………………………………………………………….. Заключение……………………………………………………………………… Список использованных источников………………………………………….. |
7 9 9 17 22 22 26 26 32 34 34 40 40 52 54 54 56 56 5758 58 61 62 62 64 65 65 69 73 73 74 75 75 76 76 78 79 |
ВВЕДЕНИЕ
Поверхностный сток - процесс перемещения воды по земной поверхности под влиянием силы тяжести. П. с. делится на склоновый и русловой. Склоновый сток образуется за счёт дождевых и талых вод, происходит на поверхности склона вне фиксированных путей. Русловой сток проходит по определённым линейным направлениям в руслах рек, днищах оврагов и балок. В формировании руслового п. с. иногда принимают участие также подземные воды и грунтовые воды. П. с. характеризуется объёмом воды, стекающей по поверхности (модуль стока), выраженным в л/секкм2 или слоем мм в год или за какой-либо другой период.
Системы отведения атмосферных осадков с городских территорий призваны обеспечить нормальные условия жизнедеятельности в населенных пунктах во время выпадения дождей и снеготаяния. Недостаточное внимание к своевременному отведению атмосферных осадков нередко приводит к затоплению территорий, перерывам в работе предприятий и транспорта, порче оборудования и материалов, размещенных на складах и в нижних этажах зданий, и другим чрезвычайным ситуациям. Ущерб, вызванный сильными ливнями, в некоторых случаях можно сравнивать с уроном, нанесенным крупными пожарами.
Перед сбросом в водные объекты дождевые и талые воды, как правило, должны быть очищены до такой степени, чтобы не вызвать сверхнормативного загрязнения воды в водоемах. Иногда экономически оправданно накопление поверхностного стока с целью его использования для водоснабжения или орошения.
Расчеты сетей для отведения дождевых вод, как правило, сложнее расчетов сетей производственно-бытового водоотведения, ибо формирование дождевых стоков происходит при непрерывно изменяющихся во времени притоках воды с прилегающей территории. Характер выпадения дождей зависит от климатических условий и предсказуем только с определенной степенью вероятности, а сток, в свою очередь, зависит от вида поверхности, рельефа и местных условий.
В работе описаны системы отведения поверхностного стока и методы их расчета.
Целью работы является разработка проекта реконструкции очистных сооружений поверхностного стока с территории аэропорта Домодедово.
Исходя из проведенного нами анализа литературы и учитывая технологические проблемы, существующие на предприятии, в работе были поставлены следующие задачи:
- Проанализировать образование дождевого и поверхностного стока;
- Исследовать методы очистки поверхностного стока;
- Разработать проект реконструкции очистных сооружений поверхностного стока.
ГЛАВА 1. ДАННЫЕ О ФОРМИРОВАНИИ ПОВЕРХНОСТНОГО СТОКА
- Общие данные о поверхностном стоке.
Основная масса атмосферных осадков выпадает в виде дождей. Важной характеристикой дождя является интенсивность выпадения, равная отношению количества выпавших осадков к продолжительности выпадения. Интенсивность дождя в метеорологии обычно выражается в мм/мин, но для технических расчетов более удобно выражение её в объеме выпавшей воды на единицу площади в единицу времени (в л/секга):
1 мм/мин = 166,7 л/секга;
1 л/секга=0,006 мм/мин.
В процессе выпадения дождя интенсивность непрерывно изменяется. Поэтому на практике пользуются понятием средней интенсивности за какой-то отрезок времени или в некоторых случаях за весь период выпадения.
Как известно, дожди даже в одной местности отличаются огромным разнообразием как по количеству выпавших осадков, так и по продолжительности, и, следовательно, по интенсивности. Поэтому при рассмотрении всего комплекса дождей местности возникает необходимость характеризовать дождь также и с точки зрения вероятности его выпадения. При этом вопрос ставится о вероятности повторения интенсивности за тот или иной период продолжительности. Для выражения вероятности пользуются понятием периода превышения в годах р или частоты превышения m, отнесенной к одному году. Эти величины обратны одна другой:
(1.1)
Рассмотренные характеристики отдельных дождей могут быть получены лишь путем измерения осадков самопишущими дождемерами (плювиографами), которые дают запись дождя в координатах времени и количества осадка. Однако не все метеорологические станции оборудованы такими самописцами. Широкое применение имеют также осадкомеры, при помощи которых получаются суммарные количества осадков за периоды между сроками наблюдения (34 раза в сутки), т. е. практически суточные количества осадков.
Путем суммирования суточных количеств атмосферных осадков находятся месячные и годовые суммы, которые в большинстве случаев и служат основой для климатологической характеристики местности.
Процесс образования атмосферных осадков чрезвычайно сложен и изменчив. Количество и характер выпадающих осадков находятся в непосредственной связи с целым рядом факторов: наличием запасов влаги в атмосфере; температурными и динамическими условиями, создающими вертикальные и горизонтальные течения воздуха; характером земной поверхности, влияющим на создание восходящих токов воздуха, и т. п. Совместное действие всех этих факторов создает типичную картину осадков данной местности.
В образовании осадков на суше главную роль играет водяной пар, приносимый воздушными течениями с океанов. Даже для территорий, расположенных внутри континентов, местное испарение дает значительно меньшее количество водяного пара.
Наибольшее количество осадков выпадает во внутритропической зоне, где в ряде областей оно превышает 2000 мм в год и доходит до 5000-8000 мм в год. Севернее и южнее экваториальной зоны годовое количество атмосферных осадков местами резко падает и во многих районах не достигает даже 50 мм в год (Сахара, Аравия).
Для субтропической зоны характерным является резкое изменение осадков на сравнительно небольших пространствах и неравномерное распределение их в течение года. В прибрежных районах континентов годовые количества осадков достигают 1000 мм и больше, падая по мере удаления от берегов океанов до 250 мм и местами даже до 50 мм.
В умеренной зоне большее увлажнение наблюдается у западных берегов материков, западных склонов гор и возвышенностей. Годовое количество осадков в этой зоне колеблется в пределах 1000250 мм, а местами падает и до 100 мм.
Арктическая зона характеризуется небольшими количествами атмосферных осадков, как правило, не превышающими 300 мм в год.
В сильной степени на распределение осадков влияет характер земной поверхности и рельеф. В горной местности количество осадков увеличивается до известного предела, а затем уменьшается. Подветренные склоны значительно беднее осадками. Аналогичное влияние на осадки оказывают и сравнительно небольшие возвышенности. Установлено также, что и лесные массивы способствуют усилению восходящих токов и выпадению более обильных осадков.
Количество осадков зависит не только от влагосодержания воздуха, степени насыщения его водяным паром, интенсивности испарения, загрязненности атмосферы, рельефа территории, но и от характера атмосферной циркуляции. Особенностью циркуляционных процессов является возникновение, перемещение и эволюция крупномасштабных вихрей - циклонов и антициклонов. Циклоны возникают и развиваются в зонах сходимости воздушных масс, которые называются атмосферными фронтами.
Осадки выпадают преимущественно при прохождении циклонов и фронтов. Осадки местного происхождения выпадают мало и только в летний период.
Необходимо иметь в виду, что значительные скопления: городских и фабрично-заводских построек увеличивают общее количество выпадающих осадков и способствуют образованию мощных ливней. Например, среднее годовое количество атмосферных осадков в окрестностях г. Воронежа на 25% меньше, чем в самом городе. Поэтому, используя данные наблюдений метеорологической станции, расположенной даже вблизи от интересующего нас пункта, следует всесторонне оценить местные условия.
В годовую сумму атмосферных осадков входят как жидкие осадки (дождь), так и твердые (снег). Как правило, количество твердых осадков даже в сравнительно холодных климатических поясах меньше, чем жидких. Например, в Санкт-Петербурге оно составляет 25% от годового количества, а Салехарде - 20%.
Капли дождя возникают либо за счет слияния мелких облачных капель в более крупные, либо за счет таяния ледяных кристаллов, содержащихся в облаках, при падении их через слои атмосферы с положительной температурой. Диаметр капель составляет 0,5-7 мм Капли дождя диаметром до 8 мм падают со скоростью до 10 м/с. Крупные капли (диаметром 3-5 мм) при падении на твердую поверхность разрушаются и образуют брызги, которые разлетаются на расстояние до 110 мм, поднимаясь на высоту до 30 см.
Капли дождя, падающие на водную поверхность, вызывают разбрызгивание воды. Масса разлетающихся брызг может в 1,5 раза превышать массу падающих капель.
При падении капель дождя на гладкую поверхность брызги разлетаются на большие расстояния, а масса брызг составляет около 70 % массы падающих капель. При падении капель на сухую твердую поверхность земли количество брызг намного меньше, чем при падении на мокрую. При падении капель на пористую поверхность (сухая земля) брызги не образуются. Мелкокапельный дождь (диаметр капель менее 0.5 мм) называется моросью.
Общая продолжительность выпадения атмосферных осадков, представляющая интерес для некоторых связанных с проектированием канализации расчетов, носит иной характер: зимние осадки более продолжительны, чем летние (табл. 1.1). Общая продолжительность дождей даже в условиях влажного климата невелика. В самый дождливый месяц в Санкт-Петербурге она составляет лишь около 10% всего времени.
Таблица 1.1.
|
Город |
Продолжительность осадков по месяцам, ч |
Всего в год |
|||||||||||
|
1 |
2 |
3 |
4 |
5 |
6 |
7 |
8 |
9 |
10 |
11 |
12 |
||
|
Астрахань Санкт-Петербург |
55 195 |
41 177 |
34 120 |
24 90 |
19 56 |
19 61 |
17 45 |
10 52 |
19 70 |
19 101 |
38 153 |
65 176 |
360 1296 |
Общая продолжительность выпадения атмосферных осадков.
В связи с антропогенным загрязнением атмосферы выбросами двуокиси (серного ангидрида) и окислов серы широкое распространение получили "кислые дожди". Выпадение таких дождей привело к закислению природной среды на обширных территориях. Европы и Северной Америки, а также в ряде районов других континентов. При этом показатель кислотности осадков рН=4,5, в то время как обычно составляет 5,6-5,7. Если в некоторых районах Земного шара (в тропиках) выпадение кислотных дождей может не оказывать существенного влияния на растительность, то в умеренных и высоких широтах такие дожди причиняют существенный ущерб.
Для расчетов стока дождевых вод особенно важны характеристики отдельных дождей. Как уже указывалось, эти данные могут быть получены лишь наблюдениями при помощи самопишущих дождемеров.
Исследования хода выпадения отдельных дождей показывают на крайнее их разнообразие и по продолжительности, и по количеству выпавших осадков, и по характеру изменения интенсивности в процессе выпадения. Дожди могут, длиться от нескольких минут до нескольких часов и даже суток, а количество выпавших осадков за отдельный дождь изменяется от долей до нескольких десятков миллиметров; интенсивность выпадения также может быть чрезвычайно разнообразна. Годовые и месячные количества атмосферных осадков не позволяют в этом отношении полностью охарактеризовать отдельные дожди. Так, например, Архангельск и Ростов-на-Дону или Санкт-Петербург и Киев имеют соответственно одинаковые средние годовые суммы осадков, но Ростов-на-Дону и Киев отличаются более редкими и сильными дождями, чем Архангельск и Санкт-Петербург.
Поэтому распределение интенсивности дождей одной и той же вероятности носит несколько иной характер, чем распределение годовых количеств атмосферных осадков.

Рисунок 1.1. Распределение максимальных часовых количеств атмосферных осадков (мм), превышаемых один раз в год.
На рис.1.1 дана карта с изолиниями часовых количеств осадков вероятностью один раз в год, которые характеризуют и интенсивность дождей, так как часовая продолжительность выпадения отвечает обычно лишь одному дождю. Интенсивность дождей вероятностью один раз в год в некоторых районах (Мадагаскар, Камерун) для часовой продолжительности достигает 1 мм/мин. Очевидно, что приведенная карта дает лишь общий характер распределения интенсивности дождей на земном шаре без какой-либо детализации.
Важной характеристикой дождей является ход изменения интенсивности в процессе выпадения. Исследования Государственного гидрологического института [10] дождей Украины, центральных и северо-западных областей Европейской территории РФ, а также исследование ЛНИИ АКХ дождей Санкт-Петербурга [10] показали, что интенсивность дождей сильно меняется в процессе выпадения, причем для каждого дождя эти изменения носят своеобразный характер. При известной схематизации можно наметить шесть типов хода выпадения (рис. 1.2, табл. 1.2).

Рисунок 1.2. Типы хода выпадения дождей ( по З.П.Богомазовой и З.П.Петровой).
Таблица 1.2.
Типы хода выпадения.
|
Тип (по рис.2) |
Положение периода наибольшей интенсивности |
Число случаев (вероятность) в % |
|
I II III I V V VI-а VI-б |
В начале В первой части В средней части В последней части Примерно равномерный ход интенсивности Два максимума: в начале и в середине дождя Два минимума: в начале и в конце дождя Не установлено |
24 13 4 7 9 9 |
Каждый из этих типов включает дожди самой разнообразной продолжительности и интенсивности. Лишь в отношении типа V(равномерный ход интенсивности) можно сказать, что он встречается преимущественно в слабых и продолжительных дождях. Проведенные в этой области исследования не дают еще полного решения вопроса и позволяют лишь отметить следующие, не вызывающие сомнения положения: чаще всего период наибольшей интенсивности, оказывается в первой трети дождя, реже - в первой его половине; дожди с равномерной интенсивностью или с наибольшей интенсивностью в конце выпадают значительно реже.
Большой интерес представляет вопрос о распространении дождей по площади. Величина площади, орошаемая, одним дождем, изменяется в очень широких пределах. Сильные грозовые дожди иногда проходят полосой 1-5 км; вместе с тем нередки случаи охвата сотен квадратных километров. Вопрос еще усложняется и тем, что интенсивность в любой момент времени далеко не одинакова в различных точках орошаемой площади. Исследования в этой области, не дали однородных результатов. Последние данные ЛНИИ АКХ показывают, что неравномерность выпадения дождя по площади главным образом зависит от синоптических условий образования дождей. Даже для дождей одной интенсивности и продолжительности эта неравномерность непостоянна для одной и той же местности. Поэтому коэффициент неравномерности выпадения дождя по площади, показывающий, насколько средняя интенсивность на всей площади меньше максимальной, следует связывать с вероятностью дождя.
Таблица 1.З.
Значения коэффициентов неравномерности в зависимости от величины площади и вероятности (периода однократного превышения интенсивности дождя), определенные по результатам экспериментальных исследований в Санкт-Петербурге.
|
Площадь, га |
Период однократного превышения, г |
Площадь, га |
Период однократного превышения, г |
||||
|
0,33 |
0,5 |
1,0 |
0,33 |
0,5 |
1,0 |
||
|
250 500 1000 2000 |
0,95 0,92 0,87 0,83 |
0,96 0,93 0,89 0,85 |
0,97 0,94 0,90 0,87 |
3000 5000 8000 10000 |
0,80 0,75 0,68 0,64 |
0,82 0,78 0,71 0,67 |
0,84 0,80 0,74 0,70 |
Как видно из таблицы и как подтверждается другими исследованиями, при малых площадях бассейна неравномерность выпадения по площади не имеет большого практического значения и только при площадях 1000 га и больше она становится существенной.
1.2. Образование дождевого стока.
Выпавший на канализуемую территорию дождь, прежде всего, смачивает поверхность, заполняет неровности и, если поверхность водопроницаемая, впитывается и намачивает верхние слои грунта. В дальнейшем остающаяся на поверхности вода начинает стекать в соответствии с уклоном местности. При водонепроницаемых поверхностях сток начинается очень скоро. В табл. 6 приводятся некоторые данные о потерях выпавшей воды до начала поверхностного стока (в мм) [7].
Эти потери обычно учитываются вместе с потерями на впитывание общим коэффициентом стока.
Таблица 1.6.
Некоторые данные о потерях выпавшей воды до начала поверхностного стока (в мм).
|
Вид поверхности |
По данным |
||
|
ЛНИИ АКХ |
Л.Т.Абрамов, А.В.Поляков, Ф.И.Мищенко |
Е.В.Болдаков |
|
|
Асфальт Бетон Булыжная мостовая Грунт без дерна Грунт с дерном (газон) Луга |
0,7-1 - 2-3 - 6 - |
- 1,5 - 3 6 - |
21 - 61 - - 10 |
1Эти данные нам представляются завышенными.
Часть дождевых осадков будет задерживаться растительностью. Возможный суммарный перехват осадков деревьями находится в пределах 2-10 мм. Происходит задержание и накопление осадков в углублениях поверхности. Наблюдения показывают, что величина задержанного слоя воды, как бы потерянного для стока, составляет: 5 мм на песке, 4 мм на газонах и 3 мм на глинистых поверхностях, в общем, потери изменяются от 1 мм на мощеных поверхностях до 10 мм в садах.
Вода, выпадающая на пористые поверхности, просачивается в них со скоростью Uф, которая зависит от водопроницаемости поверхности грунта и начального влагосодержания. За период ливня интенсивность инфильтрации уменьшается по мере заполнения водой пор грунта и подъема водного зеркала. Интенсивность инфильтрации за 1 ч можно с достаточной точностью принять для глины - 0,2-2 мм/ч, для суглинка -2-10 мм/ч и для песчаных почв -12-25 мм/ч. При наличии растительного покрова эти значения могут возрасти до 200 мм/ч на засеянном поле с песчаной почвой [8].
Рассмотрим сток воды от дождя, ход выпадения которого показан на рис. 1.3, с бассейна, изображенного на рис. 1.4.
На плане бассейна можно нанести линии, соединяющие точки, периоды времени добегания от которых до конечного сечения Б равны. Такие линии называют изохронами. Проведем изохроны через равные промежутки времени, например 1, 2, 3 мин. В процессе стока скорости движения воды в действительности несколько изменяются и поэтому изохроны, строго говоря, должны перемещаться по поверхности бассейна. Для упрощения задачи будем подразумевать среднее положение изохрон.
В первую минуту от начала выпадения дождя к сечению Б подойдет вода, выпавшая на площадь f1 в течение первой минуты выпадения. Количество этой воды:
(1.2)
Во вторую минуту к сечению Б притечет вода, выпавшая в первую минуту на площадь ; а выпавшая во вторую минуту на площадь количество ее:
(1.3)


Рисунок 1.3. Рисунок 1.4.
Ход выпадения дождя. Бассейны стока.
Продолжая подобные рассуждения, получим, что через 5 мин, когда к сечению Б будет стекать вода уже со всего бассейна, ее количество:
(1.4)
Если площади между изохронами равны (равномерное нарастание площадей стока), а вся площадь бассейна F то:
(1.5)
В этом случае расход к концу 5 мин будет равен произведению всей площади на среднюю интенсивность выпадения за период, равный продолжительности стока от наиболее удаленных точек бассейна (времени добегания).
Расчетные формулы интенсивности дождей, как известно, дают максимальные интенсивности для данного отрезка продолжительности. Поэтому очевидно, что в последующие минуты (в нашем случае в шестую, седьмую и т. д.), хотя и будет иметь место сток со всего бассейна, но расход будет меньше благодаря меньшей величине средней интенсивности [7].
Отсюда вытекает основной принцип определения расчетных расходов дождевого стока по так называемому «способу предельных интенсивностей»: максимальный расход в каком-либо сечении равен произведению площади бассейна стока на интенсивность дождя, отвечающую периоду продолжительности, равному продолжительности стекания по бассейну (или времени добегания от наиболее удаленных точек бассейна).
Способ предельных интенсивностей правилен для равномерного нарастания площадей стока при любом ходе выпадения дождя или для неравномерного нарастания площадей, но при постоянной интенсивности дождя.
Попытки дать более точный способ определения расходов дождевого стока, чем способ предельных интенсивностей, не привели к положительным результатам. Вся трудность заключается в невозможности в настоящее время установить типовой ход выпадения дождя.
Многолетняя практика применения способа предельных интенсивностей как у нас, так и за рубежом показывает, что он не приводит к заметным ошибкам и вполне удовлетворяет задачам, поставленным при проектировании дождевой канализации.
Широко применяется аналогичный способ определения расходов дождевого стока и в зарубежных странах. Лишь в некоторых странах наряду с ним иногда еще применяется упрощенный способ, основанный на употреблении формул замедления стока.
В некоторых, обычно легко обнаруживаемых при проектировании случаях максимальный расход дождевого стока получается при стоке не со всего бассейна, а лишь с его части. Такие случаи имеют место при резкой неравномерности нарастания площадей стока, вызываемой конфигурацией бассейна, особенностями начертания канализационной сети, резкой неравномерностью рельефа и значительными различиями коэффициентов стока, на отдельных частях бассейна.
ГЛАВА 2. ХАРАКТЕРИСТИКИ ПОВЕРХНОСТНОГО СТОКА И СУЩЕСТВУЮЩИЕ МЕТОДЫ ЕГО ОЧИСТКИ
2.1. Содержание примесей в поверхностном стоке.
Дождевой сток с городских водосборов содержит большое количество загрязняющих веществ, начиная с тех, которые осаждаются из воздуха, и кончая загрязнениями со свалок и из промышленных зон. В число известных источников загрязнения входят фекалии животных, садовые удобрения, продукты эрозии почв, автомобильные масла и резина от шин, разлагающиеся массы растительного происхождения и т.п.
В дождевых осадках содержатся значительные количества сульфатов, нитратов и нерастворимых примесей, характеризующихся количеством взвешенных веществ. Происходит подкисление атмосферных осадков выхлопными газами автомашин и дымом промпредприятий.
При формировании сток смывает и выносит примеси, находящиеся на водосборной поверхности. Осадки сорбируют загрязнения из атмосферы. Качественная характеристика поверхностного стока определяется продолжительностью предшествующего сухого периода, длительностью и интенсивностью выпадения осадков, санитарным состоянием территории, а также степенью загрязненности атмосферы.
С градостроительной точки зрения качество стока определяется плотностью населения и промышленным потенциалом города, интенсивностью движения транспорта, степенью благоустройства и гидрогеологическими характеристиками территории.
Суммарное количество примесей, вносимых поверхностным стоком в водные объекты с городских территорий, составляет 8-15% от соответствующих показателей бытовых вод, формирующихся на той же площади. При значительных расходах стока доля выноса поверхностных примесей превышает 30% [8].
Представление о возможных численных значениях среднегодовых расчетных концентраций поверхностного стока дают обобщенные данные (табл. 2.1) результатов исследований СПбГАСУ в Санкт- Петербурге в 1993-1994 гг. При этом воды, образующиеся при зимних оттепелях и при выпадении смешанных осадков, по загрязненности приравниваются к дождевым.
Таблица 2.1
Ориентировочные среднегодовые концентрации дождевою и талого стеков, инфильтрационных вод (современная застройка с малой транспортной нагрузкой), мг/л
|
Показатели загрязнений |
Дождевые воды |
Талые воды |
Инфильтрационные воды |
|
Взвешенные вещества |
300-600 |
600-1200 |
30-50 |
|
ХПК |
90-120 |
150-200 |
40-60 |
|
БПК2 |
40-80 |
70-150 |
25-40 |
|
БПК5 |
20-30 |
40-60 |
8-12 |
|
Азот аммонийный (N) |
8-10 |
18-20 |
5-7 |
|
Фосфаты (Р) |
0,5-0,8 |
1,2-1,8 |
0,4-0,5 |
|
Нефтепродукты |
7-12 |
10-15 |
2-4 |
|
Железо общее: Пушкин-Павловск Сестрорецкий район |
3-10 2-5 |
- - |
1-3 1-2 |
Загрязненность территорий, прилегающих к промышленным предприятиям, более высокая, и расчетные концентрации поверхностного и дренажного стока здесь соответственно выше значений, приведенных в табл. 2.1, по взвешенным веществам и нефтепродуктам - в 1,8-2 раза, по ХПК, БПК в 1,4-1,5 раза, по азоту аммонийному, фосфатам - в 1,3-1,4 раза [8]. В поверхностном стоке с таких территорий, кроме перечисленных загрязнений, могут присутствовать соли тяжелых металлов (табл. 2.2).
Следует отметить, что для подземных вод региона характерно содержание соединений железа, марганца и аммония естественного происхождения, что обуславливает их присутствие как в дренажных водах, так и в поверхностном стоке.
Характерными загрязнителями для поверхностного стока являются взвешенные вещества. Около 80% по весу взвешенных веществ имеют размер частиц менее 0.05 мм, из них около 15% - частицы размером до 0,005 мм. Образующийся при оттаивания дождевого стока осадок характеризуется высокой зольностью (70-80%): влажность его после 2 ч уплотнения колеблется в пределах 90-95% [8].
Органические вещества в поверхностном стоке содержатся в растворенном и нерастворенном состоянии. На долю суспензионных примесей приходится около 90% общего количества окисляющихся веществ, присутствующих в поверхностном стоке.
Таблица 2.2
Ориентировочные среднегодовые концентрации поверхностного стока и инфильтрационных вод по солям тяжелы к металлов для территорий, прилегающих к промышленным предприятиям, и со значительной транспортной нагрузкой, мг/л.
|
Показатели Загрязнений |
Дождевые воды |
Талые воды |
Инфильтрационные воды |
|
Алюминий |
1-3 |
1,3-4 |
0,4-0,6 |
|
Марганец |
0,3-0,5 |
0,35-0,55 |
0,4-0,7 |
|
Цинк |
0,25-0,3 |
0,3-0,4 |
0,25-0,4 |
|
Никель |
0,007-0,009 |
0,01-0,012 |
0,004 |
|
Свинец |
0,05-0,07 |
0,06-0,08 |
0,06-0,12 |
|
Хром общий |
0,006-0,012 |
0,008-0,015 |
0,006-0,01 |
|
Медь |
0,03-0,04 |
0,04-0,05 |
0,015-0,02 |
Химическое потребление кислорода взвесями поверхностного стока составляет 0,3-0,5 мг/мг, Скорость окисления органических веществ в поверхностном стоке несколько ниже, чем в хозяйственно-бытовых сточных водах. Полное биохимическое окисление достигается через 25-30 сут. Соотношение БПКводы/БПКз в среднем составляет 2,5-3. Содержание нефтепродуктов зависит в основном от интенсивности движения транспорта.
Кроме перечисленных загрязнений в поверхностном стоке могут содержаться биогенные элементы, специфические примеси, выбрасываемые в атмосферу промышленными предприятиями, и бактериальные загрязнения. В связи с выбросами в атмосферу двуокиси серы (серного ангидрида) и окислов серы происходит выпадение кислых дождей с показателем кислотности pH < 4,5. В умеренных и высоких широтах такие дожди причиняют растительности существенный ущерб.
С поверхностным стоком значительное количество загрязняющих веществ вносится в водные объекты, вызывая их загрязнение и заиление. Донные отложения, формирующиеся в водоемах в дождливую погоду, нарушают жизнедеятельность микроорганизмов и отрицательно сказываются на биоценозе и процессах самоочищения. Поэтому необходима оценка различных мер, принимаемых для обеспечения нормативных санитарных условий водных объектов.
Источниками загрязнения поверхностного стока взвешенными веществами являются пыль, аэрозоли, компоненты топлива и атмосферных промышленных выбросов, продукты разрушения дорожных покрытий и эрозии почвы, бытовой мусор, растительные остатки и т.п. Дождь захватывает из воздуха 12-20 мг/л твердых частиц. Около 14 мг/л аэрозолей и компонентов промышленных выбросов содержится в стоке с крыш здания. Продукты разрушения дорожных покрытий составляют 40-50 г/м в год, что соответствует концентрации 15-30 мг/л. Взвешенные вещества, образующиеся главным образом из продуктов эрозии почвы газонов и открытых грунтовых покрытий, определяют в основном минеральный состав твердой фазы стока. Загрязненность дождевых и талых вод зависит от санитарного состояния территорий (качества уборки дворов, улиц), интенсивности движения и технического состояния транспорта и др.
По данным Федерации по контролю загрязнения вод США, в среднем в городах в период от предшествующего до последующего дождя на 1км улицы с твердым покрытием накапливается: сухого вещества - 395 Кг (БПК3 - 3,8 кг), органических веществ (в пересчете на фосфор) - 0,28 кг, нитратов (в пересчете на азот) - 0,028 кг.
Чрезвычайная нестабильность поверхностного стока и специфичность образования обуславливают сложность изучения его состава. Проведенные до настоящего времени экспериментальные исследования не позволяют с достаточной полнотой характеризовать качественный состав поверхностного стока, особенно образующегося на территориях промышленных предприятий. Несмотря на это, по имеющимся данным можно оценить его состав и обосновать схему очистки.
2.2. Состав и свойства поверхностных стоков.
2.2.1. Поверхностный сток с городских территорий.
Характерными загрязнителями поверхностного стока являются взвешенные вещества. По гранулометрическому составу взвесь характеризуется преобладанием мелкодисперсных частиц. При механической уборке городских территорий удаляются в основном крупные фракции. Мелких частиц в уличном смете обычно не более 20%. В стоке содержится значительное количество частиц с гидравлической крупностью более 0,2 мм/с. Частицы с гидравлической крупностью более 0,2-0,4 мм/с составляют около 40% от общею количества взвеси. При отстаивании они выпадают в осадок в течение первых 15-20 мин. Основное число частиц имеют малую гидравлическую крупность. При отстаивании в течение 30 мин эффект осветления составляет 50%, а при 2-часовом отстаивании - не превышает 70%. После 6-суточного отстаивания в пробе остается 50-150 мг/л взвеси.
Для взвесей в стоке поверхностных вод характерно значительное содержание органических веществ. Летучая часть твердой фазы стока составляет 20-30%, зольность осадка - 70-80% при влажности 89-96% после уплотнения в течение 0,5-2 ч. Около 60% потребности кислорода определяется содержанием осевших аэрозолей и продуктов неполного сгорания топлива; 40% - содержанием нефтепродуктов, растительных остатков и некоторых веществ почв. Растворенные органические соединения составляют до 25% от общего количества растворенных веществ, что соответствует в среднем концентрации 300 мг/л [11].
При отстаивании проб поверхностного стока наблюдается также снижение БПК3 в течение 1,5-2 ч потребность в кислороде снижается на 35-75%. Соотношение БПК3 во взболтанной, отстоянной и фильтрованной пробах составляет 1,1-3,1. При отношении БПК20/БПК3 = 2,2-3 полная величина БПК достигается через 25-30сут. В профильтрованных пробах к началу нитрификации (13 сут) окислительные процессы заканчиваются и БПК1 составляет 90 % БПКполн.
Пермантанатная окисляемость, по данным ЦНИИ КИВР составляет 30-130 мг/л, по данным ЛНИИ АКХ, - 200-300 мг/л. Соответственно бихроматная окисляемость составляет 52 -175 и 400 750 мг/л. Зарубежные исследования показывают в среднем перманганатную окисляемость 150-180 мг/л и бихроматную - 300-350 мг/л.
Содержание в дождевых водах биогенных солей азота и фосфора составляет соответственно 5-6 мг/л и 0,7-1,2 мг/л; хлоридов - 25 - 30 мг/л. По сравнению с бытовыми водами дождевой сток менее жесткий. Около 50% общего азота присутствует в аммонийной форме, 30% - в составе органических соединений и 20% - в виде нитратов и нитритов.
Концентрация нефтепродуктов в дождевом стоке около 20 - 25 мг/л при общем диапазоне изменения этого показателя 7 - 100 мг/л. Коли-титр городского поверхностного стока обычно на 2-3 порядка выше показателя бытовых сточных вод. По числу бактерий кишечной группы в единице объема отдельные пробы дождевых вод соответствуют бытовым стокам. Атмосферные воды обычно имеют коли-титр 0,1-0,000001 [11]. В целом по составу микрофлоры сток атмосферных вод аналогичен среднезагрязненной почве.
Для оценки влияния плотности населения, степени благоустройства селитебных территорий и интенсивности движения автотранспорта на качественный состав поверхностного стока были проведены экспериментальные исследования четырех характерных для Москвы водосборных бассейнов. Первый бассейн представлял собой район в центральной части города со сложившейся застройкой, высокой степенью благоустройства и умеренной интенсивностью движения транспорта. Территория второго бассейна - район жилой застройки со средней интенсивностью движения автотранспорта. Третий бассейн располагался в районе с преобладанием промышленных и складских территорий с интенсивным движением транспорта. Современные автомагистрали представляли собой четвертый исследуемый бассейн.
Концентрация взвешенных веществ в дождевом стоке у дождеприемников колеблется от десятков миллиграммов в литре до 6000 мг/л в первом бассейне, 2300 - во втором, 10000 - в третьем и 20000 мг/л - в четвертом. По содержанию нефтепродуктов пределы колебаний составляют от 0,25-2 мг/л до 42 - в первом бассейне, 20 - во втором, 30 - в третьем и 87,5 мг/л - в четвертом [8]. Анализ полученных данных показывает, что на содержание взвешенных веществ основное влияние оказывают интенсивность дождя и продолжительность. Кроме междождевого периода. На загрязненность дождевого стока нефтепродуктами сильно влияет интенсивность движения транспорта. Значения концентраций загрязнений поверхностного стока, полученные для Москвы, идентичны и для Санкт-Петербурга. На основании этих исследований рекомендованы (табл. 2.3) расчетные концентрации взвешенных веществ и нефтепродуктов в дождевом и талом стоке для районов с различной степенью благоустройства.
Таблица 2.3.
Концентрация загрязняющих веществ дождевого и талого стоков, мг/л.
|
Характеристика водосборного бассейна |
Дождевой сток |
Талый сток |
||
|
Взвешенные вещества |
Нефтепродукты |
Взвешенные вещества |
Нефтепродукты |
|
|
Жилые районы с административными, торговыми, медицинскими, учебными и др. центрами Современная застройка Старая застройка |
400-600 700-100 |
7-12 10-15 |
1300-1600 1500-1700 |
10-12 12-15 |
|
Территории, прилежащие к промпредприятиям |
800-1200 |
12-20 |
2000-2500 |
12-20 |
|
Транспортные магистрали и промзоны |
800-1400 |
15-20 |
2500-3000 |
23-30 |
Концентрация органических веществ, выраженных БПК20, в дождевом стоке колеблется от 40 до 90 мг/л, а в талом - от 70 до 150 мг/л. По величине БПК20 талый сток с транспортных магистралей и с территорий, прилегающих к промышленным предприятиям, сопоставим с городскими сточными водами. Поливомоечные воды характеризуются средними концентрациями взвешенных веществ 600-1000 мг/л и нефтепродуктов - 10-15 мг/л для территорий жилых районов, а для территорий, прилегающих к промышленным предприятиям и транспортным магистралям с интенсивным движением транспорта, - соответственно 800-1500 и 20-30 мг/л.
Кроме перечисленных компонентов в дождевом стоке присутствует, как правило, некоторое количество биогенных элементов (соединений азота - до 5-6 и фосфора - до 1 мг/л) и бактериальных загрязнений (коли-титр находится в пределах 10 -109).
В табл. 2.4. приведена более подробная характеристика дождевого стока ряда городов страны. Из этих данных видно, что дождевой сток, кроме нерастворенных и растворенных органических примесей, содержит значительное количество минеральных растворенных компонентов. Солесодержание дождевого стока - от 20 до 900 мг/л [12]. Из катионов в этом стоке присутствуют кальций, магний, кремний, натрий и калий, из анионов - в основном сульфаты и хлориды, щелочность воды колеблется от 2 до 9 мг-экв./л, а общая жесткость - в пределах 2,5- 13 мг-экв./л.
Таблица 2.4.
Характеристики дождевого стока с территорий городов.
|
Показатель |
Москва |
Волгоград |
Астрахань |
Санкт-Петербург |
|
рН Щелочность, мг-экв/л |
7,0-8,0 7,5-8,7 |
7,4-8,2 - |
8,6-9,4 3-4 |
7,1-8,0 - |
|
Запах |
- |
- |
Нефти |
- |
|
Взвешенные вещества, мг/л |
65-245 |
1500-1600 |
215-281 |
50-1170 |
|
Сухой остаток, мг/л Прокаленный остаток, мг/л |
1088-1935 314-879 |
254-446 - |
- 42,2-138,6 |
260-518 135-260 |
|
ХПК, мг/л |
15,3-21,6 |
200-280 |
57,6-195,0 |
50-446 |
|
БПК5, мг/л Нефтепродукты, мг/л |
- 12-17,5 |
70-75 2,5-3,0 |
- 95-197 |
22-108,0 0,7-168,0 |
|
Жесткость общая, мг-экв/л |
7,5-8,7 |
- |
- |
- |
|
Сульфаты, мг/л Хлориды, мг/л |
- 51-190 |
- - |
195-121 323-451 |
- 33,0-130,0 |
При проектировании дождевой канализации городов в ряде случаев удобно пользоваться величинами удельного выноса примесей дождевым стоком. Так как концентрация загрязнений дождевого стока, а следовательно, и количество выносимых примесей зависят от многих факторов, ряд исследователей дают различные показатели величин удельного выноса загрязнений дождевым стоком.
На рис. 2.1. приведена зависимость количества выносимых с 1 га загрязнений от величины слоя осадков и продолжительности предшествующего периода сухой погоды в сутках, полученная Ю.П.Беличенко.

Рисунок 2.1. Зависимость количества (кг) выносимых с 1 га загрязнений от слоя осадков (мм) и продолжительности периода сухой погоды (сут).
Удельный вынос примесей с дождевым стоком с городских селитебных территорий при плотности населения 100 человек на 1 га ВНИИВО рекомендует принимать следующим (вынос в кг на 1 га в год): взвешенные вещества - 2500, ХПК - 1000; БПК20 - 140, нефтепродукты - 25, соединения азота - 6, фосфора - 1,5 и минеральных солей - 400. При расчетах для малых и средних городов со старой малоэтажной застройкой и недостаточным уровнем благоустройства удельный вынос взвешенных веществ следует увеличить на 20% [12].
2.2.2. Особенности состава поверхностного стока с промышленных площадок.
Физико-химический состав поверхностного стока с территорий промпредприятий определяется характером основных технологических процессов, а их концентрация и удельный вынос зависят от санитарного и технического состояния, режима уборки территории, организации складирования и транспортирования сырья и т.п. Поверхностный сток машиностроительных и авторемонтных предприятий существенно загрязнен нефтепродуктами и маслами, концентрация нефтепродуктов может достигать 200 мг/л, взвешенных веществ - 300 -500 мг/л. В стоках мясокомбината содержание жиров может достигать 200 мг/л, а БПК20 - 300 мг/л. Для предприятий по производству белково-витаминных концентратов характерно присутствие дрожжей, белков и углеводов [12].
В зависимости от физико-химического состава поверхностного стока промышленные предприятия рекомендовано разделить на две группы. К первой группе относятся предприятия, в поверхностном стоке которых содержатся в основном грубодиспергированные примеси, нефтепродукты и органические соединения, сорбированные главным образом на взвешенных веществах. К этой группе относятся предприятия черной металлургии (за исключением коксохимических производств), машиностроительной, электротехнической, угольной, нефтяной, энергетики, автотранспортные предприятия, речные порты, ремонтные заводы, а также отдельные производства нефтеперерабатывающей, нефтехимической и химической промышленности, на территории которых не попадают специфические загрязнения.
Ко второй группе относятся предприятия цветной металлургии, коксохимической, химической, лесохимической, целлюлозно-бумажной и микробиологической промышленности, мясокомбинаты, шпалопропиточные заводы и т.д., на которых в поверхностный сток поступают специфические вещества. Средние концентрации основных примесей в стоке дождевых вод на предприятиях первой группы могут быть приняты:
• по взвешенным веществам - 500-2000 мг/л,
• по нефтепродуктам - 30-70 мг/л для предприятий с интенсивным движением транспорта и 10-300 мг/л - для остальных,
• по ХПК - 100-150 мг/л и по БПК - 20-30 мг/л в пересчете на растворенные примеси; с учетом диспергированных примесей эти показатели увеличиваются в 2-3 раза,
• по общему солесодержанию - в основном 0,2-0,5 г/л, на содовых и серных предприятиях-0,5-3 г/л.
Содержание специфических примесей определяется характером производства. Поверхностный сток предприятий цветной металлургии может содержать различные тяжелые металлы (медь - до 100 мг/л.; цинк - до 15 мг/л.; кадмий - до 40 мг/л.; алюминий - до 5 мг/л.; титаи - до 3 мг/л.; свинец - до 3 мг/л. и др. ), мышьяк - до 75 мг/л, фтор - до 200 мг/л и другие примеси.
В поверхностных сточных водах с территорий предприятий медеплавильной промышленности содержатся примеси тяжелых металлов, в том числе меди - до 60 мг/л, железа - до 70 мг/л, цинка - до 55 мг/л.
В поверхностном стоке коксохимических заводов присутствуют фенолы - до 3 мг/л, роданиды - до 5 мг/л, аммиак - до 20 мг/л, масла и смолы - до 200 мг/л. В стоке предприятий нефтехимии присутствуют поверхностно-активные вещества, продукты органического синтеза, могут быть тяжелые металлы.
В зависимости от характера производства их концентрации могут существенно различаться. В стоке заводов фосфорных удобрений в значительных концентрациях могут присутствовать соединения азота- до 200 мг/л (в пересчете на NH4), фосфора-до 100 мг/л (в пересчете на Р2О5), фтора - до 10 мг/л.
Сток лесохимических производств отличается высокими значениями ХПК (700-1400 мг/л), БПК (150-400 мг/л), в нем могут присутствовать смолы - до 300 мг/л, фенолы - до 30 мг/л, терпинеол до 2 мг/л, скипидар - до 5 мг/л.
2.3. Очистка поверхностного стока.
2.3.1. Требования к степени очистки поверхностного стока.
Поверхностный сток формируется из дождевых, талых и поливомоечных вод и отводится по дождевой (ливневой) или общесплавной канализационной сети. Даже при раздельной системе канализации совместно с поверхностным стоком отводятся дренажные воды, а на территории промышленных зон - и производственные стоки, прошедшие локальную очистку.
Состав стока в любой момент времени практически непредсказуем, его характеристики выявляются в результате длительных исследований и накопления представительного ряда наблюдений. Из наиболее характерных примесей в составе поверхностного стока выделим несколько видов.
В дождевых водах присутствуют всевозможные загрязнения, поступающие из атмосферы и накапливающиеся на поверхности.
Дренажный сток включает подземные воды с присущими им компонентами загрязнений: железом, алюминием, марганцем, медью, фенолом.
Голый сток, помимо загрязнений местного происхождения, может содержать примеси, попавшие в атмосферу вдалеке от места осаждения. Разнообразие условий формирования стока затрудняет прогноз качества воды. Сравнивая показатели загрязнения с предельно-допустимыми концентрациями (ПДК) в воде, используемой для хозяйственно-питьевых либо рыбохозяйственных целей, не следует упускать из вида агрегатное состояние отдельных компонентов. Большая часть примесей (иногда до 90% от общей массы) сорбирована поверхностью дисперсных примесей, включающих взвешенные вещества и коллоидные частицы. Поскольку ПДК тяжелых металлов относится к растворимым формам примесей, сопоставление фактической концентрации с ПДК должно производиться после тонкого фильтрования (ультрафильтрации) воды, в противном случае в массу вредных веществ будут включены нерастворенные примеси, на которые не установлены ПДК. Для выяснения всех аспектов данной проблемы необходимы обширные исследования с привлечением методов определения фактической токсичности сточных вод. Не исключено, что многие из токсичных металлов находятся в виде менее токсичных металлорганических комплексов и могут не оказывать суммирующего вредного воздействия.
Характерной чертой формирования поверхностного стока является возможность превышения расчетного расхода, в силу чего какая-то часть дождевой воды не попадает в канализационную сеть и сбрасывается по рельефу местности в ближайшие водоемы. Учитывая стремление органов Госкомэкологии и Санэпиднадзора к минимизации сброса дождевого стока в водоемы, проектные организации в большинстве случаев принимают период однократного превышения расчетного расхода равным одному году [11]. Влияние этого параметра на расчетный расход воды в сети покажем на примере типичного для Санкт-Петербурга бассейна водосбора, включающего 42% водонепроницаемых поверхностей, 38% грунтовых спланированных площадок и 20% газонов (табл. 2.5).
Таблица 2.5.
Сопоставление параметров дождевого стока для типичного бассейна водосбора.
|
Период однократного превышения расчетной интенсивности дождя, год |
1 |
0,5 |
0,33 |
|
Высота слоя выпавших осадков Н, мм |
24 |
18 |
15 |
|
Коэффициент стока |
0,42 |
0,35 |
0,31 |
|
Количество дождевой воды, не попавшей в сеть, % от годового объема |
2,1 |
3,1 |
5,1 |
|
Относительные расход сточных вод в сети |
1 |
0,62 |
0,45 |
Анализ данных табл. 2.5 показывает, что можно существенно снизить расчетный расход сточных вод, принимая период однократного превышения равным 0,33 года, при незначительном (с 2,1 до 5,1%) повышении сброса неочищенной дождевой воды. Такой прием существенно уменьшает капитальные затраты на строительство очистных сооружений. В табл. 2.6 приведена ориентировочная стоимость очистной станции, включающей узлы осветления воды, механического и сорбционного фильтрования, обезвоживания осадка. Стоимость узлов принята по укрупненным показателям аналогичных по конструкции типовых очистных сооружений.
Выпадение осадков, их поступление в канализационную сеть носят случайный, вероятностный характер, и не всегда можно оцени экстремальную ситуацию. Например, в 1993 г. был зарегистрирован довольно редкий по интенсивности дождь с суточным слоем выпавших осадков порядка 56 мм (такой дождь выпадает один раз а пять лет), но чрезвычайная ситуация в городе не сложилась, поскольку сопутствующие обстоятельства (длительность междождевого периода, насыщенность почвы водой, время выпадения дождя) не способствовали формированию интенсивного поверхностного стока [13].
Таблица 2.6
Ориентировочная относительная стоимость и показатели очистки поверхностного стока с городских территорий.
|
Стадии очистки |
Относительная стоимость при р* |
Показатели качества очистки воды |
||||||
|
Взвешенные вещества |
БПК5 |
Нефтепродукты |
||||||
|
1 год |
0,33 года |
Эффект очистки, % |
Остаточная концентрация, мг/л |
Эффект очистки, % |
Остаточная концентрация, мг/л |
Эффект очистки, % |
Остаточная концентрация, мг/л |
|
|
Отстаивание: Без реагентов С реагентами |
40-50 - |
30-35 70-80 |
40-50 70-80 |
- - |
До 25 До 50 |
- - |
До 50 До 80 |
- - |
|
Фильтрование: 1-я ступень 2-я ступень |
15-20 15-20 |
12-17 12-17 |
- - |
До 5 До 2 |
- - |
5-10 До 5 |
- - |
1 0,3-0,5 |
|
Сорбционное фильтрование: Алюмосиликатный сорбент Углеродосодержащий сорбент |
10-15 - - |
8-12 - - |
- - - |
- 1 1 |
- - - |
- 4-5 2-3 |
- - - |
- До 0,3 До 0,05 |
|
Обработка осадков |
18-23 |
15-20 |
- |
- |
- |
- |
- |
- |
|
Средняя общая стоимость |
100 |
72-77 |
- |
- |
- |
- |
- |
- |
*Значения стоимости приведены в % от общей стоимости очистных сооружений
Вероятность превышения расчетного расхода следует выбирать на основе гидрологического и экономического анализа на отдаленную перспективу. Стоимость сооружений, которые рассчитывают на расходы разных ливней, сопоставляют с соответствующими возможными убытками, приведенными к общей временной основе, например, в виде годовых затрат. Каждому расчетному расходу соответствует вероятность превышений в любой год. Вероятности превышения каждого расхода умножаются на убытки от этих ливней. Они могут включать стоимость ремонта после затопления, нанесенный ущерб и убытки от нарушения транспортного сообщения. Решать вопрос о соотношении между стоимостью проекта и ущербом от сильных ливней должны не проектировщики, а ответственные органы власти и страховые общества. Необходимо информировать население (налогоплательщиков) угрожаемых районов о надежности возводимых сооружений, уровнях затопления и условиях страхования.
Информация о дополнительных или предельных затратах полезна, когда проектировщик или подрядчик должны учесть перерасход по страховым выплатам. Например, для принятия решения о строительстве следует знать стоимость сооружений, возможные убытки и какая часть убытков покрывается путем страхования. Обоснование критериев расчета сети и сооружений должно стать важной задачей исследовательских и проектно-конструкторских разработок. В ходе исследований необходимо провести точную оценку экологического ущерба, наносимого сбросами сточных вод через ливнеспуски. Полная ликвидация сбросов в период выпадения сильных дождей и снеготаяния практически невозможна, поэтому важно определить допустимые пределы их воздействия на городские водотоки. Повышение качества уборки городских территорий и снижение загрязненности атмосферы могут существенно уменьшить уровень вредного воздействия сбросов. Этим инженерным и санитарно-профилактическим мероприятиям должно быть уделено первостепенное внимание.
Из-за недостатка финансирования экологических программ основное внимание должно быть уделено мероприятиям по перехвату основной массы загрязнений, что предопределяет строительство водоочистных систем большой пропускной способности при относительно неглубокой очистке воды. Между тем наблюдается другая тенденция: повышение требований к очистке воды, вследствие чего строительство упрощенных очистных сооружений фактически остановлено. Переход к поэтапному вводу элементов очистной станции (отстаивание воды, отстаивание с коагуляцией, отстаивание с безреагентным и реагентным фильтрованием, а затем - сорбционной очисткой) позволит охватить большее число выпусков, нежели возведение единичных комплексов по глубокой очистке поверхностного стока. Для примера можно привести случаи, когда в один и тот же водоем сбрасываются глубоко очищенные и совсем не очищенные стоки, в результате чего обесцениваются затраты на очистку воды. Таким образом, третьей важной задачей становится обоснование требований к качеству сбросной очищенной воды в увязке с комплексом мероприятий экологического характера.
В ходе анализа проблемы удаления и очистки воды необходимо обратить внимание на удаление твердых осадков в результате снеготаяния. Запасы собственного тепла сточных вод либо привлеченных источников низкопотенциального тепла могут помочь ликвидировать складирование снега в центральной части города при относительно небольшом радиусе его транспортировки, рационально загрузить очистные станции в зимнее время, уменьшить тепловое загрязнение водостоков.
Законодательство в области зашиты водных объектов должно строиться на компромиссе между желаниями и экономическими возможностями. Проблема охраны поверхностных вод должна решаться поэтапно. На первом этапе объектом стандартизации должны быть непосредственно водные источники, на втором - сточные воды, на третьем - очистные сооружения, на четвертом - приоритетные загрязнители. На пятом следует перейти от централизованных административно-законодательных мер к системе, при которой многие функции центральных природоохранных ведомств будут переданы местным властям.
Во многих странах Америки и Европы установлены стандарты как для природных вод различных классов, так и для сточных вод, но нигде нет одинаковых нормативов для природных и сточных вод. В развитых странах нормативы по взвешенным веществам и БПК; в очищенных сточных водах соответствуют требованиям биологической очистки (табл. 2.7.)
Определение требуемой степени очистки следует увязывать с техническими и экономическими возможностями, а также с санитарно- гигиеническим эффектом, получаемым в результате инвестиций. Здесь немаловажным фактором является расход электроэнергии. Так, снижение БПК5 с 300 до 15 мг/л (95%) требует в 1,5 раза больше электроэнергии, чем снижение БПК5 с 300 до 40 мг/л (87%) [13].
Таблица 2.7.
Стандарты на сброс городских сточных вод по взвешенным веществам и по БПК в разных странах.
|
Показатель |
Германия |
Бельгия |
Франция |
Великобритания |
Швейцария |
США |
|
Взвешенные вещества, мг/л |
20 |
100 |
- |
30 |
20 |
30 |
|
БПК5, мг/л |
25 |
15-50 |
20-40 |
20 |
20 |
20 |
Эффективность капиталовложений в строительство сооружений доочистки на порядок ниже, чем в строительство сооружений полной биологической очистки.
2.4. Основы расчета очистных сооружений.
2.4.1. Отстойные сооружения.
Выделение из сточных вод оседающих и всплывающих механических примесей в основном производится с помощью отстаивания. Для улавливания плавающего мусора в головной части очистных сооружений предусматриваются решетки с прозорами 50 мм. При площади водосбора более 100 га рекомендуются решетки с механизированной очисткой, а при площади менее 300 га допускается использовать решетки с ручной очисткой. Скорость движения сточных вод в прозорах решеток при максимальном притоке следует принимать равной 0,8-1 м/с [11]. Количество плавающего мусора на 1000 га для дождевых и поливомоечных вод в среднем составляет 0,2 м3, а для талых -0,3 м3.
В дождевом стоке содержание песка с гидравлической крупностью более 15 мм/с колеблется от 10 до 15%, а в талом стоке - до 20%. Для выделения крупных механических примесей из поверхностного стока предусматривают песколовки. Число песколовок или их отделений должно быть не менее двух, причем все они должны быть рабочими. Для очистки поверхностного стока устраивают горизонтальные или тангенциальные песколовки. Длина горизонтальных песколовок L (м), определяется по формуле:
(2.1)
где k = 1,7- коэффициент, учитывающий неполное использование зоны отстаивания;
Н- расчетная глубина песколовки, принимается от 0,5 до 2,0 м;
v = 0,3 м/с - скорость движения сточных вод при максимальном притоке;
w0 - гидравлическая крупность частиц, на содержание которых рассчитывается песколовка; обычно принимается w0 = 18,7 мм/с (для песка диаметром 0,2 мм).
Продолжительность протекания сточных вод в горизонтальной песколовке должна быть не менее 30 с.
При расчете тангенциальных песколовок исходят из удельной гидравлической нагрузки, равной 110 м3/м2 ч при максимальном притоке сточных вод и диаметре песколовки не более 6 м. Впуск воды должен быть по всей расчетной глубине, равной половине диаметра Количество задержанного песка в среднем составляет 15% от массы взвешенных веществ. Для расчета песковых бункеров принимают влажность песка - 60-70%, объемную массу шламовой пульпы - 1,2- 1,5 т/м3, зольность задержанного песка - 80-90%, содержание нефтепродуктов в обезвоженном песке - не более 3%.
Для удаления основной массы взвешенных веществ и нефтепродуктов из поверхностного стока применяются отстойные сооружения различных конструкций: горизонтальные и радиальные отстойники, тонкослойные полочные отстойники, нефтеловушки, пруды, накопители, тонкослойные блоки для интенсификации работы прудов-отстойников и т.п. В прошлом широко использовались пруды-отстойники, сооружения закрытого типа (подземные) и стационарные щитовые заграждения в акватории водоема. Эффективность очистки в них относительно невелика. Концентрация взвешенных веществ в воде, выходящей из прудов-отстойников, колеблется от 20 до 70 мг/л, а содержание нефтепродуктов - от 3 до 7,2 мг/л. Эти сооружения громоздки, удаление осадков и всплывших нефтепродуктов из них вызывает большие трудности. Пруды-отстойники обычно устраивают в естественных понижениях местности, оврагах, карьерах, руслах пересыхающих ручьев и т.д. Под отстойником-накопителем понимается очистное сооружение с переменным уровнем воды, причем объем, необходимый для заполнения сооружения от минимального уровня до максимального, равен аккумулируемому объему поверхностного стока.
Под отстойником понимается очистное сооружение с постоянным уровнем воды, не имеющее буферного объема для приема дождевых и талых вод. Отстойники-накопители оборудованы устройствами для улавливания плавающего мусора и нефтепродуктов. Из накопителя через водозаборное устройство постоянно отбираемый расход поступает на вторичные отстойники н далее на фильтры; шлам из накопителей и отстойников гидроэлеватором направляется на шламовые площадки. После накопления на площадках достаточного количества шлама его вывозят в течение теплого периода года. Вместо шламовых площадок возможны: применение стационарного грейферного крана и бункеров обезвоживания или же погрузка шлама непосредственно из отстойников в автотранспорт при очередном опорожнении секций. Отстойник рекомендуется выполнять двухсекционным. Перед ним устраивается разделительная камера с водосливом для сброса расхода воды, превышающего максимальный расчетный объем ее [14].
Содержание взвешенных веществ при отстаивании в покое и реагентной обработке можно принимать по рис 2.2.

Рисунок 2.2. Зависимость остаточного содержания взвешенных веществ и гидравлической крупности от времени отстаивания при реагентной обработке поверхностных сточных вод.
- Зависимость остаточной концентрации взвешенных веществ от времени отстаивания при обработке воды Al2(SO4)3, дозой 30 мг/л; 2- зависимость остаточной концентрации взвешенных веществ при обработке воды Al2(SO4)3 (20 мг/л) и ПАА (1 мг/л); 3- зависимость гидравлической крупности (охватывающей скорости) от времени отстаивания.
Чистка прудов-отстойников производится в сухое время года бульдозерами или многочерпаковой землеройной машиной, осадок грузится в шаланды и отвозится к месту свалки. Выпавший в прудах осадок можно перекачивать насосами в расположенные поблизости канализационные коллекторы. Для удаления всплывших примесей целесообразно применять маслонефтесборные карманы, гак как опыт эксплуатации прудов-отстойников показал, что щелевые трубы для сбора нефтепродуктов неэффективны [14].
Из условия седиментационного подобия эффект осветления будет одинаковым (Э = idem), если выдерживается соотношение:
(2.2)
где T1 - продолжительность осаждения при высоте отстаиваемого слоя H1;
T2,- то же при H2;
n - показатель степени, зависящий от агломерации взвеси в процессе осаждения, изменяется от 0,3 до 0,85.
Расчет отстойников производят по гидравлической крупности частиц взвеси, выделение которых обеспечивает необходимый эффект очистки. Длину L (м) горизонтального отстойника определяют по формуле:
(2.3)
где Q - производительность одного из отстойника, м3/ч;
k = 0,5 - коэффициент использования объема;
В - ширина секции отстойника, м;
w0- гидравлическая крупность задерживаемых частиц, мм/с;
u - турбулентная составляющая, принимается при скорости потока 5, 10, 15 мм/с соответственно 0; 0,05 и 0,1 мм/с.
Расчетная гидравлическая крупность определяется по кинетике отстаивания сточной воды в статических условиях.
Поверхностный сток представляет собой чрезвычайно нестабильную полидисперсную систему со значительными колебаниями состава и концентрации загрязнений.
На рис. 2.3 представлены результаты лабораторных исследований кинетики осаждения взвешенных веществ дождевого стока с городской территории Харькова при высоте зоны отстаивания 0,3 м. Исходная концентрация взвешенных веществ колебалась от 340 до 4050 мг/л. Значительное содержание в поверхностном стоке тонкодисперсных примесей обуславливает остаточное содержание взвеси 100-300 мг/л в зависимости oт исходной концентрации при отстаивании 1-3 сут.

Рисунок 2.3. Обо6ленные данные кинетики осаждения взвешенных веществ дождевого стока с гор адских территорий Харькова.
На основании данных кинетики отстаивания дождевых и талых вод Харькова был рассчитан эффект осветления в зависимости от его продолжительности для высоты зоны осаждения 2 м (табл. 2.8).
Таблица 2.8
Эффект осветления городских поверхностных сточных вод.
|
Продолжительность отстаивания, ч |
1 |
2 |
3 |
6 |
12 |
24 |
|
Эффект осветления, %: Минимальный Средний Максимальный |
15 45 65 |
30 53 75 |
40 60 78 |
60 68 80 |
70 78 85 |
80 85 90 |
Аналогичные исследования по осветлению дождевых сточных вод с городских территорий проводились в СПбГАСУ. Механическое отстаивание осуществлялось в двух режимах; безреагентном и с применением реагентов, В качестве реагентов использовались коагулянты и флокулянты. Согласно полученным результатам (рис. 2.4) при безреагентном отстаивании в течение суток эффект осветления составляет 64-92,5 % по взвешенным веществам. Содержание нефтепродуктов при этом снижается до 31,6-98%. Однако следует отметить, что остаточное содержание этих загрязнений в осветленной воде достаточно велико и составляет по взвешенным веществам в среднем 117.8 мг/л, по нефтепродуктам - около 8 мг/л.

Рисунок 2.4. Кинетика осаждения взвешенных веществ и удаления нефтепродуктов из городских дождевых вод Санкт-Петербурга.
Расчетные данные о необходимой продолжительности отстаивания дождевого и талого стоков с городской территории при различной глубине проточной зоны отстаивания H для достижения заданного эффекта осветления приведены в табл. 2.9.
Таблица 2.9
Продолжительность отстаивания дождевого стока (в числителе) и талого стока (в знаменателе).
|
Эффект осветления, % |
Продолжительность отстаивания (ч) при глубине проточной зоны, м |
||||
|
2 |
2,5 |
3 |
3,5 |
4 |
|
|
20 |
0,77/0,32 |
0,8/0,34 |
0,83/0,35 |
0,86/0,36 |
0,88/0,37 |
|
30 |
1,27/0,52 |
1,32/0,54 |
1,37/0,56 |
1,41/0,58 |
1,45/0,59 |
|
40 |
1,64/0,79 |
1,72/0,83 |
1,79/0,85 |
1,84/0,88 |
1,89/0,91 |
|
Эффект осветления, % |
Продолжительность отстаивания (ч) при глубине проточной зоны, м |
||||
|
2 |
2,5 |
3 |
3,5 |
4 |
|
|
50 |
2,30/1,17 |
2,40/1,23 |
2,48/1,27 |
2,57/1,31 |
2,63/1,35 |
|
60 |
3,03/1,59 |
3,16/1,67 |
3,26/1,72 |
3,37/1,78 |
3,48/1,83 |
|
70 |
4,55/2,3 |
4,81/2,4 |
5,0/2,48 |
5,15/2,57 |
5,26/2,63 |
|
80 |
6,90/3,64 |
7,14/3,85 |
7,50/3,95 |
7,61/4,12 |
7,84/4,21 |
Сравнивая полученные результаты, можно сделать вывод о том, что применение коагулянта и флокулянта значительно интенсифицирует очистку стока; при безреагентном отстаивании концентрация нефтепродуктов снижалась до 1,3-1,98 мг /л, в то время как в присутствии реагентов в этих же стоках достигалось снижение нефтепродуктов до 0,6 0.9 мг/л. Содержание взвешенных веществ снижалось при безреагентном отстаивании до 8-360 мг/л, а при использовании реагентов в этих же стоках до 40 мг/л. Нефтепродукты, как известно, присутствуют в стоках в виде эмульгированных и растворенных примесей. Полученные результаты свидетельствуют о том, что при безреагентном отстаивании частично извлекаются эмульгированные нефтепродукты, а при реагентном - в стоках остаются только растворенные нефтепродукты. Использование peaгентов для интенсификации осветления значительно увеличивает объем образующегося осадка и частично меняет его структуру. Количество осадка, образующегося при безреагентном отстаивании, составляет н среднем 2-4 % от объема от стаиваемого стока при зольности 60-70 %, в то время как объем осадка мри реагентном отстаивании составляет около 10%, а зольность осадка не более 60%. Характерные кривые кинетики отстаивания дождевых, талых и поливомоечных вод, полученные ВНИИ ВОДГЕО на промышленных предприятиях при высоте зоны отстаивания 200 мм, представлены на рис. 2.5.

Рисунок 2.5. Кинетика отстаивания поверхностного стока промышленных предприятий.
- Дождевой сток нефтехимических предприятий; 2-дождевой сток машиностроительного завода; 3- талый сток нефтехимических предприятий.
Так как поверхностный сток содержит значительное количество мелкодисперсной примеси, при выделении частиц с гидравлической крупностью более 0,2 мм/с остаточная концентрация взвешенных веществ составляет 100-500 мг/л. Для достижения требуемого эффекта осветления Э рекомендуются следующие значения гидравлической крупности частиц взвеси и для высоты зоны отстаивания 2 м:
|
Э, % |
50 |
60 |
70 |
80 |
85 |
90 |
95 |
|
u, мм/с |
0,62 |
0,32 |
0,12 |
0,045 |
0,027 |
0,012 |
0,008 |
Пропорционально эффекту осветления снижается содержание органических веществ, выраженных ХПК. При продолжительности отстаивания 1-2 сут. эффект снижения содержания взвешенных веществ и показателя ХПК колеблется от 80 до90%, а показателя БПК- от 0 до 80%. Остаточное содержание взвешенных веществ в отстоянной воде может достигать 50-100 мг/л, нефтепродуктов - 0.5-3, а органических веществ в пересчете на ХПК и БПК20 - соответственно 50-80 и 15- 20 мг/л.
Использование метода отстаивания в тонком слое позволяет значительно интенсифицировать процесс выделения механических примесей и обеспечить высокую степень осветления в тонкослойных отстойниках, занимающих малые площади и объемы. Но для этого требуется определенная подготовка поступающей воды, чтобы обеспечить стабильную работу полочных отстойников без засорения крупными примесями. Тонкослойное отстаивание широко применяется при доочистке поверхностного стока. Для этой цели различные конструкции очистных сооружений оборудуются тонкослойными модулями. Оптимальный угол наклона пластин составляет 60-70, а расстояние между ними 50-10 мм. Основная масса загрязнений осаждается за 10-30 мин. Эффект задержания взвеси в тонкослойном отстойнике в течение 30 мин достигает 85-90%, в то время как в горизонтальном отстойнике глубиной 3 м даже при 5 ч отстаивания эффект очистки от взвешенных веществ составляет 60-62 % (при одной и той же исходной концентрации). Площади для размещения тонкослойного отстойника могут быть снижены в 6-10 раз, а капитальные затраты - в 2,5-3 раза по сравнению с затратами на существующие сооружения. Основные конструктивные размеры этих отстойников определяются по формулам [11]:
площадь сечения отстойника w, м2
(2.5)
общая ширина отстойника В, м
(2.6)
общая длина отстойника L ,м
(2.7)
где Q - расчетный расход, м3/ч;
vтс - средняя скорость рабочего потока, мм/с;
l - длина приемной камеры, l=1-1,5м;
lтс - длина тонкослойных элементов, lтс=1,5-3 м;
l2 - длина выходной части отстойника, l2 = 0,5 -1м;
Нтс - высота тонкослойных блоков, Нтс = 1- 1,5м.
Средняя скорость рабочего потока в зависимости от требуемой степени очистки поверхностного стока городских территорий от взвешенных веществ при принятой длине тонкослойных элементов принимается по табл. 2.10.
Определив конструктивные размеры тонкослойного отстойника, исходя из обеспечения необходимой степени очистки по взвешенным веществам, проводят поверочный расчет по эффективности очистки поверхностного стока от нефтепродуктов. При этом эффективность задержания нефтепродуктов в тонкослойном отстойнике в зависимости от длины тонкослойных элементов и скорости движения жидкости проверяется по табл. 2.11.
Количество осадка Р (м/ч), выделяемого в отстойных сооружениях, следует определять исходя из концентрации взвешенных веществ в поступающем стоке С0 и в отстойном стоке Сос.
(2.8)
где Q - расход сточных вод, м3/ч;
b - влажность осадка,%;
ос - плотность осадка, г/см3.
Таблица 2.10
Скорость рабочего потока в зависимости от эффекта удаления взвешенных веществ для дождевого стока (в числителе) и талого стока (в знаменателе).
|
Эффект осветления, % |
Скорость течения (мм/с) при длине тонкослойных элементов, м |
||
|
1,5 |
2 |
3 |
|
|
55 60 65 70 75 80 85 90 95 |
10/- 6,1/- 4,2/- 2,9/- 2,0/- 1,4/- 0,9/8 0,5/4,3 2,0/2 |
- 9/- 6/- 4,3/- 3/- 2/- 1,2/10 0,65/6 0,2/3 |
- - 8,5/- 6,0/- 4,3/- 3/- 1,8/- 1/9,6 0,2/4 |
Исходя из объема образующеюся осадка и вместимости зоны его накопления в отстойном сооружении определяется интервал времени между выгрузками осадка.
В зависимости от принятого тина отстойного сооружения удаление осадка предусматривается самотеком, под гидростатическим давлением, насосами, гидроэлеваторами, ковшовыми элеваторами, грейфером, бульдозерами, экскаваторами и другими машинами.
Таблица 2.11
Скорость рабочего потока в зависимости он эффекта очистки поверхностного стока от нефтепродуктов для дождевого стока (в числителе) и талого стока (в знаменателе).
|
Эффект очистки, % |
Скорость течения (мм/с) при длине тонкослойных элементов, м |
||
|
1,5 |
2 |
3 |
|
|
60 65 70 75 80 85 90 95 |
4,4/- 3,5/- 2,3/- 1,7/9,1 1,0/5,5 0,8/4,0 0,5/2,6 0,2/1,0 |
6,2/- 4,5/- 3,4/- 2,5/10,2 1,8/7,1 1,0/5,5 0,8/3,9 0,2/2,5 |
9,2/- 6,0/- 4,3/- 3,0/- 2,0/9,9 1,2/6,8 0,65/5,3 0,2/3,2 |
Тип отстойных сооружений следует выбирать на основании технико-экономических расчетов с учетом производительности и схемы очистных сооружений, очередности строительства, характеристики грунтов, рельефа площадки, уровня грунтовых вод, требуемой степени очистки и др. Отстойные сооружения могут быть железобетонными или земляными.
Железобетонные отстойники целесообразны при расходах сточных вод до 500 л/с, а также при неблагоприятных гидрогеологических условиях. При расходе до 300 л/с возможно применение отстойников закрытого типа, т.е. подземных железобетонных сооружений. При больших расходах экономически целесообразно устраивать пруды-отстойники.
2.4.2. Обработка осадков.
На станциях очистки поверхностного стока осадок либо вывозится автоцистернами с вакуумными насосами или автосамосвалами в специально отведенные места, либо сушится на резервной секции пруда-отстойника или иловых площадках, либо подвергайся механическому обезвоживанию на фильтрах или обрабатывается совместно с осадками природных или сточных вод, остающихся в очистных сооружениях [14]. При производительности очистных сооружений до 150 л/с целесообразно вывозить осадок автотранспортом. Если для очистки поверхностного стока устраиваются пруды-отстойники, то рекомендуется предусматривать дополнительную секцию для обработки осадка. По мере накопления осадка выключается одна из секций отстойника, из которой вытекает осветленная вода. Осадок влажностью 50-60% удаляется бульдозерами, экскаваторами, грейферами и другими механизмами. При наличии свободных площадей могут предусматриваться иловые площадки, на которых осадок высушивается до влажности 50%. Иловые площадки рекомендуется проектировать в виде накопителей, где происходит как отстаивание, так и поверхностное удаление иловой воды. Если позволяют гидрогеологические условия, накопители проектируют на естественном основании.
ГЛАВА 3. РАЗРАБОТКА ПРОЕКТА РЕКОНСТРУКЦИИ ОЧИСТНЫХ СООРУЖЕНИЙ ПОВЕРХНОСТНОГО СТОКА С ТЕРРИТОРИИ АЭРОПОРТА ДОМОДЕДОВО
3.1.Общие сведения.
Технологические решения проекта «Очистные сооружения поверхностных сточных вод (площадка №1 и №2)» аэропорта Домодедово, разработаны ООО «Росэкострой» в 2006году.
Вместо технологии биологической очистки поверхностного стока, применена современная технология физико-механической очистки включающей сепарацию, реагентную флотацию и глубокую доочистку на сорбционных угольных фильтрах .
В связи с выходом постановления Правительства РФ от 16 февраля 2008 г. N87, состав и содержание разделов проектной документации выполнены с учетом его требований.
Предусматривается ввод в эксплуатацию комплекса очистных сооружений по ступеням очистки, с достижением требуемого качества после каждой ступени:
- механическая и физико-механическая очистка 1-я очередь пуска и ввода в эксплуатацию;
- глубокая доочистка на сорбционных угольных фильтрах- 2 очередь пуска и ввода в эксплуатацию.
При корректировке настоящего раздела решаются вопросы очистки поверхностного стока (дождевого и талого) поступающего с водосборных площадей территории аэропорта «Домодедово», на площадку 90.1 и площадку 90.2.
На площадки 90.1 и 90.2 поверхностный сток предусматривается подавать самостоятельными самотечными коллекторами разрабатываемыми отдельно.
Отведение очищенного стока предусматривается в пониженные места рельефа через существующие и сформировавшиеся выпуски: площадка 90.1 выпуск №1; площадка 90.2 выпуск №2.
На каждой площадке предусматривается строительство аккумулирующих резервуаров, зданий для размещения очистного и вспомогательного оборудования, резервуаров для накопления поверхностного стока для использования на технические нужды.
Площадки, отведенные под строительство очистных сооружений, располагаются на территории аэропорта Домодедово, дополнительного землеотвода не предусматривается.
Водосборные площади площадки 90.1 включают: существующие твердые покрытия ВПП-1, МРД-2(А), МРД-В-участка, СРД-участков, площадки ПОЖ-2; совмещенного перрона и РД-3; внешние объекты аэровокзала, с участком привокзальной площади, перрона; с грунтовых поверхностей. Общая площадь водосбора площадки 90.1 F=360,0 га.
Водосборные площади площадки 90.2 включают существующие твердые покрытия: площадки ПОЖ-1, участков МРД-В и СРД; покрытия аэродрома: АТБ с предангарной площадью, МС- техоблуживания; внешних объектов: сектора деловой авиации, новых и строящихся автостоянок, СТТ, примыкающей к внутрипортовой автодороге; с грунтовых поверхностей. Общая площадь водосбора площадки 90.2 F=94,4 га.
Решения по сбору и транспортировке поверхностного стока на очистные сооружения и решения по сбросу очищенного поверхностного стока в пониженные места рельефа выполняются институтом ”Аэропроект”.
3.2. Исходные данные.
Разработка технологических решений по механической, физико-механической очистке и глубокой доочистке поверхностного стока выполнена на основе технического задания на проектирование и нормативных требований:
- СНиП 2.04.03-85 «Канализация. Наружные сети и сооружения»;
- Проектирование сооружений для очистки сточных вод, (Справочное пособие к СНиП 2.04.03-85);
- СанПиН 2.1.5.980-00. Гигиенические требования к охране поверхностных вод, М., 2000г.
- СНиП 31-03-2001 «Производственные здания»;
- СНиП 2.08.02-89 «Общественные здания и сооружения»;
- СанПиН 2.2.1/2.1.1984-00 Санитарно-защитные зоны и санитарная классификация предприятий, сооружений и иных объектов, М., 2000г;
- Рекомендации по расчету систем сбора, отведения и очистки поверхностного стока с селитебных территорий, площадок предприятий и определению условий его выпуска в водные объекты, ФГУП «НИИ ВОДГЕО», М., 2006г;
- других нормативных документов и государственных стандартов по проектированию и строительству.
3.2.1. Характеристика состава поверхностного стока.
При расчете объемов поверхностного стока по каждому выпуску учтены водосборные площади:
- для площадки 90.1- F=360,0 га, средний коэффициент стока =0,327;
- для площадки 90.2- F=94,4 га, средний коэффициент стока =0,4.
Общие объемы поверхностного стока составляют:
- для площадки 90.1 8 800м3 ;
- для площадки 90.2- 3 500 м3 .
Таблица 3.1.
Объемы и качественный состав стоков.
|
№№ п/п |
Наименование показателей. |
Единица измерения |
Количество атмосферных осадков и их состав |
|
1. |
Объем стока площадки 90.1 Объем стока площадки 90.2 |
тыс. м3/год м3/дождь тыс. м3/год м3/дождь |
961,07 8800 320,319 3500 |
|
2. |
Состав сточных вод до очистки: Взвешенные вещества* Нефтепродукты* Этиленгликоль** Аммонийный азот** |
мг/л мг/л мг/л мг/л |
1060,9 43,5 3,2 18,1 |
* По результатам исследования дождевых и талых вод аэропорта Домодедово.
**Данные представленные в таблице 2.1 по содержанию азота аммонийного и этиленгликоля приняты по аналогу на основании результатов исследований в аэропорту «Шереметьево», ФГУП «НИИ ВОДГЕО» и ГУП «Центровод» в 2001-2003гг.
По солесодержанию поверхностный сток (включая талые воды) отнесен к слабоминерализованным водам (200-500 мг/л), поэтому применение технологии обессоливания воды не предусматривается.
3.2.2. Требования к качеству очищенного стока.
Требования к качеству очищенного стока при выпуске на рельеф и использованию на технические нужды: противопожарные цели, промывка фильтров, полива и мойки твердых покрытий, проездов, полив газонов приведены в таблице 3.2.
Таблица 3.2
Требования к качеству очищенного стока при выпуске на рельеф и использованию на технические нужды.
|
№ п/п |
Наименование загрязнений |
Единица измерения |
Требования к качеству очищенного стока |
|
|
при выпуске на рельеф |
на технические нужды |
|||
|
1. |
Нефтепродукты |
мг/л |
0,05 |
0,1-0,3 |
|
2. |
Взвешенные вещества |
мг/л |
6 |
5-10 |
|
3. |
Аммонийный азот |
мг/л |
0,39 |
0,39 |
|
4. |
Этиленгликоль |
мг/л |
0,25 |
0,25 |
3.2.3. Принятая производительность очистных сооружений.
Производительность очистных сооружений на площадках 90.1 и 90.2 назначена исходя из объемов аккумулирования стока в резервуарах и периода их опорожнения (принято не более 2-х суток). Таким образом:
- для площадки 90.1, 8800 м3 - производительность принята равной -183 м3/ч;
- для площадки 90.2, 3500 м3 - производительность принята равной 90 м3/ч.
3.3. Характеристика принятой технологической схемы.
Технологическая схема очистки, принятая настоящим проектом обеспечивает возможность очистки поверхностного стока по лимитирующим показателям: нефтепродукты, взвешенные вещества, этиленгликоль, аммонийный азот не только до значений ПДК сброса воды на рельеф, но и рыбохозяйственных водоемов первой категории.
Предусматривается очистка всего талого стока (в период оттепелей и весеннего таяния), а также поливо-моечных вод дорожных покрытий. Предусматривается, что сооружения обеспечат очистку не менее 70% среднего объема атмосферных вод.
Технология очистки и технологические схемы для площадки 90.1 и для площадки 90.2 приняты аналогичными. На ступени механической очистки стока на решетках, последующем гравитационном отстаивании и реагентной флотации предусматривается применение технологии немецкой фирмы AWAS хорошо зарекомендовавшей себя при строительстве и эксплуатации аналогичных сооружений для аэропорта города Сочи.
Для глубокой очистки и доочистки воды, в соответствии с рекомендациями «НИИ ВОДГЕО» и действующими нормами, применены механические и сорбционные фильтры отечественного производства.
В связи с тем, что часть очищенной воды предусматривается использовать на технические нужды, в соответствии с требованиями СанПиН 2.1.5.980-00 и МУ 2.1.5.732-99 после глубокой доочисткой воды предусматривается УФ-обеззараживание. Для этой цели в составе сооружений предусматриваются резервуары для накопления очищенной воды которая будет использоваться на собственные нужды очистных сооружений, для противопожарных целей, полива дорог.
Предусматривается сбор и удаление трех видов отходов образующихся в процессе очистки воды:
- в виде взвешенных веществ и песка;
- всплывших нефтепродуктов;
- нефтепродуктов в виде флотошлама.
Ввиду аналогичности, состав сооружений рассматривается по технологической схеме площадки 90.1. Схема включает следующие основные технологические узлы:
1 приемная камера с механизированной решеткой 8.1 и прессом 8.2 ;
2 аккумулирующий резервуар RRB 1, песколовка 40м, объем 5300м3, с установкой очистки дна 9;
3 коалесцентные сепараторы Galaxie -10шт
4 аккумулирующий резервуар SRB 2, 40м, объем 5300м3, с установкой суперкавитации 10;
5 сатуратор 1200мм -4шт;
6 флотаторы напорные 8,3м-2шт;
7 установка приготовления и дозирования реагентов;
11 контейнер накопительный с дренажем;
12 напорные механические фильтры ФОВ, 3м;
13 напорные механические фильтры ФОВ, 3м, сорбционные I ступень;
14 напорные механические фильтры ФОВ, 3м, сорбционные II ступень;
15 установка УФ- обеззараживания;
16 резервуар для накопления нефтепродуктов -10м3;
17 резервуар очищенной воды 300м3, с переливом отвода воды на рельеф;
18 дренажный приямок;
19 резервуар промежуточный - 29м3;
20 песковая площадка с дренажем;
Технологическая схема включает также необходимое насосное оборудование, систему отбора проб воды на каждой ступени, проточные анализаторы качества воды, систему АСУ ТП с передачей основной информации на центральный диспетчерский пункт.
Предусматривается ввод в эксплуатацию комплекса очистных сооружений по ступеням очистки, с достижением требуемого качества после каждой ступени:
первая очередь пуска и ввода в эксплуатацию технологические узлы
поз. 1-11 и 16-20 (экспликации), узел обработки осадка, а также относящиеся к ним системы управления, автоматизации и АСУ ТП;
вторая очередь пуска и ввода в эксплуатацию технологические узлы поз. 12,13,14,15 (экспликации) системы управления и автоматизации которых стыкуются с общей системой АСУ ТП.
3.3.1. Обоснование принятой технологии очистки.
Принятая проектом технология отвечает всем требованиям технического задания и рекомендациям нормативных документов.
Решение о включении в схему технологии немецкой фирмы AWAS на стадиях очистки от ступени приема и распределения стока различной интенсивности до системы реагентной флотации включительно, обосновывается:
простотой, компактностью и надежностью при обеспечении необходимой степени очистки;
полной автоматизацией производственного процесса АСУ ТП, с выводом информации на диспетчерский пункт;
постоянным контролем на каждой ступени таких загрязнений как: нефтепродукты, аммонийный азот, ХПК, взвешенные вещества;
наличием системы возврата стоков для повторной очистки в случае не достижения требуемого качества;
автоматическое отведение нефтепродуктов в накопитель;
минимальным потреблением электроэнергии и химикатов;
возможностью работы без постоянного присутствия обслуживающего персонала;
гарантией фирмы AWAS о том, что технология на выходе обеспечит:
- взвешенные вещества до 3 мг/л;
- снижение нефтепродуктов до 0,5 мг/л;
- снижение показателя аммонийного азота (NH4 - N) до 3 мг/л;
- снижение этиленгликоля до 3 мг/л.
Для достижения требуемых показателей качества воды по всем контролируемым инградиентам после технологии фирмы AWAS, проектом предусматривается, стадия глубокой очистки, доочистки и обеззараживания поверхностного стока с применением отечественного оборудования, обеспечивающего работу без постоянного присутствия обслуживающего персонала.
Для обработки осадка предусматривается комплектное оборудование фирмы «ТЭС», Словакия, хорошо зарекомендовавшее себя при многолетней эксплуатации во многих городах РФ.
3.4. Описание принципа работы сооружений.
3.4.1. Приемная камера.
Поступление поверхностных стоков в подземную ж/б приемную камеру поз.1 осуществляется по самотечному коллектору (документация на коллектор разрабатывается отдельным проектом). Конструкция и технология камеры обеспечивает три режима работы:
- «период дождей» поступление стоков расходом до 20л/с;
-«период дождей» поступление стоков расходом более 20л/с;
- период превышения расчетной интенсивности, расход более 10 000 м3/ч.
Приемная камера оснащена механической решеткой (размер ячеек 6 мм.) обеспечивающая удаление крупных загрязнений в накопительный контейнер поз.11, дренаж после которого обратно сбрасывается в камеру. В приемной камере располагаются также погружные насосы (раб и рез) для подачи стоков в периоды интенсивности до 20 л/с непосредственно в сепараторы Galaxie после которых вода в самотечном режиме поступает в аккумулирующий резервуар SRB 2 из которого насосами подается на флотацию.
Режим «периода дождей» - расход стоков до 20л/с.
В режиме «периода дождей» с расходом до 20 л/с, сооружения работают по схеме:
- приемная камера - сепаратор Galaxie (в работе один сепаратор) - накопительный резервуар SRB2 - флотатор - фильтр песчаный -УФ-обеззараживание- глубокая доочистка на активированном угле - резервуар очищенной воды - сброс на рельеф.
Подача стоков непосредственно на Galaxie, производится рабочим погружным насосом производительностью до 100м3/ч (раб и рез), включение в работу насоса осуществляется по команде датчика нижнего уровня. пропускная способность одного сепаратора Galaxie составляет до 280м3/ч.
Режим «период дождей» - расход стоков более 20 л/с.
В режиме «периода дождей» уровень воды в приемной камере поднимается. При наступлении такого периода, по команде датчика верхнего уровня погружной насос выключается из работы и поступающие стоки в самотечном режиме двигаются по основной схеме:
- приемная камера аккумулирующий резервуар песколовки RRB 1- сепаратор Galaxie (в работе один шт) - накопительный резервуар SRB2 флотатор - фильтр песчаный -УФ-обеззараживание- глубокая доочистка на активированном угле - резервуар очищенной воды - сброс на рельеф.
В период превышения расчетной интенсивности, расход более 10 000 м3/ч сооружения работают по основной технологической схеме:
- приемная камера - накопительный резервуар песколовка RRB 1 - сепараторы Galaxie (в работе 10 шт) - накопительный резервуар SRB2 - флотатор-фильтр песчаный -УФ-обеззараживание- глубокая доочистка на активированном угле - резервуар очищенной воды - сброс на рельеф.
Предусматривается три уровня выхода сооружений на полную производительность:
- первый уровень, при наполнении ёмкости RRB 1 до максимума, излишки стока через воронку, находящуюся в центре резервуара RRB 1 отводятся на коалесцентный сепаратор Galaxie NG 800 и далее для накопления в резервуар SRB2 перед флотацией;
- второй уровень, при дальнейшем увеличении расхода и превышении максимального уровня RRB 1, стоки через опоясывющую резервуар по кругу переливную стенку и лоток, попадают в трубопровод перелива DN 800 и отводятся по нему во вторую накопительную емкость SRB 2, минуя сепаратор Galaxie NG 800 для накопления перед флотацией;
- третий уровень, если наполняется и второй накопитель до максимально установленного уровня, только тогда открывается аварийный перелив через трубопровод трубы DN 800 для сброса на рельеф.
3.4.2. Накопительная ёмкость RRB 1.
Стоки подводятся в емкость RRB 1 тангенциально, чем обеспечивается первичное одновременное отделение нефтепродуктов наверх и в центр емкости и взвесей, вниз емкости. Для оптимизации этого процесса в емкость встроены две полуспирали, направляющие нефтесодержащие стоки в центр емкости. Для того, чтобы взвеси не оседали по всему дну резервуара, а перемещались в направлении шламового приямка, из которого происходит их удаление, от стены емкости до приямка устроена направляющая спиралевидная конструкция. Из накопительного приямка, специальным (шламовым) насосом, осадок в заданном режиме подается на песковую площадку поз.20.
В емкости RRB 1 ливневые стоки накапливаются, отстаиваются и большая часть взвешенных веществ седиментируется (выделяется в осадок).
Если заполнение аккумулируюшей емкости RRB 1 от датчика среднего уровня до датчика максимального уровня (установленных непосредственно в емкости), производится быстро (не более трех часов), то вода начинает перетекать самотеком через трубу с воронкой из центра емкости в установленные после него коалесцентные сепараторы GALAXIE (10шт) и далее по схеме.
Системой АСУ ТП предусмотрено, что накопительная емкость песколовки, никогда не остается заполненной длительное время и всегда ее объем готов к приему расхода стоков максимальной интенсивности. Это состояние обеспечивается за счет, того что если заполнение аккумулирующей емкости RRB 1 от датчика среднего уровня до датчика максимального уровня, производится медленно (т.е. более трех часов), то производится автоматическое включение насоса подачи стока на коалесцентные сепараторы Galaxie.
3.4.3. Коалесцентные сепараторы.
В коалесцентном сепараторе AWAS GALAXIE 2002, осуществляется одновременное отделение нефтепродуктов и взвесей из воды, по принципу прохождения стоков по спиралям, имеющим специальное покрытие, при котором нефтепродукты собираются в центре и на поверхности спиралей, а взвеси в центре и на дне спиралей.
В коалесцентных сепараторах накопления нефтепродуктов не предусматривается. За счет центростремительного потока обеспечивающего эффективное, до 99 % отделение из воды и нефтепродуктов и легких жидкостей, таких как керосин и далее при помощи интегрированной автоматики осуществляется вытеснение нефтепродуктов, во встроенную емкость для сбора нефтепродуктов.
Из нижней конической части каждого сепаратора, выделяющийся осадок по разгрузочным патрубкам отводится в сторону общего приямка, откуда он шламовым насосом удаляется в фильтрующий контейнер с отводом дренажа в приемную камеру. При максимальной интенсивности поступления стоков в работе находятся все 10 коалесцентных сепараторов. Общая производительность сепараторов составляет 800л/с или 2800м3/ч, что соответствует поступлению стоков при их максимальной интенсивности.
3.4.4. Аккумулирующая емкость SRB 2.
В накопительную емкость SRB 2 поступает сток предварительно прошедший очистку в коалесцентных сепараторах. Общий объём SRB 2 составляет 5300 м3, из емкости предусмотрен аварийный перелив.
Накопительная емкость 2 разделена на две половины. Левая половина SRB 2/1 служит накопительной емкостью стоков после сепарации перед флотацией. В ней установлены два погружных флотационных насоса, каждый на 125м3/ч. При достижении определенного уровня в этой части емкости, включается сначала один насос и подает сток на первую флотационную установку через один сатуратор. При увеличении количества стока автоматически включается второй насос и второй сатуратор первого флотатора.
Перед входом воды на флотаторы установлены датчики on-line_ регистрирующие уровень РН стока и концентрацию нефтепродуктов. В зависимости от сигнала датчиков флотационная система работает в реагентном или безреагентном режиме. В случае превышения заданных концентраций загрязнений, включение насосов дозаторов для подачи реагентов производится автоматически, по команде одного из датчиков проточных анализаторов.
В случае, если в стоке поступающем в накопительную емкость RRB 1 обнаружено превышение концентрации азота аммонийного, то его первичное снижение осуществляется за счет разбавления, при смешении объема стоков емкости RRB 1 и SRB 2 ровно в два раза, т к указанные емкости по объему равны друг-другу. Таким образом снижение концентрации NH4 происходит перед флотацией за счет разбавления стока правой половины более чистым стоком левой половины резервуара. Дальнейшее его снижение предусматривается по всей технологической цепочке сооружений.
В случае, если требуемое снижение концентрации NH4 не достигнуто за первый цикл, стоки направляются на повторное прохождение процесса реагентной флотации и далее на фильтры глубокой доочистки.
В случае повторного недостижения указанных показателей, по команде датчика проточного анализатора откроется шибер между правой и левой половиной SRB 2 для смешивания очищаемых стоков со стоками уже прошедшими глубокую доочистку и только после этого сбрасываются на рельеф.
В зимнее время, когда в сток попадает этиленгликоль, после прохождения очистки в сепараторе, он также накапливается в правой половине SRB 2. При этом флотационные насосы работают в режиме суперкавитации. Флотационные насосы в данном режиме также направляют сток в сатураторы для насыщения их воздухом и далее на установку суперкавитации, включающую оптимированный Лаваль-дюзы, стального стержня и выпускного сопла см. рисунок 3.1. 
Рисунок 3.1 Принцип работы системы суперкавитации.
Суперкавитация приводит к имплозии (деструкции) растворенного в воде этиленгликоля.
С помощью постоянного измерения TOC (ХПК и БПК) регулируется продолжительность работы системы суперкавитации.
Между правой и левой половиной накопительной емкости находятся два пневматических шибера, которые по необходимости открываются, для использования всего объема SRB 2.
3.4.5. Система напорной реагентной флотации.
Стоки, предварительно прошедшие очистку в сепараторах GALAXIE, подаются на дальнейшую очистку во флотационную систему. На выходе после флотаторов предусматриваются проточные анализаторы жидкости для измерения показателей ХПК, азот, углеводороды и мутность очищенной воды.
Система напорной реагентной флотации включает:
подающие насосы - ( 4+1)шт;
установку приготовления и дозирования реагентов - 1шт;
емкости для химических реагентов
напорные сатураторы DN 1200мм, Н 3200мм - 4 шт;
флотаторы DN 8300мм - 2 шт.
Система флотации располагается в здании очистных сооружений (план компоновки сооружений см 13.4 и 13.6).
Предусматривается два режима работы системы напорной флотации:
Напорная флотация без применения реагентов режим «Период дождей», пропускная способность до 125м3/ч;
Дисперсионная флотация с применением реагентов режим «Период дождей», пропускная способность до 500м3.
Общий принцип флотационной очистки состоит в следующем:
- в сатуратор одновременно под давлением 0,45МПа подается вода содержащая остаточные загрязнения и воздух, образующие водовоздушную смесь;
- при выходе водовоздушной смеси в свободный объем флотационной камеры микрочастицы воздуха устремляются на поверхность разделения фаз;
- по пути движения, за счет адгезионной способности к микропузырькам прикрепляются растворенные в воде загрязнения и транспортируются на поверхность воды;
- адгезионная способность увеличивается за счет введения в воду химических реагентов.
За счет декомпресии происходит также разрушение некоторого количества аммонийного азота и гликоля.
При обнаружении эмульгированных нефтепродуктов, по сигналу проточных анализаторов автоматически включаются насосы дозаторы для подачи реагентов осуществляющих расщепление эмульсии. При этом из микрофлоки образуется макрофлока, внутри которой находятся мельчайшие пузырики воздуха, подымающие их на поверхность. На поверхности собирается флотационный шлам.
За счет медленного вращения устройства полузатопленного шламосборного устройства флотационный шлам сдвигается в т.н. шламовый карман, из которого шнековым насосом транспортируется на участок обработки и обезвоживания осадка.
Очищенная вода поступает на выходной контроль и анализ и затем в зависимости от качества может или сбрасываться или отправляться на доочистку.
Рисунок 3.1. Система напорной реагентной флотации.
Таблица 3.3.
Эффективность работы технологии AWAS в режиме «период дождей» интенсивностью до 20 л/с, по ступеням очистки.
|
Ступени очистки |
Взвешенные вещества |
Нефтепродукты |
Азот аммонийный N-NH 4 |
Этиленгликоль |
||||
|
мг/л |
Эффект очист-ки |
мг/л |
Эффект очистки |
мг/л |
Эффект очистки |
м/л |
Эф-фект очистки |
|
|
Исходная вода |
1000 |
40 |
18-20 |
20-30 |
||||
|
В центре первой емкости |
200 |
80% |
40 |
2-0,2 |
Зависит от интенсивности осадков |
10-15 |
50% |
|
|
После сепаратора |
100 |
50% |
0,5 |
99% |
2-0,2 |
10-15 |
||
|
При заполненном бассейне 2 |
100 |
0,5 |
2-0,2 |
5-7,5 |
50% |
|||
|
После флотации |
max 3 |
97% |
0,05* |
90% |
1,5-0,15 |
4-6 |
20% |
|
|
Суперкавита- |
max 3 |
1,5-0,15 |
0,25** |
* свободновсплывающих, эмульгированных и растворенных нефтепродуктов
* * эффективность очистки в процентах зависит от естественного смешения стоков и может достигать 90%.
Таблица 3.4.
Эффективность работы технологии AWAS в режиме «период дождей» интенсивностью более 20л/с, по ступеням очистки представлена в таблице 3.4.
|
Ступени очистки |
Взвешенные вещества |
Нефтепродукты |
Азот аммонийный N-NH 4 |
Этиленгликоль |
|||
|
Мг/л |
Эффект очистки |
мг/л |
Эффект очистки |
мг/л |
Эффект очистки |
мг/л |
|
|
Исходная вода |
1000 |
40 |
18-20 |
20-30 |
|||
|
После сепаратора |
100 |
90% |
0,5 |
99% |
18-20 |
20-30 |
|
|
Суперкавитация |
max 3 |
97% |
0,05* |
90% |
12-13 |
5-7,5 |
|
|
После флотации |
max 3 |
97% |
0,05* |
90% |
9-10 |
20-30 без суперкавитации 4-6 с суперкавитацией |
* свободновсплывающих и эмульгированных нефтепродуктов

Рисунок 3.3. Принципиальная технологическая схема установки.
3.5. Доочистка поверхностного стока фильтрацией.
3.5.1. Механические фильтры первой ступени.
Вода после флотаторов накапливается в промежуточном резервуаре и насосами подается на напорные фильтры первой ступени. Скорость фильтрования принята равной v = 9 м/ч.
Требуемая площадь фильтрации определена по формуле:
; (3.1)
где F площадь фильтрации, м2;
Q расход, м3/ч (6,6 м3/ч);
v скорость фильтрования, м/ч (9 м/ч).
Исходя из расхода 4400 м3/сут или 183,3 м3/ч и скорости фильтрования 9 м/ч, площадь фильтрования составит 20,8 м2, принимаем равной 21м2.
Предусматривается 4 напорных фильтра ФОВ-3,0-0,6 диаметром 3,0 м, общей площадью 28 м2 (3 рабочих, 1 резервный).
Интенсивность промывки фильтрующего материала гидроантрацит-А, крупностью 0,7-1,2 мм, равна 12-14л/см2, длительность промывки 15 минут.
При производительности насоса 305 м3/ч, за 15 минут промывки одного из фильтров будет образовываться около 76,3 м3 загрязненной воды.
Высота фильтрующего слоя дробленого гидроантрацита-А крупностью 0,7-1,2 мм, принята равной 1000 мм. В качестве нижнего дренажного слоя принят гравий крупностью 5-10мм, высотою слоя 200мм. Таким образом общая высота загрузки составляет 1200мм.
Предельные потери напора в фильтре приняты равным 10м.
Промывка фильтров осуществляется очищенной водой, из резервуара очищенной воды 300м3. Сброс загрязненных промывных вод осуществляется в приемную камеру.
Эффективность снижения концентрации загрязнений при фильтрации через гидроантрацит принята следующей:
по взвешенным веществам до 3,0 мг/л;
по нефтепродуктам до 0,1 мг/л.
3.5.2. Сорбционные фильтры.
На адсорбционные фильтры вода подается под остаточным напором после механических фильтров первой ступени .
В качестве адсорбента, для глубокой доочистки воды предусмотрен активированный уголь (ГОСТ 20464-00).
Исходя из расхода 4400 м3/сут или 183,3 м3/ч и скорости фильтрования 9 м/ч, площадь фильтрования составит 20,8 м2, принята равной 21м2.
На первой ступени предусматривается 4 напорных фильтра ФОВ-3,0-0,6 диаметром 3,0 м, общей площадью 28 м2 (3 рабочих, 1 резервный).
Высота слоя загрузки принимается из расчета t =15 минутного контакта воды с сорбентом и скорости движения воды v = 9 м/ч.
, (3.2)
Нз = 9х15/60 = 2,2 м
В этой связи для обеспечения необходимого времени контакта 15-20мин для площадки 90.1 принимается вторая ступень сорбционных фильтров DN 3.0м, также в составе 4 фильтров ФОВ-3,0-0,6 диаметром 3,0 м, общей площадью 28 м2 (3 рабочих, 1 резервный), всего на стадии глубокой доочистки предусмотрено 8 сорбционных фильтров. Высота слоя загрузки Нз в сорбционных фильтрах принята равной 1,2м.
Требуемая величина относительного расширения загрузки составляет в среднем 35%. Расстояние от поверхности фильтрующей загрузки составит 0,65м.
Для обеспечения необходимого времени контакта 15-20мин для площадки 90.2 принимается две ступени напорных фильтров DN 3.0м (всего 6шт) с высотой слоя загрузки Нз каждого фильтра составляет 1,2м.
По характеристике пожароопасности указанные угли относятся к третьему классу (по ГОСТ 12.1007-76), т.е. не самовоспламеняются до 200 оС.
Принятая настоящим проектом технология, включающая механическую, физико-механическую и глубокую доочистку воды на активированном угле обеспечит качество воды до качества отвечающего требованиям к очищенной воде, сбрасываемой на рельеф и в открытые водоемы рыбохозяйственного назначения.
Качество воды после глубокой доочистки по контролируемым инградиентам составит:
- по взвешенным веществам - 0,5 мг/л;
- по нефтепродуктам - 0,05 мг/л;
- по этиленгликолю - 0,25мг/л;
- по азоту аммонийному - 0,39 мг/л.
3.6. Резервуар очищенной воды.
Для накопления очищенной воды предусматривается наружный ж/б резервуар полезным объемом 300 м3, для накопления и хранения воды для использования в технических целях: промывка фильтров, противопожарного водоснабжения, поливки дорог и территории.
Резервуар оснащается технологическими и переливными трубопроводами.
3.7. Установка УФ-обеззараживания.
В последнее время, УФ-облучение получило широкое распространение, т к является эффективным средством обеззараживания очищенных сточных вод. В соответствии с МУ 2.1.5.800-99 «Организация Госсанэпидемнадзора за обеззараживанием сточных вод», Минздрав РФ, 2000 г, настоящим проектом к применению предусматривается установка УДВ-6-А-300Н-10-150 (2 рабочих + одна резервная).
3.8. Перечень мероприятий по сокращению вредных выбросов в окружающую среду.
При правильной эксплуатации проектируемых сооружений для очистки поверхностного стока отрицательного влияния на качество окружающего атмосферного воздуха не предусматривается, т к технологией не предусматривается процессов с выделение вредных газовых выбросов.
На период эксплуатации очистных сооружений при соблюдении всех предусмотренных проектом мер безопасности, а также при своевременной утилизации отходов производства, воздействие проектируемого объекта будет минимальным.
3.9. Технология обработки и механического обезвоживания образующихся осадков.
Перечень, характеристика и масса отходов составлены на основании расчетов, изложенных ниже.
Класс опасности отходов определен в соответствии "Федеральным классификационным каталогом отходов".
Очистные сооружения поверхностных вод относятся к осадко- и отходообразующим. В соответствии с проектом предусматривается
образование следующих отходов:
1. Приемная камера с решеткой мусор спрессованный (ТБО), четвертый класс опасности (912 004 0001 004);
2. Песколовка песок с включениями нефтепродуктов, обезвоженный, четвертый класс опасности (948 000 0000 004);
3. Сепаратор коалесцентный нефтешлам, третий класс опасности (546 002 00 06 03 3), подвергается утилизации специализированными организациями ;
4. Флотатор флотошлам, четвертый класс опасности (948 000 0000 004);
5. Фильтр двухслойный промывные воды (направляются в аккумулирующий резервуар для очистки совместно с поверхностным стоком;
6. Фильтры сорбционные первой и второй ступеней промывные воды (направляются в аккумулирующий резервуар), отработанный активированный уголь, четвертый класс опасности (314 801 02 01 03 4).
Отнесение отходов к тому или иному классу опасности определяет способы сбора, хранения, транспортировки и т.п. в соответствии с требованиями нормативных документов. Самым объемным и трудным в обработке отходом в принятой технологии является флотошлам, выделяемый при реагентной флотации. Для обработки и подготовке к утилизации флотошлама предусматривается специальный участок.
ЗАКЛЮЧЕНИЕ.
Выпускная квалификационная работа бакалавра посвящена разработке проекта реконструкции очистных сооружений поверхностного стока с территории аэропорта Домодедово.
Были поставлены и достигнуты цели по следующим главам бакалаврской работы:
1. В первой главе рассмотрены атмосферные осадки и образование поверхностного стока. Раздел посвящен общим данным о выпадении атмосферных осадков и формированию поверхностного стока.
2. Во второй главе работы освящены характеристики поверхностного стока и существующие методы его очистки. Рассматриваются технологии для очистки поверхностного стока и обработки осадков.
3. В третьей главе работы рассматриваются технологические решения проекта «Очистные сооружения поверхностных сточных вод (площадка №1 и №2)» аэропорта Домодедово. Рассматривается схема установки, которая включает в себя следующие основные технологические узлы: приемная камера с механизированной решеткой; аккумулирующий резервуар; песколовка; коалесцентные сепараторы; аккумулирующий резервуар; сатуратор; флотаторы напорные; установка приготовления и дозирования реагентов; контейнер накопительный с дренажем; напорные механические фильтры ФОВ; установка УФ- обеззараживания; резервуар для накопления нефтепродуктов; резервуар очищенной воды; дренажный приямок; резервуар промежуточный ; песковая площадка с дренажем; оборудование для обработки и механического обезвоживания осадка. На опытной установке очищалась сточная вода, а также выполнялась доочистка биологически очищенных сточных вод.
СПИСОК ИСПОЛЬЗОВАННЫХ ИСТОЧНИКОВ:
1. СНиП 2.04.03-85 «Канализация. Наружные сети и сооружения»;
2. Проектирование сооружений для очистки сточных вод, М.: Стройиздат, 1990. (Справочное пособие к СНиП 2.04.03-85);
3. СанПиН 2.1.5.980-00. Гигиенические требования к охране поверхностных вод, М., 2000г.
4. СНиП 31-03-2001 «Производственные здания»;
5. СНиП 2.08.02-89 «Общественные здания и сооружения»;
6. СанПиН 2.2.1/2.1.1984-00 Санитарно-защитные зоны и санитарная классификация предприятий, сооружений и иных объектов, М., 2000г;
7. Патент EP №0960643
8. Молоков М.В. «Дождевая канализация площадок промышленных предприятий», 1964г.
9. Алексеев М.И., Курганов А.М. «Организация отведения поверхностного (дождевого и талого) стока с урбанизированных территорий», 2000г.
10. Ершов Н. И. «Осушение аэродромов. Проектирование и расчет», 1947г.
11. Молоков М.В. «Дождевая и общественная канализация», 1961г.
12. Дикаревский В. С. и др. «Отведение и очистка поверхностных сточных вод», 1990г.
13. Лапшев Н.Н. «Расчеты выпусков сточных вод», 1977г.
14. Шигорин Г.Г. «Общественная система канализации», 1960г.
15. Молоков М.В., Шифрин В.Н. «Очистка поверхностного стока с территории городов и промышленных площадок», 1977г.
Разработка проекта реконструкции очистных сооружений поверхностного стока с территории аэропорта Домодедово