Организация участка мойки грузовых автомобилей и специальной техники в Муниципальном предприятии «Водоканал» г.Ханты-Мансийск
ФЕДЕРАЛЬНОЕ ГОСУДАРСТВЕННОЕ БЮДЖЕТНОЕ ОБРАЗОВАТЕЛЬНОЕ УЧРЕЖДЕНИЕ
ВЫСШЕГО ПРОФЕССИОНАЛЬНОГО ОБРАЗОВАНИЯ
ЮГОРСКИЙ ГОСУДАРСТВЕННЫЙ УНИВЕРСИТЕТ
Политехнический институт
Кафедра Автомобильного транспорта
Допущен к защите
Заведующий кафедрой АТ
Горгоц К.Г. к.т.н. доцент
Выпускная квалификационная работа
на тему «Организация участка мойки грузовых автомобилей и специальной техники в Муниципальном предприятии «Водоканал» г.Ханты-Мансийск
Студент группы 5390 Кондратьев В. В.
Руководитель: к.э.н., Журавлев В.В.
Ханты-Мансийск
2014
Введение
МП «Водоканал» - муниципальное предприятие города Ханты-Мансийска. Сегодня МП «Водоканал» является мощным предприятием, способным решать полный комплекс задач в области водоснабжения и водоотведения города, содержания качества воды на высоком уровне.
Для выполнения своих задач у предприятия есть как грузовая, легковая, так и спецтехника, которую нужно всегда хранить и выпускать на линию в чистом виде.
Поэтому, потребность в автомоечном комплексе именно на предприятии очень высока. Актуальность проблемы и тема исследования обусловлена возросшими требованиями к чистоте техники.
Целью выпускной квалификационной работы является проектирование участка мойки грузовых автомобилей и специальной техники.
Средством достижения целей является выполнение следующих задач:
1. Проектирование автомоечного комплекса.
2. Подбор необходимого оборудования.
3. Организация производственного процесса.
Глава 1 Исследовательская часть
1.1 История создания МП «Водоканал»
В 1950 году 22 марта на заседании исполкома Ханты-Мансийского городского Совета депутатов трудящихся было принято решение о строительстве городского водопровода и утверждении сметы расходов в сумме 999 690 рублей в ценах 1945 года. Председателем исполкома городского Совета в это время был Пакин К.Б., секретарем исполкома Худяков И.Л.
В 1956 году проектным институтом СО «Гипрокоммунводоканал» г. Новосибирска был разработан проект хозяйственно-питьевого водоснабжения города Ханты-Мансийска, который предусматривал две очереди строительства.
В 1966 году решением городского Совета № 288 от 14 декабря на баланс Управления комбината коммунальных предприятий с баланса городской электростанции были переданы здания и сооружения городского водопровода и водозаборные скважины. Комбинат коммунальных предприятий располагался по адресу: ул. Сирина, 59.
В 1970 году была введена в эксплуатацию первая насосная станция на ул.Свердлова, которая подавала воду по стальному водопроводу протяженностью восемьсот метров до ул. Рознина (Красная) и ул.Калинина.
В 1978 году протяженность водопроводных сетей составляла 7,8 км, водоразборных колонок 20 шт., колодцев на сети 70 шт., пожарных гидрантов 50 шт., аварий на сетях водопровода произошло 3, численность работников водопроводного цеха составляла 48 человек.
На 1 февраля 1986 года на водозаборе по ул. Водопроводной действовало 11 артезианских скважин производительностью 2 784 м куб./сут. Станция обезжелезивания представляла собой 5 напорных фильтров диаметром 2 400 мм Таганрогского завода. Фильтры одноступенчатые, загружены кварцевым песком с крупностью фракции 0,8-1,2 мм. Напромывку фильтров расходуется воды 300 м куб./сут. Сброспромывных вод осуществляется на рельеф. Протяженность городских водопроводных сетей составляла более 10 км.
К 1990 году протяженность городских сетей водопровода составляла 20 км, на сетях водопровода действуют 24 водоразборные колонки, 94 водопроводных колодца, число абонентских вводов 4 268. Эксплуатацией водопроводной сети занимался цех водопровода, входящий в состав ПОЖКХ города.
С 1996 года началась реконструкция водоочистных сооружений по ул. Водопроводной, которая длилась около десяти лет.
Большую роль в развитии систем водоснабжения и водоотведения г. Ханты-Мансийска сыграла принятая в 1997 году территориальная программа «Обеспечение качественной питьевой водой населения ХМАО». В последующие годы в рамках программы были построены основные городские объекты и сооружения водоснабжения и водоотведения. К 2003 году от водозабора «Северный» осуществлялось водоснабжение городских районов это ОМК, учхоз, северная часть города, и от водозабора «Южный» район Самарово. Для обеспечения нагорной части города на водопроводе от водозабора «Северный» действует станция 3-го подъема производительностью 4 320 м3/сутки.
В 2003 году общая протяженность отдельных разводящих водопроводных сетей, находящихся в эксплуатации различных организаций, составляет 79,68 км и 70 км водопроводных сетей, проложенных совместно с тепловыми сетями.
В 2005 году с завершением реконструкции водозабора «Северный» и вводом в эксплуатацию водоочистных сооружений вода, поступающая к потребителю, по всем параметрам соответствовала нормативным требованиям. Водоснабжение Ханты-Мансийска и прилегающих районов (ОМК, учхоз и СУ-967, п. Горный) осуществляется от водозабора «Северный» проектной мощностью 16 тыс. м3 /сутки.
На 2007 год среднесуточный объем добычи составил 13,02 тыс. м3/сутки, а подачи воды в город 12,39 тыс. м3/сутки.
В 2008 году подключено к центральному водопроводу 189 потребителей.
За 2009 год среднесуточный объем водопотребления города составил 13,97 тыс. м куб./сут. За 2009 год на водозаборе добыто 5 102,3 тыс. м3 воды.
В 2009 году подключено к центральному водопроводу 208 индивидуальных домов и объектов. Потребителям воды на летний период были оформлены и выданы технические условия в количестве 206 шт. на присоединение к городским инженерным сетям водоснабжения.
В настоящее время водоснабжение города осуществляется централизованно с водозабора «Северный». Добыча воды осуществляется с подземного водозабора с использованием высокодебитных скважин. Подготовку воды до соответствия нормативам СанПиН 2.1.4.1074-01 «Питьевая вода» производят на водоочистных сооружениях, расположенных на территории водозабора «Северный». Транспортировку воды в разводящую водопроводную сеть осуществляют с насосной станции 2-го подъема, расположенной в одном помещении с водоочистными сооружениями. В состав цеха входят следующие сооружения, разделенные по видам услуг. Насосная станция первого подъема состоит из 8 высокодебитных скважин до 100 м3/час каждая и двух низкодебитных скважин до 25 м3/час. В технологическую схему очистки воды включены: водоочистные сооружения насосно-фильтровальная станция с фильтрами первой и второй ступени, комплекс озонирования с резервуаром-усреднителем V=1 000 м3 и аэратор-дегазатор, насосно-компрессорная станция, насосная подачи воды на фильтры и насосная группа для промывки резервуаров. Производственная мощность водоочистных сооружений составляет 16,0 тыс. м3/сутки (666,7 м3/час), с учетом объема на технологические нужды в объеме 1,0 тыс. м3/сутки. Общая протяженность действующих водопроводных сетей, обслуживаемых МП «Водоканал», составляет 128 км.
- Устав предприятия МП «Водоканал»
- Общие положения
Муниципальное водоканализационное предприятие муниципального образования город Ханты-Мансийск, в дальнейшем именуемое «Предприятие», создано на основании Постановления главы администрации города Ханты-Мансийска №82 от 12.02.1992г.
Сокращенное фирменное наименование Предприятия на русском языке: МП «Водоканал».
Предприятие является правопреемником прав и обязанностей муниципального предприятия «Водолей» в соответствии с передаточным актом от 15.01.1997г.
Предприятие является коммерческой организацией.
Полномочия собственника имущества Предприятия осуществляет Департамент муниципальной собственности администрации города Ханты-Мансийска (далее по тексту - Департамент собственности).
Предприятие является юридическим лицом, имеет самостоятельный баланс, расчетный и иные счета в банках, круглую печать, содержащую его полное фирменное наименование на русском языке и указание на место нахождения Предприятия. Печать Предприятия может содержать также его фирменное наименование на языках народов Российской Федерации и (или) иностранном языке.
Предприятие вправе иметь штампы и бланки со своим фирменным наименованием, собственную эмблему, а также зарегистрированный в установленном порядке товарный знак и другие средства индивидуализации.
Предприятие отвечает по своим обязательствам всем принадлежащим ему имуществом. Предприятие не несет ответственность по обязательствам собственника его имущества (муниципального образования), а муниципальное образование не несет ответственность по обязательствам Предприятия, за исключением случаев, предусмотренных законодательством Российской Федерации.
Предприятие от своего имени приобретает имущественные и личные неимущественные права и несет обязанности, выступает истцом и ответчиком в судах различной подведомственности и подсудности в соответствии с законодательством Российской Федерации, международными правовыми актами.
Место нахождения (юридический адрес) Предприятия: г.Ханты-Мансийск, ул. Водопроводная, 2.
- Цели, предмет и виды деятельности предприятия
Предприятие создано с целью решения вопросов местного значения муниципального образования Ханты-Мансийского автономного округа - Югры городской округ город Ханты-Мансийск (далее по тексту - город Ханты-Мансийск) в области создания условий для обеспечения населения, предприятий и организаций водоснабжением и водоотведением.
Предметом деятельности Предприятия является обеспечение исполнения вопросов местного значения, указанных в п.2.1. настоящего Устава, на территории города Ханты-Мансийска.
Для достижения целей, указанных в пункте 2.1. настоящего Устава, Предприятие осуществляет следующие виды деятельности:
- водоснабжение населения, предприятий, организаций города и водоотведение;
- эксплуатация, ремонт, строительство наружных инженерных сетей и коммуникаций;
- деятельность по проектированию зданий и сооружений I и II уровня ответственности;
- деятельность по строительству зданий и сооружений I и II уровня ответственности;
- ремонт и техническое обслуживание автотранспортных средств;
- транспортные услуги (перевозка грузов);
- перевозка (доставка) населению питьевой воды;
- вывоз жидких бытовых отходов.
Право Предприятия осуществлять деятельность, на которую в соответствии с законодательством Российской Федерации требуется специальное разрешение - лицензия, возникает у Предприятия с момента ее получения или в указанный в ней срок и прекращается по истечении срока ее действия, если иное не установлено законодательством Российской Федерации [1].
1.3 Расположение АТЦ и характеристика персонала предприятия МП "Водоканал"
Автотранспортный цех МП "Водоканал" расположен в районе ЦРМ на пересечении улиц Рознина и Обская, недалеко от улицы Энгельса. Расположение его обусловлено рядом причин, по которым его можно считать удачным: вблизи располагаются дороги с оживленным движением (ул. Объездная) одна из основных магистралей города (т.к. по ней движется большой поток автомобилей в сторону Няганьской трассы и трассы на Нефтеюганск); (ул. Энгельса) - также основная магистраль, расположенная в центре города.
Подъезд к транспортному цеху удобен. Имеется указатель расположения. На территории имеется площадка для стоянки а/м клиентов, которая закрывается воротами. Есть сторож. Расположение постов удобное все посты расположены в одном помещении.
В транспортном цехе МП "Водоканал" работают 79 человек. Среди них: 2 руководителя, 1 специалист и 2 рабочих, имеющие высшее образование; 25 рабочих, имеющих начальное профессиональное образование; 7 человек со средним профессиональным образованием и 42 рабочих с основным общим.
Квалификация персонала достаточно высокая. Каждый из работников компетентен в своей области и постоянно расширяет круг своих познаний и навыков. Время от времени сотрудники проходят дополнительное обучение, либо занимаются самообразованием, повышая свою квалификацию.
Внешний вид персонала не сильно отличается от внешнего вида сотрудников других предприятий все одеты в форменную рабочую одежду (комбинезоны, либо костюмы), которую им выдают.
При желании, клиент может пообщаться с персоналом, ремонтирующим его автомобиль мастера ответят на все интересующие вопросы, касающиеся выполняемых работ.
Приемкой автомобиля в ремонт и составлением договора на выполнение услуг занимается главный механик. Он же осуществляет контроль качества выполненных работ и занимается заполнением актов выполненных работ, а также выступает в роли кассира.
1.4 Услуги, оказываемые АТЦ
Автотранспортный цех МП "Водоканал" предназначен для технического обслуживания, текущего и капитального ремонта автотранспортной и специальной техники предприятия, а также сторонних организаций, заключивших с ним договор на обслуживание техники.
Основные виды деятельности цеха:
- ремонт и техническое обслуживание автотранспортных средств;
- транспортные услуги (перевозка грузов);
- перевозка (доставка) населению питьевой воды;
- вывоз жидких бытовых отходов.
Помимо этого, предприятие вправе сдавать в аренду основные и оборотные средства за счет имеющихся у него источников финансирования, что очень актуально в наше время и приносит очень хорошую прибыль.
За счет права на внешнеэкономическую деятельность предприятие оказывает услуги по ремонту техники организациям и частным лицам, что также приносит прибыль [1].
1.5 Транспортные средства, используемые в МП "Водоканал"
Для обслуживания водопровода и сетей водоотведения задействовано 2 единицы гидродинамических машин, 4 единицы илососов, 4 единицы техники, оборудованных для проведения ремонтных и сварочных работ, и прочая спецтехника.
На балансе предприятия числится 55 единиц различной автотранспортной техники, из них в среднем 45 единиц грузоподъемностью более 7-9 тонн. Средний процент износа подвижного состава составляет 84,4%. На данный момент остро стоит потребность в обновлении подвижного состава, а именно спецтехники (гидродинамическая машина, илосос, асс/машина), что значительно сократит финансовые и трудозатраты на текущий ремонт автотранспорта. В 2013 году было приобретено два экскаватора для цеха по ремонту и обслуживанию водопроводных сетей и сетей канализации, так же были приобретены две автомашины ГАЗель, для перевозки аварийных бригад и оборудования.
В целях снижения затрат на ГСМ и более эффективного использования автотранспорта, в 2012 году были установлены приборы спутникового контроля за автотранспортом, что позволило контролировать работу автотранспорта на протяжении всей смены, с учетом маршрута движения, скоростного режима, расходования топлива.
Также основная часть подвижного состава переведена на использование масел для ДВС более высшего качества: типа SHELLRIMULA, что позволило сократить количество плановых ТО-1 и ТО-2. Характеристика подвижного состава представлена в таблице 1.
Таблица 1- Характеристика подвижного состава МП "Водоканал"
|
№ п/п |
Марка и модель транспортного средства |
Назначение автомобиля |
Гол выпуска |
|
1 |
ЗИЛ-433362 |
Водовозка |
2002 |
|
2 |
ЗИЛ-433362 |
Водовозка |
2008 |
|
3 |
Камаз-43118С |
Водовозка |
2002 |
|
4 |
ВАЗ-21104 |
Пассажирский |
2006 |
|
5 |
ГАЗ-33027 |
Гручопассажир |
2008 |
|
6 |
FA3-33023 |
Грузопасс |
2012 |
|
7 |
ГАЗ-2705 |
Грузопасс |
2012 |
|
8 |
LADA-217130 |
Легковой |
2013 |
|
9 |
47955-0000010-62 |
Автомобиль- мастерская |
2012 |
|
10 |
ГАЗ-330202 |
Бортовой |
2012 |
|
11 |
Nissan X-Trail |
Пассажир |
2006 |
|
12 |
УАЗ-22069-04 |
пассажир |
2007 |
|
13 |
ГАЗ-2217 |
Пассажир. |
2008 |
|
14 |
УАЗ-220694-04 |
Пассажир. |
2008 |
|
15 |
Mitsubishi lanser |
Пассажир. |
2008 |
|
16 |
ГАЗ -33023 |
Бортовой |
2013 |
|
17 |
ПАЗ-32053 |
Автобус |
2007 |
|
18 |
ЗИЛ-433362 |
РВМ |
2004 |
|
19 |
ЗИЛ-433362 |
РВМ |
2000 |
|
20 |
ЗИЛ-433362 |
РВМ |
2004 |
|
21 |
ЗИЛ-433362 |
РВМ |
2004 |
|
22 |
КС 457191 |
Автокран |
1997 |
|
23 |
Камаз 532150 |
Бортовой |
2000 |
|
24 |
Камаз-55111 |
Самосвал |
1997 |
|
25 |
Камаз-65115 |
Самосвал |
2013 |
|
26 |
Камаз 532000 |
Бортовой |
1994 |
|
27 |
МА3642202-220 |
тягач |
2006 |
|
28 |
Камаз-53212 |
Илосос |
1999 |
|
29 |
Камаз-53212 |
Гидродин |
2003 |
|
30 |
КО 512 |
Гидродин |
2006 |
|
31 |
МАЗ КО-524 |
Илосос |
2013 |
|
32 |
КО-510 |
Илосос |
2007 |
|
33 |
Камаз-53215 |
Ас/машина |
2001 |
|
34 |
Камаз-53215 |
Ас/машина |
2001 |
|
35 |
Камаз-53215 |
Ас/машина |
2001 |
|
36 |
Камаз-53215 |
Ас/машина |
2001 |
|
37 |
Камаз-53215 |
Ас/машина |
2001 |
|
38 |
Камаз-53215 |
Ас/машина |
2001 |
|
39 |
Камаз-53212 |
Ас/машина |
2000 |
|
40 |
К0-505А |
Ас/машина |
2009 |
|
41 |
К0-505А |
Ас/машина |
2009 |
|
42 |
К0-505А |
Ас/машина |
2009 |
|
43 |
К0-505Б |
Ас/машина |
2012 |
|
44 |
ЗИЛ-131 |
Ас/машина |
1992 |
|
45 |
К0-505А |
Ас/машина |
2010 |
|
46 |
Камаз-53215 |
Ас/машина |
2001 |
|
47 |
Камаз - КО507А |
Илосос |
2007 |
|
48 |
934620 |
полуприцеп |
2006 |
|
49 |
СЗАП8357 |
Прицеп |
2000 |
|
50 |
ТО-18 БЗ |
погрузчик |
2005 |
|
51 |
ТО-18 |
погрузчик |
2005 |
|
52 |
BOBCAT |
погрузчик |
2012 |
|
53 |
CATERPILLAR |
экскаватор |
2011 |
|
54 |
HYUNDAI |
экскаватор |
2012 |
|
55 |
ЭО-4225 |
экскаватор |
2006 |
На балансе предприятия числится 55 единиц различной автотранспортной техники, из них в среднем 45 единиц грузоподъемностью более 7-9 тонн. Средний процент износа подвижного состава составляет 84,4%. На данный момент остро стоит потребность в обновлении подвижного состава, а именно спецтехники (гидродинамическая машина, илосос, асс/машина), что значительно сократит финансовые и трудозатраты на текущий ремонт автотранспорта. В 2013 году было приобретено два экскаватора для цеха по ремонту и обслуживанию водопроводных сетей и сетей канализации, так же были приобретены две автомашины ГАЗель, для перевозки аварийных бригад и оборудования. Далее представлены таблицы автомашин по подразделениям:
Таблица 2- Транспорт для воды по водопроводу
|
№ |
Марка автомобиля |
Гос.номер |
|
1 |
КО-505А |
Т 358 ТТ 86 |
|
2 |
ЗИЛ-130 |
С 201 ОА 86 |
|
3 |
ЗИЛ-130 |
С 796 ОА 86 |
|
4 |
КАМАЗ 53215 |
В 377 ТТ 86 |
|
5 |
КАМАЗ |
Т 908 СА 86 |
|
6 |
Валдай |
Х 883 АН 86 |
|
7 |
ГАЗ-330232 |
А 388 АА 86 |
Таблица 3- Транспорт для подвоза воды
|
№ |
Марка автомобиля |
Гос.номер |
|
1 |
ЗИЛ-433362 |
О 958 СО 86 |
|
2 |
Валдай |
У 647 АУ 86 |
|
3 |
ЗИЛ-433362 |
О 958 СО 86 |
|
4 |
КАМАЗ 43118С |
К 930 НА 86 |
Таблица 4- Транспорт для сточных вод
|
№ |
Марка автомобиля |
Гос.номер |
|
1 |
ЗИЛ-433362 |
Т 798 ОО 86 |
|
2 |
КАМАЗ 53212 |
Т 826 НЕ 86 |
|
3 |
КАМАЗ |
М 155 РЕ 86 |
|
4 |
КАМАЗ 53212 |
Х 108 КР 86 |
|
5 |
ЗИЛ 6333 |
К 852 НА 86 |
|
6 |
МАЗ |
Е 816 АВ 86 |
|
7 |
ГАЗ-33027 |
В 974 ХХ 86 |
Таблица 5- Транспорт для перекачки сточных вод
|
№ |
Марка автомобиля |
Гос.номер |
|
1 |
ГАЗ |
Х 273 АР 86 |
|
2 |
УАЗ-22069 |
А 140 ОА 86 |
|
3 |
ГАЗ-33027 |
В 975 ХХ 86 |
Таблица 6- Транспорт для вывоза ЖБО
|
№ |
Марка автомобиля |
Гос.номер |
|
1 |
КАМАЗ 53215 |
А 621 МА 86 |
|
2 |
КАМАЗ 53215 |
А 622 МА 86 |
|
3 |
КАМАЗ 53215 |
А 623 МА 86 |
|
4 |
КАМАЗ 53215 |
А 620 МА86 |
|
5 |
КАМАЗ 53215 |
Т 503 ТМ 86 |
|
6 |
КАМАЗ 53215 |
К 854 НА 86 |
|
7 |
КАМАЗ 53213 А |
Х 883 ХХ 86 |
|
8 |
КАМАЗ 53215 |
К 846 НА 86 |
|
9 |
КАМАЗ 53215 |
В 376 ТТ 86 |
|
10 |
КАМАЗ 53215 |
К 850 НА 86 |
|
11 |
КАМАЗ 53215 |
Т 589 ТМ 86 |
|
12 |
ЗИЛ 131 |
С 822 ОА 86 |
Таблица 7- Легковой, пассажирский автотранспорт
|
№ |
Марка автомобиля |
Гос.номер |
|
1 |
ГАЗ-33027 |
О 243 СО 86 |
|
2 |
ВАЗ-217130 |
Х 881 АН 86 |
|
3 |
УАЗ -39094 |
К 360 НА 86 |
|
4 |
ГАЗ-330202 |
Х 884 АН 86 |
|
5 |
Лада Ларгус |
Х 061 АР 86 |
|
6 |
УАЗ-2200694-04 |
Т 554 СА 86 |
|
7 |
ВАЗ-21104 |
С 258 РА 86 |
|
8 |
ВАЗ-21104 |
М 734 ОМ 86 |
|
9 |
Nissan X-treil |
М 163 ТА 86 |
|
10 |
ПАЗ-32053 |
Р 097 РС 86 |
|
11 |
Mitsubishi |
О 850 ТВ 86 |
|
12 |
ГАЗ-2217 |
М 041 ТК 86 |
Таблица 8- Транспорт общехозяйственного назначения
|
№ |
Марка автомобиля |
Гос.номер |
|
1 |
А/к. КС 457191 |
В 698 ВС 86 |
|
2 |
КАМАЗ 532150 |
О 331 КО 86 |
|
3 |
КАМАЗ 532000 |
Т 629 ТМ 86 |
|
4 |
КАМАЗ 65111 |
А 618 АА 86 |
|
5 |
ЕК-18 |
86 ХВ 1021 |
|
6 |
ЭО 4225-07 |
86 ХК 3957 |
|
7 |
ТО-18 Б3 |
86 ХК 5552 |
|
8 |
ТО-18 Б |
86 ХВ 3139 |
|
9 |
Bobcat |
86 ТА 9027 |
|
10 |
МАЗ 642202-220 |
М 157 РЕ 86 |
|
11 |
934620 |
АН 6649 |
|
12 |
ХУНДАЙ |
86УЕ9913 |
|
13 |
катерпилар |
86ТА5584 |
|
14 |
ЕК-18 |
86УЕ6065 |
|
15 |
Прицеп |
86УЕ2251 |
|
16 |
Прицеп СЗАП |
АК 7816 |
1.6 Организационная структура предприятия МП «Водоканал»
Организационная структура-совокупность способов, посредством которых процесс труда сначала разделяется на отдельные рабочие задачи, а затем достигается координация действий по решению задач. По сути дела, организационная структура определяет распределение ответственности и полномочий внутри организации. Как правило, она отображается в виде органиграммы - графической схемы, элементами которой являются иерархические упорядоченные организационные единицы.

Рисунок 1- Организационная структура предприятия МП «Водоканал»
1.7 Автотранспортный цех МП «Водоканал»
Автотранспортных цех находится на пересечении улиц Рознина и Обская, общая площадь цеха составляет около 610 м. В цехе порядка 5-8 различных участков:
- моторный;
- топливный;
- слесарный;
- медницкий;
- аккумуляторный;
- пост проведения ТО и ТР.
План территории автотранспортного цеха представлен в Приложении 1.
1.8 Анализ деятельности автомоечного комплекса для грузовых автомобилей и специальной техники МП «Водоканал»
На данный момент в предприятии МП «Водоканал» существует автомоечный комплекс расположенный по ул. Калинина. Для предприятия это совсем неудобно, так как при прохождение ТО и постановки его на капитальный ремонт необходимо тщательно отмыть машину, полностью очистив ее кузов и днище от дорожной грязи. На самом предприятии существует только небольшая мойка агрегатов автомобиля, которая находится непосредственно в самом цехе. Поэтому мной была взята разработка именно автомоечного комплекса для данного предприятия. Спрос на автомоечные услуги в Ханты-Мансийске значительно высокий, также предприятие на коммерческой основе может предоставлять услуги для других предприятий и жителям города. На сегодняшний день бесконтактная мойка является самым популярным способом очистки кузова и агрегатов автомобиля, поскольку не повреждает лакокрасочное покрытие автомобиля. МП «Водоканал» будет иметь современную моечную камеру, которая позволит обслуживать автомобили длинной до 12 метров и высотой до 6 метров, а также будет подобрано современное оборудование.
Глава 2. Проектная часть
2.1 Анализ автомоечных комплексов
Автомойка - устройство для мытья автомобилей, а также предприятие, осуществляющее мойку автомобилей и оказывающее сопутствующие услуги (чистку салона автомобиля и т. п.). Имеются мойки самообслуживания, как правило автоматические, а также мойки, где операции с автомобилем осуществляются обслуживающим персоналом. В связи со значительным объёмом расходуемых моющих средств автомойки являются потенциальными загрязнителями окружающей среды. В связи с этим, как правило, государственные органы требуют оснащать автомоечные комплексы системами регенерации и очистки воды.
Выбор способа мойки осуществляют на основе таких технических характеристик, как максимальное давление воды на выходе (в атмосферах или барах), максимальный поток воды или ее потребление в единицу времени (л/ч или л/мин), максимальная температура воды на входе, максимальная температура воды на выходе (для моек с автономным подогревом), потребляемая мощность, габаритные размеры и масса. Для мойки грузовых автомобилей в большинстве случаев достаточно давления 150-200 Бар при расходе воды 450-900 л/ч. Большее давление может привести к повреждению лакокрасочного покрытия автомобиля и внешних деталей, а также узлов и частей двигателя. Поэтому на предприятии автосервиса нет смысла использовать мойки, имеющие давление 200 Бар и выше. Применение аксессуаров для ручных моек высокого давления значительно сокращает время мойки автомобиля, что немаловажно с коммерческой точки зрения [2].
Виды автомоек:
Бесконтактная мойка (при помывке не используются всякого рода тряпки, губки) все шире распространяется в последнее время. На первом этапе производят очистку поверхностей автомобиля от крупных загрязнений струей воды высокого давления; на втором этапе с помощью специального аппарата низкого давления пеногенератора - наносят химический состав на поверхности кузова, который за 3-5 мин растворяет химические отложения и грязь.
Рисунок 2- Бесконтактная мойка
Автоматические щеточные мойки осуществляют нанесение моющих средств, мойку кузова с помощью щеток и струй воды, мойку днища и колес, нанесение защитных полимерных покрытий. Щетина современных щеток представляет собой ворс из очень тонких переплетенных волокон, на конце каждого из которых - мягкий и густой «веер» (около 1 см), что гарантирует сохранность лакокрасочного покрытия от повреждений.
Рисунок 3- Автоматическая щеточная мойка
Автомобильная портальная мойка автоматическая установка, похожая на арку, которая движется вдоль автомобиля, пока он стоит, и удаляет с него грязь. Различают контактные и бесконтактные портальные мойки. В бесконтактных портальных мойках не используются вращающиеся щетки, вместо этого, установлены аппараты высокого давления. Основным плюсом портальной мойки является скорость мойки. Также меньшие издержки на персонал и воду, по сравнению с ручной мойкой. В некоторых порталах возможно мыть машины различного размера от фур до легкового авто.
Рисунок 4- Автомобильная портальная мойка
Туннельная автомойка это конвейер, в котором установлены несколько неподвижных арок, каждая из которых выполняет свою функцию: наносит моющие вещества, смахивает грязь, моет, сушит и т. д. Первые автоматические мойки конвеерного типа появились в 30-х годах XX века. К плюсам туннельной мойки можно отнести высокую скорость, даже по сравнению с портальной мойкой, так как на конвейере может находиться сразу несколько автомобилей.

Рисунок 5 -Туннельная автомойка
Мойка самообслуживания в Европе довольно широко распространены мойки самообслуживания. Обычно программа мойки включает такие функции как нанесение активной пены, мойка высоким давлением, нанесение жидкого воска и др. Зачастую посетителям предлагается воспользоваться пылесосом. Многие мойки самообслуживания способны функционировать при отрицательной температуре окружающей среды. Незамерзание воды в системе осуществляется благодаря следующим решениям: постоянный небольшой отток воды из пистолета высокого давления, продувка системы сжатым воздухом после завершения цикла мойки.

Рисунок 6 - Мойка самообслуживания
Мойка паром последние годы для мойки автомобильного кузова и чистки салона стал использоваться пар (парогенератор). Высокая температура и давление профессионального оборудования позволяет отказаться от поверхностно-активных веществ, и в несколько раз снизить расход воды при превращении воды в пар объём увеличивается в 1673 раза. Сухой пар очищает салон от пятен, удаляет неприятные запахи и не требует продолжительного времени на высыхание салона.
Данный тип моек использует преимущественно ручной труд и позволяет существенно снизить негативное влияние на окружающую среду из-за отсутствия ПАВ и малого потребления воды, иногда их называют «эконом мойками» экологичными мойками.

Рисунок 7 -Мойка паром
Механизированная мойка автомобилей осуществляется с помощью специальных установок, которые по своему устройству и условиям применения классифицируются:
- по конструкции рабочего органа установки - на струйные, щеточные и струйно-щеточные;
- по относительному перемещению автомобиля и рабочих органов установки - на проездные и подвижные;
- по условию применения - на стационарные и передвижные;
- по способу управления - на установки с ручным управлением и автоматические.
В струйной моечной установке в качестве рабочего органа используются сопла или форсунки, установленные в неподвижных или подвижных трубопроводах-коллекторах, по которым подается вода или моющий раствор. Основное их назначение мойка грузовых автомобилей. При использовании моющих растворов они применяются и для мойки легковых автомобилей.
В щеточной моечной установке рабочим органом являются цилиндрические вращающиеся ротационные щетки с подводом к ним воды или моющего раствора.
Струйно-щеточные установки имеют в качестве рабочего органа комбинированное устройство из щеток, а также сопла, по которым подается вода или моющий раствор.
Используются для мойки автобусов, легковых автомобилей и грузовых автомобилей-фургонов.
Проездные моечные установки представляют собой стационарные устройства, через которые с помощью конвейера или самоходом перемещается обрабатываемый автомобиль.
Подвижные моечные установки - это устройства с рабочими органами, перемещающимися относительно неподвижного автомобиля.
Стационарные моечные установки - устройства, устанавливаемые фундаментально на моечном посту передвижные моечные установки представляют собой самоходные установки, смонтированные на шасси автомобиля и используемые для мойки подвижного состава автомобильного транспорта, работающего в отрыве от основной базы.
Автоматические моечные установки приводятся в действие либо при наезде колеса автомобиля на педаль, встроенную в пол, либо с помощью фотоэлемента, при пересечении автомобилем светового луча, либо при опускании монеты в кассовый аппарат. Наконец, существуют моечные установки с программным управлением.
Моечные комбинированные установки сочетают в себе устройства для струйной мойки низа шасси и механизированной щеточной установки для обмывания наружных частей кузова.
Механизация процесса мойки автомобиля значительно сокращает затрачиваемое на нее время, которое составляет 1,5-3 минуты вместо 10-20 минут при ручной мойке (в зависимости от типа автомобиля), а также расход воды. Технико-экономические расчеты показывают, что экономия от снижения суммы годовых расходов при механизации процесса мойки по сравнению с ручным способом относительно невелика. Так, для парка грузовых автомобилей и автобусов она составляет 1-3%. Более значительная экономия (25-30%) получается для парка легковых автомобилей. Это объясняется меньшими по сравнению с мойкой грузовых автомобилей расходами воды (в 2-4 раза) и электроэнергии (на привод механизмов моечной установки), а следовательно, и денежными затратами на них. Помимо экономической эффективности, механизация мойки автомобиля позволяет освободить мойщиков от тяжелого физического труда и улучшает качество мойки.
Сушка - завершающий этап мойки автомобиля. На поверхность машины наносится специальный воск, вакса, образующие тонкую водоотталкивающую пленку. Это позволяет собирать воду в крупные капли. Мощный поток воздуха из вентиляторов сдувает капли воды с поверхности автомобиля [2].
2.2 Подбор оборудования
Для автомоечного комплекса предприятия МП «Водоканал» была выбрана бесконтактная мойка и подобранно современное оборудование.
Очистные сооружения УКО-5, пришли на смену устаревшим установкам УКО-5П. Новые сооружения УКО-5 (теперь без индекса «п») разработаны специально для улучшенной очистки воды. Очистные системы оборотного цикла УКО-5 предназначены для очистки воды автомоек легкового, грузового автотранспорта, строительной техники и даже танков и бронетранспортеров. Данные установки претерпели значительные конструктивные изменения. Теперь они имеют дополнительный фильтр и состоят из трех отдельных блоков.

Рисунок 8- Общий вид очистных сооружений УКО-5
Параметры очистных сооружений УКО-5 приведены в таблице 9.
Таблица 9- Параметры очистных сооружений УКО-5
|
Параметр |
Значение |
|
Производительность установки по очищаемой воде (м3/ч) |
5,0 |
|
Установленная электрическая мощность (кВт) |
3,5 |
|
Рабочее давление водовоздушной смеси (МПа) |
0,15-0,2 |
|
Минимальный объем приямка (м3/ч) |
13 |
|
Минимальный уровень воды в приямке от нижнего края установки (м) |
-1,5 |
|
Габаритные размеры (мм) |
|
|
длина |
4300 |
|
ширина |
1000 |
|
высота |
2200 |
|
Масса установки (кг) |
|
|
сухая |
3000 |
|
залитая |
7000 |
|
Напряжение (В) |
380 |
|
Диапазон рабочих температур, С |
+1…+40 |
|
Частота тока в электросети, Гц |
50 |
Устройство очистных сооружений УКО-5 представлено на рисунке 9.
Рисунок 9- Устройство очистных сооружений УКО-5
Принцип работы УКО-5
Сточные воды из приямка забираются в установку УКО погружным насосом. В УКО-5 происходит последовательная фильтрация, которая делится на три стадии:
Стадия 1 - флотация в сатураторе происходит нагнетание давления и насыщение воздуха мелкими пузырьками. После чего вода, наполненная воздухом, поступает во флотационный отсек, где происходит выделение нефтепродуктов из воды при помощи пузырьков. После этого весь нефтешлам выбрасывается из УКО-5 по шламоотводу в отдельную емкость (шламосборник). Выделившийся при флотации нефтешлам накапливается в шламосборнике. При заполнении шламосборника, нефтешлам сливается в герметичную емкость, а затем сдается на переработку.
Стадия 2 механический фильтр 1- ступени. После флотации, вода, очищенная от нефтепродуктов, поступает во второй отсек с механическим фильтром, где происходит очистка от механических примесей.
Стадия 3 механический фильтр 2-й ступени. После очистки воды в механическом фильтре 1 ступени вода перетекает в последний резервуар, в котором имеется механический фильтр 2-й ступени и резервуар для чистой воды. Из резервуара с чистой водой происходит забор воды на аппарат высокого давления.[3]
Автоматическая промывочная установка АПУ 1400

Рисунок 10- Общий вид автоматической промывочной установки АПУ 1400
АПУ-1400 Автоматическая мойка для деталей с диаметром рабочего пространства 1400 мм подходит для промывки крупногабаритных и тяжелых деталей. Хорошо отмывает нагар, нефтешлам, мовиль, антикор и т.д [4].
Технические характеристики установки для мойки агрегатов М216Е2 представлены в таблице 10.
Таблица 10- Технические характеристики автоматической промывочной установки АПУ 1400
|
Характеристика |
АПУ1400 |
|
Длина без подставки пода, мм |
1800 |
|
Длина с подставкой пода, мм |
3250 |
|
Ширина, мм |
1600 |
|
Высота max со шторой, мм |
2350 |
|
Высота max с подъемным люком, мм |
3400 |
|
Диаметр моечного пространства, мм |
1400 |
|
Высота рабочего пространства, мм |
1000 |
|
Грузоподъемность корзины, кг при равномерном распределении |
1000 |
|
Объем моющего раствора, л |
800 |
|
Максимальная температура, С |
65 (80) |
|
Производительность насоса,м3/час |
25 |
|
Давление в системе, кг/см2 |
2,0-3,0 |
|
Мощность двигателя, кВт |
5,5 |
|
Мощность нагревателей, кВт |
6х4,0 |
|
Привод маслоотделителя |
0,18 |
|
Напряжение питания |
~380В 50Гц |
|
Суммарная мощность, кВт |
30,1 |
|
Электрическая защита |
Заземление |
|
Масса, кг |
680 |
Аппарат высокого давления Karcher HDS 10/20-4 M *EU

Рисунок 11- Общий вид аппарата высокого давления с подогревом воды KarcherHDS 10/20-4 M *EU
Профессиональный аппарат высокого давления с нагревом воды. Эта модель среднего класса предназначена для длительной непрерывной работы связанной с мойкой технологического оборудования, автотранспорта, узлов и деталей машин и оборудования, фасадов зданий и проч. Аппарат оснащен мощным аксиальным трехпоршневым насосом с непосредственным приводом от низкооборотного 4-х-полюсного электродвигателя. Износостойкие стальные поршни с керамическим покрытием в зоне трения. Водонагреватель проточного типа с дизельной горелкой с автоматическим поддержанием температуры воды на выходе на заданном уровне. Встроенный инжектор для подачи двух видов моющего средства в режиме высокого давления.
Водонагреватель имеет режим «Эко» для автоматического поддержания температуры воды на выходе 60°С, что обеспечивает наиболее экономичный режим работы горелки при сохранении высокого эффективности очистки с помощью горячей воды. Система управления 24В, управляемая 2-мя датчиками полная остановка электромотора при перерывах в работе, датчик температуры воды и выходных газов, датчики наличия смягчителя воды и топлива, датчик контроля потока воды.
Усовершенствованное шасси для повышения мобильности имеет два поворотных колеса.
Все органы управления и индикаторы работы собраны на единой эргономичной приборной панели. Удобный доступ с одной стороны ко всем органам обслуживания панели управления, заливным горловинам топливного бака, баков для химического средства и резервуара для ингибитора накипи. В стандартную комплектацию входят:
-пистолет Easy Press;
-пистолет с мягкой накладкой;
-шланг высокого давления долговечный (Long Life), 10 м;
-струйная трубка 1050 мм;
-мощное сопло;
-регулятор Servo Control [5].
Характеристика аппарата высокого давления представлена в таблице 11.
Таблица 11- Характеристика аппарата высокого давления с подогревом воды Karcher HDS 10/20-4 M *EU
|
Давление, Бар |
30-200 |
|
Производительность, л/ч |
1000 |
|
Макс. температура пара/воды на выходе |
155/88 |
|
Бак для чистящего средства |
20+10 л |
|
Длина шланга |
10 |
|
Потребляемая мощность, кВт |
7,8 |
|
Источник питания (~/В/Гц) |
3/400/50 |
|
Размеры (Д*Ш*В) мм |
1330*750*1060 |
|
Масса, кг |
186 |
|
Источник энергии |
Электросеть+ДТ |
|
Расход топлива |
4,8кг/час |
|
Объем топливного бака |
25 л |
ПеногенераторPortotecnica SCO 50

Рисунок 12- Общий вид пеногенератора Portotecnica SCO 5
Portotecnica SCO 50 пеногенератор, предназначенный для бесконтактной мойки и дезинфекции промышленных и производственных площадей, а также автомобилей. Активная пена наносится на обрабатываемую поверхность, проникая даже в труднодоступные места, обеспечивая большую эффективность работ. Корпус пеногенератора выполнен из окрашенной стали. Подачу воздуха и плотность пены можно регулировать.
Технические характеристики:
- максимальное давление 8 бар;
- материал бака окрашенный металл;
- объем 50 л;
- рабочая температура от +5 до +60 С;
- габариты (ДхШхВ) 400x440x1070 мм;
- высота 107 см;
- масса аппарата 24 кг;
- страна-производитель Италия [6].
Пылесос Karcher SE 5.100

Рисунок 13- Общий вид пылесоса Karcher SE 5.100
Karcher SE 5.100 моющий пылесос с улучшенной системой управления.
Предназначен для чистки ковров, мягкой мебели, матрасов, автомобильных сидений и прочих текстильных поверхностей.
Раствор моющего средства подается под давлением и сразу же собирается вместе с грязью. Таким образом удаляются не только загрязнения, но и неприятные запахи. Прозрачный съемный бак для чистой воды позволяет заполнять и опорожнять пылесос легко и быстро, а также постоянно контролировать уровень жидкости. Регулировка силы всасывания производится вручную. При заполнении бака для грязной воды аппарат автоматически отключается.
Все стандартные насадки располагаются в специальном отсеке для принадлежностей. Для электрического кабеля предусмотрен специальный крючок.
Комплектация Karcher SE 5.100:
- всасывающий шланг с подводкой воды, 2 м/35 мм;;
- удлинительные трубки, 2 шт, 0,5 м/35 мм, пластмасса
- моющая насадка с накладкой для твердых поверхностей;
- насадка для пола;
- щелевая насадка;
- насадка для мягкой мебели;
- чистящее средство RM 519;
- плоский гофрированный фильтр;
- бумажный фильтр-пакет, 1 шт;
- Салфетки для мойки стекол [7].
Компрессор с ременным приводом горизонтальный RemezaСБ 4/С-50.LB30 3,0 кВт

Рисунок 14- Компрессор с ременным приводом горизонтальный Remeza СБ 4/С-50.LB30 3,0 кВт
Технические характеристики:
- Объем ресивера: 50л;
- Габариты: 850*400*771;
- Вес: 77 кг;
- Производительность: 500 л / мин;
- Рабочее давление: 10 Атм;
- Мощность: 3 кВт;
- Напряжение: 380 В;
- Выход: 1/4 дюйма [8].
2.3 Выбор места и планировочного решения участка мойки автомобилей
Для расположения автомоечного комплекса планируется строительство отдельного производственного здания на пересечении улиц Рознина и Обской на территории автотранспортного цеха МП «Водоканал». Общая площадь производственного здания составит 337,5 м2. В здании предусмотрено расположение трех участков: автомоечного комплекса, окрасочного участка и сушильной камеры. Площадь участка под автомоечный комплекс составит 112,5 м2, высота около 6,5 метров, что вполне достаточно для небольшой и вместительной автомойки. Далее представлена планировка производственного здания на рисунке 15 и экспликация помещений в таблице 12.

Рисунок 15- Планировка производственного здания
Планировка производственного здания представлена в Приложение 2.
Таблица 12- Экспликация помещений
|
№ |
Помещение |
Площадь, м2 |
|
1 |
Сушильная камера |
112,5 |
|
2 |
Окрасочный участок |
112,5 |
|
3 |
Автомоечный комплекс |
112,5 |
В состав автомоечного комплекса будет входить:
1. Система очистки воды с организацией системы оборотного водоснабжения
2. Аппарат высокого давления
3. Автоматическая промывочная установка
4. Пылесос
4. Пеногенератор
5. Компрессор
Так же на участке будет располагаться подсобное помещение для хранения инвентаря и других необходимых принадлежностей, комната персонала, комната для ожидания и санузел. Далее рассчитаем площадь участка.
Площадь участка рассчитывается по формуле:
Sуч = Sоб*kоб=25*4,5=112,5м2,
где Sуч - площадь участка;
Sоб - площадь занимаемая оборудованием;
kоб - коэффициент расстановки оборудования.
2.4 Проектное решение по организации участка автомойки
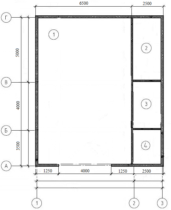
Участок автомоечного комплекса общей площадью 112,5 м2 включает в себя: бокс для мойки автомобилей 81,25 м2, очистные сооружения 12,5 м2, помещение для оборудования 8,75 м2, помещение для мойки агрегатов 10 м2. Разработанное планировочное решение автомоечного комплекса представлено на рисунке 16 и экспликация помещений в таблице 13.

Рисунок 16- Планировка автомоечного комплекса
Таблица 13- Экспликация помещений
|
№ |
Помещение |
Площадь, м2 |
|
1 |
Моечный бокс |
81,25 |
|
2 |
Очистные сооружения |
12,5 |
|
3 |
Помещение для мойки агрегатов |
10 |
|
4 |
Помещение для оборудования |
8,75 |
2.5 Технология выполнения моечных работ и обслуживание автомоечного комплекса
Объем и содержание уборочно-моечных работ (далее УМР) определяются загрязненностью автомобилей. Степень загрязненности зависит от того, по каким дорогам с твердым покрытием или грунтовым осуществлялись перевозки, в сухую или сырую погоду, в какой климатической зоне, в летнее или зимнее время. Периодической мойки или уборки требуют все наружные (верхние, боковые, нижние) поверхности автомобиля, а также поверхности в моторном отсеке или подкапотном пространстве, внутри кузова автомобиля. Технологически УМР проводятся в следующей последовательности: убирают кабину и салон транспортного средства; моют автомобиль снаружи (верхние и боковые поверхности); обсушивают автомобиль или протирают стекла всей наружной осветительной и сигнализационной аппаратуры, зеркала заднего вида, стекла кабины и кузова, номерные знаки. Низ автомобиля и подкапотное пространство (моторный отсек) моют по потребности и при каждой постановке автомобиля на ТО и в соответствующий ремонт. Убирают и обтирают автомобиль вручную с применением самых простейших средств (щетки, скребки, обтирочный материал), пыль с обивки кабины и салона, сидений и их спинок удаляют пылесосами различной конструкции: передвижными и переносными в кабинах грузовых и кузовах легковых автомобилей. Загрязненные поверхности моют и чистят с использованием специальных препаратов, например жидкостью «Очиститель-1 обивки», предназначенной для мойки синтетических заменителей кож и пластмассовых деталей. При выполнении мойки лакокрасочных покрытий наружных поверхностей кузовов автобусов, автофургонов, легковых автомобилей и кабин всех грузовых автомобилей следует знать, что загрязнения образуются из нескольких слоев. Верхний слой составляют частицы силикатов, смешанные с органическими веществами. Второй слой состоит из органических, жировых загрязнений, включающих продукты износа асфальтового покрытия дорог, частицы отработавших газов автомобилей, осадки из атмосферы. Третий слой образуют окисленные полирующие препараты. Четвертый слой составляют частично разрушенные лакокрасочные покрытия, остатки пигментов и частицы, выделившиеся из синтетических смол. Слои частично перемешаны и могут образовывать пленки. Смывание загрязнений струей холодной воды с полированных лакокрасочных поверхностей не обеспечивает полного снятия даже первого слоя. Всегда остаются мелкие до 30 мкм частицы пыли, которые удерживаются в тонкой водяной пленке и при высыхании образуют осадок в виде матовых пятен. Это объясняется образованием при мойке на поверхности тончайшего пограничного практически неподвижного слоя воды, который не дает струе воды удалять загрязнения. Такую водяную пленку в процессе мойки можно разрушить только механическим воздействием, например щеткой. Нижние слои загрязнений водой не смываются, поэтому применяют различные моющие средства. Моющие растворы уменьшают силу поверхностного натяжения водяной пленки, образующейся на обмываемой поверхности, и растворяют маслянистые отложения, дают эмульсии и суспензии, которые легко смываются. Эти процессы ускоряются при повышении температуры, поэтому моющие растворы целесообразно подогревать до 40-45°С, но для сохранности лакокрасочных покрытий температура раствора не должна превышать температуру поверхности кузова более чем на 18-20 °С. Сегодня, широко применяются моющие средства «Прогресс», МЛ-72 и различные шампуни. Шампуни частично смывают третий и четвертый слой загрязнений, разрушая одновременно защитную жировую или восковую пленку полировочного средства. Поэтому в моющие средства включают ингибиторы коррозии и полирующие препараты или после мойки кузов ополаскивают растворами с этими препаратами.
Восстановление защитной консервирующей пленки на лакокрасочных поверхностях автомобиля включает в себя снятие старой пленки с помощью различных деконсервантов и шлифовальной пасты, а затем консервацию поверхности одним из полирующих препаратов (полироль, воск, автобальзам). Для защиты от коррозии внутренние поверхности (пороги, лонжероны и т. п.) и днища кузовов автобусов и легковых автомобилей покрывают периодически восстанавливаемыми защитными препаратами, например консервантом порогов «Мовиль», мастикой битумной антикоррозийной, антикором эпоксидным для днища. Полировка и антикоррозийная обработка кузовов являются трудоемкими работами, выполняемыми с большой периодичностью, поэтому их целесообразно организовывать в малярных отделениях, но при ЕО необходимо контролировать состояние поверхностей после мойки. В соответствии с процессами разрушения загрязнений на наружных поверхностях автомобиля разработана общая технология моечных работ. Автомобиль смачивают распыленной струей воды низкого давления с добавлением моющего раствора. Механическое разрушение пленок загрязнений осуществляют струями воды высокого давления и щетками или другими аналогичными средствами. Моечные растворы и воду предварительно подогревают. Затем автомобиль ополаскивают и потоком воздуха сдувают влагу с наружных поверхностей, сушат. Такая технология обеспечивает высокое качество моечных работ и минимальный расход воды. Однако применение щеток на неровных поверхностях затруднено, поэтому нижние и внутренние поверхности всех автомобилей, а также кабины и кузова большинства грузовых автомобилей моют только струями воды высокого давления.
Мойка с помощью щеток нашла широкое применение для автобусов, легковых автомобилей и внедряется для специализированных грузовых автомобилей (фургонов, цистерн).Мойку наружных частей кузова и шасси автомобиля производят холодной или теплой (25-30 °С) водой. Чтобы не вызвать разрушения окраски кузова, разница между температурой воды и обмываемой поверхностью не должна превышать 18-20 °С. При смывании струей воды слабосвязанных пылевидных и плотных загрязнений на полированных поверхностях кузова остаются мелкие (до 30 мкм) частицы пыли, которые удерживаются в тонкой водяной пленке и при ее высыхании оставляют на поверхности кузова матовый серый налет. Это объясняется тем, что от места удара водяной струи о поверхность кузова вода движется в радиальном направлении, а между этим потоком и поверхностью кузова образуется тонкий пограничный слой в виде пленки (в несколько десятков микрометров), в котором скорость воды очень мала, а следовательно, и эффективность водяной струи резко снижается.
Загрязнения грузовых автомобилей содержат частицы пыли и грязи с дороги и из атмосферы. Особенностью загрязнения нижних поверхностей кузовов, а также узлов, агрегатов и их сочленений, обращенных к поверхности дороги и размещенных в моторном отсеке, является содержание продуктов нефтяного происхождения (битум, топливо, масло).
По автобусам, например, где уборка салона и кабины составляет 65% трудоемкости УMP, для новых моделей рекомендуется применять типы покрытия пола и способы его крепления, обеспечивающие возможность шланговой мойки салона. Вместо протирки двигателя и очистки подкапотного пространства внедряется шланговая мойка после предварительного смачивания загрязненных поверхностей 4% -ым водным раствором порошкообразных составов «Трак-торин», «Автотурист» или аэрозолю «Очиститель двигателя».
2.5.1 Обслуживание очистных сооружений УКО-5
Промывание фильтра механической очистки. Фильтр механической очистки требуется промывать один раз в месяц. Промывание нужно проводить после окончания рабочей смены. Для этого нужно открыть сливные пробки в нижней части установки. Фильтр нужно промывать чистой водой из шланга или из бака чистой воды в течение 5-10 минут до осветления вытекающей воды. При этом сливать воду из установки и разъединять резьбовые соединения не требуется.
Удаление неприятного запаха из очистного сооружения УКО. При возникновении неприятного запаха из приямка в воду следует добавить 50%-ную перекись водорода из расчета 150-200 мл на 1 м3 воды.
Необходимо организовать регулярную утилизацию отходов из приямка и из шламосборника.
2.5.2 Обслуживание пеногенераторов
В ходе процедуры технического обслуживания пеногенератора выполняются следующие действия. Прежде всего, необходимо каждый день проводить очистку оборудования, удалять грязь с рабочей поверхности, проверять надежность креплений и рабочих механизмов, наличие утечек. Также следует закрыть вентиль подачи пенообразователя и провести продувку трубок. Один раз в неделю рекомендуется осуществлять проверку узлов оборудования, промывать пенообразующие трубки, входные фильтры и рабочие емкости. Раз в три месяца рекомендуется разбирать и тщательно очищать устройство, обеспечить высокую плотность соединений. Для очистки воздушной форсунки необходимо последовательно снять хомут крепления и воздушный шланг, а затем вынуть и очистить форсунку.
2.5.3 Обслуживание аппаратов высокого давления
Профилактические мероприятия, регламентированные эксплуатационной документацией, не сложны. В части насосов высокого давления они предусматривают контроль состояния и периодическую замену масла в механизме привода плунжеров, осмотр насоса на наличие течей воды.
Большинство производителей рекомендуют менять масло в начале эксплуатации - через 200 моточасов работы, далее - через каждые 500 моточасов, безусловно, если его замена предусмотрена. Для ориентировки можно принять регулярность замены - один раз в полгода при проходимости моечного участка - 30-40 машин в день.
Рекомендуется применять фирменное масло указанной в инструкции марки. Имейте в виду, что для различных моделей аппаратов одной фирмы могут использоваться различные марки масел. Так, для моек Karcher с приводом от однофазного двигателя рекомендуется фирменное масло с классом вязкости SAE 15W40, аналогичное моторному, в то время, как для аппаратов с трехфазным приводом - масло SAE 90, по вязкости близкое к трансмиссионному. В аппаратах WAP Alto бытовой гаммы рекомендуют применять минеральное моторное масло класса 15W40, а в профессиональных - MobilGear 630.
Для АВД с нагревом, помимо обслуживания насоса, необходимо регулярно проводить профилактику бойлера - очищать топливный фильтр, удалять накипь с внутренних поверхностей теплообменника и нагар снаружи. Первые две операции при соответствующей квалификации персонала можно выполнить собственными силами. Для удаления накипи можно приобрести в сервисных службах специальные препараты. Очистку бойлера от нагара лучше поручить ремонтникам, так как она сопряжена с полной разборкой бойлера и последующей регулировкой топливной системы с замером дымности и температуры выхлопных газов.
В аппаратах с нагревом нужно использовать качественное дизельное топливо, которое перед заправкой следует в течение суток отстаивать в емкости, сливая для работы отстоявшуюся часть. Не допускается подмешивание в солярку керосина, бензина и других ЛВЖ. Раз в год топливный бак нужно очищать. На профилактику АВД без нагрева уходит около 0,5 часа, с нагревом - до трех часов.
Гидравлические рукава высокого давления (шланги высокого давления) представляют собой гибкие шланги, используемые для подачи различных жидкостей, газов под высоким давлением. Конструктивно шланги высокого давления представляют собой: внутренний герметизирующий резиновый слой, на который сверху одет силовой каркас (металлическая, текстильная или иная оплетка), и наружный резиновый слой. Силовой каркас предохраняет внутренний слой от разрывов, в результате действия высокого давления. Наружный слой предохраняет силовой каркас от воздействия внешних условий и истирания.
Для того чтобы шланги высокого давления прослужили дольше, необходимо следовать простым советам:
- не перегибать и не передавливать шланг;
- не переезжать его автомобилем и не наступать на него;
-чтобы уберечь от истирания оплетки - использовать кронштейны или надеть на него простой поливочный шланг;
- пользоваться услугами профессионалов по ремонту шлангов высокого давления.
Ремонт шлангов высокого давления представляет собой прессовку порвавшегося шланга на концах (нового конечного фитинга), а так же перепрессовка ШВД при разрыве, в этом случае делается вставка специального ремонтного фитинга и его последующая запрессовка.
3. Экономическая часть
3.1 Расчет баланса рабочего времени
Баланс рабочего времени составляется по предприятию, цеху, участку, иногда даже по группе рабочих, имеющих одинаковый график работы и одну и ту же продолжительность.
Таблица 14 - Затраты времени
|
№ |
Затраты времени |
Дни |
% |
|
1 |
2 |
3 |
|
|
1 |
Календарные дни |
365 |
100 |
|
2 |
Выходные и праздничные дни |
118 |
18,1 |
|
3 |
Рабочие дни на 2014 г. |
247 |
81,9 |
Полезный фонд рабочего времени в год составит на одного рабочего: 2478 = 1976 часов. В автомоечном комплексе работает 2 человека:19762=3952 часов. (1)
3.2 Расчет стоимости оборудования
Затраты на приобретение оборудования для участка мойки автомобилей рассчитываются по следующей формуле:
N=Cоб+Си+Nмт, (2)
где Cоб - затраты на приобретение нового оборудования;
Си - стоимость инвентаря;
Nмт - затраты на монтаж и транспортировку нового оборудования.
Калькуляция затрат на приобретение нового оборудования приведена в таблице.15
Таблица 15- Стоимость нового оборудования
|
№ |
Оборудование |
Марка |
Количество |
Цена за ед, руб. |
Сумма, руб. |
|
1 |
2 |
3 |
4 |
5 |
6 |
|
1 |
Аппарат высокого давления |
Karcher HDS 10/20-4 M *EU |
2 |
133 000,00 |
266 000,00 |
|
2 |
Установка для мойки агрегатов |
М216Е2 |
1 |
540 000 |
540 000 |
|
3 |
Моющий пылесос |
Пылесос Karcher SE 5.100 |
1 |
18 000,00 |
18 000,00 |
|
4 |
Установка очистки воды |
Системы очистки воды " УКО-5" |
1 |
300 000,0 |
300 000,00 |
|
5 |
Пеногенератор |
Пеногенератор Portotecnica SCO 50 |
1 |
16 000,00 |
16 000,00 |
|
6 |
Компрессор |
Компрессор с ременным приводом горизонтальный Remeza СБ 4/С-50.LB30 3,0 кВт |
1 |
24 000,00 |
24 000,00 |
|
Итого |
7 |
1 164 000,00 |
Затраты на транспортировку оборудования будут составлять 15% от общей суммы стоимости оборудования равняется:
Nт= 1 164 000*15/100= 174 600 руб. (3)
Монтаж и установка оборудования составят 10% от общей суммы и транспортировки оборудования равняется:
Nм= 1 338 600*10/100= 133 860руб. (4)
Расчёт на строительство здания не производим, так как объект находится в готовом новом здании.
Тогда затраты на приобретение нового оборудования составят:
N=1 178 000+174 600 +133 860=1 472 460 руб. (5)
3.3 Расчет амортизации оборудования
Амортизация оборудования:
А=Сбал*Na/100, (6)
где Сбал - балансовая стоимость оборудования, руб.;
Na - норма амортизации, %.
Расчет амортизации оборудования участка мойки автомобилей и спецтехники приведен в таблице 16.
Таблица 16- Расчет амортизационных отчислений
|
№ |
Наименование оборудования |
Количество |
Стоимость |
Общая стоимость |
Na, % |
Амортизация в год, руб. |
|
1 |
2 |
3 |
4 |
5 |
6 |
7 |
|
1 |
Аппарат высокого давления |
2 |
133 000,00 |
266 000,00 |
9 |
23 940,00 |
|
2 |
Установка для мойки агрегатов М216Е2 |
1 |
540 000 |
540 000 |
10 |
54 000,00 |
|
3 |
Моющий пылесос |
1 |
18 000,00 |
18 000,00 |
8 |
1 440,00 |
|
4 |
Установка очистки воды |
1 |
300 000,00 |
300 000,00 |
10 |
30 000,00 |
|
5 |
Пеногенератор |
1 |
16 000,00 |
16 000,00 |
8 |
1 280,00 |
|
6 |
Компрессор |
1 |
24 000,00 |
24 000,00 |
8 |
1 920,00 |
|
Итого |
112 580,00 |
3.4 Расчет затрат на оплату труда
На участке автомоечного комплекса будет работать 2 человека. Рабочий день будет составлять 8 часов по трудовому законодательству. В среднем норма рабочего времени в месяц составляет 22 рабочих дня.
Постоянная повременная система заработной платы работников в автомоечном комплексе определяется по часовой тарифной ставке и обратному времени или по видам работ исходя из трудовой тарифной ставки.
Расчет заработной платы рабочих производим по формуле:
, руб, (7)
где Ч.Т.С Часовая тарифная ставка, в зависимости от специальности рабочего, (руб).
- Эффективный месячный фонд рабочего времени, (час).
(8)
После расчета заработной платы рассчитываем все виды доплат: процент доплаты за вредность 4%; районный коэффициент 50%; северная надбавка 50%,
Заработная плата с учетом коэффициента за вредность рассчитывается:
Зар.плата= 10 032-4%= 401,3 руб. (9)
Заработная плата с учетом северной надбавки рассчитывается:
Зар.плата = 10 032-50%= 5 016 руб. (10)
Заработная плата с учетом районного коэффициента рассчитывается:
Зар.плата =10 032-50%= 5 016 руб. (11)
Заработная плата с учетом всех надбавок рассчитывается:
Зобщ= 10 032+401,3+5 016+5 016=20 465,3 руб. (12)
Размер выплат по ЕСН составляет 30% от заработной платы:
ЕСН=Зобщ-30%,руб.
ЕСН= 20 465,3-30%=6 139,6 руб. (13)
Штатное расписание (форма Т-3) приведено в приложении № 3.
3.5 Расчет годовых затрат на электроэнергию, отопление помещения и водоснабжение
Расчет электроэнергии
Годовой расход электроэнергии на освещение, рассчитывается по формуле:
, (14)
где 25 расход осветительной энергии на 1 , Вт;
S площадь проектируемого объекта;
- число часов искусственного освещения в год.
, кВт/час.
Тогда годовые затраты на освещение: 5557,5*2,23=12 393,2 руб. (15)
Годовой расход электроэнергии на оборудование рассчитывается по формуле:
Рэн=Фоб·W, (16)
где Фоб действительный годовой фонд рабочего времени оборудования;
W - мощность оборудования.
Расчет суммарного годового расхода электроэнергии на оборудование участка мойки автомобилей и спецтехники приведен в таблице 17.
Таблица 17 - Расчет суммарного годового расхода электроэнергии на оборудование автомоечного комплекса
|
№ |
Наименование оборудования |
Мощность, кВт |
Фоб |
Расход электроэнергии, кВт·час |
|
1 |
2 |
3 |
4 |
5 |
|
1 |
Очистные сооружения УКО-5 |
3,5 |
1976 |
6 916 |
|
2 |
Автоматическая промывочная установка АПУ 1400 |
30,1 |
1100 |
33 110 |
|
3 |
Аппарат высокого давления Karcher HDS 10/20-4 M *EU |
7,8 |
1400 |
10 920 |
|
4 |
Пеногенератор Portotecnica SCO 50 |
3,0 |
1000 |
3 000 |
|
5 |
Пылесос Karcher SE 5.100 |
1,4 |
1000 |
1 400 |
|
6 |
Компрессор Remeza СБ 4/С-50.LB30 |
3,0 |
1300 |
3 900 |
|
Итого |
59 246 |
Сумма годовых затрат на электроэнергию для оборудования: 59246*2,23=132 118,6 руб. (16)
Общая сумма затрат на электроэнергию: 12 393,2+132 118,6.=144 511,8 руб. (17)
Затраты на отопление
Годовая сумма затрат на отопление рассчитывается по формуле:
Зот=S*T*Ц, (18)
где S - площадь отапливаемого помещения;
T - отопительный сезон, месяцев;
Ц - стоимость отопления в месяц, руб./м.
Площадь отапливаемого помещения будет равна: 12,5*9=112,5 м2. (19)
Отопительный сезон в среднем длится 8 месяцев.
Отопление подключено к теплосети, на основании договора. Стоимость отопления в месяц 35.06 руб./м.
Зот=112,5*8* 35,06 = 31554 руб. (20)
Затраты на водоснабжение
Для технических нужд и соблюдение гигиены подключаем холодную и горячую воду.
Стоимость холодной воды на человека 219 руб./мес., горячей воды 466 руб./мес. Так же в очистные сооружения каждый месяц будет заливаться по 1 куб.м воды. Стоимость 1 куб.м составляет 150 руб.
Затраты на водоснабжение приведены в таблице 18.
Таблица 18 - Затраты на водоснабжение
|
№ |
Наименование |
Количество |
Стоимость (в год), руб |
|
1 |
2 |
3 |
4 |
|
1 |
Холодная вода |
2 |
5 256 |
|
2 |
Горячая вода |
2 |
11194 |
|
3 |
Вода для очистных сооружений, куб.м |
12 |
1 800 |
|
Всего |
18 250 |
Годовые затраты на электроэнергию, отопление помещения и водоснабжение автомоечного комплекса в таблице 19.
Таблица 19 - Годовые затраты на электроэнергию, отопление помещения и водоснабжение автомоечного комплекса
|
№ |
Наименование затрат |
Руб. |
|
1 |
2 |
3 |
|
1 |
Затраты на электроэнергию |
144 511,8 |
|
2 |
Затраты на отопление помещения |
31 554 |
|
3 |
Затраты на водоснабжение |
18 250 |
|
Всего: |
194 315,8 |
3.6 Расчёт затрат на эксплуатационные материалы
Затраты на материалы рассчитываем по формуле:
Z=K*Ze , (21)
где К количество единиц, шт.;
Ze цена за единицу, руб.
Затраты на материалы приведены в таблице 20.
Приведенные эксплуатационные материалы подобраны для мойки автомобилей и спецтехники, принадлежащих МП "Водоканал", а также для мойки автомобилей при оказании коммерческих услуг.
Таблица 20Затраты на материалы
|
№ |
Наименование |
Количество |
Цена |
Общая стоимость |
|
1 |
Щетки |
50 |
300 |
15 000 |
|
2 |
Салфетки для сушки автомобиля |
100 |
250 |
25 000 |
|
3 |
Губки |
100 |
300 |
30 000 |
|
4 |
Ведра |
6 |
800 |
4 800 |
|
5 |
Автошампунь Karcher для бесконтактной мойки ( 0,5л) |
400 |
300 |
120 000 |
|
6 |
Воск автомобильный |
100 |
450 |
45 000 |
|
7 |
Средство для мойки двигателя |
100 |
220 |
22 000 |
|
8 |
Полироль панелей |
50 |
200 |
10 000 |
|
9 |
Средство для мойки стекол |
50 |
250 |
12 500 |
|
10 |
Средство для чернения резины |
100 |
300 |
30 000 |
|
11 |
Активная пена для бесконтактной мойки (5л) |
25 |
1 100 |
27 500 |
|
12 |
Сапоги |
5 |
500 |
2 500 |
|
13 |
Рабочая одежда |
10 |
3 000 |
30 000 |
|
14 |
Перчатки |
100 |
150 |
15 000 |
|
15 |
Средство личной гигиены |
150 |
100 |
15 000 |
|
16 |
Моющий раствор,л |
1000 |
200 |
200 000 |
|
Итого |
668 300 |
3.7 Расчет себестоимости услуг
Себестоимость - выраженные в денежной форме затраты предприятия на производство и реализацию продукции (работ, услуг). Себестоимость - это основной показатель предприятия, который является основой для ценообразования.
Себестоимость эксплуатационных расходов приведена в таблице 21.
Таблица 21 - Себестоимость эксплуатационных расходов.
|
№ |
Наименование затрат |
Стоимость, руб. |
Процент от стоимости, % |
|
1 |
2 |
3 |
4 |
|
1 |
Затраты на материалы |
668 300 |
41,4 |
|
2 |
Амортизация оборудования |
112 580 |
7,0 |
|
3 |
Фонд оплаты труда |
491 167,2 |
30,4 |
|
4 |
Отчисления ЕСН30% |
147 350,16 |
9,2 |
|
5 |
Электроэнергия, отопление и водоснабжение |
194 315,8 |
12,0 |
|
Итого |
1 613 943,32 |
100 |
Рабочих дней 247, количество обслуженных автомобилей 2717 , из них 988 принадлежат МП "Водоканал", расчет себестоимости производим по формуле:
С=Сп.з / 2717, (22)
где С- себестоимость, руб.;
Сп.з - сумма переменных годовых затрат, руб.
С =1 613 943,32/ 2717 = 594,01 руб.
594,01 руб - себестоимость мойки одного автомобиля.
Затраты на мойку автомобилей и спецтехники, принадлежащей предприятию: 988*594,01 =586 888,5 руб. Экономия от мойки автомобилей и специальной техники, принадлежащей МП "Водоканал", при средней цене на услугу 1900 руб., составляет 1 290 311,5 руб.
Участок будет обслуживать нужды «Водоканала» по себестоимости услуг, Для получения прибыли участок планируется обслуживание сторонних клиентов.
Цены на услуги мойки машин конкурентов варьируются как в зависимости от места расположения, так и по типам обслуживаемых автомобилей.
Для расчета возьмем среднюю стоимость мойки кузова (базовой услуги) 1700 рублей. При этом средняя цена одной мойки будет формироваться из стоимости базовой услуги и стоимости дополнительных услуг.
Примем, что средняя цена одной мойки автомобиля составит 1900 рублей.
3.8 Расчет экономической эффективности проекта
К услугам мойки автомобилей и спецтехники относятся:
1. Мойка кузова.
2. Полировка кузова.
3. Мойка двигателя.
4. Уборка, сухая и влажная.
5. Чистка салона.
Несмотря на то, что российский климат отличается непредсказуемостью, одной из главных характеристик автомоечного комплекса в г.Ханты-Мансийске является сезонность. Пик спроса приходится на весенний и осенне-зимний период, когда заполняемость автомоечных комплексов достигает максимального значения. Летний период, напротив, характеризуется относительно низким спросом на услуги. За год у нас будет обслуживаться 2717 автомобилей (из них 988 автомобилей предприятия, остальные 1729 на коммерческой основе). Далее рассчитаем предполагаемую выручку мойки автомобилей.
Выручка = Стоимость*кол-во автомобилей (23)
Выручка = 1900*1729= 3 285 100 руб.
НДС = Выручка*18/118 = 501 116,9 руб. (24)
Выручка без НДС = Выручка-НДС 3 285 100 -501 116,9 =2 783 983,1 руб. (25)
Рассчитаем предполагаемую прибыль в год:
Прибыль = Выручка без НДС-Себестоимость (26)
Прибыль = 2 783 983,1 -1 129 760,32=1 654 222,8 руб.
Налог на прибыль=Прибыль-20%=1 654 222,8 *0,20=330 844,5 руб. (27)
Чистая прибыль = Прибыль - Налог на прибыль = 1 654 222,8 - 330 844,5= 1 323 378,3 руб. (28)
Срок окупаемости = Инвестиции / чистая прибыль = 1 472 460 руб./1 323 378,3 руб. = 1,1 года. (29)
Показатели экономической эффективности от организации участка мойки автомобилей и спецтехники приведены в таблице 22.
Таблица 22 - Показатели экономической эффективности от организации участка мойки автомобилей и спецтехники.
|
№ |
Наименование затрат |
Единица измерения |
Сумма |
|
1 |
2 |
3 |
4 |
|
1 |
Затраты на приобретение нового оборудования |
Руб. |
1 164 000 |
|
2 |
Затраты на монтаж и транспортировку оборудования |
Руб. |
308 460 |
|
3 |
Сумма постоянных затрат, итого |
Руб. |
1 472 460 |
|
4 |
Фонд оплаты труда |
Руб. |
491 167,2 |
|
5 |
Отчисления на ЕСН 30% |
Руб. |
147 350,16 |
|
6 |
Затраты на эксплуатационные материалы |
Руб. |
668 300 |
|
7 |
Затраты на электроэнергию, отопление и водоснабжение |
Руб. |
194 315,8 |
|
8 |
Амортизация оборудования |
Руб. |
112 580 |
|
9 |
Сумма переменных затрат, итого |
Руб. |
1 466 545,96 |
|
10 |
Сумма переменных затрат на мойку автомобилей на основе коммерческой деятельности, итого |
Руб. |
1 026 582,2 |
|
11 |
Доход (выручка) с НДС |
Руб. |
3 285 100 |
|
12 |
НДС 18% |
Руб. |
501 116,9 |
|
13 |
Доход (выручка) без НДС |
Руб. |
2 783 983,1 |
|
14 |
Прибыль до налогооблажения |
Руб. |
1 654 222,8 |
|
15 |
Налог на прибыль 20% |
Руб. |
330 844,5 |
|
16 |
Чистая прибыль |
Руб. |
1 323 378,3 |
|
17 |
Срок окупаемости |
лет |
1,1 |
Рентабельность участка
Рентабельность характеризует экономическую эффективность использования основных производственных фондов участка и оборотных средств.
Р= [П / (Спост + Спер)]*100%, (30)
где Р - рентабельность, руб.;
П - чистая прибыль, руб.;
Спост - сумма постоянных затрат, руб.;
Спер - сумма переменных затрат, руб.
Р= [ (1 323 378,3 / (1 472 460+1729*1900)]*100 = 27,8% (31)
Рентабельность участка составит 27,8%. Определяем порог рентабельности предприятия: Р =1 323 378,3 /27,8= 47 603,5 руб.
Глава 4. БЖД и экологическая безопасность
4.1 Общие требования безопасности
1. Настоящая инструкция предназначена для работников, занятых мойкой и очисткой машин.
2. К выполнению работ по мойке машин, узлов и агрегатов допускаются лица, достигшие 18 лет, прошедшие медицинский осмотр, проверку знаний в объеме 2-ой группы по электробезопасности, инструктажи, вводный и на рабочем месте.
3. Повторный инструктаж проводится не реже 1 раза в З месяца.
4. Работники, имеющие перерыв в работе, на которую они нанимаются, более 3-х лет, а повышенной опасностью более 12 месяцев, должны пройти обучение и проверку знаний по безопасности труда до начала самостоятельной работы.
5. При изменении технологического процесса или модернизации оборудования, приспособлений, переводе на новую временную или постоянную работу, нарушении работающим требований безопасности, которое может привести к травме, аварии или пожару, а также при перерывах в работе более чем на 30 календарных дней, работник обязан пройти внеплановый инструктаж (с соответствующей записью в журнале регистрации инструктажей).
6. К самостоятельной работе допускаются лица, ознакомившиеся с особенностями и приемами безопасного выполнения работ и прошедшие стажировку в течение 2-14 смен под наблюдением мастера или бригадира (в зависимости от трудового стажа, опыта и характера работ).
7. Разрешение на самостоятельное выполнение работ (после проверки полученных знаний и навыков) дает руководитель работ.
8. В процессе производственной деятельности на работников постоянно воздействуют опасные и вредные производственные факторы, которые реализуются в травмы при опасном состоянии оборудования, среды и опасных действиях работников.
9. Опасное состояние оборудования или производственных площадок:
- скользкие поверхности;
- острые кромки, заусенцы поверхностей инструмента и оборудования;
- загрязнение химическими веществами и пестицидами;
- повышенная или пониженная температура машин, оборудования, моющих растворов.
10. Типичные опасные действия работников:
- работа без средств индивидуальной защиты;
- мойка машин вблизи открытых токоведущих проводников и оборудования;
- выполнение работ в состоянии алкогольного или наркотического опьянения.
11. При выполнении работ пользуйтесь спецодеждой и средствами индивидуальной защиты:
- костюмом хлопчатобумажным с водостойкой пропиткой (ГОСТ 12.4.109);
- сапогами резиновыми (ГОСТ 5373);
- перчатками резиновыми (ТУ-38-106466).
12. Опасные и вредные производственные факторы реализуются в травмы или заболевания при опасном состоянии машин, оборудования, инструментов, среды и совершении работниками опасных действий.
13. Опасное состояние машин, оборудования:
- скользкие поверхности;
- захламленность рабочего места посторонними предметами;
- загрязнение химическими веществами и пестицидами машин, оборудования, инструмента.
14. Типичные опасные действия работающих, приводящие к травмированию:
- использование машин, оборудования, инструмента не по назначению;
- отдых в неустановленных местах;
- выполнение работ в состоянии алкогольного опьянения;
- выполнение работ с нарушением правил техники безопасности, требований инструкций по охране труда и инструкций по эксплуатации оборудования.
15. Средства индивидуальной защиты следует использовать по назначению и своевременно ставить в известность администрацию о необходимости их чистки, стирки, сушки и ремонта. Не допускается их вынос за пределы предприятия.
16. Знайте и соблюдайте правила личной гигиены. Не курите на рабочем месте, не употребляйте до и вовремя работы спиртные напитки. Не храните продукты и не принимайте пищу на рабочих местах.
17. Выполняйте только ту работу, по которой прошли обучение, инструктаж по охране труда и к которой допущены руководителем.
18. На рабочее место не допускаются лица, не имеющие отношения к выполняемой работе. Не перепоручайте выполнение своей работы другим лицам.
19. Выполняйте требования знаков безопасности.
20. Не заходите за ограждения электрооборудования.
21. Сообщайте руководителю о замеченных неисправностях машин, механизмов, оборудования, нарушениях требований безопасности и до принятия соответствующих мер к работе не приступайте.
22. Работники обязаны знать сигналы оповещения о пожаре, место нахождения средств для тушения пожара и уметь ими пользоваться. Не допускается использовать пожарный инвентарь для других целей.
23. Не загромождайте проходы и доступ к противопожарному оборудованию.
24. Убирайте использованный обтирочный материал в специальные металлические ящики с крышками.
25. Не храните на рабочем месте легковоспламеняющиеся и горючие жидкости, кислоты и щелочи в виде готовом к употреблению.
26. При возникновении пожара в самой электроустановке или вблизи нее, в первую очередь, до прибытия пожарных произведите отключение электроустановки от сети. Если это невозможно, то попытайтесь перерезать провода(последовательно, по одному) инструментом с изолированными ручками.
27. При тушении пожара в первую очередь, гасите очаг воспламенения. При пользовании пенным огнетушителем направляйте струю под углом 40- 45 во избежание разбрызгивания жидкости. Тушение начинайте с одного края, после чего последовательно перемещайтесь к другому краю очага воспламенения.
28. Для тушения небольших очагов пожара, легковоспламеняющихся и горючих жидкостей, а также твердых горючих веществ и материалов применяйте пенные огнетушители ручные типа ОХП-10. ОП-М, ОП-9МН, воздушно-пенные типа ОВП-5,ОВП-10, мобильные, перевозимые на специальных тележках, воздушно-пенные типа ОВП-100, ОВП-250, ОПГ-100. При их отсутствии забрасывайте очаг возгорания песком или накройте войлоком.
4.2 Требования охраны труда перед началом работы
1. Наденьте спецодежду и другие установленные для данного вида работ средства индивидуальной защиты. Одежда должна быть застегнута на все пуговицы и заправлена, брюки должны быть поверх обуви, застегните обшлага рукава.
2. Проверьте, чтобы применяемый при работе инструмент и приспособления были исправны не изношены и отвечали безопасным условиям труда.
3. Перед началом работ проверьте состояние моечной установки (машины), исправность душевого устройства, плотность крепления трубопроводов, сальников, подогревательных устройств, вентиляции, заземления, подъемно-транспортных средств.
4. Проверьте состояние фильтрационных решеток, сливных систем, отстойников.
4.4 Требования охраны труда во время работы
Приготовление растворов
1. При приготовлении и применении моющих растворов соблюдайте осторожность, т к. при неосторожной засыпке препаратов возможно образование “пылевого облака”, а при размешивании раствора разбрызгивание его и попадание на слизистую оболочку глаз. Распаковывать мешки и высыпать моющие средства необходимо осторожно, не пыля, включив вытяжную вентиляцию. При этом пользуйтесь респираторами и защитными очками.
2. Машины для внесения удобрения, защиты растений, а также работавшие взоне радиоактивного загрязнения, до мойки должны быть обеззаражены. Обеззараживание производите с использованием средств индивидуальной защиты на специально оборудованной площадке. В это время не пользуйтесь открытым огнем, не курите, не принимайте пищу и не храните ее в одежде.
Мойка машин
3. Наружную мойку самоходной с.-х.техники производите только при выключенном двигателе, наличии упоров под колесами, закрытых стеклах и дверях кабины и после выхода водителя из кабины.
4. При шланговой мойке следите, чтобы струи воды, моющего раствора не достигали открытых токоведущих проводников и оборудования, а также за давлением воды моющего раствора в пистолете, которое должно быть 1,2 1,6 МПа. Увеличение давления не допускается, т.к. можно не удержать шланг. Не направляйте струю воды моющего раствора в сторону людей.
5. Очистку узлов тракторов и с.-х. машин от пыли струей сжатого воздуха производите в защитных очках и рукавицах. Не направляйте струю воздуха в сторону людей.
4.5 Требования охраны труда в аварийных ситуациях
1. При замеченных неисправностях производственного оборудования и инструмента, а также, если при прикосновении к машине, станку, агрегату ощущается действие электрического тока либо имеет место сильный нагрев электропроводов электродвигателей, электроаппаратуры, появление искрения или обрыв проводов и т д., предупредите работающих об опасности, не медленно поставьте в известность руководителя подразделения и примите меры по устранению аварийной ситуации.
2. При обнаружении дыма и возникновении загорания пожара, немедленно объявите пожарную тревогу примите меры к ликвидации пожара с помощью имеющихся первичных средств пожаротушения соответственно источнику пожара, поставьте в известность руководителя работ.
При необходимости организуйте эвакуацию людей из опасной зоны
В условиях задымления и наличия огня в помещении, передвигайтесь вдоль стен, согнувшись или ползком, для облегчения дыхания рот и нос прикройте платком (тканью), смоченной водой; через пламя передвигайтесь, накрывшись с головой верхней одеждой или покрывалом, по возможности облейтесь водой, загоревшуюся одежду сорвите или погасите, а при охвате огнем большей части одежды, плотно закатайте работника в ткань (одеяло, кошму), но не накрывайте с головой.
3. При несчастных случаях с людьми окажите им доврачебную помощь. Немедленно поставьте в известность руководителя работ, сохраняйте обстановку, при которой произошел несчастный случай, если это не угрожает жизни и здоровью окружающих и не нарушает технологического процесса, до прибытия лиц, ведущих расследование причин несчастного случая.
4. При поражении электрическим током как можно быстрее освободите пострадавшего от действия тока, т.к. продолжительность его действия определяет тяжесть травмирования. Для этого быстро отключите рубильником или другим отключающим устройством ту часть электроустановки, которой касается пострадавший.
5. При невозможности быстрого отключения электроустановки необходимо отделить пострадавшего от токоведущих частей.
6. При оттаскивании пострадавшего за ноги не касайтесь его обуви или одежды, если Ваши руки не изолированы или плохо изолированы, т.к обувь и одежда могут быть сырыми и явиться проводниками электрического тока. для изоляции рук, особенно если необходимо, коснуться тела пострадавшего, не прикрытого одеждой, наденьте диэлектрические перчатки, при их отсутствии обмотайте руки шарфом или используйте любую другую сухую одежду.
7. Если пострадавший находится в сознании, но испугался, растерялся и не знает, что для освобождения от тока ему необходимо оторваться от земли, резким окриком “подпрыгни заставьте его действовать правильно.
Оказание доврачебной помощи
8. При необходимости одновременного выполнения искусственного дыхания и массажа сердца порядок проведения их и отношение числа вдуваний к числу нажатий на грудину определяется числом лиц, оказывающих помощь.
9. Искусственное дыхание и массаж сердца проводите до полного восстановления жизненных функций организма или до прихода врача.
10. Ранения. Ссадины, уколы, мелкие ранения смажьте йодом иди бриллиантовой зеленью и наложите стерильную повязку или заклейте полоской липкого пластыря. При большой ране наложите жгут, смажьте кожу вокруг раны йодом и перевяжите чистым марлевым бинтом или стерильным бинтом из индивидуального пакета.
11. Остановка кровотечения При остановке кровотечения поднимите раненую конечность вверх или расположите поврежденную часть тела (голову, туловище ит.д.) так, чтобы они оказались на возвышении и наложите тугую давящую повязку. Если при артериальном кровотечении (течет алая кровь пульсирующей струей) кровь не останавливается, наложите жгут или закрутку. Жгут (закрутку) затягивайте только до остановки кровотечения. Время наложения жгута отметьте на бирке, бумажке и т.д. и закрепите ее на жгуте. Жгут разрешается держать затянутым не более 1,5 2 часов.
12. Ушибы. При ушибах наложите тугую стягивающую повязку и применяйте холодные примочки. При значительных ушибах туловища и нижних конечностей пострадавшего доставьте в лечебное учреждение.
Ушибы в области живота ведут к разрывам внутренних органов. Немедленно доставьте пострадавшего в лечебное учреждение при малейшем подозрении на это. Таким больным не давайте пить и есть.
13. Вывихи. При вывихе обеспечьте неподвижность поврежденной конечности, наложите шины, не изменяя того угла, который образовался в суставе при вывихе. Вывихи должны вправлять только врачи. При доставке в медицинское учреждение пострадавшего уложите на носилки или в кузов автомобиля, а конечность обложите валиками из одежды или подушек.
14. Повреждение глаз. При засорении глаз промойте их 1% раствором борной кислоты, струей чистой воды или влажным ватным (марлевым) тампоном. Для этого голову пострадавшего положите так, чтобы можно было направить струю (от наружного) угла глаза (от виска) к внутреннему. Не трите засоренный глаз.
При попадании брызг кислоты и щелочи в глаз промойте его в течение 5 минут чистой водой. После промывки на глаз наложите повязку и отправьте пострадавшего к врачу.
4.6 Техника безопасности внутри автомоечного комплекса
1. Ограничить передвижение клиентов по комплексу только в зоне уборных и проходов. Только служащие могут находиться в самом комплексе.
2. Если клиент находится внутри автомобиля во время мойки, и случился сбой, сначала необходимо обесточить все оборудование, а потом помочь выбраться клиенту.
4. Только по разрешению менеджера персонал может войти внутрь моечного комплекса во время работы.
5. Быть осторожным при проходах через зоны мытья - вода, пена, воск делают пол очень скользким.
6. Для эксплуатации оборудования необходимо присутствие как минимум двух работников.
7. Максимальное освещение позволяет клиенту досконально видеть всю работу автомойки, кроме того, это же помогает снизить травматизм среди персонала.
8. Покрытие внутри автомойки должно находиться в идеальном состоянии.
9. Помнить - что даже отключенное оборудование без полной остановки не гарантирует безопасность.
4.7 Техника безопасности снаружи автомоечного комплекса
1. Если клиент впервые пользуется услугами комплекса, предупредить о звуковом сигнале.
2. После мойки клиент получает свой автомобиль на выезде.
3. Подающий сигнал работник должен находиться перед выездом из мойки. Он сигнализирует водителю о моменте, когда можно заводить двигатель и начинать самостоятельное движение.
Техника безопасности при работе автомойки достаточно специфична и включает ряд строгих правил:
- недопущение возможности контакта с подвижными частями автомойки клиентов и особенно детей.
- любые процедуры в процессе мойки - начало работы комплекса, заезд следующего автомобиля и так далее - обозначаются сигналом предупреждения.
- сигнал предупреждения должен звучать за 5 секунд до запуска и 5 секунд после запуска.
- внимательно изучить руководство по эксплуатации, чтобы полностью разобраться в принципах и тонкостях работы автомоечного комплекса.
Въезд и выезд:
1. Избегать физического контакта с подвижными частями автомоечного комплекса
2. Не допускать ходьбы перед въездом или выездом
3. Не ходить перед автомобилем, если он приближается к въезду на автомойку.
4. Служащие, которые работают при въезде в автомойку, должны произвести визуальный осмотр транспортного средства. Особое внимание следует обратить на автомобили с широкими и слишком большими шинами и транспортные средства с серьезными повреждениями поверхности.
5. Работник, сопровождающий автомобиль, должен находиться со стороны водителя и ни в коем случае не перед автомобилем.
6. Автомобиль должен быть полностью остановлен. Нужно убедиться (с разрешения владельца), что коробка переключения передач находится в положении «Парковка» либо «Нейтральная передача».
7. В автомоечном комплексе полного обслуживания, только специально обученные служащие имеют право доставить транспортное средство. Клиент и пассажиры должны покинуть автомобиль.
8. Необходимо полностью контролировать ситуацию, начиная от въезда на автомойку и заканчивая выездом с нее.
9. Вежливо предупреждать клиентов, которые находятся при въезде и выезде на мойку, что они могут создать аварийную ситуацию, не допускать клиента к работающему оборудованию.
10. Если по каким-нибудь причинам необходимо вручную толкать автомобиль, всегда обращаться за помощью к коллегам.
11. Когда необходимо вымыть автомобиль вручную, нужно убедиться, что используется соответствующее оборудование.
12. Быть осторожным при проведении ручных работ, остерегаться разбитого стекла, зазубрин или острых краев.
13. В зимнее время обрабатывать въезд и выезд специальными антигололедными реагентами.
14. Двери и окна автомобиля всегда должны быть закрытыми [12].
4.8 Требования охраны труда по окончании работы
1. Приведите в порядок рабочее место (очистите от грязи и пыли оборудование, инструмент, соберите и вынесите в отведенное место мусор и отходы, соберите и сложите в установленное место инструмент, приспособления и необработанные детали Обработанные детали сдайте в кладовую).
2. Установите ограждения и знаки безопасности у открытых проемов, отверстий и люков.
3. Обесточьте оборудование, выключите в и местное освещение.
4. Снимите спецодежду и другие средства индивидуальной защиты, уберите их в шкаф закрытого типа, если спецодежда требует стирки или ремонта, сдайте ее в кладовую.
5. Поставьте в известность руководителя работ о состоянии оборудования.
6. По окончании мойки моечные машины с керосином и другими моющими средствами, предусмотренными технологией, закройте крышками.
7. Закройте вентили, уберите шланги и очистите от грязи рабочее место.
8. Вымойте лицо и руки теплой водой с мылом.
4.9 Обеспечение экологической безопасности на участке
Самой главной задачей при проектирование мойки является обеспечение экологической безопасности сточных вод. Для этого необходимо регулировать сброс загрязняющих веществ, применяя современные методы очистки воды. Очистка сточных вод обеспечивается применением комбинированной технологии, включающей механическую, электрохимическую и физико-химическую очистку. Качество очищенной воды позволяет использовать ее в системе оборотного водоснабжения мойки. Для вывоза шламов и эмульсий применяются вакуумные машины с емкостью не менее 11 кубических метров и глубиной всасывания от 6 метров. Образующий шлам и прочий мусор будет вывозиться по мере накопления из отстойника на соответствующий полигон [13].
Заключение
Целью выпускной квалификационной работы являлось организация участка мойки грузовых автомобилей и специальной техники в предприятии « МП Водоканал» города Ханты-Мансийска, путем проектирования участка и подбора необходимого оборудования. Технологической основой проектирования участка, действующего предприятия, являлось невозможное проведение мойки автомобилей.
В выпускной квалификационной работе подобраны оборудования для автомоечного комплекса.
В проектной части провиден анализ видов и комплексов автомоек и спроектирован участок автомоечного комплекса с учетом нового оборудования, так же в этой части описана технология моечного процесса.
В экономической части подсчитаны расходы и доходы данного автомоечного комплекса, рентабильность предприятия и окупаемость мойки.
Таким образом задачу дипломного проекта, состоящую в том, чтобы организовать участок мойки грузовых автомобилей и специальной техники в предприятии можно считать выполненной.
Список используемых источников
1.Электронный ресурс.- Режим доступа: http://vodahm.ru/.
2. Электронный ресурс.- Режим доступа: http://ru.wikipedia.org.
3. Электронный ресурс.- Режим доступа: http://www.yko.su/userfiles/Passport_YKO-5.pdf.
4.Электронный ресурс.- Режим доступа: http://autoequip.ru/p41546146-apu-1400-avtomaticheskaya.html
5. Электронный ресурс.- Режим доступа: http://cleanshop.ru/catalog/hds/karcher_hds 10_20-4_m_eu.html
6. Электронныйресурс.- Режим доступа: http://www.moyker.ru/catalog/foam/ generator/343/
7. Электронный ресурс.- Режим доступа: http://www.karcher.ru/ru/Products/Home__ Garden/Plesos/Mojuwye_plesos.htm.
8. Электронный ресурс.- Режим доступа: http://avtomoika-servis.ru/shop/product/253
9. Коваленко Н.А. Техническая эксплуатация автомобилей: учеб.пособие/ Н.А. Коваленко и др. Минск: Новое знание,2008.
10. Методические указания к выполнению дипломного проекта для студентов специальности 230100 «Сервис транспортных и технологических машин и оборудования». Х-Мансийск: ЮГУ, 2007.
11. Ганенко А.П. и др. Оформление текстовых и графических материалов при подготовке дипломных проектов, курсовых и письменных экзаменационных работ (требования ЕСКД). М.: ПрофОбрИздат, 2001.
12. Инструкция по охране труда для автомойщика.
13.Техническое обслуживание и ремонт автомобилей: механизация и экологическая безопасность производственных процессов / В. И. Сарбаев и др. Изд 2-е Ростов н/Д : Феникс, 2005.
Организация участка мойки грузовых автомобилей и специальной техники в Муниципальном предприятии «Водоканал» г.Ханты-Мансийск