Система водовідведення поверхневого стоку з майданчика хімобладнання ВАТ «СМНВО ім. Фрунзе»
ЗМІСТ
|
Вступ |
Стор. |
|
|
Розділ 1 |
Оцінка утворення і відведення поверхневих стічних вод з міських територій |
|
|
1.1 |
Кліматичні фактори формування поверхневих стоків м. Суми |
|
|
1.2 |
Схема збору та відведення поверхневих стічних вод з міських територій |
|
|
1.3 |
Відведення поверхневих вод у м. Суми |
|
|
Розділ 2 |
Основні забруднювачі водних обєктів міста Суми |
|
|
Розділ 3 |
Система водовідведення поверхневого стоку з майданчика хімобладнання ВАТ «СМНВО ім. Фрунзе» |
|
|
3.1 |
Характеристика підприємства |
|
|
3.2 |
Гранично допустимий скид із дощовими та талими водами СМНВО ім. Фрунзе |
|
|
3.3 |
Розрахунок кількості поверхневого стоку, що скидається в р. Сумка |
|
|
Розділ 4 |
Очищення зливових, талих стічних вод |
|
|
Розділ 5 |
Охорона праці |
|
|
Розділ 6 |
Оцінка економічного результату природоохоронних заходів |
|
|
Висновки |
||
|
Список використаної літератури |
||
|
Додаток А |
Вступ
В Україні відзначається інтенсивний розвиток міських агломерацій, що супроводжується збільшенням частки міського населення та площі міст. Функціонування міських водогосподарських комплексів є важливим чинником впливу на кількісні та якісні показники водних ресурсів, роль якого невпинно зростає. Проте на даний час це питання мало досліджене, а стік розчинених речовин, що формується під впливом міст, кількісно не оцінений. Місто Суми не виняток в цій ситуації, тому що існує ряд проблем, а саме:
- відсутність дощової каналізації на значній частині міського водозбору, а наявна - лише частково забезпечує потреби міста;
- висока інтенсивність злив,
- значні ухили покриттів і вулиць,
- погані умови розбавлення стічних вод у межень.
Наведене свідчить про вкрай несприятливі умови формування якісного складу поверхневих стічних вод. Тому проведення експериментального вивчення умов формування і якості поверхневого стоку з території міста, його впливу на поверхневі водні обєкти (річка Псел) є актуальним завданням.
Головна ідея роботи полягає в можливості вибору оптимальних параметрів заходів щодо захисту водних обєктів від забруднення поверхневим стоком за рахунок моделювання багатолітніх рядів «випадання опадів - формування стоку - очищення стоку - забруднення водойми».
Метою даної роботи є виявлення джерел забруднення природних водних обєктів м. Суми, а саме вивчення проблеми поверхневого стоку з території міста і підприємств, формування його кількісних і якісних характеристик; розробка пропозицій щодо зменшення антропогенного навантаження.
РОЗДІЛ 1
Оцінка утворення і відведення поверхневих стічних вод з міських територій
1.1 Кліматичні фактори формування поверхневих стоків м. Суми
Місто Суми знаходиться в лісостеповій зоні, на південно-західній окраїні Середньоєвропейської Центральної височини, в основному на правому високому березі ріки Псел першого притоку Дніпра.
Територія лісостепу в цілому рівнинна, широко хвиляста. Вододіли у вигляді плато, схили сильно порізані ярами, балками. Таке розчленування території відбувалося під впливом водних потоків під час танення льодовика, а також і в значно пізніший період, коли деревна рослинність відступила в знижені місця чи була вирубана, а на відкритій розораній поверхні активізувались руйнівні ерозійні процеси [1].
Протягом року переважають вітри південно-східного й північно-західного напрямків. У холодну частину року (з листопада по квітень) переважають вітри південно-східного напрямку, у теплу частину року (з травня по жовтень) переважають вітри північно-західного, частково західного й південно-західного напрямків [2].
Середня річна швидкість вітру за даними метеостанції, що перебуває на відкритому місці, складає 4,8 м/с. 70% від всіх випадків вітру в середньому за рік доводиться на штилі й вітри зі швидкістю до 5 м/с включно.
За даними метеостанції Суми найбільші швидкості вітру спостерігаються при вітрах західного, північно-західного й східного напрямків (рис. 1.1).
У середньому за рік за даними метеостанції спостерігається 507 мм опадів. Найбільша кількість опадів випадає в літні місяці, найменше - узимку.
Рисунок 1.1 Основні кліматичні показники Сумської області (середні за даним метеостанції Лебедин)
Перехід від одного сезону року до другого відбувається поступово. На Сумщині початок зимового періоду спостерігається в 3 декаді листопада. Середня температура грудня -5С, січня близько -8С, лютого біля -6С. Взимку часто спостерігаються відлиги. Зимові опади нерідко можуть випадати у вигляді дощу. Середня дата утворення сталого снігового покриву 15 грудня. Тривалість періоду зі сталим сніговим покривом 90 - 100 днів, середня висота снігового покриву за зиму складає 0,14 м. Середня дата початку сніготанення 28 лютого. Тривалість сніготанення в середньому становить 19 днів [2].
Початок весни спостерігається наприкінці другої декади березня, а кінець відбувається в 2 декаді травня. Весна триває близько 2-х місяців. В другій декаді квітня відбувається стійкий перехід середньодобової температури через +10оС. Навесні на поверхні ґрунту бувають приморозки. Найпізніша дата останнього весняного приморозку припадає на 23 травня, найраніша на 2 квітня, середня на 22 квітня.
Літо починається в 3-й декаді травня і закінчується на початку вересня, коли середньодобова температура переходить через межу +15оС в сторону зниження. Літній період триває в середньому 107 днів. Середньомісячні температури літа перевищують +18оС. Максимальні температури в окремі роки сягають 36 - 38оС. Протягом літнього періоду випадає 200 - 250 мм опадів. За рік буває в середньому 26 - 30 днів з грозами, які супроводжуються зливами, іноді градом. Нерідко бувають і тривалі бездощові періоди, що призводить до посух.
Початок осені відбувається в 2-й декаді вересня 1-й декаді жовтня, а кінець в третій декаді листопада. Загальна тривалість осені близько 50 днів. Перші осінні заморозки спостерігаються 15 вересня, середні 7 жовтня, найпізніші 13 листопада .
Із загальної кількості опадів приблизно 3/4 доводиться на рідкі опади й по 12 - 13% на тверді й змішані.
У середньому за рік спостерігається 160 днів з опадами. Особливо часто опади випадають узимку, але вони переважно дрібні [3,4].
Гідрологічні умови Сумщини характеризуються близьким заляганням ґрунтових вод переважно на глибині 1,8 - 3,2 м. Іноді, особливо в понижених
місцях, вони підходять до поверхні, зумовлюючи заболоченість великих територій і розвиток болотного типу ґрунтів [5].
Водний режим ґрунтів перебуває у прямій залежності від клімату та рельєфу місцевості. Тип водного режиму напівпромивний і промивний. Зволоження в основному атмосферне, а на понижених місцях ґрунтове та ґрунтово-атмосферне.
1.2 Схема збору та відведення поверхневих стічних вод з міських територій
Стічні води побутові, промислові, забрудненні відходами промисловості води, які відводяться з території населених пунктів і промислових об'єктів через каналізацію[6].
Поверхневий стік стік води атмосферних опадів з певної території в річки, які містять домішки в кількості, що перевищують ГДК[6].
Формування поверхневого стоку залежить від умов рельєфу місцевості, а витрата стоку - від розмірів водозбірної площі басейну і характеру використання його території. Межі водозбірної площі басейну визначають на топографічному плані з урахуванням рельєфу місцевості і проводять їх по вододільних гребенях, розташованих на перетині двох схилів, один з яких звернений до головного тальвегу конкретної водозбірної площі. Головний тальвег басейну має вихід до значніших за розмірами тальвегів, струмки і річки [7].
В межах водозбірної площі формуються зливовий стік і стік весняного сніготанення. У містобудівній практиці організацію поверхневого стоку розглядають в межах порівняльних невеликих водозбірних площ (300, 500, 1000 га), в яких найбільші витрати формуватимуться від зливового стоку. На незабудованій території, розташованій в природних умовах стоку, основними напрямами відведення поверхневого стоку будуть тальвеги невеликих басейнів. В процесі забудови і впорядкування міської території природна система водовідведення порушується. Замість неї створюють організовану закриту систему водовідведення [7].
Головний колектор басейну розташовують в смузі, вільній від міської забудови, тобто в межах «червоних ліній» і вулиць або спеціально виділеній для цих цілей технічній смузі, яку розташовують по напряму основного тальвегу. Дану умову необхідно враховувати в плануванні і забудові міської території. При цьому створюються сприятливі умови для розміщення магістральних прокладок підземних комунікацій (зливова і фекальна каналізація і ін.).
Для відведення поверхневого стоку з бічних схилів басейну відповідно до планування вулиць проектують бічну мережу водостоків [8].
Організовуючою системою водовідведення є лотки внутрішньоквартальних проїздів і міських вулиць, що забезпечують надходження поверхневого стоку в закриту мережу зливової каналізації. У практиці планування і забудови міської території зустрічаються різні випадки формування поверхневого стоку, умови формування залежать від розмірів забудовуваної території і характеру її використання.
Поверхневий стік з території міста Суми формується за рахунок талих снігових і дощових вод, а також поливно-мийних вод. У загальному спостерігається збільшення модуля стоку від окраїн міста до центра. Поверхневий стік з території міста частково очищається, але більша його частина не очищається від забруднень і прямо надходить у водні обєкти, несучи із собою велику кількість органічних, зважених речовин, нафтопродуктів [9].
У м. Суми для відведення поверхневого стоку застосовують роздільну систему каналізації, тобто відведення дощових та талих вод в міських умовах відбувається самостійно підземними трубопроводами та по відкритим водостокам. Водовідведення відбувається змішаним типом, про це свідчить наявність елементів закритої мережі, яка складається із лотків, що входять в нормальну конструкцію вулиць, тротуарів, зливоприймальних колодязів, приймаючих воду із лотків в закриту мережу трубопроводів, які відводять стік до місць випуску та елементів відкритого типу, що складається із лотків, які входять в нормальну конструкцію вулиць, тротуарів, водовідводних каналів, русел джерел та малих річок, мостиків та труб в місцях перетину з вулицями, тротуарами [10].
Трасування дощової мережі в основному виконується за принципом побутової каналізації, з огляду на специфічні особливості її роботи. Проектування дощової мережі в обумовлено рельєфом місцевості, розміром території, схемою планування, насиченістю території підземними шляхами та ін. Траса для водостоків прокладається на найкоротших відстанях. З метою зменшення розмірів каналів підземна водостічна мережа має випуски в найближчі водойми, тальвеги і яри. Як правило, головні колектори басейну трасують по міських проїздах, за винятком тих випадків, коли напрямок міських проїздів не збігається з тальвегом. Траса водостоку на проїзді розташована прямолінійно, з мінімальним числом перетинань із іншими підземними спорудженнями. При ширині проїзду до 30м водостік трасують по середині проїзду. При ширині проїзду більше 30м залежно від технічної й економічної доцільності колектори проектують по середині проїзду або по обидва боки проїзду (дублювання). Місце розташування початкових точок закритої дощової мережі визначають розрахунком з урахуванням місцевих умов [10].
Зливові води, що стікають із поверхні, надходять у закриту водостічну мережу через зливоприймачі.
Зливоприймач має лоток з решіткою, яка знімається, відвідну (перепадну) частину, виложену з бетонних кілець, і днище. Із зливоприймача дощова вода надходить у закритий водостік по сполучній гілці діаметром 300мм, що закладається в нижній частині зливоприймача. Прийомні решітки звичайно роблять прямокутними або круглими й установлюють біля проїзної частини на 2-3см нижче поверхні лотка, довгою стороною уздовж лотка.
Глибина залягання основи дощоприймача повинна бути, як правило, не менш 0,8м. Відстань між дощоприймачами залежить від нахилу вулиці, висоти бардюрного каменю, площі стоку кварталів і характеру забудови. При ширині вулиці до 30м відстань між дощоприймачами можна призначати залежно від нахилу території (табл. 1.1) [11, 12].
Таблиця 1.1 Відстань між зливоприймачами залежно від нахилу території
|
Нахил |
<0,004 |
0,004 - 0,006 |
0,006 - 0,01 |
>0,01 |
|
Відстань між дощоприймачами, м |
50 |
60 |
70 |
80 |
Загальний вид зливоприймача представлений на рис.1.2.

Рисунок 1.2 Дощоприймальник із збірних залізобетонних елементів:
1 -проїзна частина, покрита асфальтом, 2 - решітка, 3 - бардюрний камінь, 4 -плита перекриття, 5 - кільця стінові, 6 ходові скоби, 7 бетон, 8 плита дна, 9 зєднувальна труба.
Якщо у вуличні лотки надходить вода із внутрішньої частини кварталу, відстань між зливоприймачами визначають розрахунком.
Всього по місту Суми довжина каналізаційної мережі складає 32295м, в тому числі колекторів 26228м, відводів 6067м і проходить по 33 вулицям: 19 вулиць Зарічного району і 14 Ковпаківського. Загальна кількість зливоприймальників складає 1179 шт., з них дощоприймальників - 389 шт., оглядових колодязів 231 шт [13].
Як показують результати якісного аналізу стоків, в м. Суми основними джерелами забруднення поверхневого стоку, який формується на міських територіях та проммайданчиках, є продукти ерозії грунту, пил, будівельні матеріали, а також сировина, продукти та напівпродукти, які зберігаються на відкритих складських майданчиках, викиди в атмосферу, різноманітні нафтопродукти, які потрапляють на територію в результаті їх проливу та неполадок автотранспорту та іншої техніки, побутове сміття і т.д [14].
Поверхневий стік, який утворюється в результаті випадіння атмосферних опадів, полива та миття території змиває та виносить з потоком розчинні та нерозчинні суміші. Крім того атмосферні опади в результаті сорбції на поверхні гідроаерозоля частин пилу, газа та інших сумішей, які знаходяться в повітрі, починають забруднюватися ще в приземних шарах.
Скидання дощових вод у водойму здійснюють через випуски. Схематично місця випуску поверхневих стічних вод з визначених територій представлені в Додатку А. За інформацією даною ДКП « Шляхрембуд» по м. Суми існує 19 місць випуску, розміщених на р.Псел, р.Сумка, р.Стрілка, організованого поверхневого стоку з визначених територій, наглядний приклад таких випусків наведений в Додатку Б, а також ряд випусків неорганізованого поверхневого стоку [13].
Багато районів не охоплені зливовою каналізацією, внаслідок чого в них відбувається стояння води, що приводить до ряду проблем.
Більша частина поверхневого стоку скидається в р.Псел, р.Сумку, р.Стрілку без очистки. Лише незначна його частина очищається в відстійниках. Відстійники розміщені на вул.Холодногірській, вул.Білопільський шлях. Частина води потрапляє на очисні споруди ВАТ «СМНВО ім. Фрунзе». Відстійники по вул. Холодногірській знаходяться в незадовільному стані та не працюють, тому очищення стоку в них не відбувається.
1.3 Відведення поверхневих стічних вод в м. Суми
Проаналізувавши існуючу ситуацію зливової каналізації в м.Суми, можна виділити цілий ряд проблем повязаних з відведенням поверхневих стічних вод. До них належать:
1. Відсутність системи відводу поверхневих вод від певних територій міста ( мікрорайони ново забудов, околиці).
- стояння води в деяких районах міста ( в р-ні Білопілського шляху через відсутність каналів водовідведення утворюється самотічний струмок);
- затоплення підвалів в приватних будинках.
2.Стан існуючой дощової каналізаційної мережі:
- частина елементів зливової каналізаційної мережі знаходиться в аварійному стані
- частина колекторів і випусків є замуленою та не пропускає необхідну кількість стоку. Спостерігається ситуація утворення природних водостоків;
- наявність зруйнованих та пошкоджених ділянок мережі дощової каналізації;
- недостатня кількість очисних споруд (при відведенні поверхневих стічних вод скид в мажах міста здійснюється безпосередньо в водойми);
- незадовільний стан очисних споруд. Не працюють очисні споруди по вул.Холодногірській.
3. Відсутність в м.Суми відповідальної організації за стан та експлуатацію системи дощової каналізації. ДКП « Шляхрембуд» за договором з Міськрадою виконує роботи по чищенню зливоприймачів від наносів та мулу ( 2 рази на рік).
4. Відсутність системи контролю за якісним складом поверхневих стічних вод .
5. Відсутність інформації про обсяги поверхневих стічних вод, що утворюються та відводяться з території міста [15].
В місці Суми досить багато районів, де виникають проблеми внаслідок відсутності організованого відведення поверхневого стоку.
1) район Автовокзалу. Розмив по вул.Макаренка. Вирішенням цієї проблеми стало б будівництво зливовой каналізації по вул.Баумана, яка б проходила по вул.Калініна та забирала частину води зі стадіону;
2) вул. Конотопська. Проблема затоплення підвалів в місцевих жителів. Зливова каналізація в даному районі зовсім відсутня;
3) вул.Римского.- Корсакова. Проблема стояння води. Тут планувалось зробити закритий водостік і підключити його до колодязю «Водоканалу», але «Водоканал» не дав дозвіл;
4) по вул. 20 років Перемоги, були запроектовані очисні споруди, але не було виділено коштів для їх будівництва;
5) проблемним є район вул.Тихоріцька. Тут потрібно будівництво напірной станції для відкачки води [15].
Як бачимо, ситуація з очищенням поверхневого стоку в м. Суми досить складна і вимагає проведення ряду заходів для її покращення.
У звязку із цим актуальним є завдання розробки нових підходів до організації складу заходів щодо охорони водних обєктів від забруднення поверхневим стоком.
Розроблення системи заходів щодо очищення поверхневих стічних вод з території м. Суми є досить складним завданням в плані реалізації та фінансування в економічних умовах, що склалися на сьогоднішній день в країні в цілому. Завдання досить масштабне, але його реалізацію можна почати з . Але коли його вирішення змоделювати на конкретному прикладі, а саме на діючому підприємстві, то практичне втілення заходів для очищення стічних вод цілком можливе.
Таким підприємством став ВАТ «СМНВО ім. Фрунзе». Обєктом дослідження взята система водовідведення поверхневого (дощового та талого) стоку з майданчика хімобладнання, скиди розташовані в межах м. Суми. З території проммайданчика талі та дощові води потрапляють у зливові колектори з 4-х випусків, причому 2 з них обєднуються в один колектор. На 3-х випусках для очищення зливових вод розташовано маслоуловлювачі (нафтоуловлювачі), ефективність яких на сьогоднішній день незадовільна. З 4-го випуску зливові води потрапляють до зливової каналізації без очистки. Тож впровадження ефективної системи очищення вод зливової каналізації на даному обєкті є актуальним завданням.
РОЗДІЛ 2
Основні забруднювачі водних обєктів м. Суми
За даними лабораторних досліджень Державної екологічної інспекції в Сумській області та даними лабораторних досліджень, які виконуються підприємствами, найбільшими забруднювачами поверхневих водних обєктів в області залишаються: ВАТ «Сумихімпром» та комунальне підприємство «Міськводоканал» (м. Суми), комунальне підприємство «Конотопське виробниче управляння водопровідно-каналізаційного господарства» (м. Конотоп), дочірнє підприємство «Сток-Сервіс» приватного підприємства «Еліпс» (м. Ромни).
Так, у 2008 р. із загального обєму скинутих в поверхневі водні обєкти стічних вод по області 63,53 млн.м3 обєктами житлово-комунального господарства скинуто у водні обєкти 27,41 млн.м3 стічних вод, в тому числі неочищених стічних вод 0,086 млн.м3, недостатньо очищених 20,29 млн.м3. Скид неочищених та недостатньо очищених стічних вод становить 74,3% від обєму скинутих по цій галузі стічних вод [16].
Підприємством хімічної промисловості (ВАТ «Сумихімпром») скинуто у водні обєкти області 3,179 млн.м3 (2008 р.), в яких обсяг забруднених речовин склав 9611 т/рік. У 2009 році у водні обєкти скинуто 3 млн. 193 тис.м3, обсяг забруднених речовин 8047,74 т/рік [16,17].
За даними 2009 року не останню роль в організації стоку відіграють підприємства:
- КП «Міськводоканал» м. Суми скинуто 15 млн. 230 тис. м3 недостатньо очищених стічних вод в р.Псел;
- ВАТ «Сумихімпром» - скинуто 3 млн. 193 тис. м3 стічних вод, обсяг забруднюючих речовин в яких склав: 8047,74 т/рік;
- ВАТ «СМНВО ім. Фрунзе» має 3 скиди зливових та талих вод, обєми скидів коливаються в межах 250-300 тис м3 з території виробництва хімічного обладнання;
- ВАТ «SELMI» сьогодні майже не працює, тому за наявними даними в 2008 р. було скинуто-0,048 млн. м3, в яких обсяг забруднюючих речовин 22,02 т/рік;
- ТОВ «Сумитеплоенерго» скинуто 0,041 млн. м3, в яких вміст забруднюючих речовин складає 68,41 т/рік;
- ВАТ «Сумирибгосп» скид складає 0,082 млн.м3 .
Величину стоку з міської території теж потрібно брати до уваги, але ця величина кількісно не встановлена. Відведення стоків дощових та талих вод здійснюється в системах зливової каналізації. Зливова каналізація використовується для збору і відведення поверхневих вод як на відкритих територіях, поблизу будівель, так і в закритих приміщеннях (гаражі, басейни, підвали). Вона здійснює збір поверхневих вод з кровель будівель (за допомогою водоприймальних воронок) і дорожніх або газонних покриттів (за допомогою водоприймальних лотків). Мінімальна глибина розміщення колекторів приймається нижче за глибину промерзання грунту. Але потужність поверхневого стоку з урбнізованих теритрій міста(площі, базари, заправки) з його інтенсивним розвитком значно перевищує можливості зливової каналізації, яка фізично виснажена, і потребує технічного оновлення. Вивченням якісного і кількісного складу стоку з площинної поверхні території міста, який не потрапляє то зливових каналізацій, жодна з організацій у місті не займається .
Так, у 2007 2009 рр. очисні споруди КП «Міськводоканал» м. Суми працювали неефективно, спостерігалося перевищення нормативів гранично допустимого скиду по ортофосфатам в 3,17 рази, в р. Псел скинуто 15,49 млн. м3 недостатньо очищених стічних вод. У 2008р. до р. Псел було скинуто 15 млн. 225 тис. м3 [17].
У звязку з моральним та фізичним зносом споруд та обладнання, перевантаженням окремих технологічних ланцюгів продовжують неефективно працювати очисні споруди в містах Конотоп, Ромни. Внаслідок порушень технологічного режиму очистки стічних вод не вийшли на проектний режим роботи очисні споруди КП “Недригайлівводосервіс”, КП «Водоканал» м. Лебедин, очисні споруди виправної колонії № 56 (с. Перехрестівка Роменського району) та інші. З цих підприємств до водних обєктів поступають зворотні води, які не відповідають нормативам по органічним та завислим речовинам, біогенам.
Було здійснено модернізацію очисних споруд і монтаж комплексу «Екокомпакт-500» на підставі проекту: «Каналізаційний очисні споруди потужністю 1600 м3/добу м. Білопілля» розробленого фірмою ТЕКОС Лтд. В 1999 р. Проектом передбачалось будівництво двох комплексів «Екокомпакт -500» але в звязку з відсутністю обємів стічних вод в експлуатацію введено лише один [17].
РОЗДІЛ 3
Система водовідведення поверхневого стоку з майданчика хімобладнання ват «смнво ім. фрунзе»
3.1 Характеристика підприємства
Відкрите акціонерне товариство «Сумське машинобудівельне науково-виробниче об'єднання ім. М.В. Фрунзе» (надалі СМНВО ім. Фрунзе) розташоване в межах м. Суми. У виробничій структурі має 5 промислових майданчиків. Головний проммайданчик - майданчик хімапаратури знаходиться поблизу залізничного вокзалу.
ВАТ «СМНВО ім. М.В.Фрунзе» в даний час є одним з найбільших в Європі машинобудівних комплексів з випуску устаткування для нафтової, газової, атомної і хімічної промисловості. Компресори і газоперекачуючі агрегати, унікальні види хімічної апаратури, центрифуги, насоси і газова трубопровідна арматура, устаткування нафтопромислу і газозаправні станції, установки комплексної підготовки газу - такий далеко не повний перелік вироблюваної підприємством продукції [18].
ВАТ “Сумське НВО ім. М.В.Фрунзе” складається з наступних структурних підрозділів: Виробництво хімічного обладнання, Компресорне виробництво, Насосне виробництво, Виробництво “Машинобудівник”, Котельня північного промислового вузла та виробництво базальтового волокна (цех №40).
Об'єднання спеціалізується на випуску наступних видів продукції: ГПА, АГНКС МБКИ 125, устаткування для нафтогазовидобувного комплексу, компресорів, насосів відцентрових та вакуумних, хімобладнання, ЗІП насосів, ЗІП компресорів, арматури. В цілому по об'єднанню за 2008р. випущено продукції на загальну суму 1319509,8 тис. грн [18].
Виробництво хімобладнання ВАТ «СМНВО ім. М.В.Фрунзе» спеціалізується на випуску машин і апаратів нафтової, газової, хімічної промисловості, не стандартизованого обладнання і товарів народного вжитку з повним циклом машинобудівельного підприємства, яке включає ливарне, заготівельне, зварювальне, ковальське, механічну обробку, збір та фарбування, виготовлення деталей з пластмас, виробництво гальванопокриттів, деревообробку, а також додаткове виробництво з ремонту і обслуговування наявного обладнання заводу.
У пяти цехах виробництва здійснюється виготовлення устаткування з неіржавіючих і вуглецевих сталей, титанових сплавів, хастеллоя, цирконію і ін. матеріалів, зокрема: ємкості, колони, реактори, теплообмінники, випарні апарати, насоси і компресори, центрифуги і сепаратори для різних галузей промисловості.
На території майданчика хімобладнання розташовані цехи: ливарний, котельно-зварювальний (2 шт.), заготівельний (2 шт.), гальванопокриття, деревообробний, модельний, ремонтного обладнання, залізно дорожнього транспорту.
Для виготовлення великогабаритних виробів (колони, теплообмінники і ємкості) цеху оснащені могутніми пресами, різними вальцями, зокрема фірми «Хойслер» (Швейцарія) для вальцювання листів товщиною до 120 мм, комплексом устаткування для фланжування днищ і отримання обребрених труб і змійовиків різної форми, комплектною лінією по виготовленню спіральних теплообмінників, різним устаткуванням для розвальцьовування труб в трубних гратах теплообмінників, в т.ч. камери для електроімпульсного розвальцьовування.
У цехах встановлено сучасне металоріжуче устаткування, зокрема з ЧПУ. Для обробки високоточних деталей використовуються верстати фірм «Max-Muller», «Forest», «Kolb» і ін. Виготовлення корпусних деталей проводиться на високоточних горизонтально-розточувальних і координатно-розточувальних верстатах.
У цехах широко застосовується електрошлакова і автоматична зварки під флюсом. Роботизовані і автоматизовані зварювальні установки фірми «Deuma» (Німеччина), IGM (Австрія) дозволяють зварювати вироби вагою від 10 до 100 т. Є установки електроннопроменевої зварки.
Основними забруднювачами території майданчика (територія водозбору стоків) є: луги їдкі, сірчана кислота, хромовий ангідрид, ціаністий водень, важкі метали (гальванічне виробнцтво); аерозолі фарби, ацетат ксилол, бутилацетат, спирт етиловий, бутиловий (фарбування); абразивний пил, пари эмульсола (в процесі обробки деталей); фенол і формальдегід (виробництво деталей з пластмас).
Джерелами водозабезпечення промислових майданчиків ВАТ «СМНВО ім. М.В.Фрунзе» є артезіанські скважини, розташовані на промислових майданчиках і система технологічного водозабезпечення, здійснююча забір із р. Псел. Якісні показники води, що використовується з артезіанських скважин та з комунального міськводопроводу, відповідає ГОСТу 2874-82 (питна вода) [19].
На підприємстві використовуються водовідбірні системи (ВОС). Тип ВОС відкритий. Тип охолоджуючої зворотньої ситсеми башневі градирні.
Концентрації викидів всих шкідливих речовин, що виникають в процесі виробництва продукції не повинні перевищувати гранично допустимі норми (ГДК, ГДС).
Відповідно до статті 12 Закону України «Про охорону навколишнього природного середовища» повинні здійснюватися: внесення плати за використання природних ресурсів, компенсація нанесенної шкоди забрудненням та іншим негативним впливом на навколишнє середовище.
ВАТ «СМНВО ім. Фрунзе» здійснються плата за скиди, розміщення відходів забруднюючих речовин в навколишнє середовище. В 2008 р. нараховано 1870,86 грн. в т.ч. 1337,11 грн. за наднормативний скид, за 6 місяців 2009 р. нараховано 999,27 грн. в т.ч. 669,67 грн. за наднормативний скид.
Для забезпечення більш економного використання води на виробництві функціонує система зворотного водопостачання обємом 47,43 тис.м3/добу, 11904,62 тис.м3/рік. Для забезпечення її функціонування та охолодження циркуляційної води на території ВХО наявні 5 градирень, загальною потужністю 1850 м3/год.
Кількість забруднюючих речовин в стічних водах, що скидаються в водойми міста повинні не перевищувати норму гранично допустимих концентрацій, встановлених законом. Гранично допустимі концентрації цих речовин наведені в таблиці 3.1 [20].
Таблиця 3.1 Гранично допустимі концентрації забруднюючих речовин, що присутні в стічних водах з майданчика хімобладнання ВАТ «СМНВО ім. Фрунзе»
|
Речовина |
Гранично допустима концентрація |
|
Fe (II, III) |
2,0 мг/л |
|
Zn (II) |
1,0 мг/л |
|
Cu (II) |
0,2 мг/л |
|
Cr (VI) |
0,01 мг/л |
|
Ni (II) |
0,05 мг/л |
|
рН |
6,5 8 |
|
NH4 |
8 мг/л |
|
Cl |
150 мг/л |
|
SO4 |
240мг/л |
|
Жири(нафтопродукти) |
0 мг/л |
|
Зважені речовини |
200 мг/л |
3.2 Гранично допустимий скид із дощовими та талими водами СМНВО ім. Фрунзе у р. Сумка
Скиди дощових та талих вод з проммайданчика хімапаратури СНВО ім. М.В. Фрунзе розташовані в межах м. Суми. Згідно з Інструкцією про порядок розробки ГДС [21] п. 2.17 б, якість води на скиді у водний об'єкт повинна задовольняти ГДК для водойм комунально-побутового водокористування. Річка Сумка не відноситься до водойм рибогосподарського водокористування, тому перевірка виконання рибогосподарських норм не потрібна.
В останні роки загальною вимогою є зменшення скидання забруднюючих речовин із зворотними водами та повне припинення скидання зворотних вод. СНВО ім. М.В. Фрунзе із р. Псьол забирає значні витрати води на технічні потреби. При зменшенні концентрацій речовин у дощових стоках до ГДК ця вода може використовуватися у оборотній системі технічного водопостачання. Тому необхідна установка для очищення дощових та талих вод, після якої стане можливим використання очищеної води у оборотній системі. При цьому скид зворотної води у р. Сумка можна припинити.
3.3.1 Аналіз гідрохімічного стану дощових та талих вод
Склад показників якості дощових та талих вод, що утворюються на майданчику хімапаратури СМНВО ім. Фрунзе показаний у таблиці 3.1. У цій же таблиці показано гранично допустимі концентрації показників для водойм комунально-побутового водокористування.
Результати аналізів якості дощових та талих вод по випусках викладено у додатку В Ці дані охоплюють період з березня по листопад 2009 року. Проби води взяті по випусках 1-3 на виході з нафтоуловлювачів (для випуску 4 по вул. Холодногорській проби не відбирають, оскільки невідома витрата дощової води з житлової території, яка потрапляє у цей зливовий колектор ).
У випусках № 1-3 (по вул. Леваневського та Привокзальній) аналізи води проводяться регулярно, обсяг даних достатній для аналізу. Для цих випусків (особливо для 2-го та 3-го) у багатьох пробах очищеної води відсутні нафтопродукти та завислі речовини. Це може свідчити про велику тривалість очистки та відсутність опадів у попередній період. Для цих показників узагальнення даних проводилося як з цими нульовими значеннями, так і без них. Вважаємо, що для якості води дощового та талого стоку найбільш характерні дані, у яких відсутні нульові значення.
Аналізи води у випуску 4 проводилися лише наприкінці 2001 року. Кількість аналізів мала (3 проби), концентрації деяких показників дорівнювали нулю, аналізи сульфатів та хлоридів для однієї проби не проводилися, тому для цього випуску у якості фактичних бралися не середні, а максимальні значення (виключення складає РН, для якого бралося середнє значення).
Таблиця 3.2 - Фактична якість очищеної води по випускам
|
№ випуску |
№1 |
№2 |
|
|
рН |
8,00 |
8,12 |
|
|
Концентрації речовин у зворотних водах, мг/л |
Аміак |
0,68 |
1,93 |
|
Залізо загальне |
0,63 |
0,27 |
|
|
Нафтопродукти |
нгв |
нгв |
|
|
Хлориди |
27,9 |
41,09 |
|
|
Сульфати |
22,2 |
24,05 |
|
|
Нітрити |
1,2 |
0,92 |
|
|
Завислі речовини |
9,0 |
8,18 |
|
|
БСК5 |
4,3 |
3,14 |
НГВ нище границі виявлення.
Концентрації речовин у об'єднаному випуску обчислювалися як середньозважені відносно їх площ, оскільки витрата води кожного випуску пропорційна площі території, до якої вона прилегла, тобто
де С1, С3 концентрації речовин у 1-му (2 випуски вул. Леваневського) та 3-му (1 випуск вул. Привокзальна) випуску відповідно [22];
S1, S3 - площі територій, які відносяться до 1-го та 3-го випусків, при S1=60,9 га, S3=5,9 га.
Порівняння даних, наведених у таблиці 3.2, з гранично допустимими концентраціями для водойм комунально-побутового призначення, до яких відноситься р. Сумка, свідчить, що:
- РН лежить в межах 6.5 - 8.5, тобто відповідає санітарним нормам для усіх випусків;
- аміак, або амоній сольовий, у всіх випусках відповідає санітарним нормам;
- залізо загальне у всіх випусках трохи перевищує ГДК (0,3 мг/л);
- нафтопродукти у очищеній воді у всіх випусках перевищує ГДК у 10 та 6.3 рази (за результатами аналізу окремо відібраних проб);
- нітрити, хлориди та сульфати задовольняють санітарні норми для всіх випусків;
- БСК5 за допомогою коефіцієнта 1.33 перераховується у БСКпов. Його значення у випусках 1,2 та 3 дорівнюються відповідно 4,2, 5,7, мгО2/л. Ці значення наближені до ГДК, яке становить 6 мгО2/л.
3.3.2 Гідрологічний та гідрохімічний стан р. Сумка (приймач стічних вод з проммайданчика)
Річка Сумка протікає центром Сум і впадає у р. Псел. На жаль, систематичних даних щодо гідрології та гідрохімії води дуже мало. Витрата води суттєво залежить від дощового та талого стоку. Значна частина міста скидає ці води у р. Сумку. Значення витрати річної води 95 % забезпеченості для визначення кратності розбавлення дощового стоку використано бути не може, тому що ця витрата відповідає «сухому» періоду, коли дощовий стік відсутній. Після дощів витрата води значно збільшується, так саме, як дощовий стік. При зливі інтенсивністю 90 л/с на 1 га витрата води у р. Сумка буде не менше 5 м3/с. Тому можна у розрахунках кратності розбавлення використати саме це значення витрати.
За фонову якість води у р. Сумка можна прийняти дані вимірів, надані Державною екологічною інспекцією в сумській області. Ці дані наведено у табл. 3.3.
Таблиця 3.3 Якість води р. Сумка вище скиду вод зливової каналізації та нижче скиду
|
|
Концентрація речовин, мг/л |
|||||
|
вище скиду |
нижче скиду |
|||||
|
23.03.09 |
23.09.09 |
16.11.09 |
23.03.09 |
23.09.09 |
16.11.09 |
|
|
рН |
7,80 |
7,80 |
8,0 |
7,0 |
7,10 |
8,0 |
|
Амоній сольовий |
0,68 |
0,63 |
0,14 |
0,40 |
0,40 |
0,17 |
|
Залізо загальне |
0,10 |
0,11 |
0,29 |
0,29 |
0,28 |
0,27 |
|
Нітрити |
0,11 |
0,11 |
0,14 |
0,34 |
0,37 |
0,14 |
|
Хлориди |
30,00 |
30,72 |
36,86 |
43,36 |
44,81 |
37,58 |
|
Сульфати |
65,02 |
59,26 |
69,13 |
89,71 |
82,30 |
65,02 |
|
Завислі речовии |
7,0 |
7,5 |
9,0 |
9,5 |
11,0 |
10,5 |
|
БСК повн |
8,3 |
9,5 |
7,7 |
7,7 |
3,5 |
8,1 |
Концентрація заліза загального, нафтопродуктів та БСКпов як вище скиду зливових вод так і нижче нього перевищує ГДК. Вміст амонію, сульфатів та хлоридів задовольняють санітарні вимоги щодо якості води .
Дані, наведені у табл. 3.3 використані при розрахунках якості води у контрольному створі р. Сумка при скиді у неї очищених дощових стоків проммайданчика хімобладнання СМНВО ім. Фрунзе [23]. При цьому враховуються випуски 1 та 2 по вул. Леваневського та 3 Привокзальній. Для випуску 4 по Холодногорській вул. розбавлення не обчислюється, оскільки невідома витрата дощової води з житлової території, які потрапляють у цей зливовий колектор.
3.3 Розрахунок кількості поверхневого стоку, що скидається в
р. Сумка
Атмосферні опади протягом року розподіляються нерівномірно. Здебільшого опади випадають весною та влітку. В теплий сезон опади спостерігаються у вигляді злив. Стійкий сніговий покров утворюється в середньому у першій-другій декадах грудня. Найбільшої висоти він досягає у кінці лютого (10 - 15 см). Руйнування снігового покрову відбувається здебільшого у першій-другій декадах березня, повний схід - кінець березня.
Для розрахунку прийнято наступні значення параметрів:
- загальна кількість опадів для м. Суми за 2009 рік - 609,6 мм;
- середня тривалість дощів за добу із опадами - 5 годин;
- загальна площа майданчика хімапаратури - 107,8 га;
- площа майданчика хімапаратури з твердими покрівлями - 66,8 га.
Дані відносно розподілу площ покрівель по всьому проммайданчику відомі, а дані по кожній окремій території відсутні, тому приймаємо, що відносна площа твердих та ґрунтових покрівель і газонів на кожній території така ж сама, як і по усій території проммайданчика хімапаратури. Розподіл загальної території проммайданчика відносно належності до відповідного стоку наведено у табл.3.4.
Таблиця 3.4 Розподіл загальної території проммайданчика відносно належності до відповідного стоку
|
№ випуску та його розташування |
Площа території, прилеглої до даного випуска, га |
||||
|
Покрівлі |
Асфальто- бетонні покриття |
Газони |
Грунтові покриття |
Всього |
|
|
1. вул. Леваневського 2. вул. Леваневського |
8,6 12,0 |
16,8 23,5 |
2,4 3,4 |
4,6 6,4 |
32,4 45,3 |
|
3. вул. Привокзальна |
2,0 |
3,9 |
0,6 |
1,0 |
7,5 |
|
4. вул. Холодногорська |
6,0 |
11,8 |
1,6 |
3,2 |
22,6 |
|
Загальна кількість |
28,6 |
56,0 |
8,0 |
15,2 |
107,8 |
У випуску № 4 на сьогоднішній день вода відсутня взагалі, тому дані щодо нього не враховуємо.
Знайдемо площу майданчика з твердими покрівлями:
;
;
.
Розрахунок обєму поверхневого стоку з майданчика хімобладнання:
Випуски 1 і 2 обєднуються в один колектор, тому площі, що відносяться до цих випусків, прогумовані. Дощова та тала вода по залізобетонних зливових колекторах діаметром 500 мм скидається у р. Сумка. Перед скидом вода у перших 3-х випусках проходить механічну очистку у нафтовловлювачах. Вода з 4-го випуску не очищується.
Нафтовловлювачі представляють собою вертикальні відстійники, обєм яких дорівнює відповідно по випусках 80, 30 та 80 м3.
Відстань від випусків на вул. Леваневського (№ 1,2) і Привокзальній приблизно однакова і становить близько 4 км. Діаметр колекторів 500 мм. При мінімальній швидкості води в колекторі для цього діаметру - 0.9 м/с тривалість протікання поверхневих вод до розрахункової ділянки дорівнює:
Два колектори, по яким дощові стоки потрапляють у р Сумка, проходять поруч, вода з них скидається у одному створі (випуски №1 і 2), можна вважати цей випуск обєднаним.
Дощові стоки з випуску по вул. Холодногорській потрапляють у міську дощову каналізацію. Далі вони скидаються у р. Сумка. Для визначення кратності розбавлення у контрольному створі необхідна витрата всього дощового стоку, яка невідома. Тому для цього випуску секундні витрати не розраховуємо.
РОЗДІЛ 4
Очищення зливових, талих стічних вод
В останні роки загальною вимогою є зменшення скидання забруднюючих речовин із зворотними водами та повне припинення скидання зворотних вод. СНВО ім. М.В. Фрунзе із р. Псел забирає значні витрати води на технічні потреби. При зменшенні концентрацій речовин у дощових стоках до ГДК ця вода може використовуватися у оборотній системі технічного водопостачання. Тому необхідна установка для очищення дощових та талих вод, після якої стане можливим використання очищеної води у оборотній системі. При цьому скид зворотної води у р. Сумка можливо припинити [20].
За аналізом літературного пошуку найбільш ефективною з технічної та економічної точки зору є установка «Векса -2-М», яка забезпечує вимоги СНіП 2.04.03-85 «Каналізація. Зовнішні мережі і споруди» [24]. Для ефективності очищення зливових стічних вод з майданчика хімобладнання СМНВО ім. Фрунзе необхідно встановити 2 установки, по 1й установці на кожному з випусків: по вул. Лева невського та вул. Привокзальна відповідно. Випуск на вул. Холодногорській проходить очищення на відстійнику.
Установки очищення зливових, талих і виробничих стічних вод Векса-м ТУ 485912-001-98116734-2007 призначені для очищення зливових, талих, виробничих і поливомиючих стічних вод, забруднених нафтопродуктами і зваженими речовинами, промислових підприємств, що відводяться з територій, і селітебних (населених) територій [25].
Модифікація Векса-2-М призначена для очищення зливових, виробничих, талих і поливомиючих стічних вод, з вхідними концентраціями до 700 мг/л по зважених речовинах і до 70 мг/л по нафтопродуктах.
Міра очищення зважені речовини до 3 мг/л і нафтопродукти до 0,05 мг/л. (ГДК скидання у водні об'єкти рибогосподарського призначення). Характеристика очищення поверхневих стоків вказана в таблиці 4.1.
Таблиця 4.1 Характеристики очищення поверхневих стоків
|
Показник |
Значення показників забруднення дощових вод, мг/л |
|
|
На вході в установку |
На виході з установки |
|
|
Зважені речовини |
не більше 400 |
3-5 |
|
Нафтопродукти |
не більш 70* |
0,05-0,3 |
|
БПК5 |
не більше 30 |
2 |
|
Примітка - розчинених нафтопродуктів не більше 5%. |
Таблиця 4.2 Технічні характеристики Векса -2-М
|
Найменування |
Векса -2-М |
|
Потужність (Q), л/с |
2 |
|
Довжина корпусу (L), мм |
2900100 |
|
Висота корпусу (H), мм |
180050 |
|
Діаметр корпусу (D), мм |
150030 |
|
Висота розташування вхідного патрубка (Н1), мм |
135020 |
|
Висота розташування вихідного патрубка (Н2), мм |
125020 |
|
Діаметр патрубків (D1), мм |
110 |
|
Робочий обєм (V), м3 |
3,77 |
|
Маса (суха/з водою), т |
0,53/4,30 |
|
Обєм нафтопродуктів, м3 |
0,06 |
|
Обєм осаду, м3 |
0,27 |
|
Кількість сорбційних фільтрів, шт |
1 |
|
Кількість оглядових колодязів (D2/D3), шт |
1/1 |
Примітки: Висота корпусу (Н) 1800 мм (для Векса-2М, 5М); глибина розташування вхідного патрубка (до лотка) від поверхні землі, (Н3), - 1800 мм (у серійного виконання) і до 3000 мм при замовленні; діаметр корпусу (D) 1500 мм (для Векса-2М, 5М); діаметр оглядового колодязя (D2) 315 мм (для Векса-2М); діаметр оглядового колодязя (D3) 1200 мм; діаметр люка газон/проїзжа частина 1200, 600 мм; у серійного виконання патрубки діаметром (D1) 110, 160 мм можуть бути замінені на 160, 200 мм, при індивідуальному замовленні можливий монтаж патрубків інших діаметрів; індекс - М Установка з двоступінчатим сорбційним очищенням.
Установка Векса-2-М виконана в моно блочного виконання і функціонально складається з п'яти частин: пісколовка 16, тонкошаровий відстійник 17, коалесцентный сепаратор 9, двоступінчатий сорбційний фільтр сорбційний фільтр 10.

Рисунок 4.1 Установка Векса-2-М
1. Корпус (склопластик); 2. Оглядовий колодязь з люком; 3. Вхідний патрубок з розтрубним з'єднанням; 4. Вихідний патрубок з розтрубним з'єднанням; 5. Перша перегородка; 6. Тонкошаровий блок; 7. Друга перегородка; 8. Обвідний байпас; 9. Коалесцентний фільтр (сепаратор); 10. Сорбційний фільтр двоступінчатий (для Векса-м); 11. Сорбційний матеріал першого рівня очищення; 12. Сорбційний матеріал другого рівня очищення (для Векса-м); 13. Люк; 14. Зона накопичення осаду; 15. Зона накопичення нафтопродуктів; 16. Пісколовка; 17. Тонкошаровий відстійник.
D. Діаметр корпусу; D1.Діаметр патрубків; D2, 3.Діаметр оглядового колодязя; Н. Висота корпуси; H1.Висота розташування вхідного патрубка; H2.Висота розташування вихідного патрубка; H3.Глибина розташування вхідного патрубка (до лотка) від поверхні землі; L. Довжина корпусу [26].
Принципи роботи установки Векса-2-М
Установка є циліндричною резервуар-ємкістю (корпус 1), розділеною перегородками 5, 6 утворюючи відсіки: пісколовку 16, тонкошаровий відстійник 17, коалесцентный сепаратор 9 і сорбційний фільтр 10 (рисунок 4.1).
Корпус установки 1 і перегородки виконані з армованого склопластика.
Тонкошаровий блок 6 і коалесцентні фільтри 9 виконані з полімерних матеріалів що володіють низькою адгезією по відношенню до нафтопродуктів.
Вхідний 3 і вихідний 4 патрубки виготовлені з ПВХ.
Пісколовка - відсік призначений для виділення із стічних вод механічних домішок мінерального походження і плівкових нафтопродуктів.
Принцип роботи: стічні води надходять через вхідний патрубок в перший відсік установки пісколовку, де відбувається сповільнення потоку і гравітаційне відділення зважених речовин і нафтопродуктів від води в результаті різниці їх питомої ваги, легші частки нафтопродуктів піднімаються на поверхню, а важкі осідають.
Тонкошаровий відстійник - відсік призначений для затримання розчинених дрібних (мелкодисперсні) зважених речовин і нафтопродуктів
Принцип роботи: первинно освітлена вода в першому відсіку прямує в другий відсік з тонкошаровим блоком. У даному відсіку, що складається з профільних блоків-сепараторів тонкошарового відстоювання, виконаному із спеціальних полімерних матеріалів із збільшеною площею осадження, потік в ламінарному режимі розділяється на шари з метою підвищення ефективності відстоювання. Дрібнодисперсні зважені речовини по похилих пластинах тонкошарового блоку стікають на дно, а спливаючі нафтопродукти збираються на поверхні води.
Коалесцентний сепаратор - відсік призначений для затримання розчинених нафтопродуктів.
Принцип роботи: подальше очищення поверхневого стоку від нафтопродуктів відбувається на контактному коалесцентному фільтрі, за рахунок злиття і укрупнення крапель нафтопродуктів при зіткненні їх на поверхні фільтруючого наповнення, що володіє високою гідрофобністю.
Сорбційний фільтр.
Одноступінчатий сорбційний фільтр призначений для очищення зливових стічних вод до вимог ГДК що регламентуються для скиду у водні об'єкти господарсько-питного і культурно-побутового водокористування.
Принцип роботи: після коалесцентных фільтрів стічні води пропускаються через сорбційний фільтр, що володіє коалесцентними і сорбуючими властивостями. Пройшовши через шар завантаження фільтру, стічні води очищаються від нафтопродуктів і механічних домішок.
Сорбційний фільтр складається з двох циліндричних коалесцентних водопроникних фільтруючих елементів, що створюють між собою порожнину - перший рівень очищення 11, заповнену сорбційним матеріалом з високою сорбцією нафтопродуктів, з поліефірного (ПЕТФ, ПЕТ) нетканого матеріалу або подрібненого еластичного пінополеуретана (рис. 4.1).
Поліефірний сорбційний матеріал є нетканим волокнистим матеріалом, у вигляді полотна, сформованого в єдину об'ємну гофровану структуру із скріплених між собою гідрофобних волокон. При такому способі формування створюються додаткові ємкі порожнини, в які нафтопродукти вільно проникають при безпосередньому контакті, заповнюють весь об'єм полотна за рахунок капілярних сил, міцно стримуються усередині гафрованої волокнистої структури сорбенту за рахунок адгезії і легко відділяються при віджиманні.
Еластичний пінополеуретан має відкриту пористу структуру з середнім розміром пор 0,8-1,2 мм і щільність 25-60 кг/м3, що здається, розміром 15-20 мм, характеризується високою пористістю, механічною міцністю, хімічною стійкістю, гідрофобними властивостями, що забезпечує значну поглинаючу здатність по нафтопродуктам.
Двоступінчатий сорбційний фільтр (лише для Векса-м) призначений для очищення зливових стічних вод до вимог ГДК що регламентуються для скидання у водні об'єкти рибогосподарського призначення.
Сорбційний фільтр складається з трьох циліндричних коалесцентних водопроникних фільтруючих елементів, що утворюють дві порожнини.
Зовнішня порожнина першого рівня очищення заповнена сорбційним поліефірным нетканим матеріалом з високою сорбцією нафтопродуктів, а внутрішня порожнина другого рівня очищення 12 - активованим вугіллям що забезпечує сорбцію розчинених нафтопродуктів до залишкової концентрації 0,05 мг/л.
Активоване вугілля є ефективним сорбентом, пористість цього вугілля складає від 60 до 75%, а питома площа поверхні від 400 м2/г до 900 м2/г.
Висока питома поверхня сорбційного фільтру дозволяє використовувати низькі швидкості фільтрації і ефективно витягувати емульговані нафтопродукти і забезпечувати необхідні залишкові концентрації зважених речовин [26].
Монтаж установки
Перевірити загальний стан корпусу установки на відсутність розривів і тріщин. Перед монтажем очисного устаткування, за наявності, необхідно видалити з ємкості сміття і відкачати дощову воду. Перед монтажем необхідно демонтувати сорбційні фільтри.
Кріплення установки до монтажної фундаментної з/б плити необхідна щоб уникнути її витискування грунтовими водами при спорожненні установки під час технічного обслуговування.
Параметри монтажної фундаментної плити визначаються розрахунковою дорогою в ході проектних робіт. Маса фундаментної плити має бути не менше 50% від маси установки з водою. На монтажній фундаментній плиті слід утрамбувати шар піску (без каменів) не менше 20 див.
При варіанті розміщення установки під проїжджою частиною, необхідно виконати розвантажувальну дорожню плиту з армованого бетону і застосувати чавунні люки ГОСТ 3634-99 (додаток Г).
При установці ємкісного устаткування має бути дотримана правильність орієнтування входу і виходу стічної води, перевірене співпадання всіх отворів.
Після установки ємкості на шар піску, слід залити в нього воду (у всі відсіки) на висоту 20 см для забезпечення стійкості при подальших монтажних роботах.
Кріплення установки до монтажної фундаментної плити здійснюється анкерними нееластичними тросами, протягуючи їх довкола ємкості. Частота розташування, розмір і міцність анкерних тросів залежить від габаритів конкретної установки і рівня грунтових вод. Троси для кріплення повинні закріплюватися уздовж ємкості через 0,8-1,2 м. Троси і кріплення не повинні вдавлюватися в поверхню корпусу установки.
Зворотну засипку здійснювати піском шарами по 20 см, після чого його втрамбувати. Паралельно із засипкою виробляти заливку ємкості водою. Досягнувши рівня засипки вхідного і вихідного патрубків, останні підключити до колектора. На горловину надіти технологічні колодязі.
Встановити датчик рівня нафтопродуктів і прокласти кабель (якщо датчик входить в комплект постачання). Подати стічну воду на установку після повторного очищення водозбірної поверхні від сміття.
Приклад монтажу установки представлений в Додатку Г.
Дзеркало води в установці має бути нижче за рівень промерзання, в інтересах технічного обслуговування.
Порядок технічного обслуговування установки
Щомісячне технічне обслуговування включає перевірку роботи функціональних відсіків установки шляхом візуального контролю їх роботи.
Раз в три-шість місяців необхідно:
- Відкачувати шар нафтопродуктів, що спливли.
- Очищати датчик рівня нафтопродуктів, щоб уникнути помилкового спрацьовування (при його наявності в комплекті постачання).
- Відкачувати шар осаду з пісколовки.
- Промивати пластини тонкошарового блоку водопровідною водою під тиском і видаляти осад, що скупчився під блоком.
- Промивати коалесцентный фільтр.
Періодичність проведення даних операцій залежить від міри забруднення стічних вод, що надходять, тому очищення потрібно здійснювати при необхідності.
Щорічне технічне обслуговування:
- Періодичність заміни сорбційного фільтру обумовлюється вимогами до якості очищення стічних вод (довідкове, один раз в сезон)
- Перевірку роботи датчика рівня нафтопродуктів (якщо знаходиться в комплекті постачання) згідно інструкції по установці і використанню.
Не рідше ніж один раз в два роки слід здійснювати повну ревізію устаткування:
- Поблочне відкачування води з очищенням стінок, перегородок ємкості і технологічних елементів установки від грязі.
- Перевірити корпус і технологічні вузли установки на предмет пошкоджень і прийняти заходи до їх усунення.
Раз в п'ять років слід перевіряти устаткування на герметичність вузлів, і швів, а також стан зовнішніх і внутрішніх стінок корпусу, технологічних елементів і перегородок.
Заміна сорбційних фільтрів (демонтаж) проводиться шляхом підйому їх через оглядові колодязі назовні і установкою нових. Сорбційний фільтр має байонетное кріплення, для витягання сорбційного фільтру необхідно вивести затвор (планку) 2 розташований на кришці 1 із зацепа з лапкою байонета 3, обернувши його проти годинникової стрілки» і потім за рым 4 підняти повільно без ривків назовні, при цьому дати стекти поступово воді їх фільтру (рисунок 4.2).
Монтаж сорбційних фільтрів здійснюється в зворотній послідовності. При монтажі необхідно дати фільтру просочитися водою і лише після самостійного занурення його у воду зафіксувати затвор в лапці байонета[26].

Рисунок 4.2 - Байонетне кріплення сорбційного фільтру
1 Кришка; 2 Затвор (планка); 3 Лапка; 4 Рим.
Розділ 4
Охорона праці
Відповідно до теми дипломної роботи обєктом дослідження в розділі «Охорона праці» обрано поверхневий стік з майданчика хімобладнання СНВО ім. Фрунзе, а також приміщення відділу екоконтролю водних обєктів, атмосферного повітря та поводження з відходами в Державній екологічній інспкції в Сумській області. У звязку з отриманням у даному відділі необхідної вихідної інформації щодо поверхневих стічних вод для написання роботи.
Аналіз поверхневого стоку ВАТ «СМНВО ім. Фрунзе»
Скиди дощових та талих вод з проммайданчика хімапаратури ВАТ «СМНВО ім. Фрунзе» розташовані в межах м. Суми. Згідно з Інструкцією про порядок розробки ГДС [21], якість води на скиді у водний обєкт повинна задовольняти ГДК для водойм комунально - побутового водокористування.
Шкідливі речовини, що потрапили тим, чи іншим шляхом в організм можуть викликати отруєння (гострі чи хронічні). Ступінь отруєння залежить від токсичності речовини, її кількості, часу дії, шляху проникнення, метеорологічних умов, індивідуальних особливостей організму. Гострі отруєння виникають в результаті одноразової дії великих доз шкідливих речовин (чадний газ, метан, сірководень). Хронічні отруєння розвиваються внаслідок тривалої дії на людину невеликих концентрацій шкідливих речовин (свинець, ртуть, марганець). Шкідливі речовини потрапивши в організм розподіляють в ньому нерівномірно.
Склад показників якості дощових та талих вод, що утворюються на майданчику хімапаратури СМНВО ім.. Фрунзе наведений у таблиці 5.1, також показано гранично допустимі концентрації показників для водойм рибогосподарського та комунально побутового водокористування [19].
Таблиця 5.1 - Гранично допустимі концентрації показників для водойм рибогосподарського та комунально побутового водокористування.
|
Показник якості |
Рибогосподарське водокористування |
Комунально побутове водокористування |
|
|
ГДК, мг/л |
ГДК, мг/л |
Клас небезпеки |
|
|
РН |
6,5-8,5 |
6,8-8,5 |
- |
|
Амоній сольовий |
0,5 |
2,0 |
3 |
|
Залізо загальне |
0,1 |
0,3 |
3 |
|
Нафтопродукти |
0,05 |
0,3 |
4 |
|
Хлориди |
300 |
350 |
4 |
|
Сульфати |
100 |
500 |
4 |
|
Нітрити |
0,08 |
не норм. |
2 |
|
Завислі речовини |
<0,25 |
<0,75 |
- |
|
БСК5 |
3,0 |
6,0 |
- |
В таблиці наведено показники, за якими оцінюють не тільки якість води але й непридатність до споживання.
Окисленість. Водневий показник (рН). В природних водах концентрація іонів водню залежить, головним чином, від співвідношення концентрацій вугільної кислоти і її іонів. Джерелами вмісту іонів водню в воді є також гумінові кислоти, які присутні в кислих грунтах і, особливо, в болотяних водах, гідроліз солей тяжких металів. Від рН залежить розвиток водних рослин, характер протікання продукуючих процесів. Кислотно-лужна реакція (рН) не повинна виходити за межі значень 6,5-8,5 [27].
Амоній сольовий (нітрити) - у природній воді аміак утворюється при розкладанні органічних речовин, що містять азот. Добре розчині у воді з сполуки гідроксиду амонію. Вміст іонів амонію в природних водах варіює в інтервалі від 10 до 200 мкг/л у перерахунку на азот. Основними джерелами надходження іонів амонію у водні об'єкти є тваринницькі ферми, господарсько-побутові стічні води, поверхневий стік із сільгоспугідь при використанні амонійних добрив, а також стічні води підприємств харчової, коксохімічної, лісохімічної і хімічної промисловості. Із господарсько-побутовими стічними водами в каналізаційні системи щодоби надходить до 10 г амонійного азоту (у розрахунку на один жителя) [28]. Підвищена концентрація іонів амонію може бути використана в якості індикаторного показника, що відбиває погіршення санітарного стану водного об'єкту, процесу забруднення поверхневих і підземних вод, у першу чергу, побутовими і сільськогосподарськими стоками.
Залізо загальне токсичність сполук заліза у воді залежить від рН. У лужному середовищі токсичність зростає. Від надмірного вмісту заліза у воді можуть гинути риба, водорості. Велику небезпеку представляють стічні води виробництв, повязаних з переробкою залізовмісних продуктів. Пил заліза утворюється при заточенні металевого інструменту, очищення деталей від іржі, електрозварювання і при інших виробничих процесах, в яких мають місце залізо. З дощовими, паводками та ґрунтовими водами вивільняються з твердих матриць метали переносяться в річки і водойми. Залізо знаходиться в природних водах у різних станах і формах: в істинно розчиненої формі входять до складу донних відкладень і гетерогенних систем (суспензії й колоїди) [28].
Нафтопродукти - надходячи у водойми, утворять вільно плаваючі крапельки (у товщі води), нафтову плівку (на поверхні), розчинені, эмульговані й важкі фракції (останні осідають на дно), а також адсорбуються ґрунтами. При надходженні у водойму сирої нафти звичайно утвориться нафтова плівка й забруднюється дно, а при скиданні неочищених або недостатньо очищених стічних вод виникають практично всі відзначені форми нафтового забруднення. Негативний вплив нафтопродуктів позначається на рибному господарстві, навіть незначні домішки нафтопродуктів у водоймах надають рибі неприємного присмаку і запаху, а у великій кількості призводять до її загибелі [31].
Сульфати та хлориди надходять в основному з дощем, джерелом сульфатів служить головним чином гіпс, інколи залізний колчедан, що легко окислюється. Викликають агресивність води по відношенню до бетону на силікатному цементі. Ці речовини негативно впливають на функції системи травлення [28].
Нітрити - використовуються в якості інгібіторів корозії в процесах водопідготовки технологічної води і тому можуть потрапити у системи господарсько-питного водопостачання. У поверхневих водах нітрити знаходяться в розчиненому виді. Підвищений вміст нітритів вказує на посилення процесів розкладання органічних речовин в умовах більш повільного окислювання NO2- у NO3-, що вказує на забруднення водного об'єкта, тобто є важливим санітарним показником. Сезонні коливання нітритів характеризуються відсутністю їх зимою і появою навесні при розкладанні неживої органічної речовини. Найбільша концентрація нітритів спостерігається наприкінці літа, їхня присутність пов'язана з активністю фітопланктону[27,31].
Завислі речовини - зважені тверді речовини, що присутні у природних водах, складаються з часток глини, піску, мулу, суспендованих органічних і неорганічних речовин, планктону й інших мікроорганізмів. Концентрація зважених часток пов'язана із сезонними факторами і з режимом стоку і залежить від танення снігу, порід, що складають річище, а також від антропогенних факторів, таких як сільське господарство, гірські розробки і т.п. Зважені частки впливають на прозорість води і на проникнення в її світла, на температуру, розчинені компоненти поверхневих вод, адсорбцію токсичних речовин, а також на склад і розподіл відкладень і на швидкість осадоутворення. Вода, у якій багато зважених часток, не підходить для рекреаційного використання [30].
Біохімічне споживання кисню (БСК5) - це кількість кисню в міліграмах, потрібна для окиснення органічних речовин, що містяться в 1 л води, аеробними бактеріями до СО2 і Н2О впродовж 5 діб без доступу повітря і світла. БСК5 - важливий екологічний показник стану природних водойм. За високого вмісту органічних речовин у воді швидко розмножуються аеробні бактерії, для життєдіяльності яких необхідний кисень. Це може зумовити зниження вмісту розчиненого кисню, створити гіпоксичні умови і загибель окремих видів гідробіонтів. БСК5 не включає витрат на нітрифікацію [31].
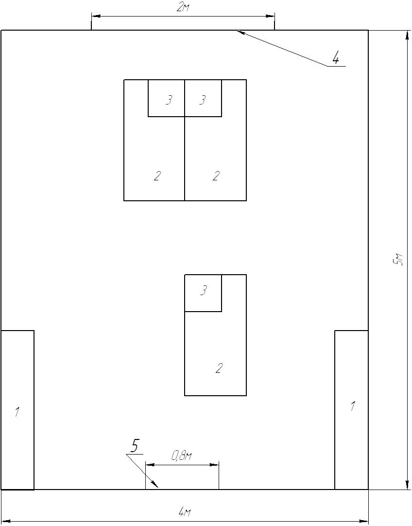
Аналіз параметрів приміщення
Приміщення відділу знаходиться на четвертому поверсі адміністративної будівлі. Загальна площа приміщення становить 20м2, висота 2,5м,приміщеня має одне вікно .Кількість працюючих у приміщенні 2 чоловіка. Отже, на одного працюючого в приміщенні припадає: 20 : 2 = 10 (м2/чол..) робочої площі. Згідно із СНиП 2.09.04 87[32,33] на кожного працюючого в управлінських приміщеннях повинно припадати не менше 6 (м2/чол..) робочої площі. Висота приміщення не менше 2,5м.Отже, нормативи розмірів та забезпечення працюючих робочою площею в офісі дотримано. У приміщенні розташовано 3 компютера. Напруга джерела живлення компютерів у приміщенні 220 В. У приміщенні розміщені 3 письмових столів, 1 шафа для зберігання документів, 1 шафа для зберігання речей.
За небезпекою ураження електричним струмом управлінське приміщення відділу належать до приміщень без підвищеної небезпеки ураження електричним струмом працюючих.
Загальна площа приміщення складає: Sобщ=20 м2
Висота приміщення: H= 2,5 м.
У приміщенні може працювати три люди. Площа і об'єм, що доводиться на одну людину відповідно рівні:
S1=20/3=6,67 м2
V1=(20*2,5)/2=16,67 м3
Набуті значення S1 і V1 задовольняють вимоги СНіП 2.09.04- 87 [34]
(S1 норм.=6 м2, V1 норм.=15 м3).
За ступенем небезпеки ураження електричним струмом приміщення є без підвищеної небезпеки. Для нього характені умови: сухість, незапиленість, нормальна температура повітря, ізольована бетонном підлога, з невеликою кількістю заземлених предметів і відсутністю хімічно активних середовищ, що руйнують ізоляцію.

Рисунок 5.1 - Схема приміщення
На рисунку позначно: 1 шафа, 2 стіл, 3 компютер, 4 вікно, 5 двері.
Штучне освітлення
Освітлення робочого місця найважливіший чинник створеня нормальних умов праці. Правильно спроектоване і виконане освітлення забезпечує високий рівень працездатності, надає позитивну психологічну дію на працюючих, сприяє підвищенню продуктивності праці. Про важливість питань виробничого освітлення говорить і той факт, що умови діяльності операторів в системі «людина - машина» повязані з явним переважанням зорової інформації до 90% загального обму. Освітлення згідно з Сніп 11-4-79 нормується таким чином (таб. 5.2) [35].
Таблиця 5.2 Нормування освітлення
|
Характеристика зорової роботи |
Контраст |
Фон |
Освітленість |
|
IV. Мін. обєкт розрізнення 0,3 0,5 мм |
Середній |
Середній |
300 |
Таким чином, освітленість повинна бути не менше 300 лк.
По конструктивному виконанню штучне освітлення може бути загальним, або комбінованим. При загальній освітленості всі робочі місця одержують робоче освітлення від загальної установки. Комбіноване освітлення разом із загальним включає місцеве освітлення робочого місця. Вибране загальне освітлення, для виключення відблисків на екрані ЕОМ.
Для оцінки ефективності штучного освітлення приміщення необхідно порівняти значення фактичної освітленості і нормованго значення по СНіП II-4-79. Значення розрахункової освітленості при використовуванні ламп розжарювання може бути розраховано за допомогою методу коефіцієнта використовування світлового потоку за формулою:
звідки лк,
де Fл світловий потік лампи, лм (застосовуємо лампу розжарювання типу б потужністю 100 Вт, світловий потік лампи складає Fл = 4900 лм );
в коефіцієнт використовування світлового потоку. Для світильників, які використовуються в загальних будівлях для традиційних розмірів приміщення і кольорової обробки, коефіцієнт використовування може змінювати значення в межах в = 0,4+0,6;
N кількість світильників. (N=4шт) Кількість світильників необхідна розташувати рівномірно за площею приміщення, по сторонах квадрата, слідуючи таким умовам
n кількість ламп у світильнику, 2 шт;
S площа приміщення, 20м2;
K коефіцієнт запасу (К= 1,5+2)
Z коефіцієнт нерівномірності освітлення: для ламп розжарювання (Z=1,15)
в = (0,4+0,6)/3=0,33
К = (1,5+2)/3=1,17
(люкс)
Отже, значення штучного освітлення нормоване (327 300), а це свідчить про його достатність в приміщенні.
Рисунок 5.2 - Схема розміщення світильників
Аналіз природної вентиляції
При дослідженні ефективності природної вентиляції в офісному приміщенні потрібно врахувати, що відповідно до СНіП 2.09.04-87 за умови, якщо об'єм робочого приміщення, що припадає на кожного працюючого, менше 20м3,необхідний повітрообмін повинен становити не менше L=30м3/год на одну особу [36].
Таким чином, необхідний повітрообмін LH обчислюється за формулою:
, м3/год,
де n кількість працюючих.
, (м3/год).
Фактичний повітрообмін Lф:
, м3/год,
де Fкв площа квартирки, через яку буде виходити повітря,м2
- коефіцієнт витрат повітря, береться в межах =0,55;
Vп швидкість виходу повітря через квартирку, м/с. Розрахуємо швидкість виходу повітря з верхнього отвору за формулою:
,
де g - прискорення вільного падіння, м/с2 (g = 9,81 м/с2);
H2 тепловий натиск, під дією якого виходитиме повітря через кватирку (кг/м2).
,
де h2 - висота від площі рівного тиску до центру кватирки;
і - відповідно об'ємні маси повітря зовні і усередині приміщення,
кГс/м3.
Об'ємна маса повітря визначається за формулою:
,
де Рб - барометричний тиск, мм. рт. ст. (Рб = 750 мм. рт. ст.).
Т - температура повітря, оК.
Для відділу, де виконуються легкі роботи відповідно ГОСТу 12.1.005-88 для теплого періоду року, температура повинна складати не більш t = 28°С або T = 301°К, а для холодного періоду року - t = 17°С або T = 290°К.
Для повітря температуру приймаємо відповідно СНіП 2.04.05-91:
для літа - t = 24°C або T = 297°K;
для зими - t = -11°C або Т = 262°К.
З геометричних розмірів приміщення h1+h2=h,
де h відома висота між центрами нижніх та верхніх прорізів.
Sкв=0,7м , Sдв=1,8м.
Розрахуємо фактичний повітрообмін влітку і взимку, кгс/м2:
У приміщенні:
(кгс/м2);
Зовні:
(кгс/м2);
Знайдемо h2 із співвідношень, при h2 =1,9:
Vвліт =
Vвзим =
З даного розрахунку видно, що природна вентиляція ефективна у відділі в літній і в зимовий періоди року.
Рисунок 5.3 - Схема розрахунку природної вентиляції
Рекомендації
Для зменшення надлишкового повітрообміну в холодний період року (2340,95замість необхідних 90м3/год),а в теплий період (1496,9 замість необхідних 90м3/год) пропонуємо скоротити час провітрювання приміщення[36]:
Взимку до:
2340,95 м3/год 60 хв.
90 м3/год Х хв.
Влітку до:
1496,9 м3/год 60 хв.
90 м3/год Х хв.
де SB площа всіх вікон у приміщенні, м2
Sh площа підлоги приміщенні, м2
3 загальний коефіцієнт світлопроникності віконного прорізу, беремо
3= 0,4 коефіцієнт, який враховує відбиття світла від внутрішніх поверхонь приміщення
в світлова характеристика вікна
Кбуд коефіціент, що враховує затемнення вікон іншими будинками (будинків немає отже, Кбуд=1);
Кз коефіціент запасу (Кз=1,4)
Щоб визначити, необхідно знайти відношення довжини приміщення до його глибини і відношення глибини приміщення (відстань від вікна до протилежної йому стіни) до висоти від рівня умовної робочої поверхні (0,8 м) до верху вікна.
Відношення довжини приміщення до його глибини:
5 / 4=1,25
Відношення глибини приміщення до висоти від рівня умовної робочої поверхні до верху вікна:
4(1,4+(1-0,8)=2,5
знаходимо, що = 17,00
Відношення відстані розрахункової крапки від зовнішньої стіни (найбільше видалення робочого місця від вікна = (2,5м) до глибини приміщення (4м) рівне:
2,5/4=0,625
Отже r1 = 1,8
Для розрахунку коефіцієнта r1 необхідно розрахувати такі параметри:
- відношення глибини приміщення до висоти від рівня умовної робочої поверхні до верху вікна: 4/1,6=2,5
- відношення відстані до розрахункової точки від зовнішньої стіни до глибини приміщення: 2,5/4=0,625
- середньозважений коефіцієнт відбиття сз =0,4;
- відношення довжини приміщення до його глибини: 5/4=1,25
Виходячи із розрахованих показників, із таблиці значень коефіцієнта при боковому однобічному освітленні визначимо його значення за допомогою формули екстраполяції:
де yi значення функції при і-ому аргументі;
yi+1 - значення функції при (i+1)ому аргументі;
y(х) значення функції при заданому аргументі, що знаходиться між значеннями аргументів xi та xi+1
xі--те значення аргументу;
xi+1-(i+1)- те значення аргументу.
Звідси r1 дорівнюватиме:
r1(1,25)=1,45+=2,763
Для визначення коефіцієнта в потрібно скористатися таблицею значень світлової характеристики в світлових прорізів при боковому освітленні:
в(1,25)=16+
в (1,25)=18+
в (2,5)= 17,5+
Кбуд= 1 (будинків напроти вікон немає)
Кз= 1,4
Отже,
Еф ==1,12%
Оскільки фактичне значення природного освітлення більше нормованого(1,121,01) то природного освітлення в приміщенні достатнє і заходи щодо його поліпшення не потрібні [35].
Параметри мікроклімату.
Під мікрокліматом виробничого середовища згідно ДСН 3.3.6.042-99 [33] розуміють поєднання температури, відносної вогкості, швидкості руху і запорошеної повітря. Ці параметри роблять величезний вплив на функціональну діяльність людини, його самопочуття і здоров'я і на надійність роботи засобів обчислювальної техніки.
Параметри мікроклімату в приміщенні відповідають ДСН 3.3.6.042-99 [33] (21° С, відносна вологість повітря - 60%, швидкість повітря 0,2 м/с).
Для забезпечення належного якісного (т.ч. аераційного і незапорошеного) складу повітря проводяться:
- систематичні провітрювання;
- щоденне вологе прибирання;
- щомісячне протирання спиртом клавіатури і екрану;
- наявність приточування-витяжної вентиляції;
- установка зволожувачів.
Для виключення впливу сонячної радіації, що дестабілізує мікроклімат (і освітлення), на вікнах передбачені штори або жалюзі.
Пожежна безпека
Пожежна профілактика ґрунтується на виключенні умов, необхідних для горіння, і використовуванні принципів забезпечення безпеки. Пожежна безпека відповідає ОНТП 24-86 [38] і забезпечується запобіганням пожежам і пожежним захистом. Запобігання пожежі досягається виключенням утворення горючого середовища і джерел запалення, а також підтримкою параметрів середовища в межах, що виключають горіння. В «Державній екологічній інспекції в Сумській обл.» є людина яка слідкує за охороною праці. Приміщення за небезпекою виникнення пожежі відповідно до ОНТП 24-86 відноситься до категорії В ( пожежонебезпечні - в ньому наявні легкозаймисті речовини - папір, дерево) [39].
Причини які можуть бути:
- коротке замикання в електричній, що може спричинити загоряння наявних легкозаймистих речовин;
- займання паперу, дерева через необережне поводження з вогнем;
- необережне поводження з електроприладами;
- знехтування правил пожежної безпеки;
- поширення вогню з сусідніх приміщень.
Попередити пожежу можна шляхом розроблення правил безпечної поведінки із вогнем, дотримання правил протипожежної безпеки, усуненням можливості виникнення короткого замикання.
У разі виникнення пожежі, своєчасно та з мінімальними наслідками дають можливість її загасити наявні пожежна сигналізація та вогнегасники з обмеженням розповсюдження пожежі, і створення умов для евакуації людей [37].
Рисунок 5.4 - План схема евакуації із приміщення:
1- досліджуване приміщення; шляхи евакуації.
Шкідливість комп'ютерів
Згідно з «Гігієнічною класифікацією праці Міністерства охорони здоров'я N4137-86» робота оператора ЕОМ відноситься до I-П класу за гігієнічних умов, його тяжкість не повинна перевищувати оптимальних, а напруженість - допустимих величин. На користувача персональних комп'ютерів потенційно впливають наступні чинники виробничого середовища [40]:
- небезпека враження електричним струмом;
- шум;
- недостатня освітленість;
- параметри мікроклімату;
- небезпека виникнення пожежі;
- електромагнітні поля і випромінювання;
- статична електрика;
- психоемоційні напруги.
Робоче місце користувача відеотерміналу і ЕОМ повинне відповідати ГОСТ 12.2.032-78.
Довжина столу (зліва направо) 1,2м., ширина забезпечує місце перед клавіатурою (38см.) для розташування записів. Поверхня столу горизонтальна. Ширина простору для ніг під столом 65см., глибина - 60см.
Рельєф спинки стільців, що знаходяться в кабінеті, повторює форму спини. Висота поверхні сидіння складає 45см., кут нахилу спинки - в межах 90-110 град. Ширина сидіння - 40см, глибина - не менше 38см. Висота опорної поверхні спинки - 40см., її ширина - 42см.
Поверхня сидіння і спинки напівм'яка, з нековзним, не електризуючим покриттям. Фахівці з ергономіки вважають, що кут між стегнами і хребтом повинен складати 90 град. Працюючий за терміналом повинен сидіти прямо, спираючись у області нижніх вузлів лопаток на спинку крісла, не сутуливши ся, з невеликим нахилом голови вперед (до 5-7 град.). Передпліччя повинні спиратися на поверхню столу, знімаючи тим самим статичну напругу плечового поясу і рук.
Руки повинні розташовуватися так, щоб вони знаходилися на відстані декількох десятків сантиметрів від тулуба.
Таблиця 5.3 - Основні технічні характеристики дисплея
|
Розмір екрану по діагоналі |
15" |
|
Місткість екрану |
4000-6000 символів |
|
Зображення |
монохромне або кольорове з растром 1024х768 |
|
Частота кадрової розгортки |
75 Гц |
|
Рівень невикористаного рентгенівського випромінювання на відстані 5см від екрану |
Не більш 100мкР/ч |
|
Напруженість електростатичного поля на робочому місці |
Не більш 15 кВт/ч |
Термінали розташовані екраном праворуч від вікна, оскільки інтенсивна освітленість поля зору може затопити потоками світла і розмити зображення оригіналу на сітківці ока.
Стіна позаду комп'ютера повинна бути освітлена приблизно так само, як і екран. Для зменшення поглинання світла потовк, верхні частини стін і віконні рами забарвлені білим кольором (коефіцієнт віддзеркалення 0.7), стіни і панелі - помірно-світлими (блакитним тоном) (к. о. 0.5-0.6).
Положення тіла звичайно відповідає напряму погляду. Дисплеї, розташовані дуже низько або під неправильним кутом, є основними причинами появи сутулості. У кабінеті лінія погляду перпендикулярна центру екрану і оптимальне її відхилення у вертикальній площині знаходиться в межах 7 град. Оптимальний погляд в горизонтальній площині від центральної осі екрану знаходиться в межах 20 град. При розгляді інформації, що знаходиться в крайніх положеннях екрану, кут розгляду, обмежений лінією погляду і поверхнею екрану, складає не менше 45 град. Чим більше кут розгляду, тим легше сприймати інформацію з екрану і менше втомлюватимуться очі. Характеристика вентиляції у відповідності СніП 2.04-05-91[35]. У кабінеті повітрообмін відбувається унаслідок різниці температур повітря в приміщенні і зовнішнього повітря, а також в результаті дії вітру, отже, це природна вентиляція (необмежена), оскільки надходження і видалення повітря відбувається через вікно (провітрювання).
РОЗДІЛ 6
ОЦІНКА ЕКОНОМІЧНОГО РЕЗУЛЬТАТУ ПРИРОДООХОРОННИХ ЗАХОДІВ
6.1 Економічний збиток від порушення природнього середовища
Забруднення навколишнього середовища приводить до виникнення двох видів затрат в народному господарстві:
1) затрат на попередження впливу забрудненого середовища на реципієнтів;
2) затрат, що викликаються впливом на них забрудненого середовища.
Останні виникаютть, якщо повне попередження такого впливу не можливо або якщо затрати на повне попередження впливу виявляються більшими, ніж сума затрат обох типів при частковом запобіганні впливу забрудненого середовища на людей та різні обєкти. Так як при викиді забруднень в середовище подібні ситуації трапляються часто, то обидва вказані типи затрат звичайно мають місце одночасно [41].
Сума затрат цих двох типів називається економічним збитком від порушення навколишнього середовища. Розрахунки економічного збитку від забруднення навколишнтого середовища проводяться при плануванні та проектуванні природоохоронних заходів у всіх випадках, коли визначається чистий економічний ефект цих заходів.
Затрати на попередження впливу забрудненого середовища на рецепієнтів при забрудненні водойм визначається величиной витрат, необхідних для попередження використання забрудненої води на технічні та комунально-побутові потреби.
До цих витрат відносять: затрати на розбавлення стічних вод, застосування більш складних ніж у відсутності забруднень, способів очистки води при водопідготовці, на переніс водозабору або переміщенні водоспоживачів до більш чистих водних джерел, на організацію використання нових чистих джерел і т.д.
Затрати, які виникають внаслідок впливу забрудненого середовища на рецепієнтів, мають місце головним чином при забрудненні атмосфери, а при забрудненні водних джерел у тих водоспоживачив, які використовують забруднену воду. Величина цих затрат визначається витратами на компенсацію негативних наслідків впливу забруднень на людей та різноманітні обєкти.
Вказані затрати є сумою приведених затрат на:
медичне обслуговування людей, які захворіли внаслідок забруднення навколишнього середовища;
компенсацію втрат чистої продукції через зниження продуктивності праці, а також невихід працюючих на роботу в результаті впливу забруднень навколишнього середовища на населення;
додаткові послуги комунально-побутового господарства через забруднення середовища;
компенсацію кількісних та якісних втрат продукції в звязку зі зниженням продуктивності земельних, лісних, водних та інших ресурсів при забрудненні середовища;
компенсацію втрат промимсловой продукції через вплив забруднення на основні фонди [42].
В складі затрат, які виникають внаслідок впливу забрудненого середовища, повинні враховуватись і затрати, що викликаються вторинним забрудненням .
Економічний збиток від забруднення середовища є комплексною величиною та складається із збитків, що наносяться окремим водним обєктам та видам рецепієнтів в межах забрудненой зони.
Основними економічними показниками при проектуванні нового устаткування є собівартість, оптова ціна устаткування, річні експлуатаційні витрати по його обслуговуванню.
Економія у споживача формується за рахунок зниження собівартості виготовлення продукції в результаті економії на умовно постійних витратах.
6.2 Визначення експлуатаційних витрат для споживача
Балансова вартість основних виробничих фондів визначається як сума капітальних вкладень споживача. Капітальні вкладення споживача визначаються як сума витрат на придбання устаткування, його транспортування і монтаж.
Визначимо капітальні вкладення по обох варіантах. Капітальні витрати у споживача визначаються по формулі:
,
де - ціна нового апарату, тис.грн.;
=75451,5грн, але потрібно 2 устаткування, по 1 на кожен випуск, тому ;
- витрати на будівельно монтажні роботи, тис.грн.;
- транспортні витрати, тис.грн. [42].
Вартість монтажних робіт визначається за формулою:
,
де - коефіцієнт, що враховує співвідношення вартості будівельно-монтажних робіт і ціни апарату (приймається рівним 0,35, за даними виробника).
(грн).
Транспортні витрати складають 9% від вартості устаткування:
(грн).
Таким чином, балансова вартість основних виробничих фондів складе:
(грн).
6.3 Розрахунок поточних експлуатаційних витрат споживача
Чисельність обслуговуючого персоналу:
,
де =1 кількість змін;
(чол).
Приймаємо 2 людини: слюсар та оператор.
Розраховуємо фонд основної заробітної платні робітників, що обслуговуватимуть установку. Розрахунок зведений в таблицю 6.1.
Таблиця 6.1 - Розрахунок фонду заробітної плати робітників, що обслуговуватимуть установку
|
Категорія робітників |
Чисельність, чол. |
Оклад, грн/міс. |
Діючий фонд часу, міс. |
Фонд основної заробітної плати, грн. |
|
Оператор |
1 |
700 |
12 |
8400 |
|
Слюсар |
1 |
750 |
12 |
9000 |
|
Загальна сума |
17400 |
Фонд додаткової заробітної плати робітників визначається за формулою:
,
де - коефіцієнт додаткової заробітної плати [43].
(грн).
Фонд заробітної плати робітників:
Відрахування на соціальні заходи становитимуть:
Витрати споживача на поточний ремонт складають 10% від нормативної вартості:
Витрати на технічне обслуговування складають 2% від нормативної вартості [44]:
Термін служби установки «Векса-2-М» складає 30 років. Визначимо річні амортизаційні відрахування:
Тоді поточні витрати у споживача складуть:
Питомі поточні витрати складуть:
6.4 Розрахунок економічного річного ефекту для споживача
Економія споживача на поточних витратах складає [45]:
Сума економії зменшення скиду зливових вод:
- плата за скид у 2009р склала 4213,60 грн.;
- плата за спеціальне водокористування поверхневими водами у 2009р була 6780,22 грн;
Термін окупності капітальних витрат на встановлення устаткування «Векса-2-М» визначаємо з формули [42]:
Основні техніко економічні показники наведені в таблиці 6.2.
Таблиця 6.2 - Техніко економічні показники роботи устаткування «Векса-2-М»
|
Найменування показника |
Розрахункові дані для «Векса-2-М» |
|
Продуктивність, л/добу |
172800 |
|
Вартість установки (2 шт) |
150903 |
|
Експлуатаційні витрати, грн. Зокрема: |
|
|
1) заробітна плати з вдрахуваннями на соцстрах, грн. |
20358 |
|
2) витрати на поточний ремонт, грн. |
21730 |
|
3) витрати на технічне обслуговування, грн. |
4346 |
|
4) амортизаційні відрахування, грн. |
7243,3 |
|
Економія споживача, грн. |
74065,8 |
|
Термін окупності капітальних витрат, років. |
3 |
|
Сплата за понаднормовий скид та водокористування до встановлення установки «Векса - 2 М», грн/рік |
10993,8 |
|
Сплата за понаднормовий скид та водокористування після встановлення установки «Векса - 2 М», грн/рік |
0 |
ВИСНОВКИ
- В дипломній роботі розглянуто систему відведення поверхневих стічних вод з міських територій, існуючі проблеми утворення та відведення поверхневого стоку, його якісний склад, системи очищення поверхневих стічних вод.
- Встановлено та досліджено ситуацію з відведенням поверхневих стічних вод в м. Суми, а також визначено місця випуску поверхневого стоку з окремих територій, з нанесенням їх на карті м. Суми.
- Встановлено, що контроль за якісним складом поверхневого стоку з території міста не проводиться. Контроль поверхневого стоку здійснюється лише трьома промисловими підприємствами тих вод, що відводяться з їх власної території. Це промислові підприємства: ВАТ «СМНВО ім.Фрунзе», ВАТ «Selmi». Відповідальної організації за стан та експлуатацію системи дощової каналізації в м. Суми не виявлено (ДКП«Шляхрембуд» за договором з Міськрадою виконує роботи по чищенню дощоприймальників від наносів та мулу ( 2 рази на рік)), не менш важними виявились проблеми відсутності системи відводу поверхневих вод від певних територій міста, стан існуючой дощової каналізаційної мережі та ін.
- Провели розрахунок обсягів поверхневого стоку з окремих територій міста з майданчику хімобладнання ВАТ «СМНВО ім. Фрунзе».
- Проаналізувавши існуючу ситуацію з дощовою каналізацією на досліджуваному обєкті - майданчик хімобладнання ВАТ «СМНВО ім. Фрунзе» першочерговою виявилася проблема відсутності систем очищення зливоих, талих вод з даної промислової території, тан наявних нафтуловлювачів незадовільний.
- Запропоновані шляхи їх вирішення, а також наведені рекомендації та пропозиції щодо вдосконалення системи збору та відведення поверхневих стічних вод.
- Проведена оцінка економічного збитку від забруднення поверхневим стоком.
- Визначена економічна ефективність здійснення природоохоронного заходу, а саме: від встановлення установки очищення зливових, талих і виробничих стічних вод Векса2М.
СПИСОК ВИКОРИСТАНОЇ ЛІТЕРАТУРИ
1. Заставний Ф.Д. Географія України: У 2-х книгах.- Львів: Світ, 1994.
2. Олійник Я.Б., Шищенко П.Г., Степаненко А.В., Масляк П.О. Географія. Навч. посіб. для старшокласників та абітурієнтів. К.: Т-во «Знання», КОО, 2006.
3. Маринич О.М., Шищенко П.Г. Фізична географія України: Підручник. - К.: Т-во «Знання», КОО, 2003.
4. П., Олійник Я. Б., СтепаненкоА. В. Вступ до економічної і соціальної географії: Підручник. Масляк П.О., Шищенко П.Г. Географія України. Київ, 1997. Охорона навколишнього середовища та раціональне використання природних ресурсів в Україні.
5. Березницька Н.О. Гідролого-морфологічні процеси гирлової області р. Дністер //Гідрологія, гідрохімія і гідроекологія, 2006. Т. 11. С. 185-190.
6. Экология города//Под ред. Стольберга Ф.В. Киев:Либра. 2000. - 464 с.
7. Отведение и очистка поверхностных сточных вод: Учеб. Пособие для вузов / В. С. Дикаревский, А. М. Курганов, А. П. Нечаев, М. И. Алексеев. Л.: стройиздат. Ленингр.созд-ние, 1990. 224 с : ил.
8. Бортук Б.О., Федоров Н.Ф. Канализационные сети. Учеб. пособие для вузов. Изд. 2-е, перераб. и доп. М.: Стройиздат, 1976. 272 с.
9. А. А. Бухолдин, Э.И. Горяинов, А.В. Рокшевская и др. Особенности состава поверхностного стока с территории городов / проблемы охраны вод, вып.5.-Харьков: ВНИИВО, 1974
10. М. И. Алексеев, А. М. Курганов. Организация отведения поверхностного (дождевого и талого) стока с урбанизированных территорий. Москва, 2000. 352 с.
11. СниП 11-32-74. Нормы прэктирования. Канализация. Наружные сети и сооружения. М., Стройиздат, 1976.
12. Мазур И.И., Молдаванов О.И., Шишов В.Н. Инженерная экология. Общий курс: В2т.Т.1. Теоретические основы инженернй экологии. Учебное пособие для вузов /Под ред. И.И. Мазура. М.:Высшая школа,1996. ст.437-49.
13. Статистичні дані ДК «Шляхрембуд», внутрішня робоча документація, 2008р.
14. Офіційні дані лабораторних досліджень державної екологічної інспекції в Сумській обл., м. Суми, вул. Кірова 27.
15. ecosumy@sm.ukrtel.net 2003 © Державне управління охорони навколишнього природного середовища в Сумській області. Регіональні екологічні проблеми.
16. Інформація про стан довкілля за даними моніторингових спостережень за 2009 р у Сумській обл.
17. ecosumy@sm.ukrtel.net 2003 © Державне управління охорони навколишнього природного середовища в Сумській області.: Екологічний бюлетень.Ст.Інформація про стан довкілля за даними моніторингових спостережень за IV кв. та 2008р.
18. www.frunze.com.ua
19. ГОСТ 1874-82. Вода питьевая. Гигиенические требования и контроль за качеством.
20. Правила охорони поверхневих вод від забруднення зворотними водами./Затверджено постановою Кабміну України від 25.03.99 №465.
21. Інструкція про порядок розробки та затвердження гранично допустимих скидів (ГДС) речовин у водні обєкти із зворотними водами./Харків, Укр. НЦОВ, ЮНИТЕП, 1994 р.
22. Методические рекомендации по прогнозированию химического состава поверхностных вод с учетом перераспределения стока. Л.: Гидрометиоиздат, 1988 г.
23. Сведения об исследовании сочнх вод. Центральная лаборатория при ОАО «Сумское НПО им. М. В. Фрунзе», 2009 г.
24. СНіП 2.04.03-85 «Каналізація. Зовнішні мережі і споруди».
25. Установка очистки ливневых, талых и производственных сточных вод ВЕКСА 5 М, ТУ 485912-001-98116734-2007.
26. Компания «Витэко», Руководство по эксплуатации установок Векса, Векса м Ш.012.000 РЕ.
27. Справочник по гидрохимии./ Под ред. А.М. Никанорова. -Л.: Гидрометеоиздат, 1988.
28. Зенин А.А., Белоусова Н.В. Гидрохимический словарь.- Л.: Гидрометеоиздат,1988.
29. Косов В.И. Иванов В.Н. Охрана и рациональное использование водных ресурсов. Ч.1 Охрана поверхностных вод: уч. пособие.- Твер. гос. техн. ун-т, 1995.
30. Зверев В.П. Гидрогеохимия осадочного процесса. - М.: «Наука», 1993.
31. Вредные химические вещества. Неорганические соединения I-IV групп: Справ. изд./ Под ред. В.А. Филова и др. Л.: Химия
32. ГОСТ 12.0.003-74. Опасные и вредные производственные факторы. Классификация.
33. ДСН 3.3.6.042.-99. Санытарны норми мыкроклымату виробничих примыщень.
34. СНиП 2.09.04-87. Административные и бытовые здания.
35. СНиП II-4-79. Естественное и искуственное освещение.
36. СНиП 2.04.05-91. Отопление, вентиляция и кондиционирование воздуха.
37. СНиП 2.09.02-85. Производственные здания промышленных предприятий. Нормы проектирования.
38. СНиП 2.01.02-85. Противопожарные нормы проектирования зданий и сооружений.
39. ОНТП 24-86 (общесоюзные нормы технологического проектирования). Определение категорий помещений по взрывной и пожарнй опасности.
40. Гігієнічна класифікація праці Міністерства охорони здоров'я N4137-86.
41. Временная типоввая методика определения экономической эффективности осуществления природоохранных мероприятий и оценки экономического ущерба, причиняемого народному хозяйству загрязнением окружающей среды. А. С. Быстров, В. В. Варанкин, М. А, Виленский и др. М.: Экономика, 1986. 96 с.
42. Мельник Л.Г. Екологічна економіка: Підручник. Суми: ВТД « Університетська книга», 2002. 346с.
43. Гофман К.Г. Методологические вопросы планирования охраны окружающей среды от загрязнения //Охрана окружающей среды. Модели управления чистотой природной среды. М. Экономика, 1977 г.
44. Гусев А.А. Один подход к планированию качества окружающей среды в регионах //Первая школа. Методы планирования и управления природными ресурсами. М.:ЦЭМИ АН СССР, 1975 г.
45. Хильченко Н.В. Принципы и методы определения платы за загрязнение водоемов сточными водами //Цена и ценообразующие факторы. Вып. 6. М., 1978 г.
Змн.
Арк.
№ докум.
Підпис
Дата
Арк.
PAGE \* LOWER 10
мн.
Арк.
№ докум.
Підпис
Дата
Арк.
PAGE \* LOWER 12
Змн.
Арк.
№ докум.
Підпис
Дата
Арк.
PAGE \* LOWER 12
НАЗВА ДОКУМЕНТУ
Змн.
Арк.
№ докум.
Підпис
Дата
Арк.
PAGE \* LOWER 85
НАЗВА ДОКУМЕНТУ
Змн.
Арк.
№ докум.
Підпис
Дата
Арк.
PAGE \* LOWER 85
НАЗВА ДОКУМЕНТУ
Система водовідведення поверхневого стоку з майданчика хімобладнання ВАТ «СМНВО ім. Фрунзе»