Семиотические особенности традиционного викторианского стиля в интерьерах пабов г. Иркутска
PAGE \* MERGEFORMAT2
ГОСУДАРСТВЕННОЕ ОБРАЗОВАТЕЛЬНОЕ УЧРЕЖДЕНИЕ ВЫСШЕГО ПРОФЕССИОНАЛЬНОГО ОБРАЗОВАНИЯ
НАЦИОНАЛЬНЫЙ ИССЛЕДОВАТЕЛЬСКИЙ
«ИРКУТСКИЙ ГОСУДАРСТВЕННЫЙ ТЕХНИЧЕСКИЙ УНИВЕРСИТЕТ» (ИрГТУ)
Овсова Татьяна Михайловна
Семиотические особенности традиционного
викторианского стиля в интерьерах пабов г. Иркутска
выпускная квалификационная работа
Иркутск-2015
Содержание
Введение 3
Глава I. Основополагающие тенденции викторианского стиля 12
- Развитие принципов формирования викторианского стиля в системе архитектурных ансамблей классических эпох. 12
- Особенности викторианского стиля как символа эпохи. 17
Глава II. Семиотические особенности интерьеров пабов 36
- Пабы: становление, историческая справка. 36
- Интерьер паба: система отношений элементов пространства, как синтез зрительно воспринимаемых признаков . 45
- Особенности интерьеров пабов в России на примере городов Москвы и Санкт-Петербурга. 51
- Особенности викторианского стиля в пабах г. Иркутска. 57
Глава III. Апробация исследования магистерской диссертации: проектирование интерьера паба в викторианском стиле для конкретного архитектурного пространства. 61
Заключение 63
Список использованной литературы 66
Введение
Актуальность исследования связана:
- с утратой культурных традиций - с социальной потребностью в появлении разноплановых ресторанных заведений. На практике это подтверждается массовым ростом в России, и, в частности в Иркутске, за последние 15 лет количества новых баров, пабов, кафе, клубов, ресторанов, кофеен, чайных, пиццерий, кафе-бистро, по разному сочетающих питание и отдых. Причем сегодняшний подход к созданию их объемно-планировочной и образно - стилистической организации внутренней среды кардинально отличается от принципов, известных в период СССР;
- с отсутствием последовательных в плане методологии аналитических работ по историческому контексту развития ресторанного убранства в России, как с целью теоретического обобщения признаков этого феномена, так и с целью практического применения изученного опыта в дальнейшем проектировании;
- с отсутствием исследований современного ресторанного пространства как архитектурно-дизайнерского феномена, сложной комплексной системы, интегрирующая в единое целое многочисленные эстетические и технические составляющие, комбинирующие в себе различные архитектурные стили прошлых эпох;
- с отрицанием многими критиками и специалистами в области истории архитектуры XIX-XX в. значение викторианского стиля.
Теоретическая база исследования
Теоретической основой изучения развития интерьеров пабов в традиционном викторианском стиле послужили исследования из области истории архитектуры, истории и теории интерьера, истории дизайна и мебели.
Информационный массив можно разделить на группы:
- - литература по истории интерьера XX века, которая представлена, прежде всего, монографией Н.К. Соловьева «История современного интерьера», а также работой Дж. Пайла «Дизайн интерьеров: 6000 лет истории» и других;
- литература по теории архитектурного проектирования;
- литература исследования анализа и практики;
- литература и интернет-ресурсы по архитектуре и дизайну интерьеров ХХ века на иностранных языках. Зачастую данные виды источников содержат достаточно редкую информацию и иллюстрации, которые не встречаются в переводной литературе и литературе на русском языке;
Подводя итог можно сделать вывод о том, что литература, касающаяся темы исследования, довольно разнообразна: она относится к областям истории и теории архитектуры, истории дизайна интерьера и мебели. В ней рассматриваются различные этапы и творческие направления архитектурно-художественного формообразования интерьеров Новейшего времени различных стран. Анализируются работы ведущих архитекторов и дизайнеров XIX-XX веков в области интерьера и его оборудования. Выявляются основные композиционные принципы, приемы и средства художественной выразительности предметно-пространственной среды интерьера, характерные для тех или иных направлений и отдельных архитекторов.
Объект исследования построенные в период с 1995-2014 интерьеры пабов в традиционном викторианском стиле в городах Иркутске, Москве, Санкт-Петербурге.
Предмет исследования семиотические особенности традиционного викторианского стиля.
Цель исследования - выявление семиотических особенностей формирования и трансформаций интерьера паба в традиционном викторианском стиле в российских городах.
Задачи исследования:
1. Выявление структурно-семантических признаков, отличающих объемно - пространственные решение интерьеров пабов от других общественных пространств.
- Сбор информации по теме исследования;
- Обработка данных;
- Выявления типологических признаков;
- Систематизация полученных результатов в картотеку и хронологическую таблицу;
- Предоставление апробации исследования в виде концептуального проекта интерьера ирландского паба;
Проблема исследования связана:
во-первых, с дизайнерским «бумом» в сфере интерьерного проектирования общественных заведений в традиционном викторианском, английском стиле. В г. Иркутске за последние 10 лет было построено более 14 пабов, а иркутская сеть Харатс «Harats Irish Pub» вышла на всероссийский уровень. По данным на февраль 2014 в сети более 25 городов, 52 паба работает и еще 20 в стадии строительства.
Перечень иркутских пабов.
- Лондон паб. Открытие 1 января 2005. Адрес ул. Сухэ-Батора, 7б
- Тауэр, паб - ресторан. Открытие 13 декабря 2008. Адрес - ул. Карла Маркса, 29
- Паб “Харатс”. Открытие 23 сентября 2009 года. Адрес - ул. Октябрьской Революции
- Паб “Харатс”. Открытие 7 ноября 2010 года. Адрес - ул. Лермонтова, 81/1
- Паб “Харатс”. Открытие 28 мая 2010 года. Адрес - ул. 1-я Советская, 124 Д
- Паб “Харатс”. Открытие 24 декабря 2010 года. Адрес - ул. Байкальская, 108
- Паб “Харатс”. Открытие 18 февраля 2011 года. Адрес м. Университетский микрорайон, 2Б
- Паб “Харатс”. Открытие 15 апреля 2011 года. Адрес - ул. Ширямова 13Б
- Паб “Харатс”. Открытие 16 сентября 2011 года. Адрес - ул. Академическая, 30
- Паб “Харатс”. Открытие 06 июля 2011 года. Адрес - ул. Седова, 2
- Фуллерс паб. Открытие 22 декаюря 2012. Адрес - Гагарина, 38
- Абердор паб. Открытие 23 февраля 2012. Адрес - Октябрьской Революции, 1 к6;
- Сохо паб. Открытие 6 июня 2012. Адрес - Байкальская, 2а.
- Пинта паб. Советская, 45/3
во-вторых, с отсутствием четких историко-культурных ориентиров, а также сформированной искусствоведческой базы при выборе конкретных образных и архитектурно - пространственных решений для того или иного создаваемого интерьера. Проблема показывает существующее противоречие между активным стремлением к наследованию характерных для Викторианской эпохи дизайнерских приемов и далеко не всегда адекватным умением на практике освоить это многообразное наследство.
Методика исследования:
- изучение теоретических работ при сборе фактического материала;
- изучение и анализ объектов по фотодокументам, по схемам планов домов, литературным источникам и интернет-ресурсам;
- комплексный анализ интерьеров, выявление семиотических признаков по присущим им свойствам;
Будучи дизайнером архитектурной среды, по образованию и по роду практической деятельности, автор исследования считает наиболее репрезентативным искусствоведческий подход к материалу, где в качестве основополагающей определена художественно-образная доминанта. Кроме искусствоведческой доминанты, в анализе излучавшегося комплексного явления, в силу специфичности пространства, учитываются социальные, психологические и экономические факторы.
Искусствоведческий анализ интерьеров включает в себя:
- Сравнительно-типологические и структурно-типологические подходы к анализу архитектурной среды пабов, изучение научных и литературных источников, рассмотрение нормативной документации и современной практики проектирования.
- Семиотический подход при анализе визуальных коммуникаций и архетипических значений интерьерной среды пабов. Здесь основой служили исследования Р. Барта, Ж. Бодрийяра, К. Дея, В.В. Соловьева, Дж. Пайла, А. В. Понкратовой.
Использовался эмпирический анализ конкретных интерьеров, опиравшийся на проектировочные, архитектурно - дизайнерские (практические) подходы.
В анализе, основанном на методах архитектурно-дизайнерского проектирования, брался во внимание на исследовательский опыт работы А.П. Ермолаева, А.В. Ефимова, Г.Б. Миневрина, Ю.В. Назарова, Е.Б. Новиковой, В.Р. Раннеева, В.Т. Шимко.
Гипотеза исследования включает в себя следующие положения:
- интерьер паба в викторианском стиле отличается характерными способами организации среды в коммуникативном, эстетическом и утилитарном аспектах;
- на своеобразие установки и результата при проектировании интерьера паба влияют: социально-политическая ситуация в обществе (установление или отсутствие официально или негласно утвержденных норм и правил), традиция отношения к пабу (с точки зрения поведения посетителей, хозяев и дизайнеров), модные тенденции и направления в дизайне и архитектуре;
- интерьер пабов в Иркутске представляет собой специфическое явление, имеющее историю развития как в прагматическом, так и в эстетическом аспектах.
Степень разработанности проблемы
Интерьер паба в викторианском стиле в России как целостное явление, имеющее свою историю, закономерности развития и характерные черты, практически никем не изучался. Статьи по данной тематике можно встретить в основном лишь в периодических архитектурно-дизайнерских и художественных журналах, либо в ресторанных путеводителях. Однако они носят, как правило, описательный характер, презентуя то или иное открывшееся заведение на популярном уровне. Очень редко встречаются статьи по этому вопросу в научной периодике, но они также не дают системного аналитического подхода к проблеме. Поэтому возможно охарактеризовать лишь в самом общем виде исследовательский (историко-теоретический), публицистический и практико-методический круг работ, так или иначе связанных с изучением архитектурно-художественной среды интерьера ресторанных заведений.
Исходя из известного представления о том, что развитие архитектуры неотделимо от создания интерьера, ибо здание без внутреннего пространства не существует, следует отметить работы по теории и истории архитектуры, дающие разноплановый анализ архитектурной среды различных исторических эпох как в контексте изучения объемно - пространственных, так и художественно-образных характеристик. В этой связи в диссертации были востребованы исследования Н. Васильева, В.Л. Глазычева, О. Джонса, П. Джулиуса, З. Мартина, А Зеленова, Е. Ищенко, С. М. Михайлова, Дж. Пайла, С.С. Подьяпольского, Е. С. Пономаревой, А.Г. Раппапорта, В. Ф. Сидоренко, Н. К. Соловьева, В. Устина.
Применительно к вопросам символического восприятия и образно-художественного языка архитектурной среды, в том числе как явления массовой культуры уместно упомянуть работы В. Т. Адорно, Р. Барта, Ж. Бодрийара, В. В. Бычкова, Г. Г. Воробьева, В.В. Иванова, Ч. У. Морриса, Панкратовой, С. Х. Раппапорта, В. М. Розина, В. Ф. Сидоренко, Д. Суджича.
Отдельный массив составляют научные труды, посвященные как анализу, так и рекомендациям по практическому проектированию в области дизайна интерьерной среды (работы Голубевой О. Л, Дубровского О.И, Делез, Ж., Генисаретского О. И., Жердева Е. В, Зеленова Л. А., Г.Б. Миневрина, Ю.В. Назарова, Нойферта Н, Н.К.Соловьева, В.Т. Шимко).
Научная новизна:
- Сформированы принципы классификации и типологизации комплексного убранства интерьеров пабов в традиционном викторианском стиле;
- Выявлены проблемы социального внедрения, проектирования, реализации и функционирования пабов в г. Иркутске, Москве и Санкт-Петербурге;
- Выполнен анализ проектных предложений интерьеров ирландских пабов;
Практическая ценность
Результаты исследования предлагается использовать в учебном процессе при работе над проектами интерьеров пабов и ресторанных заведений, студентами архитектурно-дизайнерского и монументально-декоративного профиля, а так же при формировании учебных и научно-исследовательских материалов для данных специальностей, составлении справочных изданий.
Границы исследования
Хронологические и географические обусловлены наиболее характерными периодами:
1. Правлением королевы Виктории в Великобритании, для выявления основных тенденций и этапов развития викторианского стиля.
2.Появления и функционирования пабов в традиционном викторианском стиле в постсоветском российской пространстве на протяжении 20 лет.
На защиту выносится:
- Результаты исследования семиотических закономерностей проектирования пабов в викторианском стиле на примере анализа интерьеров зарубежных заведений;
- Сопоставления канонов викторианского стиля с реализованными объектами в России, в частности в г. Иркутске;
- Апробация исследования магистерской диссертации в виде концептуального проекта интерьера паба в викторианском стиле.
Структура диссертации
Диссертация состоит из введения, трех глав, заключения, списка литературы из 53 наименований, двух приложений; изложена на 87 страницах. Иллюстрации включены в текст диссертации.
Апробация работы
Результаты и материалы исследования были использованы в концептуальной работе по проектированию интерьера паба в викторианском стиле для конкретного архитектурного пространства.
Глава I. Основополагающие тенденции викторианского стиля
- Развитие принципов формирования викторианского стиля в системе архитектурных ансамблей классических эпох.
До начала XIX в. в Европе средний класс, представленный торговцами, высококвалифицированными специалистами и ремесленниками, составлял незначительную силу, как в социальном, так и в экономическом плане. В XIX столетии аристократия начала утрачивать свое доминирующее положение, это было вызвано как экономическими, так и политическими причинами. Число крестьян сокращалось по мере появления фабрик, заводов и шахт. Средний класс понял ка превратить промышленную революцию в источник обогащения. Богатых и влиятельных аристократов, живших в особняках, дворцах и замках, всегда окружали богато украшенных интерьеры, дорогие ковры, пышные драпировки и другие вещи, изготовленные вручную из дорогих материалов лучшими мастерами. Представители среднего класса смогли позволить себе подобные вещи, только когда их стоимость снизилась благодаря массовому производству, главное в выборе были декоративность предмета и его визуальная напыщенность.
Долгое правление королевы Виктории (1837- 1901) совпало с историзмом, «битвой стилей», промышленной революцией и движением «Искусства и ремесла» или эстетическим направлением в Англии. Однако в истории искусства «викторианский стиль» - это направление в английском и американском дизайне XIX в. (и параллельные течения в других европейских странах), которое характеризуется излишней декоративностью. Многие критики и специалисты в области архитектуры отрицают значение викторианского стиля, видя в нем безвкусицу, доходящую до абсурда. Однако викторианский стиль часто отличает энергия, живость и свобода, которых иногда не хватает стилям предыдущих эпох. В некоторых вариантах стиля декор держанный или вовсе отсутствует. Викторианский стиль визуально распадается на два направления: стиль с пышной отделкой (правительственные и административные здания, церковная архитектура) и строгий стиль (промышленные здания)1.
В 1837 году Виктория восходит на трон; правление ее было длительным и устойчивым, в результате которого Англия перебирается в XX столетие. Данный период характеризовался компромиссным между традициями и реформами, что оставило свой отпечаток на развитии архитектуры и искусства (Рис 1).

Рис. 1. Королева Виктория и принц Альберт с детьми.
Художник Франц Ксавье Винтерхальтер.
Ученые присвоили этому времени краткое название «викторианизм», эстетически этот термин обозначает доминирование прагматизма и материализма, чем, и отличается викторианский стиль. Эклектизм и многообразие стилей викторианизма - следствие жесткой предшествующей эпохи «георгианцев» и «стиля королевы Анны».
Исторически искусство викторианского периода развивалось в три этапа:
- 1835 - 1855 гг. - ранний, именуемый периодом неостилей;
- 1855 - 1870 гг. - средне-викторианский;
- 1870 - 1901 гг. - поздний период, по-другому известный, как «свободное возрождение Ренессанса».
Викторианская эпоха берет свое начало в период промышленного подъема, когда Великобритания буквально становилась "всемирной мастерской". Параллельно развивалось и мировоззрение представителей нового "среднего класса", намеревавшихся повышать качество жизни. Причина данного явления - снижение влияния Романтизма, основного художественного направления, начиная с XIX века. В 1830-х годах в Европе наступает период Историзма, для которого характерно сосуществование различных новых архитектурных стилей, неостилей, и Англия не стала исключением. Викторианская архитектура разнообразна, она вобрала в себя многое у предшествующих ей культурно-архитектурных эпох и стилей, сохранила ордер. Например, неоготика была в это время очень распространена и в Англии, и в британских колониях. Эпоху также привлекали и архитектурные искания Италии, Римской империи или «стиль мансарды», а также и романская архитектура. Причиной этому служит то, что мода стояла на месте в то время, как технологии развивались. Отдельно стоит упомянуть стиль королевы Анны - самый сложный из стилей, которые применялись в викторианской архитектуре. Это здания с башенками, обернутые вокруг подъезда или иной детали конструкции.
Эклектика (эклектизм, историзм) в архитектуре - направление в архитектуре, доминировавшее в Европе и России в 1830-е-1890-е гг. Для эклектики актуально использование элементов так называемых «исторических» архитектурных стилей (неоренессанс, необарокко, неорококо, неоготика, неорусский стиль, неовизантийский стиль, индо-сарацинский стиль, неомавританский стиль). Присущи, с одной стороны, все черты европейской архитектуры XV-XVIII веков, а с другой - в ней есть принципиально другие свойства. Эклектика сохраняет архитектурный ордер (в отличие от модерна, не использующего ордер), но в ней он утратил свою исключительность.
С тех пор начался второй, средне-викторианский период. Его в 1851 г. ознаменовала первая Международная выставка в Лондоне, прошедшая в Хрустальном дворце, а кроме всего - инициативы принца Альберта и некоторых мастеров архитектуры и искусства. Другим проявлением «антивикторианского» течения выступала активность прерафаэлитов.
Развитие позднего этапа викторианской эпохи подпадало под влияние идей У. Пэйтера, английского писателя, написавшего популярную книгу об Итальянском Возрождении. В изобразительном искусстве наблюдалось смешение стилей: барочные стили «короля Якова», Рококо, «Луи XIV», «ренессанса Елизаветы», «стиля Тюдоров», «реставрации Стюартов».
В Германии и Франции, параллельно с «неоготикой» развивается «неоренессанс», объединивший в себе готику, стиль итальянского и немецкого ренессанса, Барокко и Маньеризма. Ответным ходом Англии было течение «свободное возрождение ренессанса». Но в понимании викторианцев данный новый стиль был эклектичным.
Необъятная массивная мебель, оснащенная мелким декором, получила от современников забавное название «стиль подставок и верхушек». Более отчетливо новый стиль проявился в лондонской архитектуре, известный под названием «готического возрождения». Основная часть зданий в готическом стиле была возведена в викторианскую эпоху.
Среди множества зданий привлекает к себе внимание величественное сооружение Парламента на реке Темзе. Его украшают Башня Виктории и башня с колоколом «Большой Бен». Произведение принадлежит архитектору Ч. Бэрри (1836-1860 г.) (Рис.2).

Рис.2. Здание парламента на реке Темзе.
Архитектор Ч.Бэрри (1836-1860 г.).
С 1886 по 1894 г.г. через Темзу проложен мост Тауэр, выполненный в «неотюдоровском стиле». Замки средневековья «реставрировались» под началом Этнони Сэлвина. Готическое возрождение поддерживали: У. Бёрджес, Н. Шоу, Р. Тафт, Дж. Добсон; мастера декоративного искусства К. Дрессер, О. Джонс; дизайнер мебели Т. Коллкатт, мастер по мебели Б. Тэлберт.
В 1880-х годах возникает термин «стиль Риджент стрит», выражавшийся в дорогой обстановке магазинов на лондонской улице. Объемистые строения того времени характеризовали дух империи, поэтому возникло еще одно название: «стиль Британской империи».
В искусстве викторианской эпохи постоянно просматривалась эклектика и азиатская экзотика, поэтому из него не произошло ни одного художественного направления и единого стиля. Теоретики истории искусств и архитектуры считают название этого стиля и вовсе символичным.
- Особенности викторианского стиля как символа эпохи
Одновременно с тем викторианский стиль это торжество прагматизма и материализма. Интерьерное оформление должно не только роскошно выглядеть, но быть надежным и уютным, а старинные традиции не должны мешать проявлению безупречного качества во всем, начиная с общего вида и заканчивая аксессуарами.
Промышленная революция упростила и удешевила процесс производства предметов быта, которые раньше изготавливались вручную, как следствие, художественные качества вещей ухудшались, по сравнению с предыдущими эпохами. Дизайн все меньше был связан с традиционным ремеслом, он перешел во владение фабрик и управляющих, которые знали только, что в тренде обильное украшательство, и что промышленное производство может быстро и легко удовлетворить большой спрос на это. В викторианскую эпоху «кричащий» стиль стал нормой и распространился повсеместно. Представители новой буржуазии жаждали иметь такие же особняки и поместья, как у знаки, и обращали внимания на дворцы эпохи Тюдоров, королевы Елизаветы, королей Якова I и Карла I. Иногда приобретались даже лежащие в уринах замки, в результате чего старина смешивалась с пышным новоделом. Интерьер часто был сильно заставлен мебелью и экзотическими аксессуарами, обвешан текстилем - представлял собой пример «художественного беспорядка».
Характерная черта викторианского стиля: эклектика сочетание готики, рококо, классики и экзотики. Под экзотикой здесь подразумеваются индийский и китайский стили. Другие особенности - вертикальные вытянутые плоскости, прямые и дугообразные линии, а также использование деконструвизма, т.е. отделка каждой комнаты в соответствии с определенным стилем (кабинет в готическом стиле, столовая в «ориентальном», а будуар - в стиле рококо). Вместе с тем, здесь вполне можно встретить предметы, выполненные одновременно в нескольких стилях (Рис. 3).


Рис 3.Эклектика в викторианских интерьера, Лондон. Англия.
Мебель в викторианском стиле представляет собой массивные, тяжеловесные конструкции, сделанные из ценных пород дерева. В декорироввании диванов, кресел, стульев, оттоманок и прочего обязательно используется позолота, кожа, бархат, а также инкрустация драгоценными металлами.
Внутреннее оформление и мебель «готического типа» разработаны в соответствии с предложением Эдварда Пьюджина (1812 1875). Промышленная революция дала доступ к новым материалам и технологиям производства мебели, теперь она не изготавливалась вручную, а делалась на промышленном производстве, была сборной из разных деталей и дешевле, что послужило ее распространению в общественные заведения для разных социальных классов. (Рис. 4).




Рис. 4. Эдвард Пьюджин (Edward Welby Pugin, 1812 - 1855) примеры мебели в неоготическом стиле, первого периода викторинаской эпохи.
Ученые Р.Барт и Ж. Бордрияр в своих работах рассматривают вещи как материальное проявление массовой психологии, что интерьер есть не плод порождения творческой деятельности, а торжество буржуазных ценностей над прежней, более приземленной реальностью. Викторианский период эпоха изменения социального отношения к мебели. Теперь она должна была показывать статус владельцев, выглядеть дороже, чем являлась на самом деле. Новые технологии способствовали возникновению принципиально новых предметов интерьера. В Австрии братья Тонет начинают использовать пар, чтобы придать изогнутую форму тонким планкам из твердых пород дерева. Для производства используется древесина темных цветов. Клееная фанера, изобретенная в Европе, изготавливалась из деревянного шпона. Она была дешевле цельной древесины и меньше была подвержена деформации и расслоению. В производство идут ценные породы дерева: тиса, ореха, мореного дуба, красного дерева. Тенденция к повышенной декоративности выражалась в виде мебельных карнизов, капителей, пилястр и т.д. Характерными элементами викторианской манеры считаются стулья с высокими резными спинками и с фигурными ножками (Рис 5).

Рис 5. Популярные образы мебели среднего периода викторианской эпохи (1855-1870). Каталог мебели братьев Тонет, Австрия.
В качестве обивки для викторианской мебели применяют различные ткани, начиная от набивного бархата и твида, а заканчивая обивкой с узорчатым рисунком. Мебель отличалась большим размером и богатой орнаментикой. В тканях преобладали крупные, яркие цветочные орнаменты, как тканные, так и набивные. Помимо этого, викторианская мебель часто обивается натуральной кожей. Также мебель декорировалась стежкой, слоновой костью и латунными элементами (Рис 6).
Этот период показал большую разницу между проектировщиком и ремесленниками, мастерами ручного труда. Фабрики укомплектовывались стандартными станками, у проектировщиков больше не было прямого контакта с клиентом. Подчас образ мебели проектировался под возможности станка, поэтому качество дизайна ухудшилось.

Рис 6. Диван Черстерфильд, 1885 г.
Отделка пола была деревянной, дощатые полы или полы, выстланные узорным паркетом из твердых пород древесины или цветной плиткой, также были широко растпространены. На пол клали ковер квадратной или круглой формы. Ковры украшались мотивами, похожими на те, что использовались для тканей. Листья, цветы, арабески и завистки образовывали повторяющиеся узоры, что позволяло сшивать вместе большие ковровые полотна и застилать ими большие площади. Линолеум, недавно изобретенный материал, имел цветочные узоры и имитировал ковры.
Окна представляют собой деревянные конструкции, нередко задекорированные витражами и выполненные в готическом стиле. Двери также из натурального дерева, с витражами и декоративными включениями из латуни (Рис. 7).

Рис.7. Деревянная отделка в викторианском интерьере.
Изобразительное искусство викторианской эпохи знаменательно созданием огромного количества растительных орнаментов, использующихся в оформлении интерьера, архитектуре и дизайне одежды. Обои стали особенно популярным материалом для отделки стен. Фабричные обои украшались геометрическими, цветочными орнаментами, пейзажами или восточными мотивами. Некоторые были тисненными и создавали рельеф. Использовались также набивные бумажные бордюры, имитирующие архитектурные детали, карнизы и фризы с ионическим киматием или меандром. Оклейщики создавали композиции, предназначенные специально для конкретной комнаты или стены.
Цветовая палитра викторианского стиля традиционно узнаваема это преимущественно мягкие пастельные тона в текстиле, коричневый, беж, бордо, зеленый. Из темных оттенков предпочтение отдавалось темно-красному, рубиновому, темно-зеленому или синему цвету. До освоения технологий цветовая палитра была ограничена. (Рис 8).

Рис. 8. Палитры колористического решения интерьера в викторианском стиле.
Викторианская цветовая гамма постепенно менялась от ярких и смелых цветов до темных и мрачных. Книга Оуэна Джонса «Грамматика орнамента» (1856г) содержит иллюстрации в яркой цветовой гамме, которые пропагандировали насыщенные, сочные оттенки. Со временем более «изысканными» стали считаться темные приглушенные цвета коричневые, желтовато-зеленые и розовато-лиловые.2 Конец викторианской эпохи Льюис Мамфорд назвал «коричневыми десятилетиями»; мрачные тона в начале XX в. унаследовала эдвардианская эпоха.
В целом викторианский период в производстве предметов интерьера ознаменовался введением оборудования в угоду экономии ручного труда, которое при неправильном использовании, или использовании не по назначению, вызвало серьезное ухудшение в проектировании предметов быта. Противоречия викторианского стиля не остались незамеченными, со временем возникли новые течения.
Деятельность Уильяма Морриса, художника, писателя, организатора движения «Искусства и ремесла», набирает силу к 1860-м годам. Перед ним стояла задача возрождения традиций ручного мебельного ремесла. Для Морриса главным в процессе создания «осмысленных» предметов быта было то, что он называл «наслаждением от труда». Он хотел покончить с «безжизненным» штампованным декором викторианской эпохи, заменить его простыми, четкими формами, уходившими корнями в Средневековье и одновременно задававшими планку на будущее. Под влиянием его начинаний сформировалось течение искусства середины XIX века, противодействующее викторианскому. Уильям Моррис отвергал промышленное производство и пытался придать дизайну нравственный аспект, обращаясь к лучшим орнаментам Средневековья. Также он создавал красивейшие орнаменты для реставрированной мебели, витражей, тканей и обоев они популярны и сегодня. Именно многопрофильность и узнаваемый стиль сделали Морриса первым британским интерьерным дизайнером в современном значении этого слова. Течение «Исскуства и ремесла » привлекло внимание по старой мебели XVIII-го века и привело к популярности подержанной антикварной мебели.3

Рис. 9. Орнаменты для ткани по эскизам У.Морриса. Теплые цвета и природные формы лежат в основе одного из самых очаровательных мотивов, разработанных Моррисом.

Камин в Дубовом зале в особняке Уайтуик-Мэнор, графство Уэст-Мидлендс, архитектор Теодор Мандер, дизайнер Эдвард Оулд. Гардины Cray по эскизам Уильяма Морриса.
Еще одна особенность викторианского стиля это чрезмерная наполненность интерьера деталями. Следование экзотическим традициям стиля только приветствуется, здесь актуальны индийские шкатулки, китайские вазочки, чучела животных или антиквариат (Рис 10).

Рис. 10. Пример декорирования комнат. Фото, Великобритания, 1863г.
Особое распространение получили витражи по технике “Тиффани”. Свое название витражи получили по имени создателя Льюиса Комфорта Тиффани. Американский художник и дизайнер, потомственный ювелир Льюис Комфорт Тиффани это яркий и талантливый представитель модерна. Признание во всем мире Тиффани принесли его изысканные изделия из художественного стекла: витражи, ламповые абажуры, бижутерия. Художественные работы Луиса Комфорта Тиффани и по сей день являются украшением храмов, коллекций музеев и частных домов, продаются на престижных антикварных аукционах.
Тиффани много экспериментировал с цветным стеклом. Он использовал всевозможные добавки, добиваясь различных фактур, невероятного преломления света и фантастических цветовых эффектов. Этот удивительный мастер изобрел целый ряд новых оригинальных стекол для витражей.
Но самое главное значение для витражного искусства это та новая техника, которую придумал и воплотил Тиффани. Для создания сложных и объемных форм он усовершенствовал технику изготовления классических витражей. В классический свинцовый профиль было возможно вставить лишь достаточно крупные фрагменты стекла. И Тиффани предложил использовать мелкие кусочки цветного стекла, обернутые по периметру медной фольгой (изначально медными полосками), которые затем спаиваются между собой оловянным припоем. Плотно прилегающие друг к другу цветные стекла, таким образом, создавали причудливые изгибы, и появилась возможность получить как объемное, так и более детальное витражное произведение. Изначально эту технику Льюис Тиффани применял для создания абажуров, а затем уже для витражей. Иногда в одном произведении сочеталась и традиционная классическая техника со свинцовыми протяжками и фрагментами, обернутыми медной фольгой. С помощью этой техники появилась возможность создавать витражные произведения практически любой сложности. А художественные витражи Тиффани, изготовленные в его мастерских, считаются классикой витражного искусства (Рис 11).

Рис. 11. Плафоны ламп и витраж в стиле “Тиффани”.
Характерные черты английского интерьера - это отсутствие кривых линий, наличие утонченных деталей, а также изящность в пропорциях и рисунке. Дубовые резные панели соседствуют с уникальными каминами и всё это граничит с лестницами, которые обязательно украшены скульптурой.
Стены английских домов нередко украшают гобелены, а также картины гравюры, акварели, пейзажи. Обои выбирают, как правило, однотонные, в клетку или полоску. Допускается также мелкий растительный рисунок. Можно обойтись и без обоев покрыть стены дубовыми панелями. В выборе текстиля для занавесок популярным были бархат и парчовая ткань, но только в зимнее время года, когда как в летнее выбирали хлопок и ситец.
Камин - это непременный атрибут любого английского интерьера, он выступает центром домашнего очага, вокруг него располагается мягкая мебель, шерстяные ковры, удобные столики. Камин может быть выполнен из разных материалов облицован природным камнем, сложен из кирпичей, отделан каминной деревянной доской. Материалом для камина является черный или красный гранит в классическом стиле. 4
В викторианском стиле возможно два способа оформления потолочного пространства. Первый подразумевает побелку потолка и декорирование гипсовой лепниной. Во втором случае рекомендуют применять подвесные деревянные панели - кессоны. Они могут как иметь чисто эстетическое значение, так и совмещать конструктивную и декоративную функции, а также использоваться для улучшения акустики помещения, создания различных визуальных эффектов (например, визуально увеличивать высоту потолка или свода), служить нишами для установки светильников. Люстры не должна сильно бросаться в глаза, в плафонах применим текстиль или витражное декорирование. Форма люстры может быть пирамидальной, овальной или цилиндрической (Рис 12).


Рис. 12. Викторианские интерьеры с камином.
Пример отделки кессонных потолков.
Метлахская плитка к геометрическим рисунком является одной из особенностей викторианского стиля.
Начиная с 1843 года, когда Герберту Минтону удалось восстановить утраченный метод глубинной окраски керамических изделий, открытый еще ХІІ веке, керамическая плитка стала модным элементом в архитектурных тенденциях того времени. А спустя 150 лет керамика не утратила свою актуальность и сегодня. Напольная плитка, которая является предшественников для современной керамики - Метлахская плитка названная в честь немецкого городка Метлаха, в котором она была впервые произведена в в середине ХІХ столетия. С 1894 года Метлахская плитка начала производиться и во Франции на фабрике Винкелманс (Winckelmans). Путешествую городами Европы и царской России она получила широкое распространение в эпоху индустриализации и заслуженно стала частью викторианского стиля (Рис 13).


Рис. 13. Примеры метлахской плитки из книги Нелен Лонг, “Дома Викторианской эпохи. Планы и детали”.
Благодаря уникальному сочетанию, износостойкости и декоративности, Mетлахская керамическая плитка украшала не только частные апартаменты, но и вокзалы, заводы и дворцы (Рис 14).



Рис. 14. Орнаменты и раскладки метлахской плитки.
Двери также не избежали излишнего декорирования. Роскошные деревянные внутренние двери имели карнизы и фронтоны. Это было популярно в течение всей эпохи.5 (Таблица 1)
Таблица 1
|
Описание |
Иллюстрация |
|
Три «классические» двери из каталога фирмы «Хэмптон и сыновья» 1892 года. Они могли быть сделаны из твердых пород дерева или из сосны с украшениями из папье-маше, готовые к покраске. |
|
|
Филенчатая дверь со шпунтовым соединением, обычно такие двери ставили в хозяйственные комнаты. |
|
|
Остроконечные «амбразурки» украшают этот дверной проем. Дверь отделана рельефной филенкой, имеет изысканную резную фурнитуру, 1890 год. |
|
|
Над этим дверным проемом в стиле «эстетизма» расположена полка для изделий из фарфора. |
|
|
Филенки этой двери украшены орнаментами из папье-маше или живописными изображениями декоративных деталей, создающих иллюзию действительности. |
|
|
Девять десюдепортов (декоративных элементов над дверью) из каталога Хэмптона 1892 года. Они изготавливались либо из сосны, готовой под покраску, либо из более дорогих твердых пород дерева, таких как дуб или красное дерево. На этих примерах видны различные формы подражания классическим стилям. Например, в «наддверии» в центре правой колонки чувствуется французское влияние: соединение панно, написанного масляными красками, и рамки в стиле рококо. Остальные десюдепорты имеют полки и ниши, которые были очень популярны в поздневикторианскую эпоху. Там красовались изделия из фарфора. |
|
|
Скромная наружная дверь с небольшими веерообразными окнами-фрамугами. Есть дверной молоток, но нет почтового ящика-отверстия для писем, поэтому она, вероятно, была установлена до 1840 года, когда начала работу почтовая система Великобритании с оплатой в один пенс. |
|
|
Эти простые входные группы типичны для блочных или городских домов 1870-х годов. |
|
|
Впечатляющее классическое крыльцо могло быть сделано из камня или из кирпича с последующей отделкой штукатуркой. |
|
|
Цветная кирпичная кладка отражает сильное влияние произведений Джона Раскина о Венеции и итальянской готике, около 1850г. |
|
Популярные дизайнеры викторианской эпохи: Эдвард Пьюджин, Роберт Тафт, Джон Нортон, Ричард Шоу,Уильям Моррис, Уильям де Морган, Чарльз Фредерик Уорт, Калверт Вотс, Чарльз Истлэйк, Робин Уатт, Томас Чиппендейл и др.
Викторианская манера в современном интерьере является отличным выбором для людей с высоким художественным вкусом, уверенных в себе и тех, кто не боится показать свою материальную обеспеченность. Викторианский интерьер должен выглядеть богато, но присущая ему роскошь должна быть гармонична.
Перечень материалов и них назначение представлены в Таблице 2.
Таблица 2
|
Материал в отделке интерьера |
Назначение материалов, элементов декора. |
|
Натуральная древесина |
Стены, пол, потолок. Деревянные панели, буазери, обшивка каминов, лестниц, потолочные кессоны, паркет, двери и т.д. |
|
Метлахская плитка |
Отделка стен и полов в холлах, на террасах, в общественных заведениях. Пол в ванных комнатах, санузлах. |
|
Витражное стекло |
Декорирование витражным стеклом, плафоны осветительных приборов. |
|
Текстиль, гобелены |
Декоративный текстиль. Стены на лестничных клетках, оббивка мебели, ковровое покрытие. |
|
Коллекционные предметы |
Декорирование поверхностей полок, столешниц и т.д. |
|
Мебель |
Красное дерево, или его имитация, мебель декорировалась кожей, стежкой, узорами, слоновой костью и латунными элементами. |
Основные выводы главы I
- Выделены основополагающие тенденции развития и формирования викторианского стиля.
- Определены основные принципы формирования предметно-пространственной среды интерьеров в викторианском стиле
- Определено значение викторианского стиля как символа эпохи.
Глава II. Семиотические особенности интерьеров пабов
- Пабы: становление, историческая справка
Английский, ирландский паб (англ. - public house), является одним из древнейших примеров в индустрии гостеприимства, это частный дом, открытый для публики. Он сочетает ресторан, бар, общинный центр в одном исторически сложившемся месте. Классический паб стал легендарным, его часто упоминают в художественной литературе, в кино и, он с полным правом может претендовать на туристическую достопримечательность. Эволюция современного паба происходила в течение многих веков, и берет свое начало из ранней истории Соединенного Королевства:
- Пабы доисторической Англии
Археологами найдены свидетельства, что жители местности, называемой сегодня Великобританией, пили эль еще в Бронзовом веке. Вполне вероятно, хотя и не доказано, что некоторые из тех британцев Бронзового века торговали элем в хижинах, которые, возможно, и были первыми пабами.
- Таверны Римской эпохи
Первые исторические упоминания о публичных домах появились во время римской оккупации Англии. Появляются созданные римскими властями винные таверны, предлагающие питье и еду путешественникам в дороге. Организация дорожной системы повлекла за собой появление путешественников, а, следовательно, увеличение потенциальных клиентов постоялых дворов, что привело к росту прибыли заведений и способствовало развитию гостиничной отрасли.
- Паб англо-саксонской эпохи или Эльхауз (англ. «Ale house»)
Англо-саксонская эпоха длилась около 500 лет, начиная с середины пятого века. В течение этого периода, пабы или ale house стали популярными по всей стране. У римлян принято было вывешивать над дверью таверны пучок виноградных листьев, сообщавший о появлении молодого вина. Этот обычай прижился, и alewife - женщина, варившая эль вешала гирлянды из зелени на шест у входа, который указывал, что новая партия пива была готова. Эти ale house уже становятся местом для встреч и общественным центром, и являются фундаментом традиционных общественных пабов, наблюдаемых в Великобритании сегодня.
Большинство населения не умело читать и писать и в 1393 году, Ричард II. принял указ, в котором требовалось, чтобы пабы и таверны, имели свою собственную вывеску, а официальные королевские дегустаторы пива выдавали или отбирали лицензию на пивоварение.
На вывесках пабов часто отражается британская история. До Генриха VIII и его реформации вывески имели религиозные темы, например, «Агнец божий» или «Скрещенные Ключи» как эмблема Святого Петра. После реформации, знаки изменили свои темы на такие названия, как "Роза и Корона". Распространенное название пабов, "Красный Лев", стало популярно во времена Джеймса I и VI, «Белый Лев» появился в период правления Эдуарда IV, а «Белый Кабан» был «позаимствован» с герба Ричарда III.
- Средневековые пабы
В Средневековье также наблюдается рост пивных, таверен, предлагающих жилье вместе с пищей и питьем для путешественников. До этого периода, большинство путешественников останавливались бы при церквях и монастырях во время путешествия. Многие питейные заведения расширили спектр своих услуг, предлагая конюшню для лошадей путешествующей публики.
Еще один фактор, увеличения популярности пабов и ale house в эту эпоху: рост численности население привел к загрязнению воды, а эль был одной из немногих жидкостей, которые были безопасны для питья.
Ирландский паб средневековья - это грубо на месте сколоченная мебель из натурального дерева и каменные стены. Большой камин и подвесные масляные лампы над деревянным полом..
- Пабы в Елизаветинский период
Королева Елизавета правила около 50 лет, начиная с 1558 г. В ее царствование Великобритания начала свои мировые исследования и колонизацию. Питер Кларк, эксперт по истории британских пабов от позднего средневековья до XIX века, рассматривает их как центр отдыха в Елизаветинский период. Пабы дома были местом, чтобы отдохнуть от тяжелого трудового дня, встретиться с друзьями, поговорить, отдохнуть с друзьями и даже местом заключения брака или развода. В этот период законы о браке были довольно смутными, и для любой пары, чтобы заключить брак, было вполне достаточно объявить свои обеты перед большой толпой. Нуждающийся всегда здесь мог найти еду и кров по низким ценам, а также отсрочить платеж до момента, когда он мог бы заплатить (Рис. 15).

Рис 15. Интерьер средневекового паба.
Паб «George Inn», Лондон.
- Пивной Акт 1830 года. Викторианский период.
Сегодня «эль» и «пиво» - синонимы, но изначально это были два разных напитка. В средние века англичане варили эль без хмеля. Пиво с добавлением хмеля начали ввозить из Голландии, и позднее этот рецепт укоренился в Англии. Также голландцами после революции 1688 г. в Англию был завезен и широко распространен джин. Политика государства, позволяла нелицензионное производство джина и вводила высокую пошлину на импортные спиртные напитки, тем самым опустив джин в цене. Это привело к возникновению тысяч джин-баров в Лондоне и по всей стране. Такое увеличение питейных заведений привело к общей деградации рабочего класса. В попытке ограничить количество опьянений от джина в 1830г. был принят закон об отмене налога на пиво и лицензий на пивоварение, которое считалось меньшей проблемой. Это вновь возродило спрос на традиционные пабы, где можно было пообщаться и отдохнуть за пинтой пива.
- Паб в XX веке.
Во время первой Мировой Войны часы торговли в пабе были ограничены. Пабы были открыты только с полудня до 14:30. и с 18:30 до 21:30, в целях сокращения потребления спиртных напитков. Ведь раньше они были открыты круглосуточно и превратились в настоящее дно, куда порядочная публика не заходила, и где воровство и драки были самыми легкими преступлениями.
Как ни парадоксально, но именно вторая мировая война вернула пабу прежнее место в жизни англичан, сломав социальные барьеры. Бизнесмены и плотники, торговцы и угольщики плечом к плечу дежурили на крышах во время бомбежек, тушили пожары, патрулировали улицы. А после вместе смеялись, плакали, выпивали, спорили, курили, шутили в ближайшем пабе. И атмосфера паба менялась, становилась все более теплой и домашней, паб вновь превращался в центр общественной жизни, где отступало одиночество, горе, страх, где людей объединяли общие горести и общая радость.
- Ирландский паб.
Ирландский паб - учреждение (практически всегда находящееся в частном владении) в Ирландии, имеющее лицензию на продажу спиртных напитков и предоставляющее возможность их потребления на месте. Ирландские пабы распространены в городах большинства стран мира с 1880-х годов, а в самой Ирландии являются важной частью национальной культуры. Наибольшее распространение за рубежом они получили в Северной Америке, где первые подобные учреждения были основаны ирландскими иммигрантами в 1840-х годах (Рис.16). Традиционным алкогольным напитком в таких пабах выступает ирландское пиво, также подаются эль и сидр. Прославленные напитки - портер и стаут исключительны по своим вкусовым качествам. Знаменитый Guinness относится к классу стаутов, хотя изначально на этой пивоварне варили эль, а производство портера, популярного в Лондоне, Артур Гиннесс затеял только для того, чтобы выделяться на фоне местных производителей эля и лагера, рынок которых был перенасыщен. Красный ирландский эль также популярен во всем мире, и на экспорт его делают более крепким. Из закусок более всего распространены чипсы и солёные орешки.




Рис 16. Фасады ирландский пабов. Дублин, Ирландия.
История ирландских пабов как самостоятельных учреждений берёт своё начало в XIX веке, когда рост движения за трезвый образ жизни вынудил владельцев лавок, продающих в том числе алкоголь, как-то диверсифицировать свой бизнес, чтобы компенсировать снижение продаж спиртного. До появления в Ирландии супермаркетов в 1960-х годах ирландские пабы часто носили название «бакалейно-алкогольной лавки» (англ. Spirit Grocery), а сам паб как таковой находился в одном здании с продуктовой лавкой, мастерской или каким-либо иным основным делом его хозяина. Нередко владельцами пабов были могильщики, и такая традиция отчасти сохраняется в Ирландии до сих пор. Некоторые ирландские пабы до сих пор напоминают своим интерьером бакалейную середины XIX века - с барной стойкой, полками позади неё, занимающими большую часть помещения, и небольшим пространством для размещения клиентов, что является их главным отличием от британских пабов.
Пабы Ирландии часто являются семейным бизнесом на протяжении целых поколений и нередко носят имя его текущего владельца или основателя; иногда, впрочем, они называются в честь известных ирландских деятелей или улиц, на которых находятся. Во внешней отделке иногда используются национальные архитектурные черты, такие как круглые башни.
В начале XIX века Ирландские пабы, запрещенные британским законодательством, становятся вне закона. Однако это вызвало противную реакцию и новый виток популярности пабов, а также становление той особой культуры, которую можно видеть сейчас в каждом из тысяч Ирландских пабов по всему миру.
Следующий виток развития пабов произошел уже в середине XIX-го века, когда в 1830 году под флагом борьбы с пьянством в обществе был опубликован известный «Пивной Акт». Этот документ ограничивал спектр заведений продающих крепкий алкоголь, а продажу пива, напротив, поощрял, поскольку этот пенный напиток в то время считался абсолютно безвредным, питательным и очень полезным для здоровья. Пиво наливали тогда даже детям, правда совсем небольшую, детскую порцию, которую даже церковь не считала недопустимой, в то время как джин считался большим злом.
Согласно закону того времени, любой гражданин за вполне приемлемую плату мог в своем доме наладить собственное производство пива, эля и сидра и затем мог осуществлять его продажу как на улице, так и угощать гостей в собственном жилище. На вина и крепкий алкоголь это разрешение не распространялось. Но и одного пива оказалось вполне достаточно, поскольку доходы от этого рода деятельности за короткий срок возросли настолько, что наиболее предприимчивые пивные дельцы могли себе позволить купить, к примеру, соседний дом, который затем и превращали в очередной пивной холл (Рис 17).

Рис 17. Интерьер пивного холла ирландского паба, г. Дублин. Ирландия.
К этому же времени сложилась и особенная культура посещения пабов люди привыкли каждый день оседать в любимом заведении, хозяина которого знал в лицо каждый и формировали узкий круг завсегдатаев, которые каждый день могли рассчитывать и на теплый прием, и на кружку прекрасного прохладного пива. В пабах даже тогда возникла традиция, именуемая «лок-ин» - когда хозяин по своему усмотрению и в зависимости от ситуации позволял группе постоянных клиентов оставаться в своем заведении и после официального закрытия, чтобы продолжать проводить вечер в приятной компании. Традиционными играми в пабе считались дартс, биллиард, карты, домино и шахматы.
В XIX веке, Пабы стали процветать как форма оппозиции, неся в себе свободный дух Ирландии. Пабы становятся местом для «кухонных разговоров». Местом, где можно смело раскритиковать Ее Величество и «плечом к плечу» с товарищами, строить повстанческие планы в борьбе за независимость Ирландии, так продолжается вплоть до обретения независимости Ирландии в 1937 году. Ранее, несмотря на постоянную борьбу, влияние Англии в культурном плане, распространяется и на пабы Ирландии. С приходом на престол в ХIХ веке королевы Виктории зарождается стиль, который впоследствии назовут «викторианским». Свежее дыхание реформ королевы Виктории, после строгости правления королевы Анны, отражается и на культуре. В тоже время зарождается викторианский стиль в оформлении ирландских пабов (Рис 16).



Рис 16.Интерьеры ирландских пабов, г. Белфаст, Ирландия.
С приходом викторианского стиля более ранние совокупности признаков и манеры оформления интерьеров отошли на второй план. С XIX века образ интерьера ирландского паба традиционно подразделяется на мотивы:
- викторианского стиля;
- стиля перестроенных бакалей или шоп-пабы;
- стиля средневековое кантри;
- стиля кельтского паба;
- стиля погреба или пивоваренного завода.
Ирландский паб всегда был местом, где можно найти теплый прием, непременно послушать ирландских музыкантов. Центральное место сбора любых ирландских сообществ, будь то футбольные фанаты или рабочие с завода. На протяжении всей своей истории ирландский паб был местом сбора трудолюбивых людей среднего класса, рабочих профессий, где не требовалось членство в отличии от частных клубов более богатых сословий, как было заведено в Англии. Это лучше членских карт сближало посетителей, так как они могли чувствовать «локоть» верного товарища, находясь в пабе.
Ориентированность на туризм привела также к тому, что в ирландских пабах посетителям начали активно предлагать еду, что не было распространено до 1970-х годов. До этого времени еда вне дома была для ирландцев довольно редка, а в каждом городе имелась хотя бы одна гостиница, предлагавшая еду в течение дня. До нынешних дней некоторые сельские ирландские пабы из еды продают лишь закуски к алкогольным напиткам.
Сегодня ирландские пабы открыты более чем в 40 странах мира, помимо этого Ирландское влияние, часто находит отражение в декоре и стиле всевозможных пивных баров по всему миру (Приложение 1).
В том же ХIХ веке, миллионы ирландцев покидают свою страну и разъезжаются по всему миру в поисках лучшей жизни. В дали от родины паб становится местом сбора ирландцев и олицетворением родины, которой их лишили.
С 1990-х годов многие ирландские пабы в самой Ирландии были подвергнуты реконструкции, с тем чтобы сделать их более удобными для посетителей-туристов, вследствие чего многие из них потеряли свой первоначальный вид.
Что касаемо еды, то лишь с середины 90-х годов начала формироваться идея «гастропаба» - заведения, в задачу которого входило не только качественно и грамотно напоить посетителя, но и накормить его сытно и вкусно. И качество многих блюд в современных пабах сравнимо с хорошим рестораном.
Атмосфера и обаяние традиционного ирландского паба по-прежнему популярны и сегодня, причем настолько, что они превратились в тренд и были воспроизведены во всем мире. Но пабы до сих пор остаются немаловажной частью англо-саксонской и кельтской культуры.
- Интерьер паба: система отношений элементов пространства, как синтез зрительно воспринимаемых признаков
- Древесина
С давних времен, основу интерьера ирландского паба составляют предметы столярного ремесла и использование в отделке помещений, натурального дерева. Более того, деревянные панели буазери очень часто выходят за пределы интерьера и применяются в отделке экстерьера здания где находится паб. Историческое применение деревянного пола еще со времен средневековья, для создания уютной атмосферы ирландского паба, отражается в современных аутентичных помещениях большинства пивных баров и не только ирландских, но и немецких, английских и их производных.
Применение древесины относится не только к отделке, но и к мебели, барной стойке, дверям, а так же активно применяется в неконструктивных элементах помещения. Для предания помещению бара по-настоящему аутентичного вида, используют различные методы старения древесины. Использование по настоящему старой древесины на фасаде и в интерьере ирландского паба или пивного бара сыграет решающую роль в создании атмосферы заведения с богатой историей и аристократическим прошлым. (Рис. 19)



Рис.17. Деревянные фасады пабов, Ирландия.
- Брик-а-брак
Брик-а-брак (вар. Брик-абрак или брикабрак) - это всё, что относится к коллекционной ерунде. То, что представляет интерес для владельца коллекции, но не для окружающих. Всякая мелочь, то что придает атмосферу и индивидуальность каждому заведению, создает впечатление о течении времени в стенах паба. Бутылки, банки, пивные стаканы, разного рода безделушки. Флажки прошедших спортивных событий, старые автомобильные номера, фотографии памятных общественных событий и очень часто атрибуты рекламной. Очень часто можно встретить по-настоящему раритетные вещицы. Все это любовно собирается годами, владельцем паба и его завсегдатаями. Поиск таких вещиц сложная задача для создателя нового паба, так как в реальности это копится за годы работы и отражает на себе пристрастия посетителей заведения. Например атрибуты спортивной команды и подобное (Рис. 17).


Рис.18. Пример декора в стиле «брик-а-брак»,
паб «Джон Гилроиз», г. Москва
- Изобразительно искусство.
Картины кельтских художников в ирландских пабах занимают особое место. Прежде всего потому, что каждый ирландский художник проводит значительное время, черпая вдохновение именно в пабах. Живопись придает помещению аристократический вид и неповторимый стиль принадлежности паба к произведению настоящего кельтского искусства. Очень часто при строительстве современного паба, произведения ирландской живописи копируют и придают внешний вид старинных полотен, прибегая к различным методам искусственного старения. И если мелочи в интерьере ирландского паба не претендует на уникальный характер, живопись, особенно известных художников, например репродукции картин Джона Дункана (1866-1945), может стать настоящим предметом гордости хозяина паба и предметом восхищения его посетителей (Рис. 18).


Рис.19. Примеры картин кельтских художников.
Паб Фуллерс, 2013, Иркутск, б. Гагарина.
- Витражное стекло
Освещение отражает атмосферу и придают настроение посетителям ирландского паба. Ручной работы светильники и настенные бра, выполненные из латуни и меди, как правило, реплики настоящих ремесленных поделок из Викторианской эпохи. Большую часть своего обаяния ирландский паб приобретает благодаря использованию в интерьере не прозрачного, декоративного стекла. Это такой же неотъемлемый элемент ирландского паба как само пиво. Используется окрашенное или рифленое стекло, а в большей части именно витражи с кельтскими мотивами. Ирландские пабы используют на полную декоративно прикладные возможности стекла. Это проявляется и в зеркалах с позолоченными рамами времен возрождения и в уличных стеклах ручной росписи. Тонированное стекло, матовое стекло и авторские витражи ручной работы опорная часть интерьера ирландского паба. (Рис. 20, 21)


Рис.20. Витражная техника плафонов люстр и потолочных витражей в иркутских пабах Харатс по ул. Советская и в Лондон-пабе по ул. Сухэ-Батора.

Рис.21. Витражи в интерьере ирландского паба, Белфаст, Ирландия.
- Латунные элементы
Полированные до блеска как золото, латунные элементы приносят элемент богатства в убранство традиционного ирландского паба.
Впечатление достигается на контрасте старого темного дерева и золотом блеске латунных и металлических элементов. Богато расписанные кельтскими узорами металлические вставки носят как эстетический так и вполне практический характер и используются в интерьере как технические элементы. Латунные элементы применяются в изготовлении барных стоек, дверных ручек, задвижек, в дверных шарнирах. Чугунные кованые металлоконструкций используются как поручни, кронштейны для полок и крючков. (Рис. 22)


Рис.22. Примеры латунных элементов. Примеры в пабе Харатс по ул. Байкальская и в пабе Фуллерс по ул. Сухэ-Батора
- Керамическая метлахская плитка в санузлах
Керамическую плитку Winckelmans изготавливают из тугоплавкой глины, которая благодаря обжигу при температуре 1200 C плотно спекается и получает свои великолепные эксплуатационные качества. Это и твердость, и водостойкость, и кислотоупорность, и морозостойкость, что так важно для напольного покрытия как для ванной комнаты, так и для садовых дорожек. Метлахская плитка производиться из фарфоровых масс различных цветов, благодаря чему мы получаем керамическую плитку однородного цвета по всей ее толщине.Такой отделочный материал не потускнеет и не износится на протяжении многих лет. За счет двойного высокотемпературного обжига (~1200С) достигается плотное спекание вещества, в результате чего получается плитка с высокими эксплуатационными свойствами (морозостойкостью, твердостью, кислотостойкостью и т.п.), что допускает использование плитки напольной, как в жилых, так и в общественных помещениях, а так же на улице (Рис 44).



Рис.23. Раскладка плитки в интерьерах холлов и санузлов ирландских пабов, Великобритания.
- Особенности интерьеров пабов в России на примере городов Москвы и Санкт-Петербурга
Первые пабы появились в Москве более 19 лет назад. С 1995 года принимает гостей ирландский паб Салли ОБраенс Sally OBriens на Большой Полянке, с 1996-го - английские «Джон Булл Паб» и «16 тонн».

Рис.24. Интерьер паба Sally OBriens
Вспыхнувший в середине 90-х интерес к концепции английского и ирландского пивного питейного заведения немного ослаб со временем, но не затух. В 2002-м компания «Планета-М» открыла первый Темпл бар (Temple Bar). В 2003 году заработал английский Бобби Дэцлер (Bobby Dazzler), с 2004-го развивается сеть «Молли Гвинз»».
Вторая волна интереса к пабам пришлась на 20092011 гг., когда их стали добавлять в свой портфель ресторанные компании, ранее специализировавшиеся на других концепциях. Тогда же в Москву вышли сетевые бренды из регионов. В 2009-м рестораторы Митя Борисов и Дмитрий Ямпольский открыли на Никитском бульваре английский «Джон Донн», сегодня это уже сеть из четырех точек. В том же году питерская «МоллисГруп» открыла первый паб «Моллис» в Москве. В 2011-м в столице открылись два паба иркутской сети Харатс (Harat's Irish Pub) Игоря Кокоурова.

Рис.24. Интерьер паба иркутской сети Харатс,
г. Москва,Страстной бул, 2011 г.
Одна из причин популярности пабов - народная любовь к пиву, потребление которого в нашей стране растет год от года. По данным «Финам Менеджмент», в 2011 г. объем российского рынка пива в товарной массе вырос на 7%, увеличившись в номинальном денежном выражении на 19% до 670 млрд руб. В год россиянин, по данным Федеральной службы государственной статистики, в среднем выпивает 75 литров пива, что, по оценке «Финам», уступает западноевропейским показателям.
Способ проведения досуга за кружкой пива или чего покрепче понятен и привычен россиянам. Как оказалось, понятна им и английская, ирландская и шотландская культуры: в Москве любят отмечать День Святого Патрика и болеть за «Манчестер Юнайтед».
На рост числа ресторанов с пивным предложением до недавних пор влияла и легкость работы с пивом в общепите. До 1 июля этого года ресторанам не требовалось получать лицензию на торговлю пивом, поэтому открыть пивное заведение было проще, чем ресторан с крепкими алкогольными напитками или вином.
Развитию сегмента пабов в некоторой степени способствовал финансовый кризис 200809 гг.
«В 2009 году многие предприниматели выходили из разных бизнесов и не знали, куда вложить средства, делится совладелец Mollie's Group Артур Марцинкевич. Кто-то решил инвестировать именно в паб, который многим казался куда более легкой концепцией для развития, чем, например, ресторан итальянской кухни».
Сегодня, по оценкам управляющего паба «Бобби Дэцлер» Алексея Меренкова, для открытия паба с солидным интерьером, рассчитанного на состоятельную публику, потребуется 1520 миллионов рублей. По заверению Артура Марцинкевича, речь может идти и о 30 миллионах, если помещение площадью 300400 квадратных метров находится в аренде. Срок окупаемости паба может составить от трех до пяти лет.
В самых общих чертах паб в России это питейное заведение с уклоном в английскую или ирландскую эстетику, где основным продуктом является пиво.
Принадлежность паба к той или иной культуре владельцы стараются передать через интерьер. Стоит заметить, что у каждого ресторатора свое понимание того, как должен выглядеть паб, и оно не всегда совпадает с тем, как подобные заведения обычно выглядят на родине. Тем не менее, можно выделить общие черты оформления. Английский паб в Москве это, как правило, обилие темного дерева (деревянные колонны, столы, стулья), шторы на окнах, теплые коричневые тона в интерьере, спортивная символика (шарфы футбольных фанатов), плазменные панели для трансляции спортивных событий, контактная барная стойка с пивными кранами, и зачастую не одна. В целом английский паб производит впечатление добротного ресторана с уютным, домашним и в то же время достаточно богатым интерьером. Ирландские пабы обычно попроще: здесь тоже много дерева, но стулья и столы «сколочены», выглядят нарочито шероховато, на стенах могут висеть флаги Ирландии, картинки с изображением страны. В интерьере преобладает традиционный для Ирландии зеленый цвет.
«Пабы в Москве появляются двумя способами, сверху и снизу: либо эту концепцию развивает ресторанная компания, и тогда она делает английский паб, рассчитанный на более состоятельную, взрослую публику, либо паб придумывают люди, влюбленные в культуру той или иной страны, чаще всего Ирландии, и тогда это паб для своих, сделанный своими руками», рассуждает Алексей Дубинский.

Рис.25. Интерьер московского паба «Конор мак Несса».
В целом же для пабов вне зависимости от национальной специфики характерны следующие черты. Во-первых, паб это больше концепция для мужчин. Кроме того, поскольку пабы это концепция, понятная и любимая европейцами, в них традиционно ходит много. И, наконец, паб во многом ориентирован на постоянных гостей, которые приходят пообщаться с барменом и друг с другом.
«Паб не может состояться без постоянных гостей, которые приходят раз в неделю или раз в месяц, считает Артур Марцинкевич. При этом в хорошем пабе тебе сразу наливают именно то пиво, которое всегда пьешь или ставят ту закуску, которая больше всего по душе».
В пабах Великобритании и Ирландии принято обслуживать через стойку, однако на это готовы пойти далеко не все столичные заведения. В английских пабах Москвы чаще всего обслуживают официанты, некоторые ирландские концепции позволяют себе совмещенный формат. Например, в пабах Harat's заказ по кухне и бару принимает бармен у стойки, напитки гость забирает сам, блюда по мере готовности выносит бармен.
«Многие пабы в Англии и Ирландии предлагают минимальный сервис, мы взяли это за основу и пытаемся приучить гостей, но пока сталкиваемся с трудностями», сетует управляющий Харатс в Москве Иннокентий Загородников.
На столах в Харатсах стоят плейсметы (в настоящем ирландском пабе все заказы принимаются у барной стойки), они появились, когда бармены устали объяснять людям, почему у них никто не принимает заказ. Впрочем, иностранцы, попадая в паб, сразу идут к бару, им понятен этот формат.
В ирландском пабе «Бэлфаст» заказ на еду принимают официанты, они же приносят блюда, а вот заказывать и забирать напитки нужно самому у барной стойки. По словам Алексея Дубинского, гости реагируют позитивно: они рассматривают это как часть концепции и относятся с пониманием. Интересно, что некоторые столичные пабы переняли у своих островных коллег и другую традицию запрет на курение. В Ирландии и Великобритании курение в пабах запретили в 2004 и 2007 годах.
Исторически пабы были питейным заведением, куда приходили выпивать, а не есть. «В пабах проводили время за пинтой пива после работы, сюда приходили пообщаться, рассказывает Алексей Меренков, поэтому классика жанра это пиво рекой, шум, гам, минимум закусок и блюд». В качестве закуски гостям, как правило, предлагали фиш энд чипс, свиные ребрышки, соленые орешки. Со временем еда приобрела в пабах большее значение, став способом выделиться среди конкурентов, и места, где помимо хорошего бара появилось интересное предложение по кухне, стали называть гастропабами. Эта тенденция характерна и для столичных заведений.
Например, в Харатс пабе (Harat's Irish Pub) около полутора лет назад помимо снэков стали предлагать полноценное меню кухни.
«Когда два с половиной года назад открылся наш первый паб, мы предлагали к пиву фисташки, нарезку, мясные чипсы, колбаски, с кухни их приносил бармен. Со временем, когда мы поняли, что к пиву нужна еда, мы взяли поваров и расширили меню кухни в два с половиной раза», - рассказал Иннокентий Загородников.
Однако соотношение продаж кухни и бара по-прежнему в пользу последнего: 30 к 70. «Мы бы хотели, чтобы кухня шла лучше, она позволяет больше зарабатывать, но пока в паб все-таки идут пить», замечает Артур Марцинкевич.
По словам Вячеслава Логинова, управляющего St.Peters & St.Anton Pub, кухня в российском пабе нужна, так как русские люди привыкли сначала есть, а потом уже пить. В сторону гастрономии движется и «Джон Булл Паб», где в процессе работы была расширена не только линейка блюд, но и вин. 6
3.4.Особенности викторианского стиля в пабах г. Иркутска
Интерьер складывается из трёх составляющих:
- строительная оболочка - пол, стены, потолок;
- предметное наполнение (оборудование, мебель);
- функциональные процессы, формирующие пространство и чувственно-психологическую атмосферу.
Перечень иркутских пабов:
- Лондон паб. Открытие 1 января 2005. Адрес ул. Сухэ-Батора, 7б
- Тауэр, паб - ресторан. Открытие 13 декабря 2008. Адрес - ул. Карла Маркса, 29
- Сохо паб. Открытие 6 июня 2012. Адрес - Байкальская, 2а
- Абердоур паб. Открытие 23 февраля 2012. Адрес - Октябрьской Революции, 1 к6;
- Фуллерс паб. Открытие 22 декабря 2012. Адрес - Гагарина, 38
- Паб «Харатс». Открытие 23 сентября 2009 года. Адрес - ул. Октябрьской Революции.
- Паб «Харатс». Открытие 7 ноября 2010 года. Адрес - ул. Лермонтова, 81/1.
- Паб «Харатс». Открытие 28 мая 2010 года. Адрес - ул. 1-я Советская, 124д.
- Паб «Харатс». Открытие 24 декабря 2010 года. Адрес - ул. Байкальская, 108
- Паб «Харатс». Открытие 18 февраля 2011 года. Адрес м. Университетский, 2Б
- Паб «Харатс». Открытие 15 апреля 2011 года. Адрес - ул. Ширямова 13Б
- Паб «Харатс». Открытие 16 сентября 2011 года. Адрес - ул. Академическая, 30
- Паб «Харатс». Открытие 6 июля 2011 года. Адрес - ул. Седова, 2
- Паб «Харатс». Открытие 23 декабря 2011 года. Адрес - ул. Мухина, 8.
- Паб «Харатс». Открытие 2 марта 2013 года. Адрес - проспект Маршала Жукова, д.5/1
- Паб «Харатс». Открытие 3 января 2014 года. Адрес - ул. Баумана, 203.
В ходе исследования интерьеров иркутских пабов можно выделить ряд характерных особенностей. Особенности и сравнение обусловлены семиотическими признаками викторианского стиля, выявленных в ходе исследования и обозначенных в Главе II данной диссертации.
- Лондон паб: задекорированное витражами и деревом пространство интерьера большого зала сильно контрастирует со вторым залом, представленном в современном стиле. Это портит целостность интерьера.
- Тауэр: два зала, деревянная отделка лестничного пространства и наличие викторианской мебели, но чрезмерно много бриа-а-брака, что дает ощущение, что ресторан представлен более в стиле английского музыкального течения или панк-музыки 60-х,70-х годов, нежели в классическом викторианском.
- Харатс пабы представлены в стиле бакалейных пабов, но мебель имеет принадлежность к индустриальному викторианскому стилю, что делает образ данного паба эклектичным. В сети Харатс более 25 городов, 52 паба работает и еще 20 в стадии строительства (данные от февраля 2014 года), из них 20 пабов собственных (корпоративных, остальные франчайзные). Харатс паб - это акцент на барной стойке и концепция минимального сервиса с простым меню.
- Фуллерс паб: сдержанный, лаконичный интерьер задекорирован витражами, изображающими традиционные английские орнаменты, брик-а-брак представлен коллекционными элементами, мебель в викторианском стиле заполняет весь интерьер.
Компания Fuller Smith & Turner была основана в 1845 году. Рестораны Fuller`s в Англии находятся на центральных улицах Лондона. На сегодняшний день под маркой "Fuller" в Лондоне работают более 100 пабов. Эта самая большая сеть в английской столице.
- Абердоур позиционируется создателями как паб в шотландском стиле. Деревянная отделка и приглушенные зеленые тона сочетаются с выдержанным декором стен в характерном шотландском стиле.
- Сохо паб, Пинта паб: обилие узоров, орнаментов, латунных элементов создают образ английского паба. Деревянная отделка присутствует, но керамическая составляющая выявлена не ярко.
Таблица 3. Сравнение иркутских пабов по типологическим признакам викторианского стиля


Основные выводы исследования:
- Выделены основополагающие тенденции в формировании интерьера паба.
- Определены основные принципы формирования предметно-пространственной среды ресторанных интерьеров в традиционном ирландском стиле.
- На основе анализа выявлены основные планово-пространственные, декорационные, цветовые принципы на примерах наиболее характерных архитектурных сооружений г. Иркутска.
Глава III. Апробация исследования магистерской диссертации: проектирование интерьера паба в викторианском стиле для конкретного архитектурного пространства
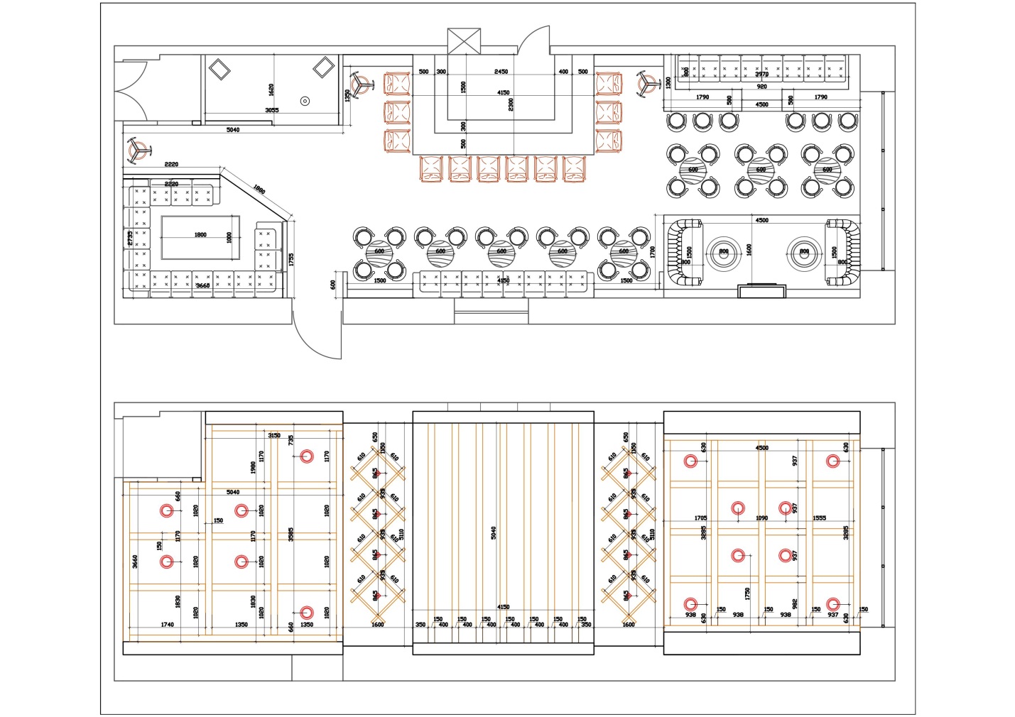
Результаты и материалы исследования были использованы в проектировании интерьера паба в викторианском стиле. Границы проектирования были определены помещением, площадью 94 кв. метра. Проектируемое помещение и ранее представляло собой кафе быстрого питания, находится по байкальскому тракту, и обладало вместимостью 60 посетителей (Рис. 26).
Паб спроектирован на 80 мест, имеет типовую планировку, где акцент сконцентрирован на барной стойке, за которой могут разместиться 12 человек. Барная стойка задекорирована витражами со встроенным освещением и нишами со скрытой подсветкой. В зале имеется две обособленных зоны, две барной стойки, одна из которых обложена метлахской плиткой с геометрическим рисунком, а также сцена. В отделке интерьера применены натуральные материалы, предпочтительно древесина, декорирование представлено витражными вставками в перегородках и витражным оконным остеклением, коллекционными предметами брик-а-бак и текстилем в викторианском стиле.

Рис.26. План расстановки мебели в пабе по Байкальскому тракту.
Потолок имеет дощатую состаренную отделку, для акцентирования зон на нем был применен балочный способ декорирования. Освещение представлено накладными плафонами и подвесами в стиле «Тиффани», а также накладными точечными светильниками. Акцентное освещение сделано с помощью ярких латунных настенных светильников (Рис. 27).

Рис.27. План расстановки светильников в пабе по Байкальскому тракту.
Визуализации паба, сделанные в программе 3D Studio Max 2011 Design встроенным визуализатором V-Ray, имеют высокую степень фотореалистичности и хорошо отражают высказанную автором диссертации концептуальную идею (Рис. 28).

Рис.27. Визуализация паба по Байкальскому тракту.
Заключение
Каждая эпоха в Англии напрямую связаны с монархами, которые являются эталонами стилей. Викторианская архитектура (англ. Victorian architecture) - общий термин, который используется в англоязычных странах для обозначения всего многообразия эклектического направления, распространённого в период правления в Великобритании королевы Виктории с 1837 - 1901 годы.
Викторианская архитектура разнообразна, она вобрала в себя многое у предшествующих ей культурно-архитектурных эпох и стилей, сохранила ордер.
Благодаря бурному развитию промышленности и имеющимся по всему миру колониям, буржуазия начала богатеть и складываться как класс. Благодаря массовому индустриальному производству, многие предметы, считавшиеся ранее непозволительной роскошью, стали общедоступными. Декорирование, обустройство и меблировка домов приобрела демонстративный характер статуса и достатка. Использование тех или иных предметов интерьера стало считаться проявлением отличного вкуса, солидности, престижности, достатка и респектабельности владельца дома. Ученые Р. Барт и Ж. Бордрияр в своих работах рассматривают вещи как материальное проявление массовой психологии, что очевидно в викторианский период.
Характерными чертами викторианского стиля является эклектика, сочетающая в себе готику, рококо, классицизм и экзотику, которая подразумевала индийский и китайский стили. Викторианский стиль в интерьере прошел несколько этапов развития. В начале он представлял собой громоздкую «неоготику», декор которой отличался витиеватостью используемых узоров, орнаментов и мотивов. В середине эпохи актуальным было смешение других классических нео-стилей и активностью движения У. Морриса «Искусства и Ремесла», отвергающее машинное производство, ухудшающее эстетические качества мебели. Поздний викторианский период Льюис Мамфорд назвал «коричневыми десятилетиями»; мрачные тона в начале XX в. унаследовала эдвардианская эпоха.
Характерные особенности традиционного викторианского интерьера:
- деревянная отделка стен, пола и лестничных клеток.
- мебель из натуральной древесины ценных пород.
- чрезмерная наполненность интерьера декоративными аксессуарами.
- в производстве многочисленной мебели используется позолота, латунь, инкрустация драгоценными металлами, ткань с мелким узором или в клетку, кожаная стежка.
- расписные или кессонные потолки.
- декоре стен актуальны обои или ткань со сложным растительным орнаментом мягких природных оттенков.
- сохранение ордера, использование гипсовой лепнины в большом количестве.
- напольным покрытием может служить метлахская плитка, имеющая оригинальный орнамент или узор.
- наличие витражных окон, абажуров в стиле «Тиффани».
- текстильный декор жилых помещений и спален.
В викторианскому стилю присуща некоторая степень деконструвизма. Он позволил отделывать каждое помещение дома в своей собственной манере. Ввиду этого демократичного отношения и свободной эклектике, викторианский стиль быстро отодвинул на задний план интерьерные стили прошлых эпох и укоренился в оформлении общественных интерьерах: магазинов, театров, музеев, а также пабов и ресторанов.
Паб (англ. Pub - сокращение от Public house, буквально «публичный дом» в значении места сбора населения) - заведение, в котором продаются только алкогольные напитки для распития внутри или вне данного помещения. Традиционно существовавшие в Великобритании и Ирландии и являющиеся важным социокультурным элементом этих стран. Ирландские пабы распространены в городах большинства стран мира с 1880-х годов, а в самой Ирландии являются важной частью национальной культуры.
С XIX века образ интерьера ирландского паба традиционно подразделяется на мотивы: викторианского стиля; стиля перестроенных бакалей или шоп-пабы; стиля средневековое кантри; стиля кельтского паба; стиля погреба или пивоваренного завода.
В том же ХIХ веке, миллионы ирландцев покидают свою страну и разъезжаются по всему миру в поисках лучшей жизни, распространяя таким образом свои социо-культурные традиции. Сегодня ирландские пабы открыты более чем в 40 странах мира, помимо этого Ирландское влияние, часто находит отражение в декоре и всевозможных баров по всему миру.
Лишь с середины 90-х годов XX в. начала формироваться идея «гастропаба» - заведения, где кроме напитков подавалась и еда. Именно эта тенденция прочно укоренилась в России, где традиционно алкоголь принято масштабно закусывать.
Первые гастропабы появились в Москве более 19 лет назад. Вспыхнувший в середине 90-х интерес к концепции английского и ирландского пивного питейного заведения не затух и к 2000-м, хотя вторая волна интереса к пабам пришлась на 20092011 гг., когда их стали добавлять в свой портфель ресторанные компании, ранее специализировавшиеся на других концепциях. Тогда же в Москву вышли сетевые бренды из регионов. Одна из причин популярности пабов демократичная обстановка и народная любовь к пиву, потребление которого в нашей стране растет год от года.
Принадлежность паба к той или иной культуре владельцы стараются передать через интерьер. В большинстве своем, в России для оформления для пабов архитекторы и дизайнеры выбирают викторианский стиль, а также стиль бакалеи или шоп паба.
Английский паб в Москве это, как правило, обилие темного дерева (деревянные колонны, пилястры столы, стулья), тяжелые шторы на окнах, теплые коричневые тона в интерьере, спортивная символика (шарфы футбольных фанатов), плазменные панели для трансляции спортивных событий, контактная барная стойка с пивными кранами, и зачастую не одна. В целом английский паб производит впечатление добротного ресторана с уютным, домашним и в то же время достаточно богатым интерьером. Ирландские пабы обычно попроще: здесь тоже много дерева, но стулья и столы «сколочены», выглядят нарочито шероховато, на стенах могут висеть флаги Ирландии, картинки с изображением страны. В интерьере преобладает традиционный для Ирландии зеленый цвет.
В Иркутске интерес к англо-саксонской концепции паба возникла в 2005 году с появлением «Лондон паба» по адресу ул. Сухэ-Батора, 7б, до 2014 года интерес только возрастал.
Зимой 2008 по улице Карла Маркса открылся ресторан «Тауэр», а осенью 2009 открылся первый паб сети «Harats Irish Pub», а уже в 2010 году компания «Harats» запустила франчазинг. Сейчас география «Harats» впечатляет: от Петропавловска-Камчатского до Санкт-Петербурга, от Хабаровска до Сочи. В 2013 году сеть вышла за пределы России и открыла паб за рубежом. 22 декабря 2012 в Иркутске состоялось официальное открытие первого в Сибири английского паба «Фуллерс». В Англии компания «Fuller Smith & Turner» существует с 1845 года. На сегодняшний день под этой маркой в Лондоне работают более 100 пабов. Эта самая большая сеть в английской столице.
На момент окончания исследования в столице Восточной Сибири насчитывается 16 гастропабов. Они являются преобладающими питейными заведениями в г. Иркутске и уже не воспринимаются как чрезмерно дорогой элемент «экзотического» британского национального колорита. В ходе исследования интерьеров иркутских пабов выявлено, что традиционный викторианский стиль представлен в полном отношении лишь в пабе «Фуллерс», в остальных пабах представлен частично. Но атмосфера и обаяние традиционного паба популярны у горожан, причем настолько, что этот тренд будет только расширятся.
Список использованной литературы
- Адорно, В. Т. Эстетическая теория : пер. с нем. / В. Т. Адорно ; пер. с нем. А. В. Дранова. М.: Республика, 2011. - 527 с.
- Аронов, В. 100 дизайнеров Запада / В. Аронов и др. М. : ВНИИТЭ, 1994.-216 е., ил.
- Барт, Р. Избранные работы : Семиотика : Поэтика : пер. с фр. / Р. Барт ; сост., общ. ред. и вступ. ст. Г. К. Косикова. М.: Прогресс, 2014. - 616 с.
- Барт, Р. Мифологии : пер. с фр. / Р. Барт ; пер. с фр., вступ. ст. и сост. С. Н.
- Барт, Р. Система моды. Статьи по семиотике культуры : пер. с фр. / Р. Барт ; пер. с фр., вступ. ст. и сост. С. Н. Зенкина. М. : Изд-во им. Сабашниковых, 2014. - 512 с.
- Барт, Р. Избранные работы : Семиотика : Поэтика : пер. с фр. / Р. Барт ; сост., общ. ред. и вступ. ст. Г. К. Косикова. М.: Прогресс, 1989. - 616 с.
- Безмоздин, JI. Н. В мире дизайна / Л. Н. Безмоздин. Ташкент : Фан, 1990.-311, 2. с.
- Бодрийар, Ж. Система вещей : пер. с фр. / Ж. Бодрийар ; пер. с фр. С.Н. Зенкина. М.: Рудомино, 2013. - 218 с.
- Бодрийар, Ж. Соблазн : пер. с фр. / Ж. Бодрийар ; пер. с фр. А. Гараджи, вступ. ст. Е. Петровской. М.: Ad Marginem, 2000. - 320 с.
- Бычков, В. В. Эстетика / В. В. Бычков. 2-е изд., перераб. и доп. - М. : Гардарики, 2006. - 573 с.
- Васильев, Н. Игровая составляющая в дизайне и архитектуре постмодернизма / Н. Васильев // Проблемы дизайна-2 : сб. статей / В. Л. Глазычев и др. М.: Архитектура-С, 2004. - С. 322-336.
- Вирильо, П. Машина зрения : пер. с фр. / П. Вирильо ; пер. с фр. А. В. Шестакова, под ред. В. Ю. Быстрова. С-Пб.: Наука, 2004. - 140 с.
- Воробьев, Г. Г. О восприятии информации различными культурными группами / Г. Г. Воробьев // Библиотека дизайна. http://library.sredaboom.ru/ergonomics/librvorobievhuman.htm
- Воронов, Н. В. Дизайн : русская версия / Н. В. Воронов ; под ред. Г. В. Вершинина. Тюмень : Институт дизайна, 2005. - 224 е.; 58 ил.
- Генисаретский, О. И. Методологическая картина дизайна / О. И. Генисаретский, Г. П. Щедровицкий // Теоретические и методологические исследования в дизайне. М.: Шк. Культ. Полит, 2004. - С. 32 - 44.
- Гегель, Г. Ф. В. Эстетика. В 4 т. Т. 1.: пер. с нем. / Г. Ф. В. Гегель ; пер. с нем. Б. Г. Столпнера ; под ред. Лифшица. М.: Искусство, 1969. - 420 с.
- Глазычев, В. Л. О дизайне (Очерки по теории и практике дизайна на Западе) / В. Л. Глазычев. М.: Искусство, 1970. - 192 с.
- Голубева, О. Л. Основы композиции / О. Л. Голубева. М. : Искусство, 2004.-120 с. :ил.
- Делез, Ж. Марсель Пруст и знаки. Статьи : пер. с фр. / Ж. Делез ; пер. с фр., ред. и предисл. Е. Г. Соколов. СПб.: Алетейя, 1999. - 190 с.
- Делез, Ж. Складка, Лейбниц и барокко : пер. с фр. / Ж. Делез ; общ. ред. и послесл. В. А. Подороги ; пер. с фр. Б. М. Скуратова. М.: Логос, 1997. -264 с.
- Дубровский, В. Я. Проектирование системы проектирования / В. Я. Дубровский // Теоретические и методологические исследования в дизайне. М.: Шк. Культ. Полит, 2004. С. 179 - 194.
- Джонс. О. Грамматика орнамента / О. Джонс. Л.: Бернард Куотритч, 1910. 383 с.: ил.
- Джупиус П., Мартин З. Основы эргономики. Человек, пространство, интерьер: справочник по проектным нормам: пер. с англ. / Джулиус Панеро, Мартин Зелник. М.: АСТ: Астрель, 2006. 319 с.: ил.
- Жердев, Е. В. Метафорическая образность в дизайне / Е.В. Жердев . М.: Изд-во МСХА, 2004 . - 226 с.: фот., ил.
- Жердев Е. В. Особенности взаимодействия композиции и метафорической образности в контексте семиотики дизайна / Е. В. Жердев // Вестник ОГУ № 1,2005.
- Зеленов, Л. А. История и теория дизайна / Л. А. Зеленов. Н. Новгород : Нижегор. гос. архит.-строит. ун-т, 2000. - 46 с.
- Зеленов, Л. А. Научно-технический прогресс и комплекс архитектонических искусств / Л. А. Зеленов, С. В. Норенков, О. П. Фролов ; Горьков. обл. орг. СНИО СССР. Горький, 1989. - 47 1. с.
- Зеленов, Л. А. Принципы дизайна / Л. А. Зеленов, О. П. Фролов. -Горький, 1978.52.3енкин, С. Н. Жан Бодрийар : время симулякров Вступительная статья к Бодрийар, Ж. Символический обмен и смерть. / С. Н. Зенкин. М. : Добросвет, 2000.-387 с.
- Зенкин, С. Н. Стратегическое отступление Ролана Бата Вступительная статья к Барт, Р. Фрагменты речи влюблённого. / С. Н. Зенкин. М. : Ad Marginem, 1999.-С. 5-77.
- Иванов, В. В. Нечет и чет. Асимметрия мозга и динамика знаковых систем // Вяч. Вс. Иванов ; Избр. труды по семиотике и истории культуры : Т. I. М.: 1999.-С.381-605.
- История мирового искусства / отв. ред. Е. Сабашников. М. : БММ АО, 1998.-717 е.: ил.
- Ищенко Е. Навигация и конструктивные метафоры в коммуникационном дизайне / Е. Ищенко // Проблемы дизайна-2: Сборник статей / В. JI. Глазычев и др. М.: Архитектура-С, 2004. - С. 102-108.
- Казарин, А. В. Дизайн как социокультурный феномен: дис. канд. филос. наук : 24.00.01. / Казарин Александр Валерьевич. Н. Новгород, 2002.165 с.
- Кантор, К. М. О необходимости создания двух различных теорий дизайна: общей и частной / К. М. Кантор // Теоретические и методологические исследования в дизайне. М. : Шк. Культ. Полит, 2004. С. 30 - 32.
- Кларк, П. Дизайн : пер. с англ. / П. Кларк ; пер. с англ. А. Броновицкой. -М.: ACT ; Астрель, 2003. 144 с.
- Кэлоуэй. С. Элементы стиля: энциклопедия архитектурных деталей. Под ред. С. Кэлоуэй. Изд. 2-е доп. и переработанное. Пер. с англ. М.: ООО «Магма», 2006. 592 с., илл.
- Михайлов, С. М. История дизайна. В 2 т. Том 1. : Учеб. для вузов / С. М. Михайлов. М.: Союз Дизайнеров России, 2004. - 245 е., ил.
- Михайлов, С. М. История дизайна. В 2 т. Том 2. : Учеб. для вузов / С. М. Михайлов. М.: Союз Дизайнеров России, 2004. - 396 е., ил.
- Моррис, Ч. У. Основания теории знаков 1938. / Ч. У. Моррис // Семиотика 1983. С. 37 - 89.
- Нойферт П, Нефф Л. Проектирование и строительство. Дом, квартира, сад: перевод с нем. Третье изд., переработанное и дополненное: - М.: Издательство «Архитектура-С», 2010 264 с.: ил.
- Пайл Дж. Дизайн интерьеров. 6000 лет истории / Дж. Пайл ; пер. с англ. О. Сергеевой. М.: ACT: Астрель, 2007. - 464 1.с.: ил.
- Панкратова, А. В. Миф как коннотативная система в дизайне современного интерьера / А. В. Панкратова // Материалы Всероссийской научно-практической конференции «Четвёртые Авраамиевские чтения». Смоленск : Универсум, 2007. - С. 286 - 288.
- Панкратова, А. В. Семиотическая структура дизайна интерьера / А. В. Панкратова // Вестник КГУ им. Н. А. Некрасова № 3, 2007. С. 238 -242.
- Панкратова, А. В. Сравнение систем традиционного и современного интерьера / А. В. Панкратова // Материалы XIII Международной конференции студентов, аспирантов и молодых учёных «Ломоносов». Том IV. М.: Изд-во МГУ, 2006. - С. 272 - 274.
- Панкратова, А. В. Смысловая система интерьера / А. В. Панкратова // Наша социология 2006 : Практика и перспективы социологических исследований : сб. статей / РГГУ. Социологический факультет. Центр социологических исследований. М. : РГГУ, 2006. - С. 191 - 195. 0, 3 п. л.
- Пономарева, Е. С. Цвет в интерьере / Е. С. Пономарева // http://library.sredaboom.ru/color/librcolourpnl.htm
- Раппапорт, С. X. От художника к зрителю. Проблема художественного творчества / С. X. Раппапорт. М. : Советский художник, 1978.-264 с.
- 108. Розин, В. М. Визуальная культура и восприятие. Как человек видит и понимает мир / В. М. Розин. Изд. 2-е. - М. : Эдиториал УРСС, 2004. -224 с.
- Сидоренко, В. Ф. Дизайнерские методы познания / В. Ф. Сидоренко //http://library.sredaboom.ru/philosophy/librengldesign.htm
- Соловьев, Н. К. История современного интерьера / Н. К. Соловьев. М.: Cварог и К, 2004. - 400 стр.
- Суджич. Д. Язык вещей. / Суджич Д ; пер. с англ. Strelka Press. М:. 2013. - 90.с.: ил.
- Устин, В. Б. Композиция в дизайне. Методические основы композиционно-художественного формообразования в дизайнерском творчестве: учебное пособие. 2-е изд., уточненное и доп. / В. Б. Устин. -М. : ACT : Астрель, 2006. - 239, 1., с.: ил.
- Шимко, В. Т. Основы дизайна и средовое проектирование / В. Т. Шимко. М.: Архитектура-С, 2004. - 160 с.: ил.
1 Пайл Дж. Дизайн интерьеров. 6000 лет истории / Джон Пайл ; пер. с англ. О. Сергеевой. М.: ACT: Астрель, 2007. - 464 1.с.: ил.
2 Джонс. О. Грамматика орнамента / О. Джонс. Л.: Бернард Куотритч, 1910. 383 с.: ил.
3 Суджич. Д. Язык вещей. / Суджич Д ; пер. с англ. Strelka Press. М:. 2013. - 90.с.: ил.
4 Соловьев, Н. К. История современного интерьера / Н. К. Соловьев. М.: Cварог и К, 2004. - 400 стр.
5 Кэлоуэй. С. Элементы стиля: энциклопедия архитектурных деталей. Под ред. С. Кэлоуэй. Изд. 2-е доп. и переработанное. Пер. с англ. М.: ООО «Магма», 2006. С 236-341
6 http://www.cigarinfo.ru/news/articles/10960.htm
Семиотические особенности традиционного викторианского стиля в интерьерах пабов г. Иркутска










