Снижение технологической себестоимости изготовления шлицевого вала, за счёт совершенствования технологического процесса его изготовления
Содержание
Задание на курсовое проектирование
Введение………………………………………………………………..…стр.3
- Анализ исходных данных…………………………………………......стр.5
- Служебное назначение детали………………………………....стр.5
- Классификация поверхностей детали по функциональному назначению……………………………………………………...стр.6
- Определение типа производства, его характеристика……………….стр.8
- Определение типа производства…………………………….…стр.8
- Выбор стратегии разработки ТП…………………………….…стр.8
- Технологический анализ чертежа
- Выбор заготовки и способа её получения……………………..стр.9
- Определение размеров и массы заготовки……………………стр.10
- Выбор вариантов исходной заготовки…………………………тр.10
- Технико-экономическое обоснование вариантов заготовки...стр.14
- Проектирование заготовки…………………………………….стр.14
- Расчёт операционных размеров и припусков……………………….стр.15
- Технологический процесс изготовления детали
- Выбор основных схем базирования…………………………...стр.20
- Маршрутный процесс изготовления детали………………….стр.20
- Компоновка и состав функциональных частей металлорежущих станков и оборудования, используемых для рассматриваемых методов
- Токарно-винторезный станок модели 16К20…………………стр.23
- Широкоуниверсальный фрезерный станок модели 679…..…стр.25
- Станок круглошлифовальный универсальный 3М151………стр.27
7. Выбор режимов резания……………………………………………....стр.29
8. Расчёт норм времени…………………………………………………..стр.32
9. Расчёт технологической себестоимости
9.1. Метод прямого калькулирования……………………………....стр.34
10. Заключение…………………………………………………………....стр.39
11. Список литературы…………………………………………………..стр.41
Введение
Проектирование технологических процессов является составной частью единой системы технологической подготовки производства.
Эта система установлена на базе государственных стандартов с целью организации и управления технологической подготовкой производства на основе новейших достижений науки и техники.
Проектирование технологических процессов состоит из следующих этапов: анализа исходных данных, технологического контроля детали, выбора заготовки, баз, установления маршрута обработки отдельных поверхностей, проектирование технологического маршрута изготовления детали с выбором типа оборудования, расчёта припусков, построение операций, расчётов режима обработки, техничес- кого нормирования операций, оформления технологической документации.
Дисциплина «Основы технологии машиностроения» включает в себя комплекс технических дисциплин по организации во времени и пространстве технологичес- кого процесса.
Основным направлением развития технологических процессов в металообра- ботке в настоящее время является: повышение производительности труда, качества обработки и снижения затрат на изготовление деталей. Вопрос повышения технического уровня технологических процессов является одним из актуальных, так как на наших предприятиях эксплуатируется много устаревшего оборудования, не обеспечивающего требуемой эффективности и качества обработки.
Валы входят в конструкцию многих узлов станков и машин. Валы предназначены для передачи крутящих моментов и монтажа на них различных деталей и механизмов. Конструктивно ступенчатые валы подразделяют на: гладкие, фланцевые и валы-шестерни. В общем случае они представляют собой сочетание гладких посадочных и непосадочных, шлицевых, шпоночных, резьбовых и переходных поверхностей.
От качества их изготовления зависит долговечность работы изделий и надёжность, поэтому совершенствованию технологии их изготовления постоянно уделяется самое серьёзное внимание.
В последние годы разработано много прогрессивных конструкций инструментов, создано достаточное количество износостойких инструментальных материалов, что должно способствовать при использовании современных станков повышению производительности обработки и снижению затрат на изготовление деталей.
Целью данного проекта является снижение технологической себестоимости изготовления шлицевого вала, за счёт совершенствования технологического процесса его изготовления.
1. Анализ исходных данных
1.1. Служебное назначение детали
В механизмах транспортных и технологических машин, колёсных и гусеничных машинах применяют валы различной конструктивной формы: бесступенчатые (гладкие), ступенчатые с прямой геометрической осью, коленчатые, эксцентри- ковые (кулачковые), кривошипы, поворотные кулаки и др.
Наибольшее распространение в этих машинах (60 -70% от общего количества) получили ступенчатые валы средних размеров (диаметром 25…125 мм, длиной до 250 мм) шлицевые с глухим или сквозным центральным отверстием.
Шлицевые валы изготавливают в основном с закрытыми шлицами прямобочного или эльвовентного профиля.
Данная деталь шлицевой вал входит в состав раздаточной коробки транспорт- ного средства.
Служебное назначение вала передача крутящего момента с зубчатого колеса на фланец. Вал работает с большими нагрузками, так как раздаточная коробка транспортного средства включается в работу при его движении по дорогам среднего и низкого качества.
Поэтому в качестве материала вала выбрана сталь 45Х с последующей термической обработкой. Смазка хорошая из общей картерной системы смазки раздаточной коробки жидким маслом за счёт его разбрызгивания зубчатыми колёсами при работе механизма. Запылённость вала низкая, так как он находится внутри корпуса раздаточной коробки и большей частью изолирован от внешней среды и пыли с помощью уплотнительных устройств и сопрягаемых деталей.
Характерные виды износа элементов вала: усталостное выкрашивание, заедание или излом шлицев, износ из-за трения шеек под подшипники или соприкасающихся со втулками. Температура вала при установившемся режиме работы механизма не превышает 800 С.
Исходя из служебного назначения детали, при разработке технологического процесса её изготовления, - особое внимание следует уделить выбору методов обработки шлицев, шеек под подшипники.
Все поверхности вала должны быть механически обработаны, так как необработанные поверхности могут стать причиной вибрации при его вращении.
1.2. Классификация поверхностей детали по функциональному назначению.
В таблице 1 представлена классификация поверхностей вала.
Номера поверхностей указаны на эскизе детали, рисунок 1.

Рис.1 Систематизация поверхностей детали.
Классификация поверхностей детали.
Таблица 1
|
Вид поверхности |
Номер поверхности |
|
Основная конструкторская база |
2, 4, 6, 7, 8 , 9, 11, 13, 18 |
|
Вспомогательная конструкторская база |
5 |
|
Исполнительные поверхности |
1, 3, 14, 15, 16, 17 |
|
Свободные поверхности |
10, 12 |
Целью систематизации поверхностей детали является выявление - какие из них имеют определяющее значение для качественного выполнения валом своего служебного назначения.
Основными конструкторскими базами, определяющими положение детали в узле, - являются торцы вала 6; 13 и шейки под подшипник 2 ; 4.
Торец вала и шейка под подшипник фиксируют положение детали в раздаточной коробке.
Вспомогательные конструкторские базы определяют положение присоединяемых деталей. Поверхности 1; 3 определяет положение опорной втулки.
Поверхности 1, 3, 14, 15, 16, 17 являются исполнительными, так как выполняют служебное назначение передают крутящий момент от двигателя на исполнитель-ный механизм раздаточной коробки.
Остальные поверхности являются свободными, не соприкасающимися с другими деталями.
Определим свойства и химический состав материала вала (сталь 45Х).
Химический состав стали 45Х ГОСТ 4543-71, %
Таблица 2
|
Cr |
Si |
Mn |
C |
Ni |
Cu |
S |
P |
|
0,8-1,1 |
0,17-0,37 |
0,5-0,8 |
0,41-0,49 |
- |
- |
- |
- |
Механические свойства стали 45Х ГОСТ 4543-71
Таблица 3
|
Предел текучести т , н/мм2 |
Временное сопротивление в , н/мм2 |
Относительное удлинение з, % |
Ударная вязкость
Дж/см2 |
Твёрдость, НВ |
|
835 |
1030 |
9 |
49 |
229 |
2. Определение типа производства, его характеристика
2.1. Определение типа производства
Тип производства бывает: единичный, мелкосерийный, среднесерийный, крупносерийный и массовый. Серийный тип производства характеризуется выпуском деталей партиями.
В нашем случае тип производства среднесерийный.
Годовая программа выпуска изделий N = 500 шт.
Режим работы предприятия 2 смены в сутки.
Действительный годовой фонд времени работы оборудования Fд = 4015 час.
2.1.1. Расчёт количества деталей в партии
Периодичность запуска выпуска изделий а = 2 дня.
Число рабочих дней в году F = 254 дня.
Расчётное количество деталей в партии определим по формуле:
n = ( N . а ) / F ,
где N программа выпуска, N = 500 шт.;
а периодичность запуска - выпуска изделий, а = 2 дня;
F число рабочих дней в году, F = 254 дня.
n = (500.2) /254 = 4 шт.
2.2. Выбор стратегии разработки ТП
Для среднесерийного типа производства выбираем следующую стратегию разработки ТП.
Форма организации ТП переменно-поточная. Детали запускаются периодически повторяющимися партиями.
Метод получения заготовки - штамповка на механическом прессе, расчёт припусков подробный по переходам, табличный.
ТП разрабатывается специально для данной детали на базе типового ТП обработки деталей типа «вал шлицевой». Технологический маршрут предусматривает достаточно высокую концентрацию переходов.
В ТП предусматривается применение как универсальных, так и специальных станков, приспособлений, стандартный и специальный режущий инструмент.
Технологические операции разрабатываются подробно по переходам. Оборудование периодически загружается деталями разных партий. Оборудование расставляется с учётом характерного направления грузопотоков.
Коэффициент закрепления операций Кз.о. = 10…20
Настройка станков по измерительным инструментам и приборам.
Режимы резания рассчитываются по отраслевым нормативам и эмпирическим формулам.
Нормирование ТП детальное, пооперационное.
Квалификация рабочих средняя, наладчиков значительно выше.
3. Технологический анализ чертежа
3.1. Выбор заготовки и способа её получения
При выборе материала учитывали:
- условия работы детали;
- характер и величину действующей на деталь нагрузки;
- температуру и коррозионное воздействие среды;
- степень и вид изнашивания: под действием сил трения,
абразивное, усталостное и др.
Учитывая условия эксплуатации детали и встречающиеся на практике виды разрушений и износа, вал шлицевой относится к деталям I группы.
Материал должен обладать высокой твёрдостью и износостойкостью поверхностного слоя при вязкой и достаточно прочной сердцевине. Такие свойства обеспечивают цементуемая сталь марки 45Х.
Материал детали Сталь 45Х. В условиях серийного производства предпочтительным способом получения заготовок для детали типа “вал” является штамповка на КГШП.
3.2 Определение размеров и массы заготовки
Материал детали сталь 45Х по ГОСТ 4543-71
Годовая программа выпуска изделий N = 500 шт.
Производство среднесерийное.
Определим массу детали, исходя из заданного чертежа детали и удельного веса стали 45Х.
При определении массы детали сложной геометрической формы, - следует разделить её на простые по форме элементы, удобные для расчёта объёма, а затем просуммировать найденные значения.
Объём заготовки круглого сечения рассчитаем по формуле: V = (D2/4) . l
В нашем случае: Vдетали = Vзаготовки V1 шлицевой проточки V2 шлицевой проточки
Vзаг.= + . 6 + 57 + . 88 + . 51 =
Vзаг = . (542 . 66 + 462 . 6 + 602 . 57 + 722 . 88 + 502 . 51)
Vзаготовки = 745694 мм3 = 0,746 дм3
Vшлицевой проточки = l . ( ( - ) + ( - ) . s . n ),
где s ширина шлица; n количество шлицев; l длина шлица.
V1 шлицевой проточки = (0,785(542 - 482) + (27 - 24) . 6 . 6) . 66 = 0,039 дм3
V2 шлицевой проточки = (0,785(722 - 622) + (36 - 31) . 8 . 6) . 88 = 0,115 дм3
Vдетали = Vзаготовки V1 шлиц. проточки V2 шлиц. проточки = 0,746 0,039 0,115 = 0,592 дм3
Масса детали: МД = . Vдетали = 7,82 . 0,592 = 4,63 кг,
где: = 7,82 кг/дм3 (удельный вес стали 45Х).
3.3 Выбор вариантов исходной заготовки
Одним из основополагающих принципов выбора метода получения заготовки является - обеспечение максимального приближения её формы, размеров и качества поверхности к аналогичным характеристикам получаемой детали. В этом случае существенно сокращается расход металла, объём механической обработки и производственный цикл изготовления детали.
Однако при этом в заготовительном производстве увеличиваются расходы на технологическое оборудование и оснастку, их ремонт и обслуживание.
Поэтому при выборе метода получения заготовки следует производить технико-экономический анализ двух этапов производства - заготовительного и механо-обрабатывающего.
Выбор метода получения заготовки должен осуществляться на основе технического и экономического принципов.
В соответствии с техническим принципом выбранный технологический процесс должен полностью обеспечивать выполнение всех требований на изготовление изделия.
В соответствии с экономическим принципом изготовление заготовки следует вести с минимальными производственными затратами.
Из нескольких возможных методов получения изделия - выбирают наиболее экономичный, а при равной экономичности - наиболее производительный.
В данном курсовом проекте метод получения заготовки определяется размерами программного задания, материалом детали, её назначением и техническими требованиями на изготовление, формой поверхности и размерами получаемой детали.
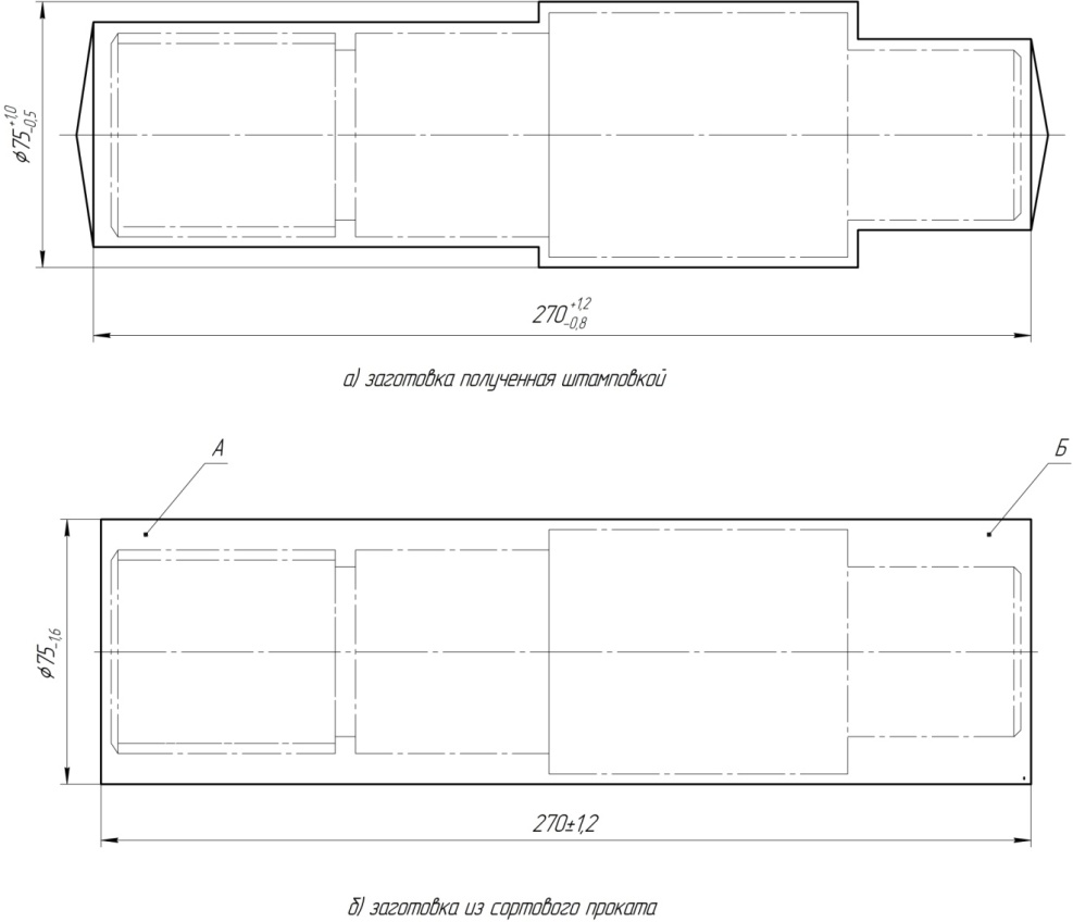
Сделаем предварительное сопоставление двух возможных способов получения заготовки с целью выбора оптимального варианта.
Рис.2 Варианты конструкции заготовок
Из рисунка 2 видно, что заготовка из проката имеет значительно большие напуски (зоны А и Б), чем заготовка, получаемая методом штамповки.
В основу анализа положим сравнение суммарных стоимостей переменных долей затрат на получение заготовки «Сз» и её механическую обработку «Собр».
Расчёт выполним по методике: Сi = Сз + Собр.
где i номер варианта получения заготовки.
В нашем случае возьмём: i = 1 для проката; i = 2 для штамповки.
Переменные затраты на получение заготовки Сз , руб.:
СЗi = (Цм /1000) . МЗi . Ксл . Кт . Ксп
или:
СЗi = (Цм /1000) . МД . (Ксл . Кт . Ксп)/ Ким
где Цм цена исходного материала, руб/т;
МЗi масса заготовки для данного варианта получения заготовки, кг;
МД масса детали, кг;
Ким коэффициент использования материала;
Ксп, Кт , Ксл коэффициенты, учитывающие способ получения заготовки, точность и сложность.
Рассчитаем затраты СЗ для каждого из вариантов.
На рис.2. вычерчиваем контуры заготовок из проката и штамповки.
По таблице определяем ориентировочно припуск на обработку, определяем размеры заготовки с учётом припусков и проставляем на рисунке 2.
Для заготовки из проката принимаем ближайший диаметр прутка: D = 75мм.
Для штамповки назначаем уклоны 50 и радиусы переходов R =3,5 мм. Вычерчиваем напуски на рисунке 2.
Определяем массу детали МД и массу заготовки МЗ , кг:
МД = 4,63 кг масса детали, рассчитана выше.
= 0, 00782 кг/см3 удельный вес стали 45Х
VЗ1 = (7,52/4 ) . 27 = 1192 см3 (для проката)
МЗ1 = . VЗ1 = 0,00782 . 1192 = 9,32 кг (для проката)
VЗ2 = ( . 6,22 . 12,9)/4 + ( . 7,52 . 8,8)/4 + ( . 5,22 . 5,1)/4 = 885 см3 (для штамповки)
МЗ2 = . VЗ2 = 0,00782 . 885 = 6,9 кг (для штамповки)
Коэффициент использования материала определим по формуле:
Ким = МД / МЗ
Ким1 = 4,63 / 9,32 = 0,5
Ким2 = 4,63 / 6,9 = 0,67
Определяем цену исходного материала Цм , руб/т и поправочные коэффициенты по таблицам из методического пособия по курсовому проектированию:
Цм1 = 25560 руб/т (для проката);
Цм2 = 20280 руб/т (для штамповки)
Ксп1 = 1,5; Ксп2 = 2,5; Кт1 = 1; Кт2 = 1; Ксл1 = 1; Ксл2 = 1
Подставляем найденные значения в формулу:
СЗ1 = (25560/1000) . 9,32 . 1,5 . 1 . 1 = 357,3 руб.
СЗ2 = (20280/1000) . 6,9 . 2,5. 1 . 1 = 350,0 руб.
Переменные затраты на черновую обработку Собр , руб. определим по формуле:
Собр = Суд . (Мз МД) / Ко
где Суд удельные затраты на снятие 1 кг стружки при черновой механической обработке, руб.; Ко коэффициент обрабатываемости материала.
Рассчитаем Собр для каждого из вариантов.
Для серийного типа производства Суд = 40; Для стали 45Х: Ко = 1.
Подставляя значения в вышеприведённую формулу, получим:
Собр1 = 40 . (9,32 4,63)/1 = 187,6 руб.
Собр2 = 40 . (6,9 4,63)/1 = 90,80 руб.
Таким образом, суммарная стоимость заготовок получается:
Сi = Сз + Собр.
С1 = 357,3 + 187,6 = 544,9 руб.
С2 = 350,0 + 90,80 = 440,8 руб.
Вывод: по минимальным переменным затратам выбираем более экономичный вариант получения заготовки, т.е. штамповку на механическом прессе.
3.4 Технико-экономическое обоснование вариантов заготовки
Экономический эффект от использования выбранной заготовки рассчитаем по формуле: Э = (С1 С2) . N,
где С1 стоимость проката, руб.;
С2 стоимость штамповки, руб.;
N годовой объём выпуска деталей, шт./год.
Э = (544,9 440,8) . 500 = 52050,00 рублей.
Таким образом, экономический эффект от использования заготовки из штамповки составит: 52050,00 рублей в год.
3.5 Проектирование заготовки
Проанализировав полученные результаты, приходим к выводу, что способ получения заготовки штамповкой на механическом прессе является оптимальным, так как себестоимость заготовки меньше, чем отрезкой из проката.
Принимаем метод получения заготовки вала штамповкой, что даёт экономию по сравнению с отрезкой из проката в размере 52050,00 руб. в год.
Окончательно заготовка будет спроектирована после разработки пункта - «Расчёт операционных размеров и припусков».
4. Расчёт операционных размеров и припусков
При годовой программе выпуска N = 500 шт/год (серийное производство), для получения заготовки припуск на поверхность, допуска, уклоны назначаем в соответствии с ГОСТ 7505-89.
Массу заготовки определим по следующей зависимости:
mзаг = mД kp
где mД = 4,63 кг (масса детали);
kp - расчётный коэффициент для определения массы заготовки для данной детали.
Примем kp= 1,6 по ГОСТ 7505-89.
Получаем: mзаг = 4,631,6 = 7,41 кг
По ГОСТ 7505-89 определим:
- группу стали М2 (содержание углерода от 0,35% до 0,65%);
- степень сложности заготовки С1;
- группа точности заготовки Т4 - штамповка на КГШП (ГОСТ 6809-87) в открытых штампах.
Конфигурация плоскости разъёма плоская (П).
Припуском на обработку называется слой материала, подлежащий удалению с поверхности заготовки в процессе обработки для получения готовой детали и достижения заданной точности и качества обрабатываемой поверхности.
Припуск может быть назначен на основе расчётно-аналитического метода определения припусков.
Расчётно-аналитический метод базируется на анализе факторов, влияющих на припуски предыдущих и выполняемого переходов технологического процесса обработки детали. Расчётный метод позволяет определить минимальный необходимый припуск, который является оптимальным для данных условий обработки.
Аналитически рассчитаем припуск на механическую обработку на поверхность диаметром 50k6 мм по формуле:
Zi = TDi-1 + (RZi-1 + Ti-1) + (i-1 + i)
где Zi - припуск на рассматриваемой операции (таблица 4);
TDi-1 - допуск от предыдущей операции (таблица 4);
RZi-1 - шероховатость поверхности от предыдущей операции (таблица 4);
i-1 - пространственные отклонения, возникающие на предыдущей операции;
i - погрешность установки на рассматриваемой операции.
В связи со спецификой детали, примем i = 0 (обработка в центрах).
Пространственные отклонения для заготовки рассчитаем по формуле:
заг = 2СМ + 2КОР + 2Ц
где СМ = 0,1мм (погрешность заготовки по смещению);
КОР = l мм (погрешность заготовки по короблению);
Ц = 0,08 мм ( погрешность зацентровки);
= 2 мкм = 0,002 мм (удельная кривизна заготовки).
l = 268 мм - длина заготовки, выступающей из патрона.
Получаем погрешность заготовки по короблению:
КОР = 0,002 268 = 0,536 мм
Подставляя значения в формулу, получим пространственные отклонения для заготовки:
заг = 0,12 + 0,5362 + 0,082 = 0,551мм = 551 мкм
Величина пространственных отклонений для последующих переходов:
чист. точ = 0,06 заг = 0,06 551 = 33,1 мкм = 0,033 мм
шлиф.= 0,04 заг = 0,04 551 = 22,04 мкм = 0,022 мм
Величина расчётного припуска по технологическим переходам:
Для чистового точения:
2ZMIN = 2 (60+60+551) = 2 671 мкм
Для шлифования шеек детали:
2ZMIN = 2 (30+30+33 ) = 2 93 мкм
Расчётный размер dР находится последовательно в обратном порядке технологических переходов, т.е. снизу верх (таблица 4), начиная с последней операции шлифования.
Расчётный размер dР при шлифовании шейки принимают по dMIN.
dР1= 50,002 + 20,671 = 51,344 мм
dзаг= 51,344 + 20,093 = 51,53 мм
При обработке наружных поверхностей расчётный размер занесем в графу dMIN
таблицы 4.
Величину допусков принимаем для чистовой обработки поверхности по Н10 при обработке наружных поверхностей.
Тогда допуски равны: Тd1 = 16 мкм
Тd2 = 48 мкм
TdЗАГ = 300 мкм
Для наружных поверхностей получим:
dMAX = dMIN + Td
dMAX1 = 50,002 + 0,016 = 50,018 мм
dMAX2 = 51,344 + 0,048 = 51,392 мм
dMAXзаг = 51,53 + 0,3 = 51,83 мм
Предельные значения припусков 2ZПРMAX для наружных поверхностей - определяют как разность наибольших предельных размеров,
2ZПР MIN - как разность наименьших предельных размеров предшествующего и предыдущего размеров.
2ZПРMAX1 = 51,392 - 50,018 = 1,374 мм = 1374 мкм
2ZПРMAX2 = 51,83 - 51,392 = 0,438 мм = 438 мкм
2ZПР MIN1 = 51,344 - 50,002 = 1,342 мм = 1342 мкм
2ZПР MIN2 = 51,53 - 51,344 = 0,186 мм = 186 мкм
Проверка правильности расчётов:
2ZПРMAX2 - 2ZПРMIN2 = 438 186 = 252 мкм; Tdзаг - Td2 = 300 48 = 252 мкм
2ZПРMAX1-2ZПРMIN1= 1374-1342 = 32 мкм; Td2 - Td1 = 48 16 = 32 мкм
Величина номинального припуска ZoНОМ, определяется с учётом несимметричного расположения поля допуска заготовки.
Для наружных поверхностей: ZoНОМ = 2ZПРMIN + НЗ - НД
где НЗ = 0,25 мм - верхнее отклонение допуска заготовки;
НД = 0,018 мм - верхнее отклонение допуска детали.
ZoНОМ = 1528 + 250 18 = 1760 мкм = 1,76 мм
Тогда расчётный размер заготовки:
dНОМ.ЗАГ = d + ZoНОМ = 50 + 1,76 = 51,76 мм
dмаx заготовки = 51,83 мм
dmin заготовки = 51,53 мм
dмаx чист. точение = 51,392 мм
dmin чист. точение = 51,344 мм
dмаx шлиф.= 50,018 мм
dmin шлиф.= 50,002 мм
2ZПРMAX2 2ZПРMAX1
2ZПР MIN2
2ZПР MIN1
Рис. 3 Схема расположения межоперационных припусков и допусков.
Сводная таблица расчёта припуска на обработку поверхности 50k6 мм.
Таблица 4
|
Технологические переходы обработки поверхностей |
Элементы припуска, мкм |
Расчётный припуск, 2ZпрMIN, мм |
Расчётный размер, dр, мм |
Допуск Тd, мкм |
Предельный размер, мм |
Предельные значения припусков, мм |
||||
|
RZ |
Т |
dmin |
dmax |
2ZпрMIN |
2ZпрMAX |
|||||
|
Заготовка |
60 |
60 |
551 |
51,53 |
300 |
51,53 |
51,83 |
|||
|
Чистовое точение |
30 |
30 |
33 |
2671 |
51,344 |
48 |
51,344 |
51,392 |
186 |
438 |
|
Шлифование |
5 |
15 |
22 |
293 |
50,002 |
16 |
50,002 |
50,018 |
1342 |
1374 |
|
Итого: |
1528 |
1812 |
По таблице 2 из ГОСТ 7505-89 (согласно группе стали М2, степени сложности заготовки С1, и группе точности заготовки Т4) находим исходный индекс заготовки - № 15 и по нему назначаем припуски, допуски.
Размеры заготовки «Вал шлицевой».
Таблица 5
|
Размер, мм |
Основной размер припуска, мм (табл.3 ГОСТ 7505-89) |
Размеры поковки, мм |
Допускаемые отклонения, мм (табл.8 ГОСТ 7505-89) |
Размеры поковки с допусками, мм |
|
60H7 |
2,3 |
60+2*2,3+0,6= 65,2 примем 65 мм |
3,2() |
65 |
|
73f7 |
2,3 |
73+2*2,3+0,6= 78,2 примем 78 мм |
3,2() |
78 |
|
268 |
3,3 |
268+2*3,3+0,8=275,4 примем 276 мм |
4,5() |
276 |
|
88 |
3 |
88+2*3+1= 95 примем 95 мм |
3,2() |
95() |
Дополнительный припуск составит 0,2 мм (согласно таблице 14 по ГОСТ 7505-89).
Радиусы закруглений наружных углов при диаметре заготовки 25-50 мм составляют R= 2,5 мм; при диаметре заготовки более 50 мм - составляют R= 3,6 мм (согласно таблице 7 по ГОСТ 7505-89);
- Отклонение от плоскостности 0,6 мм;
- Допускаемая величина высоты заусенца на поковке составляет 4 мм;
- Допускаемая величина остаточного облоя 1,6 мм;
- Допускаемое отклонение от концентричности пробитого отверстия относительно внешнего контура поковки 0,6 мм.
Штамповочные уклоны составляют (согласно таблице 8 по ГОСТ 7505-89):
- на наружной поверхности не более 7;
- на внутренней поверхности не более 10.
Рассчитаем коэффициент весовой точности материала по формуле:
Ки =q/Q
где q = 4,63 кг масса детали;
Q = 7,41 кг масса заготовки.
Ки = 4,63/7,41 = 0,625
После разработки эскиза поковки, определяем массу поковки:
Мрасч = М = 7,41 кг