Локально вычислительная сеть предприятия
PAGE \* MERGEFORMAT3
Содержание
|
[0.0.1] Содержание [0.0.2] Введение [0.0.3] АНАЛИТИЧЕСКАЯ ЧАСТЬ [0.0.4] 1.1 Понятие локально вычислительной сети [0.0.5] 1.2 Топологии [0.0.6] 1.3 Сетевое оборудование [0.0.7] 1.3.1 Активное сетевое оборудование [0.0.8] 1.3.2 Пассивное сетевое оборудование [0.0.9] 1.4 Структурированная кабельная система [0.0.10] 1.5 Стандарты Ethernet [0.0.11] 2 ПРАКТИЧЕСКАЯ ЧАСТЬ [0.0.12] 2.1 Характеристика предприятия [0.0.13] 2.2 Требование к сети [0.0.14] План здания [0.0.15] Схема сети предприятия [0.0.16] Схема предприятия с сетью [0.0.17] 2.3 Выбор оборудования [0.0.18] 3 Математическая модель компьютерной сети [0.0.19] 3.1 Построить граф, соответствующий сети [0.0.20] 3.3 Вычисления к задаче [0.0.21] [0.0.22] 4 Заключение [0.0.23] Список использованной литературы |
Введение
На сегодняшний день в мире существует более 130 млн. компьютеров и более 80 % из них объединены в различные информационно-вычислительные сети - от малых локальных сетей в офисах, до глобальных сетей. Компьютерные сети (англ, network) это совокупность ПК, распределенных на некоторой территории и взаимосвязанных для совместного использования ресурсов (данных, программ и аппаратных компонентов).
Компьютерные сети передачи данных являются результатом информационной революции и в будущем смогут образовать основное средство коммуникации. Всемирная тенденция к объединению компьютеров в сети обусловлена рядом важных причин, таких, как ускорение передачи информационных сообщений, возможность быстрого обмена информацией между пользователями, получение и передача сообщений (факсов, E-mail писем, электронных конференций и т.д.) не отходя от рабочего места, возможность мгновенного получения любой информации из любой точки земного шара, а также обмен информацией между компьютерами разных фирм производителей, работающих под разным программным обеспечением.
Ниже приведены преимущества, получаемые при сетевом объединении персональных компьютеров:
- Разделение ресурсов позволяет экономно использовать ресурсы.· Разделение данных предоставляет возможность доступа и управления базами данных с периферийных рабочих мест, нуждающихся в информации.
- Разделение ресурсов процессора, обеспечивающее использование вычислительных мощностей для обработки данных другими системами, входящими в сеть.
- Многопользовательский режим одновременное использование централизованных прикладных программных средств, обычно заранее установленных на сервере приложения.
- АНАЛИТИЧЕСКАЯ ЧАСТЬ
1.1 Понятие локально вычислительной сети
Локально вычислительная сеть сеть, с помощью которой компьютеры объединяются на ограниченной территории. Главное её предназначение организация доступа к общим ресурсам внутри сети и предоставление вычислительных ресурсов и услуг пользователям сети.
Характерная особенность ЛС наличие связывающего всех абонентов высокоскоростного канала связи для передачи информации в цифровом виде.
Сети связи ЛВС в настоящее время используют несколько базовых технологий, таких как Ethernet, FDDI, Token Ring и ArcNet. Так же имеют небольшую протяженность (от 10 метров, до 10 километров) и высокую скорость передачи данных (до 100 Мбит/с).
Основными достоинствами ЛС является возможность совместной работы и быстрого обмена данными, хранение данных, разграничивающий доступ к сетевым ресурсам, таким как принтеры, сеть internet и т.д.
Практически все услуги сети построены на принципе клиент-сервер. Сервером в сети называется компьютер, способный предоставлять клиентам (по мере прихода от них запросов) некоторые сетевые услуги. Взаимодействие клиент-сервер строится обычно следующим образом: по приходу запросов от клиентов сервер запускает различные программы предоставления сетевых услуг, по мере выполнения которых сервер отвечает на запросы клиентов. Все программное обеспечение сети также можно поделить на клиентское и серверное. При этом программное обеспечение сервера занимается предоставлением сетевых услуг, а клиентское программное обеспечение обеспечивает передачу запросов серверу и получение ответов от него.
1.2 Топологии
Под топологией вычислительной сети понимается способ соединения ее отдельных компонентов (компьютеров, серверов, принтеров и т.д.). Различают три основные топологии:
- топология типа шина;
- топология типа кольцо;
- топология типа звезда.
Сетевая топология шина топология, при которой все компьютеры параллельно подключаются к одной линии связи и информация от каждого компьютера одновременно передается другим компьютерам (рисунок 1.1 А). При таком соединении компьютеры могут передавать только по очереди, потому что линия связи единственная. В противном случае переданная информация будет искажаться в результате наложения (конфликту, коллизии). В топологии «шина» отсутствует центральный абонент, через которого передается вся информация, которая увеличивает ее надежность. Добавлять новых абонентов в шину достаточно просто и обычно возможно даже во время работы сети. В большинстве случаев при использовании шины нужно минимальное количество соединительного кабеля по сравнению с другой топологией. Правда, нужно учесть, что к каждому компьютеру (кроме двух крайних) подходит два кабеля, что не всегда удобно.
Сетевая топология кольцо топология, при которой каждый компьютер передает информацию всегда только одному компьютеру, следующему в цепочке, а получает информацию только от предыдущего компьютера в цепи, и эта цепочка замкнута в «кольцо» (рисунок 1.1 В). В кольце сигналы передаются только в одном направлении. Эта топология сложна в обслуживании, но за то при таком соединении исключены коллизии.
Сетевая топология звезда топология, при которой к одному центральному компьютеру или концентратору присоединяются другие периферийные компьютеры и устройства, причем каждое из них использует свою отдельную линию связи (рисунок 1.1 С). В этой топологии используется управление из центральной точки, а связь между устройствами, подключенными к сети, осуществляется посредством двухточечных линий между каждым устройством и центральным каналом или концентратором. Весь сетевой трафик в звездообразной топологии проходит через концентратор. Вначале данные посылаются концентратору, а затем концентратор переправляет их устройству в соответствии с адресом, содержащимся в данных.
Рисунок 1.1 Топологии «Шина», «Кольцо», «Звезда».
1.3 Сетевое оборудование
Сетевое оборудование устройства, из которых состоит компьютерная сеть. Условно выделяют два вида сетевого оборудования:
- Активное сетевое оборудование;
- Пассивное сетевое оборудование.
1.3.1 Активное сетевое оборудование
Активное сетевое оборудование оборудование, представляющее собой интеллектуальные электронные устройства, которые способны обрабатывать или преобразовывать передаваемую по сети информацию. Помимо формирования и передачи пакетов такие устройства способны выполнять одну из своих основных функций коммутации сигналов. При этом эксплуатация активного сетевого оборудования не обходится без дополнительных источников питания. К такому типу устройств можно отнести концентраторы, маршрутизаторы, коммутаторы, принт-серверы, сетевые адаптеры и т.п.
Сетевой концентратор устройство, предназначенное для объединения нескольких устройств Ethernet в общий сегмент сети. В отличии от коммутатора, концентратор не запоминает MAC адреса и не имеет буферизации. Концентратор рассылает приходящие пакеты на все порты и все устройства к нему подключенные увеличивая ненужный трафик, что сказывается на загруженности сети, так же с данным устройством безопасность сети очень низкая, т.к. каждый пакет присутствует на каждом устройстве подсоединенном к концентратору.
Маршрутизатор устройство, которое благодаря конфигурированию со стороны администратора пересылает пакеты сетевого уровня по сети и ее сегментам. В стандартном варианте маршрутизатор, благодаря сконфигурированным данным и таблицам маршрутизации, использует заданный адрес получателя и пересылает его в соответствии с заданными параметрами в таблицах, в случае если адрес соответствия не найден, роутер сбрасывает такой пакет переходя к очередному пакету.
Коммутатор устройство, которое в отличии от маршрутизатора соединяет несколько узлов по MAC адресам в пределах одной сети. Коммутатор передает данные непосредственно получателю и использует при этом широковещательный трафик по всем узлам сети. Передача информации у коммутатора высокая, что характеризуется самообучением на основе переданных фреймов или кадров с MAC адреса хоста который уже осуществлял такую передачу. Имея в списке MAC адрес от которого уже был получен пакет, маршрутизатор вместо широковещательной передачи на все порты отправит его непосредственно по назначению к хосту.
1.3.2 Пассивное сетевое оборудование
Пассивное сетевое оборудование оборудование, служащее для простой передачи сигнала на физическом уровне. Пассивное сетевое оборудование не нуждается в дополнительных источниках питания, передача информации при этом происходит без дополнительных преобразований сигнала. Пакеты данных пересылаются напрямую без изменений на информационном уровне. К пассивному оборудованию можно отнести кабели витой пары, коннекторы, патч-панели, кабель каналы и т.п.
Витая пара самый распространенный на сегодняшний день вид кабеля, применяемый для построения локальных сетей. Кабель состоит из попарно перевитых медных изолированных проводников. Типичный кабель несет в себе 8 проводников (4 пары), хотя выпускается и кабель с 4 проводниками (2 пары). Цвета внутренней изоляции проводников строго стандартны. Расстояние между устройствами, соединенными витой парой, не должно превышать 100 метров.
Существует несколько категорий кабелей типа витая пара, которые маркируются от CAT1 до CAT7. В локальных сетях стандарта Ethernet используется витая пара категории CAT5. Для работы с кабелем витая пара применяются коннекторы RJ-45.
1.4 Структурированная кабельная система
Структурированная кабельная система (СКС) это часть инфраструктуры здания, включающая физические линии для передачи любых телекоммуникационных сигналов.
Универсальность СКС подразумевает использование ее для различных систем:
- телефонная (городская и местная);
- компьютерная (ЛВС);
- телевидения (городского и офисного);
- пожарной сигнализации и пожаротушения;
- охранной сигнализации и наблюдения;
- мониторинга климатических условий и управлениями;
- контроля доступа персонала.
Такая кабельная система независима от оконечного оборудования, что позволяет создать гибкую коммуникационную инфраструктуру предприятия. Структурированная кабельная система это совокупность пассивного коммуникационного оборудования.
СКС охватывает все пространство здания, соединяет все точки средств передачи информации, такие как компьютеры, телефоны, датчики пожарной и охранной сигнализации, системы видеонаблюдения и контроля доступа. Все эти средства обеспечиваются индивидуальной точкой входа в общую систему здания. Линии, отдельные для каждой информационной розетки, связывают точки входа с коммутационным центром этажа, образуя горизонтальную кабельную подсистему. Все этажные коммутационные узлы специальными магистралями объединяются в коммутационном центре здания.
1.5 Стандарты Ethernet
Ethernet это самый распространенный на сегодняшний день стандарт локальных сетей. Общее количество сетей, использующих в настоящее время Ethernet, оценивается в 5 миллионов, а количество компьютеров, работающих с установленными сетевыми адаптерами Ethernet в 50 миллионов.
Стандарты реализации Ethernet:
- 10BASE-T, IEEE 802.3i для передачи данных используется 4 провода кабеля витой пары CAT3 или CAT5. Максимальная длина сегмента 100 метров.
- FOIRL Базовый стандарт для технологии Ethernet, использующий для передачи данных оптический кабель. Максимальное расстояние передачи данных без повторителя 1 км.
- 10BASE-FL Улучшенная версия стандарта FOIRL. Улучшение коснулось увеличения длины сегмента до 2 км.
Стандарты реализации Fast Ethernet:
- 100BASE-TX, IEEE 802.3u развитие стандарта 10BASE-T для использования в сетях топологии «звезда». Задействована витая пара категории 5, фактически используются только две неэкранированные пары проводников, поддерживается дуплексная передача данных, расстояние до 100 м.
- 100BASE-T4 стандарт, использующий витую пару категории 3. Задействованы все четыре пары проводников, передача данных идёт в полудуплексе. Практически не используется.
- 100BASE-T2 стандарт, использующий витую пару категории 3. Задействованы только две пары проводников. Поддерживается полный дуплекс, когда сигналы распространяются в противоположных направлениях по каждой паре. Скорость передачи в одном направлении 50 Мбит/с. Практически не используется.
- 100BASE-FX стандарт, использующий многомодовое волокно. Максимальная длина сегмента 400 метров в полудуплексе (для гарантированного обнаружения коллизий) или 2 километра в полном дуплексе.
- 100BASE-SX стандарт, использующий многомодовое волокно. Максимальная длина ограничена только величиной затухания в оптическом кабеле и мощностью передатчиков, по разным материалам от 2х до 10 километров.
- 100BASE-FX WDM стандарт, использующий одномодовое волокно. Максимальная длина ограничена только величиной затухания в волоконно-оптическом кабеле и мощностью передатчиков. Интерфейсы бывают двух видов, отличаются длиной волны передатчика и маркируются либо цифрами (длина волны) либо одной латинской буквой A(1310) или B(1550). В паре могут работать только парные интерфейсы: с одной стороны передатчик на 1310 нм, а с другой на 1550 нм.
-
2 ПРАКТИЧЕСКАЯ ЧАСТЬ
2.1 Характеристика предприятия
Филиал ОАО «Юго-Запад транснефтепродукт» ЛПДС «Стальной Конь» входит в состав Юго-Западного управления магистральных нефтепродуктопроводов.
ЛПДС «Стальной Конь» расположена в 5 км севернее г. Орла и в 300 м севернее железнодорожной станции Стальной Конь Московской железной дороги. Перекачивающая станция занимает площадь 17,1 га. Филиал ОАО «Юго-Запад транснефтепродукт» ЛПДС «Стальной Конь» был построен в 1961 году, а введен в эксплуатацию в 1962 году.
ЛПДС «Стальной Конь» осуществляет операции: последовательная перекачка нефтепродукта, прием нефтепродукта из продуктопровода в резервуарный парк общей емкостью 88000 м3, хранение в резервуарах (17 штук), налив в автоцистерны.
На станции имеется 3 насосных, где размещаются насосы для основной перекачки производительностью 1250 м3/час и насосы для вспомогательных целей производительностью 50 м3/час. Отпуск нефтепродуктов производится в автоцистерны через автоматизированную систему налива в бензовозы.
Для поддержания существующего оборудования в надлежащем состоянии и в ремонтных целях имеется механическая, ремонтно-восстановительная служба, служба электроснабжения, КИП и А. Источником обогрева и отопления производственных помещений является котельная. Для решения производственных задач на нефтепродуктоналивном пункте имеется автотранспорт, пожарные машины и автотехника, которая располагается на четырех автостоянках, две из них закрытые.
ЛПДС «Стальной Конь» обслуживает 442 км магистрального трубопровода и 195 км отводов к нефтебазам :
- МНПП «Орел-Курск» в эксплуатации с 1986 г., протяженность 243 км, диаметр трубы 219 мм, рабочее давление 78 кг/см2,
- МНПП «Самара-Брянск» в эксплуатации с 1963 г, протяженность 130 км, диаметр трубы 530 мм, рабочее давление 64 кг/см2,
- Участок ЛПДС «Стальной Конь-8Н» в эксплуатации с 1963 г, протяженность 69 км, диаметр трубы 530 мм, рабочее давление 64 кг/см2,.
Нефтепродуктопроводы проходят по Орловскому, Кромскому, Свердловскому, Глазуновскому, Малоархангельскому, Залегощенскому, Урицкому, Хотынецкому районам Орловской области и 6 районам Курской области.
2.2 Требование к сети
В сеть должен быть включен недорогой файловый сервер, два сетевых МФУ и лазерный принтер, подключенный к рабочей станции кассира.
Рабочие станции должны работать на базе процессора Intel.
На компьютере главного бухгалтера должен быть установлен СБИС++.
На рабочих станциях должно быть установлено следующее программное обеспечение:
- Windows 7
- 1С предприятие 8.2
- Консультант +
- Avast (последней версии)
- Microsoft office 2013
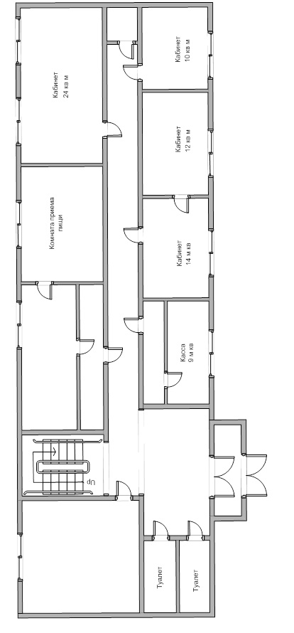
План здания

Рисунок 2.1 План здания.
Схема сети предприятия

Рисунок 2.2 Схема сети предприятия.
Схема предприятия с сетью

Рисунок 2.3 Схема предприятия с сетью.
2.3 Выбор оборудования
Таблица 2.1 - «Оборудование»
|
Тип |
Наименование |
Количество |
Цена шт. (руб) |
Сумма розница (руб) |
Сумма отпом (руб) |
|
1 |
2 |
3 |
4 |
5 |
6 |
|
Рабочие ПК |
|||||
|
Системный блок в сборе |
C5000MB (C5358WNi): Core i3-4330 / 4 Гб / 500 Гб / HD Graphics 4600 / DVDRW / WiFi / Win7 Pro |
10 |
20555 |
205550 |
|
|
Клавиатура + мышь |
Genius SlimStar C110 < USB > (Кл-ра, USB+Мышь, 3кн, Roll, Laser, USB) |
10 |
599 |
5990 |
5640 |
|
Монитор |
21.5" ЖК монитор PHILIPS 223V5LSB2/10/62 (LCD, Wide, 1920x1080, D-Sub) |
10 |
3815 |
38150 |
36050 |
|
Итого (розница): 2491690 руб. Итого(оптом): 247240 руб |
|||||
|
Сервер |
|||||
|
Сервер в сборе |
S5000MB (S5332LNi): Core i5-4590 / 8 Гб / 2 x 1 Тб SATA RAID / Windows Server 2012 R2 Foundation |
1 |
32897 |
32897 |
|
|
Монитор |
21.5" PHILIPS 223V5LSB2/10/62 (LCD, Wide, 1920x1080, D-Sub) |
1 |
3815 |
3815 |
3605 |
|
1 |
2 |
3 |
4 |
5 |
6 |
|
Клавиатура + мышь |
Genius SlimStar C110 < USB > (Кл-ра, USB+Мышь, 3кн, Roll, Laser, USB) |
1 |
599 |
599 |
564 |
|
Итого (розница): 37311 руб. Итого(оптом): 37066 руб |
|||||
|
Комплектующие |
|||||
|
Принтер |
Canon i-SENSYS MF4410 (A4, 64Mb, 23 стр / мин, лазерное МФУ, USB2.0) |
1 |
6571 |
6571 |
|
|
МФУ |
Canon i-SENSYS MF4890dw (A4, 128Mb, 25 стр / мин, лазерное МФУ, факс, двусторонняя печать, DADF, USB2.0, WiFi, сетевой) |
2 |
14070 |
28140 |
|
|
Маршрутизатор |
D-Link < DSL-2540U BB / T1A > ADSL2 / 2+ 4-port Ethernet Router (AnnexB, 4UTP, 10 / 100Mbps) |
1 |
991 |
991 |
|
1 |
2 |
3 |
4 |
5 |
6 |
|
Коммутатор |
D-Link < DGS-1008D / I2A > 8-port Gigabit Switch (8UTP 10 / 100 / 1000Mbps) |
1 |
1012 |
1012 |
|
|
Коммутатор |
D-Link < DGS-1016D > Switch 16port (16UTP 10 / 100 / 1000Mbps) |
1 |
2924 |
2924 |
|
|
Кабель |
"Telecom" Ultra Base (TUS 44048) UTP кат.5е 4 пары, бухта 305м омедненный Green |
1 |
1302 |
1302 |
|
|
Коннектор |
5bites <US005A> RJ-45 КОННЕКТОР (уп-ка 100шт.) |
1 |
134 |
134 |
|
|
Кабельный канал |
110х34, 2м, Efapel <10080CBR> |
41 |
683 |
28003 |
26445 |
|
Итого (розница): 69077 руб. Итого(оптом): 67519 руб. |
Таблица 2.2 - «Программное обеспечение»
|
Тип |
Наименование |
Количество |
Цена (руб) шт. |
Общая цена (руб) |
|
Microsoft office |
Office 365 для малого бизнеса расширенный |
10 |
5400 |
54000 |
|
1С |
1С:Предприятие 8.2. Технологическая поставка + 2 часа техподдержки |
10 |
5200 |
34500 |
|
СБИС++ |
Подключение к системе |
1 |
3300 |
3300 |
|
Итого: 91800 руб. |
3 Математическая модель компьютерной сети
3.1 Построить граф, соответствующий сети
Построить граф, соответствующий сети, в котором Х = {х1, ..., хn}- конечное множество вершин (точек) - сетевых устройств, А = {а1, .., аn} - конечное множество ребер (линий), соединяющих между собой все или часть этих вершин линий связи (Рисунок 3.1)

Рисунок 3.1 Граф
Данный граф является деревом, не взвешенным и не ориентированным.
3.2 Охарактеризовать его и построить матрицу смежностей и инциденций.
|
M |
S1 |
K1 |
K2 |
K3 |
K4 |
K5 |
K6 |
FS1 |
P1 |
S2 |
K7 |
K8 |
K9 |
K10 |
P2 |
|
|
M |
0 |
1 |
0 |
0 |
0 |
0 |
0 |
0 |
0 |
0 |
1 |
0 |
0 |
0 |
0 |
0 |
|
S1 |
1 |
0 |
1 |
1 |
1 |
1 |
1 |
1 |
1 |
1 |
0 |
0 |
0 |
0 |
0 |
0 |
|
K1 |
0 |
1 |
0 |
0 |
0 |
0 |
0 |
0 |
0 |
0 |
0 |
0 |
0 |
0 |
0 |
0 |
|
K2 |
0 |
1 |
0 |
0 |
0 |
0 |
0 |
0 |
0 |
0 |
0 |
0 |
0 |
0 |
0 |
0 |
|
K3 |
0 |
1 |
0 |
0 |
0 |
0 |
0 |
0 |
0 |
0 |
0 |
0 |
0 |
0 |
0 |
0 |
|
K4 |
0 |
1 |
0 |
0 |
0 |
0 |
0 |
0 |
0 |
0 |
0 |
0 |
0 |
0 |
0 |
0 |
|
K5 |
0 |
1 |
0 |
0 |
0 |
0 |
0 |
0 |
0 |
0 |
0 |
0 |
0 |
0 |
0 |
0 |
|
K6 |
0 |
1 |
0 |
0 |
0 |
0 |
0 |
0 |
0 |
0 |
0 |
0 |
0 |
0 |
0 |
0 |
|
FS1 |
0 |
1 |
0 |
0 |
0 |
0 |
0 |
0 |
0 |
0 |
0 |
0 |
0 |
0 |
0 |
0 |
|
P1 |
0 |
1 |
0 |
0 |
0 |
0 |
0 |
0 |
0 |
0 |
0 |
0 |
0 |
0 |
0 |
0 |
|
S2 |
1 |
0 |
0 |
0 |
0 |
0 |
0 |
0 |
0 |
0 |
0 |
1 |
1 |
1 |
1 |
1 |
|
K7 |
0 |
0 |
0 |
0 |
0 |
0 |
0 |
0 |
0 |
0 |
1 |
0 |
0 |
0 |
0 |
0 |
|
K8 |
0 |
0 |
0 |
0 |
0 |
0 |
0 |
0 |
0 |
0 |
1 |
0 |
0 |
0 |
0 |
0 |
|
K9 |
0 |
0 |
0 |
0 |
0 |
0 |
0 |
0 |
0 |
0 |
1 |
0 |
0 |
0 |
0 |
0 |
|
K10 |
0 |
0 |
0 |
0 |
0 |
0 |
0 |
0 |
0 |
0 |
1 |
0 |
0 |
0 |
0 |
0 |
|
P2 |
0 |
0 |
0 |
0 |
0 |
0 |
0 |
0 |
0 |
0 |
1 |
0 |
0 |
0 |
0 |
0 |
Таблица 3.2 Матрица смежности
3.3 Вычисления к задаче
Заявки поступают в одноканальную СМО с интервалом 2,5 минуты,
длительность обслуживания заявок в приборе 45 секунд. Определить
загрузку и коэффициент простоя системы.
= b (3.1)
время поступления
b длительность обслуживания
загрузка системы

b = 0.75
= 1 (3.2)
- коэффициент простой системы
= 0.3
= 0.7
4 Заключение
В результате курсового проектирования была спроектирована локальная вычислительная сеть со следующими характеристиками:
- Топология активная звезда
- Стандарт 10Base-T (Fast Ethernet)
- Кабель неэкранированная витая пара категории 5e
- Протокол передачи данных - TCP/IP
Для данной сети использовалось 1 маршрутизатор и 2 коммутатора. Маршрутизатор и коммутаторы установлены в здании таким образом, что каждая линия не превышает 100м.
Для организации было использовано 2 МФУ «Canon i-SENSYS MF4890dw» и принтер «Canon i-SENSYS MF4410».
Для данной организации был выбран сервер «S5000MB (S5332LNi)» и куплен на сайте www.nix.ru.
В результате стоимость всего оборудования и программного обеспечения составила: 443625 руб.
В выборе программного обеспечения было отдано предпочтение программным продуктам от Microsoft и 1C.
При выборе антивирусного программного обеспечения было отдано предпочтение программному продукту Avast Free Antivirus.
Список использованной литературы
- Григорьев В.М. Виртуальная лаборатория по компьютерным сетям. 2011г.
- Олифер В.Г., Олифер Н.А. Компьютерные сети. Принципы, технологии, протоколы. 3ed. 2006г.
- Олифер В.Г., Олифер Н.А. Компьютерные сети. Принципы, технологии, протоколы. 4ed. 2010г.
- Ватаманюк А.И. Создание, обслуживание и администрирование сетей на 100%. 2010г.
- Холмогоров В.А. Компьютерная сеть своими руками. 2004г.
- Колисниченко Д.Н. Сделай сам компьютерную сеть. Монтаж, настройка, обслуживание. 2004г.
- Виснадул Б.Д., Лупин С.А., Сидоров С.В., Чумаченко П.Ю. Основы компьютерных сетей. 2007г.
- Заика А. Компьютерные сети. 2006г.
- Закер К. Компьютерные сети. Модернизация и поиск неисправностей. 2004г.
- Уэнделл О. - Компьютерные сети. Первый шаг. 2006г.
- Буравчик Д. - Локальная сеть без проблем. 2ed. 2005г.