Кондиционирование универсама
Содержание
1. Исходные данные. 2
2. Определение количества выделяющихся вредностей и расчет необходимых воздухообменов 3
2.1. Воздухообмен по избыткам явной теплоты 3
2.2. Воздухообмен по ассимиляции выделяющейся влаги 3
2.3. Воздухообмен по вредным выделениям 4
2.4. Количество рециркуляционного воздуха 4
3. Построение процессов обработки воздуха на ID диаграмме 5
4. Расчет основных рабочих элементов кондиционера и подбор оборудования 6
4.1. Расчет фильтра 6
4.2. Камера орошения 7
4.3. Воздухонагреватели 8
4.4. Холодильные установки 9
4.5. Вентиляторные агрегаты 10
Список литературы. 10
Схема компоновки кондиционера 11
1. Исходные данные
Схема СКВ - 1
Место строительства г.ЯЛТА.
Помещение тАУ УНИВЕРСАМ
Размеры помещения 38х20х5 м.
Число людей тАУ n = 400 чел.
Теплопоступления
от солнечной радиации Qср = 14,5 кВт,
от освещения Qосв =12,6 кВт,
от оборудования Qоб = 0
Влаговыделения от оборудования Wоб = 0
Теплоноситель тАУ горячая вода для ХПГ 1=150 оС, 2=70 оС, для ТПГ `1=70 оС, `2=50 оС.
табл. 1
период года | холодный и п.у. | теплый |
расчетные параметры наружного воздуха | ||
температура text, оС | tБext = -6 | tБext = 30,5 |
энтальпия Iext, кДж/кг | IБext = -2,5 | IБext = 64,5 |
скорость ветра ext, м/с | 8,7 | 1 |
барометрич. давление Pext , ГПа | 1010 | 1010 |
расчетные параметры внутреннего воздуха. | ||
температура воздуха, tвоС | 20 | 24 |
относительная влажность, в,% | 60 | 60 |
влагосодержание dв, г/кг | 8,7 | 11,2 |
Выбор параметров наружного воздуха производен по параметрам Б (прил. 8 [1]).
2. Определение количества выделяющихся вредных веществ
и расчет необходимых воздухообменов
2.1. Воздухообмен по избыткам явной теплоты
Теплопоступления от людей для ТПГ:
QляТ = qя тАв n = 0,075 тАв 400 = 30 кВт,
где qя тАУ поток теплоты, выделяемый одним человеком,
qя=0,075 кВт тАУ при легкой работе и t=24оС.
Теплопоступления от людей для ХПГ:
QляХ = qя тАв n = 0,1 тАв 400 = 40 кВт,
где qя = 0,1 кВт тАУ при легкой работе и t=20оС.
Теплоизбытки помещения для ТПГ:
QяТ = Qля + Qср + Qосв + Qоб = 30 + 14,5 + 12,6 + 0 = 57,1 кВт
Теплоизбытки помещения для ХПГ:
QяХ = Qля + Qосв + Qоб = 40 + 12,6 + 0 = 52,6 кВт
Температура приточного воздуха для ТПГ:
tп = tв - t = 24 тАУ 6 = 18 оС,
где t тАУ температурный перепад в зависимости от помещения и подачи воздуха
t = 6 оС тАУ для общественных зданий при высоте притока 5 м.
Температура приточного воздуха для ХПГ:
tп = tв - t = 20 тАУ 6 = 14 оС,
Воздухообмен по избыткам явной теплоты для ТПГ:
G1Т = 3600 тАв Qя / св (tв тАУ tп) = 3600 тАв 57,1 / 1 тАв (24-18) = 34 260 кг/ч
где св тАУ удельная теплоемкость воздуха св = 1 кДж/(кг оС)
Воздухообмен по избыткам явной теплоты для ХПГ:
G1Х = 3600 тАв Qя / св (tв тАУ tп) = 3600 тАв 52,6 / 1 тАв (20-14) = 31 560 кг/ч
2.2. Воздухообмен по ассимиляции выделяющейся влаги
Избыточные влаговыделения в помещении для ТПГ:
WТ = gw тАв n + 1000 тАв Wоб = 105 тАв 400 + 1000 тАв 0 = 42 000 г/ч
где gw тАУ влаговыделения одним человеком
gw = 105 г/ч тАУ при легкой работе и t=24оС.
Избыточные влаговыделения в помещении для ХПГ:
WХ = gw тАв n + 1000 тАв Wоб = 75 тАв 400 + 1000 тАв 0 = 30 000 г/ч
где gw = 75 г/ч тАУ при легкой работе и t=20оС.
Воздухообмен по ассимиляции выделяющейся влаги для ТПГ:
G2Т = WТ / (dв тАУ dп) = 42 000 / (11,2-6,2) = 8 400 кг/ч
Воздухообмен по ассимиляции выделяющейся влаги для ХПГ:
G2Х = WХ / (dв тАУ dп) = 30 000 / (11,2-1) = 2 940 кг/ч
2.3. Воздухообмен по вредным выделениям
Количество вредных веществ поступающих в воздух:
Z = n тАв z` = 400 тАв 60 = 24000 г/ч
где z` - выделения 1 человеком СО2 при легкой работе z` = 45 г/ч
Воздухообмен по вредным выделениям:
G3 = тАв Z / (zв тАУ zп) = 1,2 тАв 24000 / (3,2 тАУ 0,6) = 11 000 кг/ч
где zв тАУ ПДК СО2 в удаляемом воздухе для помещений с кратковременным
пребыванием людей zв =3,2 г/м3
zп - концентрация СО2 в приточном воздухе для малых городов zп =0,6 г/м3
К расчету принимается наибольший воздухообмен по избыткам явной теплоты для теплого периода.
G = G1Т = 34 260 кг/ч
L = G/ =34260/1,2 = 28 550 м3/ч
2.4. Количество рециркуляционного воздуха
Минимально необходимое количество наружного воздуха:
Gнmin = тАв n тАв l = 1,2 тАв 400 тАв 20 = 9600 кг/ч
где l тАУ количество наружного воздуха на 1 чел,
при кратковременном пребывании l = 20 м3/ч
Сравнение минимально необходимого количества наружного воздуха и воздухообмена по ассимиляции выделяющейся влаги:
Gнmin< G3 принимаем Gн = G3= 11 000 кг/ч
Количество рециркуляционного воздуха
Gр = G тАУ Gн = 34 260 тАУ 11 000 = 23 260 кг/ч
3. Построение процессов обработки воздуха на ID диаграмме
Избыточный поток скрытой теплоты от людей для ТПГ:
QсТ =
= qс тАв n = 0,08 тАв 400 = 32 кВт,
где qя тАУ поток теплоты, выделяемый одним человеком,
qс=0,08 кВт тАУ при легкой работе и t=24оС.
Теплопоступления от людей для ХПГ:
QсХ = qс тАв n = 0,05 тАв 400 = 20 кВт,
где qс = 0,05 кВт тАУ при легкой работе и t=20оС.
Угловой коэффициент угла процесса для ТПГ:
EТ = 3600 тАв (QяТ + QсТ) / WТ = 3600 тАв (57,1 + 32) / 42 = 7600 кДж/кг влаги
Угловой коэффициент угла процесса для ХПГ:
EХ = 3600 тАв (QяХ + QсТ) / WХ = 3600 тАв (52,6 + 20) / 30 = 8700 кДж/кг влаги
Влагосодержание смеси наружного и рециркуляционного воздуха для ТПГ
dс = (Gн тАв dн + Gр тАв dв) / G = (11 000 тАв 13,2 + 23260 тАв 11,2) / 34260 = 12 г/кг
Влагосодержание смеси наружного и рециркуляционного воздуха для ХПГ
dс = (Gн тАв dн + Gр тАв dв) / G = (11 000 тАв 2,4 + 23260 тАв 8,7) / 34260 = 6,8 г/кг
После построения I-d диаграммы полученные данные сведены в табл.2
табл.2
воздух | обозн. | t, оС | I, кДж/кг |
ТПГ | |||
наружный | НТ | 30,5 | 64,5 |
смесь | СТ | 28,2 | 59 |
камера орошения | ОТ | 14,8 | 39,5 |
приточный | ПТ | 18 | 43 |
внутренний | ВТ | 24 | 52,5 |
удаляемый | В`Т | 27 | 55,8 |
ХПГ | |||
наружный | НХ | -6 | -2,5 |
смесь | СХ | 11 | 25,8 |
первый подогреватель | КХ | 16,3 | 31 |
камера орошения | ОХ | 11 | 31 |
приточный | ПХ | 14 | 33,8 |
внутренний | ВХ | 20 | 42 |
удаляемый | В`Т | 23 | 45 |
4. Расчет основных рабочих элементов кондиционера и подбор оборудования
Подбор оборудования выполнен на основании [2].
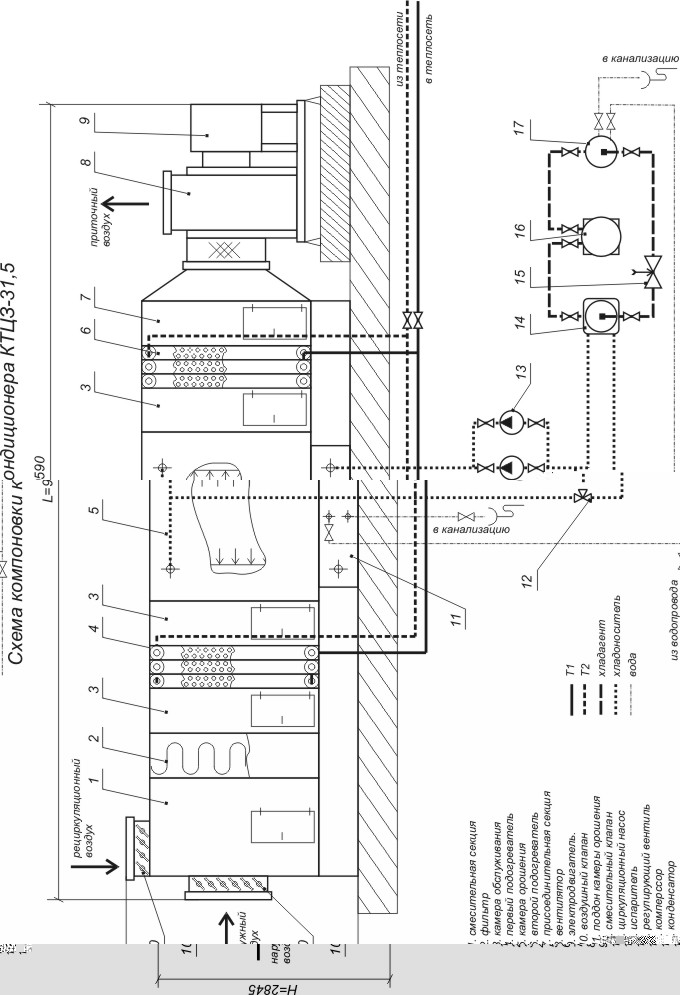
К установке принимаем центральный кондиционер КТЦЗ-31,5 с номинальной производительностью L=31 500 м3/ч.
4.1. Расчет фильтра.
Для проектируемой системы центрального кондиционирования воздуха, выбираем рулонный фильтр, расположенный за смесительной секцией.
Максимальная концентрация пыли в рабочей зоне общественных зданий zwz = 0,5 мг/м3
Содержание пыли в наружном воздухе непромышленного города zext = 0,6 мг/м3
Степень очистки приточного воздуха
тр= 100% тАв (zext - zwz) / zext = 100 тАв (0,6- 0,5)/0,6 = 17%
класс фильтра тАУ III (предел эффективности 60%)
Фильтр подобран по табл. 4.2 [2]:
тип фильтра: волокнистый, замасляный ячейковый ФяУБ
фильтрующий материал - ФСВУ
номинальная воздушная нагрузка на входное сечение q = 7000 м3/(чтАвм2)
площадь ячейки fя = 0,22 м2
начальное сопротивление Pф.н =40 Па
конечное сопротивление Pф.к = 150 Па
удельная пылемкость П = 570 г/м2
способ регенерации тАУ замена фильтрующего материала.
Требуемая площадь фильтрации:
Fфтр = L/ q = 28550/7000=4,01 м2,
Необходимое количество ячеек:
nя = Fфтр / fя = 4,01 / 0,22 = 18,23
к установке принимаем 18 ячеек
Действительная степень очистки
по номограмме 4.4 [2] 1-Е = 18% => д=82%
д >тр
Количество пыли, осаждаемой на 1 м2 площади фильтрации в течении 1 часа.
mуд = L тАв zextтАв n/ Fф = 28550 тАв 0,6тАв10-3 тАв 0,82 / 4,01 = 3,4 г/м2ч
Периодичность замены фильтрующей поверхности:
рег = П / mуд=570 / 3,4 = 167 ч = 7 сут.
4.2. Камера орошения.
К установке принимается форсуночная камера орошения ОКФ-3 03.01304 исп.1
всего форсунок 63 шт., всего стояков тАУ 7 шт.
4.2.1. ХПГ
процесс обработки воздуха тАУ адиабатный
Коэффициент адиабатной эффективности:
ЕА =
=
=0,96
где tвк тАУ температура воздуха конечная (после камеры орошения) tвк =11 оС
tвн тАУ температура воздуха начальная (до камеры орошения) tвк =16,3 оС
tмвн тАУ температура по мокрому термометру tмвн =10,8 оС
Коэффициент орошения =2,0 тАУ по графику на рис. 15.27 [2].
Расход воды на орошение:
Gж = тАв G = 2,0 тАв 34260 = 68 520 кг/с
Давление воды перед форсункой:
pж = 80 кПа тАУ по графику на рис. 15.32 [2].
4.2.2. ТПГ
процесс обработки воздуха тАУ политропный тАУ охлаждение и осушение.
Коэффициент адиабатной эффективности:
ЕА =
=
=0,38
где Iвк тАУ энтальпия воздуха конечная (после камеры орошения) Iвк =39,5 кДж/кг
tвн тАУ энтальпия воздуха начальная (до камеры орошения) Iвк =59 кДж/кг
Iпрв тАУ предельная энтальпия для данного процесса Iпрв =38,5 кДж/кг
Iпрвн тАУ предельная энтальпия для начального состояния Iпрвн =90 кДж/кг
Коэффициент орошения =0,7 тАУ по графику на рис. 15.27 [2].
Коэффициент политропной эффективности ЕП = 0,25 тАУ по номограмме на рис. 15.27 [2].
Расход воды на орошение:
Gж = тАв G = 0,7 тАв 34260 = 23980 кг/с
Относительная разность температур воздуха:
= b тАв c тАв тАв (1/ЕП тАУ 1/ЕА) = 0,33 тАв 4,19 тАв 0,7 тАв (1/0,25 тАУ 1/0,38) = 1,32 оС
где b тАУ коэффициент аппроксимации b=0,33 (кгтАвоС)/кДж;
сж тАУ удельная теплоемкость воды с=4,19 кДж/(кгтАвоС)
Температура воды начальная:
tжн =
=
= 6 оС
где tпрв тАУ предельная температура для данного процесса tпрв =13,8 оС
Температура воды конечная:
tжн =
=
= 11,6 оС
Давление воды перед форсункой:
pж = 30 кПа тАУ по графику на рис. 15.34 [2].
4.3. Воздухонагреватели.
Первый воздухонагреватель подбирается для ХПГ, второй тАУ для ТПГ.
К установке принимается воздухонагреватели 03.10114
площадь фасадного сечения Fф = 3,31 м2.
Относительный перепад температур:
В1 = (tвн - tвк) / (tвн - tжн) = (11-16,3) / (11-95) = 0,06тАУ для 1-го подогревателя
где tжн тАУ начальная температура теплоносителя tжн =95 оС
tвн , tвк тАУ начальная и конечная температура обрабатываемого воздуха
В2 = (14,8-18) / (14,8-95) = 0,04тАУ для 2-го подогревателя
Относительный расход воздуха:
G` = G / Gном = 34260 / 37800 = 0,9
где Gном тАУ номинальный расход воздуха для данного кондиционера
По табл.15.18 [2] принимаем тип и схему обвязки базовых теплообменников:
6, параллельно.
По номограмме рис.15.41а [2] определяем:
Ж1 = 0,75 при количестве рядов n=1. тАУ для 1-го подогревателя
Ж1 = 0,8 при количестве рядов n=1. тАУ для 2-го подогревателя
Б = 0,623 тАУ коэф. гидравлического сопротивления нагревателя.
Расход теплоносителя
GЖ1 = GтАвсвтАвВ1/сжтАвЖ1 = 34260 тАв 1,005 тАв0,06 / 4,19 тАв0,75 = 687 кг/чтАУ для 1-го подогревателя
GЖ2 = 34260 тАв 1,005 тАв0,04 / 4,19 тАв0,8 = 411 кг/чтАУ для 2-го подогревателя
Конечная температура теплоносителя:
tжк1 = tжн + Ж1 тАв (tвн тАУ tжн) = 95 + 0,75 (11 тАУ 95) = 32 оС
tжк2 = 95 + 0,8 (14,8 тАУ 95) = 31 оС
Массовая скорость воздуха в фасадном сечении установки:
V) = G / 3600 тАв Fф = 34260 / 3600 тАв 3,31 = 2,9 кг/(м2с)
Потери давления по воздуху:
PВ = 25 Па тАУ по номограмме рис. 15.43 [2].
Потери давления по воде:
PЖ1 = Б тАв (В1 / Ж1)2 тАв G`2 тАв98,1 = 0,623 тАв (0,06 / 0,75)2 тАв 0,92 тАв 98,1 = 0,32 кПа.
PЖ2 = 0,623 тАв (0,04 / 0,75)2 тАв 0,92 тАв 98,1 = 0,14 кПа.
4.4. Холодильные установки.
Холодопроизводительность установки в рабочем режиме:
Qхр = Ах тАв G тАв (Iн тАУ Iк) / 3600 = 1,2 тАв 34260 тАв (59-39,5) / 3600 = 213 кВт
где: Ах тАУ коэффициент запаса, учитывающий потери холода на тракте хладагента,
холодоносителя и вследствие нагревании воды в насосах, Ах = 1,12 ч 1,15;
Iн , Iк тАУ энтальпия воздуха на входе в камеру орошения и выходе из неё.
Температура кипения хладагента:
tих = (tжк + tжн)/2-(4ч6) = (6+11,6) / 2 - 5 = 3,3 В°С
температура конденсации хладагента:
tконд = tк.к + (3ч4) = 24 + 4 = 28 В°С
температура переохлаждения холодильного агента
tп.х = tк.н + (1ч2) = 20 + 2 = 22 В°С
где: tк.н тАУ температура охлаждающей воды перед конденсатором,
ориентировочно принимаемая tк.н = 20В°С;
tк.к тАУ температура воды на выходе из конденсатора,
принимаемая на 3ч4В°С больше tк.н ,В°С.
Температуру кипения хладагента в испарителе следует принимать не ниже 2В°С, причем температура воды, выходящей из испарителя, не должна быть ниже 6 В°С.
Объемная холодопроизводительность при рабочих условиях:
qvр =(iих тАУ iпх) / Vих = (574,6-420,6)/0,053 = 2905 кДж/м3
где: iи.х тАУ энтальпия паровой фазы хладагента при tи.х , кДж/кг;
iп.х тАУ энтальпия жидкой фазы хладагента при tп.х , кДж/кг;
vи.х тАУ удельный объем паров хладагента при tи.х , кг/м3.
Холодопроизводительность холодильной машины в стандартном режиме
(tн.х =5В°C, tконд=35В°С, tп.х =30В°С):
=
= 190 кВт
где: λс тАУ коэффициенты подачи компрессора при стандартном режиме λс=0,76
λр тАУ коэффициенты подачи компрессора при рабочем режиме по табл. 4.6 [3].
qvc тАУ объемная холодопроизводительность при стандартном режиме,
qvc=2630 кДж/м3.
К установке принимаются холодильные машины ХМ-ФУ40/1РЭ холодопроизводительностью 94,7 кВт, в количестве 2 шт.
4.5. Вентиляторные агрегаты.
Аэродинамическое сопротивление:
Р = Рмаг + Рк + Рф + Рко +2 тАв Рвн = 100 + 50 + 150 + 50 + 2тАв 25 = 400 Па
где Рмаг тАУсопротивление магистрального воздуховода принимаем 100 Па
Рк тАУ сопротивление приемного клапана принимаем 50 Па
Рф тАУ сопротивление с фильтра Рф =150 Па
Рко тАУ сопротивление камеры орошения принимаем 50 Па
Рвн тАУ сопротивление воздухонагревателя Рвн = 25 Па
Принимаем вентилятор ВЦ4-75 № 10 Е10.095-1 ГОСТ 5976-90
частота n=720 об/мин;
КПД =0,7;
Потребляемая мощность N = 5,5 кВт
D = 0,95 Dном
Двигатель 4А132М8; m=438 кг
Литература
1. СНиП 2.04.05-91* Отопление, вентиляция и кондиционирование. М.: ГУП ЦПП, 2001. 74с.
2. Справочник проектировщика. Под ред. Павлова Н.Н. Внутренние санитарно-технические устройства. Часть 3. Вентиляция и кондиционирование воздуха. М.: Стройиздат. 1985.
3. Иванов Ю.А., Комаров Е.А., Макаров С.П. Методические указания по выполнению курсовой работы "Проектирование кондиционирования воздуха и холодоснабжение". Свердловск: УПИ, 1984. 32 с.

Министерство образования РФ
Уральский государственный технический университет
кафедра "Теплогазоснабжение и вентиляция"
КОНДИЦИОНИРОВАНИЕ ВОЗДУХА
И ХОЛОДОСНАБЖЕНИЕ
КУРСОВАЯ РАБОТА
ПОЯСНИТЕЛЬНАЯ ЗАПИСКА
преподаватель: Н.П.
студент: С.Ю.
1851929
группа: ТГВ-6 (Екатеринбург)
Екатеринбург
2
004
Вместе с этим смотрят:
11-этажный жилой дом с мансардой
14-этажный 84-квартирный жилой дом
16-этажный жилой дом с монолитным каркасом в г. Краснодаре
180-квартирный жилой дом в г. Тихорецке
2-этажный 3-секционный 18-квартирный жилой дом в г. Мирном