Изготовление и сборка оконных блоков
Введение
Для производства изделий из древесины исходный материал в виде досок, листов фанеры и древесных плит (а также круглых древен) требуется предварительно раскроить на заготовки.
Для этой цели используются распиловочные станки: круглопильные или ленточные. Для изготовления прямых заготовок сравнительно небольшой толщины, используются круглопильные станки. Для распиловки толстых заготовок (круглых бревен, брусков) используется ленточный станок, где режущим инструментом служит натянутая на ведущие ролики, бесконечная лента с режущими зубьями. Также ленточная пила используется для изготовления криволинейных заготовок.
КОНСТРУКЦИЯ И ЭКСПЛУАТАЦИЯ ДЕРЕВООБРАБАТЫВАЮЩИХ СТАНКОВ
Назначение станков
Для производства изделий из древесины исходный материал в виде досок, листов фанеры и древесных плит требуется предварительно раскроить на заготовки. Эту технологическую операцию выполняют на круглопильных станках. В зависимости от требований к качеству обработки деталей различают раскрой предварительный и окончательный, чистовой. Бывают следующие виды раскроя на круглопильных станках.
Торцевание досок и брусковых заготовок производят на станках для поперечного раскроя. Станки бывают одно- или многопильные (концеравнители). На многопильных станках можно выпиливать одновременно несколько кратных заготовок. Продольный раскрой пиломатериалов и заготовок осуществляют на круглопильных станках для продольного раскроя. Выпиловка из одной широкой заготовки за один проход одновременно нескольких брусков или реек выполняется на многопильных станках. Пильные валы этих станков могут иметь две, три, пять и более пил.
Часто требуется распиливать материал не только в поперечном и продольном направлениях, но и под косым углом. Такой смешанный раскрой выполняют на универсальных круглопильных станках.
Раскрой листовых материалов и плит на щитовые детали выполняют на раскроечных станках, а опиловку кромок тАФ на форматно-обрезных станках. Если требуется получить детали с продольными кромками, то форматно-обрезные станки оснащают дополнительно профильными фрезами.
По расположению пилы относительно распиливаемого материала станки различают с нижним и верхним расположением пилы. Расположение пилы и направление ее вращения выбирают так, чтобы сила пиления Fу прижимала заготовку к базирующим элементам станка. В одних конструкциях станков заготовку подают на пилу, в других вращающуюся пилу надвигают на заготовку.
Главными параметрами круглопильных станков для поперечного и продольного раскроя досок на заготовки являются наибольшая ширина и наименьшая или наибольшая длина распиливаемого материала. Эти размеры определяют габаритные размеры станка.
Для форматных станков главный параметр тАФ наибольший размер раскраиваемых плит. Наибольшая толщина H распиливаемого материала определяет основной параметр станка тАФ мощность привода механизма резания.
Материал, поступающий на круглопильные станки, должен удовлетворять техническим требованиям, иметь допустимые отклонения размеров
Конструкция ленточнопильных столярных станков
Станки ленточнопильные столярные предназначены для прямолинейного и криволинейного пиления досок, щитов и листовых материалов на заготовки. Режущий инструмент станков выполнен в виде бесконечной ленты, на одной кромке которой имеются зубья. Лента надета на два узких шкива, один из которых приводится во вращение от электродвигателя.
В зависимости от размера распиливаемых заготовок станки бывают с диаметром шкивов 400 мм (ЛС40-1), с диаметром шкивов 800 мм и ручной подачей или с автоподатчиком (ЛС80-6).
Станок ленточнопильный столярный ЛС80-6 (рис.1) включает станину 1 С-образной формы, верхний неприводной шкив 2, ленточную пилу 3, ограждение пилы с направляющим устройством 4, наклоняющийся стол 5, нижний приводной шкив 7, который приводится во вращение через ременную передачу от электродвигателя 9. Для выпиливания деталей требуемой ширины служит направляющая линейка 6. Для быстрой остановки нижнего шкива предназначено тормозное устройство, действующее от педали 8.
Шкивы имеют плоский обод с мягким резиновым или кожаным бандажом, который увеличивает сцепление между пилой и шкивом при их движении. Вблизи верхнего шкива имеется устройство для улавливания пильной ленты при ее аварийном разрыве. Конструкция верхнего шкива ленточнопильного станка показана на рис.2. Шкив 2 смонтирован на консоли оси 3, закрепленной в ползуне 5. Ползун установлен на кронштейне 6 так, чтобы он мог перемещаться по высоте с помощью винта 8 от маховичка 12. Вращением маховичка осуществляется первоначальное натяжение пилы 1. Постоянное натяжение пилы при тепловом или механическом удлинении в процессе работы сохраняется с помощью пружины 9, установленной между ползуном и кронштейном на цилиндрической части винта 8. Для предотвращения сбега пилы со шкивов кронштейн можно поворачивать вокруг оси 7 регулировочным винтом 10 и таким образом наклонять при необходимости верхний шкив в обе стороны от вертикали.
Направляющее устройство служит для предотвращения отклонения пилы в сторону и соскальзывания ее со шкивов. Устройство состоит из двух одинаковых блоков, устанавливаемых над рабочим столом и под ним в зоне рабочей ветви пилы. В качестве направляющих элементов используют ролики или бобышки из антифрикционного материала.
Распиливаемый материал на столярных станках подают вручную. При массовой выпиловке прямолинейных деталей подачу механизируют, применяя съемный механизм подачи (рис. 3, а). Он состоит из поворотного кронштейна 3, на конце которого смонтирован приводной рифленый ролик 2. Маховичок 4 предназначен для поворота кронштейна относительно оси 5, укрепленной на столе 1. При повороте кронштейна ролик прижимает обрабатываемый материал к базовой линейке 6 коробчатой формы, внутри которой крепятся оси свободно вращающихся роликов.
Привод подающего ролика (рис. 3, б) осуществляется от гидродвигателя 8 через червячный редуктор 7. Масло в гидродвигатель подается от насоса 10 через дроссель 9, посредством которого бесступенчато изменяют скорость подачи от 1,5 до 35 м/мин.
Наладка и работа на ленточнопильных столярных станках
Наладка станков.
В ленточнопильных столярных станках используют ленточные пилы для распиловки древесины. Пильную ленту поставляют в рулонах длиной 4 и 6 м, шириной (с зубьями) 10.. 60 мм толщиной 0,б..0,9 мм. На деревообрабатывающем предприятии ленту размечают на отрезки необходимой длины и разрезают. После этого пилы спаивают, затачивают зубья на заточных станках абразивными кругами и разводят вручную разводкой или на специальных автоматах. После подготовки к работе ленточные пилы должны удовлетворять следующим требованиям: пильное полотно не должно иметь изгибов и трещин, количество зубьев пилы должно быть четным, последовательность их развода тАФ правильной; место спайки должно быть тщательно зачищено напильником или наждачной шкуркой и на 0,1 ..0,2 мм быть тоньше толщины полотна пилы; все зубья остро заточены без засинения, заворотов вершин и крупных заусенцев; профиль зубьев столярных пил должен соответствовать величинам, указанным на рис.4.
Шаг зубьев t столярных пил в зависимости от высоты зубьев h должен быть следующим:
t, мм | 6 | 8 | 10 | 12 |
h, мм | 3,0 | 4,0 | 5,0 | 6,0 |
Развод зубьев на сторону для древесины двойных пород (сосна, ель) составляет 0,25.. 0,30 мм, для древесины твердых пород (дуб, бук, ясень) тАФ 0.20..0.25 мм.
Точность развода контролируют индикаторным разводомером или шаблоном. Допустимое отклонение в величине развода отдельных зубьев пилы В±0,05 мм.
Вследствие переточек ширина ленточных пил уменьшается. Допускается использовать ленточные пилы после переточек, если их ширина равна или больше половины первоначальной ширины. Длину пильной ленты Lнаиб (мм) определяют по формуле
Lнаиб ==D+21наиб
где D тАФ диаметр пильного шкива, мм; 1наиб тАФ наибольшее расстояние между осями пильных шкивов, мм.
Для снижения напряжений, возникающих при изгибе пилы на шкивах, толщину пилы необходимо принимать не более 0,001 диаметра пильного шкива. При продольной распиловке ширину пилы выбирают в зависимости от ширины пильных шкивов и принимают равной 40..50 мм.
При криволинейном пропиле ширина пилы должна быть такой, чтобы обеспечивался заданный радиус кривизны детали. Если для выпиловки кривых деталей применяют широкие пилы, то возникают отклонения пропила от намеченной линии и при значительном закруглении пила может соскользнуть со шкивов. Для криволинейной распиловки используют узкие пилы шириной 10..15 мм.
Ленточную пилу устанавливают в станок следующим образом. Опускают верхний пильный шкив и открывают ограждения. Ленточную пилу надевают сначала на верхний шкив, а потом на нижний. Широкую пилу располагают на шкивах так, чтобы зубья ее выступали за край обода шкивов. Если зубья касаются бандажа шкивов, нарушается их первоначальный развод и пила будет при распиловке отклоняться в сторону. Поворачивая рукой верхний шкив и регулируя положения оси шкива маховичком механизма наклона, добиваются правильного движения ленточной пилы.
Нижний пильный шкив перемещают в осевом направлении регулироВнвочными винтами, добиваясь расположения шкивов в одной вертикальной плоскости. Натягивают пилу, поднимая верхний шкив. При подъеме следует следить за тем, чтобы указатель пружинного натяжного устройВнства находился посередине шкалы. Чрезмерно сильное натяжение пилы вызывает быстрый износ станка и разрыв пилы, слабое натяжение тАФ соскальзывание пилы со шкивов в процессе резания.
Усилие натяжения ленточных пил выбирают в зависимости от толщиВнны и ширины полотна пилы:
Толщина пилы, мм. | 0,8 | 0,9 | 1,0 |
Усилие натяжения пилы, Н, для пил шириной, мм: | |||
25 | 2500 | 3000 | 3500 |
50 | тАФ | 4000 | 5000 |
Включая кратковременно электродвигатель вращения шкивов, провеВнряют правильность движения пильной ленты, после чего приступают к регулированию направляющего устройства. Направляющее устройство пеВнреставляют по высоте в зависимости от толщины распиливаемого матеВнриала. Расстояние до верхней пласти заготовки должно быть не более 10..15 мм. Боковые направляющие регулируют так, чтобы между ними и пилой был зазор 0,05..0,10 мм. Величину зазора контролируют щупом. Направляющие не должны зажимать пилу или отгибать ее в сторону. Для предотвращения соприкосновения зубьев пил с направляющими их передВнняя кромка должна располагаться на расстоянии 5..10 мм от впадины зубьев.
Задний опорный ролик устанавливают так, чтобы между тыльной кромкой пилы при холостом ходе был небольшой зазор. Закрыв ограждеВнние шкивов, приступают к пробной обработке деталей. Если ведется криволинейная распиловка по разметке, то стол станка должен быть свободным от посторонних предметов, мешающих подаче заготовки.
Направляющую линейку устанавливают на столе станка на расстоянии, равном ширине выпиливаемой дощечки, и надежно фиксируют. ПоверхВнность линейки должна быть параллельна полотну пилы. Точность положеВнния направляющей линейки контролируют мерительной линейкой или штангенциркулем. При массовой распиловке деталей прямолинейной форВнмы на станке монтируют подающий механизм. Перед установкой необВнходимо снять со станка качающуюся часть ограждения пилы и направВнляющую линейку. Подающий механизм крепят болтами к столу станка и настраивают в зависимости от ширины распиливаемой заготовки. Скорость механизированной подачи выбирают в зависимости от высоты пропила
Высота пропила, мм | 20 | 40 | 60 | 100 | 130 | 150 | 200 | 300 |
Скорость подачи, м/мин: | ||||||||
для древесины мягких пород | 35 | 35 | 16,5 | 9 | 6 | 5 | 3 | 1,5 |
для древесины твердых пород | 35 | 32,5 | 13 | 7 | 5 | 4 | 2,5 | 1 |
Шаблоны используют при массовом производстве деталей с криволиВннейными поверхностями. Конструкция шаблона определяется формой детаВнли, способом ее базирования и закрепления. Правильное размещение заготовки в шаблоне обеспечивается настройкой и закреплением упоров в требуемом положении.
При выпиловке круглых деталей используют специальное приспособВнление (рис. 5). Приспособление состоит из С-образного основаниятАФ скобы 4, на одном конце которой установлен вращающийся диск 5 для базирования заготовки 2, а на другом тАФ зажимное устройство 3. ПриВнспособление укрепляют на столе 1 станка так, чтобы расстояние от оси вращения заготовки до пилы было равно радиусу готовой детали. Вращая заготовку вручную или с помощью механического привода, выпиливают круглую деталь. Настройка стола ленточнопильного столярного станка необходима при выпиловке деталей, у которых поверхность обработки расположена под углом к базирующей поверхности заготовки (рис. 6). В этом случае стол 5 открепляют, наклоняют на требуемый угол, пользуясь круговой шкалой 2, и закрепляют в заданном положении.
Работа на станках.
В зависимости от вида выполняемой работы может быть прямолинейная и криволинейная распиловка. Прямолинейную распиловку материала ведут по разметке или с использованием направВнляющей линейки. Материал укладывают на стол станка и прижимают к направляющей линейке. При ручной подаче заготовку надвигают на пилу равномерно, без рывков. Скорость подачи выбирают такую, чтобы станок работал спокойно, и исключались перегрузки. Вырезанные детали складыВнвают в штабель.
При криволинейной распиловке по разметке необходимо, скорость подачи снижать в местах с малым радиусом закруглений. При уводе пилы в сторону от намеченного реза надо подать заготовку назад, немного повернуть ее относительно пилы и сделать новый пропил.
При распиловке необходимо внимательно следить за положением пальцев рук относительно пилы и всегда держать их на безопасном расстоянии. Вибрация станка и пилы свидетельствует о плохой подготовке пилы к работе, а также несоответствии точности станка установленным нормам. Непараллельность поверхностей выпиленной детали допускается не более 0,5 мм на длине 1000 мм, шероховатость тАФ не более 200 мкм. При неудовВнлетворительной работе станка следует отыскать причину неполадки, устраВннить ее или отремонтировать станок.
Технические характеристики ленточных столярных станков
Наибольшая высота пропила, мм 400
Ширина отпиливаемой части, мм 750
Диаметр пильного шкива, мм 800
Размер стола, мм 1000х1000
Частота вращения пильных шкивов, минтАУ1 950
Скорость резания, м/мин 40
Мощность электродвигателей, кВт 5,5
Габаритные размеры (длина, ширина, высота) 1980х1000х2300
Масса, т 1,4
ОХРАНА ТРУДА И ПОЖАРНАЯ БЕЗОПАСНОСТЬ
Техника безопасности при работе на деревообрабатывающих станках
Прежде чем приступить к работе, оператор обязан пройти вводный инструктаж по общим вопросам техники безопасности на предприятии и первичный инструктаж по правилам техники безопасности на рабочем месте. Кроме того, рабочие периодически должны проходить повторный производственный инструктаж по технике безопасности через каждые три месяца.
Результаты инструктажа с оценкой знаний правил техники безопасноВнсти записывают в специальный журнал. Рабочему вручается памятка или инструкция по правилам техники безопасности, разработанная на предВнприятии.
Перед работой на станке необходимо изучить руководство по эксплуаВнтации станка, а также руководство по эксплуатации режущих и измериВнтельных инструментов.
Наладку и настройку оборудования следует выполнять только при выВнключенном вводном рубильнике. Во время выполнения работ у станка на видном месте должна быть выставлена табличка с надписью ВлИдет наВнладкаВ». Все металлические части станка заземляют.
Перед началом работы необходимо привести в порядок рабочую одежВнду: застегнуть или завязать концы рукавов, убрать свисающие концы хаВнлата, волосы закрыть головным убором.
Не допускается загромождать отходами или готовыми деталями рабоВнчие места, проходы, подходы к станкам, механизмам и электроаппаратуре. Рабочее место должно быть подготовлено согласно требованиям технолоВнгии выполнения операций.
Запрещается подавать в станок заготовки, размеры которых больше или меньше предусмотренных технологическим процессом. Не следует брать или подавать через работающий станок какие-либо предметы. Во время работы станка не разрешается открывать или снимать ограждения и предохранительные устройства, подтягивать болты, гайки и др. При работе на станках с повышенным уровнем шума следует пользоваться индивидуальными средствами защиты от шума.
Не следует досылать обрабатываемый материал в станок руками или металлическими предметами. Запрещается измерять обрабатываемую деВнталь на работающем станке.
При возникновении вибрации станок следует выключить, проверить надежность крепления инструмента и качество его балансировки.
Снимать со шкивов и надевать на них ремни, отмыкать ограждения инструментов следует только после полной остановки вращающихся частей.
Запрещается пользоваться напильником, шаберами и другими инструВнментами без деревянных ручек или с неисправными ручками. Поверхность рукояток должна быть гладкой, ровно зачищенной, без трещин и задиров. При работе с тяжелыми грузами рабочий должен знать и строго соВнблюдать правила техники безопасности для стропальщиков. Нельзя наВнходиться в зоне действия автопогрузчиков, а также в местах, над которыми перемещаются грузы.
Пожарная безопасность
Пожары на деревообрабатывающих предприятиях в основном возникаВнют вследствие нерегулярной и небрежной уборки помещений, неправильВнного обращения с электрическими установками, несоблюдения правил храВннения пожароопасных материалов и курения в запрещенных местах.
В деревообрабатывающих цехах сосредоточено большое количество легковоспламеняющихся материалов: древесных отходов, стружек, щепы, досок, лаков, красок и т. п. Древесная пыль является взрывоопасной и скопление ее на рабочих местах, элементах станков, электродвигателях и радиаторах отопления недопустимо.
При возникновении загорания необходимо срочно вызвать пожарную команду по телефону 01 или по пожарному извещателю и до прибытия пожарной команды принять меры по ликвидации загорания имеющимися средствами пожаротушения.
Для предупреждения возникновения пожаров в цехах и на рабочих местах необходимо строго соблюдать следующие противопожарные праВнвила.
Все электрические провода должны быть тщательно изолированы, элекВнтрические аппараты и электродвигатели заземлены и защищены от попаВндания на них посторонних предметов. По окончании работы и во время перерыва электропривод необходимо выключать, а подводящие линии обесточивать.
В цехах и на рабочих местах запрещается курить и выполнять операВнции, которые могут вызвать появление искр или открытого огня.
Необходимо систематически удалять древесную пыль и стружку с элеВнментов оборудования, электродвигателей и электропроводок.
Запрещается сушить спецодежду, лесоматериалы и другие воспламеВнняющиеся предметы на приборах отопления, производственных и отопиВнтельных печах. Рабочие места, где имеется повышенная опасность возникновения поВнжара, должны быть снабжены огнетушителями, ящиками с песком и емВнкостями с водой.
Не допускается работать на шлифовальных станках при отключенной вытяжной вентиляции.
Бывшие в употреблении обтирочные материалы, концы, тряпки и т. п., пропитанные керосином, бензином, маслами и прочими горючими вещеВнствами, необходимо складывать в специальные металлические ящики с крышками. Над местом установки ящиков должна быть надпись ВлЯщик для обтирочных концовВ».
Нитрокраски, лаки и другие химикаты хранят в специальных изолироВнванных помещениях или в шкафах и ящиках.
Запас жидкого топлива, смазочных материалов и горючих жидкостей, находящихся в рабочем помещении, не должен превышать суточного расВнхода. Хранить их нужно только в специальной плотно закрываемой металВнлической таре, которая после окончания работы ставится в запираемые металлические ящики или шкафы.
Изготовление и сборка оконных блоков
Окна деревянные и балконные двери для жилых и общественных зданий (ГОСТ 11214тАФ65) подразделяются на две серии: С тАФ со спаренными оконными пеВнреВнВнплёВнтаВнми и дверными полотнами; РтАФс двойными раздельными переплетаВнми и двойВнными полотнами
Оконные блоки изготовляют с неравными и равными створками. В блоках с неВнравВнВнныВнми створками (рис 80, а) узкая створка служит форточкой для проВнветривания поВнВнмеВнВнщения
Оконные блоки с равными створками (рис 80,б) выпускают с форточками и без них. Оконные блоки со спаренными переплетами и дверные балконные блоки со спаВнВнренВнными полотнами делают с наплавом, а с раздельными переВнплетами и поВнлотВннаВнми тАФ с наплавом и без наплава (рис 80 в).
Дверные балконные блоки показаны на рис. 81.
Выпускаемые оконные и балконные дверные блоки маркируют. Марка соВнстоит из букВнвенных индексов и двух двузначных цифр обозначающих высоту и ширину проВнВнема в дециметрах. Буквенные индексы обозначают следующее: ОСтАФоконный блок со спаренными переплетами; ОРтАФоконный блок с разВндельными переплетами; БСтАФбалконный дверной блок со спаренными полотВннами; БРтАФто же с разВндельВнныВнми
| полотнами. Оконные блоки с равВнными створ-коми без форВнтоВнчек для жилых здаВнний и трехВнстворчатые для обВнщестВнвенВнных зданий без фрамуг обоВнзВнначают буквой А в конце марки. Оконные и дверные балВнконВнные блоки с форточками или фрамугами обознаВнчают в конВнце марки доВнполВнниВнтельВнныВнми буквенными индексами: В тАФ с форточкой или верхВнней фраВнмугой, Г тАФ с верхней и нижВнней фрамугами, Е тАФ с нижВнней фраВнмугой. ТрехВнстворВнчаВнтые оконные блоки с верхВнней фрамугой для обВнщестВнвенВнных зданий обозВннаВнчаВнют в конВнце марки буквой И. Размеры оконных проемов для жилых и общественных здаВнний соответствуют моВндулю 1М, равному 100 мм. ОсВнновВнные размеры проемов реВншеВнны в укрупненном модуле ЗМ (300 мм). Высота проемов для жиВнлых зданий принята равной 12М (1200 мм) и 15 М (1500 мм); для общественных здаВннийтАФ18М (1800 мм) и 21М (2100 мм). Ширина проемов принята 5М, 9М, 12М, 14М, 15М, 18М, 21М для жилых здаВнний и 9М, |
12М, 18М, 21М, 24М и 27М для общественных зданий.

В оконных блоках со спаренными переплетами толщина наружной и внутВнренней створок одинаковаятАФ42 мм, что упрощает технологию их производВнства.
В связи с тем, что оконные блоки серии С можно изготовлять без импоста, створВнки делают с правым притвором. Для обеспечения прочности навески больВнших разВнмеров створок, створки спаренных оконных переплетов высотой более 1400 мм или шириной свыше 800 мм при высоте более 1000 мм навешивают на три петли тАФ две верхние и одну нижнюю. Остальные створки навешивают на две петли. Дверные балВнконные полотна навешивают на три петли, располагаеВнмые равномерно по выВнсоВнте полотна. Оконные и дверные балконные блоки для жилых зданий остекляют стекВнлом толщиной 2,5тАФ-3 мм, а для общественных зданий тАФ толщиной 3тАФ4 мм.
Для снижения воздухопроницаемости по периметру притвора в переплетах устанавливают уплотняющие прокладки из шерстяного шнура, пенополиуретана и др. Прокладки должны быть упругими, прочными, свето- и морозостойкими, долВнгоВнвечВнными. Пенополиуретановые прокладки приклеивают клеем повышенВнной воВндоВнстойВнкости (КН-2, № 88). Шерстяной шнур крепят к наплаву мелкими оцинкованными гвозВндями длиной 10тАФ15 мм с шагом 150тАФ200 мм. Чтобы не смять шнур, гвозди заВнбиВнвают в край его, сохраняя по всему периметру створки равномерную толщину шнуВнра. При установке шнур не следует сильно натягиВнвать, так как он от этого выВнтяВнгиВнвается и теряет свои упругие свойства.
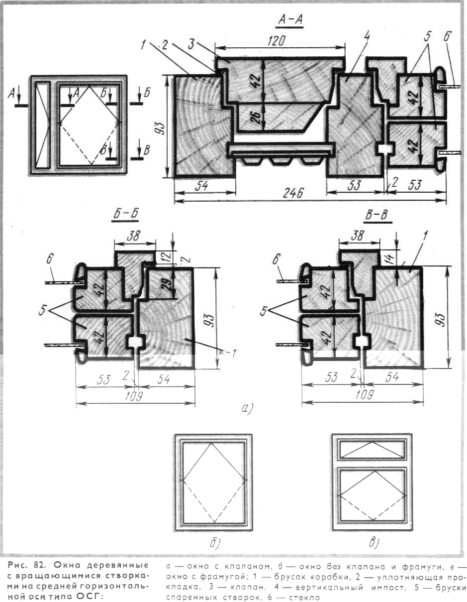
Оконные блоки деревянные со спаренными створками, вращающимися на средних осях, для гражданских зданий подразделяются на два типа: вращаюВнщиеся на средВнних горизонтальных осях тАФ среднеподвесные ОСГ, имеющие дополнительно венВнтиВнляВнционные клапаны или верхние фрамуги, и окна со створВнками, вращающимися на средВнних вертикальных осях, тАФсреднеповоротные ОСВ.
Окна среднеповоротные ОСВ для проемов 18М. 21М и шириной 15М без фраВнмуг дают возможность делать сплошное ленточное остекление в зданиях карВнкасной конструкции с двухрядной разрезкой навесных панелей.
Окна с проемом шириной 13,5М можно устанавливать рядом и этим самым заполнить проем шириной 27М.
Для окон с клапанами принята ширина проема 12М, 15М, 18М, 21М, а высота 12М и 15М; для остальных окон, в том числе и с фрамугами, ширина проема принята 13.5М, 15М, 18М, 21М, высота 18М, 21М. Общий вид и сечения окон показаны на рис. 82.

Окно деревянные для зданий промышленных предприятий (ГОСТ 12506тАФ67) предназначены для заполнения оконных проемов в зданиях любой этажности. По этоВнму ГОСТу окна подразделяются на две серии: Н тАФс наружным открыванием створок, ВтАФс внутренним открыванием створок.
Окна серии Н изготовляют без наплава с одинарными или со спаренными пеВнреВнплёВнтами, серии ВтАФс наплавом со спаренными переплетами.
В одноэтажных зданиях рекомендуется применять окна с наружным и внутВнренним открыванием створок, а в многоэтажных тАФс внутренним открыванием.
Оконные проемы в зданиях промышленных предприятий могут заполняться одВнним или несколькими оконными блоками по высоте и ширине
Оконные блоки обозначают марками, состоящими из буквенных индексов и цифр. Буквенные индексы обозначают Н тАФ наружное открывание, В тАФ внутВнреннее отВнкрывание, С тАФ спаренные переплеты
Цифра, стоящая после буквенных индексов, обозначает номер блока, а цифра, стоВнВнящая после дефиса, тАФ ширину брусков коробок в миллиметрах. Например, марка оконного блока НС6-124 обозначает, что оконный блок наВнружВнноВнго открывания, спаВнренВнной конструкции, типа 6 с шириной коробки 124 мм.
ОконВнные блоки при заполнении проемов по высоте одним блоком имеют слеВндуВнюВнщие размеры: серии НтАФвысоту 1164, 1764 мм, ширину 1461, 2966 и 4490 мм, сеВнрии ВтАФвысоту 1182, 1782 мм, ширину 1445, 2693, 2943 мм, а при заВнполнении по выВнсоВнте неВнсколькими блоками имеют размеры: серии Н тАФ высоВнту 1164, 1764 мм, шиВнриВнну 2966 и 4490 мм; серии ВтАФвысоту 1182, 1782 мм, шиВнрину 2693, 2943 мм.
Для жилых и общественных зданий, возводимых в I и II подВнзонах Северной строВнВнительно-климатиВнческой зоны, а также для районов с расВнчетВнной темпераВнтурой наВнружного воздуха -40С и ниже (при соВнответВнствующем обосноваВннии) применяют деВнреВнвянные окна и балВнконВнные двери с тройным остеклением и тройВнным уплотнением приВнтворов (ГОСТ 16289тАФ70) (рис. 83). Для жилых зданий приВнменяют окна одВнноВнстворчатые с узкими створками высотой 863, 1163, 1463 мм и шириной 880, 1154, 1329, 1379, 1479, 2072 мм и окна с форВнточВнкаВнми тАУ полуВнстворВнками выВнсотой 1163, 1463 мм и шириной 1154, 1329, 1379, 1479, 2072 и 2172 мм. |
|
Для общественных зданий применяют окна высоВнтой 1758 мм и шириной 875, 1150, 1350 и 1758 мм. Балконные двери для жилых и общественных зданий имеВнют высоту 2198, 2398 мм, ширину 700 и 875 мм.
Створки спаренных переплетов высотой более 1400 мм или шириной более 800 мм (при высоте более 1000 мм) навешивают но три петлитАФдве верхние и одну нижнюю, двери балконные тАФ на три петли, располагаемые равномерно по высоте.
Для заполнения оконных проемов в животноводческих и птицеводческих здаВнниВнях применяют окна, изготовленные по ГОСТ 16470тАФ70. В соответствии с этим ГОСТом окна бывают: с одинарными переплетами тАФ с глухим, наружным или внуВнтренВнним открыванием створок, со спаренными переплетамитАФс внутВнренним отВнкрыВнваВнниВнем створок, с раздельными переплетамитАФс открыванием створок в разные стоВнроВнны.
Изготовление и сборка оконных блоков с раздельными переплетами
Изготовляют столярные изделия, в том числе оконные блоки, в основном на деВнреВнвообрабатывающих предприятиях. На этих предприятиях древесину обраВнбаВнтыВнваВнют на поточных и полуавтоматических линиях с применением спеВнциализированного обоВнрудования.
На предприятиях с небольшим объемом производства оконные блоки изВнгоВнтоВнвляВнют на позиционных станках общего назначения.
Предусмотрено, что предприятия получают обрезные пиломатериаВнлы, которые расВнкраивают на полуавтоматической линии для поперечного расВнкроя пиВнлоВнмаВнтеВнриаВнлов. Она состоит из последовательно расположенных: роликоВнвого конвейера, кругВнлоВнпильВнного станка ЦПА-40 (с механизированной подачей), конвейера, желоба, приВнрезВнноВнго станка с гусеничной подачей ЦДК-4-2 и конвейВнера. Пиломатериалы кладут на приводной роликовый конвейер, прижимают к направляющей линейке и подают к упору, при этом пиломатериал, прижатый к упору, нажимает на кнопку, вмонВнтиВнроВнванВнную в нем, которая включает электВнродвигатель привода круглопильного станка для поВнперечного раскроя. ОдноВнвременно с этим останавливается роликовый конвейер. ВмесВнте с включением пилы подается суппорт с вращающимся пильным диском и досВнки разрезаются. После торцовки суппорт пилы возвращается в исходное поВнлоВнжеВнние и приводит в действие сбрасыватель, которым отрезанный кусок доски подается на ленточВнный конвейер. Сторцованный кусок доски по ширине раскраивают на приВнрезВнВнном станке ЦДК-4-2.
Заготовки, полученные после раскроя досок, поступают на полуавтоматиВнческую лиВннию по обработке брусковых деталей.
В линии по обработке брусковых деталей последовательно расположены фуВнгоВнвальВнный, четырехсторонний продольно-фрезерный и шипоВнрезный станки. Станки свяВнзаны между собой транспортными механизмами. Но этой линии обрабатывают брусВнки окон, коробки с четырех сторон с создаВннием профиля, а также зарезают шиВнпы. На предприятиях, где нет таких линий, пиломатериалы раскраивают по длине на заВнданный размер на круглопильных станках для поперечного раскроя ЦПА-40, а по шиВнринетАФна круглопильных станках для продольного раскроя ЦДК-4-2. При раскрое пиломатериалов в первую очередь выкраивают длинные детали, более короткие детали получаВнют попутно или после отбраковки длинных деталей. Очень короткие детали (менее 500 мм) заготовляют в кратных размерах, так как их трудно обрабатыВнвать короткими.
При раскрое по длине к заданному размеру нужно добавлять припуск на дальВннейВншую оторцовку (ГОСТ 7307тАФ66).
Брусковые детали обрабатывают следующим образом. Пласти и кромки у поВнкоВнробВнленных брусков фугуют на фуговальных станках, после чего их фрезеруют на чеВнтыВнрехсторонних продольно-фрезерных станках. Детали оконВнных коробок с большим сеВнчением фрезеруют на мощных станках С26-2.
Сучки заделывают после обработки деталей на линии, так как после обраВнботки лучВнше видны дефектные места. На некоторых заводах сучки заделывают до обВнраВнботВнки, тАФ в результате деталь получается более чистой, так как пробки счищают в проВнцессе обработки детали на продольно-фрезерном станке. ПоВнрядок заделки сучВнков (до или после фрезерования) зависит от местных условий завода. ЗаВндеВнлыВнвать сучВнки, трещины, червоточины, отколы и отщепы допускаВнется только при условии тщаВнтельного выполнения работ с зачисткой мест заВнделки.
На тех заводах, где имеются четырехсторонние продольно-фрезерные станВнки с пяВнВнтью валами, бруски обвязки переплетов, отлив и нащельник можно заВнготовлять в кратВнных размерах по ширине, с тем, чтобы на станке одновременно обрабатывать по два бруска и, устанавливая строгальную пилу на пятом горизонтальном валу, разВнреВнзать их после фрезерования по ширине.
Торцуют нащельники, отливы и раскладки по стеклу на универсальном станке или на специальном станке для усовки.
Пиломатериалы на бруски оконных коробок раскраивают на линии по расВнкрою заВнВнготовок, после чего их обрабатывают на позиционных станках.
Прошедшие обработку бруски створок, форточек, коробок выборочно проВнвеВнряВнют, а затем передают на буферный склад для комплектации и временного хранения.
СборВнка оконных блоков состоит из следующих операций: сборка оконных ствоВнрок, форВнточек на клею; выдерживание склеенных створок и форВнточек, неВнобВнхоВндиВнмое для схваВнтывания клея; обработка по периметру; зачистка или шлиВнфоВнваВнние поВнверхВнносВнтей: выборка паза под отлив; прорезка гнезд под петли; постановка полупетель; пригонка форточек к створке и навеска на петли; постановка отлива и нащельников; сборка коробки; вгонка и навешивание створок в коробку.
Оконные створки, форточки, фрамуги и коробки собирают в сборочном станке (вайВнме). Предварительная сборка створок, фрамуг, форточек и коробок проВнизВнвоВндитВнся лишь в том случае, когда необходима подгонка брусков. Ее начинают с внутренних брусков, горбыльков, импостов, после чего собирают наружВнные обвязки.
Вязку брусков столярных изделий выполняют на клею с постановкой на углах соВнпряВнжений деревянных нагелей. Вместо деревянных нагелей ставят металлические, имеВнющие в сечении форму креста. Металлические нагели делаВнют из мягкого металла, легВнко обрабатываемого даже рубанком. Нагели следует ставить заподлицо с плосВнкосВнтью.
Отверстия под нагели выбирают электросверлилкой или коловоротом. На неВнкоВнтоВнрых предприятиях отверстия под нагели выбирают сразу по двум или четырем угВнлам спеВнциальным приспособлением (рис 85), состоящим из карВнкаса (рамы), усВнтаВннаВнвВнлиВнваВнеВнмоВнго на станке по сборке окон. К стойкам каркаса крепят швеллеры10, по которым пеВнреВндвигается тележка 2 с кронштейнами 3, 4, причем к кронштейнам 3 шарнирно приВнкрепВнлен рычаг 6, с помощью которого тележка 2 может двигаться вперед и назад.

К кронштейнам 4 прикреплены направляющие стаканы5, через которые проходят штоВнки9, соединенные шарнирно с рычагом 6. На штоках 9 располоВнжена траверса 8 с заВнкрепВнленными на ней электросверлилками. Электросверлилки в зависимости от размеров расстояний между отверстиями могут переВндвигаться по траверсе.
Работающий рычагом 6 устанавливает электросверлилки в нужном полоВнжении над собираемой створкой, коробкой, затем опускает рычаг, и электросверлилки, также опускаясь, высверливают отверстия.
Собранные изделия укладывают на подстопное место для выдержки, необВнхоВндиВнмой для схватывания клея. В дальнейшую обработку изделие должно поВнступать только посВнле схватывания клея в шиповом соединении. Процесс сушки клеевого соединения можВнно ускорить, применяя токи высокой частоты в сбоВнрочном станке после обжатия брусВнков. Собранные створки, фрамуги и форточки должны иметь припуск до 2 мм на стоВнрону для обработки по периметру и по толщине 0,5 мм для снятия провесов.
До вгонки (постановки) в коробки оконные створки, фрамуги, форточки обВнраВнбатывают по периметру для придания правильной геометриВнческой формы. ОдВнноВнвреВнменВнно с обработкой по периметру створки, фрамуги фальцуют, образуя четверть, неВнобВнхоВндимую для притвора. При обработке форВнточки по периметру создают профиль обВнраВнботВнки, зеркальный профилю брусков и горбыльку, чтобы при постановке форточки на месВнто она точно подходила к профилю брусков и горбыльку.
Створки, фрамуги и другие детали на небольших предприятиях по периметВнру обВнраВнбатывают на фрезерных станках с применением шаблонов (рис 86) На более крупВнных предприятиях створки, фрамуги обрабатывают на линиях.

На линии ДЛ-5 (рис. 87) обрабатывают плоскости створок со снятием пр
Вместе с этим смотрят:
11-этажный жилой дом с мансардой
14-этажный 84-квартирный жилой дом
16-этажный жилой дом с монолитным каркасом в г. Краснодаре
180-квартирный жилой дом в г. Тихорецке
2-этажный 3-секционный 18-квартирный жилой дом в г. Мирном

