Расчет разделения смеси диоксан-толуол в насадочной ректификационной колонне
Министерство общего и профессионального образования РФ
Алтайский государственный технический университет
им. И. И. Ползунова
Кафедра химической техники и инженерной экологии
Курсовой проект защищён
с оценкой ______________
Руководитель канд. техн.
наук, доцент Андреева Н. Г.
Насадочная ректификационная колонна
для разделения бинарной смеси диоксан тАУ толуола
Пояснительная записка курсового проекта по дисциплине
ВлПроцессы и аппараты химической технологииВ»
КП 68.170500.29.000.ПЗ
Проект выполнил студент
гр. МАХП -01
Нормоконтролёр
канд. техн. наук, доцент Андреева Н. Г.
Барнаул 2004
Содержание
Введение. 3
1 Физико тАУ химические основы. 4
2 Технологическая схема ректификационной установки. 6
3 Расчётная часть. 8
3.1 Задание и исходные данные. 8
3.2 Материальный баланс и рабочее флегмовое число. 9
3.3 Скорость пара и диаметр колонны. 12
3.4 Высота слоя насадки и колонны. 13
3.5 Гидравлическое сопротивление насадки. 15
3.6 Тепловой расчет установки. 15
4 Механический расчет установки. 17
4.1 Расчет толщины обечаек. 17
4.2 Расчет толщина крышки и днища. 18
4.3 Расчёт изоляции колонны. 18
4.4 Расчёт штуцеров. 19
4.4.1 Штуцер для ввода исходной смеси. 19
4.4.2 Штуцер для ввода флегмы. 19
4.4.3 Штуцер для отвода кубового остатка. 19
4.4.4 Штуцер для вывода паров дистиллята. 19
4.4.5 Штуцер для ввода паров кубовой смеси. 20
4.5 Емкости. 20
4.6 Насосы. 21
Заключение. 23
Список использованной литературы. 24
Приложение А
Приложение Б
Приложение В
Приложение Г
Приложение Д
Введение
Ректификация тАУ процесс разделения гомогенных смесей летучих жидкостей путём двустороннего массообмена и теплообмена между неравновесными жидкой и паровой фазами, имеющими различную температуру и движущимися противоположно друг другу.
Разделение осуществляется обычно в колонных аппаратах при многократном или непрерывном контакте фаз. При каждом контакте из жидкости испаряется преимущественно низкокипящий компонент, которым обогащаются пары, а из паровой конденсируется преимущественно высококипящий компонент переходящий в жидкость. В результате обмена компонентами между фазами в конечном счете пары представляют собой почти чистый низкокипящий компонент. Эти пары выходящие из верхней части колоны после их конденсации в отдельном аппарате дают дистиллят (верхний продукт) и флегму - жидкость, возвращающую для орошения колоны и взаимодействия с поднимающимися в колоне парами. Снизу удаляется жидкость представляющая собой почти чистый высококипящий компонент - кубовый остаток (нижний продукт). Часть остатка испаряют в нижней части колоны для получения восходящего потока пара.
Ректификация известна с начала девятнадцатого века, как один из важнейших технологических процессов главным образом спиртовой и нефтяной промышленности. В настоящее время ректификацию всё шире применяют в самых различных областях химической технологии, где выделение компонентов в чистом виде имеет весьма важное значение (в производных органического синтеза, изотопов, полупроводников и различных других веществ высокой чистоты).
1 Физико тАУ химические основы
Достаточно высокая степень разделения однородных жидких смесей на компоненты может быть доВнстигнута путем ректификации. Сущность процессов, из которых складывается ректификация, и получаемые при этом результаты можно проследить с помощью t тАУ х тАУ у тАУ диаграммы.
Нагрев исходную смесь состава x1 до температуры кипения получим находящийся в равновесии с жидкостью пар (точка b). Отбор и конденВнсация этого пара дают жидкость состава х2 обогащенную НК (х2>х1).Нагрев эту жидкость до температуры кипения t2, получим пар (точка d), конденсация которого дает жидкость с еще большим содержанием НК, имеющую состав x3, и т. д. Проводя таким образом последовательно ряд процессов испарения жидкости и конденсации паров, можно получить в итоге жидкость (дистиллят), представляющую собой практически чистый НК.
Аналогично, исходя из паровой фазы, соответствующей составу жидкости x4, путем проведения ряда последовательных процессов конденсации и испарения можно получить жидкость (остаток), состоящую почти целиком из ВК.
В простейшем виде процесс многократного испарения можно осуществить в многоступенчатой установке, в первой ступени которой испаряется исходная смесь. На вторую ступень поступает на испарение жидкость, оставшаяся после отделения паров в первой ступени, в третьей ступени испаряется жидкость, поступившая из второй ступени (после отбора из последней паров) и т. д. Аналогично может быть организован процесс многократной конденсации, при котором на каждую следующую ступень поступают для конденсации пары, оставВншиеся после отделения от них жидкости (конденсата) в предыдущей ступени.
При достаточно большом числе ступеней таким путем можно получить жидкую или паровую фазу с достаточно высокой концентрацией компонента, которым она обогащаВнется. Однако выход этой фазы будет мал по отношению к ее количеству в исходной смеси. Кроме того, описанные установки отличаютВнся громоздкостью и большими потерями тепВнла в окружающую среду.
Значительно более экономичное, полное и четкое разделение смесей на компоненты достигается в процессах ректификации, проВнводимых обычно в более компактных апВнпаратах - ректификационных колоннах.
При взаимодействии фаз между ними происходит массо- и теплообмен обусловленные стремлением системы к состоянию равновесия.
В результате каждого контакта компоненты перераспределяются между фазами: пар несколько обогащается ПК, а жидкость тАФ ВК.
Многократное контакВнтирование приводит к практически полному разделению исходной смеси.
Таким образом, отсутствие равновесия (и соответственно наличие разВнности температур фаз) при движении фаз с определенной относительной скоростью и многократном их контактировании являются необходимыми условиями проведения ректификации.

Рис 1.1 Изображение процесса разделения бинарВнной смеси путем ректификаВнции на диаграмме tтАФхтАФу
Процессы ректификации осуществляются периодически или непрерывно при различных давлениях: при атмосферном давлении, под вакуВнумом (для разделения смесей высококипящих веществ), а также под давВнлением больше атмосферного (для разделения смесей, являющихся газоВнобразными при нормальных температурах).
2 Технологическая схема ректификационной установки
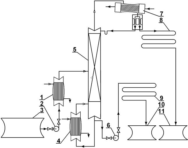
Принципиальная схема ректификационной установки приведена на рисунке 2.1:

Рис. 2.1: Принципиальная схема ректификационной установки:
1 - теплообменник-подогреватель; 2,6 - насосы; 3 - емкость для исходной смеси; 4 - кипятильник; 5 - ректификационная колона; 7 - дефлегматор; 8 - холодильник дистиллята; 9 - холодильник кубовой жидкости; 10 - емкость для кубовой жидкости; 11 - емкость для сбора дистиллята
Исходную смесь из промежуточной емкости 1 центробежным насосом 2 подают в теплообменник 3, где она подогревается до температуры кипения. Нагретая смесь поступает на разделение в ректификационВнную колонну 5, где состав жидкости равен составу исходной смеси xF.
Стекая вниз по колонне, жидкость взаимодействует с поднимающимся вверх паром, обраВнзующимся при кипении кубовой жидкости в кипятильнике 4. Начальный состав пара примерно равен составу кубового остатка ХW, т. е. обеднен легколетучим компонентом. В результате массообмена с жидкостью пар обогащается легколетучим компонентом. Для более полного обогащения верхнюю часть колонны орошают в соответствии с заданным флегмовым числом жидкостью (флегмой) состава хР, получаемой в дефлегматоре 6 путем конденсации пара, выходящего из колонны. Часть конденсата выводится из дефлегматора в виде готового продукта разделения тАФ дистиллята, который охлаждается в теплообменнике 7 и направляется в промежуточную емкость 8.
Из кубовой части колонны насосом 9 непрерывно выводится кубовая жидкость тАФ продукт, обогащенный труднолетучим компонентом, который охлаждается в теплообменнике 10и направВнляется в емкость 11.
Таким образом, в ректификационной колонне осуществляется непрерывный неравновесный процесс разделения исходной бинарной смеси на дистиллят (с высоким содержанием легкоВнлетучего компонента) и кубовый остаток (обогащенный труднолетучим компонентом).
3 Расчётная часть
3.1 Задание и исходные данные
Необходимо рассчитать насадочную ректификационную колонну для разделения бинарной смеси диоксан тАУ толуол. GD=1000 кг/ч, xF=45% (мол.), xD=90% (мол.), xW=2% (мол.). Давление в колонне составляет 600 мм рт. ст., смесь поступает при температуре кипения. Равновесные даны о паре и t-x,y диаграмма представлены ниже.
Таблица 3.1. Данные о
равновесном составе пара
| x%, мол. | y*%, мол. | t | р |
Рис. 3.1. Диаграмма равновесия между паром и жидкостью при постоянном давлении в координатах t-x,y |
| 8,7 | 12,9 | 100,72 | 600 | |
| 15,2 | 20 | 99,58 | ||
| 23,2 | 31,8 | 98,38 | ||
| 31 | 40,6 | 97,38 | ||
| 41,8 | 51 | 96,16 | ||
| 44,9 | 53,5 | 96,08 | ||
| 51,4 | 59,7 | 95,38 | ||
| 62,2 | 68,9 | 94,55 | ||
| 70,5 | 74,9 | 94,31 | ||
| 80,6 | 83,1 | 93,93 | ||
| 90,8 | 92 | 93,65 |
Вместе с этим смотрят:
11-этажный жилой дом с мансардой
14-этажный 84-квартирный жилой дом
16-этажный жилой дом с монолитным каркасом в г. Краснодаре
180-квартирный жилой дом в г. Тихорецке
2-этажный 3-секционный 18-квартирный жилой дом в г. Мирном
