Конструирование здания птичника
МИНИСТЕРСТВО ОБРАЗОВАНИЯ РОССИЙСКОЙ ФЕДЕРАЦИИ
Пермский государственный технический университет
Строительный факультет
Кафедра строительных конструкций
ПОЯСНИТЕЛЬНАЯ ЗАПИСКА
К курсовому проекту по дисциплине тАЬКонструкции из дерева и пластмасстАЭ на тему тАЬПтичниктАЭ
Выполнил гр. ПГСд-07уск
Иванов А.В.
Руководитель Осетрин А.В.
г. Пермь 2010
Задание на проектирование
Рис. 1 Геометрическая схема конструкции
Табл.1 Задание
| Наименование величин | ||
| № схемы | 9 (Птичник) | |
| И | Место строительства | г. Архангельск |
| В | Шаг конструкций | 4,0 м |
| А | Расчетный пролет | 15 м |
| Н | Высота | 5,8 м |
| О | Длина здания | 96 м |
| В | Тип панели покрытия | Фанера ФБС |
| А | Средний слой панели | минвата |
1. Расчет щита покрытия
1.1 Исходные данные
Условия эксплуатации нормальные.
Уклон кровли 1:4.
Каркас плиты из древесины ели 2-го сорта.
Шаг несущих конструкций тАУ 4,0 м.
Шаг прогонов тАУ 1 м.
Компоновка плиты
Плиты покрытия укладываются непосредственно по несущим конструкциям, соответственно, длина плиты равна шагу несущих конструкций тАУ 4 м, а с учетом припусков при изготовлении тАУ 3,98 м. Ширина плиты принимается равной ширине стандартного листа фанеры (1500*3500). С учетом обрезки кромок для их выравнивания ширина плиты тАУ 1,48м. Направление волокон наружных слоев фанеры следует располагать вдоль плиты. Толщина фанеры тАУ 10мм.
Высота плиты
Толщину ребер принимаем 50мм. По сортаменту принимаем доски 50*175мм. Фанера приклеивается к нижней стороне деревянного каркаса, поэтому фрезеруются только кромки досок. После острожки кромок размеры ребер 50*170мм. Шаг продольных ребер конструктивно назначаем 50см. Пароизоляция тАУ окрасочная по наружной стороне обшивки. Окраска производится эмалью ПФ-115 за 2 раза.
1.2 Теплотехнический расчет плиты
Режим помещения:
- температура наиболее холодной пятидневки с обеспеченностью 0,98: -31ºC;
- средняя температура воздуха со среднесуточной температурой ≤8ºC: -4,4ºC;
- продолжительность периода со среднесуточной температурой ≤8ºC: 253 суток (определена путем интерполяции);
- условие эксплуатации: Б3.

Условия эксплуатации конструкций Б.
| Наименование слоя |
|
|
|
|
| Фанера ФБС | 1000 | 0,01 | 0,13 | 0,077 |
| Окраска | ||||
| Минвата | 30 | 0,05 |

aint = 8,7 Вт/(м2×В°С) - по табл. 4*[2], aext = 23 Вт/(м2×В°С) - по табл. 6*[2].
Dd = (tint тАУ tht) × zht = (30+4,4) × 253 = 8703,2
Rreq=3,39 по таблице 4 СНиП 23-02-2003
![]()
1.3 Сбор нагрузок
| Наименование нагрузки | Нормативная Н/м2 | коэффициент надежности | Расчетная Н/м2 |
| А. Постоянные | |||
| Кровля из волнистых листов ONDULINE | 31 | 1,1 | 34,1 |
| Собственная маса плиты покрытия | |||
| продольные ребра 0,05*0,170*4*5000/1,48=114,86 | 114,86 | 1,1 | 126,35 |
| Утеплитель 300*0,15=45 | 48 | 1,3 | 62,4 |
| Нижняя обшивка из фанеры марки ФСБ 0,01*6000=60 | 60 | 1,1 | 66 |
| ИТОГО: | 253,86 | 288,85 | |
| Б. Временные | |||
| Снеговая 1600 | 1680 | 2400 | |
| ВСЕГО: | 1933,86 | 2688,85 |
Полные погонные нагрузки:
Нормативная ![]()
Расчетная ![]()
1.4 Статический расчет
Ширина площадки опирания на верхний пояс несущей конструкции тАУ 6см, тогда расчетный пролет плиты равен ![]()
Плита рассчитывается как балка на двух опорах.
Расчетный изгибающий момент:
![]()
Расчетная поперечная сила:
![]()
При уклонах кровли 1:4 расчет плиты допускается вести без учета явления косого изгиба.
1.4.1 Геометрические характеристики сечения
Расчет клееных элементов из фанеры и древесины выполняется по методу приведенного поперечного сечения в соответствии с п.4.25 СНиП II-25-80.
Расчетная ширина фанерной обшивки при
![]()
Геометрические характеристики плиты приводим к фанере с помощью коэффициента приведения:
![]()
Приведенная площадь поперечного сечения плиты
![]()
Приведенный статический момент поперечного сечения плиты относительно нижней плоскости обшивки

Расстояние от нижней грани до нейтральной оси поперечного сечения плиты
![]()
Расстояние от нейтральной оси до верхней грани продольных ребер
![]()
Расстояние от нейтральной оси плиты до центра тяжести продольных ребер
![]()
Приведенный момент инерции плиты относительно нейтральной оси

1.5 Конструктивный расчет
1.5.1 Проверка напряжений
Максимальные напряжения в растянутой фанерной обшивке:
, где
-коэффициент надежности по назначению.
![]()
Максимальные растягивающие напряжения в ребре деревянного каркаса
,
где коэффициент
приводит геометрические характеристики к наиболее напряженному материалу тАУ древесине, т.е.
![]()
![]()
Максимальные сжимающие напряжения в ребре деревянного каркаса
![]()
Проверка скалывающих напряжений по клеевому шву между фанерной обшивкой и продольными ребрами каркаса:
,
где
- статический момент фанерной обшивки относительно нейтральной оси:
![]()
![]()
Прочность клеевого шва между фанерой и древесиной (фанера приклеивается на клее ФРФ тАУ 50) принимается равной прочности фанеры на скалывание вдоль волокон наружных слоев 78,4Н/см2 (табл.10 СНиП II-25-80).
1.5.2 Проверка прогиба плиты
Относительный прогиб плиты:
![]()
Скомпонованное сечение удовлетворяет условиям прочности и жесткости.
2. Расчет рамы
Рамы из прямолинейных элементов с соединением ригеля и стойки на зубчатый шип являются наиболее технологичными и простыми в изготовлении. Для их изготовления склеивается прямолинейная заготовка, которая затем распиливается по диагонали на два ригеля и две стойки. Для образования карнизного узла по длине биссектрисного сечения фрезеруется зубчатый шип и производится склеивание в специальном приспособлении, обеспечивающем необходимое давление запрессовки и требуемую геометрию узла.
Существенным недостатком этих рам является наличие ослабления в наиболее напряженном сечении. Надежность и долговечность всей конструкции зависит от качества клеевого соединения, которое достаточно сложно проконтролировать.
2.1 Геометрический расчет
На стадии подготовки исходных данных на проектирование задаемся основными геометрическими размерами рамы
пролет 1=15 м, высота стойки Н=5,8 м, уклон ригеля i=0,25.
В зависимости от этих параметров вычисляем длину стоек, ригеля по геометрическим осям.
2.2 Сбор нагрузок
Таблица 2 Нагрузки на раму (Н/м2)
| Наименование нагрузки | Нормативная Н/м2 | коэффициент надежности | Расчетная Н/м2 |
| А. Постоянные | |||
| Кровля из волнистых листов ONDULINE | 31 | 1,1 | 34,1 |
| Собственная маса плиты покрытия | |||
| продольные ребра 0,05*0,170*4*5000/1,48=114,86 | 114,86 | 1,1 | 126,35 |
| Утеплитель 300*0,15=45 | 48 | 1,3 | 62,4 |
| Нижняя обшивка из фанеры марки ФСБ 0,01*6000=60 | 60 | 1,1 | 66 |
| Собственный вес рамы | 227.51 | 1,1 | 250.26 |
| ИТОГО: | 481.37 | 539.11 | |
| Б. Временные | |||
| Снеговая 1600 | 1680 | 2400 | |
| ВСЕГО: | 2161.37 | 2939.11 |
Собственная масса рамы:
gнс.м. =
Н/м2;
где gнп тАУ нормативная нагрузка от собственной массы покрытия;
gнсн тАУ нормативная снеговая нагрузка на покрытие;
ксм тАУ коэффициент собственной массы несущих конструкций.
Полные погонные нагрузки:
а) постоянная gп = 0,54 В· 4,5 = 2,43 кН/м;
б) временная gсн = 2,4В· 4,5 = 14,4 кН/м;
в) полная g = gп + gсн = 16,83 кН/м
Рис.5 Схема загружения рамы

2.3 Ветровая нагрузка
Ветровая нагрузка принимается по табл.5 и приложению 3 СНиПа [1].
Город Архангельск находится во II ветровом районе, нормативное ветровое давление на покрытие Wo= 0,3 МПа.
Расчетное значение ветровой нагрузки определяется по формуле
W= Wo∙ k∙ c∙ γf;
где k тАУ коэффициент, учитывающий изменение ветрового давления по высоте;
c тАУ аэродинамический коэффициент, учитывающий форму покрытия
γf = 1,4 тАУ коэффициент надежности по нагрузке;
Рис. 6 Схема загружения рамы ветровой нагрузкой

Погонные расчетные значения ветровой нагрузки
W1= W1∙ B= 0,3∙ 0,5∙ 0,8∙ 1,4∙ 4,5= 0,756 кН/м;
W2= W2∙ B= 0,3∙ 0,5∙ (-0,2)∙ 1,4∙ 4,5= -0,189 кН/м;
W3= W3∙ B= 0,3∙ 0,5∙ (-0,4)∙ 1,4∙ 4,5= -0,378 кН/м;
W4= W4∙ B= 0,3∙ 0,5∙ (-0,5)∙ 1,4∙ 4,5= -0,473 кН/м;
2.4 Расчет сочетаний нагрузок
Расчет сочетаний нагрузок производим по правилам строительной механики на ЭВМ с использованием расчетного комплекса ВлЛира Windows 9.0В»
Сочетание нагрузок
Расчетные сочетания нагрузок принимаются в соответствии с п.п. 1.10.-1.13.СНиП [1]. Расчет ведется на одно или несколько основных сочетаний нагрузок.
Первое сочетание нагрузок включает в себя постоянную и снеговую нагрузки по всему пролету:
qI= g + S, кН/м
Эпюра изгибающих моментов по 1 РСН

Эпюра продольных сил по 1 РСН

Эпюра поперечных сил по 1 РСН

Второе сочетание нагрузок включает в себя постоянную и снеговую нагрузки по всему пролету совместно с ветровой нагрузкой:
qII= g + 0,9∙(S + W), кН/м
Эпюра изгибающих моментов по 2 РСН

Эпюра продольных сил по 2 РСН

Эпюра поперечных сил по 2 РСН

Третье сочетание нагрузок включает в себя постоянную нагрузку по всему пролету, снеговую нагрузку на половине пролета и ветровую нагрузку:
qIII= g + 0,9∙(SтАЩ + W), кН/м
Эпюра изгибающих моментов по 3 РСН

Эпюра продольных сил по 3 РСН

Эпюра поперечных сил по 3 РСН

Наибольшие усилия в элементах арки (карнизный узел):
продольная сила N= - 130 кН;
поперечная сила Q= - 106 кН;
изгибающий момент М= + 331 кНм.
Коньковый узел
продольная сила N= - 82 кН;
поперечная сила Q= - 21 кН.
Опорный узел
продольная сила N= - 130 кН;
поперечная сила Q= + 83 кН.
2.5 Конструктивный расчет рамы
Конструктивный расчет преследует цель определить сечения элементов рамы и конструкцию узлов.
Несущий каркас здания представлен в виде однопролетных симметричных сборных рам с двускатным ригелем. Рамы решены по трехшарнирной схеме с шарнирными опорными и коньковым узлам и жесткими карнизными узлами. Жесткость последних обеспечивается сопряжением ригеля со стойкой на зубчатый шип.
Стойки рам опираются на столбчатые бетонные фундаменты, возвышающиеся над уровнем пола на 20 см. Полная высота стойки hст = 5,8 м. Уклон кровли i =1:4.
2.6 Подбор сечения полуарки
Раму проектируем клееной из досок толщиной с учетом острожки 32 мм.
Коэффициент надежности по назначению γn = 0,95.
Сечение рамы принимается клееным прямоугольным. Ширина сечения b = 140 мм;
Материал тАУ ель первого сорта.
Принимем размеры поперечного сечения рамы исходя из условий
h = l /20 тАУ l /40 = (15/20тАж15/40) = (0,38тАж0,75)м;
hоп = 0,3 h;
hк= 0,4 h.
h = 500 мм, hоп = 150 мм, hк = 200 мм.
Рис.7 Карнизный узел сопряжения стойки с ригелем на зубчатый шип

2.7 Проверка прочности биссектрисного сечения
Проверка прочности биссектрисного сечения производится с учетом технологического ослабления сечения зубчатым шипом и криволинейностью эпюры напряжения по формулам:
- внутренняя сжатая зона
![]()
- растянутая наружная кромка
![]()
где
=-130 кН тАУ расчетная продольная сила в карнизном узле;
где
=331 кНм тАУ расчетный изгибающий момент в карнизном узле;
kм=0,85 тАУ коэффициент технологического ослабления сечения;
- коэффициент, учитывающий криволинейность эпюры напряжений в биссектрисном сечении;
hd= h/соs39о=50/0,777=64,3 см- высота биссектрисного сечения;
Fd = b×hd =14∙64,3=900,2 см2- площадь биссектрисного сечения;
Wd =(b×hd2)/6 = 14∙64,32/6= 9647 см3-расчетный момент сопротивления;
k=0,5 тАУ безразмерный коэффициент, при уклоне ригеля рамы i=1/4;

тАУ коэффициент, учитывающий дополнительный момент от продольной силы вследствие прогиба элемента, определяемый по формуле;
lо = lm0=(7,7+4)∙1=11,7 м -расчетная длина элемента;
тАУ радиус инерции сечения;
- гибкость элемента цельного сечения;
- коэффициент продольного изгиба (при гибкости элемента l £ 70)
Rс = 1,5 кН/см2 тАУ расчетное сопротивление древесины сжатию;
![]()
Коэффициент а = 0,8 для древесины;

тАУ расчетное сопротивление древесины смятию под углом;
Rсм = 1,5 кН/см2 тАУ расчетное сопротивление древесины смятию вдоль волокон;
Rсм.90 = 0,18 кН/см2 тАУ расчетное сопротивление древесины смятию поперек волокон;
Rрα= 0,9 кН/см2 тАУ расчетное сопротивление древесины растяжению под углом;
Проверка прочности внутренней сжатой зоны
![]()
Проверка прочности биссектрисного сечения не проходит, следовательно увеличиваем сечение:
Ширина сечения b = 210 мм; Размеры поперечного сечения рамы
h = 1600 мм, hоп = 480 мм, hк = 640 мм.
hd= h/соs39о=160/0,777=205,9 см- высота биссектрисного сечения;
Fd = b×hd =21∙205,9=4323,9 см2- площадь биссектрисного сечения;
Wd =(b×hd2)/6 = 21∙4323,92/6= 148381,84 см3-расчетный момент сопротивления;
![]()
тАУ радиус инерции сечения;
- гибкость элемента цельного сечения;
- коэффициент продольного изгиба (при гибкости элемента l £ 70), коэффициент а = 0,8 для древесины;
![]()
тАУ расчетное сопротивление древесины смятию под углом;
Проверка прочности внутренней сжатой зоны
кН/м2
Проверка прочности наружной растянутой зоны
кН/м2
Проверка прочности биссектрисного сечения выполняется
2.8 Проверка сечения рамы на устойчивость плоской формы деформирования
Проверку сечения рамы на устойчивость плоской формы деформирования производим по формуле
.
- для элементов, имеющих закрепление из плоскости деформирования.
Сжатая грань арки имеет раскрепление панелями через 100см.
Определяем гибкость
.
.
.
Проверка

2.9 Проверка сечения арки на скалывание по клеевому шву
.
![]()
![]()

Проверка

Прочность сечения обеспечена.
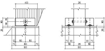
2.10 Расчет опорного узла
Стойка в опорном узле опирается непосредственно на бетонный фундамент.
Для обеспечения возможности поворота опорного сечения торец стойки кантуется на 40 мм с каждой стороны. Стойка фиксируется металлическими уголками.
Места контакта древесины с бетоном изолируются двумя слоями рубероида, склеенными битумной мастикой.
Рис. 8 Опорный узел рамы

1) Проверка на смятие вдоль волокон выполняется по формуле:

гдеN тАУ усилие в стойке рамы, N = 130 кН;
Fсм тАУ площадь смятия:
Fсм = b a = 21тАв36 = 756 см2;
Rсм= 1,5 кН/см2 тАУ расчетное сопротивление древесины смятию вдоль волокон по табл. 3 [2]
![]()
Прочность на смятие вдоль волокон торца стойки выполняется.
2) Проверка на скалывание торца стойки от действия распора выполняется по формуле:
![]()
гдеH = 83 кН тАУ распор в раме от действия вертикальной нагрузки;
тАУ статический момент инерции сечения брутто;
тАУ момент инерции сечения брутто;
Rск = 0,07 кН/см2тАУ расчетное сопротивление древесины скалыванию по табл. 3 [2]
![]()
Прочность опорного узла на скалывание силой распора обеспечена.
Высота металлического башмака находится исходя из условия смятия поперек волокон древесины стойки рамы от действия распора
;
Принимаем h=160мм;
Уголки, фиксирующие стойку поперечной рамы, принимаются из условия расположения болтов. Согласно табл. 39 [3]: минимальные расстояния от центра болта до края уголка должны быть не менее 1,5d = 1,5тАв16 = 24 мм. Для обеспечения удобства монтажа принимаем уголок L160x12. Крепление траверсы (уголков) башмака к фундаменту предусматриваем 2-мя болтами d = 24 мм.
Напряжение анкерного болта на срез:
t =
= 9,2 кН/см2 < Rсрб = 19 кН/см2;
Металлический башмак фиксируется в стойке рамы конструктивным болтом диаметром 16 мм.
2.11 Расчет конькового узла
Коньковый узел выполняют торцевым упором ветвей ригеля с перекрытием стыка двумя деревянными накладками на болтах.
Коньковый узел рассчитывается на поперечную силу при несимметричной односторонней снеговой нагрузки:
где S тАУ расчетная нагрузка от веса снегового покрова на 1 пог. м ригеля рамы, определяется по формуле: S = 3,2∙1∙4,5 = 14,4 кН/м
ℓ тАУ пролет ригеля, ℓ = 15 м;
;
Принимаем диаметр болтов, скрепляющих ригели рамы через накладки, 20 мм.
Накладка рассчитывается как балка на двух опорах.
Согласно п.5.18 [1] расстояния между осями болтов вдоль волокон древесины S1, поперек волокон S2 и от кромки элемента S3:
S1 = 7d = 7∙2 = 14 см;
S2 = 3,5d = 3,5∙2 = 7 см;
S3 = 3d = 3∙2 = 6 см;
;
;
Следовательно, более нагруженные болты расположены ближе к месту стыка.
Количество болтов в одном ряду определяется по формуле:
где nc тАУ количество плоскостей среза, nc = 2;
[T]б,min тАУ минимальная несущая способность одного болта, принимается согласно п.5.13 [1]:
1) Несущая способность на смятие древесины среднего элемента под углом α:
Tc = 0,5 c d kα
здесьc тАУ толщина среднего элемента, c = 21 см;
d тАУ диаметр болта, d = 2 см;
kα тАУ коэффициент, определяемый по табл. 19 [1]: kα = 0,981
Tc = 0,5∙21∙2∙0,981 = 20,6 кН
2) Несущая способность на смятие древесины крайнего элемента под углом α:
Ta = 0,8 a d kα
здесьa тАУ толщина крайнего элемента, a = 7,5 см;
Ta = 0,8∙7,5∙2∙0,981 = 11,772 кН
3) Несущая способность болта на изгиб:
Несущая способность болта на изгиб не должна превышать величины:
Количество болтов в первом ряду: 
Принимаем 2 болта.
3. Меры защиты конструкций от загнивания и возгорания
При проектировании деревянной рамы из прямолинейных элементов предусматриваем конструктивные меры защиты от биологического разрушения, возгорания и действия химически агрессивной среды.
Конструктивные меры, обеспечивающие предохранение и защиту элементов от увлажнения, обязательны, независимо от того, производится антисептирование древесины или нет.
Конструктивные меры по предохранению и защите древесины от гниения обеспечивают:
1. устройство гидроизоляции от грунтовых вод, устройство сливных досок и козырьков для защиты от атмосферных осадков;
2. достаточную термоизоляцию, а при необходимости и пароизоляцию ограждающих конструкций отапливаемых зданий во избежание их промерзания и конденсационного увлажнения древесины;
3. систематическую просушку древесины в закрытых частях зданий путем создания осушающего температурно-влажностного режима (осушающие продухи, аэрация внутренних пространств).
Деревянные конструкции следует делать открытыми, хорошо проветриваемыми, по возможности доступными для осмотра.
Защита несущих конструкций:
В опорных узлах, в месте опирания рамы на фундамент устроить гидроизоляцию из двух слоев рубероида. При этом низ рамы запроектирован на отметке +0,2м. Торцы элементов рамы и места соприкосновения с металлическими накладками в опорном узле защитить тиоколовой мастикой У-30с с последующей гидроизоляцией рулонным материалом.
Для защиты от гигроскопического переувлажнения несущих конструкций через боковые поверхности необходимо покрыть пентафталевой эмалью ПФ-115 в два слоя.
Список используемой литературы
1. СНиП 2.01.07-85*. Нагрузки и воздействия. тАУ М.:ГП ЦПП, 1996.- 44с.
2. СНиП II-25-80. Деревянные конструкции.- М., 1983.
3. СНиП II-23-81. Стальные конструкции: М., 1990.
4. Рохлин И.А., Лукашенко И.А., Айзен А.М. Справочник конструктора-строителя. Киев, 1963, с. 192.
5. А.В. Калугин. Деревянные конструкции. Учеб. пособие (конспект лекций).-М.: Издательство АСВ, 2003.-224 с., с илл.
Вместе с этим смотрят:
Авангардизм як явище архiтектури ХХ столiття
Автоматическая автозаправочная станция на 250 заправок в сутки
Анализ деятельности строительного предприятия "Луна-Ра-строй"
Анализ проектных решений 20-ти квартирного жилого дома
