Отделка поверхностей венецианской штукатуркой. Окраска металлических поверхностей современными масляными составами
Государственный комитет по образованию Российской федерации.
Ивановская Государственная Архитектурно тАУ строительная Академия.
Профессиональный лицей.
Специальность: мастер отделочных строительных работ.
Письменная экзаменационная работа на тему:
Отделка поверхностей венецианской штукатуркой. Окраска металлических поверхностей современными масляными составами
Иваново 2010
Оглавление
1. Технологический процесс отделки поверхностей венецианской штукатуркой
1.1 Введение
1.2 Инструменты и приспособления
1.3 Материалы
1.4 Технология выполнения
1.5 Требования к качеству
1.6 Организация труда и рабочего места
1.7 Охрана труда и техника безопасности
2. Технологический процесс окраски металлических поверхностей современными масляными составами
2.1 Введение
2.2 Инструменты и приспособления
2.3 Материалы
2.4 Технология выполнения
2.5 Требования к качеству
2.6 Организация труда и рабочего места
2.7 Охрана труда и техника безопасности
Список использованной литературы
1. Технологический процесс отделки поверхностей венецианской штукатуркой
1.1 Введение
Термин "венецианская штукатурка" является буквальным переводом итальянского выражения "stucco veneziano". Cостав и технику ее нанесения изобрели еще в Древнем Риме. Мрамор тогда был одним из самых доступных строительных материалов. Его пилили, обтесывали, полировали. Естественно, оставалось много отходов в виде мраморной пыли. Ну и кто-то придумал (а кто именно, история умалчивает) пустить ее в дело. В результате появился бесшовный тонкослойный мрамор. У него даже оказались свои преимущества перед природным мрамором. Новый материал привлекал не только богатыми отделочными возможностями, но и технологичностью. Наносить его было непросто, но все же легче, чем обтесывать, полировать и перетаскивать полированные глыбы. Кроме того, некоторые поверхности нельзя было выложить мрамором, а тонкослойной штукатуркой можно. К тому же материал оказался чрезвычайно стойким к воздействиям температуры и влаги. Наверное, это его свойство сыграло не последнюю роль в том, что спустя несколько тысяч лет, в эпоху Возрождения, материал получил особое признание в Венеции.
На сегодняшний день существует большой выбор отделочных материалов, применение которых позволяют создать незабываемый и индивидуальный образ Вашего помещения. В зависимости от цвета стен и их фактуры будет зависеть Ваше настроение.
Из разнообразного количества видов декоративно-живописного покрытия стен, наиболее популярной является применение венецианской штукатурки. Венецианская штукатурка позволяет имитировать эффект натурального камня тАУ полированного мрамора. Это позволяет дизайнерам воплощать различные интересные решения для достижения первоклассного интерьера помещения. Разнообразные техники нанесения венецианской штукатурки позволяют создать атмосферу и стиль этнической стилизации, утонченного минимализма, high-tech-а или классики.
Словосочетание "венецианская штукатурка" произошла из Древнего Рима, жители которого придумали состав и технику ее нанесения. Точная технология изготовления венецианской штукатурки дошла в неизменном виде до наших дней. Пропорции могут быть разными, но основные компоненты неизменны. Традиционно покрытие выполняется в одном цвете, хотя возможно и создание многоцветного покрытия.
Венецианка, так нежно называют венецианскую штукатурку, бывает следующих видов.
Veneto - штукатурка для внутренней работы. Такой тип венецианки применяется в интерьерах стиля Средневековья, где поверхности должны блестеть и создавать эффект полированного мрамора.
Trevignano - декоративная штукатурка, применяемая также для внутренней отделки класса ВллюксВ». Такой тип венецианки подходит для интерьеров эпохи Возрождения.
Сочетание декоративной венецианской штукатурки совместно с обоями, краской, мозаикой, декоративного камня, фресок - это один из самых излюбленных дизайнерских приемов. Применение такой технологии позволяет создать покрытие стен и потолков, придать помещению неповторимый стиль. Венецианская штукатурка не имеет запаха, нетоксично, не воспламеняется. Легко наносится, эффективно предотвращает образование плесени и бактерий.
Венецианская штукатурка тАФ прочное и долговечное покрытие. Так как такое покрытие менее эластично, чем другие декоративные покрытия, то основное условие, влияющее крепость штукатурки - качественно подготовленное основание. работы. Иногда в зависимости от техники нанесения и достижения желаемого результата, такая разница может быть в десятки раз.
1.2 Инструменты и приспособления
При работе с венецианской штукатуркой особые требования предъявляются не только к уровню профессионализма мастера, но и к его инструменту. Шпатели, тёрки и полутёрки должны изготавливаться из кованой и полированной нержавеющей стали. Ведь во время интенсивного растирания обычной сталью на штукатурке остаются мельчайшие следы металла: их откалывают твёрдые частицы каменной пыли. Из-за таких следов на покрытии образуются грязные полосы.

Набор кистей для малярных работ: а, б тАУ флейцевые кисти; в тАУ круглая кисть; г тАУ радиаторная кисть; д тАУ макловица.
Поролоновый валик вам понадобится для работ на гладких поверхностях с водно-дисперсионными, акриловыми, латексными, силикатными и силиконовыми красками и клеями.
Валик из мохера или флока пригодится вам для работ как с гладкими, так и с грубыми поверхностями. Он обеспечивает ровное покрытие и значительно снижает пенообразование во время покраски.
Валик из полиакрила сделает окрашенные поверхности гладкими и ровными. Он вам будет просто необходим при работе с водно-дисперсионными красками и красками на основе химических растворителей.
Валик из полиэстера вам понадобится для работ на гладких, грубых и шероховатых поверхностях при нанесении водно-дисперсионной краски или краски на основе химических растворителей.
Валик из полиамида пригодится вам для работы с водно-дисперсионными красками и красками на основе химических растворителей. Он обеспечивает гладкую и ровную покраску любых поверхностей.
Валик из микроволокна сделает окрашенную поверхность идеально гадкой. Он потребуется вам для работы с водоэмульсионными и масляными красками.
Для сменных валиков вам обязательно потребуются бюгели) тАУ специальные ручки с пластиковыми рукоятями и хромо-никелевым антикоррозийным покрытием.
При наклеивании обоев вам не обойтись без специальных прижимных валиков), которые используются для равномерного прижима обоев к стене и удаления воздушных пузырьков.

Бюгели для сменных валиков разных размеров.

Прижимные валики: а тАУ маленький пластиковый валик; б тАУ большой резиновый валик

Малярная ванночка
Такая ванночка имеет два отделения: глубокое с гладкой поверхностью тАУ для набора краски на валик и мелкое с ребристой поверхностью тАУ для удаления сгустков краски с валика.

Пластиковый скребок

Гладилка штукатурная предназначена для нанесения шпатлёвки или слоёв штукатурки.

Губка малярная предназначена для разглаживания нанесенного слоя штукатурки на поверхность.

Тёрки шлифовальные применяются для шлифовки прошпатлёванной поверхности.

Шпателя малярные применяются для нанесения шпатлёвки или подмазки трещин.

Полутёрок полиуретановый применяет для намазывания, разглаживания штукатурных слоёв.

Пистолеты тАУ распылители применяют для нанесения штукатурных и окрасочных составов.
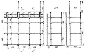
К лесам, с которых выполняют декоративные штукатурки с помощью ударных инструментов, предъявляются особые требования. Настил у них должен быть устроен так, чтобы его можно было не менее чем на 500мм отодвигать от стены или временно убирать. Леса бывают стационарные и передвижные. Из стационарных лесов, наиболее распространены, трубчатые металлические.
Трубчатые безболтовые леса предназначены для отделки фасадов различными видами декоративной штукатурки. Предельная высота лесов 60м, ширина настила до 2,1м. Леса состоят из двух рядов трубчатых стоек, поперечных и продольных ригелей, соединяемых крюками и патрубками. Стойки устанавливают от стен на расстоянии 550мм, вставляя их в башмаки, которые, в свою очередь, ставят на подкладки, и закрепляют их гвоздями. К стойкам крепят продольные связи, вставляя их крюки в патрубки стоек.

Трубчатые безболтовые леса.
Леса крепят к стенам крюками, один конец которых вставляют в патрубки, приваренные к стойкам, а другой - в анкеры (болты, закрепляемые в стенах). Через каждые 25..30м по длине лесов устанавливают диагональные связи. Перпендикулярно стене по ригелям укладывают щитовой настил из досок толщиной 40мм с консольным свесом 350мм. Леса ограждают металлическими решетками и бортовой доской в низу настила.
Трубчатые леса конструкции ЦНИИОМТП имеют предельную высоту до 60м, ширину настила 2,1м, стойки располагают от стены на расстоянии 700мм. Детали лесов крепят между собой хомутами, половинки которых соединены шарнирно. Леса крепят к стенам самозаклинивающимися металлическими пробками. Через каждые 40..50м в лесах устраивают лестничные клетки.
Широкое распространение для работы на небольшой высоте получили специальные подмости простые, передвижные, самоходные.
Подмости для отделочных и монтажных работ грузоподъемностью 300кг, с наибольшей высотой подъема до 6м имеют длину рабочей площадки 3,14м, ширину 1м; поднимаются и опускаются с помощью гидропривода.
Подмости ПВС-12 с максимальной высотой подъема 12м и минимальной до 3,2м имеют рабочую площадку размером 5X2м. Рабочая платформа передвигается по вертикали с помощью электроприводных устройств.
Подмости для отделочных и монтажных работ грузоподъемностью 300кг имеют максимальную высоту подъема 6м, минимальную 1,4м. Рабочая площадка размером 3,14ХIм. Подъем, и опускание рабочей площадки производятся гидроприводом.
Подмости передвижные рычажные грузоподъемностью 300кг имеют высоту подъема до 5м. Размер площадки 2,5Х Х 0,7м. Подъем производится гидросистемой с помощью рычагов и ручного насоса. Плунжерное усилие на рукоятку не более 95кг.
Подмости самоходные на базе трактора МТЗ-50 грузоподъемностью 500кг имеют высоту подъема от 1 до 9м.

1.3 Материалы





Состав декоративной штукатурки:
1. 1. Нечто связующее тАФ чаще всего это синтетическая смола (которая может быть в виде дисперсии или раствора);
2. 2. Наполнитель;
3. 3. Разнообразные добавки тАФ такие, как растворитель, загуститель, консерванты, гидрофобные (водоотталкивающие) вещества, антисептики и биоцидные вещества.
По климатической стойкости и области применения декоративные штукатурки подразделяются на наружные, внутренние и универсальные.
По типу связующего элемента декоративные штукатурки можно разделить на две большие группы: материалы на водной и неводной основе. А кроме того, они различаются по материалу наполнителя, способу нанесения и формирования рисунка поверхности. Большинство материалов на неводной основе имеет в качестве связующих элементов эпоксидные смолы и полиуретаны. К их достоинствам можно отнести высокую износостойкость покрытий, устойчивость к агрессивным средам, прочность и хорошую адгезию к основанию. Декоративные штукатурки на эпоксидной основе применяются только для внутренних работ, а вот полиуретановыми композициями можно отделывать поверхности внутри и снаружи помещений. После нанесения и высыхания, декоративные штукатурки на полиуретановой и эпоксидной основах горения не поддерживают. Однако надо помнить, что при нагреве выше 140 В°С смолы, составляющие основу материала, начинают разлагаться с выделением токсичных веществ (декоративные штукатурки на основе эпоксидных смол выделяют соединения с хлором, а полиуретановые тАФ цианиды).В этом отношении декоративные штукатурки на водной основе гораздо более безопасны: входящие в них полимеры, разлагаясь, не выделяют ядовитых веществ. Впрочем, у этих штукатурок есть и свои недостатки: в первую очередь тАФ более низкая температурная стойкость, то есть их нельзя наносить на сильно разогревающиеся поверхности (более 65-90 В°С), например, на радиаторы водяного отопления. Наиболее распространенными связующими элементами штукатурок на водной основе являются акриловые, стирол-акриловые, поливинилацетатные (ПВА) и бутадиен-стирольные дисперсии. Покрытия на основе акриловых дисперсий стойки к ультрафиолетовым лучам и температуре до 90 В°С; для них характерны хорошая паропроницаемость и адгезия к поверхности; они имеют отличную влагостойкость, хотя по этому параметру уступают бутадиен-стирольным и стирол-акриловые покрытиям. Стирол-акриловые покрытия обладают еще лучшей стойкостью к воде, приличную паропроницаемость и немалую устойчивость к ультрафиолету, но уже при температуре выше 65 В°С начинают желтеть. Бутадиен-стирольные дисперсии имеют самую высокую влагостойкость, желтеть начинают тоже при температуре выше 65 В°С и вовсе не обладают паропроницаемостью. Покрытия на основе поливинилацетатных дисперсий имеют ограниченную влагостойкость, хорошую паропроницаемость, устойчивы к ярким солнечным лучам и температуре до 90 В°С.
Наполнители. С минеральными наполнителями декоративных рельефных штукатурок ситуация гораздо проще, тАФ они бывают трех основных видов. Это мраморная, гранитная и кварцевая крошка или их смеси. Размер зерен крошки может различаться в достаточно широких пределах: от 0,5 до 5 мм. При этом один и тот же материал может выпускаться в нескольких вариантах с различной величиной крошки. Естественно, что ее размер влияет не только на внешний вид и степень рельефности поверхности, но и существенно сказывается на расходе материала: чем больше крошка, тем выше расход. Стоит отметить, что декоративные штукатурки с крупными гранулами наполнителя предпочтительно использовать для наружной отделки, так как на такие поверхности смотрят в основном издали: чтобы структура поверхности была заметна, она должна иметь достаточно крупный рельеф. Наоборот, для отделки внутренних помещений подойдут материалы с мелкой фракцией крошки.
Изготавливается венецианская штукатурка на основе мраморной муки, различных добавок, известкового молочка и неорганических окисей. Иногда добавляют кварцевую, малахитовую или известковую пыль. На качество штукатурки и цветовой орнамент влияет степень помола камня и количество органических или неорганических красителей. Для создания более ВлтонкогоВ» рисунка используют мелкие частицы. Состав штукатурки не содержит каких-либо вредных веществ, пигментов или других компонентов, содержащих тяжелые металлы, например как хром или свинец. Он также не содержит токсичных, ароматизированных, хлорированных растворителей. При работе с таким видом штукатурки рекомендуется соблюдение обычных мер предосторожности, предусмотренных для работы с составами на водной основе. При хранении, перемещении и транспортировке не требуется соблюдение каких-либо особых условий. При случайном пролитии штукатурки на поверхность достаточно использовать инертные абсорбирующие материалы - песок, глину.
Основные качества декоративной штукатурки:
- безупречный внешний вид;
- износостойкость;
- долговечность;
- отличное сцепление с поверхностью (адгезионные показатели);
- устойчивость к воздействию экстремальных температур;
- устойчивость по отношению к атмосферной капельной.
При нанесении венецианской штукатурки половина успеха зависит от правильно подготовленной поверхности. Обязательное требование тАУ поверхность должна быть ровной, гладкой и прочной, чтобы могла выдержать вес нанесенного материала. Желательно поверхность заранее армировать сеткой, потом обработать шпаклевкой и дать высохнуть несколько дней. Можно не ограничиваться декорированием стен, а украсить другие элементы помещения тАУ потолок, камин, подоконник, колонны. Для основы подойдёт бетон, кирпич, каменные поверхности (предварительно тщательно обработанные акриловой грунтовкой), даже стены, покрытые старой масляной краской или побелкой, только их надо предварительно очистить от грязи. На дерево и металлические поверхности ВлвенецианкуВ» лучше не наносить тАУ она обязательно покроется трещинами из-за температурного расширения этих материалов. Технология подготовки поверхности такая же как перед оклейкой обоями, надо только более серьезно подходить к каждому этапу работы. На поверхность надо нанести грунт глубокого проникновения, все наплывы и неровности тщательно сошлифовать. Допускаются только небольшие тАУ до 2мм тАУ углубления. Если основание плохо подготовлено, в дальнейшем на нем могут появиться трещины. Рабочие части инструментов нужно закруглить и отполировать. Удобнее наносить штукатурку на участки от 0,5 до 1 м2, поэтому заранее размечают поверхность и оклеивают границы рабочего пространства малярным скотчем. Защищайте разведенный состав от попадания посторонних частиц, иначе в дальнейшем они обязательно проявятся в работе.
Очень основным свойством при определения качества нанесенной венецианской штукатурки служит подготовка поверхности. Прич1м венецианка относиться к тем видам поверхности. где тщательная подготовка является обязательной. При подготовки используются различные виды грунтовок и шпатлёвок.
Грунтовки используют для подготовки сильновпитывающих оснований к последующей обработке, усиления адгезии различных оснований к последующему покрытию.
Шпатлёвку рекомендуется использовать для внутренних работ во влажных помещениях. Не трескается при нанесении слоями до 6 мм., образуя идеально гладкую поверхность. Высокая адгезия, пластичность, водостойкость, идеально подходит для оконных откосов.
1.4 Технология выполнения
Венецианская штукатурка наносится практически на любую поверхность, в том числе и на гипсокартон. Поэтому этапы подготовки поверхности могут быть разными. Они представлены в таблице №1.
Таблица №1.
| №п/п | Вид операции | Штукатурка | Бетон | Ранее окрашенные поверхности | Гипсокартон |
| 1.1 | Очистка | + | + | + | - |
| 1.2 | Сглаживание | + | - | - | - |
| 1.3 | Расшивка швов. | + | - | + | - |
| 1.4 | Огрунтовка | + | + | + | + |
| 1.4 | Заделка стыков ВлзаподлицоВ» | - | - | - | + |
| 1.5 | Заделка швов, трещин. | + | - | + | + |
| 1.6 | Шлифовка подмазанных мест | + | - | + | + |
| 1.7 | Первое сплошное шпатлевание | + | + | + | + |
| 1.8 | Шлифовка | + | + | + | + |
| 1.9 | Второе сплошное шпатлевание. | + | + | + | - |
| 1.10 | шлифовка | + | + | + | - |
| 1.11 | Огрунтовка | + | + | + | + |
Новую неокрашенную поверхность очистить от пыли, грязи, жирных пятен с помощью абразивных материалов (пескоструйная обработка, абразивная бумага). Поверхности ранее окрашенные старой алкидной, масляной или воднодисперсионной краской зачистить от отслаивающейся краски шпателем. Поверхность обработать шкуркой до полного удаления блеска с последующим удалением фрагментов абразивного материала сжатым воздухом, сухой ветошью. Сильнозагрязненные поверхности рекомендуется вымыть с щелочным моющим средством, после чего тщательно промыть холодной водой. При необходимости обработать соответствующей грунтовкой.
Поверхность должна быть ровной и гладкой, выравнивание рекомендуется производить финишной шпатлевкой Выровненные поверхности тщательно ошкурить наждачной бумагой до состояния идеальной гладкости и обработать грунтовкой (впитывает влагу), акриловой грунтовкой. на любые стены - бетон, гипс, гипсокартон и др. Поверхность должна быть идеально ровной, гладкой и плотной.

Рис.1
Малярный валик - инструмент, позволяющий быстро грунтовать большие поверхности стен и потолков. Большинство валиков для непрофессионалов имеют ширину 180 или 230 мм. Ширина валика, так же как и кисти, определяет усилие, требующееся для работы. Выигрывая в площади, окрашиваемой за один проход валиком, вы проигрываете в затраченной энергии.(рис.1).
Выберите манжету, соответствующую окрашиваемой поверхности. Для гладкой штукатурки нужна манжета с коротким ворсом, а для шероховатых поверхностей и рельефных покрытий - манжета с длинным ворсом. Имеются специальные манжеты для создания рельефной отделки.
Обычно одного литра грунтовки хватает для покрытия от 11 до 15 кв.м поверхности в зависимости от ее шероховатости и пористости. Не обязательно использовать краску только одного цвета. Валиком (и кистями) можно наносить рядом полосы и прямоугольники разного цвета.
Налейте в поддон грунтовку слоем около 20 мм. Окуните валик в краску и прокатайте его по скату поддона. Затем несколько раз прокатайте его вверх и вниз по скату, чтобы краска равномерно распределилась по ворсу.
Чтобы достать до верха высоких стен или потолка, используйте раздвижную рукоятку. При окрашивании во избежание разбрызгивания, не набирайте на валик много краски, не нажимайте на него с силой и не прокатывайте слишком быстро.
Начав в углу, проведите валиком по стене сверху вниз, перекрывая полосы. Окрасьте участок площадью примерно 1 кв.м.
Не набирая на валик грунтовки, проведите им по окрашенному участку в направлении, противоположном первоначальному. Этим вы сможете равномерно распределить краску по поверхности и закрасить не прогрунтованные участки. Это особенно важно выполнять на неровных или текстурированных поверхностях.
Снова наберите на валик грунтовку и огрунтуйте следующий участок, объединив его с предыдущим. Проведя полосу по всей длине стены, следующими движениями валика разровняйте слой краски. Заканчивая проход, плавно поднимайте валик. Окрасьте всю поверхность.
Огрунтовка малярным валиком с длинной и короткой рукояткой.
К техническим показателям таких покрытий стоит отнестись очень внимательно, независимо от того, кто вы - профессионал или любитель. Нужные, но порой непримечательные слова в инструкциях на практике выливаются в следующее:
* с более жидким материалом работать менее удобно, так как его уже нельзя разводить водой;
* материал с невысокой адгезией 3-5 кг/кв.см (иначе "прилипанием") имеет большую вероятность "отказа" покрытия в процессе эксплуатации ввиду потери прочностных свойств;
* штукатурка, имеющая в своем составе преимущественно крупный наполнитель (в виде крупной крошки), может наноситься только вручную;
* материал, имеющий в своем составе разнородную по размерам крошку, труднее наносить вручную (возможна потеря структуры);
* штукатурки на водной основе менее токсичны, но больше подвержены воздействию окружающей среды.
Шпатлевание поверхности.

Рис.2.
Шпатлёвку обычно наносят деревянным или металлическим шпателем. В правую руку берут шпатель, забирают им небольшую порцию шпатлёвки и намазывают её на поверхность; затем нажимают на лезвие шпателя левой рукой и разравнивают вертикальными или горизонтальными движениями, держа шпатель под углом к поверхности. Чем сильнее нажим, тем тоньше слой шпатлёвки. Переплёты, наличники, а также различные узкие места (в тех случаях, когда неудобно работать шпателем) сглаживают с помощью твёрдых резиновых полосок нужной ширины с ровно обрезанными или фигурными кромками (рис.2).
В зависимости от качества поверхности шпатлевание приходится выполнять от одного до трёх раз. После нанесения каждого слоя шпатлевки, обработанные места необходимо зачистить шлифовальной шкуркой или пемзой. Второй слой шпатлёвки лучше наносить по предварительно загрунтованной и высушенной поверхности - она ложится более тонким слоем, а кроме того, шпатлевать по грунтовке легче. Для зачистки шпатлёвки шлифовальную шкурку складывают в несколько слоев и трут ею в разных направлениях. Работать будет удобнее, если обернуть шкуркой деревянный брусок. Оставшиеся шереховатости, царапины исправляют повторным шпатлеванием и зачисткой (шлифовкой). Зачищают прошпатлёванные поверхности в сухом и в мокром виде. Сухое шлифование применяют для клеевых шпатлёвок, мокрое - для полумасляных и масляных
Последующий слой шпатлевки нужно наносить при высыхании предыдущего. Как правило, слою смеси требуется около суток для полного высыхания, но это еще зависит от толщины слоя и способности основания впитывать влагу, на которую наносится шпатлевка.
После того, как Вы закончили шпатлевать поверхность, и она полностью засохла тАУ необходимо зашлифовать поверхность (эта процедура необходима для выравнивания всех мелких выступающих отростков шпаклевки).
Нанесение венецианской штукатурки.
Для шлифовки можно использовать наждачную бумагу либо абразивную сетку. Зернистость наждачной бумаги (отечественного производства) и абразивной сетки варьируется от 120 до 180 единиц. Так же вам понадобится специальное приспособление в виде строительной терки. После затирки прогрунтуйте еще раз поверхность, чтобы обеспылить и придать поверхности шероховатое состояние, для дальнейшей оклейки или окраски поверхности. Первый слой обычно выполняют из материала, содержащего мраморную крошку тонкого помола чтобы обеспечить надёжное сцепление с основанием. Его наносят стальной гладилкой или шпателем так же, как шпатлёвку (расход от 700 до 1500 г/м2). После просушки (4тАУ6 ч) на этот слой наносят покрывающие, лессировочные слои, создающие фактуру рисунка.
Если нужно получить матовое покрытие, то второй и последующие слои выполняют из того же материала. При необходимости получить глянцевую поверхность тАФ из тонкодисперсного смешанного с выбранным красителем (расход тАФ 500тАУ1200 г/м2 на два слоя),ровные, гладкие, прочные поверхности тАФ обязательное условие для нанесения венецианской штукатурки.
После заделки швов обработайте стены облицовочной шпатлёвкой расчёта 0,6тАУ0,8 кг/м2). Шпатлёвка сохнет 6тАУ8 ч.

Рис.3.
Нанесите грунтовку разбавленную водой в соотношении 1:7, в два слоя широкой кистью, тщательно втирая её с лёгким нажимом на кисть. Оставьте сохнуть на 4тАУ6 ч.

Рис.4.
Отмерьте нужное количество материалаВ» (из расчёта 800 г/м2), хорошенько перемешайте и добавьте рассчитанную порцию красителя Влвыбранную по каталогу (наибольший расход красителя не превышает 100 г на 1 кг основы).

Рис5.
Всё тщательно перемешайте до сметанообразной консистенции. По окончании работы не забудьте положить шприц-дозатор и мешалку в ведро с водой.

Рис. 6.
Закруглите все кромки на рабочей поверхности гладилок и шпателей мелкозернистой шлифовальной шкуркой и отполируйте их до полного удаления видимых дефектов (царапины, заусенцы и т. п.)

Рис.7
На рабочую поверхность длинной гладилки (250 мм) наложите шпателем приблизительно 70тАУ100 см3 материала

Рис.8
Начните работу с любого верхнего угла. Наносите материал равномерным слоем так же, как наносится шпатлёвка, т. е. намазывая его движениями снизу вверх и в сторону

Рис.9
Разгоните материал в стороны разнонаправленными движениями. Гладилку прижимайте к стене плотно, держа её под углом 10тАУ15В° к поверхности. Старайтесь не оставлять пробелов.

Рис. 10.
Участки у пола покрывайте движениями снизу вверх. Покрыв все стены, дайте материалу просохнуть в течении 4тАУ6 ч.

Рис.11.
Отмерив нужное количество покрывающего материалаВ» и перемешав его, добавьте краситель и ещё раз всё хорошо перемешайте до получения однородной массы. Учтите, что ошибка в количестве красителя после вынудит нанести лишние слои с Влисправленным цветомВ».

Рис.11.
Вдоль кромки короткой гладилки (200 мм) наложите узким шпателем примерно 30тАУ50 см3 материала.

Рис.12.
Размажьте его произвольно направленными дугообразными короткими движениями (примерно равными длине гладилки).

Рис.13.
Наплыв материала, собирающийся на стене в конце предыдущего движения, разгоните прямолинейным движением под углом к линии наплыва. Так, чередуя движения намазывания и разгона и произвольно изменяя их длину и направление, покройте участок площадью примерно 0,7?0,7 м.

Рис14.
Разровняйте покрытие на этом участке длинными движениями гладилки в произвольных направлениях до образования равномерного тонкого слоя. Силу нажима и наклон плоскости инструмента можно слегка увеличить тАФ до 20тАУ25В°.

Рис.15.
Через каждые 2тАУ3 движения очищайте гладилку от прилипшего материала, а затем вытирайте её слегка влажной тряпкой.

Рис.16.
Закончив разравнивать, подождите около 10 мин и начинайте заглаживать покрытие кромкой широкого (200 мм) шпателя слегка перекрещивающимися движениями сверху вниз. По мере появления глянца ослабляйте нажим на шпатель, чтобы не повредить образующуюся тонкую корочку.

Рис.17.
Отделку проводится участками площадью от 0,5 до 1 м2. При этом последовательно выполняют четыре операции: нанесение мазков материала (можно разных цветов); их разравнивание; разглаживание материала по площади участка; глянцевание поверхности (полирование). При нанесении мазков нажим на гладилку в начале и конце движения ослабляют (как при соскабливании), изменяя, тем самым, толщину слоя материала. Полностью закончив работу на одном участке стены, окончательно заглянцуйте поверхность, разглаживая её чистой гладилкой, сильно нажимая на неё двумя руками и держа под углом 5тАУ12В° к плоскости стены.

Ри.18.
Весь цикл операций повторяют на соседнем участке, и так до тех пор, пока не будет отделана вся стена. При разглаживании и глянцевании движения гладилки должны обязательно пересекать границы смежных участков. Оптимальная техника движений и нажим на инструмент подбирается опытным путём.
Если получившаяся фактура не нравится, не давая материалу высохнуть, нанесите ещё один или несколько слоёв до тех пор, пока не получится то, что вы задумали. Но помните, что лучшее тАФ враг хорошего, главное тАФ вовремя остановиться.
(К покрытию можно прикасаться через 6 ч, через сутки можно использовать помещение, но окончательно стены просохнут лишь через неделю.)
Повторите весь цикл нанесения мазков материала, их разгона, разравнивания, заглаживания и глянцевания на соседнем и последующих участках.

Рис.19.
На границах стен, у препятствий (углы, проёмы, выступы и др.) движения начинайте намазывать, поставив кромку гладилки на линию границы, и продолжайте внутрь участка.

Рис.20.
В неудобных местах для намазывания и разравнивания материала используйте узкий шпатель.

Рис.21.
Покрытие вокруг препятствий разглаживайте и глянцуйте короткой гладилкой движениями от препятствия внутрь участка.

Рис.22.
У пола покрытие наносите гладилкой, дугообразными движениями, начиная снизу.

Рис.23.
При глянцевании участка у пола движения гладилки направляйте снизу вверх и слегка перекрещивайте их.

Рис.24.
Если после получения глянца на всей поверхности стены результат не понравился, не позволяя покрытию высохнуть, нанесите второй слой материала произвольно расположенными пятнами и повторите весь цикл отделки по участкам площадью не более 1 м2

Рис.25.
При повреждении поверхности в процессе работы нанесите узким шпателем на повреждённое место и вокруг него материал дайте ему просохнуть, а потом покройте и отделайте материалом по описанной технологии.

Рис.26.
1.5 Требования к качеству
Требования выполненной работе.
В· минимальное количество слоев тАФ два;
В· чем больше слоев, тем лучше выражен мраморовидный эффект;
В· положительный результат достигается при создании очередного слоя, если в процессе работы нагревается инструмент и в результате его трения о материал происходит полимеризация тАФ на поверхности штукатурки образуется прочная тонкая корочка;
В· после нанесения завершающего слоя поверхность покрывают слоем воска (который наносится шпателем);
В· если используется натуральный воск, то поверхность обретает теплый матовый оттенок, синтетический воск тАФ дает блеск;
В· наилучшим качеством венецианской штукатурки считается, когда поверхность кажется полупрозрачной, а рисунок тАЬпрочитываетсятАЭ вглубь.
Поверхность стены может быть как зеркально гладкой, так и с некоторыми наплывами (рваная ВлвенецианкаВ»). Мазки не должны быть очень большими, поэтому лучше, если их размер не превышает 15 кв. см. Необходимо также, чтобы они перекрывали друг друга, образуя тем самым туманный хаотичный рисунок. Наличие на стене видимых полос и стыков является серьезным браком. Кроме того, часто неумелый мастер оставляет за собой ряд мелких параллельных полосок (след неуверенной руки).
Нужно учитывать, что глубина рисунка всегда зависит от количества нанесенных слоев. Для достижения хорошего эффекта их должно быть не менее пяти. Сейчас для ускорения и облегчения трудоемкого процесса нанесения применяют кельму (специальный строительный инструмент, напоминающий утюг) и накладывают только три слоя штукатурки. Однако чуда не происходит: скорость повышается в ущерб декоративности. Визуально такая поверхность мало отличается от покрашенной глянцевой краской стены - отсутствует глубина рисунка. Коне
Вместе с этим смотрят:
Авангардизм як явище архiтектури ХХ столiття
Автоматическая автозаправочная станция на 250 заправок в сутки
Анализ деятельности строительного предприятия "Луна-Ра-строй"
Анализ проектных решений 20-ти квартирного жилого дома