Робочий майданчик виробничих будiвель
Мiнiстерство освiти i науки Украiни
Запорiзька державна iнженерна академiя
Кафедра МБГ
КУРСОВА РОБОТА
з дисциплiни "Металевi конструкцii"
На тему: "Робочий майданчик виробничих будiвель"
Запорiжжя
2010
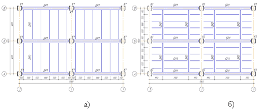
1. ВИБРЖР РАЦРЖОНАЛЬНОРЗ СХЕМИ БАЛОЧНОРЗ КЛРЖТКИ
Згiдно завдання до курсовоi роботи та рекомендацiй п.2 [1] приймаiмо двi схеми балочноi клiтки: загального та ускладненого типу.

Рисунок 1 тАУ Компоновочна схема балочноi клiтки:
а тАУ нормального типу; б тАУ ускладненого типу.
1.1 Розрахунок настилу
Розрахунок товщини настилу проводимо згiдно рiвняння 1 [1]:
, (1.1)
де
Ва- вiдношення прольоту настилу до його граничного прогину;
Ва- нормативне навантаження згiдно завдання,
;
Ва- модуль деформацii сталi;
Ва- коефiцiiнт Пуассона для сталi.
Розрахунок горизонтальноi опорноi реакцii обчислюiмо за формулою 2 [1]:
, (1.2)
де
Ва- вiдносний прогин настилу;
Ва- коефiцiiнт надiйностi за наантаженням.
РЖз умов мiцностi [1] знаходимо кати кутових швiв крiплення настилу:
, (1.3)
, (1.4)
де
Ва- коефiцiiнти, що примаiться за табл.7д [1];
Ва- розрахунковий опiр металу шва (за табл.6д [1]),
;
Ва- розрахунковий опiр шва за межею сплавлення (за табл.5д [1]),
;
Ва- коефiцiiнт надiйностi за призначенням (за табл.1д [1]);
Ва- коефiцiiнт умови роботи конструкцiй.
Катет шва приймаiмо за бiльшим iз знайдених значень, але не меньше мiнимального, яке вказане у табл.8 додатку до [1].
1.1.1 Розрахунок настилу балочноi клiтки нормального типу
За формулою 1.1 розраховуiмо товщину настилу балочноi клiтки:

Згiдно сортаменту листовоi сталi приймаiмо лист товщиною
.
За формулою 1.2 розраховуiмо горизонтальну опорну реакцiю в настилi:
![]()
За формулами 1.3 та 1.4 знаходимо катет кутвих швiв крiплення настилу щодо умов ручноi зварки електродами Е46:
![]()
![]()
Згiдно табл.8 додатку до [1] приймаiмо катет шва
.
1.1.2 Розрахунок настилу балочноi клiтки ускладненого типу
За формулою 1.1 розраховуiмо товщину настилу балочноi клiтки:

Згiдно сортаменту листовоi сталi приймаiмо лист товщиною
.
За формулою 1.2 розраховуiмо горизонтальну опорну реакцiю в настилi:
![]()
За формулами 1.3 та 1.4 знаходимо катет кутвих швiв крiплення настилу щодо умов ручноi зварки електродами Е46:
![]()
![]()
Згiдно табл.8 додатку до [1] приймаiмо катет шва
.
1.2 Розрахунок балок настилу
Визначаiмо нормативнi i розрахунковi навантаження на балку за формулами:
; (1.5)
; (1.6)
; (1.7)
; (1.8)
де
Ва- нормативне навантаження вiд власноi ваги настилу,
;
Ва- нормативне навантаження вiд власноi ваги балок настилу,
.
Нормативне навантаження вiд власноi ваги балок настилу розраховуiмо за формулою:
, (1.9)
де
Ва- лiнiйна густина балки настилу,
;
Ва- кiлькiсть балок настилу в частинi балочноi клiтини за розмiрами
;
Ва- крок допомiжних балок,
;
Ва- крок колон балочноi,
;
Ва- коефiцiiнти надiйностi за навантаженням (
).
Визначаiмо граничнi значення згинального моменту та перерiзуючоi сили за формулами:
Ва(1.10)
Ва(1.11)
Визначаiмо потрiбний момент опору за формулою 8 [1]:
Ва(1.12)
Перевiрку мiцностi прийнятого перерiзу виконуiмо за фомулою 9 [1]:
, (1.13)
де
Ва- коефiцiiнт роботи матерiалу.
Мiцнiсть за дотичними напруженнями визначаiмо за формулою 11 [1]:
, (1.14)
де
Ва- моменти iнерцii обраного перерiзу балки настилу;
Ва- товщина стiнки профiлю,
;
Ва- розрахунковий опiр сталi зрiзу,
.
Жорсткiсть балки настилу перевiряiмо за формулою 12 [1]:
Ва(1.15)
1.2.1 Розрахунок балок настилу балочноi клiтки нормального типу
За формулами 1.5 та 1.7 визначаiмо нормативнi i розрахунковi навантаження на балку настилу:
![]()
![]()
За формулами 1.10 та 1.11 визначаiмо граничнi значення згинального моменту та перерiзуючоi сили:
![]()
![]()
За формулою 1.12 визначаiмо потрiбний момент опору балки настилу:
![]()
з сортаменту фасонного прокату приймаiмо наступну за кроком двотаврову балку №20 з характеристиками:
;
;
;
.
За формулою 1.13 проводимо перевiрку мiцностi прийнятого перерiзу:
![]()
За формулою 1.14 проводимо перевiрку мiцностi прийнятого перерiзу:
![]()
За формулою 1.15 перевiряiмо жорсткiсть балки настилу:
![]()
Усi умови виконуються, таким чином для даноi схеми приймаiмо балки настилу з двотаврового профiлю ý20.
1.2.2 Розрахунок балок настилу балочноi клiтки ускладненого типу
За формулами 1.5 та 1.7 визначаiмо нормативнi i розрахунковi навантаження на балку настилу:
![]()
![]()
За формулами 1.10 та 1.11 визначаiмо граничнi значення згинального моменту та перерiзуючоi сили:
![]()
![]()
За формулою 1.12 визначаiмо потрiбний момент опору балки настилу:
![]()
З сортаменту фасонного прокату приймаiмо двотаврову балку №14 з характеристиками:
;
;
;
.
За формулою 1.13 проводимо перевiрку мiцностi прийнятого перерiзу:
![]()
За формулою 1.14 проводимо перевiрку мiцностi прийнятого перерiзу:
![]()
За формулою 1.15 перевiряiмо жорсткiсть балки настилу:
![]()
Усi умови виконуються, таким чином для даноi схеми приймаiмо балки настилу з двотаврового профiлю ý14.
За формулою 1.9 розраховуiмо нормативне навантаження вiд балок настилу:
![]()
За формулами 1.6 та 1.8 визначаiмо нормативнi i розрахунковi навантаження на допомiжну балку:
![]()
![]()
За формулами 1.10 та 1.11 визначаiмо граничнi значення згинального моменту та перерiзуючоi сили:
![]()
![]()
За формулою 1.12 визначаiмо потрiбний момент опору балки настилу:
![]()
З сортаменту фасонного прокату приймаiмо двотаврову балку №30 з характеристиками:
;
;
;
.
За формулою 1.13 проводимо перевiрку мiцностi прийнятого перерiзу:
![]()
За формулою 1.14 проводимо перевiрку мiцностi прийнятого перерiзу:
![]()
За формулою 1.15 перевiряiмо жорсткiсть балки настилу:
![]()
Усi умови виконуються, таким чином для даноi схеми приймаiмо допомiжнi балки з двотаврового профiлю ý30.
1.3 Порiвняння варiантiв схем балочноi клiтки
Розрахунок металоiмностi балочних клiток нормального та ускладненого типу виконуiмо за формулами 13,14 [1]:
; (1.16)
; (1.17)
де
Ва- вага
Ванастилу,
;
Ва- вiдповiдно, вага
Вабалки настилу i допомiжноi балки,
;
Ва- вiдповiдно кiлькiсть балок настилу i допомiжних балок.
Таким чином металоiмнiсть балочноi клiтки нормального типу складаi:
![]()
Таким чином металоiмнiсть балочноi клiтки ускладненого типу складаi:
![]()
Отриманi данi з металоiмностi варiантiв балочноi клiтки заносимо до таблицi.
Таблиця 1.1 тАУ Порiвняння варiантiв схем балочноi клiтки
| №вар. | Витрати сталi, | Кiлькiсть | |||
| Всього | На | Вiдсотки, % | Типiв балок | Монтажних елементiв | |
| 1 | 3018 | 78,96 | 1 | 6 | |
| 2 | 2445 | 63,97 | 2 | 6 | |
Таким чином варiант балочноi клiтини нормального типу i менш металоiмним та трудомiстким. Схема балочноi клiтки нормального типу буде використана у подальшому розрахунку головних балок перекриття та колон.
2. РОЗРАХУНОК ГОЛОВНОРЗ БАЛКИ
Визначаiмо нормативнi i розрахунковi навантаження на головну балку:
![]()
![]()
За формулами 1.10 та 1.11 визначаiмо граничнi значення згинального моменту та перерiзуючоi сили:
![]()
![]()
За формулою 1.12 визначаiмо потрiбний момент опору балки настилу:
![]()
З сортаменту фасонного прокату приймаiмо двотаврову балку №50Б2 з характеристиками:
;
;
;
.
За формулою 1.13 проводимо перевiрку мiцностi прийнятого перерiзу:
![]()
За формулою 1.14 проводимо перевiрку мiцностi прийнятого перерiзу:
![]()
За формулою 1.15 перевiряiмо жорсткiсть балки настилу, але значення припустимого прогину приймаiмо
:

Перевiряiмо загальну стiйкiсть головноi балки перекриття за формулою:
, (2.1)
де
Ва- крок балок настилу,
;
Ва- ширина полки двотавра,
;
Ва- товщина полки двотавра,
;
Ва- вiстова вiдстань мiж центрами полок двотавра.
Таким чином загальна стiйкiсть головноi балки перекриття складаi:

Усi умови виконуються, таким чином приймаiмо перетин головноi балки з двотаврового профiлю ý50Б2.
2.1 Розрахунок опорного ребра балки
Для даноi схеми приймаiмо конструкцiю опорного ребра, розмiщеного на краю головноi балки. Ширину опорного ребра
Ваприймаiмо конструктивно рiвною ширинi полки двотавра
.
Товщину опорного ребра розраховуiмо за формулою 71 [1]:
, (2.2)
де
Ва- опорна реакцiя головноi балки,
;
Ва- розрахунковий опiр сталi за межею мiцностi,
.
Таким чином за формулою 2.2 товщина опорного ребра складаi:
![]()
Конструктивно приймаiмо товщину опорного ребра
.
Перевiряiмо мiсцеву стiйкiсть опорного ребра балки за формулою 72 [1]:
, (2.3)
де
Ва- ширина консольноi частини полки балки,
.
Таким чином розрахункова мiсцева стiйкiсть ребра балки складаi:

Стiйкiсть опорного ребра балки , як центрово стиснутого стержня перевiряiмо за формулою 73 [1]:
, (2.4)
де
Ва- коефiцiiнт повздовжнього вигину, що визначаiться в залежностi вiд гнучкостi
;
Ва- площа опорноi дiлянки балки, яка включаi перерiз опорного ребра та частину заввишки
.
Площу опорноi дiлянки балки визначаiмо за формулою 74 [1]:
, (2.5)
![]()
Гнучкiсть опорноi частини балки визначаiмо за формулою 76 [1]:
, (2.6)
де
Ва- радiус iнерцii,
Ваза формулою 77 [1]:
, (2.7)
де
Ва- момент iнерцii опорноi дiлянки вiдносно осi,
Ваза формулою 78 [1]:
Ва(2.8)
Таким чином момент iнерцii опорноi дiлянки вiдносно осi стiнки складаi:
![]()
Таким чином радiус iнерцii перетину складаi:
![]()
Таким чином гнучкiсть опорноi частини балки складаi:
![]()
За таблицею 21 додатку до [1] приймаiмо коефiцiiнт
.
За формулою 2.4 перевiряiмо умову стiйкостi опорного ребра балки , як центрово стиснутого стержня:
![]()
РЖз умов мiцностi кутових за формулою 81 [1] знаходимо необхiдний катет вертикального кутового шва:
, (2.9)
де
Ва- розрахункова довжина швiв,
.

Згiдно табл.8 додатку до [1] приймаiмо катет шва
.
2.2 Розрахунок спряження балок настилу з головною балкою
Розраховуiмо монтажну висоту перекриття за формулою:
, (2.10)
де
Ва- конструктивна висота перекриття за завданням,
;
Ва- висота балок настилу,
;
Ва- товщина настилу,
.
Таким чином монтажна висота перекриття складаi:
![]()
Так як монтажна висота перекриття менше висоти головноi балки, приймаiмо схему зтАЩiднання в одному рiвнi головноi балки i балок настилу.
За формулою 82 [1] перевiряiмо стiнку прокатноi балки настилу на мiсцеве зминання:
Ва(2.11)
де
Ва- опорна реакцiя балки настилу,
;
Ва- площа зминання стiнки прокатноi балки,
.
Площу зминання стiнки прокатноi балки знаходимо за формулою 83 [1]:
, (2.12) де
Ва- товщина стiнки прокатноi балки,
;
Ва- знаходимо згiдно геометричних параметрiв двотаврового профiлю.
Таким чином площа зминання стiнки прокатноi балки складаi:
![]()
За формулою 2.11 перевiряiмо умови зминання стiнки прокатноi балки настилу:
![]()
За формулою 84 [1] перевiряiмо ребро жорсткостi головноi балки на торцеве зминання:
Ва(2.13)
де
Ва- площа зминання торцевоi поверхнi ребра,
.
Площу зминання торцевоi поверхнi ребра знаходимо за формулою 85 [1]:
, (2.14)
де
Ва- товщина ш ширина ребра жорсткостi головноi балки,
.
Таким чином площа зминання торцевоi поверхнi ребра жорсткостi складаi:
![]()
За формулою 2.13 перевiряiмо ребро жорсткостi головноi балки на торцеве зминання:
![]()
Визначаiмо дiаметр болта
Ва(2.15)
Ва(2.16)
![]()
![]()
Монтажнi болти для крiплення балки настилу до головноi балки приймаiмо М16.
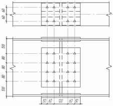
2.3 Розрахунок монтажного стику головноi балки
Вибираiмо конструктивно розташування монтажного стику посерединi головноi балки, тодi
;
.
Згiдно рекомендацiй [1] приймаiмо схему розташування болтiв монтажного стику головноi балки, спосiб обробки тАУ металевими щiтками, контроль затягування болтiв тАУ за згинальним моментом.

Рисунок 2 тАУ Схема компоновки болтiв монтажного стику
Момент iнерцii у найбiльш вiддалених вiд вiсi болтах розраховуiмо за формулою 88 [1]:
, (2.15)
де
Ва- момент iнерцii стiнки балки,
;
Ва- момент iнерцii всього перерiзу балки,
.
Таким чином момент iнерцii у найбiльш вiддалених вiд вiсi болтах складаi: ![]()
За формулою 89 [1] визначаiмо зусилля в болтах, викликане моментом
:
, (2.16)
де
Ва- вiдстань мiж крайнiми рядами болтiв за висотою,
;
Ва- сума квадратiв вiдстаней мiж симетричними рядами болтiв,
;
Ва- кiлькiсть рядiв болтiв.
Таким чином максимальне зусилля в болтах складаi:
![]()
Так як поперечна сила у перетинi
, сумарне зусилля
.
За формулою 92 [1] визначаiмо необхiдну площу перерiзу високомiцного болта:
, (2.17)
де
Ва- розрахунковий опiр розтягу високомiцного болта;
Ва- коефiцiiнт умов зтАЩiднання;
Ва- кiлькiсть поверхонь тертя;
Ва- коефiцiiнт тертя та коефiцiiнт надiйностi за табл.11д [1].
Таким чином необхiдна площа перерiзу високомiцного болта складаi:
![]()
За табл.15д [1] вибираiмо дiаметр високомiцного болта М16 з
. Товщину накладок приймаiмо конструктивно рiвною
.
Зусилля в поясах балки розраховуiмо за формулою 94 [1]:
, (2.18)
де
- згинальний момент в полках балки,
;
Ва- висота балки,
.
Таким чином зусилля в поясах головноi балки складаi:
![]()
За формулою 95 [1] розраховуiмо несучу здатнiсть одного високомiцного болта крiплення поличок:
Ва(2.19)
![]()
Кiлькiсть болтiв у зтАЩiднаннi визначаiмо за формулою 96 [1]:
Ва(2.20)
Ва(приймаiмо 8 болтiв М16)
Необхiдну площу накладок розраховуiмо за формулою 97 [1]:
Ва(2.21)
![]()
Необхiдну товщину накладок розраховуiмо за формулою 98 [1]:
Ва(2.22)
Ва(приймаiмо товщину
)
3. РОЗРАХУНОК ЦЕНТРОВОтАУСТИСНЕНИХ КОЛОН
Розрахункову висоту колони визначаiмо за формулою 98 [1]:
, (3.1)
де
Ва- висотна позначка верха майданчика за завданням,
;
Ва- величина заглиблення колони у пiдлогу.
Таким чином розрахункова висота колони складаi:
![]()
Так як при наявностi звтАЩязкiв мiж колонами в обох напрямках, вузол верхнього закрiплення колони вважають шарнiрним розрахункова висота колони
. Згiдно рекомендацiй [1] приймаiмо гнучкiсть колони
, тодi коефiцiiнт
.
Потрiбний радiус iнерцii перерiзу гiлки колони розраховуiмо за формулою: ![]()
Потрiбну площу перерiзу ланки колони визначаiмо за формулою 102 [1]:
, (3.3)
Таким чином потрiбна площа перерiзу колони складаi:
![]()
З сортаменту фасонного прокату приймаiмо швелер №14 з характеристиками:
;
. Таким чином фактична гнучкiсть колони буде складати: ![]()
Отримана гнучкiсть перевищуi припустиме значення, тому з сортаменту фасонного прокату приймаiмо швелер №18 з характеристиками:
;
. Таким чином фактична гнучкiсть колони буде складати:
Ва(
)
Перевiрку мiцностi прийнятого перерiзу виконуiмо за формулою:
Ва(3.4)
![]()
Розрахунок необхiдноi гнучкостi колони проводимо iз умови рiвностiйкостi перерiзу колони (
) за формулою 120 [1]:
, (3.5)
де
Ва- гнучкiсть окремоi гiлки колони.
Таким чином гнучкiсть колони складаi:
![]()
Необхiдний радiус iнерцii вiдносно вiсi Y визначаiмо за формулою 121 [1]:
![]()
Необхiдну вiдстань мiж гiлками колони знаходимо за формулою 123 [1]:
Ва(приймаiмо
)
Мiнiмальна ширина наскрiзноi колони з умов [1] повинна складати:
![]()
Таким чином приймаiмо ширину наскрiзноi колони
.
За формулою 124 [1] встановлюiмо вiдстань мiж планками:
Ва(3.6)
де
Ва- гнучкiсть окремоi гiлки;
Ва- радiус iнерцii гiлки вiдносно нейтральноi вiсi,
.
За формулою 3.6 вiдстань мiж планками складаi:
Ва(приймаiмо
)
За формулою 126 [1] визначаiмо власний момент iнерцii перерiзу колони:
, (3.7)
де
Ва- вiдповiдно, площа i власний момент iнерцii гiлки вiдносно вiсi Y.
Таким чином власний момент iнерцii перерiзу колони складаi:
![]()
Радiус iнерцii перерiзу визначаiмо за формулою 127 [1]:
![]()
За формулою 128 [1] визначаiмо гнучкiсть колони вiдносно вiсi Y:
Ва(
)
За формулою 129 [1] визначаiмо приведену гнучкiсть колони:
![]()
За формулою 130 [1] перевiряiмо стiйкiсть вiдносно вiсi Y:
Ва(3.8)
Перевiряiмо стiйкiсть вiдносно вiсi за формулою 3.8:
![]()
За формулою 131 [1] знаходимо ширину планок:
Ва(приймаiмо
)
Згiдно умов формули 132 [1] та рекомендацiй приймаiмо товщину i ширину планок
;
.
За формулою 133 [1] перевiряiмо вiдношення жорсткостi планки i гiлки:
, (3.9)
де
Ва- момент iнерцii перерiзу планки вiдносно власноi вiсi,
;
Ва- вiдстань мiж осями планок,
;
Ва- вiдстань мiж осями гiлок,
.
Таким чином перевiряiмо умови формули 3.9:
![]()
За формулою 135 [1] проводимо розрахунок планки на дiю умовноi поперечноi сили:

За формулами 136 [1] проводимо розрахунок поперечноi сили i згинального моменту в планках:
![]()
![]()
За формулою 137 [1] проводимо перевiрку кутових швiв що закрiплюють планку до гiлок колони:
(3.10)
3.1 Розрахунок оголовка колони
Товщину опорноi плити
Ваприймаiмо конструктивно в межах 20тАж25мм. Болти виконують тiльки фiксуючу роль i також назначаються конструктивно дiаметром в межах
.
РЖз умови мiцностi на зминання визначаiмо товщину ребра (формула 138 [1]):
, (3.11)
де
Ва- довжина зминаiмоi площi.
Таким чином товщина опорного ребра складаi:
Ва(приймаiмо
)
За формулою 140 [1] визначаiмо необхiдний катет шва:
Ва(3.12) ![]()
Висоту ребра визначаiмо iз умови мiцностi зварних швiв, якi закрiпляють iх до стiнок колон (формула 139 [1]):
Ва(3.13)
Ва(приймаiмо
)
Визначивши розмiри ребра, необхiдно перевiрити його на зрiз за формулою 139 [1]:
Ва(3.14)
![]()
3.2 Розрахунок бази колон
За формулою 143 [1] визначаiмо необхiдну площу опорноi плити, виходячи iз умови забезпечення мiцностi бетону фундаменту пiд плитою:
, (3.15)
де
тАУ розрахунковий опiр стисненню бетону фундаменту,
;
ВатАУ коефiцiiнт, який залежить вiд спiввiдношення площi верхнього обрiзу фундаменту i площi опорноi плити бази;
ВатАУ розрахунковий тиск колони на фундамент, який враховуi власну вагу колони, кН.
За формулою 144 [1] знаходимо розрахунковий тиск колони на фундамент
, (3.16)
ВатАУ площа перерiзу колони, м2;
ВатАУ довжина колони;
ВатАУ вага
Ваперерiзу колони за довiдником;
Ва- коефiцiiнт надiйностi за навантаженням.
Таким чином розрахунковий тиск колони на фундамент складаi:
![]()
Згiдно формули 3.15 площа опорноi плити колони складаi:
![]()
За формулою 145 [1] встановлюiмо ширину плити:
Ва(3.17)
де
Ва- товщина траверси, приймаiться в межах
;
тАУ величина консольного звiсу, приймаiться в межах
.
Таким чином ширина плити складаi:
![]()
За формулою 146 [1] визначаiмо необхiдну довжину плити:
![]()
Згiдно умов [1] довжину плити приймаiмо
.
За формулою 147 [1] визначаiмо напруження стиску опорноi бази:
![]()
За формулами 148-150 [1] визначаiмо найбiльшi згинальнi моменти, що виникають у опорнiй плитi колони для смужки одиничноi ширини
:
![]()
![]()
![]()
За найбiльшим згинальним моментом знаходимо необхiдну товщину плити за формулою 152 [1]:
Ва(приймаiмо
)
За формулою 153 [1] визначаiмо висоту траверси колони:
Ва(приймаiмо
)
За формулою 154 [1] навантаження на траверсу приймаiмо рiвномiрно розподiленим:
![]()
За формулами 155-156 [1] найбiльшi значення згинального моменту в траверсi становить:
а) на консольних дiлянках: ![]()
б) у прольотi:
![]()
За формулою 157 [1] найбiльша поперечна сила на опорi складаi:
![]()
За формулою 158 [1] проводимо перевiрку мiцностi траверси на згин:
Ва(3.18)
![]()
За формулою 159 [1] проводимо перевiрку мiцностi траверси на зрiз
Ва(3.19)
![]()
ПЕРЕЛРЖК ПОСИЛАНЬ
1. Методичнi вказiвки до виконання курсовоi роботи "Робочий майданчик виробничих будiвель" по курсу "Металевi конструкцii" для студентiв фаху 7.092101 "Промислове i цивiльне будiвництво"/Склад. В.В.Шкода. тАУ Запорiжжя: ЗДРЖА, 1997-61 с.
2. Бадур А.И., Белогуров В.Д. Стальные конструкции. Справочник конструктора.-К.: Изд-во "Сталь", 2004.-120 с.
3. Справочник конструктора металлических контрукций/ Васильченко В.Т., Рутман А.Н., Лукьяненко Е.П.-Киев: Будiвельник, 1890.-288 с.
4. Справочник техника-конструктора. Изд. 3-е, перераб. И доп. Самохвалов Я.А., левицкий М.Я., Григораш В.Д. Киев, "Технiка", 1978.-592 с.
Вместе с этим смотрят:
Авангардизм як явище архiтектури ХХ столiття
Автоматическая автозаправочная станция на 250 заправок в сутки
Анализ деятельности строительного предприятия "Луна-Ра-строй"
Анализ проектных решений 20-ти квартирного жилого дома