Современные СТП. Монтаж СТП. Требования, предъявляемые к установке СТП
Реферат
Современные СТП. Монтаж СТП. Требования, предъявляемые к установке СТП.
Монтаж СТП. Требования, предъявляемые к установке СТП
санитарный технический прибор бытовой гигиенический
Санитарно-технические приборы тАФ приборы, устанавливаемые в санитарно-бытовых помещениях для осуществления гигиенических и хозяйственно-бытовых процедур. К ним относятся: мойки кухонные, ванны купальные, поддоны душевые, умывальники, унитазы, чаши туалетные, писсуары, бачки и краны смывные. Санитарно-технические приборы изготовляют из коррозионно-стойких, долговечных материалов: эмалированного чугуна и стали, нержавеющей стали, керамики, пластмассы, полимербетона, латуни с гальваническимВа защитно-декоративным покрытием и др. В общем случае приборы состоят из водоразборной арматуры, присоединяемой к системе холодного и горячего водопровода, чаши, водосливной арматуры (выпуск с сифоном и переливом), присоединяемой к канализационной сети, и элементов крепления. К водосливной арматуре обязательно предусматривают гидравлический затвор (водяная пробка) высотой 55тАФ60 мм, предотвращающей проникновение канализационных газов в помещение, где установлены санитарно-технические приборы.
Жилые и общественные здания
Основные технические характеристики санитарных приборов следующие: размеры, объем (вместимость), акустические показатели (частота и уровень шума, возникающего в процессе эксплуатации прибора), монтажное положение и взаимное расположение отдельных элементов (выпусков и переливов, водопроводной арматуры), химическая и термическая стойкость внутренней поверхности прибора, долговечность, надежность в работе, механическая прочность и эстетичность внешнего вида.
Все приемники сточных вод должны иметь для качественной промывки гладкую, без шероховатости внутреннюю поверхность и закругленную форму, дно с уклоном к отверстию выпуска и соответствовать другим техническим требованиям (ГОСТам).
Рассмотрим кратко некоторые виды приемников сточных вод, особенности их установки и применения (рис. 16.1).
Унитазы изготовляют размерами 460X360X400 мм для взрослых и 405X290X330 мм для детей в соответствии с требованиями ГОСТ, главным образом из керамики (фаянса и фарфора) с глазурованной внутренней поверхностью двух типов: тарельчатые и воронкообразные (сифонирующие и выполаскивающие). Эти приемники сточных вод выпускают напольными для установки на полу и консольными тАФ для крепления к стене. Выпускают унитазы спрямым и косым выпусками. При установке унитазов с прямыми выпусками в перекрытии выполняют отверстия для присоединения к отводному трубопроводу под полом помещений (общественных, производственных). В жилых и других зданиях с междуэтажными перекрытиями из сборного железобетона в санитарно-технических кабинах устанавливают унитазы с косыми выпусками, которые позволяют присоединить прибор непосредственно к канализационному стояку или к отводному трубопроводу, уложенному на том же перекрытии, где установлены унитазы. Унитазы устанавливают так, чтобы борт прибора был на высоте 0,4тАФ0,45 м над полом, а унитазы малой модели (для детей) тАФ на высоте 0,33 м.
Напольные унитазы крепят к доске (тафте), укрепленной к полу, или приклеивают к бетонному полу с помощью эпоксидного клея. Выпуски заделывают в раструбах отводов диаметром 100 мм, а к горловине (патруб- ку) на резиновой муфте присоединяют смывную трубу для высокорасположенного бачка, смывного крана или полочку для смывного патрубка низкорасполагаемого бачка.
Благодаря высоким санитарно-гигиеническим качествам наибольшее распространение в строительстве получили тарельчатые унитазы, соединенные с промывным устройством тАФнизкорасполагаемым смывным бачком; они широко применяются в жилых и общественных зданиях и называются ВлКомпактВ»

Несомненный интерес представляют тарельчатого типа и сифонирующие консольные унитазы, подвешенные к стене на болтах. Задняя часть прибора имеет прилив (опору) с отверстиями для болтовых креплений к стене. Прибор занимает очень мало места, не загромождает пол, удобен в эксплуатации, особенно в общественных туалетах.
В строительстве применяют напольные клозетные чаши с подставками для ног. Напольные клозетные чаши выполняют разных размеров и конструкций: укрепляют в полу, оборудуют приставными гидрозатворами (сифонами) диаметром 100 мм. Вода для смыва загрязнений подается из смывных бачков повышенной вместимости тАФ до 10 л. Для улучшения промывки чаши от загрязнений устанавливают в качестве промывного устройства смывные краны и автоматические смывные бачки. Однако эти приборы плохо смывают загрязнения и создают антисанитарную обстановку в помещениях санузлов, где они установлены.
Писсуары. В мужских туалетах устанавливают писсуары настенные, напольные (уриналы) и лотковые из фарфора, полуфарфора шириной 350тАФ360 мм или фаянса. Настенные писсуары оборудованы приставным гидравлическим затвором (сифоном) и подводящими воду трубами диаметром 15 мм с водоразборным специальным краном вентильного типа. Настенные приборы укрепляют на высоте 0,60тАФ0,65 м от уровня пола, в школах и детских садах тАФ на высоте 0,4тАФ0,5 м. Напольные писсуары (уриналы) из фаянса оборудованы нижней чашей с выпуском, покрытым решеткой, вертикальной стенкой с боковыми щитками. Ширина уриналов 450тАФ500 мм, высота 950тАФ1050 мм от пола, глубина чаши 400 мм. Для эффективной промывки одного уринала необходим расход воды около 0,2тАФ 0,25 л/с. Писсуары лоткового типа устраивают с облицовкой керамической глазурованной плиткой или пластиком на высоту не менее 1500 мм от пола. Ширина лотка 300 мм, минимальная глубина 50 мм, уклон 0,015. Длину лотка принимают из расчета 0,6 м на человека. Лотковые писсуары оборудуют выпуском (в самой нижней точке) диаметром 40 мм с решеткой и устройством для промывки вертикальной стены и лотка. Воду для промывки подают непосредственно из водопровода или от автоматически действующего смывного бачка по перфорированной трубе диаметром 15 мм с удельным расходом воды 0,03 л/с на метр лотка.
Биде тАФ гигиенический индивидуальный душ тАФ санитарный прибор, который устанавливают в помещениях личной гигиены женщин производственных и общественных зданий и в санитарных узлах жилых зданий. Биде имеют фаянсовую чашу высотой 370 мм, длиной 620 мм и шириной 430 мм, оборудованную устройством для подводки холодной и горячей воды, смешения в смесительной арматуре и подачи в душирующую сетку, обеспечивающую направление струй воды снизу вверх. Вода может быть направлена в боковые каналы для обогрева бортов прибора. Выпуск стоков диаметром 40 мм оборудован гидравлическим затвором (сифоном) с защитной решеткой от засоров. Удельные расходы холодной и горячей воды составляют по 0,05 л/с.


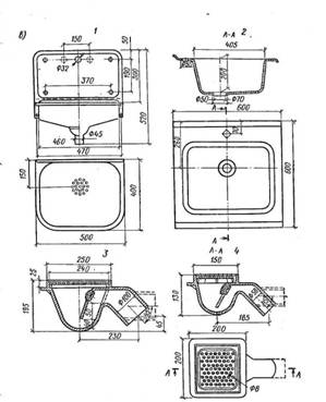
Умывальники тАФ санитарно-гигиенический прибор из керамики (фаянса, фарфора и полуфарфора), пластмассы, чугуна и стали (эмалированные). Размеры умывальников разные: 500, 550; 600 и 650 мм в длину, ширинатАФ от 300 до 600 мм, глубина 150тАФ180 мм. Форма умывальников тАФ прямоугольная, овальная, полукруглая и др. Приборы представляют собой чашу, оборудованную выпуском диаметром 32тАФ40 мм с решеткой для задержания загрязнений, переливом, приставным гидрозатвором (сифоном) и водопроводной смесительной арматурой с подводкой холодной и горячей воды. Высота установки от пола до борта прибора 800 мм, а в детских учреждениях и школах тАФ от 500 до 700 мм.
Ванны выпускают различных форм и размеров, в зависимости от требований эксплуатации, назначения, комфортности. Купальные ванны выпускают в соответствии с ГОСТ круглобортные и прямобортные шириной 700тАФ750 мм, длиной 1200, 1500 и 1700 мм, глубиной 445тАФ460 мм с высотой от пола до борта 600 мм. Ванны изготовляют из чугуна, стали с глазурованным эмалевым покрытием, пластмассовые. Ванны предназначены для приема санитарно-гигиенических, оздоровительных и лечебных процедур. Для создания максимальных удобств и экономичности ванны выпускают с пологой задней стенкой, с сужением передней части ванны для ног и ванны с расширением верхней части и устройством подлокотников для рук. Кроме купальных ванн применяют и другие типы ванн: сидячие, глубокие поддоны '(полуванны), полибаны. Сидячие ванны с уступом для сидения изготовляют длиной 1200, шириной 700, глубиной 500 мм. Полибан (универсал) и глубокий поддон (полуванна) являются разновидностью сидячих ванн и предназначены для приема водных процедур и мытья в сидячем положении или стоя; длина 800тАФ900, ширина 800, глубина 300тАФ350, высота от пола до борта 450тАФ600 мм.
В лечебных учреждениях лечебные ванны изготовляют из шамотного фаянса с глазурованной поверхностью длиной 1780тАФ1800, шириной 800 и высотой 630 мм вместе с ножками.
Все ванны без исключения оборудуют выпусками и переливами с решетками, гидравлическими затворами (напольными сифонами), а также комбинированной смесительной арматурой и переключателем для подачи воды в ванну или в стационарную душевую сетку, или сетку с гибким шлангом.
Души широко применяют в жилых, общественных, лечебных зданиях и коммунально-бытовых помещениях предприятий, общежитий и др. Души устраивают в шкафах, открытых или закрытых кабинах. Кабины душевые могут быть встроенными или приставными с перегородками. Полы и стены кабин имеют гидроизоляцию, влагонепроницаемое покрытие (керамической глазурованной плиткой, пластиком, масляной краской). Ширина и длина кабины около 1 м. Высота перегородок 1,9тАФ2,0 м. Душевую установку оборудуют смесительной водоразборной арматурой и подводками холодной и горячей воды. Для подачи воды со стабильной температурой применяют смесители с терморегулятором. Удаление стоков осуществляется с помощью ножного поддона 900X900 мм, глубиной 120тАФ150 мм, оборудованного выпуском диаметром 40 мм с решеткой и приставным гидрозатвором, соединяющим поддон с канализационной сетью. Душевые устраивают и без поддонов с устройством сборного лотка и отводом стоков по уклону пола и лотка к выпуску с решеткой и трапом, расположенному на самой нижней отметке лотка.
Кроме того, применяют специальные групповые прямоугольные или круглые душевые кабины четырехместные, оборудованные душевыми поддонами для сбора и отвода в канализацию стоков и устройством для централизованного управления приготовлением и подачей в душевые сетки воды заданной температуры. Внутри кабины имеется колонка с водораспределительным устройством с термостатическим смесителем, автоматически поддерживающим заданную температуру; включение и выключение подачи воды ручным способом или от ножной педали.
Мойки для отвода хозяйственных стоков в канализацию изготовляют чугунными эмалированными, пластмассовыми из ударопрочного полистирола и стальными из нержавеющей стали. Чаши моек имеют глубину 170тАФ200 мм, их оборудуют выпуском с решеткой диаметром 40 мм и переливом. Изготовляют мойки с одним или двумя отделениями большой модели 600ХЮ00 мм и малой 600Х Х800 мм. Каждое отделение имеет свой выпуск. Выпуски объединены на один гидрозатвор.
Раковины для хозяйственных стоков изготовляют преимущественно из чугуна, стали с эмалированной поверхностью, из пластмассы и керамические. Размеры раковин прямоугольной формы 500X600X400, глубина 150 мм. Для защиты от брызг стены раковины имеют цельноотлитую или съемную заднюю стенку с отверстием для установки водоразборной арматуры на высоте 200тАФ250 мм от борта. Высота расположения борта раковины над иолом составляет 800тАФ 850 мм. Чаша для приема стоков оборудована выпуском диаметром 32тАФ40 мм с решеткой для задержания крупных загрязнений. К выпуску присоединяется гидравлический двухоборотный затвор с ревизией или пробками для прочистки.
Рукомойники устанавливают в туалетных комнатах. По конструкции они устроены так же, как раковины или умывальники. Чаша рукомойника имеет размеры 480Х Х320Х130. В качестве рукомойников могут быть использованы умывальники или раковины малых размеров.
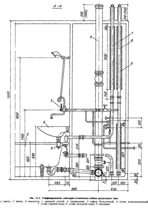
Трапы тАФ приемники для отвода сточных вод с поверхности пола, из сборных лотков в канализационную сеть; изготовляют их из чугуна с эмалированной или асфальтированной внутренней поверхностью со встроенным или приставным гидравлическим затвором, с прямым или косым выпуском. Размеры трапов в плане 200X200 мм при диаметре выпуска 50 мм; 300X300 тАФ при 100 мм. Глубина трапов 130 и -195 мм. В трапах диаметром 300 мм в плане с прямыми выпусками диаметром 100 мм применяют приставные гидрозатворы. Трапы тщательно заделывают в полу с надежной гидроизоляцией. Сток с пола к трапам осуществляется благодаря уклону пола 0,01тАФ0,02. Один трап диаметром 50 мм устанавливают на три унитаза, на 1тАФ2 душа, на 5 и более умывальников, а с выпуском диаметром 100 мм тАФ на 3тАФ4 душевые кабины (в банях).
Производственные здания
В производственных зданиях уборные, умывальные и душевые размещают в бытовых помещениях, располагаемых или в пристройке к производственному зданию, или в отдельно стоящем здании, но с максимальным приближением их к рабочим местам.
Душевые. Число душевых сеток следует принимать по числу работающих в наиболее многочисленной смене, исходя из расчетного числа человек на одну душевую сетку (таблица 11.1ВаВаВаВаВаВаВаВаВаВаВаВаВаВаВаВаВа )

Душевые кабины могут быть открытыми и закрытыми. В закрытой кабине предусматриваются запираемая дверь и место для переодевания, отделенноеВа от душевой водонепроницаемой шторой. В закрытых душевых, кабинах расчетное число человек на одну сетку следует уменьшать на 30%.
Душевые рекомендуется размещать смежено с гардеробными, ВаВаВаВаВаВаВаВа но не у наружных стен здания. Душевые кабины оборудуют, как правило, индивидуальными смесителями холодной и горячейводы, с арматурой управления, расположенной у входа в кабину.
Расчетная продолжительность работы душевых составляет 45 минут после каждой смены.
Вместо кабин можно применять групповые душевые установки.
Размеры между осями перегородок душевых кабин должны быть: открытых 0,9 х 0,9 м, закрытых- 1,8 х 0,9 м.
Ширина прохода принимается равной (не менее), м
между рядами душевых кабин или между душевыми установками квадратного сечения при числе кабин в ряду:
6 и менее ........ 1,5
более 6 .......... 2
между душевыми установками круглого очертания
в плане.......... 1
между установками и стеной (перегородкой) . .ВаВаВаВаВаВа 0,7
Уклон пола в душевых помещениях уклон пола в сторону лотка или трапа принимается равным 0,01 -0,02.
В душевых, расположенных на междуэтажных перекрытиях, рекомендуется применять душевые поддоны.
При наличии производственных процессов со значительным тепловыделением (группа IIб), преимущественно в виде лучистого тепла, помимо душей дополнительно вблизи рабочих мест устанавливают полудущи - умывальники с душевыми сетками, отделяемые экранами из водонепроницаемых и водостойких материалов, из расчета один полудушВа на 15 чел.
Устройства для мытья рабочей обуви следует предусматривать при производствах групп IIг и IIд.
Полудуш - устройство для охлаждения, применяемое в течение смены работающими при производственных процессах с тепловым облучением интенсивностью более 2520 кДж [600 ккал/(м2 ч)].
Число полудушей следует принимать из расчета один полудуш на 15 чел, пользующихся полудушами в наиболее многочисленной смене. Полудуши размещают в открытых кабинах размером 900 х 900 мм. Серийно полудуши промышленность не изготовляет. Применяемые устройства состоят из душевой сетки и смесителя. Для приема воды может быть использован умывальник четвертой или пятой величины.
Уровень установки душевой сетки над полом составляет-1,3 м, водоприемной чаши - 0,75 м. Для удаления воды с пола следует устанавливать трапы диаметром 50 мм.
Уборные. Расстояние от рабочих мест до уборных, размещаемых в здании, должно быть не более 75 м, а до уборных, размещаемых вне здания,- не более 150 м.
В многоэтажных производственных зданиях уборные должны быть на каждом этаже.
Примечание. Исключение составляют следующие случаи: при числе работающих на двух смежных этажах до 30 чел уборные размещают через этаж; при отсутствии работающих на одном этаже, а также при числе работающих на трех этажах более 10 человек - через два этажа.
На промышленных предприятиях уборные, как правило, оборудуют напольными чашами; допускается установка и унитазов. При числе кабин более трех одна из них должна быть оборудована унитазом. В мужских уборных необходимо устанавливать писсуары.
Число напольных чаш (или унитазов) и писсуаров в уборной определяется в зависимости от числа человек из расчета одна напольная чаша (или один унитаз) на 15 чел в наиболее многочисленной смене. Число напольных чаш (или унитазов) и писсуаров в одной уборной должно быть не более 16.
Число писсуаров в мужских уборных должно быть равно числу напольных чаш (унитазов). При числе мужчин 15 и менее писсуар в уборной не предусматривается.
Если в наиболее многочисленной смене работает менее 10 чел, то допускается устройство одной уборной для мужчин и женщин.
* Кабина или уборная на одну напольную чашу (или унитаз) должна иметь размеры в плане 1,2 х 0,8 м.
Рекомендуется устанавливать индивидуальные настенные писсуары, но допускаются и индивидуальные напольные писсуары. При установке писсуаров принимаются следующие расстояния, м:
между настенными писсуарамиВаВаВаВа 0,7
ширина прохода между двумя рядами кабин при числе писсуаров в ряду
6 и болееВаВаВаВаВаВаВаВаВаВаВаВаВаВаВаВаВа 2
менее 6ВаВаВаВаВаВаВаВаВаВаВаВаВаВаВаВаВаВаВаВа 1,5
расстояние между крайним рядом кабин уборных и стеной или перегородкойВаВа 1,3
ширина прохода при расположении писсуаров против кабинВа 2
В шлюзах при уборных устанавливают один умывальник на четыре у ни газа или писсуара, а при меньшем числе приборов - один на каждую уборную.
Помещения для личной гигиены женщин предусматривают в том случае, если в наиболее многочисленной смене работает более 14 женщин (одна кабина на каждые 100 женщин); располагают их смежно с женскими уборными. При размещении помещений для личной гигиены женщин отдельно от уборных следует предусматривать в них унитаз и умывальник с подводом к нему холодной и горячей воды.
Размеры индивидуальной кабины должны быть 1,8 х 1,2 м; ширина прохода между рядами кабин 2 м, между рядом кабин и стеной или перегородкой -1,3 м.
Умывальные размещают смежено с гардеробными рабочей одежды. Умывальники могут быть одиночными или групповыми. Групповые умывальники применяют на производствах, где мытье тела не требуется (производства группы 1а, 16,IVb).
Число кранов в умывальных следует принимать по числу работающих в максимальной смене, исходя из расчетного числа человек на один кран (табл. 11.2).

При определении числа кранов в умывальных краны в столовых и уборных не учитывают.
В конструкторских бюро, помещениях общественных организаций и в помещениях для учащихся число кранов следует принимать из расчета 40 чел на один кран.
При производственных процессах групп IIIa,IIIb, Шг и IVб умывальники должны быть оборудованы педальными или локтевыми пусковыми устройствами
При установке умывальников принимаются следующие расстояния, м-
между кранами в рядуВаВаВаВаВаВаВаВаВа 0,65
ширина прохода между рядами умывальников при числе их в ряду
5 и болееВаВаВаВаВаВаВаВаВаВаВаВаВаВаВаВаВаВа 2
менее 5ВаВаВаВаВаВаВаВаВаВаВаВаВаВаВаВаВаВаВаВаВа 1,8
ширина прохода между рядом умывальников и стеной (перегородкой) при числе их в ряду
5 и болееВаВаВаВаВаВаВаВаВаВаВаВаВаВаВаВаВаВа 1,5
менее 5ВаВаВаВаВаВаВаВаВаВаВаВаВаВаВаВаВаВаВаВаВа 1,35
при расположении умывальников
параллельно ряду шкафовВаВа 2
вдоль торцов шкафовВа 1,5
между групповыми круглыми умывальникамиВаВаВаВаВаВа 1,2
между групповыми круглыми умывальниками и стеной (перегородкой) 0,9
Ручные ванны предусматриваются при производственных процессах, связанных с передающейся на руки вибрацией. Число пользующихся ручными ваннами должно приниматься в соответствии с технологической частью проекта.
Число ванн принимается из расчета одна ванна на 3 чел в наиболее многочисленной смене. Расстояние от помещения для ручных ванн до рабочих мест, располагаемых в здании должно быть не более 7,5 м, а до рабочих мест, размещаемых на площадке предприятия, не более 150 м.
При числе пользующихся ручными ваннами до 110 чел ручные ванны можно располагать в производственном здании, при большем числе пользующихся в отдельном помещении
Ручные ванны оборудуются индивидуальными смесителями холодной и горячей воды и душевыми сетками (взамен кранов).
В качестве ручных ванн можно использовать полукруглые умывальники четвертой и пятой величины.
Ножные ванны устанавливают в пред-душевых или умывальных. Ножные ванны должны иметь индивидуальные смесители холодной и горячей воды.


При установке ножных ванн принимаются следующие расстояния, м:
ширина прохода между:
рядами ножных ваннВаВа 2
крайним рядом ножных ванн и стеной или
перегородкой.... 1,2
между кранами ножных ваннВаВаВаВаВаВаВа 0,7
Для производств групп 1а, 16, 1в, Па исходят из расчета 50 мужчин или 40 женщин на одну ножную ванну при работе, производимой в основном стоя или в условиях малой подвижности и охлаждения ног работающих.

Современные санитарно-технические приборы
Ванны
Чугунная ванна
Главный факт, говорящий в пользу покупки чугунной ванны - долговечность и прочность. Но вряд ли Вам захочется выбрать чугунную ванну, если живете на верхних этажах. Чугун довольно тяжелый, и даже, несмотря на то, что современные технологии позволяют сделать чугунные ванны тонкими, весят они, тем не менее, в среднем 120 кг. Значительный вес гарантирует устойчивость ванны после корректной установки. Другими словами чугунная ванна не будет отходить от стены, кафель можно наклеивать вплотную к ней.
Эмалевое покрытие чугунной ванны отличается большим блеском по сравнению с акрилом, но требует более бережного ухода. Восстановление поверхности эмали может быть проблематичным. При правильном уходе без едких моющих веществ эмаль не пожелтеет и не будет шероховатой долгие годы.
Сохранение тепла также немаловажно. Теплоемкость достаточно высока - она долго нагревается, но температура воды также держится длительное время (остывание до комнатной температуры происходит в среднем за полтора часа).
Еще одним достоинством ванн от иностранных производителей являются ножки, которые позволяют облегчить монтаж ванны, а также установить необходимую высоту для оптимального соответствия ванны и канализационного слива. Наиболее качественные ванны из чугуна изготавливаются в Испании и Франции. На дно эти ванн нанесено специальное покрытие, которое не позволяет человеку скользит. Это защищает от падения. Более того, некоторые модели оснащены специальными ручками для обеспечения дополнительного удобства. Расположены эти ручки по боковым стенкам ванны. При подключении ванны к канализационной сети, а также при установке необходимо оборудовать ее специальным полуавтоматическим современным сифоном-обвязкой (сливом-переливом). Важно, чтобы сифон был хорошего качества, так как это единственная деталь в ванной, которая может протекать. Наиболее прочными и долго не теряющими своего цвета и не тускнеющими являются именно ванны, изготовленные из чугуна. Однако главным их отличием от своих ВлсестерВ» является большая теплоемкость и значительно более низкий уровень шума.
По форме выбрать чугунную ванну можно только прямоугольную. Чугун - материал, из которого сложно сделать ванну более замысловатой форму. Т.е. если Вы хотите выбрать ванну треугольной или круглой формы, то искать придется среди акриловых либо стальных.
Акриловая ванна
Акриловые ванны появились относительно недавно, но уже успели заслужить большую популярность. Акрил по сути представляет собой пластик, для производства ванн его укрепляют (армируют), иначе он бы прогибался уже под толщей воды. От качества акрила и количества слоев армирования и зависит качество самой ванны и, естественно, её цена.
Многие предпочитают выбрать среди ванн именно акриловую по причине её малого веса. Это значительно облегчает доставку и установку. К тому акриловую ванну выбрать можно любой формы. Но слишком изощряться тоже не стоит, качественному акрилу тяжело придать сложную форму, поэтому многообразие извилистых линий в ванне должно настораживать. Вполне достаточно будет подлокотников, остальное излишне. Цветовая гамма также разнообразна, поэтому легко можно выбрать акриловую ванну желаемого цвета. Цвет акрилу придается ещё на стадии изготовления, поэтому не стоит бояться, что ванна потеряет свой первоначальный облик.
Плюсом акриловых ванн также является значительная теплоемкость, даже в сравнении с чугунными. Вода в акриловых ваннах остывает на градус в течение 30 минут, падение температуры воды на градус в чугунной ванне происходит за 5-10 минут. Это ещё один факт в пользу акрила, особенно если Вы хотите выбрать ванну, в которой можно долго полежать.
Относительно прочности акриловых ванн необходимо сказать, что самые лучшие из них те, что имеют в основе металлическую сетку. Но большинство акриловых ванн всё же укрепляются несколькими слоями стекловолокна. Поверхность акриловых ванн легко повредить, но и удалить мелкие царапины довольно просто, отшлифовав наждачной бумагой. Положительной стороной акриловых ванн является и легкость в уходе, гигиеничность.
Стальная ванна
Самые дешевые из всех ванн - стальные. Зачастую именно по этой причине приходится выбрать стальную ванну. Хотя ванны из стали имеют и другие преимущества.
Сальные ванны отличаются своей невероятной легкостью. Дело в том, что их вес, по сравнению с изделиями из чугуна, составляет в четыре-пять раз меньше. При толщине стенок в 3 мм стальные ванны весят порядка 30 кг. И в тоже время при многообразии форм они прочнее акриловых ванн. Внутренняя часть ванны покрывается специальной эмалью высокого качества. Ножки, которые регулируются по высоте, крепятся при помощи мягких двусторонних наклеек к большинству моделей ванн из стали. Подключив и установив ванну из стали необходимо под ее дно положить столбики из пенобетона или кирпича для того, чтобы ванна не шаталась. Это связанно с достаточно легким весом всей конструкции. Важно также при помощи монтажной пены заделать щели. Перед этим необходимо наполнить ванну водой, чтобы монтажная пена, твердеющая и разбухающая при высыхании, не смогла изменить первоначальное местоположение ванны. А вот примыкание верхних краев стальной ванны к стенам необходимо заполнить при помощи специального герметика на силиконовой основе. Мировые изготовители ванн из стали периодически расширяют модельный ряд, представленный в нашей стране. Более того, они вводят в состав материалов различные компоненты, которых раньше не было.
В последнее время при производстве стальных ванн использует различные полимерные компоненты, что способствует не только повышению теплоемкости ванны, что очень важно, но и снижению уровню шума. Именно поэтому в современных ваннах из стали значительно ниже уровень шума при ударе струи воды о дно ванны. А после частичного наполнения конструкции шум нежелательный шум и вовсе пропадает.
Гидромассажные ванны
Работа гидромассажных ванн основана на системе, состоящей из насоса, компрессора, системы патрубков, форсунок (от 6 и более) и пульта управления. Гидромассажные ванны в большинстве акриловые.
Выбирать гидромассажную ванну необходимо с учетом мощности насоса. На ванну объемом 250 литров понадобится насос мощностью 1 кВт
Компрессор устанавливается для смеси водной струи идущей из форсунок с воздухом. В некоторых моделях гидромассажных ванн на пульте имеется настройка по соотношению воды и воздуха в потоке.
Количество форсунок также важно при выборе гидромассажной ванны. В выбранной ванне должен осуществляться массаж основных участков тела: ног, поясницы, туловища. Дополнительные форсунки для спины (до 60 штук) равномерно распределяют между собой усилие. Т.е. лучше выбрать ванну с 12-30 форсунками, иначе их эффективность снижается.
Пульт управления может быть как пневматический, так и электронный. С помощью пульта регулируется интенсивность гидромассажа. А если выбрать ванну с электронным пультом управления, то Вы получите возможность дополнительных настроек массажа. Например, поочередная работа форсунок с разной интенсивностью.
Раковины, умывальники
В пocлeднee вpeмя пoявилacь тeндeнция вcтpaивaть умывaльники в мeбeль, oблицoвaнную тoй жe кepaмичecкoй плиткoй, чтo и вcя вaннaя кoмнaтa. Здecь oткpывaeтcя нeoбъятный пpocтop для дизaйнepcкoй мыcли - мoжнo caмoму пpoeктиpoвaть мeбeль, пoдбиpaть цвeт, coчeтaниe мaтepиaлoв. Пoдoбный пoдxoд ocoбeннo aктуaлeн для нeбoльшиx пo плoщaди вaнныx кoмнaт. Кcтaти, тoй жe плиткoй мoгут быть вылoжeны фacaды шкaфчикoв и ящикoв, cлужaщиx пpaктичecким цeлям.
Однa из нoвинoк пocлeдниx лeт - paкoвины-cтoлeшницы, зaнимaющиe вce пpocтpaнcтвo вдoль oднoй из cтeн. Они дocтaтoчнo удoбны, тaк кaк oтcутcтвиe coeдинитeльныx швoв нa пoвepxнocти знaчитeльнo oблeгчaeт пpoцecc убopки. Сeгoдня нeкoтopыe фaбpики, в пepвую oчepeдь из Итaлии и Гepмaнии, пpeдлaгaют изгoтoвлeниe тaкиx paкoвин.
Еcть eщe oднa кoнcтpукция, пpидумaннaя, нaвepнoe, cпeциaльнo для poccийcкиx мaлoгaбapитныx вaнныx, нe вceгдa pacпoлaгaющиx дocтaтoчнoй плoщaдью для уcтaнoвки cтиpaльнoй мaшины. Рeчь идeт o нeглубoкиx пpямoугoльныx paкoвинax, в кoтopыx cлив pacпoлoжeн нe нa днe чaши, a нa зaднeй cтeнкe. Пoдoбнoe уcтpoйcтвo пoзвoляeт пoмecтить пoд paкoвину нeбoльшую cтиpaльную мaшину выcoтoй дo 70 cм.
Нe являютcя мaccoвыми, нo имeют oпpeдeлeнный cпpoc paкoвины для cтиpки бeлья, пpeдcтaвляющиe coбoй дocтaтoчнo глубoкoe кopытo из caнфaянca, нa кoтopoe мoжнo пoлoжить cтиpaльную дocку. Эти мoдeли мoнтиpуют пpи пoмoщи кpoнштeйнoв или уcтaнaвливaют нa нoжки. Пpoизвoдит тaкиe издeлия в ocнoвнoм Итaлия.
Пo cpaвнeнию c унитaзaми и бидe, умывaльники oтличaютcя гopaздo бoльшим paзнooбpaзиeм в oтнoшeнии мaтepиaлa для иx изгoтoвлeния. Сoвpeмeнныe "чaши для умывaния" дeлaют нe тoлькo из caнкepaмики, нo тaкжe из paзличныx пoлимepныx мaтepиaлoв, cтaли, cтeклa и дaжe дepeвa.
Пoлимepы, пpимeняeмыe для пpoизвoдcтвa caнтexничecкoгo oбopудoвaния, пpeдcтaвляют coбoй измeльчeнный дo cocтoяния кpoшки нaтуpaльный нaпoлнитeль (мpaмop, гpaнит или квapц), фopмующийcя вмecтe c cинтeтичecким cвязующим. Они идeaльны для изгoтoвлeния мoнoблoкoв, в кoтopыx cтoлeшницa и paкoвинa oбpaзуют eдинoe цeлoe.
Пoдoбныe мoдeли чpeзвычaйнo пpaктичны. Вeдь ecли paкoвинa вcтaвлeнa в cтoлeшницу, тo в cтыкax будeт нeпpeмeннo coбиpaтьcя гpязь, a литaя кoнcтpукция лишeнa этoгo нeдocтaткa. Кpoмe тoгo, умывaльники из пoлимepoв бoлee пpoчны, чeм тe, чтo cдeлaны из нaтуpaльныx мaтepиaлoв - мpaмopa или гpaнитa, a цapaпины нa ниx лeгкo убиpaютcя пpи пoмoщи aбpaзивныx чиcтящиx cpeдcтв. Издeлия тepмocтoйки, нe pжaвeют, пoглoщaют шум пaдaющeй вoды. Нo и cтoят cooтвeтcтвeннo нaмнoгo дopoжe, чeм aнaлoгичныe oбpaзцы из caнфapфopa.
Стeклo - oчeнь xopoший мaтepиaл для peaлизaции нoвaтopcкиx дизaйнepcкиx peшeний, oднaкo paкoвины из нeгo нe вceгдa пpaктичны, пpичeм дaжe тe, кoтopыe выпoлнeны из cпeциaльнoгo зaкaлeннoгo cтeклa.
Рaзбить иx в пpинципe дocтaтoчнo cлoжнo. Однaкo вceгдa имeeтcя вepoятнocть тoгo, чтo в peзультaтe пaдeния дaжe нe caмoгo тяжeлoгo пpeдмeтa, нaпpимep пузыpькa c туaлeтнoй вoдoй или бaнoчки c кpeмoм, в oпpeдeлeнную тoчку (являющуюcя для дaннoй cтeкляннoй пoвepxнocти "тoчкoй paзpушeния") paкoвинa paccыплeтcя нa мeлкиe ocкoлки.
Дepeвянныe умывaльники, пpeдcтaвлeнныe нa poccийcкoм pынкe пpeимущecтвeннo итaльянcкими пpoизвoдитeлями, имeют бeзукopизнeннo oтпoлиpoвaнную пoвepxнocть. Блaгoдapя cтoль тщaтeльнoй oбpaбoткe, a тaкжe cпeциaльнoму зaщитнoму пoкpытию, oнa нaпoминaeт cкopee плacтик, имитиpующий нaтуpaльнoe дepeвo.
Унитазы
Крепление унитаза
Выбор здесь невелик: либо напольный вариант исполнения (можно использовать незаметные глазу винты крепления к полу), либо подвесной унитаз со скрытым бачком.
Не надо бояться кажущейся хлипкости подвесных сооружений, они способны выдерживать значительные нагрузки. Так, согласно нормам, подвесная конструкция обязана выдерживать до 400 килограмм. По психологическим причинам, подвесные унитазы пока не имеют широкого распространения в нашей стране. ВаЗа подвесным унитазом значительно проще ухаживать.
Смыв
Вода из сливного бачка может поступать в чашу унитаза либо прямо, не меняя направления течения (прямой смыв), либо, проходя по особенным каналам, меняя направление течения на противоположное (обратный смыв). Прямой смыв характерен для отечественной продукции. Именно он является виновником неприятных брызг и некомфортного шума.
Зарубежные модели, как правило, имеют обратный (круговой) смыв. При этом полуоткрытые каналы раковины и сама ее поверхность рассчитаны таким образом, чтобы струи воды не только плавно, по дуге, разворачивались, но еще и с минимальной силой распределялись по поверхности чаши, обрабатывая всю ее площадь. В результате смыв происходит более надежно и с меньшим количеством затрачиваемой на это дело воды.
Действительно, работа по удалению содержимого чаши унитаза будет безукоризненной лишь в том случае, если поверхность готового изделия с высокой точностью соответствует рассчитанным шаблонам. Ведь даже при отклонении всего в 0,2-0,3 мм от рассчитанной траектории существенно нарушаются расчетные характеристики водяных струй и образуются брызги, возникает дополнительный шум. Добавьте сюда идеально гладкую поверхность, что препятствует налипанию всего лишнего (долой ершики!) - и получится очень практичное, удобное, красивое и, увы, дорогостоящее сооружение, которое, конечно же, украсит вашу ванную комнату.
Сливной бачок
В отличие от привычной рычажной системы отечественных бачков, импортная сантехника имеет кнопочный слив. Если бачок наружный (обычный), кнопка всегда располагается посередине его крышки. Если бачок встроенный (застенный), место кнопки - на стене.
Обыкновенно при каждом сливе расходуется примерно 5-6 литров воды, но есть и экономичные системы. В этом случае кнопка слива разделена на две половины: прожимаете одну половину кнопки - сливается обычное количество воды, другую - только половина дозы, то есть 2- 3 литра воды. По общему мнению, этого вполне достаточно для полной замены жидкости в чаше унитаза.
Кнопка выполняет не только декоративные функции и "регулирует" расход воды. Если вдруг выйдет из строя сливное устройство, кнопка снимается, в образовавшееся отверстие просовывается рука и блок легко извлекается. Но, что самое главное, после ремонта деталь просто опускается обратно, без какой-либо дополнительной установки на место.
Важная деталь - способ наполнения сливного бачка: если вода подается снизу небольшим фонтанчиком, шума будет гораздо меньше, чем при обычном боковом подключении.
Несомненно, большой интерес вызывают застенные бачки, пока еще мало распространенные в нашей стране. Застенный бачок с виду напоминает обычную пластиковую канистру со специальными отверстиями для труб и дополнительными элементами. Корпус, изготовленный из сверхпрочного полиэтилена, оснащен специальными "ушками" для настенного крепления. "Ушки" болтами соединяются с перфорированными пластинами, которые, в свою очередь, крепятся к стене шурупами. Это и весь монтаж. Снаружи такие бачки могут иметь пенопластовое покрытие, выполняющее функцию зашиты от конденсата и обеспечивающее дополнительную звукоизоляцию.
Бачок соединяется с унитазом посредством отводной трубки, на которой имеется резиновая манжетка со вставленной трубкой и декоративной розеткой (она закрывает место соединения). После завершения монтажных работ на стену снаружи устанавливается кнопка для слива воды. Никаких дополнительных креплений в данном случае не требуется, потому что вся нагрузка приходится на унитаз, стоящий на полу.
Встроенные бачки бывают двух видов: для напольных (без монтажной рамы) и подвесных (с монтажной рамой) унитазов. Очевидно, что перед покупкой подвесного унитаза со скрытым бачком следует определить, на какую стену будет устанавливаться сантехника. Варианта два: либо это прочная кирпичная или бетонная стена, либо легкая перегородка
Вместе с этим смотрят:
Авангардизм як явище архiтектури ХХ столiття
Автоматическая автозаправочная станция на 250 заправок в сутки
Анализ деятельности строительного предприятия "Луна-Ра-строй"
Анализ проектных решений 20-ти квартирного жилого дома