Проектирование и расчет балочной клетки
МИНИСТЕРСТВО ОБРАЗОВАНИЯ И НАУКИ РОССИЙСКОЙ ФЕДЕРАЦИИ
Федеральное агентство по образованию
МОСКОВСКИЙ ГОСУДАРСТВЕННЫЙ СТРОИТЕЛЬНЫЙ УНИВЕРСИТЕТ (МГСУ)
Факультет ПГС-о
Кафедра Металлические конструкции
КУРСОВОЙ ПРОЕКТ
По дисциплинеМеталлические конструкции
Тема:Проектирование и расчет балочной клетки
Выполнил студент
Поздняков Н.В., ПГС-о, IV курс, 2 группа
Руководитель проекта
Морозова Д.В.
МЫТИЩИ 2005 г.
Содержание
1. Исходные данные
2. Выбор схемы балочной клетки
2.1 Расчет настила
2.2 Усложненный тип балочной клетки
3. Проектирование и расчет главных балок
3.1 Изменение сечения главной балки по длине
3.2 Проверка прочности и общей устойчивости главной балки
3.3 Проверка местной устойчивости сжатого пояса и стенки сварной балки
3.4 Расчет поясных швов главной балки
3.5 Расчет опорного ребра главной балки
3.6 Проектирование стыка главной балки на высокопрочных болтах
3.7 Проектирование сварного стыка главной балки
4. Проектирование и расчет колонн
4.1 Расчетная схема и расчетная длина колонны
4.2 Определение продольной силы в колонне, выбор типа сечения колонны
4.3 Подбор сечения, проверка общей устойчивости колонн и местной устойчивости стенки и полок
4.4 Расчет и конструирование оголовка колонны
4.5 Расчет и конструирование базы колонны
Список используемой литературы
1. Исходные данные
| Шаг колонн в продольном направлении А, м | 16 |
| Шаг колонн в поперечном направлении B, м | 6 |
| Габариты площадки в плане | 3Ах3В |
| Отметка верха настила, м | 9 |
| Строительная высота перекрытия, м | не ограничена |
Временная равномерно распределенная нагрузка, кН/м2 | 22 |
Материал конструкций: ВаВаВаВаВаВаВаВа настила ВаВаВаВаВаВаВаВа балок настила и вспомогательных ВаВаВаВаВаВаВаВа главных балок ВаВаВаВаВаВаВаВа колонн ВаВаВаВаВаВаВаВа фундамента | сталь С235 сталь С245 сталь С255 сталь С275 бетон В12,5 |
| Допустимый относительный прогиб настила | 1/120 |
Тип сечения колонны Сопряжение колонны с фундаментом | сплошная шарнирное |
2. Выбор схемы балочной клетки
балочная клетка настил прочность колонна

2.1 Расчет настила
Несущий настил состоит из стального листа, уложенного на балки и приваренного к ним.
Уже заранее зная оптимальную толщину настила, приведем подбор настила и балок настила именно для этой толщины.
По графику зависимости l/t для листового настила шарнирно закрепленными краями от заданного прогиба и нормативной нагрузки на настил получаем l/t=150.
Определим расход металла при толщине настила t = 6 мм и t = 12 мм.
При t = 6 мм
l=150х6=900 мм, тогда число балок настила равно n=16000/900= =17,78 шагов или 18 балок.
Принимаем n = 18 , a1= 900 мм.

Схема нормального типа балочной клетки при t=6 мм и а1=900 мм
При t = 12 мм
l=150х12=1800 мм, т.к. рекомендованный шаг балок настила находиться в пределах от 750 до 1200 мм, то принимаем l=1200 мм, тогда число балок настила равно n=16000/1200=13,33 шага или 14 балок. Принимаем n = 14, a2 = 1200 мм.

Схема нормального типа балочной клетки при t=12 мм и а2=1200 мм
2.1.1 Рассматриваем 1 вариант при tн = 6 мм
Толщина настила tн = 6 мм
Вес настила r = 7,85 г/см3 = 7850 кг/м3
при tн = 6 мм ВаВаВавес gn= 0,471 кН/м2
Расчетная схема балок настила

Нормативная нагрузка на балку настила
qn = (pn +gn)·a1 = (22+0,471)·0,9 = 20,22 кН/м
Расчетная нагрузка на балку настила
q= (gp·pn + gg·gn)· a1 = (1,2·22 + 1,05·0,471)·0,9 =24,21 кН/м
gp= 1,2, gg= 1,05 тАУ коэффициенты надежности
Расчетный изгибающий момент (длина балки настила 6 м)
кН×м = 10892 кН×см.
Требуемый момент сопротивления балки настила:
Ва см3.
При условии Wx>Wтр по ГОСТ 8239-72 принимаем стальной горячекатанный двутавр № 30 с уклоном внутренних граней полок. Для него из сортамента выписываем: Wx = 472 см3; Ix = 7080 см4; g = 36,5 кг/м, ширина полки b=135 мм.
Так как W = 472
см3
> Wр,тр = 412,58 см3, то проверяем только прогиб балки настила по формуле:
,
здесь l тАУ длина изгибаемой балки, в нашем случае это В=600 см.
Васм.
По формуле находим, что наибольший допустимый прогиб для балки такой длины составляет:
см.
f = 2,34 < 2,4 = [f], следовательно принятая балка удовлетворяет условиям прочности и прогиба. Проверку касательных напряжений в прокатных балках при отсутствии ослабления опорных сечений обычно не производят, так как она легко удовлетворяется из-за относительно большой толщины стенок балок.
Общую устойчивость балок настила проверять не надо, так как их сжатые пояса надежно закреплены в горизонтальном направлении приваренным к ним настилом.
Выбранная балка настила проходит по всем проверкам.
Вычислим общую массу настила и балок настила на одном пролете:
кг,
тогда расход металла на 1 м2 будет:
кг/м2.
2.1.2 Рассматриваем 2 вариант при tн = 12 мм
Толщина настила tн = 12 мм
Вес настила r = 7,85 г/см3 = 7850 кг/м3
при tн = 12 ммВаВаВа вес gn= 0,942 кН/м2
Нормативная нагрузка на балку настила
qn = (pn +gn)·a2 = (22+0,942)·1,2 = 27,53 кН/м
Расчетная нагрузка на балку настила
q= (gp·pn + gg·gn)·a2 = (1,2·22 + 1,05·0,942)·1,2 =32,87 кН/м
gp= 1,2, gg= 1,05 тАУ коэффициенты надежности
Расчетный изгибающий момент (длина балки настила 6 м)
кН×м = 14790 кН×см.
Требуемый момент сопротивления балки настила:
Ва см3.
При условии Wx>Wтр по ГОСТ 8239-72 принимаем стальной горячекатанный двутавр № 33 с уклоном внутренних граней полок. Для него из сортамента выписываем: Wx = 597 см3; Ix = 9840 см4; g = 42,2 кг/м, ширина полки b=140 мм.
Так как W = 597 см3 > Wр,тр = 560,23 см3, то проверяем только прогиб балки настила по формуле:
,
здесь l тАУ длина изгибаемой балки, в нашем случае это В=600 см.
Васм.
По формуле находим, что наибольший допустимый прогиб для балки такой длины составляет:
см.
f = 2,29 < 2,4 = [f], следовательно принятая балка удовлетворяет условиям прочности и прогиба. Проверку касательных напряжений в прокатных балках при отсутствии ослабления опорных сечений обычно не производят, так как она легко удовлетворяется из-за относительно большой толщины стенок балок.
Общую устойчивость балок настила проверять не надо, так как их сжатые пояса надежно закреплены в горизонтальном направлении приваренным к ним настилом.
Вычислим общую массу настила и балок настила на одном пролете:
кг,
тогда расход металла на 1 м2 будет:
кг/м2.
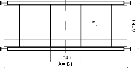
2.2 Усложненный тип балочной клетки
В усложненном типе балочной клетки балки настила, в отличии от нормального типа, опираются не на главные балки, а на вспомогательные.
Выберем шаг вспомогательных балок - l. Он должен быть в пределах от 3 до 4 м. Примем l = 4 м, т.е. при разбиении А=16 м на 4 части.

Схема усложненного типа балочной клетки.
Подбор настила
Настил будем выбирать из соображений экономии металла и принятой за минимальный шаг балок настила 900 мм.
Число балок настила равно n = 6000/900 = 6,67 шагов или 7 балок.
Толщина настила tн = 6 мм вес gn= 0,471 кН/м2
Нормативная нагрузка на балку настила
qn = (pn +gn)·a = (22+0,471)·0,9 = 20,22 кН/м
Расчетная нагрузка на балку настила
q= (gp·pn + gg·gn)·a = (1,2·22 + 1,05·0,471)·0,9 =24,21 кН/м
gp= 1,2, gg= 1,05 тАУ коэффициенты надежности
Расчетная схема балок настила

Расчетный изгибающий момент (длина балки настила 4 м)
кН×м = 4842 кН×см.
Требуемый момент сопротивления балки настила:
Ва см3.
При условии Wx>Wтр по ГОСТ 8239-72 принимаем стальной горячекатанный двутавр № 22 с уклоном внутренних граней полок. Для него из сортамента выписываем: Wx = 232 см3; Ix = 2550 см4; g = 24 кг/м, ширина полки b=110 мм.
Проверим подобранную балку настила на наличие пластических деформаций:
кН/см2 <Ва 24 кН/см2.
Проверяем прогиб балки настила по формуле:
,
здесь l тАУ длина изгибаемой балки, в нашем случае это l=400 см.
Васм.
По формуле находим, что наибольший допустимый прогиб для балки такой длины составляет:
см.
f = 1,28 < 1,6 = [f], следовательно принятая балка удовлетворяет условиям прочности и прогиба. Проверку касательных напряжений в прокатных балках при отсутствии ослабления опорных сечений обычно не производят, так как она легко удовлетворяется из-за относительно большой толщины стенок балок.
Общую устойчивость балок настила проверять не надо, так как их сжатые пояса надежно закреплены в горизонтальном направлении приваренным к ним настилом.
Определение силы растягивающая настил и катет сварного шва
По первому предельному состоянию найдем распор Н:
кН/см.
Ва- приведенный модуль жесткости.
Таким образом для нашего случая получим
кН/см2,
Определим катет шва сварного соединения настила и балки настила:
,ВаВаВаВаВаВаВаВаВаВаВаВаВаВаВаВаВаВаВаВаВа (2)
где f - коэффициент, принимаем при полуавтоматической сварке элементов из стали по СНиП II-23-81* таблица 34 равным 0,9;
lw тАУ расчетная длина шва, принимаем равнойВа = 1 см;
Rwf тАУ расчетное сопротивление угловых швов срезу по металлу шва, по СНиП II-23-81* таблица 3 определяется как:
,
где Rwun тАУ нормативное сопротивления металла шва по временному сопротивлению, определяем по СНиП II-23-81* таблица 56 для электрода типа Э42 и марки проволоки Св-08 равно 41 кН/см2;
gwm тАУ коэффициент надежности по материалу по металлу шва, по СНиП II-23-81 таблица 3 равен 1,25.
кН/см2.
Таким образом с учетом этого расчетная толщина шва сварного соединения настила и балок настила по формуле (1) будет
см.
Принимаем kw = 4 мм, так как это минимально допустимый катет.
Подбор вспомогательных балок
Материал вспомогательных балок тАУ сталь С245, имеющая расчетное сопротивление растяжению, сжатию и изгибу по пределу текучести Ry = 24 кН/см2.
Воспользуемся правилом: если количество шагов балок настила £ 5, то нагрузка воспринимаемая вспомогательными балками считается как действие сосредоточенных сил; если > 5, то нагрузка на вспомогательную балку принимается равномерно распределенной. Итак, m = 7 > 5, следовательно, для вспомогательной принимаем такую же расчетную схему, как для балки настила.
Вес балок настила:
кг/м2.
Тогда нормативная нагрузка на вспомогательную балку без учета собственного веса вспомогательных балок будет равна
кН/м = 0,9095 кН/см.
Расчетная нагрузка на вспомогательную балку c учетом собственного веса вспомогательных балок будет равна
кН/м=1,089 кН/см
С учетом принятой расчетной схемы и того, что на балку настила действует равномерно распределенная нагрузка, расчетный максимальный изгибающий момент найдем по формуле:
кН×м = 48913 кН×см.
Требуемый момент сопротивления вспомогательной балки:
см3.
При условии Wx > Wтр по ГОСТ 26020-83 принимаем стальной горячекатанный двутавр № 55Б1 с параллельными гранями полок. Для него из сортамента выписываем: Wx = 2051 см3; Ix = 55680 см4; g = 89 кг/м; b = 220 мм; t = 13,5 мм.
Проверим подобранную балку настила на наличие пластических деформаций по следующей формуле:
,
кН/см2 < Ва24 кН/см2.
Проверим прогиб балки настила по формуле:
,
здесь l тАУ длина изгибаемой балки, в нашем случае это В = 600см.
см.
По формуле находим, что наибольший допустимый прогиб для балки такой длины составляет:
см.
f = 1,34 < 2,4 = [f], следовательно принятая балка удовлетворяет условиям прогиба.
Проверим общую устойчивость вспомогательных балок в середине пролета, в сечении с наибольшими нормальными напряжениями. Их сжатый пояс закреплен от перемещений балками настила, которые вместе с приваренным к ним настилом образуют жесткий диск, и за расчетный пролет следует принимать расстояние между балками настила lef = 900 мм. Условие устойчивости записывается в виде:
,
где lef тАУ расчетная длина балки между связями, препятствующими поперечным смещениям сжатого пояса балки;
bf тАУ ширина сжатого пояса (ширина полки);
tf тАУ толщина сжатого пояса (толщина полки);
hef тАУ расстояние (высота) между осями поясных листов.
.
Условия применения уравнения устойчивости плоской формы изгиба:
применение формулы возможно.
При t=0 и с1х=сх получаем
,
.
Таким образом, принятое сечение удовлетворяет требованиям устойчивости.
Вычислим общую массу настила, балок настила и вспомогательных балок на одном пролете:
![]()
тогда расход металла на 1 м2 будет:
кг/м2.
| Тип балочной системы | Масса, кг | ||||
| Настил | Балки настила | Второстепенные балки | На один пролет | На 1 м2 | |
| 1 | 4521,6 | 3942 | - | 8463,6 | 88,16 |
| 2 | 9043,2 | 3544,8 | - | 12588 | 131,13 |
| 3 | 4521,6 | 2688 | 2136 | 9345,6 | 97,35 |
Вместе с этим смотрят:
Авангардизм як явище архiтектури ХХ столiття
Автоматическая автозаправочная станция на 250 заправок в сутки
Анализ деятельности строительного предприятия "Луна-Ра-строй"
Анализ проектных решений 20-ти квартирного жилого дома